Permanente link
Naar de actuele versie van de regeling
https://lokaleregelgeving.overheid.nl/CVDR759225
Naar de door u bekeken versie
https://lokaleregelgeving.overheid.nl/CVDR759225/2
Geldend van 01-04-2026 t/m heden
Omgevingsvisie Beverwijk
Voorwoord
Met trots presenteer ik u de Omgevingsvisie Beverwijk 2040. Een visie die ons helpt om een stap vooruit te zetten: om een gemeente te worden met een brede welvaart in een gezondere leefomgeving.
We hebben deze visie opgesteld in het kader van de Omgevingswet. De visie is een vervolg op het koersdocument dat in 2021 is vastgesteld. Ook nu heeft een brede vertegenwoordiging van partners en partijen met wie onze gemeente al jaren samenwerkt, meegeholpen bij het opstellen van de visie. Ik wil al deze organisaties en hun vertegenwoordigers graag hartelijk bedanken voor hun inbreng.
De Omgevingsvisie is een belangrijk strategisch document voor de toekomst van Beverwijk. Het geeft inzicht aan al ons omgeving gerelateerde beleid, de programma’s die in uitvoering zijn, onze betrokkenheid in de regio en daarbuiten en de grote opgaven die de komende jaren op ons afkomen.
De omgevingsvisie laat zien dat er veel wensen en uitgangspunten naast elkaar tot uitvoering kunnen worden gebracht. Maar de visie geeft ook richting aan strategische keuzes; daar waar het schuurt in beleid en ambities.
Beverwijkers en Wijk aan Zee’ers voelen zich betrokken bij hun woon- en leefomgeving en hebben hier een binding mee. Zij willen graag verblijven in een gemeente met voldoende (diverse) woningen in een aantrekkelijke, groene en kindvriendelijke buurt. In een gemeente die sociaal en inclusief is, met een bruisend centrum, aantrekkelijke winkelgebieden en voldoende voorzieningen voor sport, cultuur en welzijn. Een gemeente die verzorgd, uitnodigend, levendig, bedrijvig veilig en bereikbaar is. En waar voldoende banen zijn in o.a. de duurzame (maak-)industrie. Zowel nu als in de toekomst.
Helaas is in de afgelopen jaren meer dan voorheen duidelijk geworden dat de gezondheid in de gemeente Beverwijk te wensen overlaat. Daarom is een brede welvaart in een gezonde leefomgeving het overkoepelende thema van deze visie geworden. Met een brede welvaart in een gezonde leefomgeving, willen we de kwaliteit van leven, wonen, werken, verblijven en recreëren in onze gemeente voor alle inwoners en betrokkenen verbeteren.
Ik verwacht dat u net als ik blij bent met deze Omgevingsvisie Beverwijk 2040, waarmee we een stap voorwaarts maken naar een nog aantrekkelijkere en gezondere gemeente.
Ali Bal
Wethouder Ruimtelijke Ordening en Omgevingswet
1 Inleiding
1.1 Wat is de omgevingsvisie?
De omgevingsvisie is een integrale visie waarin we als gemeente strategische hoofdkeuzes voor beleid voor de fysieke leefomgeving uiteenzetten. Dit betekent dat de visie betrekking moet hebben op alle terreinen van de fysieke leefomgeving en dat de kernbegrippen uit de Omgevingswet “gezondheid, veiligheid en omgevingskwaliteit” herkenbaar beschreven worden. De “fysieke leefomgeving” is een erg breed begrip en omvat onder andere beleidsterreinen als wonen, cultureel erfgoed, energie-infrastructuur, landbouw, landschap, ruimtelijke ordening, economie, gezondheid, milieu, natuur, water, en sociale en culturele infrastructuur (voorzieningen).
Met de omgevingsvisie hebben we straks één samenhangende visie op strategisch niveau voor de gehele fysieke leefomgeving in de gemeente Beverwijk. Naast een beschrijving van de fysieke leefomgeving is er integraal aandacht voor onderwerpen als economie, gezondheid en duurzaamheid. De relatie tussen de fysieke omgeving en maatschappelijke opgaven krijgt daarom een belangrijke plek in de omgevingsvisie.
Deze omgevingsvisie is een verplicht instrument onder de Omgevingswet. De Omgevingswet bundelt de wetgeving en regels voor ruimte, wonen, infrastructuur, milieu, natuur en water. De wet regelt daarmee het beheer en de ontwikkeling van de fysieke leefomgeving. Met de Omgevingswet wordt het stelsel van ruimtelijke regels volledig herzien. Het doel van de Omgevingswet is zorgen voor meer snelheid, flexibiliteit en samenhang bij ruimtelijke ontwikkelingen. De omgevingsvisie is hiermee een belangrijk onderdeel van de invoering van de wet in de gemeente Beverwijk.
De omgevingsvisie van de gemeente Beverwijk beschrijft de keuzes die we vandaag moeten maken, om in 2040 als stad nog sterker, mooier en duurzamer te zijn. We gebruiken de omgevingsvisie als ‘stip op de horizon’ bij het uitwerken van onze plannen en ideeën.
1.2 Hoe en met wie hebben we de visie gemaakt?
Op 16 december 2021 heeft de gemeenteraad het ‘Koersdocument Omgevingsvisie Beverwijk’ vastgesteld. Het koersdocument1 heeft de eerste inhoudelijke stap gevormd in de richting van een integrale, strategische langetermijnvisie voor de fysieke leefomgeving van Beverwijk.
In het koersdocument zijn we begonnen met het inventariseren en analyseren van de huidige (ruimtelijke) situatie en het bestaande (ruimtelijke) beleid. De identiteit en kernkwaliteiten van Beverwijk hebben, samen met de strategische koers die al is ingezet, de basis gevormd voor het proces dat is doorlopen om tot het koersdocument te komen. Ook belangrijke (maatschappelijke) trends en ontwikkelingen en de belangrijkste opgaven binnen de gemeente zijn uitgebreid geïnventariseerd en besproken.
Het opstellen van het koersdocument is in samenwerking met een ‘kopgroep’ gedaan. De kopgroep bestaat uit verschillende partners en experts binnen en buiten de gemeentelijke organisatie. De kennis en expertise die hier aanwezig is hebben we ten volste willen benutten.
De visie gaat verder dan een optelsom van bestaande beleidsplannen en – visies. Bij het optellen komen conflicten aan het licht, waardoor keuzes moeten worden gemaakt. Deze keuzes hebben we in het koersdocument samengevat als ‘schuurpunten’. Deze schuurpunten hebben de basis gevormd voor verdiepende gesprekken met diverse partners en bewoners om te komen tot een integrale omgevingsvisie.
Na vaststelling van het koersdocument is er in de zomer van 2022 door IBO research een onderzoek uitgevoerd onder inwoners. Het doel van dit onderzoek was om de schuurpunten uit het koersdocument voor te leggen aan de bevolking. In totaal hebben 580 mensen meegedaan aan dit onderzoek (via een directe uitnodigingsbrief en/of een open link op de website en social media van de gemeente).
Na de gemeenteraadsverkiezingen van 2022 zijn de verschillende uitgangspunten besproken met de gemeenteraad en het college. De uitgangspunten zijn aangepast op basis van deze gesprekken. Hierna is gestart met het uitwerken van het koersdocument richting een ‘echte’ omgevingsvisie.
In februari 2023 zijn opnieuw zoveel mogelijk inwoners, ondernemers, maatschappelijke organisaties en ketenpartners geraadpleegd tijdens de ‘week van de omgevingsvisie’. Dit keer met de al eerder opgehaalde informatie in de hand. Opnieuw is de ‘kopgroep’ geraadpleegd, samen met een bredere samenstelling van ketenpartners, ondernemers en organisaties binnen de gemeente. Tijdens deze week is een (digitale én fysieke) bewonersavond georganiseerd. Bewoners konden hier mee praten over wat zij vinden van de stad, welke punten er sterk worden gevonden aan Beverwijk en op welke punten Beverwijk nog kan verbeteren. Daarnaast zijn een basisschool en een middelbare school bezocht om ook kinderen en jongeren bij de omgevingsvisie te betrekken. Wat goed is voor een kind of jongere, is namelijk ook goed voor de toekomst van de stad en alle mensen.
Daarnaast heeft er in februari en maart 2023 een digitale vragenlijst uitgestaan. Ruim 1.250 inwoners hebben de vragenlijst ingevuld en hun ideeën voor de toekomst van Beverwijk en hun woonwijk gedeeld. Al deze informatie is betrokken in deze omgevingsvisie. We zijn blij met de grote betrokkenheid van deze Beverwijkers en bedanken iedereen die een bijdrage heeft geleverd.
Ten slotte hebben er begin 2023 een aantal ontwikkelingen plaatsgevonden die de doelstelling van de omgevingsvisie hebben aangescherpt. Het gaat om diverse opeenvolgende gezondheidsonderzoeken (RIVM) over de gezondheid in de IJmond en diverse onderzoeken (onder andere vanuit het programma Spoorzone) met betrekking tot de toegankelijkheid en bereikbaarheid van Beverwijk. Naast alle inbreng vanuit de gemeenteraad, het college en de samenleving, hebben deze ontwikkelingen geleid tot een eenduidig perspectief voor de toekomst van Beverwijk en Wijk aan Zee.
1.3 Leeswijzer
De omgevingsvisie bestaat uit een aantal onderdelen:
Hoofdstuk 1 beschrijft de aanleiding voor het opstellen van deze omgevingsvisie. De inwerkingtreding van de Omgevingswet wordt kort toegelicht, waarna het proces tot nu toe en het vervolg wordt beschreven.
Hoofdstuk 2 bevat het overkoepelende verhaal van deze omgevingsvisie. Hierin beschrijven we waar we nu staan, en hoe we de komende jaren zullen werken aan een brede welvaart voor onze gemeente en al haar inwoners.
In hoofdstuk 3 beschrijven we de Beverwijkse opgaven op basis van verschillende belangrijke thema’s voor de gemeente. Het gaat om een gezonde, krachtige en toekomstbestendige gemeente (economie, wonen, ruimtelijke ontwikkelingen); van en naar de IJmond (mobiliteit); van en voor alle Beverwijkers (sociaal domein, gezondheid, zorg, veiligheid, kunst, cultuur en erfgoed); en een upgrade van natuur, milieukwaliteit en schone energie (milieu, natuur, klimaat, energietransitie).
Hoofdstuk 4 beschrijft een meer specifieke richting per deelgebied. We beschrijven per gebied de kernkwaliteiten en de identiteit, en gaan daarna per gebied specifiek in op de in hoofdstuk 3 uiteengezette thema’s. Daarnaast staan we per gebied stil bij de gewenste milieukwaliteit en de afwegingen die per deelgebied wenselijk zijn bij nieuwe ontwikkelingen.
Hoofdstuk 5 laat zien hoe we de omgevingsvisie uitvoeren. We benoemen hier de samenhang met andere omgevingswetinstrumenten en maken een koppeling met de uitvoering van de omgevingsvisie.
2 Beverwijkse brede welvaart
Beverwijk heeft een narratief: een overkoepelende visie die de verbinding legt tussen alle benoemde deelambities en de verschillende thema’s en deelgebieden die beschreven zijn in hoofdstuk 3 en 4.
Het narratief verbindt de inhoud met de wens om sterk in te steken op een noodzakelijke brede welvaart en gezonde woonomgeving in Beverwijk.
In al haar handelen streeft de gemeente het volgende na: gezonde, zelfredzame inwoners, in een sterke sociale en economische structuur, in balans met natuur en voorzien van groen. Maar belangen zijn soms strijdig. Het realiseren van het ene belang, kan ten koste gaan van andere belangen. Daarom is een omgevingsvisie nodig: die helpt om verschillende belangen af te wegen, waar nodig bij te sturen en de gewenste balans te vinden.
Historische positie en ontwikkeling Beverwijk
Beverwijk was eens een tuindersgemeenschap en handelsplaats aan het Oer-IJ. De gemeente Beverwijk heeft kunnen groeien door haar bijzondere ligging. Dichtbij en goed bereikbaar voor omliggende steden als Amsterdam, Haarlem, Zaandam en Alkmaar, kon Beverwijk uitgroeien tot een belangrijke middeleeuwse handelsplaats. Al in 1298 kreeg Beverwijk stadsrechten.
De handelsgeschiedenis heeft tastbare sporen nagelaten. Het Meerplein is de oude haven. De Zeeweg was de handelsroute tussen Wijk aan Zee en Beverwijk en de Breestraat was het marktcentrum. De handelsgeschiedenis en ondernemersgeest vormen het DNA van de gemeente en haar inwoners. In Wijk aan Zee herinneren de kleinschaligheid en de historische bebouwing, maar ook het ruwe en ongepolijste karakter aan de vissersgeschiedenis.
Vanaf de 17e eeuw ontwikkelde Kennemerland zich tot een zone met honderden buitenplaatsen. Dit had ook grote effecten op het landschap in en rond Beverwijk, want naast de buitenplaatsen werden ook lanen, tuinen, landerijen en bossen aangelegd. Bewaard gebleven buitenplaatsen zijn onder meer Scheijbeeck, Akerendam en Westerhout.
In het jaar 1799 werd een linie van 26 lunetten aangelegd ter bescherming tegen Engels-Russische invallen. Van zeven lunetten zijn de restanten herkenbaar in het landschap, en een aantal is gaaf behouden gebleven en zelfs gerestaureerd. In de late 19e eeuw werd Beverwijk onderdeel van de Stelling van Amsterdam, een unieke waterlinie die in 1996 aangewezen is als Unesco Werelderfgoed. Het Fort aan de Sint Aagtendijk en het Fort bij Velsen liggen op het grondgebied van Beverwijk. Tijdens de Tweede Wereldoorlog werd Beverwijk onderdeel van de Atlantikwall, een 2.685 kilometerlange verdedigingslinie langs de Europese westkust. Restanten hiervan zijn nog in het duingebied bij Wijk aan Zee terug te vinden in het landschap.
Beverwijk transformeerde ongeveer gelijktijdig van havenstad naar industriestad. De aanleg van het Noordzeekanaal zorgde ervoor dat Beverwijk haar belangrijke havenfunctie verloor. Nadat echter in 1918 de Koninklijke Nederlandse Hoogovens werden geopend groeide Beverwijk uit tot een belangrijk industrieel centrum.
De gemeente zou huisvesting gaan bieden aan duizenden arbeiders die toestroomden. Het betekende de bouw van flats en eengezinswoningen. De nieuwe wijken geven een uniek beeld van het stedenbouwkundig en architectonisch gedachtengoed van deze periode.
Deze geschiedenis werkt ook nu nog door in de identiteit van de stad: het is een stad van aanpakken, van maakindustrie én van commerciële en creatieve innovaties die dichtbij de Beverwijker staan. Daarnaast is Beverwijk in de regio een woonplaats die meer dan gemiddeld sociaal en betaalbaar is.
Nog altijd is gemeente Beverwijk een belangrijke schakel in de infrastructuur. Niet alleen voor de scheepvaart, maar ook voor het wegverkeer binnen de MRA, de regio Alkmaar en Noord-Holland-Noord. Ook voor nieuwe opgaven, zoals de aanlanding van energie-infrastructuur uit de Noordzee en op termijn voor waterstof, is de ligging van Beverwijk van belang.
Maar groei heeft een keerzijde. In de eerste plaats omdat het grondgebied van de gemeente zo goed als vol is geraakt. Er is zowel weinig planologische ruimte als landschap meer over en het verkeer in de stad loopt vast. Lucht- en geluidsvervuiling van de industrie en mobiliteit heeft tot aantoonbare schade aan de gezondheid van inwoners én natuur geleid. Dit betekent dat Beverwijk ook tegen haar grenzen aanloopt qua druk op het milieu en de leefomgeving.
Hoofdambitie voor Beverwijk en Wijk aan Zee
Beverwijk richt zich op het realiseren van brede welvaart. De gemeente Beverwijk heeft geconcludeerd dat zij nu prioriteit wil geven aan het oplossen van haar eigen knelpunten en opgaven om een gezonde stad te worden. Daarvoor wil zij de restruimte die er nog is goed benutten. Alleen als andere opgaven (van hogere overheden of meer dan alleen stedelijk van aard) ook een effectieve impuls geven aan het Beverwijkse doel kunnen deze opgaven integraal worden ingepast.
Beverwijk wil een gezonde gemeente zijn met de unieke stad Beverwijk en het kustdorp Wijk aan zee. Een gemeente waar mensen met plezier en in een goede omgeving wonen, werken, recreëren of op bezoek komen. Waar ruimte is voor innovatieve economische ontwikkelingen zónder dat deze de omgeving sterk belasten. En met respect voor de draagkracht van de natuur en de aarde.
Om de balans te herstellen, zijn stevige keuzes nodig. De stad heeft immers weinig tot geen ruimte. En er is al bovenmatig veel lucht- en geluidsvervuiling. Ook in alle toekomstige keuzes is het nodig dat Beverwijk het versterken van de brede welvaart en gezondheid centraal stelt.
Brede Welvaart
Omvat alles wat mensen van waarde vinden. Naast materiële welvaart gaat het vooral ook om welzijn en aspecten als gezondheid, onderwijs, erfgoed, milieu en leefomgeving, sociale cohesie, persoonlijke ontplooiing en (on)veiligheid. Het is de kwaliteit van leven (zowel fysiek als sociaal) in het hier en nu, maar ook de mate waarin deze ten koste gaat van de brede welvaart van latere generaties of van die van mensen elders in de wereld. Brede welvaart gaat dus over drie groepen mensen: de mensen die nu in Nederland wonen (‘hier en nu’), de volgende generaties – onze kinderen en kleinkinderen – (‘later’) en mensen in andere landen (‘elders’).

De rollen van Beverwijk
Een stad als Beverwijk heeft verschillende rollen. Deze rollen zet zij in, afhankelijk van behoeften en omstandigheden. We onderscheiden: het dienstbare Beverwijk, het voor zichzelf zorgende Beverwijk en het verzorgende Beverwijk.
Het dienstbare Beverwijk. Dienstbaar aan grote bovengemeentelijke belangen, waar de stad zelf relatief weinig van profiteert. Denk hierbij aan ruimte bieden aan industrie van provinciaal, nationaal en internationaal belang mét de benodigde randontwikkelingen. Of ruimte bieden aan bovengrondse en ondergrondse infrastructuur (zowel mobiliteit als energie) voor regionale, provinciale en landelijke belangen. Maar ook het huisvesten van een grote groep mensen die een bovengemiddeld beroep doen op de draagkracht van de gemeente. En het bieden van intensief gebruikte recreatieve voorzieningen aan alle inwoners van de regio (en daarbuiten), zoals de badplaats Wijk aan Zee en de Bazaar.
Het voor zichzelf zorgende Beverwijk. Een Beverwijk dat zich inspant voor het gezond en aangenaam wonen, opgroeien, werken, recreëren en ondernemen van al haar inwoners. Het is het Beverwijk dat zorgt voor een omgeving met voorzieningen waarin haar jeugd in goede gezondheid opgroeit en zich goed kan ontwikkelen. En waar ook volwassen Beverwijkers zich in een gezonde omgeving kunnen ontplooien en ontspannen.
Tenslotte is er het verzorgende Beverwijk. De zelfredzaamheid van inwoners is belangrijk. Maar Beverwijk ondersteunt inwoners die dat nodig hebben. Vanuit de verzorgende rol beschermt Beverwijk ook de kwetsbare natuurlijke en historische waarden. En draagt zorg voor het niet verder overbelasten van de aarde. Het verzorgende Beverwijk staat voor sociale, historische en natuurlijke waarden. Deze taak en rol realiseert de gemeente samen met inwoners en betrokken partners.
Geen van deze drie rollen kan overgedragen worden aan een andere partij. Het zijn alle drie taken van de gemeente Beverwijk. Een goede balans tussen deze drie rollen is onmisbaar.
De balans in rollen nu (anno 2023)
De gemeente Beverwijk heeft haar dienstbare rol - het behartigen van de belangen van land en regio - decennia lang goed vervuld. Zij heeft verantwoordelijkheid gekregen en genomen. En heeft met de beschikbare ruimte bovengemiddeld bijgedragen aan het realiseren van gemeente-overstijgende opgaven.
Deze dienstbare rol is een keuze geweest. Zeker in eerdere jaren heeft die keuze positief bijgedragen aan de ontwikkeling en de aard van de gemeente zoals die nu is. Maar nu constateren we dat de dienstbare rol te dominant is geworden. De kwaliteit van de leefomgeving en de gezondheid van de inwoners staat onder druk door de jarenlange industriële uitstoot en de grote druk van regionale en lokale mobiliteit.
Door de ingesloten ligging tussen de Noordzee, Tata Steel, het Noordzeekanaal, de A22 en A9 en de bebouwde kom van Heemskerk en Velsen-Noord, is er letterlijk te weinig ruimte om aan bestaande behoeften of nieuwe ontwikkelingen en opgaven een plek te bieden, als deze niet rechtstreeks ten goede komen aan Beverwijk zelf. Dat geldt zowel binnen- als buiten de stad.
Op naar een brede welvaart!
De gemeente Beverwijk kiest ervoor om het versterken van de brede welvaart en gezondheid centraal te stellen. Dat betekent dat we bij elk vraagstuk afwegen hoe Beverwijk beter voor zichzelf kan zorgen. Daarbij zet de gemeente in op het realiseren van een betere balans. Hoe kunnen we de eerder ontstane nadelige invloed op de leefomgeving compenseren? En hoe combineren we de zorg voor de meest kwetsbare waarden met het versterken van Beverwijk in brede zin?
Zeven uitgangspunten maken de kansen voor het versterken van de brede welvaart in de gemeente concreet. We noemen dit de 7 Beverwijkse Brede Welvaart Versnellers. Het zijn uitgangspunten om verder vorm te geven in beleid, projecten en afspraken met partners. Uitgangspunten om prioriteiten te stellen. En om de juiste randvoorwaarden te stellen voor de brede welvaart ambities die Beverwijk heeft.
De 7 Beverwijkse Brede Welvaart Versnellers
-
a.
Gezonde leefruimte: schonere lucht en minder lawaai
-
b.
Vitaler en aantrekkelijker wonen
-
c.
Comfortabeler verplaatsen
-
d.
Groene industriezone
-
e.
Buiten wordt het tweede thuis
-
f.
Een sociale en inclusieve stad
-
g.
Completere stad
a. Gezonde leefruimte: schonere lucht en minder lawaai
De gemeente Beverwijk zet in op het verbeteren van de gezondheidssituatie en leefomgeving. Dat betekent bijvoorbeeld het verminderen van de milieudruk en de uitstoot van stoffen die leiden tot luchtverontreiniging en geluidsbelasting.
De industrie wordt innovatiever en duurzamer. Mobiliteit wordt schoner en stiller. Gebouwen worden energieneutraal en dragen niet meer bij aan de uitstoot. Daarbij is het doel niet minder industrie, mobiliteit en bebouwing, maar wel schoner. Waar schoner niet of misschien pas later mogelijk is, wordt afgewogen of de gewenste ontwikkeling door kan gaan of dat er compenserende maatregelen die de milieubelasting verminderen wenselijker zijn. Zodat Beverwijk als gehele gemeente, onder de streep, alsnog ‘schoner’ wordt.
b. Vitaler en aantrekkelijker wonen
Woonwijken in Beverwijk en Wijk aan Zee zijn stuk-voor-stuk sociale en vitale gemeenschappen. Waar kinderen en jongeren veilig en gezond opgroeien en waar inwoners omzien naar elkaar. We streven ernaar dat zoveel mogelijk inwoners zelfredzaam zijn en stimuleren dat actief. Als zelfredzaam (tijdelijk) niet lukt en inwoners hulp nodig hebben, ondersteunt de gemeente hen zo goed mogelijk. Iedereen moet kunnen meedoen in de samenleving.
De woningen zijn zo veel mogelijk duurzaam en energieneutraal, natuurinclusief en circulair, waarbij de kans op realisatie, de doorlooptijd, en de mate van betaalbaarheid wordt meegewogen. Elke wijk kent een mix van uiteenlopende doelgroepen: de sociale structuur heeft overal een hoge kwaliteit en in elke wijk is draagvlak voor uiteenlopende voorzieningen.
De omgeving van de woning wordt net zo gewaardeerd als de woning zelf. Een aantrekkelijke gebruiksvriendelijke groene, schaduwrijke en kindvriendelijke woonomgeving met ruimte voor de opvang van overtollig regenwater. Beverwijk biedt voldoende ruimte aan starters en senioren en wordt, meer dan voorheen ook een aantrekkelijke woonplaats voor middeninkomens. Deze groep met middeninkomens vormt de extra schouders die de sterke en evenwichtige stad nodig heeft.
c. Comfortabeler verplaatsen
De bereikbaarheid in en om Beverwijk is prima op orde, omdat we een uitstekende balans vinden tussen automobiliteit, openbaar vervoer en langzaam verkeer. Comfort voor alle gebruikers staat hierbij voorop. Binnen het stedelijke netwerk stimuleren we lopen en fietsen. Binnen het regionale netwerk intensiveren we het gebruik en de mogelijkheden van het openbaar vervoer. De sleutelwoorden zijn: doorstroming, comfort, gezondheid en veiligheid.
d. Innovatieve (groene) industriezone
De industrie en haven waren en zijn de belangrijkste economische dragers van Beverwijk. Met uiteenlopende innovaties zet de duurzame industrie van Beverwijk en de IJmond de toon. Samen met de regio streven we ernaar om het industriegebied te innoveren (groene industriezone) en, waar mogelijk, te verduurzamen op het gebied van Sustainable Industry (duurzame industrie) en Smart Energy (“slimme” energie van de toekomst) te worden. Dit altijd in nauw overleg met de ondernemers zelf.
Het bedrijfsleven weet productie (de maakindustrie) te combineren met de noodzakelijke energietransitie en circulariteit. Een nauwe samenwerking tussen onderwijs en bedrijfsleven is hierbij essentieel. De Beverwijkse industrie heeft belang bij dit sterke cluster waar circulariteit, zero-emissie, inclusie en duurzaamheid steeds vanzelfsprekender worden. Zij is er trots op om hiervan deel uit te maken. En vanzelfsprekend wil elke werknemer ook als bewoner deel uitmaken van deze sterke, welvarende stad in de IJmond.
e. Buiten wordt het tweede thuis
Op elke plek in de gemeente voelen inwoners van Beverwijk en Wijk aan Zee zich uitgenodigd en welkom om te genieten van de mooie groene stedelijkheid, de natuur, de levendigheid en historische bebouwing of landschappen.
Op een aantal plekken worden stedelijke, groene of landschappelijke kwaliteiten extra versterkt. De routes naar de belangrijkste voorzieningen richten we comfortabel in voor fietsers en voetgangers. De stad, het dorp en de buitengebieden zijn aangenaam om te verblijven en klimaatrobuust. Dit realiseren we met verzorgd natuurlijk groen en water, met aantrekkelijke plaatsen voor spel, beweging, sport en korte ontmoetingen. De zorg voor biodiversiteit en kwetsbare natuur hoort daar vanzelfsprekend bij.
f. Een sociale en inclusieve stad
We koesteren onze identiteit als ‘meer dan gemiddeld sociale gemeente’. Dat komt ook tot uitdrukking in de inrichting van de stad. De zorg voor mensen, ook zij die minder zelfredzaam of minder mobiel zijn, maakt deel uit van elke opgave. Gebouwen, woningen en buitenruimte die voor hen toegankelijk en uitnodigend zijn, zijn geschikt en fijn voor iedereen. En zorgen ervoor dat iedereen kan meedoen. Maatschappelijke- en zorgvoorzieningen zijn beschikbaar en bereikbaar voor alle inwoners. De inrichting van de gemeente stimuleert gezondheid en gezond gedrag.
Voor criminaliteit, uitsluiting en overlast is geen plaats in Beverwijk. We zorgen voor een gemeente waarin inwoners zich veilig voelen en de sociale veiligheid groot is. We houden daar rekening mee bij het ontwikkelen van gebouwen en openbare ruimtes. Daarbij zetten we altijd in om Beverwijk schoon, heel en veilig te houden.
g. Completere stad
Wie in de gemeente Beverwijk woont en/of werkt heeft alles voor handen. Het centrum is een aantrekkelijke plaats om inkopen te doen en uit te gaan, maar ook om er te wonen of er simpelweg te zijn. De wijken van Beverwijk en het dorp Wijk aan Zee hebben uiteenlopende lokale voorzieningen. Op stedelijk niveau is er een compleet aanbod waarin iedereen aan zijn trekken komt. Zo heeft Beverwijk ook aantrekkingskracht voor de regio.
Er zijn voldoende voorzieningen voor sport, cultuur en welzijn. De accommodaties zijn verzorgd, uitnodigend, levendig en bereikbaar. Zij nemen een centrale plaats in - net als de winkelcentra - in het hart van de gemeenschap. Clustering leidt daarbij tot extra levendigheid. Er zijn voldoende aantrekkelijke groenstructuren en parken met verbindingen voor voetgangers en fietsen. De stad en het dorp hebben duidelijke en aantrekkelijke entrees die de schoonheid, vitaliteit en gastvrijheid van de gemeente weerspiegelen.
De zorg voor onze geschiedenis en ons erfgoed hoort hier vanzelfsprekend bij. De zichtbaarheid en betekenis daarvan verrijken de stad en het dorp. De identiteit en de kernwaarden van Beverwijk worden behouden en waar mogelijk versterkt. Onze geschiedenis en ons erfgoed (gebouwen, landschappen, wijken en andere plekken), zijn nu meer dan voorheen een integraal en beleefbaar onderdeel van de complete stad waarin de Beverwijker zich thuis voelt.

3 Beverwijkse opgaven
De gemeente Beverwijk krijgt de aankomende jaren te maken met een aantal grote (beleids)opgaven. Voor een deel zijn dit opgaven die uit Beverwijks vastgesteld beleid voortkomen en voor een ander deel zijn dit opgaven vanuit landelijke, provinciale of regionale maatschappelijke doelen, die ook plaatselijk moeten worden opgepakt.
Deze opgaven zijn in het koersdocument geïnventariseerd aan de hand van een thematische uitwerking. Per thema is in het koersdocument stil gestaan bij de huidige situatie, de belangrijkste opgaven, bestaande beleidsuitspraken en ambities. In dit hoofdstuk vatten we deze opgaven per thema samen, zodat een overzicht ontstaat van de Beverwijkse opgaven voor de komende jaren.
Het hoofdstuk eindigt met een doorkijk naar het realiseren van een bredere welvaart voor gemeente Beverwijk. De opgaven die het meest cruciaal zijn om de brede welvaart te versnellen worden uitgelicht en in samenhang in een kaart gepresenteerd. Dat is de richting waarin Beverwijk wil bewegen en die verder in programma’s, opvolgend beleid, en samenwerkingen verder uitgewerkt kan worden.
3.1 Een gezonde, krachtige en toekomstbestendige gemeente
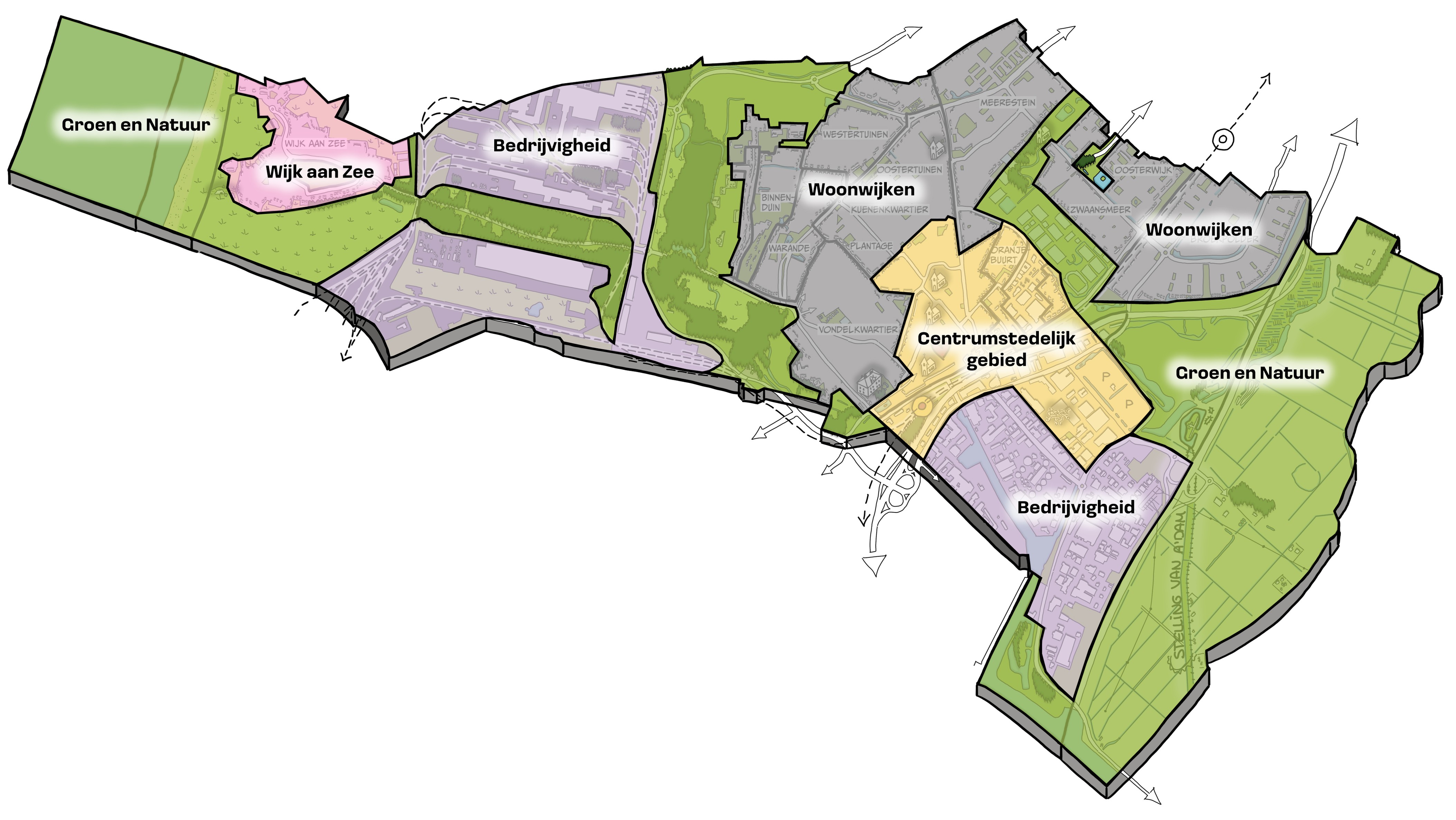
De gemeente Beverwijk kent een gevarieerde bevolkingssamenstelling. Onze inwoners zijn verdeeld over twee woonplaatsen: Beverwijk en Wijk aan Zee. De komende jaren groeit en vergrijst onze bevolking. Een belangrijke opgave ligt dus op het terrein van woningbouw en ruimtelijke ordening. Daarnaast ligt de gemeente in het hart van de bedrijvige en dichtbevolkte IJmond. De Beverwijkse bedrijventerreinen en haven spelen een belangrijke rol in de lokale en regionale economische structuur. Ze huisvesten honderden bedrijven en biedenwerkgelegenheid aan duizenden werknemers. Beverwijk beschikt echter ook over een divers en omvangrijk winkelaanbod met verscheidene winkelgebieden, waarvan een aantal met een (boven)regionale aantrekkingskracht. Ook op het gebied van recreatie en toerisme gebeurt er al veel, maar liggen er ook opgaven. In deze paragraaf staan we dan ook stil hoe we bij deze thema’s zorgen voor een gezond, krachtig en toekomstbestendig Beverwijk. In afbeelding 3.1 is de huidige situatie met de belangrijkste ontwikkelingen weergegeven.
3.1.1 Woningbouw, wijkontwikkeling en bevolking
We zorgen voor een gezonde leefomgeving in de gemeente Beverwijk, waar het prettig wonen en werken en recreëren is. In de perioden tot 2030, tot 2040 en tot 2050 kunnen daarvoor aanzienlijke aantallen woningen en daarvoor benodigde voorzieningen worden toegevoegd. We maken daarbij onze eigen Beverwijkse afwegingen, daar waar mogelijk volgen we de verstedelijkingsstrategie van de MRA en sluiten zoveel mogelijk aan bij de Novex MRA.
We streven naar het bewerkstelligen van (ruimtelijke) samenhang tussen gebieden, functies en woonomgeving. We willen voorzien in voldoende geschikte (en betaalbare) woningen voor een brede doelgroep, waarbij we ook inspelen op veranderingen in de woningmarkt. We hebben gemengde wijken met een gezond woon- en leefmilieu als doel. We zetten daarom in op het creëren van doorstroming, kwaliteitsverbetering, revitalisering en verduurzaming van de bestaande -sociale- woningvoorraad. Dit doen we met steun vanuit stedelijke vernieuwingsgelden, waaronder een mogelijke regiodeal. Waar mogelijk verdichten we en mengen we verschillende woningbouwtypen beter in de bestaande stad. Hierbij streven we naar een meer wijkgerichte en integrale aanpak. Uiteindelijk moet er een gevarieerde mix ontstaan van (nieuwe) woonvormen en traditionele woningen geschikt voor jongeren en senioren, maar ook voor speciale doelgroepen. Hierbij zoeken we steeds naar een passende invulling per wijk.
Beverwijk streeft naar gedifferentieerde wijken waar in principe alle doelgroepen een geschikte woning kunnen vinden. In nieuw te realiseren wijken en stedelijke vernieuwingsgebieden (zoals in de Spoorzone) wordt met name ingezet op vasthouden en aantrekken van middeninkomens. Voor de diversiteit wordt daarbij ook ingezet op circa 20% sociale woningbouw en 10% huisvesting voor speciale doelgroepen. In (verouderde) aandachtswijken met vooral sociale woningbouw word ingezet op behoud van het aantal sociale woningen met toevoeging en/of transformatie met circa 20-30% woningen voor middeninkomens.
De stadszijde van de Spoorzone zal worden ontwikkeld volgens de vastgestelde stedenbouwkundige visie. Daarnaast participeren we in woningbouwontwikkeling op het terrein van de huidige Bazaar, waar op korte termijn aanzienlijke aantallen woningen kunnen worden toegevoegd.
De ambitie is om tot in 2040 circa 7500 woningen toe te voegen en daarna nog eens 2.500 woningen extra. We zoeken naar goede mogelijkheden om op een aangename manier wonen en werken te combineren. Trillingshinder bij nieuwbouw op minder dan 250 meter afstand van het spoor is een aandachtspunt. We hanteren hier het stroomschema uit de Handreiking Nieuwbouw en Spoortrillingen (2019).
Voor Wijk aan Zee is het van belang om een levensloopbestendig en vitaal dorp te realiseren en te behouden. Dat vraagt om een passend woningaanbod voor ouderen en ook om betaalbare woningen voor jongeren en jonge gezinnen. Onze voorkeur gaat dan ook uit om in Wijk aan Zee levensloopbestendige woningen te realiseren. Ook het duurzaam in stand houden van voorzieningen is belangrijk. Een aantal maatschappelijke organisaties onderzoekt hiertoe fysieke samenwerkingsmogelijkheden. Per situatie wordt bekeken of en hoe bouwen in Wijk aan Zee past in de omgeving en bijdraagt aan het dorp.
3.1.2 Centrum en detailhandel
Het centrum van de stad is vaak het visitekaartje naar de buitenwereld. Dat is niet vanzelfsprekend. Het vereist continue aandacht en onderhoud om het centrum samen met ondernemers levendig te houden en een nog betere trekpleister voor de omgeving bij te worden.
We zorgen voor een gezond, krachtig en toekomstbestendig Beverwijk door het functioneren van het winkelbestand in de volle breedte te verbeteren en de leegstand te reduceren. We streven naar compacte(re) winkelgebieden. Uitbreidingen buiten de hoofdwinkelstructuur zijn niet gewenst. Detailhandel op de begane grond blijft het uitgangspunt. In het centrum bevorderen we wonen boven winkels.
De leefbaarheid van de woonwijken en de ‘stadse uitstraling’ van hartje Beverwijk willen we versterken. Dit doen we door in en rond het centrum op verschillende zogenaamde transformatielocaties een mix te creëren van wonen, werken, winkelen en horeca. Blurring, de vermenging van de winkelfunctie, met functies zoals dienstverlening en kleinschalige ondersteunende horeca, is mogelijk. Zo wordt het centrum nog meer het visitekaartje van heel Beverwijk.
De aanpak van het stadscentrum, zoals vaste aanspreekpunten en ondersteuning door de gemeente, willen we continueren en ook toepassen in andere winkelgebieden. Daarnaast ondersteunen we het gemeentebrede Ondernemersfonds. De ondernemers in het centrum hebben hierdoor middelen zodat zij plannen, projecten en activiteiten kunnen uitvoeren om het ondernemers- en vestigingsklimaat te verbeteren.
Tata Steel
Beverwijk staat voor het borgen van het bestaansrecht van het bedrijf Tata Steel en de aanpalende economie, maar wel op voorwaarde dat het zo snel mogelijk schoon, duurzaam (‘groen’) staal gaat produceren en zich inzet voor een minder milieubelastende bedrijfsvoering. Het economisch belang van Tata Steel – en andere bedrijven in de regio – staat verder niet ter discussie. Het staalbedrijf zorgt voor veel werkgelegenheid en is een belangrijke pijler in onze regionale economie, net als het inzetten op een gezonde leefomgeving. We zetten in op een continue omgevingsdialoog met bewoners, Tata Steel, de provincie Noord-Holland en de andere gemeenten in de IJmond. We zorgen hierbij voor een goede balans tussen het economische belang van de maakindustrie en het belang van een gezonde en veilige leefomgeving in de IJmond.
3.1.3 Economie, industrie en bedrijventerreinen
Beverwijk werkt op verschillende manieren aan het vitaal houden van haar economie. Namelijk door:
-
a.
in te zetten op hoogwaardige maak- en onderhoudsindustrie;
-
b.
havengerelateerde ondernemingen;
-
c.
‘slimme’ start-ups en grown-ups;
-
d.
een innovatief distributiecluster;
-
e.
detailhandel in het centrum en de kleine winkelcentra;
-
f.
grootschalige detailhandel op de Parallelweg en het Marloterrein;
-
g.
een toekomstbestendige Beverwijkse Bazaar.
Het onderwijs willen we nog beter laten aansluiten op de werkgelegenheid in de regio. Hiervoor is samenwerking nodig tussen werkgevers, (mogelijke) werkzoekenden en onderwijsinstellingen om te zorgen voor voldoende gekwalificeerd personeel. We zien hiervoor een belangrijke rol weggelegd bij Techport.
We willen de entrees naar het centrum en de Spoorzone aantrekkelijker maken. Binnen de Spoorzone wordt op termijn een gemengd gebied gecreëerd, waar naast het werken en winkelen ook wonen en de daarbij behorende voorzieningen worden toegevoegd. Het werken wordt nadrukkelijk niet vervangen door het wonen. Ingezet wordt op het toevoegen van 5.000 extra arbeidsplaatsen en 7.500 woningen.
De zeehaven, op het Beverwijkse bedrijventerrein aan de oostzijde van de stad, wordt versterkt en nieuw leven in geblazen, zonder extra milieuhinder toe te voegen. Hierbij is aanvullend ook ruimte voor een toeristische en/of recreatieve invulling. De grootste opgaven zijn verduurzaming en innovatie. Rondom de Kop van de Haven zetten we het bedrijfsmatige (haven gerelateerde) gebruik van de gronden voort, maar we maken hier ook de vestiging van bedrijfsleven en onderwijs gericht op de techniek van een duurzame en circulaire economie mogelijk. De haven krijgt zo een kwalitatieve impuls in de kades en in de ontsluiting naar stad en achterland. Op deze plek onderzoeken we ook het creëren van een duurzaamheidscampus.
Zoals eerder aangegeven, ligt op de bedrijventerreinen een grote verduurzamingsopgave: klimaatadaptatie, energietransitie en circulariteit krijgen daarom een prominente plek in de plannen. De bedrijventerreinen dienen te vergroenen om te voldoen aan de opgaven van klimaatadaptatie, leefbaarheid en identiteit.
We willen de organisatiegraad van de ondernemers vergroten door een uitbreiding van taken en verantwoordelijkheden van Stichting Beverwijk Business Docks. We stimuleren het koppelen van onderwijs aan de bedrijventerreinen, met name in het opleiden van ‘groene banen’ op het gebied van duurzaamheid en energietransitie.
3.1.4 Toerisme en recreatie
We streven naar een leefbare stad met voldoende vertier voor mensen en ruimte voor tal van (sportieve) evenementen, groot- en kleinschalig. Een leefbare stad met ook oog voor haar oude en nieuwe cultuur. Bij evenementen houden we rekening met de omgevingseisen ten aanzien van de gezondheid, leefbaarheid en veiligheid.
De recreatiegebieden Aagtenpark en de Buitenlanden willen we verder ontwikkelen en deze beter bereikbaar maken vanuit de stad. Hierin bestaan kansen in het realiseren van meer recreatieve langzaamverkeerslinten, die waar mogelijk aan kunnen sluiten op de oude historische linten. De Wijkermeerpolder blijft open en toegankelijk voor de beleving van landschap en cultuurhistorie en recreatief (mede)gebruik.
We stimuleren de ontwikkeling van (meerdaagse) verblijfslocaties binnen de gemeente, zoals een hotel. Daarnaast willen we de aantrekkingskracht van Wijk aan Zee als familiebadplaats verhogen en de relatie tussen langdurige verblijfsrecreatie en kortstondige dagrecreatie verbeteren, waarbij we blijvend aandacht besteden aan de bereikbaarheid en het voorzien in voldoende parkeerplaatsen.
Verder zoeken we naar nieuwe vormen van toekomstbestendige en duurzame recreatie, die mogelijk een breder publiek aantrekt. Hiervoor kijken we bijvoorbeeld naar versterking van het Oer-IJ gebied. Daarnaast hebben Beverwijk en Wijk aan Zee een rijk cultuurhistorisch verleden (dankzij de buitenplaatsen, de Nieuwe Hollandse Waterlinie en de bunkers in de duinen), waar diverse kansen liggen.
3.2 Van en naar de IJmond
Beverwijk ligt in de noordelijke IJmond, op ‘het randje’ van de Randstad. De bereikbaarheid van Beverwijk is een sterk punt. Beverwijk ligt zeer centraal en heeft met haar haven, spoor- en wegennet een goede ontsluiting naar het binnenland en open zee.
De bereikbaarheid en leefbaarheid van de IJmond staan echter onder druk, evenals de bereikbaarheid binnen de gemeente. Met name de druk door gemotoriseerd vervoer, onder andere vanuit de logistieke distributiecentra neemt de aankomende jaren toe, waarmee de bereikbaarheid van Beverwijk over de weg aanzienlijk af neemt. Er is ook een verandering gaande in mobiliteitsgedrag. De nadruk moet daarom meer komen te liggen op een flexibel en multimodaal gebruik van mobiliteit.
In deze paragraaf staan we dan ook stil hoe we zorgen voor een blijvende bereikbaarheid van en naar de IJmond. In afbeelding 3.2 hiernaast is de huidige situatie met de belangrijkste ontwikkelingen weergegeven.
3.2.1 Mobiliteit en infrastructuur
Bereikbaarheid, veiligheid en toegankelijkheid zijn belangrijk voor Beverwijk, ongeacht het vervoersmiddel van keuze. Om daarbij ook bij te dragen aan een fijne leefomgeving en een gezonde en klimaatadaptieve stad, zijn slimme keuzes nodig om elk vervoersmiddel goed te bedienen.
We werken aan een betere bereikbaarheid en doorstroming van de stad. Belangrijk daarbij zijn de aanpassingen op de A22, zoals minder verkeer, stiller asfalt, een lagere rijsnelheid en een extra af- en toerit. Door deze ingrepen wordt de A22 van grotere waarde voor de lokale ontsluiting. Dat helpt Beverwijkers om directer, sneller en comfortabeler naar hun bestemming te komen. Tegelijkertijd vermindert het verkeer door het centrum van Beverwijk, wat het gebruikscomfort voor fietsers en voetgangers verhoogt. Deze transformatie zorgt ook voor een verbetering van de luchtkwaliteit doordat de verontreiniging en de geluidsbelasting lager wordt bij minder bovenregionaal verkeer en lagere snelheden op de A22 en minder congestie door het centrum. Dat maakt dat er binnen het centrumgebied een gezonder leefklimaat en comfortabelere situatie ontstaat voor langzaam verkeer.
Diverse verkeerskundige onderzoeken laten zien dat door aanleg van de Velserverbinding (op grondgebied van Velsen) een groot deel van het bovenregionale verkeer van de A22 naar de A9 wordt omgeleid. Voor Beverwijk is zo’n aansluiting daarom zeer wenselijk. Het eventueel realiseren van een A8-A9 verbinding (op grondgebied van Zaanstad/Heemskerk) leidt echter tot een toename van het verkeer over de A22. Dit is voor het Beverwijkse leefklimaat en de luchtkwaliteit minder gunstig.
De bestaande oost-west verbindingen over de A22 moeten aantrekkelijker worden gemaakt voor langzaam verkeer en waar mogelijk worden uitgebreid. Bijvoorbeeld door het station toegankelijk te maken vanaf de Parallelweg, maar ook de verbinding tussen de Kop van de Haven en de oude binnenstad te verbeteren voor gebruik door fietsers en voetgangers.
Waar mogelijk, wordt het parkeren meer aan de randen van het centrum geconcentreerd. Hierdoor ontstaat er extra ruimte voor woningen en groen/klimaatadaptatie en een aangenamer verblijfsklimaat voor voetgangers en fietsers. Ook in de woonwijken kijken we goed naar het optimaliseren van de verkeerveiligheid en parkeergelegenheid in relatie tot comfort voor alle gebruikers van de openbare ruimte. Onderzoek naar mogelijkheden voor parkeergarages hoort daar bij.
Bij nieuwe ontwikkelingen liggen er uitdagingen om voldoende parkeerplekken te realiseren. Naast het inzetten op langzaam verkeer en openbaar vervoer, wordt gestreefd naar optimalisatie van de parkeergelegenheden en passende parkeernormen. Zo zorgen we dat de bereikbaarheid gegarandeerd wordt en dat parkeren ook in de toekomst op een goede wijze mogelijk is.
Beverwijk wil werken aan fijnere leefomgevingen, ruimte voor woningen, groen en een gezondere stad voor mens en dier, waarbij ook de kinderen veilig op straat kunnen spelen. Daartoe zal Beverwijk schonere vormen van mobiliteit actief stimuleren. Beverwijk maakt zich sterk voor hoogwaardige openbaar vervoersverbindingen, een goede waterverbinding over het Noordzeekanaal en het toegankelijk maken van het station aan de oostkant.

3.2.2 Duurzame mobiliteit
We streven naar een mobiliteitssysteem dat duurzame stedelijke groei mogelijk maakt. Daarin heeft het stimuleren van lopen, fietsen en het OV de prioriteit als pijler van een gezonde leefbare stad. Het doel is de juiste mobiliteit op de juiste plek. Door duurzame en ruimte-efficiënte vormen van vervoer te stimuleren, kan Beverwijk blijven groeien én tegelijkertijd bereikbaar blijven. De gemeente zet daarom in op goed onderhouden fietspaden en doorfietsroutes, hoogwaardig openbaar vervoer en het beter benutten van de bestaande wegen in en rond Beverwijk.
In 2050 is de gemeente Beverwijk energieneutraal. Alle sectoren moeten bijdragen om die doelstelling te behalen, dus ook mobiliteit. Reductie van de CO2- uitstoot wordt gerealiseerd door het stimuleren van meer lopen, fietsen en met het ov te reizen.
We willen dat het openbaar vervoer een volwaardig alternatief is voor de auto. De bestaande busverbindingen en treinverbindingen willen we behouden en waar mogelijk verbeteren. Daarnaast werken we aan Hoogwaardig Openbaar Vervoersverbinding (HOV) vanaf de Velsertraverse via Wijckerpoort naar het station. HOV-verbindingen zijn snelle buslijnen die vaker rijden. Voor nieuwe ruimtelijke ontwikkelingen kijken we naar locaties die goed bereikbaar zijn met (hoogwaardig) openbaar vervoer.
Daarnaast willen we de transitie naar elektrische vervoersmiddelen stimuleren.We stimuleren het gebruik van elektrische auto’s, onder andere door meer openbare laadpalen en snellaadstations. Ook op regionale schaal wordt gewerkt aan het thema duurzame mobiliteit. Op de schaal van de IJmond door IJmond Bereikbaar, maar ook op het schaalniveau van de provincies Noord-Holland en Flevoland, middels het Regionaal Mobiliteitsprogramma (RMP). De gezamenlijke ambitie is om de CO2 uitstoot door mobiliteit te verminderen.
3.3 Van en voor alle Beverwijkers – Dichtbij, creatief en verbonden
In de omgevingsvisie komt meer nadruk te liggen op de koppeling van het fysieke domein met het sociaal domein. Daarnaast groeit het belang van een gezonde leefstijl en leefomgeving. Het sociaal domein gaat onder andere over gezondheid, maatschappelijke ondersteuning, zorg, welzijn, werk, inkomen en sociale zekerheid, onderwijs en jeugd. Door in het fysieke domein aandacht te hebben voor een gezonde, leefbare en veilige leefomgeving wordt indirect bijgedragen aan doelstellingen van het sociaal domein.
In deze paragraaf staan we dan ook stil hoe we zorgen voor een Beverwijk van en voor alle Beverwijkers, waarbij we streven naar een dichtbij, creatief en verbonden Beverwijk. In afbeelding 3.3 is de huidige situatie met de belangrijkste ontwikkelingen weergegeven.
3.3.1 Sociaal, ontmoeten en sport
We streven naar een Beverwijk van en voor alle Beverwijkers. We zorgen voor voldoende accommodaties die gericht zijn op ontmoeting, fijne (ontmoetings)plekken in de openbare ruimte, stimuleren sociaal-culturele activiteiten en zorgen voor ondersteuning dichtbij. We werken aan een inclusieve samenleving, waarbij we werken aan de problematiek op het gebied van sociale cohesie en leefbaarheid. Daarbij maken we gebruik van de kennis en kunde van inwoners om onze gemeente te verbeteren. We laten betrokkenen in een vroegtijdig stadium meedenken over plannen en beleid.
We richten ons op het ondersteunen en mogelijk maken van bewoners- en buurtinitiatieven. Hierbij hebben we extra aandacht voor buurten waar sociale problematiek zich stapelt, door deze integraal gebiedsgericht aan te pakken. We kijken wijkgericht naar wat de fysieke omgeving kan bijdragen aan de verbetering van welzijn en gezondheid van inwoners. Hierbij houden we rekening met een groeiende culturele diversiteit. Ook dit is een factor om bij (her)ontwikkeling en versterking en verduurzaming van wijken en bij de planning van voorzieningen rekening mee te houden.
Het stimuleren van sport en bewegen onder al onze inwoners vinden we belangrijk. We willen dat sport toegankelijk is voor iedereen. Daarom willen we inwoners uitdagen om in de hele openbare ruimte te spelen, te sporten, te recreëren en elkaar te ontmoeten. We faciliteren dit door informele speelruimte dicht bij huis, het verbinden van speel-sport-ontmoetingslocaties in een structuur van bovenwijkse plekken, centrale plekken in de wijken, voldoende faciliteiten zoals watertappunten en bankjes. Voor iedere inwoner dient er in de nabije woonomgeving een aantrekkelijke, bij voorkeur groene, route te zijn waarmee kan worden voorzien in dagelijkse beweging.
We zien sport als een belangrijk middel dat oplossingen kan bieden aan uitdagingen in het sociaal domein. De huidige, vitale sportverenigingen en sportaccommodaties blijven daarom behouden. Hier zetten we waar mogelijk wel in op multifunctioneel gebruik. Bij nieuwe ontwikkelingen schenken we aandacht aan de capaciteit en eventuele uitbreiding van de aanwezige sportvoorzieningen. Als gemeente zoeken we ook actief de verbinding met het platform ondernemende sportaanbieders. Zij spelen een steeds belangrijkere rol in het aanbieden van diverse sporten.

3.3.2 Gezondheid en zorg
We zetten in op het stimuleren van een gezonde leefstijl, in een gezonde leefomgeving met een sterke sociale basis. Daarvoor zijn zorg- en welzijnsvoorzieningen dichtbij, in de wijken, van belang, waar inwoners ontmoeting en ondersteuning kunnen vinden, en antwoord op hulpvragen.
Het thema gezondheid wordt geïntegreerd in de inrichting van de fysieke leefomgeving. Binnen de bevoegdheden en mogelijkheden van de gemeente richten we ons op het verbeteren van de milieukwaliteit om tot een gezonde leefomgeving te komen. De leefomgeving moet gezondheid bevorderen en een gezonde leefstijl aanmoedigen. Gezondheidsachterstanden worden verkleind en er is extra aandacht voor wijken en buurten waar de gezondheid van inwoners achter blijft (wijkgerichte aanpak). Als gemeente willen we daarnaast inzetten op drie thema’s wat betreft zorgtaken:
-
a.
Een sterke basis (preventie en algemene voorzieningen)
-
b.
Integrale toegang tot ondersteuning
-
c.
Maatwerkvoorzieningen en -ondersteuningen
We zetten ons in op het creëren van toekomst- en levensloopbestendige woningen en wijken. Hierdoor kunnen inwoners die minder zelfredzaam zijn en ouderen langer in hun eigen wijk blijven wonen. Hulpverlening en andere voorzieningen zijn in de wijken aanwezig en de inrichting van de wijk nodigt uit tot sociale contacten. Hierbij kijken we ook samen met buurgemeenten naar kwaliteit en aard van de voorzieningen, zoals bij een zwembad.
Een extra opgave wordt de transitie op het gebied van beschermd wonen en maatschappelijke opvang. Dit vraagt om het realiseren van woonconcepten waarin wonen met (zorg-)ondersteuning goed mogelijk zijn. Het is van belang om bij de huisvesting van speciale doelgroepen rekening te houden met de gewenste nabijheid van voorzieningen, een evenwichtige verdeling over de gemeente en na te gaan of deze doelgroepen passen in de wijk.
3.3.3 Veiligheid
Beverwijk en Wijk aan Zee moeten schoon, heel en veilig zijn. We willen dat inwoners zich veilig voelen in hun eigen omgeving. Speciale aandacht gaat uit naar vergroten van veiligheidsgevoel bij inwoners en ondernemers, het aanpakken van criminaliteit en de aanpak van overlast. We willen het vraagstuk veiligheid integraal en wijkgericht benaderen. Daarom zoeken we de samenwerking op met partners die actief zijn binnen het sociale en fysieke domein. We handhaven meer wijkgericht waardoor preventiever aan leefbaarheid wordt gewerkt. Daarnaast vragen we ook onze inwoners om hun steentje bij te dragen.
We streven naar een verbetering van de sociale en fysieke veiligheid. We zetten systematisch in op gebieden waar veel jeugdoverlast plaatsvindt. We willen de objectieve veiligheid verbeteren en het gevoel van onveiligheid verminderen. Bij de inrichting van de openbare ruimte en de keuzes wat betreft de situering van diverse woningtypologieën houden we rekening met de verbetering van de veiligheid.
We willen de risico’s op brand, ongelukken en criminaliteit terug dringen en goed voorbereid en getraind zijn voor als zich een ramp of crisis voordoet. Hierbij is blijvende aandacht nodig voor bereikbaarheid van de hulpverleningsdiensten. Bij indeling van nieuwe gebieden of omvorming van bestaande wijken of terreinen worden deze zo ingericht dat een snel en effectief optreden van de hulpdiensten mogelijk is.
3.3.4 Kunst, cultuur en erfgoed
In Beverwijk zien we voor kunst en cultuur een belangrijke rol weggelegd voor het welzijn, de ontplooiing en de talentontwikkeling van inwoners van jong tot oud. We waarderen en faciliteren cultureel en kunstzinnig ondernemerschap. We willen de maatschappelijke en educatieve waarde van kunst, cultuur en erfgoed stimuleren en meer samenwerking zoeken. Dat doen we zowel binnen het culturele als het sociale domein, zowel lokaal als regionaal.
Erfgoed is van belang voor de leefbaarheid en herkenbaarheid van de gemeente Beverwijk. Erfgoed dat de bewoners kennen en waar ze de verhalen van weten zorgt ervoor dat een plek zich onderscheidt en dat mensen trots zijn op hun stad, dorp of landschap. De aanwezigheid van goed onderhouden monumenten en (groen) erfgoed is van belang voor de kwaliteit van de leefomgeving, voor het vestigingsklimaat en voor de recreatie. Het is daarnaast waardevol voor dagjesmensen en toeristen maar ook voor eigen bewoners, inclusief de jeugd. De gemeente heeft daarom de ambitie om archeologie en erfgoed meer zichtbaar te maken.
We werken aan behoud, versterking en vernieuwing van het bestaande erfgoed en de identiteit van de gemeente. We beschermen archeologische terreinen, monumenten en gebieden met een archeologische verwachting in het omgevingsplan. Dit combineren we met de opgave om meer kwalitatief groen te realiseren in de gemeente. Historische routes en groene routes gaan daarbij hand in hand. Bij nieuwe ontwikkelingen sturen we waar mogelijk op een goede omgevingskwaliteit die recht doet aan bestaand erfgoed.

3.4 Een upgrade van natuur, milieu-kwaliteit en schone energie
Verduurzaming is een landelijke opgave en speelt ook in deze gemeente. Naast de landelijke en regionale opgaven die hier een plek zoeken moet Beverwijk ook zelf aan de slag om het energieverbruik te reduceren en waar mogelijk duurzame energie op te wekken. Duurzaamheid is een breed begrip. We zetten ons op verschillende verschillende fronten in om de leefbaarheid en gezondheid voor bewoners te verbeteren. Binnen dit thema is het zorgen voor voldoende groen en water ook van belang, onder andere in het kader van de ontwikkelingen rondom klimaatverandering. In deze paragraaf staan we dan ook stil hoe we zorgen voor een upgrade van de natuur, milieukwaliteit en schone energie binnen Beverwijk. In afbeelding 3.4 is de huidige situatie met de belangrijkste ontwikkelingen weergegeven.
3.4.1 Duurzaamheid en circulaire economie
In 2050 willen we vrij zijn van het gebruik van aardgas en willen we klimaatrobuust (water- en hittebestendig) zijn ingericht. Daarom zetten we volop in op de energietransitie binnen de gebouwde omgeving, onder meer door het uitvoeren van de Transitievisie Warmte en het Warmtenet. Daarnaast willen we de verduurzaming van bedrijven- en bedrijventerreinen door onder andere GreenBiz IJmond voortzetten en uitbreiden. Parallel daaraan gaan we aan de slag met het verduurzamen van gemeentelijk vastgoed. De gemeentelijke organisatie dient in 2040 energieneutraal te zijn.
Bij nieuwe initiatieven voor woningbouw streven we zo veel als haalbaar naar natuurinclusief, energieneutraal, klimaatadaptief en circulair bouwen. Hierbij wegen wij de kans op realisatie, de doorlooptijd en mate van betaalbaarheid mee. In bestaande woonwijken willen we efficiënter omgaan met de beschikbare warmte. Er wordt hard ingezet op de verduurzaming van woningen in de oudere wijken van de stad. We houden daarbij uiteraard rekening met de gevolgen van de energietransitie op onze woonomgeving.
Met regionale ontwikkelingen in MRA verband sluiten we aan bij de ambitie van het Rijk om in 2050 een volledig circulaire economie hebben. Hierbij zetten we onder andere in op een circulair bedrijfsleven via GreenBiz Circulair. We streven naar een betere nascheiding door afvalverwerking om ondanks beperkte gescheiden inzameling beter te kunnen recyclen.
In de Regionale Energiestrategie 1.0 Noord-Holland Zuid (RES 1.0 NHZ) staan de plannen die overheden, netbeheerders, maatschappelijke organisaties, ondernemers en inwoners hiervoor hebben gemaakt. Ook in de regio IJmond & Zuid-Kennemerland is samen met maatschappelijke organisaties, georganiseerde inwoners, belanghebbenden en gemeenten gekeken naar welke gebieden in deze regio kans bieden voor grootschalige energieopwekking uit vooral zon en wind. Deze gebieden noemen we de zogenaamde zoekgebieden. Voor de IJmond zijn dit de zones evenwijdig aan A9/A22 en het Noordzeekanaal. Uit nadere studies volgt echter dat de zoekgebieden naar wind nog geen beschikbare ruimte oplevert. Op industrieterreinen waar theoretisch nog ruimte beschikbaar is, wordt deze vooralsnog gereserveerd voor de eigen verduurzamingsprocessen. Het zoekgebied voor zon en wind langs de A9 ligt binnen de beschermde ‘Stelling van Amsterdam’ en is onderdeel van het de groene oostrand van Beverwijk. Ondanks het grote belang van duurzaamheid, geven wij voor het welzijn van onze bewoners meer prioriteit aan behoud van het landschap en haar cultuurhistorische en recreatieve waarden. De mogelijke opwek van energie in Beverwijk moet vooral komen van (grote) daken en waar mogelijk boven parkeerplaatsen.
In overleg met de regio worden de mogelijkheden voor zonne-energie in het snelweglandschap (direct grenzend aan de A9 en A22) nog verder verkend. Belangrijk is dat ook dit soort projecten gaan bijdragen aan het verbeteren van de brede welvaart van Beverwijk;
Beverwijk standpunt landelijke en regionale energie-doelen
De door het Rijk en de provincie geinitieerde voorgestelde infrastructurele projecten voor elektriciteit, waterstof en CO2-opslag kunnen onze gemeente in meer of mindere mate raken. En Beverwijk levert al een stevige bijdrage voor energie-infrastructuur. We streven samen met andere partijen in NZKG naar een stevige economische basis, werkgelegenheid en de verduurzaming in het algemeen. Voor Beverwijk is dit echter niet specifiek genoeg. Wij willen dit gekoppeld zien aan een essentiele verbetering van de gezondheid, veiligheid en leefbaarheid in onze omgeving. Dit zien wij als prioriteit en randvoorwaarde bij eventuele realisatie van hogere energiedoelen. Dat betekent dat we bij alle projecten in het programma de afweging maken: draagt dit project bij aan het verbeteren van de gezondheid van de Beverwijker? En zo nee: welke maatregelen kunnen we nemen om ervoor te zorgen dat de gezondheid van de fysieke leefomgeving door dit project in ieder geval direct verbetert? Ook bij nieuwbouw willen we vooraf eisen stellen om de doelen haalbaar te maken.
Voorop staat dus dat bij nieuwe ontwikkelingen in Beverwijk (dus ook bij de grote, maatschappelijke, landelijke opgaven), de gezondheid, veiligheid en leefbaarheid van de Beverwijker ook direct verbetert en ook niet (tijdelijk) verslechtert. De balans tussen mogelijkheden en belemmeringen moet in de toekomst doorslaan in het voordeel van Beverwijk. Beverwijk wil niet opdraaien voor “lasten” zonder dat er substantiële positieve effecten voor de directe omgeving in de plaats komen. Daarnaast maken we ons hard dat bij nieuwe (nationale en regionale) energieprojecten eerst een studiefase wordt doorlopen, waarin zowel alternatieven worden onderzocht als de mogelijke impact voor de omgeving duidelijk wordt.
3.4.2 Gezonde leefomgeving
We zetten ons op verschillende fronten in om de leefbaarheid en gezondheid voor bewoners te verbeteren. We willen het thema gezondheid in andere (relevante) beleidsthema’s integreren en de gezondheid te bevorderen door de inrichting van de fysieke leefomgeving. De gemeente vertegenwoordigt hierin haar inwoners en staat als bondgenoten naast hen. Niet op alle thema’s hebben we als gemeente echter evenveel invloed. We signaleren, nemen stelling in, proberen ontwikkelingen te versnellen, drempels te verlagen en partijen te verbinden, om uiteindelijk de beoogde doelen te bereiken. Op het gebied van gezondheid zijn met name een aantal milieutechnische onderwerpen van belang: geluid, luchtkwaliteit, externe veiligheid, hinder door bedrijven en bodemkwaliteit. In deze paragraaf geven we een korte samenvatting van deze milieuaspecten.
Geluidhinder
Er zijn diverse geluidsbronnen die als hinderlijk worden ervaren. Het gaat dan om wegverkeerlawaai, industrielawaai, bedrijven op niet-gezoneerde industrieterreinen, scheepvaartlawaai, spoorweg-lawaai en/of luchtvaartlawaai. Het is noodzakelijk dat we bij nieuwe (ruimtelijke) ontwikkelingen de toekomstige bewoners beschermen tegen geluidhinder. Maar ook de huidige bewoners in de omgeving moeten beschermd worden tegen (een toename van) geluidhinder als gevolg van de beoogde ontwikkelingen. We pleiten voor het aanzienlijk verminderen van de omgevingsimpact van de A22 (o.a. fijnstof en geluid), door maatregelen die de geluidsoverlast en de hinder van het stof verminderen. Denk bijvoorbeeld aan ander asfalt en minder verkeer. We zien graag een snelheidsverlaging op de A22 tussen knooppunt Beverwijk en knooppunt Velsen. Deze zal leiden tot een verlaging van de uitstoot van luchtvervuilende stoffen, afname van geluidhinder en een betere doorstroming.
We zetten ons in voor het terugdringen van de hinderbeleving van luchthaven Schiphol door er bij het Ministerie op aan te dringen af te stappen van de salderingsbenadering als leidend principe en in plaats daarvan, net als bij andere bronnen, helderheid te bieden over welke mate van belasting en hinder voor individuele omwonenden acceptabel is. Ook pleiten we voor de ontwikkeling van een nieuwe systematiek voor geluidshinder en minder overlast van nachtvluchten.
Bij het beoordelen van hoe acceptabel de geluidsbelasting is bij nieuwe ontwikkelingen wordt rekening gehouden met de geluidsbelasting op de gevel en in de buitenruimte (zowel op maaiveld in openbaar gebied als bij de buitenruimte van woningen). We hebben aandacht voor een aangenaam binnenklimaat, waar rust prioriteit heeft en het streven is dat elke woning minimaal een geluidsluwe en schaduwrijke zijde heeft. Langs randen van rijkswegen, lokale wegen, spoorwegen en industrie- en bedrijventerreinen is onder voorwaarden een hogere geluidsbelasting toelaatbaar. Hierbij is een afweging noodzakelijk over doelmatigheid van bron- en schermmaatregelen. Bronmaatregelen hebben hierbij altijd de voorkeur, daarna overdrachtsmaatregelen en hierna pas eventuele bouwkundige maatregelen aan de woningen. Het binnenniveau bij de woningen moet altijd aan de wettelijk toegestane nieuwbouweisen voldoen en het geheel moet leiden tot een akoestisch aanvaardbare situatie.
Luchtkwaliteit
De IJmond is aangewezen als kritisch gebied wat betreft luchtkwaliteit. Op Rijksniveau wordt aangegeven dat luchtkwaliteit in de IJmond op de agenda moet blijven staan en niet genegeerd kan worden.
We onderschrijven de ambities van het Schone Luchtakkoord. Dit akkoord hangt ook nauw samen met het Klimaatakkoord, de stikstofaanpak, lokale en regionale verkeer- en vervoersplannen en de regionale energiestrategie.
Beverwijk heeft de ambitie om een gezondere en leefbare omgeving te realiseren. Daarbij streven wij naar het behalen van de WHO-advieswaarden voor luchtkwaliteit en omgevingsgeluid, waarbij we uitgaan van het behalen van de WHO-normen uit 2005 in 2030 en verdere verbetering richting 2040.
Samen met Velsen en Heemskerk, hierbij geadviseerd door GGD Kennemerland en Omgevingsdienst IJmond (ODIJ), wordt continu ingezet op het verminderen van schade aan de gezondheid door het verbeteren van de luchtkwaliteit.
Als gemeente houden we met de situering van gevoelige functies rekening met de afstand tot luchtverontreinigende- en geluidsbelastende locaties. Daarnaast hebben we de focus op (lokale) emissie en immissie en zeer zorgwekkende stoffen. Waar we bevoegdheid hebben proberen we te zorgen dat emissies bij de scheepvaart en bedrijven van zeer zorgwekkende stoffen worden teruggebracht door het aanscherpen van vergunningen en het intensiveren van toezicht.
Daarnaast streven we naar goede communicatie richting bewoners van Beverwijk en Wijk aan Zee over wat de gemeente en ODIJ doen om de leefbaarheid (onder andere op het gebied van luchtkwaliteit) te verbeteren. De bevoegdheid om de gezondheid en leefbaarheid te verbeteren ligt veelal bij hogere overheden. De gemeente zal in gesprekken met deze overheden steeds weer wijzen op het belang van een verbeterde leefbaarheid en gezondheid in de IJmond. Ook zetten we als lokale overheid in op bewustwording bij inwoners om rekening te houden met de omgeving en met elkaar, bijvoorbeeld als het gaat om houtstook.
Bedrijvigheid
Binnen de gemeentegrenzen liggen meerdere bedrijventerreinen van diverse omvang en met uiteenlopende typen bedrijven. Om overlast te beperken dient waar nodig een ruimtelijke scheiding aan te worden gebracht tussen milieubelastende activiteiten en milieugevoelige functies, ter bescherming of vergroting van de kwaliteit van de leefomgeving. Diverse gebiedsdelen in Beverwijk hebben theoretisch gezien nog milieuruimte beschikbaar. Er is echter sprake van directe nabijheid van een bestaand dichtbebouwd woongebied en Beverwijk is al alzijdig ingepakt met industriegebieden. Hiernaast groeit het maatschappelijk bewustzijn over gezondheid en wijzen recente cijfers er op dat de gezondheid nu al onder druk staat. In het kader van het verbeteren van de brede welvaart zien we graag dat we in samenwerking met bedrijven bestaande hinderbronnen gaan verminderen. Als hierdoor milieuruimte ontstaat vullen we dit in met activiteiten die beter aansluiten op de omgeving, met minder belastende effecten.
Bodem
We willen nieuwe bodemverontreinigingen voorkomen en het herstel of beheersing van aanwezige bodemverontreinigingen bevorderen. We willen binnen de gestelde randvoorwaarden het hergebruik van grond zoveel mogelijk stimuleren en mogelijk maken zonder daarmee de duurzame eigenschappen van die bodem te belemmeren. Hiervoor zijn regionaal bodemkwaliteitskaarten en toepassingskaarten opgesteld, die bij ruimtelijke ontwikkelingen in acht dienen te worden genomen. Voor locaties die worden herontwikkeld, bijvoorbeeld voor de aanleg van bedrijventerreinen of woningbouw, geldt dat een ontwikkelaar verplicht is om bodemonderzoek uit te voeren en de bodem – indien vervuild – te saneren. Daarnaast streven we naar het verminderen van bovengrondse en ondergrondse electromagnetische velden door onder meer nieuwe energie-infrastructuur.
Geur
Geuroverlast binnen de gemeente wordt veelal veroorzaakt door bedrijven en industrie, maar ook door riolering, houtstook en horeca. De geuroverlast die wordt ervaren als gevolg van landbouw en/of vliegverkeer is laag.
We streven vanzelfsprekend naar een aanvaardbaar woon- en leefklimaat wat betreft geurhinder. De aanwezige bedrijvigheid moet voldoen aan de geldende geurnormen. Hier monitoren we op.
Externe veiligheid
We beogen een transparante afweging te maken tussen veiligheid en andere maatschappelijke belangen. Waarbij we voor zover mogelijk risicobronnen en –ontvangers zo veel mogelijk van elkaar scheiden. Verder besteden we duidelijk aandacht aan het voorkomen en beperken van veiligheidsrisico’s, de zelfredzaamheid van mensen die aan deze veiligheidsrisico’s zijn blootgesteld en aan de mate waarin (de gevolgen van) eventuele incidenten beheersbaar zijn.
Binnen de gemeente bevinden zich verschillende risicobronnen met bijbehorende richtafstanden. We richten ons op het voorkomen, beperken en bestrijden van branden, rampen en crises. Binnen de richtafstanden mogen niet zonder meer gevoelige functies worden gerealiseerd. Bij nieuwe ontwikkelingen wordt getoetst aan veiligheidseisen. Daarnaast is er aandacht voor de beheersing van de risico’s voor de omgeving bij gebruik, opslag en vervoer van gevaarlijke stoffen, met name over en langs de Velsertraverse. Bij nieuwe soorten risicobronnen, bijvoorbeeld in het kader van de energietransitie, doen we eerst uitgebreid onderzoek naar de mogelijke veiligheidsrisico’s die deze met zich mee brengen. Wij borgen de externe veiligheid met inachtneming van de wijzigingen in de Omgevingswet.

3.4.3 Natuur en groen
Natuur en groen hebben een zeer noodzakelijke en veelzijdige functie in Beverwijk. Het groen biedt ruimte voor ontspanning en recreatie, biodiversiteit, koelte en wateropvang. Tegelijkertijd kan het groen ook een plek zijn voor ontmoeting en beweging. Om dit alles goed mogelijk te maken is een integrale benadering van de inrichting en het beheer van het openbare groen, en de openbare ruimte in het algemeen benodigd.
Beverwijk heeft relatief veel openbaar (stedelijk) groen en aansluitende natuur. De groengebieden zijn allemaal anders en heel divers. De verdeling van het groen over de stad is echter ongelijkmatig en het groen is niet overal goed toegankelijk, beleefbaar of bruikbaar. De identiteit van het groen en de bijbehorende opgaven verschillen dus ook per (groen)gebied. De druk op (sommige) natuurgebieden groot. Zo zijn de duinen beschermd gebied (Natura 2000 en Natuur Netwerk Nederland (NNN)), waardoor diverse vormen van menselijk medegebruik hier niet wenselijk zijn. Bepaalde gebieden in de gemeente hebben behoefte aan minder versteend oppervlak en een robuuste, groene buitenruimte met koele, schaduwrijke plekken ter voorkoming van hittestress. Groene buitenruimte biedt ook plaats voor het opvangen en vasthouden van regenwater.
Voor de leefbaarheid en gezondheid van bewoners willen we dat zij meer gebruik kunnen maken van het (stedelijk) groen. We gaan daarom werken aan het verbinden van groene gebieden door middel van groene routes. We verbeteren de verblijfskwaliteit in de parken. We vergroenen daarnaast enkele versteende binnenstedelijke plekken, zoals delen van het Meerplein en het Agathaplein. Op strategische plekken voegen we groen of een enkele boom toe. De beleving van het erfgoed kan ook worden versterkt door gebruik te maken van groen en groene routes.
3.4.4 Water en klimaatadaptatie
Klimaatadaptatie is noodzakelijk om de leefbaarheid in de toekomst te borgen nu het klimaat verandert. We streven naar een klimaatbestendige leefomgeving waarin groen een veelzijdige sleutelfunctie vervult en hittestress, verdroging en wateroverlast worden voorkomen. Daarbij zijn water en bodem sturend bij nieuwe ontwikkelingen. We beoordelen steeds welke functie en inrichting past bij het lokaal aanwezige water- en bodemsysteem.
We streven naar een volledig klimaatrobuuste inrichting in 2050. Daarvoor blijven we constant in gesprek met onze samenwerkingspartners en belanghebbenden, om de risico’s van klimaatextremen en overstromingsrisico inzichtelijk en actueel te houden, en te beperken waar mogelijk.
Het aspect water krijgt vaak pas urgentie wanneer het fout gaat. Waar mogelijk moeten we dit voor zijn. We zetten daarom in op het voorkomen van wateroverlast. Klimaatadaptief bouwen is de norm. In gebieden die gevoelig zijn voor overstromingen of extreem weer worden niet zonder meer bedrijven toegestaan die een veiligheidsrisico vormen bij overstroming of extreem weer. Natuurgebieden die kwetsbaar zijn voor natuurbranden als gevolg van extreme droogte en/of hitte, worden beschermd tegen activiteiten, objecten of installaties die brand kunnen veroorzaken.
We willen regenwater zo efficiënt mogelijk verwerken, maar waar het kan op een natuurlijke manier. Daarvoor is het belangrijk dat we water vasthouden waar het valt. Dit doen we door minder verharding toe te voegen, het vergroten van de biomassa in groene gebieden en slim watervasthoudende soorten aan te planten. Daarnaast kijken we waar we mogelijk oppervlaktewateren met elkaar kunnen verbinden en door overloopgebieden te koppelen. Ook maken we meer ruimte voor natuurvriendelijke oevers, waarbij ook het verbeteren van de biodiversiteit samenvalt met de wateropgave.
Ook betrekken we inwoners bij klimaatadaptieve oplossingen in de wijk. We zetten in op het informeren van inwoners over wat ze zelf kunnen doen om zo de bewustwording te stimuleren. We willen op termijn geen regenwater of grondwater meer in het riool, tenzij het niet anders kan. Vooral de binnenduinrand speelt hier een belangrijke rol in. Uiteindelijk willen we mooi, schoon en voldoende open water. We benutten de energie die in gebruikt water zit, zowel warmte als chemische energie. We streven ernaar grondstoffen, zoals fosfaat, terug te winnen uit het gebruikte water en het gezuiverde water opnieuw te gebruiken, direct of via het watersysteem. Zo dragen we bij aan de circulaire economie.
3.5 Kernvisie: Op naar een Brede Welvaart in een gezonde Leefomgeving
De verschillende thematische ambities die in dit hoofdstuk zijn beschreven, dragen allen bij aan de overkoepelende visie. De opgaven die het meest cruciaal zijn om deze visie (een ‘brede welvaart’) te versterken, worden hieronder per Brede Welvaartversneller uitgelicht en in een kaart gepresenteerd. We zien een brede welvaart als stip op de horizon, waar we (vooral in samenwerking met elkaar) de komende jaren naartoe werken.
Gezonde leefruimte: schonere lucht en minder geluid
De maakindustrie van Tata, en andere havengerelateerde industrie is van belang voor Beverwijk, maar de uitstoot is onacceptabel hoog. Beverwijk blijft in gesprek en zet in op een brede omgevingsdialoog om Tata te stimuleren haar groene ambities te versnellen. Bij de overige bedrijvigheid zal Beverwijk waar mogelijk sturen op meer circulaire bedrijfsvoering, minder uitstoot en een meer duurzame inpassing in de omgeving, waardoor een betere balans ontstaat tussen mens en milieu. Beverwijk wil graag inzetten op een schonere industrie die minder schadelijke emissies en luchtverontreiniging uitstoot.
De bestaande luchtkwaliteit leidt tot aantoonbare schade aan de gezondheid van inwoners en de natuur. Het belang van een schonere lucht is daarom groot. De uitstoot van luchtverontreiniging wordt verder verminderd door de A22 een meer lokale functie dan regionale functie te geven. De toekomstige vereenvoudigde A22 is deel van de Beverwijkring waarvoor ook een aansluiting bij Broekpolder/de Bazaar essentieel is. De A22 wordt een stadboulevard met stil asfalt en een maximale snelheid van 70 km per uur. Deze boulevard verbindt lokaal - en in veel mindere mate - regionaal verkeer tussen de Velsertraverse en de nieuwe afrit Bazaar Broekpolder. De overlast en barrièrewerking in het stedelijke gebied neemt hierdoor af. Deze ingrepen worden aanvullend ondersteund door het verbeteren van de aansluiting van de A9 op de A22 ten zuiden van het Noordzeekanaal (de Velserverbinding).
Met een ring buitenom verliest het centrumgebied haar functie voor lokaal doorgaand verkeer. Daardoor ontstaat er letterlijk en mentaal meer ruimte voor langzaamvervoer verbindingen, wat, samen met het versterken van de fiets- en wandelinfrastructuur, leidt tot een sterkere positie van langzaamverkeer ten opzichte van gemotoriseerd verkeer. Het vergroten van het aandeel langzaamverkeer scheelt uitstoot van fijnstof, van geluid én het verbetert de gezondheid.
In de woongebieden worden realistische stappen gezet om de uitstoot van (hoofdzakelijk) huishoudens te verminderen. In de Broekpolder worden technische innovaties extra gestimuleerd. We prefereren hier een all-electric oplossing. In de oudere bestaande particuliere voorraad wordt stapsgewijze verduurzaming van de woningen verder versterkt. In het corporatiebezit wordt gewerkt aan transformatie waarbij een grote impuls in duurzaamheid, ook met collectieve voorzieningen, toegewerkt wordt naar emissieloze woningen. De uitstoot van huishoudens in geheel Beverwijk wordt met deze maatregel verlaagd, wat bijdraagt aan het verbeteren van de luchtkwaliteit.
Beverwijk blijft zich inzetten voor een goede verbinding per spoor en ander hoogwaardig openbaar vervoer, zodat openbaar vervoer een reëel alternatief vormt voor individuele gemotoriseerd woon-werkverkeer. Dit komt het verlagen van de uitstoot van lucht- en geluidsvervuiling ten goede.
Vitaler en aantrekkelijker wonen
Beverwijk biedt plaats aan iedereen, maar wel in een mix waarmee zowel de stad als geheel, als elke woonwijk veerkrachtig en gedifferentieerd is. Beverwijk is vanuit haar kernkwaliteit een sociale gemeente. Zij wil haar bestaande voorraad sociale woningbouw dan ook behouden. Bij de nieuwbouwopgave richt Beverwijk zich echter met name op het aantrekken en binnenhouden van de middeninkomens. Burgers met meer draagkracht, die de extra schouders vormen om de brede welvaart en het welzijn van de stad te versterken. Zij vormen tevens het arbeidspotentieel voor de nabijgelegen innovatieve industrie en maatschappelijke ondersteunende functies. Wie in de gemeente Beverwijk woont, werkt bij voorkeur ook in de gemeente of de directe omgeving.
In de Spoorzone bieden we met name ruimte aan deze middeninkomens, maar er is ook in beperktere mate ruimte voor betaalbare woningbouw voor starters, senioren en bijzondere doelgroepen. Voor de gebieden waar de sociale voorraad domineert, wordt met transformatie toegewerkt naar meer differentiatie van de woningvoorraad. Hier wordt verdichting toegepast, waarbij in deze gebieden extra woningen voor de middeninkomens worden toegevoegd. In de woongebieden waar het woningbezit voornamelijk particulier is, gaan we juist de bouw van sociale- en betaalbare woningen stimuleren, net als het bouwen voor bijzondere doelgroepen. Zo verbetert de spreiding van verschillende soorten bewoners tussen de wijken, zonder de identiteit of eigenheid van de buurt aan te tasten.
In de directe woonomgeving wordt in alle woongebieden de balans gezocht tussen natuur en klimaatversterking, gebruiksmogelijkheden voor spel en ontmoeting (kindvriendelijk) en goede bereikbaarheid voor langzaam- en gemotoriseerd verkeer. Wateroverlast door piekneerslag bedreigt Beverwijk. Om wateroverlast in de woonwijken, het centrum en lager gelegen infrastructuur te voorkomen is het van belang dat tussen de Binnenduinrand én het voormalige Oer-IJ zoveel als mogelijk ruimte is voor infiltratie en berging. In herstructureringsgebieden is er daarom extra aandacht voor waterberging, naast infiltratie. In bestaande gebieden is er extra aandacht voor infiltratie door het verminderen van het verhard oppervlak in zowel openbare, als op particuliere terreinen.
Comfortabeler verplaatsen
We willen de gezondheid bevorderen en congestie voorkomen. Door gebrek aan een meer comfortabele stedelijke ontsluiting verplaatst gemotoriseerd verkeer zich op dit moment nog door het centrum en de omliggende woongebieden. Dit zorgt voor congestie direct na het verlaten van de snelweg, maar ook binnen het centrum en de omliggende woongebieden leidt dit tot verstoppingen. Dat vermindert het comfort voor alle gebruikers, maar met name voor fietsers en voetgangers. Dit leidt tot onnodige lucht- en geluidsvervuiling. Met een ring, waar de A22 een meer lokale functie krijgt, in combinatie met een nieuwe aansluiting ter hoogte van De Meerlanden (Bazaar/Broekpolder) is het verkeer om het centrum heen te leiden. Daardoor ontstaat er een meer comfortabele situatie om met langzaam vervoer naar het centrum toe te bewegen.
Ook de vormgeving en structuur van de verbindingen voor langzaam verkeer naar recreatieve gebieden, het centrum en andere stedelijke voorzieningen heeft een impuls nodig. Groen, comfort, uitstraling en veiligheid maken de recreatieve buiten- en binnengebieden aangenamer en gezonder bereikbaar. Daarmee wordt de keuze voor langzaam verkeer logischer. Beverwijk blijft inzetten op het versterken van de bovenregionale en regionale openbaar vervoer systemen. Zo zal het station ook aan de Oostzijde toegankelijk gemaakt worden.
Groene industriezone
De maakindustrie is de economische drager van Beverwijk. We zetten ons in om de eerste groene industriezone van Nederland te worden op het gebied van Sustainable Industry (duurzame industrie) en Smart Energy (“slimme” energie van de toekomst). Daarbij is binnen de regio een belangrijke rol weggelegd voor Techport.
De unieke haveninfrastructuur van Beverwijk dient een bovenregionaal en zelfs landelijk belang en dat zal zo blijven. Daarbinnen is het noodzakelijk dat de industrie haar omgeving minder belast en een bijdrage levert aan het versterken van de omgevingskwaliteit in brede zin.
Beverwijk biedt ruimte aan verdichting en innovatie van de maakindustrie, waarbij zij verwacht dat emissies zoveel als mogelijk worden voorkomen en de industriegebieden ook bijdragen aan een duurzaam groen- en blauw netwerk alsmede aan energie-opwekking. Verharding wordt verminderd, groen wordt geïntegreerd met bebouwing en bedrijventerreinen dragen bij aan wateropslag en energie-opwek. Bedrijventerreinen hebben aandacht voor de menselijke maat zodat er ook voor passerend recreatief verkeer en woon-werkverkeer plaatsen zijn waar het langzaamverkeer zich thuis voelt.
Buiten wordt het tweede thuis
Beverwijk wordt omsloten door een grote diversiteit aan recreatieve gebieden: het strand, de duinen, de Wijkermeerpolder en de Binnenduinrand. Daarnaast bieden de parken ruimte om aan de stedelijke dynamiek te ontsnappen. De bereikbaarheid, de toegankelijkheid en de recreatieve voorzieningen zijn echter niet optimaal waardoor deze gebieden minder vaak en minder intensief gebruikt worden als mogelijk. De routes ernaartoe zijn veelal zwak vormgegeven, hebben weinig groene uitstraling, én ze verbinden onvoldoende met routes in de regio waarmee een groter netwerk zou kunnen ontstaan. De cultuurhistorische unieke kwaliteiten in het landschap zijn onderbelicht waardoor de gebieden niet de waarde uitstralen die ze feitelijk wel bezitten.
De verbindingen naar recreatieve gebieden worden groener en comfortabeler. Dat doen we door de natuurlijke- en cultuurhistorische beleving te vergroten en te zorgen voor voor goede aansluitingen op het lokale, en bovenlokale netwerk.
Binnen de wijken is er aandacht voor het versterken van de speel- en ontmoetingsfunctie van de openbare ruimte náást het waarborgen van natuur- en klimaatkwaliteiten. Dat kan hand in hand gaan en leiden tot een zeer kindvriendelijke gemeente. De bijzondere plekken in de stad kunnen dan ook comfortabel lopend of met de fiets bereikbaar zijn.
Het actief tegengaan van verdroging van de bodem is in Beverwijk essentieel. Veel ruimte in de stad is verhard waardoor flora en daarmee vervolgens ook de fauna, het zwaar heeft. De aanwezigheid van robuust en vitaal groen is van essentieel belang voor een comfortabele buitenruimte. Het verminderen van verharding en versterken van de groen- en waterstructuur is noodzakelijk.
Een sociale en inclusieve stad
Beverwijk is en blijft een ‘meer dan gemiddeld sociale gemeente’. Bij elke opgave houden we rekening met de zorg voor de inwoners die dat nodig hebben, ongeacht hun afkomst, zelfredzaamheid en/of mobiliteit. We zorgen dat iedereen kan meedoen door bereikbare en toegankelijke voorzieningen voor alle bewoners. Onze inwoners zijn en voelen zich veilig en worden verleid gezond te leven. Om toekomstige risico’s op ondermijnende activiteiten in het centrum te verkleinen wordt sterker gestuurd op het juiste gebruik van vastgoed en buitenruimte. Zo wordt waar nodig ingezet op het tegen gaan van overlastgevend gedrag en gebruik.
Completere stad
Het centrum van Beverwijk en het dorp Wijk aan Zee zijn het hart van de gemeenschap. In het centrum zijn alle voorzieningen beschikbaar die een middelgrote stad te bieden heeft. In Wijk aan Zee is er een balans tussen voorzieningen die passen bij een kleine vitale kern die gelijktijdig ook een familiebadplaats voor de regio is en daarmee een sterke dubbelfunctie heeft.
Verblijfskwaliteit, functiemenging en een uitstekende bereikbaarheid met alle vervoersmiddelen staan voor de hele gemeente voorop. We willen daarom de bereikbaarheid voor fietsers, voetgangers en automobilisten verbeteren. De verblijfskwaliteit versterken we door enerzijds meer omgevingskwaliteit toe te voegen. Te denken valt dan aan extra groen of een betere beleving, zichtbaarheid en behoud van historische en culturele waarden. Anderzijds verbeteren we de verblijfskwaliteit door het vergroten van de functiemenging met meer ruimte voor horeca en wonen. Ook een sterke accentuering van de entree van het centrum zorgt voor een sterkere positieve identiteit en uitstraling.
3.6 Integrale visiekaart
De integrale visiekaart geeft een beeld van de ambities, doelstellingen en opgaven die Beverwijk tot aan 2050 wil uitwerken en (laten) realiseren. De kaart is een ruimtelijke vertaling van de kernvisie (de 7 welvaartversnellers), de thematische uitwerking en de gebiedsgerichte uitwerking. De kaart geeft een indicatief beeld wáár de gewenste ontwikkelingen plaatsvinden. Per deelgebied is ook een kaart gemaakt waar de bij elk deelgebied horende ambities, doelstellingen zichtbaar zijn.

4 Beverwijkse gebieden
4.1 Inleiding
Aan de hand van de aanwezige en gewenste opgaven en ontwikkelingen beschrijven we in dit hoofdstuk de koers voor de deelgebieden. We onderscheiden hierbij vijf deelgebieden, ieder met eigen kwaliteiten, opgaven en ontwikkelrichtingen. De beschrijving van de deelgebieden is opgebouwd aan de hand van de indeling uit hoofdstuk 3, waarbij eerst wordt stilgestaan bij de kwaliteiten en de identiteit van het gebied en vervolgens op welke wijze invulling wordt gegeven aan de vier overkoepelende opgaven:
-
a.
Een gezonde, krachtige en toekomstbestendige stad
-
b.
Van en naar de IJmond
-
c.
Van en voor alle Beverwijkers – Dichtbij, creatief en verbonden
-
d.
Een upgrade van natuur, milieukwaliteit en schone energie

4.1.1 Toelichting deelgebieden
Centrumstedelijk Gebied
Het centrumstedelijk gebied omvat het oude, historische centrum van Beverwijk dat zich voornamelijk uitstrekt rond de Breestraat en de Grote Kerk. Van oudsher is dit de plek voor handel en commercie. Het centrumstedelijk gebied kenmerkt zich door een grotere menging van functies als handel, commercie, wonen, werken, horeca en (cultuur)voorzieningen. Het centrumstedelijk gebied omvat ook de stadskant van de spoorzone, de strook tussen het spoor en de Parallelweg en het gebied rondom de Bazaar, ten noorden van de Industrieweg. In de toekomst is dit een stoer, duurzaam en prettig leefgebied dat ruimte biedt aan 7.500 woningen en 5.000 extra arbeidsplaatsen. Voor het gebied aan de stadskant van de Spoorzone is onlangs een stedenbouwkundige visie vastgesteld. Deze visie beschrijft hoe de inrichting van de ontwikkellocaties Ankie’s Hoeve aan de Halve Maan, het Stationsplein, het Meerplein, Marlo en de Brink er in de toekomst uit kan komen te zien. Deze gebieden krijgen een ‘stadse’ uitstraling. Concreet betekent dit dat er in hogere dichtheden wordt gebouwd dan bijvoorbeeld in de woongebieden. Ook is meer functiemenging mogelijk. Tegelijkertijd zal het nieuwe centrumstedelijk gebied geen bedreiging zijn voor het historische centrum, maar voorzien de nieuwe ontwikkelingen juist in meer draagkracht en aanvullingen op het historische centrum.
Woonwijken
De verschillende woonwijken van de gemeente hebben allen een eigen karakter en trekken verschillende doelgroepen aan. De verschillende woonwijken hebben zowel opgaven die voor alle woonwijken gelijk zijn, als opgaven die specifiek zijn voor één woonwijk. In de paragraaf wordt dan ook aandacht besteed aan de verschillen binnen de wijken. Binnen de woonwijken vallen ook alle voorzieningen binnen de wijk, zoals winkels, horeca, sportclubs en openbaar groen.
Wijk aan Zee
Het dorp Wijk aan Zee ligt als een enclave tussen het staalbedrijf Tata Steel, de Noordzee en het Noord-Hollands Duinreservaat. Wijk aan Zee kent een zeer hechte gemeenschap die een grote betrokkenheid voelt bij hun dorp en hun dorpsgenoten. Het is een familiebadplaats van belang voor Beverwijk en de directe regio. Heliomare is een grote zorginstelling in het dorp.
Groen en natuur
Ondanks het versteende imago van het centrumgebied heeft Beverwijk relatief veel openbaar groen. Het stedelijk groen bestaat onder andere uit snippergroen en groenstructuren in de wijken, bestaat uit parken en brede buffers rondom de industrie. Verder bestaat het groen natuurlijk uit de duinen met hun natuurgebieden, die voor een groot deel aangewezen zijn als Natura 2000 gebied, en ook deel uitmaken van Natuur Netwerk Nederland (NNN). Binnen dit deelgebied valt ook het strand en het zeewater (vooroever) dat binnen de gemeentegrenzen valt. Tot slot is er ook de Wijkermeerpolder in het oosten. Hier lag vroeger het OerIJ en hier is nu nog steeds het Unesco werelderfgoed “de Nieuwe Hollandse Waterlinie” (Stelling van Amsterdam) te bewonderen.
Bedrijvigheid
Beverwijk ligt in het hart van de bedrijvige en dichtbevolkte IJmond. De Beverwijkse bedrijventerreinen waaronder de Parallelweg, Zeehaven De Pijp en de Wijkermeer spelen een belangrijke rol in de lokale en regionale economische structuur. Gezamenlijk staan de terreinen bekend als Beverwijk Business Docks. Daarnaast kent de gemeente ook gebieden met zware industrie. Met de zware industrie bedoelen we het gebied tussen Wijk aan Zee en het westelijk tuinbouwgebied. Deze terreinen zijn met name in gebruik door Tata Steel.
4.1.2 Uitleg Spinnenwebben
De gezondheid van onze inwoners wordt beïnvloed door factoren in de fysieke leefomgeving. Met omgevingsbeleid kunnen we sturen op het minimaliseren van de negatieve ruimtelijke factoren en het vergroten van ruimtelijke positieve factoren voor de gezondheid. De milieufactoren zijn luchtkwaliteit, externe veiligheid, geur, geluidsoverlast, trillingen en bodem- en watervervuiling. Het ruimtelijk scheiden van milieubelastende activiteiten (bijvoorbeeld industrie) en kwetsbare functies (bijvoorbeeld scholen en kinderdagverblijven) is een van de manieren om bij te dragen aan een gezonde fysieke leefomgeving.
Gezonde en veilige leefomgeving
Dit thema geeft de mate weer waarin we hier gezond en veilig kunnen wonen, verblijven of recreëren. Wanneer dit thema op maximaal staat zetten we volop in op gezondheidsbescherming en gezondheidsbevordering. Gemeentebreed streven we natuurlijk naar een gezonde en veilige leefomgeving, waardoor dit thema in de meeste gebieden hoog scoort. Toch blijft het bij nieuwe ontwikkelingen altijd een belangrijk onderdeel van de afwegingen die moeten worden gemaakt.
Wonen
Dit thema staat voor het creëren en behouden van een aantrekkelijke woonomgeving, waar kwaliteit (aard van de woningen) en kwantiteit (aantal) beide belangrijk zijn.
Mobiliteit en infrastructuur
Dit thema geeft de kwaliteit van de bereikbaarheid binnen dit deelgebied en naar de andere deelgebieden weer. In verschillende deelgebieden kan dit thema zich op verschillende wijzen manifesteren: in het ene gebied ligt de focus misschien meer op langzaam verkeer en in het andere gebied wellicht meer op gemotoriseerd verkeer. Dit zal bij de verschillende deelgebieden (tekstueel) worden verduidelijkt.
Bedrijven, werken en winkelen
Wanneer in een deelgebied dit thema op maximaal staat, is de economische vitaliteit in de vorm van industrie, onderwijs, handel, logistiek, retail en/of horeca van maximaal belang.
Natuur, groen, klimaatadaptatie en water
Wanneer dit thema op maximaal staat, is de kwaliteit van de natuur en de groenvoorzieningen van maximaal belang. Niet enkel om de intrinsieke waarde voor flora en fauna, maar ook die groen, waterabsorptie en bergering leveren aan leveren aan het verminderen van hittestress en wateroverlast (klimaatadaptatie).
Cultuur, erfgoed, toerisme en vrije tijd
Wanneer dit thema op maximaal staat in een deelgebied, is het versterken en bewaken van overkoepelende (lokale/regionale) erfgoedwaarden en cultuurvoorzieningen van maximaal belang naast, en parallel aan, het bieden van gelegenheid voor alledaagse vrije tijdsbesteding in de buitenruimte, zoals sport, beweging en ontmoeting. In verschillende deelgebieden kan dit thema zich op verschillende wijzen manifesteren: in het ene gebied ligt de focus misschien meer op toerisme, en in het andere gebied wellicht op erfgoed. Dit zal bij de verschillende deelgebieden (tekstueel) worden verduidelijkt.
Duurzaamheid, energie en circulaire economie
Dit thema staat voor het vormgeven aan een wereld waarin zo min mogelijk ‘afvalstromen’ en emissies ontstaan: een duurzame leefomgeving.
4.1.3 Uitleg mengpanelen
Geluid, trillingen, licht, fijnstof en nog meer factoren hebben invloed op de gezondheid van onze inwoners. We noemen dit milieueffecten. Daarom is het belangrijk om goed te kijken naar welke milieubelasting op welke plek toelaatbaar is.
Vanuit het rijk zijn er normen gesteld die nooit overschreden mogen worden. Dat noemen we de wettelijke grenswaarden. De WHO (World Health Organisation) geeft adviezen over welke milieubelasting maximaal toelaatbaar is. Deze liggen beduidend hoger dan de wettelijke grenswaarden. Binnen de Omgevingswet heeft elke gemeente de ruimte om zelf te bepalen welke milieubelasting zij toelaatbaar vindt, mits deze niet tot een hogere milieubelasting leiden dan het Rijk heeft gesteld.
In deze omgevingsvisie geven we aan welke milieubelasting we in de verschillende gebieden wenselijk vinden. In een bedrijventerrein is het bijvoorbeeld minder erg dat er milieubelasting is van ‘trillingen’ dan in een woongebied. De gewenste milieubelasting per deelgebied hebben we uitgesplitst naar de verschillende milieueffecten. Dit is weergegeven in het ‘milieumengpaneel’ voor elk van de deelgebieden. Deze ambities liggen minimaal op de wettelijke grenswaarde. Maar om te zorgen voor een goede gezondheid voor onze inwoners vinden we de minimale wettelijke grenswaarde te laag.
De gemiddelde milieubelasting zoals deze nu in Beverwijk is, is wat we in het milieumengpaneel de ‘standaard’ milieukwaliteit noemen. Wanneer het onze ambitie is om voor een milieufactor de ‘standaard’ waarde na te streven, betekent dit dus dat we geen vergroting van de milieubelasting in het desbetreffende deelgebied zullen toestaan. Wanneer we een lagere milieubelasting nastreven (het ‘schuifje’ staat dan hoger), willen we dus een verbetering realiseren ten opzichte van de situatie zoals deze nu gemiddeld in heel Beverwijk is.

4.2 Centrumstedelijk gebied
Met de realisatie van de Beverwijkse brede welvaart versnellers is een flinke impact te maken in het centrum stedelijk gebied! Op en rond de Bazaar wordt een levendig gebied ontwikkeld waar, wonen, ontmoeten en werken samenkomen. Maar ook aan de Spoorzone-stadskant, op kleinschaligere inbreidingslocaties en boven winkels, zal gewerkt worden aan het vergroten van het woningaantal. Duurzaamheid en een aantrekkelijke buitenruimte zijn daarbij speerpunten. De aanpassing aan de A22, de nieuwe afrit en een eventuele realisatie van de Velserverbinding zorgen dat doorgaand verkeer in het gehele centrumstedelijke gebied fors vermindert. Dat biedt meer ruimte, letterlijk en figuurlijk, voor betere langzaamverkeersverbindingen naar de overige woonwijken én naar de groene gebieden. De verblijfskwaliteit van de openbare ruimte is speerpunt in het centrumstedelijk gebied. Daartoe is inzet op veiligheid van groot belang. De ontwikkeling van de HOV-knoop, de oostelijke toegang tot het station en het vormgeven aan meer iconische stadsentrees, versterken het stedelijk karakter van Beverwijk en verbeteren het imago en uitstraling van de stad bij binnenkomst.
4.2.1 Kernkwaliteiten en identiteit
Het van centrumstedelijk gebied Beverwijk is volop in ontwikkeling. De komende jaren ligt er een grote opgave om de twee helften rondom het spoor en de A22 beter met elkaar te verbinden. Zo ontstaat er een centrum-stedelijk gebied, waarin de diverse centrumdelen elkaar versterken en aanvullen. Een gebied waar de Beverwijker trots op is en dat bezoekers uit de regio aantrekt.
Het oude centrum van Beverwijk heeft een ‘stadse uitstraling’. De bebouwing dateert uit verschillende periode, waaronder de periode 1910-1945 en de jaren ‘80 en ‘90, die deels door elkaar lopen. Uitzondering vormt de Grote Kerk die uit de 15e eeuw stamt. Dichter naar het winkelgebied is de bebouwing ouder en gevarieerder. De historische stedenbouwkundige structuur van het plangebied is door ingrepen uit de jaren ’80 en ’90 voor een deel teniet gedaan, waardoor deze op dit moment niet eenduidig en helder is. De bebouwing in het gebied is qua architectuur zeer divers. Het is bovendien een gebied met een grote rijkdom aan gemeentelijke monumenten.
Al sinds de middeleeuwen is het langgerekte gebied rond de Breestraat het centrum van handel en commercie. In 2017 is de Breestraat helemaal opgeknapt, waardoor de leegstand is verminderd en de straat er weer representatief uitziet. De kwaliteit van het centrum is er daardoor sterk op vooruit gegaan. Het gebied rond dit historisch lint kenmerkt zich door een dichte en compacte structuur van smalle wegen met relatief kleinschalige, veelal individuele, maar aan elkaar vast gebouwde panden. De achterliggende straten fungeren als zogenaamd ‘toeloopgebied’. Op de begane grondlaag bevindt zich een diversiteit aan veelal kleinschalige detailhandelsbedrijven en dienstverlenende bedrijven. Het noordelijke gebied kenmerkt zich door een menging van woon-, maatschappelijke- en culturele functies, zoals het Kennemer Theater, de bibliotheek, de Grote Kerk en een aantal (woon)zorgvoorzieningen.
Het noordoostelijk deel van het centrum stedelijk gebied rondom de Bazaar bouwt op een vergelijkbare (maar recentere) geschiedenis van handel en commercie voort. Dit gebied vormt het belangrijkste transformatiegebied in Beverwijk. Hier willen we een stoer, duurzaam en prettig leefgebied realiseren, waar gewoond en gewerkt wordt met voldoende voorzieningen én dat onlosmakelijk onderdeel uitmaakt van het centrum van Beverwijk. We streven naar het creëren van een gebied dat de merkwaarden van Beverwijk representeert, zodat het ook hier “Beverwijks” wordt. Deze merkwaarden zijn randvoorwaarden voor integratie in de stad en voor een leefbaar woon- en werkgebied. Er wordt samenhang nagestreefd in de openbare ruimte. Er worden water- en groenstructuren ontwikkeld, waar inwoners elkaar kunnen ontmoeten. Hiermee wordt ook de verbinding met de bestaande stad gelegd. Op deze plekken staan voetgangers en fietsers; en mens, plant en dier centraal.
4.2.2 Een gezond, krachtig en toekomstbestendig centrumstedelijk gebied
In het centrumstedelijk gebied is levendigheid in combinatie met een gezond en veilig leefklimaat erg belangrijk. De uitdagingen voor het centrumstedelijk gebied zijn groot, maar als gemeente zijn we erg ambitieus. In de toekomst is het centrum maar liefst twee keer zo groot. De ambities zijn om aan de westkant van het spoor sterk te verdichten en hier zo’n 2.000 nieuwe woningen te realiseren en te transformeren naar nieuwe werkvormen. In het transformatiegebied rondom de Bazaar richten we ons op het toevoegen van ongeveer 4.000 nieuwe woningen. Deze ontwikkelingen moeten samengaan met het vergroten van voorzieningen in het centrumstedelijk gebied. Door de twee stadshelften beter te verbinden ontstaat visueel en mentaal een groot centrumstedelijk gebied, waar leefbaarheid en levendigheid hand in hand gaan.
Het echte winkelhart van Beverwijk, de Breestraat en omgeving, dient een attractief en gastvrij winkelgebied voor Beverwijk en de IJmond te zijn. We zetten in op een aantrekkelijk centrum winkelgebied dat is gericht op de mogelijkheid tot boodschappen/winkelen, ontmoeten en recreëren voor iedereen. Het centrumgebied wordt hier ook groener dan het nu is. Consumenten winkelen steeds meer online en dit merken winkels in een dorps- of stadscentrum. Om een levendige winkelstraat te behouden moet een winkelstraat zich aanpassen aan deze trend, door winkelaanbod en belevingswaarde van de binnenstad te verbeteren en te versterken. Er is ruimte voor een evenwichtige mix van activiteiten op het gebied van retail, horeca, cultuur, evenementen, toerisme en wonen. Zo wordt de functie van het centrum als een ‘huiskamer’ verder versterkt. We richten ons in het centrum op kleinschalige detailhandelsfuncties, retail, horeca en terrassen, die de beleving van het centrum versterken.
De supermarkten met parkeervoorzieningen aan de rand van het winkelhart (Beverhof) vergroten de aantrekkelijkheid en combinatiebezoek. Grootschalige detailhandel als supermarkten en groothandelsvestigingen zijn in de Breestraat zelf minder passend. Met een specifiek winkelaanbod en voldoende horecagelegenheden kan (toekomstig) toerisme ook beter bediend worden. We richten ons ook op het zichtbaarder maken en beter beschermen van onze historische gebouwen en structuren. Tezamen helpen deze maatregelen om de ‘stadse uitstraling’ van hartje Beverwijk te versterken.
Aan de westkant van het spoor heeft de gemeente Beverwijk een stedenbouwkundige visie vastgesteld. Deze visie beschrijft hoe de inrichting van de ontwikkellocaties Ankie’s Hoeve aan de Halve Maan, het Stationsplein, het Meerplein, Marlo en de Brink er in de toekomst uit kan komen te zien. Het Marloterrein, met onder meer grootschalige detailhandel en supermarkten is daarin geïntegreerd opgenomen. Het gaat dan om zaken als wonen en voorzieningen, groen en water, en parkeren. Deze ontwikkelingen zullen de uitstraling van het gehele gebied versterken en bovendien zorgen voor extra draagkracht voor de commerciële functies in de directe omgeving.
Aan de Oostkant van het spoor rondom de Bazaar wordt gewerkt aan een grootschalige transformatie tot een stoer, duurzaam en prettig leefbaar gebied, waar gewoond en gewerkt wordt met voldoende voorzieningen. Wat betreft toerisme en recreatie, maar zeker ook qua cultuur en evenementen, is een hoofdrol weggelegd voor een Bazaar 2.0, die we neer zetten als een (inter)nationale publiekstrekker binnen de MRA. De Bazaar is strategisch gelegen (deels) buiten de milieuhindercirkels, heeft een beperkt aantal eigenaren, een extensieve bebouwing en is door de omvang een belangrijk vliegwiel voor de ontwikkelingen aan de Oostzijde van centrumstedelijk Beverwijk. De Bazaar heeft de potentie om een florerend gemengd gebied te worden, waar de Bazaar in een nieuwe geconcentreerde vorm wordt versterkt met woningbouw, voorzieningen en bedrijfsmatige ontwikkelingen in een kwalitatief goede leefomgeving waar mensen samenkomen en verblijven.
4.2.3 Van en naar het centrumstedelijk gebied
De organisatie van mobiliteit is cruciaal voor een aangenaam leefklimaat in het centrumstedelijk gebied. Het gebied is van buiten de stad uitstekend te bereiken met de auto en via het spoor. Dit zit echter tegelijkertijd de leefbaarheid in de weg. Zo loopt de A22 door het centrum, wat naast milieu- en geluidsoverlast ook een sterke visuele en mentale barrière oplevert. Zonder maatregelen zal in de komende 20 jaar het mobiliteitssysteem in het centrumstedelijk gebied vastlopen als gevolg van regionale autoverkeerstoename. Lokale maatregelen hebben enig effect, maar dit effect valt in het niet bij de autonome groei van het aantal motorvoertuigen. Ook bovengemeentelijke maatregelen zijn nodig om deze autonome groei het hoofd te kunnen bieden.
In sterke samenhang met elkaar zal daarom een aantal maatregelen ten uitvoering moeten worden gebracht. Ten eerste is het cruciaal dat de A22 minder hinder veroorzaakt. Met minder verkeer en stiller asfalt wordt de luchtverontreiniging en geluidsbelasting aanzienlijk verminderd. Op langere termijn kan nagedacht worden of een lagere snelheid ook tot de verbetermogelijkheden behoort. Deze ingrepen maken een afrit bij de Meerlanden mogelijk, zodat ook de Broekpolder en het transformatiegebied rondom de Bazaar veel beter worden ontsloten. Op die manier hoeft doorgaand verkeer niet meer over de Parallelweg in het oosten, of via de Velsertraverse, Spoorsingel en Wijckermolen te worden geleid. Zo ontstaan ook betere mogelijkheden om de twee centrumgebieden met elkaar te verbinden. De eventuele aanleg van de Velserverbinding kan hier ook aan bijdragen.
De wegen in het centrumstedelijk gebied worden primair ingericht op bestemmingsverkeer, waarbij doorgaand verkeer via de stadsring van Beverwijk naar de perifere bestemmingen wordt geleid/kan rijden. Ook wordt er ingezet op verbetering van het Hoogwaardig Openbaar Vervoer via de Wijkermolen. Het station wordt aantrekkelijker gemaakt voor gebruik door aan de Oostzijde een ingang aan te leggen richting de Parallelweg voor voetgangers (evt. met fiets aan de hand).
Dankzij deze maatregelen kan aangenaam verblijven in het centrumstedelijk gebied centraler komen te staan. Lopen, fietsen, groen en verblijven krijgen op straat de meeste ruimte. Om dit samenhangend aan te pakken, zetten we in op goede, veilige en gemakkelijke fietsenstallingen in het centrum en bij openbare voorzieningen. Fietsen en wandelen wordt veel aantrekkelijker door groene verbindingen te creëren die ook cultuurhistorische elementen uitlichten.
Het parkeren moet (ook ten behoeve van nieuw te realiseren woningen in het gebied) anders worden opgelost. Bijvoorbeeld met het realiseren van gebouwde voorzieningen zoals een parkeergarage of van hubs bij nieuwbouwontwikkelingen. We willen de barrières die de spoorlijn en de A22 opwerpen sterk verminderen, door comfortabele en intuïtieve verbindingen te creëren waar langzaam verkeer meer ruimte krijgt. Zo creëren we op termijn een veiliger, aantrekkelijker, gezonder en beter verbonden stadshart.
Het is belangrijk dat het centrum (winkelhart) goed bereikbaar blijft voor bezoekers met alle vervoersmiddelen. Dus ook met de auto. Vooral voor bezoekers, bewoners van het centrum en mindervaliden is het belangrijk dat het centrum ook met de auto prima bereikbaar is. Bewoners van het centrum en mindervaliden kunnen hun auto vlakbij hun huis en winkels blijven parkeren. Daarnaast kan worden onderzocht of een nieuwe parkeergarage soelaas biedt.
Verder zetten we ook in het centrum in op duurzame mobiliteit. Denk aan voldoende openbare laadpalen voor auto en fiets en daarnaast bekijken we welke innovatieve mobiliteitsconcepten, zoals deelmobiliteit, passend zijn. Bij nieuwe bouwplannen wordt op projectniveau voldaan aan de parkeervraag.
4.2.4 Een centrumstedelijk gebied van en voor alle Beverwijkers
De ontwikkelingen in het centrumstedelijk gebied worden ingezet als impuls voor de gehele stad. Zo profiteert de bestaande bewoner optimaal van de verdichting: de openbare ruimte wordt groener, levendiger en vriendelijker voor mens en dier. De ontwikkelingen worden bovendien gefaseerd uitgevoerd. De huidige bewoners zullen daarom niet te maken krijgen met plotse, snelle veranderingen, maar een geleidelijke kwaliteitsimpuls gaan zien van hun leefomgeving. In dit proces is plek voor inspraak, participatie en discussie.
In de eerste ontwikkelplannen van het centrumstedelijk gebied hebben drie doelgroepen onze specifieke aandacht:
-
a.
Senioren (bij voorkeur doorstromers vanuit eengezinswoningen)
-
b.
Starters (doelgroep voor betaalbaar wonen, werkend en studerend)
-
c.
Stadse gezinnen (gezinnen die gewend zijn of wensen gestapeld te wonen)
Meer in het algemeen betekent dit een focus op middeninkomens, waarbij uiteraard ruimte blijft voor sociale huur en speciale doelgroepen (circa 20 tot 30%).
Daarnaast zetten we volop in op het realiseren van een gezonde leefomgeving. Een gezonde leefomgeving beschermt tegen negatieve omgevingsinvloeden, bevordert de gezondheid en zorgt ervoor dat iedereen kan meedoen aan de samenleving. De gemeente gaat daarbij uit van de principes van het begrip ‘Positieve gezondheid’, zoals ook uitgewerkt in de Regionale Gezondheidsnota. We streven naar een prettige, uitnodigende en een voor iedereen goed toegankelijke omgeving waar gezonde keuzes logisch zijn. De openbare ruimte wordt groen, luchtig en gericht op ontmoeting. Zo stimuleert de ruimte de fysieke, mentale en sociale gezondheid van de gebruikers uit tot bewegen en een actieve leefstijl, tot ontspannen en ontmoeten en is voor een ieder goed toegankelijk (inclusief) en veilig.
Grote uitdaging voor dit transformatiegebied zal zijn het centrum stedelijk gebied met haar verschillende functies te verbinden met het naastgelegen industriegebied met haar economische functie. Inwoners en ondernemers zullen actief betrokken worden om mee te denken over de toekomstige ontwikkeling van beide gebieden.
We zoeken de verbinding tussen de Stadskant van de spoorzone en de directe omgeving wat betreft voorzieningen en publieke ruimtes. Hierbij zorgen we voor goede toegang tot en bereikbaarheid van openbare en maatschappelijke voorzieningen (welzijn, zorg, cultuur, sport, onderwijs), gebaseerd op de behoefte van de beoogde toekomstige bewoners/doelgroepen (fysiek bereikbaar en kwantitatief toereikend). Daarbij ook rekening houdend met bereikbaarheid in geval van calamiteiten.
Het centrumstedelijk gebied biedt al veel mogelijkheden om elkaar te ontmoeten, bijvoorbeeld in de horeca, bij het theater en in de bibliotheek. Vanuit bewoners bestaat er echter een toenemende behoefte aan plekken om elkaar te ontmoeten. Op een aantal locaties en met strategische evenementen kunnen we inwoners vanuit heel de gemeente samenbrengen en elkaar laten ontmoeten. Positieve voorbeelden zijn bijvoorbeeld de Grote Kerk en de Smaakmarkt, die tot onverwachte verbindingen tussen verschillende groepen mensen kunnen leiden. Het centrum van Beverwijk kenmerkt zich door bedrijvigheid en drukte. Dat brengt gezelligheid, maar soms ook overlast met zich mee. In het centrum wordt meer overlast ervaren dan in andere wijken. In het centrum voelen Beverwijkers zich over het algemeen minder veilig dan in veel andere wijken. Daarom werken we hier met een gerichte aanpak en bouwen we aan relaties met ondernemers en inwoners om zowel de objectieve als de subjectieve veiligheid te verbeteren. We proberen zo veel mogelijk vaste aanspreekpunten te realiseren en waar nodig te ondersteunen.
In het algemeen geldt dat ondermijning, overlastgevend gedrag en overlastgevend gebruik worden bestreden.
Het oplossen van deze problematieken vraagt dus om een integrale benadering en een goede samenwerking. We gaan nog actiever samenwerken met partners uit het sociaal domein, binnen het fysieke domein en het veiligheids- en handhavingsdomein. Daarnaast vragen we ook onze inwoners om hun steentje bij te dragen. We streven naar een verbetering van de sociale en fysieke veiligheid en het zorgvuldig situeren van overlastgevende functies. We willen de objectieve veiligheid verbeteren en het gevoel van onveiligheid verminderen. Bij de inrichting van de openbare ruimte en de keuzes wat betreft de situering van diverse woningtypologieën houden we rekening met een betere veiligheid. Daarnaast willen we de risico’s op brand, ongelukken en criminaliteit terugdringen.
In het centrum van Beverwijk zijn veel maatschappelijke en culturele instellingen en activiteiten geclusterd. Op en rond het Kerkplein zijn het Kennemer Theater, de Bibliotheek, het Centrum voor de Kunsten Beverwijk en diverse maatschappelijke instellingen gevestigd. Zij profiteren van elkaars nabijheid en de samenwerking die daardoor mogelijk wordt.
Ook in de nieuw te ontwikkelen gebieden is het belangrijk dat voorzieningen worden toegevoegd waar gewenst en noodzakelijk. En voor de bestaande voorzieningen is het van belang om te blijven beoordelen of zij nog passend zijn voor de groeiende groep inwoners en gebruikers. Het kan zijn dat ook bestaande voorzieningen moeten worden uitgebreid of verplaatst om tegemoet te komen aan de behoefte.
We willen werk gaan maken van de zichtbaarheid van ons erfgoed in het centrum, om daarmee de kwaliteit van het woon- en winkelgebied te versterken.
4.2.5 Een upgrade van natuur, milieukwaliteit en schone energie
Binnensteden zijn drukke gebieden waar veel bewegingen van personen en goederen plaatsvinden. De reuring door evenementen en horeca heeft invloed op de leefbaarheid. Om het woonmilieu goed te houden zal voorkomen moeten worden dat er extreme overlast ontstaat op het gebied van geluid, trillingen en geur door verkeer, horeca of evenementen. We houden de optie open om in de toekomst, als Beverwijk daar klaar voor is, wegen af te waarderen.
Binnen het centrumstedelijk gebied ligt er de komende jaren een verduurzamingsopgave. In de oude stadskern is duidelijk sprake van verdichting. Bewoners missen in dit deel groene openbare ruimte. De bestaande inrichting van de openbare ruimte voldoet niet meer aan de maatschappelijke wensen en doelen en is verouderd. De straten zijn te smal voor al het verkeer dat er door moet en hebben gebrek aan parkeer- en leefruimte, groen- en speelvoorzieningen. Voor het centrum geldt verder dat het percentage versteend oppervlak erg groot is.
Vanwege de beperkte en veelal versteende openbare ruimte ligt er in het centrumstedelijk gebied een aandachtspunt wat betreft klimaatadaptatie, hittestress en waterberging. Daar waar mogelijk zetten we in op een gezonde, leefbare en duurzame omgeving die toekomstbestendig is. Vergroening is zeer wenselijk, maar zal in de praktijk niet overal even makkelijk in te passen zijn. We gaan op zoek naar integrale oplossingen, maar richten ons ook op kleinschaligere en eenvoudigere groentoepassingen, zoals strategische bomen, aanleg van geveltuinen en (gedeeltelijke) vergroening rond de Wijckertoren.
Het is evenmin eenvoudig om de bestaande bouw in het centrum te verduurzamen. We moeten accepteren dat het niet haalbaar is om de oudste panden naar energieneutraal te transformeren. Voor (rijks)monumenten is rijksbeleid opgesteld met oplossingen om monumenten te verduurzamen. Nieuwbouw en renovatie zullen zo duurzaam mogelijk gerealiseerd worden. We stimuleren verduurzamingsmaatregelen aan bestaande woningbouw, vooral die met een terugverdientermijn van minder dan 10 jaar.
Het transformatiegebied rondom de Spoorzone, en ontwikkellocaties als Ankie’s Hoeve en het Marlo-terrein worden een voorloper en ‘proeftuin’ voor verduurzaming elders in de gemeente. Hier liggen veel kansen voor verduurzaming doordat het gebied nog gerealiseerd moet worden. We gaan ons dus concreet richten op het stimuleren of verplichten van energie-neutrale nieuwbouw en we realiseren klimaatneutraliteit op gebiedsniveau (en dus niet per gebouw), omdat dit aansluit bij onze gemeentelijke ambitie om in 2050 klimaatneutraal te zijn. We houden daarbij in de gaten dat het niet ten koste van onze woningbouwopgave gaat. Voor hoogbouw met weinig ruimte voor zonnepanelen op het dak geldt dat gezocht wordt naar collectieve duurzaamheidsoplossingen zoals een warmtenet of collectieve WKO-installaties.
Voor de realisatie van de projecten aan de oostzijde van het centrumstedelijk gebied zijn met name de luchtkwaliteit en geluidsbelasting kritieke factoren. Daarom zetten we hier ook in op de acties uit het Programma Gezondheid en Luchtkwaliteit en Programma Duurzaamheid. Daarbij streven wij naar het behalen van de WHO-advieswaarden (uit 2005) voor luchtkwaliteit en omgevingsgeluid in 2030 en verdere verbetering richting 2040. Dit vertalen we concreet naar drie kernprincipes voor de nieuwe ontwikkelingen:
-
a.
Groene, gezonde en inclusieve openbare ruimte: Een zo groen mogelijke aantrekkelijke openbare ruimte draagt bij aan de gezondheid door klimaatadaptatie mogelijk te maken, aantrekkelijk te zijn voor actieve manieren van vervoer en voor iedereen toegankelijk is.
-
b.
Duurzame bouwmethoden: Duurzame bouwmethoden voor zowel de buitenruimte als de gebouwen zorgen voor een gezondere en duurzamere stad.
-
c.
Nabijheid: Nabijheid van voorzieningen, sociale contacten en natuur zorgen voor minder reisbewegingen en een beter algeheel welzijn.
Nieuwe ontwikkelingen in het gebied leveren zo een positieve bijdrage aan de milieukwaliteit en klimaatbestendigheid van de stad door meer groen en blauw toe te voegen, zowel binnenplans als (indien van toepassing) buitenplans. Daarbij ook rekening houden met ongewenste neveneffecten (bijv. verspreiding van infectieziekten/ ongedierte). Door de toevoeging van groen en water worden de entrees naar het gebied ook aangenamer en aantrekkelijker.

Het gemengde karakter van het centrumstedelijk gebied maakt dat de kwaliteiten die worden nagestreefd sterk wisselen per locatie. Voor het gehele centrumstedelijke gebied geldt dat er per definitie sprake is van een grote variatie in gebruik. Om een goede balans in het gebied te waarborgen is het noodzakelijk dat op elke locatie alle waarden gefaciliteerd worden, waarbij een nadruk ligt op de gezonde en veilige leefomgeving.
Het centrumstedelijk gebied is een druk gebied met vele verschillende gebruiks-mogelijkheden waar veel bewegingen van personen en goederen plaatsvinden. Dit soort reuring is kenmerkend voor een centrumstedelijk gebied. Om het woonmilieu goed te houden moet echter worden voorkomen dat er extreme overlast ontstaat op het gebied van geluid, trillingen en geur door verkeer, horeca of evenementen. Voor licht, geluid van activiteiten en geur van bijvoorbeeld evenementen en horeca sluiten we in dit gebied aan bij de standaardkwaliteit. We zetten echter in de hele gemeente, dus ook in het centrum, in op schone vervoersvormen en vergroening, hiermee streven we ook naar een betere luchtkwaliteit en een reductie van geluid van verkeer. Voor wat betreft bodemkwaliteit geldt dat deze door de historie een lage kwaliteit heeft. Door bij nieuwe grondtoepassingen in te zetten op standaard kwaliteit, ontstaat door de tijd een betere bodemkwaliteit.

4.3 Woonwijken
De meeste impact op de gezondheid en welvaart van de Beverwijker heeft de omgeving waar men de meeste tijd doorbrengt: de eigen woning. We zetten in op vitale wijken waar buiten het tweede thuis wordt. Met differentiatie op de woningmarkt, meer ruimte voor middeninkomens, inpassing van bijzondere doelgroepen en een verduurzaming van woningen en omgeving. De woonomgeving wordt klimaatadaptiever door het verminderen van verharding, door een impuls in kwalitatief groen en door meer aandacht voor de verblijfskwaliteit van de openbare ruimte. Het doorgaand verkeer in een deel van de wijken wordt verminderd door de aanpassing aan de A22 (vermindering rijsnelheid en lagere milieubelasting) en de nieuwe op- en afrit bij Broekpolder/ de Bazaar, waardoor er binnen de wijken een aantrekkelijkere situatie ontstaat voor langzaam verkeer. Routes naar recreatieve buitengebieden en het centrum worden groener en comfortabeler voor het langzaam verkeer waardoor de recreatieve buitengebieden prettig bereikbare voorzieningen worden. Zowel de verduurzaming van de gebouwde omgeving als de vermindering van de gemotoriseerde verkeersbewegingen door de wijken dragen bij aan een betere luchtkwaliteit en minder geluidsbelasting.
4.3.1 Kernkwaliteiten en identiteit
De woonwijken van Beverwijk zijn zeer divers. Beverwijk heeft veel betaalbare woningen en ook een relatief hoog aandeel sociale huur. De vooroorlogse wijken van Beverwijk, waaronder het Vondelkwartier, kenmerken zich door een hoge bebouwingsdichtheid en relatief veel monumenten.
De wederopbouwgebieden, zoals (delen van) de wijken Meerestein, Kuenenpleinbuurt, Plantage, de Warande en Oosterwijk, kenmerken zich door veel sociale huur en veel groen. Deze wijken zijn ontwikkeld na de Tweede Wereldoorlog, tijdens de snelle groei van de hoogovens. Binnenduin is een buurt, ingepast in het oorspronkelijke tuindersgebied.
Recente wijken zoals de Broekpolder bevinden zich vooral aan de randen van de gemeente. De Broekpolder is een typische Vinex-locatie met voornamelijk eengezinswoningen.
4.3.2 Gezonde, krachtige en toekomstbestendige woongebieden
We willen bouwen aan toekomstbestendige wijken. Dit zijn wijken waar we voorsorteren op de grote opgaven van deze tijd, zoals de verduurzaming en een gezonde leefomgeving. We willen rekening houden met mensen die afhankelijk zijn van nabijheid van voorzieningen. De noodzaak van nieuwe woningen is hoog. Dit vraagt om het actief benutten van de (schaarse) mogelijkheden die zich aandienen door inbreiding, transformatie of stedelijke vernieuwing en verbetering. De woningnood moet echter niet ten koste gaan van het groen, bereikbaarheid en veiligheid. Een goede balans is belangrijk. Stedelijke vernieuwing of stedelijke verbetering betekent in veel gevallen ook niet dat de bestaande bebouwing moet worden gesloopt, sommige (oudere) wijken of delen daarvan bevatten veel kwaliteiten die behouden zouden moeten blijven.
We zetten in op groene, gezonde, gedifferentieerde en toekomstbestendige wijken voor voor jong en oud door middel van een wijkgerichte aanpak. Zo ontstaan veerkrachtige wijken voor iedereen. Daarvoor zijn voldoende passende woningen nodig en is het noodzakelijk dat we alleen ruimte bieden aan functies die goed passen in een woonwijk. Zo zijn grotere evenementen niet toegestaan. Ook voor bedrijvigheid is geen ruimte, tenzij kleinschalig ‘aan huis’ en het geen (milieu-/geluids-/verkeers-) overlast veroorzaakt. We streven naar woonwijken met voldoende rust en ruimte. Er is geen ruimte voor bijvoorbeeld hoge windmolens, te drukke wegen, of te veel bedrijvigheid. Daar hoort ook bij dat we zuinig zijn op het groen en het water in de woonwijken waar dit aanwezig is. Waar mogelijk maken we het groen aangenamer en beter beleefbaar voor bewoners. We onderzoeken ook natuurvriendelijke oevers ten behoeve van de biodiversiteit.
De openbare ruimte moet schoon, heel en veilig zijn, en uitnodigen om kinderen buiten te laten spelen en mensen elkaar te laten ontmoeten. We streven naar diversiteit binnen woonwijken, met ruimte voor verschillende woonstijlen en doelgroepen. We stimuleren gedifferentieerde woonwijken, niet alleen in de typen woningen maar ook door het zorgen voor voldoende voorzieningen waarin groepen elkaar kunnen ontmoeten.
4.3.3 Van en naar de woongebieden
In woongebieden staat verkeersveiligheid en comfortabel wonen centraal. Kinderen kunnen hier prettig en veilig spelen op straat. Daarom wordt de snelheid in woongebieden zoveel mogelijk teruggebracht naar maximaal 30 km/u. Verkeersveiligheid en comfortabeler wonen in de wijken hangt ook sterk samen met het realiseren van een rondweg. Door het verlagen van de snelheid op de A22 en het maken van een extra wegaansluiting ter hoogte van de Broekpolder en de Bazaar wordt het mogelijk doorgaand verkeer uit de wijken te weren. De snelheid in woongebieden kan dan ook omlaag, waardoor straten rustiger, veiliger en leefbaarder worden. De verlaging van de snelheid op de A22 zorgt ook direct voor minder milieu- en geluidsoverlast in verschillende woongebieden.
De voorkeur van de gemeente Beverwijk is om nieuwe ruimtelijke ontwikkelingen te laten plaatsvinden op locaties die goed bereikbaar zijn met (hoogwaardig) openbaar vervoer, zoals het station van Beverwijk of nieuw te ontwikkelen mobiliteitshubs (een plek waar diverse vervoersvormen samenkomen). Bij nieuwe ruimtelijke projecten moeten dagelijkse voorzieningen in maximaal tien minuten lopen te bereiken zijn en moet het centrum van Beverwijk in maximaal vijftien minuten fietsen te bereiken zijn.
Vaak is er in de bestaande woonwijken een tekort aan parkeerplaatsen. Parkeren doet men het liefst zo dicht mogelijk bij het huis. Dit stelt ons voor een dilemma: willen we kostbare openbare ruimte besteden aan meer parkeerplaatsen, of besteden we deze ruimte aan meer groen en klimaatadaptatie, ruimte voor kinderen, of het bouwen van meer woningen? Daarom wordt in Beverwijk een inventarisatie gedaan naar een optimalisatie van parkeergelegenheden in woonwijken. Denk hierbij aan grotere parkeervoorzieningen, waar ook elektrische laadpalen en deelauto’s zijn. De gemeente vindt een afstand van maximaal 100 meter van woning naar parkeerplaats acceptabel voor de eerste auto. Voor de tweede en volgende auto wordt 250 meter als richtlijn aangehouden. We willen in de wijken plaatselijk ruimte vrijmaken voor voetgangers en fietsers. Ook kijken we naar ruimte voor collectieve parkeervoorzieningen, eventueel in combinatie met mobiliteitshubs. We zullen ten alle tijden letten op de sociale veiligheid van parkeerplaatsen, zodat bewoners met een veilig gevoel van hun parkeerplaats naar huis kunnen.
De bereikbaarheid moet op peil blijven en met eventuele ontwikkelingen meegroeien. We zetten in op de transitie richting duurzame mobiliteit. Denk hierbij aan het realiseren van openbare laadpalen en meer ruimte voor langzaam verkeer in het straatbeeld. Groene en aangename langzaamverkeersverbindingen brengen de bewoners naar de recreatiegebieden en parken.
4.3.4 Woonwijken van en voor alle Beverwijkers
We willen het woningaanbod voor starters, (jonge) gezinnen, oudere huishoudens en speciale doelgroepen vergroten. Daarnaast willen we ook de doorstroommogelijkheden voor onze inwoners vergroten in de wijken. Wat bouwen betreft leggen we nadruk op gezinswoningen, waarbij op een creatieve manier met de ruimte kan worden omgegaan. Op die manier kunnen we ook meer variatie in het woningaanbod op wijkniveau aanbieden, dan gaat het om type woning, maar ook om eigendom en prijsklasse.
In nieuwe woongebieden richten we ons met name op woningen voor middeninkomens, al zetten we hier ook in op ongeveer 20 tot 30% sociale huur, inclusief speciale doelgroepen. Herstructureringswijken als Meerestein en de Kuenenpleinbuurt worden getransformeerd tot woonwijken waar circa 20-30% van de woningen geschikt is voor de middeninkomens en waar het sociale woningaanbod wordt behouden. Tot slot zorgen we voor voldoende passende woningen en woonvormen voor speciale doelgroepen. Zo kunnen Beverwijkers beter doorstromen naar het type woning dat bij hen past. Hiermee richten we de gemeente en de wijken gedifferienteerder in.
In de wederopbouwgebieden, zoals de wijken Meerestein, Kuenenpleinbuurt en delen van Oosterwijk, zetten we in op het verbeteren van het veiligheidsgevoel en de leefbaarheid, zowel in het sociale als in het fysieke domein.
Bij Binnenduin blijven we inzetten op balans tussen de historische kwaliteiten van het westelijk tuinbouwgebied en de woonbuurt. Veranderingen in het tuindersbezit en de toekomstbestendigheid vragen om uitwerking van een aanvullende gebiedsvisie. In deze visie onderzoeken we ook of we ruimte kunnen creëeren voor kleinschalige woonconcepten die het gebied versterken en bijdragen aan duurzame ontwikkeling, zonder afbreuk te doen aan de unieke identiteit van het landschap.
We willen dat de buitenruimte jong en oud uitnodigt om te bewegen en te sporten. We zorgen daarom voor voldoende sport- en speelvoorzieningen op centrale plekken in de wijk, en bieden ook ruimte aan informele speelplekken zoals trapveldjes. We stimuleren initiatieven van bewoners, organisaties en verenigingen op het gebied van sporten en bewegen. Zo blijven onze inwoners niet alleen fysiek gezond, maar ook mentaal gezonder door nieuwe mensen te ontmoeten. Vooral voor kinderen is het belangrijk om gezond en veilig buiten te kunnen spelen. Waar passend versterken we de groengebieden zodat ze ook geschikter zijn voor (kleinschalige) culturele evenementen. Er is veel vraag naar meer speelplezier voor kinderen. We gaan hier als gemeente mee aan de slag.
Samen met bewoners verkennen we integraal de mogelijkheden om hun gezondheid (en leefstijl) en de kwaliteit van hun leefomgeving te bevorderen. Dit gebeurt in wijkgerichte aanpakken waarbij we de wooncorporaties, (huis)artsen, welzijn- en zorgprofessionals, en andere disciplines uit het sociale en veiligheidsdomein hierbij betrekken.
Om het straatbeeld aangenamer te maken en de gebruikskwaliteit te verbeteren gaan we vaker onze wegen en straten reinigen.
Zowel de objectieve als de subjectieve veiligheid verschilt per woonwijk, maar elke Beverwijker zou zich veilig moeten voelen in zijn of haar woonwijk. In een aantal wijken hebben we gewerkt of werken we door middel van een gerichte wijkaanpak aan het verminderen van het gevoel van onveiligheid. We streven naar een integrale, gebiedsgerichte aanpak, waar bewoners en andere betrokken partijen achter staan. Waar nodig rollen we deze aanpak ook uit in andere wijken.
Cultuur blijft goed bereikbaar vanuit de woonwijken en binnen de woonwijken. Via culturele activiteiten en evenementen komen ook verschillende doelgroepen bij elkaar. Activiteiten die dit soort verbinding beogen blijven we stimuleren.
4.3.5 Een upgrade van natuur, milieukwaliteit en schone energie
Er ligt een grote opgave om de woonvoorraad in Beverwijk te verduurzamen. De wijze waarop en volgorde waarin verschilt per wijk en per type woning (bouwjaar, aantal woonlagen) en het onderscheid naar particulier eigendom, particuliere huur of sociale huur. Hoewel we ons bewust zijn van deze verschillen, staat centraal dat we alle verduurzamingsmaatregelen aan bestaande woningbouw met een terugverdientermijn van minder dan 10 jaar willen stimuleren. Wat verduurzaming betreft zetten we er op in dat iedereen kan meedoen. We gaan actief voorkomen dat de duurzaamheidsopgave zorgt voor verschillen tussen sociale groepen. Onafhankelijk van de grootte van de portemonnee moet iedereen kunnen deelnemen aan verduurzaming.
We streven naar een energie neutrale woningvoorraad in 2050. Woningcorporaties hebben een grote rol wat betreft onderhoud en verduurzaming. Dit is echter een complex vraagstuk.
In een Vinex-wijk met veel particulier woningbezit als Broekpolder zijn woningen geschikter voor een all-electric warmteoptie dan de oudere vooroorlogse woningen rondom het centrum van Beverwijk. In de Broekpolder zullen we daarom gefaseerd overstappen op all-electric verwarmen.
In een aantal wijken bevinden zich veel woningen uit de jaren ’60 en ’70. Deze woningen zijn nu rond de vijftig jaar oud. Doorgaans is dit een indicatie van verminderde kwaliteit waarbij binnen afzienbare tijd een renovatiemoment aan de orde is, waarbij verduurzaming meegenomen kan worden. De verantwoordelijkheid ligt hiervoor primair bij de eigenaren van de woningen. We willen dan ook samen met de inwoners inzetten op de verduurzaming van de huidige woningvoorraad. Hetzelfde geldt voor het klimaatadaptief inrichten van (particuliere) percelen. Het gaat er hierbij bijvoorbeeld om dat zowel in de openbare ruimte, als in privé-tuinen verharding wordt tegengegaan en vergroenen wordt gestimuleerd. De gemeente ziet voor zichzelf een regietaak en een taak van informatievoorziening als het gaat om verduurzaming van gemeentelijke monumenten.
Inwoners hebben wel informatie nodig over de noodzaak en mogelijkheden van energetische verbeteringen, en het belang van ruimte voor groen en water in het kader van klimaatadaptatie. Enerzijds zodat de Beverwijker zelf de juiste keuzes maakt (isoleren, minder verharding in de tuin, een regenton) en anderzijds om begrip te kweken voor keuzes die de gemeente maakt bij het inrichten van de openbare ruimte. Hierbij is ook communicatie en het faciliteren van burgerinitiatieven van grote waarde. We zullen burgers dus ook actief ondersteunen en betrekken bij maatregelen uit het duurzaamheidsprogramma. Zo kunnen we burgers stimuleren om met de wijk regentonnen aan te sluiten of bijvoorbeeld met elkaar het groenbeheer op te pakken en meer groen te creëren in de wijk. We geloven in de kracht van de Beverwijkers die hun huis en tuin willen verduurzamen en/of vergroenen.

De kwaliteit van wonen, de gezonde leefomgeving en een klimaatadaptieve leefomgeving zijn prioriteit in dit deelgebied. De eerste prioriteit is daarmee zorgen voor een aangenaam woonmilieu voor voldoende mensen binnen een prettige diverse bewonerssamenstelling. De openbare ruimte kan bijdragen aan de klimaatadaptatie door minder verharding, waterberging en robuust groen aan de ene kant, en een aangename verblijfskwaliteit voor ontmoeting en spelen aan de andere kant. Bij de mobiliteit ligt het accent op het versterken van de langzaamverkeersverbindingen met zowel het centrum als de recreatieve buitengebieden. Het versterken van het groene karakter is daarbij van belang. Waar het mogelijk is, wordt een flinke impuls gegeven aan het verduurzamen van gebouwen en omgeving, bijvoorbeeld in Broekpolder (all-electric) en in de mogelijk toekomstige herstructureringsgebieden. In de overige bestaande voorraad zal deze transformatie meer organisch verlopen. In alle woonwijken is een ontspannen vrijetijdsbeleving belangrijk, evenals de aanwezigheid van alledaagse commerciële, dienstverlenende- en zorgvoorzieningen, maar primair op het niveau van de wijken danwel stadsdelen. Gemeentebrede of regionale voorzieningen zijn niet passend bij de schaal en leefomgeving van een woonwijk.
Woonwijken mogen geen druk gebied zijn, zoals het centrum. Om een rustig hoogkwalitatief woonmilieu te garanderen zou voor lucht, geluid, trillingen en geur een hoge milieukwaliteit het meest wenselijk zijn. Omdat Beverwijk in een inhaalslag zit, sluiten we voor de meeste aspecten aan bij het kwaliteitsniveau ‘standaard’. De woonwijken vormen een groot deelgebied. Voor sommige wijken geldt dat ze dichtbij snelwegen of bedrijventerreinen liggen, hier wordt het behalen van de lucht- en geluidsnorm een uitdaging. Bij nieuwe ontwikkeling wordt daarom goed gekeken naar de ligging en gezocht naar mogelijkheden om een zo hoog mogelijke omgevingskwaliteit te behalen. Nuancering is ook op andere aspecten denkbaar. Op plaatsen met een concentratie van kwetsbare inwoners, zoals nabij verzorgingstehuizen is de ambitie op het gebied van bijvoorbeeld externe veiligheid hoger. Hier wordt per ontwikkeling invulling aan gegeven. Hier wordt in het algemeen ingezet op de standaardkwaliteit van de bodem die hoort bij de functie wonen. Op gevoelige functies binnen woonwijken, zoals kinderspeelplaatsen, streeft de gemeente een hogere bodemkwaliteit na.

4.4 Wijk aan Zee
Wijk aan Zee heeft het meest te winnen bij een schonere lucht, maar binnen het deelgebied zelf is de ruimte om daaraan bij te dragen zeer beperkt. Aan de brede welvaart voor de gehele gemeente draagt het dorp het meest bij door haar unieke combinatie van ontspannen wonen, ruimte bieden aan natuur en recreatie vitaal te houden. Daartoe is een impuls in de woningvoorraad voor met name starters, senioren en middeninkomens zeer welkom, zodat het draagvlak voor voorzieningen op peil blijft. Ook het versterken van de toegang tot de duinen en het strand en het versterken van meerdaagse recreatieve verblijfsaccommodatie dragen aan een vitaal Wijk aan Zee, doordat zij de recreatieve waarde van het dorp vergroten.
4.4.1 Kernkwaliteiten en identiteit
Wijk aan Zee is een zelfstandig dorp binnen de gemeente Beverwijk en heeft op zichzelf al een grote verscheidenheid aan deelgebieden en buurten. Rondom het Julianaplein is er het historische en verkeersluwe centrumgebied. Daaromheen ligt een aantal woonbuurten met rijtjeswoningen en twee-onder-een-kap woningen. Centraal ligt de dorpsweide. Er is een overgangszone van dorp naar duinen met o.a. Heliomare en het Dorpshuis de Moriaan, maar ook recreatieve voorzieningen zoals kampeerterreinen. Tot slot begrenzen de duinen zelf het dorp. Het zicht op de kerktorens en de Dorpsweide zijn markante punten van Wijk aan Zee.
Kenmerkend voor Wijk aan Zee is haar aantrekkingskracht als kleinschalige badplaats met gezellig familiestrand en de vele culturele en sportieve activiteiten. Voor veel inwoners is Wijk aan Zee letterlijk de poort naar de zee. Daardoor is Wijk aan Zee populair als bestemming in de zomer, maar vanwege de jaarrondpaviljoens wordt Wijk aan Zee ook in de winter goed bezocht.
4.4.2 Gezond, krachtige en toekomstbestendig Wijk aan Zee
Ons doel is om een zogenaamd levensloopbestendig en vitaal dorp te realiseren. Dat vraagt om een passend woningaanbod voor ouderen, en juist ook om betaalbare woningen voor jongeren en jonge gezinnen. In Wijk aan Zee wordt daarom per situatie bekeken of bouwen past in de omgeving, zoals bijvoorbeeld de locatie “Kampeerterrein Aardenburg”. Uiteindelijk is het vooral van belang dat Wijk aan Zee zichzelf blijft en karakter behoudt. Wijk aan Zee wordt door de differentiatie van de woningvoorraad een veerkrachtig dorp voor iedereen. Ook streven we naar het behoud van de aanwezige voorzieningen.
Al lang wordt gesproken over verbetering, vernieuwing en samenwerking van de maatschappelijke voorzieningen in Wijk aan Zee, waarbij de functie wonen nadrukkelijk wordt gekoppeld aan de maatschappelijke functies. De mogelijkheid om gezamenlijk functies van verschillende organisaties met elkaar te combineren levert ruimtelijke kwaliteitswinst op. Daarnaast komt door transformatie en verplaatsing mogelijk ruimte vrij voor woningbouw. De komende tijd werken we verder aan een verkenning voor de mogelijkheden voor deze locaties.
Met name in Wijk aan Zee willen we de historische zichtlijnen, doorgangen, structuren en het kleinschalig bebouwingsbeeld behouden en versterken. Hierbij zijn de dorpsvisie en het bestemmingsplan kaderstellend. In het verlengde hiervan streven we ernaar om de groene kwaliteiten, landschappelijke karakteristieken in de binnenduinrand te behouden en zo veel mogelijk naar voren te laten komen. We geven gehoor aan het Kustpact waarin is afgesproken dat de binnenduinrand dient voor natuur, recreatie en water. Jaarrond zijn er mogelijkheden voor activiteiten op het strand.
Gezien de te grote toeristische druk op Amsterdam-stad is spreiding van toerisme over de regio noodzakelijk. Hierin liggen kansen voor Wijk aan Zee. We willen daarom de aantrekkingskracht van Wijk aan Zee als familiebadplaats verhogen en de relatie tussen meerdaagse verblijfsrecreatie en kortstondige dagrecreatie verbeteren. Een verbetering van de relatie tussen beiden is niet alleen wenselijk vanuit economisch perspectief maar ook van de ruimtelijke samenhang. Naast het strand is het noodzakelijk te zoeken naar nieuwe vormen van recreatie die mogelijk ook andere toeristen aantrekt.
4.4.3 Van en naar Wijk aan Zee
Er zal blijvend aandacht moeten worden besteed aan het bereikbaarheidsvraagstuk van Wijk aan Zee, zeker in het hoogseizoen. In het hoogseizoen, dat door een toename van activiteiten op het strand steeds langer duurt, neemt de verkeersdruk op het dorp toe en kan het centrum niet worden gemeden door strandverkeer. Dit verkeer dient zo goed mogelijk verwezen te worden naar de grote parkeerplaatsen en naar de Noordpier in Velsen-Noord. Gratis parkeren is het uitgangspunt, maar op piekdagen biedt de Dorpsweide tegen een lage prijs voldoende extra parkeercapaciteit. We onderzoeken of een parkeerverwijssysteem een interessante maatregel is.
Zowel voor de inwoners als de bezoekers van Wijk aan Zee is het van belang dat zij van een goede en frequente busverbinding gebruik kunnen maken, en dat zij via aangename fietsroutes van Wijk aan Zee naar Beverwijk en terug kunnen fietsen. Zo stimuleren we gezonde actieve mobiliteit en kan de autoverkeersdruk afnemen. Tegelijkertijd kunnen de minder mobiele bewoners zich ook snel en prettig verplaatsen met het openbaar vervoer.
We zetten in op de transitie richting duurzame mobiliteit. Denk hierbij aan het realiseren van openbare laadpalen en meer ruimte voor langzaam verkeer in het straatbeeld.
4.4.4 Een Wijk aan Zee voor alle Wijk aan Zeeërs en Beverwijkers
Wijk aan Zee kenmerkt zich door veel saamhorigheid en organisatievermogen. Dat neemt niet weg dat voorzieningen en ondersteuning in het dorp van belang zijn en blijven. Met name voor de groepen waarvan de actieradius beperkt is en de voorzieningen en activiteiten in Beverwijk al te ver weg zijn. Denk aan kinderen en jongeren, mensen met beperkingen en minder mobiele ouderen. Een voorzieningenniveau op het gebied van welzijn, zorg, sport, onderwijs en cultuur, toegesneden op de behoefte vanuit het dorp is van belang.
In samenspraak met verschillende zorg- en welzijnsorganisaties in het dorp werken we aan betere lokale samenwerking op het gebied van zorg en welzijn in Wijk aan Zee. Met Heliomare is een belangrijke regionale zorgpartner gevestigd in het dorp. Heliomare wil stappen zetten om meer voor het dorp te gaan betekenen. Daardoor wordt ook vormgegeven aan meer inclusie, doordat mensen met en zonder beperkingen elkaar kunnen ontmoeten.
We werken ook samen met organisaties aan het vitaal houden van de sportvoorzieningen en het aanbod aan sportactiviteiten in Wijk aan Zee. Op het strand worden het hele jaar door sportactiviteiten georganiseerd, die ook regionaal zeer aantrekkelijk zijn.
Ook in Wijk aan Zee blijven we werken aan zowel de objectieve als de subjectieve veiligheid. In het algemeen door toezicht en handhaving op overlastsituaties, afval en rommel. Daarnaast letten we extra op in het hoogseizoen zodat ook de bezoekers van buiten de gemeente netjes omgaan met Wijk aan Zee. Een goed ingerichte en onderhouden buitenruimte draagt bij aan veiligheid en sociaal gedrag.
Cultuur speelt een belangrijke rol in Wijk aan Zee. Veel bewoners maken regelmatig gebruik van culturele voorzieningen en activiteiten of zijn er onderdeel van. En er worden regelmatig activiteiten georganiseerd op diverse binnen- en buitenlocaties in het dorp. Deze hebben een uitstraling die verder reikt dan Wijk aan Zee.
4.4.5 Een upgrade van natuur, milieukwaliteit en schone energie
Dicht bij zee en omgeven door natuurgebieden heeft Wijk aan Zee veel ingrediënten van een gezonde leefomgeving. Tata Steel heeft echter een negatieve invloed op de gezondheid van de bewoners. Zoals al eerder gemeld zetten we als gemeente alles op alles om Tata Steel zo snel mogelijk te laten vergroenen, zodat de bewoners van Wijk aan Zee snel minder overlast zullen ervaren.
Voor de openbare ruimte van Wijk aan Zee gelden vergelijkbare opgaven als in de rest van de gemeente. Het Julianaplein is een belangrijke openbare ruimte in Wijk aan Zee. Door vergroening toe te voegen maken we het plein mooier en aantrekkelijker voor bewoners en bezoekers van buitenaf.
Hoewel Wijk aan Zee midden in de duinen ligt, kan de toegang tot de dorpsduinen worden verbeterd en er kunnen betere verbindingen voor wandelaars worden aangelegd. Dit leidt ook tot betere spreiding van recreanten in het duingebied en daardoor tot minder druk op dit kwetsbare Natura 2000 en NNN-gebied.
Wat betreft duurzaamheid, klimaatadaptatie en circulaire economie gelden voor Wijk aan Zee vergelijkbare opgaven en oplossingen als in de andere woonwijken van Beverwijk. De grote verschillen in de woningvoorraad maken maatwerk belangrijk. Ook in Wijk aan Zee stimuleren we isolatie en energiebesparing en willen we waar mogelijk snel aardgasvrij zijn. Voor de bescherming van onze kust en onze waterkeringen, en daarmee ook voor het achterland en onze bewoners, werken we goed samen met het Rijk en het waterschap, zodat onze duinen onze inwoners blijven beschermen.

Prioriteit in de afwegingen voor Wijk aan Zee zijn het versterken van de woningvoorraad (differentiatie), het beheer en behoud van de landschappelijke kwaliteiten en de toegang daartoe en de gezonde, veilige leefomgeving. Wat daarnaast belangrijk is, zijn de voorzieningen voor cultuur, toerisme en vrije tijd evenals het bijdragen aan een meer duurzame leefomgeving. Voor commerciële, dienstverlenende en zorgvoorzieningen die passen bij het dorpse karakter en de recreatieve functie is ruimte. Voor voorzieningen die niet direct een relatie hebben met het karakter van Wijk aan Zee is deze ruimte er niet. De huidige bereikbaarheid van Wijk aan Zee is voldoende en dient behouden te blijven.
Wijk aan Zee vormt een gemengd gebied met veel verschillende gebruikers en functies en is gelegen nabij de industrie van Tata-steel. Voor alle functies hanteren we een standaard milieukwaliteit. Bij nieuwe ontwikkelingen wordt uiteraard goed gekeken naar de ligging en gezocht naar mogelijkheden om een zo hoog mogelijke omgevingskwaliteit te behalen.

4.5 Groen en natuur
De Groen en Natuurgebieden in Beverwijk zijn niet altijd even beleefbaar of bereikbaar, maar van potentieel groot belang voor de gezondheid van onze inwoners. De bereikbaarheid met langzaam vervoer, de verblijfskwaliteit en de landschappelijke en culturele waarden, hebben een impuls nodig. Groene verbindingen worden versterkt en aanwezige voorzieningen worden verbeterd of ontwikkeld, zoals bijvoorbeeld de beleving van de Atlantikwall, de Linie van Beverwijk met de Lunetten, de Nieuwe Hollandse Waterlinie met de forten van de Stelling van Amsterdam. Voor de natuur en de wateropgave zijn deze gebieden onvervangbaar. Behouden en versterken van deze waarden is daartoe essentieel.
4.5.1 Kernkwaliteiten en identiteit
Stedelijk groen
Beverwijk heeft relatief veel openbaar groen. De verdeling van dit groen over de stad is echter ongelijkmatig. Het stedelijk groen van Beverwijk is zeer divers in gebruik, uitstraling en ontwerp. In de oude stadskern is duidelijk sprake van verdichting. Dit deel kent al jaren gebrek aan openbare ruimte en groen. De straten zijn te smal voor al het verkeer dat er door moet en hebben gebrek aan parkeer- en leefruimte, groen- en speelvoorzieningen. Rondom het centrum bevinden zich groenere wijken en verder naar buiten een zeer groot oppervlakte aan brede groenzones en parken die ruimte bieden voor sport, spel en recreëren. Vanwege de openbare toegankelijkheid en de vele gebruiksfuncties compenseren deze grootschalige groenvoorzieningen voor een deel het gebrek aan groen in het centrum. Deze grote groenoppervlakten fungeren deels als buffer tussen woongebieden en andere functies als bedrijfsterreinen en infrastructuur.
Natuurgebieden
Het gebied rondom Wijk aan Zee is voor een groot deel aangewezen als Natura 2000 gebied en Natuur Netwerk Nederland (NNN). Natura 2000-gebieden zijn Europees beschermde gebieden. Het beleid van NNN-gebieden is de verantwoordelijkheid van de provincie, maar soms ligt het beheer bij de gemeente, zoals bij de Dorpsduinen en de Driehoek van Beverwijk aan de Meeuwenweg. Als gemeente zetten wij ons in voor toegankelijke duinen, waaronder het “rondje Wijk aan Zee” en willen we recreatie beter spreiden. Bijvoorbeeld door ook de oostrand van de stad aantrekkelijker te maken voor recreatie.
Historisch Tuinbouwgebied
Ten westen van de stad liggen de laatste tuinderijen van het verder inmiddels verdwenen tuinbouwgebied. Hier vinden we nog de kenmerkende halfhoge beukenhagen en restanten van De Linie van Beverwijk (De Lunetten). Met bestaand versnipperd bezit en verschillende belangen kan de kwaliteit van het historisch tuinbouwgebied worden aangetast.
Polder
Ten oosten van Beverwijk bevindt zich een open polder landschap, de Wijkermeerpolder, waar oorspronkelijk het Oer-IJ stroomde. Hier bevinden zich ook elementen die behoren tot de Stelling van Amsterdam. Dit gebied is dan ook aangemerkt als Bijzonder Provinciaal Landschap (BPL).
Strand
Het strand van Wijk aan Zee is de grootste trekker van toeristen en recreanten in de gemeente. Natuurlijk komen er in de zomer veel bezoekers om te zwemmen en te zonnen, maar het strand is het gehele jaar door populair bij wandelaars en sporters. Het strand heeft niet alleen een recreatieve en toeristische functie, maar zeker ook een belangrijke economische en maatschappelijk functie, door de aanwezige horeca, maar ook door bijvoorbeeld de reddingsbrigade en de strandhuisjes.
Water
Onze gemeentelijke bedrijventerreinen zijn verbonden met de Noordzee via het Noordzeekanaal en Zijkanaal A. Verder maken verschillende cultuurhistorisch belangrijke watergangen deel uit van de Stelling van Amsterdam.
4.5.2 Gezonde, krachtige en toekomstbestendige groen- en natuurgebieden
Stedelijk groen
We richten ons op het nog diverser maken van het groen in Beverwijk. Daarbij kijken we niet alleen naar onze eigen gemeente, maar zoeken we nadrukkelijk naar verbindingen met onze buurgemeenten. Het verbeteren van het huidige groen in combinatie met het toevoegen van nieuw groen brengt vele voordelen met zich mee. Groen draagt bij aan een klimaatadapatieve inrichting door verkoeling, schaduwwerking en het vertraagd afvoeren van regenwater in de bodem. Daarnaast draagt extra groen, vooral in de vorm van nieuwe bomen, ook bij aan de opslag van CO 2 .
Bij ontwikkelingen staat de verbetering van de landschappelijke en ecologische kwaliteit voorop. Diversiteit gaat over variatie in het groen, maar ook over de biodiversiteit. We zorgen voor vele verschillende soorten groen met verschillende kleuren en texturen. We richten ons op het toevoegen van (inheemse) struiken en bomen in verschillende soorten en maten. Deze verschillende soorten zorgen meteen ook voor meer biodiversiteit, bijvoorbeeld voor vlinders en bijen. We passen maatwerk toe wanneer het gaat om stedelijk groen. In verdichte gebieden kunnen we immers geen grote parken aanleggen, maar wel strategisch bomen of kleine grasperken toevoegen, en bestaand groen kwalitatief verbeteren. Bij grotere transformaties zetten we ook grootschaliger in op verbeteringen in het stedelijk groen. Ook kijken we naar het omvormen van bestaand groen tot bijvoorbeeld het Spoorpark.
Daarnaast willen we dat inwoners meer gebruik gaan maken van het groen, door het verbinden van groene routes en gebieden en het zorgen voor meer gezelligheid in parken. De groengebieden dienen een logische invulling te hebben, die past bij de opgaven. Zo hebben bepaalde gebieden in de gemeente behoefte aan minder versteend oppervlak en een robuuste, groene buitenruimte met koele, schaduwrijke plekken en ruimte voor regenopvang. In verschillende wijken kan het groen dus verschillen in identiteit. Verschillende vormen van gebruik zijn mogelijk. Gewenst gebruik in de openbare ruimte wordt gestimuleerd met passende voorzieningen, zoals speel- of sportvoorzieningen, beweegroutes of losloopgebieden.
Natuurgebieden
Activiteiten in of dichtbij een Natura 2000-gebied, NNN-gebied (de duinen) of gebieden die behoren tot het BPL (de Wijkermeerpolder), die schadelijk kunnen zijn voor de natuur- en cultuurwaarden van zo’n gebied, mogen niet zonder meer plaatsvinden. De provincie is bevoegd gezag voor het afgeven van vergunningen voor plannen of projecten met effecten op deze gebieden. Ook in de andere groene gebieden in onze gemeente zijn we zeer terughoudend wat nieuwe ontwikkelingen betreft. We staan alleen ontwikkelingen toe die van dwingend openbaar belang zijn, die nergens anders kunnen, en die negatieve effecten minimaliseren en compenseren. Dit geldt ook voor het opwekken van duurzame energie, waarvan het opwekken in geen geval ten koste mag gaan van andere kwaliteiten en waarden van het onbebouwde gebied.
Polder
De Wijkermeerpolder willen we beschikbaar houden als groenblauwe landschappelijke buffer langs de groene oostrand van de stad en als onderdeel van het metropolitane landschap. De ontwikkeling en het behoud van de Wijkermeerpolder is gericht op:
-
a.
Behoud en versterking van de cultuurhistorische en landschappelijke kwaliteiten van het OER IJ en de Waterlinie. (zo mogelijk middels een ontwikkelperspectief in samenwerking met de regio en de MRA);
-
b.
Behoud en versterking van natuurwaarden en biodiversiteit;
-
c.
Behoud en versterking van eigen recreatieve waarden en verbinding met omringende recreatieve landschappen en voorzieningen;
-
d.
Het open en beleefbaar houden van het landschap ten behoeve van de leefbaarheid van bestaande en nieuwe woon- en leefomgevingen buiten de polder;
-
e.
In de toekomst ook voor piekwaterberging, -buffering, en als overloopgebied voor overtollig regenwater na heftige regenval als gevolg van klimaatverandering.
Strand
Het strand heeft ook in de toekomst een belangrijke recreatieve functie, waar sport, spel, ontmoeten, horeca en natuurbeleving samen komen. We voorzien geen grote uitbreidingen aan faciliteiten op het strand, maar de toegang en overgang tussen strand en Wijk aan Zee kan wel kwalitatief beter.
Water
Voor de bescherming van onze kust en onze waterkeringen, en daarmee ook voor het achterland en onze bewoners, werken we goed samen met het Rijk en het waterschap, zodat onze duinen en dijken onze inwoners blijven beschermen. We zetten waar mogelijk in op meer natuurvriendelijke oevers om de biodiversiteit en de waterkwaliteit te verbeteren
4.5.3 Van en naar de groen- en natuurgebieden
Om de recreatiewaarde van het groen écht te verbeteren voor de Beverwijker, is het van groot belang dat er betere en aantrekkelijkere verbindingen komen die uitnodigen tot (actieve) recreatie in de groengebieden. Alle Beverwijkers moeten gemakkelijk en aangenaam in een groene omgeving terecht kunnen komen.
We richten ons daarom op het creëren van groene routes voor langzaam verkeer in Beverwijk, zodat het groen zorgt voor verbinding in de gemeente. In het groen liggen wegen en paden die wijken met elkaar verbinden. Hierdoor maken inwoners makkelijker gebruik van het groen, en worden de parken van Beverwijk voller en gezelliger. Per gebied zullen we de specifieke groenopgave uitwerken en werken aan het groen dat past binnen de buurt en de behoeften van bewoners. De groengebieden in Beverwijk krijgen dus stuk voor stuk een logische invulling die past bij de opgaven. Omdat groene gebieden bij uitstek geschikt zijn voor ontspanning, zullen de meeste verbindingen voor langzaam verkeer zijn.
Concreet betekent dit bijvoorbeeld dat we werk maken van een visueel aantrekkelijkere route over de Sint Aagtendijk, richting het Aagtenpark en de Stelling van Amsterdam (Fort aan de Aagtendijk). Deze verbinding kan ook verbonden worden met het transformatiegebied bij de Bazaar. Vergelijkbare verbindingen naar buiten de gemeente zijn nodig in het (binnen)duingebied, rondom de Velsertraverse en door bedrijventerrein de Pijp richting de Stelling van Amsterdam. Zo verbinden we de groene gebieden (binnenduinrand en landgoederen) ten zuiden van het centrum van Beverwijk, door een groene inrichting van de landgoederenzone in Spoorzone en aanleg van het Spoorpark met het grootschalig groen in Velsen Noord. (Wijkeroogpark)
4.5.4 Groen- en natuurgebieden van en voor alle Beverwijkers
Bewoners worden uitgenodigd om in hun buurt samen het groen te onderhouden, zodat het groen van Beverwijk ook Beverwijkers dichter bij elkaar brengt, en mensen die geen eigen tuin hebben, toch ook fijn en actief buiten te kunnen zijn. Veel bewoners zijn ook enthousiast over het telen van eigen groente en fruit. Ook dit soort initiatieven willen we als gemeente stimuleren. Groen en gezondheid gaan hand in hand. Groen nodigt uit tot bewegen, en een mooi groen gebied laat mensen ook genieten van rust. Bovendien gaat een groenere omgeving ook hittestress tegen, waarvan alle Beverwijkers profiteren.
De komende jaren zetten we extra in op het onderhoud van het groen en maken we het beheer van ons groen duurzamer. Daarnaast gaan we meer handhaven op overlast en rommel in de openbare ruimte.
Door het groen strategisch aan te leggen en te verbeteren, kunnen we accenten leggen op het bestaande Beverwijkse erfgoed, zodat ons erfgoed beter zichtbaar is. Daarnaast willen we ervoor zorgen dat er bij nieuwe ontwikkelingen altijd rekening moet worden gehouden met de historie van het landschap. Beverwijkers identificeren zich dan zowel met het groen als met hun eigen buurt, wijk en gemeente.
4.5.5 Een upgrade van natuur, milieukwaliteit en schone energie
Het groen kan al snel een bijdrage leveren aan het verbeteren van de natuur- en milieukwaliteit. Daarbij zetten we in op quick-wins, maar richten we ons bij grote opgaven zoals de spoorzone ook direct op het investeren in groen. Ook bij de herontwikkeling van vastgoed en bij investeringen in de infrastructuur letten we op vergroening, zodat niet alleen de groenstructuren van Beverwijk verbeteren, maar ook de kwaliteit van het milieu.
We werken ook aan het verbeteren van de biodiversiteit van Beverwijk en planten voornamelijk robuuste inheemse soorten die bijdragen aan de biodiversiteit als aan het klimaatbestendiger maken van onze gemeente.
Groen is nodig om de gevolgen van de klimaatverandering te verzachten en Beverwijk leefbaar te houden. Om wateroverlast te voorkomen is het nodig om water meer te infiltreren en langer vast te houden. Waar mogelijk wordt het waterbergend vermogen dan ook vergroot. Hemelwater moet zoveel mogelijk infiltreren in bermen en plantsoenen. We minimaliseren verharding en proberen daarbij vooral grote aaneengesloten oppervlaktes verharding te vermijden in verband met hitteontwikkeling. We zorgen dus voor een robuuste groene buitenruimte met koele schaduwrijke plekken en ruimte voor regenwateropvang. De stad blijft leefbaar voor de bewoners tijdens extreme weersomstandigheden en wordt het gehele jaar rond aangenamer.

Het vinden van een balans tussen de kwaliteiten voor natuur, groen en water én de waarde die deze gebieden hebben als uitloop gebied om een gezonde leefomgeving te bieden, is hier de uitdaging. Cultuur, toerisme en vrije tijd zijn daarbij van belang, net als de uitdaging om met behoud van natuurlijke- en landschappelijke waarden, bij te dragen aan het vergroten van duurzaamheid en circulariteit. De bereikbaarheid van de gebieden met langzaam vervoer is van groot belang. Voor gemotoriseerd verkeer geldt dit in mindere mate. Uitbreiding van gebouwde voorzieningen, zoals het woning- en bedrijfsareaal is in deze gebieden niet van waarde.
We koesteren onze groen- en natuurgebieden. De opgave voor de gemeente ligt echter in het realiseren van een acceptabele kwaliteit voor milieuwaarden. Daarom geldt ook in dit gebied dat we de voor geheel Beverwijk geldende standaardwaarden nastreven op de milieuthema’s.

4.6 Bedrijvigheid
Deelgebied Bedrijvigheid: veel industriële bedrijvigheid is aan Beverwijk verbonden door de ligging van de haven. Beverwijk is trots op de creatieve maakindustrie en de vele ondernemers die de gemeente haar eigen profiel geven. De keerzijde van de industrie is de negatieve invloed op de luchtkwaliteit. Voor de brede welvaart van Beverwijk is het daarom noodzakelijk dat de weg wordt ingeslagen naar een innovatievere creatieve maakindustrie die minder uitstoot en meer bijdraagt aan de kwaliteiten van de omgeving. Op verschillende bedrijventerreinen kan, naast het verminderen van de emissie, de omgevingskwaliteit ook verbeteren door waar mogelijk: de oppervlakte verharding te verminderen en plaatselijk meer groen en fietsvriendelijke routes naar de buitengebieden in te passen.
4.6.1 Kernkwaliteiten en identiteit
De bedrijventerreinen van Beverwijk zijn één van de best bereikbare en meest duurzame werk-woongebieden in de IJmond; dynamisch, goed georganiseerd en economisch gezond. We hebben een zelfstandige zeehaven, hoogwaardige maakindustrie, havengerelateerde ondernemingen, ‘slimme’ start-ups en grown-ups, een innovatief distributiecluster en de grootschalige detailhandel aan de Parallelweg.
Onze bedrijventerreinen huisvesten honderden bedrijven die werkgelegenheid bieden aan 18.500 mensen. Veel werknemers forensen dagelijks vanuit andere gemeenten naar Beverwijk. De bedrijven in Beverwijk hebben dus een belangrijke regionale functie. Gezamenlijk maken zij deel uit van de Beverwijk Business Docks.
Een groot deel van de bedrijventerreinen valt onder de Spoorzone Oost, namelijk de Bazaar en Wijkermeerweg, de Kop van de Haven, de Parallelweg en het bestaande bedrijventerrein Beverwijk Business Docks Wijckermeer. De oostzijde van de Spoorzone is deels verouderd en kent vooral op de meubelboulevard veel leegstand. Het is momenteel geen aantrekkelijk verblijfsgebied en het is niet goed verbonden met de Stadskant. Met de ontwikkeling van de Spoorzone kan Beverwijk als aantrekkelijke woon- en werkgemeente beter op de kaart worden gezet en kunnen de huidige aanwezige bedrijven profiteren van een sterke verbetering van de ruimtelijke kwaliteit.
4.6.2 Gezonde, krachtige en toekomstbestendige bedrijventerreinen
Naast (en binnen) de ontwikkeling van de Spoorzone willen we de bedrijventerreinen economisch nog vitaler maken door in te zetten op hoogwaardige maak- en onderhoudsindustrie, havengerelateerde ondernemingen, ‘slimme’ start-ups en grow-ups, een innovatief distributiecluster, grootschalige detailhandel op de Parallelweg en een toekomstbestendige Beverwijkse Bazaar.
Wij blijven ons inzetten om de kernwaarde van Beverwijk “Mozaiek van bedrijvigheid” verder te versterken door een grote diversiteit aan bedrijven te blijven stimuleren en de verschillende bedrijven in Beverwijk beter met elkaar en met de inwoners te verbinden. Door in te zetten op hoogwaardige maak- en onderhoudsindustrie wordt verder gebouwd op de huidige economische structuur, maar wordt het wel mogelijk om te innoveren en door te groeien naar een nieuwe en schonere economie. Dat vergt meestal maatwerkoplossingen per bedrijf en dat is een tijdsintensief proces, waarvoor voldoende capaciteit beschikbaar dient te zijn. Uiteindelijk is het onze ambitie om in 2040 over 5.000 extra arbeidsplaatsen te beschikken.
Het industriegebied biedt fysieke en milieukundige ruimte om een ‘ecosysteem’ rond de energietransitie te bouwen. Bedrijven in de hoge milieu categorieën moeten dus voldoende vestigings- en uitbreidingsmogelijkheden houden, vooral op delen van het industriegebied die de minste overlast voor inwoners geven. Verder zijn er veel ontwikkelingen in en rondom het industriegebied. De gemeente zal proactief het gesprek aangaan om de vestigings- en uitbreidingsmogelijkheden van alle huidige en toekomstige ondernemers te borgen. Stichting Business Docks kan hierin een belangrijke schakel vormen tussen de gemeente en de ondernemers.
Beverwijk zet in op een betere aansluiting van diverse onderwijsvormen op de werkgelegenheid, zoals kennismakingsprogramma’s voor de maakindustrie en diverse opleidingen, diverse stage- en leerwerkplekken en programma’s voor bij-, her- en omscholing van personeel.
De haven van Beverwijk blijft van groot belang voor de gemeente, de provincie en zelfs voor het rijk. We blijven zoeken naar samenwerkingen om de haven te verbeteren en economisch vitaler te maken. Hierbij wordt nadrukkelijk gekeken voor uitbreiding van bestaande of vestiging van nieuwe haven gebonden ondernemingen.
De uitwerking van de stationslocatie aan de Parallelweg West is een cruciale schakel in het succesvol verbinden van de Centrum- en Oostzijde. Ook maken we op die manier het Spoorpark tussen het spoor en de A22 bereikbaar. Een mogelijke oplossing is het realiseren van een tijdelijke loopbrug totdat de onderdoorgang is gerealiseerd.
We proberen de verbinding en bereikbaarheid tussen het centrumgebied van Beverwijk met het bedrijfsterrein te verbeteren en aantrekkelijker te maken. Hierbij willen we de barrièrewerking van de bestaande infrastructuur verminderen.
4.6.3 Van en naar de bedrijventerreinen
De bedrijventerreinen kennen een hoge verkeersintensiteit en het grootste aandeel bestaat uit doorgaand verkeer. Voor het behouden van een goede bereikbaarheid van de bedrijventerreinen en de transformatie van het nabijgelegen Bazaarterrein is het van groot belang dat deze verkeersstromen goed gereguleerd worden. De bereikbaarheid van bedrijventerreinen is essentieel voor het behouden van de logistieke kwaliteiten en het aantrekkelijke vestigingsklimaat voor nieuwe bedrijven. Zonder maatregelen loopt in de komende 20 jaar het mobiliteitssysteem rondom de A22 vast als gevolg van regionale autoverkeerstoename. Lokale maatregelen hebben enig effect, maar dit effect valt in het niet bij de autonome groei van het aantal motorvoertuigen. Ook bovengemeentelijke maatregelen zijn nodig om deze autonome groei het hoofd te kunnen bieden.
We verbeteren de infrastructuur en de verkeersstromen van en naar de bedrijventerreinen. Cruciaal daarbij is opnieuw de verbinding tussen de twee centrumgebieden aan weerszijden van de A22 en een nieuwe afrit ter hoogte van de bazaar en de Broekpolder. Zo vermindert het doorgaand verkeer in het gebied en worden de bedrijventerreinen beter toegankelijk voor bestemmingsverkeer en logistiek. Daarnaast versterken we de OV-ontsluiting via spoor en HOV met een ingang aan de oostzijde van het station. Zo is de Kop van de Haven zeer snel bereikbaar met het openbaar vervoer. Binnen de bedrijventerreinen maken we langzaam verkeer ook aantrekkelijker. Om de bedrijventerreinen beter te verbinden met het centrumstedelijk gebied in het westen en de Wijckermeerpolder in het oosten zetten we in op een recreatieve en groenere fietsroute door de bedrijventerreinen. Zo stimuleren we ook werknemers om met de fiets naar het werk te gaan. We willen daarnaast werk maken van het verbeteren van de entrees naar de bedrijventerreinen.
Naast bereikbaarheid over land, is bereikbaarheid via water van cruciaal belang voor de havengerelateerde bedrijven. We blijven ons dan ook inzetten voor een goede bereikbaarheid via het water.
4.6.4 Bedrijventerreinen van en voor alle Beverwijkers
We willen de organisatiegraad van de ondernemers vergroten door intensievere samenwerking met meerdere organisaties en door uitbreiding van taken en verantwoordelijkheden van bijvoorbeeld Stichting Beverwijk Business Docks. In de gebieden waar nog niet direct woningbouw mogelijk is, willen we toch al werken aan de aantrekkelijkheid van onze bedrijventerreinen, door broedplaatsen te faciliteren en te stimuleren. Met name rondom Kop van de Haven biedt dit perspectief. Een spelregelkaart, die nog moet worden opgesteld, moet ondernemers meer handvatten en ruimte gaan bieden voor een passende ontwikkeling.
Een aantal gebieden kan pas op de middellange termijn tot ontwikkeling komen, terwijl hier wel actuele opgaven zijn (leegstand en verloedering), zoals rond de Kop van de Haven en de Parallelweg West en Midden. In deze gebieden wordt gestart met tijdelijke invullingen en placemaking zodat wel de kwaliteit van de omgeving verbeterd wordt en de weg kan worden vrij gemaakt voor toekomstige ontwikkelingen. Daarnaast behoeden tijdelijke invullingen ook voor een verdere verslechtering van de leefomgeving.
4.6.5 Een upgrade van natuur, milieukwaliteit en schone energie
We willen toewerken naar een schoon en innovatief bedrijfsleven in 2050. Het grootste deel van het gebied is en blijft echter bedrijventerrein met ruimte voor zware industrie. Wel zien we graag dat die bedrijven minder negatieve uitstraling hebben op de omgeving. Verduurzaming is een noodzakelijke voorwaarde om bestaande werkgelegenheid te behouden en te laten groeien: alleen bedrijven die verduurzamen zijn toekomstbestendig. Om bedrijven te helpen zullen we hen daar waar mogelijk betrekken bij de concrete maatregelen uit het duurzaamheidsprogramma en hen stimuleren te verduurzamen waar we kunnen. We geloven namelijk in de kracht van de Beverwijkers die hun bedrijven willen verduurzamen.
Naast het behoud, de verduurzaming en de transformatie van bestaande bedrijven en werkgelegenheid ziet Beverwijk kansen om via de energietransitie - denk aan de offshore wind - de lokale en regionale economie te stimuleren. Beverwijk en de IJmond liggen geografisch gunstig om een belangrijke rol te spelen in de duurzaamheidsopgaven. Bestaande bedrijven kunnen zich doorontwikkelen, nieuwe bedrijven kunnen zich komen vestigen, beide resulterend in een groei van de lokale werkgelegenheid. Ook in de circulaire economie ziet Beverwijk kansen. Het ‘duurzaamheidsmes’ snijdt uiteindelijk aan meerdere kanten: behoud van bestaande werkgelegenheid, het creëren van nieuwe duurzame banen en het beperken en voorkomen van lange(re) reisafstanden.
In verband met de impact op luchtkwaliteit en het woonklimaat van Beverwijk moet nadrukkelijk aandacht zijn voor de ruimtelijke- en milieukundige consequenties van de vestiging van zware bedrijvigheid (in de hoge milieucategorie). We bevorderen ruimtelijke maatregelen bij Tata Steel die direct of indirect bijdragen aan het verbeteren van de luchtkwaliteit en gezondheid en blijven in gesprek met het bedrijf om de luchtvervuiling te verminderen. Waar mogelijk waarderen we de milieucategorie op andere bedrijfs- en industrieterreinen af of zorgen we voor een betere inpassing van hogere milieucategorieën in hun omgeving. Dit gaat altijd in overleg met de betreffende bedrijven.
We onderzoeken, in samenwerking met de regio, hoe de logistieke processen efficiënter en schoner kunnen worden. Door bedrijven te laten samenwerken kunnen het aantal transportbewegingen, de vrachten en de vervoerswijze efficiënter op elkaar worden afgestemd.
Klimaatadaptatie, energietransitie en circulariteit krijgen een prominente plek in de plannen voor de bedrijventerreinen. We zoeken naar oplossingen om de bedrijventerreinen slim te verdichten in combinatie met klimaatadaptatie. Waar mogelijk wordt verharding tegengegaan, maar we zien ook graag dat bedrijven vergroenen door groene gevels of groene daken. Op momenten dat er zich mogelijkheden voordoen maken we deze ambitie gebiedsgewijs of kavelgewijs concreet. We zetten in op opwekking van duurzame energie waar dat kan op bedrijventerreinen. Hoewel het niet verplicht is om hittestress tegen te gaan in gebieden die geen woongebied zijn, willen we inrichtingen van de openbare ruimte die voldoen aan de normen voor hittestress toch stimuleren en zoveel mogelijk klimaatadaptief inrichten om wateroverlast te beperken.

In dit deelgebied dient de balans versterkt te worden tussen de verschillende omgevingswaarden. Niet enkel ruimte voor bedrijvigheid is van belang: de gezonde leefomgeving, de duurzaamheidsopgave en klimaatadaptatie zijn dat evenzeer. Ruimte voor cultuur, toerisme en vrije tijd zijn van minder belang voor dit deelgebied. Bedrijvigheid wordt uitgedaagd om meer bij te dragen aan het versterken van de brede welvaart voor Beverwijk.
We willen bedrijven op de bedrijventerreinen voldoende beweegruimte geven om hun activiteiten te kunnen uit voeren. We kiezen echter niet voor de laagste milieukwaliteiten. Mede omdat de bedrijven relatief dichtbij de woonomgeving gevestigd zijn, zetten we voor luchtvervuiling in op standaard kwaliteit omdat de luchtkwaliteit in Beverwijk te sterk onder druk staat.

5 Uitvoering
5.1 Inleiding
In dit hoofdstuk beschrijven we hoe we de visie willen operationaliseren, zodat we stapsgewijs een steeds gezondere leefomgeving realiseren. Als gemeente Beverwijk staan we hiervoor niet alleen zelf ‘aan de lat’. We doen het samen met onze inwoners, ondernemers, maatschappelijke organisaties en partners! Om deze reden beschrijven we soms ook wat er moet gebeuren om een project of ontwikkeling van de grond te krijgen. Dit als advies bij gesprekken over initiatieven.
In dit hoofdstuk beschrijven we verdere doorwerking van de omgevingsvisie in de andere Omgevingswet-instrumenten. We geven aan hoe we de uitvoering van onze gestelde ambities in de visie gaan monitoren en hoe we omgaan met het actualiseren van de visie.
5.2 Sturingsfilosofie
Het uitgangspunt van de Omgevingswet is om ontwikkelingen mogelijk te maken en tegelijkertijd de kwaliteit van de leefomgeving te waarborgen. Met de omgevingsvisie laten we op hoofdlijnen zien hoe we initiatieven willen ondersteunen die een bijdrage leveren aan de kwaliteit van de leefomgeving. Met deze visie als onderlegger gaan we daar de komende tijd mee aan de slag. De concrete uitwerking van de omgevingsvisie hangt ook af van de rol die de gemeente aanneemt. We hebben als overheid diverse mogelijke rollen en sturingsfilosofieën.
We hebben in Beverwijk hoge ambities om de democratie van onderaf beter te faciliteren. We willen meer gebiedsgericht en van buiten naar binnen te werken. Dit past goed bij de geest van de Omgevingswet.
Voor verschillende opgaven hebben we verschillende sturingsfilosofieën nodig om het gewenste resultaat te kunnen behalen. Per onderdeel kan er dus een eigen sturingsfilosofie zijn. We werken dit verder uit in de programma’s en bij concrete projecten. De sturingsfilosofie gaat zowel over de rol van de gemeente ten opzichte van de samenleving als over de rol van de raad ten opzichte van het college. In Beverwijk vinden we het belangrijk dat de raad nauw betrokken blijft bij de uitvoering van de visie.

5.3 Operationalisering in Omgevingswetinstrumenten
Relatie met Ow-instrumenten
De Omgevingswet voorziet in een zestal Omgevingswet-instrumenten. De omgevingsvisie, het omgevingsplan en de omgevingsprogramma’s zijn hiervan de belangrijkste beleidsmatige instrumenten. De omgevingsvisie heeft een duidelijke relatie met de overige Omgevingswet-instrumenten. De Omgevingswet gaat namelijk uit van beleidsontwikkeling op basis van de beleidscyclus. De verschillende instrumenten ontwikkelen we in samenhang die we vervolgens actief monitoren en aanscherpen. De omgevingsvisie vormt de eerste stap in deze cyclus. Het is een dynamisch document dat we als gemeente samen met betrokkenen blijven aanscherpen.

Omgevingsplan
De Omgevingswet bepaalt dat een gemeente maar één omgevingsplan kent. Dit betekent dat het systeem zoals we dat nu kennen met verschillende bestemmingsplannen voor het stedelijk- en het buitengebied, niet meer aan de orde zal zijn. Ook alle onderdelen uit de verordeningen die betrekking hebben op de fysieke leefomgeving, worden onderdeel van het omgevingsplan.
Het omgevingsplan is het enige kerninstrument uit de Omgevingswet dat de burger, bedrijven, andere overheden en de gemeente bindt. De omgevingsvisie is zelfbindend: ze bindt alleen het bestuursorgaan (bevoegd gezag) dat het document heeft vastgesteld.
De omgevingsvisie is zo opgesteld dat de stap naar het omgevingsplan beleidsmatig relatief eenvoudig is te maken. Zo zijn alle beleidsprioriteiten zowel van Beverwijk als geheel als per deelgebied opgenomen. Deze kunnen we in het omgevingsplan verder uitwerken.
Het doel is dat in het omgevingsplan een deel van de verzoeken snel en relatief eenvoudig kan worden behandeld. Als een initiatief niet blijkt te passen in het omgevingsplan is er een nadere afweging nodig. We kunnen dan terugvallen op de omgevingsvisie.
Omgevingsprogramma
De omgevingsvisie geeft de ambities voor de toekomst en formuleert hiervoor het strategisch beleid aan de hand van kaders en richtlijnen. Verdere uitwerking van het strategisch beleid kan op tactisch/operationeel niveau plaatsvinden via het (vrijwillige/onverplichte) programma-instrument. De integrale afweging vindt op hoofdlijnen plaats in de omgevingsvisie. De programma’s borduren daarop voort en zetten de lijnen voor de uitvoering uit.
Het omgevingsprogramma is een flexibel instrument dat de gemeente kan toepassen in verschillende fasen van de beleidscyclus. Een programma heeft verschillende kenmerken en is zelfbindend. Het college stelt het programma vast. Deze kunnen gebiedsgericht of thematisch van aard zijn. Momenteel werkt de gemeente onder andere aan de programma’s Spoorzone, Duurzaamheid en Mobiliteit. In de nabije toekomst is een programma voor toekomstige stedelijke vernieuwings- en verbeteringsgebieden van oude wijken ook een waardevolle aanvulling.
Omgevingswaarden
De Omgevingswet biedt de mogelijkheid om in het omgevingsplan omgevingswaarden vast te leggen. Bijvoorbeeld over de uitstoot van schadelijke stoffen, de productie van geluid of andere vormen van hinder of mogelijke overlast. Hiervoor is het opstellen van een programma echter verplicht.
De gemeente Beverwijk stelt in de toekomst omgevingswaarden vast als blijkt dat bepaalde doelen of ambities op milieugebied onvoldoende behaald worden. Dit legt zij op dat moment vast in het omgevingsplan en koppelt de waarden aan een programma. Aanvullend komt dit aspect ook aan bod bij de monitoring en evaluatie van deze eerste omgevingsvisie.
Uitvoeringsprogramma
Initiatieven kunnen door eenieder die in de gemeente Beverwijk woont, werkt of recreëert of er op een andere manier bij betrokken is worden gerealiseerd. Als gemeente stimuleren en ondersteunen we initiatieven die bijdragen aan beleidskeuzes per thema en gebiedsprioriteiten in de omgevingsvisie. Dit doen we door het leveren van kennis en het zorgen voor verbinding.
Inspiratie- en afwegingskader
Het omgevingsplan en programma’s geven uitvoering aan de omgevingsvisie. Toch is de visie op zichzelf ook een instrument voor het toetsen van nieuwe ontwikkelingen. Hierbij hanteren we als gemeente de ‘Ja, mits - benadering’ uit de Omgevingswet. Daarbij moet de balans tussen ‘borgen van kwaliteiten’ en ‘ruimte bieden voor ontwikkelingen’ inzichtelijk worden gemaakt. De volgende beginselen uit de Omgevingswet en afwegingsprincipes uit de NOVI zijn nuttige algemene kaders.
Milieubeginselen Omgevingswet en Afwegingsprincipes NOVI:
-
a.
het voorzorgsbeginsel;
-
b.
het beginsel van preventief handelen;
-
c.
het beginsel om milieuaantastingen bij voorrang aan de bron te bestrijden;
-
d.
het beginsel dat de vervuiler betaalt;
-
e.
combinaties van functies gaan voor enkelvoudige functies;
-
f.
kenmerken en identiteit van een gebied staan centraal en;
-
g.
afwenteling voorkomen.
Aanvullend op deze algemene kaders biedt de omgevingsvisie inhoudelijke en gebiedsgerichte richting voor initiatieven. Zowel het integrale afwegingskader als de afwegingskaders voor de deelgebieden uit de omgevingsvisie geven houvast aan uitwerking in programma’s en het omgevingsplan alsmede aan een toetsing van de wenselijkheid van een nieuwe ontwikkeling.

5.4 Lokale en regionale samenwerking
De ontwikkelingen in Beverwijk staan natuurlijk niet op zichzelf. Ook in de regio vinden allerlei ontwikkelingen plaats die van invloed zijn op onze gemeente. Zo houden we onder andere rekening met de verstedelijkingsstrategie van de MRA ende NOVI NZKG. Daarnaast hebben we actief contact met buurgemeenten, de provincie Noord-Holland en ketenpartners. Ook nemen we deel aan verschillende regionale samenwerkingsverbanden. Al deze partijen zijn uitgenodigd voor ketenpartnersessies of participatiesessies bij de totstandkoming van deze Omgevingsvisie en zijn ze uitgenodigd om te reageren op de Omgevingsvisie tijdens de inzageperiode. Ook na de vaststelling zijn deze partijen belangrijke partners om gezamenlijk te werken aan een steeds gezondere leefomgeving.
5.5 Uitvoering
De gemeente wil actief werk maken van de ambities in de omgevingsvisie. Dat doen we onder andere actief door samenwerking met de regio op te zoeken en het telkens weer duiden van onze hoofdambitie “een brede welvaart en een gezonde leefomgeving”. Maar vooral ook door uitwerking van de visie in diverse programma’s, het vast stellen van bijbehorend (integraal) nieuw beleid en de juridische vertaling hiervan in het omgevingsplan.
Daarnaast zijn er te volgen aanbevelingen voor deeluitwerkingen vanuit de OER, de omgevings effect rapportage. Deze uitwerkingen zijn ondersteunend aan de haalbaarheid van de Beverwijkse ambities om de brede welvaart en een gezonde leefomgeving te realiseren. We stimuleren verder gewenst gedrag door subsidies, educatie of daadwerkelijke projecten.
5.6 Grond en financiën
Rollen en instrumenten
De gemeente kan een faciliterende of een actieve rol spelen bij de realisatie van de omgevingsvisie.
De afweging om een actievere of passievere rol te spelen, wordt gemaakt op basis van de maatschappelijke en/of ruimtelijke doelstellingen en de beschikbare financiële middelen.
Als de gemeente een actieve rol speelt, transformeert zij gronden die in eigendom zijn, om die als bouwgrond uit te geven, om een ontwikkeling op gang te brengen. Waar nodig kan de gemeente ook gronden verwerven met dit doel. De kosten die hiervoor gemaakt worden, worden verdisconteerd in de gronduitgifteprijs.
Als sprake is van een particulier initiatief vervult de gemeente een faciliterende rol. De gemeentelijke rol is in dat geval beperkt tot het mogelijk maken van de ontwikkeling. De kosten die hiermee gemoeid zijn worden verhaald op de initiatiefnemer.
Financiële uitvoerbaarheid
De gemeente Beverwijk heeft in de omgevingsvisie ambities en opgaven opgenomen waarvoor investeringen nodig zijn. De financiële uitvoerbaarheid hiervan is dynamisch en voortdurend aan verandering onderhevig. Enerzijds komt dit doordat nog niet alle ambities zijn uitgewerkt. Anderzijds omdat er in de loop der tijd vaak ook projecten afvallen en/of nieuwe projecten bijkomen. Ook de daadwerkelijke kosten en opbrengsten van projecten kunnen veranderen op basis van bijvoorbeeld prijsontwikkelingen en aangescherpte eisen en regelgeving. De financiële uitvoerbaarheid moeten we daarom - op basis van dit soort nieuwe inzichten en projecten - periodiek evalueren, actualiseren en waar nodig bij stellen. Op projectniveau maakt de financiële uitvoerbaarheid deel uit van het omgevingsplan.
Kostenverhaal en verevening
De gemeente Beverwijk heeft in de omgevingsvisie tal van ambities en opgaven opgenomen waarvoor investeringen nodig zijn. Als trekker van de maatschappelijke opgaven (een deel wordt door andere partijen uitgevoerd) zal de gemeente delen hiervan bekostigen. Ontwikkelaars van bouwlocaties hebben echter ook profijt van die investeringen. De gemeente is op grond van de Wet ruimtelijke ordening verplicht om de kosten die een directe relatie hebben met een bouwinitiatief, te verhalen op de initiatiefnemers. In grote lijnen is dit overgenomen in het nieuwe stelsel (Omgevingswet) maar er zijn ook wijzigingen. Zo zijn er de omgevingsvisie ook maatregelen opgenomen die niet direct een relatie hebben met een specifiek bouwplan. Maar deze bouwplannen kunnen wel profijt hebben van deze maatregelen. De investeringen voor dergelijke maatregelen wenst te gemeente (deels) ook te verhalen. Dit wordt opgenomen in een afzonderlijk programma: de nota Gebied Overstijgende Kosten. (GOK)
Grondprijzen
Periodiek worden de door de gemeente gehanteerde gronduitgifte prijzen voor woningen geactualiseerd. Voor alle overige categorieën, zal een taxatie worden uitgevoerd om de grondprijs te bepalen. Als bij een ontwikkeling door een particulier op eigen grond ook gemeentegrond wordt uitgegeven, wordt als uitgangspunt voor het bepalen van de uitgifteprijs gekeken naar de functie en omvang van het totaal te ontwikkelen complex.

5.7 Een levend document
Monitoring en evaluatie
Met de omgevingsvisie hebben we als gemeente een koers en een integraal afwegingskader voor de inrichting van onze fysieke leefomgeving. We beschouwen de omgevingsvisie, en in het verlengde daarvan alle Omgevingswetinstrumenten, als levende (of dynamische) documenten. De wereld verandert continu en daarom moeten we dus ook regelmatig onze instrumenten herijken. Liggen we nog op koers, zijn er nieuwe ontwikkelingen waar we rekening mee moeten houden, halen we onze ambities wel met onze huidige aanpak? Met een monitoringssysteem houden we als gemeente zicht op de voortgang van onze koers. Het gebruikmaken van meetbare indicatoren is een logische stap bij de verdere aanscherping van de omgevingsvisie.
Er is geen wettelijke actualiseringstermijn meer zoals dat bij de structuurvisie en bestemmingsplannen wel het geval was. Als we, op enig moment, tot de conclusie komen dat een bepaald thema onvoldoende is uitgewerkt, of dat de situatie voor een gebied aanzienlijk is veranderd, dan is herziening van de visie nodig. We kiezen als gemeente voor een actualiseringscyclus van eens per 1 a 2 jaar om de omgevingsvisie voldoende scherp en bij de tijd te houden. We kiezen voor deze korte cyclus omdat de Omgevingswet en bijbehorende instrumenten nieuw zijn. Op termijn bekijken we of we de tijdsdoorloop van de cyclus verlengen tot ten minste eens per vier tot zes jaar.
Stap richting omgevingsvisie 2.0
Deze eerste omgevingsvisie voor de gemeente Beverwijk zet een stap richting volledige strategische beleidsintegratie. Het uiteindelijke doel is dat de omgevingsvisie de centrale plek wordt voor al het strategisch beleid voor de leefomgeving. Dat betekent dat er vanaf nu geen andere thematische visies meer als losstaand beleid worden vastgesteld. Om die beleidsintegratie te realiseren beschouwen we de omgevingsvisie als een ‘levend’ en dynamisch document dat continu aangescherpt wordt.
Vanzelfsprekend gaan we als gemeente wel verder met het uitwerken van bepaalde thema’s parallel aan de omgevingsvisie met daarbij bijzondere aandacht voor brede welvaart en een gezonde leefomgeving. Dit wordt dan alleen niet opgenomen in losstaande beleidsstukken, maar integraal meegenomen in een herziening van deze omgevingsvisie. Via programma’s werken we bijvoorbeeld aan de uitwerking van een bepaald thema, een specifieke gebiedsuitwerking of anderszins. De strategische uitspraken van een verdiepingsslag moeten uiteindelijk weer landen in de omgevingsvisie en vanwege eventuele juridische consequenties verwerkt worden in het omgevingsplan.
In deze zogenaamde 1.0 versie van de omgevingsvisie hebben we alle thema’s voor de leefomgeving en de verschillende (bestaande) beleidstrajecten en ontwikkelingen met elkaar verbonden. In de omgevingsvisie 2.0 zetten we een volgende stap in het integreren van nieuw strategisch ruimtelijk beleid en de aangegeven thematische/gebiedsgerichte programma’s.
“De omgevingsvisie is een levend document dat continue aangescherpt wordt”
6 Bijlagen
Bijlage 1: interactieve visiekaart
Voor de samenvatting van de omgevingsvisie en de interactieve visiekaart verwijzen wij naar onze viewer
Ziet u een fout in deze regeling?
Bent u van mening dat de inhoud niet juist is? Neem dan contact op met de organisatie die de regelgeving heeft gepubliceerd. Deze organisatie is namelijk zelf verantwoordelijk voor de inhoud van de regelgeving. De naam van de organisatie ziet u bovenaan de regelgeving. De contactgegevens van de organisatie kunt u hier opzoeken: organisaties.overheid.nl.
Werkt de website of een link niet goed? Stuur dan een e-mail naar regelgeving@overheid.nl




