Permanente link
Naar de actuele versie van de regeling
https://lokaleregelgeving.overheid.nl/CVDR758360
Naar de door u bekeken versie
https://lokaleregelgeving.overheid.nl/CVDR758360/1
Geldend van 06-03-2026 t/m heden
Voorwoord
Het Sportieve Hart van Heerenveen
Heerenveen staat aan de vooravond van een ambitieuze ontwikkeling. Tot 2030 worden er minimaal 2.000 woningen gebouwd in de Friese gemeente. Een deel van deze woningen zal landen in het gebied rond de A32: Het Sportieve Hart van Heerenveen.
Dit gebied heeft een strategische positie in Heerenveen. Uitstekend bereikbaar, aanwezigheid van bijzondere landschappelijke kwaliteiten, in de nabijheid van het centrum, voorzien van bijzondere functies én ruimte voor ontwikkeling. Meer dan ooit zal dit gebied van betekenis zijn voor Heerenveen.
Met de ontwikkeling van Het Sportieve Hart van Heerenveen wordt op een unieke manier een balans gevonden tussen stedelijke inbreiding, behoud van de goede bereikbaarheid, versterking van het bestaande groen en dat allemaal voortbouwend op het sportieve karakter van gebied. Groen, recreatie, sport en bewegen krijgen daarmee een centrale plaats in de ontwikkeling. Zo wordt Sportstad de komende jaren verder ontwikkeld en worden er op verschillende plekken in het gebied sportfaciliteiten toegevoegd.
Kortom: de komende jaren bouwen we aan het Sportieve Hart van Heerenveen!
Hoofdstuk 1 Inleiding
Paragraaf 1.1 Wat is er aan de hand?
Het Sportieve Hart van Heerenveen heeft een strategische positie in Heerenveen. Het ad hoc blijven ontwikkelen van verschillende initiatieven binnen dit gebied zorgt ervoor dat niet de volledige potentie van deze plek wordt benut. Deze Gebiedsvisie geeft richting aan korte en lange termijnontwikkelingen.
De inhoudelijke koers van de Gebiedsvisie is doorvertaald in beslispunten die nodig zijn om ambities te realiseren. De gemeente heeft hierin een belangrijke rol. Ze is verantwoordelijk voor de inrichting van de openbare ruimte en heeft een regisserende rol bij ontwikkeling door derden.
Paragraaf 1.2 Uitgangspunten
Een tiental thematische uitgangspunten vormt het fundament voor deze Gebiedsvisie en is daarmee ook de inhoudelijke samenvatting van deze visie.
Landschap

1: versterk groengebieden van formaat
-
Transformeer het groen langs de Weinmakker tot nieuw publiek park: Het Hepkema’s Park met versterkte recreatieve routes en programmering met publieke buiten(sport)functies.
-
Versterk het groengebied aan oostkant de A32 door het verbinden van recreatieve routes en de groenstructuur ten hoogte van Tusken de Fjilden te versterken.
2: verbind groengebieden van formaat
-
Verbind groenstructuren in en rond Sportstad met structuren in Skoatterwâld door het (verder) vergroenen van straatprofielen van de Atalantastraat, Het Palet - Anna Giezenweg en de Oranje Nassaulaan voor recreatieve doeleinden maar ook om de biodiversiteit te vergroten en hittestress tegen te gaan doordat bomen water opnemen.
-
Verbind Hepkema’s Park met groenstructuur langs de Karst de Jongweg en de Abe Lenstra Boulevard via nieuwe brug over de Schoterlandse Compagnonvaart.
3: balans tussen rood en groen in het Hepkema’s Park
-
Voeg woningen toe aan de randen van Hepkema’s Park. Deze geven een gezicht aan het nieuwe park en zorgen voor sociale veiligheid. Ook zijn deze nieuwe groenstedelijke woonmilieus een waardevolle toevoeging aan de bestaande woningvoorraad van Heerenveen.
Stedelijke ontwikkeling

4: strategische ligging bepaalt dichtheid en woningtypes ontwikkellocatie
-
Het Sportieve Hart van Heerenveen levert een belangrijke bijdrage aan woningbehoefte in Heerenveen. In totaal kunnen in het gebied tussen de 800 en 900 woningen worden gerealiseerd, waarvan minimaal een derde in het sociale programma en een derde in het betaalbare programma. Duurzaamheid en circulariteit zijn belangrijke thema’s bij de doorontwikkeling van de plannen.
-
Voortbouwend op de woningbouwstrategie Heerenveen Groeit krijgt de meest centrale ontwikkellocatie die daarmee ook de sterkste relatie heeft met het centrum (de Noordplot) de hoogste dichtheid met meer ruimte voor appartementen en doelgroepen die van levendigheid houden en die behoefte hebben aan voorzieningen in de nabijheid.
-
De andere centrale locatie (Hepkema’s Park zuid) wordt ook ontwikkeld met een relatief hoge dichtheid met een combinatie van grondgebonden woningen en appartementen. De andere ontwikkellocaties in het Hepkema’s park bieden ruimte voor luwere woonmilieus met grondgebonden woningen.
-
De ontwikkellocaties in de Kop van Skoatterwâld bieden ruimte voor voornamelijk grondgebonden woningen met incidenteel appartementen in groenstedelijke woonmilieus.
5: versterk het profiel van Sportstad
-
Bied op ontwikkellocaties in Sportstad ruimte voor niet-woonfuncties die het profiel van Sportstad versterken en aanvullend zijn op het centrum. Denk aan sportgerelateerde retail en onderwijs, zorggerelateerde functies en onderwijs. Ook passend zijn woningen voor doelgroepen die van levendigheid houden zoals jongeren en vitale ouderen.
-
Zet in op geleidelijke transformatie van bedrijvenlocatie De Opslach tot werklocatie met onder meer ruimte voor kantoren en/ of woon-werkunits.
Mobiliteit

6: versterk fijnmazig fietsnetwerk
-
Versterk het noord-zuid netwerk door continuering van het fietspad langs de Pastorielaan in noordelijke richting tot aan OSG Sevenwolden en in zuidelijke richting via een nieuwe brug over de Schoterlandse Compagnonvaart tot aan Sportstad.
-
Versterk het oost-west netwerk door (verder) vergroenen profielen Het Meer, Atalantastraat, Het Palet en Oranje Nassaulaan.
-
Zet conform Centrumvisie Heerenveen in op een nieuwe langzaam verkeersroute die het Burgemeester Kuperusplein verbindt met de Noordplot.
7: minimaliseer impact bestaand wegennetwerk
-
Autoverkeer voortvloeiend uit nieuwe ontwikkelingen wordt zo veel als mogelijk afgevangen vanaf parallelroutes A32 (Weinmakker, Stadionweg en Domela Nieuwenhuisweg). Zo wordt de verkeersdruk in bestaande woonbuurten tot het minimale als mogelijk beperkt. Uitzondering hierop is ontwikkeling van de ontwikkellocatie aan de Buitenbaan. Deze zal wel via bestaand wegennetwerk worden ontsloten.
8: toekomstbestendige parkeeroplossing
-
Parkeernormen ontwikkellocaties volgen uit beoogde ontwikkelrichting. De parkeernorm van de Noordplot wordt gelijk aan het centrum, overige parkeernormen volgen normen uit directe omgeving.
-
Breid betaald parkeren uit tot aan de A32 om zo bezoekers te stimuleren P6 te gebruiken en daarmee de parkeerdruk in Sportstad te beperken. Het verbeteren van de bereikbaarheid van P6 is hierin een belangrijke opgave.
-
Verbeter publieke parkeervoorzieningen door compensatie P9 met grotere parkeerterrein in directe omgeving, verbeterde bereikbaarheid en inrichting P6 en gratis toegankelijk maken P6. Aanpassing P6 leidt tot verbetering parkeersituatie rond evenementen. Ook moeten afspraken worden gemaakt met betrokken partijen over het parkeren tijdens evenementen.
Sport en gezondheid

9: ontwikkel Sportstad tot campus met nationale allure
-
Maak samen met Sportstad een integrale ruimtelijke en programmatische visie voor de ontwikkeling van heel Sportstad.
-
Richt de openbare ruimte in als campus met meer ruimte voor groen, beweging en verblijf.
-
Richt evenementenruimte direct ten noorden van het Abe Lenstra Boulevard in als multifunctionele ruimte met een publieke sportvoorziening (zonder dat dit ten koste gaat van de functie van evenemententerrein).
10: sport en gezondheid als centrale thema’s bij ontwikkelingen
Paragraaf 1.3 Introductie gebiedsvisie
Heerenveen is populair en groeit. Er is een grote woningvraag en ook op economisch vlak heeft Heerenveen een belangrijke rol in de regio. Met deze Gebiedsvisie neemt de gemeente de regie in een strategisch gebied.
Aanleiding
De in 2021 vastgestelde Omgevingsvisie Heerenveen vormt de leidraad van deze Gebiedsvisie. Hierin is het gebied rond de A32 aangewezen als belangrijk ontwikkelgebied. Er liggen verschillende opgaven voor de toekomst van Heerenveen in dit gebied. De Omgevingsvisie vraagt dan ook om een gebiedsgerichte uitwerking. Hier wordt invulling aan gegeven middels deze Gebiedsvisie.
Waar gaat deze Gebiedsvisie over?
Deze Gebiedsvisie is een ruimtelijk programmatische visie en geeft houvast voor de langetermijnontwikkeling van het gebied rond de A32. Ook zorgt het op de korte termijn voor sturing en verleiding voor ontwikkelinitiatieven. De Gebiedsvisie wordt mede daarom juridisch als programma binnen de Omgevingsvisie vastgesteld. Kort samengevat maakt de Gebiedsvisie inzichtelijk welke gebieden met welk programma ontwikkeld kunnen worden en welke randvoorwaarden daaraan worden gesteld. Het schetst de ambitie op de lange termijn en biedt kaders waarbinnen initiatiefnemers hun ideeën en visies kunnen uitwerken. Dit gebeurt vanuit een integrale blik waar thema’s als programma, mobiliteit, landschap en klimaat samenkomen. Deze Gebiedsvisie is geen uitgewerkt stedenbouwkundig plan. Daar waar nodig worden concrete uitspraken gedaan. Waar dit minder noodzakelijk is, blijven uitspraken globaler. Zo wordt ruimte gelaten aan initiatief en verdere verdieping in de toekomst. Dit gebeurt hoofdzakelijk vanuit een sterk raamwerk, een visie op hoofdstructuur en samenhang van het gebied, waarbinnen onderscheidende deelgebieden met eigen ruimtelijk programmatisch karakter gelegen zijn.
Het projectgebied
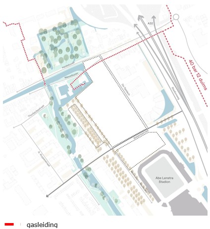
Het Sportieve Hart van Heerenveen strekt zich aan weerszijden van de A32 uit in noord-zuidelijke richting en is op te delen in drie deelgebieden: Hepkema’s Park, Sportstad en de Kop van Skoatterwâld. Zie ook onderstaande afbeelding. Op deze afbeelding zijn ook de in deze Gebiedsvisie gehanteerde namen van de verschillende deelgebieden opgenomen.
De begrenzing aan de oost- en westzijde van Het Sportieve Hart van Heerenveen is bepaald door de bestaande aangrenzende woonbuurten. Aan de zuidzijde is de projectgrens gedefinieerd door de ontwikkelingen die daar spelen. Zo vormen Sportstad en het in ontwikkeling zijnde Van der Valk hotel de begrenzing aan de zuidzijde.
Het Hepkema’s Park is gelegen in het noordwestelijk deel van het Sportieve Hart van Heerenveen. Dit gebied ligt ingeklemd tussen de A32 en bestaande woonbuurten langs onder meer de Pastorielaan en De Zonnebloemstraat. Het Hepkema’s Park loopt in noord-zuid richting grofweg van OSG Sevenwolden tot aan de Schoterlandse Compagnonsvaart. Het deelgebied Sportstad wordt ingeklemd tussen de Schoterlandse Compagnonsvaart, De Karst De Jongweg, de A32 en de Oranje Nassaulaan. Aan de oostkant van de A32 is het deelgebied de Kop van Skoatterwâld gelegen. Dit gebied is gelegen tussen Het Meer, De A32, de Oranje Nassaulaan en Skoatterwâld.
Hoe is deze Gebiedsvisie tot stand gekomen?
Deze Gebiedsvisie is door de gemeente Heerenveen opgesteld. Hierbij vormt de in april 2023 door het College van B&W vastgestelde Startnotitie Gebiedsvisie A32 de basis. Tussentijds is inhoudelijk verantwoording afgelegd aan de Stuurgroep, met daarin de ambtelijk opdrachtgever en betrokken wethouders. Het College van B&W en de Raad stellen de Gebiedsvisie vast als Omgevingsprogramma. De financiële gevolgen worden verwerkt in de betrokken grondexploitaties. De besluitvorming over deze aanpassingen ligt bij de Raad. Op meerdere momenten en op verschillende manieren heeft participatie plaatsgevonden met bewoners en gebruikers van het gebied. Zo hebben verschillende bewonersavonden plaatsgevonden en zijn professionele stakeholders die een belang hebben in het gebied geconsulteerd. Ook hebben bewoners de mogelijkheid gekregen via de gemeentelijke website hun input te geven. Als onderdeel van deze Gebiedsvisie is een Reactienota opgesteld met daarin opgenomen hoe input uit het participatietraject is verwerkt in de Gebiedsvisie. De Reactienota is als separate bijlage onderdeel van deze Gebiedsvisie.

Hoofdstuk 2 Ambitie en opgaven
Paragraaf 2.1 Wat is er aan de hand?
Met de ontwikkeling van Het Sportieve Hart van Heerenveen bouwen we aan een gebied waarvan de invloedssfeer veel groter is dan die van het projectgebied zelf. We benutten zo de potentie van de strategische ligging van de plek.
Het gebied is nu nog versnipperd, grotendeels gericht op de auto en voor een deel onbenut. Maar, ook de kwaliteiten zijn zichtbaar. Zo is het goed bereikbaar, is er volwassen groen, ligt er voor een deel een aantrekkelijk fietsnetwerk, is er relatief veel werkgelegenheid aanwezig en zijn er functies te vinden met nationale allure.
Paragraaf 2.2 Ruimtelijke positionering
Met de aanwezigheid van de A32, een sterk OV-netwerk en een in de basis fijnmazig langzaam verkeersnetwerk is Het Sportieve Hart van Heerenveen goed verbonden. En dat ook nog eens met het centrum op steenworp afstand gelegen.
Functionele positie in Heerenveen
Het Sportieve Hart van Heerenveen heeft niet alleen een centrale ligging in Heerenveen, maar ook in de regio. Met de mogelijke komst van de Lelylijn op de lange termijn kan ook de bereikbaarheid op nationaal niveau verder versterkt worden. Hoewel de daadwerkelijke komst nog onzeker is, zal de impact van de Lelylijn als deze komt groot zijn. Ook benadrukt de mogelijke komst van dit treinnetwerk de potentie van het Sportieve Hart van Heerenveen.
Het gebied kent een mix van functies. Verschillende voorzieningen zijn van belang op de schaal van Heerenveen. Ook zijn er voorzieningen met regionale betekenis, waaronder de onderwijs- en kantoorfuncties in en rond Sportstad. Er zijn zelfs functies, waaronder het Abe Lenstra Stadion en het Epke Zonderland Turncentrum, met nationale betekenis. Door de ligging langs de A32 is het Sportieve Hart van Heerenveen ook nog eens een ‘uithangbord’ voor de Friese gemeente. Ontwikkeling van het gebied biedt dan ook kansen voor een kwaliteitsverbetering van de gehele oostflank van Heerenveen. Maar, een zorgvuldige inpassing van functies is dan wel een vereiste. Een goed voorbeeld hiervan is de inpassing van de in ontwikkeling zijnde Van Der Valk in de oksel van de A32 en de Oranje Nassaulaan. Het markante volume presenteert zich aan de A32 en vormt een uithangbord van Heerenveen.
Met een kwaliteitsimpuls in de openbare ruimte, het versterken van routes en het toevoegen van nieuwe functies benutten we het potentieel van het gebied. Er wordt ruimte geboden voor woonmilieus die een toevoeging zijn op de woningvoorraad van Heerenveen. Ook versterken we het economisch profiel en het sportieve DNA van het gebied. Zo wordt het profiel van Sportstad doorontwikkeld, wordt ruimte geboden voor ontwikkeling van Sportpark Skoatterwâld en zal sport in de openbare ruimte een leidend principe zijn bij de ontwikkeling van de verschillende deelgebieden.
Het Sportieve Hart van Heerenveen transformeert daarmee van een onderbenut gebied naar een dynamisch stadsdeel met de focus op sport, gezond leven, economische activiteiten en groene woonbuurten.




Ruimtelijke analyse
Landschap en water
Het Sportieve Hart van Heerenveen wordt gekenmerkt door een gevarieerd landschap met op verschillende plekken robuuste groenstructuren. Zo is sinds de aanleg van de A32 ten noorden van de K.R. Poststraat het gebied met daarin het voormalig tracé van de N32 nagenoeg onaangeroerd. De natuur heeft zich hier lang kunnen ontwikkelen en heeft daarnaast recreatieve en ecologische waarden gekregen.
Ook meer zuidelijk, aan beide zijden van de A32 is robuust groen aanwezig. Denk aan de structuren langs de Karst de Jongweg en het groen parallel aan de oostzijde van de A32. Op een aantal plekken zijn de structuren met elkaar verbonden, maar er missen ook schakels om te kunnen spreken van een samenhangend landschappelijk netwerk.
Cultuurhistorie
Met de aanwezigheid van Hepkema’s bos, de voormalige buitenijsbaan Oud Thialf, huize Voormeer en de lintstructuur langs de (voormalige) Schoterlandse Compagnonsvaart is het rijke verleden van het Sportieve Hart van Heerenveen zichtbaar. Deze elementen zijn nauw verbonden met de geschiedenis en zijn belangrijke identiteitsdragers voor nu en in de toekomst en moeten daarom behouden blijven.
Mobiliteitssysteem
Het Sportieve Hart van Heerenveen kent in de basis een goed mobiliteitssysteem. Het wordt doorkruist door de A32, welke op een tweetal plekken vanuit het gebied toegankelijk is. Ook lopen er in oost-west richting verschillende routes die het gebied verbinden met de rest van Heerenveen.
Deze routes zijn over het algemeen ook goed bruikbaar voor de fiets. De verschillende onderdoorgangen onder de A32 versterken het fijnmazig netwerk voor langzaam verkeer. Dit fietsnetwerk kan echter - met name in noord-zuid richting - verder versterkt worden.
Stedelijke structuur
Het benutten van het potentieel wordt voor een deel geremd door een onsamenhangende stedelijke structuur. Het gebied is gefragmenteerd waarin verschillende deelgebieden van elkaar worden gescheiden door drukke wegen. Deze barrières bemoeilijken de uitwisseling tussen de verschillende deelgebieden. Zo is Sportstad vanaf noordelijke richting voor fietsers niet op een comfortabele manier bereikbaar. Ook worden doorgaande wegen in oost-west richting, zoals de K.R. Poststraat en de Atalantastraat, gedomineerd door de auto en zijn daardoor niet overal goed oversteekbaar.
Heerenveen in ontwikkeling
Heerenveen werd lange tijd gekenmerkt door lintbebouwing. Boerderijen werden gebouwd langs twee waterlopen die vandaag de dag nog steeds een belangrijk onderdeel vormen van Heerenveen: de Schoterlandse Compagnonsvaart in oost-west richting en de Heeresloot in noord-zuid richting.
De aanleg van de N32 vormde een startpunt van flinke verstedelijking. Deze ringweg vormde lang de oostelijke grens van Heerenveen. Geleidelijk werden verschillende woonbuurten tussen het spoor en de N32 ontwikkeld.
Bijna 25 jaar geleden is de basis gelegd voor het ontstaan van het gebied wat we vandaag de dag kenschetsen als het Sportieve Hart van Heerenveen. Rond 2000 is de A32 aangelegd, tegelijk met de eerste fase van de woonwijk Skoatterwâld aan de oostzijde van de A32. Het tracé van de rijksweg is ten opzichte van de eerdere N32 in oostelijke richting verschoven. In de daardoor ontstane zone zijn in eerste instantie het Abe Lenstra Stadion, Sportstad, de Abe Lenstra Boulevard en de kantoren langs de K.R. Poststraat ontwikkeld.
Tot op de dag van vandaag heeft het gebied de uitstraling van een zone aan de rand van een stad. Het is voor een groot deel functioneel ingericht. De verschillende gebieden liggen ten opzichte van elkaar vrij geïsoleerd. Maar, door het rijke verleden en de binnenstedelijke ligging heeft het gebied ook potentie. Het groen is robuust, er is ruimte, het is goed verbonden en het gebied heeft een centrale positie in Heerenveen.

Paragraaf 2.3 Beleidsanalyse
Met de ontwikkeling van deze Gebiedsvisie geven we invulling aan bestaand beleid. In dit hoofdstuk worden chronologisch de voor de ontwikkeling van Het Sportieve Hart van Heerenveen meest relevante beleidsstukken beschreven.

Heerenveen Groeit (mei 2024)
De gemeente wil de komende jaren groeien. De woningbouwstrategie ‘Heerenveen Groeit’ geeft de gemeente een sterke basis die helpt beter te sturen op woningbouwprojecten. Voorafgaand aan deze strategie zijn in de Woonvisie Heerenveen 2023-2028 eerder al doelen vastgesteld voor de realisatie van minstens 2.000 woningen, waarvan ongeveer 600 in de sociale huur en 740 in de betaalbare koop. Als uitgangspunt voor Heerenveen Groeit heeft het College dit doel aangescherpt door tot 2030 uit te gaan van ontwikkeling van 2.500 woningen. Heerenveen Groeit doet uitspraken over locatie en type woningen en vormt daarmee een basis voor de opgave voor het Sportieve Hart van Heerenveen.
Belangrijke richting is de keuze voor het concept Tuinstad Heerenveen, wat bestaat uit behoud en versterking van de groene identiteit. Dit concept geldt als leidraad voor woonprogramma en verantwoordt verdichting. Heerenveen ontwikkelt zich met groene woonmilieus, waar het buitengebied nooit ver weg is. Groene lijnen uit het landschap zijn op veel plekken verweven met de woonbuurten. De ontwikkeling van het Sportieve Hart van Heerenveen levert een bijdrage aan het versterken van het tuinstedelijke karakter van Heerenveen.
Woonvisie Heerenveen 2023-2028 (okt. 2023)
Ook vanuit de Woonvisie wordt het belang van de ontwikkeling van het Sportieve Hart van Heerenveen duidelijk. Er ligt een ambitie om te groeien met minimaal 2.000 woningen, waarvan minimaal een derde in het sociale programma en een derde in het betaalbare programma, tot 2030. De gemeente zet in op gemengde wijken en geeft daarmee invulling aan de woonbehoefte van eigen inwoners, maar ook mensen die graag naar Heerenveen willen verhuizen.
De gemeente heeft een aantal grote grondposities binnen het Sportieve Hart van Heerenveen en kan op deze locaties daarom maximaal invloed hebben op het programma dat daar gerealiseerd wordt.
Omgevingsvisie Heerenveen (juli 2021)
De Omgevingsvisie beschrijft het belang van de integrale ontwikkeling van het Sportieve Hart van Heerenveen – in de Omgevingsvisie nog A32-zone genoemd. In de Omgevingsvisie zijn de verschillende ideeën en ontwikkelingen die elkaar in dit gebied onderling beïnvloeden opgenomen. Hierbij valt te denken aan de uitbreiding van de voorzieningen in en rond Sportstad met onder meer woningbouw en commerciële functies. Hierbij is samenhang met het centrum van groot belang. Sportstad moet zich niet als concurrent van het centrum ontwikkelen op het gebied van woningbouw en economie.
Strategische agenda Heerenveen 2022-2040 (feb. 2021)
In 2022 is de Strategische agenda Heerenveen met Brede Welvaart opgesteld met daarin een verbindend concept voor kwaliteit van leven. Doel is de lokale kernkwaliteiten te behouden en te versterken, waardoor Heerenveen een fijne plek is en blijft om te wonen, te werken en te recreëren. In de agenda worden integrale kernopgaven geschetst die in samenhang moeten worden bekeken. In het Sportieve Hart van Heerenveen speelt deze samenhang met name tussen kernopgaven in het kader van ontwikkeling van gezonde klimaatbestendige en leefbare wijken en dorpen, het bouwen aan toekomstbestendige woningen en het werken aan Heerenveen als (boven)regionaal centrum voor (top)sport, werk en voorzieningen.
Centrumvisie Heerenveen (dec. 2019)
Met de Centrumvisie Heerenveen heeft de gemeente de ambitie vastgelegd om te komen tot een sfeervol en gastvrij centrum voor bezoekers die langer blijven en vaker komen. Een aantal uitgangspunten in deze visie heeft directe invloed op de ontwikkeling van het Sportieve Hart van Heerenveen. Zo is in de Centrumvisie een nieuwe ruimtelijke structuurdrager opgenomen vanaf het Burgemeester Kuperusplein richting het Sportieve Hart van Heerenveen.
Ook zorgt de programmatische verdichting van het centrum die voortvloeit uit de ambities die zijn opgenomen in de Centrumvisie voor een toenemende parkeerdruk. In de huidige situatie gebruikt een deel van de bezoekers van het centrum al parkeervoorzieningen in het Sportieve Hart van Heerenveen. Met de beoogde verdichting van het centrum, maar ook die in het Sportieve Hart van Heerenveen, zal de parkeerdruk in beide gebieden dan ook toenemen. Een toekomstbestendige mobiliteitsstrategie is dan ook een belangrijk onderdeel van de Gebiedsvisie.
Ontwikkelstrategie Skoatterwâld (sep. 2017)
De Ontwikkelstrategie Skoatterwâld vormt de basis voor de ontwikkeling van deze groene woonwijk. Skoatterwâld is inmiddels voor een groot gedeelte gerealiseerd, maar er liggen met name parallel aan de A32 – binnen het Sportieve Hart van Heerenveen - verschillende ontwikkelingen die nog niet zijn gerealiseerd. Het gaat met name om afronding van de buurten aan de westzijde van Skoatterwâld en de mogelijke aanpassing van Sportpark Skoatterwâld.
Parkeervisie 2017 (sep. 2017)
De Parkeervisie vormt de basis voor de parkeeropgave in het Sportieve Hart van Heerenveen. Naast parkeren voor bestaand en nieuw woonprogramma, ligt er een uitdaging in de opgave voor het parkeren ten behoeve van functies in Sportstad. Binnen Sportstad wordt nu geparkeerd door bezoekers en werknemers van het gebied, bezoekers van het centrum en een beperkt aantal bewoners. In de huidige situatie is er geen parkeerregulering in Sportstad, wat wel het geval is in het centrum. Dit vergroot vanzelfsprekend de parkeerdruk binnen Sportstad.
De Parkeervisie 2017 sorteert voor op de situatie na afronding van de ontwikkeling van Sportstad. Zo is in de Parkeervisie opgenomen dat in Sportstad betaald parkeren wordt ingesteld, met uitzondering van de parkeervoorziening P6 die aan de oostzijde van de A32 is gelegen. Dit terrein wordt geschikt gemaakt voor lang parkeren voor onder meer werknemers van Sportstad om zo de parkeerdruk in Sportstad zelf af te laten nemen.
Sport en beweegvisie 2017-2025 (2017)
De Sport en beweegvisie 2017-2025 geeft sturing aan het sportbeleid. Alle Heerenveners hebben in 2025 de mogelijkheid om te sporten en te bewegen. Daarom zijn sportfaciliteiten geschikt en toegankelijk voor eenieder, van jong tot oud, van valide tot mindervalide. Door nauwe samenwerking tussen onze sportaanbieders, scholen en stichtingen bieden wij onze kinderen en volwassenen alle kansen om te gaan sporten.
Met de aanwezigheid van verschillende sportvoorzieningen in het Sportieve Hart van Heerenveen kan een belangrijke bijdrage worden geleverd aan de ambities die op zijn genomen in de Sport en beweegvisie 2017-2025.
Visie detailhandel en horeca
De gemeente zet in op levendige centra. De visie detailhandel en horeca gaat in op welke wijze trends en ontwikkelingen van invloed zijn op de centrum- en winkelgebieden in Heerenveen, welke ambities we hebben voor deze verschillende gebieden en hoe we deze ambities willen waarmaken.
Initiatieven bij de uitwerking van Het Sportieve Hart van Heerenveen zullen dan ook getoetst worden aan de visie detailhandel en horeca. Belangrijk aandachtspunt hierin is de concurrentie met het bestaande winkelaanbod. Commerciële functies in het Sportstadgebied zijn dan ook aanvullend op het centrum van Heerenveen.
Paragraaf 2.4 Externe factoren
Mede door de binnenstedelijke ligging van het Sportieve Hart van Heerenveen zijn er veel factoren die van invloed zijn op de ontwikkelmogelijkheden. Zo dient rekening gehouden te worden met geluid, milieuzones en de aanwezigheid van een gasleiding.

Geluid, door verkeerslawaai
In het Besluit kwaliteit leefomgeving (Bkl)) zijn instructieregels voor de beheersing van geluid door wegen, spoorwegen en industrieterreinen opgenomen. Geluid afkomstig van wegen, spoorwegen en industrieterreinen heeft invloed op de omgeving. Het bevoegd gezag beoordeelt geluid van deze bronnen bij geluidgevoelige gebouwen. Een geluidgevoelig gebouw wordt gedefinieerd in artikel 3.21 Bkl, en betreft grofweg woningen, onderwijsgebouwen, kinderopvang en gezondheidszorg (met bedfunctie).
Bij een deel van de ontwikkellocatie is in meer of mindere mate sprake van geluidshinder van met name de A32. Ontwikkellocaties in het Hepkema’s Park en Kop van Skoatterwâld bevinden zich deels in het gebied tot de (op basis van de voormalige Wet geluidhinder gestelde) voorkeursgrenswaarde van 48 dB. Ontwikkellocaties direct ten noorden van het Abe Lenstra Stadion liggen geheel of gedeeltelijk in een gebied met een maximale waarde van 53 dB. Ook blijkt dat de maximale geluidbelasting ten gevolge van evenementen in en rond Sportstad wordt overschreden. Bij ontwikkeling van locaties in deze gebieden zullen zoveel als mogelijk woningen moeten beschikken over een geluidluwe gevel.
Het kan echter zo zijn dat dit niet voor elke woning mogelijk is. Aangezien de gemeente geen vigerend beleid heeft voor de beschouwing van geluidluwe gevels zal in het vervolg door de gemeente bepaald worden onder welke voorwaarden woningen zonder geluidluwe gevel alsnog toelaatbaar zijn. Sommige beoogde woningbouwlocaties liggen in de geluidzone van drukke lokale wegen. De afstand van deze wegen tot de ontwikkellocaties, de verkeersintensiteiten en de mate van afscherming van deze wegen zijn zodanig dat het aannemelijk is dat de voorkeursgrenswaarde van 48 dB overschreden wordt. Nader onderzoek bij verdere uitwerking van de plannen is dan ook nodig. Mogelijk zijn daarbij ook nadere maatregelen zoals stillere wegdekken en/of geluidisolatie nodig.
Geluid door activiteiten
Op grond van het Bkl moet een omgevingsplan dat geluidsgevoelige gebouwen toestaat er in voorzien dat het geluid op een geluidsgevoelig gebouw aanvaardbaar is. Het Bkl bevat daarbij een standaardwaarde voor geluid waarvan het bevoegd gezag in bepaalde gevallen en mits aan bepaalde randvoorwaarden is voldaan en dit goed is gemotiveerd kan afwijken. Daarbij moeten in ieder geval de grenswaarden voor het binnenniveau gerespecteerd worden. Daarnaast moet rekening worden gehouden met cumulatie van het geluid, het opgetelde geluid van alle activiteiten tezamen.
Trillingen
In paragraaf 5.1.4.4 van het Bkl staan de instructieregels voor trillingen. Deze instructieregels zijn gericht op de bescherming van trillinggevoelige ruimten in trillinggevoelige gebouwen. Het gaat hierbij om activiteiten die trillingen veroorzaken in een trillinggevoelige ruimte van een trillinggevoelig gebouw, in een frequentie van 1 tot 80 Hz. Een trillinggevoelig gebouw is een gebouw met een gezondheidszorgfunctie met bedgebied. De activiteiten wonen en verkeer op wegen, vaarwegen en spoorwegen zijn uitgezonderd van de instructieregels uit het Bkl, maar trillingen kunnen wel onderdeel van de afweging van een evenwichtige toedeling van functies aan locaties uitmaken.
Bodem
In het verleden heeft op verschillende plekken in het Sportieve Hart van Heerenveen bodemonderzoek plaatsgevonden. In ontwikkellocaties in het Hepkema’s Park en aan de Oranje Nassaulaan in de Kop van Skoatterwâld zijn hierbij lichte verontreinigingen gevonden. In de andere ontwikkellocaties in de Kop van Skoatterwâld zijn verontreinigingen gevonden. Ditzelfde geldt voor de ontwikkellocaties direct ten noorden van het Abe Lenstra Stadion, waaronder de Noordplot. Voor bijna alle locaties dient dan ook voor toekomstige ontwikkeling de bodemkwaliteit inzichtelijk te worden gemaakt. Er zijn locaties bij waar mogelijk saneringen noodzakelijk zijn. Op grond van de Bruidsschat kan een vergunning voor het bouwen van een bodemgevoelig gebouw alleen verleend worden als de bodemkwaliteit op orde is of als voorafgaande aan het bouwen eerst gesaneerd wordt.
Omgevingsveiligheid
Door en langs het plangebied lopen verschillende buisleidingen met effectgebieden van 140 tot 150 meter. Verder is aandacht vereist in het kader van de brand- en explosieaandachtsgebieden rond de A32. Het brandaandachtsgebied beslaat een zone van 30 meter aan weerszijden van de snelweg, het explosieaandachtsgebied een zone van 200 meter aan weerszijden van de snelweg, het gifwolkaandachtsgebied heeft een breedte van 300 meter aan weerszijden van de weg.
Het werken met aandachtsgebieden voor externe veiligheidsrisico’s is een nieuwe manier van omgaan met het groepsriscio. Aandachtsgebieden zijn gebieden die zichtbaar maken waar mensen binnenshuis, zonder aanvullende maatregelen onvoldoende beschermd kunnen zijn tegen de gevolgen van ongevallen met gevaarlijke stoffen. Er is een onderscheid in drie soorten gevaren: warmtestraling (brand), overdruk (explosie) en concentratie giftige stoffen in de lucht (gifwolk). Daarmee zijn er ook drie typen aandachtsgebieden. Aandachtsgebieden worden vastgesteld in het omgevingsplan.
De gemeente kan binnen het aandachtsgebied voorschriftengebieden aanwijzen. Een voorschriftengebied kan een deel van of het gehele aandachtsgebied zijn. De gemeente wijst in dat geval een locatie binnen een (brand- of explosie)aandachtsgebied als (brand- of explosie)voorschriftengebied aan in het omgevingsplan. In dit deel van het aandachtsgebied gelden dan aanvullende bouweisen voor nieuwbouw en vervangende nieuwbouw van beperkt kwetsbare, kwetsbare en zeer kwetsbare gebouwen.
Locaties voor zeer kwetsbare gebouwen zoals ziekenhuizen, basisscholen en kinderdagverblijven in een brand- of explosieaandachtsgebied moeten altijd aangewezen worden als voorschriftengebied. Voor het overige kan de gemeente zelfstandig besluiten om een aandachtsgebied wel of niet of slechts gedeeltelijk als zodanig aan te wijzen. Een beleidsnotitie (bouwsteen omgevingsveiligheid) geeft op dit punt input voor de nieuwe omgevingsvisie en het op te stellen omgevingsplan. Bij de ontwikkeling van de gebieden uit deze gebiedsvisie zal hiermee rekening gehouden worden.
Aan de noordzijde aan de Nieuwburen 88a zijn een tweetal straatkasten voor het zogenaamde lagedruksysteem gelegen. Volgens artikel 5.13 jo. bijlage VII van het Bkl geldt hier een afstand voor het plaatsgebonden risico, maar geen aandachtsgebied. De contour voor het plaatsgebonden risico bedraagt maximaal 25 meter. Artikel 5.15 Bkl biedt het bevoegd gezag een afwegingsruimte bij nieuwe ontwikkelingen binnen een aandachtsgebied. Afwegingen van groeprisico’s voor bestaande situaties hoeven niet opnieuw gemaakt. Hoofdregel in het Bkl is dat binnen het brand- en/of explosieaandachtsgebieden geen beperkt kwetsbare, kwetsbare en zeer kwetsbare gebouwen en beperkt kwetsbare en kwetsbare locaties worden gerealiseerd. De gemeente kan hiervan afwijken en deze wel toestaan in brand- en explosieaandachtsgebieden, maar zal dan goed moeten kunnen motiveren waarom zij dit aanvaardbaar vindt. Daarbij zal ook het advies van de veiligheidsregio moeten worden ingewonnen.
Luchtkwaliteit
In de Omgevingswet is opgenomen dat projecten getoetst moeten worden aan de rijksomgevingswaarde voor de luchtkwaliteit. Dit hoeft niet als een project geen of weinig luchtverontreiniging veroorzaakt. Het project draagt dan ‘niet in betekenende mate’ (NIBM) bij aan de luchtvervuiling. Toetsing aan de rijksomgevingswaarde is dan niet nodig. Woningen en kantoren zijn NIBM als de omvang onder een vastgestelde grens ligt. Ook voor een combinatie van woningen en kantoren geeft het Bkl in artikel 5.54 een NIBM-grens. Aangetoond is dat bij minder dan 1.500 woningen in combinatie met één ontsluitingsweg de luchtkwaliteit niet in betekende mate verslechtert. Aangezien met de verschillende deelontwikkelingen binnen het Sportieve Hart van Heerenveen dit woningaantal niet zal worden overschreden lijkt nader onderzoek niet nodig.
De combinatieformules voor woningen en kantoren kunnen niet toegepast worden als er ook kleinschalige bedrijven bijkomen (bijvoorbeeld horeca). In dat geval is een uitgebreider onderzoek nodig, om aannemelijk te maken of het project NIBM is. Het is niet toegestaan om de plannen voor de bedrijvigheid los te koppelen van de woningen en kantoren. De bijdrage van de meerdere activiteiten moeten bij elkaar opgeteld worden. In de omgevingsvisie is als beleidsuitgangspunt opgenomen dat in een zone van 300 meter aan weerszijden van de snelweg geen functies meer te bouwen, die we als extra gevoelig beschouwen. Daarbij gaat het om scholen, kinderopvanglocaties en verpleeg- en verzorgingstehuizen.
Milieueffectbeoordeling
Tot slot wordt nog opgemerkt dat op basis van de Europese Mer-richtlijn die zorgt voor een voorafgaande beoordeling van de milieueffecten van projecten het mogelijk kan zijn dat voor ontwikkelingen of een cumulatie van ontwikkelingen nog een mer-beoordeling op zijn plaats is. Een plan-mer en milieueffectrapport is volgens de Omgevingswet aan de orde als het Omgevingsplan kaderstellend is voor projecten uit bijlage V van het Omgevingsbesluit of als er sprake kan zijn van aanzienlijke milieueffecten als gevolg van de voorgenomen ontwikkelingen.
De drempel hiervoor lag voor stedelijke vernieuwing op 2000 woningen/100 ha, maar deze categorie is losgelaten en is mede afhankelijk van het gebied (de omgeving waarin de ontwikkeling plaats vindt) en eventuele cumulatie met andere ontwikkelingen. Aangezien de verschillende deelontwikkelingen dit woningaantal niet overschrijden en het gebied al te kenmerken valt als een gemengd gebied met hoge dynamiek wordt geconcludeerd dat een mer-beoordeling nu niet aan de orde is, maar dit kan opnieuw worden afgewogen als ontwikkelingen concreter worden.
Paragraaf 2.5 Opgaven
Heerenveen is in ontwikkeling. Er is een woningvraag, de wensen en eisen voor werklocaties veranderen en er liggen grote vraagstukken in de openbare ruimte. Met deze Gebiedsvisie werken we in het fysieke domein aan deze opgaven.
Woningbouw
Er ligt een woningbouwopgave in Heerenveen die zich mede door demografische ontwikkelingen voor een groot deel richt op realisatie van woningen voor senioren en starters. Ook is er een toenemende vraag naar woonzorgconcepten. In totaal ligt er een ambitie om voor 2030 2.500 woningen te realiseren. Gezien de centrale ligging van het Sportieve Hart van Heerenveen is het wenselijk een substantiële bijdrage te leveren aan de Heerenveense woningvraag. Uitgangspunt hierbij is dat het aandeel sociale huur van de totale woningvoorraad - circa één derde - op peil blijft. Ook zal bij nieuwe ontwikkelingen circa een derde in het betaalbare (koop)segment moeten worden gerealiseerd. Aspecten als bereikbaarheid, karakter van de omgeving en positie binnen Heerenveen bepalen het aantal te realiseren woningen per deellocatie.
Landschap en water
Landschap, natuur en biodiversiteit - In lijn met het concept Tuinstad Heerenveen is het van belang dat het landschap het fundament wordt van het raamwerk waarbinnen deelontwikkelingen worden gerealiseerd. Op verschillende plekken in het Sportieve Hart van Heerenveen zijn robuuste groenstructuren aanwezig die zorgvuldig ingepast moeten worden. Bij ontwikkeling zal een balans worden gevonden tussen ruimte voor ontwikkeling en inpassing/ versterking van groen. Naast de positieve impact op de leefkwaliteit, draagt een robuuste groenstructuur ook bij aan een hoogwaardige biodiversiteit en een positieve beleving van de openbare ruimte; een fijne plek om te zijn.
Klimaatbestendigheid - Opvangen en bufferen van hemelwater en tegengaan van hittestress zijn belangrijk in het creëren van een klimaatbestendig leefgebied. Met name in en rond Sportstad liggen vanwege het stenige karakter opgaven om hitte tegen te gaan. Het vergroenen is dan ook een belangrijke opgave. Bomen leveren hier een belangrijke bijdrage in omdat ze water opnemen. Ook is er in het hele Sportieve Hart van Heerenveen op termijn plaatselijk wateroverlast te verwachten. Bij ontwikkelingen zal dan ook ruimte moeten worden gereserveerd voor het opvangen, tijdelijk bufferen en afvoeren van hemelwater.
Basiskwaliteit natuur - Bij de ontwikkeling van het Sportieve Hart van Heerenveen streven we naar een Basiskwaliteit natuur. Dat doen we door te onderzoeken of we voor een aantal planten- en dierensoorten het Sportieve Hart van Heerenveen zó kunnen inrichten, dat ze als soort kunnen overleven. Als we dat goed doen, zorgen we voor omstandigheden waar deze én andere soorten bij gebaat zijn. Zo stoppen we de achteruitgang van biodiversiteit. De soorten selecteren we op basis van een ecologisch onderzoek in de huidige A32-zone. Welke condities en soorten zijn aanwezig? Op basis van dit onderzoek selecteren we een aantal aanwezige en mogelijke soorten. Bij deze soorten kijken we op of we op basis van de zes v’s (verblijfplaatsen, voedsel, verbinding, variatie, veiligheid en verzorging) het gebied goed kunnen inrichten. We benutten daarbij de uitwerking welke voor een aantal zogenaamde gidssoorten gemaakt zijn, zoals voor de huismus, de egel en de bittervoorn. Per soort is aangegeven wat ze nodig hebben. Dit passen we toe in de openbare ruimte of als onderdeel van de uitwerking van wat we van bouwers vragen. Dat vraagt geen grote, maar gerichte aanpassingen. Bijvoorbeeld een egelpoort in een schutting en een uitklimvoorziening langs beschoeide oevers.
Sport
Hepkema’s Park - Dit gebied wordt vandaag de dag gewaardeerd door wandelaars, de omliggende scholen en de schapenherder. In het Hepkema’s Park zijn ook verschillende sportvoorzieningen aanwezig. Vanuit de Feanster Rugby Club is de wens uitgesproken voor uitbreiding op de huidige locatie. Vanwege waardevol groen direct rond de huidige velden is er slechts beperkt ruimte. Daarom wordt in de basis uitgegaan van behoud van de sportvelden. Mocht op termijn de vereniging elders plek vinden, dan zal de huidige locatie vrijkomen voor ontwikkeling. De Disc Golf course is een gewaardeerde functie in het Hepkema’s Park. Het is dan ook wenselijk deze functie, in gewijzigde opzet, in te passen binnen de ontwikkeling. Gezien het karakter van het Hepkema’s Park en de gemeentebrede vraag van sportverenigingen is het tot slot wenselijk om ruimte te reserveren voor aanvullende buiten(sport) in het Hepkema’s Park, inclusief een multifunctioneel te gebruiken complex voor (toekomstige) verenigingen.
Economie
Met de aanwezigheid van werklocaties in en rond Sportstad heeft het Sportieve Hart van Heerenveen een belangrijke economische positie in de regio. Uitgangspunt is dat dit economische profiel wordt versterkt. Ondanks dat er geen behoefte is aan grootschalige nieuwe kantoorlocaties, is er wel een vraag voor kantoren op goed bereikbare locaties. Dit biedt kansen voor Sportstad, en specifiek voor de bedrijvenlocatie aan de Opslach.
Ondanks dat dit gebied geen leegstand kent, sluit de huidige uitstraling niet aan op de ambities van het gehele Sportstad gebied. Het is dan ook denkbaar dat op deze plek - waar vanwege geluid vanaf de A32 woningbouw niet logisch is - nieuwe kantoren of andere werkfuncties worden gerealiseerd die bij voorkeur een bijdrage leveren aan versterking van het profiel van Sportstad.
Ook op andere ontwikkellocaties in Sportstad kunnen economische functies worden gerealiseerd. Zo wordt direct ten noorden van het Abe Lenstra Stadion al nagedacht over sportgerelateerde retail en kunnen ook op de ontwikkellocatie aan de zuidzijde van de Abe Lenstra Stadion economische functies worden gerealiseerd. Tot slot zal de in ontwikkeling zijnde Van der Valk - welke een belangrijke bijdrage levert aan de economische versterking van het gebied - aan de Oranje Nassaulaan, aan de andere zijde van de A32, worden ingepast binnen deze Gebiedsvisie.
Onderwijs
In het Sportieve Hart van Heerenveen zijn verschillende onderwijslocaties aanwezig. Vanwege gemeentebrede wijzigingen in het onderwijshuisvesting zal op termijn de schoollocatie aan de Buitenbaan vervallen zodat ruimte ontstaat voor woningbouw.
Op een andere plek in het Sportieve Hart van Heerenveen zal juist de onderwijsfunctie worden versterkt. In Sportstad, waar Firda is gevestigd, is het denkbaar dat de bestaande onderwijsfunctie wordt uitgebreid en de openbare ruimte een campus-achtige inrichting krijgt.
Cultuurhistorie
Er zijn in het Sportieve Hart van Heerenveen met de de aanwezigheid van Hepkema’s bos, de voormalige buitenijsbaan Oud Thialf, huize Voormeer en de lintstructuur langs de (voormalige) Schoterlandse Compagnonsvaart verschillende cultuurhistorische elementen aanwezig. Aangezien deze voor een deel identiteitsbepalend zijn, is het van belang dat cultureel erfgoed zorgvuldig wordt ingepast.
Mobiliteit
Langzaam verkeer - In de basis ligt er een redelijk tot goed netwerk voor langzaam verkeer, maar op een aantal strategisch plekken ontbreken er verbindingen. Versterking van het netwerk is dan ook onderdeel van de ontwikkelopgave van het Sportieve Hart van Heerenveen.
Openbaar vervoer - Met de aanwezigheid van verschillende bushaltes en het station op fietsafstand is de bereikbaarheid per openbaar vervoer op orde. Er zal dan ook hoofdzakelijk ingezet worden het verbeteren van routes van en naar openbaar vervoershaltes.
Gemotoriseerd verkeer - De bereikbaarheid is een kernkwaliteit van het Sportieve Hart van Heerenveen. Het is dan ook van belang de bereikbaarheid in de toekomst, ondanks de aanvullende mobiliteitsvraag die voortvloeit uit ontwikkelingen, te borgen. Belangrijk uitgangspunt is dat de mobiliteitsvraag een zo beperkt als mogelijke impact heeft op het bestaande, lokale wegennetwerk.
Openbaar parkeren - In en rond Sportstad en direct ten noorden van de K.R. Poststraat zijn publieke parkeervoorzieningen gelegen welke voornamelijk worden gebruikt door bezoekers van Sportstad en het centrum. Een deel van deze parkeervoorzieningen zijn tijdelijke invullingen van toekomstige ontwikkellocaties. Aangezien de parkeerdruk door nieuwe ontwikkelingen toe zal nemen, zullen parkeervoorzieningen die verdwijnen gecompenseerd worden. Ook liggen er kansen om de bestaande parkeervoorziening P6, aan de oostkant van de A32, te verbeteren. Deze parkeervoorziening wordt door de matige bereikbaarheid en inrichting niet optimaal gebruikt.
Hoofdstuk 3 Raamwerk
Paragraaf 3.1 Wat is hiervoor nodig?
In lijn met het concept Tuinstad Heerenveen is het landschap de basis van het raamwerk van het Sportieve Hart van Heerenveen. Deze wordt versterkt met een fijnmazig mobiliteitsnetwerk. Het raamwerk vormt het fundament voor verstedelijking met ruimte voor wonen, werken en sport.
Deellocaties worden ontwikkeld op basis van kernkwaliteiten. Zo zullen goed bereikbare locaties die in de nabijheid van het centrum liggen worden ontwikkeld met de hoogste dichtheid. Andere locaties bieden ruimte voor luwere woonmilieus met volop ruimte voor groen.
Paragraaf 3.2 Landschap
Om een bijdrage te leveren aan versterking van het tuinstedelijke karakter van Heerenveen zal het landschappelijke raamwerk de samenbindende structuur zijn waarbinnen verstedelijking van het Sportieve Hart van Heerenveen plaats kan vinden.

Hoofdstructuur
Het groen geeft karakter aan het Sportieve Hart van Heerenveen, en zorgt voor een aangename leefkwaliteit voor huidige en nieuwe bewoners. Bestaande kwalitatieve groenstructuren zoals het Hepkema’s Bos en de groene bufferzones langs de A32 worden verbonden door bestaande en nieuwe verbindingen, waardoor een samenhangend groen netwerk ontstaat met unieke plekken die elkaar versterken. Naast de recreatieve functie draagt het groene fundament bij aan het verminderen van hittestress en het vergroten van biodiversiteit.
Groengebieden van formaat
Door het hele gebied zetten we in op vertsterking van bestaande robuuste groene gebieden. Zo is langs de Weinmakker in de noordzijde van het Sportieve Hart van Heerenveen het groen in de loop der jaren tot wasdom gekomen. Samen met historische structuren als het Hepkema’s bos, het voormalige tracé van de Pastorielaan en voormalige buitenijsbaan Oud Thialf vormt dit groen een nieuw stadspark van formaat: het Hepkema’s park. Bestaande routes worden aangevuld met nieuwe verbindingen en groene uitlopers naar omliggende buurten waardoor een samenhangend recreatief netwerk ontstaat. Dit netwerk heeft ook een belangrijke rol in het versterken van de biodiversiteit in het gebied. Zo zal ondanks de verstedelijking die in dit gebied ook plaats zal vinden, het totale samenhangende landschappelijke systeem versterkt worden.
Aan de oostzijde van de A32 wordt een tweede groengebied van formaat versterkt. Deze zone vormt nu vooral een buffer richting de A32, maar ook hier is het groen in de loop der jaren tot volledige wasdom gekomen. Door het continueren van stevigere groenstructuren op en rond de parkeervoorziening P6 en de rand van Skoatterwâld, plus het versterken van het bestaande langzaam verkeersnetwerk, ontstaat ook in dit deel van het Sportieve Hart van Heerenveen een aantrekkelijke landschappelijke structuur met recreatieve waarden.
Groene lopers
De groengebieden van formaat worden met elkaar – en met hun omgeving – verbonden door een fijnmazig netwerk van groene lopers. Zo wordt het Hepkema’s Park door royale groene lopers verbonden met omliggende woonbuurten. Aan de zuidkant bouwen we voort op de bestaande groenstructuur van Skoatterwâld die bestaat uit sterke groene verbindingen in noord-zuid en oost-west richting. De structuren verbinden deelgebieden en hebben een belangrijke rol in het versterken van het tuinstedelijke karakter van Heerenveen. Het netwerk zorgt ook voor een kwaliteitsimpuls voor de leefomgeving van omwonenden. Tot slot hebben de Groene lopers, mede door de ruimte voor het tijdelijk bufferen van water, een belangrijke rol in het klimaatbestendig maken van de deelgebieden. Elke route krijgt een unieke beplanting die zorgt voor een herkenbare identiteit en versterking van de biodiversiteit.
Watersysteem
Net als het groen vormt het water een onlosmakelijk onderdeel van de toekomstige identiteit van het Sportieve Hart van Heerenveen. Op drie schalen versterken we het watersysteem in het raamwerk: in de Groengebieden van formaat, de Groene Lopers en in de nieuwe woonomgevingen.
Deze drie schaalniveaus staan altijd met elkaar in verbinding. In de Groengebieden van formaat worden waar mogelijk watergangen verbreed waardoor hemelwater langer vast gehouden kan worden tijdens piekmomenten. Ook wordt aan de noord-westzijde van de Kop van Skoatterwâld, langs de Domela Nieuwenhuisweg, een aantal waterbufferplekken in het landschappelijke raamwerk geïntegreerd. Ook op schaal van de Groene Lopers wordt waar mogelijk ruimte voor water toegevoegd in de profielen. Tot slot krijgt op de schaal van de nieuwe woonomgevingen waterinfiltratie en waterbuffering een prominentere rol in het ontwerp van de openbare ruimte. Concreet betekent dit dat in ontwikkellocaties het bestaande wateroppervlakte wordt vergroot en dat er voor elke extra vierkante meter verharding die er wordt toegevoegd aan een ontwikkeling, er 10% extra oppervlaktewater bijkomt.

Ingrepen op hoofdstructuur
-
a.
Bestaande groenstructuren, historisch erfgoed en recreatief netwerk worden verbonden tot een stadspark met ecologische waarden: het Hepkema’s Park.
-
b.
Verknoping Hepkema’s Park met woonbuurten door inrichting Groene Lopers: Schans, Kastanjelaan, Van Maasdijkstraat, Pastorielaan en Saturnus.
-
c.
Afleesbaar maken van historische structuur Pastorielaan.
-
d.
Herprofileren en vergroenen Groene Lopers in oost-west richting: K.R. Poststraat, Heideburen, verbinding centrum-Noordplot, Atalantastraat en Het Palet.
-
e.
Herprofileren en Groene Lopers in noord-zuid richting: Europalaan, Karst de Jongweg, Abe Lenstra Boulevard, as Sportpark Skoatterwâld en bosstrook Skoatterwâld.
-
f.
Versterken groengebied van formaat langs A32 door aanplant bomen en versterken recreatief netwerk.
Paragraaf 3.3 Stedelijke ontwikkeling
Het Sportieve Hart van Heerenveen levert een belangrijke bijdrage aan de lokale woningbouwopgave en versterking van het economisch profiel. Diversiteit biedt kansen voor ontwikkelingen die een aanvulling zijn voor Heerenveen.

Binnenstedelijke verdichting
De ontwikkeling van het Sportieve Hart van Heerenveen biedt een unieke kans voor verdichting binnen de bestaande kern. Het biedt kansen voor het benutten van de goede bereikbaarheid via de A32, het aanwezige fijnmazige langzaam verkeersnetwerk, het busnetwerk en de nabijheid van Station Heerenveen. Ook zorgt binnenstedelijke verdichting voor draagvlak van functies in het centrum en aanwezige sportverenigingen.
In lijn met het concept Tuinstad Heerenveen vindt de ontwikkeling plaats met respect voor het bestaande groen dat waar mogelijk ook nog eens versterkt wordt. Dit groen vormt het decor waarbinnen ontwikkelingen gerealiseerd worden.
Dichtheid volgt uit strategische ligging
Elke ontwikkellocatie heeft eigen kwaliteiten die volgen uit de ligging binnen Heerenveen, bereikbaarheid en contextuele kenmerken. Deze kenmerken zijn leidend voor de keuze van type programma, dichtheid, beoogde doelgroepen en ruimtelijke uitstraling per ontwikkellocatie.
De ontwikkellocaties die een goede bereikbaarheid combineren met nabijheid van het centrum (Noordplot en Hepkema’s Park Zuid) worden ontwikkeld met de hoogste dichtheid. Deze locaties bieden meer ruimte voor appartementen en doelgroepen die van levendigheid houden. Om de beoogde dichtheid te combineren met een aantrekkelijke openbare ruimte kennen de woningen op deze locaties een andere verhouding tussen openbaar en privé dan de meeste woningen in Heerenveen. Woningen krijgen geen traditionele tuinen, maar collectieve tuinen, dakterrassen en balkons.
Locaties die minder centraal zijn gelegen worden ontwikkeld met een lagere dichtheid en bieden meer ruimte voor grondgebonden woningen en doelgroepen die meer van rust houden. Zo heeft het robuuste landschap in het Hepkema’s Park de potentie om uit te groeien tot lommerrijke, rustige woonbuurt.
Het groen aan de oostzijde van de A32 is direct gekoppeld aan het buitengebied en Skoatterwâld. Meer suburbane luwe woonbuurten met meer grondgebonden woningen voor bijvoorbeeld gezinnen zijn daar dan ook passender. Appartementen worden hier alleen gerealiseerd als die op een vanzelfsprekende manier voortvloeien uit de stedenbouwkundige context. Een voorbeeld hiervan is de ontwikkeling van het appartementencomplex aan de Luytkemeer welke het voorzieningencluster in Skoatterwâld accentueert.
Versterking profiel Sportstad
Sportstad is een belangrijke economische drager van Het Sportieve Hart van Heerenveen en heeft een belangrijke maatschappelijke meerwaarde voor de gehele gemeente. Het is dan ook wenselijk dit profiel verder te versterken. In Sportstad ligt op een aantal plekken ontwikkellocaties die een bijdrage kunnen leveren aan versterking van het profiel van Sportstad. Zo is direct ten noorden van het Abe Lenstra Stadion ruimte voor sportgeraleerde retail in combinatie met woningbouw en een evenementenruimte. Ook biedt de ontwikkellocatie aan de zuidzijde van de Abe Lenstra Boulevard ruimte voor een multifunctionele ontwikkeling die het economisch profiel van Sportstad versterkt. Verder is het wenselijk het bedrijventerrein aan de Opslach geleidelijk te transformeren naar een toekomstbestendige werklocatie. Ondanks dat er in Heerenveen geen behoefte is aan grootschalige nieuwe kantoorlocaties, is er wel een vraag naar kantoren op goed bereikbare locaties. Dit biedt kansen voor de Opslach om dit gebied een uitstraling te geven die passend is bij de ambities van Sportstad in het geheel.
Inpassing Van der Valk
In 2019 heeft de gemeenteraad gekozen voor de vestiging van een Van der Valk Hotel aan de Oranje Nassaulaan en de oprit naar de A32. Het hotel wordt voorzien van een congrescentrum met vergaderzalen, een restaurant, bar en terras. De realisatie van de Van der Valk past binnen het leidmotief van deze Gebiedsvisie. Het is goed verbonden voor langzaam verkeer met zowel Sportstad als het centrum. Ook heeft het programmatisch gezien een toegevoegde waarde voor Sportstad en benut het de potentie van de goede bereikbaarheid en zichtbaarheid van de plek.

Ingrepen op hoofdstructuur
-
a.
De ontwikkellocaties in het noordelijk deel van Hepkema’s park worden ontwikkeld als luwe, lommerrijke woonmilieus met grondgebonden woningen. De woningen vormen een front aan het robuuste groen.
-
b.
Hepkema’s Park zuid biedt ruimte voor appartementen en grondgebonden woningen in een groenstedelijke woonmilieu.
-
c.
De Noordplot wordt ontwikkeld als levendige en stedelijke woonbuurt met ruimte voor appartementen en stadswoningen die een thuis bieden aan bewoners die van reuring houden.
-
d.
De Opslach wordt geleidelijk getransformeerd tot toekomstbestendige werklocatie met kantoren en woon- werkunits.
-
e.
Het Stadionplot-noord biedt ruimte voor sportgerelateerde retail eventueel aangevuld met woningbouw en een evenemententerrein waar verschillende evenementen op de schaal van Heerenveen kunnen worden georganiseerd.
-
f.
Aan de Abe Lenstra Boulevard-zuid is ruimte voor een multifunctionele ontwikkeling die het karakter van Sportstad versterkt en zorgt voor levendigheid.
-
g.
Het Stadionplot-zuid biedt ruimte voor programmatische verdichting die het karakter van Sportstad versterkt en het gebied aan de zuidzijde een herkenbare uitstraling geeft.
-
h.
De ontwikkelingen aan de oostzijde van de A32 geven een gezicht aan Skoatterwâld. Ze vormen een front aan het groen langs de A32. De locaties bieden voornamelijk ruimte voor grondgebonden woningen voor gezinnen, aangevuld met appartementen die als stedenbouwkundige accenten fungeren.
-
i.
De locatie aan de Luytkemeer wordt ontwikkeld met een appartementencomplex dat het voorzieningencluster in Skoatterwâld accentueert.
-
j.
De in ontwikkeling zijnde Van der Valk vormt een uithangbord van Heerenveen aan de A32.
Paragraaf 3.4 Mobiliteit
Subparagraaf 3.3.1 Inleiding
Het Sportieve Hart van Heerenveen staat voor een complexe uitdaging: verstedelijking moet worden gecombineerd met bereikbaarheid én een aantrekkelijke openbare ruimte voor een goede leefkwaliteit voor bestaande en nieuwe bewoners.

Balans tussen bereikbaarheid en leefkwaliteit
De aanwezigheid van functies met een bovenlokaal verzorgingsgebied in onder meer Sportstad, de nabijheid van het centrum en werklocaties aan de Opslach en de K.R. Poststraat zorgen vandaag de dag voor een grote druk op het mobiliteitsnetwerk in en rond het Sportieve Hart van Heerenveen. Met de verschillende deelontwikkelingen zal deze druk alleen maar toenemen.
Het is dan ook van belang om het bestaande mobiliteitsnetwerk te versterken. Om ook ruimte te houden voor een leefbare openbare ruimte is het van belang dat een balans wordt gevonden tussen bereikbaarheid en een aantrekkelijke leefomgeving. Dit doen we in de basis door het bestaande netwerk voor zowel gemotoriseerd verkeer als langzaam verkeer te versterken. Ontbrekende schakels worden gerealiseerd en profielen worden vergroend.
Ingrepen en voorstellen zijn onderdeel van een bredere mobiliteitsaanpak binnen de gemeente Heerenveen. Zo wordt er gewerkt aan een nieuwe mobiliteitsvisie die ook kaders zal geven die van invloed zijn op de verdere ontwikkeling van het Sportieve Hart van Heerenveen.
Duurzame mobiliteitstransitie
Bij elke ontwikkeling zetten we in op het aanbieden van goede alternatieven voor de auto. Dit heeft als doel het totaal aantal autoverplaatsingen niet recht evenredig te laten toenemen met de extra woningen in het gebied. Lopen, fietsen, openbaar vervoer en deelmobiliteit zijn volwaardige keuzemogelijkheden van bewoners en bezoekers van het Sportieve Hart van Heerenveen. Een compact, fijnmazig en aantrekkelijk netwerk is daarmee een eis voor het mobiliteitsnetwerk.
Openbaar vervoer
Met verschillende bushaltes en het station op fietsafstand is het openbaar vervoersnetwerk in het Sportieve Hart van Heerenveen op orde. Er zal dan ook vooral worden gericht op goede routes van en naar OV-haltes en het verbeteren van bestaande haltes.
Onderdelen van het mobiliteitsraamwerk
Hieronder worden opeenvolgend belangrijkste ambities voor het fietsnetwerk, het autonetwerk en de parkeeropgave uiteengezet.
Subparagraaf 3.3.2 Langzaam verkeer

Ruim baan voor de fiets
Fietsers en voetgangers krijgen volop de ruimte in en rond het Sportieve Hart van Heerenveen. Er is nu al een redelijk tot goed langzaam verkeersnetwerk aanwezig. Zo is het gebied door de verschillende ondertunnelingen van de A32 in oost-west richting fijnmazig verbonden met haar omgeving. Ook is er aan de oostzijde van de Kop van Skoatterwâld al een continue noord-zuid route aanwezig.
Maar, er ontbreken ook een aantal schakels binnen het langzaam verkeersnetwerk. Zo ontbreekt het aan een goede continue route tussen Sportstad en het scholencluster aan het Fedde Schureplein en ligt er een opgave om Sportstad beter te verbinden met het centrum.
Noord-zuid as
Het bestaande fietspad langs de Pastorielaan, welke wordt uitgebreid met een voetpad, vormt de basis voor een nieuwe continue noord-zuid fietsroute. In noordelijke richting zal het fietspad door het Hepkema’s Park worden gecontinueerd tot het scholencluster aan het Fedde Schurerplein.
In zuidelijke richting wordt de route via de bestaande rotonde over de K.R. Poststraat met de Zonnebloemstraat verbonden. Hiermee komt de huidige, minder veilige fietsoversteek over de K.R. Poststraat - tussen de Zonnebloemstraat en de Stadionweg - te vervallen.
De langzaam verkeerroute wordt vervolgens in zuidelijke richting vanaf de Zonnebloemstraat verbonden met de Narcislaan en Heideburen. Via een nieuwe brug over de Schoterlandse Compagnonsvaart wordt de route gecontinueerd via een nieuw fietspad over de Abe Lenstra Boulevard. Deze fietsroute loopt over de bestaande weg welke als fiespad wordt ingericht. Auto’s kunnen in de plaats daarvan de daaraan parallel gelegen rijbaan tussen de parkeerplaatsen gebruiken.
Verbinding centrum - Sportstad
De verbinding voor langzaam verkeer tussen het centrum en Sportstad zal in de toekomst verder worden versterkt. Het Burgemeester Kuperusplein zal via de P.J. Troelstralaan en Koolwitjestraat verbonden worden met een nieuwe langzaam verkeersroute. Deze route loopt via een nieuwe brug over het water dat onderdeel is van de groenstructuur langs de Karst de Jongweg naar de Noordplot en het Abe Lenstra Stadion.
Oost-west netwerk
Ondanks dat het oost-west georiënteerde netwerk grotendeels op orde is, liggen er op twee plekken kansen voor verbetering van dit netwerk. Zo zal bij de ontwikkeling van de Noordplot aan de noordzijde een nieuwe fietsroute worden ingepast die het fietspad over de Abe Lenstra Boulevard verbindt met Het Meer.
Ook in de Kop van Skoatterwâld verbeteren we het oost-west netwerk met een nieuwe vloeiende route tussen de Sportweg en de Domela Nieuwenhuisweg.
Ingrepen op hoofdstructuur
-
a.
Nieuwe verbinding door het Hepkema’s Park tussen Pastorielaan en Fedde Schurerplein.
-
b.
Het fietspad langs de Pastorielaan wordt via de rotonde ten hoogte van de K.R. Poststraat - Zonnebloemstraat verbonden met de Narcislaan richting Heideburen.
-
c.
Vervallen huidige fietsoversteek over de K.R. Poststraat tussen de Zonnebloemstraat en de Stadionweg.
-
d.
Nieuwe fietsbrug over de Schoterlandse Compagnonsvaart als schakel richting nieuwe fietsroute langs Abe Lenstra Boulevard.
-
e.
Nieuwe verbinding tussen de Noordplot en Het Meer.
-
f.
Nieuwe verbinding Burgemeester Kuperusplein - Noordplot.
-
g.
Nieuwe fietsroute over Abe Lenstra Boulevard.
-
h.
Nieuwe vloeiende verbinding vanaf de Sportweg met de Domela Nieuwenhuisweg in oostelijke richting.
Subparagraaf 3.3.3 Gemotoriseerd verkeer

Minimale impact op het lokale netwerk
Het Sportieve Hart van Heerenveen is op regionaal en lokaal schaalniveau verbonden via een sterk autonetwerk. Op de schaal van Heerenveen verbinden de K.R. Poststraat, Het Meer, de Atalantastraat, en de Oranje Nassaulaan het gebied in oost-west richting met haar omgeving. Parallel aan beide zijden van de A32 liggen er in noord-zuid richting wegen (met name Weinmakker en de Stadionweg) die het Sportieve Hart van Heerenveen ontsluiten.
Ondanks de toenemende mobiliteitsdruk door ontwikkelingen is behoud van bestaande bereikbaarheid van bestaande en nieuwe functies in en rond het Sportieve Hart van Heerenveen meer dan wenselijk. Uitgangspunt is daarom het bestaande wegennet zo minimaal als mogelijk extra te belasten. We streven er daarom naar om autoverkeer voortkomend uit nieuwe ontwikkelingen zoveel als mogelijk via parallelstructuren langs de A32 af te vangen.
Bereikbaarheid ontwikkellocaties Hepkema’s Park
Ontwikkellocaties in het Hepkema’s Park worden waar mogelijk ontsloten via de Weinmakker. Waar nodig zal op termijn extra snelheid remmende maatregelen worden getroffen om te voorkomen dat er te hard wordt gereden op de Weinmakker. De straten in het bestaande woongebied van omliggende buurten worden daardoor niet extra belast. Uitzondering hierop is de ontwikkellocatie Buitenbaan noord. Deze wordt via de Buitenbaan ontsloten om zo te voorkomen dat de groenstructuur in het Hepkema’s park op een centrale plek wordt doorbroken door autoverkeer. Aangezien de huidige functie op deze locatie komt te vervallen zal de druk op het wegennetwerk door de bestaande buurten niet substantieel toenemen door de nieuwe ontwikkeling.
Bereikbaarheid ontwikkellocaties Sportstad
Ontwikkellocaties in Sportstad zijn direct gelegen aan bestaande wegen zoals de Opslach en de Abe Lenstra Boulevard. Deze straten zijn via de parallel aan de A32 gelegen Stadionweg verbonden met het bovenlokale wegennetwerk.
Bereikbaarheid ontwikkellocaties Kop van Skoatterwâld
Net als in Sportstad zijn de ontwikkellocaties in de Kop van Skoatterwâld direct gelegen aan bestaande wegen. Zo kunnen de ontwikkellocaties aan de Domela Nieuwenhuisweg, de Vitus Bruinsmaweg en Luytkemeer direct worden ontsloten vanaf de wegen waaraan ze gelegen zijn. Zo zullen ook deze ontwikkelingen de verkeersdruk in bestaande buurten niet (substantieel) vergroten.
Ingrepen op hoofdstructuur
-
a.
Ontwikkellocatie Buitenbaan noord wordt ontsloten via de Buitenbaan.
-
b.
Ontwikkellocaties Hepkema’s park zuid en de Pastorielaan worden ontsloten via de Weinmakker. Ook een mogelijke toekomstige ontwikkeling van de Feanster Rugbyclub zal worden ontsloten via de Weinmakker.
-
c.
De Noordplot en de Opslach worden ontsloten via De Opslach.
-
d.
De ontwikkellocaties aan de Domela Nieuwenhuisweg, de Vitus Bruinsmaweg en Luytkemeer worden ontsloten vanaf de wegen waaraan ze gelegen zijn.
Subparagraaf 3.3.4 Parkeren

Parkeren
Vanwege publiekstrekkers in Sportstad en de nabijheid van het centrum ligt er een grote parkeerdruk in het Sportieve Hart van Heerenveen. Deze druk zal door de de bouw van nieuwe woningen en andere ontwikkelingen in het Sportieve Hart - maar ook die in het centrum - verder vergroten. In een volgende fase zal het parkeerbeleid per gebied nader worden uitgewerkt, waarbij een aantal uitgangspunten zal worden gehanteerd die hieropvolgend worden beschreven. Een belangrijke aanvulling daarop is de omgang met het parkeren tijdens evenementen, dit zal ook in een verolgfase nader worden uitgewerkt.
Publieke parkeervoorzieningen
In het Sportieve Hart van Heerenveen zijn verschillende publieke parkeervoorzieningen gelegen die hoofdzakelijk gebruikt worden door bezoekers van Sportstad en het centrum. Een deel van de parkeervoorzieningen (P3 en P9, zie afbeelding hierboven) liggen op ontwikkellocaties en komen te vervallen. Ter compensatie van P9 wordt direct ten zuiden van deze parkeervoorziening een nieuw, groter parkeerterrein gerealiseerd welke gebruikt kan worden door bezoekers van het centrum en bewoners van de nieuwe woningen rond dit parkeerterrein.
Ook worden de parkeervoorzieningen P2 en P6 verbeterd. Zo wordt P2 opnieuw ingericht waardoor een kwaliteitsverbetering ontstaat en zal P6 gratis toegankelijk worden, opnieuw ingericht worden en voorzien worden van een nieuwe ontsluitingsroute. Uitgangspunt bij de nadere uitwerking van het parkeerbeleid is dat P8 in principe wordt aangewezen voor maatschappelijke doeleinden - tenzij uit een nog uit te voeren parkeeronderzoek blijkt dat P8 (al dan niet deels) nodig is om in de parkeerbehoefte te voorzien. Indien slechts een deel van P8 nodig is om in de parkeerbehoefte te voorzien, zal alleen dat deel dat nodig is hiertoe aangewezen worden.
Uitbreiding parkeerregime
Ontwikkelingen zullen de parkeerdruk op Sportstad verder doen toenemen. Er ligt een kans voor het beter benutten van P6, welke nu hoofdzakelijk tijdens evenementen in het Abe Lenstra Stadion wordt gebruikt. Deze kan worden gebruikt door bezoekers van Sportstad en van VV Heerenveen.
Naast kwaliteitsimpulsen zoals in de vorige paragraaf beschreven, zal in Sportstad het bestaande parkeerregime, welke loopt tot de Karst de Jongweg, worden uitgebreid tot aan de A32. Hierdoor worden in lijn met de Parkeervisie 2017 bezoekers en gebruikers van Sportstad gestimuleerd om de gratis parkeervoorziening P6 te gebruiken.
Passende parkeernormen
Het huidige gemeentelijke parkeerbeleid is niet afgestemd op nieuwe ontwikkelingen die voortvloeien uit deze Gebiedsvisie. Het is dan ook wenselijk om bij nieuwe ontwikkelingen te kiezen voor een passende normering welke logisch volgt vanuit de bereikbaarheid en de ligging van de locatie binnen Heerenveen. Concreet betekent dit dat bij ontwikkeling Noordplot uit wordt gegaan van de norm van Centrum Heerenveen zoals opgenomen in het Beleidskader Nota Parkeernormen Gemeente Heerenveen. Bij de ontwikkeling van deellocaties in Hepkema’s Park zal uit worden gegaan van de norm Schil Heerenveen.
Nieuwe ontwikkelingen
Bij de ontwikkeling van deelgebieden wordt het parkeren voor toekomstige bewoners en bezoekers in de basis binnen de ontwikkeling zelf opgelost. Uitzondering hierop is de ontwikkeling van de Noordplot. Gezien de beoogde dichtheid in combinatie met een passende leefkwaliteit is de ruimtedruk op deze locatie groot. Waar het bewonersparkeren binnen de ontwikkeling zal worden opgelost, kunnen bezoekers in de omliggende openbare ruimte parkeren. Dit zal met name gebeuren aan de Abe Lenstra Boulevard.
De parkeerplaatsen daar worden voornamelijk overdag gebruikt door bezoekers van het centrum en Sportstad. In de avonduren kunnen deze parkeerplaatsen mede worden gebruikt voor bezoekers van bewoners. Het parkeren wordt op een dusdanige manier ingepast dat deze zo minimaal als mogelijk zichtbaar is vanaf de openbare ruimte. Dit bijvoorbeeld door het parkeren aan de achterzijde van de kavels op te lossen. Dit zorgt ervoor dat er in de straten zelf meer ruimte is voor groen en ontmoetingen.
Paragraaf 3.5 Sport en gezondheid
Het Sportieve Hart van Heerenveen wordt gekenmerkt door een op nationaal niveau unieke combinatie van top- en breedtesport. Met de ontwikkeling van de Gebiedsvisie versterken we dit unieke karakter.

Een uniek DNA
De aanwezigheid van SC Heerenveen en het Epke Zonderland Turncentrum hebben een landelijke betekenis. In Sportstad zijn er buitensportfaciliteiten te vinden zoals de onlangs geopende Pumptrack. Ook lokale verenigingen zoals de Tennisverenging Oranjewoud, Feanster Rugbyvereniging en VV Heerenveen zijn gevestigd in het Sportieve Hart van Heerenveen. Tot slot levert Sport Fryslân, dat ook gevestigd is in Sportstad, een belangrijke bijdrage bij het stimuleren van sport en beweging bij de lokale bevolking.
Met deze visie willen we dit bijzondere karakter verder versterken. Bestaande voorzieningen worden ingepast, er wordt ruimte geboden voor nieuwe ontwikkelingen en ook in de inrichting van de openbare ruimte en bij nieuwe ontwikkelingen zullen sport en beweging een centrale plek krijgen.
Hepkema’s park
Het Hepkema’s park krijgt een nog grotere betekenis voor Heerenveen dan het al heeft. De bestaande sportverenigingen Tennisvereniging Oranjewoud en de Feanster Rugbyvereniging worden in hun huidige opzet ingepast in het Hepkema’s park. Ook de Disc Golf course wordt, met enige aanpassing om zo de beoogde woningbouwontwikkeling mogelijk te maken, ingepast. Nieuwe en bestaande routes voor voetgangers en fietsers verbinden het Hepkema’s park met haar omgeving en zorgen ervoor dat het gebied nog beter te beleven is. Ter versterking van het sportieve karakter van het Hepkema’s park zal ook ruimte worden geserveerd voor aanvullende buitensportverenigingen en - activiteiten. Met name de noord- oostkant van het Hepkema’s park biedt hier kansen voor. Vanwege geluid vanaf de A32 is deze plek minder geschikt voor woningbouw en het toevoegen van functies kan het Hepkema’s park verder verlevendigen.
Sportstad
Sportstad kent een unieke clustering van sportverenigingen, sportmedische zorg en onderwijs op zowel breedte- als topsportniveau. Nieuwe ontwikkelingen in Sportstad zullen het kenmerkende DNA versterken. Zo bieden de ontwikkellocaties in Sportstad ruimte voor sportgerelateerde retail, een met een openbare sportvoorziening gecombineerd evenemententerrein, onderwijs en woningen voor doelgroepen die van levendigheid houden. Zowel het Stadionplot-noord als Stadionplot-zuid biedt ruimte voor een bebouwingsaccent dat zowel visueel als programmatisch Sportstad een herkenbare uitstraling geeft.
Ondanks het bijzondere programmatische karakter van het gebied, heeft Sportstad vandaag de dag eerder de uitstraling van een stenig bedrijventerrein dan dat van een campus. Met de ontwikkeling van het Sportieve Hart van Heerenveen hebben we de ambitie om dit gebied te vergroenen en verblijfsplekken toe te voegen.
De vergroening wordt in het Sportstad gebied gecombineerd met een herkenbare beeldkwaliteit in zowel de openbare ruimte als de bebouwing. In de toekomst zal de openbare ruimte meer ingericht worden als een campus. Sportstad wordt daarmee nog aantrekkelijker en krijgt de uitstraling van een uniek gebied waar op verschillende niveaus wordt gesport.
Sport en gezondheid bij woningbouw
Om het sportieve en gezonde karakter nog verder te versterken zal ook bij de toekomstige woningbouwontwikkelingen sport en gezondheid centraal staan. Bij elke ontwikkeling zal ruimte en budget worden gereserveerd voor sportvoorzieningen in de openbare ruimte. Te denken valt aan hardlooproutes, sport-courts en outdoor fitnesstoestellen.

Ingrepen op hoofdstructuur
-
a.
Inpassing bestaande sportverenigingen Hepkema’s park.
-
b.
Ruimtereservering aanvullende buitensportverenigingen en - activiteiten in Hepkema’s park.
-
c.
Stadionplot-noord met sportgerelateerde retail en een met een openbare sportvoorziening gecombineerd evenemententerrein.
-
d.
Stadionplot-zuid biedt ruimte voor bebouwing die Sportstad aan de zuidzijde zowel visueel als programmatisch een herkenbare uitstraling geeft.
-
e.
Ladderstructuur die de verschillende sportfuncties in Sportstad en Sportpark Skoatterwâld met elkaar verbinden.
Hoofdstuk 4 Uitwerking deelgebieden
Paragraaf 4.1 Hoe ziet dat eruit?
Het raamwerk vormt het sterke fundament waarbinnen deelontwikkelingen plaats kunnen vinden. De ruimtelijke opzet is zo gekozen dat de deelontwikkelingen onafhankelijk van elkaar gerealiseerd kunnen worden Het robuuste raamwerk zorgt ervoor dat alles wel in samenhang wordt ontwikkeld.
Paragraaf 4.2 Glimp van de toekomst
Het Sportieve Hart van Heerenveen ontwikkelt zich tot een sterk samenhangend stadsdeel waar groen en programma elkaar versterken. Ook zijn ze onderling verbonden door een fijnmazig netwerk van routes.
Hoe deelontwikkelingen elkaar versterken
Waar het Sportieve Hart van Heerenveen vandaag de dag bestaat uit een aaneenschakeling van deelgebieden die ogenschijnlijk niks met elkaar van doen hebben, zullen de deelgebieden elkaar in de toekomst versterken. Zo zijn de verschillende groenstructuren afwisselend. Doordat ze verbonden zijn met een fijnmazig recreatief netwerk, ontstaat een sterk samenhangend landschappelijk netwerk dat van waarde is op de schaal van Heerenveen.
Niet alleen de verschillende groenstructuren versterken elkaar. Dit is ook het geval bij de verschillende ontwikkellocaties. Doordat elke locatie een eigen karakter heeft, waaruit potentiële doelgroepen en programma logisch volgen, levert de ontwikkeling van het Sportieve Hart van Heerenveen als totaal een grote bijdrage aan de lokale en regionale woningvraag.
Vervlechting nieuw en bestaand
Met de ontwikkeling van Het Sportieve Hart van Heerenveen zetten we nadrukkelijk in op het vervlechten van nieuwe ontwikkelingen met de bestaande context. Routes en groenstructuren lopen dan ook als haast vanzelfsprekend door.
Ook de bebouwingsstructuur van de nieuwbouw volgt logisch uit haar omgeving. Zo is de stedenbouwkundige structuur in het Hepkema’s Park te herkennen aan kenmerken die ook in de omgeving terug te vinden. De maat en schaal van de bebouwing sluiten aan op de bestaande buurten en groene perkjes op buurtniveau geven het gebied een herkenbaar karakter.
In de Noordplot is de ontwikkeling stedelijker, de structuur sluit daar juist meer aan op die van het centrum. De bouwblokken zijn groter en ook hier lopen routes vanuit het centrum logisch door. Op deze manier ontstaat een ontwikkeling die zich als vanzelfsprekend voegt in haar omgeving. Zie hiervoor ook de navolgende figuur met daarop de huidige en nieuwe bebouwingsstructuur weergegeven.

Feanster Rugby Club
Voor de locaties waar Feanster Rugby Club is gevestigd is op het moment van het opstellen van deze Gebiedsvisie nog niet bekend wat het langetermijnperspectief van deze locatie is. Daarom is voor deze locatie een mogelijk alternatief toekomstperspectief opgenomen. Bij de deelgebieden in de volgende paragrafen wordt dit nader toegelicht.
Paragraaf 4.3 Hepkema's Park
In het Hepkema’s Park versmelten verleden, heden en de toekomst op een unieke manier zodat een aantrekkelijk tuinstedelijk woonmilieu wordt gerealiseerd in een nieuw stadspark voor alle Heerenveeners.

Samenhangende structuur
Het robuuste landschappelijk raamwerk vormt de basis voor een nieuw stadspark met aantrekkelijke groene woonmilieus. De woningen aan de rand van het park vormen een front richting het robuuste groen dat in de loop der tijd langs de A32 is gegroeid en sluiten daarmee aan op het tuinstedelijke karakter van Heerenveen noord.
Hepkema’s park
Bestaande sportvoorzieningen zoals de Feanster Rugby Club en cultuurhistorische elementen zoals het Hepkema’s Bos en voormalige buitenijsbaan Oud Thialf worden geïntegreerd in een stadspark van formaat. Ook het voormalige tracé van de Pastorielaan wordt zichtbaar gemaakt. Het Hepkema’s park wordt via het fietspad langs de Pastorielaan verbonden in zuidelijke richting. Bestaande en nieuwe routes verbinden het park met omliggende woonbuurten. Ook biedt het Hepkema’s park ruimte voor een multifunctioneel complex voor verenigingen die - al dan niet in de toekomst - gebruik zullen maken van het park.
Buitenbaan noord
Na het verdwijnen van het huidige scholencluster ontstaat ruimte voor ontwikkeling van circa 45-50 grondgebonden woningen in een variatie van rij- en (half)vrijstaande woningen. De woningen aan de rand volgen de structuur van de verdwenen buitenijsbaan Oud Thialf en worden omlijst door een recreatief pad langs de oude loop van de ijsbaan, waardoor op deze plek historie en toekomst op een unieke manier samensmelten.

Het parkeren wordt opgelost op het binnenterrein, aangevuld met groen omzoomde parkeerplaatsen aan één zijde van de Buitenbaan. Ontsluiting van de Buitenbaan noord vindt plaats via de Buitenbaan.
Feanster Rugby club
In beginsel wordt de Feanster Rugby Club in de huidige opzet ingepast binnen de nieuwe ontwikkeling. Mocht op termijn de vereniging elders plaats vinden, dan ontstaat ruimte voor circa 50-55 grondgebonden woningen in een variatie van rij- en (half)vrijstaande woningen. De locatie wordt opgedeeld in twee velden zodat aansluiting gevonden wordt op maat en schaal van de andere ontwikkellocaties. Net als bij de Buitenbaan noord wordt het parkeren opgelost op binnenterreinen, aangevuld met groen omzoomde parkeerplaatsen aan één zijde van de oost-west georiënteerde straat die de twee ontwikkelvelden scheidt. Ontsluiting vindt plaats via de ontwikkellocatie Goudsbloemstraat noord die verbonden is met de Weinmakker.
Goudsbloemstraat noord
Ook deze ontwikkellocatie biedt ruimte voor grondgebonden woningen. De locatie wordt verdeeld in twee velden die doorkruist worden door een oost-west verbinding. Het parkeren wordt hoofdzakelijk aan de achterzijde van de woningen opgelost, aangevuld met parkeren aan een zijde van de twee oost-west georiënteerde wegen. In totaal biedt de Goudsbloemstraat noord ruimte aan circa 35 woningen.
Hepkema’s park zuid
Het zuidelijke deel is opgebouwd uit verschillende onderdelen. Aan de zuidzijde wordt de bestaande parkeervoorziening aan de achterzijde uitgebreid. Deze parkeervoorziening krijgt met de aanplant van hagen en veel bomen een groen karakter. Het deel ten noorden van de parkeervoorziening is opgedeeld in vier velden met ruimte voor woningbouw. Bij uitwerking van de ontwikkeling dient nader onderzoek te moeten worden gedaan naar de bestaande waardevolle bomen.
De drie andere velden bieden ruimte voor een groenstedelijk woonmilieu met een variatie aan grondgebonden woningen en appartementen. Ook aan de zuid-westzijde is ruimte voor twee vrij in het groen staande appartementengebouwen. In totaal is in dit gebied ruimte voor circa 140-150 woningen.
Het parkeren voor bewoners en bezoekers vindt plaats op de binnenterreinen aan de achterzijde van de woningen. Ook kan een deel van het parkeren opgelost worden op het grotere nieuwe parkeerterrein.
Paragraaf 4.4 Sportstad
Sportstad wordt doorontwikkeld tot een stedelijke campus met nationale allure. Het gebied biedt ruimte voor sportfuncties, onderwijs, kantoren en stedelijke woonmilieus. Deze menging zorgt voor levendigheid.

Samenhangende structuur
Waar Sportstad vandaag de dag de uitstraling heeft van een op de auto gericht bedrijventerrein zal het gebied in de toekomst de uitstraling krijgen van een hoogwaardige campus. Zonder de autobereikbaarheid uit het oog te verliezen, wordt de openbare ruimte vergroend. Ook zal het sportieve karakter van Heerenveen terug te zien zijn in de openbare ruimte. Herinrichting van het profiel van de Abe Lenstra Boulevard maakt ruimte voor een royale, stedelijke promenade langs het stadion voor voetgangers en fietsers. De promenade leidt langs een mix van aantrekkelijke publieke ruimte met sportfaciliteiten, sportgerelateerde retail, bedrijvigheid die gezondheid en gezonde leefstiijl voorstaan, horeca, onderwijs, stedelijk woonprogramma en groen ingerichte parkeervoorzieningen. Ook heeft deze promenade een belangrijke functie tijdens evenementen. Bij de uitwerking in de visie voor Sportstad zal dan ook nadrukkelijk rekening worden gehouden met loop- en zichtlijnen zodat veiligheid tijdens drukke momenten gegarandeerd kan worden.
Noordplot
Een belangrijke ontwikkeling binnen Sportstad is die van de Noordplot. Dit gebied zal Sportstad een nieuw gezicht geven. De opzet met bouwblokken zorgt ervoor dat bewoners een luw leefmilieu wordt geboden aan de binnenzijde van de blokken. Ook zorgt het ervoor dat er een stedelijke stedenbouwkundige structuur ontstaat met helder gedefinieerde openbare ruimte. De Noordplot biedt ruimte voor circa 300 appartementen en stadsvilla’s, aangevuld met buurtfuncties. Deze functies liggen aan een centraal plein welke direct gekoppeld is aan de nieuwe langzaam verkeersverbinding met het centrum. Het parkeren wordt grotendeels opgelost op binnenterreinen onder groene dekken, aangevuld met een parkeeroplossing lang de Opslach. Gezien de importantie van deze ontwikkellocatie voor de gemeente zijn in paragraaf 4.5 ambities en uitgangspunten voor de ontwikkeling van de Noordplot opgenomen.
Stadionplot-noord
Ook het plot direct ten noorden van het Abe Lenstra Stadion wordt ontwikkeld. Deze locatie biedt ruimte voor een gemengde ontwikkeling met een evenemententerrein en een stedelijk bebouwingsaccent. Het nieuwe bouwblok sluit qua maat en schaal aan op de structuur op de Noordplot en biedt ruimte voor sportgerelateerde retail - eventueel gecombineerd met woningbouw. Woningbouw kan de sociale veiligheid in het gebied versterken en zorgt voor een levendige programmatische invulling op maaiveld. De openbare ruimte wordt ingericht als multifunctionele evenementenruimte. Dit terrein kan gebruikt worden voor stedelijke activiteiten, maar kan ook als er geen evenementen zijn gebruikt worden als publieke, stedelijke sportplek.
Werklocatie Opslach
Ondanks dat de bedrijvenlocatie aan de Opslach nu geen leegstand kent, sluit het qua uitstraling niet aan bij de beoogde ontwikkeling van Sportstad. De inrichting is sleets en de bestaande functies hebben grotendeels geen toegevoegde waarde voor de identiteit van Sportstad. Het is dan ook wenselijk dat dit gebied transformeert. Mede vanwege geluid van de A32 is woningbouw op deze locatie echter niet logisch.Ondanks dat er in Heerenveen geen behoefte is aan grootschalige nieuwe kantoorlocaties, is er wel een vraag naar kantoren op goed bereikbare locaties. Dit biedt dan ook kansen voor een geleidelijke transformatie van de Opslach. Dit gebied kan zich zo stap voor stap transformeren tot toekomstbestendige werklocatie.
Abe Lenstra Boulevard-zuid
De vrijliggende ontwikkellocatie aan de zuidzijde van de Abe Lenstra Boulevard biedt ruimte voor mutifunctionele ontwikkeling met bijvoorbeeld ruimte voor onderwijs, kantoren en woningen voor een doelgroep die van levendigheid houdt. Maat, schaal en hoogte van de nieuwe ontwikkeling sluiten aan op de bestaande bebouwing aan de Abe Lenstra Boulevard. Aan de achterzijde is ruimte voor parkeren.
Stadionplot-zuid
Ook aan de zuidzijde van het Abe Lenstra Stadion is ruimte voor een multifunctionele ontwikkeling die zorgt voor meer levendigheid in dit deel van Sportstad. Een nieuw bebouwingsaccent geeft Sportstad ook aan de zuidzijde een nieuw gezicht.
Abe Lenstra Boulevard
Een stedelijke woonbuurt vormt een front richting de Abe Lenstra Boulevard. Bezoekers van Sportstad lopen via de heringerichte boulevard, waar de openbare ruimte letterlijk blauw en wit kleurt, richting het stadion.

Paragraaf 4.5 Noordplot
Een groene openbare ruimte vormt in de Noordplot het fundament voor een ensemble van bouwblokken. Elk bouwblok is opgebouwd uit een mix van woningtypes voor diverse doelgroepen. De Noordplot krijgt daarmee een levendige uitstraling.
Stedelijke blokken rond collectieve binnentuinen
De stedenbouwkundige opzet wordt in de basis gevormd door bouwblokken rond collectieve binnentuinen. De blokken geven vorm aan een levendige, groene openbare ruimte waar sport en beweging centraal staan. De bouwblokken zorgen ervoor dat bewoners in het privé domein een luwe leefomgeving hebben waar minder last is van verkeersgeluid van de A32 en drukte tijdens evenementen in Sportstad. Het woonmilieu in de Noordplot is fijnmazig en zoveel mogelijk autovrij. Het leest als een geheel, maar biedt ook de ruimte tot individuele expressie op gebouwniveau. Er wordt gewoond tot op de begane grond, waarbij er speciale aandacht is voor de overgang tussen binnen en buiten.
Programmaverdeling
De nadruk in de Noordplot ligt op wonen, aangevuld met wijkgerichte functies ter ondersteuning van het dagelijkse leven. Te denken valt aan kleinschalige, sportgerelateerde zorg zoals een fysiotherapeut, huiskamer voor de buurt, daghoreca zoals een coffeecorner, flex-werkplekken, kleine units voor kleinere ondernemers en een fietsenmaker. Het programma wordt zo veel als mogelijk gelijkmatig over de Noordplot verdeeld. In totaal zullen minimaal 300 woningen worden gerealiseerd.
Een vanzelfsprekende inpassing
We kiezen ervoor om de ontwikkeling van de Noordplot nadrukkelijk te verweven met haar omgeving. Dit door het maken van logische verbindingen voor langzaam verkeer naar het centrum en de rest van Sportstad. Ook in uitstraling wordt aansluiting gezocht op de omgeving. De architectuur in Sportstad wordt gekenmerkt door accenten in donkerbruine bakstenen.
De nieuwbouw op de Noordplot zal hier op aansluiten. Een zorgvuldig gekozen palet aan warme bruine bakstenen, waarvan de CO2 uitstoot neutraal is, vormt de basis voor de architectuur. Elk bouwblok is opgebouwd uit verschillende gebouwen. Zo wordt aansluiting gevonden op de Heerenveense maat en schaal.
Verbonden met het centrum
De Noordplot heeft met verbindingen via de Atalantastraat en Nieuwburen nu al een sterke relatie met het centrum. In de toekomst zal dit alleen maar sterker worden. Zo verbindt een nieuwe langzaam verkeersroute de Noordplot via de Koolwitjestraat en de P.J. Troelstralaan met het Burgemeester Kuperusplein.
Toekomstige bewoners van de Noordplot hebben dan ook een directe verwantschap met het centrum. Ze maken gebruik van voorzieningen in het centrum en het stedelijke leefmilieu in de Noordplot sluit aan op het karakter van de binnenstad van Heerenveen. De Noordplot trekt daarmee voornamelijk doelgroepen aan die van levendigheid houden.

Een raamwerk van bouwblokken
De maat en schaal van de stedenbouwkundige opzet sluiten aan op de structuur van de bestaande bebouwing tussen het centrum en de Noordplot. Bouwblokken definiëren op een heldere manier een groenstedelijke openbare ruimte die opgebouwd is uit Groene Lopers die de Noordplot verbinden met haar context, een centraal Sportplein waar bewoners, omwonenden en bezoekers van Sportstad elkaar ontmoeten en royale randen die de overgang vormen richting de directe omgeving.
De Noordplot is direct gekoppeld aan doorgaande routes op lokaal niveau, zoals de Atalantastraat, en op regionaal niveau via de in nabijheid gelegen A32. Dit zorgt voor een optimale bereikbaarheid, maar ook voor geluidshinder. Door in de basis uit te gaan van een opzet met gesloten bouwblokken, waar aan de binnenzijde luwte heerst, wordt ingespeeld op deze externe factoren.

Zichtassen
Twee zichtassen verankeren de Noordplot in haar omgeving. De eerste zichtas leidt vanaf de Abe Lenstra Boulevard langs het Abe Lenstra Stadion tot aan Huize Voormeer. Dit landhuis uit de 18e eeuw is aan de noordzijde van de Noordplot gelegen aan Het Meer. Aan de Abe Lenstra Boulevard is de rooilijn van de nieuwbouw op de Noordplot zo gelegen dat de zichtlijn vrij blijft van bebouwing.
De tweede zichtas verbindt de Noordplot met het centrum van Heerenveen. Vanaf het Burgemeester Kuperusplein via de P.J. Troelstralaan en de Koolwitjestraat wordt de Noordplot zowel fysiek als visueel verbonden met het centrum. De zichtas leidt in de Noordplot naar het centrale Sportplein en een hoger bebouwingsaccent dat zich zowel programmatisch als architectonisch op een bijzondere manier onderscheid van de rest van de nieuwbouw op de Noordplot.

Hoogteaccenten
De Noordplot wordt in de basis gevormd door bouwblokken met een gemiddelde hoogte van drie tot vijf bouwlagen, aangevuld met minimaal één en maximaal twee accenten van ieder maximaal dertien bouwlagen hoog, met ieder een gemengd programma van verschillende woonsegmenten. De hoogte sluit aan op de Johan Brandsma State (het appartementengebouw direct ten noordwesten van de Noordplot).
De situering van de hoogteaccenten volgt logisch vanuit de stedenbouwkundige context. Het centrale accent, welke stedenbouwkundig gezien de meest belangrijke is, is gelegen in de zichtas vanaf het centrum en gaat daarmee een visuele relatie aan met het appartementengebouw aan het Burgemeester Kuperusplein. Het tweede, optionele accent ligt in de zuidoosthoek van de Noordplot en gaat een relatie aan met de naastgelegen kantoorgebouwen aan de Opslach en markeert de hoek Atalantastraat - Opslach.

Rooilijnen
De nieuwbouw wordt aan de randen van de Noordplot in heldere rooilijnen gebouwd. Hierdoor ontstaat een stedelijke woonomgeving, waar routes en openbare ruimten helder zijn gedefinieerd.
De rooilijnen aan de Abe Lenstra Boulevard en de Atalantastraat liggen vast. Aan de Abe Lenstra Boulevard ligt de rooilijn op circa vijf meter van het nieuw te realiseren fietspad. Langs de Atalantastraat wordt de rooilijn zo gepositioneerd dat er voldoende ruimte is voor aanplant van bomen in de 1e grootte tussen de nieuwbouw en de Atalantastraat.
De rooilijn aan de Opslach ligt niet vast. Zo wordt ruimte gehouden voor een optionele parkeeroplossing aan deze zijde. Ook de rooilijn aan Het Meer is flexibel. Dit om ruimte te houden voor een landschappelijke inpassing van de nieuwbouw die recht doet aan de cultuurhistorische kwaliteiten van de lintbebouwing aan Het Meer en Huize Voormeer.

Parkeren
Het programma op de Noordplot voorziet voor bewoners in de eigen mobiliteitsbehoefte. Bezoekers parkeren in de directe omgeving buiten de Noordplot. Voor het bepalen van het aantal parkeerplaatsen is het Beleidskader Nota Parkeernormen Gemeente Heerenveen leidend. Vanwege de directe koppeling met het centrum zijn de parkeernormen in het centrum geldend voor de ontwikkeling van de Noordplot.
Het parkeren wordt zoveel mogelijk geconcentreerd opgelost. De Noordplot is dan ook grotendeels autovrij. De impact van de auto wordt geminimaliseerd door toegangen van de parkeeroplossingen zo dicht als mogelijk aan de oostzijde te concentreren. Het parkeren voor bewoners wordt bij voorkeur opgelost binnen de blokken onder groen ingerichte dekken, eventueel aangevuld met een groen ingerichte parkeervoorziening langs De Opslach. Andere kwalitatieve parkeeroplossingen zoals een bovengrondse hub zijn ook toegestaan. Het uitgangspunt dat de auto minimale impact heeft op de openbare ruimte is altijd leidend.

Externe factoren: geluid
De Noordplot ligt dusdanig gepositioneerd dat er sprake is van geluidshinder. Uit een eerste akoestisch onderzoek blijkt dat de maximaal toelaatbare geluidsbelasting voor geluid vanaf de A32 wordt overschreden. Ook blijkt dat de maximale geluidbelasting ten gevolge van evenementen in Sportstad wordt overschreden. Dit betekent dat er maatregelen nodig zijn om de ontwikkeling mogelijk te maken. De meest voor de hand liggende oplossing is om de nieuwe woongebouwen aan de hoogst belaste zijden te voorzien van geluidluwe gevels.
Bij de uitwerking van de plannen zal er voor moeten worden gezorgd dat zoveel als mogelijk woningen beschikken over een geluidluwe gevel. Het kan echter zo zijn dat dit niet voor elke woning mogelijk is. Aangezien de gemeente Heerenveen geen vigerend beleid heeft voor de beschouwing van geluidluwe gevels zal in het proces voorafgaand aan de verdere planontwikkeling door de gemeente bepaald worden onder welke voorwaarden woningen zonder geluidluwe gevel alsnog toelaatbaar zijn.

Externe factoren: gasleiding
Aan de noordzijde van de Noordplot loopt een gasleiding met een effectgebied van circa 150 meter. De nieuwbouw op de Noordplot valt deels binnen het effectgebied. Ingevolge het Besluit Externe Veiligheid Buisleidingen (artikel 12, lid 1 ) zal dan ook bij de planuitwerking het groepsrisico (GR) berekend en verantwoord moeten worden.
Aan de noordzijde aan de Nieuwburen 88a zijn een tweetal straatkasten voor het zogenaamde lagedruksysteem gelegen. Bij de ontwikkeling van de Noordplot zal nader onderzoek moeten plaats vinden naar welke veiligheidsafstanden in acht moeten worden genomen.

Raamwerk
Het doel van de Raamwerkkaart voor de Noordplot is tweeledig. Enerzijds geeft het houvast voor ontwikkelende partijen bij het opstellen van het stedenbouwkundig ontwerp voor de Noordplot. Anderzijds vormt de Raamwerkkaart een belangrijk toetsingsmiddel voor de gemeente Heerenveen tijdens de verdere planuitwerking.

Flexibiliteit en sturing
Wat betreft situering, volume en programma kent de Raamwerkkaart op onderdelen bepaalde marges, dit om flexibiliteit te houden tijdens het ontwikkelproces en zo ruimte te bieden voor innovatieve en kwalitatieve oplossingen.
De beoogde flexibiliteit betreft twee aspecten: de onderlinge programmering van de blokken en de precieze ruimtelijke uitwerking van de blokken. Het programma is niet te strak vastgesteld. Tussen en binnen de blokken is er flexibiliteit, maar het totale programma is wel directief. Binnen de verschillende blokken zijn contouren aangegeven. Hierbinnen kan de invulling per blok en op lager schaalniveau per architectonische eenheid worden ingevuld.
Ook wat betreft een aantal rooilijnen en bouwhoogten zijn veranderingen mogelijk. Deze flexibiliteit is aangegeven door middel van harde en zachte roolijnen. Harde rooilijnen veranderen niet, omdat ze bepalend zijn in relatie tot belangrijke openbare ruimten. Zachte rooilijnen kunnen nog wel veranderen.
De bouwhoogten zijn aangegeven als indicatieve lagen. Binnen bandbreedtes kunnen de aangegeven bouwhoogten variëren. Het voordeel van deze opzet is dat tijdens de uitwerking flexibiliteit behouden blijft met als resultaat een optimale integratie van stedenbouw en architectuur.
Langzaam verkeer
Op de Noordplot heeft de fietser op verschillende doorgaande routes volop de ruimte. Deze routes worden begeleid door groen, zijn veilig ingericht en leiden onder meer richting openbaar vervoersnetwerken zoals de direct in de nabijheid aanwezige bushaltes en verder het treinstation.
Fietsen en lopen zijn voor bewoners en bezoekers de meest voor de hand liggende en comfortabele keuze boven auto. Om dit te stimuleren is de Noordplot fijnmazig doorwaadbaar voor fietsers en voetgangers.Langzaam verkeersroutes in de Noordplot worden dan ook logisch verbonden met bestaande en nieuwe routes in de directe omgeving. Zo sluiten routes vanuit de Noordplot aan op de nieuwe fietsroute langs de Abe Lenstra Boulevard en de bestaande route langs de Atalantastraat. In de Noordplot wordt ook een doorgaande langzaam verkeersroute ingepast, die loopt vanaf het centrum (vanaf de Koolwitjestraat) naar het hart van de Noordplot (het Sportplein).
Ontsluiting en parkeren
De impact van de auto op de openbare ruimte wordt tot het minimale beperkt. Zo wordt het parkeren op een aantal plekken geconcentreerd opgelost. Het programma op de Noordplot voorziet voor bewoners in de eigen mobiliteitsbehoefte. Bezoekers parkeren in de directe omgeving buiten de Noordplot.
Het parkeren voor bewoners wordt bij voorkeur opgelost binnen de blokken onder collectieve groen ingerichte dekken. Deze oplossing kan eventueel aangevuld worden met een groen ingerichte parkeervoorziening langs De Opslach. Andere kwalitatieve parkeeroplossingen zoals een bovengrondse hub zijn ook denkbaar. Het uitgangspunt dat de auto minimale impact heeft op de openbare ruimte is altijd leidend.
Openbare ruimte
De openbare ruimte vormt een belangrijke identiteitsdrager van de Noordplot. Sport, bewegen en groen vormen centrale thema’s bij het ontwerp ervan. De openbare ruimte zal dan ook ingericht worden met de uitstraling van een campus met volop ruimte voor groen en beweging.
De openbare ruimte is daarnaast klimaatadaptief en levert daardoor een bijdrage aan de beoogde circulaire ontwikkeling van het Noordplot. De openbare ruimte draagt ook bij aan het microbioklimaat, is geschikt om pieken in neerslag te doorstaan en is hittestressbestendig doordat bomen water opnemen. In dit kader is het ook van belang dat er voldoende grote bomen worden geplant.
Een belangrijke kwalitatieve en kwantitatieve opgave is tot slot het opvangen, afvoeren en infiltreren van hemelwater. Naast infiltratiestroken en wadi’s in de openbare ruimte kunnen de collectieve binnentuinen een belangrijke rol krijgen in het opvangen, tijdelijk bufferen en in de bodem laten infiltreren van hemelwater. Het proces van opvang, afvoer en infiltratie wordt zoveel als mogelijk zichtbaar gemaakt.
Een centrale openbare ruimte is het visitekaartje van de Noordplot. Het is de plek waar bewoners, omwonenden en bezoekers van Sportstad elkaar ontmoeten in een actieve omgeving. Op dit zogenaamde Sportplein is er volop ruimte voor ontmoeting, sport en royaal groen. Verschillende Groene Lopers verbinden het Sportplein met de omgeving. De inrichting stimuleert interactie en draagt bij aan een aantrekkelijk woonmilieu. De Groene Lopers worden maximaal groen ingericht en bieden ruimte voor groenvakken, bomen, geveltuinen, klimaatwadi’s en straatmeubilair.
Beeldkwaliteit
De bouwblokken in de Noordplot zijn opgebouwd uit verschillende architectonische eenheden om zo aansluiting te vinden op de maat en schaal van Heerenveen. Gevels zijn rijk vormgegeven, met bijvoorbeeld erkers, balkons en loggia’s, om een optimale interactie met de openbare ruimte en leven op straat te faciliteren.
De architectuur op de Noordplot wordt in de basis gevormd door een palet aan warme bruine bakstenen die aansluiting vindt op de omliggende bebouwing in Sportstad. Rijk vorm gegeven gevels gaan een levendige relatie aan met de openbare ruimte. Ook individuele entrees op de begane grond en een overgangszone zorgen voor een levendige relatie met de openbare ruimte.
Paragraaf 4.6 Kop van Skoatterwâld
De zone ten oosten van de A32 is nu vooral een buffer tussen de rijksweg en Skoatterwâld. In de toekomst geven ontwikkelingen langs de Domela Nieuwenhuisweg, de Vitus Bruinsmaweg en het Luytkemeer een gezicht aan Skoatterwâld.

Samenhangende structuur
De robuuste groenstructuur langs P6 vormt de belangrijkste samenbindende structuur in de Kop van Skoatterwâld. Dit groen heeft met name van Het Meer en tot de Sportweg en van de Anne Giezenweg tot de Oranje Nassaulaan al een volwassen uitstraling. Door verdere aanplant van het groen op en rond P6 ontstaat een samenhangende landschappelijke structuur. De nieuwe ontwikkelingen aan de Domela Nieuwenhuisweg, de Vitus Bruinsmaweg en het Luytkemeer worden in samenhang ontworpen. De verschillende deelontwikkelingen vormen samen een stevig front richting het groen.
Domela Nieuwenhuisweg oost
De locatie waar het inmiddels leegstaande tuincentrum Bos, Tuin en Dier gevestigd is, biedt ruimte voor circa 75 woningen. De locatie wordt in twee ontwikkelvelden verdeeld die beide ruimte bieden aan grondgebonden woningen, aangevuld met een beperkt aantal appartementen. De woningen grenzen aan de achterzijde aan groen ingerichte collectieve tuinen. De voorzijde van de twee blokken sluiten qua korrelgrootte aan op het naastgelegen onderwijsgebouw van Aeres waardoor ze gezamenlijk een front vormen richting de Domela Nieuwehuisweg. Het parkeren vindt plaats aan de achterzijde van de ontwikkellocatie. Ontsluiting vindt plaats via de Domela Nieuwenhuisweg, aangevuld met een extra langzaam verkeersaansluiting aan Het Meer en de daaraan gelegen bushaltes.
Tjeerd Stienstraweg west
Deze locatie biedt ruimte voor ontwikkelvelden met ruimte voor in totaal circa 150 woningen in een combinatie van grondgebonden woningen, beneden-bovenwoningen en een beperkt aantal appartementen om stedenbouwundige accenten te maken. Het parkeren vindt grotendeels plaats aan de achterzijde van de woningen op groen ingerichte binnenterreinen. De ontwikkelvelden worden van elkaar gescheiden door een langzaam verkeersroute die in oostzijde richting Skoatterwâld worden gecontinueerd.
De westelijke bebouwingsrand sluit stedenbouwkundig aan op het front van de nieuwe bebouwing aan de Domela Nieuwenhuisweg en het daarnaast gelegen scholencluster. Hiermee ontstaat ook ruimte voor een royale groenzone tussen de nieuwe bebouwing aan de Tjeerd Stienstraweg en P6. Deze groenzone biedt ruimte voor het versterken van de robuuste groenstructuur langs de A32 en het toevoegen van extra sportvoorzieningen. Ook het versterken van de noord-zuid georiënteerde groenstructuur langs de Anna Giezenweg sluit hierop aan.
Luytkemeer west
Als stedenbouwkundige afronding van het voorzieningencluster in Skoatterwâld wordt aan het Luytkemeer ruimte geboden voor ontwikkeling van een appartementencomplex welke zich alzijdig gepresenteert. Het appartementenblok krijgt een gevarierde hoogte van circa drie tot vijf lagen. Het parkeren wordt ontsloten vanaf het Luytkemeer.
P6
Het bestaande parkeerterrein P6 wordt op meerdere manieren verbeterd. Allereerst wordt het parkeerterrein opnieuw ingericht zodat deze efficiënter en comfortabel bruikbaar is. Daarnaast wordt ook de huidige ontsluiting aangepast zodat de doorstroming tijdens piekomenten wordt verbeterd.
Tot slot zal ook worden geïnvesteerd in het verbeteren van de sociale veiligheid, bijvoorbeeld door het verbeteren van verlichting en het vrijmaken van zichtlijnen, ten hoogte van de onderdoorgangen die P6 verbinden met Sportstad.
Oranje Nassaulaan noord
Aan de Oranje Nassaulaan wordt een hotel ontwikkeld met congrescentrum, vergaderzalen, een restaurant, bar en terras en parkeervoorziening. Het markante volume vormt een visitekaartje aan de A32. Het naastgelegen plot blijft voorlopig vrij van ontwikkeling om zo in te kunnen spelen op toekomstige ontwikkelvraagstukken.
Hoofdstuk 5 Ontwikkelstrategie
Paragraaf 5.1 Hoe realiseren we dat?
Het eigendom in het Sportieve Hart van Heerenveen ligt zowel in publieke als private handen en is in bepaalde delen behoorlijk versnipperd. De opgaven daarentegen vragen om een integrale en gezamenlijke aanpak.
Duidelijke ambities, heldere kaders, rollen en een goede samenwerking tussen de verschillende eigenaren, initiatiefnemers, gebruikers en overheden is randvoorwaardelijk om tot het gewenste resultaat te komen. De gemeente speelt hierin een belangrijke rol.
Paragraaf 5.2 Ontwikkelstrategie
Om ambities waar te maken is er een goede samenwerking nodig tussen de verschillende belanghebbende partijen, waarbij eenieder eigenaarschap en medeverantwoordelijkheid pakt.

Publiek-privaat gestuurde gebiedsontwikkeling
Markt en overheid zullen binnen de ontwikkeling van de verschillende deelgebieden in het Sportieve Hart van Heerenveen nauw samenwerken. Een groot deel van de vastgoedontwikkelingen en -transformaties zullen door private partijen worden opgepakt. Hierbij is de gemeente verantwoordelijk voor het meegeven van stevige ontwikkelkaders, het op gang brengen van noodzakelijke voorinvesteringen en geven van het goede voorbeeld, onder meer door de aanleg van kwalitatieve openbare ruimten. Toekomstige ontwikkelingen die binnen de ruimtelijke invloedssfeer van het Sportieve Hart van Heerenveen vallen, kunnen leiden tot aanpassingen van oplossingsrichtingen en infrastructuur zoals opgenomen in deze Gebiedsvisie.
Ontwikkelstappen: fasering en prioritering
De ontwikkeling van het Sportieve Hart van Heerenveen zal waarschijnlijk meerdere decennia duren. Elk van de deelontwikkelingen heeft een eigen dynamiek en ontwikkelsnelheid. De fasering wordt bepaald op basis van grondeigendommen en marktomstandigheden. Voor de locaties waar de gemeente geen of nauwelijks grondbezit heeft, waaronder de bedrijfslocatie de Opslach, zal het ontwikkeltempo bepaald worden door huidige grondeigenaren en eventuele andere initiatiefnemers. De gemeente heeft een faciliterende rol in deze en zal in beginsel geen actieve rol aannemen in het aanjagen van deze ontwikkelingen. Wel zal de gemeente mede met deze Gebiedsvisie en uitwerking ervan een belangrijke rol innemen in het bepalen van de ruimtelijke en programmatische koers van deze ontwikkelingen.
Voor de ontwikkellocaties die wel in grondbezit zijn van de gemeente wordt de fasering bepaald door een tweetal onderdelen. Het eerste onderdeel is of de ontwikkellocatie daadwerkelijk vrij is voor ontwikkeling. Dit is bijvoorbeeld nu niet het geval bij de ontwikkeling van Buitenbaan noord. Pas als de huidige onderwijsfunctie verplaatst, zal deze ontwikkeling plaatsvinden. Bij een deel van de andere locaties zijn huidige invullingen, denk aan het parkeerterrein op de Noordplot en de groene invulling van de Kop van Skoatterwâld, tijdelijk. Met deze ontwikkelingen kan daarmee feitelijk direct gestart worden. Als eerste zal gestart worden met de ontwikkeling van de zuidelijke ontwikkellocaties in Hepkema’s Park en de Kop van Skoatterwâld. De overige ontwikkelingen volgen vervolgens stap voor stap.
Uitwerking instrumentarium per deelgebied
Hepkema’s Park
Voor het Hepkema’s Park zal een integraal stedenbouwkundig plan worden opgesteld, inclusief samenhangend beeldkwaliteitsplan, voor zowel de nieuw te ontwikkelen woongebieden als de aanleg van het park. De gemeente heeft alle gronden in dit gebied in bezit en zal dit proces dan ook vormgeven.
Sportstad
Gezien de samenhang tussen ontwikkelingen in Sportstad zal ook voor dit gebied een integraal stedenbouwkundig plan worden opgesteld, inclusief beeldkwaliteitsplan. De gemeente zal dit samen met Sportstad vormgeven. Als onderdeel van dit proces zal de parkeerstrategie, zowel tijdens reguliere momenten als tijdens evenementen, worden uitgewerkt. Voor de Noordplot zal een aanvullend proces worden vormgegeven waar de gemeente samen met een ontwikkelaar de ontwikkeling zal vormgeven.
Kop van Skoatterwâld
De potentiële ontwikkellocaties in dit gebied zijn in bezit van verschillende eigenaren, waaronder de gemeente. Om toch regie te houden, zal de gemeente ook voor dit gebied een integraal stedenbouwkundig plan, inclusief beeldkwaliteitsplan, opstellen waarbij de uitwerking van de gebieden die niet in bezit zijn van de gemeente meer op hoofdlijnen zal zijn.
Prioritering
Op basis van voorgaande is de volgende prioritering bepaald voor ontwikkelingen waar de gemeente een actieve rol heeft:
Primaire prioriteit
-
Verbetering parkeervoorziening P6;
-
Ontwikkeling zuidelijk deel Hepkema’s Park incl. parkeervoorziening ten noorden van K.R. Poststraat;
-
Ontwikkeling Kop van Skoatterwâld.
Secundaire prioriteit
-
Ontwikkeling Noordplot;
-
Ontwikkeling Buitenbaan noord;
-
Uitwerking visie Sportstad;
-
Afspraken parkeren tijdens evenementen Sportstad.
Tertiaire prioriteit
Bijlage I Overzicht Informatieobjecten
- Regelingsgebied
-
/join/id/regdata/gm0074/2026/RG41gio1d8dc692-87de-4505-af1d-d3ed03f72356/nld@2026‑03‑06;9
- Bijlage Participatieverslag gebiedsvisie A32
-
/join/id/regdata/gm0074/2026/pdf_b463f407-07c5-417b-8407-5a2c03d2dbce/nld@2026‑03‑06;1064
Ziet u een fout in deze regeling?
Bent u van mening dat de inhoud niet juist is? Neem dan contact op met de organisatie die de regelgeving heeft gepubliceerd. Deze organisatie is namelijk zelf verantwoordelijk voor de inhoud van de regelgeving. De naam van de organisatie ziet u bovenaan de regelgeving. De contactgegevens van de organisatie kunt u hier opzoeken: organisaties.overheid.nl.
Werkt de website of een link niet goed? Stuur dan een e-mail naar regelgeving@overheid.nl