Ontwikkelkader Viaanse Molen

Geldend van 13-03-2026 t/m heden

Intitulé

Ontwikkelkader Viaanse Molen

Bekendmaking op grond van artikel 3:42 Algemene wet bestuursrecht

De gemeenteraad heeft het Ontwikkelkader Viaanse Molen op 11 december 2025 vastgesteld.

Ontwikkelkader

Het Ontwikkelkader Viaanse Molen is een kader voor de verdere uitwerking en gebiedsontwikkeling van Viaanse Molen. Dit Ontwikkelkader komt in plaats van het Ontwikkelbeeld Viaanse Molen.

Met dit Ontwikkelkader wordt een volgende stap gezet in de transformatie van de Viaanse Molen naar een nieuwe ‘zachte’ stadswijk aan het Alkmaars kanaal. Met de binnenstedelijke transformatie in het Alkmaars Kanaal werken we aan de toekomst van Alkmaar. Alkmaar blijft hiermee voorzien in de behoefte aan woningen, voorzieningen en bedrijfsruimte.

Plangebied

Het Ontwikkelkader heeft betrekking op de vijf verschillende ontwikkeleilanden Pendorp, Kantorenpark, Sluiseiland, het Bedrijvenpark en plan Buitenvaart aan de Kanaaldijk.

Inzage

Het Ontwikkelkader Viaanse Molen is digitaal raadpleegbaar via de projectwebsite van het Alkmaar Kanaal, via: https://www.alkmaar.nl/alkmaarskanaal/de-deelgebieden/viaanse-molen/

Op grond van art. 8:3, eerste lid onder a Awb staat tegen dit besluit geen beroep open.

Ontwikkelkader Viaanse Molen

Inhoudsopgave

  • 1.

    INTRODUCTIE

    • 01.

      Vertrekpunt

    • 02.

      Leeswijzer

  • 2.

    GEBIEDSANALYSE

    • 01.

      Kansenkaart

    • 02.

      Historie

    • 03.

      Karakteristieken

    • 04.

      Technische randvoorwaarden

  • 3.

    IDENTITEIT &KERNWAARDEN

    • 01.

      Kernwaarden

    • 02.

      Ruimtelijk concept

  • 4.

    PROGRAMMA

    • 01.

      Werken en voorzieningen

    • 02.

      Wonen

    • 03.

      Mobiliteit

  • 5.

    RUIMTELIJK RAAMWERK

    • 01.

      Stedenbouwkundige principes

    • 02.

      Landschappelijke principes

  • 6.

    BEELDKWALITEIT OP HOOFDLIJNEN

    • 01.

      Leidende principes

    • 02.

      Beeldkwaliteit bij transformatie

  • 7.

    ONTWIKKELEILANDEN

    • 7A

      Kantorenpark

    • 7B

      Pendorp

    • 7C

      Sluiseiland

    • 7D

      Kanaaldijk: Plan Buitenvaart

    • 7E

      Bedrijvenpark en Connexxionterrein

  • 8.

    ONTWIKKELSTRATEGIE

  • 9.

    BIJLAGEN

    • A

      Planproces en kostenverhaal

    • B

      Beleidskaders

    • C

      Bouwstenen Kantorenpark

    • D

      Windvangonderzoek EAGM dec. 2024

1. Introductie Ontwikkelkader

Alkmaar bouwt de komende jaren woningen, voorzieningen en werkruimten in de stad aan het Noordhollandsch Kanaal. Zo blijft Alkmaar werken aan de toekomst van de stad. Er komt een kwaliteitsimpuls in het openbaar gebied, het groen, de architectuur en de energievoorziening. Met dit Ontwikkelkader wordt een volgende stap gezet in de transformatie van de Viaanse Molen naar een nieuwe ‘zachte’ stadswijk aan het Alkmaars kanaal. Met de binnenstedelijke transformatie in het Alkmaars Kanaal werken we aan de toekomst van Alkmaar. Alkmaar blijft hiermee voorzien in de behoefte aan woningen, voorzieningen en bedrijfsruimte.

De Viaanse Molen verandert de komende jaren naar de ‘Zachte stad’; een moderne stad aan het water in een vertrouwd Hollands landschap van water, riet en polderbomen. Je kunt hier wonen en werken binnen eilanden in het groen. De verschillende ‘eilanden’ hebben elk een eigen karakteristiek, functie en ontwikkeldynamiek. Deze eilanden zijn ingebed en onderling verbonden met het omliggend landschap van de Viaanse Molen.

Om de toekomstige samenhang en identiteit van de Viaanse Molen verder te ontwikkelen en te waarborgen is het Ontwikkelkader Viaanse Molen opgesteld. Dit Ontwikkelkader komt in plaats van het Ontwikkelbeeld Viaanse Molen. Het beschrijft de uitgangspunten, richtlijnen en spelregels voor de herontwikkeling. Ook beschrijft het Ontwikkelkader de samenhang in het gebied met de vijf verschillende ontwikkeleilanden Pendorp, Kantorenpark, Sluiseiland, het Bedrijvenpark en plan Buitenvaart aan de Kanaaldijk.

Het Ontwikkelkader geeft duidelijkheid aan initiatiefnemers voor het maken van plannen voor een herontwikkeling, maar ook duidelijkheid aan de bestaande gebruikers en eigenaren over de gewenste herontwikkeling van het gebied.

afbeelding binnen de regeling

Inspiratiebeeld voor de Zachte stad: Gezicht op de duinen bij Bergen, George ten Berge 1856 (Stedelijk Museaum Alkmaar)

afbeelding binnen de regeling

1.1 VERTREKPUNT

BESTAANDE KWALITEITEN VERSTERKEN

Vertrekpunt voor de herontwikkeling van het gehele gebied is het benutten van de bestaande kwaliteiten. Dat zijn de bestaande landschappelijke groenblauwstructuren met bomen, de monumentale boerderijen, de twee molens, het amateurtuinencomplex, maar ook de aanwezige sportvoorzieningen zoals de atletiekbaan en de Handboogvereniging.

ORGANISCHE GEBIEDSONTWIKKELING

Het gebied bestaat uit vijf verschillende (ontwikkel)eilanden. De condities zijn verschillend evenals de eigendomsstructuur en omliggende kwaliteiten. Er zijn locaties waar eigenaren en gebruikers tevreden zijn en waar voorlopig geen (her)ontwikkeling wordt verwacht, maar ook locaties waar leegstand is en wordt gewerkt aan planontwikkelingen. Deze aspecten leiden tot verschillende ontwikkelsnelheden en een eigen dynamiek. Het transformatieproces gaat organisch.

Tijdens het opstellen van dit Ontwikkelkader zijn er in het proces van gebiedsontwikkeling al een aantal planinitiatieven gestart. Voor het plan Buitenvaart is in 2024 gestart met de bouw van de eerste woningen. Voor Pendorp is een bestemmingsplan vastgesteld. Dit plan wordt in verschillende fasen verder uitgewerkt en gebouwd. In het Kantorenpark zijn verschillende planinitiatieven gestart. Voor Sluiseiland wordt samen met drie andere grondeigenaren gewerkt aan een ontwikkelplan. Het Ontwikkelkader fungeert als verbindende factor tussen de bestaande, de lopende en toekomstige initiatieven. Alle lopende ontwikkelingen zijn in samenhang en in lijn met de identiteit van de Viaanse Molen opgesteld en opgenomen in dit Ontwikkelkader. De uitwerking van Sluiseiland zal te zijner tijd na besluitvorming als een addendum worden toegevoegd aan dit Ontwikkelkader Viaanse Molen.

BELEIDSKADERS

Uitgangspunt voor het Ontwikkelkader is het vigerend beleid. Het Ontwikkelkader is een richtinggevende volgende stap voor de gewenste toekomstige ontwikkeling van dit deel van de stad met het Ontwikkelbeeld Viaanse Molen (2019) als vertrekpunt. Na besluitvorming in de raad is dit Ontwikkelkader het uitgangspunt voor de verdere ontwikkeling van het gebied. Het Ontwikkelkader is dus nog geen uitgewerkt ontwerp met een concrete planning.

OPENBARE RUIMTE

De transformatie van de Viaanse Molen omvat ook een herinrichting van de openbare ruimte, specifiek het groenblauwe raamwerk dat de verschillende ontwikkeleilanden omzoomt. De gemeente is verantwoordelijk voor de realisatie van de openbare ruimte. De planvorming van de openbare ruimte vindt plaats in afstemming met de initiatiefnemers, gebruikers, eigenaren, ondernemers, bewoners en andere belanghebbenden in het gebied.

OP BASIS VAN VRIJWILLIGHEID

Dit ontwikkelkader is geen verplichting tot gebiedsontwikkeling. Eigenaren kunnen zelf beslissen of en wanneer zij willen herontwikkelen. Het Ontwikkelkader is een toetsingskader als een initiatiefnemer plannen aan de gemeente voorlegt, die niet passen in het huidige omgevingsplan.

1.2 LEESWIJZER

Het Ontwikkelkader bestaat uit verschillende onderdelen die in de hoofdstukken worden toegelicht. Hoofdstuk 1 start met een introductie van het gebied. Hoofdstuk 2 is een gebiedsanalyse en start met de kansen voor het gebied samengevat in een kansenkaart. Hoofdstuk 3 gaat in op de toekomstige identiteit en kernwaarden van het gebied. Hoofdstuk 4 beschrijft het ruimtelijk raamwerk als basis voor de toekomstige ontwikkelingen. Hoofdstuk 5 beschrijft het te realiseren programma en de specifieke kaders per deelgebied. Hoofdstuk 6 gaat in op de Beeldkwaliteit van het gehele gebied. In Hoofdstuk 7 wordt ingegaan op de vijf verschillende ontwikkeleilanden. Voor het Kantorenpark wordt meer in detail ingegaan op de specifieke ruimtelijke randvoorwaarden en uitgangspunten voor dit ontwikkeleiland. Reden hiervoor is dat er het Kantorenpark veel verschillende eigenaren en eindgebruikers heeft. Dit vraagt om duidelijkheid voor de ontwikkelpartijen maar ook zeker voor de bestaande gebruikers. De spelregelkaart die voor het Kantorenpark is opgenomen is een toetsingsinstrument bij de beoordeling van de verschillende planinitiatieven en de inrichting van de openbare ruimte. De spelregelkaart borgt de samenhang tussen de verschillende projecten. In hoofdstuk 8 Ontwikkelstrategie staat het ontwikkelproces, de fasering en haalbaarheid van het plan beschreven.

afbeelding binnen de regeling

De Viaanse Molen met de verschillende ontwikkelgebieden

2. GEBIEDSANALYSE

De Viaanse Molen gelegen aan de noordkant van Alkmaar combineert de nabijheid van stad en landschap. Op slechts 10 minuten fietsen van het station en de historische binnenstad en 30 minuten fietsen naar het strand en de duinen, combineert de plek een mooie ligging aan het landschap met de nabijheid van goede voorzieningen en een goede bereikbaarheid. Door de hoogfrequente treinverbinding is Amsterdam bereikbaar binnen 45 minuten. De bereikbaarheid met de auto vanaf de N245 en N9 is optimaal. Doorgaande fietsverbindingen ontsluiten beeldbepalende landschappen in de omgeving.

2.1 KANSENKAART

afbeelding binnen de regeling

2.2 HISTORIE

Alkmaar Noord is in de jaren 70 van de vorige eeuw in relatief korte tijd gebouwd nadat de stad de status als groeikern kreeg. Tijdens deze stadsuitbreiding is het werkterrein de Viaanse Molen gerealiseerd. In de Gebiedsbiografie van het Noordhollandsch Kanaal, opgesteld door de gemeente Alkmaar, worden de kernkwaliteiten en cultuurhistorische waardering benoemd. Tevens worden er aanbevelingen gedaan. Die aanbevelingen zijn meegenomen en worden waar mogelijk ook meegenomen in de verdere ontwikkeling van het gebied.

DE BELANGRIJKSTE KERNKWALITEITEN

  • Rustige kant van de stad waar agrarisch verleden voelbaar is;

  • Drie groene historische ankerpunten: Sluismolen en Koedijkervlotbrug, Pendorp en omgeving Bergervaart met de molen De Viaan;

  • De West-Friese Omringdijk, de oevers van het Noordhollandsch Kanaal, de Bergervaart en de bermen van de hoofdroutes vormen een raamwerk van groene verbindingen;

  • Bebouwing, landschap, water en groen zijn op unieke wijze verweven door de historisch gegroeide situatie.

afbeelding binnen de regeling

CULTUURHISTORISCHE WAARDERING

  • Landschappelijke en stedenbouwkundige waarden Noordhollandsch Kanaal met brede groene oevers aan weerszijden van het Noordhollandsch Kanaal, als doorlopend groen lint. Het kanaal heeft hier, in dit gedeelte buiten de historische stad, een landelijk karakter, aangesloten op de groengebieden van dit deelgebied én van de Huiswaard;

  • De wijze waarop het zicht zich ten noorden van de Sluismolen verbreed, waar stad in land overgaat;

  • De Oude Helderseweg, als historische route en voormalig jaagpad;

  • De Koedijkervlotbrug (provinciaal monument);

  • Hoogteverschillen door de dijken.

LANDSCHAPPELIJKE EN STEDENBOUWKUNDIGE WAARDEN DE VIAANSE MOLEN

  • De drie groengebieden: bij de Sluismolen, molen De Viaan en Pendorp;

  • Het tracé en de groene oevers van de Bergervaart, als landschappelijke verbinding met het landelijke gebied tussen Bergen en Alkmaar;

  • Aan de overkant van het kanaal: de West-Friese Omringdijk (provinciaal monument) en de groenblauwe verbindingen met de woonbuurten van de Huiswaard;

  • Over de golfbaan (buiten het deelgebied) ligt nog een historische waterloop, het veenriviertje van de Bergerham.

afbeelding binnen de regeling

ARCHITECTONISCHE WAARDEN

  • Rijksmonumenten: poldermolen De Viaan met bijbehorende woning (Havinghastraat 16 en 18) en de Sluismolen (Oude Helderseweg 85A);

  • Gemeentelijke monumenten: stolpboerderij (Helderseweg 61) en de Jacobahoeve (Helderseweg 63), en de woning aan de Oude Helderseweg 91;

  • Aanvullend van architectonische waarden: de huisjes van de buurtschap bij de Sluismolen;

  • Pendorp (Provinciaal Elektriciteitsbedrijf Noord-Holland), één van de eerste ontwikkelingen in het gebied, is een historisch waardevol object als kantoorgebouw, ontworpen door Abe Bonnema en landschapsarchitect Mien Ruys.

AANDACHTSPUNTEN

  • Door de verbreding van de Helderseweg is de groene oever ten zuiden van Pendorp in het gedrang gekomen. De oever is hier gereduceerd tot een smalle strook en afgesloten met een nietpassend hekje. Ook bij de aanlanding van de Vlielandbrug is de groene oeverstrook onderbroken.

  • Het buitendijkse gebied op de plek van het voormalige Rijkswaterstaatkantoor, ontstaan tussen het rechte kanaal en een oude bocht in de Westfriese Omringdijk. Dit stuk hoort bij de groene oevers van het Noordhollandsch Kanaal.

  • De stedenbouwkundige samenhang en groenkwaliteit van het bedrijventerrein, waar de auto en logistieke vormgeving overheersen. Vergroening van de profielen en straathoeken kan hierbij helpen.

AANBEVELINGEN

  • Neem de aanwezige kwaliteiten mee naar de toekomst, zoals het groene karakter en de relicten van de agrarische sfeer.

  • Borduur in toekomstige planvorming voort op de kernkwaliteiten van het gebied, zoals de landschappelijke opzet van Pendorp.

afbeelding binnen de regeling

Monumenten aan de Westfriese Omringdijk

afbeelding binnen de regeling

Oude boerderij aan de Helderseweg

afbeelding binnen de regeling

PEN-dorp

afbeelding binnen de regeling

Koedijkervlotbrug

afbeelding binnen de regeling

Uit de Gebiedsbiografie:

Waardenkaart: waarden en aandachtspunten verbeeld.

afbeelding binnen de regeling

Uit de Gebiedsbiografie:

Paletkaart: bestaande en verdwenen erfenissen gevisualiseerd, als uitgangspunt en inspiratie voor ontwikkeling in de toekomst.

2.3 KARAKTERISTIEKEN

RUIMTELIJKE FUNCTIE

GEFRAGMENTEERDE EILANDENSTRUCTUUR

De Viaanse Molen is een langgerekt gefragmenteerd gebied, met verschillende functionele deelgebieden, elk met een specifieke functie en interne structuur. De deelgebieden zijn onderling slecht of niet verbonden, vaak afgesloten of afgehekt, omzoomd door groen. Naast de functiegebieden wordt het gebied gekenmerkt door een aantal cultuurhistorische fragmenten zoals de boerderijen aan de dijk, de molens en een aantal randstedelijke functies zoals het amateurtuinencomplex en de atletiekbaan. Het geheel leest als ‘eilanden ingebed in een groenblauw landschap’.

afbeelding binnen de regeling

Ruimtelijke functies

afbeelding binnen de regeling

Werkgebouwen op het kantorenpark

afbeelding binnen de regeling

Waterrijk krekenlandschap als inspiratie voor de zachte stad

afbeelding binnen de regeling

Ligging viaanse molen ten opzichte van het landschap

EIGENDOMMEN EN KAVELS

In de Viaanse Molen is er sprake van versnipperd eigendom. De gemeente bezit de openbare ruimte in het gebied inclusief het amateurtuinencomplex, de sportvelden en de gronden nu in gebruik bij de hondenverenigingen. In 2026 worden de gronden van Taqa in eigendom overgedragen aan de gemeente. De meeste gronden zijn eigendom van particuliere ontwikkelpartijen en of (eind)gebruikers. De versnipperde eigendomsstructuur levert het kader voor organisch ontwikkelen. Het Ontwikkelkader biedt handvatten voor een organische gebiedsontwikkeling, waarbij de samenwerking tussen verschillende eigenaren centraal staat.

afbeelding binnen de regeling

Eigendomsgrenzen

afbeelding binnen de regeling

Landschappelijke kwaliteiten aan de noordkant

LANDSCHAPPELIJKE STRUCTUREN

VAN LANDELIJK NAAR STEDELIJK

In de Viaanse Molen is de overgang van stad naar land zeer goed ervaarbaar. De noordzijde van de Viaanse Molen met o.a. het amateurtuinencomplex, het gebied rond de Sluismolen en de monumentale boerderijen langs het Noordhollandsch Kanaal, is groener, heeft nauwelijks bebouwing en voelt hierdoor landelijk aan. De zuidzijde van het gebied, met het zeer verharde en functionele karakter van het Kantorenpark en Bedrijvenpark vormt hiermee een sterk contrast. Niet alleen de private terreinen maar ook de openbare ruimte is vaak functioneel ingericht met weinig verblijfskwaliteiten.

afbeelding binnen de regeling

Groenstructuren

WISSELENDE KWALITEIT GROENE RANDEN

Het groen tussen de eilanden is van wisselende kwaliteit. De randen van Pendorp zijn zeer groen en aantrekkelijk met grote bomen langs watergangen met rietkragen. Tussen het Kantorenpark en het Bedrijvenpark is de ruimte door de inpassing van de afslag van de N245 en de Havinghastraat meer functioneel van aard met weinig lommerrijk groen. Aan de regionale weg (N9) ten westen van het amateurtuinencomplex is de groene inrichting schraler dan aan de noordoostzijde; aan de noordoostzijde langs het amateurtuincomplex is deze rand groener en kwalitatiever met een dubbele bomenrij.

Het gebied ligt verlaagd ten opzichte van de dijk langs het kanaal en heeft o.a. hierdoor geen sterke relatie met het water. De Heldersewegop de dijk, parallel aan het kanaalvormt als brede verkeersstructuur met name aan de zuidzijde vanaf Pendorp een extra barrière naar het water. Aan de Oude Helderseweg is het water beter ervaarbaar.

afbeelding binnen de regeling

Groene rand aan de noordkant

WEGENSTRUCTUUR

De eilandenstructuur wordt versterkt door de ontsluitingsstructuur. De verschillende eilanden worden voor de auto via inprikkers ontsloten vanaf de Helderseweg, de hoofdontsluitingsweg van de Viaanse Molen.

  • Het Kantorenpark wordt ontsloten vanaf de Havinghastraat en de Helderseweg – via de Ohmstraat en de Voltastraat. Deze twee inprikkers sluiten aan op de James Wattstraat, een centrale ringweg die de meeste kavels ontsluit. Vanaf de James Wattstraat worden de kavels aan de westrand via de Ampèrestraat ontsloten;

  • Pendorp wordt via het Kantorenparkde Voltastraat en de James Wattstraat – ontsloten;

  • Het Bedrijvenpark is bereikbaar vanaf de afslag van de N245 en de Helderseweg via de Havinghastraat;

  • Sluiseiland wordt direct ontsloten via de Helderseweg ter hoogte van de kruising Kogendijk.

Voor de fietser en voetganger ontbreekt een fijnmazig langzaamverkeersnetwerk. De eilanden zijn met name op de auto gericht. Aan de zuidzijde (in oostwestrichting) van de locatie en parallel aan de Helderseweg (noordzuid) zijn belangrijke doorgaande fietsverbindingen met het buitengebied. De directe nabijheid van het open landschap van de Bergermeerpolder is een enorme kwaliteit, de route ernaartoe is echter geen aantrekkelijke entree naar het landschap.

“GOED BEREIKBAAR,INTERN SLECHTVERBONDEN”

afbeelding binnen de regeling

Bereikbaarheid Viaanse Molen

Ruimtelijke functies

De Viaanse Molen is met zijn 67 hectare primair opgezet als werkterrein. Er zijn verschillendeeilanden met een eigen functie, kenmerken en identiteit. De verschillende eilanden zijn:

afbeelding binnen de regeling

2.4 TECHNISCHE RANDVOORWAARDEN

KABELS & LEIDINGEN

In het gebied bevindt zich een aantal leidingen met veiligheidszones waarbinnen niet gebouwd mag worden. Het betreft een buisleiding met gevaarlijke inhoud aan de zuidwestzijde van het gebied tussen het fietspad en de sloot parallel aan de Havinghastraat, en twee hogedrukgasleidingen: één op de Kanaaldijk parallel aan de Helderseweg en één onder het fietspad aan de noordzijde van de Havinghastraat.

MILIEUZONERING

In het gebied is een aantal bedrijven actief met een milieucontour. TAQA heeft een risicocontour maar zal na 2026 niet meer in bedrijf zijn en heeft daarna geen invloed op de ontwikkeling van dit gebied. Op het RWZIterrein is een aantal bedrijven met een risicoen geurcontour. Deze hebben geen invloed op de ontwikkeling van het Kantorenpark, Pendorp of Sluiseiland naar een gemengd gebied. Het Bedrijvenpark behoudt zijn functie.

afbeelding binnen de regeling

Milieucontouren

TAQA

afbeelding binnen de regeling

GELUIDSHINDER

De N9 aan de westrand van de locatie heeft een geluidscontour die eisen stelt aan de bebouwing bij herontwikkeling of transformatie naar woningbouw. Dit geldt ook voor de huidige inrichting van de Helderseweg.

WATERKERING

De dijken aan het kanaal en de Bergervaart zijn waterkeringen en hebben een beschermingszone met bouwrestricties binnen deze dijkzones.

afbeelding binnen de regeling

Beperkingengebied waterkering (HHNK)

afbeelding binnen de regeling

Geluidkaart NHN2017

MOLENBIOTOOP

In de Viaanse Molen staan twee molens: De Viaan en de Sluismolen. De molens zijn op grond van de Waterschapsverordening van het Hoogheemraadschap Hollands Noorderkwartier (HHNK) maalvaardige windmolens. Hierin staan regels (geboden en verboden: zie bijlage I Beleid) die een waterschap hanteert bij de bescherming van onder andere waterkeringen en watergangen en wegen. Beide molens hebben in het huidige omgevingsplan een beschermingszone van 400 meter voor de windvang. Binnen deze beschermingszone geldt een beperking met betrekking tot de toegestane bouwhoogte.

SLUISMOLEN

De Sluismolen, gebouwd in 1575, staat nabij de Koedijkervlotbrug over het Noordhollandsch Kanaal, aan de kop van Sluiseiland. De molen is een poldermolen – type grondzeileren bemaalt op vrijwillige basis de Sluispolder en is in eigendom van het HHNK. De molen heeft een molenbiotoopbeschermingszone voor de windvang – met een ruime straal van 400 meter. Een groot deel van Sluiseiland bevindt zich in deze zone. In de huidige situatie is beperkt bebouwing aanwezig die hoger is dan wat mogelijk is conform de Waterschapsverordening. Uitgangspunt is dat bij de herontwikkeling van de Sluismolen het huidig functioneren van de molen niet mag verslechteren ten opzichte van het huidig functioneren.

afbeelding binnen de regeling

Sluismolen

DE VIAAN

Het gebied de Viaanse Molen dankt zijn naam aan de molen De Viaan. Deze molen uit 1579 is een poldermolentype grondzeilerin eigendom van het HHNK. Samen met een elektrisch gemaal bemaalt de molen nu nog een 464 ha groot gedeelte van de Bergermeerpolder. De molen ligt zuidwestelijk van het Kantorenpark en heeft een molenbiotoop –beschermingszone voor de windvang – met een ruime straal 2.van 400 meter. Een groot deel van het Kantorenpark en het Bedrijvenpark bevindt zich in deze zone. In de huidige situatie bevinden zich hier gebouwen die hoger zijn dan wat mogelijk is conform de Waterschapsverordening. Uitgangspunt is dat bij de herontwikkeling van de Viaanse Molen het functioneren van de molen niet mag verslechteren ten opzichte van de huidige situatie.

afbeelding binnen de regeling

Molen De Viaan

3 IDENTITEIT & KERNWAARDEN

De Viaanse Molen wordt de Zachte stad aan het Alkmaars kanaal. Het landschap is hierin de belangrijke identiteitsdrager. Voor de identiteit en verschijningsvorm zijn de verwevenheid van groen en stedelijkheid en de nabijheid van het landschap leidend. Een leefomgeving waarin groen en landschappelijkheid op alle niveaus verweven zijn, van de woning tot aan het kanaal.

In de Viaanse Molen worden drie kernwaarden ontwikkeld: natuurwaarde, collectieve waarde en toekomstwaarde. Deze kernwaarden zijn leidend bij de ontwikkeling van het gebied.

3.1 KERNWAARDEN

afbeelding binnen de regeling

NATUURWAARDE

De natuurwaarde wordt versterkt door een robuust klimaatadaptief en natuurinclusief systeem te ontwikkelen. Hierin functioneert het groenblauwraamwerk als een spons, met ruim waterbergend vermogen en de ontwikkeleilanden als klimaateilanden. De biodiversiteit wordt versterkt door o.a. in te zetten op een natuurvriendelijke inrichting en een grote diversiteit aan beplantingssoorten. Bestaande structuren vormen de basis van het toekomstige landschap en worden versterkt.

afbeelding binnen de regeling

COLLECTIEVE WAARDEN

In het gebied worden collectieve waarden ontwikkeld door in te zetten op toegankelijkheid, beleving en gebruik. Door het landschappelijke raamwerk te ontwikkelen met plekken voor ontmoeting, rust, wandelen, sporten en spelen; door de ruimtelijke inbedding en programmering van cultuurhistorische objecten zoals de molens en boerderijen met publieke en/of collectieve functies; door de eilanden inclusief voor diverse doelgroepen met verschillende woonvormen te ontwikkelen. Naast woningen worden ook werk en collectieve functies ontwikkeld die bijdragen aan het samenleven en de gemeenschapszin zowel op gebouw-, clusterals gebiedsniveau.

De landschappelijke en stedelijke ambities voor het gebied zijn nu niet of nauwelijks aanwezig en zijn niet zomaar gemaakt. Daar is een collectieve inspanning voor nodig waarbij de ontwikkeling van individuele kavels bijdraagt aan de ontwikkeling van de gebiedskwaliteiten. Deze gezamenlijke ontwikkeling is de basis voor eigenaarschap en collectiviteit in de Viaanse Molen.

Samen wordt een groen collectief landschap per eiland ontwikkeld doordat iedere ontwikkeling investeert in dit interne landschap (zowel binnen als rondom het eiland) door (tenminste) 20% van de eigen kavel met groen (of water) in te richten. Deze groengebieden sluiten aan op de al aanwezige openbare ruimte en creëren het toekomstige landschap.

afbeelding binnen de regeling

TOEKOMSTWAARDE

Het gebied wordt duurzaam ontwikkeld. Dat wil zeggen energieneutraal, circulair, klimaatbestendig, gezond o.a. door in te zetten op duurzame mobiliteit. Om op een duurzame, toekomstbestendige manier te bouwen heeft de gemeente Alkmaar het Convenant Toekomstbestendig Bouwen ondertekend (februari 2022). De normen uit het convenant zijn ambitieuzer dan de huidige wettelijke norm, zodat woningen sneller, goedkoper en duurzamer gebouwd kunnen worden. Door in te zetten op behoud, hergebruik, flexibel bouwen en hernieuwbare bronnen wordt in de basis circulair ontwikkeld in de Viaanse Molen. Toepassing van duurzame materialen als hout sluit aan bij de natuurlijke en landschappelijke identiteit van het gebied.

De gemeente Alkmaar streeft naar een energieneutraal en aardgasvrije toekomst o.a. door realisatie van goed geïsoleerde panden, door duurzaam energie op te wekken en duurzame warmtebronnen te benutten. Er wordt energieneutraal ontwikkeld door in te zetten op:

  • Alle ontwikkelingen zijn tenminste nulop de meter en van het gas af;

  • Minimalisatie van het energieverbruik door gebouwen goed geïsoleerd en passief te ontwerpen, dat wil zeggen door goede oriëntatie op de zonen windpositionering van buitenruimte e.d.; tevens voldoen aan de TOjuli (temperatuuroverschrijding) eis.

  • Duurzaam opwekken met lokaalopgewekte zonneenergie. Een aandachtspunt bij de verdere uitwerking is de capaciteit van het elektriciteitsnetwerk;

  • Water en bodemsturend door de ruimteljike ordening aan te laten sluiten bij de natuurlijke kenmerken van het wateren bodemsysteem en er zo voor te zorgen dat er veiligheid is en blijft om te wonen;

  • Duurzaam verwarmen (en koelen) met een (collectief) warmtesysteem, bijvoorbeeld een WKOsysteem. In dit gebied is stadswarmte niet mogelijk;

  • De ruimte in de ondergrond is schaars en vraagt een integrale afstemming.

3.2 RUIMTELIJK CONCEPT

Een leefomgeving waarin groen en landschappelijkheid op alle schaalniveaus verweven zijn, van de woning tot aan het kanaal.

afbeelding binnen de regeling

HET LANDSCHAP VERBINDT

Het bestaande groen rondom de ontwikkeleilanden wordt ontwikkeld tot een landschapspark een groen, klimaatadaptief, biodivers, waterrijk en recreatief gebied tussen de eilanden. Het landschapspark zorgt voor verbinding tussen de eilanden en is door middel van een fijnmazig langzaamverkeersnetwerk doorwaadbaar en goed toegankelijk. Het park is de plek voor een dagelijkse wandeling of hardlooprondje als ook voor de rust en ontspanning. De aanwezige functies zoals de atletiekbaan, het tuinencomplex en de groene omgeving van de molens zijn onderdeel van het landschapspark en worden ontwikkeld als recreatieve plekken.

ELK EILAND EEN KLOPPEND HART

Elk ontwikkeleiland heeft een interne openbare ruimte structuur die in verbinding staat met het landschapspark. Dit interne landschap heeft idealiter een centrale plek voor ontmoeting en reuring en is bij uitstek de plek waar voorzieningen bij elkaar komen. De ontsluiting van de kavels (gericht op een wandelen en fietsen met de auto te gast) is ook opgenomen in deze structuur met voorkanten en entrees aan de openbare ruimte. De bebouwing binnen de eilanden is met voorkanten gericht op het landschapspark.

WONEN DOE JE SAMEN

Wonen doe je samen in de Viaanse Molen. Niet alleen de openbare ruimte is plek van ontmoeting onderweg naar de eigen woonentree of de collectieve opgang. Ook in het collectieve hof komen bewoners bij elkaar. Elk gebouw of gebouwencluster is in verbinding met het omliggende landschap. Een diversiteit aan gebouwtypen met een grote diversiteit aan woningtypen, woninggroottes en woonvormen voor verschillende doelgroepen maken het gebied inclusief en creëren een rijk en divers beeld, passend bij de zachte stad.

4. PROGRAMMA

De Viaanse Molen als Zachte stad onderscheidt zich van de andere deelgebieden van het Alkmaars Kanaal o.a. door de directe nabijheid van het landelijke gebied. Het is een overgangsgebied waar Alkmaar stad en het landschap van NoordHolland Noord met elkaar versmelten. De Viaanse Molen gaat voorzien in de behoefte van bewoners die wel bij, maar niet midden in de stad willen wonen. Hier wordt een nieuw woonen werkmilieu ontwikkeld, gericht op duurzaamheid, groen en collectiviteit.

4.1 WERKEN EN VOORZIENINGEN

In het Ontwikkelbeeld wordt in de Viaanse Molen uitgegaan van 20% werken/voorzieningen en 80% wonen. Het plangebied gaat van een volledig werkgebied naar een gemengd gebied. We zetten in op multifunctionele plinten die kunnen verkleuren naar wonen. Veel werkfuncties blijven voorlopig in het gebied. Ambitie is uiteindelijk tot een mix van wonen en werken of voorzieningen te komen.

Om vanaf aanvang al een aantrekkelijk en levendig leefgebied te ontwikkelen zijn collectieve voorzieningen in de wijk belangrijk. Denk hierbij aan buurtkamer, zorg- (tandarts, huisarts, consultatiebureau), sporten leisurevoorzieningen. Omdat het gebied zich geleidelijk ontwikkelt is het belangrijk dat voorzieningen ook geleidelijk worden toegevoegd.

Uiteindelijk komen er ruim 2.000 woningen bij in het gebied en daar horen ook de nodige zorg en maatschappelijke voorzieningen bij. Gaandeweg het ontwikkelproces wordt telkens herijkt of er ook voldaan wordt aan de behoefte en aan de geldende normen voor voorzieningen in Alkmaar.

afbeelding binnen de regeling

Referentie: ruimte voor werklocaties

4.2 WONEN

Iedereen verdient een woning in de buurt van voorzieningen, opleiding en werk. De gemeente Alkmaar streeft daarom naar een gevarieerd woningaanbod in alle wijken. De Viaanse Molen onderscheidt zich van de andere deelgebieden van het Alkmaars Kanaal door de nabijheid van het landelijk gebied. Het is een overgangsgebied waar Alkmaar stad en het landschap NoordHollandNoord met elkaar versmelten. De Viaanse Molen gaat voorzien in de behoefte van mensen die wel bij, maar niet midden in de stad willen wonen. Hier wordt een nieuw woonmilieu geboden dat draait om duurzaamheid, groen en sociale collectiviteit. De Viaanse Molen wordt een zachte stadswijk. Voor zowel mensen uit het centrum als de omliggende wijken en dorpen. In de Viaanse Molen worden ruim 2.000 woningen gerealiseerd.

In de buurten rondom Viaanse Molen is op dit moment een hoog aandeel eengezinswoningen (70 – 86%), overwegend in de koopsector. Bewoners in deze buurten zijn op zoek naar kansen voor doorstroming. Door nieuwe woontypologieën te realiseren in de Viaanse Molen wordt de westrand van de stad van een divers woningaanbod voorzien: enerzijds om doorstroming op gang te krijgen en beweging in de bestaande wijken te creëren, anderzijds om nieuwe doelgroepen aan te trekken. In de Viaanse Molen wonen in de toekomstige situatie diverse doelgroepen. Er is een combinatie van grondgebonden woningen en appartementencomplexen, met incidenteel een hoogteaccent. Om verschillende doelgroepen een plek te kunnen geven in het gebied worden verschillende collectieve gebouwen woningtypen ontwikkeld.

Er is een aantal kantoorgebouwen die grotendeels worden getransformeerd tot appartementengebouwen. Hier is met name ruimte voor eenen tweepersoonshuishoudens. Ook in de stedelijke rand van het Pendorp komen o.a. appartementen. In het overige deel van de Viaanse Molen tussen het Pendorp en Sluiseiland zijn met name gezinswoningen beoogd. Ook zijn er mogelijkheden om een woonzorgcomplex te realiseren. In Sluiseiland willen we bovendien ruimte bieden aan particulier opdrachtgeverschap. Hierbij kopen of pachten kopers zelf hun grondkavel en kunnen kopers samen met een architect hun woning realiseren.

VOOR WIE?

De combinatie van landschappelijkheid en stedelijkheid met de nodige voorzieningen maakt het gebied aantrekkelijk voor diverse doelgroepen op zoek naar rust én een zekere reuring:

  • Moderne gezinnen op zoek naar een eigentijdse (gestapelde) gezinswoning.

  • Senioren die hun grote grondgebonden woning willen verruilen voor een comfortabel appartement.

  • Starters en alleenstaanden die een ruime en betaalbare woning willen in een open en uitnodigende omgeving met volop ruimte voor sporten en buiten leven.

  • Ouderen die zorg nodig hebben en niet meer zelfstandig kunnen wonen.

  • Groepen in bijzondere (collectieve) woonvormen met bijvoorbeeld extra zorg of gedeelde voorzieningen.

In de Viaanse Molen worden ruim 2.000 woningen gerealiseerd. Dit gebeurt in de verschillende ontwikkeleilanden. Dit is nader toegelicht in hoofdstuk 7.

4.3 MOBILITEIT GEPASTE MOBILITEIT

GEPASTE MOBILITEIT

Extra aandacht voor mobiliteit is ook nodig om de zachte stad vorm te kunnen geven. Bij een uitnodigende openbare ruimte met meer verblijfskwaliteit hoort een gepaste mobiliteit met minimale ruimtevraag. Goede en aantrekkelijke fietsverbindingen stimuleren het gebruik van de fiets en het ov. De openbare ruimte is autoluw ingericht en geparkeerde auto’s worden zoveel mogelijk uit het zicht of in het groen opgenomen en waar mogelijk in gebouwde parkeervoorzieningen opgenomen. Het gebied is voor voetgangers goed doorwaadbaar door een fijnmazig wandelnetwerk. Een traag netwerk ontsluit de Zachte stad.

LANGZAAM VERKEER

De doorgaande hoofdfietsroutes liggen in noordzuid richting in het Kanaalpark en in oostwest richting parallel aan de Havinghastraat. De straten in het gebied zijn gemengd voor fietsen en autoverkeer. De hoofdwandelroutes in het gebied liggen in het landschap tussen de eilanden en het interne landschap. Naast deze routes wordt een fijnmazig netwerk van wandelpaden ontwikkeld dat de gebouwen(clusters) met het omliggende landschap verbindt.

afbeelding binnen de regeling

Helderseweg: doorsnede voorkeursvariant

afbeelding binnen de regeling

Ontsluiting

Alle eilanden hebben een directe aansluiting op de Helderseweg. Dit kan in de vorm van een directe ontsluiting of in de vorm van een calamiteitenroute/ fietsroute.

afbeelding binnen de regeling

Langzaam verkeer

De hoofdfietsroute blijft aan de zijde van het Kanaal. De fietsroute aan landzijde komt geheel te vervallen. Op termijn zullen er extra fietsverbindingen worden aangelegd door het gebied met eveneens een directe aansluiting op de Helderseweg.

HELDERSEWEG NOORD

De Helderseweg Noord wordt opnieuw ingericht naar een weg meer passend bij de toekomstige woonen werkomgeving. De weg blijft liggen op de huidige plek maar wordt versmald volgens de landelijke richtlijnen. De weg krijgt een meer bochtige inrichting door op enkele plekken groenstroken tussen de rijbanen te realiseren. Hierdoor gaat het verkeer minder hard rijden. Om de verkeersveiligheid voor de toekomstige bewoners en weggebruikers te waarborgen worden op enkele plekken verhoogde oversteekplateaus voor voetgangers en fietsers aangebracht. Er komt een breed nieuw fietspad aan de zijde van het kanaal. Het fietspad aan landzijde verdwijnt en wordt volledig groen ingericht. Ter hoogte van Sluiseiland wordt het nieuwe fietspad op termijn door het Sluiseiland geleid. Voor voetgangers komt een struinpad langs het kanaal. Het kantorenpark behoudt een directe ontsluiting op de Helderseweg en voor Sluiseiland komt een nieuwe directe ontsluiting.

PROGRAMMA PARKEREN

De dichtheid en het gemengde karakter van het gebied in combinatie met de parkeernormen leiden tot een parkeervraag die veel impact heeft op het gebruik en de beleving van de openbare ruimte. Om een aantrekkelijk en klimaat adaptief gebied te kunnen realiseren moet elke ontwikkeling (individueel of gezamenlijk) voldoen aan de volgende uitgangspunten:

  • Parkeeraantallen volgens de gemeentelijke parkeernormen/ volgens vigerend beleid;

  • Parkeren op eigen terrein;

  • Parkeren op het maaiveld mag, mits uit het zicht, zoveel mogelijk landschappelijk ingepast of in een gebouwde voorziening

  • Inzetten op zoveel mogelijk dubbelgebruik door menging parkeren voor bewoners, werknemers en bezoekers;

  • Elektrische voertuigen en deelmobiliteit worden gefaciliteerd;

  • Fietsparkeren (bij appartementen) volgens Alkmaarse bouwbrief met extra aandacht voor bakfietsen, ebikes en scootmobiels;

afbeelding binnen de regeling

Referenties: parkeervoorziening voor de wijk

5. RUIMTELIJK RAAMWERK

In de Viaanse Molen wordt voortgeborduurd op de huidige kwaliteiten en eilandenstructuur. Het gebied verloopt in noordzuidrichting geleidelijk van landelijk naar stedelijk. Ook hier bouwen we op voort. Dit betekent dat sommige functies nu (nog) behouden blijven en de bebouwingsdichtheid naar het noorden toe afneemt. Het bestaande groen wordt versterkt en toegankelijk gemaakt. Langs het Noordhollandsch Kanaal wordt extra groen gecreeerd met publieke verblijfsplekken of ankerpunten. Goede fietsverbindingen en een fijnmazig wandelnetwerk verbinden naast een goede busverbinding, het gebied met de stad en het buitengebied.

5.1 STEDENBOUWKUNDIGE PRINCIPES

LANDSCHAP ALS DRAGER

Het landschap vormt straks de ruimtelijke drager voor de leefkwaliteit in de Viaanse Molen. Dit landschap is in potentie aanwezig in het gebied en wordt verder ontwikkeld tot het toekomstige groenblauwe raamwerk en ruimtelijke hoofddraagstructuur van de Viaanse Molen. Uitgangspunt is dat de verschillende ontwikkelingen in het gebied bijdragen aan de totstandkoming van dit groenblauw raamwerk.

Het groene landschappelijke karakter wordt op verschillende schaalniveaus ontwikkeld zodat de zachte kwaliteiten overal ervaren worden. Op schaalniveau van de Viaanse molen wordt het landschapspark ontwikkeld, dit is het bestaande groen tussen de ontwikkeleilanden en de zone aan het kanaal. Karakteristiek voor dit landschapsstructuur naast de dijk aan het kanaal, is een nat en zompig landschap, met brede waterlopen en brede rietkragen, (grote) bomen en een diversiteit aan beplanting. Het refereert aan het oorspronkelijke krekenlandschap. De robuuste maat, het extensieve karakter, de geleidelijke overgangen tussen land en water en de structuurrijke vegetatie maken dat het landschapspark grote ecologische waarde heeft.

Op schaalniveau van de eilanden wordt een intern landschap ontwikkeld dat voortbouwt op bestaande openbare ruimte en groenstructuur. Dit bestaande raamwerk wordt zo veel mogelijk vergroend en klimaatadaptief ingericht. Op het niveau van het bouwblok of de kavel wordt minimaal 20% volle grond groen toegevoegd aan het gebied. Dit groen sluit zoveel mogelijk aan op de bestaande groene openbare ruimte, is klimaatadaptief en heeft een gebruikswaarde. Het collectief ontwikkelen van deze plekken draagt bij aan de collectieve waarde die ook wordt beoogd in de Viaanse Molen.

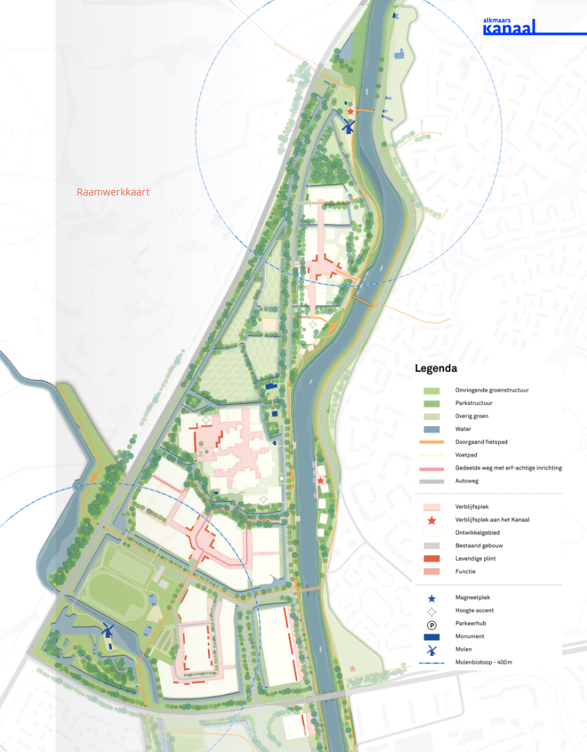
afbeelding binnen de regeling

Raamwerkkaart

UITGANGSPUNTEN LANDSCHAPSPARK

  • Brede groenblauwe zone rondom de ontwikkeleilanden;

  • Sportpark (atletiekbaan), molens en amateurtuincomplex zijn integraal onderdeel van het landschapspark;

  • Cultuurhistorische elementen worden behouden als identiteitsdragers en benut voor recreatieve doeleinden;

  • Klimaatadaptief: hittestress en meer ruimte voor water met flauwe oevers en brede plasdraszones;

  • Belangrijkste drager van het watersysteem van de Viaanse Molen;

  • Versterken biodiversiteit: natuurvriendelijke oevers, structuurrijke vegetatie met inheemse soorten; beplanting gericht op doelsoorten;

  • Recreatief landschap met rustplekken, ontmoetingsplekken, en fijnmazige wandelnetwerk met bruggen over het water;

  • Fijnmazig verbonden: inpassen van (voor iedereen toegankelijk) wandelnetwerk en een doorgaande fietsverbinding tussen de verschillende eilanden en het landschap. Het amateurtuinencomplex en sportvelden (atletiekbaan) deels openstellen en verbinden met routes door deze gebieden is een belangrijk uitgangspunt voor de beleving en toegankelijkheid van het landschap.

UITGANGSPUNTEN KANAALPARK

  • Onderdeel van het te ontwikkelen KanaalPark langs het Noordhollandsch Kanaal in de Kanaalzone;

  • Verblijfsplekken of magneetplekken aan het water; bijvoorbeeld nabij cultuurhistorisch erfgoed;

  • Versterken biodiversiteit: natuurvriendelijke oeversbeheer & onderhoud en structuurrijke vegetatie met inheemse soorten;

  • Verkeersveilige route naar de binnenstad (extra aandacht hiervoor aan de zuidzijde);

  • Mogelijk op lange termijn extra brug over het kanaal om de relatie met Alkmaar Noord te versterken.

afbeelding binnen de regeling

VERSCHILLENDE WOONMILIEUS

Op de verschillende eilanden worden verschillende woonmilieus en kwaliteiten ontwikkeld. Aan de noordzijde is de dichtheid laag en de sfeer dorpser en landschappelijk. Naar het zuiden toe, dichter op de stad, neemt de dichtheid toe en is het leefmilieu groenstedelijke met een bredere mix van wonen werken en voorzieningen. De groene kwaliteiten worden meegenomen in de architectonische uitwerking o.a. in het toepassen van groen in en aan de gevels.

BOUWHOOGTE

De bebouwing in de Viaanse Molen heeft een bouwhoogte variërend tussen 2 tot 16 bouwlagen. Er worden 3 hoogtezones gedefinieerd:

  • laagbouw (26 bouwlagenca. 719 m)

  • middenbouw (712 bouwlagenca. 1235 m)

  • hoogbouw (1316 bouwlagenca. 3550 m)

In het Pendorp is ruimte voor twee hoogteaccenten tot 16 bouwlagen (50 meter boven maaiveld). Het hoogteaccent heeft een maximale footprint van 600 m2 en een hoogte/breedte/diepteverhouding van 1: >2,5. De positie van het hoogteaccent wordt gerelateerd aan de andere hoogteaccenten in de Viaanse Molen (zie hiervoor het Ontwikkelbeeld Viaanse Molen) en aan het Kanaalpark. Hierbij is ook extra aandacht voor mogelijke negatieve effecten op de omgeving door schaduwwerking en windhinder.

UITGANGSPUNTEN ONTWIKKELEILANDEN

  • Van landschappelijk naar stedelijk leefmilieu;

  • Uitwerking kernwaarden per eiland;

  • Gebruik maken van bestaande kwaliteiten;

  • Verbinding met en bijdragen aan het landschapspark;

  • Eigendomsstructuur als basis (organisch of geleidelijke ontwikkeling).

afbeelding binnen de regeling

5.2 LANDSCHAPPELIJKE PRINCIPES

GROEN EN WATER

Om het interne landschap per eiland te kunnen ontwikkelen, worden eisen gesteld per ontwikkeling. In principe draagt elke ontwikkeling op verschillende schaalniveaus bij aan een groener, biodiverser en klimaatbestendiger gebied. Elke ontwikkeling voegt 20% volle grond groen toe aan het interne landschap t.b.v. de klimaatadaptatie (infiltratie en bomen tegen hittestress) en groene verblijfsplekken. De inrichting sluit aan op het openbare gebied en op het nog te ontwikkelen inrichtingsplan voor het Kantorenpark. Bestaande kavels kunnen nu al hieraan bijdragen. Hierdoor kan de openbare ruimte al in de eerste fase een transformatie kunnen ondergaan.

Ook de gebouwenclusters dragen bij aan een klimaatadaptief gebied. Hoven en daken worden groen ingericht. In gevels en buitenruimtes (tuintjes, balkon en terrassen) kan ook groen geïntegreerd worden. Groene gevels, nestkastjes e.d. dragen bij aan de biodiversiteit in het gebied.

De inrichting van de openbare ruimte wordt uitgewerkt in een separaat groeninrichtingsplan, in overleg met verschillende eigenaren in het gebied. Streven is eenheid in ontwerp van het landschap voor hele terrein. Het beheer en onderhoud wordt in een beheersplan groen vastgelegd, conform gemaakte afspraken met het HHNK en molenaren (zie paragraaf ‘bouwen binnen molenbiotoop’).

PRINCIPES GROEN EN WATER:

Elke ontwikkeling draagt bij aan het landschappelijke raamwerk door:

  • Eis: 20% volle grond groen wordt op eigen kavel ontwikkeld. Deze 20% groen is klimaatadaptief (bomen tegen hittestress, maatregelen t.b.v. de wateropgave) en ingericht op (collectief) gebruik. Waar mogelijk sluit deze nieuwe groenstructuur aan op bestaand groen om voor een doorlopend en verbonden systeem.

  • Hoven zijn zo vormgegeven dat er voldoende ruimte is voor bomen in de volle grond. Ook hoven op daken hebben voldoende gronddekking voor (kleine) bomen.

  • Bestaande waardevolle bomen worden zoveel mogelijk behouden.

  • Ten behoeve van de wateropgave worden maatregelen toegepast voor tijdelijk bergen, hergebruiken en langzaam afvoeren van regenwater, op daken, in hoven en in de openbare ruimte.

  • Groene daken, gevels, en buitenruimten dragen bij aan de sfeer van de Zachte stad.

  • Er wordt zo min mogelijk verharding toepassen in de buitenruimte en in de openbare ruimte.

  • De overgang openbaar privé is zacht en de ‘zachte stad’ is leesbaar in de gevels en in de overgang naar openbaar gebied.

20% VOLLE GROND GROEN OP EIGEN KAVEL

afbeelding binnen de regeling

GROENE DAKEN EN HOVEN

afbeelding binnen de regeling

ZO MIN MOGELIJK VERHARDING

afbeelding binnen de regeling

RICHTLIJNEN WATERBERGING

In Alkmaar worden de richtlijnen voor klimaatbestendigheid (basisveiligheidsniveau) van de Metropoolregio Amsterdam als uitgangspunt gehanteerd. Om wateroverlast tegen te gaan wordt per ontwikkeling de neerslag van een hevige bui (70 mm in een uur) op het (privaat) terrein opgevangen en vertraagd afgevoerd. De berging wordt (ten minste 24 uur) vastgehouden en hergebruik is in maximaal 60 uur weer beschikbaar. Het extra toe te voegen en het bestaande water in het openbare gebied plus het 20% volle grond groen met waterbergende/infiltrerende functie op privékavels moeten afdoende zijn voor de wateropgave in het plangebied.

OPENBARE RUIMTE EN ONDERGROND

Zowel de ondergrondse infrastructuur voor energie en warmte als de verzwaring van het elektriciteitsnetwerk en de klimaatadaptieve maatregelen hebben een grote bovenen ondergrondse ruimteclaim. Het is noodzakelijk om inpassing van al deze opgaven goed op elkaar af te blijven stemmen, om conflictsituaties te voorkomen. Dit vraagt om een weloverwogen beslissing over de belangen die een plek in de ondergrond moeten hebben. Er moet, naast de bovengrondse ruimtelijke afweging, ook worden gezorgd voor een goed afgewogen ondergrondse ruimtelijke ordening.

Het water-en bodemsysteem in Nederland staat onder druk, zo ook in Alkmaar en dus in de Viaanse Molen. Op landelijk niveau zijn structurerende keuzes meegegeven om dat natuurlijke systeem te beschermen en te herstellen: het principe van water en bodem sturend. Water en bodem sturend is erop gericht om met de ruimtelijke ordening aan te sluiten bij de natuurlijke kenmerken van het wateren bodemsysteem en er zodoende voor te zorgen dat er veiligheid is en blijft om te wonen, werken, recreëren etc. Het principe van water en bodem sturend in combinatie met de normen en richtlijnen vanuit het gemeentelijke beleid voor klimaatadaptatie en een verdiepende waterhuishoudkundige analyse zorgen voor een stevige basis voor de ondergrond van Viaanse Molen.

Door uit te gaan van de bestaande kavelgrenzen wordt er bewust geen voorschot genomen op het verleggen van kabels en leidingen. Bij de uitwerking van deelplannen kan het verleggen van kabels en leidingen noodzakelijk zijn en kan er een integrale afweging worden gemaakt.

ENERGIETRANSITIE

Elektriciteit begint een schaars goed te worden. Om netcongestie het hoofd te bieden, wordt er nadrukkelijk gekeken naar warmteen koude levering vanuit de ondergrond. Echter, de ruimte in de ondergrond is ook schaars. De gemeente Alkmaar hanteert bodemenergieplannen om ordening op de ondergrond toe te passen. Daarmee zorgen we dat de verschillende bodemsystemen elkaar niet in de weg gaan zitten.

Met het toepassen van bodemenergiesystemen als bodemlussen en Warmtekoudeopslag (WKO) neemt de druk op het elektriciteitsnet af, gaan de rendementen van warmteen koude systemen omhoog en verbeteren de energielabels van gebouwen. Dit leidt tot hogere kwaliteit van de gebouwen.

Op basis van een Bodemenergieplan worden keuzes gemaakt over de warmtekoudelevering via WKO’s. Ook worden de voorwaarden voor het slaan van bodemenergiesystemen in dit bodemenergieplan vastgelegd. De clustergewijze aanpak zorgt ook hier voor ene goede integrale afweging. Het bodemenergieplan wordt op basis van dit ontwikkelkader gemaakt en op een later moment opgesteld.

afbeelding binnen de regeling

6. BEELDKWALITEIT OP HOOFDLIJNEN

In deze beeldkwaliteitsparaaf zijn de vigerende welstandscriteria (vastgesteld d.d. 26 september 2016) aangescherpt op basis van de kernwaarden van het gebied. Aanleiding hiervoor is de gewijzigde context waarbij het gebied wordt ontwikkeld tot de Zachte stad aan het Alkmaars kanaal. De beeldkwaliteit dient bij te dragen aan deze gebiedsidentiteit.

6.1 LEIDENDE PRINCIPES

Dit ontwikkelkader beschrijft op hoofdlijnen de beeldkwaliteitseisen van de Viaanse Molen. Ieder ontwikkeleiland neemt in ieder geval deze beeldkwaliteitseisen mee. Elk ontwikkeleiland heeft waar nodig nog een aanvullend beeldkwaliteitsplan specifiek gericht op dat ontwikkeleiland. Dit is het geval bij het Pendorp, het Kantorenpark en op termijn ook Sluiseiland. In hoofdstuk 7 van dit ontwikkelkader komen we hierop terug voor deze drie ontwikkeleilanden.

Om de gebiedsidentiteit van de Zachte stad te ontwikkelen zetten we in op de volgende 4 leidende principes:

  • A.

    Ontwikkelen van een groene, biodiverse en klimaatbestendige omgeving;

  • B.

    Groen is overal toegankelijk, beleefbaar en zichtbaar;

  • C.

    Een samenhangend en gevarieerd bebouwingsbeeld met zachte overgangen en silhouetten;

  • D.

    Circulaire en energetisch duurzame gebouwen.

Per leidend principe geldt een aantal uitgangspunten.

afbeelding binnen de regeling

A. HET ONTWIKKELEN VAN EEN GROENE, BIODIVERSE EN KLIMAATBESTENDIGE OMGEVING DOOR:

  • 1.

    Het ontwikkelen van een landschapspark tussen de ontwikkeleilanden (Sluiseiland, Pendorp, Kantorenpark en het bedrijvenpark) met o.a.:

    • Optimaal benutten van de huidige inrichting o.a. behouden van brede groene landschapszones rondom ontwikkeleilanden;

    • Bestaande waterlopen versterken met o.a. natuurlijke oevers;

    • Biodiversiteit versterken o.a. door meer diversiteit in (inheems) beplantingssoorten;

    • Gebruikswaarde toevoegen o.a. door toevoegen van zit en rusten speelplekken.

  • 2.

    Het ontwikkelen van een robuuste groenstructuur met verblijfsplekken per eiland dat in verbinding staat met het landschapspark;

  • 3.

    Het toevoegen van ten minste 20% volle grond groen per ontwikkeling aan het gebied. De inrichting van dit gebied sluit fysiek aan op die van het openbaar gebied, vastgelegd in een nader te bepalen inrichtingsplan/ -richtlijnen. In het inrichtingsplan wordt nagedacht hoe eigenheid en samenhang in de inrichting verder tot uitdrukking gebracht kunnen worden;

  • 4.

    Creëren van groene hoven (met bomen in de volle grond) en groene daken (met voldoende dekking voor beplanting, tijdelijke waterberging en kleine bomen) binnen de gebouwenclusters;

  • 5.

    Groen is geïntegreerd in de bebouwing, o.a. in gevels en buitenruimtes met bijvoorbeeld groengevels, klimplanten, geveltuinen, nestkastjes e.d. voor de biodiversiteit;

  • 6.

    Bestaande waardevolle bomen worden waar mogelijk behouden en binnen de ontwikkeling ingepast;

  • 7.

    Duurzame, circulaire en robuuste inrichting o.a. door hergebruik van materialen en meervoudig ruimtegebruik: wandelpad is ook hardlooppad; brug is zitelement en speelaanleiding.

B. GROEN OVERAL TOEGANKELIJK, BELEEFBAAR EN ZICHTBAAR MAKEN DOOR EEN OPEN BEBOUWINGSSTRUCTUUR DIE VOLDOET AAN:

  • 1.

    Er is sprake van een losse en open bebouwingsstructuur bestaande uit clusters van gebouwen omgeven door de groene (openbare of collectieve) buitenruimte;

  • 2.

    Hierbij is er aandacht voor een goede stedenbouwkundige inpassing en de ruimtelijke samenhang i.r.t. de context, goede bezonning en oriëntatie op de buiten/ openbare ruimte;

  • 3.

    De gebouwenclusters vormen herkenbare ensembles waarin menselijke maat centraal staat;

  • 4.

    Er is een variatie in korrelgrootte en bouwhoogte per ensemble;

  • 5.

    Wisselende rooilijnen aan de openbare ruimte zorgt voor een informele en losse setting passend bij de Zachte stad;

  • 6.

    De bebouwing heeft in de Viaanse molen een bouwhoogte variërend tussen 2 tot 16 bouwlagen, ingedeeld in 3 hoogtezones:

    • Laagbouw (26 bouwlagen)

    • Middenbouw (712 bouwlagen)

    • Hoogbouw (1216 bouwlagen)

  • 7.

    Hoogtes zijn conform de spelregelkaart (uitgangspunten) per eiland en conform eisen m.b.t. molenbiotoop (zie paragraaf ‘bouwen binnen molenbiotoop’;

  • 8.

    Er is extra aandacht voor de overgang naar het maaiveld;

  • 9.

    Er zijn veel entrees. De meeste entrees bevinden zich aan de openbare of openbaar toegankelijke (collectieve) hoven;

  • 10.

    Entrees zijn zichtbaar en uitnodigend met o.a. postbussen, terloopse ontmoetingsplekken en zicht op de stijgpunten;

  • 11.

    Publieke functies bevinden zich zoveel mogelijk in het ‘hart’ van het eiland en/of aan de straat conform spelregelkaart;

  • 12.

    Collectieve functies bevinden zich aan het collectieve hof of aan de openbare ruimte;

  • 13.

    Parkeren zoveel mogelijk uit het zicht of in het groen opgenomen en waar mogelijk in gebouwde parkeervoorzieningen (inpandig) oplossen. De plinten zijn minimaal 4 meter hoog, zodat ze flexibel in te vullen zijn.

afbeelding binnen de regeling

C. EEN SAMENHANGEND EN GEVARIEERD BEBOUWINGSBEELD MET ZACHTE OVERGANGEN EN SILHOUETTEN DRAAGT BIJ AAN DE BELEVING VAN DE ZACHTE STAD. DEZE WORDT OPGEBOUWD AAN DE HAND VAN DE VOLGENDE UITGANGSPUNTEN:

  • 1.

    De gebouwen hebben een massaopbouw engeleding die de relatie met het landschap versterkt en zorgt voor zachte overgangen en silhouetten: de eerste 2 lagen hebben een relatie met het maaiveld; de hoogste lagen (7 tot 14 bouwlagen) met het uitzicht en vergezicht en de tussenlagen (46) hebben zicht op de boomkronen;

  • 2.

    Menselijke maat in de geleding van de gevels. Door articulatie van (groene) buitenruimtes (terrassen, balkons, loggia’s, leefgalerijen), verspringingen in de gevel (setbacks e.d.) en gevelritmiek ontstaat een levendig en gevarieerd beeld;

  • 3.

    Er is aandacht voor een prettig windklimaat op maaiveld en op dekniveau, onder andere door het toepassen van vertrappingen, overstekken en of setback;

  • 4.

    Gebouwen maken contact met het maaiveld en of aanliggende buitenruimte; deze relatie is onderdeel van de architectonische uitwerking;

  • 5.

    Gebouwen hebben een natuurlijke en lichte uitstraling door de toepassing van natuurlijke (biobased) materialen (hout, glas en steen) en kleurgebruik;

  • 6.

    Gebouwen zijn in architectuur familie van elkaar zodat een samenhangend gebied ontstaat zonder grote contrasten in architectonische expressie;

  • 7.

    Trafo’s, fietsenbergingen e.d. inpandig.

D. EEN CIRCULAIR EN ENERGETISCH DUURZAAM GEBIED:

  • 1.

    Streven om duurzaam en circulair te bouwen;

  • 2.

    Energiebewust architectonisch ontwerp o.a. door het toepassen van lichte natuurlijke kleuren en gevelgroen;

  • 3.

    Energie neutrale gebouwen;

  • 4.

    Klimaatadaptief openbare ruimte, buitenruimte en daken;

  • 5.

    Groene gevels met maatregelen voor biodiversiteit worden integraal mee ontworpen

afbeelding binnen de regeling

6.2 BEELDKWALITEIT BIJ TRANSFORMATIE

In principe gelden de uitgangspunten voor herontwikkeling ook bij transformatie van bestaande gebouwen en percelen. Belangrijk is dat de uitstraling van het te transformeren gebouw en kavel bij de ruimtelijke doorontwikkeling dezelfde kwaliteiten oplevert als bij herontwikkeling. Bij transformatie is het van groot belang dat de bewoners in aangename woonmilieus komen te wonen waar men trots op kan zijn. Informele ontmoeting speelt hierbij ook een cruciale rol. Er dient een duidelijk verhaal verteld te worden over hoe men straks in dit gebied leeft, elkaar ontmoet, kortom: waarom het prettig is om hier te gaan wonen. Wanneer er te weinig ruimte is om goede verblijfsplekken op maaiveld te creëren is het van belang om dit in het gebouw op te nemen (een schil om het gebouw heen is hiervoor erg geschikt). Om samenhang in het gebied te krijgen moet bij hergebruik/ transformatie van bestaande gebouwen de volgende uitgangspunten in acht worden genomen:

  • Getransformeerde gebouwen zijn (in uitstraling) passend bij de rest van het plangebied;

  • Getransformeerde gebouwen hebben een menselijke maat en een residentiele uitstraling; De residentiele uitstraling zorgt ervoor dat bewoners zich thuis voelen in plaats van slechts een adres te bewonen;

  • Gevels hebben in materiaal en kleurgebruik een natuurlijke uitstraling in een warmere en uitnodigende (woon)sfeer;

  • Er is extra aandacht voor de overgang openbaar privé: gebouwen hebben een groene ‘voet’. Deze voet, met tuintjes en een doorlopende groene verbinding, versterkt de relatie tussen het gebouw en zijn groene omgeving;

  • (Veel) Entrees op maaiveldniveau dragen bij aan sociale veiligheid en ‘ogen op de straat’;

  • Het buitenterrein is zoveel mogelijk groen ingericht met zo min mogelijke verharding;

  • Het parkeren is mee ontworpen; is gebouwd en of landschappelijke ingepast. Hierbij is parkeren altijd uit het zicht, bij maaiveld parkeren afgeschermd met groen, en daarbij heeft het maaiveld tenminste een klimaatadaptieve inrichting heeft met bomen tussen parkeervakken.

In de bebouwingsstructuur en architectuur kan veel bereikt worden door:

Weglaten:

  • Nieuwe openingen of doorgangen creëren;

  • Barrières op te heffen naar de openbare ruimte.

Toevoegen:

  • Blijf aanbouwen om een samenhangend ensemble te vormen rondom een collectieve plek/hof;

  • Overdekken van parkeren met een licht dek om een groen hof te creëren;

  • Een levendig gevel met menselijke maat: de toevoeging van een extra laag in de vorm van balkons en galerijen introduceert gelaagdheid in de gevel. Hierdoor ontstaan er niet alleen visuele verbeteringen maar ook praktische buitenruimten die uitnodigen tot terloopse ontmoetingen en sociale interactie;

  • Een tweede gevel voor extra ruime woningen en een nieuwe passende uitstraling;

  • Optoppen voor andere type woningen levert een nieuw gebouwsilhouet.

afbeelding binnen de regeling

7. ONTWIKKELEILANDEN

  • 7A.

    Kantorenpark

  • 7B.

    Pendorp

  • 7C.

    Sluiseiland

  • 7D.

    Kanaaldijk

  • 7E.

    Bedrijvenpark

7A. Kantorenpark

Het Kantorenpark transformeert geleidelijk tot een levendige, gemengde stadswijk. De stedenbouwkundige visie zet in op een open en groen doorwaadbaar gebied naadloze verbonden met het omliggende landschap. Dit ontwikkelkader biedt heldere richtlijnen voor een toekomstbestendige en karaktervolle transformatie met menselijke maat, passend in de Zachte stad.

7.1 KANTORENPARK

EEN GEBIED IN TRANSITIE

Het Kantorenpark is een typische werklocatie in transitie met leegstaande kantoorpanden, waarvan sommige met een tijdelijke invulling als woonruimte. Er is een mix van werkfuncties en voorzieningen zoals een kinderdagverblijf, een verloskundigenpraktijk en een tandarts; een aantal grote bedrijfskantoren van o.a. de politie, Turien & Co. Assuradeuren en een aantal bedrijfsverzamelgebouwen met veelal dienstverlenende bedrijven en adviesbureaus (makelaar, notaris, advocatenkantoor, zorgverleners e.d.). In de bedrijfsverzamelgebouwen verschilt het eigendom per kantoor.

afbeelding binnen de regeling

Tijdelijk wonen in bestaande kantoorpanden

FUNCTIONELE INRICHTING

De ruimtelijke opzet is sterk functioneel met gebouwen als losse objecten op kavels die voor een groot deel zijn ingericht als parkeerterrein. De inrichting is schraal, verharding domineert en de kantoorkavels aan noorden zuidzijde tonen hun achterkanten. De kavels worden van elkaar gescheiden door hekken, soms in combinatie met groen. Hierdoor is het gebied slecht doorwaadbaar.

De losse bebouwingsstructuur kan gezien worden als een kwaliteit door de vele doorzichten en de openheid die hierdoor ontstaat. Qua architectuur en schaal lopen de gebouwen zeer uiteen waardoor er weinig samenhang is in sfeer en uitstraling.

afbeelding binnen de regeling

Inrichting gericht op parkeren

GELEIDELIJKE ONTWIKKELING

Het Kantorenpark bestaat nu uit verschillende kavels met verschillende eigenaren en gebruikers. Er liggen initiatieven voor transformatie en herontwikkeling, maar er zijn ook kavels die (voorlopig) blijven zoals ze zijn. Dit leidt tot een bijzondere, veelal kavelgewijze ontwikkeldynamiek. Om deze geleidelijke ontwikkeling mogelijk te maken wordt voortgeborduurd op de bestaande openbare ruimtestructuur met o.a. de kabelsen leidingentracés.

afbeelding binnen de regeling

Eigendomsgrenzen

afbeelding binnen de regeling

Gewenste plekken voor werken en voorzieningen

PROGRAMMA

In het Kantorenpark streven we naar een mix van wonen, werken en voorzieningen. Op dit moment is het gebied nagenoeg 100% werken en dat zal geleidelijk transformeren naar de gewenste mix. Omdat het gebied nu voornamelijk uit werken bestaat, worden collectieve voorzieningen die het wonen faciliteren en een bijdrage leveren aan een aantrekkelijk woongebied, toegevoegd.

PROGRAMMATISCHE UITGANGSPUNTEN

  • Het woonprogramma is conform de vigerende regels “Criteria voor de realisatie van nieuwe woningen” en de bepalingen in de Woonvisie zodra deze is vastgesteld;

  • Een mix van wonen, werken en voorzieningen;

  • Centraal in het gebied, rondom de James Wattstraat, is de plek voor voorzieningen in de buurt;

  • De aangegeven ontwikkelplots op de spelregelkaart voegen een werkfunctie of (collectieve) voorziening toe aan het gebied in de plint. In de spelregelkaart staat ook aangegeven welke plots “werken” blijft;

  • Actieve plinten aan de hoofden secundaire ontsluitingswegen. De aangewezen plinten worden multifunctioneel ontwikkeld en hebben verdiepingshoogte van tenminste 4 meter, brede beukmaten (> 7,80m) en een unitgrootte met een gebruiksoppervlakte van tenminste 50m2;

  • Voorzieningen dragen bij aan het culturele/ zorg/maatschappelijke/leisure/sportaanbod in de wijk.

7.2 OPENBARE RUIMTE KANTORENPARK

NIEUWE STRUCTUUR – INTERN LANDSCHAP

In het Kantorenpark wordt de huidige openbare ruimte structuur verder ontwikkeld om tot een doorwaadbaarder gebied te komen. De bestaande structuur wordt aangevuld met verschillende informele groene verbindingen over de bestaande kavels naar het omliggende Landschapspark. Dit klimaatadaptief ingerichte landschap tussen de gebouwen zorgt voor een fijnmaziger groen dooraderd en doorwaadbaar gebied.

afbeelding binnen de regeling

PROFIELEN

De profielen in het interne landschap variëren in breedte, afhankelijk van de verkeersfunctie, en zijn onderverdeeld in primaire, secundaire en tertiaire structuren. Hieronder volgen per profieltype de uitgangspunten.

PRIMAIRE STRUCTUUR – HOOFDONTSLUITING

Het Kantorenpark wordt ontsloten via de hoofdontsluiting OhmstraatJames Wattstraat – Voltastraat en is een 30km straat. Deze structuur sluit aan op de Helderseweg en de Havinghastraat. Het huidige profiel van ca. 18 meter wordt versterkt met aan weerszijde een klimaatadaptieve groenzone. In de breedste groenzone kan regenwater infiltreren en is ruimte voor beplanting, bomen, een wandelpad en ook spelen en verblijven aan de randen. Aan de bebouwing is ruimte voor een stoepzone bij de gebouwentrees, de toegangen tot het hof en bij de publieke plinten. Deze voorruimtes zijn met paden verbonden met de wandelpaden.

De James Wattstraat en de Nieuwe Ampèrestraat worden buurtstraten ten behoeve van de gewenste landschappelijke kwaliteiten.

Wenselijke primaire verbindingen voor een doorwaadbaar gebied. Deze opgave wordt meegenomen in de kavel ontwikkeling

afbeelding binnen de regeling

Fiets

afbeelding binnen de regeling

Auto - OV

afbeelding binnen de regeling

PRINCIPES HOOFDONTSLUITING

  • ca. 18m breed (breder bij de Voltastraat);

  • 30 km;

  • rijbaan voor fietsen, auto’s

  • langs de weg een aantal parkeerplaatsen voor laden en lossen (en bijv. pakketdiensten) mogelijk;

  • aan de bebouwing stoepzone bij entrees, publieke plinten en toegangen tot hoven;

  • groenzone aan een zijde van de rijbaan met ruimte voor beplanting, bomen, tijdelijke waterberging en infiltratiezone;

  • natuurvriendelijke inrichting, beheer en onderhoud.

afbeelding binnen de regeling

klimaatadaptieve zone, ook als zit en rustplek te gebruiken

Hoofdontsluiting James Wattstraat

afbeelding binnen de regeling

SECUNDAIRE STRUCTUUR

Het huidige openbare gebied van de James Wattstraat (18 meter) wordt gehandhaafd en klimaatadaptief ingericht. Het profiel bestaat uit een loper (de huidige ligging van de weg) voor auto’s, fietsers en voetgangers, met aan weerszijden groenstroken met verschillende breedte en functies tot aan de bebouwing. De breedste groenstrook is ten behoeve van de klimaatadaptie. Hier kan regenwater infiltreren, is ruimte voor beplanting, kleine bomen en spelen en verblijven aan de randen. Aan de bebouwing is ruimte voor (half)verharde voorruimtes bij de gebouwentrees, de toegangen tot het hof en bij de publieke plinten. Deze voorruimtes zijn met paden verbonden met de centrale loper.

afbeelding binnen de regeling

Referentie: recreatieve plekken aan het landschapspark

Hoofdontsluiting Voltastraat

afbeelding binnen de regeling

PRINCIPES SECUNDAIRE ONTSLUITING

  • ca. 18m breed (aan de rand (Voltastraat) breder);

  • één loper in gebakken materiaal (erf) voor fietsen, wandelen en autoverkeer gemengd;

  • groene klimaatadaptieve ruimte aan een zijde van de loper met bomen, infiltratiezone en speel/ verblijfsplekken;

  • natuurlijke inrichtingbeheer & onderhoud.

afbeelding binnen de regeling

Referentie: klimaatadaptieve zone, ook als speelplek te gebruiken

Secundaire structuur: James Wattstraat

afbeelding binnen de regeling

TERTIAIRE STRUCTUURINFORMELE GROENE VERBINDINGEN

De informele groene verbindingen zorgen voor verbinding met het overige landschap. Deze zones worden ontwikkeld op private kavels en zijn openbaar toegankelijk voor voetgangers (recht van overpad). Het profiel heeft een minimale breedte van 8 meter en is groen ingericht met een centraal gelegen wandelpad, indien noodzakelijk toegankelijk voor nooden hulpdiensten, fietsers en voetgangers. Voorrijden met de auto is mogelijk bij verhuizing. In de groenstroken kan regenwater infiltreren en is ruimte voor bomen en beplanting. Aan de bebouwing is ruimte voor stoepzones bij de gebouwentrees, de toegangen tot de hoven.

afbeelding binnen de regeling

PRINCIPES TERTIAIRE ONTSLUITING

  • Minimaal 8 meter;

  • Sluit aan op de openbare ruimte;

  • Publiek toegankelijk voor voetgangers en fietsers;

  • Groene klimaatadaptieve inrichting;

  • Natuurlijke inrichtingbeheer & onderhoud.

afbeelding binnen de regeling

PRINCIPES 20% VOLLE GROND GROEN OP EIGEN KAVEL

  • Heeft (op plekken) voldoende maat voor bomen;

  • Is collectief en publiek toegankelijk (mogelijk afsluitbaar in de avonduren);

  • Sluit aan op belendende (bestaande) groenstructuren en de openbare ruimte;

  • Is gesitueerd aan gebruiksruimtes (wonen, werken en voorzieningen) en er is toezicht vanuit deze ruimtes. Maximaal 50 % van de omtrek heeft een gesloten gevel;

  • Is groen en klimaatadaptief ingericht;

  • Heeft een (collectieve) gebruiksfunctie (picknickplek, sport, speelplek) en is als zodanig ingericht (in cocreatie met bewoners).

afbeelding binnen de regeling

BEBOUWINGSPRINCIPES

Bij de Zachte stad hoort een bebouwingsbeeld en massaopbouw met menselijke maat en schaal die de beleving en gebruik van het landschap stimuleert en ondersteunt. De bebouwingsstructuur bestaat uit clusters van gebouwen rond om groene hoven, in een open blokstructuur. Hierdoor is er een open relatie met de omringende groene openbare ruimte. Om tot een dergelijke structuur te komen worden de volgende uitgangpunten gehanteerd.

NIEUWBOUW

afbeelding binnen de regeling

TRANSFORMATIE

afbeelding binnen de regeling

GEBOUWENCLUSTERS

Elk ontwikkeling (gezamenlijk of individueel) is opgebouwd uit een herkenbaar cluster van gebouwen die samen één (of meerdere) semi besloten en collectief hof vormen. De gebouwen zijn alzijdig en staan (deels) met hun voeten aan het omliggende landschap. De gebouwen staan niet in een vaste rooilijn maar verspringen ten opzichte van elkaar voor een en open relatie met het landschap.

ENTREES

Veel entrees naar de woningen en centrale opgangen zijn aan de openbare ruimte gepositioneerd. Centrale opgangen kunnen worden doorgekoppeld en verbonden met het collectief hof. Voorzieningen, publieke functies en werkfuncties zijn (mindervalide) toegankelijk en zichtbaar vanaf de openbare ruimte.

VERBINDING MET HET LANDSCHAP

De hoven zijn groen en doorgangen zowel fysiek als visueel verbonden met het omliggende landschap. Deze groene doorgangen hebben een royale breedte van minimaal 6 m, waardoor ze zowel als route als groene ecologische verbinding invulling kunnen krijgen. De binnengebieden liggen maximaal 3 meter (lees: één verdieping) boven het maaiveld. Het hoogteverschil wordt middels trappen, hellingbanen of taluds vormgegeven waarbij er aandacht is voor de toegankelijkheid van het hof voor mindervaliden. Trappen, taluds en hellingbanen bevinden zich in principe binnen het bouwvlak.

De gebouwen hebben geen gesloten gevels maar gebruiksruimtes met of zonder compacte buitenruimtes aan het landschap. Een overgangszone als onderdeel van de architectuur en/of de landschappelijke inrichting verzacht de overgang naar het landschap. Aan het landschap worden geen erfafscheidingen geplaatst (geen hekken of andersoortige gebouwde afscheidingselementen).

BOUWHOOGTE KANTORENPARK

Per ontwikkeling (of ontwikkelcluster) geldt een variatie in bouwhoogtes, rekening houdend met oriëntatie, bezonning en belendende bebouwing als ook de stedenbouwkundige inpassing en positionering i.r.t. de context (zichtlijnen e.d.).

In het Kantorenpark gaan we uit van een variatie in de laagen de middenbouw (per ontwikkeling). Binnen de molenbiotoop gelden de uitgangspunten en regels overeengekomen met het HHNK. In elk cluster is variatie in bouwhoogte die o.a. gerelateerd is aan de variatie in gebouwen woningtypen en een goede bezonning. De gebouwen hebben een massaopbouw engeleding die de relatie met het landschap versterkt: de eerste 2 à 3 lagen hebben een relatie met het maaiveld; de hoogste lagen (7-12) met het uitzicht en vergezicht en de tussenlagen (46) hebben zicht op de boomkronen.

OVERGANG OPENBAAR-PRIVÉ

In de Zachte stad wordt telkens contactgemaakt met het aanliggende groene maaiveld. Aan alle zijden van de gebouwen is veel aandacht voor de overgang van privéwoning of buitenruimte naar de openbaar ruimte of collectief plekken. Dit om niet alleen de privacy van de woningen aan de te waarborgen maar ook om een actieve relatie met de groene buitenruimte te stimuleren.

Deze overgang kan uitgesproken zijn, zoals bij de stoep van een grachtenpand, met een aantal treden verhoogd t.o.v. het maaiveld, of juist subtiel, door een klein verhoogd plateau, zonder trap of hekje, licht afgeschermd door beplanting. Het kan een half inpandige buitenruimte of compacte private tuin zijn. Door deze overgang goed vorm te geven kunnen bewoners optimaal genieten van het aanliggende landschap/ groen hof zonder het publieke/collectieve karakter te verminderen.

PRINCIPES OVERGANGSZONE AAN HET LANDSCHAP:

  • bevindt zich binnen het bouwvlak;

  • is onderdeel van het architectonisch ontwerp;

  • heeft eventueel een compacte private groene buitenruimte (tuintje) van maximaal 3 meter diep die geen onderdeel is van het 20% groen dat toegevoegd wordt aan het landschap/ openbaar toegankelijk gebied;

  • de erfafscheiding is mee ontworpen.

PRINCIPES OVERGANGSZONE AAN HET HOF:

  • is onderdeel van het architectonisch ontwerp;

  • is in samenhang met de inrichting van het hof ontworpen;

  • is de (groene) erfafscheiding meeontworpen.

OVERGANGSZONE OPENBAAR - PRIVE

afbeelding binnen de regeling

OVERGANGSZONE IN RELATIE TOT PARKEREN

afbeelding binnen de regeling

BIJ TRANSFORMATIE: OVERGANGSZONEIN RELATIE TOT MAAIVELD PARKEREN

afbeelding binnen de regeling

BOUWEN BINNEN DE MOLENBIOTOOP

Het zuidwestelijke deel van het Kantorenpark valt binnen de molenbiotoop van de molen De Viaan. Nieuw bouwen binnen de molenbiotoop is in principe begrensd. Om de ontwikkelmogelijkheden in het gebied te verruimen en de windvang van de molen niet te verslechteren, is in gesprek met het HHNK een aantal uitgangspunten vastgesteld bij herontwikkeling. Deze uitgangspunten voor nieuwbouw gelden mits aan de set van maatregelen wordt voldaan:

  • 1.

    Herontwikkeling of sloopnieuwbouw van bestaande bebouwing. In de eerste linie is de bebouwing nu vaak al hoger (o.a. door de politiebureau en James Wattstaat 19). Bij herontwikkeling is het uitgangspunt geen verdere verslechtering voor de molen tov de huidige situatie;

  • 2.

    Bestaande (primaire) windcorridors worden gehandhaafd (minimaal 15m) Tussen James Wattstraat 25 en 27 en tussen Ampèrestraat 17 en James Wattstraat 29 zijn bestaande windcorridors die gehandhaafd dienen te worden;

  • 3.

    Nieuwe bebouwing is oplopend in bouwhoogte. De ontwikkelvelden bevinden zich vanaf circa 300 meter vanaf de molen. De bouwhoogte op de kavels tussen de 300 en 400m is oplopend van ca. 2 tot ca. 6 bouwlagen in de radiaal vanaf de molen. In overleg met initiatiefnemers worden de ontwikkelmogelijkheden verder verkend en vastgelegd;

  • 4.

    Beplanting is tot ca. 6m en/of niet hoger dan de achterliggende bebouwing, In het vervolg bij de uitwerking van een inrichtingsplan voor het gebied (binnen de molenbiotoop) wordt hiermee rekening gehouden o.a. met de toe te passen boomsoorten. Betere beheerafspraken over bestaande bomen/ beplanting leiden tot een beter windklimaat voor de molen. De bomen aan de Havinghasstraat zijn nu een groot probleem vanwege de positie en hoogte. Het gefaseerd vervangen met kleinere bomen is hier een optie;

  • 5.

    In samenspraak met het HHNK, molenaar en gemeente een beheerplan opstellen over het beheer en onderhoud van het groen in de Viaanse Molen, met als uitgangspunt dat de windvang niet mag verslechteren en mogelijk verbetert door aanpassing groen;

  • 6.

    Het windvangonderzoek van EAGM d.d. november 2024 (zie bijlage D) kan als basis windvangonderzoek dienen.

afbeelding binnen de regeling

HERGEBRUIK BESTAAND GEBOUW BINNEN MOLENBIOTOOP

Omdat de bouwhoogte bij nieuwbouw binnen de molenbiotoop is begrensd, willen we eigenaren ook stimuleren om in te zetten op hergebruik van bestaande gebouwen. Hiervoor hebben de volgende uitgangspunten:

  • In principe gelden de uitgangspunten voor herontwikkeling ook voor transformatie tenzij er vanuit de bestaande structuur daar (technisch) niet aan voldaan kan worden;

  • Belangrijk is dat de uitstraling van het te transformeren gebouw en kavel en de ruimtelijke doorontwikkeling dezelfde kwaliteiten oplevert als bij herontwikkeling;

  • In de bebouwingsstructuur en in de architectonisch uitwerking kan veel bereikt worden door weglaten (nieuwe openingen/ doorgangen creëren) en/ of toevoegen (bijof aanbouwen om een collectieve plek te creëren; balkons aan de bestaande gevel; een tweede gevel voor extra ruime woningen; optoppen etc.);

  • Cruciaal is de inpassing van parkeren uit het zicht; bij een maaiveld oplossing is een klimaatadaptieve inrichting en groene inpassing uitgangspunt. Zie hoofdstuk beeldkwaliteit; nieuwe bomen binnen de molenbiotoop mogen niet hoger dan 6 meter zijn.

afbeelding binnen de regeling

klimaatadaptieve inrichting

afbeelding binnen de regeling

Parkeren uit het zicht: groene pergola

afbeelding binnen de regeling

3D-Model Windvangonderzoek EAGM december 2024; zie bijlage D

afbeelding binnen de regeling

LEGENDA SPELREGELKAART

Ruimtelijke spelregels (algemeen en onderscheid sloop/nieuwbouw en transformatie).

afbeelding binnen de regeling

afbeelding binnen de regeling

afbeelding binnen de regeling

Voorbeelduitwerking: mogelijk toekomstbeeld Kantorenpark

Dit is niet het 3D-Model van het windvangonderzoek (EAGM) maar een afgeleide daarvan.

7.B PENDORP

Het oorspronkelijk door architect Abe Bonnema ontworpen kantorencomplex Pendorp wordt een plek om te wonen, te werken, te ontspannen en te ondernemen. De tuinen van de tuinarchitecte Mien Ruys blijven zoveel mogelijk bewaard en worden gerestaureerd.

In 2024 is voor dit terrein een bestemmingsplan inclusief een beeldkwaliteitsplan vastgesteld waarmee de bouw van maximaal 550 woningen en 7500m2 aan nietwoonprogramma (commercieel en of maatschappelijk) mogelijk wordt gemaakt. Er komen verschillende woningen van stadswoningen tot appartementen in verschillende groottes van ca. 50m2 tot en met 160m2.

NH-development heeft in samenwerking met De Zwarte Hond en Buro Mien Ruys een planopzet gemaakt waarin het gedachtengoed van de architect behouden blijft. Op de plek van de Pengebouwen komt een nieuw toekomstbestending 21ste eeuws woonensemble.

De gebouwen zijn geinspireerd door de ontwerpprincipes van het oude Pengebouw met de tuinen. Het nieuwe Pencomplex wordt de drager van het gebied. Om het Pencomplex heen komt een stedelijke rand met compacte op zichzelf staande gebouwen en/ of eengezinswoningen. De gebouwen staan met hun voeten in het landschap. In dit deel van het plan bevinden zich ook de meeste publieke functies.

In het ‘hart’ van het plan is de tuin van Mien Ruys met haar vijverpartij en kanaaltjes. Aanvullend komen er vier nieuwe tuinen die een belangrijke functie krijgen als verblijfsgebied. Om de bebouwing heen komt een landschappelijke rand wat het ‘eilandkarakter’ versterkt van het Pendorp.

Het plan voor Pendorp wordt nog verder uitgewerkt. Het bouwen van het gehele plan duurt zeker vijf jaar. In 2026 wordt gestart met de bouw van de eerste woningen. Kijk voor meer informatie over het plan naar de website Pendorp, uniek wonen in Pendorp Alkmaar!

Bij de verdere uitwerking zijn het vastgestelde bestemmingsplan en beeldkwaliteitplan leidend.

7.C SLUISEILAND

Een van de pareltjes aan het Noordhollandsch Kanaal is het Sluiseiland. Met de Sluismolen en een stolpboerderij biedt dit ‘eiland’ een mogelijkheid om misschien wel te experimenteren met innovatieve grondgebonden bouwvormen. Zodra gasbehandelingsbedrijf TAQA de gronden overdraagt aan de gemeente Alkmaar, ontstaat een kans om samen met drie andere grondeigenaren de gronden in herontwikkeling te laten brengen.

Dit deel van de Viaanse Molen is gericht op de ontwikkeling van laagbouwmilieus met onder andere gezinswoningen en bijzondere woonvormen. In het zuidelijk deel is een middenbouwmilieu mogelijk. Daar is een markant gebouw denkbaar.

De gemeente onderzoekt met drie andere grondeigenaren een planopzet voor een groene innovatieve wijk te ontwikkelen volgens de ambities van de Zachte Stad.

Voor het gemeentelijk deel zien we kansen om ook een andere vorm van bebouwing mogelijk te maken, denk hierbij aan een zelfbouwwijk/welstandsvrij. Op dit moment wordt de planvorming nader geconcretiseerd in relatie tot de aanwezigheid van de Sluismolen, met de daarbij benodigde onderzoeken en afstemmingsmomenten. Voor dit gebied zal te zijner tijd een planuitwerking ontwikkeleiland Sluiseiland aan de raad worden aangeboden.

7.D KANAALDIJK Plan Buitenvaart

Aan de Kanaaldijk 301 bouwt BPD maximaal 160 appartementen. Het bestemmingsplan en de omgevingsvergunning zijn onherroepelijk. Het plan, bekend onder de naam Buitenvaart, is het eerste woningbouwplan dat wordt gerealiseerd in de Viaanse Molen.

Het plan Buitenvaart bestaat uit vijf woongebouwen: De Kade, De Sluis, De Boei, De Vaart en de Baai en biedt ruimte aan woningtypen voor verschillende leeftijden, levensfasen en kosten. Naast de appartementen komen in de gebouwen De Kade en De Sluis ook twee bedrijfsruimten op de begane grond. Deze bedrijfsruimten zijn een ideale plek voor een koffiebar, lunchroom/ restaurant of maatschappelijke voorzieningen zoals medische zorg, cultuur en welzijnswerk of kinderopvang.

De bouw van de eerste 84 woningen in De Kade en de Sluis is inmiddels gestart in 2024 en wordt in 2026 opgeleverd. De verkoop van fase II is inmiddels gestart en de oplevering zal naar verwachting in 2028 zijn.

De bouw van het plan Buitenvaart geeft een zichtbare invulling aan de ambitie om langs het Noordhollandsch Kanaal stedelijk te gaan bouwen en toekomstige en bestaande bewoners meer ruimte te geven om langs het water te recreeren.

Kijk voor meer informatie over het plan op de volgende website www.nieuwbouw-buitenvaart.nl

Bij de verdere uitwerking zijn het vastgestelde bestemmingsplan en beeldkwaliteitplan leidend.

7.E BEDRIJVENPARK & Connexxionterrein

In het meest zuidelijk deel van de Viaanse Molen ligt het bedrijvendeel met aan de rand de molen De Viaan. In dit gebied zijn meerdere bedrijven gevestigd in de milieucategorie 1 t/m 3. Het gebied naast het terrein is in gebruik voor sport, spel en onderwijs. Waardevolle functies die het waard zijn om te behouden voor het gebied en die opgenomen worden in het Landschapspark.

Het bedrijvenpark

Het bedrijvenpark is omsloten door verschillend hoofdwegen de N9, de N245 – de Havinghastraat en de Helderseweg. Ook ligt hier een belangrijke oprit naar de N245 Huiswaarderweg. Het verkeer vanaf de Viaanse Molen maar ook vanuit het centrum rijdt via deze weg de Huiswaarderweg op. Dit maakt het bedrijvenpark op het eerste oog minder aantrekkelijk voor de realisatie van woningbouw.

Voor de komende jaren wordt de inzet voor dit terrein primair het behoud van werkgelegenheid, sport en maatschappelijk.

Vernieuwing en nieuwbouw zijn wel mogelijk en worden indien deze zich aandoen beoordeeld in de context van het gebied en de bijbehorende milieuen geluidseffecten.

Connexxionterrein

Het Connexxion terrein heeft een geisoleerde ligging in de oksel van de oprit naar de N245. De plek is eenzijdig georienteerd naar de Helderseweg en het Noordhollandsch Kanaal. Dit is de plek waar de busremise is gevestigd naast verschillende andere bedrijven.

Nieuwbouw op deze locatie is mogelijk, mits de busremise hier onderdeel van is. Behoud van de busremise is zeer gewenst om voldoende Openbaar Vervoer aanbod te behouden voor de (toekomstige) inwoners van Alkmaar. De locatie markeert de entree van de Viaanse Molen en verdient meer kwaliteit. Woningbouw is op deze plek niet kansrijk, omdat de locatie is ingeklemd tussen drie wegen. Hierdoor is sprake van onvoldoende woon-en leefkwaliteit.

8. ONTWIKKELSTRATEGIE

Dit Ontwikkelkader is een uitnodiging aan grondeigenaren en initiatiefnemers om zelf met voorstellen voor ontwikkelingsplannen te komen. Het uitgangspunt voor de ontwikkelstrategie is een organische ontwikkeling. De Viaanse Molen heeft meerdere ontwikkeleilanden waar in verschillende fasen en planinitiatieven de verandering van het gebied wordt gestuurd. Niet alle eigenaren hebben plannen voor een herontwikkeling. Zij voegen zich op termijn in het veranderd karakter en identiteit van de Viaanse Molen als Zachte stad.

8.1 ONTWIKKELSTRATEGIE

GEMEENTELIJKE INVESTERINGEN UITWERKING VIAANSE MOLEN

De herontwikkeling van de Viaanse Molen is niet een eenvoudige opgave. De meeste gronden zijn eigendom van particuliere ontwikkelpartijen en of (eind)gebruikers. De gemeente heeft een grondpositie in het gebied. Hoewel voornamelijk ingezet wordt op faciliterend grondbeleid zal de gemeente voor haar gronden ook actief grondbeleid gaan toepassen.

INITIATIEVEN EN PROJECTEN

De herontwikkeling van de Viaanse Molen is inmiddels gestart. Aan de Kanaaldijk (plan Buitenvaart) wordt nog in 2024 gestart met de bouw van het eerste deel van de 160 woningen. Voor het plan Pendorp zal naar verwachting de verkoop van de eerste woningen starten in 2025. Daarnaast is de verdere planvorming van een drie projecten in het Kantorenpark gestart. Voor Sluiseiland werkt de gemeente in samenwerking met andere grondeigenaren toe naar een plan nadat gasbehandelingsbedrijf TAQA het terrein heeft ontmanteld. Om de nieuwe stadswijk verkeersveiliger te maken is de intentie om snel te starten met een herinrichting van de Helderseweg Noord.

afbeelding binnen de regeling

Vanuit de Rijksregeling ‘woningbouwimpuls’ is voor het Kantorenpark een subsidie ontvangen van ca. € 2,4 miljoen. Deze subsidie is beschikbaar voor o.a. de herinrichting van de openbare ruimte, het aanpassen van de Helderseweg en de fietsinfrastructuur.

De gemeente zal verschillende planinitiatieven zoveel mogelijk actief proberen te faciliteren. Particuliere investeringen zijn noodzakelijk om de gewenste ontwikkeling in gang te zetten. De gemeente bouwt geen woningen, maar werkt samen met grondeigenaren, marktpartijen en corporaties om de noodzakelijke investeringen te realiseren. Deze partijen worden van harte uitgenodigd om samen met ons de kansen te onderzoeken. Daarom is het belangrijk dat partijen het verhaal van de Viaanse Molen in het Alkmaars Kanaal kennen, dat bewoners, investeerders en gebruikers elkaar in het gebied ontmoeten en leren kennen. We gaan onderzoeken hoe we ‘gebiedsbranding’ verder kunnen inzetten om de identiteit van de Viaanse Molen te versterken en investeringen te stimuleren.

De gemeente zet ook investeringsmiddelen in vanuit bestaande programma’s (groen, mobiliteit, onderwijs, sport, openbare ruimte, etc.) om bij te dragen aan de ambities en doelen van dit Ontwikkelkader. Het is van belang de investeringen van de eigenaren en gebruikers van het gebied af te stemmen op de gemeentelijke investeringen en ambities. Een deel van de gemeentelijke kosten kan worden verhaald middels kostenverhaal bij nieuwbouwontwikkelingen. Dit zal ontoereikend zijn om alle gemeentelijke investeringen te dekken. Daarom onderzoekt de gemeente of er subsidies en fondsen beschikbaar zijn, bijvoorbeeld op het gebied van woningbouw, infrastructuur en klimaatadaptatie.

In deze fase van de ontwikkeling is er een globaal beeld van de financiële haalbaarheid van de ambities uit het Ontwikkelkader. Niet alle ambities zijn nog van een dekking voorzien. Dit is ook logisch aangezien de plannen nog verder uitgewerkt moeten worden en veel onderwerpen daarin momenteel nog niet scherp in beeld zijn. In de verdere uitwerking in deelprojecten wordt de financiële haalbaarheid telkens per voorgenomen ontwikkeling concreet in beeld gebracht. Zolang de financiële uitvoerbaarheid van een plan van de gemeente niet is aangetoond, zullen er geen voorstellen voor wijziging van het omgevingsplan aan de raad worden voorgelegd. Duidelijk is dat er niet voldoende middelen zijn om op korte termijn alle ambities te realiseren. Een belangrijke opgave voor de komende jaren is dan ook het vinden van investeerders, verschillende dekkingsmiddelen en cofinanciering om het Ontwikkelkader uit te voeren. Daarbij hanteert de gemeente het uitgangspunt dat kosten en kostenverhaal of andere inkomsten niet te ver uit elkaar mogen liggen in de tijd. Zodoende blijft het voorinvesteringsrisico van de gemeente acceptabel.

GEMEENTELIJK GRONDBELEID

De gemeente Alkmaar heeft een situationeel grondbeleid, waarin per ontwikkellocatie wordt afgewogen welke gemeentelijke rol het best past bij de maatschappelijke doelstellingen. In het ene geval kan dit zijn dat de gemeente zich beperkt tot het publiekrechtelijke instrumentarium en het faciliteren van ruimtelijke ontwikkelingen (faciliterend grondbeleid). In het andere geval verwerft of heeft de gemeente een kavel in bezit en ontwikkelt dit zelf vanuit een privaatrechtelijk instrumentarium (actief grondbeleid).

FASERING EN PROJECTEN

Dit Ontwikkelkader is opgesteld met een perspectief van circa 1015 jaar. Hoe snel en in welke volgorde de ontwikkeling plaats zal vinden is afhankelijk van de eigenaren in het gebied. De gemeentelijke investeringen in de openbare ruimte zullen de volgorde en het tempo van de ontwikkelingen volgen.

PLACEMAKING

In Alkmaar zijn voorbeelden van succesvolle placemaking: zoals het stadsstrand, De Drukkerij, etc. Deze successen nodigen uit om ook op andere plekken onderzoek te doen. Zo kijken we ook in de Viaanse Molen welke vormen van placemaking gewenst zijn en waar. Op deze manier proberen we de Viaanse Molen voor een breder publiek aantrekkelijker te maken.

SAMENWERKEN PER CLUSTER

Herontwikkeling van bestaand stedelijk gebied is ingewikkeld en kent vele onzekerheden en afhankelijkheden. Hierbij spelen uitdagingen op het gebied van de klimaatadaptatie, energietransitie, waterinfiltratie en de realisatie van sociaal maatschappelijk programma. Al deze uitdagingen tezamen maken de herontwikkeling van een bestaand stedelijk gebied complex. Om dit alles toch haalbaar te maken, ligt samenwerking tussen initiatiefnemers voor de hand. Dit vergroot de kans op een succesvolle gebiedsontwikkeling aanzienlijk. Er kan bijvoorbeeld financieel efficiënter ontwikkeld worden omdat buren samenwerken in plaats van elkaars bezwaarmaker zijn. Ook kunnen verschillende initiatiefnemers gezamenlijk voorinvesteren in bijvoorbeeld energievoorzieningen, parkeeroplossingen, klimaatadaptieve maatregelen, enzovoorts. Samenwerking kan bovendien leiden tot een wenselijke verdeling van het programma met verschillende categorieën woningen, voorzieningen en bijvoorbeeld bouwvolumes.

Omdat in de Viaanse Molen veel verschillende eigenaren en eindgebruikers actief zijn en niet alle bestaande bedrijven voornemens zijn om te herontwikkelen, is het clustergewijs herontwikkelen een uitdaging. De gemeente zal per ontwikkeling bekijken of samenwerking haalbaar is. Waar mogelijk wordt binnen clusters gekeken of er een gezamenlijk ontwerp kan worden gemaakt van de inrichting van de buitenruimte.

KANSEN EN RISICO’S

De aanwezige molenbiotopen hebben een beperkende werking op de bouwmogelijkheden met name ten aanzien van de bouwhoogtes en dichtheden op percelen binnen de contour van de molenbiotoop. Dit heeft geleid tot een forse afname van het aantal te realiseren woningen in het gebied. Om die reden is het aantal verwachte woningen bijgesteld naar 2.000 tot 2.500. Te meer omdat gemeentelijke (potentiële) ontwikkelgronden niet of in zeer beperkte mate herontwikkeld kunnen gaan worden.

Gezien de meerdere grondposities en verscheidenheid aan eindgebruikers is het realiseren van een collectieve gebouwde parkeervoorziening vaak niet haalbaar. De bodemgesteldheid, de grondwaterstand maar ook de klimaatadaptieve uitgangspunten maken een ondergrondse/ verdiepte parkeeroplossing in dit gebied niet wenselijk.

Door de nieuwe Omgevingswet die onlangs is ingevoerd zijn ruimtelijke procedures gewijzigd. Dit kan tot onduidelijkheden leiden en van invloed zijn op de voortgang van projecten. Hetzelfde geldt voor de uitdagingen op het gebied van stroomleverantie.

Het succesvol en aantrekkelijk oplossen van al deze uitdagingen, opgaven en ambities zal afhankelijk zijn van de mate waarin initiatiefnemers en gemeente onderling samen weten te werken.

JURIDISCHPLANOLOGISCHE REGELINGEN

Het omgevingsplan ‘Viaanse Molen’ (vastgesteld door de gemeenteraad op 16 mei 2013) geldt nu. Nieuwe initiatieven moeten zoveel mogelijk bijdragen aan de ambities, uitgangspunten en spelregels opgenomen in dit Ontwikkelkader. Wanneer er nieuwe initiatieven zijn, wordt getoetst of het initiatief past binnen de geldende bestemming. Voor ontwikkelingen die niet passen binnen het vigerend omgevingsplan, maar wel kansrijk en wenselijk zijn wordt een omgevingsplanwijziging voorbereid of wordt de ontwikkeling mogelijk gemaakt in de vorm van een vergunning buitenplanse omgevingsplanactiviteit (BOPA). Hierover vindt aparte besluitvorming in de gemeenteraad plaats. Indien partijen hun bestemmingof het gebruikwillen wijzigen kunnen we sturing geven aan de hand van dit Ontwikkelkader

PLANTOETSING

Initiatieven worden getoetst op de volgende zaken:

  • Vigerend beleid en overige weten regelgeving;

  • Eisen en uitgangspunten uit dit Ontwikkelkader Viaanse Molen inclusief spelregels.

KWALITEITSBORGING

De transformatiegebieden binnen het Alkmaar Kanaal zijn onderdeel van de opgave: Grootschalige Gebiedsontwikkeling (vanaf nu GGO). De ontwikkelingen binnen GGO vragen om een duurzame en kwalitatieve begeleiding van de planvorming. Om de stedenbouwkundige en architectonische kwaliteit te kunnen waarborgen met behoud van flexibiliteit en ruimte voor het goede gesprek wordt een werkwijze met een supervisor en supervisieteam door vaststelling van dit Ontwikkelkader onderdeel van het planproces. Door het instellen van een supervisieteam kan er meer flexibiliteit worden geïntroduceerd in de Ontwikkelkaders, terwijl tegelijkertijd de controle over de kwaliteit behouden blijft. Een bijkomend voordeel is de mogelijkheid om in te spelen op toekomstige veranderingen. Het supervisieteam zal adviseren op de stedenbouwkundige en landschappelijke inpassing van bouwplannen. Door de kennis van het (deel)gebied en de stad levert het team een waardevolle input voor de ontwikkelaar maar wordt ook de “couleur locale” gewaarborgd. Het doel is naast het toetsen van de kwalitatieve uitvoering van het Ontwikkelkader om zowel de initiatiefnemer als de architect te enthousiasmeren en te begeleiden naar een hoger kwaliteitsniveau. We werken vanuit een positieve boodschap gezamenlijk aan een grote en belangrijke opgave voor Alkmaar. Zodat we naderhand allemaal trots terugkijken op het resultaat en het proces.

9.0 BIJLAGEN

Bijlage A. Planproces

Bijlage B. Beleidskaders

Bijlage C. Bouwstenen kantorenpark

Bijlage D. Windvangonderzoek EAGM december 2024

Ondertekening

BIJLAGE A. PLANPROCES

AFSPRAKENBRIEF

Nadat een initiatiefnemer zich bij de gemeente gemeld heeft proberen we te komen tot een ondertekende afsprakenbrief. Dit is een intentieovereenkomst waarin we op hoofdlijnen afspraken maken over de ambitie, kaders en uitgangspunten voor het betreffende plan. Het doel is om een bepaalde periode gezamenlijk te onderzoeken of binnen de gemeentelijke kaders kan worden gekomen tot een haalbaar plan. In de afsprakenbrief leggen we vast welke taken en verantwoordelijkheden beide partijen dragen en aan welke gemeentelijke kosten de ontwikkelaar meebetaalt (zie onderdeel kostenverhaal).

ANTERIEURE OVEREENKOMST

Indien de initiatiefnemer en de gemeente tot een haalbaar en uitvoerbaar plan komen binnen de gemeentelijke kaders, wordt een anterieure overeenkomst gesloten waarin concrete afspraken worden gemaakt. Deze overeenkomst moet gesloten zijn voordat of gelijktijdig met een bestuurlijk besluit over de planologische wijziging. Met het sluiten van een anterieure overeenkomst verzekert de gemeente het kostenverhaal in de vorm van afspraken over een te vergoeden exploitatiebijdrage. In de anterieure overeenkomst worden doorgaans echter veel meer afspraken vastgelegd over onder andere het toegestane woningbouwprogramma, de fasering, parkeernormering, de planologische procedure en financiële onderwerpen.

Wanneer de gemeente en een initiatiefnemer niet tot overeenstemming komen over een voorgenomen ontwikkeling, kan het zijn dat de gemeente het kostenverhaal publiekrechtelijk moet verankeren in het Omgevingsplan.

KOSTENVERHAAL

De gemeente is op grond van de wet verplicht om gemeentelijke kosten te verhalen op initiatiefnemers. Dit kostenverhaal ziet toe op verschillende typen kosten. Binnen de Ontwikkelkaders van Alkmaars Kanaal spelen kosten op drie verschillen schaalniveaus:

  • 1.

    Kavelgebonden kosten die alleen samenhangen met een individuele ontwikkeling;

  • 2.

    Gebiedseigen kosten die samenhangen met de ontwikkeling van een individueel deelgebied binnen het Alkmaars Kanaal;

  • 3.

    Gebiedsoverstijgende kosten die voor alle initiatieven in Alkmaar verhaald worden volgens de kaders uit de Nota Gebiedsoverstijgende Voorzieningen.

BIJLAGE B. BELEIDSKADERS

In een aantal vastgestelde beleidskaders zijn uitgangspunten voor de ontwikkeling van de Viaanse Molen vastgesteld. Hieronder volgt een korte beschrijving per beleidskader.

OMGEVINGSVISIE ALKMAAR 2040

In de Omgevingsvisie Alkmaar 2040 kiest de gemeente voor het bouwen binnen de compacte stad. De Kanaalzone is hierin benoemd als bijzondere verstedelijkingsas (ambitie 1) met volop kansen om de woonkwaliteit, de economie en de natuurlijke en culturele waarden in Alkmaar te versterken. Het geschetste toekomstbeeld heeft een sterkere regionale positionering als uitgangspunt waarbij de verstedelijking hand in hand gaat met het klimaatbestendig en energetisch verduurzamen van de stad.

OMGEVINGSBEELD KANAALZONE

Het Omgevingsbeeld Kanaalzone zoomt in op de Kanaalzone en geeft met aanvullende kaders richting aan de transformatie van dit gebied. Voor alle ontwikkelingen in de Kanaalzone geldt dat ze bijdragen aan een aantrekkelijker stad door in te zetten op de kernambities:

  • stedelijk en attractief > compact, gemengd, stedelijk en divers

  • innovatief en slim > slim, flexibel, innovatief en adaptief

  • lommerrijk en luisterrijk > schoon, veilig, groen en gezond

Met deze kernambities als leidmotief wordt gebouwd aan een toekomstbestendiger stad met extra aandacht voor mobiliteit, economie, recreatie, duurzaamheid, vitaliteit en financiën.

DRIE GEBIEDSIDENTITEITEN

In het Omgevingsbeeld worden drie gezichten van het kanaal onderscheiden, elk met een herkenbaar eigen karakter gebaseerd op huidige en historische kwaliteiten:

  • 1.

    De Viaanse Molen als de Zachte stad aan de noordzijde van de stad

  • 2.

    Overstad als het Gastvrije centrum gelegen aan de historische binnenstad

  • 3.

    Oudorp en Overdie als Stoere Havenstad aan de zuidzijde van de stad

ONTWIKKELBEELD VIAANSE MOLEN

Het Ontwikkelbeeld Viaanse Molen is vertrekpunt voor de doorontwikkeling van de Zachte Stad. Het versterken van de bestaande landschappelijke waarden vormen hier de potentie en ambities voor de toekomst en voegt een nieuw type gemengde leefmilieu toe aan de stad.

VERNIEUWDE UITGANGSPUNTEN T.O.V. HET ONTWIKKELBEELD

Onderzoek en uitwerkingen hebben geresulteerd in het afstappen van een aantal ruimtelijke en programmatische uitgangspunten zoals vastgesteld In het Ontwikkelbeeld:

  • De mate van stedelijkheid is teruggeschroefd o.a. door de eisen van molenbiotoop (Sluismolen en molen De Viaan) en het te behouden groene karakter van het gebied

  • De Helderseweg wordt niet verplaatst ten gunste van een centrale ontsluitingsroute door het gebied maar behouden op de huidige locatie

  • De minimale maat van 35m voor de oever aan de westzijde is niet overal haalbaar.

  • De volkstuinen in het gebied worden gehandhaafd en niet ontwikkeld tot gemengde woongebieden

  • De programmatische mix is voor nadere uitwerking per deelgebied.

WONEN

Alle inwoners verdienen een woning in de buurt van voorzieningen, opleiding en werk. De gemeente Alkmaar streeft daarom naar een gevarieerd woningaanbod in alle wijken. Ook in de nieuwe wijken van Alkmaar moet iedereen een plek kunnen vinden. Daarom wordt in alle deelgebieden van het Alkmaars Kanaal een diversiteit aan woningtypen ontwikkeld, zowel in prijsklassen als woningtypologieën. De ambitie is om van alle te bouwen woningen, minimaal 30% sociaal waarvan tenminste de helft sociale huur (corporatiewoningen) te realiseren. Op ontwikkellocaties waar de gemeentegrondposities heeft zal er nadrukkelijk gekeken worden naar een significant hoger aandeel sociale woningbouw en altijd in samenwerking met een woningbouwcorporatie.

WOONDEAL

In 2023 heeft de gemeente Alkmaar de Woondeal ondertekend. Dit betekent onder andere dat de gemeente Alkmaar zich inzet voor de realisatie van voldoende betaalbare woningen. Het streven is dat 2/3 van de te realiseren woningen in de betaalbare categorie valt. Betaalbare woningen zijn sociale huurwoningen (tot de liberalisatiegrens), middenhuurwoningen (tot €1.129 per maand, prijspeil 2024) en betaalbare koopwoningen (tot €390.000, prijspeil 2024). In de loop van 2024 wordt de Woonvisie voor de gemeente Alkmaar opgesteld. In de Woonvisie zal een integrale afweging plaatsvinden van de diverse ambities. Opgemerkt dient te worden dat de zojuist genoemde ambitie over 2/3 betaalbaar alleen van toepassing is op projecten waarvoor nog geen (concept) anterieure overeenkomst of (concept) afsprakenbrief met de ontwikkelaar is gedeeld of ondertekend.

WONEN & ZORG

Specifieke aandacht is nodig voor de realisatie van levensloopbestendige woningen en zorgwoningen voor senioren. De regio Alkmaar vergrijst en het aantal (oudere) huishoudens neemt toe. Uit provinciaal onderzoek blijkt dat het aantal ouderen in de regio Alkmaar met een leeftijd van 65+ naar verwachting tussen 2019 en 2040 met 40% toeneemt. Veel senioren wonen nog in een gezinswoning. Een deel van de senioren geeft aan dat ze graag willen doorstromen naar een passende woning, maar dat ze die niet kunnen vinden. De gemeente Alkmaar heeft in het Woonakkoord Regio Alkmaar met buurgemeenten daarom afgesproken zich in te zetten voor de realisatie van voldoende levensloopbestendige woningen en zorgwoningen. Hierdoor kunnen senioren wonen op een locatie waar zij graag oud willen worden en ontstaan er doorstroommogelijkheden voor bewoners uit de omliggende buurten. Aandachtspunt hierbij is dat bekeken moet worden of het voorzieningenniveau op een locatie aansluit bij de behoeften van senioren. Ook is er aandacht nodig voor de woonkwaliteit. Om daadwerkelijk te zorgen voor doorstroming is het van belang dat een goede buitenruimte wordt gerealiseerd.

LEEFBARE WIJKEN

De gemeente Alkmaar streeft verder naar leefbare wijken. In een leefbare wijk sluit de woonomgeving goed aan bij de wensen en behoeften van de mensen die er wonen. De beleving van de bewoners staat daarbij centraal. Om een leefbare wijk te realiseren wordt onder andere gelet op de fysieke kenmerken van de woonomgeving (hoe wordt de openbare ruimte ingericht), de sociale kenmerken van de woonomgeving (hoe ziet de bewonerssamenstelling van een wijk eruit), overlast en veiligheid.

BIJLAGE C. BOUWSTENEN KANTORENPARK

Per type functie of programma zijn kansrijke gebouwtypen voor de gebiedsontwikkeling onderzocht. Deze typen zijn toegepast in de voorbeeldverkaveling en geven tegelijkertijd inzicht en inspiratie welke woonmilieus binnen het kantorenpark kansrijk zijn. En op welke wijze functiemenging kan worden georganiseerd. In deze bijlage zijn een aantal bij het kantorenpark passende bouwstenen voor parkeren en wonen nader beschreven.

BOUWSTENEN PARKEREN

De grote parkeervraag in het kantorenpark en de organische ontwikkeling over een langere tijd vraagt om flexibiliteit in (hybride) parkeeroplossingen. Uitgangspunt is parkeren op eigen terrein en uit het zicht.

BOUWSTENEN WONEN

Wonen doe je samen in het Kantorenpark. Kavels worden ontwikkeld als een cluster van gebouwen die samen semi besloten en collectieve hoven vormen. Het hof is de plek waar bewoners elkaar tegenkomen onderweg naar de eigen woonentree of de collectieve opgang. Het hof staat in verbinding met het landschap en is groen ingericht. Het hof bevindt zich op dekniveau of gewoon op maaiveld afhankelijk van de parkeeroplossing. Elk ontwikkeling kent een diversiteit aan woningtypen en woninggroottes voor verschillende doelgroepen.

afbeelding binnen de regeling

afbeelding binnen de regeling

WONEN AAN EEN DAKTUIN

Woningen aan een collectieve tuin is passend bij het open bouwblok. De groene tuin kan op het maaiveldniveau liggen maar ook opgetild zijn boven een parkeergarage. De woningen hebben een luwe zijde aan het hof en een levendige zijde aan de straat.

afbeelding binnen de regeling

afbeelding binnen de regeling

WONEN AAN COLLECTIEF HOF

Aan de groene binnenhoven is het wonen in de luwte. Deze plekken lenen zich bij uitstek voor de huisvesting van bijzondere doelgroepen zoals ouderen maar ook voor bijvoorbeeld gezinnen. Hofwoningen kunnen zowel appartementen als grondgebonden woningen zijn of een combinatie van beide (benedenbovenwoning).

afbeelding binnen de regeling

afbeelding binnen de regeling

SOLID

Compacte gebouwen met een atrium. Deze blokken met appartementen en een hoge architectonische en ruimtelijke kwaliteit lenen zich voor wat grotere woningen voor een specifieke doelgroep. Deze typologie is geschikt voor een wat hoger segment.

afbeelding binnen de regeling

afbeelding binnen de regeling

STADSWONINGEN

Stadswoningen zijn grondgebonden woningen met een voordeur aan de straat of hof. In tegenstelling tot een reguliere eengezinswoning is de tuin compact, de woning relatief smaller en wat hoger. Deze woningen kunnen eventueel gecombineerd worden met een bovenwoning.

afbeelding binnen de regeling

afbeelding binnen de regeling

TRANSFORMEREN

Bestaande gebouwen kunnen waar mogelijk worden getransformeerd naar wonen. Door bijvoorbeeld een nieuwe gevel te plaatsen kan er buitenruimte worden toegevoegd waardoor de kwaliteit van wonen toeneemt.

afbeelding binnen de regeling

afbeelding binnen de regeling

OPTOPPEN

Op bestaande gebouwen is het mogelijk om met een lichte constructie woningen toe te voegen. Door optoppingen kunnen er goed woningen in het betaalbare segment worden gerealiseerd. Door de toepassing van optoppingen kan er goed verdicht worden en kwaliteit aan de grote dakoppervlakken worden toegevoegd.

afbeelding binnen de regeling

afbeelding binnen de regeling

AANBOUWEN/ BIJ BOUWEN

Naast transformatie van bestaande gebouwen kunnen er ook volumes worden toegevoegd. Deze woningen vormen samen met de bestaande bebouwing een cluster. Deze leent zich bij uitstek voor de huisvesting van bijzondere doelgroepen zoals ouderen maar ook voor bijvoorbeeld voor een bijzondere collectieve functie.

afbeelding binnen de regeling

afbeelding binnen de regeling

PARKEREN OVERBOUWD-DEK MAAIVELD

Op kavels waar gelijktijdig woningbouw wordt gerealiseerd zijn overbouwde parkeeroplossingen voor de hand liggend. De randen van de parkeerplaatsen worden omzoomd met woonof werk gerelateerd programma. Het dak zal een inrichting krijgen met opgaand groen waarbij wordt voldaan aan de eisen van klimaatadaptatie.

afbeelding binnen de regeling

afbeelding binnen de regeling

PARKEREN UIT HET ZICHT

Uitgangspunt is parkeren op eigen terrein en uit het zicht. Bij transformatie kan maaiveldparkeren een oplossing zijn. Dit dient uit het zicht (bijvoorbeeld met een pergola of verticale begroeiing) en klimaatadaptief opgelost te worden.

afbeelding binnen de regeling

afbeelding binnen de regeling

PARKEREN HALFVERDIEPT

Halfverdiept parkeren brengen het parkeren volledig uit het zicht. De randen van de parkeerplaatsen vormen de overgangszone van de woningen naar het landschap. Het dak zal een inrichting krijgen met opgaand groen waarbij wordt voldaan aan de eisen van klimaatadaptatie.

afbeelding binnen de regeling

afbeelding binnen de regeling

BUURTHUB

Parkeren kan efficiënter opgelost worden als ontwikkelende partijen gezamenlijk een buurthub realiseren. Dubbelgebruik, bezoekers parkeren en deelmobiliteit en buurtfunctie als een pakketpunt komen goed samen in een buurthub.

afbeelding binnen de regeling

afbeelding binnen de regeling

WERKPLINTEN

Kleinschalige werkprogramma’s kunnen een plek krijgen in de plinten van woningbouwontwikkeling. Afhankelijk van het type programma ligt deze zichtbaar aan de straat zoals een tandartspraktijk en gezondheidscentrum of meer geborgen aan een binnenhof zoals bijvoorbeeld een kinderdagverblijf.

afbeelding binnen de regeling

afbeelding binnen de regeling

WERKGEBOUW

Kleinschalige werkprogramma’s kunnen ook in een los gebouw binnen een blok worden gemaakt. Het type programma vereist soms wat meer ruimte. Een werkgebouw is onderdeel van een cluster en van de straat, afhankelijk van de functie.

afbeelding binnen de regeling

afbeelding binnen de regeling

COLLECTIEVE VOORZIENINGEN

Collectieve functies, zoals een buurtkamer, worden geïntegreerd binnen het cluster. Dat kan met een volume in het hof of daktuin, als voorziening in de plint, of als ander soort ruimte die geschakeld is aan een collectieve ruimte zoals een entree.

afbeelding binnen de regeling

afbeelding binnen de regeling

BESTAAND WERKGEBOUW

Er zijn verschillende werkgebouwen in het kantorenpark die in de toekomst kunnen transformeren naar een ander type functie. Tot die tijd doen ze in hun bestaande vorm mee met de ontwikkelingen in het kantorenpark.

afbeelding binnen de regeling

BIJLAGE D. WINDVANGONDERZOEK EAGM DECEMBER 2024

RAPPORTAGE: Herinrichting kantorenpark en verbetering biotoop

“DE VIAAN”

HAVINGHASTRAAT 18

1817 DA ALKMAAR

Disclaimer:

De inhoud van dit rapport is met uiterste zorg samengesteld. De informatie in dit document wordt aangeboden zonder enige garantie. EAGM sluit alle aansprakelijkheid uit voor enigerlei directe of indirecte schade, van welke aard dan ook, die voortvloeit uit of verband houdt met het gebruik van dit document. Niets uit dit rapport mag worden vermenigvuldigd of openbaar gemaakt door middel van drukwerk, fotokopie, microfilm of op welke andere wijze dan ook zonder schriftelijke toestemming van EAGM en de opdrachtgever, noch zonder toestemming worden gebruikt voor enig ander werk dan waarvoor het is vervaardigd.

1. INLEIDING

1.1 Aanleiding

De gemeente Alkmaar is momenteel bezig met de mogelijke transformatie en herinrichting van het kantorenpark gelegen aan de Ohmstraat , Ampèrestraat , James Wattstraat en Voltastraat. Dit kantorenpark bevindt zich tussen twee rijksmonumentale molens: De Viaan en de Sluismolen. Beide molens zijn eigendom van het Hoogheemraadschap Noord-Holland Kwartier (HHNK) en functioneren nog steeds als maalvaardige poldermolens, zij het als reservegemaal.

Omdat de beoogde herinrichting mogelijk gevolgen kan hebben voor de windvang van de molens, wil de gemeente eerst de huidige conditie van de windvang in kaart brengen. Het doel is om te bepalen waar knelpunten zich voordoen en waar verbeteringen mogelijk zijn, bijvoorbeeld door bomenkap of het terugsnoeien van beplanting. Naast het in kaart brengen van de huidige situatie is aanvullend onderzoek uitgevoerd om het effect van de voorgenomen herinrichting en (beperkte) bomenkap op de windvang te berekenen. Hierbij zijn verschillende scenario’s opgesteld en doorgerekend om te bepalen welke maatregelen een positief effect kunnen hebben op het behoud en de verbetering van de windvang. Dit onderzoek richt zich niet alleen op de directe belemmeringen door gebouwen en bomen, maar ook op de mogelijke verbeteringen die binnen de ruimtelijke kaders van de herinrichting kunnen worden gerealiseerd.

Het is de intentie van alle betrokken partijen om de molenbiotoop te verbeteren en, in combinatie met de herinrichting van het kantorenpark, een goede oplossing te vinden die recht doet aan zowel de molens als het stedelijke landschap. Hoewel het onderzoek bij aanvang betrekking had op zowel molen De Viaan als de Sluismolen, richt dit specifieke rapport zich uitsluitend op de situatie rondom molen De Viaan.

Met dit rapport wil de gemeente inzicht verkrijgen in zowel de huidige knelpunten als de haalbaarheid van potentiële maatregelen om de windvang van molen De Viaan te optimaliseren en tegelijkertijd de kwaliteit van de herinrichting van het kantorenpark te waarborgen.

1.2 Rapport

In dit onderzoek is gebruik gemaakt van CFD (Computational Fluid Dynamics) om de verschillen tussen meerdere scenario’s te analyseren en met elkaar te vergelijken. CFD fungeert als een virtuele windtunnel waarin 3D-modellen worden berekend op basis van de stroming van lucht of wind, bijvoorbeeld in een stedelijke omgeving. Voor deze simulaties spelen tal van parameters en instellingen een cruciale rol. Deze zijn niet alleen van belang om de simulaties zo dicht mogelijk bij de werkelijkheid te brengen, maar ook om een betrouwbare en consistente vergelijking tussen de verschillende scenario’s te waarborgen.

EAGM streeft naar een volledig transparante en reproduceerbare onderzoeksmethodiek voor de bepaling van de windvang van molens. Om de leesbaarheid van dit rapport te bevorderen, wordt niet uitgebreid ingegaan op alle parameters. Een overzicht hiervan kan echter op verzoek worden verstrekt.

Correctie: In het eerste resultatenblad zijn de gegevens met betrekking tot de Weibull-verdeling, de ‘kwaliteitsfactor' van de windrichtingen en de knelpuntenkaart niet correct. Dit is het gevolg van een onjuiste filterinstelling tijdens de data-analyse. Deze fout is ontdekt voorafgaand aan de verdere data-analyse voor dit definitieve onderzoek en zal in de uiteindelijke resultaten worden gecorrigeerd.

1.3 Het onderzoek

Molen De Viaan, een rijksmonumentale poldermolen gebouwd in 1579, speelt een cruciale rol in het waterbeheer van het Hoogheemraadschap Hollands Noorderkwartier (HHNK). Gelegen in Alkmaar, is de molen een belangrijk cultureel erfgoed dat niet alleen functioneel maar ook historisch en educatief van groot belang is. Met een wiekenkruis van 24 meter zorgt De Viaan ervoor dat de polder, indien nodig, op peil kan worden gehouden.

Het behoud van de molenbiotoop, in het bijzonder de windvang, is essentieel voor de efficiënte werking van de molen. De gemeente Alkmaar onderzoekt daarom de huidige condities van de windvang, met als doel knelpunten te identificeren en waar nodig verbeteringen door te voeren, bijvoorbeeld door bomen te snoeien of te verwijderen. Dit rapport beschrijft het uitgevoerde windvangonderzoek van Molen De Viaan, waarin de invloed van de omliggende bebouwing en begroeiing op de windvang van de molen wordt geanalyseerd.

Door middel van CFD-simulaties en nauwkeurige modellering van de omgeving, wordt de luchtstroming rond de molen onderzocht om vast te stellen in hoeverre obstakels de windvang beïnvloeden. De resultaten van dit onderzoek zullen dienen als leidraad voor het behoud en de verbetering van de windvang van Molen De Viaan, waardoor zowel de functionele als historische waarde van de molen behouden blijft.

1.4 Biotoop versus windvang

Het is van belang om het onderscheid tussen een windvangonderzoek en een biotooponderzoek goed te begrijpen. Een windvangonderzoek richt zich uitsluitend op de capaciteit van de molen om wind te vangen en deze om te zetten in mechanische energie. Dit type onderzoek analyseert het effect van obstakels of veranderingen in de directe omgeving van de molen op deze capaciteit.

Een biotooponderzoek daarentegen heeft een breder perspectief en richt zich op de gehele omgeving rondom de molen. Hierbij worden niet alleen de technische aspecten van de windvang meegenomen, maar ook factoren zoals flora, fauna en landschapselementen die van invloed zijn op de beleving, esthetiek en functionaliteit van de molen. Daarnaast omvat een biotooponderzoek ook aspecten zoals het zicht op de molen, de cultuurhistorische waarde en het ambachtelijke malen. Deze bredere context kan worden geëvalueerd in relatie tot het bestemmingsplan, waarbij eventuele inbreuken op de molenbiotoop eerst door belanghebbenden worden besproken.

In dit rapport ligt de focus op een windvangonderzoek.

1.5 Gebruikte software

  • OpenFOAM [GUI: RWIND Pro]

  • ParaView

  • QGIS [OSM, AHN, PDOK] en Google Earth

  • Sketchup [3DBAG , AHN, GIS data Alkmaar]

  • Blender

  • VScode [numpy, scipy, matplotlib(pyplot), seaborn]

  • Microsoft Excel, Access en Word

1.6 Bronnen

  • KNMI

  • AHN

  • 3DBAG

  • Google Earth

  • CADMapper

  • Data Gemeente Alkmaar

  • www. archaeocosmology. org; V. Reijs

  • ‘Drag coefficient and frontal area of a solitary mature tree’; C. A. Bekkers , N. Angelou , E. Dellwik

  • ‘A Simple Algorithm to Relate Measured Surface Roughness to Equivalent Sand-grain Roughness’; T. Adams , C. Grant , H. Watson

  • ‘Windmills in England ‘; Rex Wailes

  • ‘Aerodynamics of Wind Turbines’; Martin O. L. Hansen

  • ‘Computational Fluid Dynamics for urban physics: Importance , scales , possibilities , limitations and ten tips and tricks towards accurate and reliable simulations’; B. Blocken

  • International Journal of Historical Engineering and Technology

  • ‘Computational Fluid Dynamics: The Basics with Applications’; John D. Anderson

  • ‘Turbulence Modeling for CFD’; David C. Wilcox

  • ‘An Introduction to Computational Fluid Dynamics: The Finite Volume Method’; H. K. Versteeg en W. Malalasekera

  • ‘Aerodynamic Roughness of Urban Areas’; Grimmond en Oke

  • ‘Numerical Simulations of Wind Flow in Urban Forests’; Gromke en Ruck

  • ‘Technische Strömungslehre’; Willi Bohl

  • ‘Best practice guideline for the CFD simulation of flows in the urban environment’; J. Franke

  • ‘CFD modelling and wind tunnel validation of airflow through plant canopies using 3D canopy architecture’; A. Melese Endalew e. a.

  • OpenFOAM/RWIND handleiding

2. PLANGEBIED EN PLANNEN

afbeelding binnen de regeling

Satellietfoto van de directe omgeving van molen De Viaan, afkomstig uit Google Earth. De weergegeven satellietfoto beslaat een gebied van ongeveer 1. 000 x 1. 000 meter en is noordelijk georiënteerd. Het kantorenpark is rood gearceerd.

Op de locatie van het kantorenpark staan momenteel relatief grote en hoge gebouwen met diverse vormen. Daarnaast is het gebied rondom de molen behoorlijk dicht begroeid met bomen, vooral ten zuiden en ten noordwesten van de molen. Direct ten zuiden van de molen, binnen een straal van 100 meter, bevinden zich meerdere hoge bomen die mogelijk invloed hebben op de windvang.

afbeelding binnen de regeling

Het huidige kantorenpark in relatie tot de molen

Bij de transformatie van het kantorenpark zullen niet alle bestaande gebouwen worden gesloopt. De herinrichting is daardoor niet integraal. Zo blijven onder andere het politiekantoor, de parkeergarage en de boogvormige gebouwen behouden. In het transformatieplan worden de boogvormige gebouwen echter wel verhoogd met één extra bouwlaag.

afbeelding binnen de regeling

3D-model van de voorgenomen herinrichting

Het model, afkomstig van de gemeente Alkmaar, toont de geplande herinrichting van het kantorenpark. De stedenbouwkundige opzet wijkt niet sterk af van de bestaande situatie, hoewel sommige elementen in het plan hoger zijn dan in de huidige situatie. Alle wijzigingen binnen een straal van 400 meter tot de molen zijn gemodelleerd.

3. ONDERZOEK EN RESULTATEN

3.1 Windregime

Voor het vaststellen van het windregime is gebruik gemaakt van openbare metadata van het KNMI, specifiek van station De Kooy (235), over de periode 2000-2023. Om de data te verifiëren zijn deze gegevens gevalideerd met behulp van de Global Wind Atlas, tot een afstand van maximaal drie kilometer van molen De Viaan. Aangezien het een poldermolen betreft, is voor de analyse de uurdata van 0-24 uur gebruikt.

De windroos is onderverdeeld in 12 onderzoekssectoren van 30°. Op basis van de metadata is defrequentie van de wind per sector berekend. Deze grafiek houdt geen rekening met de windsnelheid of de windkwaliteit, waardoor het uiteindelijke vermogen nog niet kan worden berekend.

afbeelding binnen de regeling

Het grootste windvangpotentieel wordt gevonden in de 240°-richting, met een bijdrage van 1443%, aan het totale windpotentieel. De windroos (frequentie , gemiddeld) ingezet in de hoek rechtsonder is afkomstig van de Global Wind Atlas voor een gebied 9km^2 rondom de molen.

Op basis van de metadata is voor elke onderzoeksrichting de vermogensdichtheid berekend (snelheid en luchtdichtheid per uur). Hierbij is de totale vermogensdichtheid van de wind per richting over de gehele periode in W/m² bepaald, oftewel het energiepotentieel per onderzoeksrichting. Deze factor is genormaliseerd op een waarde van 1, waarmee inzicht wordt verkregen in welke windrichting gedurende het jaar het meeste energiepotentieel voor de molen biedt.

afbeelding binnen de regeling

Deze windroos vertoont een groot verschil met de frequentieroos, wat aangeeft dat de gemiddelde windsnelheden variëren tussen de verschillende windrichtingen. Windrichting 210° heeft de hoogste vermogensdichtheid (1.00) , 360° de laagste (0. 06).

Om dit te illustreren, is onderstaand een Weibull-verdelingsgrafiek opgenomen die de verdeling van alle windrichtingen toont. De inputdata voor deze Weibull-verdeling is eveneens de metadata van het KNMI.

afbeelding binnen de regeling

De Weibull-verdelingsfunctie (Probability Density Function, PDF) voor 12 verschillende windrichtingen, gemeten op 10 meter boven het maaiveld. De Weibull-verdeling wordt vaak gebruikt om windprofielen en windsnelheden te modelleren, aangezien windgedrag vaak niet normaal verdeeld is.

De x-as van de grafiek geeft de windsnelheid in meters per seconde (m/s) weer, terwijl de y-as de kansdichtheid toont, wat aangeeft hoe waarschijnlijk een bepaalde windsnelheid voorkomt voor een gegeven windrichting.

De kansdichtheid van de windsnelheden in deze verdeling geeft inzicht in de variabiliteit van de windsnelheden per windrichting. Door de curve per windrichting te analyseren, kunnen relevante conclusies worden getrokken met betrekking tot de energieopbrengst. Zo liggen de pieken van de windrichtingen 210° en 240° relatief hoog (snelheid op de x-as), wat aangeeft dat de kansdichtheid voor een specifieke windsnelheid het grootst is. Echter, omdat de pieken minder scherp zijn, wijst dit op een grotere variabiliteit in de windsnelheden voor deze richtingen, ondanks dat de windsnelheden hoger liggen. In tegenstelling hiermee heeft de curve voor 360° een scherpe en hoge piek bij een lage snelheid, wat duidt op een lagere maar constantere windsnelheid. Deze analyse benadrukt de verschillen in windkarakteristieken per richting en biedt waardevolle informatie voor toepassingen zoals windenergieopwekking.

3.2 CFD-onderzoek

Om de invloed van de bomen op de windvang van de molen te bepalen, is het noodzakelijk om verschillende variabelen te controleren. Daarom zijn er drie volledige scenario’s doorgerekend om een duidelijk beeld te krijgen van de impact van zowel de begroeiing als de omliggende bebouwing.

Voor het overzicht is het CFD-onderzoek verdeeld in drie delen:

Deel 1:

  • In het ‘0-scenario’ is alleen het terrein rondom de molen gemodelleerd, inclusief het juiste reliëf van het terrein, zodat deze variabele kon worden gecontroleerd. Alle 12 onderzoeksrichtingen zijn in dit scenario gesimuleerd. (‘referentie’)

  • In Scenario 1 zijn de gebouwen toegevoegd aan het model, naast het terrein, en is hun invloed op de windvang geanalyseerd. (‘gebouwen’)

  • In Scenario 2 zijn de bomen gemodelleerd in hun zomervorm. (‘gebouwen_en_bomen’)

Deel 2:

  • In Scenario 3A worden de voorgenomen gebouwen op het kantorenparkterrein gemodelleerd en gesimuleerd. Dit scenario is vergelijkbaar met Scenario 1, waarbij er geen bomen zijn gesimuleerd.

  • In Scenario 3B zijn de bomen toegevoegd aan Scenario 3A. Dit scenario kan direct worden vergeleken met Scenario 2.

Deel 3:

  • Scenario 4A is een model waarin de bomen binnen een straal van 100 meter rondom de molen zijn gekapt, evenals de bomen direct aan de noordzijde van de N245.

  • Scenario 4B is een model waarin de bomen uit Scenario 4A zijn gekapt, met daarbij ook de bomengroep ten noordwesten van de molen aan de westzijde van de N9, de bomengroep langs de westzijde van de N9, ten zuidwesten van de molen (tegenover de Verdistraat, direct ten noorden van de Kamer van Koophandel) en de bomenrij ten zuiden van de N245, tussen de provinciale weg en de woningen aan de Verdistraat.

  • Het is uiteraard mogelijk om talloze scenario’s door te rekenen voor bomenkap. Voor dit specifieke project is echter besloten om, voor indicatieve doeleinden, slechts twee scenario’s door te rekenen.

Deze aanpak biedt een helder inzicht in de afzonderlijke en gecombineerde effecten van terrein, gebouwen en bomen op de windvang van de molen.

De grafiek op de volgende pagina toont de gemiddelde vermogensdichtheid (W/m^2) over het oppervlak van het wiekenkruis bij een inlaatsnelheid van 5 m/s. De blauwe lijn vertegenwoordigt de referentiemeting, waarbij duidelijk te zien is dat het terrein ook invloed heeft op de vermogensdichtheid. De rode lijn geeft de situatie weer met alleen de gebouwen, en de groene lijn toont de situatie met zowel gebouwen als bomen.

De resultaten worden op de volgende pagina’s visueel weergegeven op windroosgrafieken en uitgedrukt in vermogensdichtheid (PD), echter, de analyse strekt verder dan alleen vermogensdichtheid. De analyse van andere aspecten zoals drukverdeling op wiekenkruis worden aanvullend vergeleken in tabellen. Op basis van alle resultaten worden er conclusies getrokken.

PD-grafiek voor Deel 1:

afbeelding binnen de regeling

Het is duidelijk dat de bomen een aanzienlijke invloed hebben op de vermogensdichtheid van de wind ter hoogte van het wiekenkruis. Vooral vanuit de noordwestelijke, noordelijke, zuidoostelijke, zuidelijke en zuidwestelijke richtingen is het negatieve effect aanzienlijk.

De versnelling in het gebouwenscenario (rode lijn) bij de hoeken 120°, 150° en 330° wordt waarschijnlijk veroorzaakt door een soort trechtereffect, waarbij de wind wordt gekanaliseerd door de open ruimte tussen de gebouwen.

PD-grafiek voor Deel 1&2:

afbeelding binnen de regeling

De bovenstaande grafiek toont de resultaten (PD) voor scenario’s 3A en 3B, weergegeven op dezelfde grafiek als Deel 1, ter vergelijking. Bij een referentiewindsnelheid van 5 m/s is de gemiddelde PD over de windroos in scenario 3B 5% lager in vergelijking met scenario 2. Wanneer alleen de gebouwen worden vergeleken (3A versus 1) , is dit verschil 35%. , Dit toont aan dat de nieuwe gebouwen, zoals gemodelleerd, een negatief effect hebben op de vermogensdichtheid van de molen. Omdat de PD niet lineair schaalt, is de verslechtering sterker bij hogere windsnelheden en minder uitgesproken bij lagere snelheden, maar blijft er in alle gevallen sprake van een afname.

Identificeren van knelpunten

Op basis van het windregime en de belemmeringen veroorzaakt door bomen kunnen gerichte scenario’s worden berekend voor bomenkap. Het doel is om knelpunten te identificeren en tegelijkertijd richting te geven aan mogelijke verbeteringen van de windvang. Hierbij worden bomen beschouwd als de variabele factor, aangezien wordt aangenomen dat de gebouwen permanent zijn en niet zullen worden gesloopt of gewijzigd.

Door het windregime te analyseren, kan worden vastgesteld waar bomen de grootste impact hebben op het energiepotentieel van de molen. De data worden genormaliseerd op een schaal van 0 tot 1, waarbij een waarde van 1 (lichtgroen) aangeeft dat de bomen het grootste relatieve effect hebben op de windvang, en een waarde van 0 (rood of geen kleur) betekent dat de invloed van de bomen verwaarloosbaar is (relatief aan de PD per richting).

Bij verbeteringen, zoals het kappen van bomen in specifieke windrichtingen, is deze analyse echter eendimensionaal Dit betekent dat er geen rekening wordt gehouden met downstream-effecten die door het kappen van bomen kunnen ontstaan. Om een completer beeld te krijgen van de impact, zullen ook compensatiemaatregelen moeten worden berekend. Ondanks deze beperkingen biedt de eendimensionale benadering een nuttige eerste indicatie van de mogelijke richtingen waarin verbeteringen gerealiseerd kunnen worden.

afbeelding binnen de regeling

Op basis van de knelpuntengrafiek is de meest logische keuze om bomen te kappen in de richtingen 210°, 240° en 330°. Daarnaast is het essentieel om de eerste 100 meter rondom de molen zoveel mogelijk vrij te houden van obstakels. Op basis van deze uitgangspunten zijn de twee scenario’s (4A en 4B) in Deel 3 vastgesteld.

afbeelding binnen de regeling

PD-grafiek voor Deel 1 t/m 3:

afbeelding binnen de regeling

De bovenstaande grafiek laat zien dat het kappen van bomen een significante verbetering kan opleveren in de vermogensdichtheid. De oranje lijnen (4A en 4B) moeten worden vergeleken met de groene lijnen om de verbeteringen duidelijk te illustreren. Het ligt voor de hand dat het verwijderen van meer bomen een positief effect heeft op de windvang van de molen, maar deze resultaten moeten in verhouding worden geëvalueerd ten opzichte van de omvang van de ingreep.

Bij scenario 4A ligt de focus op een relatief beperkte ingreep in de directe omgeving (ongeveer 100 meter en een klein gebied daaromheen), terwijl scenario 4B een veel omvangrijker kapplan betreft. Deze verschillen moeten zorgvuldig worden afgewogen bij het bepalen van de meest efficiënte en effectieve aanpak. De PD-grafieken zijn niet gewogen op de kwaliteit van de windrichting.

Nogmaals, dit zijn slechts twee van de vele mogelijke kapscenario's. Er zijn uiteraard tal van varianten denkbaar; deze dienen slechts ter indicatie van de mogelijkheden.

Heatmaps set 1:

afbeelding binnen de regeling

Heatmaps set 2:

afbeelding binnen de regeling

3.3 Interpretatie

De heatmaps op de voorgaande pagina's zijn zo opgebouwd dat ze inzicht bieden in de veranderingen per metriek, uitgesplitst naar scenario en windrichting. Dit maakt het mogelijk om bijvoorbeeld de drukverdeling op de enden van het wiekenkruis, de turbulentie, de windsnelheid en de vermogensdichtheid overzichtelijk te analyseren en te vergelijken tussen de scenario’s.

  • y_W_Vert: Het verschil in snelheid tussen het bovenste en onderste end van het wiekenkruis

  • y_W_hor: Het verschil in snelheid tussen de keer- en weerzijde van het wiekenkruis

  • oU_dh_Vert: De geïntegreerde waarde van de windsnelheid over de verticale meetpunten

  • oU_W_hor: De geïntegreerde waarde van de windsnelheid over de horizontale meetpunten

  • TI_max: De maximaal gemeten turbulentie

  • TI_x: De gemiddelde turbulentie

  • U’: De windsnelheid

  • PD: De vermogensdichtheid

Op basis van de verschillende scenario’s en de bijbehorende analyse van windsnelheid , turbulentie , en vermogensdichtheid , kunnen de volgende algemene conclusies worden getrokken met betrekking tot de windvang:

Scenario 0 (referentie):

Dit scenario weerspiegelt de huidige situatie en biedt een stabiele basis voor vergelijking. Het toont over het algemeen lage turbulentie en een evenwichtige verdeling van windsnelheden, wat gunstig is voor een consistente windvang.

Scenario 1 (gebouwen, bestaand):

De aanwezigheid van de bestaande gebouwen veroorzaakt een daling in vermogensdichtheid en een toename in horizontale asymmetrie (op het wiekenkruis). Hoewel de turbulentie relatief beperkt blijft, heeft dit scenario een negatief effect op de windvang.

Scenario 2 (gebouwen en bomen | de werkelijke, bestaande situatie):

Dit scenario laat aanzienlijke nadelige effecten zien, met name door verhoogde turbulentie en verminderde vermogensdichtheid. De interactie tussen de gebouwen en bomen creëert instabiele windomstandigheden, waardoor de windvang aanzienlijk wordt beperkt.

Scenario 3A (gebouwen, bestaand + herinrichting):

Dit scenario toont vergelijkbare kenmerken als scenario 1, met een afname in vermogensdichtheid en windsnelheid. Echter, de turbulentie-intensiteit blijft beheersbaar.

Scenario 3B (gebouwen en bomen, bestaand + herinrichting):

De combinatie van gebouwen en bomen resulteert in hoge turbulentie en een daling in vermogensdichtheid, vergelijkbaar met Scenario 2. Dit scenario heeft de meest negatieve effecten op de windvang.

Scenario 4A (beperkte bomenkap):

Dit scenario toont een verbetering ten opzichte van Scenario 2 en 3B. De strategische bomenkap vermindert turbulentie en verhoogt de vermogensdichtheid, wat de windvang gunstig beïnvloedt. Het behoud van een vrije zone rond de molen is essentieel voor deze verbetering.

Scenario 4B (uitgebreidere bomenkap):

Dit scenario levert de meest significante verbetering in de molenbiotoop. Door extra bomen te kappen, wordt de windvang verder geoptimaliseerd, met een duidelijke daling in turbulentie en een verhoging van de vermogensdichtheid. Dit scenario benadrukt het belang van een open windveld rond de molen.

3.4 Windvangcijfer

Om een overzichtelijk windvangcijfer te berekenen , kunnen weegfactoren worden gekoppeld aan de bovenstaande aspecten:

  • Verschil in snelheid tussen het bovenste en onderste einde van het wiekenkruis (15%)

  • Verschil in snelheid tussen de keer- en weerzijde van het wiekenkruis (10%)

  • Geïntegreerde waarde van de windsnelheid over de verticale meetpunten (15%)

  • Geïntegreerde waarde van de windsnelheid over de horizontale meetpunten (15%)

  • Maximaal gemeten turbulentie (5%)

  • Gemiddelde turbulentie (10%)

  • Vermogensdichtheid (30%)

De bovenstaande resultaten worden vervolgens gewogen aan de hand van de PD-analyse per windrichting , waarbij de referentiesituatie op 1 wordt genormeerd , oftewel een biotoopcijfer van 100.

Windvangcijfer per scenario (alle windrichtingen):

afbeelding binnen de regeling

4. CONCLUSIE

Het optimaliseren van de molenbiotoop is essentieel voor het waarborgen van de functionaliteit en efficiëntie van de molen. Dit is sterk afhankelijk van het minimaliseren van obstakels, zoals bomen en gebouwen, binnen een straal van 100 meter van de molen. Uit de analyse blijkt dat strategische ingrepen, zoals het verwijderen van bomen (scenario’s 4A en 4B), de windvang en daarmee de efficiëntie van de molen aanzienlijk kunnen verbeteren. Het behoud en herstel van een vrije windzone rond de molen is daarom cruciaal.

4.1 Belangrijkste conclusies:

Bomen als belangrijkste belemmering:

  • De grootste belemmering voor de windvang wordt gevormd door de aanwezigheid van bomen. Hoewel gebouwen ook invloed hebben, blijkt uit de scenario’s dat de impact van bomen significant is. Dit komt met name door hun hoogte en dichtheid, die turbulentie veroorzaken en de vrije stroming van de wind naar de molen belemmeren.

Impact van alleen herinrichting (scenario 3B):

  • Wanneer alleen de herinrichting van het kantorenpark wordt uitgevoerd zonder aanvullende maatregelen, zal de kwaliteit van de windvang achteruitgaan. Het plan leidt tot een wijziging en verhoging van obstakels, wat een negatieve impact heeft op de windvang. Dit onderstreept dat er geen sprake kan zijn van " ongestraft bouwen " zonder rekening te houden met de molenbiotoop.

Effect van strategische bomenkap (scenario’s 4A en 4B):

  • Het kappen van bomen binnen een straal van 100 meter en direct ten noorden van de N245 heeft al een positieve invloed op de biotoop. Deze maatregelen zouden de windvang verbeteren ten opzichte van de huidige situatie, zelfs zonder de geplande herinrichting.

  • Scenario 4b, waarin extra bomen worden verwijderd, biedt de grootste verbetering. Dit scenario laat zien dat het volledig vrijmaken (van bomen) van de belangrijkste windrichtingen een substantiële verhoging van de vermogensdichtheid en een verlaging van turbulentie intensiteit oplevert.

Algemene verbeteringen en beperkingen:

  • Hoewel strategische bomenkap aanzienlijke verbeteringen oplevert, zijn er ook beperkingen. Gebouwen blijven een permanente invloed uitoefenen op de windvang. Hierdoor is het essentieel om bomenkap en andere landschappelijke ingrepen zorgvuldig te plannen om de negatieve effecten van gebouwen te compenseren.

4.2 Aanbevelingen:

Vrijhouden van obstakelvrije zones:

  • Het volledig vrijmaken van een straal van 100 meter rond de molen moet prioriteit krijgen. Dit minimaliseert turbulentie en bevordert een constante windvang.

Richting specifieke aanpak:

  • Bomenkap kan strategisch worden uitgevoerd op basis van de dominante windrichtingen. Windrichtingen 210, 240 en 330 graden blijken cruciaal te zijn voor een optimale windvang.

Integrale aanpak bij herinrichting:

  • Bij de herinrichting van het kantorenpark moet rekening worden gehouden met de molenbiotoop. Dit kan door het combineren van bomenkap met aanvullende maatregelen, zoals het optimaliseren van de positionering en hoogte van nieuwe gebouwen.

Monitoring, evaluatie en beheer:

  • Na implementatie van de maatregelen is het belangrijk om de windvang continu te monitoren om de effectiviteit van de maatregelen te evalueren en, indien nodig, bij te sturen.

  • Beheersmaatregelen opstellen voor het vrijhouden van de 100 meter zone en/of de belangrijkste windrichtingen.

4.3 Algemene conclusie:

De analyse toont duidelijk aan dat de molenbiotoop kwetsbaar is voor veranderingen in het landschap. Zonder aanvullende maatregelen, zoals strategische bomenkap, zal de herinrichting leiden tot een verslechtering van de windvang. Door gericht obstakels te verwijderen en een vrije windzone te waarborgen, kan echter niet alleen de huidige situatie worden verbeterd, maar ook de impact van de geplande herinrichting worden gecompenseerd. Dit vereist een doordachte en integrale aanpak waarin de belangen van de molen centraal staan.

4.4 Beperkingen binnen dit onderzoek

Hoewel steady-flow simulaties turbulentie kunnen meten, houden ze geen rekening met tijdsafhankelijke factoren en dynamische veranderingen in windrichting en -snelheid die op kortere tijdschalen optreden. Zo kunnen fluctuaties in windvlaagintensiteit en downstream-effecten van scherpe randen, zoals wervelingen en Kármán-vortexstraten, in deze opzet niet volledig worden gemodelleerd. Het uitvoeren van een transient-flow model zou hiervoor noodzakelijk zijn.

Gezien de complexiteit en de verhouding tot de schaal van het project is echter beoordeeld dat een steady-flow benadering voldoende inzicht biedt in de effecten van het bouwplan ten opzichte van de huidige situatie. Deze benadering biedt een geschikt vergelijkend inzicht tussen de huidige en de geplande situatie, zonder de uitgebreide rekenkracht en complexiteit die een transient-flow model zou vereisen.

Daarnaast zijn er verschillende andere beperkingen die de interpretatie en nauwkeurigheid van de resultaten beïnvloeden. Zo kan de simulatie de volledige complexiteit van de omgeving niet vastleggen.

Ook biedt de KNMI-winddata slechts een algemeen beeld van het windregime, zonder rekening te houden met specifieke lokale variaties of eventuele toekomstige veranderingen in de omgeving. De data zijn niet fijnmazig genoeg om variaties binnen het lokale terrein en effecten nauwkeurig weer te geven, wat belangrijk kan zijn voor molenbiotopen. Dit betekent dat de resultaten slechts indicatief zijn en niet als volledige representatie van de lokale windomstandigheden mogen worden beschouwd.

Toelichting grondslagen

In dit document kunt u secties vinden die onleesbaar zijn gemaakt. Deze informatie is achterwege gelaten op basis van de Wet open overheid (Woo). De letter die hierbij is vermeld correspondeert met de bijbehorende grondslag in onderstaand overzicht.

G Art. 5.1 lid 2 sub b

Het belang van de openbaarmaking van deze informatie weegt niet op tegen het belang van de economische of financiële belangen van de Staat, andere publiekrechtelijke lichamen of bestuursorganen