Permanente link
Naar de actuele versie van de regeling
https://lokaleregelgeving.overheid.nl/CVDR758149
Naar de door u bekeken versie
https://lokaleregelgeving.overheid.nl/CVDR758149/1
Geldend van 14-03-2026 t/m heden
1 Inleiding in de Omgevingsvisie Uithoorn
1.1 Voorwoord

Beste inwoners en ondernemers,
Voor u ligt de Omgevingsvisie van de gemeente Uithoorn. Een lijvig stuk waarin we
een beeld geven over hoe we de fysieke leefomgeving van onze gemeente zich de komende
jaren zien ontwikkelen. De fysieke leefomgeving omvat alles wat je ruikt, hoort, ziet
en voelt en heeft daarmee een directe invloed op ieders leven en welbevinden.
Er is veel te vinden in de gemeente Uithoorn. Aantrekkelijke woningen, goede scholen, voldoende speelvoorzieningen, prettige winkels, een rijk verenigingsleven, mooie sportvoorzieningen en altijd de mogelijkheid om lopend of op de fiets naar buiten te gaan. Kortom een prettige woon- en leefomgeving in Uithoorn en De Kwakel.
Er gebeurt ook veel in de gemeente. Onze ondernemers en bedrijven zorgen voor economische
activiteiten en werkgelegenheid. Zowel op de bedrijventerreinen als binnen de glastuinbouwsector
en haar bijbehorende bedrijvigheid. Veel van onze inwoners werken buiten Uithoorn
in de regio en andersom werken veel mensen uit de regio in de gemeente Uithoorn. Hierdoor
ontstaan er veel verkeersstromen. Met de komst van de Amsteltram komt er een snelle
verbinding tussen
onze gemeente, Amstelveen en Amsterdam. Onze gemeente ligt daarbij op de grens tussen
de drukte en bedrijvigheid van de regio Amsterdam in het Noorden en de relatieve rust
en ruimte van het Groene hart in het Zuiden. Er is veel groen in onze gemeente. Het
veenweidegebied langs de Amstel tussen Uithoorn en De Kwakel, het Zijdelmeer en het
Libellebos. En ook in de verschillende wijken is veel groen. In Legmeer-West en bij
De Kwakel zijn veel sportvoorzieningen aanwezig. Dit zijn allemaal kwaliteiten waarvan
u in gesprekken met onze gemeenteraad en medewerkers aangegeven heeft dit te waarderen.
Vooruitkijkend naar de toekomst staat onze gemeente voor grote ruimtelijke opgaven. Dit zijn opgaven op het gebied van wonen, bedrijvigheid, gezonde leefomgeving, klimaatadaptatie (waterbuffering en tegengaan van hittestress), versterken van de biodiversiteit en de transitie naar duurzame energiebronnen. De beschikbare ruimte in onze gemeente is beperkt, waardoor het vaak kiezen is welke opgave voorrang krijgt. Niet voor alles wat we graag willen, is ruimte of gaat probleemloos samen. Zo is er veel behoefte aan nieuwe woningen, maar is het ook belangrijk om onze bedrijfsterreinen ten behoeve van een vitale economie te behouden. Maar ook een gezonde leefomgeving, zonder overlast van lawaai of verontreiniging en een aantrekkelijke leefomgeving waarin je kunt recreëren en bewegen, zijn van belang.
Wij vinden het belangrijk voor nu en in de toekomst om in onze dorpen Uithoorn en De Kwakel een duurzame, gezonde, verbonden en veilige leefgemeenschap te hebben. Deze omgevingsvisie verwoordt de ambitie om dat te bereiken. Ik nodig u uit om samen met u te werken aan de toekomst van Uithoorn en De Kwakel, zodat we met elkaar deze ambitie kunnen waarmaken.
Jan Hazen
Wethouder Ruimtelijke Ordening gemeente Uithoorn

1.2 De omgevingsvisie – om te inspireren
In deze omgevingsvisie geven we een helder en duidelijk eindbeeld op de leefomgeving tot het jaar 2040. Onder leefomgeving verstaan we het geheel van onder andere ruimte, water, bodem, milieu, natuur, landschap, verkeer en vervoer, infrastructuur, sociale cohesie, sociaal domein, veiligheid, gezondheid, economie en cultureel erfgoed. Daarom hebben we ze in samenhang vertaald naar ambities en opgaven voor de leefomgeving voor de langere termijn. Al deze onderdelen hebben met elkaar te maken en komen terug in deze omgevingsvisie.
We zijn uitgegaan van de waarden en kwaliteiten van de gemeente. Wat vinden we belangrijk in onze gemeente en moeten we behouden? Maar er komen ook uitdagingen op ons af waar we invulling aan moeten geven. Een aantal onderwerpen is voor ons leidend, namelijk gezondheid, duurzaamheid en veiligheid. Met dat in het achterhoofd hebben we een visie en ontwikkelbeeld opgesteld voor de gemeente Uithoorn. Voor een vijftal pijlers zijn de ambities en opgaven benoemd. Vervolgens zijn de opgaven wat verder uitgewerkt voor een drietal deelgebieden. Dit zijn de van oudsher duidelijk te onderscheiden gebieden Dorp aan de Amstel, Het Hoge Land en de Droogmakerijen. Zie hiervoor hoofdstuk 3.
De omgevingsvisie gaat over de lokale vertaling van de grote maatschappelijke opgaven die gaan over het actief invulling geven aan de duurzame samenleving. Naast ruimtelijke ontwikkelingen hebben sociale ontwikkelingen en karakteristieken, evenals economische ontwikkelingen, invloed op de invulling van de leefomgeving. Alles wat je ziet, voelt en ruikt komt terug in de visie.
Duurzame principes gericht op het herstel van kwaliteiten en waarden van de fysieke leefomgeving, ecosystemen en zaken als gezondheid en schone lucht, bodem en water vormen een belangrijk uitgangspunt.
De omgevingsvisie bevat naast de maatschappelijke opgaven ook de te beschermen kernkwaliteiten van een gemeente. Kernkwaliteiten zijn herkenbare eigenschappen van een gebied. Denk aan een uitgestrekt veenweidelandschap, historische lintbebouwing of de aanwezigheid van water. Maar het kan ook gaan om immateriële waarden die te maken hebben met beleving, zoals een hechte gemeenschap, rust of levendigheid. Deze kwaliteiten zijn niet neutraal, maar hebben te maken met de waardering die mensen voor hun leefomgeving hebben.
Een integrale kijk op cultureel erfgoed biedt bijvoorbeeld kansen om in de omgevingsvisie het karakter van een gebied te duiden en te verbinden met ambities voor de toekomst. De historische ontwikkeling van de gemeente zegt namelijk iets over de identiteit van de leefomgeving. Door toekomstige ruimtelijke opgaven te koppelen aan de huidige ruimtelijke structuren en plekken, kunnen kansen voor transformatie ontstaan, kan het landschap (opnieuw) leesbaar worden, en kunnen aanknopingspunten om ruimtelijke ontwikkelingen in te passen gevonden worden. Zo biedt het verhaal van het verleden, inspiratie voor de toekomst.
Deze omgevingsvisie omvat ook een visie op gezondheid in onze leefomgeving: zowel gezondheidsbescherming als gezondheidsbevordering zijn belangrijk. We moeten mensen beschermen tegen zaken die een risico voor de gezondheid vormen. Daarnaast willen we inzetten op het bevorderen van de gezondheid van onze inwoners door bijvoorbeeld bewegen en gezonder leven te stimuleren.
De omgevingsvisie is niet in beton gegoten. Het biedt houvast en richting. We zien echter ook dat ontwikkelingen ertoe kunnen leiden dat er veranderingen in de opgaven komen. De ambitie voor de lange termijn zal niet snel veranderen, maar er kan aanleiding zijn om onderdelen van de omgevingsvisie te herzien. Daarom zal de omgevingsvisie af en toe geactualiseerd moeten worden. Daar wordt de samenleving bij betrokken. Meer hierover is in hoofdstuk 4 opgenomen.
Deze visie geldt voor de gemeente Uithoorn. Daarmee gaat de omgevingsvisie zowel over de dorpen Uithoorn en De Kwakel als over het buitengebied. Waar over de gemeente Uithoorn wordt gesproken, wordt vanzelfsprekend ook De Kwakel bedoeld.
Met het opstellen van deze omgevingsvisie geven we richting. We inspireren en motiveren hiermee onze inwoners, onze ondernemers en onze maatschappelijke organisaties. Daarbij is het uitdrukkelijk een uitnodiging aan de samenleving. Met een ‘ja, mits’-houding willen we graag als gemeente samen met de samenleving Uithoorn en De Kwakel en het buitengebied verder ontwikkelen. Deze omgevingsvisie is bindend voor de gemeente; wij moeten ons eraan houden. Dit geldt niet voor de samenleving. Maar het geeft wel richting. Dit betekent een rolverdeling tussen overheid en samenleving waar op een zorgvuldige manier vorm aan wordt gegeven. Meer hieronder staat in hoofdstuk 4. Samen geven we invulling aan de toekomst van onze gemeente.
1.3 Ontstaansgeschiedenis
1.3.1 Inleiding
Gemeente Uithoorn ligt aan de Amstel, ten zuiden van Amsterdam. Met de stedelijke agglomeraties van Amsterdam en Amstelveen aan de horizon, heeft de gemeente een verrassend landelijke ligging met twee dorpen: Uithoorn en De Kwakel. Aan de westzijde is De Kwakel met haar glazen stad met sierteelt aan Aalsmeer vastgegroeid. Aan de oostzijde overheerst de landelijke rust en weidsheid van de veenweidepolders van het Groene Hart.

1.3.2 Ute Hoirne

Uithoorn is in de middeleeuwen ontstaan als Ute Hoirne (uithoek) op het kruispunt van de Amstel en het Zijdelmeer. Het omliggende landschap was nat en ruig. Ver van de ‘bewoonde’ wereld ontstond op de zandrug langs de Amstel een klein dorpje met bebouwing langs het water en een haventje. Deze historische kern van Uithoorn ligt ter plaatse van het huidige brughoofd van de Prinses Irenebrug. De inham van het haventje ‘de Kil’ is met de aanleg van de brug verdwenen.
1.3.3 Veengebieden en plassen

Het veengebied ontwikkelde zich met name langs de zandbanken en dijkjes op de grens van Holland en het stichtse Utrecht. Langs de Amstel en de Drecht ontstond bescheiden bebouwing van losse boerderijen. Door de klink van het veen ontstond een steeds groter hoogteverschil tussen de veenlanden en de bovenlanden (het huidige veenweidegebied). De landerijen werden te nat om te bewerken. Boeren gingen over op het winnen van turf, waardoor de veenplassen in het gebied steeds groter werden. Met de aanleg van dijken werd het bewoonde land beschermd. De fijnmazige structuur van de watergangen en het sterk gedifferentieerd grondgebruik hebben een gebied laten ontstaan dat een grote rijkdom aan landschappelijke, cultuurhistorische en natuurlijke waarden vertegenwoordigt.
1.3.4 Quake Brugge

In het gebied ontstonden meer dorpjes, zoals Nes en Vrouwenacker langs de Amstel. De Kwakel is rond 1600 ontstaan als een Quake Brugge op het kruispunt van het voetpad van Uithoorn naar de kerk van Kudelstaart met de Kleine Drecht. Nadat het veenland was afgegraven tot veenplassen ging de welvaart in dit gebied verloren en groeide de bevolking van de dorpjes De Kwakel en Uithoorn amper. De lintbebouwing langs de historische paden en hoogtes in het landschap zijn nog steeds karakteristiek voor het dorp. Rond De Kwakel is het fijnmazige patroon van het veenweidegebied met de vele sloten en de smalle stroken land in de agrarische structuren herkenbaar gebleven.
1.3.5 Droogmakerijen

Het gebied kreeg een nieuwe impuls met het droogmaken van de eerste polder in de 18e eeuw. Achtereenvolgens werden de Bovenkerkerpolder (1770), de Thamerbinnen- polder (1851), de Noorder Legmeer (1877) en de Zuider Legmeer (1883) drooggelegd. De drooglegging van het gebied haalde Uithoorn en de omliggende dorpen uit hun isolement. Op 1 oktober 1819 werden De Kwakel en Uithoorn bij een grensbepaling tussen de provincies Holland en Utrecht aan Holland overgedragen. Vanaf 10 februari 1820 gingen de dorpen De Kwakel, Thamen en Uithoorn gezamenlijk verder als één gemeente: Uithoorn. Uithoorn groeide langs de dijken en bij de brug over de Amstel. In de polders kwam de akkerbouw en de veeteelt op. Langs de Amstel ontwikkelde zich industrie. Nog steeds zijn het rationele verkavelingspatroon en de dijken rond de droogmakerijen structuurbepalende elementen in het landschap. Op de dijken liggen de belangrijkste verbindingsroutes. Met name de Legmeerpolder heeft zich van akkerbouwgebied ontwikkeld tot sterk kassen-concentratiegebied behorende bij de sierteeltcluster rond Flora Holland.
1.3.6 Stelling van Amsterdam

De Stelling van Amsterdam is een 135 km lange ring van forten, dijken en sluizen in het Noord-Hollandse en Utrechtse polderlandschap ter verdediging van de hoofdstad Amsterdam. De Stelling van Amsterdam heeft de status van werelderfgoed op de lijst van Unesco. Uithoorn was van strategisch belang. Op Uithoorns grondgebied liggen het Fort aan de Drecht en het Fort bij De Kwakel. Hier sluiten het fort bij Uithoorn (Amstelhoek) en het fort bij Kudelstaart (Aalsmeer) direct op aan. Bij de aanleg van deze verdedigingslinie werd zoveel mogelijk gebruik gemaakt van bestaande dijken. In Uithoorn is deze als Vuurlijn herkenbaar. Ook de naam van wat ooit de belangrijkste straat was van het dorp herinnert aan een krijgshaftig verleden: De Schans. Het fort bij De Kwakel ligt verscholen tussen de bebouwing. Rond het fort aan de Drecht zijn de oorspronkelijke open schootvelden en zichtlijnen nog steeds grotendeels vrij.


1.3.7 Infrastructuur

Tot aan de ontwikkeling van de spoorlijn vond de ontwikkeling van de dorpen plaats op een organische manier langs dijken en hogere delen in het landschap. Na de komst van de spoorweg en een station bij de Amstel ontstond er op deze plek een concentratie van bebouwing. De loop van de spoorlijn is in het tracé van de huidige infrastructuur nog herkenbaar. Nieuwe routes werden aangelegd om de bereikbaarheid van het gebied te vergroten. De Koningin Máximalaan en de Noord-zuidroute volgen de oorspronkelijke landschappelijke structuur slechts gedeeltelijk. De Koningin Máximalaan loopt door dit gebied. Sinds 2024 rijdt ook een tram via Amstelveen Zuid naar Uithoorn, de Uithoornlijn.
1.3.8 Ontwikkeling van de wijken

Met de voltooiing van de provinciale weg Haarlem-Hilversum in 1942 kwam de ontwikkeling van Uithoorn pas goed op gang. Veel werknemers uit de regio konden in Uithoorn een woon- of werkplek vinden, waardoor het dorp zich in hoog tempo ontwikkelde. Bij de verstedelijking van de polders waren de patronen van de droogmakerijen leidend. In de jaren ‘50 ontstond de wijk Thamerdal volgens de tuinstadgedachte. Hierna werden de wijken Zijdelwaard (‘60) en de Legmeer (‘70) aangelegd. De wijken hebben elk hun eigen kwaliteiten en volgen de gangbare stedenbouwkundige ontwerpprincipes uit de betreffende ontwikkelingsperiodes. Dit heeft wijken doen ontstaan die niet specifiek Uithoorns zijn. De hoogbouw van de Europarei in Zijdelwaard is erg bepalend voor het silhouet van Uithoorn vanuit Amstelveense zijde. De behoefte aan woningen in Uithoorn is onverminderd groot en bepaalt mede hoe Uithoorn er in de toekomst uit komt te zien. Aan het eind van de 20ste eeuw is Meerwijk ontstaan. In tegenstelling tot de wijken ten noorden van de N201, is Meerwijk gelegen in het veenweidegebied. De wijk volgt het oude patroon van sloten en smalle stroken land, en is daarmee bijzonder Uithoorns. Na 2000 is gestart met de laatste grote uitbreidingslocatie, Legmeer-West, waarmee de grotere uitleglocaties van Uithoorn volledig benut zijn. Een eerste kwaliteitsslag is gemaakt met enkele invullocaties in de wijken Thamerdal en Zijdelwaard. Ook in De Kwakel zijn nieuwbouwbuurten ontstaan. De uitbreidingen liggen achter de lintbebouwing langs de dijken. Parallel aan de ontwikkeling van de woningbouw is langs de Amstel de bedrijvigheid uitgebouwd, waardoor nu een deel van de Amsteloever door industrie bezet wordt.

1.4 Kwaliteiten van Uithoorn en De Kwakel
1.4.1 Inleiding
De gemeente Uithoorn heeft een aantal bijzondere lokale kwaliteiten die onderscheidend zijn ten opzichte van andere gemeenten in de regio Amstelland-Meerlanden en de Metropoolregio Amsterdam.
1.4.2 Ruimtelijke kwaliteit
Bijzonder aan Uithoorn is het verschil tussen gebieden met een hoge en een lage dynamiek op korte afstand van elkaar. Het kassengebied (de glazen stad in de Droogmakerijen) en de daaraan gerelateerde logistiek en bedrijvigheid kennen een grote dynamiek. Daarnaast ligt, soms slechts door een dijk gescheiden, het veenweidegebied, een zone van rust, natuur, water en open landschap dat een lage dynamiek kent. Deze typen gebieden bestaan naast elkaar. Samen met de Amstel vormen deze gebieden de unieke ruimtelijke kwaliteiten van gemeente Uithoorn. Deze gebieden worden aan elkaar verbonden door historische landschappelijke structuren die nog steeds herkenbaar zijn: de dijken, het Zijdelmeer, en gebieden en wijken die ingericht zijn op basis van de oorspronkelijke polderpatronen en het eeuwenoude landschap van de open veenpolders langs de Amstel, met zijn karakteristieke verkaveling van slootjes en lange smalle kavels. De dijken vertellen de ontstaansgeschiedenis van Uithoorn en De Kwakel. Het door mensen gemaakte ontginningslandschap zorgt voor kenmerkende hoogteverschillen in het landschap. Bijzonder is de aanpassing aan de dijkstructuur die is gedaan bij het tot stand komen van de Stelling van Amsterdam - inmiddels UNESCO werelderfgoed- om samen de verdedigingslinie de Vuurlijn te vormen.
Uithoorn ligt aan de Amstel, die stroomt langs verschillende plekken met verschillende karakteristieken; industrieel, historisch en landelijk. De Amstel biedt de mogelijkheid voor waterrecreatie, natuur, rust en ruimte, wonen aan het water, industrie, en watergerelateerde bedrijvigheid. De Amstel maakt deel uit van een verbonden recreatief waternetwerk, waarbij de passantenhaven van Uithoorn met aanlegplaatsen voor de pleziervaart een belangrijk knooppunt is.

1.4.3 Woonkwaliteit en leefbaarheid
Onze gemeente is een veilige leefomgeving die als prettig wordt ervaren en een levendige samenleving waarin inwoners zich verbonden voelen met elkaar. Een leefomgeving die uitnodigt tot gezond gedrag en tot samenkomen voor sociale en culturele activiteiten. De gemeente Uithoorn kenmerkt zich door de landschappelijke indeling en een woonomgeving in een groen/blauwe sfeer. De gemeente Uithoorn kenmerkt zich ook door een leefomgeving die in toenemende mate zware overlast ondervindt van de luchthaven Schiphol. Ook hier is er het verschil tussen gebieden met een hoge en een lage dynamiek, op korte afstand van elkaar. De Kwakel heeft een grote mate van eigenheid behouden en is niet vastgegroeid aan de wijken van Uithoorn.
De gemeente beschikt over veel groene en waterrijke woonwijken. en ligt nabij grootstedelijke voorzieningen (cultureel, medisch, onderwijs, etc.). De grote hoeveelheid grondgebonden gezinswoningen draagt bij aan de woonbehoefte van de regio.
1.4.4 Sociale kwaliteit
Uithoorn is in de afgelopen jaren gegroeid van twee kleine dorpen naar een randstedelijke agglomeratie. Door deze groei is ook de samenstelling van de bevolking door de jaren heen flink veranderd.
De gemeente Uithoorn kent met name in De Kwakel, Thamerdal, Zijdelwaard en het centrum een sterke sociale cohesie. Er is in Uithoorn een goed ontwikkeld verenigingsleven. Uithoorn heeft veel grote sportverenigingen en goede en diverse sportaccommodaties. En er zijn voldoende vrijwilligers voor het jeugd-, jongeren- en ouderenwerk.
Veiligheid en criminaliteit vormden in het verleden nooit een groot probleem. Nu zien we steeds meer grootstedelijke problematiek ook in Uithoorn, en dat behoeft aandacht.
1.4.5 Economische kwaliteit
Uithoorn heeft veel profijt van de economische motoren van de regio, zoals de veilingen, Schiphol, Amstelveen en Amsterdam. Uithoorn is op het gebied van glastuinbouw een belangrijke gemeente binnen de Greenport Aalsmeer en in Nederland. Kernglastuinbouwgebied De Kwakel is een belangrijk productiegebied, dat volledig is ingericht op glastuinbouw en weinig andere functies bevat. Op korte afstand tot elkaar is de gehele productieketen te vinden.
1.5 Uithoorn in de regio
De uitdagingen waar we voor staan hangen sterk samen met opgaven in de regio. Uithoorn is onderdeel van de actieve Metropoolregio Amsterdam (MRA). De MRA heeft in haar verstedelijkingsstrategie de regionale koers uitgezet voor de middellange en de lange termijn. De ambitie van de MRA is een evenwichtige metropoolregio met een gezonde en veilige leefomgeving. Dat sluit aan bij de ambities van onze omgevingsvisie.
De gemeente Uithoorn bevindt zich in het zuidelijk deel van de MRA. De regio heeft met Schiphol en de bijbehorende bedrijvigheid een sterk economisch karakter. In de verstedelijkingsstrategie voor de MRA wordt ingezet op het verder versterken van dit economische karakter. Ook wordt in het kader van de MRA gewerkt aan een integrale gebiedsaanpak Zuidflank. Uithoorn blijft daarom investeren in samenwerking met betrekking tot economische ontwikkeling in de MRA. Tegelijkertijd is de nabijheid van Schiphol een bedreiging voor de leefkwaliteit in de gemeente Uithoorn en de regio.
Het versterken van het open landschap en de ‘groene vingers’ – waaronder de Amstelscheg en Westeinderscheg, is een kwaliteit die ook in de verstedelijkingsstrategie van de MRA als ambitie naar voren komt; niet alleen vanuit ruimtelijke kwaliteit, maar ook vanwege de grote veranderopgaven die er op de regio afkomen, zoals klimaatverandering, energieopwekking en biodiversiteitsherstel.
De gemeente Uithoorn is een fijne plek om te wonen, en een goed voorzieningenniveau is daarvoor essentieel. De regio biedt met Amstelveen, Aalsmeer, Hoofddorp en Mijdrecht op korte afstand en een goede bereikbaarheid van Amsterdam een ruim aanbod aan (groot)stedelijke voorzieningen, zoals ziekenhuizen en middelbaar en hoger onderwijs. De gemeenten Aalsmeer, Amstelveen, Ouder-Amstel, Haarlemmermeer, Diemen, De Ronde Venen en Uithoorn vormen samen de Amstelland-Meerlandenregio. In deze regio wordt intensief samengewerkt op het gebied van wonen, economie, mobiliteit, ruimte, duurzaamheid en natuur.


1.6 Uithoornse opgaven
In de gemeente Uithoorn komen natuur en landschap, cultuur, economie, horeca, wonen, winkels, mobiliteit, maatschappelijke voorzieningen en recreatie samen. Dit brengt, mede gezien de grote maatschappelijke veranderingen, de volgende opgaven met zich mee:
-
Het ruimtegebruik van functies verandert door onder andere nieuwe technologieën, een andere samenstelling van de bevolking en de woningbouwbehoefte. De komende jaren moet hier op een gezonde en zorgvuldige wijze invulling aan worden gegeven. De vele verschillende functies geven ook een toenemende ruimtedruk, zowel boven als onder de grond. Dit vraagt om concrete keuzes. Hierbij geldt ook de aanwezigheid van Schiphol en de effecten daarvan op onze leefomgeving.
-
Het duurzamer, gezonder en veiliger maken van de Uithoornse leefomgeving en daarbij een klimaatadaptieve en circulaire inrichting realiseren.
-
De economische situatie is aan verandering onderhevig. Dit kunnen ook onverwachte gebeurtenissen zijn met een grote impact waar we flexibel mee om moeten gaan.
-
Op sociaal-maatschappelijk gebied spelen meerdere opgaven, waaronder vergrijzing, eenzaamheid, verdunnen van huishoudens en het langer thuis wonen van ouderen. Maar ook met betrekking tot jongeren zijn er maatschappelijke opgaven. Ook op het gebied van gezondheid zijn er meerdere opgaven, waaronder overgewicht.
-
Bij het invullen van de opgaven speelt ook de vraag waar de gemeente voor moet zorgen en wat juist de verantwoordelijkheid van inwoners, ondernemers en maatschappelijke organisaties zelf is. Deze omgevingsvisie is het instrument om sturing aan die opgaven te geven.
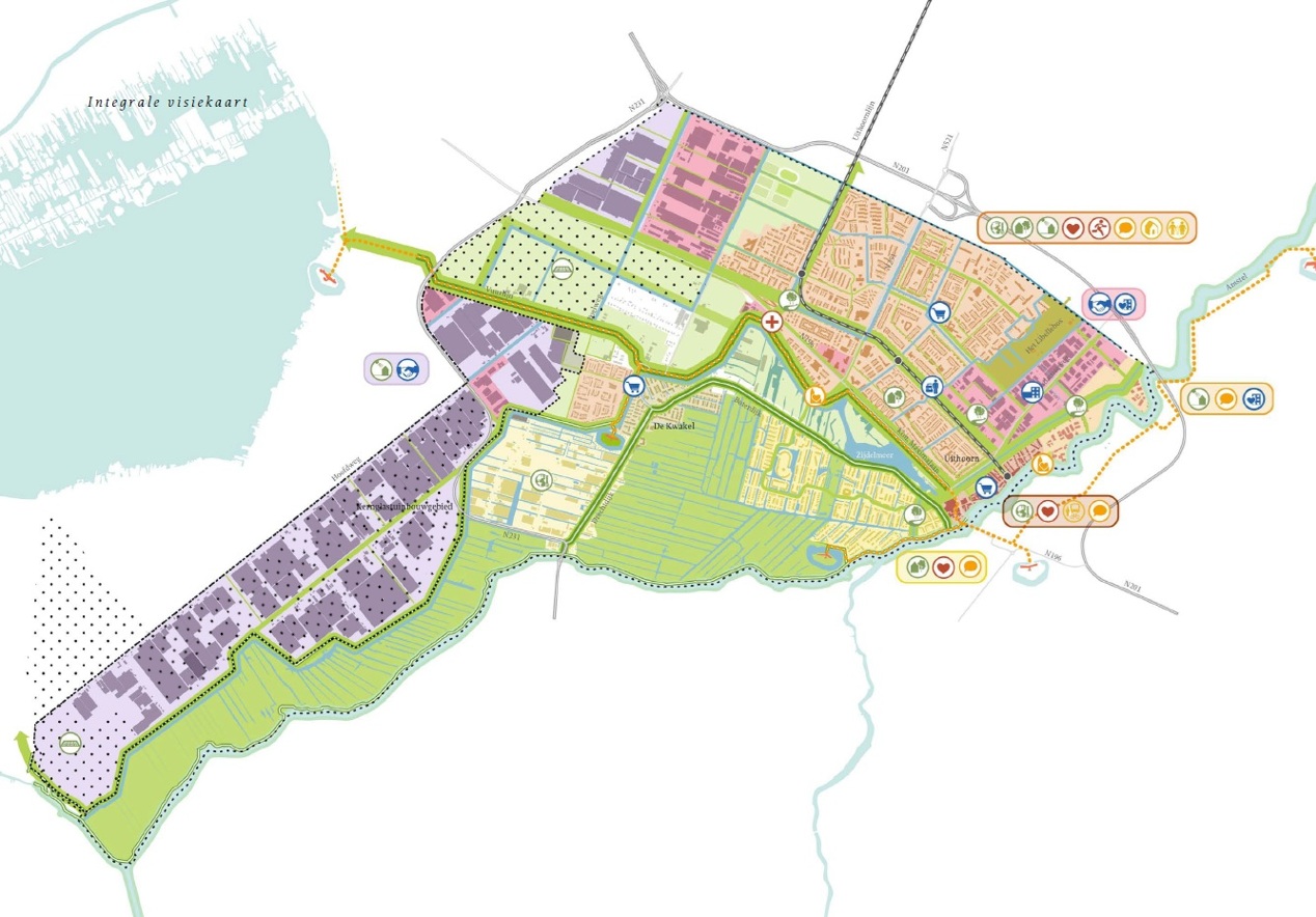
De opgaven zijn in de omgevingsvisie verwerkt in een vijftal thematische pijlers en vervolgens gebiedsgericht in de verschillende deelgebieden (Dorp aan de Amstel, Het Hoge Land, De Droogmakerijen).
1.7 Waarom een omgevingsvisie?
In de nieuwe Omgevingswet is een aantal kerninstrumenten benoemd, waaronder omgevingsvisie, omgevingsprogramma, omgevingsplan en omgevingsvergunning. De omgevingsvisie is een van de kerninstrumenten van de Omgevingswet en is verplicht voor alle gemeenten. Het is een langetermijnvisie op hoofdlijnen voor de ontwikkeling van de leefomgeving. Het biedt een stip op de horizon voor de ambities en doelstellingen met als doel te komen tot een veilige en gezonde fysieke leefomgeving. De grondslag van de omgevingsvisie ligt in artikel 3.1 en 3.2 van de Omgevingswet. Daarnaast moet de omgevingsvisie volgens artikel 3.3 rekening houden met de milieubeginselen: voorzorg, preventief handelen, bronbestrijding en de vervuiler betaalt.
De nieuwe Omgevingswet betekent een grote verandering in de wet- en regelgeving en het beleid rondom de leefomgeving. De wet heeft als doel de regels voor de leefomgeving te versimpelen. Daarom heeft de nieuwe Omgevingswet vier verbeterdoelen ten opzichte van de huidige regelgeving:
-
Het omgevingsrecht is inzichtelijk, voorspelbaar en gemakkelijk in het gebruik. Mensen weten waar ze moeten zijn en wat er aan ontwikkelingen en initiatieven mogelijk is.
-
De leefomgeving staat op een samenhangende manier centraal in beleid, besluitvorming en regelgeving. Samenhangend wil zeggen dat de verschillende functies (zowel ruimtelijk als sociaal) in balans met elkaar zijn.
-
Een actieve en flexibele aanpak biedt de gemeente meer ruimte om afwegingen te maken om doelen voor de leefomgeving te bereiken.
-
Besluitvorming over projecten in de leefomgeving gaat sneller en beter, waardoor mensen bijvoorbeeld minder lang wachten op een vergunning.
Deze verbeterdoelen worden met name bereikt door samenhang tussen de instrumenten omgevingsvisie, omgevingsprogramma en omgevingsplan. De omgevingsvisie is hierin een eerste stap, maar kan op zichzelf niet in deze verbeterdoelen voorzien. In hoofdstuk 4 van dit document wordt de samenhang tussen de instrumenten verder weergegeven. Daarmee geeft de omgevingsvisie straks enerzijds weer hoe we aan maatschappelijke opgaven invulling geven en is het anderzijds een uitnodiging aan iedereen om initiatieven te ontplooien. De gemeente faciliteert daarin zolang het bijdraagt aan de ambities en de opgaven die straks in de omgevingsvisie zijn opgenomen. Dit doen we als gemeente vanuit een ‘ja, mits’-gedachte en maakt dat we met elkaar de leefomgeving verder ontwikkelen. Belangrijk daarbij is dat de omgevingsvisie steeds in ontwikkeling is. De visievorming wordt de komende jaren steeds verder aangescherpt en ontwikkeld in de tijd.
1.8 Proces – gezamenlijk
De omgevingsvisie is tot stand gekomen door middel van een intensief proces. Daarbij is in een aantal participatieronden inbreng opgehaald uit de samenleving. Die inbreng is informatie op basis waarvan afwegingen zijn gemaakt voor de omgevingsvisie. In de zomer van 2020 zijn, samen met de inbreng van inwoners, ondernemers en maatschappelijke organisaties, de kwaliteiten van Uithoorn benoemd. Wat kenmerkt Uithoorn en De Kwakel? In oktober 2021 en maart 2022 zijn gesprekken gevoerd met inwoners, ondernemers, en maatschappelijke organisaties om de in hun ogen belangrijkste onderwerpen voor de omgevingsvisie te inventariseren en te bespreken. Beide keren zijn gesprekken gevoerd op straat en in een aantal bijeenkomsten. Ook hebben we met de ketenpartners (buurgemeenten, provincie, waterschap, GGD, omgevingsdienst en veiligheidsregio) gesproken bij de totstandkoming van de omgevingsvisie, onder andere over water, gezondheid en milieuaspecten. Het college en de gemeenteraad zijn ook betrokken bij het maken van keuzes. Er hebben meerdere bijeenkomsten met de raad plaatsgevonden. De raad heeft met een initiatiefvoorstel een participatiekader vastgesteld en in februari 2022 is het document ‘Op weg naar de Omgevingsvisie’ vastgesteld. In de bijlage zijn verslagen van de participatie opgenomen.
1.9 Leeswijzer
Deze omgevingsvisie bevat de visie en het ontwikkelingsbeeld van de gemeente Uithoorn voor 2040. Het visie onderdeel is verwerkt in het hoofddeel van dit document. Onderbouwende data is in de kenschets in de bijlage verwerkt.
-
Hoofdstuk 1 is de inleiding waarin de aanleiding en de opgaven in algemene zin zijn verwerkt.
-
Hoofdstuk 2 beschrijft de visie en het ontwikkelingsbeeld van de gemeente Uithoorn voor 2040. Dit wordt gedaan aan de hand van vijf pijlers.
-
Hoofdstuk 3 bevat het ontwikkelingsbeeld per deelgebied.
-
Hoofdstuk 4 geeft ten slotte aan wat er nodig is om de omgevingsvisie uit te voeren.
2 Uithoorn en De Kwakel in 2040
2.1 Inleiding
Dit hoofdstuk beschrijft het ontwikkelingsbeeld van de gemeente Uithoorn tot 2040. In paragraaf 2.2 wordt een algemeen beeld geschetst van Uithoorn waarin algemene uitgangspunten zijn beschreven. De thema’s duurzaam, gezond en veilig vormen de rode draad voor de omgevingsvisie. Vervolgens wordt per pijler concreter ingegaan op de ambities.
2.2 De kern: een duurzame, gezonde, verbonden en veilige leefgemeenschap
Uithoorn is een gemeente met twee dorpen (Uithoorn en De Kwakel) en kent vele gezichten. Aan de ene kant kijken we uit over de groene rust en ruimte van het Groene Hart. Aan de andere zijde kijken we naar de verstedelijking van Amsterdam. Voor ieder wat wils. Groen en ruimte op schootsafstand en stedelijkheid en vertier in de buurt. Deze vele gezichten komen ook terug binnen de gemeente tussen de verschillende kernen en wijken.
Water is belangrijk in de gemeente. Het water, de sterke groene structuur en natuurwaarden in het veenweidegebied bieden een mooi verloop van het stedelijke naar het groene. Dit heeft ook een belangrijke functie bij verduurzaming en klimaatadaptatie. Op specifieke plekken wordt juist een stedelijker milieu gecreëerd, zonder dat daarmee ons karakter verloren gaat. De term ‘stedelijk’ betekent in Uithoorn dat het past bij het karakter van de gemeente. Geen Zuidas-bebouwing dus, maar wel hoogteaccenten passend bij het karakter van de omgeving en een iets meer verdicht woonmilieu op passende plekken. Een goede balans tussen stedelijkheid en openheid is daarbij leidend. Daarom wordt op plekken waar we verdichten extra aandacht besteed aan de openbare ruimte, bijvoorbeeld met een groene of open uitstraling.
Ook in 2040 zijn Uithoorn en De Kwakel fijne plekken om te zijn. Mensen die hier wonen, werken of op bezoek komen voelen zich welkom. Dat is niet gek op een locatie waar rust en reuring naast elkaar bestaan. Een kern die aan aantrekkelijke open landschappen ligt en tegelijkertijd buitengewoon goed verbonden is binnen de metropoolregio Amsterdam. Het is hier fijn wonen, minder hectisch dan in de grote stad. Uithoorn is duurzaam en gezond, en dat uit zich in de leefkwaliteit. Een gezonde lucht, een ruim aanbod aan dagelijkse voorzieningen en een aantrekkelijke buitenruimte met prettige verbindingen naar het levendige dorpshart en naar het landschap via waterrijke groenstructuren en historische erfgoederen. Groene, watterrijke (‘blauwe’) structuren die ook bijdragen aan het voorkomen van wateroverlast en het bevorderen van de natuur. Uithoorn geeft ruimte. Dat is hoe we Uithoorn in 2040 graag zien.
We bereiken deze ambities door vijf centrale pijlers in de omgevingsvisie met elkaar in samenhang te brengen:
-
Groen-blauw en duurzaam omarmen
-
Gezond en veilig leven
-
Toekomstbestendig wonen en verplaatsen
-
Veerkrachtig ondernemen
-
Sociaal en cultureel verbinden
Deze vijf pijlers hangen sterk met elkaar samen en versterken elkaar waar mogelijk. Samen vormen zij het ontwikkelbeeld voor gemeente Uithoorn in 2040



2.3 Groen-blauw en duurzaam omarmen
2.3.1 Inleiding
In Uithoorn en De Kwakel worden de groene en waterrijke kwaliteiten versterkt, en wordt een duurzame en circulaire leefomgeving gerealiseerd. Met duurzaamheid wordt bedoeld dat ontwikkelingen aansluiten op behoeften van het heden, zonder het vermogen van toekomstige generaties om in hun behoeften te voldoen in gevaar te brengen. Duurzaamheid is essentieel om ook in de toekomst een gezonde en prettige leefomgeving en samenleving te handhaven. De gemeente Uithoorn heeft een verantwoordelijkheid en taak om mede invulling te geven aan de grotere opgaven en transities die er liggen, zoals het voorkomen van wateroverlast, het verminderen van CO2-uitstoot en het bevorderen van biodiversiteit. Er ligt daarbij ook een opgave om te herstellen wat nu niet meer goed is en zaken die moeten worden ingehaald. De maatschappelijke opgave van het verduurzamen van onze samenleving komt centraal te staan, waarbij ervoor gewaakt wordt dat er geen inwoners(groepen) uit het oog worden verloren. Duurzaamheid is immers ook een sociale opgave. De gemeente werkt samen met bewoners aan de energietransitie, klimaatadaptatie en circulaire economie. Voor de energietransitie werken we in stappen toe naar twee doelen: in 2040 wordt alle energie die de gemeente nodig heeft duurzaam opgewekt en in 2050 is de gemeente helemaal aardgasvrij. Om Uithoorn in 2050 klimaatbestendig te maken nemen we maatregelen om wateroverlast, droogte en hitte tegen te gaan. We werken ook toe naar een circulaire economie in 2050. Dit betekent dat in 2050 volledig circulair wordt ingekocht en gebouwd, en dat inwoners en bedrijven al hun afval scheiden. Natuur, milieu en landbouw worden in balans gebracht. Uithoorn is klaar voor de toekomst.
2.3.2 Ruimte voor natuur, water en groen
Uithoorn is een gemeente waar groen, water, bedrijvigheid en wonen in balans zijn. Het open veenweidegebied, ook wel ‘natuurgebied Uithoorn’ genoemd, is vanuit ecologisch oogpunt het belangrijkste gebied van Uithoorn. Delen hiervan vallen onder het landelijke natuurnetwerk (NNN) en NOVI-gebied het Groene Hart. In deze en andere grotere groene gebieden, zoals het Libellebos, de groene delen van Boterdijk-Vuurlijn (ook grotendeels NNN) en het open deel van de Noorder-Legmeerpolder zijn natuurwaarden in principe leidend bij transformaties en in beheer. Ook liggen er kansen om een bijdrage te leveren in de CO2-opgave. Het veenweidegebied is een historisch landschap dat door veenoxidatie veel CO2 uitstoot. Hier kan CO2-uitstoot beperkt worden (en mogelijk zelfs vastgelegd worden) door verhoging van het grondwaterpeil. In het kader van het klimaatakkoord zijn er tot 2030 afspraken gemaakt over het beperken van de CO2-uitstoot in het veenweidegebied door andere vormen van drainage. Voor de periode hierna wil de gemeente Uithoorn zoeken naar mogelijkheden om door veenherstel of biomassateelt ook juist CO2 vast te leggen.
2.3.3 Groenblauwe structuur
De grote groene en waterrijke gebieden worden verbonden door een stevige groenbauwe structuur: het ruimtelijk raamwerk. Hier mag de biodiversiteit niet achteruit gaan, en er liggen kansen voor een hogere natuurkwaliteit. Bij alle transformaties zal dan ook gestreefd worden naar een verbetering hiervan, en ook in beheerplannen van de openbare ruimte zal rekening gehouden worden met het optimaliseren van de stedelijke biodiversiteit. Het kleinste schaalniveau zijn de groene haarvaten tot aan de voordeur. Dit is al het groen langs wandel- en fietspaden in de woonwijken. Deze ruimte wordt intensief gebruikt, maar er liggen ook kansen voor meer biodiversiteit. Doelstellingen op het gebied van klimaatadaptatie, recreatie, sociale veiligheid gaan hier echter vaak wel, maar niet altijd samen met een hogere biodiversiteit, of soms zijn hier hoge kosten aan verbonden. Hierbij moet dus altijd een afweging worden gemaakt, waarbij biodiversiteit in de groenblauwe haarvaten vooral een meekoppelkans is die zo min mogelijk ten koste kan gaan van andere functies. Deze en andere principes voor deze ‘groenblauwe hoofdstructuur’ worden verder uitgewerkt in paragraaf 3.2.
2.3.4 Natuurinclusief bouwen
Naast het (openbare) groen liggen er kansen voor verbetering van biodiversiteit in woonwijken door natuurinclusief te bouwen en inwoners meer te betrekken bij het versterken van biodiversiteit. De gemeente neemt hierin een actieve rol op zich door een leidraad op te stellen voor natuurinclusief bouwen bij nieuwbouw.
2.3.5 Klimaatadaptatie
De groenblauwe structuur speelt dus een belangrijke rol voor klimaatadaptatie. Klimaatverandering heeft invloed op alle woonwijken van de gemeente Uithoorn. Droogte, wateroverlast na regenval en overlast door hitte nemen in de toekomst toe. Ook is er beperkt risico op overstromingen, bijvoorbeeld door een dijkdoorbraak. Door bodemdaling ontstaan funderingsproblemen en wegverzakkingen, wat tot hoge kosten kan leiden. Dit speelt bijvoorbeeld in het veenweidegebied, waar onder andere de woonwijk Meerwijk is gebouwd. Omdat er op een aantal plekken veel verharding en weinig groen is (bijvoorbeeld het glastuinbouwgebied en het dorpshart) kan wateroverlast ontstaan. Ook de laagste plekken van Uithoorn zijn kwetsbaar. Zo zijn er ook in Thamerdal grote uitdagingen om toekomstige wateroverlast te voorkomen. Om de gemeente op lange termijn veilig en leefbaar te houden zijn dus maatregelen nodig. De gemeente werkt deze maatregelen op wijkniveau uit. Naast maatregelen in de publieke ruimte wordt het nemen van maatregelen door bewoners en bedrijven gestimuleerd, bijvoorbeeld met de aanleg van groene tuinen of daken.
2.3.6 Elektriciteitsopwekking: op daken, bij kassengebied en in Noorder Legmeerpolder
Samen met de andere gemeenten in Noord-Holland Zuid willen we in 2030 35 TWh duurzame energie opwekken. Dat hebben we afgesproken in de regionale energie strategie (RES). Voor de gemeente Uithoorn is de ambitie allereerst zoveel mogelijk opwekking op grote daken te realiseren. Daarom moeten nieuwbouw daken van meer dan 100 m2 geschikt zijn voor het dragen van zonnepanelen. Maar ook op bestaande bebouwing wordt zonne-energie zoveel mogelijk gestimuleerd.
In de Herijking RES 2024 Noord‑Holland Zuid zijn drie zoekgebieden voor duurzame energieopwekking benoemd. Belangrijk uitgangspunt voor alle RES-zoekgebieden is dat energieopwekking samengaat met het creëren van maatschappelijke meerwaarde. Dit kan op meerdere manieren:
-
door opwekking te combineren met andere functies zoals biodiversiteit en recreatie;
-
door omwonenden mee te laten profiteren door middel van mede-eigenaarschap of aandeelhouderschap;
-
door middel van een financiële bijdrage aan een gebiedsfonds, waarbij de opbrengsten geïnvesteerd kunnen worden in kwalitatieve gebiedsontwikkeling en verdere verduurzaming.
Het is van belang dat het plaatsen van zonnepanelen niet resulteert in bodemdegradatie. Bij voorkeur levert het zonnepanelenveld zelfs een positieve bijdrage aan de lokale biodiversiteit. Ook dienen de opwekkingsgebieden te voldoen aan de provinciale leidraad. Hierin staan randvoorwaarden voor ruimtelijke inpassing, rekening houdend met zichtbaarheid, de ruimtelijke structuur en het voorkomen van storende elementen als hekken. Verdere ruimtelijke inpassing wordt afgestemd met de omliggende gemeenten en relevante overheden zoals Waternet.
Naast de RES-zoekgebieden staat Uithoorn positief tegenover andere vormen van opwekking, zoals zon op daken van gebouwen en het plaatsen van kleinschalige windturbines (max 15 m) of andere opwekkingsvormen op bedrijventerreinen, bij glastuinbouw of op boerenerven. In RES-zoekgebied Zuid-Oost aan de Hoofdweg worden mogelijk ook hogere windmolens toegestaan.
Na 2030 moet een volgende slag gemaakt worden met betrekking tot energieopwekking: van -49% CO2-uitstoot ten opzichte van 1990 naar -95% CO2-uitstoot in 2050. Uithoorn heeft de ambitie om in 2040 uitstootvrij te zijn. Dat betekent dat we er met het realiseren van de RES-ambities nog niet zijn. Uithoorn blijft daarom betrokken bij het RES-proces voor de regio Noord-Holland Zuid en zoekt actief naar verdere mogelijkheden voor besparing en opwekking van energie.

2.3.7 Op weg naar duurzame warmte
De Transitievisie Warmte uit 2021 beschrijft de eerste stappen van het traject naar een warmtevoorziening zonder uitstoot. Op wijkniveau worden de meest kansrijke transities naar een hernieuwbaar warmtesysteem beschreven, waarbij Legmeer koploper zal zijn. De nadruk ligt op het beter isoleren van woningen, collectieve warmteoplossingen in dichtbevolkte delen (waaronder thermische energie uit oppervlaktewater en afvalwater) en individuele warmteoplossingen in minder dichtbevolkte delen van de gemeente Uithoorn. De isolatieopgave kan gecombineerd worden met het aanpakken van andere opgaven in woonwijken. Op termijn liggen er kansen voor een slimmere bronnenstrategie . Dat betekent dat wordt gekeken uit welke bronnen warmte ook gebruikt kan worden. Daarbij speelt bijvoorbeeld de glastuinbouw en eventueel (circulaire) industrie op bedrijventerrein Uithoorn, waar veel warmte vrijkomt, een rol.
Gezien het grote aandeel particuliere koopwoningen is een collectieve aanpak complex: maatwerk is nodig en verplichting is vooralsnog niet aan de orde. Deze complexiteit en de snelheid die benodigd is voor de warmtetransitie heeft wel als gevolg dat op termijn collectief belang mogelijk zwaarder weegt dan individueel belang met betrekking tot warmtemaatregelen. Bij de warmtetransitie gaat de aandacht ook uit naar de situatie van bewoners, bijvoorbeeld met betrekking tot wooncomfort en betaalbaarheid.
2.3.8 Vastleggen en beperken van uitstoot broeikasgassen door klimaatneutraal bouwen en ontwikkelen
Vastleggen en uitstoot broeikasgassen beperken door klimaatneutraal te bouwen en ontwikkelen De ruimte in de gemeente Uithoorn om energie op te wekken is relatief beperkt. Bovendien, om te voldoen aan de ambities van de in 2019 vastgestelde klimaatwet, moet er nu al ingezet worden op uitstootvrije vormen van bouwen. Het geambieerde Uithoornse karakter met beperkt hoogbouw leent zicht goed voor bouwvormen die geen CO2 uitstoten, zoals het gebruik van houtbouw. Gemeente Uithoorn heeft daarom de ambitie om ontwikkeling met hernieuwbare/CO2-neutrale bouwmethodes en -materialen te stimuleren.
2.3.9 Ook duurzame inrichting openbare ruimte
Bij (her)inrichting van openbare ruimte kan veel winst geboekt worden als deze duurzaam wordt ingericht. Dan gaat het bijvoorbeeld over het gebruik van circulaire materialen, duurzame armaturen en materialen die een lange levensloop hebben en/of makkelijk te hergebruiken zijn. Dit alles met behoud en, als streven, verbetering van een prettige openbare ruimte, goed zicht voor het verkeer en (het gevoel van) veiligheid.
2.3.10 Energie-infrastructuur zichtbaar en onzichtbaar in de omgeving
Water, natuur en groen zijn bepalend in de structuur en de uitstraling van het landschap. In de toekomst zullen ook energiemaatregelen onderdeel uitmaken van de omgeving. Warmtebronnen, koudebronnen, warmtenetten en koudenetten, warmteopslagbuffers en koudeopslagbuffers gaan samen een belangrijke, deels zichtbare, grotendeels onzichtbare infrastructuur voor een duurzame warmtevoorziening vormen. Voor het opwekken, het transport en de opslag van duurzame elektriciteit is ook infrastructuur nodig die deels zichtbaar is en ruimte inneemt in het landschap en de gebouwde omgeving. Voorbeelden zijn zonnepanelen op daken of in het landschap, verdeelstations van netbeheerders, laadinfrastructuur voor openbaar en eigen vervoer, en kleine en grote windturbines. Het werken aan onze toekomstbestendige leefomgeving vraagt dat we bij het ontwerpen en inrichten rekening houden met deze nieuwe bouwstenen van de buitenruimte. De uitdaging wordt aangegrepen om ook de ruimtelijke en visuele en veiligheidstechnische aspecten van de nieuwe energie-infrastructuur in balans in te bedden in onze bestaande en nieuwe procedures voor de inrichting van onze gemeente.
2.3.11 Verduurzaming van de mobiliteit
Naast ambities voor bereikbaarheid en mobiliteit ligt ook voor mobiliteit een verduurzamings- en gezondheidsopgave. De ambitie is dat alle mobiliteit uitstootvrij wordt. Dit draagt bij aan een schonere lucht en minder CO2-uitstoot. Allereerst wordt daarom steviger ingezet op het stimuleren van langzaam verkeer, de voetganger en de fietser, en in tweede instantie op het gebruik van openbaar vervoer. Ook wordt elektrische (deel)mobiliteit gestimuleerd door het plaatsen van voldoende oplaadpunten. De behoefte aan (elektrische) deelmobiliteit is nog beperkt, maar kan bijvoorbeeld rond HOV-haltes gestimuleerd worden om parkeeroverlast daar te voorkomen. Parkeerplekken worden klimaatadaptief en groen ingericht. Het voorkomen van verkeersbewegingen heeft vanzelfsprekend ook een positieve impact op andere zaken, bijvoorbeeld verkeersveiligheid en ruimte voor andere functies in openbaar gebied.
2.3.12 Uitgangspunten
-
In de grote groene gebieden veenweidegebied, Libellebos en het open gebied in de Noorder Legmeerpolder zijn natuurwaarden leidend bij transformaties en in beheer.
-
In het ruimtelijk raamwerk wordt gestreefd naar verbetering van de biodiversiteit en ecologische waarde bij iedere transformatie en in beheermaatregelen.
-
In de overige groene en waterrijke gebieden van Uithoorn, de groenblauwe haarvaten, wordt gestreefd naar een verbetering van de natuurwaarden en waar mogelijk het verbeteren van biodiversiteit. Hierbij wordt de balans gezocht met andere functies ten behoeve van de leefbaarheid van deze gebieden.
-
In beheerplannen krijgt natuur en biodiversiteit een prominente rol.
-
De gemeente stimuleert natuurinclusief bouwen.
-
Centrale doelstelling en maatschappelijke opgave is de transformatie naar de duurzame samenleving invulling geven.
-
Er zijn, naast de ambities voor energieopwekking op daken en boven parkeerplaatsen, drie zoekgebieden voor zonne-energieopwekking, zoals aangegeven in de Herijking RES 2024 Noord‑Holland Zuid. In de zuidoostelijke zoekgebieden is mogelijk ook ruimte voor windturbines. Ruimtelijke randvoorwaarden staan apart beschreven in hoofdstuk 3.
-
De gemeente blijft onderzoeken of Uithoorn verder kan bijdragen aan de opwekking van duurzame energie.
-
De Transitievisie Warmte wordt toegepast, waarbij Legmeer aangewezen is als voorloper. In het glastuinbouwgebied wordt onderzocht of er potentie is voor een warmtenet. Als dat het geval blijkt te zijn, zou dat op termijn mogelijkheden bieden voor het verwarmen van woningen.
-
De gemeente houdt bij de warmtetransitie rekening met mogelijke energie-armoede.
-
Uithoorn stimuleert circulair bouwen, wat wil zeggen dat de bouw uitstootvrij is en dat de gebruikte materialen CO2-neutraal geproduceerd zijn en te hergebruiken zijn. De gemeente sluit daarbij aan op landelijk beleid en regelgeving.
-
Ook het verduurzamen van bestaande bebouwing wordt gestimuleerd.
-
Uithoorn zet in op duurzaam beheer van het buitengebied, waarbij indien mogelijk CO2 wordt vastgelegd in het landschap (bijvoorbeeld in bomen of veengroei) en reststromen op een verantwoorde manier hergebruikt worden.
-
De groenblauwe hoofdstructuur wordt zodanig ingericht dat regenwater kan infiltreren en dat hitte-eilanden (gebieden waar het extra heet kan worden door bijvoorbeeld veel bestrating) worden tegengegaan. Ook voor bebouwing wordt klimaatadaptatie gestimuleerd, zoals verticaal groen en groene daken.
-
De gemeente Uithoorn zorgt bij alle nieuwe ontwikkelingen in de openbare ruimte voor klimaatadaptatie. Dit vragen wij als gemeente ook aan onze partners, zoals ontwikkelaars.
-
Dit doen we uiteindelijk om de leefomgeving voor de Uithoornse inwoners en bedrijven zo toekomstbestendig en klimaatadaptief mogelijk te maken, binnen de gemeentelijke invloedssfeer.
-
De gemeente gaat in gesprek met burgers en bedrijven om bewustwording te realiseren, samen te werken, tot creatieve oplossingen te komen, verbindingen met andere opgaven te benutten en verder inzicht te verkrijgen in de problemen binnen het gebied.
-
Nieuwbouw wordt direct klimaatadaptief ontwikkeld en gerealiseerd. De randvoorwaarden uit het Water- en rioleringsprogramma (WRP) en de verstedelijkingsstrategie MRA worden hiervoor doorvertaald naar gemeentelijk beleid.
-
Het is mogelijk dat klimaatverandering en -adaptatie medebepalend is voor de locatiekeuze bij ruimtelijke ontwikkelingen.
-
Mobiliteit wordt verduurzaamd door mobiliteit te voet en per fiets te stimuleren, gebruik van OV te optimaliseren en gebruik van elektrische (deel)mobiliteit te stimuleren.
2.4 Gezond en veilig leven
2.4.1 Inleiding
Veel inwoners ervaren de gemeente Uithoorn als een prettige en overwegend veilige leefomgeving, met veel groen en water als belangrijke kenmerken. Uithoorn is een gemeente met een levendige samenleving waarin inwoners zich verbonden voelen met elkaar. Waar veel ruimte is voor sociale en culturele activiteiten. Kortom, een omgeving die uitnodigt tot gezond en gelukkig leven.
2.4.2 Gezonde leefomgeving en bevordering van de gezondheid
Een gezonde leefomgeving is er een waarin bodem, water en lucht schoon zijn. Maar de gezondheid kan ook bevorderd worden door de aanwezigheid van veel groen in de buitenruimte rondom woningen en werkplekken. Onderzoek wijst uit dat de nabijheid van zichtbaar en bereikbaar groen een positieve uitwerking heeft op de mentale en fysieke gezondheid van bewoners en werkenden. Daarom is dit een aandachtspunt bij nieuwbouw en bestaande situaties waarin het areaal groen beperkt of afwezig is. Initiatieven om in onze gemeente rookvrije plekken te creëren kunnen op steun rekenen. Zo wordt gezorgd dat kinderen in de toekomst kunnen opgroeien in een rookvrije omgeving. Gestreefd wordt in ieder geval naar rookvrije speelplekken, scholen en sportverenigingen.
In de leefomgeving wordt vaak ingezet op het voorkomen van negatieve effecten op gezondheid. Te denken valt aan aspecten als beperken van geluid, trilling en uitstoot van stoffen. De leefomgeving van Uithoorn kan ook een belangrijke positieve impact hebben, door in te zetten op gezondheidsbevordering. De ambitie ligt bij het maken van een leefomgeving die uitnodigt tot ontmoeten, bewegen, gezonde keuzes en een actieve leefstijl. Dit biedt mensen mogelijkheden om in hun directe omgeving te werken aan gezond gewicht. Onderdeel van een beweegvriendelijke samenleving is ook een prettige en veilige mobiliteitsstructuur, waarbij fietsers en voetgangers de ruimte krijgen. Actieve verplaatsing, zoals lopen en fietsen, is een belangrijk onderdeel in beleid, ontwerp en gebruik. Verder streeft Gemeente Uithoorn er naar in 2040 een rookvrije gemeente te zijn.
2.4.3 Een veilige leefomgeving
2.4.3.1 Inleiding
Binnen de fysieke leefomgeving raakt veiligheid al de ambities van de omgevingsvisie, en vormt daarom een integraal onderdeel hiervan. Net als van alle ontwikkelingen waarvan de risico’s of de impact die ze hebben op de fysieke leefomgeving nog niet (volledig) bekend zijn. Bij ruimtelijke ontwikkelingen denken we daarom vooraf na over de beperking van ongewenste (fysieke) veiligheidsrisico’s en adviseren we op benodigde maatregelen in het ontwerp. Dit doen we samen: met de burger, de ondernemer, en de Veiligheidsregio. Door dialoog en een goede belangenafweging dragen we zorg voor bescherming tegen risico’s van branden, rampen en crises en waarborgen we de hulpverlening. Het regionaal risicoprofiel, het beleidsplan, het dekkingsplan en het crisisplan van de Veiligheidsregio Amsterdam Amstelland zijn hierbij het uitgangspunt. Hierbij nemen we de volgende minimale kernwaarden in acht: i) het bepalen en afwegen van de fysieke veiligheidsrisico’s; ii) veilig bouwen rekening houdende met mate van zelfredzaamheid; iii) goede bereikbaarheid en voldoende bluswater voor hulpdiensten zodat adequate incidentenbestrijding mogelijk is.
2.4.3.2 Verkeersveiligheid
Op verkeersveiligheid wordt ingezet in de mobiliteitsvisie die in 2022 is vastgesteld. Onder andere de Amsteltram zal hier een bijdrage aan leveren, maar ook door de openbare ruimte prettiger in te richten voor voetgangers en fietsers zal de veiligheid toenemen.
2.4.3.3 Sociale veiligheid
Sociale veiligheid wordt in Uithoorn aangepakt op wijkniveau, waarbij wijken als Thamerdal en Zijdelwaard op dit moment vragen om extra aandacht. Zo wordt er gewerkt aan een toekomstperspectief voor de wijken waarbij ingezet wordt op het versterken van de sociale samenhang, kansengelijkheid en de beleving van sociale veiligheid. Daarnaast kan inrichting van openbare ruimte bijdragen aan sociale veiligheid, bijvoorbeeld door de ruimte overzichtelijk in te richten en uit te nodigen tot sociaal gewenst gedrag. Deze ambitie kan soms op gespannen voet staan met zaken als klimaatadaptatie (waarbij soms hogere beplantingen worden toegepast) en gezondheid (sportvoorzieningen in relatie tot het aantrekken van hangjongeren), daarom dienen deze aspecten integraal afgewogen te worden op het moment dat een gebied heringericht wordt. Waar mogelijk combineren we juist ambities, zodat we met een aanpassing in de ruimte aan meerdere doelen werken.
In het centrum van Uithoorn is overlast een thema waar de komende jaren aandacht voor nodig is. In het dorpshart neemt de combinatie van wonen, werken en voorzieningen toe. Waar meer mensen bij elkaar zijn, moet beter rekening met elkaar gehouden worden. Door het maatschappelijke gesprek en alle toegankelijke media kunnen inwoners ook steeds beter aangeven waar tolerantie overgaat in last en soms zelfs in overlast.
2.4.3.4 Fysieke veiligheid
Fysieke veiligheid gaat over zaken als overstromingsrisico en risico’s door bijvoorbeeld bedrijfsongevallen en effecten van Schiphol. In de gemeente Uithoorn concentreren externe risico’s ten gevolge van bedrijvigheid zich met name op het bedrijventerrein aan de Amstel. Daarnaast ligt er een hogedruk gasleiding langs de Wiegerbruinlaan. Het overstromingsrisico is klein in Uithoorn, maar bij overstroming kan de diepte oplopen tot meer dan twee meter in grote delen van de laaggelegen woonwijken en tot meer dan vijf meter in de omgeving Cartografielaan/Geometrielaan. Afstemming met het waterschap blijft daarom noodzakelijk.
2.4.4 Minder hinder door Schiphol
Gelegen vlakbij Schiphol ervaren de inwoners van Uithoorn enerzijds de lusten, maar anderzijds ook steeds meer de lasten van de luchtvaart. Wij zien dat Schiphol belangrijk is als economische motor voor de regio en Nederland als geheel en kansen biedt voor internationale handel en werkgelegenheid. Maar we zien ook dat de last voor de Zuidoosthoek waar de gemeente Uithoorn ligt (gelegen onder de Aalsmeerbaan) onevenredig zwaar is. Door geluidsoverlast en luchtvervuiling heeft het vliegverkeer een negatieve impact op de gezondheid en het welzijn van veel inwoners van Uithoorn. Bovendien leggen de geluidscontouren van de luchthaven een claim op de ruimte, waardoor mogelijkheden voor stedelijke ontwikkeling en transformatie sterk beperkt zijn.
Op grond van de Aanvullingsregeling geluid Omgevingswet en het Besluit kwaliteit leefomgeving (artikel 3.38) dient luchtvaartverkeer meegenomen te worden in het bepalen van een aanvaardbaar geluidsniveau. De verschillende gemeenten in de omgeving van Schiphol (verenigd in de BRS, Bestuurlijke Regie Schiphol) hebben te kennen gegeven dat dit nieuwbouw van woningen en transformatie van functies (zoals verouderde glastuinbouwgebieden) in een groot deel van de randstad bemoeilijkt. Naar aanleiding hiervan is er een overgangsregeling opgenomen voor de cumulatie van geluid door luchtvaart waardoor hier vooralsnog geen beperking vanuit gaat.
Door dit toekomstige beleid bestaat het risico dat er in Uithoorn nog minder mogelijk is, terwijl de gemeente voor grote ruimtelijke opgaven staat (zie 1.3) die veel ruimte vragen. Vanuit de gemeente en de BRS is de inzet dat er wederkerigheid nodig is: de 'lucht' moet rekening houden met de 'grond' en vice versa. Oftewel, er moet meer aandacht komen bij de luchtvaart voor het verbeteren van de gezonde leefomgeving en het ruimte geven aan ontwikkelingen. De beperkingen van de luchtvaart zijn nu te veel leidend. Vanuit de gemeente zien wij echter dat werkelijke vermindering van hinder nauwelijks mogelijk is. Daarom denken wij dat krimp noodzakelijk is. De gemeente streeft daarmee dus naar minder hinder door Schiphol en bijbehorend vliegverkeer. Dit kan mogelijk consequenties hebben voor de economie.
2.4.5 Milieuzonering en stedelijke ontwikkeling afstemmen
Zonering is een instrument om allerlei milieuzaken en taken te realiseren, zoals schone lucht en vermindering van stikstofuitstoot, het werken aan energiebesparing en opwekken van duurzame energie, het gebruik van duurzame materialen en het creëren van korte ketens in de bedrijfsprocessen. Bedrijvigheid uit hoge milieucategorieën (HMC, dus met meer effect op het milieu) is niet passend op korte afstand van woningen. Door milieucontouren is er nu op een aantal plekken geen ruimte voor woningbouw, terwijl dit in de toekomst aantrekkelijk kan zijn. Het onderzoek naar eventuele (de)zonering wordt meegenomen in een traject om intensivering van het Industrieterrein Uithoorn te onderzoeken. Dit is mede afhankelijk van de verdere ontwikkeling van en type werklocaties in de Amstelzone. Doel is het verminderen van (milieu)overlast, het vrijspelen van ruimte voor andere ontwikkelingen zoals woningbouw, en tegelijkertijd het behoud van een toekomstbestendige, circulaire economie en werkgelegenheid. Daarnaast is het van belang te bepalen welke mate van overlast acceptabel is in gebieden met woningen en kwetsbare objecten. Dit is een gevolg van het steeds meer mengen van stedelijke functies.
Bedrijven en gevoelige functies zoals woningen, scholen en zorginstellingen verdragen elkaar vaak slecht. Bedrijven zijn doorgaans milieubelastend, terwijl woningen, scholen, zorginstellingen e.d. juist milieugevoelig zijn. Geluid, geur, trillingen, gevaar en zwaar verkeer vormen een belasting voor gevoelige functies. Milieuzonering biedt op dit punt een oplossing door een ruimtelijke scheiding aan te brengen tussen milieugevoelige en milieubelastende functies. Wanneer de gemeente ergens een woonwijk projecteert, kijkt zij eerst of bedrijven die milieuhinder veroorzaken, op voldoende afstand liggen. Andersom zal de gemeente niet zomaar gevoelige functies toestaan in de buurt van bedrijven die daarmee in hun bedrijfsvoering beperkt kunnen worden.
2.4.6 Overige milieuaspecten
2.4.6.1 Geluid
Naast de geluidsemissies van Schiphol, veroorzaken verkeer, economische activiteiten en activiteiten door bewoners (bijvoorbeeld uitgaanspubliek) soms geluidshinder. Uithoorn streeft er naar deze hinder te beperken. Hierbij is het van belang de balans te vinden tussen het faciliteren van gemengde woon-werkgebieden en het voorzien in een goed woon- en leefklimaat. Nabij bedrijvigheid (zoals de Amstelzone) of bijvoorbeeld horeca in het centrum is mogelijk een hoger geluidsniveau dan in een woonwijk aanvaardbaar.

2.4.6.2 Bodem- en waterkwaliteit
Het voormalige Cindu-terrein heeft een sterk verontreinigde bodem. Bij mogelijke transformatie dient dit gebied gesaneerd te worden om andere vormen van ruimtegebruik mogelijk te maken en te voorkomen dat mogelijk vervuild grondwater zich verspreid in de omgeving. In de rest van Uithoorn is de verontreiniging beperkt. De gemeente Uithoorn bevindt zich in een waterrijke omgeving. De Kaderrichtlijn Water (KRW) vormt het kader voor het verbeteren van de kwaliteit van het oppervlakte- en grondwater in Uithoorn. Hieruit volgen nader uit te werken maatregelen. De gemeente kan bijvoorbeeld een bijdrage leveren aan de waterkwaliteit door riolen af te koppelen en overstorten waar mogelijk te verminderen.
2.4.6.3 Stikstof
De gemeente streeft ernaar in het kader van duur - zaamheid om de stikstofuitstoot binnen de gemeente Uithoorn zoveel mogelijk te beperken. Binnen de gemeentegrenzen bevindt zich geen (stikstofgevoelig) Natura2000-gebied. Het dichtstbijzijnde stikstofgevoeli - ge gebied is Botshol (op 6 km afstand), ten noorden van Mijdrecht. Veel kassen in Uithoorn zijn nog gasge - stookt, wat leidt tot stikstofdepositie in de omgeving. In hoeverre dit schadelijk is voor omliggende Natura2000-gebieden is nog onduidelijk.
2.4.6.4 Geur
Geurnormen zijn niet meer geregeld in het Activiteitenbesluit. De gemeente moet onder de Omgevingswet in het omgevingsplan zelf een bebouwingscontour geur vaststellen. Binnen de bebouwingscontour geldt een hoge bescherming, daarbuiten een lage bescherming. Voor welke gebieden is een hogere geurwaarde acceptabel? Dat is richtinggevend voor het bepalen van de bebouwingscontour geur. De gemeente mag zelf besluiten hoe de bebouwingscontour geur vorm krijgt. De gemeente moet in ieder geval aanwijzen: het in het omgevingsplan of bij afwijkactiviteit toegelaten stedenbouwkundig samenstel van bebouwing voor wonen, dienstverlening, bedrijvigheid, detailhandel en horeca, en de daarbij behorende openbare of sociaal-culturele voorzieningen en infrastructuur. Voor stedelijk groen aan de rand van de bebouwing en voor lintbebouwing langs wegen, waterwegen of waterkeringen kan de gemeente zelf bepalen of dit wel of niet binnen de bebouwingscontour valt. Verder moet de gemeente op grond van instructieregels in ieder geval bepaalde gebouwen als geurgevoelig vastleggen in het omgevingsplan. Dat zullen er minder zijn dan nu. De gemeente kan er voor kiezen om ook andere gebouwen en locaties te beschermen.
2.4.7 Uitgangspunten
-
Alle ontwikkelingen binnen Uithoorn dragen bij aan een veilige leefomgeving, zowel sociale veiligheid, verkeersveiligheid als fysieke veiligheid.
-
Alle ontwikkelingen binnen Uithoorn dragen bij aan een (sociaal) veilige, beweegvriendelijke, ontmoetingsvriendelijke en toegankelijke leefomgeving.
-
Sociale veiligheid wordt aangepakt op wijkniveau, waarbij integraal wordt gekeken naar fysieke en andersoortige maatregelen. Speciale aandacht gaat uit naar Zijdelwaard, Thamerdal en Dorpscentrum.
-
Minder hinder door Schiphol, hierin trekt Uithoorn op samen met de regio.
-
In het dorpscentrum van Uithoorn (en wellicht ook De Kwakel) en in gemengde woon-werkgebieden is mogelijk een hoger geluidsniveau aanvaardbaar.
-
Bij iedere ontwikkeling zorgt de gemeente ervoor dat het belang van fysieke veiligheid goed in beeld is en meegenomen wordt in vergunningverlening.
-
Bij iedere ontwikkeling wordt ingezet op verbetering van de bodem- en waterkwaliteit. Nieuwe ontwikkelingen mogen problemen, zoals wateroverlast, niet afwentelen op de omgeving of het watersysteem.
-
Er wordt onderzoek gedaan naar de zonering van HMC-bedrijvigheid om ruimte vrij te spelen voor woningbouw. Randvoorwaarde is dat dit niet ten koste gaat van de economische vitaliteit van de bedrijventerreinen en de gezonde leefomgeving en duurzaamheidsopgaven van Uithoorn als geheel.

2.5 Toekomstbestendig wonen en verplaatsen
2.5.1 Inleiding
Uithoorn is een aantrekkelijke gemeente om in te wonen, in het bijzonder voor gezinnen. Er is veel natuur, maar er zijn ook veel voorzieningen in de buurt. Er liggen opgaven gezien de krapte op de woningmarkt en de behoefte om toekomst- en levensloopbestendig te zijn als gemeente. De ruimte om nieuwe woningen te bouwen in de gemeente Uithoorn is beperkt, terwijl de behoefte aan nieuwe woningen groot is. Daarom moeten we creatief omgaan met de ruimte die er is en tegelijkertijd die gezonde en duurzame leefomgeving met een hoge kwaliteit bewaken. Dit bereiken we onder andere door waar mogelijk meervoudig ruimtegebruik in te zetten.
2.5.2 Verrijking van de regionale woningmarkt
De gemeente Uithoorn is een van de weinige plekken in de Metropoolregio Amsterdam (MRA) waar in een groot gedeelte van de gemeente een suburbane (rustige en ruime) leefstijl in een groene omgeving gecombineerd kan worden met enerzijds een goede bereikbaarheid van grootstedelijke voorzieningen en anderzijds het Groene Hart. Dat houden we graag zo. Daarom is het niet wenselijk om alle benodigde woningen in bestaande woonwijken te realiseren. Verdichting is mogelijk, maar mag niet ten koste gaan van het Uithoornse karakter. Hierbij wordt zoveel mogelijk ingezet op het toevoegen van woningtypen die in lokale behoeften van specifieke doelgroepen voorzien en daarmee het woningaanbod in de gemeente verrijken. De bestaande woningbouw draagt zo bij aan de regionale woningvraag.
2.5.3 Een sterk ontwikkelde woningmarkt
De druk op de woningmarkt is hoog. Er is momenteel een grote vraag naar woningen, terwijl het aanbod klein is en de prijzen stijgen. Eén van de oorzaken is een tekort aan woningen in de regio. De gemeenten binnen de MRA hebben daarom de ambitie om de komende tien jaar ongeveer 150.000 woningen te bouwen. De gemeente Uithoorn levert hieraan waar mogelijk haar bijdrage. In de komende jaren worden naar verwachting in gemeente Uithoorn nog ruim 1000 woningen opgeleverd. De locaties waar deze woningen worden opgeleverd verschillen. Dit kan plaatsvinden door inbreiding, uitleg, transformatie en herontwikkeling. Uithoorn beschikt binnen de MRA over relatief veel betaalbare eengezinswoningen met tuin. Hier is regionaal grote vraag naar, maar in Uithoorn ontstaat een te eenzijdig beeld. Daarnaast zijn er specifieke doelgroepen waarvoor het aanbod in Uithoorn te beperkt is. Bij woningbouwontwikkelingen wordt ingezet op het faciliteren van de vraag van deze doelgroepen.
2.5.4 Woningbouw passend bij de schaal en het karakter van Uithoorn
Er zijn veel landelijke en provinciale regels die de ruimte voor woningbouw beperken. Bijvoorbeeld de LIB-indeling (de beperkingen als gevolg van Schiphol), milieuzoneringen en de UNESCO-status van Stelling van Amsterdam. Ook liggen er provinciale kaders die bebouwing in het buitengebied tegengaan.
Zoals eerder benoemd, is er wel grote behoefte aan meer woningbouwlocaties. Zowel vanuit functioneel en kwalitatief oogpunt, als vanuit de behoefte van bewoners blijkt dat het bouwen in de bestaande groenstructuur (zowel binnen als buiten de bouwcontour) meestal onwenselijk is. Er liggen meer kansen voor inbreiding. Hier kiest de gemeente Uithoorn ervoor niet zomaar de hoogte in te gaan, al zijn zorgvuldig gekozen hoogte-accenten mogelijk. Het is juist een grote kwaliteit dat je hier dorps kan wonen: dicht bij groen en vaak met een tuin.
Nieuwe woningbouw past daarom bij de schaal van de directe omgeving, met een kenmerkende dorpse afwisseling. Bij nieuwbouw wordt per wijk bepaald wat het beste past bij de ruimtelijke identiteit en de woonbehoefte. Nader te bepalen dichtheidsaccenten met iets meer hoogte zijn mogelijk, bijvoorbeeld bij een halte van de Uithoornlijn, aan de Amstel of bij een voorzieningencentrum. Dit levert extra woningen op die zich bovendien onderscheiden van het bestaande woningaanbod, en die kunnen profiteren van aanwezige voorzieningen of openbaar vervoer.
Woningbouw binnen de groene gebieden vindt alleen gecontroleerd plaats binnen daartoe door het rijk of de provincie speciaal ontwikkelde kaders. Te denken valt aan de Ruimte-voor-Ruimte-regeling van de provincie. Zie voor nadere uitwerking paragraaf 3.2.
2.5.5 Vergroten woonkwaliteit en diversiteit in aanbod
Het woningaanbod van de gemeente Uithoorn bestaat grotendeels uit grondgebonden eengezinswoningen met tuin. Hierdoor is de gemeente Uithoorn erg aantrekkelijk voor gezinnen. Uithoorn vergrijst echter snel en heeft de ambitie om een levensloopbestendige gemeente te zijn. We willen ook de knelpunten bij starters en jongeren, middeninkomens, potentiële doorstromers, spoedzoekers en kwetsbare doelgroepen verhelpen. Er is daarom behoefte aan een breder woningaanbod met voldoende betaalbare woningen. Bij nieuwbouw wordt daarom onder andere ingezet op het toevoegen van appartementen en voor senioren geschikte woningen. Daarbij streven we naar 30% sociale huur en 36% middensegment (middenhuur en betaalbare koop) in de totale woningvoorraad. De Woonzorgvisie 2024-2028 biedt diverse maatregelen en een langeretermijnvisie op deze opgave. Het verplaatsen van activiteiten naar de LIB-zone om zo ruimte vrij te spelen voor nieuwe woningen is een kans, zolang dit niet ten koste van de ruimtelijke kwaliteit gaat. Vooral in bedrijventerrein Uithoorn liggen nader te onderzoeken mogelijkheden, zie paragraaf 3.6. Een vergroting van de woonkwaliteit wordt eveneens bereikt door duurzaam te bouwen, hierover meer in paragraaf 2.3 en 2.7. Voor toekomstbestendige woningbouw wordt ook samengewerkt met de MRA-gemeenten.
2.5.6 Mobiliteit: Veilig, leefbaar en bereikbaar
Voor mobiliteit gaat de gemeente Uithoorn uit van drie prioriteiten. Ten eerste staat veiligheid bovenaan. Ten tweede prioriteert de gemeente principes voor leefbaarheid. Deze raken het meest aan de ruimtelijke uitgangspunten in de omgevingsvisie. Een mobiliteitssysteem (het geheel aan verkeer en vervoer) dat bijdraagt aan de leefbaarheid van Uithoorn uit zich in het prioriteren van voetgangers en fietsers. Het maken van een prettige omgeving voor de weggebruiker is hier cruciaal voor. Het derde principe, bereikbaarheid, is voor de gemeente Uithoorn als onderdeel van een grotere vervoersregio belangrijk. Regionaal uit zich dit vooral in betere fietsverbindingen tot 10 km rond de kern en slimmer gebruik van de randwegen door automobilisten om zo de woonwijken te ontlasten. Ook openbaar vervoer speelt een belangrijke rol in bereikbaarheid, met de Uithoornlijn als ruggengraat en het busstation als overstappunt voor regionale Hoogwaardige Openbaar Vervoer (HOV-)lijnen.

2.5.7 Regionale mobiliteit: wegverkeer omleiden, goede fietsverbindingen, P+R Amstelveen Zuid
De gemeente Uithoorn is onderdeel van de Vervoerregio Amsterdam. Daar is de bereikbaarheidsagenda Zuidlob VRA vastgesteld. Deze agenda vormt de leidraad voor regionale mobiliteitsvraagstukken. Via de investeringsagenda mobiliteit wordt geïnvesteerd in onder andere openbaar vervoer, goede regionale fietsverbindingen en slimme mobiliteit. Uithoorn is regionaal goed bereikbaar per auto en door middel van twee HOV-verbindingen: de Uithoornlijn richting station Amsterdam Zuid en een HOV-lijn via Schiphol naar Haarlem. De transformatie van snelbus naar tram (de Uithoornlijn) heeft een niet te onderschatten effect op de ruimtelijke ontwikkeling van Uithoorn. Het gemak om Amsterdam te bereiken neemt toe, waardoor meer mensen die in Amsterdam werken, geneigd zullen zijn te zoeken naar een woning in Uithoorn. Deze regionale ontwikkelingen leveren ook druk op het Uithoornse mobiliteitssysteem op, zoals regionaal autoverkeer richting de haltes van de Uithoornlijn. Daarom wil de gemeente een P+R in Amstelveen Zuid bevorderen. Deze is ook opgenomen in het bestemmingsplan Bedrijventerrein Amstelveen Zuid (in gemeente Amstelveen). Naast openbaar vervoer en wegverkeer wordt er ook gewerkt aan regionale fietsverbindingen die Uithoorn verbinden met onder andere Amstelveen, Hoofddorp en Alphen aan den Rijn. Ook wordt duurzaam voor- en natransport richting de HOV-haltes gestimuleerd.
Regionaal wegverkeer kiest binnen de gemeente Uithoorn vaak voor een route dwars door Uithoorn. Dit zorgt voor extra belasting van het lokale wegennet en verslechtert de oversteekbaarheid van wijkontsluitingswegen als de Máximalaan en de Zijdelweg. Om deze reden wordt ingezet op maatregelen die regionaal verkeer om de kern heen leiden, zonder dat de bereikbaarheid voor lokaal verkeer afneemt.
Vanuit Uithoorn wordt ingezet op goede fietsroutes naar omliggende kernen. Binnen de vervoerregio zijn twee regionale doorfietsroutes vastgesteld die Uithoorn kruisen: de route Hoofddorp-Vinkeveen en de route Amstelveen-Alphen a/d Rijn. Ook in andere richtingen is steeds meer regionaal fietsverkeer dankzij de opkomst van de elektrische fiets. Er liggen initiatieven van provincie Utrecht en provincie Zuid-Holland voor doorfietsroutes naar de haltes van de Uithoornlijn. Dit betekent dat enkele barrières geslecht dienen te worden, zodat prettige fietsroutes ontstaan.
2.5.8 Tussen wijken inzetten op fietser en voetganger
Binnen de gemeente vormen de Boterdijk, Drechtdijk, Zijdelweg en Amsteldijk belangrijke doorgaande fietsverbindingen. De onderlinge verbinding van wijken wordt als kans en als knelpunt gezien. Ook de oversteekbaarheid van grote wegen vormt een barrière in fietsgebruik. Fietsroutes sluiten ook niet altijd even goed op elkaar aan, en bewegwijzering is niet overal voldoende. In de mobiliteitsvisie wordt een aantal oplossingen aangedragen om Uithoorn prettiger te maken voor langzaam verkeer. Vooral het ontlasten van de Boterdijk (een belangrijke fietsroute) en de Maximalaan (barrière in het langzaamverkeersnetwerk) maken het dorp prettiger voor fietsers en voetgangers.
2.5.9 Fietsnetwerk en het landschappelijk raamwerk
De fietshoofdstructuur wordt in samenhang met het landschappelijke raamwerk doorontwikkeld. Zo versterken bereikbaarheid en ruimtelijke kwaliteit elkaar. Er zijn nog uitdagingen die in verdere uitwerking aandacht verdienen. De groenblauwe (water en groen) hoofdstructuur kruist enkele hoofdontsluitingswegen. De combinatie met een oversteekpunt voor langzaam verkeer is hier soms een uitdaging. In een nadere uitwerking wordt gekeken hoe hier mee om te gaan.
2.5.10 Parkeren
In het dorpshart is parkeren een uitdaging. De menging van wonen en voorzieningen is een belangrijke waarde voor de levendigheid van het dorpshart, maar bewoners en bezoekers concurreren om de beperkte parkeervoorzieningen. Daarom wordt ingezet op parkeerbeleid waarbij bewoners en direct belanghebbenden parkeren bij de bestemming in het dorpscentrum en waarbij bezoekers- en parkeervoorzieningen aan de ‘koppen’ (uiteinden) van het centrum gerealiseerd of beter benut worden: bijvoorbeeld bij de Stationsstraat en bij het Amstelplein. Rond de HOV-haltes is risico op parkeeroverlast. De gemeente wil extra parkeerdruk rond deze haltes voorkomen. Daarom wordt ingezet op goede langzaamverkeersverbindingen en andere oplossingen voor voor- en natransport.
Buiten het centrum spelen minder parkeerproblemen. Hier liggen wel kansen om het parkeren meer te integreren met andere opgaven, zoals infiltratie van regenwater, meer biodiversiteit of energieopwekking. Ook bij eventuele nieuwe parkeervoorzieningen rond de HOV-haltes wordt ingezet op meervoudig ruimtegebruik en een hoge ruimtelijke kwaliteit.
Bij nieuwbouw, renovaties en herstelwerk wordt gezocht naar ruimte voor fietsparkeren. De strategische plekken hiervoor zijn zo dicht mogelijk bij de eigen woning, de ingangen van winkels en andere voorzieningen zoals rustpunten, sportplekken of overstapplekken.
2.5.11 Uitgangspunten
-
Er is weinig ruimte voor nieuwe bebouwing in de gemeente Uithoorn. Toch streeft de gemeente ernaar een bijdrage te leveren aan de hoge woningvraag in de regio. Hiervoor wordt ook gekeken naar nieuwe woonvormen zoals tijdelijk/flexwonen.
-
Hierbij is het uitgangspunt dat er vooral gebouwd wordt voor doelgroepen die nu in de knel komen: starters en jongeren, middeninkomens, potentiële doorstromers, spoedzoekers en kwetsbare doelgroepen.
-
De woningbouw is afwisselend van uitstraling, heeft hoogte-accenten en past bij het karakter van de directe omgeving.
-
Inbreiding (binnen bestaande bebouwing nieuwe woningen bouwen) kan plaatsvinden bij voorzieningencentra en mogelijk in woonwijken met een ruime opzet.
-
Bij bedrijventerrein Uithoorn wordt verkend of op termijn de milieuzonering aangepast kan worden zodat ruimte ontstaat voor woningbouw. Randvoorwaarde is dat dit niet ten koste gaat van de economische vitaliteit van het bedrijventerrein en Uithoorn als geheel.
-
Zowel alle nieuwbouw als te ontwikkelen openbare ruimte is klimaatadaptief en energieneutraal. Vanaf 2040 zijn alle woningen energieneutraal.
-
Inbreiding heeft de voorkeur; uitbreiding in het groen vindt alleen gecontroleerd plaats binnen daartoe aangewezen provinciale rijkskaders.
-
Regionaal verkeer wordt zoveel mogelijk via de randwegen om Uithoorn geleid.
-
Doorfietsroutes oost-west en noord-zuid worden gerealiseerd.
-
Binnen Uithoorn wordt ingezet op een goed doorgaand langzaamverkeersnetwerk, waarbij samenhang wordt gezocht met de groenblauwe hoofdstructuur.
-
Parkeeroverlast wordt tegengegaan door aparte parkeerlocaties voor bezoekers te realiseren en te lobbyen voor een P+R aan bedrijventerrein Amstelveen-Zuid.
-
Het verbeteren van voor- en natransport richting HOV (Uithoornlijn en snelbus), onder andere met inrichtingsmaatregelen rond de haltes.

2.6 Veerkrachtig ondernemen
2.6.1 Inleiding
Een aantrekkelijke plek om te wonen vraagt ook om een gezonde, levendige economie. Wij zien een vitale economie als een economie die ofwel bijdraagt aan het voorzieningenniveau in de gemeente, ofwel werkgelegenheid biedt aan de beroepsbevolking, zowel lokaal als in de regio. Regionaal betekent dit dat Uithoorn blijft bijdragen aan en samenwerken in Greenport Aalsmeer, de regio Amstelland-Meerlanden en de MRA. Lokaal betekent dit dat de verzameling van bedrijvigheid op bedrijventerreinen het uitgangspunt blijft. Maar lokaal betekent ook dat we kijken naar de werkgelegenheid. We bieden passende ruimte aan ondernemers op bedrijventerreinen of in woonwijken, waarbij rekening wordt gehouden met de schaal en het karakter van de gemeente en haar inwoners.
2.6.2 Een vitale economie passend bij de beroepsbevolking van Uithoorn
De bedrijvigheid in de gemeente Uithoorn is geconcentreerd op het industrieterrein Uithoorn (industrie, groot- en detailhandel), in het dorpshart (horeca, detailhandel en recreatie & toerisme) en het kernglastuinbouwgebied (glastuinbouw en handelsactiviteiten) met de nabijgelegen Flora Holland Zuid en Tussen Poelweg en Noorddammerweg (TPN). Voor deze concentraties geldt dat er sterk ingezet wordt op het matchen van werkgelegenheid en beroepsbevolking, enerzijds door bij- en omscholing, anderzijds door het werven van bedrijven die werkgelegenheid bieden aan de Uithoornse beroepsbevolking. Het is belangrijk dat er voldoende werkgelegenheid blijft in de gemeente Uithoorn en dat de economie vitaal is. Daarnaast passen economische activiteiten qua maat en schaal bij het karakter van de omgeving: er zijn geen ontsluitingsproblemen en de bedrijfsbebouwing past qua grootte bij haar omgeving en bij de kwalitatieve en kwantitatieve vraag naar werklocaties. Er is daarom geen plek voor bedrijven die veel ruimte vragen en maar weinig werkgelegenheid of bijdrage aan het lokale voorzieningenniveau bieden. Dit is verder uitgewerkt in de Bouwsteen Werklocaties.
Voor voorzieningen zet Uithoorn vooral in op concentratie in een levendig en vitaal dorpshart alsmede Zijdelwaard, De Kwakel en enkele ondersteunende boodschappenlocaties. Hier is ruimte voor dagelijkse voorzieningen, horeca en lokaal georiënteerde detailhandel. De detailhandelsvisie Uithoorn 2021 (die voortbouwt op de Detailhandelsvisie 2009) en het Masterplan Dorpscentrum geven invulling aan deze ambitie voor detailhandel.
De glastuinbouw is een sector die grote invloed heeft op alle aanleverende en verwerkende bedrijven en zorgt daarmee voor grote werkgelegenheid in de gemeente Uithoorn en de regio. De inzet van seizoensarbeiders is nu nog cruciaal in deze keten, een goede huisvesting is daarom van belang.
2.6.3 Samenwerking met betrekking tot economie en werkgelegenheid
De gemeente Uithoorn speelt een belangrijke rol in de regionale economie dankzij onder andere de aanwezigheid van het kernglastuinbouwgebied en het bedrijventerrein Uithoorn. Uithoorn neemt deel aan een aantal samenwerkingsverbanden: de deelregio Amstelland-Meerlanden en het samenwerkingsverband de Greenport Aalsmeer (tussen overheden, bedrijven en kennis- en onderwijsinstellingen). In de MRA-regio is de concentratie van industrie in grootschaligere locaties, zoals het Noordzeekanaalgebied, een trend. Dit levert kansen op voor minder overlast door industrie in Uithoorn, waardoor de leefbaarheid toeneemt en mogelijk ook de kansen voor woningbouw. Tegelijkertijd is het van belang de economie in de gemeente Uithoorn vitaal te houden en een bijdrage te (blijven) leveren aan de lokale en regionale werkgelegenheid. De woon-werkbalans is gestaag richting meer wonen en minder werken aan het verschuiven. De ambitie is om de balans tussen wonen en werken zoals we die nu kennen te behouden.
2.6.4 Glastuinbouw klaar voor de toekomst: energieneutraal, circulair, kennisintensief en hoogwaardig
Voor het kernglastuinbouwgebied is de belangrijkste ambitie kwalitatieve groei, waarbij duurzaamheid en toekomstbestendigheid belangrijke uitgangspunten zijn. Prognoses voor ruimtevraag kennen een korte termijn (2023). Hier loopt binnen het samenwerkingsverband Greenport Aalsmeer onderzoek naar. De gebiedsvisie (2018) biedt ruimte voor innovatie van de glastuinbouw en hieraan gerelateerde activiteiten. Daarnaast wordt ook de glastuinbouw uitstootvrij en circulair. Een perspectief voor de langere termijn op het gebied van kwalitatieve en kwantitatieve vraag vanuit de markt dient onderzocht te worden. Ambitiedient te zijn dat er een betere aansluiting wordt gezocht met de vraag van de beroepsbevolking uit Uithoorn. Een tweede belangrijk doel is het tegengaan van verrommeling en leegstand. Verder is het van belang te blijven inspelen op innovaties zoals verticale teelt en energiebesparing om de toekomstbestendigheid van de glastuinbouw te kunnen faciliteren.
2.6.5 Circulaire economie
Vanaf 2050 is de Nederlandse economie circulair. Dat betekent kort gezegd dat tegen die tijd al het afval hergebruikt wordt en geen nieuwe grondstoffen meer aangeboord worden. Ook is de economie tegen die tijd uitstootvrij. Om dit te bereiken moeten nu al stappen gezet worden. De glastuinbouw is internationaal een voorloper op het gebied van circulariteit. Uithoorn zet daarom in op het verder stimuleren van circulaire innovatie in het Kernglastuinbouwgebied. Bestaande en nieuwe bedrijvigheid elders binnen de gemeente is in 2050 ook volledig circulair. De circulaire economie biedt kansen, omdat hergebruik en opwaardering van materialen dichter bij huis gebeurt.
2.6.6 Bedrijven en bedrijventerreinen klimaatadapatief en energieneutraal
Op termijn worden alle bedrijven en bedrijventerreinen energieneutraal. Eerste stappen die gezet moeten worden is het realiseren van de wettelijke energie-vereisten, bovenwettelijke besparingen op energie en het realiseren van zonnepanelen voor elektriciteitsopwekking op grote daken. Ook worden de bedrijventerreinen klimaatadaptief ingericht. Stimulering en handhaving gaan hierbij hand-in-hand.
2.6.7 Recreatie en toerisme: Gastvrij gezicht aan Amstel en Vuurlijn
Met haar ligging aan de Amstel met doorzichten op het Groene Hart vormt de gemeente Uithoorn een prettige halte voor recreanten per fiets, per boot of voor langeafstandswandelaars. Het heringerichte Marktplein, de passantenhaven en de jachthaven vormen een gastvrij gezicht aan de Amstel. Het is de ambitie om deze kwaliteit in te zetten ten behoeve van de levendigheid van het dorpshart. Daarnaast is de Stelling van Amsterdam – UNESCO werelderfgoed – een trekker van recreanten, waarbij Fort aan de Drecht tevens een Toeristisch Overstappunt (TOP) vormt. Er zijn meerdere cultuurhistorisch waardevolle panden en plekken in de gemeente aanwezig, die zich vaak binnen deze structuren bevinden. Er ontstaat zo een vanzelfsprekende recreatieve hoofdstructuur met vier ‘visitekaartjes’: deelgebieden waar invulling wordt gegeven aan recreatieve kwaliteit. Deze visitekaartjes zijn: langs de Amstel, langs de Linie, in het dorp en door de wijk.
Ambitie is om (dag)recreatie te koppelen aan doelstellingen zoals de vitaliteit van Uithoornse voorzieningen en recreatieve voorzieningen voor bewoners waarbij aanwezige natuurwaarden een belangrijke kwaliteit zijn. Aan de eindhalte van de Uithoornlijn wordt een toeristisch punt (mogelijk een tweede TOP) gerealiseerd waarvandaan het dorpshart, de Amstel en de Stelling van Amsterdam verkend kunnen worden. Ook wordt onderzocht of een rondje Amstelhoek te realiseren is, met een extra voetgangersverbinding over de Amstel langs de busbaan. Deze structuur en bijbehorende ambities zijn verder uitgewerkt in de Visie Recreatie en Toerisme Uithoorn.

2.6.8 Horeca versterken in het dorpshart
We willen de positie van de horeca verder versterken. Uitgangspunt is dat dit (de diversiteit van) het voorzieningenniveau en de leefbaarheid van de gemeente ten goede moet komen. Horeca is een van de visitekaartjes van de gemeente, maar speelt bijvoorbeeld ook een rol in een vitaal verenigingsleven. De horeca in Uithoorn is in de afgelopen jaren uitgebreid als het gaat om eet- en drinkgelegenheden. (Zware) nachthoreca is juist afgenomen. Dit is in lijn met landelijke trends. Er lijkt geen behoefte aan grote uitbreiding van de horeca in het algemeen, en door de afname van nachthoreca neemt ook de overlast af. Het consolideren van het bestaande aanbod is daarom het belangrijkste uitgangspunt in de horecavisie. De ontwikkelingen aan en bij de kade langs de Amstel, inclusief de jachthaven en de tramlijn (aanvoer potentiële bezoekers), kunnen het horecagebied aan het water een volgende impuls geven. Hierbij is het van belang te blijven werken aan het voorkomen en verminderen van overlast.
2.6.9 Uitgangspunten
-
De gemeente Uithoorn zet in op het versterken/ benutten van haar positie binnen de regionale netwerken MRA (en haar deelregio Amstelland-Meerlanden) en Greenport Aalsmeer.
-
De economie van Uithoorn is in 2040 uitstootvrij en in 2050 circulair. De rol van Uithoorn in de regionale circulaire economie wordt nader onderzocht.
-
Nieuwe bedrijvigheid in Uithoorn past bij de maat en schaal van de gemeente. Grote ruimtevragende bedrijven worden alleen toegelaten als zij een grote bijdrage leveren aan het lokale voorzieningenniveau of regionale werkgelegenheid.
-
Er wordt gestreefd naar een balans tussen beroepsbevolking en werkgelegenheid, en dus ook tussen de realisatie van woningen en werkplekken.
-
Er wordt onderzoek gedaan naar de zonering van HMC-bedrijvigheid om ruimte vrij te spelen voor woningbouw. Zonering is de mate waarin bedrijven milieuoverlast mogen veroorzaken. Randvoorwaarde is dat dit niet ten koste gaat van de economische vitaliteit van het bedrijventerrein en de gezonde leefomgeving en duurzaamheidsopgaven van Uithoorn als geheel.
-
Het dorpshart vormt ook voor recreatie het knooppunt van regionale recreatieve/toeristische stromen, die zich bewegen langs de Amstel en langs de Stelling van Amsterdam. Dit wordt verder versterkt.
-
Ontwikkelingen voor meer toeristisch-recreatieve bezoekers zijn gewenst, indien bewoners en lokale bedrijven er baat bij hebben. De ambitie is dat deze ontwikkelingen een hoge kwaliteit hebben, zoals verder gespecificeerd in de Horecavisie en de visie Recreatie en Toerisme.
-
Op termijn worden alle bedrijven en bedrijventerreinen klimaatadaptief en energieneutraal.

2.7 Sociaal en cultureel verbinden
2.7.1 Inleiding
Sociale ontwikkelingen hebben invloed op de leefomgeving. Denk aan vergrijzing, maar ook aan het feit dat mensen steeds meer vanuit huis doen. Uithoorn is er voor iedereen. Voor alle ontwikkelingen in de leefomgeving geldt dat er rekening moet worden gehouden met sociale aspecten. Gelijkwaardigheid en kansengelijkheid zijn daarbij uitgangspunten.
2.7.2 Iedereen telt mee
Uithoorn streeft naar een goed welzijn voor al haar bewoners. Uithoorn is een kern met een grote diversiteit in de bevolkingssamenstelling. In De Kwakel is sprake van een dorps karakter waar iedereen elkaar kent. Het is daarom van belang dat de gemeente oog blijft houden voor de opbouw van de bevolkingsgroepen in zowel Uithoorn als De Kwakel en dat de Uithoornse leefomgeving inclusief is. Een inclusieve samenleving waarin iedereen mee kan doen en niemand wordt uitgesloten. Iedereen moet de kans hebben om zich gelijkwaardig te ontwikkelen en ontplooien, ongeacht leeftijd, sekse, beperking, seksuele voorkeur, opleidingsniveau, etniciteit of godsdienst. Dat wil ook zeggen dat iedereen meetelt en gebruik kan maken van de voorzieningen die de gemeente biedt. Bijvoorbeeld door ervoor te zorgen dat er voldoende sociale voorzieningen zijn, en dat deze goed bereikbaar zijn voor de mensen die hier gebruik van maken. De afgelopen tijd is ingezet op het concentreren van gezondheids- en welzijnsvoorzieningen, bijvoorbeeld in de Kuyper en het gezondheidscentrum de Waterlinie. De bereikbaarheid hiervan moet verbeterd worden, en daarnaast wordt onderzocht of bepaalde maatschappelijke voorzieningen meer nabij locaties met kwetsbare bewoners gerealiseerd moeten worden.
2.7.3 Prettig wonen voor kwetsbare doelgroepen
Vergrijzing neemt toe in de gemeente, en daarmee het aandeel kwetsbare ouderen. Er wordt ingezet op een goede woonvoorziening voor deze en andere kwetsbare doelgroepen. De samenstelling van kwetsbare doelgroepen en hun behoeften kunnen in de loop van tijd veranderen. Uit de Woonzorganalyse Amstelland blijkt dat er op dit moment vooral behoefte is aan kleinschalige collectieve woonvormen, gecombineerd met maatschappelijke voorzieningen. Er wordt steeds gezocht naar koppelkansen met andere thema’s. Denk bijvoorbeeld aan het verlagen van woonlasten in combinatie met verduurzaming van woningen, of het klimaatbestendig inrichten van de openbare ruimte in combinatie met het stimuleren van bewegen in deze buitenruimte.
2.7.4 Bewegen en ontmoeten
Voor het welzijn van inwoners is het belangrijk dat zij gezond en niet eenzaam zijn. De openbare ruimte kan bijdragen aan het vergroten van gezondheid en sociale samenhang. Daarom wordt bij alle ontwikkelingen ingezet op een prettige buitenruimte die uitnodigt tot beweging en ontmoeting, zowel in het dagelijks leven als bij sport of andere activiteiten. Er is een tekort aan levendige ontmoetingsplekken voor jongeren, maar ook voor andere bewoners, zowel in bijvoorbeeld wijkcentra als in de openbare ruimte. Ambitie is om hier beter in te voorzien, waarbij ook ontmoeting tussen diverse doelgroepen beoogd wordt. Dit kan bijvoorbeeld door het plaatsen van publieke ontmoetingsplekken (door inrichting van de openbare ruimte) nabij voorzieningencentra, in het dorpshart of in de groenblauwe hoofdstructuur.
Onderdeel van een beweegvriendelijke samenleving is ook een prettige en veilige mobiliteitsstructuur, waarbij fietsers en voetgangers de ruimte krijgen. Hier is verder op ingegaan in paragraaf 2.5.
2.7.5 Toegankelijke duurzaamheid
Duurzaamheid draagt in allerlei verschijningen bij aan een prettige, gezonde, eerlijke en socialere samenleving. Duurzaamheid is namelijk niet alleen een technisch construct, het heeft tal van sociale componenten, nu en in de toekomst. Duurzaamheid mag dus niet iets zijn voor alleen diegenen die het zich kunnen veroorloven. Duurzaamheidsbeleid wordt ingezet om bijvoorbeeld energiearmoede terug te dringen en wooncomfort voor lagere inkomens te verhogen. Daarnaast liggen er meer indirecte kansen die we aangrijpen, zoals het betrekken van bewoners bij verduurzaming in de vorm van zinvol (vrijwilligers)werk. Net als bij alle andere ontwikkelingen in de gemeente Uithoorn worden er bij verduurzamingsmaatregelen koppelingen gezocht met andere opgaven. Maatregelen voor gezondheid in de openbare ruimte kunnen bijvoorbeeld gecombineerd worden met opgaven als klimaatadaptatie en biodiversiteit.
2.7.6 Landschappelijk en cultureel erfgoed als drager van de ruimtelijke structuur
De gemeente Uithoorn bestaat uit een aantal gebieden met een eigen karakter: het oude dorp tussen de Amstel en de Thamerpolder, de veenweideontginningen met De Kwakel en het cultuurhistorische slagenlandschap en de 19e eeuwse Thamerpolder en Legmeerpolders. De deelgebieden worden aan elkaar geregen door een aantal oude dijken, inclusief de Vuurlijn en de Boterdijk, en waterlopen zoals de voormalige ringsloot van de Thamerpolder. Dit zijn ook de lijnen waarlangs zich de meeste monumentale bebouwing bevindt. Dit landschappelijk erfgoed dient behouden en versterkt te worden door waar mogelijk historische lijnen in samenhang te brengen en te versterken. De ambitie is om de ruimtelijke context, zoals bijvoorbeeld het erf, waterstructuren en beplantingen of juist doorzichten en ensemblewaarde rond een monument, een belangrijkere positie te geven.
De belangrijkste cultuurhistorische drager binnen Uithoorn is UNESCO Werelderfgoed de Stelling van Amsterdam. Hierbij gaat het niet alleen om de liniedijken (waaronder de Vuurlijn) en de forten, maar ook om de manier waarop zij in het landschap liggen en aan elkaar verbonden zijn. Op plekken waar meer ruimte is (aan beide zijden van de Vuurlijn) is, naast de lijn zelf, het zicht hierop en de beleving ervan van belang. Uithoorn werkt hieromtrent samen met de provincie, die trekker is van uitvoeringsprogramma liniedijken Stelling van Amsterdam. De gemeente Uithoorn is verplicht om de bescherming van dit erfgoed te regelen. Uithoorn bestaat voor een groot deel uit naoorlogse bebouwing. Deze bebouwing heeft geen monumentale status. Wel is de ambitie ook deze bebouwing met zorgvuldigheid vanuit potentiële monumentale waarde te behandelen. Ontwikkelaars en eigenaars worden uitgedaagd (voor- en naoorlogs) erfgoed te versterken bij transformatie. Voorbeelden van interessante naoorlogse objecten zijn het voormalige Cindu-hoofdkantoor, het IBM kantoor in park Krayenhoff en de rug-aan-rug bebouwing in Legmeer.

2.7.7 Uitgangspunten
-
Sociale en maatschappelijke voorzieningen zijn goed bereikbaar voor iedereen die hiervan gebruik maakt.
-
Bij alle ontwikkelingen wordt gestreefd naar een inrichting die bewegen en ontmoeten stimuleert, bijvoorbeeld door fijne fiets- en wandelpaden, ontmoetingsplekken nabij voorzieningen en waar mogelijk het geschikt maken van de openbare ruimte rond scholen voor buitenactiviteiten.
-
Het huidige niveau aan maatschappelijke voorzieningen mag niet achteruit gaan bij nieuwe ontwikkelingen, en bij een toename aan woningen dient het aanbod aan maatschappelijke voorzieningen naar behoefte mee te groeien.
-
Bij woningbouw wordt ingezet op voldoende woningen voor mensen met een kwetsbare positie in de samenleving.
-
Veel gezondheidsvoorzieningen zitten nu gebundeld in de Waterlinie. De bereikbaarheid van dit gezondheidscentrum is een aandachtspunt. Een mogelijke oplossing voor de moeilijke bereikbaarheid van het gezondheidscentrum is dat de dienstverlening van deze eerste lijnshulp meer in de wijk(en) wordt georganiseerd.
-
De principes voor het beschermen van waardevolle gebieden (UNESCO-werelderfgoed, cultuur-historische landschappen, monumenten) vormen randvoorwaarden en/of uitgangspunten bij alle ruimtelijke ontwikkelingen.
-
Gebiedskenmerken vormen de basis voor alle ruimtelijke ontwikkelingen in de woonwijken en werkgebieden. Hierbij wordt een gebiedsindeling toegepast, gebaseerd op de landschappelijke structuur en ontstaansgeschiedenis van de betreffende wijk of werkgebied.
-
In het historische slagenlandschap komt geen nieuwe bebouwing.
-
Bij ontwikkeling van de Amstelzone wordt de historische waterlijn aan de rand van de Thamerpolder hersteld en toegankelijk gemaakt.
-
Amsteldijk, Boterdijk, Schans en Drechtdijk als dorpse structuurdragers; de Vuurlijn, Ringdijk en het slagenlandschap als landschappelijke structuurdragers.
-
Diversiteit en karakter van de landschappelijke dragers versterken in samenhang met ruimtelijke ontwikkeling groenstructuur en recreatieve structuur in gebiedsvisie Boterdijk-Vuurlijn.
-
De ruimtelijke context van monumenten krijgt een belangrijkere rol in de redegevende omschrijving van monumenten.
-
Herwaardering naoorlogse bebouwing: eigenaars en ontwikkelaars worden uitgenodigd dit erfgoed te versterken. Mogelijk koppelt de gemeente hier randvoorwaarden aan; dit wordt per object beoordeeld.
3 Koers: Karakteristieke gebieden verbonden door een groenblauw netwerk
3.1 Ruimtelijke samenhang
De gemeente Uithoorn bestaat uit verschillende gebieden met een eigen gezicht. De ontstaansgeschiedenis van Uithoorn bepaalt het verschil tussen het oude dorp op de oeverwal van de Amstel, de woonwijken en tuinbouw in de droogmakerijen en verdere dorpse uitbreidingen in het veenweidegebied. Dit hoofdstuk gaat in op de ambities en ontwikkelingen per deelgebied, maar start met de verbinding en samenhang tussen deze gebieden: het groenblauwe raamwerk. Dit raamwerk van groengebieden, waterlopen en oude dijken zorgt voor ruimtelijke samenhang en onderlinge verbinding tussen de diverse wijken in Uithoorn en De Kwakel.
3.2 Groenblauwe Hoofdstructuur
3.2.1 Historische en nieuwe lijnen brengen de wijken samen
De verschillende gebieden van Uithoorn, ieder met een eigen karakter, worden afgewisseld met historische lijnen en verbindingen zoals sloten, plantsoenen en beplantingen langs wegen en oude waterstructuren. We noemen dit groenblauwe verbindingen, naar de kleuren van planten en water. Op de luchtfoto van Uithoorn is duidelijk te zien hoe deze structuren, zoals de Vuurlijn, de busbaan of het Libellebos, samen met oude linten als de Boterdijk en de Thamerweg als het ware de wijken aan elkaar smeden. Zij verbindt praktisch de voordeur van onze inwoners met de Amstel, het Groene Hart en de Westeinderplassen, als onderdeel van de Hollandse Plassen.
Deze structuur vormt zo de verbinding tussen de verschillende wijken. De ontwikkeling van groene en waterrijke verbindingen in samenhang , de ‘Groenblauwe Recreatieve Zone’, versterkt de ruimtelijke kwaliteit en samenhang van Uithoorn als geheel. Niet alleen ruimtelijk, maar ook functioneel, bijvoorbeeld door middel van prettige doorgaande fietsroutes en mogelijk vaarroutes. Zo kan je op een prettige manier van je voordeur naar het buitengebied fietsen of wandelen. Hiermee wordt ook invulling gegeven aan de regionale ambitie om grotere groenstructuren, zoals de Westeinderscheg en de Amstelscheg (zie kaart), met elkaar te verbinden.

3.2.2 Water en groen bieden ruimte voor andere opgaven
Er liggen kansen om invulling te geven aan opgaven op het gebied van duurzaamheid, te weten klimaatadaptatie en biodiversiteit, door middel van een groenblauwe structuur. Grasveldjes, groenstroken en plantsoenen zijn vaak verweven met en doorsneden door infrastructuur. Daardoor is het soms versnipperd. Door traditioneel beheer is het groen in de wijken gecultiveerd met weinig natuurwaarde. Beheermaatregelen, bijvoorbeeld minder intensief beheren, en ook in samenwerking met bewoners, versterken de beleving en functionaliteit van deze structuur. Het versterken en verbinden van groene en blauwe structuren in gemeente Uithoorn is geen doel op zich, maar draagt bij aan de ambities die genoemd zijn in hoofdstuk 2 met betrekking tot klimaatadaptatie, gezondheid, biodiversiteit en een prettige en veilige buitenruimte.
In de gebiedsvisie ‘Groene en Recreatieve Verbindingszone’ tussen de Westeinderplassen en de Amstel (GRZ) is beschreven hoe de groenstructuur versterkt kan worden door deze meer als één geheel te bezien: van groot (Vuurlinie-Boterdijk) naar klein (het plantsoen voor de voordeur). Hieruit volgt de keuze welk groen welke functie heeft: meer robuuste ecologische verbindingen op groter schaalniveau, en goed onderhouden, hoogwaardig groen in de woonwijken. Binnen deze structuur wordt onderzocht hoe bijvoorbeeld waterberging en biodiversiteit verbeterd kunnen worden (versterking van het natuurlijk kapitaal) en hoe de effecten van doorsnijdingen, zoals bijvoorbeeld door infrastructuur, verminderd kunnen worden. Waar mogelijk wordt met behulp van de Ruimte-voor-Ruimte-regeling het verplaatsen/saneren van bedrijvigheid en kassen bevorderd, voor zover deze een belemmering vormen voor de gewenste ontwikkelingen in het gebied en de eigenaren hiertoe bereid zijn. Hier is mogelijk beperkt ruimte voor woningbouw.
3.2.3 Randvoorwaarden voor ontwikkeling
De groenblauwe hoofdstructuur bestaat uit verschillende karakteristieken, die nader uitgewerkt zijn in de gebiedsvisie GRZ. Per karakteristiek verschillen de randvoorwaarden voor ontwikkeling:
-
Landschappelijke gebieden (in de GRZ de ‘landschappelijke entiteiten’) binnen en buiten gemeente Uithoorn, zoals het veenweidegebied, de Westeinderplassen, Bovenkerkerpolder en de Amstel worden verbonden en (voor zover binnen de gemeente gelegen) behouden en versterkt. In deze gebieden spelen biodiversiteit en landschappelijke waarden de hoofdrol: er vindt geen woningbouw plaats. Overige ontwikkelingen dienen bij de dragen aan de kwaliteiten van en ambities voor het gebied.
-
De stedelijke groengebieden langs de Vuurlijn en het Zijdelmeer, het Libellebos en groengebieden rond bestaande sportvoorzieningen: in deze multifunctionele gebieden is ruimte voor natuurontwikkeling, sport en recreatie, klimaatadaptatie, energieopwekking (binnen de zoekgebieden voor energieopwekking in de Regionale Energiestrategie) en mogelijk voedselproductie. Er zijn beperkt ontwikkelmogelijkheden, mits deze een bijdrage leveren aan de ruimtelijke kwaliteit en eerder genoemde ambities.
-
Ruimtelijk raamwerk langs de wijken, voornamelijk bestaand uit historische dijken en waterlopen als de Stelling van Amsterdam (inclusief forten en de Vuurlijn), Boterdijk, Amsteldijk, Thamerweg en ringvaart, en bestaand uit stevige groene lijnen zoals langs de Maximalaan, de Amsteltram en langs de Faunalaan. Hier ligt de nadruk op een goede ontsluiting voor langzaam verkeer, recreatief verkeer en vertraagde waterafvoer waar mogelijk. Ook is er ruimte voor nieuwe groene lijnen, zodat stedelijke groengebieden als het Libellebos beter verbonden worden met de omgeving. Aanpassingen in deze ruimtelijke structuur moeten getoetst worden op hun effect op functies als biodiversiteit en het functioneren van het watersysteem.
-
Groene haarvaten tot de voordeur gaat over het verbinden van bestaande groene en blauwe structuren binnen de wijken, zodat deze ecologisch, recreatief en voor waterbeheer beter gaan functioneren. Aandachtspunt binnen de woonwijken is een goed beheer en inrichting van het groen. Belangrijke aspecten hierbij zijn mogelijkheden voor ontmoeting en vrijetijdsbesteding, sociale veiligheid, voorkomen van wateroverlast en het tegengaan van het hitte-eilandeffect (het opwarmen van stedelijk gebied doordat verharding heter wordt; dit heeft negatieve gezondheidseffecten). Functiecombinaties met stedelijke functies (zoals parkeren of bebouwing) is mogelijk, mits de aangelegde verharding ter plekke gecompenseerd wordt en de haarvatenstructuur als netwerk in stand blijft.

3.3 Versterken diversiteit en identiteit van de deelgebieden
3.3.1 Gebiedskenmerken als basis voor ontwikkeling
Deze omgevingsvisie kent een gebiedsgerichte benadering. We onderscheiden daarbij drie deelgebieden: Dorp aan de Amstel, het Hoge Land en de Droogmakerijen. Deze drie gebieden hebben ieder hun eigen ontstaansgeschiedenis en ruimtelijke kenmerken. Daarnaast hebben de deelgebieden functionele samenhang, bijvoorbeeld met betrekking tot klimaatadaptatie. De ambities per deelgebied op hoofdlijnen zijn in paragraaf 3.3.2, 3.3.3 en 3.3.4 te lezen.

3.3.2 Dorp aan de Amstel
-
Behouden en versterken van een economisch sterk en levendig Dorpshart waarin winkels en horeca geconcentreerd worden.
-
Amstelzone is een onderzoeksgebied voor transformatie tot een aantrekkelijk en stedelijk woon-werkgebied, verbonden met het omliggende groen en gebruik makend van de prachtige ligging aan de Amstel.
3.3.3 Het Hoge Land
-
Het behouden en toekomstbestendig maken van het Open veenweidegebied in het unieke slagenlandschap.
-
Het versterken van de dorpse karakteristiek en samenhang in De Kwakel, inclusief de lintbebouwing.
-
Het behouden en versterken van de karakteristieke lintbebouwing.
-
Het toekomstbestendig maken van Meerwijk, in deze wijk specifiek in relatie tot klimaatadaptatie en bodemdaling.
-
Herontwikkelen van het Ruilverkavelingsgebied volgens de recent vastgestelde gebiedsvisie.
-
Behouden en versterken van het Zijdelmeer en Boterdijk-Vuurlijn, dat via recreatieve routes verbonden is aan de groenblauwe hoofdstructuur.
3.3.4 De Droogmakerijen
-
Een prettige woonomgeving in Thamerdal, de Legmeerpolders en de woonwijken van De Kwakel, met speciale aandacht voor veiligheid, leefbaarheid, gezondheid en het tegengaan van wateroverlast en het hitte-eilandeffect.
-
Toekomstbestendig maken van de Greenport (het Kernglastuinbouwgebied en het Flora-Hollandterrein) en het TPN-terrein, waar we ons naast de ambities uit de gebiedsvisie kernglastuinbouwgebied specifiek richten op energiegebruik en -opwekking.
-
Herstructurering van Bedrijventerrein Uithoorn met focus op toekomstbestendigheid (circulariteit), behoud van werkgelegenheid in Uithoorn en ruimte voor omliggende (toekomstige) bewoning en versterking groenstructuren door effectief ruimtegebruik en onderzoek naar milieuzonering.
-
Ontwikkeling van de multifunctionele Groenblauwe Recreatieve Zone in het Open gebied Noorder-Legmeerpolder met ruimte voor recreatie, natuur, voedselproductie en energieopwekking.
3.4 Dorp aan de Amstel
3.4.1 Inleiding
Het Dorp aan de Amstel is het oudste deel van de kern Uithoorn. Tegelijkertijd heeft het een grote ontwikkeldynamiek. Het wordt gekenmerkt door dichte maar dorpse bebouwing georiënteerd op de dijk. Het gebied ligt tussen de Amstel en de historische polderrand die nu de Laan van Meerwijk – Thamerlaan – Thamerweg – Achterom en (buiten de gemeentegrenzen) Ringsloot omvat. Het voormalige Cindu-terrein bevindt zich grotendeels binnen dit gebied. Er liggen kansen om deze historische lijn – die oorspronkelijk doorliep tot Ouderkerk aan de Amstel – weer herkenbaar te maken en te ontsluiten voor langzaam verkeer. Het dijkdorp kent twee sleutelgebieden met eigen ontwikkelingen: de Amstelzone en het dorpshart.
3.4.2 Dorpshart: concentreren van functies in een levendige omgeving
Deze ambities staan centraal voor het dorpscentrum:
-
een levendig dorpshart met voldoende dagelijkse voorzieningen zoals winkels en horeca;
-
versterking van de ruimtelijke samenhang en structuur van het dorpshart;
-
een prettige verbinding met omliggende wijken;
-
behoud en versterking van de relatie met de Amstel.
In 2010 is het Masterplan Dorpscentrum Uithoorn 2010-2030 vastgesteld. Het gebruik van het dorpscentrum en de visie op inrichting hiervan is aan verandering onderhevig, waardoor er een herziening komt. De ‘structuurlijnen’ uit het Masterplan vormen samen het historische raamwerk van het dorpshart. Deze lijnen zijn een heldere basis voor een herziening van het masterplan.
Een aantal van deze structuurlijnen is onderdeel van de groenblauwe hoofdstructuur op niveau van heel Uithoorn. Het Amstellint (de lintbebouwing aan rivier de Amstel) en de Stelling van Amsterdam (samen met de waterverbinding Amstel-Zijdelmeer) lopen door tot ver buiten het dorpshart. Zo wordt dus ook bijgedragen aan de ambitie voor behoud en versterking van het groenblauwe raamwerk dat de verschillende deelgebieden met elkaar verbindt.
Het dorpshart ligt grotendeels aan het ‘Dorpslint’ (het stuk tussen de twee uiteinden Marktplein en Amstelplein). Vernieuwing van dit lint is van groot belang. Zo kan bijgedragen worden aan de grote woningvraag, en tegelijkertijd ingezet worden op het oplossen van huidige leegstand. Zeker in de Dorpsstraat, als verbinding tussen de twee levendige uiteinden van het dorpshart Wilhelminakade en Amstelplein, is het van belang dat een levendige uitstraling behouden blijft. Daarom wordt ingezet op het behouden van een levendige ‘plint’ (de voorgevel van een gebouw op de begane grond, waar zich bijvoorbeeld winkelpuien bevinden) door voorzieningen te concentreren. De begane grond van winkels kunnen binnen deze concentratiezone niet omgezet worden naar woningen. Bij leegstand wordt altijd gezocht naar nieuwe publieke functies die bijdragen aan de vitaliteit en levendigheid. Ook wordt gestimuleerd dat winkels buiten de concentratiezone verplaatsen richting deze zone. Ontwikkelingen in de detailhandel laten een afnemende ruimtebehoefte zien voor non-foodwinkels in de komende decennia. Het verplaatsen van winkels en horeca uit omliggende straten naar de Dorpsstraat en het Marktplein is daarom gewenst. In deze omliggende straten van het dorpshart, buiten de concentratiezone, is daarom de omzetting van winkels naar woningen wel bespreekbaar. Bij alle initiatieven in dit gebied wordt gezocht naar functies die passen bij de beeldkwaliteit en stedenbouwkundige uitgangspunten die gelden voor dit gebied.

3.4.3 Amstelzone: ruimte voor vernieuwing in een gemengde omgeving
De Amstelzone ligt tussen het dorpshart en de Bovenkerkerpolder. Langs en door het gebied liggen oude structuurlijnen, zoals de Amsteldijk en de Thamerweg/Achterom. Hier is ruimte voor vernieuwing, met kansen voor zowel bedrijvigheid als wonen. Ontwikkeling van de Amstelzone hangt samen met herstructurering van bedrijventerrein Uithoorn. In dit gebied is een aantal vitale bedrijven gevestigd. Verder liggen er voornamelijk langs de Amstel grote delen braak, zoals het Cindu-terrein en het Rütgersterrein. De goed bereikbare ligging langs de Amstel, naast het dorpshart van Uithoorn en nabij de groene weiden van de Bovenkerkerpolder, maakt dit een geschikte plek voor stedelijke ontwikkeling. De combinatie van ligging en fysieke beschikbare ruimte maakt dit de belangrijkste locatie om bij te dragen aan de opgaven waar we voor staan: de woningbouwopgave, het behoud en de versterking van groene structuren tussen het dorpshart, de Bovenkerkerpolder, het Libellebos en de Amstel, en het creëren van meer en passende werkgelegenheid. Het is dus de ambitie om woningbouw in de Amstelzone mogelijk te maken.
Binnen deze ambitie wordt de ontwikkeling van de Amstelzone verder uitgewerkt. Gestreefd wordt naar een gebied waar wonen wordt gecombineerd met bedrijvigheid, binnen een levendig woonmilieu. Het dorpse karakter komt tot uiting in de groene structuur en verbinding met het Dorpshart; hier kan men ontspannen, sporten en de voorzieningen van het centrum opzoeken. Inwoners vinden in dit gebied ook werkgelegenheid, omdat vooral bedrijvigheid gestimuleerd wordt die past bij de identiteit van de regio. Thamen aan de Amstel, het gebied tussen de J.A. van Seumerenlaan en de Amsteldijk-Noord, kent een charmante, dorpse menging van wonen en werken. Bij eventuele ontwikkelingen in dit gebied wordt rekening gehouden met dit karakter.

3.5 Het Hoge Land
3.5.1 Inleiding
Het Hoge Land bestaat uit veengebieden die worden gekenmerkt door een dik veenpakket en veel water, waaronder het Zijdelmeer. De kavelstructuur (een zogenaamd ‘slagenlandschap’) is – zeker in het open veenweidegebied – zeer oud en historisch waardevol. In dit veenweidegebied wordt vooral ingezet op het versterken van de natuurwaarde en het toekomstbestendig maken van het watersysteem. Hier is geen ruimte voor woningbouw. De ruilverkavelingszone is een historische ontginning waar een herstructurering plaats gaat vinden met mogelijkheden tot beperkte woningbouw, waarbij de historische structuren gerespecteerd moeten worden. Ook De Kwakel bevindt zich grotendeels in het Hoge Land. We behouden en versterken de levendige kern van De Kwakel. Belangrijke uitdaging in het veengebied is de problematiek rond bodemdaling. Voor De Kwakel en Meerwijk wordt onderzocht wat de consequenties zijn en welke aanpak op termijn nodig is.

Sleutellocaties:
3.5.2 Zijdelmeer en ‘Tussen Boterdijk en Vuurlijn’: ruimte voor groene voorzieningen en recreatie
De typische vorm van Uithoorn wordt bepaald door de historische aanwezigheid van de Stelling van Amsterdam en de ligging aan de Amstel. Deze kwaliteiten worden verder uitgebouwd door een sterke groene en recreatieve verbinding te maken richting de Westeinderscheg: de Groenblauwe Recreatieve Zone. Het gebied tussen Vuurlijn en Boterdijk ligt in deze zone. Ambitie is om de groene kwaliteit in dit gebied te versterken. Daarnaast moet het beter verbonden worden met de omgeving, zowel voor groen en water, als voor avontuurlijke recreatie. Ook het Zijdelmeer is hier onderdeel van. Dit gebied is in eerste plaats een natuurgebied dat behouden en versterkt dient te worden. Daarnaast zijn opgaven de recreatieve ontsluiting en een kwalitatieve groenblauwe verbinding richting de Amstel.
3.5.3 Slagenlandschap: behouden en toekomstbestendig maken
Het historische slagenlandschap bevat één van de grote open landschappelijke gebieden van Uithoorn, en heeft een grote cultuurhistorische- en natuurwaarde. Bovendien zorgt het groene karakter van dit gebied ervoor dat Uithoorn en De Kwakel nog niet volledig aan elkaar gegroeid zijn. De waarde van dit gebied wordt behouden en waar mogelijk versterkt. Buiten de bebouwingslinten vindt dus geen woningbouw plaats; binnen de linten geldt voor woningbouw de Ruimte-voor-Ruimte-regeling. Het is eveneens belangrijk dat doorzichten vanaf de linten behouden blijven. Hierbij wordt het provinciale beleid gevolgd en wordt gekeken naar de kwaliteiten van het slagenlandschap. Ontwikkelingen dienen bij te dragen aan de kwaliteiten van en ambities voor het gebied. Er liggen grote kansen voor verhoging van de natuurwaarde, voornamelijk in relatie tot waterbeheer. Het tegengaan van bodemdaling is een opgave, niet alleen vanwege mogelijk wateroverlast in de aanliggende wijken Meerwijk en De Kwakel, maar ook vanwege de CO2- en methaanuitstoot die dit teweegbrengt. Een integrale benadering van landschap en woongebied is dus van belang, zo wordt niet alleen goed gestuurd op de natuurwaarden van het slagenlandschap, maar ook rekening gehouden met de directe woonomgeving van inwoners.
3.5.4 Ruilverkavelingsgebied
Het Ruilverkavelingsgebied is een karakteristiek, kleinschalig gebied dat het verdient om de aanwezige landschappelijke kwaliteiten te behouden. Mede door schaalvergroting in de glastuinbouw staan deze kwaliteiten onder druk. De ambitie is om het westelijke deel verder te ontwikkelen als tuinbouwgebied en het oostelijk deel met de Ruimte-voor-Ruimte-regeling te transformeren naar een veelzijdig landelijk gebied met ook wat ruimte voor nieuwe individuele woningen tussen de lintbebouwing. Transformatie vindt hier perceelsgewijs plaats en er zijn nadere ruimtelijke voorwaarden vastgesteld die het landschappelijke karakter behouden en versterken.
3.6 De Droogmakerijen
3.6.1 Inleiding
De Droogmakerijen zijn voormalige meren en plassen die zijn drooggelegd. Hier heeft, vooral sinds de jaren ’70, de meeste verstedelijking plaatsgevonden. Zowel het bedrijventerrein, de meeste woonwijken als het glastuinbouwgebied liggen in de droogmakerijen. Dit is het gevolg van de (van oorsprong) grote bodemgeschiktheid voor bebouwing. De oorspronkelijke polderstructuur is in het glastuinbouwgebied nog goed zichtbaar. Met de bouw van uitbreidingswijken is deze structuur grotendeels verloren gegaan. Hier is een nieuwe structuur ontstaan met haar eigen kwaliteiten, geënt op het functioneren van de woonwijken en met een stevige groenstructuur.


Sleutellocaties:
3.6.2 Woongebieden Thamerdal, de Legmeerpolders en de woonwijken van De Kwakel
De woongebieden in de Droogmakerijen worden gekenmerkt door wijken met voornamelijk grondgebonden gezinswoningen en kleinschalige concentraties van voorzieningen. Langs noordoostrand van Zijdelwaard staat ook hoogbouw. Langs en door de wijken ligt een doorgaande structuur van plantsoenen, parken en water. Aan de zuidkant gaat het gebied haast naadloos over in het Libellebos.
Thamerdal is het oudste deel. Deze wijk is karakteristiek vanwege haar opbouw als tuinstad met laagbouw en veel openbaar groen. Hier ligt een breed scala aan opgaven, bijvoorbeeld met betrekking tot wateroverlast maar ook sociale aspecten. Deze opgaven worden op een integrale wijze aangepakt. In Zijdelwaard is het vele groen de grootste kracht, maar hier liggen ook sociale opgaven en soms draagt de groene inrichting bij aan een minder veilig gevoel. Hier wordt in samenhang met andere opgaven verder invulling aan gegeven. De fysieke leefomgeving is een onderdeel en speelt een rol in de integrale aanpak die nodig is. Zo kan buitenruimte met specifieke inrichtingen bijvoorbeeld uitnodigen tot beweging of ontmoeting. Vanuit de pijlers wordt de ambitie geformuleerd met een integrale aanpak te zorgen voor (sociale) gezondheid en veiligheid.
Voor de overige woongebieden in de Legmeerpolders en De Kwakel geldt dat er mogelijkheden zijn voor transformatie en vernieuwing, maar dat dit zeer zorgvuldig plaats moet vinden, passend bij het karakter van de omgeving. Op kleinschalige locaties, zoals rond haltes van de HOV-lijn of bij voorzieningen, bestaat de mogelijkheid woningen toe te voegen door in een iets hogere dichtheid te bouwen. Bijvoorbeeld door boven een winkelcentrum enkele verdiepingen met appartementen te realiseren. Hierbij geldt de randvoorwaarde dat doorgaande groene structuren niet geblokkeerd worden. Bij alle ontwikkelingen geldt dat vernieuwing een bijdrage moet leveren aan de in deze omgevingsvisie geformuleerde ambities met betrekking tot ruimtelijke kwaliteit.
3.6.3 Bedrijventerrein Uithoorn
Het bedrijventerrein Uithoorn bevat veel verschillende bedrijven en voorzieningen die belangrijk zijn voor de gemeente. Het is daarom de ambitie de vitaliteit van dit gebied verder te versterken. Met inachtneming van de ambities voor de Amstelzone worden de mogelijkheden onderzocht voor een efficiënter ruimtegebruik van het bestaande bedrijventerrein, waardoor er mogelijk meer bedrijven passen of er ruimte vrijkomt voor nieuwe functies of een betere openbare ruimte. Ook wordt ingezet op efficiënter ruimtegebruik en herstructurering van de bedrijvigheid met betrekking tot milieuzonering. Zo ontstaat extra ruimte voor woningbouw omliggend aan het bedrijventerrein.
Ruimtelijk vormt het bedrijventerrein nu een barrière tussen vele ruimtelijke kwaliteiten van Uithoorn: de Amstel, het dorpshart, het Libellebos en de groene verbinding door de Bovenkerkerpolder. Om deze reden heeft de gemeente de ambitie om in te zetten op betere recreatieve verbindingen door het gebied voor bewoners, met mogelijk betere ecologische waarde. Bij het gebied Tussen Poelweg-Noorddammerweg is de transformatie van glastuinbouw naar gewone bedrijvigheid, zoals vastgesteld in de gebiedsvisie Tussen Poelweg-Noorddammerweg, gaande.
3.6.4 Greenport / Kernglastuinbouwgebied
Uithoorn is een gemeente met veel glastuinbouw en is onderdeel van Greenport Aalsmeer. Ook een deel van de bloemenveiling bevindt zich binnen de gemeentegrenzen. Ruimtelijk wordt voortgebouwd op de structuur van polderlinten en is er ruimte voor beperkte schaalvergroting. Daarnaast is de ambitie dat glastuinbouw in Uithoorn toekomstbestendig is, zowel economisch als met betrekking tot klimaat, energie, etc. Aan de zuidkant van het kernglastuinbouwgebied is een deel onbebouwd; hier zijn twee gebieden aangewezen als zoekgebied voor energieopwekking in de Regionale Energiestrategie (RES). Mochten hier ontwikkelingen plaatsvinden, dan moeten deze geschikt zijn voor het opwekken van zonne-energie op het dak. Zie ook paragraaf 3.6.6.
3.6.5 Open gebied Noorder-Legmeerpolder
In dit gebied, onderdeel van de Groenblauwe Recreatieve Zone, wordt een groen raamwerk ontwikkeld waarin diverse functies, al dan niet gecombineerd, mogelijk zijn, zoals voedselproductie, recreatie en energieopwekking. Het zicht vanaf de Vuurlijn, de belangrijkste recreatieve en historische verbinding, is hier belangrijk. Ontwikkelingen binnen 100 meter van deze lijn zijn aan strenge voorwaarden verbonden conform de provinciale verordening Noord-Holland, en buiten deze zone dienen ontwikkelingen een positieve bijdrage te leveren aan de beleving vanaf de Vuurlijn. In dit gebied ligt een RES-zoekgebied voor de opwekking van zonne-energie (zie 3.6.6). Uitgangspunt is dat alle economische activiteiten een bijdrage leveren aan de ruimtelijke kwaliteit en andere gebiedsopgaven zoals biodiversiteit en klimaatadaptatie. Bij al deze mogelijke transformaties dienen de voorwaarden behorend bij UNESCO-werelderfgoed de Stelling van Amsterdam in acht genomen te worden, evenals de uitgangspunten die zijn geformuleerd in de gebiedsvisie Groene en Recreatieve Verbindingszone.
3.6.6 RES-zoekgebieden
Uithoorn behoort tot de RES-Regio Noord-Holland Zuid. Er zijn drie zoekgebieden voor zonne-energie aangewezen, allen in de Droogmakerijen: tussen de N196 en de Poelweg (in de Noorder Legmeerpolder); aan de Hoofdweg (mogelijk in combinatie met windenergie), helemaal in de zuidwestpunt van het glastuinbouwgebied; en het Kernglastuinbouwgebied De Kwakel. De hoeveelheid opwekking is niet gespecificeerd in de Herijking RES 2024 Noord‑Holland Zuid. De ambitie is om een stevige bijdrage te kunnen leveren. Naast bovengenoemde randvoorwaarden geldt een aantal specifieke ruimtelijke voorwaarden voor deze zoekgebieden die hieronder per deelgebied zijn benoemd. NB: onderstaande kaartjes bevatten ruimtelijke principes en worden verder uitgewerkt in het omgevingsplan.
Het RES-zoekgebied Noorder Legmeerpolder is onderdeel van de gebiedsvisie Groene en Recreatieve Verbindingszone (GRZ). In de gebiedsvisie zijn ruimtelijke principes vastgesteld voor het toepassen van zonne-energie. Uitgangspunt is een stevig en samenhangend casco van groenblauwe lijnen dat de oude polderstructuur volgt. Ten behoeve van een consistente ruimtelijke structuur is op basis van de gebiedsvisie GRZ bepaald dat zonnepanelen op minstens 100 meter van de Vuurlijn gerealiseerd dienen te worden. Door het zoekgebied loopt conform de gebiedsvisie GRZ een lijnvormig park en ligt er een strook met andere functies langs de Vuurlijn; hier dient voldoende ruimte voor vrijgehouden te worden. Zo blijven er drie vakken over (rood gearceerd) waarbinnen zonne-energie opgewekt kan worden. Zonnepanelen dienen natuurinclusief toegepast te worden. Dat betekent dat er ruimte wordt gemaakt voor biodiversiteit, en dat onder de panelen voldoende water en zonlicht valt om beplanting te laten groeien en bodemdegradatie te voorkomen. Mocht er bebouwing in het zoekgebied gerealiseerd worden, dan dienen de daken geschikt te zijn voor het opwekken van zonne-energie. Het gebied ligt binnen het gebied dat is aangewezen als UNESCO-werelderfgoed (‘erfgoed van uitzonderlijke universele waarde’), waardoor ook aan de voorwaarden die hier bij horen voldaan moet worden. Dat betekent dat er per project maximaal 20 hectare zonne-energie opwekking mag zijn, en dat er minstens 600 meter tussen twee projecten moet zitten. Daarnaast zijn er in de partiële herziening van de provinciale omgevingsverordening NH2020 voorwaarden opgenomen met betrekking tot het plaatsen van hekken rond energieopwekking.

Het zoekgebied aan de Hoofdweg hoort ruimtelijk bij het glastuinbouwgebied en ligt deels in Uithoorn en deels in Aalsmeer. Daarom worden randvoorwaarden voor dit gebied in samenwerking met Aalsmeer vastgesteld. Windenergie is in beperkte mate mogelijk. Het gebied heeft nu een open zicht vanaf de Hoofdweg en Bilderdammerlaan. Bij ontwikkelingen moet rekening te houden worden met voldoende afstand tot deze wegen. Langs de Hoofdweg mag maximaal tot aan de rooilijn van de kassen zonne-energie gerealiseerd worden. Langs de Bilderdammerlaan en aan de Ringvaart moet minimaal vijf meter afstand tot de kwelsloot en/of de dijkteen (de rand van de dijk) gehouden worden. Hier is het mogelijk combinaties met voedselproductie (agrivoltaics) of andere innovatieve ruimtelijke combinaties toe te passen. Bij traditionele opstellingen dienen de zonnepanelen zo laag mogelijk geplaatst te worden, zodat vanaf de Bilderdammerlaan over de panelen heen gekeken kan worden.

Het Kernglastuinbouwgebied De Kwakel is recent als derde zoekgebied voor grootschalige duurzame energieopwekking opgenomen in de Regionale Energiestrategie (RES) van de gemeente Uithoorn. Het gebied is gelegen aan de zuidzijde van de gemeente, binnen een overwegend open en agrarisch landschap, en biedt ruimtelijke mogelijkheden voor de opwekking van windenergie. Momenteel vindt een onderzoek plaats naar de ruimtelijke, technische en maatschappelijke haalbaarheid van energieopwekking binnen dit gebied. De uitkomsten van dit onderzoek zullen richtinggevend zijn voor eventuele vervolgstappen en de verdere invulling van dit zoekgebied.
4 Uitvoeringsagenda
4.1 Inleiding
De opgaven in deze omgevingsvisie moeten uiteraard waargemaakt worden. De Omgevingswet heeft daarvoor een aantal instrumenten beschikbaar. Deze omgevingsvisie geeft ambities, opgaven, kansen, dilemma’s en te maken keuzes weer. De hoofdlijnen vormen daarna de basis voor de uitvoering. Dit hoofdstuk geeft een doorkijk naar de uitvoering. We gaan in op de noodzaak om flexibel te zijn bij de uitvoering van de omgevingsvisie en ons snel aan te kunnen passen als ontwikkelingen daarom vragen. We zijn echter ook vasthoudend en consistent als het gaat om het bereiken van onze waarden en kwaliteiten aangegeven in de visie alsmede het realiseren van onze maatschappelijke opgaven.
4.2 Beleidscyclus
Het instrument omgevingsvisie is onderdeel van de gemeentelijke beleidscyclus. Voor gemeenten wordt voor de ontwikkeling van de leefomgeving onder andere gebruik gemaakt van twee andere instrumenten naast de omgevingsvisie, te weten (omgevings)programma’s en het omgevingsplan. De omgevingsvisie bevat géén details en gerichte maatregelen om de ambities waar te maken; deze worden in het instrument programma’s opgenomen. De doorwerking van de visie in regels voor de fysieke leefomgeving die voor iedereen juridisch bindend zijn, vindt plaats in het omgevingsplan. Het komt erop neer dat de omgevingsvisie in hoofdlijnen en in samenhang aangeeft waar initiatieven van bijvoorbeeld bewoners, maar ook de gemeente zelf, aan moeten voldoen, en aan welke ambities, opgaven en kwaliteiten ze moeten bijdragen. Daarbij hanteert de gemeente een ‘ja, mits’-gedachte. In de programma’s wordt dat verder uitgewerkt en weten initiatiefnemers hoe de gemeente invulling aan ambities en opgaven geeft. Dit geldt ook voor participatie. Een afwegingskader en participatie onder de Omgevingswet komt op hoofdlijnen terug in de omgevingsvisie. Hierbij gaat het om participatie georganiseerd door zowel de gemeente als derden. Dit wordt na vaststelling verder uitgewerkt in de participatieverordening. In het omgevingsplan zien initiatiefnemers wat er qua regelgeving op de betreffende locatie mogelijk of niet mogelijk is of waar afstemming met de gemeente of andere partijen nodig is. De instrumenten van de Omgevingswet volgen de beleidscyclus. In de figuur is de volledige beleidscyclus te zien.

Beleidsontwikkeling – omgevingsvisie
De omgevingsvisie geeft de opgaven en doelstellingen voor de langetermijnontwikkeling van de leefomgeving weer. Op basis van de omgevingsvisie wordt samenhangend beleid ontwikkeld om de ambities en doelstellingen verder in te vullen. De omgevingsvisie is zelfbindend, dat betekent dat het alleen verplichtingen schept voor de gemeente en niet voor de inwoners. Het is de basis voor alle beleid dat de leefomgeving aangaat en geeft daarmee invulling aan haar functie voor doorwerking. De omgevingsvisie is een gemeentelijk kader en geeft daarmee handvatten aan de gemeenteraad om te sturen op de aangegeven hoofdrichting en hoofdlijnen. Dit wordt vormgegeven in de volgende instrumenten. De omgevingsvisie gaat over het ‘wat’.
Beleidsdoorwerking – programma’s
De ambities en opgaven op hoofdlijnen, die in de omgevingsvisie staan beschreven, worden waargemaakt door concrete projecten en concreet beleid. In het verlengde van de omgevingsvisie stellen we integrale programma’s op met projecten voor gebieden of thema’s. De exacte inhoudelijke invulling hiervan moet nog worden bepaald. Programma’s gaan meer over de korte en middellange termijn en zijn daarmee relatief snel aan te passen aan nieuwe ontwikkelingen. In paragraaf 4.5 is richting gegeven aan onderwerpen die in de programma’s kunnen worden uitgewerkt. De programma’s gaan over het ‘hoe'.
Beleidsuitvoering – omgevingsplan
Het omgevingsplan vervangt de bestemmingsplannen. Er komt een omgevingsplan voor de hele gemeente dat de regels per locatie bevat over wat wel en wat niet mag. Het doel van het omgevingsplan onder de Omgevingswet is om op een flexibele manier met regels om te gaan. Belangrijk in het omgevingsplan zijn onder andere de volgende zaken:
1. Opstellen van omgevingswaarden op basis van de kwaliteiten die in de omgevingsvisie
staan. Omgevingswaarden bepalen de gewenste staat of kwaliteit van de leefomgeving.
2. Opstellen van regels op basis van de omgevingswaarden en de ambities uit de omgevingsvisie.
Het omgevingsplan gaat over het ‘waar’.
Terugkoppeling – monitoring en evaluatie
Het laatste kwadrant van de beleidscyclus is de terugkoppeling. Door middel van een op te zetten monitoring moet regelmatig gekeken worden hoe de beleidscyclus draaiende kan worden gehouden. De resultaten van de monitoring en evaluatie kunnen aanleiding zijn om aanpassingen te doen. Idealiter sturen we als dat nodig is eerst bij in het Omgevingsplan en de programma’s, maar zo nodig ook in de omgevingsvisie als ontwikkelingen daarom vragen.
4.3 Een flexibele en adaptieve omgevingsvisie
De omgevingsvisie is niet in beton gegoten. Het geeft de ambities en opgaven voor de lange termijn weer als stip op de horizon. Ontwikkelingen volgen elkaar echter steeds verder op en kunnenveel impact hebben. Dat kan er toe leiden dat ambities en opgaven in de omgevingsvisie aangepast moeten worden. Actualisatie van de omgevingsvisie is dan noodzakelijk. Dat betekent dat daar onder andere de samenleving bij betrokkenmoet worden. Dat ambities en opgaven geactualiseerd moeten worden ligt niet altijd voor de hand. De programma’s, die meer uitvoeringsgericht zijn, zijn kortcyclischer en gaan over de uitvoering van de komende jaren om te werken aan het invullen van de ambities in de omgevingsvisie. Dit maakt de omgevingsvisie flexibelen adaptief wanneerdaar aanleiding voor is.
Monitoring en evaluatie zijn belangrijk om de vinger aan de pols te houden. De verantwoordelijkheid voor de monitoring en evaluatie moet een plaats krijgen in de ambtelijke organisatie. Dit gaat er op hoofdlijnen als volgt uitzien:
-
Periodiek vindt er een evaluatie plaats van de omgevingsvisie. Hierin wordt uitgebreider stilgestaan bij het effect van ontwikkelingen op de gestelde ambities, opgaven en uitwerking. Ook wordt meegenomen hoe participatie en de rolverdeling tussen gemeentelijke overheid en samenleving loopt.
-
Zo nodig vindt een actualisatie van de omgevingsvisie plaats.
Hiermee zorgen we voor de nodige flexibiliteit waarbij effectief gebruik wordt gemaakt van het instrumentarium van de Omgevingswet. Zo zorgen we ervoor dat complexe keuzes die in de toekomst moeten worden gemaakt goed landen in de omgevingsvisie, wat daarmee geen statisch document wordt, maar meebeweegt met ontwikkelingen.
4.4 Strategische uitvoeringsagenda
Inwoners, ondernemers, organisaties en overheid zijn straks samen verantwoordelijk voor de realisatie van de doelen en opgaven uit de omgevingsvisie. Daarbij zoeken we een goede samenwerking binnen de gemeente Uithoorn en in de regio. Dit vergt een rolverdeling tussen overheid en samenleving waar op een zorgvuldige manier vorm aan moet worden gegeven. De omgevingsvisie is de basis voor uitwerking en uitvoering en nodigt nog meer uit om dit in gezamenlijkheid te doen. Een samenhangende integrale visie vergt ook een dito integrale uitvoering en realisatie. Dit is logischerwijs de consequentie van haar aard en functie als richtinggevend en bepalend voor doorwerking naar al het beleid en de uitvoering. Hieronder is richting gegeven aan hoe verdere uitvoering van ambities en opgaven uit de nog op te stellen omgevingsvisie kan worden vormgegeven.
-
We gaan werken aan de samenwerking tussen samenleving en overheid, waarbij het leven van bewoners en het dagelijks gebruik van de leefomgeving centraal staan. Initiatieven vanuit bewoners omarmen we als ze in lijn zijn met en bijdragen aan de ambities en opgaven in de omgevingsvisie.
-
We vertalen onderwerpen en opgaven uit de omgevingsvisie die we verder uit willen werken in het instrument programma’s.
-
We vertalen de omgevingsvisie in een juridisch bindend omgevingsplan inclusief omgevingswaarden.
-
De visie werkt door in al onze verordeningen, beleidsopgaven, subsidies en regels. Daarmee krijgt de visie slagkracht en betekenis voor ons handelen en de gemeenschap.
-
We gaan concreet met ambities aan de slag. Met woningcorporaties zullen bijvoorbeeld afspraken met betrekking tot duurzaamheid worden opgenomen in de prestatieafspraken. Onder andere een ruimtelijke strategie voor de warmtetransitie is hierin opgenomen (welke wijken eerst). Deze worden jaarlijks of tweejaarlijks geactualiseerd naar de nieuwste duurzaamheidsinzichten.
Binnen de gemeente Uithoorn is een groot aantal gebiedsvisies en thematische visies opgesteld in de afgelopen tijd en wordt nog een aantal opgesteld. De afgeronde visies zijn op een samenhangende manier overgenomen in deze omgevingsvisie. Voor de nog op te stellen visies wordt per visie gekeken of de ambities en opgaven anders zijn dan in de omgevingsvisie opgenomen. Indien dat het geval is moet een actualisatie van de omgevingsvisie plaatsvinden. Het meer uitvoerende deel van de visies gaat op in de programma’s en het omgevingsplan. Daarbij wordt het volgende als uitgangspunt genomen:
4.5 Mogelijke programma's voor uitvoering
De kracht van het instrument programma’s is dat het concreter dan de omgevingsvisie uitvoering kan geven aan de invulling van de ambities. Daarbij is het de essentie van de Omgevingswet om dat op een integrale wijze te doen. Dat betekent dat alle onderwerpen die de leefomgeving raken bij het opstellen van programma’s betrokken moeten worden. Bij het uitwerken van de omgevingsvisie in programma’s kan aan de volgende programma’s worden gedacht:
-
Specifieke gebiedsprogramma’s om ambities en opgaven voor een deel van de gemeente in te vullen, bijvoorbeeld de Amstelzone, de Groene en Recreatieve Zone, integrale aanpak Thamerdal.
-
Thematische programma’s om voor een bepaald thema de ambities en opgaven verder uit te werken, bijvoorbeeld wonen, energietransitie, klimaatadaptatie, gezondheid, erfgoed, mobiliteit etc.
Dat betekent dat er nog wel beleid wordt gemaakt, maar dat dit wordt ingevoegd in de nieuwe systematiek van de Omgevingswet.
Naast deze mogelijke programma’s is er ook een tweetal verplichte programma’s:
-
Verplichte programma’s als sprake is van (dreigende) overschrijding van een omgevingswaarde die door de overheid is opgelegd. Als een omgevingswaarde wordt overschreden moet een programma worden opgesteld hoe wel weer aan de omgevingswaarde gaat worden voldaan;
-
Verplichte programma’s die zijn voorgeschreven ter implementatie van EU-richtlijnen. Hierbij gaat het om bijvoorbeeld een actieplan Geluid en een Stroomgebiedsbeheerplan.
Het werken met het instrument programma’s vraagt een andere werkwijze van de gemeentelijke organisatie. Het betekent dat niet alleen vanuit het ruimtelijk domein plannen en initiatieven op basis van de omgevingsvisie ontwikkeld worden, maar dat vooraf ook andere domeinen daarbij betrokken worden. Een integraliteitsslag om alle opgaven in samenhang met elkaar te brengen is daarvoor nodig bij de gemeente. Het instrument programma’s is vormvrij en het is dus aan de gemeente om daar invulling aan te geven. Daarbij is er onder andere de keuze om één totaalprogramma op stellen met subprogramma’s of afzonderlijke programma’s.
4.6 Participatie bij de uitvoering van de omgevingsvisie
De omgevingsvisie geeft de gemeenteraad de mogelijkheid om op hoofdlijnen te sturen op welke ontwikkelingen er in de leefomgeving gewenst zijn. Hierbij is, volgens het idee van de Omgevingswet, meer ruimte voor initiatieven en moet participatie met omwonenden en stakeholders zorgvuldig gebeuren. Dit kan leiden tot een veranderende rol voor college en gemeenteraad. De omgevingsvisie biedt deze ruimte en stelt ambities, kaders en richtlijnen voor de ontwikkeling van de leefomgeving. Deze worden uitgewerkt en verdiept in de programma’s. De Omgevingswet schrijft voor dat het bevoegd gezag voor programma’s het college is. Deze zullen in samenspraak met de gemeenteraad tot stand komen. De gemeenteraad heeft een kaderstellende rol en vult deze in vanuit het omgevingsplan. Daarmee verankert de gemeenteraad de kaders en richtlijnen vanuit de visie en de doorvertaling in programma’s in het omgevingsplan inclusief omgevingswaarden. De gemeenteraad heeft dan de gewenste instrumenten in handen om de gestelde ambities in de omgevingsvisie waar te maken.
Dit geldt ook voor participatie. Een afwegingskader en participatie onder de Omgevingswet komt op hoofdlijnen terug in de visie. Hierbij gaat het om zowel participatie georganiseerd vanuit de gemeente als participatie georganiseerd door initiatiefnemers. De raad kan hen onder de Omgevingswet verplichten om zelf participatie te organiseren voorafgaand aan hun initiatief. De raad heeft inmiddels besloten om dat in bepaalde gevallen te doen. De Omgevingsregeling bepaalt verder dat initiatiefnemers bij hun aanvraag aan moeten geven óf zij wellicht eigener beweging al participatie hebben georganiseerd in hun omgeving. Is dat inderdaad het geval, dan moeten zij daarvan bij hun aanvraag een verslag overleggen bij wijze van indieningsvereiste. Doen ze dat niet, dan kan het college de aanvraag weigeren in te nemen. Na vaststelling van de visie zal bovendien voor de hele gemeente de participatienota verder uitgewerkt worden in een nieuwe participatieverordening.
Stimuleren van initiatieven
We stimuleren elkaar, dagen elkaar uit en geven elkaar de ruimte om binnen de gemeentelijke spelregels (bijvoorbeeld het omgevingsplan, participatieverordening, etc.) initiatieven te ondernemen. Dit betekent dat de gemeente plannen en initiatieven zoveel mogelijk faciliteert als die bijdragen aan de ambities van deze omgevingsvisie en daarmee aan een positieve ontwikkeling van de gemeente. Hoe meer initiatieven daaraan bijdragen, hoe beter. Dit zorgt ervoor dat het eigenaarschap van iedereen binnen de gemeente groeit. Dit zorgt er vervolgens voor dat de sociale samenhang, die al sterk is, nog extra versterkt kan worden, dat inwoners en organisaties worden gestimuleerd gezamenlijk verantwoordelijkheid te nemen en dat mensen naar elkaar omkijken.
Mogelijkheden en grenzen
We geven als gemeente ook aan wat niet mogelijk is. De omgevingsvisie maakt een aantal gebieden en locaties inzichtelijk waar we bestaande waarden handhaven en zeer terughoudend zijn met nieuwe ontwikkelingen. Dat betekent dat er aan de ene kant dus mogelijkheden zijn om als samenleving zelf initiatieven te ontplooien en dat er aan de andere kant ook strakke regels zijn waarbinnen dat moet plaatsvinden. Daarbij geldt het ‘ja,mits’-principe: we staan het als gemeente toe mits aan een aantal voorwaarden wordt voldaan. Zie daarvoor ook het afwegingskader in de volgende paragraaf 4.7. De regels werken we verder uit in het omgevingsplan naar aanleiding van de omgevingsvisie en in samenhang met de overige instrumenten die de gemeente kan inzetten voor de ontwikkeling van de leefomgeving. Een nog op te stellen afwegingskader moet de hoofdlijnen bieden voor nadere uitwerking. Alles is erop gericht om als gemeente voorspelbaar te zijn door te faciliteren, maar wel duidelijk de grenzen en mogelijkheden aan te geven.
Aan de hand van de omgevingsvisie werken we uit hoe we de ambities en opgaven gaan realiseren. Maar we gaan ook alvast met elkaar aan de slag. De omgevingsvisie is een flexibel instrument. Dus als we er gaandeweg achter komen dat iets anders moet, dan kunnen we onze ambities en opgaven bijstellen. In alle openheid en eerlijkheid. En iedereen heeft daar zijn of haar rol in. De gemeente faciliteert en stelt ambities en grenzen. Daarbinnen controleert de gemeenteraad of we werken volgens onze omgevingsvisie.
4.7 Afwegingskader voor de initiatieven vanuit de samenleving
De omgevingsvisie nodigt mensen uit om initiatieven te nemen. Daarbij gaan we uit van een ‘ja, mits’-principe. De initiatieven worden positief beoordeeld als ze voldoen aan de mogelijkheden en de grenzen die de omgevingsvisie biedt en ze bijdragen aan de ambities en opgaven die in deze omgevingsvisie zijn beschreven. Bij initiatieven maken we in onze beoordeling een afweging op basis van de mate waarin het initiatief bijdraagt aan het realiseren van de ambities uit de omgevingsvisie. Dit is een afweging en niet absoluut. In samenspraak met de initiatiefnemer wordt gekeken hoe een initiatief kan bijdragen aan het behalen van ambities en doelen. Daarbij hoeft niet aan alle punten uit het kader volledig voldaan te worden. De gemeente staat daarmee open voor initiatieven zoals dat ook beoogd wordt in de Omgevingswet. Uitgangspunt bij het toetsingskader is dat een initiatief aantoonbaar bijdraagt aan zoveel mogelijk van de volgende punten:
1. Een gezonde, duurzame en veilige leefomgeving waaronder:
o klimaatadaptatie
o energietransitie
o circulariteit
o leefbaarheid
o gezondheid
o maatschappelijke betrokkenheid
2. Het gewenste behoud en de gewenste versterking van de natuurlijke en ruimtelijke
kwaliteiten en het karakter van Uithoorn en De Kwakel zoals vastgelegd in deze omgevingsvisie;
3. Versterking van Uithoorn als levendige gemeente waar levendigheid en ondernemerschap
wordt afgewisseld met groen en ontspanning;
4. De keuzes en ontwikkelingsambities;
5. Een sociaal-economische vitale leefomgeving;
6. Een samenhangende (integrale) ontwikkeling van de leefomgeving door het zoveel
mogelijk combineren van functies die meerdere doelen dienen;
7. Een vitale regio doordat regionaal afgestemde ambities elkaar versterken.
Als algemene basisvoorwaarde geldt in alle gevallen dat een initiatief geen negatieve
gevolgen mag hebben voor de sociale en fysieke leefomgeving. Daarnaast is bij elk
initiatief participatie belangrijk. Wat daarvoor nodig is en wat er van initiatiefnemers
wordt verwacht, wordt aan de hand van de hoofdlijnen in deze omgevingsvisie de komende
tijd ontwikkeld.
4.8 Milieueffectrapportage
In afdeling 16.4 van de Omgevingswet is een bepaling opgenomen voor milieueffectrapportages (m.e.r), voor plannen en programma’s met aanzienlijke milieueffecten. Voor deze Omgevingsvisie is geen m.e.r. opgesteld. Dat heeft te maken met het karakter van deze visie. Er worden ambities uitgesproken, maar geen concrete locaties voor ruimtelijke ontwikkelingen aangewezen. Ook zijn geen concrete ontwikkelingen benoemd waarvoor in dit stadium een m.e.r.-procedure nodig is, zoals bedoeld in Bijlage V van het Omgevingsbesluit. De Omgevingsvisie schetst het kader waarbinnen ontwikkelingen mogelijk zijn. Daarbij spelen omgevingsaspecten, zoals omgevingsveiligheid, water, bodem, maar ook erfgoed, gezondheid en welzijn een rol. De Omgevingsvisie omschrijft dus de ontwikkelingen voor de leefomgeving op hoofdlijnen, waardoor eventuele milieueffecten op voorhand niet betrouwbaar zijn in te schatten. De beoordeling van eventuele milieueffecten komen bij de verdere uitwerkingen van programma’s, plannen en initiatieven aan de orde.
4.9 Kostenverhaal
Het uitgangspunt van het grondbeleid dat de gemeente hanteert, is regisserend grondbeleid met een duidelijke voorkeur voor een (pro)actieve rol. Dit vormt de basis voor de te voeren grondpolitiek in de gebiedsprogramma's. Binnen het grondbeleid speelt het kostenverhaal een belangrijke rol. De gemeente gaat daarom een beleidsnota kostenverhaal op- en vaststellen waarin de verschillende bijdragen zijn uitgewerkt en vastgesteld. Daarnaast zal de nota beleid en maatregelen bevatten voor het toepassen van het reguliere kostenverhaal zoals standaard overeenkomsten, standaard rekenmodellen van de kosten en vaste vergoedingen bij activiteiten met een geringe impact. Het beleid, de grondslagen en nadere (ruimtelijke) onderbouwing voor het kostenverhaal worden bij een volgende actualisatie opgenomen in de Omgevingsvisie, -programma's en -plan. Hiermee verwacht de gemeente duidelijk en transparant te zijn in de richting van de initiatiefnemers en leidt dit tot een efficiënt verloop van het ontwikkelproces. Hieronder staat alvast de wettelijke grondslag voor het kostenverhaal toegelicht.
De gemeente Uithoorn is net als alle gemeenten wettelijk verplicht om kosten te verhalen in het geval van in het Omgevingsbesluit aangewezen bouwactiviteiten. Zolang de kostenverhaalbijdrage niet is betaald, mag initiatiefnemer deze activiteiten in principe niet uitvoeren. Alleen kosten die op de in het Omgevingsbesluit opgenomen kostensoortenlijst staan, mag de gemeente in het Omgevingsplan verhalen. Het kan daarbij gaan om zowel kosten die gemeente moet maken binnen het plangebied, als daarbuiten. De maatstaf is dat de activiteit niet gerealiseerd kan worden, zonder dat de gemeente eerst deze plankosten maakt. Verder moet voldaan zijn aan de zogenoemde ppt-criteria: profijt, proportionaliteit en toerekenbaarheid. De locatie moet profijt hebben van de werken, werkzaamheden en maatregelen, de kosten moeten toerekenbaar zijn aan de activiteiten en de kosten moeten evenredig worden omgeslagen over alle gebieden die er profijt van hebben.
De gemeente is wettelijke verplicht om in het Omgevingsplan of in de beschikking kostenverhaalsregels op te nemen, tenzij het verhaal van de kosten anderszins verzekerd is. Dit laatste is het geval wanneer de gemeente met initiatiefnemers een privaatrechtelijke overeenkomst sluit over het verhaal van de gemeentelijke plankosten. Voorbeelden van plankosten die de gemeente kan verhalen zijn: het opstellen van bestemmingsplannen, het kopen of onteigenen tot en met het bouw- en woonrijp maken van gronden, het aanleggen van publieke voorzieningen, de kosten voor de inrichting van de openbare ruimte en de vergoeding voor nadeelcompensatie (voorheen planschade). Indien de gemeente de gronden aan een derde verkoopt die daarop bouwactiviteiten gaat plegen dan worden de kosten in beginsel opgenomen in de koopsom.
Wat onder de Omgevingswet verandert is de financiële bijdrage ter verbetering van de fysieke leefomgeving die gemeenten mogen vragen voor ruimtelijke ontwikkelingen elders in de gemeente. Onder de Omgevingswet zijn de activiteiten aangewezen waarover de gemeente in een overeenkomst bepalingen over financiële bijdragen kan opnemen. Daarbij wordt onderscheid gemaakt tussen een vrijwillige financiële bijdrage en een afdwingbare bijdrage.
Een vrijwillige financiële bijdrage is een bijdrage aan kosten van ontwikkelingen die niet onder het kostenverhaal vallen, maar wel bijdragen aan de kwaliteit van een gebied. In artikel 8.20 van het Omgevingsbesluit staan de activiteiten benoemd waarvoor de vrijwillige financiële bijdrage kan worden gevraagd. Ten opzichte van de reguliere kostenverhaalplichtige activiteiten zijn de activiteiten uitgebreid met de activiteiten onder b en c van het artikel. De ontwikkeling waarvoor een vrijwillige financiële bijdrage wordt gevraagd dienen in de Omgevingsvisie en de Omgevingsprogramma's te zijn benoemd. Daarin wordt ook het verband tussen de activiteit en de ontwikkeling waaraan wordt bijgedragen beschreven. De ontwikkelingen zijn gelegen in gebieden buiten het kostenverhaalsgebied waarin de activiteiten plaatsvinden.
Voorbeelden van de vrijwillige bijdrage zijn:
-
de voor woningbouw en bedrijventerreinen gewenste ontwikkelingen;
-
de aanleg van andere belangrijke maatschappelijke functies zoals:
Voor de afdwingbare financiële bijdrage gelden een aantal eisen:
-
De bijdrage wordt alleen geheven bij aangewezen activiteiten (artikel 8.20 Omgevingsbesluit).
-
Er is een grondslag in het omgevingsplan.
-
De bijdrage wordt geheven voor en besteed aan aangewezen categorieën ontwikkelingen ter verbetering van de kwaliteit van de fysieke leefomgeving.
Aanwijzing van een categorie in het omgevingsplan mag verder alleen als aan de volgende eisen is voldaan:
-
Er is een functionele samenhang tussen de activiteit en de ontwikkeling.
-
De bekostiging van de ontwikkeling is niet anderszins verzekerd, bijvoorbeeld via een overeenkomst.
De aangewezen categorieën voor de afdwingbare financiële bijdrage zijn:
-
landschap
-
natuurgebieden en landschappen
-
natuurgebieden gemeente
-
herstel van dier- en plantensoorten
-
infrastructuur
-
groen en recreatie
-
compensatie voor realiseren sociale woningbouw buiten de locatie
-
stedelijke herstructurering
Op grond van het omgevingsplan is het college dan vervolgens verplicht om de bijdrage op te leggen aan initiatiefnemers en zijn deze op hun beurt verplicht om de bijdrage te betalen. Maar ook hier geldt dus dat deze verplichting niet geldt wanneer de gemeente met initiatiefnemers al een overeenkomst is aangegaan over de financiële bijdrage. Dit laatste heeft de uitdrukkelijke voorkeur van de gemeente omdat het de mogelijkheid voor maatwerk inhoudt.
5 Colofon

De omgevingsvisie gemeente Uithoorn is opgesteld door de gemeente Uithoorn in samenwerking met Over Morgen en FABRICations.


Contactpersoon Over Morgen: Tjakko Dijk
Contactpersoon FABRICations: Rens Wijnakker
Bijlage I Kenschets Uithoorn en De Kwakel
1

Bijlage II Overzicht Informatieobjecten
- De Droogmakerijen
-
/join/id/regdata/gm0451/2025/77500b8327e942ac9e48d71a6627281b/nld@2026‑03‑03;13074552
- Dorp aan de Amstel
-
/join/id/regdata/gm0451/2025/f6b9d4dfae2d49ce8b7dd53ef44b87b7/nld@2026‑03‑03;13074552
- Het Hoge Land
-
/join/id/regdata/gm0451/2025/ff22bffec4fa4d45aae2c4f1d98eb884/nld@2026‑03‑03;13074552
Ziet u een fout in deze regeling?
Bent u van mening dat de inhoud niet juist is? Neem dan contact op met de organisatie die de regelgeving heeft gepubliceerd. Deze organisatie is namelijk zelf verantwoordelijk voor de inhoud van de regelgeving. De naam van de organisatie ziet u bovenaan de regelgeving. De contactgegevens van de organisatie kunt u hier opzoeken: organisaties.overheid.nl.
Werkt de website of een link niet goed? Stuur dan een e-mail naar regelgeving@overheid.nl