Beeldkwaliteitsplan De Lage Waard Deel Ruimtelijke Kwaliteit

Geldend van 26-02-2026 t/m heden

Intitulé

Beeldkwaliteitsplan De Lage Waard Deel Ruimtelijke Kwaliteit

1. Inleiding

1.1 Doel BKP

Het voorliggende beeldkwaliteitsplan (BKP) vormt het toetsingskader voor de Commissie Ruimtelijke Kwaliteit, voor de verdere architectonische en landschappelijke uitwerking van de locatie Van der Palmgebied. Het BKP legt de ambitie voor deze onderwerpen vast en geeft aanbevelingen en richtlijnen voor de vormgeving van bebouwing en de inrichting van de open(bare) ruimte. Het BKP bestaat uit een deel 1: ruimtelijke kwaliteit en een deel 2: welstandseisen.

Het BKP borgt de integraliteit tussen landschap en architectuur. Het beeldkwaliteitsplan is gebaseerd op de eerder opgestelde stedenbouwkundige verkenning (West 8) en het structuurontwerp voor de locatie (BDG Architecten).

Het BKP beschrijft een integrale opgave voor de gewenste omgevingskwaliteit en architectonische uitgangspunten. Het is als beleidsregel uiterlijk bouwwerken vastgesteld als gebiedsuitwerking van de welstandsnota. Mocht er tijdens de ontwikkeling blijken dat er op punten andere inzichten ontstaan, dan wordt eventueel teruggegrepen op de algemene criteria en eventuele andere criteria in de nota. Het gebouwontwerp zal gezien het ambitieniveau een vergelijkbaar resultaat op moeten leveren.

1.2 Leeswijzer

Het beeldkwaliteitsplan bestaat uit een inleiding met duiding van de context en beoogde ontwikkelingen, een hoofdstuk overkoepelende waarden dat de integraliteit tussen de verschillende onderdelen borgt, een hoofdstuk landschap en stedenbouw met kaders voor de landschappelijke inrichting.

1.3 Locatie De Lage Waard

Op de locatie van de Christelijke Scholengemeenschap De Lage Waard komt een nieuw onderwijsgebouw voor voortgezet onderwijs inclusief sport en parkeervoorzieningen. De locatie wordt begrensd door de Vijzellaan, de Noordhoeksewiel, de Achterdijk en de woonbuurt aan de Noordzijde.

afbeelding binnen de regeling

School aan de Noordhoeksewiel

afbeelding binnen de regeling

Vijzellaan

afbeelding binnen de regeling

Achterdijk

afbeelding binnen de regeling

Locatie De Lage Waard

1.4 Landschappelijke context

De locatie De Lage Waard is prachtig gelegen aan de ecologische hoofdstructuur (EHS) de Noordhoekse Wiel dat kenmerkend is vanwege de natuurlijke inrichting en het polderkarakter. Rond het Noordhoekse Wiel is een bloemrijke grasvegetatie aangelegd, dit levert bijzondere flora en fauna op. Het gebied maakt onderdeel uit van de ecologische verbinding van rivier naar weide. Aan de zuidzijde van de locatie De Lage Waard loopt de Achterdijk, wat ook een belangrijke groenstructuur is en onderdeel van het netwerk van hoofdwatergangen.

De hoofdontsluiting van Papendrecht is een orthogonale structuur bestaande uit lanen en straten, die ruim en groen zijn ingericht. De Burgemeester Keijzerweg en loodrecht daarop de Veerweg zijn de hoofdwegen binnen deze structuur. Rondom de Noordhoeksewiel is de karakteristieke orthogonale structuur van Papendrecht minder dominant en is de structuur meer organisch van opzet. De Lage Waard locatie wordt hier ontsloten via de Vijzellaan, die aansluit op de Veerweg. De Vijzellaan heeft het karakter van een groene lokale woonstraat die de buurt Molenvliet ontsluit.

afbeelding binnen de regeling

Locatie de Lage Waard aan de Noordhoeksewiel

afbeelding binnen de regeling

Noordhoeksewiel

afbeelding binnen de regeling

Vijzellaan

afbeelding binnen de regeling

Locatie school in relatie tot landschap en ontsluiting

1.5 Architectonische context

Papendrecht heeft een relatief kleinschalig karakter met veelal gezinswoningen en daarnaast ook flats van 4 à 11 lagen. De bebouwing staat in een stempelstructuur, veelal met tuinen aan de openbare ruimte gelegen. Het geheel heeft een groene en ontspannen opzet. De buurten In Papendrecht zijn in verschillende perioden tot stand gekomen. De omgeving De Lage Waard is onderdeel van de buurt Molenvliet gebouwd in de periode 1970-1980.

De buurt bestaat uit gezinswoningen van twee lagen met een kap. De woningen zijn georganiseerd rondom een woonerf. Achtertuinen zijn georiënteerd op de Vijzellaan. De Christelijke Scholengemeenschap De Lage Waard is de enige (publieke) voorziening in dit deel van de buurt. Qua schaal en architectuur vormt het gebouw een uitzondering ten opzichte van de omliggende gezinswoningen. Vanwege de positie, (publiek) programma, schaal en architectuur is de scholengemeenschap een markant ensemble van gebouw en landschap aan de rand van Molenvliet buurt.

afbeelding binnen de regeling

De Lage Waard als onderscheidend cluster qua programma, schaal en architectuur binnen de buurt.

afbeelding binnen de regeling

Bestaande school De Lage Waard

afbeelding binnen de regeling

Woningbouw in Molenvliet

afbeelding binnen de regeling

Type bebouwing locatie De lage Waard in relatie tot omgeving

1.6 Programma De Lage Waard

De bestaande Christelijke Scholengemeenschap (CSG) De Lage Waard krijgt een nieuw schoolgebouw op de huidige locatie aan de Vijzellaan. Het nieuwe complex zal bestaan uit een schoolgebouw en een gebouw met parkeer,- en (indoor)sportvoorzieningen. Daarnaast heeft de scholengemeenschap reeds een bestaande buitensport voorziening aan de westzijde van de locatie.

afbeelding binnen de regeling

1.7 Ontsluiting De Lage Waard

Voor de fiets en auto is de Vijzellaan de belangrijkste toegangsweg tot de Lage Waard. Vanaf de Vijzellaan is in de nieuwe situatie een toegang tot de parkeergarage en twee fietsenstallingen mogelijk. Ook is er ruimte voor een K&R aan de Wieklaan nabij de kruising met de Achterdijk. De centrale ruimte tussen het ecologisch landschap en de Vijzellaan wordt autoluw. Het is een voetgangersgebied dat de verschillende programma’s ontsluit.

Het fietspad in de Vijzellaan is uit het structuurontwerp voor de Lage Waard overgenomen. De daadwerkelijke oplossing wordt afzonderlijk in een ander proces bepaald en valt buiten dit BKP.

afbeelding binnen de regeling

2. Overkoepelende waarden

Voor een succesvolle inpassing van het voorzieningenprogramma in zijn omgeving is de integraliteit tussen de disciplines landschap en architectuur van groot belang. Dit hoofdstuk borgt de integraliteit tussen landschap en architectuur. De overkoepelende waarden staan boven de individuele uitgangspunten voor landschap en architectuur.

Daarnaast is de betekenis van het voorzieningenprogramma als publiek programma binnen de gemeente van belang en mogelijk ook de identiteit als christelijke scholengemeenschap. De bijzondere betekenis van het programma en de mogelijke uitingen daarvan wordt als overkoepelende waarde vastgelegd.

Samengevat zijn de overkoepelende waarden en de uitgangspunten voor de integraliteit:

  • 1.

    De school is een belangrijke publieke voorziening in de gemeente. Het publieke karakter en het feit dat diverse leerlingen groepen er gebruik van maken moet leesbaar zijn in de uitwerking van architectuur en landschap.

  • 2.

    De identiteit van de school, zijnde een christelijke scholengemeenschap, kan aanleiding bieden voor uitingen in architectuur en landschap.

  • 3.

    Het project kent “twee gezichten”, een gezicht naar het ecologische landschap en een gezicht naar de buurt. Deze context dient nadrukkelijk in de uitwerking van het project zichtbaar te worden. Niet letterlijk in de uitwerking van “twee gezichten” in de architectuur. Maar het project dient wel te reageren op de omgeving. De gebouwen kunnen bijvoorbeeld reageren op het omliggende landschap en de buurt doormiddel van (gebouw) morfologie, materiaalgebruik, kleur en verhouding open/gesloten (binnen buiten relatie).

  • 4.

    Er is samenhang tussen de massavorm van de nieuwe gebouwen en het omliggende weefsel (de buurt).

  • 5.

    Vanwege de uitzonderlijke schaal, positie en programmering van de nieuwe gebouwen ten opzichte van de omliggende woningbouw heeft het schoolprogramma een bepaalde mate van architectonische vrijheid. Er is niet direct aanleiding voor een architectonische samenhang (materiaal en kleur) tussen de nieuwe gebouwen en de omliggende bestaande woningbouw. Daarbij moet het echter wel rekening houden met de buurt en geen sterke dissonant zijn.

  • 6.

    Er is samenhang tussen de (nieuwe) gebouwen onderling qua architectuur materiaal en kleur en volumeopbouw/geleding. Het doel is een familie van gebouwen te maken.

  • 7.

    Op een slimme manier worden opgaves indien mogelijk gekoppeld. Bijvoorbeeld bij het maken van goede overgangen tussen gebouw en buitenruimte en de koppeling van duurzaamheidsopgaves als groene gevels.

  • 8.

    Het projectgebied raakt aan een aantal opgaves/ belangen van de gemeente. Bijvoorbeeld de aansluiting op de Vijzellaan en de nieuwe inrichting vanuit het project Grondmolen e.o. en de aansluiting op de Achterdijk. Binnen de verdere uitwerking van het project dienen gemeente en school gezamenlijk op te trekken rondom deze opgaves en dienen nadere afspraken te worden gemaakt. Het BKP leent zich (in dit stadium) niet om uitgangspunten op deze raakvlakken duidelijk vast te leggen.

afbeelding binnen de regeling

Integraliteit schoolprogramma, landschap en buurt

3. Landschap en stedenbouw

3.1 Kernwaarden De Lage Waard

De unieke positie aan het ecologisch landschap en aan de rand van de buurt Molenvliet is kenmerkend voor de Lage Waard. Binnen de nieuwe opzet van het onderwijsprogramma staan twee gebouwen als losse volumes tussen het ecologisch landschap en de buurt Molenvliet. De karakteristiek van gebouwen aan een ecologisch landschap is een belangrijk uitgangspunt, waarbij de relatie tussen de buurt en het ecologisch landschap moet worden versterkt, zowel visueel als fysiek. Daarnaast is een sensitieve landschappelijke aansluiting met de aanliggende Molenvliet buurt van belang.

Een drietal kernwaardes zijn sturend voor de verdere landschappelijke inrichting van de Lage Waard:

  • 1.

    Versterken van de structuur van het gebied doormiddel van de aansluiting op het ecologische landschap en de verbinding tussen de buurt en het landschap. Fysiek, visueel en ecologisch.

  • 2.

    Het maken van een groene inrichting passend bij het aanliggende ecologische landschap, met aangename verblijfsruimtes voor diverse doelgroepen. Met aandacht voor de continuïteit in routing voor voetgangers tussen buurt en ecologisch landschap.

  • 3.

    Een klimaatadaptieve en natuurinclusieve inrichting van het landschap

afbeelding binnen de regeling

1. Versterken structuur gebied

afbeelding binnen de regeling

2. Groene (natuurlijke) irichting met aangename verblijfsplekken voor diverse doelgroepen

afbeelding binnen de regeling

3. Klimaatadaptieve en natuurinclusieve inrichting van het landschap

3.2 Uitgangspunten kernwaarde 1

Versterken structuur gebied

  • 1.

    De kwaliteit en karakteristiek van de Noordhoeksewiel als unieke ruimte in Papendrecht is de drager van het gebied en straalt uit naar zijn omgeving. Een groene natuurlijke ruimte met water, bomen, voetgangersroutes en verblijfsplekken.

  • 2.

    Fysieke en visuele verbindingen borgen de relatie tussen de buurt en het ecologische landschap.

  • 3.

    Een natuurlijke overgang van schoolomgeving naar de ecologische hoofdstructuur (EHS) Noordhoeksewiel is van groot belang. De fysieke (o.a. maatvoering en profiel), visuele en ecologisch aansluiting dient te worden onderbouwd (zie o.a. doorsnedes pagina 22).

  • 4.

    Het westelijke projectgebied blijft zoveel als mogelijk groen en zichtlijnen blijven intact.

  • 5.

    Er dient een goede overgang naar de Achterdijk te worden gemaakt. Het groen/blauwe en informele karakter van de Achterdijk blijft gehandhaafd. De nieuwbouw dient op voldoende afstand te staan van de bestaande water- en groenstructuur voor een kwalitatief visuele en ecologische verbinding tussen de Noordhoekse Wiel en de Wieklaan. De aangrenzende (niet openbare) groenstructuur van de school draagt aan de sociale veiligheid van de groene verbinding.

  • 6.

    Aandacht voor de groene afscheiding aan de Achterdijk richting de overliggende achtertuinen.

  • 7.

    Er dient een goede aansluiting te worden gemaakt op de Vijzellaan en de continuïteit van de voetganger,- en fietsroute dient te worden geborgd. Vanaf de Vijzellaan worden aantrekkelijke en herkenbare entreegebieden tot het onderwijsprogramma gemaakt. Een centrale pleinruimte in de oksel van de Vijzellaan wordt een voetgangers georiënteerde ruimte die toegang geeft tot het onderwijsprogramma.

  • 8.

    Er dient een goede en geleidelijke overgang naar de noordelijk gelegen woonbebouwing te worden gemaakt met voldoende afstand en een groene rand om het parkeer/sportgebouw. Er is daarbij voldoende ruimte voor een openbare route naar de Noordhoekse Wiel. Daarmee wordt de groenkwaliteit van de Noordhoekse Wiel al aan de Vijzellaan geïntroduceerd en wordt de sociale veiligheid door middel van een overzichtelijke inrichting geborgd.

afbeelding binnen de regeling

afbeelding binnen de regeling

1. Groene ruimte Noordhoeksewiel als drager van het gebied

afbeelding binnen de regeling

2. Verbindingen tussen buurt en ecologisch landschap

afbeelding binnen de regeling

3. Natuurlijke overgang schoolomgeving naar ecologische zone

afbeelding binnen de regeling

5. Groen-blauwe informele overgang naar Achterdijk

afbeelding binnen de regeling

7. Centrale pleinruimte als entreegebied

afbeelding binnen de regeling

9. Aansluiten op bestaande Vijzellaan met bomen en fiets/voetgangersroute

3.3 Uitgangspunten kernwaarde 2

Groene (natuurlijke) inrichting met aangename verblijfsruimtes voor diverse doelgroepen

  • 1.

    De basisinrichting van het gebied is natuurlijk groen en verloopt gradueel naar een meer pleinachtige inrichting aan de Vijzellaan. Hierbinnen worden diverse verblijfsplekken en routes gemaakt.

  • 2.

    Entree en verblijfsgebieden worden aantrekkelijk vormgegeven en geïntegreerd met de inrichting van de open(bare) ruimte. Hier is ruimte voor ontmoeten en verblijven. We onderscheiden een voorplein in de oksel van de Vijzellaan, een “achtertuin” aan de Achterdijk (met 2 verblijfsplekken) en een “mobiliteitsplein” aan de Wieklaan. Op deze plekken is ook ruimte voor groen.

  • 3.

    De centrale ruimte tussen de Vijzellaan en de Noordhoeksewiel is een autoluw gebied waar groen en verblijven de basis vormen. Mogelijk logistiek verkeer wordt geïntegreerd met de inrichting van de ruimte.

  • 4.

    De Vijzellaan met bomenrij, de nog te bepalen definitieve weginrichting en doorgaand voetpad wordt geïntegreerd.

  • 5.

    De inrichting van de waterkant aan de Achterdijk biedt kansen voor een natuurlijke oever en/of waterbuffers.

  • 6.

    Fietsenstallingen en parkeerterreinen zijn integraal onderdeel van de openbare ruimte. De inpassing gebeurt zorgvuldig en past binnen de (groene) karakteristiek van het gebied.

  • 7.

    Het sportveld in de ecologische zone is integraal onderdeel van het buitenruimte ontwerp. Het sportveld voegt zich zoveel als mogelijk naar het ecologische landschap.

  • 8.

    Een voetgangersbrug verbindt de sportvelden met de centrale verbinding. Een mogelijke nieuwe brug voegt zich qua beeldtaal naar de karakteristiek van de ecologische ruimte.

  • 9.

    Overgangen tussen gebouwen en buitenruimte worden zorgvuldig en integraal vormgegeven.

  • 10.

    Binnen het gebied zijn drie typen erfafscheidingen. Type 1 is volledig afsluitbaar, type 2 en 3 maken bezoekers bewust dat ze privaat terrein betreden. Afscheidingen worden integraal en zorgvuldig ontworpen met de inrichting van het landschap en mogelijk groen vormgegeven (bv. hagen). Zodat er visueel een onderscheid wordt gemaakt tussen de openbare ruimte en de buitenruimte van de school.

afbeelding binnen de regeling

afbeelding binnen de regeling

1. Groene natuurlijke inrichting met verbijfsplekken

afbeelding binnen de regeling

3. Centraal autoluw gebied

afbeelding binnen de regeling

8. Voetgangersbrug verbindt ecologie en schoolomgeving

afbeelding binnen de regeling

5. Natuurlijke inrichting en overgang Achterdijk

afbeelding binnen de regeling

7. Sport is geintegreerd met de groene omgeving

afbeelding binnen de regeling

9. Zorgvuldige overgangen gebouw en openbare ruimte

3.4 Uitgangspunten kernwaarde 3

Klimaatadaptieve en natuurinclusieve inrichting

  • 1.

    Het realiseren van nieuw groen is een vereiste. Het toegevoegde groen is robuust en er is aandacht voor het gebruik ervan. Robuust groen betekent: gezond, past bij het gebruik en heeft groei potentie.

  • 2.

    De waterkanten bieden kansen voor natuurvriendelijke oevers.

  • 3.

    Binnen het gebied wordt voldoende ruimte voor watercompensatie opgenomen conform de eisen (‘het wateradvies’) van het waterschap Rivierenland. Waterlopen kunnen eventueel vergroot worden ten behoeve van watercompensatie.

  • 4.

    Voor waterberging zijn ook de uitgangspunten uit het document “Programma Klimaatadaptatie 2025-2029’’ van toepassing.

  • 5.

    De inrichting van het landschap draagt bij aan het beperken van hittestress.

  • 6.

    (Kwalitatieve) bestaande bomen worden zoveel als mogelijk gehandhaafd o.b.v. een bomeninventarisatie worden kwalitatieve bomen behouden. Indien kwalitatieve bomen moeten verdwijnen is een goede onderbouwing noodzakelijk. Nieuwe bomen worden toegevoegd om voldoende schaduw te creëren en bij te dragen aan de klimaatadaptieve opgave.

  • 7.

    Behoudt van en het vergroten van de biodiversiteit en leefbaarheid is een vereiste. Bijvoorbeeld door middel van voorzieningen ten behoeve van gebouw bewonende vogels of vleermuizen (nestkasten, gevelbegroeiing etc.).

  • 8.

    Voorkomen van windhinder op het maaiveldniveau.

  • 9.

    Verharding wordt mogelijk uitgevoerd in natuurlijke materialen (circulair), die tevens goed te beheren is.

  • 10.

    Aandacht voor natuurinclusieve verlichting.

afbeelding binnen de regeling

afbeelding binnen de regeling

2. Natuurvriendelijke oevers

afbeelding binnen de regeling

3. Waterinfiltratie en buffering

afbeelding binnen de regeling

7. Vergroten biodiversiteit

afbeelding binnen de regeling

1. Vergroenen pleinruimtes en verblijfsgebieden

afbeelding binnen de regeling

6. Handhaven bestaande bomen (foto de Lage Waard)

afbeelding binnen de regeling

10. Aandacht voor natuurinclusieve verlichting

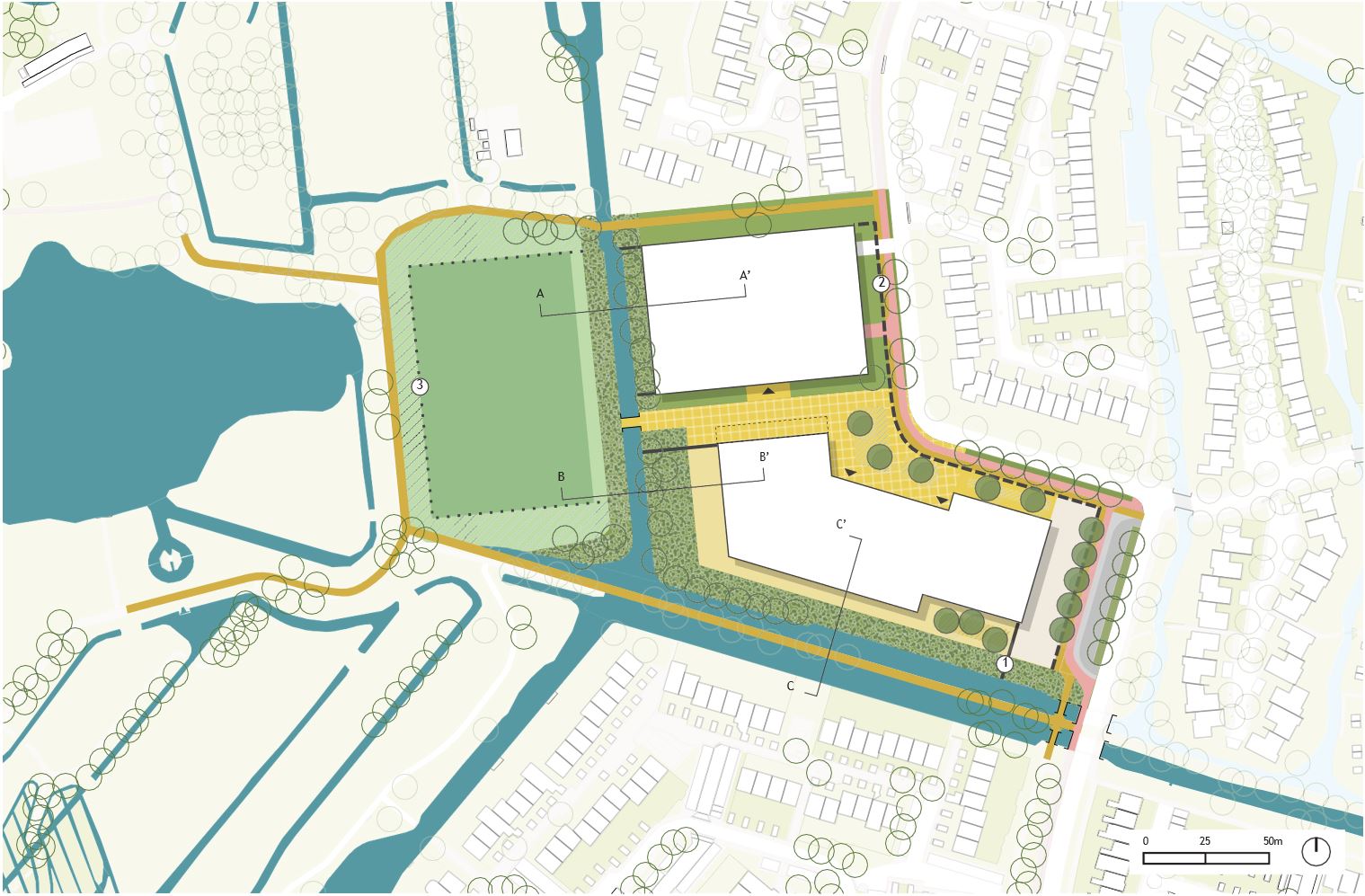
3.5 Samenvattende kaart landschap

afbeelding binnen de regeling

afbeelding binnen de regeling

Uitgangspunten inrichting landschap

Ondertekening