Beeldkwaliteitsplan Van der Palmgebied Deel Welstandseisen

Geldend van 26-02-2026 t/m heden

Intitulé

Beeldkwaliteitsplan Van der Palmgebied Deel Welstandseisen

1. Inleiding

1.1 Doel BKP

Het voorliggende beeldkwaliteitsplan (BKP) vormt het toetsingskader voor de Commissie Ruimtelijke Kwaliteit, voor de verdere architectonische en landschappelijke uitwerking van de locatie Van der Palmgebied. Het BKP legt de ambitie voor deze onderwerpen vast en geeft aanbevelingen en richtlijnen voor de vormgeving van bebouwing en de inrichting van de open(bare) ruimte. Het BKP bestaat uit een deel 1: ruimtelijke kwaliteit en een deel 2: welstandseisen.

Het beeldkwaliteitsplan is gebaseerd op de eerder opgestelde stedenbouwkundige verkenning en het structuurontwerp voor de locatie.

Het BKP beschrijft een integrale opgave voor de gewenste omgevingskwaliteit en architectonische uitgangspunten. Het is als “beleidsregel uiterlijk bouwwerken” vastgesteld als gebiedsuitwerking van de welstandsnota. Mocht er tijdens de ontwikkeling blijken dat er op punten andere inzichten ontstaan, dan wordt eventueel teruggegrepen op de algemene criteria en eventuele andere criteria in de nota. Het gebouwontwerp zal gezien het ambitieniveau een vergelijkbaar resultaat op moeten leveren.

1.2 Leeswijzer

Het beeldkwaliteitsplan bestaat uit een inleiding met duiding van de context , een hoofdstuk“Overkoepelende waarden” dat de integraliteit tussen de verschillende onderdelen borgt en een hoofdstuk architectuur met kaders voor de beeldkwaliteit van de gebouwen.

1.3 Locatie Van der Palmgebied

Het Van der Palmgebied is een centraal gelegen voorzieningencluster in Papendrecht. Het wordt begrensd door de Rembrandtlaan, de Vondellaan, het Vondelpark en de Jacob Catslaan. Door het gebied loopt de Van der Palmstraat. In het gebied liggen aan de westzijde de basisscholen “IKC Beatrix” en “OBS Viermaster”. Aan de oostzijde ligt de bestaande Bethlehemkerk.

Op de locatie van het bestaande Willem de Zwijgercollege komt een nieuw onderwijsgebouw voor voortgezet onderwijs inclusief sport en parkeervoorzieningen.

afbeelding binnen de regeling

Vondellaan

afbeelding binnen de regeling

Van der Palmstraat

afbeelding binnen de regeling

Rembrandtlaan

afbeelding binnen de regeling

Locatie van Van der Palmgebied

1.4 Architectonische context

Papendrecht heeft een dorps karakter met veelal gezinswoningen en ook flats van 4 a 5 lagen. De bebouwing staat in een stempelstructuur veelal met tuinen aan de openbare ruimte gelegen. Het geheel heeft een groene en ontspannen opzet. De buurten In Papendrecht zijn in verschillende perioden tot stand gekomen. De omgeving Van der Palmgebied is onderdeel van de buurt Westpolder gebouwd in de periode 1960-1970.

De buurt bestaat uit gezinswoningen van twee lagen met een kap. De woningen zijn veelal georganiseerd in bouwblokken met voordeuren aan de openbare ruimte en tuinen aan de achterzijde. Aan de zuidzijde van het Van der Palmgebied staan flats van 4 lagen rondom een groen binnengebied.

Het Willem de Zwijgercollege maakt deel uit van een zone met publieke voorzieningen. Qua schaal en architectuur vormen deze gebouwen een ensemble in de Westpolder buurt. Het is een uitzondering ten opzichte van de omliggende gezinswoningen en flats. Gezamenlijk met het Vondelpark is het een belangrijke bestemming en markant ensemble van gebouwen en park in de buurt Westpolder.

afbeelding binnen de regeling

Van der Palmgebied als onderscheidend cluster qua programma, schaal en architectuur binnen de buurt.

afbeelding binnen de regeling

Bethlehemkerk

afbeelding binnen de regeling

Aanliggende bebouwing buurt Westpolder

afbeelding binnen de regeling

Ligging Van der Palmgebied in relatie tot gebouwde omgeving

2. Overkoepelende waarden

Voor een succesvolle inpassing van het voorzieningenprogramma in zijn omgeving is de integraliteit tussen de disciplines van groot belang. Dit hoofdstuk borgt de integraliteit die in het navolgende hoofdstukken wordt behandeld. De overkoepelende waarden staan boven de individuele uitgangspunten voor architectuur.

Samengevat zijn de overkoepelende waarden en de uitgangspunten voor de integraliteit:

  • 1.

    Het Van der Palmgebied is een publieke bestemming in de gemeente met onderwijs, sport en cultuur. Het publieke karakter en het feit dat diverse doelgroepen er gebruik van maken moet leesbaar zijn in de uitwerking van architectuur en landschap.

  • 2.

    De opzet van het Van der Palmgebied is een totaalplan met een sterke samenhang tussen gebouwen en het omliggende landschap.

  • 3.

    Vanwege de uitzonderlijke schaal, positie en programmering van de nieuwe gebouwen ten opzichte van de omliggende woningbouw heeft het nieuwe programma een bepaalde mate van architectonische vrijheid. Er is niet direct aanleiding voor een architectonische samenhang (materiaal en kleur) tussen de nieuwe gebouwen en de omliggende bestaande woningbouw. Daarbij moet het echter wel rekening houden met de omgeving en geen sterke dissonant zijn.

  • 4.

    Er is samenhang tussen de (nieuwe) gebouwen onderling qua architectuur materiaal en kleur en volumeopbouw/geleding. Het doel is een familie van gebouwen te maken. Ook de mogelijk toekomstige woningbouw naast de Bethlehemkerk zal derhalve in samenhang met de overige (nieuwe) gebouwen in het gebied ontworpen dienen te worden.

afbeelding binnen de regeling

Opgave Van der Palmgebied: sterke samenhang tussen programma en landschap

4 Architectuur

4.1 Kernwaarden Van der Palmgebied

Karakteristiek voor het Van der Palmgebied is de samenhang tussen landschap en gebouwde omgeving dat als een “Gesamtkunstwerk” wordt ontworpen. Het gebied bestaat uit een cluster van maatschappelijke functies in een parkachtige omgeving.

De nieuwbouw in het Van der Palmgebied voegt zich op een passende en tegelijkertijd onderscheidende manier in de buurt. Passend in de omliggende maat en schaal, onderscheidend in architectuur, kleur en materiaal. Het onderscheidende aspect zit hem in de verzameling van voorzieningen dat als ensemble in de groene zone van het Van der palmgebied is gepositioneerd en daarmee een voorname positie in Papendrecht inneemt.

Een viertal kernwaardes zijn sturend voor de verdere architectonischeuitwerkingvanhet Vander Palmgebied:

  • 1.

    Gebouwen in of aan een groene ruimte en met een goede aansluiting op de buurt;

  • 2.

    Aansluiting op de omliggende schaal;

  • 3.

    Eenduidige en samenhangende architectuur;

  • 4.

    Een consistente uitwerking.

afbeelding binnen de regeling

1. Gebouwen in of aan een groene ruimte en met een goede aansluiting op de buurt

afbeelding binnen de regeling

2. Aansluiting op de omliggende schaal

afbeelding binnen de regeling

3. Eenduidige en samenhangende architectuur

4.2 Uitgangspunten kernwaarde 1

Gebouwen in of aan een groene ruimte en met een goede aansluiting op de buurt

  • 1.

    De bestaande en nieuwe gebouwen in het Van der Palmgebied hebben de architectonische karakteristiek van objecten in en aan een groene ruimte. Nieuwe gebouwen kennen een compacte volume-opbouw.

  • 2.

    De architectuur van de nieuwbouw voegt zich naar de ruimtelijke structuur van het gebied. Dit betekent een formeel karakter aan de zijde van de Rembrandtlaan, de Vondellaan en het Vondelpark. Aan de zijde van de centrale loper kent de nieuwbouw een meer uitnodigend karakter. Subtiele verschillen in de gevel dragen bij aan het groene en formele karakter van de Rembrandtlaan. Aan de zijde van de Vondellaan zijn de gebouwen sterk geleed om zo de ontstane buitenruimte als groene ruimte te verankeren in het lineaire, groene karakter van de Vondellaan. Aan de centrale loper voegt de bebouwing zich naar de voetgangerszone met (sub-)entreegebieden voor de diverse programma-onderdelen.

  • 3.

    De afzonderlijke gebouwen hebben een alzijdige en representatieve uitstraling naar de omliggende hoofdstructuur. Dit houdt onder meer in dat geheel gesloten gevels zoveel mogelijk worden vermeden.

  • 4.

    De hoeken van het plangebied bieden ruimte voor een verbijzondering. De Bethlehemkerk is zo’n markante hoek binnen het plangebied. De nieuwbouw aan het Vondelpark geeft bijvoorbeeld aanleiding om de hoek van de nieuwe school te verbijzonderen.

  • 5.

    Aan de centrale groene loper zijn subtiele accenten mogelijk, zoals bijvoorbeeld een (kleine) sprong in de rooilijn, een groene gevel of een bijzondere detaillering van de gevel.

  • 6.

    De (hoofd)entrees zijn zichtbaar en liggen herkenbaar aan de hoofdstructuur. De plaatsing van de (hoofd)entrees is cruciaal voor de logistiek vanuit aanloop- en fietsroutes uit de omgeving. Maar ook voor de samenhang van de verschillende bouwvolumes en interne functies.

  • 7.

    Omdat het binnenterrein van het Willem de Zwijgercollege niet openbaar is en buiten schooltijd wordt afgesloten dient de toe te passen afscheiding qua kleur en transparantie zorgvuldig te worden ingepast in de groene randen van de kavel.

  • 8.

    Losse programma-onderdelen zoals een (buiten) berging of een gebouwde fietsenstalling worden integraal opgenomen in het hoofdvolume tenzij er vanuit functionaliteit een noodzaak bestaat om een los bijgebouw te maken. In dat geval dient het bijgebouw onderschikt te zijn aan de hoofdvolumes en zorgvuldig te worden ontworpen en gepositioneerd.

afbeelding binnen de regeling

afbeelding binnen de regeling

Kernwaarde 1. Compacte gebouwen in een groene ruimte

afbeelding binnen de regeling

Kernwaarde 2. Zorgvuldige inpassing in ruimtelijke structuur

afbeelding binnen de regeling

Kernwaarde 3. Alzijdige en representatieve uitstraling

afbeelding binnen de regeling

Kernwaarde 4. Markante hoeken

afbeelding binnen de regeling

Kernwaarde 5. Subtiele verschillen in de rooilijn

afbeelding binnen de regeling

Kernwaarde 6. Hoofdentrees zijn zichtbaar en herkenbaar aan de hoofdstructuur

4.3 Uitgangspunten kernwaarde 2

Aansluiting op de omliggende schaal

  • 1.

    In maat, schaal en bouwhoogte sluit de nieuwbouw aan bij de omliggende, groene woonomgeving. De volumeopbouw en de geleding van de volumes hebben een schaal met een menselijke maat. Daarnaast borgt de geleding van de volumes een zorgvuldige overgang naar de omgeving.

  • 2.

    Het complex met het Willem de Zwijger College, de MFA, het bestaande theater en het nieuwe sportprogramma is opgebouwd uit verschillende bouwvolumes die ook als zodanig afleesbaar zijn. Deze afleesbaarheid kan bereikt worden door subtiele verschillen in onder andere bouwhoogte, materialisering en open-dicht verhouding van de gevel.

  • 3.

    HetMFAenhetbestaandetheaterdienenalseenheidte worden vormgegeven en zijn een zelfstandig geheel tenopzichtevandedeschoolendesportvoorziening. Indien de gevel van het bestaande theater op basis hiervan wordt aangepast dan zal de continuïteit gezocht moeten worden in kleur, detaillering en materialisering.

afbeelding binnen de regeling

afbeelding binnen de regeling

Kernwaarde 1. Volume opbouw met menselijke maat (en schaal die aansluit op de omgeving)

afbeelding binnen de regeling

Kernwaarde 1. Eventuele woningbouw sluit qua maat, schaal en bouwhoogte aan op de omgeving

afbeelding binnen de regeling

Kernwaarde 2. Verschillende bouwvolumes

4.4 Uitgangspunten kernwaarde 3

Eenduidige en samenhangende architectuur

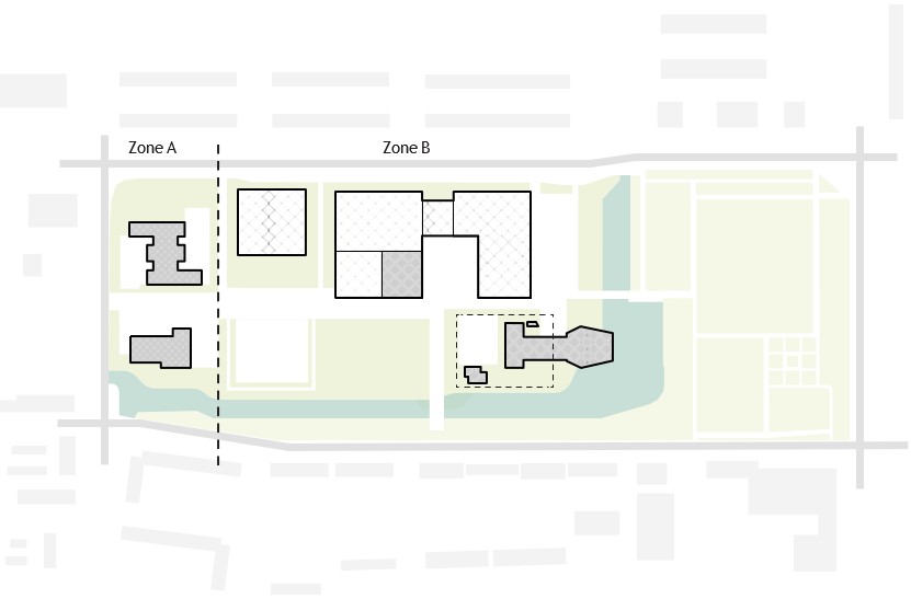
Teneinde een heldere definitie van beeldkwaliteit voor gebouwen te krijgen, waarbij samenhang het leidende thema is, wordt het Van der Palmgebied in twee afleesbare zones gesplitst:

Zone A

Zone A bestaande uit de twee gebouwen aan de Jacob Catslaan. De bestaande gebouwen hebben een eigen karakteristiek en doen niet mee in de samenhang van gebouwen in de rest van het gebied. Zone A wordt gekenmerkt door drielaagse schoolgebouwen waarin de toepassing van rode baksteen dominant is met toevoegingen van rode c.q. zwartgekleurde houten gevelafwerkingen. Eventuele nieuwe ontwikkelingen in de toekomst binnen zone A zullen aansluiten op de karakteristieken van de twee bestaande scholen

Zone B

Zone B bestaande uit twee groepen gebouwen:

  • (B1) De bestaande Betlehemkerk, het complex met de nieuwe school en sportvoorziening, en de mogelijk nieuwe woningen;

  • (B2)Het parkeergebouw en het bestaande theater met daaraan gekoppeld de nieuwe MFA. Deze programma’s vragen om een andere architectonische benadering vanwege het gesloten karakter van de programma’s.

afbeelding binnen de regeling

afbeelding binnen de regeling

Kernwaarde 1. Rekenschap bestaande karakteristiek gebouwen

afbeelding binnen de regeling

Kernwaarde 2. Integratie sportvoorziening

afbeelding binnen de regeling

Kernwaarde 2. Integratie sportvoorziening

afbeelding binnen de regeling

Kernwaarde 3. Groene) geveluitstraling gesloten programma’s

afbeelding binnen de regeling

Kernwaarde 3. Inpassing van parkeergebouw in het groen

afbeelding binnen de regeling

Kernwaarde3.Geveluitstraling gesloten programma’s

Voor de gebouwen in zone B1 zijn de volgende specifieke uitgangspunten van toepassing:

  • 1.

    De architectuur van de nieuwe gebouwen (B1) geeft rekenschap van de karakteristieke Bethlehemkerk en voegt zich met name naar de toegepaste materialisering en kleur(toon) van dit gebouw. Eventuele plastiek in de gevels van de nieuwe gebouwen dient daarbij terughoudend te zijn en zorgvuldig te worden afgestemd op de de Betlehemkerk.

  • 2.

    De nieuwe sportvoorziening verdient bijzondere aandacht wat betreft geveluitstraling. Aan belangrijke openbare ruimtes (bijvoorbeeld entreegebieden) krijgen de gevels zo open en transparant mogelijke uitstraling. Indien dat niet mogelijk is, worden ze zorgvuldig ingepast in het groen en geïntegreerd met het landschap of met natuurlijke materialen bewerkt. Dit om grote dissonanten in de samenhang van met name het deel ten zuidoosten van de Van der Palmstraat (zone B) te voorkomen.

Voor de gebouwen in zone B2 zijn de volgende specifieke uitgangspunten van toepassing:

  • 3.

    Programma’s die van nature een gesloten karakter hebben zoals de nieuwe parkeergebouw en het bestaande theater verdienen bijzondere aandacht wat betreft geveluitstraling. Aan belangrijke openbare ruimtes (bijvoorbeeld entreegebieden) krijgen deze gevels zo open en transparant mogelijke uitstraling. Indien dat niet mogelijk is, worden ze zorgvuldig ingepast in het groen en geïntegreerd met het landschap of met natuurlijke materialen bewerkt. Dit om grote dissonanten in de samenhang van met name het deel ten zuidoosten van de Van der Palmstraat (zone B) te voorkomen.

  • 4.

    Logistieke elementen zoals de entree(s) van de nieuwe parkeergebouw en de laad- en losfunctie van het bestaande theater zijn integraal onderdeel van de architectuur en/of de landschappelijke inpassing.

Voor de gebouwen in zone A als in zone B zijn de volgende uitgangspunten van toepassing:

  • 5.

    Omdat het voorzieningencluster binnen de woonwijk een bijzondere functie is, mag het in architectuur onderscheidend zijn ten opzichte van de omringende bebouwing, zonder uit de toon te springen.

  • 6.

    Het gevelontwerp van de afzonderlijke gebouwen draagt bij aan de herkenbaarheid van de gebouwen. Geleding en ritmiek van de gevel zijn belangrijk om een menselijke schaal aan te brengen in het gebouw. De zorgvuldige uitwerking van entrees levert hier een belangrijke bijdrage aan door een uitgesproken articulatie, ze zijn zichtbaar en herkenbaar, passend binnen de algehele architectuur.

  • 7.

    De verschillende functies binnen het Van der Palmgebied met een onderscheid tussen bestaande en nieuwe programma’s geven aanleiding voor een verscheidenheid in architectuur zonder grote dissonanten tussen de gebouwen onderling.

    Ieder nieuw gebouw heeft daarbij een integrale, eenduidige uitstraling waarbij de verschillende gebouwdelen afzonderlijk afleesbaar zijn.

  • 8.

    Op de zonbelaste gevels dient de zonwering in principe integraal in het gevelontwerp te zijn verwerkt.

afbeelding binnen de regeling

Kernwaarde 3. Inpassing van parkeergebouw in het groen

afbeelding binnen de regeling

Kernwaarde 5. Onderscheidende architectuur

afbeelding binnen de regeling

Kernwaarde 6. Geleding en ritmiek

4.4 Uitgangspunten kernwaarde 4

Een consistente uitwerking

  • 1.

    Het kleur- en materiaalgebruik binnen zone B draagt bij aan het terughoudende karakter van de nieuwbouw ten aanzien van de bestaande bebouwing, in het bijzonder de Betlehemkerk, en aan een rustig en harmonieus gebouwontwerp. Materialen van de gebouwen in zone B1 zijn overwegend steenachtig, licht van toon en warm in uitstraling. De materialen van de gebouwen in zone B2 zijn overwegend natuurlijk van uitstraling en/of worden voorzien van groene gevels.

  • 2.

    De toe te passen materialen zijn onderhoudsarm en kennen een levensduur die zoveel mogelijk gelijk staat aan de beoogde levensduur van het gebouw. Hierbij wordt zoveel mogelijk ingezet op het gebruik van circulaire en biobased materialen.

  • 3.

    De nieuwbouw is karakteristiek met duurzame materialen en een herkenbare, robuuste en toekomstbestendige detaillering. De raamtypologie van de gevels van de school dient dusdanig zijn dat het gebouw als schoolgebouw herkenbaar is. De mogelijk toekomstige woningbouw naast de Bethlehemkerk kan worden uitgevoerd met een terugspringende bovenste laag. Indien terugspringend kan de bovenste laag in een alternatieve, robuuste materialisering woprden uitgevoerd.

  • 4.

    Het dak (indien zichtbaar) draagt als vijfde gevel bij aan de alzijdigheid en versterkt het onderscheidende karakter van het volume in de wijk. Het dakvlak wordt mee ontworpen met het duurzame karakter van de nieuwbouw. Het toepassen van een groendak wordt aangemoedigd, zowel vanuit een esthetische als een duurzame kwaliteit met de opvang en vertraagde afvoer van het hemelwater en het stimuleren van de biodiversiteit. De hemelwaterafvoer wordt geïntegreerd in het gebouwontwerp en sluit aan op een duurzame vorm van waterberging en -afvoer.

  • 5.

    Behoud van biodiversiteit en leefbaarheid door middel van voorzieningen ten behoeve van gebouw bewonende vogels of vleermuizen (nestkasten, gevelbegroeiing etc.) is een belangrijk uitgangspunt in het ontwerp. Deze voorzieningen dienen in samenhang met de architectuur worden ontworpen.

  • 6.

    Zonnepanelen zijn integraal onderdeel van het ontwerp, indien zichtbaar vanaf het openbaar gebied of vanuit de omringende bebouwing. Eventuele PV-panelen dienen gegroepeerd en geordend te worden toegepast.

  • 7.

    Technische installaties, zoals luchtbehandelingskasten, rook- en ventilatiekanalen, etc. moeten architectonisch integraal in het ontwerp zijn meegenomen.

  • 8.

    Er dient aandacht te zijn voor de positionering en materialisatie van de naamsaanduiding en het in losse letters aanbrengen van de naam op de gevel zoals dat bijvoorbeeld bij het nieuwe schoolgebouw en de MFA aan de orde zal zijn.

afbeelding binnen de regeling

Kernwaarde 1. terughoudend kleur en materiaalgebruik

afbeelding binnen de regeling

Kernwaarde 3. Terugspringende bovenste laag in de mogelijk nieuwe woningbouw

afbeelding binnen de regeling

Kernwaarde 3. duurzame materialen en een robuustedetaillering

afbeelding binnen de regeling

Kernwaarde 5/7/8. Groendak met integratie van PV-panelen en technische installaties

afbeelding binnen de regeling

Kernwaarde 7. Behoud van biodiversiteit door integratie in gebouwschil

afbeelding binnen de regeling

Kernwaarde 9. naamsaanduiding gebouwen middels open belettering

Ondertekening