Uitvoeringsbesluit gemeentelijke begraafplaats Munsel van gemeente Boxtel 2026

Geldend van 25-02-2026 t/m heden

Intitulé

Uitvoeringsbesluit gemeentelijke begraafplaats Munsel van gemeente Boxtel 2026

Het college van Burgemeester en Wethouders van de gemeente Boxtel, gelet op de “Verordening op het beheer en gebruik van de gemeentelijke begraafplaats Munsel van gemeente Boxtel 2026”;

besluiten vast te stellen de volgende ‘regels’ voor het beheer en gebruik van grafbedekkingen, graven en asbezorging op de gemeentelijke begraafplaats Munsel te Boxtel.

Artikel 1 Inleiding

In dit uitvoeringsbesluit wordt verstaan onder:

  • a.

    begraafplaats: de gemeentelijke begraafplaats Munsel te Boxtel;

  • b.

    graf: een zandgraf of grafkelder

  • c.

    grafkelder: een betonnen constructie waarin een of meerdere overledenen worden begraven of asbussen worden bijgezet;

  • d.

    asbus: een bus ter berging van as van een overledene;

  • e.

    urn: een voorwerp ter berging van een of meer asbussen;

  • f.

    particulier graf: een graf waarvoor aan één natuurlijk of rechtspersoon het uitsluitend recht is verleend tot:

    • 1.

      het doen begraven en begraven houden van één of meer overledenen;

    • 2.

      het doen bijzetten en bijgezet houden van één of meer asbussen met of zonder urn;

  • g.

    particulier kindergraf: een graf waarvoor aan een natuurlijk persoon of rechtspersoon het uitsluitend recht is verleend tot het doen begraven en begraven houden van kinderen tot 12 jaar;

  • h.

    particulier foetusgraf: een graf waarvoor aan een natuurlijk persoon of rechtspersoon het uitsluitend recht is verleend tot het doen begraven en begraven houden levenloos geborenen;

  • i.

    particulier urnengraf: een graf waarvoor aan een natuurlijk persoon of rechtspersoon het uitsluitend recht is verleend tot het doen bijzetten en bijgezet houden van één of meer asbussen met of zonder urnen;

  • j.

    particuliere urnennis: een nis waarvoor aan een natuurlijk persoon of rechtspersoon het uitsluitend recht is verleend tot het doen bijzetten en bijgezet houden van één of meer asbussen met of zonder urnen;

  • k.

    verstrooiingsplaats: een plaats waarop as wordt verstrooid;

  • l.

    gedenkteken: voorwerp op het graf voor het aanbrengen van opschriften of figuren;

  • m.

    grafbedekking: gedenkteken, grafbeplanting en andere voorwerpen op een (urnen)graf;

  • n.

    beheerder: de als zodanig door burgemeester en wethouders aangewezen ambtenaar die belast is met de dagelijkse leiding van de begraafplaats of alsmede degene die hem vervangt;

  • o.

    rechthebbende: natuurlijk persoon of rechtspersoon aan wie een uitsluitend recht is verleend tot het doen begraven of doen bijzetten in een particulier graf, particulier kindergraf, particulier foetusgraf, particulier urnengraf, of particuliere urnennis, dan wel degene die redelijkerwijze geacht kan worden in diens plaats te zijn getreden;

  • p.

    grafrecht: het uitsluitend recht op het begraven en begraven houden in een particulier graf, particulier kindergraf, particulier foetusgraf, of recht tot het doen bijzetten en bijgezet houden in een particulier urnengraf of particulier urnennis;

  • q.

    ruimen: na schriftelijk afstand van het grafrecht de stoffelijke resten begraven in een daarvoor bestemd gedeelte van de begraafplaats;

  • r.

    samenvoegen: het samenvoegen van stoffelijke resten uit één graf en deze onder in hetzelfde graf herbegraven zodat er ruimte ontstaat voor een nieuwe begraving;

  • s.

    uitvoeringsbesluit of nadere regels: regelgeving met betrekking tot de uitvoering, welke onlosmakelijk is verbonden aan de beheersverordening. Het uitvoeringsbesluit kan los van de beheersverordening worden aangepast.

Artikel 2 Openstelling en begraaftijden

  • 1. De openingstijden van de begraafplaats zijn van zonsopgang tot zonsondergang.

  • 2. De tijd van begraven is van maandag tot en met zaterdag van 8.00 uur tot 15.00 uur.

  • 3. De tijd van het bezorgen van as is: op werkdagen van 08.00 uur tot 16.00 uur.

  • 4. Burgemeester en wethouders kunnen in bijzondere gevallen van deze tijden afwijken.

Artikel 3 Aantal overledenen en asbussen

  • 1. Per graf mogen maximaal worden geplaatst:

    Particulier graf tweepersoons (boven of naast elkaar)

    1 of 2 personen

    1 asbus

    Particulier grafkelder

    2 personen

    2 asbussen

    Particulier kindergraf

    2 kinderen

    1 asbus

    Particulier foetusgraf

    1 foetus

    of

    1 asbus

    Particulier urnengraf

    4 asbussen

    Particuliere urnennis

    3 asbussen

  • 2. De graven bestaan uit maximaal twee lagen. De tweede laag betreft de eerst begraven overledene en de eerste laag de laatst begraven overledene.

  • 3. Een particulier tweepersoonsgraf kan tweemaal naast elkaar worden uitgegeven als een dubbelgraf, voor het begraven van 4 overledenen (2 naast en 2 boven elkaar).

  • 4. De indeling van de verschillende soorten grafakkers en de daarbij behorende grafbedekking is vastgelegd op een plattegrond.

Artikel 4 Graftermijnen

  • 1. Burgemeester en wethouders verlenen, voor zover de daartoe bestemde ruimte van de begraafplaats dat toelaat, op een daartoe bij hen schriftelijk in te dienen aanvraag, voor de tijd van 10 of 20 jaar het uitsluitend recht op een particulier graf, particulier kindergraf, particulier foetusgraf, particulier keldergraf, een particulier urnengraf of particuliere urnennis.

  • 2. Het in het eerste en tweede lid bedoelde grafrecht wordt door het college schriftelijk bevestigd door middel van een grafakte.

  • 3. De termijn begint te lopen op de datum waarop de grafuitgifte plaats vindt.

  • 4. Het in het eerste lid van dit artikel bedoelde recht wordt op aanvraag van de rechthebbende verlengd telkens met een termijn van 5 of 10 jaar, mits de aanvraag voor het verstrijken van de lopende termijn wordt ingediend.

  • 5. Begraving of bijzetting in een particulier graf waarvan de uitgiftetermijn binnen de wettelijke minimumgrafrusttermijn afloopt, kan alleen plaatsvinden onder gelijktijdige verlenging van de uitgiftetermijn met een zodanige periode dat de alsdan resterende uitgiftetermijn ten minste gelijk is aan de wettelijke minimumgrafrusttermijn. De verlenging dient te worden aangevraagd door de rechthebbende of, indien deze is overleden, door een van de andere personen, genoemd in artikel 16, tweede lid van de Verordening.

Artikel 5 Grafafmetingen

De afmetingen (lxb) van een grafoppervlak bedragen van een:

particulier graf

200 cm x 90 cm

dubbel particulier graf

200 x 150 cm

particulier kindergraf

110 cm x 80 cm

particulier foetusgraf

40 cm x 40 cm

particuliere grafkelder

200 cm x 100 cm

particulier urnengraf

100 cm x 100 cm

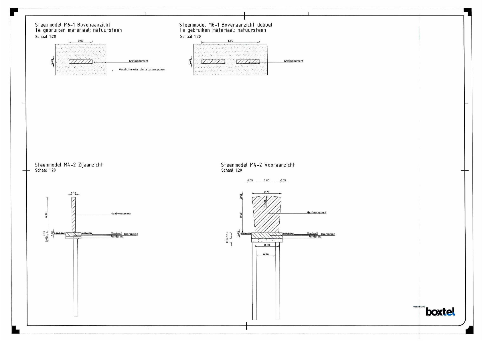
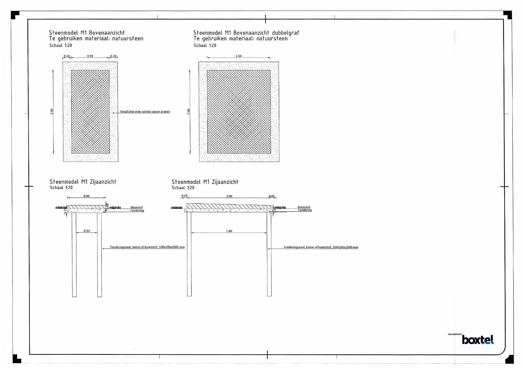
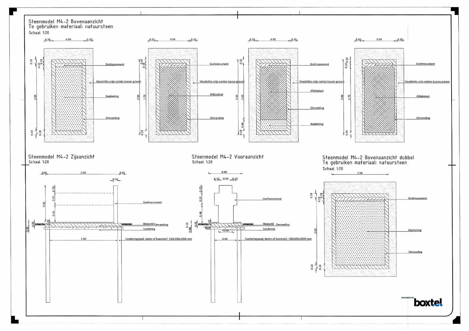
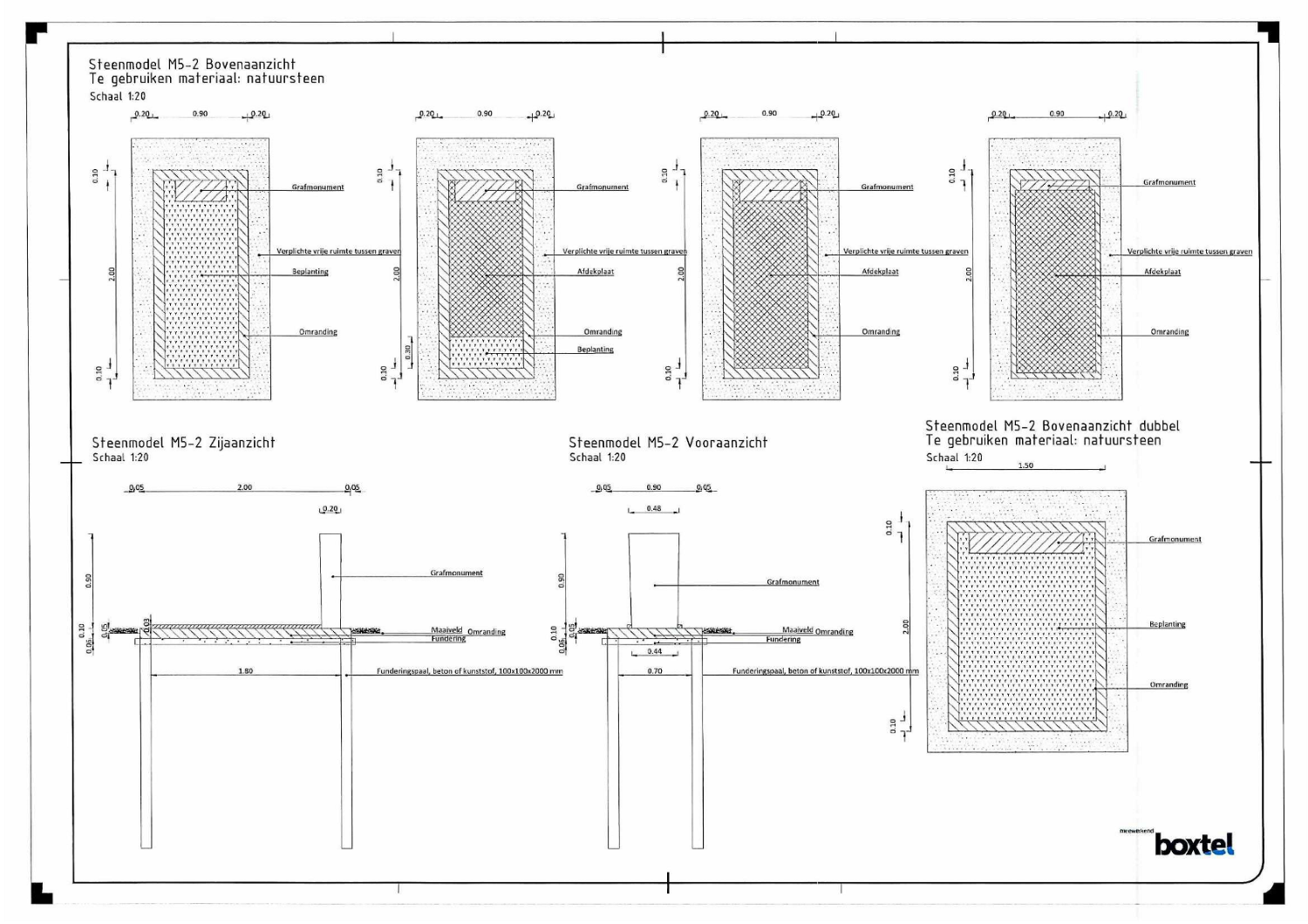
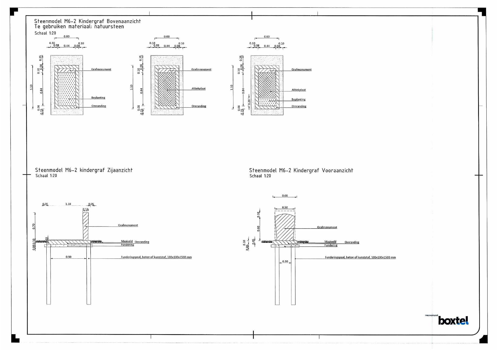
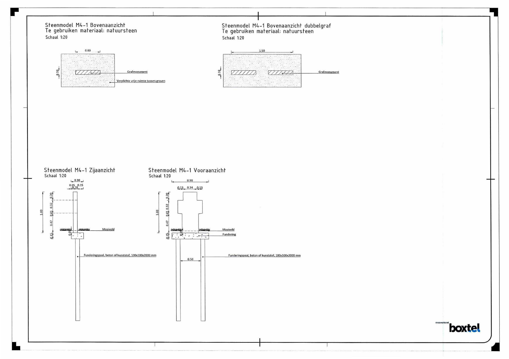
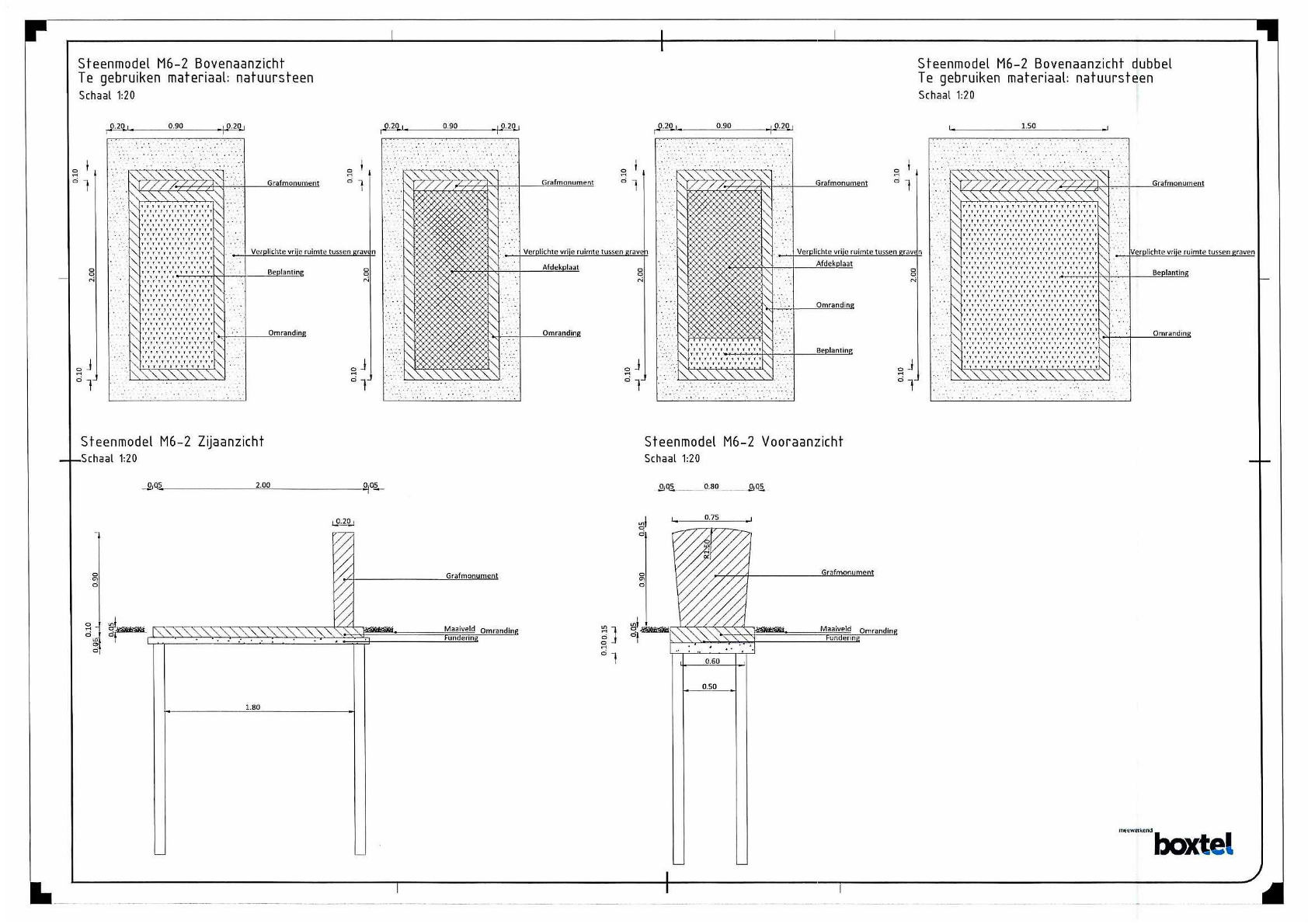
Artikel 6 Gedenktekens en grafbedekking

  • 1. Slechts gedenktekens die door het college van burgemeester en wethouders van Boxtel voor het betrokken graf zijn toegestaan, mogen op dat graf worden geplaatst.

  • 2. De voorschriften aan afmetingen, wijze van plaatsing en inrichting voor de toegestane grafbedekkingen zijn vastgesteld in een bij dit besluit behorend modellenboek, welke voorschriften strikt dienen te worden gehanteerd, tenzij door het college van burgemeester en wethouders ontheffing is verleend.

  • 3. Voor de gedenktekens mogen alleen duurzame materialen worden gebruikt waarbij:

    • a.

      bij de vaste modellen gedenktekens enkel natuursteen is toegestaan;

    • b.

      bij de vrije modellen gedenktekens zijn toegestaan: steen, natuursteen, metaal, keramiek, duurzame kunststoffen, hout of glas.

  • 4. De opschriften op gedenktekens:

    • a.

      mogen niet storend of aanstootgevend zijn;

    • b.

      moeten tenminste 3 mm boven het oppervlak uitsteken, of indien zij zijn ingehakt tenminste 3 mm in het bovenvlak zijn gebeiteld of gefreesd.

  • 5. Het is niet toegestaan:

    • a.

      gedenktekens en letters met verf te beschilderen;

    • b.

      marmerslag of steenslag op en rond de graven aan te brengen.

  • 6. Gedenkstenen mogen geen opschriften met betrekking tot de naam van de vervaardiger dragen.

  • 7. Onderdelen moeten vast aan het gedenkteken zijn verbonden.

  • 8. Het gedenkteken en de fundering dienen door middel van roestvrije binding onwrikbaar verbonden te zijn.

  • 9. Het gedenkteken en hun funderingen mogen direct, maar moeten uiterlijk binnen één jaar, na de dag waarop de begraving heeft plaats gevonden, worden of zijn aangebracht.

  • 10. Bij het transport van het materiaal voor de grafbedekkingen mag binnen de begraafplaats uitsluitend van kleinere niet gemotoriseerde vervoermiddelen gebruik worden gemaakt, tenzij de beheerder anders toestaat.

Artikel 7 Grafbeplanting

  • 1. Grafbeplantingen op het graf mag niet hoger worden dan 40 cm. Grafbeplanting buiten het graf is niet toegestaan.

  • 2. Het is toegestaan op een graf losse bloemen te leggen.

  • 3. Op een graf kunnen potplanten en bloemen in vazen worden geplaatst.

  • 4. Op een graf mogen eenjarige gewassen worden geplant.

  • 5. De winterharde gewassen die op de graven worden geplant, mogen bij volle wasdom de voor het graf beschikbare oppervlakte niet overschrijden of moeten door besnoeiing binnen de oppervlakte worden gehouden.

Artikel 8 Aanvraag vergunning

  • 1. De aanvraag voor een vergunning tot het plaatsen van een gedenkteken dient schriftelijk aangevraagd te worden en gericht te zijn aan het college van burgemeester en wethouders.

  • 2. De schriftelijke aanvraag dient te zijn voorzien van;

    • a.

      de tekening van het uitgekozen steenmodel van de gemeente Boxtel welke aan de rechthebbende is verzonden;

    • b.

      het grafnummer waarop de vergunning betrekking heeft;

    • c.

      vermelding van de volledige naam en overlijdensdatum van de overledene;

    • d.

      naam, adres, woonplaats en telefoonnummer van de rechthebbende van het graf;

    • e.

      de volledige naam, adres en vestigingsplaats gegevens van de steenhouwer.

  • 3. Bij de schriftelijke aanvraag voor vergunning tot het hebben van een gedenkteken behoort een werktekening overeenkomstig het model zoals door de gemeente Boxtel verstrekt aan de rechthebbende. De maatvoering en vormgeving van het model is strikt aan te houden.

  • 4. Op de werktekening staat vermeld:

    • a.

      een boven-, voor- en zijaanzicht met alle hoogte-, breedte-, dikte- en lengtematen;

    • b.

      de soort, kleur en bewerking van het te gebruiken materiaal;

    • c.

      de vermelding of de letters etc. ingehakt, opgehakt of van metaal zijn;

    • d.

      de woordindeling van het opschrift en de plaats van figuratie(s);

    • e.

      het materiaal van de fundering en de wijze van bevestiging van het gedenkteken daarop;

    • f.

      de maatvoeringen van de fundering evenals de manier waarop de fundering onder de grafbedekking wordt aangebracht.

  • 5. De beslissing op de aanvraag wordt door het college van burgemeester en wethouders schriftelijk medegedeeld.

  • 6. Er zijn geen kosten verbonden aan het verlenen van de vergunning.

Artikel 9 Overige bepalingen

  • 1. Deze nadere regels treden in werking één dag na bekendmaking. Met de inwerkingtreding van deze voorschriften worden “Uitvoeringsbesluit voor de grafbedekking” en “Uitvoeringsbesluit graven, asbezorging en gedenkplaatsen van 11-11-2008” ingetrokken.

  • 2. Burgemeester en wethouders kunnen ontheffing verlenen van de door hen vastgestelde nadere regels.

Artikel 10 Citeertitel

  • 1. Deze voorschriften kunnen worden aangehaald als “Uitvoeringsbesluit gemeentelijke begraafplaats Munsel van gemeente Boxtel 2026”.

Ondertekening

Aldus vastgesteld door het college van burgemeester en wethouders in zijn vergadering van 9 september 2025.

De secretaris,

V.C. Fijneman

De voorzitter,

R.S. van Meygaarden

Bijlage 1 Modellenboek gedenkstenen

afbeelding binnen de regeling

afbeelding binnen de regeling

afbeelding binnen de regeling

afbeelding binnen de regeling

afbeelding binnen de regeling

afbeelding binnen de regeling

afbeelding binnen de regeling

afbeelding binnen de regeling

afbeelding binnen de regeling

afbeelding binnen de regeling

afbeelding binnen de regeling

afbeelding binnen de regeling

afbeelding binnen de regeling

afbeelding binnen de regeling

afbeelding binnen de regeling

afbeelding binnen de regeling

afbeelding binnen de regeling

afbeelding binnen de regeling