Actieprogramma Economie 2040, toekomst van de Alkmaarse economie

Geldend van 13-02-2026 t/m heden

Intitulé

Actieprogramma Economie 2040, toekomst van de Alkmaarse economie

De raad van de gemeente Alkmaar;

Gelet op

Het besluit van burgemeester en wethouders van 30 september 2025

Het advies van de commissie Bestuur en middelen 11 november 2025

Besluit

Het Actieprogramma Economie 2040, toekomst van de Alkmaarse economie, vast te stellen.

Toekomst van de Alkmaarse Economie

Actieprogramma Economie 2040

Voorwoord

Alkmaar groeit! Met de ontwikkeling van het Alkmaars Kanaal ontstaan nieuwe aantrekkelijke gebieden om te wonen, werken en te ontspannen. We verwachten dat Alkmaar tot 2040 ruim 30.000 nieuwe inwoners krijgt. Dat betekent ook een groei van ongeveer 14.000 extra werkenden.

Economische groei biedt kansen voor innovatie, duurzaamheid en maatschappelijke veerkracht. Door strategisch te investeren in de ontwikkeling van nieuwe werklocaties, zorgen we ervoor dat bedrijven kunnen groeien en inwoners toegang hebben tot meer banen in de stad. Dit actieprogramma bundelt de bestaande beleidskaders voor bedrijven, kantoren en detailhandel. Zo maken we duidelijk wat de economische uitdagingen zijn en welke richting we op willen en zetten we het beleid op deze onderwerpen vereenvoudigd bij elkaar. Daarnaast wordt ingezet op slimme en duurzame keuzes, waarbij we intensief gebruik maken van bestaande locaties en nauw samenwerken met regiogemeenten.

Met de groei van het aantal werknemers is het belangrijk om meer banen in Alkmaar te realiseren. Doordat de beroepsbevolking sneller groeit dan het aantal banen, wordt het belangrijk om in Alkmaar extra ruimte te maken voor economische functies. De beschikbare ruimte is schaars. Daarom maken we slimme en realistische keuzes.

Een van de belangrijkste pijlers van dit programma is de ruimtebehoefte tot 2040 om de economische groei te kunnen realiseren. Deze behoefte is 70 hectare bruto. Ter vergelijking; dit zijn ongeveer 110 voetbalvelden! Deze uitbreiding is essentieel om te voldoen aan de groeiende vraag van Alkmaarse ondernemers naar bedrijfsruimte en om de economische diversiteit en werkgelegenheid in Alkmaar te waarborgen. Zonder deze extra ruimte dreigt de stad haar aantrekkingskracht te verliezen, wat directe gevolgen heeft voor de werkgelegenheid en de woon-werkbalans.

Daarnaast maken we onderscheid tussen bedrijvigheid die past in gemengde woonwerkgebieden en bedrijven die echt op een bedrijventerrein thuishoren en een hogere milieuruimte vragen. Voor die laatste zoeken we ruimte op bestaande en nieuwe bedrijventerreinen. Uiteraard zijn wij ook selectief in wat we faciliteren. Verder wordt ingezet op het beter benutten van de bestaande ruimte op de bedrijventerreinen.

Een gezonde en toekomstbestendige economie vraagt om sterke samenwerking met ondernemers. Dit Actieprogramma is daarom in nauwe samenwerking met ondernemers opgesteld. Enerzijds door het betrekken van Ondernemend Alkmaar bij de ambtelijke voorbereiding, maar ook door de organisatie van diverse ondernemersbijeenkomsten. Daarnaast hebben 230 ondernemers input geleverd via een enquête en daarmee richting gegeven aan de hoofdlijnen van het Actieprogramma.

Een blijvende samenwerking is essentieel om het tot een succes te maken. Samen bouwen we aan een Alkmaar dat zijn rol als centrumgemeente waarmaakt: economisch krachtig, sociaal verbonden en ruimtelijk in balans.

Daarom bieden wij u een nieuw Actieprogramma Economie aan, zodat wij samen de koers kunnen uitzetten naar de toekomst en voorbereid zijn op de groei van de gemeente Alkmaar

Christiaan Peetoom

Wethouder Economie

Samenvatting

Alkmaar in balans: meer ruimte voor economische groei

Alkmaar groeit – en de economie groeit mee

Alkmaar staat voor een enorme kans: tot 2040 komen er ruim 30.000 inwoners bij. Deze ontwikkeling vraagt niet alleen om woningen, maar ook om een krachtige impuls voor werkgelegenheid en ruimte voor bedrijven. Door nú te investeren in economische groei, versterken we de woon- werkbalans en bouwen we aan brede welvaart voor alle Alkmaarders.

Economische groei als fundament

De beroepsbevolking groeit met 23%, terwijl het aantal banen zonder extra inzet slechts met 11% toeneemt. Dat betekent dat we 7.700 extra banen moeten creëren bovenop de huidige prognoses. Dit is geen probleem, maar een duidelijke opdracht: economische groei is niet optioneel, maar essentieel voor een leefbare, verbonden en toekomstbestendige stad.

Ruimte voor economie: 40,5 hectare netto nodig

Op basis van de huidige inzichten is minimaal 40,5 hectare netto extra ruimte nodig voor bedrijvigheid—circa 65–70 hectare bruto, inclusief groen, water en infrastructuur. De definitieve ruimtebehoefte om de groei volledig te accommoderen wordt bepaald bij de nieuwe regionale prognose. Tot die tijd hanteren we 40 hectare netto als ondergrens en sturen we adaptief op volumes en fasering. Deze ruimteclaim vraagt om intensiever gebruik van bestaande terreinen, functiemenging in stedelijke gebieden én gerichte uitbreiding op nieuwe locaties. Onze acties zijn erop gericht extra ruimtevraag tot een minimum te beperken. We werken regionaal samen bij het zoeken naar ruimte en zetten in op een gezamenlijke regionale lobby voor ruimtelijke keuzes en investeringsagenda richting provincie en het Rijk.

Slim benutten, mengen en uitbreiden

We zetten in op het efficiënter benutten van bestaande bedrijventerreinen, het intensiever benutten van nieuw uit te geven ruimte, reserveren ruimte voor bedrijven die niet mengbaar zijn met wonen en creëren aantrekkelijke gemengde woon‑werkgebieden langs het Alkmaars Kanaal. Ook zijn we kritisch op wat we willen faciliteren. We faciliteren geen kleinschalige (bedrijfs)units en garageboxen op Boekelermeer en Beverkoog en geen grootschalige logistiek zonder lokale/regionale binding meer. We zetten in op vernieuwing en kwalitatieve verbetering van onze kantoren. Zo houden we plek voor zowel innovatieve bedrijven als stadsverzorgende functies, die we waar mogelijk mengen in transformatiegebieden en daarvoor bestemde gebieden, zoals de aangewezen kantoorlocaties.

Ondernemers en gemeente: samen vooruit

Ondernemers staan voor grote transities – verduurzaming, digitalisering, circulaire economie – en ervaren knelpunten zoals ruimtegebrek en netcongestie. Dit actieprogramma biedt perspectief: maatwerk, flexibiliteit en samenwerking. Alleen samen kunnen we de economische slagkracht van Alkmaar vergroten.

Ambitie: een sterke, toekomstbestendige economie

Met dit programma kiest Alkmaar voor groei. We investeren in ruimte, innovatie en talent, zodat de stad aantrekkelijk blijft voor bedrijven én bewoners. Zo bouwen we aan een Alkmaar dat zijn rol als centrumgemeente waarmaakt: economisch krachtig, sociaal verbonden en klaar voor de toekomst.

afbeelding binnen de regeling

afbeelding binnen de regeling

1. Inleiding

1.1 Aanleiding

Veranderende context vraagt om herijking

De economische opgaven in Alkmaar zijn urgenter dan ooit. De gemeente groeit hard: tot 2040 komen er zo’n 30.000 inwoners bij. Die groei vraagt om scherpe keuzes. Wonen, werken en voorzieningen concurreren om dezelfde ruimte. Tegelijkertijd verandert de economie in hoog tempo. Ondernemers staan voor grote transities: energie, circulariteit, digitalisering, krapte op de arbeidsmarkt en veranderende ruimtebehoeften.

Het bestaande actieprogramma 2020-2024 biedt hier onvoldoende antwoord op. De looptijd is verstreken, maar belangrijker: de context is fundamenteel veranderd. De druk op werklocaties neemt toe, de vraag naar passende banen groeit en de balans tussen wonen en werken staat onder spanning.

Zonder koerswijziging dreigt Alkmaar haar economische veerkracht te verliezen.

Voortbouwen op bestaande pijlers met oog op de toekomst

We actualiseren het actieprogramma om beter aan te sluiten op de toekomst. Daarbij bouwen we voort op de bestaande pijlers: Aantrekkelijk, Ondernemend & Innovatief en Uitnodigend. Deze scherpen we aan om ruimte te maken voor groei én kwaliteit, voor innovatie én diversiteit.

Het actieprogramma vormt samen met andere beleidskaders het fundament onder de verdere uitwerking van de omgevingsvisie, grote projecten en gebiedsontwikkelingen. We brengen vier onderdelen in samenhang in beeld:

  • werken in de stedelijke economie;

  • Bedrijven (op bedrijventerreinen, in gemengde woon-werkgebieden en op overige locaties);

  • kantoren (op kantoorlocaties, het stationsgebied en de relatie met het ICT cluster);

  • detailhandel (binnenstad, winkelcentra, grootschalige en solitaire detailhandel).

Met dit programma leggen we de beleidsmatige basis voor concrete projecten en ruimtelijke planvorming voor bedrijven, kantoren en detailhandel. Voor de overige EZ-beleidsvelden (o.a. human capital agenda, citymarketing, evenementenbeleid, agrarische agenda en toeristisch beleid) zijn separate beleidsnota’s of uitvoeringsagenda’s opgesteld. Deze acties worden later samengevoegd tot een integraal uitvoeringsplan.

1.2 Leeswijzer

Hoofdstuk twee beschrijft het belang van de Alkmaarse economie. We duiden de woon-werkbalans, het profiel van de Alkmaarse economie, de verschillende werklocaties en de pendelstromen. Daarna duidt hoofdstuk drie de behoefte aan ruimte voor economie. Hoofdstuk vier beschrijft de hoofdlijnen van de verschillende beleidskaders op het gebied van bedrijven, kantoren en detailhandel. In hoofdstuk vijf worden de hoofdlijn en actielijnen van dit actieprogramma geduid. Tot slot bevatten de verschillende bijlagen inzicht in kaders en context, een verdieping op de economische foto, de resultaten van de ondernemersenquête en de verdieping op de lichte bedrijfsfuncties op bedrijventerreinen.

Input vanuit ondernemersenquête

afbeelding binnen de regeling

Op verschillende plekken in dit actieprogramma vind je inputuit de ondernemersenquête. Deze herken je aan blauwe tekstkadersmet een logo in de rechterbovenhoek.

2. Belang van Alkmaarse economie

In dit hoofdstuk beschrijven we de woon-werkbalans in de gemeente Alkmaar. We geven daarna inzicht in het economisch profiel van Alkmaar, de verschillende werklocaties en de pendelstromen.

2.1 Economische groei als sleutel tot gezonde woon-werkbalans

Wat is de woon-werkbalans?

De woon-werkbalans geeft aan hoeveel banen er zijn ten opzichte van het aantal werkenden (werkzame beroepsbevolking) in Alkmaar. Een balans van 1 betekent: één baan per werkende inwoner. Werkende inwoners kunnen dan in principe in hun eigen woonomgeving werk vinden. Is er een disbalans – dus veel meer werkenden dan banen (of andersom) – dan ontstaan bereikbaarheidsproblemen, pendelverkeer, arbeidstekorten en verlies aan levendigheid.

Woon-werkbalans sinds 2014 licht gedaald

Tussen 2014 en 2024 groeide het aantal werkenden in Alkmaar met 15%, terwijl het aantal banen slechts met 9% toenam. Daardoor daalde het aantal banen per werkende inwoner van 1,04 naar 0,99. Dat betekent dat er net iets minder banen zijn dan werkenden.

Tabel 1: Ontwikkeling woon-werkbalans gemeente Alkmaar

 

2014

2024

Bevolking

106.900

112.300

Werkzame beroepsbevolking

≈ 54.000

≈ 62.000

Banen

56.200

61.400

Woon-werkbalans

1,04

0,99

Bron: CBS (2014-2024) en LISA (2014-2024), bewerking Stec Groep (2025).

Regionale rol van Alkmaar

Alkmaar is een regionaal centrum en trekt veel werkenden uit omliggende gemeenten aan. Toch blijft de woon-werkbalans relatief laag vergeleken met andere regionale centra (zie ook bijlage B – verdieping volgt in eindconceptversie). Dat komt vooral doordat veel Alkmaarders werken in de Metropoolregio Amsterdam (MRA), zoals in Amsterdam en Haarlemmermeer.

Vooruitblik naar 2040: groei, vergrijzing en instroom vanuit de MRA

Alkmaar groeit de komende jaren fors, tot 2040 komen er ongeveer 15.000 woningen bij, wat leidt tot een bevolkingsgroei van ruim 30.000 inwoners (+27%). Deze prognose komt uit de Woonvisie Alkmaar 2040 en is gebaseerd op het ‘meest waarschijnlijke scenario’ uit het Woningbehoefteonderzoek van de gemeente Alkmaar. In dit scenario is expliciet rekening gehouden met een extra instroom vanuit de Metropoolregio Amsterdam (MRA); een trend die de afgelopen jaren al zichtbaar was.

Door deze instroom blijft het aandeel van de potentiële beroepsbevolking (15–67 jaar) ten opzichte van de totale bevolking relatief hoog. Zonder deze instroom zou het aandeel werkenden door vergrijzing sterker dalen. Nu verwachten we een lichte daling van het aandeel potentiële beroepsbevolking binnen de totale bevolking: van 66% naar 64% (zie ook tabel 2, hierna). Zonder instroom zou dit aandeel dalen naar 62% tot 60%.

Op basis van het huidige aandeel werkenden binnen de potentiële beroepsbevolking (83%) maken we een inschatting van de toekomstige werkzame beroepsbevolking. Die groeit naar verwachting met 14.100 personen (+23%) tot 76.100 werkenden in 2040.

Tabel 2: Inschatting werkzame beroepsbevolking in 2040

 

2025

2040

Ontwikkeling

Bevolking

112.900

143.700

+30.800

+27%

Potentiële beroepsbevolking (15 t/m 67 jaar)

74.900

92.000

+17.100

+23%

Aandeel t.o.v. totale bevolking

66%

64%

 

Werkzame beroepsbevolking

62.000

76.100

+14.100

+23%

Aandeel t.o.v. totalepotentiële beroepsbevolking

83%

83%

 

Verwachte ontwikkeling werkgelegenheid: van krimp tot groei van 11%

Om de toekomstige woon-werkbalans goed te kunnen beoordelen, vergelijken we de verwachte groei van de beroepsbevolking met de verwachte ontwikkeling van het aantal banen in Alkmaar. Hiervoor zijn verschillende prognoses beschikbaar op het niveau van de Regio Alkmaar:

  • WLO-scenario’s (Welvaart en Leefomgeving)

    Deze zijn opgesteld door het Centraal Planbureau (CPB) en het Planbureau voor de Leefomgeving (PBL). Ze schetsen verschillende toekomstbeelden op basis van demografische en economische trends:

    • In het hoge scenario wordt een werkgelegenheidsgroei van circa 6,5% verwacht tussen 2025 en 2040.

    • In het lage scenario is sprake van krimp van het aantal banen.

  • EIB-ramingen (Economisch Instituut voor de Bouw)

    Deze ramingen zijn sectorgericht en geven inzicht in de werkgelegenheidsontwikkelingen per branche:

    • In het hoge scenario wordt een totale groei van 11% verwacht.

    • In het lage scenario gaat het om een groei van zo’n 4,5%.

Gezien de huidige economische dynamiek en sectorale groeiverwachtingen, gaan we ervan uit dat de werkgelegenheid zich naar verwachting ontwikkelt richting het hoogste scenario.

Wat betekent dit voor Alkmaar?

In het hoogste scenario (EIB) groeit het aantal banen in Alkmaar van 61.400 in 2024 naar 68.400 in 2040 (+11%), een toename van 7.000 banen.

Tegelijkertijd groeit het aantal werkenden met 23%, van 62.000 naar 76.100. Om een woon-werkbalans van 1 te bereiken, zijn dan ook 76.100 banen nodig. Dat betekent een tekort van 7.700 banen, zelfs in het hoogste groeiscenario. In het lage scenario (EIB) loopt het tekort op tot bijna 12.000 banen en zakt de woon-werkbalans naar 0,85. De ambitie van een balans van 1 vereist dus ruim een verdubbeling van de verwachte banengroei.

Tabel 3: Wat betekent dit voor Alkmaar?

 

2025

2040

Ontwikkeling

Doel

Bevolking

112.900

143.700

+ 30.800

+27%

143.700

Werkzame beroepsbevolking

62.000

76.100

+14.100

+23%

76.100

Banen  hoogste scenario

61.400

68.400

+7.000

+11%

 

Banen – ambitie woon-werkbalans van 1

61.400

76.100

+14.700

+24%

76.100

Woon-werk balans

0,99

0,90

 
 

1,00

Verschil hoogste scenario en ambitie

+7.700 banen extra

Alkmaar kiest voor groei: woon-werkbalans van 1 in 2040 als leidraad

Alkmaar groeit hard – en die groei vraagt om meer dan woningen alleen. We willen dat inwoners hier niet alleen kunnen wonen, maar ook werken.

Daarom zetten we vol in op een woon-werkbalans van 1 in 2040. Deze ambitie past bij de rol van Alkmaar als regionaal centrum en draagt bij aan een sterke lokale economie, een levendige gemeente en minder afhankelijkheid van forensenverkeer.

De uitdaging is fors: de beroepsbevolking groeit met 23%, terwijl het aantal banen volgens de hoogste prognose slechts met 11% toeneemt. Dat betekent dat we ruim 7.700 extra banen moeten creëren bovenop de huidige verwachtingen. Alleen dan houden we de balans vast – en versterken we de brede welvaart.

Alkmaar kiest daarom voor een krachtige groeikoers. We trekken actief nieuwe banen aan, creëren ruimte voor bedrijven en versterken ecosystemen die talent aantrekken en behouden. Denk aan innovatieve gemengde woon-werkmilieus, kennisclusters zoals Greenport NHN en het Energy Innovation Park, en een betere aansluiting tussen onderwijs en arbeidsmarkt.

Deze ambitie vraagt om daadkracht. Vasthouden aan bestaand beleid is niet genoeg. We zetten als gemeente extra stappen – samen met regionale partners – om onze rol als economisch centrum waar te maken en de balans te realiseren die Alkmaar verdient.

Ondernemers pleiten voor meer werkgelegenheid in de stad

afbeelding binnen de regeling

Uit de ondernemersenquête (zie ook bijlage C) blijkt dat ondernemers zich zorgen maken over de verslechterende woon-werkbalans in Alkmaar. Zo’n 40% van de inwoners werkt momenteel in de eigen gemeente (zie ook paragraaf 2.4), terwijl de beroepsbevolking sneller groeit dan het aantal banen. Ondernemers geven aan dat dit leidt tot een verliesaan lokale binding, extra pendelverkeer en een afname van leefkwaliteit. Zij pleiten voor meer werkgelegenheid in de stad, passend bij het opleidingsniveau van de inwoners, en benadrukken dat een gezonde woon-werkbalans essentieel is voor het behoud van een vitale en toekomstbestendige economie. Deze signalen onderstrepen de urgentie om werkgelegenheid mee te laten groeien met de woningbouwopgave en om ruimte te creëren voor bedrijven die lokaal talent kunnen binden.

Tweede perspectief op woon-werkbalans: ruimtelijke functiemix

Naast de verhouding tussen banen en werkzame beroepsbevolking is ook de balans tussen het aantal woningen en banen relevant. Deze tweede woon- werkbalans zegt minder over de beroepsbevolking en pendelstromen, maar geeft juist inzicht in de ruimtelijke functiemix van de stad: hoeveel ruimte is er voor economische functies ten opzichte van wonen? Door huishoudensverdunning en vergrijzing neemt het aantal benodigde woningen toe, zonder dat dit direct leidt tot meer werkenden. Dit maakt het extra belangrijk om ook deze balans te bewaken. Een nadere toelichting op deze tweede benadering is opgenomen in bijlage B.1.

2.2 Profiel Alkmaarse economie

Sinds 2014 groei in banen én vestigingen

Tussen 2014 en 2024 groeide het aantal banen in Alkmaar van 56.200 naar ruim 61.400: een stijging van 9%. Het aantal bedrijfsvestigingen nam in dezelfde periode toe met 43%, van 9.000 naar circa 13.400.

Figuur 1: Ontwikkeling banen en vestigingen in de gemeente Alkmaar in de periode 2014 t/m 2024

afbeelding binnen de regeling

Bron: LISA (2014-2024), bewerking Stec Groep (2025).

Dienstensector dominant in Alkmaarse werkgelegenheid

Bijna 75% van de banen in Alkmaar zit in de dienstensector. Dat sluit aan bij regionale en landelijke trends. De grootste sector is overheid, zorg en onderwijs (ruim 30%), gevolgd door dienstverlening en ICT (ruim 20%) en consumentendiensten (bijna 20%). Ongeveer een kwart van de werkgelegenheid zit in sectoren die vooral op bedrijventerreinen actief zijn: logistiek en groothandel (10%), industrie (9%) en bouw, handel en reparatie (7%).

Figuur 2: Werkgelegenheid naar sector in de gemeente Alkmaar in 2024

afbeelding binnen de regeling

Bron: LISA (2024), bewerking Stec Groep (2025).

Sterke werkgelegenheidsgroei in bouw, handel en reparatie en industrie

Tussen 2014 en 2024 is de werkgelegenheid in alle sectoren toegenomen. Vooral de sectoren bouw, handel en reparatie (+29%) en industrie (+21%) laten een sterke groei zien. Deze groei is mede het gevolg van economische herstel, investeringen in bouwprojecten en een toenemende vraag naar onderhouds- en reparatiediensten. Ook de consumentendiensten groeiden flink (+15%). De sector overheid, zorg en onderwijs nam met zo’n 7% toe, wat in absolute aantallen neerkomt op bijna 1.200 extra banen—bijna een kwart van de totale banengroei in de gemeente. De overige sectoren kenden een meer gematigde groei. Zie ook tabel 4.

De prognoses voor de toekomst (WLO- en EIB-scenario’s) laten zien dat de sectorale ontwikkeling richting de toekomst onzeker is: sommige scenario’s voorzien verdere groei in bouw en industrie, andere juist stabilisatie of lichte krimp. Hoe deze trends zich precies vertalen naar de nieuwe prognose voor Noord-Holland Noord is nog niet duidelijk. Dit maakt het lastig om nu harde keuzes te maken over de verdeling van ruimte per sector. Voor het actieprogramma betekent dit dat de huidige koers richtinggevend is, maar niet in beton gegoten: het creëren van ruimte voor economische functies blijft noodzakelijk, maar de verdeling over sectoren kan wijzigen. Flexibiliteit en adaptief beleid zijn daarom cruciaal. In de nieuwe prognose bedrijventerreinen Noord-Holland Noord (NHN) wordt nader geduid wat deze scenario’s betekenen voor de verwachte ruimtevraag naar bedrijfskavels. Op basis daarvan kan het programma waar nodig worden gespecificeerd.

Tabel 4: Werkgelegenheidsontwikkeling naar sector in de gemeente Alkmaar tussen 2014 en 2024

Sector

2014

2024

Ontwikkeling

Absoluut

Relatief

Landbouw

610

650

+ 40

+ 7%

Industrie

4.150

5.010

+ 860

+ 21%

Bouw, handel en reparatie

3.540

4.550

+ 1.010

+ 29%

Logistiek en groothandel

6.270

6.400

+ 130

+ 2%

Consumentendiensten

10.280

11.780

+ 1.500

+ 15%

Dienstverlening& ICT

13.220

13.750

+ 530

+ 5%

Overheid, zorg en onderwijs

18.110

19.280

+ 1.170

+ 7%

Totaal

56.190

61.420

+ 5.230

+ 9%

Totaal  afgerond op 100-tallen

56.200

61.400

+ 5.200

+ 9%

Bron: LISA (2014-2024), bewerking Stec Groep (2025). Door afronding kunnen optellingen afwijken.

2.3 Circa 60% werkgelegenheid op werklocaties

Zo’n 60% van de werkgelegenheid in Alkmaar bevindt zich op formele werklocaties. We onderscheiden vier typen:

  • Bedrijventerrein: hier zitten vooral bedrijven in industrie, handel, bouw en logistiek.

  • Kantoorlocatie: plekken met kantoorpanden voor zakelijke, commerciële en financiële dienstverlening.

  • Gemengde werklocatie: terreinen waar bedrijfsruimte, kantoren en perifere detailhandel samenkomen.

  • Winkelgebied: gebieden met veel detailhandel, aangevuld met horeca, zorg en dienstverlening. In het centrum is ook vaak sprake van wonen.

De kaart hieronder toont de huidige werklocaties in Alkmaar. Vier werklocaties – kantorenpark Viaanse Molen, Overstad, Oudorp en een gedeelte van Overdie – veranderen stap voor stap in gemengde woon- werkgebieden. In de figuur staan ze nog als bedrijventerrein, maar ze krijgen een nieuwe functie.

Figuur 3: Huidige werklocaties gemeente Alkmaar

afbeelding binnen de regeling

Bron: IBIS (2024), Plabeka (2024), bewerking Stec Groep (2025).

Ruim een kwart van de totale werkgelegenheid op bedrijventerreinen

In Alkmaar bevindt ruim een kwart van de banen zich op bedrijventerreinen: bijna 16.000. Winkelgebieden zijn goed voor 20% van de banen, waarvan de helft zich in het centrum bevindt. Hier werken mensen in retail, horeca en dienstverlening. Kantorenlocaties huisvesten 13% van de werkgelegenheid, gemengde werklocaties 3%. In totaal ligt ruim 60% van de banen op formele werklocaties; de overige 40% zit daarbuiten. Het ziekenhuis Noordwest Ziekenhuisgroep is met 3.500 banen de grootste werkgever buiten deze locaties. Ook Zorgcirkel Westerhout (650 banen), NIKO (390 banen) en AZ (310 banen) zijn grote werkgevers buiten de formele werklocaties. Daarnaast bevinden zich uiteraard ook diverse middelgrote en kleine bedrijven buiten de formele werklocaties. Denk bijvoorbeeld ook aan zelfstandigen die vanuit huis werken.

2.4 Circa 70% Alkmaarse banen ingevuld door inwoners Regio Alkmaar

Licht positief pendelsaldo duidt op regionale centrumfunctie voor werkgelegenheid

Ondanks de relatief lage woon-werkbalans in vergelijking met andere regionale centra (zoals toegelicht in bijlage B.1) vervult Alkmaar een zekere centrumfunctie voor werkgelegenheid. We trekken meer werknemers uit andere gemeenten aan dan er uit Alkmaar vertrekken. Vooral inwoners uit kleinere en middelgrote gemeenten in de regio, zoals Dijk en Waard, Schagen, Heiloo, Hollands Kroon en Koggenland, pendelen richting Alkmaar. Met deze gemeenten is ons pendelsaldo positief. Richting de Metropoolregio Amsterdam (MRA) is dat anders. Gemeenten als Amsterdam, Haarlemmermeer, Velsen (voornamelijk gelinkt aan Tata Steel), Haarlem en Zaanstad trekken juist meer forensen uit Alkmaar aan dan andersom. Dit duidt erop dat Alkmaarders voor bepaalde type banen juist naar deze grotere steden pendelen. Onderliggend is in de balans dus sprake van een grote instroom én een grote uitstroom. Zie ook figuur 4.

Zo’n 40% van banen in Alkmaar ingevuld door Alkmaarders

Ongeveer 40% van de banen in Alkmaar wordt ingevuld door inwoners van de gemeente. Zij wonen én werken dus in de gemeente Alkmaar. Praktisch en middelbaar geschoolden1 werken vooral in de sectoren detailhandel en horeca, welke beide deel uitmaken van de brede sector consumentendiensten. Theoretisch geschoolden zijn vooral actief in de sectoren overheid, zorg en onderwijs en dienstverlening en ICT.

Figuur 4: Pendelstromen gemeente Alkmaar

afbeelding binnen de regeling

Bron: CBS (2024), bewerking en visualisatie Stec Groep (2025).

Zo’n 80% van inkomende pendel afkomstig uit Noord-Holland Noord

Ongeveer de helft van de mensen die in Alkmaar werkt en elders woont, komt uit de Regio Alkmaar. De grootste inkomende pendel is afkomstig uit de gemeente Dijk en Waard. Ruim 17% van de inkomende pendel is afkomstig uit de Kop van Noord-Holland en zo’n 12% komt uit West- Friesland. Dit betekent dat bijna 80% van de totale inkomende pendel afkomstig is uit Noord-Holland Noord. Dit betekent ook dat ruim 20% van inkomende pendel afkomstig is van buiten Noord-Holland Noord. Dit zijn voornamelijk inwoners van de MRA die naar Alkmaar pendelen om hier te werken.

Bijna 60% van de uitgaande pendel buiten Noord-Holland Noord

We constateren dat van de uitgaande pendel, ofwel inwoners van de gemeente Alkmaar die elders werken, bijna 60% werkt buiten de regio Noord-Holland Noord. Bijna 30% van de uitgaande pendel gaat naar andere gemeenten in de Regio Alkmaar. Ongeveer 8% gaat uit naar gemeenten in de Kop van Noord-Holland en zo’n 6% naar gemeenten in West-Friesland. Daarmee zien we een fors andere samenstelling van de uitgaande pendel dan van de inkomende pendel. Dit wijst op een sterke regionale functie van Alkmaar, maar ook op een afhankelijkheid van werkgelegenheid buiten de regio.

Praktisch geschoolden werken vaker lokaal en theoretisch geschoolden reizen verder

Praktisch geschoolden werken vooral in Alkmaar zelf. Zo’n 55% van de praktische banen in de gemeente wordt ingevuld door Alkmaarders. Bij banen voor middelbaar geschoolden ligt dat aandeel op 40% en bij theoretisch geschoolde banen op 34%. De pendel van praktisch geschoolden blijft grotendeels binnen de Regio Alkmaar. Zij werken vooral in sectoren als detailhandel, horeca, leisure en overige diensten. De totale omvang van de pendelstromen van deze groep is kleiner dan die van middelbaar en theoretisch geschoolden.

Theoretisch geschoolden zijn vaker bereid om verder te reizen voor hun werk. Hun pendelstromen – zowel inkomend als uitgaand – hebben een grotere reikwijdte. Middelbaar geschoolden zitten daar tussenin. In Alkmaar werken theoretisch geschoolden vooral in de zorg, het onderwijs, de overheid, zakelijke dienstverlening en ICT. In deze sectoren zien we ook de grootste pendelstromen van deze groep.

De volgende resultaten van de sectorale verdeling naar opleidingsniveau zijn opvallend:

  • Theoretisch opgeleiden komen vaker van buiten Noord-Holland Noord naar Alkmaar, terwijl praktisch en middelbaar opgeleiden vooral uit de Regio Alkmaar komen.

  • De zorgsector is een belangrijke werkgever voor alle opleidingsniveaus, zowel inkomend als uitgaand.

  • Sectoren als ICT en zakelijke dienstverlening trekken vooral theoretisch opgeleiden aan en zijn sterk afhankelijk van pendel van buiten de regio.

  • De detailhandel en horeca zijn dominant voor praktisch opgeleiden, zowel inkomend als uitgaand.

Pendelstromen naar werklocaties in transformatie

We zoomen specifiek in op bedrijventerreinen die veranderen in gemengde woon-werkgebieden langs het Alkmaars Kanaal. De herkomst van pendelaars naar deze terreinen lijkt sterk op die van de hele gemeente Alkmaar. Ook het opleidingsniveau van instromende werkenden wijkt nauwelijks af van het gemeentelijk gemiddelde. Op de transformatieterreinen heeft 36% van de instroom een theoretische opleiding. Dat komt overeen met het gemiddelde van Alkmaar, maar ligt duidelijk hoger dan op andere bedrijventerreinen in de gemeente (20–30%). Op de overige bedrijventerreinen in de gemeente werken juist relatief veel middelbaar geschoolden.

Boekelermeer: opvallende pendelstromen

Boekelermeer is het grootste bedrijventerreinen in de gemeente. Hier valt vooral de herkomst van werkenden op. Slechts een kwart woont in de gemeente Alkmaar zelf, terwijl dat gemeentelijk gemiddeld 40% is. De instroom uit de regio Alkmaar is iets hoger, maar vooral het aandeel van werkenden van buiten Noord-Holland Noord springt eruit. Bijna 20% komt van buiten de regio, vooral uit de Metropoolregio Amsterdam (MRA). Ter vergelijking: gemiddeld woont 13% van de werkenden in Alkmaar buiten Noord-Holland Noord.

Bereikbaarheid is randvoorwaardelijk voor economische groei

Economische groei is niet mogelijk zonder dat de bereikbaarheid op orde is. Er is nu al veel congestie in de regio. Met de groei van de bevolking en economie neemt het aantal vervoersbewegingen fors toe. Alkmaar vervult een regionale centrumfunctie, waar nu circa 40% van de banen wordt ingevuld door Alkmaarders zelf. Het grootste deel van de werknemers pendelt vanuit omliggende gemeenten, en in totaal komt bijna 80% van de inkomende pendel uit Noord-Holland Noord. Met de komst van ruim 30.000 extra inwoners nemen de pendelstromen toe, met name naar de MRA. Juist om dit te voorkomen is groei van de economie cruciaal. De afhankelijkheid van regionale stromen maakt één ding duidelijk: zonder goede bereikbaarheid van werklocaties, stationsgebied en het Alkmaars Kanaal staat de economische aantrekkingskracht van Alkmaar onder druk en is groei van de economie zoals we die wensen niet mogelijk.

De Stedelijke Mobiliteitsvisie Alkmaar 2040 zet daarom bereikbaarheid neer als fundament voor een leefbare en economisch sterke stad. De visie kiest voor toekomstbestendige mobiliteit waarin alle vervoerswijzen – auto, fiets, openbaar vervoer en lopen – gelijkwaardig worden behandeld. In deze visie worden diverse sleutelprojecten benoemd die van belang zijn voor het economische vestigingsklimaat, zoals;

  • Uitwerking van stadslogistiek voor de binnenstad.

  • Het verkennen van optimalisatie van openbaar vervoersontsluiting van de bedrijventerreinen Boekelermeer en Beverkoog.

  • Verkenning van de doorstroming en veiligheid op de ring Alkmaar.

  • Realiseren van een spooronderdoorgang onder de Helderseweg.

Bereikbaarheid is cruciaal voor economische vitaliteit

afbeelding binnen de regeling

De ondernemersenquête bevestigt dit beeld: ondernemers ervaren bereikbaarheid als een van de grootste knelpunten. Zij noemen slechte ontsluiting van bedrijventerreinen, beperkte ov-verbindingen en verkeersdrukte op de ring als belemmeringen voor groei en vestigingsklimaat. Werklocaties dienen daarom goed bereik te zijn. In de strijd om het schaarsepersoneel zien bedrijven het belang in van het aanbiedenvan aantrekkelijke werklocaties. Bereikbaarheid is daarin een cruciaal aspect.

Transformatieterreinen: volop kansen voor menging én aandacht voor behoud bedrijvigheid

De transformatieterreinen langs het Alkmaars Kanaal trekken vooral consumentendiensten, zakelijke dienstverlening, ICT, overheid en zorg aan. Deze sectoren zijn goed voor 46% van alle pendelaars. Vooral zakelijke dienstverlening springt eruit: 23% van de pendelaars werkt in deze sector. Ter vergelijking: op Boekelermeer is dat 13% en op andere terreinen 10%. Ook ICT is sterk vertegenwoordigd: een derde van alle Alkmaarse ICT- medewerkers pendelt naar deze gebieden. Op Beverkoog, Neerlandia en De Volger domineren juist bouwnijverheid en industrie. Daar werkt 36% van de pendelaars. Op de transformatieterreinen ligt dat aandeel veel lager.

Conclusie: deze gebieden bieden volop kansen voor functiemenging. Veel activiteiten passen goed in een gemengd woon-werkgebied, zoals ook blijkt uit het mengbaarheidsonderzoek (bijlage B).

Tegelijk vraagt de transformatie om zorgvuldige keuzes. Sommige bedrijven mengen minder goed met wonen en levendige plinten, bijvoorbeeld door milieuruimte of logistieke intensiteit. Binnen Alkmaar zijn weinig alternatieve vestigingslocaties voor deze functies. Zonder duidelijke borging dreigt verdringing. Juist deze bedrijven bieden veel werk aan praktisch en middelbaar geschoolden met een sterke binding aan de regio. Het behouden van deze banen dichtbij huis is van belang voor een inclusieve arbeidsmarkt en voor het beperken van extra pendel. Daarom kiezen we voor een tweesporenaanpak in de verdere planuitwerking:

  • 1

    Maximaal benutten van mengpotentie in de Kanaalzone – met passende programmering, mengbare functies en levendige plinten.

  • 2

    Borgen van alternatieve locaties voor minder mengbare bedrijven – elders in de stad of regio, met heldere milieukaders, logistieke randvoorwaarden en een verplaatsingsspoor dat rekening houdt met fasering, betaalbaarheid en continuïteit.

Zo behouden we bedrijven voor Alkmaar, creëren we groeiruimte en borgen we banen voor praktisch en middelbaar geschoolden. Dat draagt bij aan een gezonde woon-werkbalans.

3. Behoefte aan ruimte voor economie

In dit hoofdstuk brengen we de verwachte ruimtebehoefte in beeld. We focussen hierbij op de periode 2025 tot en met 2040. We zoomen in op de ruimtebehoefte per verschillend type werklocatie: bedrijventerreinen, kantoorlocaties en winkelgebieden.

3.1 Vraag naar bedrijventerreinen fors groter dan aanbod

Ruimtebehoefte is vraag minus aanbod

Inzicht in de ruimtebehoefte naar bedrijventerreinen is essentieel om weloverwogen keuzes te maken voor nieuwe ontwikkelingen. We baseren dit inzicht op de meest recente behoefteraming Noord-Holland Noord (2021)2.

Daarin staat hoeveel hectare bedrijventerrein er bij moet of juist af kan om te voorzien in de economische ontwikkeling van bedrijven. Voor Alkmaar hebben we het gemeentelijke aandeel bepaald. De behoefteraming bestaat uit drie onderdelen: vraag, aanbod en behoefte. Door vraag en aanbod naast elkaar te leggen, brengen we de resterende behoefte in beeld.

Figuur 5: Duiding ruimtebehoefte bedrijventerreinen

afbeelding binnen de regeling

Vraag bestaat uit bijna 70 hectare netto

In de totale ruimtevraag maken we onderscheid in drie onderdelen:

  • Uitbreidingsvraag – Tussen 2025 en 2040 verwachten we maximaal 33 hectare netto uitbreidingsvraag3.

  • Vervangingsvraag – Door de transformatie van bedrijventerreinen rond het Alkmaars Kanaal verdwijnt een deel van de bestaande voorraad. Dit zorgt voor een vervangingsvraag van eveneens maximaal 33 hectare netto.

  • Additionele vraag – Grote, incidentele economische ontwikkelingen kunnen extra vraag veroorzaken. Deze zijn niet opgenomen in de reguliere ramingen, maar beïnvloeden wel de behoefte aan bedrijfskavels.

In de tabel op de volgende pagina splitsen we de uitbreidingsvraag en vervangingsvraag indicatief uit naar verschillende typen werkmilieus. Het grootste deel van de vraag richt zich naar verwachting op het reguliere werkmilieu.

Tabel 5: Indicatieve verdeling totale ruimtevraag naar type werkmilieu in hectare netto

2025 t/m2040

Gemengd stedelijk

Regulier

Grootschalige distributie

Grootschalige productie

Totaal

Uitbreidingsvraag

3,3 ha

20,0 ha

5,0 ha

5 ha

33,3 ha

Vervangingsvraag

3,3 ha

24,8 ha

-

4,9 ha

33,0 ha

Totale ruimtevraag

6,6 ha

44,8 ha

5,0 ha

9,9 ha

66,3 ha

Bron: Behoefteraming NHN (2021), bewerking Stec Groep (2025).

De ramingen in tabel 4 geven inzicht in de reguliere uitbreidings- en vervangingsvraag. De additionele vraag is in de behoefteraming niet gekwantificeerd, maar speelt in Alkmaar de komende jaren naar verwachting weldegelijk een rol:

  • Op Boekelermeer of in de directe omgeving van het terrein moet een onderstation van Liander komen (circa 5 hectare).

  • Er is behoefte aan een regionaal Logistiek Ontkoppelpunt (LOP) met horeca- en sanitaire voorzieningen (circa 2,5 hectare), wat naar verwachting ook op Boekelermeer zal landen.

  • Ondernemers pleiten voor een collectief laadplein in plaats van individuele laadoplossingen. Ook dit kan vragen om extra ruimte.

Als deze initiatieven daadwerkelijk op bedrijventerreinen landen, komt er extra druk op de ruimte. De feitelijke vraag ligt dus waarschijnlijk hoger dan de prognose aangeeft.

Netto vraag vertaalt zich naar fors groter bruto ruimtebeslag

Het is belangrijk te benadrukken dat denetto vraagniet gelijkstaat aan het benodigde brutooppervlak. Moderne bedrijventerreinen vragen extraruimte voorwateropvang, groen, energievoorziening en landschappelijke inpassing. Hierdoor daalt denetto-brutoverhouding. Gemiddeld ligt deze op75%, maarbij nieuwe terreinen somsop 60% of lager. Deze factor maakt duidelijk dat hetvinden vangeschikte locaties eennog grotere opgave is.Bij eenbehoefte van40 hectare netto moet dusgezocht worden naar eengebied vancirca 65 tot 70 hectare bruto.

Circa 33 hectare netto aanbod op Boekelermeer, vrijwel geheel onder optie

In Alkmaar is circa 33 hectare netto hard planaanbod, volledig op Boekelermeer. Hiervan is ongeveer 28 hectare al onder optie (peildatum: 01- 06-2025). Daarnaast is het aanbod in de bestaande voorraad beperkt: het gemiddelde aanbodpercentage van de afgelopen vijf jaar ligt op 2,2%, ruim onder het gezonde frictieniveau van 5%. Zonder leegstand (rond frictieniveau) stagneert de dynamiek en zit de markt ‘op slot’.

Bedrijventerreinbehoefte bestaat uit ruim 40 hectare netto tot 2040

Door de totale ruimtevraag (66 hectare netto) en (hard) aanbod (33 hectare netto) te confronteren, resteert een tekort van circa 33 hectare netto.

Inclusief de additionele vraag (voor zover nu bekend) loopt dit op tot ruim 40 hectare netto. Een indicatieve vertaling naar het bruto ruimtebeslag komt uit op zo’n 65 tot 70 hectare bruto. De regio NHN werkt aan een nieuwe prognose. Totdat deze verschijnt, sturen we op de bovengenoemde bandbreedte en passen we volumes en fasering adaptief aan. Onderstaande figuur toont de vraag‑aanbodconfrontatie tot 2040.

Figuur 6: Vraag-aanbodconfrontatie Alkmaar tot 2040

afbeelding binnen de regeling

Bron: Behoefteraming NHN (2021), Atlas Plabeka (2023), IBIS (2024), input gemeente Alkmaar (2025), bewerking Stec Groep (2025).

De afgelopen jaren lag het tempo van de jaarlijkse uitgifte in de gemeente Alkmaar gemiddeld hoger dan de geraamde ruimtevraag in het hoge scenario. Vrijwel alle uitgifte in de laatste tien jaar vond plaats op de Boekelermeer. Deze kavels zijn voor een deel uitgegeven aan bedrijven die zijn verplaatst van bestaande bedrijventerreinen in de gemeente waar transformatietrajecten lopen (langs het Alkmaars Kanaal).

Ondernemers ervaren knelpunten: ruimte en energie als bottleneck

afbeelding binnen de regeling

Uit de ondernemersenquête (zie ook bijlage C) blijkt dat de ruimtevraag vanuit ondernemers niet alleen vanuit de behoefteraming, maar ook praktisch urgent is. Ruim de helft van de respondenten geeft aan dat zij hun toekomstplannen niet of slechts beperkt kunnen realiseren op hun huidige locatie. Vooral op bedrijventerreinen worden structurele belemmeringen ervaren zoals ruimtegebrek, beperkte uitbreidingsmogelijkheden, hoge huurprijzen en trage besluitvorming vanuit de gemeente. Ook netcongestie speelt een steeds grotere rol: ondernemers melden vertragingen in aansluiting en hebben zorgen over toekomstige energievoorziening. Deze signalen onderstrepen dat het tekort van ruim 40 hectare netto bedrijventerrein in het hoge scenario niet alleen een prognose is, maar een reële bottleneck voor economische ontwikkeling.

3.2 Kantoorbehoefte richting 2040 vooral een kwalitatieve opgave

De behoefte aan kantoorruimte richting 2040 is vooral een kwalitatieve opgave. In 2023 is een marktverkenning uitgevoerd naar de toekomstige behoefte aan kantoorruimte4. In het hoge scenario groeit het aantal banen flink en blijft de kantoorquotiënt vrijwel stabiel. Daardoor ontstaat een uitbreidingsvraag van circa 27.000 m² vvo. In het lage scenario krimpt de voorraad juist met circa 24.500 m² vvo. In beide gevallen is de plancapaciteit buiten beschouwing gelaten. De marktruimte (excl. de confrontatie met de plancapaciteit) bedraagt circa 16.000 m².

De toekomst ligt vooral op goed bereikbare, multifunctionele locaties: het stationsgebied. Hier groeit de vraag, juist omdat het gebied aantrekkelijk is voor middelgrote gebruikers die flexibiliteit en bereikbaarheid zoeken. Denk aan dienstverleners, ICT-bedrijven en overheidsorganisaties. In het Alkmaars Kanaal ligt de focus op kleinschalige kantoren tot 750 m2 bvo. De gemengde opzet van de gebieden sluit goed aan bij gebruikers die behoefte hebben aan compacte, flexibele werkplekken. Daarmee bedienen we een breed palet aan werkgelegenheid en versterken we de economische diversiteit van Alkmaar.

Kantoorkwaliteit bepaalt vestigings- klimaat en talentbehoud

afbeelding binnen de regeling

Uit de ondernemersenquête (zie ook bijlage C) blijkt dat ondernemers vooral behoefte hebben aan kwalitatieve, goed bereikbare en flexibele werkplekken. Vooral middelgrote bedrijven in zakelijke dienstverlening en ICT geven aan dat hun huidige locatie te weinig ruimte biedt voor groei en vernieuwing. Respondenten zien verouderde panden, beperkte uitbreidingsmogelijkheden en zorgen over energievoorziening als knelpunten. De voorkeur gaat uit naar moderne kantoorconcepten op toplocaties zoals het stationsgebied, waar bereikbaarheid en voorzieningen samenkomen. Deze signalen bevestigen dat de kantorenopgave in Alkmaar primair een kwalitatieve opgave is, waarbij investeringen in toekomstbestendige werkplekken essentieel zijn om talent aan de stad te binden en economische dynamiek te behouden.

3.3 Toekomstige detailhandel gerelateerd aan Alkmaars Kanaal en versterking binnenstad

Geen kwantitatieve uitbreiding nodig, wél slimme aanpassing

Ook opgaven op het gebied van toekomstbestendige detailhandel zijn vooral kwalitatief van aard. Voor de dagelijkse detailhandel is de ambitie helder: Alkmaar wil in alle wijken voldoende complete boodschappencentra behouden. Verspreiding en bereikbaarheid staan centraal. Voor dagelijkse winkels geldt dat er tot 2040 kwantitatief géén extra ruimte nodig is binnen het stedelijk gebied5. Sterker nog: op dit moment is sprake van een overaanbod en functioneren bestaande dagelijkse winkelmeters ondergemiddeld. Toch vraagt de ruimtelijke transformatie langs het Alkmaars Kanaal om een gerichte aanpassing van de winkelstructuur.

De ruimtelijke structuur van de stad verandert ingrijpend. De huidige structuur sluit onvoldoende aan op de nieuwe woongebieden die ontstaan. Daarom worden op twee strategische plekken wél nieuwe dagelijkse clusters toegevoegd, zodat ook deze wijken levendig en goed voorzien blijven:

  • Pendorp (Viaanse Molen): dit kanaalgebied ligt relatief geïsoleerd, maar krijgt de grootste bevolkingsgroei.

  • Centrum Oudorp: hier komt een dagelijks aanbod voor bewoners en werkenden in Oudorp én Overdie. Door deze gebieden te combineren ontstaat voldoende draagvlak voor een aantrekkelijk aanbod, zonder dat bestaande winkelstructuren onder druk komen te staan.

Deze toevoegingen zijn dus geen uitbreiding op basis van kwantitatieve behoefte, maar een noodzakelijke ruimtelijke aanpassing om de nieuwe stadsstructuur toekomstbestendig te maken.

Binnenstad Alkmaar kiest voor focus en vernieuwing

Specifiek voor de binnenstad Alkmaar is een detailhandelsstructuur vastgesteld die inspeelt op actuele ontwikkelingen. Ondanks de opkomst van online winkelen en de afname van passanten, blijft Alkmaar aantrekkelijk dankzij haar regionale centrumfunctie en historische karakter. De gemeente heeft scherpe keuzes gemaakt. Twee hoofdwinkelstraten – de Langestraat en de Laat – vormen de ruggengraat van het winkelgebied. Rondom deze straten ontstaat een ‘dwaalmilieu’ met verrassende winkels en vernieuwende concepten. Daarnaast zijn er gebiedsprofielen opgesteld. Elk deelgebied heeft eigen kenmerken en kwaliteiten. Door die diversiteit te benutten, wordt de binnenstad aantrekkelijker. Per gebied is vastgelegd in hoeverre naast detailhandel ook andere functies passend zijn. Hiermee wordt de binnenstad steeds meer een plek om te ontmoeten en beleven met een brede mix aan functies. Onderstaand figuur toont de gebiedsprofielen.

In bijlage A is een uitgebreide toelichting op de gebiedsprofielen opgenomen.

Figuur 7: Visie gebiedsprofielen detailhandelsstructuur centrum van Alkmaar

afbeelding binnen de regeling

Bron: Detailhandelsstructuur binnenstad Alkmaar – DTNP (2020).

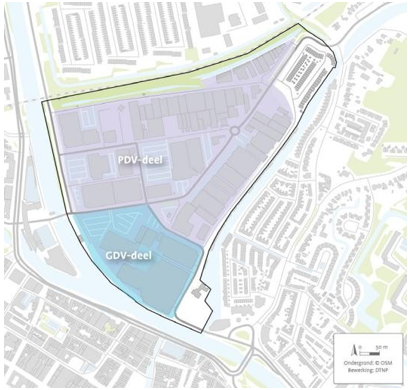
Overstad is complementair aan de Alkmaarse binnenstad en vormt het grootste woonwinkelcluster in Noord-Holland Noord met een belangrijke regionale functie. Het gebied kent twee duidelijke winkelclusters (zie figuur 8). In het zuiden, grenzend aan de binnenstad, ligt het GDV-cluster, bedoeld voor grootschalige detailhandelsvestigingen zoals sportzaken, elektronicazaken en supermarkten. In het noorden bevindt zich het PDV- cluster, gericht op perifere detailhandelsvestigingen met volumineuze artikelen zoals woninginrichting en doe-het-zelfproducten. Ook kringloopwinkels met een volumineus aanbod en grote ruimtevraag zijn geconcentreerd op Overstad. Deze indeling bundelt functies, stuurt bezoekersstromen en versterkt de toekomstbestendigheid van het gebied. Zo ontstaat een sterk toekomstbestendig geheel.

Figuur 8: Gebiedsindeling detailhandelsfuncties Overstad

afbeelding binnen de regeling

Bron: Quickscan detailhandel Overstad – DTNP (2025).

Kwaliteit als antwoord op leegstand en veranderend consumentengedrag

afbeelding binnen de regeling

Uit de ondernemersenquête (zie ook bijlage C) blijkt dat ondernemers in de detailhandel vooral behoefte hebben aan een kwalitatieve impuls van het winkelaanbod in Alkmaar. Respondenten noemen leegstand, verouderde panden en een gebrek aan onderscheidend vermogen als belangrijke knelpunten. De voorkeur gaat uit naar een compact en goed beloopbaar kernwinkelgebied. Daarin is ruimte voor publiekstrekkers, lokale ondernemers en een sterke winkelbeleving. Ondernemers pleiten voor een diverser en aantrekkelijker aanbod dat beter aansluit bij de wensen van bewoners en bezoekers.

Ook klinkt de oproep voor een strikter vestigingsbeleid, bijvoorbeeld om een overaanbod aan telecomwinkels te voorkomen. Deze signalen onderstrepen dat de opgave in de detailhandel niet kwantitatief is, maar vooral gericht moet zijn op ruimtelijke kwaliteit, profilering en levendigheid.

4. Beleidsmatige context

In dit hoofdstuk geven we de hoofdlijnen van de bestaande beleidskaders die de economische keuzes voor Alkmaar richting 2040 sturen. We maken expliciet onderscheid tussen:

  • Vigerend beleid (bestaand, door de raad/vastgesteld),

  • Beleid in actualisatie (lopende herziening of concept), en

  • Voorgenomen aanvullingen/nieuw beleid (alleen waar relevant voor de duiding; verder uitgewerkt in hoofdstuk 5).

We behandelen achtereenvolgens de Omgevingsvisie Alkmaar 2040 (vigerend; actualisatie gestart in 2024), het beleid voor bedrijventerreinen, kantoren en detailhandel. Een volledig overzicht van gemeentelijke, regionale en provinciale beleidskaders staat in Bijlage A.

4.1 Omgevingsvisie Alkmaar 2040

Omgevingsvisie Alkmaar 2040

De gemeente Alkmaar stelde in 2017 de omgevingsvisie vast. Op dit moment werkt de gemeente aan een actualisatie. De huidige visie – Omgevingsvisie Alkmaar 2040 – is een strategisch document voor de fysieke leefomgeving. De visie bevat algemene ambities voor een gezonde, complete stad met ruimte voor innovatie, werkgelegenheid, toerisme en een prettig leefmilieu. Daarnaast zijn er drie verhalende ambities die inspelen op trends en unieke kwaliteiten van Alkmaar:

  • Kanaalzone Alkmaar: benut het kanaal als motor voor stedelijke vernieuwing.

  • Compacte stad: versterk de kern en benut bestaande ruimte.

  • Innovatief buitengebied: maak het landelijk gebied toekomstbestendig.

Actualisatie: bouwstenen voor vernieuwing

In september 2024 met de actualisatie van de omgevingsvisie gestart. Geen koerswijziging, maar een aanscherping op basis van maatschappelijke ontwikkelingen en nieuw beleid. De actualisatie kijkt integraal naar opgaven vanuit drie pijlers:

  • Groei in balans: De gemeente wil de economie en werkgelegenheid versterken. Belangrijk is de balans tussen wonen, werken en voorzieningen. Verdichting in de stad speelt hierbij een rol. Voormalige bedrijfslocaties in het Alkmaars Kanaal en bij ov-knooppunten transformeren naar gemengde woon-werkgebieden. Dat levert nieuwe leefomgevingen én ruimtelijke vraagstukken op.

  • Omgevingskwaliteit: Werken en ondernemen vraagt om een prettige en veilige leefomgeving. Denk aan werklocaties met minder hittestress en ruimte om buiten te bewegen, bijvoorbeeld tijdens de lunch.

  • Duurzame toekomst: De economie moet duurzaam, groen en schoon zijn. Werken gebeurt in een omgeving met aandacht voor mens, milieu en kwaliteit van leven

Het Alkmaars Kanaal en de stationsgebieden zijn speerpunten voor stedelijke én economische groei binnen het bestaand stedelijk gebied (verdichting, functiemenging, extra werkgelegenheid). Aanvullend wordt voor functies met meer milieuruimte uitbreiding op (nieuwe) bedrijventerreinen verkend. Die groei beïnvloedt ook andere delen van de stad, waar behoud en verbetering van omgevingskwaliteit centraal staan. Alkmaar vervult een sleutelrol in Noord-Holland Noord en richting de Metropoolregio Amsterdam. De gemeente zet in op samenwerking, een sterk regionaal netwerk en een herkenbare positionering van de regio.

Belangrijke regionale thema’s zijn woningbouw, bereikbaarheid en duurzame energie. Deze thema’s zijn van belang voor inwoners, ondernemers, bezoekers en toeristen – nu en in de toekomst.

4.2 Hoofdlijnen beleid bedrijven: ruimte voor groei en vernieuwing

In deze paragraaf beschrijven we de hoofdlijnen van het beleid voor bedrijven.

Realiseren extra ruimte voor bedrijventerrein

De vraag naar bedrijventerreinen is groter dan het beschikbare aanbod. We constateren een ruimtebehoefte van zo’n 40 hectare netto – exclusief additionele vraag. Zonder extra ruimte voor bedrijventerreinen stokt de economische ontwikkeling. Om deze reden realiseren we extra ruimte voor nieuwe bedrijfskavels.

Behouden en beter benutten bestaande bedrijventerreinen

De bedrijventerreinen Beverkoog, Boekelermeer, De Volger en Neerlandia blijven volledig beschikbaar voor bedrijven. Dit geldt ook voor de te behouden delen van Overdie en bedrijventerrein Viaanse Molen.

Bergermeerpolder behouden we voor bedrijven, kantoren en maatschappelijke functies. Op de te behouden bedrijventerreinen zetten we in op efficiënter en optimaler gebruik, bijvoorbeeld door intensievere bouwvolumes, slim delen van schaarse energie en sturen we erop dat bedrijven die milieuhinder veroorzaken op deze bedrijventerreinen landen en bedrijven die dit niet veroorzaken juist in gemengde gebieden landen.

Werkgelegenheid groeit mee met woningbouw

De ontwikkeling van werkgelegenheid moet een gelijkmatige trend ondergaan als woningbouw. In het Alkmaars Kanaal en andere gebiedsontwikkelingen zorgen we voor een evenwichtige verdeling van functies. Elk bouwplan voldoet minimaal aan de in de ontwikkelkaders opgenomen percentages werkfuncties en uitgangspunten voor het intensief benutten van de beschikbare ruimte voor werkfuncties.

Ruimte voor economie in het Alkmaars Kanaal door functiemenging en transformatie

In het Alkmaars Kanaal combineren we wonen, werken en recreatie. De deelgebieden bieden ruimte aan de gevestigde economie maar ook aan de ontwikkeling van nieuwe economie. Behoud van bestaande bedrijven en het aantrekken van nieuwe bedrijven in het Alkmaars Kanaal is belangrijk voor de realisatie van voldoende werkgelegenheid. Functiemenging kan zowel horizontaal als verticaal plaatsvinden, op gebieds-, blok- en/of gebouw niveau (zie ook figuur 9).

Figuur 9: Verschillende mengvormen naar schaalniveaus

afbeelding binnen de regeling

Bron: Urhahn (2021), in Functiemenging Alkmaars Kanaal.

Ruimte voor moeilijk mengbare functies blijft essentieel

Voor bedrijven met een hoge milieuruimte, zoals grotere productie en logistiek, reserveren we kavels op nieuwe of bestaande bedrijventerreinen. Zo voorkomen we dat deze functies en de werkgelegenheid verdwijnen uit de stad.

Flexibele bedrijfsruimten maken diversiteit mogelijk

Ruimtes voor bedrijven richten we flexibel in. Denk aan voldoende plafondhoogte (minimaal 4,5 meter en waar mogelijk streven naar minimaal 6 meter), geluidsisolatie en multifunctionele plattegronden. Zo ontstaat ruimte voor een breed palet aan werkgelegenheid: van ambacht tot ICT.

Transformatie gebeurt stapsgewijs en in samenwerking

De ontwikkeling van gemengde gebieden verloopt geleidelijk. We werken samen met ondernemers, eigenaren en andere partners aan een toekomstbestendige invulling. Ontwerpend onderzoek helpt om wensen en zorgen in beeld te brengen.

Faciliteren van de transitie naar een circulaire economie

De transitie naar een circulaire economie is essentieel voor een toekomstbestendige economie in Alkmaar. Circulair ondernemen biedt kansen voor innovatie, nieuwe werkgelegenheid en een efficiënter gebruik van schaarse ruimte. Dat vraagt óók om fysieke ruimte voor opslag, sortering, reparatie, demontage en (lichte) verwerking. We borgen deze ruimtevraag (1) binnenstedelijk, waar mengbaar, door kleinschalige en schone activiteiten te faciliteren in gemengde gebieden en (2) op te behouden en (eventueel) nieuwe bedrijventerreinen voor activiteiten met hogere milieuruimte. Dit koppelen we aan de energie- en logistieke infrastructuur (energiehubs, collectieve laadpleinen, restwarmtebenutting). De Agenda Duurzaam Alkmaar en de provinciale uitvoeringsagenda vormen hiervoor de basis.

Tegelijk erkennen we risico’s van grondstoffenschaarste, maar benutten Alkmaars sterke positie in afval, energie en water (o.a. Energy Innovation Park, InVesta) om ketens te sluiten en reststromen hoogwaardig toe te passen. Dit versterkt innovatie, leveringszekerheid en werkgelegenheid

4.3 Hoofdlijnen beleid kantoren: kwaliteit op de juiste plek

In deze paragraaf beschrijven we de hoofdlijnen van het beleid voor kantoren.

Investeren in nieuwe kantoren op toplocaties

Het stationsgebied is dé plek voor nieuwe kantoorontwikkeling. De locatie is goed bereikbaar, aantrekkelijk voor middelgrote gebruikers en sluit aan bij de behoefte aan flexibiliteit en voorzieningen.

We versterken het profiel van Alkmaar als vestigingsplek voor theoretisch geschoolden

Het versterken van dit profiel vraagt een brede aanpak (o.a. onderwijs, woon‑ en leefkwaliteit, bereikbaarheid). Binnen die bredere opgave levert het kantorenbeleid een concrete bijdrage: met hoogwaardige nieuwbouw in aantrekkelijke ov-knooppunten (zoals hiervoor beschreven) en kleinschalige kantoorconcepten in de gemengde woon‑werkgebieden langs het Alkmaars Kanaal (zie hierna) trekken we dienstverleners, ICT‑bedrijven en overheidsorganisaties aan en binden we talent aan de stad.

We benutten gemengde woon-werklocaties voor kleinschalige kantoren

In de gemengde woon-werkgebieden langs het kanaal is ruimte voor compacte, flexibele werkplekken. Hier faciliteren we kantoorconcepten tot 750 m² bvo. Deze sluiten goed aan bij creatieve en innovatieve bedrijven die zoeken naar een stedelijke, levendige omgeving.

Slimme herontwikkeling van verouderde kantoren

We verbeteren de kwaliteit van de werklocaties zonder extra kantoorruimte toe te voegen. Verouderde panden maken plaats voor duurzame gebouwen met een mix van functies. Op strategische plekken komt toekomstbestendige nieuwbouw; incourante kantoorlocaties transformeren we naar een passende functiemix op die plek.

We sturen op kwaliteit, bereikbaarheid en duurzaamheid

Nieuwe kantoren moeten goed bereikbaar zijn, intensief ruimtegebruik mogelijk maken en bijdragen aan een aantrekkelijke werkomgeving. We stellen eisen aan duurzaamheid, groen en gedeelde voorzieningen.

4.4 Hoofdlijnen beleid detailhandel: toekomstbestendig en gebiedsgericht

In deze paragraaf beschrijven we de hoofdlijnen van het beleid voor detailhandel.

We versterken bestaande winkelgebieden en beperken uitbreiding buiten de structuur

Alkmaar kiest voor een compacte en krachtige winkelstructuur. Er wordt terughoudend omgegaan met uitbreidingen buiten de detailhandelsstructuur, in lijn met de regionale detailhandelsvisie. Zo houden we winkelgebieden levendig en voorkomen we leegstand.

Uitzondering geldt voor basisvoorzieningen in kleine kernen.

De binnenstad heeft een helder profiel met twee hoofdwinkelstraten

De Langestraat en Laat‑West vormen de ruggengraat van het kernwinkelgebied, met detailhandel als hoofdfunctie. Ondersteunende menging (zoals horeca en diensten) is mogelijk waar dit de levendige publieksplint versterkt. De ‘Prachtstraatjes’ en aanloopstraten ontwikkelen we als gemengd dwaalmilieu met een mix van commerciële en maatschappelijke functies en een fijnmazig aanbod. Zo behouden we de herkenbare structuur van het centrum en versterken we de aantrekkingskracht van het centrum – conform de detailhandelsstructuur binnenstad.

We stimuleren vestiging in het kernwinkelgebied en verhogen de ruimtelijke kwaliteit

Om leegstand te verminderen en de concentratie van functies te versterken, begeleiden we initiatiefnemers actief naar passende locaties in het kernwinkelgebied en de aanloopstraten. Op de begane grond sturen we zoveel mogelijk op actieve, publieksgerichte invullingen (commercieel, maatschappelijk of economisch). De Prachtstraatjes vervullen een verbindende rol in het hoofdwinkelcircuit; die rol versterken we met kwaliteitsmaatregelen zoals vergroening, gevelverbetering en aantrekkelijke looproutes. Zo koppelen we gerichte programmering aan zichtbare ruimtelijke kwaliteit.

Overstad is complementair aan de binnenstad

Overstad is complementair aan de Alkmaarse binnenstad. Overstad is het grootste woonwinkelcluster in Noord-Holland Noord en vervult een belangrijke regionale functie. Overstad kent twee winkelclusters (zie figuur 8 in paragraaf 3.3). In het zuiden, grenzend aan de binnenstad, ligt het GDV- cluster, bedoeld voor grootschalige detailhandelsvestigingen zoals sportzaken, elektronicazaken en supermarkten. In het noorden bevindt zich het PDV-cluster, gericht op perifere detailhandelsvestigingen met volumineuze artikelen zoals woninginrichting en doe-het-zelfproducten.

Ook kringloopwinkels met een volumineus aanbod en grote ruimtevraag zijn geconcentreerd op Overstad. Kringloopwinkels met een regulier aanbod kunnen zich ook vestigen in de binnenstad of wijkwinkelcentra. Deze indeling bundelt functies, stuurt bezoekersstromen en versterkt de toekomstbestendigheid van het gebied. Zo ontstaat een sterk toekomstbestendig geheel.

We zorgen voor een evenwichtige spreiding van dagelijkse voorzieningen

Elke wijk moet beschikken over een passend aanbod aan dagelijkse voorzieningen. Door de ontwikkeling van het Alkmaars Kanaal voegen we twee nieuwe centra toe in Pendorp (Viaanse Molen) en het centrum van Oudorp.

5. Hoofd- en actielijnen

In hoofdstuk twee toonden we het belang van een sterke economie. In hoofdstuk drie lieten we zien dat er een tekort is aan ruimte voor bedrijven. In hoofdstuk vier beschreven we de beleidskaders die richting geven aan onze keuzes.

In dit hoofdstuk maken we de omslag: van analyse naar actie. We vertalen het belang van de Alkmaarse economie en de ruimtevraag naar één hoofdlijn en drie concrete actielijnen. Die vormen samen het fundament van het actieprogramma.

5.1 Hoofdlijn - Alkmaar in balans: meer ruimte voor economische groei

Economie als motor van een aantrekkelijke centrumgemeente

Alkmaar staat op een kantelpunt. We groeien met ruim 30.000 inwoners tot 2040. Die groei vraagt om scherpe keuzes: wonen, werken en voorzieningen strijden om dezelfde ruimte. De economie gaat enorm groeien en omdat de stad zo veel groeit moet de ruimte voor economie en het aantal arbeidsplaatsen nog meer groeien. Als de balans te veel richting wonen verschuift, komt de aantrekkelijkheid van de stad onder druk te staan. Een sterke economie maakt Alkmaar levendig en toekomstbestendig. Meer werkgelegenheid in de stad verkort reistijden, vermindert verkeersdrukte en draagt bij aan klimaat- en leefbaarheidsdoelen. Nu werkt 42% van de inwoners in Alkmaar zelf en heeft Alkmaar in totaal bijna net zoveel banen als er inwoners zijn. Met de instroom van veel inwoners uit de MRA in de nieuwe woningbouw zal het aandeel van de inwoners dat in de eigen gemeente werkt waarschijnlijk fors dalen. De meesten zullen immers al een baan hebben. Dat kan beter – zeker als centrumgemeente in de regio.

Daarom versterken we de balans: we maken meer fysieke ruimte voor werk. Dat is geen wens, maar noodzaak.

Tekort aan ruimte: de cijfers zijn helder

De vraag naar bedrijfskavels is groter dan het aanbod. Tot 2040 is er een uitbreidingsvraag van 33 hectare en een vervangingsvraag van 33 hectare voorzien. Inclusief de additionele vraag (voor zover nu bekend) loopt dit op tot ruim 73 hectare netto. Boekelermeer biedt 33 hectare aanbod, maar vrijwel alles ligt onder optie. Er resteert een tekort van ruim 40 hectare netto6.

Tabel 6: Vraag-aanbodconfrontatie bedrijventerreinen tot 2040

 

Type

Omvang

Vraag

Uitbreidingsvraag

33 hectare netto

Vervangingsvraag

33 hectare netto

Additionele vraag

7,5 hectare netto

Totale ruimtevraag

73,5 hectare netto

Aanbod

Hard planaanbod

33 hectare netto

Behoefte

Vraag – aanbod =

40,5 hectare netto

Ook bij kantoren is er een opgave. Het aantal vierkante meters is voldoende, maar de kwaliteit schiet tekort. We investeren daarom in nieuwe kantoren in het stationsgebied en faciliteren kleinschalige kantoorontwikkeling in het Alkmaars Kanaal. Voor winkels geldt: geen overschot, maar wel een kwaliteitsopgave. We blijven inzetten op de bestaande winkelstructuren en staan twee nieuwe dagelijkse clusters toe: in Pendorp (Viaanse Molen) en in het centrum van Oudorp.

Meer ruimte voor economie vraagt om slimme keuzes

Als centrumgemeente in een regio met beperkte ruimte moeten we strategisch omgaan met onze economische ontwikkelruimte. Rond Alkmaar liggen veel gebieden die de provincie heeft aangewezen als Beschermd Landschap, vanwege de hoge cultuurhistorische waarden en/of natuurwaarden. Deze gebieden zijn veelal in gebruik als agrarisch productielandschap of kennen agrarisch natuurbeheer. Binnen de stad benutten we transformatielocaties langs het Noordhollandsch Kanaal. In Overstad, Oudorp en Overdie verandert de ruimte voor bedrijvigheid. We streven naar minimaal behoud van ruimte voor economie, maar het type banen verandert. Bedrijven die niet meer passen in gemengde woon- werkgebieden horen thuis op de bedrijventerreinen.

Deze ruimtelijke realiteit vraagt om gerichte keuzes. Die vertalen we in drie actielijnen:

  • Slimmer omgaan met ruimte voor economie – We gebruiken alle beschikbare ruimte, ook die in bestaande ontwikkelgebieden. Denk aan intensiever ruimtegebruik en functiemenging. Zo maken we ruimte binnen de bestaande contouren.

  • Selectief zijn in welk type bedrijvigheid we waar willen faciliteren – We geven alleen ruimte aan initiatieven die bijdragen aan onze doelen: werkgelegenheid, duurzaamheid, innovatie en regionale versterking. Dat vraagt om scherpe afwegingen en actieve sturing.

  • Regionale lobby en realiseren ruimte voor economie – Als centrumgemeente trekken we samen op met regiogemeenten. We onderbouwen de noodzaak van uitbreiding van bedrijventerreinen en zetten in op ruimtelijke planvorming én concrete realisatie.

Groei in balans vraagt om ruimte én maatwerk voor ondernemers

afbeelding binnen de regeling

Ondernemers in Alkmaar ervaren knelpunten bij het realiseren van hun toekomstplannen. Dat blijkt uit de ondernemersenquête (zie bijlage C). Meer dan de helft van de respondenten loopt vast op hun huidige locatie. Bijna een kwart heeft extra ruimte of een andere plek nodig om te kunnen groeien. De belangrijkste belemmeringen zijn ruimtegebrek, beperkte uitbreidingsmogelijkheden en trage besluitvorming. Deze signalen maken duidelijk dat het tekort aan bedrijfskavels geen abstract probleem is, maar een dagelijkse realiteit. Een koers naar groei in balans vraagt daarom niet alleen om fysieke ruimte, maar ook om maatwerk, flexibiliteit en een proactieve houding van de gemeente richting ondernemers.

5.2 Actielijn 1 - Slimmer omgaan met ruimte voor economie

Alkmaar groeit, maar de ruimte is schaars. Als centrumgemeente moeten we slim en doelgericht omgaan met de ruimte voor economie. We benutten wat er al is beter, efficiënter en strategischer en zetten hier sterk op in. Zo creëren we ruimte zonder extra hectares aan te snijden. Dit doen we op drie manieren:

1.Bedrijventerreinen efficiënter en doelgerichter inzetten

We benutten de bestaande bedrijventerreinen zo optimaal mogelijk. Dat doen we met gerichte maatregelen:

  • Ruimtelijk – door bouwvlakken en -hoogtes efficiënter te benutten

    • We verhogen de maximale bouwhoogte, indien stedenbouwkundig passend.

    • We stellen een minimale bouwhoogte in voor nieuwe ontwikkelingen

    • Bij nieuwe ontwikkelingen hanteren we een minimale oppervlakte per bedrijf (denk bijvoorbeeld aan minimaal 200 of 250 m2 bvo) om versnippering en groei van bedrijfsverzamelgebouwen en garageboxen te voorkomen (met wijzigingsbevoegdheid van het college om uitzonderingen te maken). Bedrijfsverzamelcomplexen horen thuis in gemengde gebieden, conform het convenant werklocaties.

  • Economisch – door het faciliteren van de juiste bedrijven op de juiste plek

    • Sturen op doelgerichte vestiging op kavels met veel milieuruimte door bedrijven die dat écht nodig hebben.

    • Sturen op doelgerichte vestiging op watergebonden kavels voor bedrijven die afhankelijk zijn van het water.

    • Sturen op doelgerichte vestiging die rekening houdt met de schaarse ruimte op het lokale energienetwerk en mogelijkheden om energie te delen.

    • Bedrijven met lichte milieuhinder weren we van bedrijventerreinen. Uit de verkenning in bijlage D blijkt dat deze lichte bedrijfsfuncties – zoals consumentgerichte diensten, kleinschalige kantoren en maatschappelijke voorzieningen – goed kunnen landen in transformatiegebieden, de binnenstad of wijkcentra.

    • We sluiten nieuwe kantoorfuncties en detailhandel uit op de te behouden bedrijventerreinen door een specifieke toedeling van functies. Dit passen we toe via een uitsterfconstructie.

  • Duurzaam – ruimtegebruik en energie slim combineren

    • Zonneweides horen niet op bedrijventerreinen. We stimuleren zonnepanelen op bedrijfsdaken en (daken van) parkeerplaatsen.

    • Bij de economische ontwikkelstrategieën van individuele bedrijventerreinen wegen we ruimtegebruik, slim gebruik van schaarse energie, klimaatadaptatie, groen en circulariteit mee.

Organisatie – samenwerking via het Ondernemersloket

Accountmanagers signaleren investeringsmomenten en brengen partijen bij elkaar, zodat kavels en panden optimaal optimaler kunnen worden benut.

Het Ondernemersloket speelt een ondersteunende rol door ondernemers te begeleiden bij vestiging, verplaatsing en uitbreiding (zie ook tekstbox hiernaast).

2.Ruimte voor economie behouden én versterken in het Alkmaars Kanaal

De gebieden in het Alkmaars Kanaal veranderen van overwegend monofunctionele werklocaties naar gemengd woon-werkgebieden. We sturen actief op behoud van ruimte voor economie:

  • We behouden de totale ruimte voor economie. Dat is cruciaal voor een woon-werkbalans van 1 in 2040.

  • We programmeren ruimte voor stadsverzorgende én producerende functies, inclusief milieubelastende activiteiten die we verantwoord mengen. Daarbij letten we op logistieke ontsluiting, laad- en losmogelijkheden en een werkbare bedrijfsvoering.

  • We ondersteunen ondernemers via het Ondernemersloket bij: vestiging, verplaatsing en uitbreiding (zie ook tekstbox hieronder).

  • We leggen afspraken vast in het omgevingsplan, anterieure overeenkomsten en uitgifte- of erfpachtvoorwaarden. In gemengde gebieden eisen we een minimumaandeel werkfuncties per bouwplan, zoals werk in plinten of gebouwen. Op bedrijventerreinen Beverkoog en Boekelermeer richten we ons op niet- mengbare bedrijven met meer milieuruimte. Ook hier proberen we partijen te bewegen te verdichten. Andere functies zijn alleen welkom als ze de bedrijvigheid ondersteunen. Dit borgen we met instrumenten als:

    • Mengbaarheidsmatrix – geeft richting aan welke functies samen kunnen gaan en onder welke voorwaarden, zodat een evenwichtige mix van wonen en werken ontstaat.

    • Functiedifferentiatie – legt een minimumaandeel economische functies per cluster of gebouw vast, zodat werkruimte behouden blijft naast woningbouw.

    • Milieukaders – bepalen de voorwaarden voor milieubelastende activiteiten, zodat bedrijvigheid en leefkwaliteit in balans blijven.

    • Realisatievolgorde - zorgt dat de ontwikkeling van werkruimte gelijke tred houdt met woningbouw en eenzijdige groei wordt voorkomen.

Gemeentelijke ondersteuning voor ondernemers

Het Ondernemersloket Alkmaar is hét aanspreekpunt van de gemeente voor ondernemers. Onze accountmanagers begeleiden en adviseren ondernemers en startende ondernemers op het gebied van vestiging, verplaatsing en uitbreiding van bedrijven. En ondersteunen ten aanzien van de hiervoor benodigde vergunningen.

Voor vastgoedeigenaren in de binnenstad is onze Transitiemanager Binnenstad het aanspreekpunt voor begeleiding en advies met betrekking tot transformatie naar een toekomstbestendige binnenstad met een aantrekkelijk kernwinkelgebied.

Kritische kanttekening bij ruimteaanbod en functietype in huidige ontwikkelkaders

Hoewel de ambitie om werkgelegenheid te behouden in het Alkmaars Kanaal is verankerd, is het belangrijk te onderkennen dat het geplande ruimteaanbod relatief beperkt is. De nadruk ligt op lichte, goed mengbare functies met een lage milieubelasting. Wat onderbelicht blijft: veel stadsverzorgende bedrijven die er momenteel gevestigd zijn, zijn in theorie goed mengbaar maar hiervoor is beperkt ruimte gereserveerd. Tegelijk is het onzeker of er elders in de stad voldoende plek is voor bedrijven met een hogere milieuruimte, die minder goed mengen en niet passen binnen het gemengde programma. Daar komt bij dat er zorgen zijn over de daadwerkelijke haalbaarheid voor ondernemers om in het gebied gevestigd te blijven of zich opnieuw te vestigen. Factoren zoals betaalbaarheid van bedrijfsruimte, ruimtelijke inpassing en conflicten met woonfuncties kunnen belemmerend werken. Zonder expliciete borging dreigt verdringing – met directe gevolgen voor werkgelegenheid, economische diversiteit en de woon-werkbalans.

3.Wonen en werken combineren waar het kan

In delen van het Alkmaars Kanaal combineren we wonen en werken. Dat geldt voor bedrijven met milieubelastende activiteiten gelijk aan maximaal milieucategorie 3.1 (oude norm). Ondernemers hebben zorgen over hogere huren en mogelijke klachten van bewoners. We zoeken samen naar een goede balans. Via ontwerpend onderzoek brengen we hun wensen en mogelijkheden in beeld.

Het Omgevingsplan speelt hierbij een belangrijke rol. Via het zogenoemde mengpaneel7 kunnen we in gemengde gebieden – zoals delen van het Alkmaars Kanaal – hogere geluidnormen toestaan dan bijvoorbeeld in woonwijken zoals de Daalmeer. Zo creëren we ruimte voor bedrijvigheid én behoud van leefkwaliteit, passend bij de specifieke kenmerken van het gebied.

Slimmer ruimtegebruik vraagt om maatwerk en verplaatsing

afbeelding binnen de regeling

Zoals genoemd blijkt uit de ondernemersenquête dat respondenten knelpunten ervaren die samenhangen met ruimtegebruik op bedrijventerreinen. Tegelijkertijd blijkt uit de verdieping naar lichte functies op bedrijventerreinen dat ruim 300 bedrijven een potentiële verplaatsingspotentie hebben. Door deze functies gericht te verplaatsen, ontstaat ruimte op bedrijventerreinen voor bedrijven met een grotere ruimtevraag of hogere milieucategorie. Slimmer omgaan met ruimte betekent dus niet alleen intensiveren, maar ook herpositioneren op basis van functie, schaal en toekomstpotentie. Dat vraagt om maatwerk, samenwerking en een actieve rol van de gemeente in het faciliteren van transitie.

5.3 Actielijn 2 - Selectief zijn in welk type bedrijvigheid we waar willen faciliteren

Als centrumgemeente maken we scherpe keuzes in wat we wél en niet faciliteren. Deze keuzes passen binnen de drie actielijnen van dit programma: (1) slimmer omgaan met ruimte, (2) selectief zijn in bedrijvigheid en (3) regionale samenwerking en realisatie van extra ruimte. Zo benutten we de beschikbare ruimte optimaal en onderbouwen we onze uitbreidingsvraag richting provincie en regio. In deze paragraaf werken we Actielijn 2 uit: selectief zijn in welk type bedrijvigheid we waar willen faciliteren.

Bij de uitgifte van nieuwe kavels wegen we ten minste de toegevoegde waarde voor de regionale economie, het aantal arbeidsplaatsen, de inzet van buitenlandse werknemers, verkeersstromen, energieverbruik en ‑uitwisseling, landschappelijke inpassing en de ruimtelijke impact mee. Deze afweging is vastgelegd in het Convenant Werklocaties Regio Alkmaar.

Samen met buurgemeenten benutten we de regionale ruimte slim en versterken we de economie van Alkmaar én de regio.

Wat faciliteren we wél?

1.Lokale en doelgerichte logistiek

We maken ruimte voor kleinere logistieke bedrijven die belangrijk zijn voor de stad. Grootschalige logistiek faciliteren we niet, tenzij er een duidelijke koppeling is met lokale bedrijven. Activiteiten met weinig banen per hectare, zoals opslagunits, sluiten we uit.

2.Meer banen voor theoretisch geschoolden – mét behoud en versterking van werk voor praktisch en middelbaar geschoolden

Een derde van de Alkmaarders is theoretisch geschoold, terwijl slechts een kwart van de banen daarop aansluit. We verkleinen dit gat door te richten op energie en ICT en door talent lokaal te binden en te behouden. Dit is niet alleen belangrijk voor de economie, maar ook voor de woon‑werkbalans: hoe meer mensen in Alkmaar een passende baan vinden, hoe minder uitgaande pendel en hoe sterker de binding met de stad. Tegelijk behouden en versterken we banen voor praktisch en middelbaar geschoolden (o.a. in maakindustrie/ambacht, bouw & techniek en stadsverzorgende functies).

Diversiteit in het banenpakket is een randvoorwaarde voor brede welvaart en economische veerkracht.

We geven dit handen en voeten via onderwijs en ecosystemen. We intensiveren de triple‑helix‑samenwerking en zetten in op toekomstbestendig onderwijs met een sterke arbeidsmarktkoppeling (duale routes, fieldlabs/living labs, stages), en op Leven Lang Ontwikkelen binnen de Human Capital Agenda (HCA). Sterk onderwijs en innovatieve leeromgevingen maken Alkmaar aantrekkelijker voor werkenden én dragen bij aan het vasthouden van talent in de stad. Daarnaast biedt de agrarische sector in NHN potentie, mede door de opkomst van geautomatiseerde technieken. Greenport NHN, gevestigd in Alkmaar, verbindt onderwijs en bedrijfsleven. Alkmaar heeft een sterk mbo‑veld via VONK, maar slechts een beperkt groen‑technisch hbo‑veld. Door gerichte samenwerking en inzet kunnen we deze sector versterken en de aanwezige potentie optimaal benutten.

3.Investeren in kwalitatieve kantoren

We vervangen verouderde kantoren door hoogwaardige nieuwbouw in het stationsgebied. Zo versterken we het profiel van Alkmaar als vestigingsplek voor theoretisch opgeleiden en binden we talent aan de stad. Tegelijkertijd zien we dat de wens om woningen te bouwen in het stationsgebied de ruimte voor kantoren en voorzieningen onder druk zet. Als gemeente kunnen we dit sturen door actief te bevorderen dat het stationsgebied zich ontwikkelt tot een gemengd woon-werkgebied. Dit kan onder andere door:

  • duidelijke ruimtelijke kaders te stellen die zowel wonen als werken faciliteren, bijvoorbeeld door mixed-use te verankeren op gebieds- en/of pandniveau;

  • het aantrekkelijk maken van kantoorlocaties door hoogwaardige inrichting van de openbare ruimte en goede bereikbaarheid;

  • samenwerking met ontwikkelaars te stimuleren waarbij gemengde functies centraal staan;

  • het actief uitdragen van het profiel van Alkmaar als aantrekkelijke vestigingslocatie voor kennisintensieve bedrijven.

Ondernemers vragen om scherpe keuzes in ruimtelijk-economische ontwikkeling

afbeelding binnen de regeling

De resultaten uit de ondernemersenquête (zie bijlage C) onderstrepen het belang van een selectieve benadering in het faciliteren van bedrijvigheid. Ondernemers geven aan dat de beschikbare ruimte optimaal moet worden benut voor functies die écht bijdragen aan werkgelegenheid en lokale economie. Ze pleiten voor heldere kaders:

geen ruimte voor ‘opslagdozen’ of functies met lage economische waarde, maar juist voor innovatieve bedrijven, ambachtelijke ondernemers en sectoren die talent aan de stad binden. Ook benadrukken ze het belang van behoud van ruimte voor bedrijven met hogere milieucategorieën, die niet passen in gemengde woon-werkgebieden.

Afwegingen voor nieuwe uitleglocatie

Bij het ontwikkelen van een nieuw bedrijventerrein maken we bewuste keuzes die bijdragen aan een sterke, duurzame economie:

  • Uitgifte van kavels van circa 0,5 tot 2 hectare

    Deze omvang sluit aan bij de behoefte van lokale en regionale bedrijven die niet passen in gemengde woon-werkomgevingen.

  • Functietoedeling als toetsingskader

    Met specifieke functietoedeling (van milieubelastende activiteiten) in het op te stellen omgevingsplan sluiten we bepaalde lichte functies uit.

    Alleen bedrijven met een hogere milieugebruiksruimte (vanaf oude norm 3) komen in aanmerking. Lichtere bedrijvigheid hoort thuis in gemengde gebieden elders in de gemeente.

  • Hoge eisen aan kwaliteit en duurzaamheid

    We stellen eisen aan intensief ruimtegebruik (denk aan minimale bouwhoogte of minimale bebouwing van het bouwvlak), duurzaamheid, slimme omgang met energie, groen en water op de kavels en gezamenlijke parkeeroplossingen. Ook maken we lidmaatschap van parkmanagement via uitgiftevoorwaarden verplicht.

5.4 Actielijn 3 - Regionale lobby en realiseren ruimte voor economie

Ruimtegebrek overstijgt gemeentegrenzen

De ruimteopgave voor economische ontwikkeling is geen exclusief Alkmaars vraagstuk. Ook buurgemeenten zoals Dijk en Waard en de BUCH-gemeenten kampen met een tekort aan bedrijfskavels. Volgens de prognoses uit 2021 resteert er tot 2040 een regionale behoefte van circa 60 hectare netto. In het Convenant Werklocaties Regio Alkmaar (2022) is afgesproken om uit te gaan van het WLO-hoogscenario.

Nieuwe ruimte vinden is complex. Veel gemeenten worden omringd door Beschermd Landschap en hebben beperkte uitbreidingsmogelijkheden. Ten noorden van Alkmaar spelen bovendien infrastructurele knelpunten: de A9 eindigt in Alkmaar en de N9, N242 en N245 vormen flessenhalzen.

Uitbreiding vereist dus forse investeringen in bereikbaarheid en infrastructuur.

Deze opgave raakt aan de regionale investeringsagenda en sluit aan op de mobiliteitsanalyse die we samen met partners hebben opgesteld. We zetten daarbij niet alleen in op infrastructuur, maar op alle vervoerswijzen. Bereikbaarheid vertegenwoordigt niet alleen economische waarde, maar ook sociale en ecologische waarde – in lijn met de doelen van brede welvaart.

Actiegericht samenwerken aan ruimte voor economie

Afgelopen jaar is een regionale verkenning naar geschikte locaties voor economische ontwikkeling afgerond. Nu is het moment om als regio gezamenlijk keuzes te maken en concrete stappen te zetten. Als gemeente Alkmaar roepen we onze buurgemeenten op om samen met ons:

  • ruimtelijke keuzes te maken op basis van de uitkomsten van de verkenning;

  • gezamenlijk prioriteiten te stellen en deze te verankeren in lokaal en regionaal beleid;

  • de koppeling te maken met de regionale investeringsagenda en mobiliteitsanalyse, zodat bereikbaarheid en economische ontwikkeling hand in hand gaan;

  • een gezamenlijke lobby richting provincie en Rijk te voeren, met een breed gedragen regionale visie op werklocaties.

Zo zorgen we ervoor dat de regio klaar is voor de economische groei tot 2040, met voldoende ruimte voor bedrijvigheid én brede welvaart.

Ruimtevraag vanuit ondernemers vraagt om regionale samenwerking

afbeelding binnen de regeling

De uitkomsten van de ondernemersenquête (zie ook bijlage C) maken duidelijk dat de ruimtevraag van ondernemers niet alleen een Alkmaars vraagstuk is, maar een regionale opgave. Bijna een kwart van de respondenten kan hun toekomstplannen niet realiseren op de huidige locatie en ziet verplaatsing elders binnen de regio Alkmaar als een reële optie. Dit onderstreept het belang van een gezamenlijke strategie met buurgemeenten om ruimte voor economische groei veilig te stellen. Ondernemers vragen om daadkracht en afstemming: zij willen dat gemeenten samen optrekken in het zoeken naar uitbreidingslocaties, het oplossen van netcongestie en het verbeteren van bereikbaarheid. Een sterke regionale lobby richting provincie en Rijk is volgens hen essentieel om de regionale economische potentie te benutten en te voorkomen dat bedrijven de regio verlaten bij gebrek aan passende vestigingsmogelijkheden.

5.5 Uitvoering en vervolg

Van visie naar actie: zo voeren we het programma uit

Het Actieprogramma Economie 2040 vormt het strategische kader. Voor de korte termijn werken we dit uit in een uitvoeringsprogramma met concrete acties. Dit uitvoeringsprogramma bevat per actie een tijdspad, betrokken partijen, benodigde middelen en beoogde resultaten. Zo vertalen we de ambities naar projecten die direct bijdragen aan de economische kracht van Alkmaar.

Heldere rolverdeling en samenwerking

De uitvoering vraagt om nauwe samenwerking tussen gemeente, ondernemers, onderwijsinstellingen en andere partners. We leggen vast wie waarvoor verantwoordelijk is en zorgen voor een duidelijke rolverdeling, zodat iedereen weet wat er van wie wordt verwacht.

Monitoring en bijsturing

De voortgang volgen we via een jaarlijkse rapportage. Deze bespreken we met stakeholders en gebruiken we om het uitvoeringsprogramma waar nodig bij te stellen. Zo blijft het programma actueel, effectief en wendbaar, ook als omstandigheden veranderen.

5.6 Totaaloverzicht acties

In dit hoofdstuk zijn de drie actielijnen uitgewerkt die samen de kern vormen van het Actieprogramma Economie Alkmaar. Onderstaand overzicht biedt een compacte samenvatting van de acties per actielijn en het overkoepelende uitvoeringsprogramma. Dit overzicht dient als basis voor verdere uitwerking in het uitvoeringsprogramma en als handvat voor monitoring en bijsturing.

Actielijn 1 – Slimmer omgaan met ruimte voor economie

Thema

Acties

Ruimtelijk

  • Verhoging maximale bouwhoogte waar passend

  • Stel minimale bouwhoogte en minimale unitgrootte vast voor nieuwe ontwikkelingen – zowel op bestaande als op nieuwe bedrijventerreinen

Economisch

  • Sturen op doelgerichte vestiging op kavels met veel milieuruimte

  • Sturen op doelgerichte vestiging op watergebonden kavels

  • Sturen met specifieke toedeling van functies op behoud bedrijventerreinen voor bedrijven die hier qua milieuruimte ook echt gevestigd moeten zijn – lichtere functies (waaronder kantoren en detailhandel) faciliteren in transformatiegebieden, binnenstad of wijkcentra,

Duurzaam

  • Geen zonneweides op bedrijventerreinen

  • Stimuleren zonnepanelen op bedrijfsdaken en boven parkeerplaatsen

Organisatorisch

  • Samenwerking via het Ondernemersloket – potentie voor optimalere ruimtebenutting signaleren

Actielijn 2 – Selectief zijn in welk type bedrijvigheid we waar willen faciliteren

Thema

Acties

Logistiek

  • Enkel faciliteren kleinere, lokale logistiek met Alkmaarse binding

  • Uitsluiten grootschalige logistiek

Arbeidsmarkt

  • Focus op energie & ICT voor banengroei theoretisch geschoolden

  • Borg banendiversiteit voor praktisch en middelbaar geschoolden (maak/ambacht, bouw & techniek, stadsverzorgend)

  • Versterk talentbinding

Onderwijs

  • Versterk triple-helix samenwerking

  • Stimuleer fieldlabs, duale routes, stages en Leven Lang Ontwikkelen via Human Capital Agenda

Kantoren

  • Inzet op ontwikkeling mixed-use ov-knooppunten als toplocatie

  • Faciliteren kleinschalige kantoren (tot 750 m2 bvo) in Alkmaars Kanaal

  • Inzet op vernieuwing en transformatie verouderde kantoren

Actielijn 3 - Regionale lobby en realiseren ruimte voor economie

Thema

Acties

Samenwerking

  • Ruimtegebrek is regionaal probleem - samenwerking met buurgemeenten essentieel

Ruimteclaim

  • Realiseren nieuwe bedrijventerreinen in Regio Alkmaar

  • Actualiseer totale regionale behoefte bij nieuwe prognose en pas fasering adaptief aan

Investeringen

  • Prioriteer locaties en maak koppeling met regionale investeringsagenda en mobiliteitsanalyse

Lobby

  • Voor gezamenlijke regiopropositie richting provincie en Rijk

  • Maak afspraken over uitvoering en financiering

Uitvoering (overkoepelend)

Thema

Acties

Uitvoeringsprogramma

  • Uitvoeringsprogramma met tijdspad, betrokken partijen, benodigde middelen en beoogde resultaten

Samenwerking

  • Rolvast samenwerken (gemeente, ondernemers, onderwijs, regio)

Monitoring

  • Jaarlijkse monitoring en bijsturing waar nodig

Ondertekening

De raad van Alkmaar, 20 november 2025

mw. drs. A.M.C.G. Schouten, burgemeester

mw. mr. V.H. Hornstra, griffier

Bijlage A – Kaders en context

In dit hoofdstuk zoomen we in op de kaders en context die relevant zijn voor dit actieprogramma. De omgevingsvisie en de actualisatie hiervan zijn al toegelicht in hoofdstuk 4.

A.1Gemeentelijke beleidskaders

A.1.1Gemeentebrede beleidskaders

Actieprogramma Economie 2020 - 2024

Zoals toegelicht in de inleiding stelde de gemeente Alkmaar in 2020 het actieprogramma Economie 2020-2024 vast. Dit programma bouwt voort op de pijlers ‘Aantrekkelijk, Ondernemend & Innovatief en Uitnodigend’. Binnen deze pijlers wordt onderscheid gemaakt in verschillende thema’s en bijbehorende strategische doelstellingen.

Pijler Aantrekkelijk

  • Binnenstad

    We willen de binnenstad zo positioneren dat de gemiddelde verblijfstijd en de gemiddelde uitgave per bezoeker toenemen. Dit doen we door van de gehele binnenstad een goed op elkaar afgestemd systeem te maken. Denk aan het profileren van kwaliteitskenmerken en -functies en te zorgen voor passende bereikbaarheid voor bezoek (zowel kort/lang als dichtbij/ver weg). We willen naar een hogere kwaliteit van het winkelaanbod in het historisch centrum en een meer complete bewinkeling in Overstad.

  • Toerisme, recreatie en buitengebied

    Het versterken van Alkmaar als dé regionale stad om te bezoeken, te recreëren en te verblijven, gekoppeld aan een aantrekkelijk buitengebied met een herkenbare identiteit. We houden het beleid ten aanzien van horecavestigingen actueel. Ook willen we komen tot een meer eenduidige (regionale) promotie naar specifieke doelgroepen toe, met het jaarrond evenementenprogramma, passend bij het Alkmaarse DNA.

Pijler Ondernemend & Innovatief

  • Duurzame Innovatie

    Kennisontwikkeling en -versterking – We willen de kennisstructuur in Alkmaar en de regio compleet maken, met een structurele vertegenwoordiging op wo-niveau inclusief een goede aansluiting van onderwijs in de hele keten. Dit doen we door het laten aanhaken van meer mkb-bedrijven en snelgroeiende jonge bedrijven (scale-ups) bij het aanwezige kennisnetwerk en tegelijkertijd de samenwerking van dit netwerk optimaliseren binnen de samenwerking van overheid, onderwijs en bedrijfsleven. Verder wordt ingezet op het versterken van energie innovaties en IT, waardoor nieuwe werkgelegenheid ontstaat bij bestaande en nieuwe bedrijven, bijvoorbeeld op het Energy Innovation Park. Afstudeerders op alle niveaus blijven behouden voor de regio.

    IT-bedrijven aan de top - Samen met de sector gaan we het gesprek aan over de doorgroeimogelijkheden in Alkmaar. In de Kanaalzone en het stationsgebied bieden we een interessant vestigingsklimaat voor IT- bedrijven. Door nieuwe banen aan te bieden in combinatie met passende woon-werkmogelijkheden en brede voorzieningen, moet het mogelijk worden om nieuwe medewerkers/inwoners voor de IT-sector aan te trekken.

    Data science en smart city – De doelstelling is de digitale infrastructuur gereed te maken om de beleidsmonitoring te verbeteren en smart city- infrastructuur uit te rollen. We dagen bedrijven uit met nieuwe smart city- oplossingen, producten en diensten te komen, zodat de economie een extra stimulans krijgt. Een gunstig extra effect hiervan is dat de gemeente Alkmaar meer naamsbekendheid krijgt op deze thema’s. Het Mobility Laboratory levert oplossingen en instrumenten op voor huidige en toekomstige mobiliteitsvraagstukken die voortvloeien uit de groei- en bereikbaarheidsambities.

    Creatieve en innovatie werklocaties – Het doel is Alkmaar te positioneren als de gemeente die alle ruimte biedt aan creativiteit en innovatie. Uit creativiteit komen immers nieuwe economische activiteiten voort.

  • Onderwijs en arbeidsmarkt

    We werken aan evenwicht op de lokale en regionale arbeidsmarkt door het op maat aanbieden van arbeidsmarktprojecten aan bedrijven, werkzoekenden en werkenden middels een optimale samenwerking met het RPA. We maken gebruik van de bestaande organisatorische infrastructuur en optimaliseren de samenwerking met onderwijs en maatschappelijk partners.

Pijler Uitnodigend

  • Ruimte voor vitale woon-werkgebieden

    De doelstelling is ondernemers optimaal te faciliteren zodat letterlijk en figuurlijk ruimte ontstaat voor nieuwe bedrijvigheid alsmede behoud en uitbouw van bestaande bedrijvigheid. Waar mogelijk geven we hieraan invulling door het stimuleren van gemengde woon-werkgebieden.

  • Bereikbaarheid, mobiliteit en infrastructuur

    Onze doelstelling is een optimale bereikbaarheid in Alkmaar en een groei van innovatief vervoer. In 2025 is de haven op Boekelermeer gerealiseerd. Deze haven versterkt de watergebonden bedrijvigheid in de regio. Verder beschikt Alkmaar sinds 2020 over een glasvezelnetwerk.

    Daarnaast biedt de gemeente volop ruimte voor infrastructuur die nieuwe vormen van energie ondersteunt.

Agenda Duurzaam Alkmaar

De Agenda Duurzaam Alkmaar biedt een strategisch kader voor de verduurzaming van de stad tot 2050. De gemeente koppelt ecologische ambities aan economische kansen. Vier thema’s staan centraal: energie- en warmtetransitie, mobiliteit, klimaatadaptatie & biodiversiteit en circulaire economie. Elk thema bevat concrete doelen, uitvoeringsprogramma’s en monitoring. Economisch relevante speerpunten zijn:

  • Circulaire economie als groeimodel

    Alkmaar wil in 2050 volledig circulair zijn. De gemeente stimuleert circulair ondernemen, ondersteunt netwerken en geeft koplopers een podium. Er komt een nieuw grondstoffenbeleid. Bedrijven worden actief betrokken bij kennisdeling, innovatie en gedragsverandering. Ook in de bouw en infrastructuur worden circulaire principes toegepast.

  • Duurzame energie en innovatie

    De energietransitie biedt kansen voor lokale werkgelegenheid en innovatie. De gemeente werkt samen met bedrijven aan wind- en zonne- energieprojecten, waterstofproductie en slimme netwerken.

    Innovatieprojecten zoals POCITYF versterken de regionale kenniseconomie.

  • Duurzame mobiliteit en logistiek

    Alkmaar werkt aan een volledig emissievrije mobiliteit in 2050. Dat vraagt om nieuwe infrastructuur, gedragsverandering en slimme stadslogistiek. Samen met ondernemers ontwikkelt de gemeente hubs voor schone bevoorrading van de binnenstad en laadinfrastructuur voor ondernemers die hun wagenpark elektrificeren. Ook het gemeentelijk wagenpark wordt stap voor stap verduurzaamd.

    Daarnaast onderzoekt Alkmaar hoe bedrijventerreinen beter bereikbaar kunnen worden. Samen met regiogemeenten, de provincie en het Rijk werkt de gemeente aan een betere doorstroming op de ring Alkmaar. Tegelijkertijd actualiseert Noord-Holland Noord de bereikbaarheidsvisie voor de regio.

  • Groene leefomgeving als vestigingsfactor

    Investeringen in biodiversiteit, vergroening en klimaatadaptatie dragen bij aan een aantrekkelijke woon- en werkomgeving. Dit versterkt het vestigingsklimaat voor bedrijven en stimuleert duurzame gebiedsontwikkeling.

  • Publiek-private samenwerking als sleutel

    De gemeente werkt nauw samen met woningcorporaties, netbeheerders, ondernemers en kennisinstellingen. Deze samenwerking is essentieel voor het realiseren van de duurzaamheidsambities én het benutten van economische kansen.

Woonvisie Alkmaar 2040 (conceptversie)

Alkmaar groeit. De gemeente verwacht dat het aantal inwoners stijgt van circa 110.000 in 2023 naar ongeveer 140.000 in 2040. Om die groei op te vangen, wil Alkmaar tot 2040 zo’n 18.700 woningen bouwen. Er is nu al een tekort aan alle typen woningen. De woningbouwopgave moet daarom in balans zijn met de bevolkingsgroei.

Alkmaar wil een gemeente zijn waar mensen prettig wonen, leven en werken. Een gezonde en duurzame economie is daarvoor onmisbaar. Zonder economische draagkracht komen sociale en culturele voorzieningen onder druk te staan. Daarom biedt de gemeente ruimte aan sociaal ondernemerschap. Ook de overgang naar een circulaire economie krijgt een plek in de woonvisie. De gemeente heeft vier ambities geformuleerd voor de toekomst:

  • Groei en kracht in balans: toegankelijk, betaalbaar en beheersbaar wonen

  • Ongedeeld en inclusief: een vitale, leefbare en sociaal duurzame stad

  • Duurzaam, gezond, veilig en klimaatbestendig wonen

  • Samen doen: iedereen blijft in positie en pakt zijn of haar rol

Tot slot wijst de gemeente op haar wettelijke taak om aandachtsgroepen, zoals studenten en arbeidsmigranten te huisvesten. Ook dat heeft invloed op de lokale economie.

Verkenning universitair onderwijs in Alkmaar

De gemeente Alkmaar onderzocht in 2025 of universitair onderwijs in de stad haalbaar en wenselijk is8. De conclusie luidt dat realisatie op korte termijn niet voor de hand ligt. Wel biedt een middellangetermijnvisie, met een horizon van ongeveer vijf jaar, kansen om gericht te bouwen aan regionale ontwikkeling.

Door te focussen op kansrijke thema’s zoals energie, food & agri, zorg, nucleaire technologie, data science en biologie sluit Alkmaar aan bij haar economische sterktes. Als de gemeente daarnaast actief relaties opbouwt met colleges van bestuur van universiteiten, ontstaat ruimte om op termijn initiatieven aan te trekken. Denk aan fieldlabs of een universitaire dependance. Een sterke propositie is daarbij essentieel: het ecosysteem in en rond Alkmaar moet goed aansluiten op de strategische thema’s van potentiële partners.

Horecanota Alkmaar

In 2015 is de horecanota vastgesteld. Hierin is een aantal speerpunten opgenomen:

  • Vrij ondernemerschap (vertrouwen in de ondernemer, minder regulering, en ondernemer verantwoordelijk voor orde en veiligheid)

  • Vrije sluitingstijden (ondernemer mag zelf sluitingstijden bepalen, geen verplichte portiers)

  • Vestiging van nieuwe horeca/versterking van (dag)horeca in kernwinkelgebied (betere totaalbeleving, meer gezelligheid en sfeer)

Momenteel wordt gewerkt aan de actualisatie van het horecabeleid. Naar verwachting zal dit eind 2025 worden aangeboden aan de gemeenteraad.

Stedelijke Mobiliteitsvisie Alkmaar 2040

De Stedelijke Mobiliteitsvisie 2040 legt de basis voor een toekomstbestendige mobiliteit in Alkmaar. De visie versterkt zowel de leefbaarheid als de economische ontwikkeling van de stad. De visie kiest bewust voor een gelijkwaardige benadering van lopen, fietsen, openbaar vervoer en auto. Deze aanpak wordt gekoppeld aan verkeersveiligheid en een aantrekkelijke, goed bereikbare stad. De visie is tot stand gekomen via een breed participatief proces en opgevolgd met een uitwerkingsagenda. Voor dit actieprogramma is de relevantie direct: betere ontsluiting van (regionale) woon‑ en werklocaties, hogere OV‑ en fietsconnectiviteit en veilige doorstroming versterken het vestigingsklimaat, ondersteunen de woon‑werkbalans en borgen Alkmaars rol als regionale schakel tussen Noord‑Holland Noord en de MRA. Zo draagt de mobiliteitsvisie bij aan onze ambitie om de werkgelegenheid richting 2040 te laten meegroeien.

Strategienota Citymarketing en Evenementen 2024-2028

De gemeente Alkmaar zet citymarketing en evenementen in om de brede welvaart te versterken. De stad wil aantrekkelijk blijven voor bewoners, bezoekers, bedrijven en talenten. Citymarketing helpt om het imago van Alkmaar te versterken en economische groei te stimuleren.

De focus ligt op het aantrekken van kwalitatieve bezoekers, vooral in de rustige maanden. Evenementen zorgen voor levendigheid, versterken de identiteit van de stad en dragen bij aan sociale samenhang. Alkmaar ondersteunt lokale evenementen die passen bij het ‘Verhaal van Alkmaar’, zoals Kaeskoppenstad en Alkmaar Ontzet.

De gemeente werkt samen met Stichting Hart van Noord-Holland aan een professionele aanpak. Deze stichting verbindt publieke en private partijen en voert de citymarketing uit. Ook op regionaal niveau zoekt Alkmaar samenwerking om de aantrekkingskracht van de regio te vergroten. Door citymarketing en evenementen slim te combineren, bouwt Alkmaar aan een sterke economie én een prettige leefomgeving.

A.1.2Gebiedsspecifieke gemeentelijke beleidskaders en onderzoeken

Marktverkenning kantoorruimte in het Stationsgebied: focus op kwaliteit en locatie

In 2023 is een marktverkenning uitgevoerd naar de kansen voor kantoorruimte in het Stationsgebied van Alkmaar9. Daaruit blijkt dat goed bereikbare, multifunctionele locaties zoals deze het meest toekomstbestendig zijn. De vraag naar kantoorruimte groeit juist op dit soort plekken, ondanks de algemene afname van kantoorgebruik. Tot 2040 is er ruimte voor maximaal circa 16.000 m² extra kantoorruimte in het gebied. Om overaanbod te voorkomen, is het advies om plancapaciteit elders in de stad te beperken. De focus ligt op kleinschalige tot middelgrote gebruikers (tot 1.000 m²), met voorkeur voor locaties dicht bij de stationstoegangen. Naast kantoorruimte is er behoefte aan kleinschalige bedrijfsruimte, als aanvulling op de geplande horeca, winkels en maatschappelijke voorzieningen.

Onderzoek detailhandelsstructuur binnenstad Alkmaar: ruimte voor diversiteit

In 2020 is onderzoek gedaan naar de detailhandelsstructuur in de binnenstad van Alkmaar10. Ondanks de opkomst van online winkelen en afnemende passantenstromen (vooral in kleinere zijstraten), blijft Alkmaar aantrekkelijk als regionaal centrum met een historische binnenstad. Gezien de onomkeerbaarheid van de trend naar minder fysiek winkelen is een belangrijke keuze gemaakt: een tweetal hoofdwinkelstraten is aangewezen (Langestraat en de Laat) met daaromheen aanloopstraten (‘dwaalmilieu’) met verrassende winkels en nieuwe concepten. Daarnaast zijn er gebiedsprofielen opgesteld. Dit omdat er verschillende deelgebieden zijn met eigen kenmerken en kwaliteiten. De diversiteit benutten zorgt voor een betere aantrekkingskracht. Per deelgebied wordt bepaald in hoeverre functiemenging is toegestaan. Onderstaand figuur laat de verschillende gebiedsprofielen zien en onderstaande tabel geeft een samenvatting van de verschillende deelgebieden.

Figuur A.1: Visie gebiedsprofielen detailhandelsstructuur centrum van Alkmaar

afbeelding binnen de regeling

Bron: Detailhandelsstructuur binnenstad Alkmaar – DTNP (2020).

Tabel 7: Samenvatting belangrijkste kenmerken gebiedsprofielen detailhandelsstructuur

Gebied

Belangrijkste kenmerken

Hoofdwinkelstraten

  • Winkelen het leidende bezoekersmotief, aaneengesloten publieksplint

  • Ingericht op de grootste passantenstromen

  • Staat in het teken van grote ketens

Dwaalmilieu

  • Verrassend, authentiek, uniek en divers aanbod: conceptstores, horeca, (vers)speciaalzaken, galeries en zelfstandige modewinkels

  • Ruimte voor blurring-concepten en start-ups

  • Hoofdzakelijk voetgangersgebied met dubbelfunctie als (toeristisch) dwaalmilieu

Verbinding

  • Gemixte publiek-privéplinten, doelgerichte winkels voor lokaal bezoek

  • Zelfstandige speciaalzaken, diensten, ambachten, wonen en werken

  • Belangrijke verbindingen met andere delen van de stad (o.a. Overstad)

Stedelijke zone

  • Nieuw en grootstedelijk woonmilieu rondom Ringers (Overstad)

  • Doelgericht winkelcentrum met grootschalig aanbod

  • Winkel- en horeca-aanbod complementair aan de binnenstad

Woonboulevard

  • Concentratie meubelwinkels en bouwmarkten op Overstad

  • Aaneengesloten publieksplint

Bron: DTNP (2020), samenvatting Stec Groep (2025).

Quickscan Overstad als toekomstbestendig woonwinkelcluster

Overstad is het grootste woonwinkelcluster in Noord-Holland Noord en vervult een belangrijke regionale functie. Circa 80% van het woninginrichtingsaanbod in Alkmaar is hier gevestigd. De quickscan laat zien dat het huidige aanbod in balans is met de vraag. Ook richting 2035 blijft de omzetpotentie vergelijkbaar, ondanks de groei van online bestedingen en het toenemend aantal inwoners. De verwachte bevolkingsgroei in Alkmaar voor extra draagvlak. Tegelijk blijft de fysieke winkel relevant, vooral voor oriëntatie, advies en beleving. Voorwaarde voor behoud van het huidige aanbod is dat randvoorwaarden zoals bereikbaarheid en betaalbare huurprijzen op orde blijven.

Overstad kent een duidelijke tweedeling in het winkelaanbod (zie ook onderstaand figuur). Het zuidelijke deel, grenzend aan de binnenstad, vormt het GDV-cluster met grootschalige detailhandel zoals sportzaken, elektronicazaken en twee supermarkten. Het noordelijke deel is het PDV- cluster, gericht op verkoop van volumineuze artikelen zoals woninginrichtingszaken en doe-het-zelf-zaken. Deze indeling helpt om functies te clusteren, bezoekersstromen te sturen en het gebied toekomstbestendig te ontwikkelen. De quickscan adviseert om het huidige winkelaanbod op Overstad te behouden. Uitbreiding is niet nodig, maar consolidatie is realistisch. Wel vraagt de combinatie van grootschalige winkels en een groeiende woonfunctie om zorgvuldige ruimtelijke inpassing.

Figuur 10: Gebiedsindeling detailhandelsfuncties Overstad

afbeelding binnen de regeling

Bron: Quickscan detailhandel Overstad – DTNP (2025).

Functiemenging en economie Alkmaars Kanaal

In 2022 onderzochten we de mengbaarheid van bedrijven aan het Alkmaars Kanaal. We brachten in kaart hoeveel van het huidige ruimtegebruik gecombineerd kan worden met wonen, en onder welke voorwaarden dat mogelijk is. Uit het onderzoek blijkt dat de mengpotentie groot is. Veel bedrijven kunnen in theorie blijven als er woningen bijkomen. Toch is het bestaande vastgoed vaak niet geschikt om direct te mengen met wonen.

Transformatie is nodig. Na transformatie kan vergelijkbare bedrijvigheid terugkeren, mits er passende bedrijfsruimte beschikbaar komt. De betaalbaarheid van die ruimte is daarbij cruciaal, afhankelijk van de doelgroep. Hoe groot de vervangingsvraag precies is, weten we nog niet. Dat hangt af van de definitieve uitwerking van ontwikkelkaders en van de mate waarin bedrijven kunnen blijven, landen of terugkeren in de transformatiegebieden langs het kanaal.

Ontwikkelkaders Alkmaars Kanaal

De gemeente Alkmaar werkt aan een grootschalige transformatie langs het Noordhollandsch Kanaal. Vier ontwikkelkaders geven richting aan de gebiedsontwikkeling van Overstad, Overdie, Oudorp en Viaanse Molen. Elk gebied krijgt een eigen profiel, maar samen vormen ze een samenhangend stedelijk netwerk met ruimte voor wonen, werken, voorzieningen en groen.

Overstad: gemengd stadsdeel met stedelijke mix

Overstad verandert van een winkel- en werkgebied naar een gemengd stadsdeel met ruimte voor circa 1.700 nieuwe woningen (naast de 600 die al zijn gerealiseerd of in aanbouw zijn). Het programma groeit naar circa 490.000 m² bruto vloeroppervlak, waarvan ongeveer 60% wonen. De rest bestaat onder andere uit winkels, kantoren, cultuur en maatschappelijke voorzieningen. Overstad blijft dé locatie voor grootschalige detailhandel (PDV) in Alkmaar. De woonboulevard aan de Koedijkerstraat blijft behouden, maar krijgt een groenere en meer stedelijke uitstraling. De grootschalige eenlaagse winkels transformeren naar gestapelde city-concepten, waardoor ruimte ontstaat voor wonen en werken boven winkels. Het gebied krijgt een cultuurcluster rond de bioscoop en het poppodium, een centrale parkeervoorziening met multifunctionele plint en een groenblauw raamwerk met parken, pleinen en groene hoven. De identiteit van Overstad draait om ‘ontspannen stedelijkheid’, met een mix van wonen, werken en recreatie aan het kanaal. De ontwikkelstrategie zet in op geleidelijke groei. Door de versnipperde eigendomsstructuur ontstaat stap voor stap het nieuwe Overstad, op initiatief van eigenaren en gebruikers.

Oudorp: stedelijk woon-werkgebied in een groene setting

Bedrijventerrein Oudorp verandert in een gemengd woon-werkgebied met een duidelijke identiteit als ‘stedelijke gemeenschap’. In totaal komen er circa 3.300 woningen bij. De ambitie is dat de werkgelegenheid in het gebied minimaal behouden blijft. Elk bouwplan moet minimaal 20% werkfunctie bevatten, wat zorgt voor een blijvende economische dynamiek. Het gebied wordt ontwikkeld in clusters, waarbij samenwerking tussen eigenaren centraal staat. De Edisonweg transformeert tot levendige laan met werkfuncties in de plint. De Westfriese Omringdijk, de Drukkerij en de Scheepswerf Witsen zijn belangrijke ruimtelijke dragers. Er komen levendige plekken, kindlinten, recreatieve routes en een groen activiteitenplein. De gemeente investeert in de openbare ruimte en stelt spelregels op voor beeldkwaliteit, duurzaamheid en functiemenging. De transformatie gebeurt geleidelijk en organisch, met ruimte voor bestaande bedrijven om mee te bewegen.

Overdie: robuust gemengd stedelijk gebied

Overdie transformeert deels naar een gemengd stedelijk gebied. In de kanaalzone komen circa 13.500 m² aan werkfuncties en voorzieningen en zo’n 1.150 woningen. Het exacte aantal woningen is afhankelijk van de uitwerking per cluster. Het bestaande bedrijventerrein ten zuiden van de Strooijonkerstraat blijft behouden. Hier ligt de focus op verduurzaming van gebouwen en openbare ruimte. In de kanaalzone ontstaat een robuust kanaalpark van ruim 3 hectare met groene erven, een schegpark en een netwerk van wandel- en fietsroutes. De Herculesstraat wordt de centrale ontsluitingsroute met levendige plinten voor werkfuncties. De bebouwing varieert van drie tot acht lagen, met enkele hoogteaccenten tot twaalf tot zestien lagen. Overdie krijgt een stoer en informeel karakter, met ruimte voor maakbedrijven, creatieve industrie en kleinschalige kantoren. De ontwikkelstrategie voor Overdie is gericht op een geleidelijke en flexibele transformatie. Het is belangrijk dat het proces daarbij net zo veel aandacht krijgt als het eindresultaat. We zorgen ervoor dat werken niet verdrongen wordt door wonen. Om deze reden is het plan zo opgebouwd dat het nieuwe woon-werkgebied zich kan ontwikkelen naast het bestaande bedrijventerrein. Zo ontstaat ruimte voor verschillende stedelijke functies én voor een mix van tempo’s in de ontwikkeling.

Viaanse Molen: de zachte stad aan het kanaal

Viaanse Molen wordt een groene, duurzame stadswijk met ruim 2.000 nieuwe woningen verdeeld over vijf ontwikkeleilanden: Kantorenpark, Pendorp, Sluiseiland, Kanaaldijk (Plan Buitenvaart) en Bedrijvenpark + Connexxionterrein. Het programma bestaat uit 80% wonen en 20% werken/voorzieningen, met ruimte voor buurtkamers, zorg, sport en maatschappelijke functies. Elk eiland krijgt een eigen karakter en ontwikkelsnelheid. De transformatie is organisch en gebaseerd op samenwerking tussen eigenaren. Het landschapspark verbindt de eilanden en vormt de ruimtelijke drager. De groene inrichting is leidend: elke ontwikkeling moet minimaal 20% van de eigen kavel met groen (of water) inrichten. Het Kantorenpark transformeert tot een levendige gemengde stadswijk. Pendorp wordt een unieke levendige en duurzame woonomgeving waar wonen, werken, ondernemen en ontspannen samenkomen. Sluiseiland wordt ontwikkeld tot laagbouwmilieu met onder andere gezinswoningen en bijzondere woonvormen. Plan Buitenvaart (Kanaaldijk) bestaat uit vijf woongebouwen met in twee gebouwen bedrijfsruimte (bijvoorbeeld voor horeca of maatschappelijke voorzieningen) in de plint. Het Bedrijvenpark en Connexxionterrein behouden hun werkfunctie maar vernieuwing en nieuwbouw zijn – indien passend – mogelijk en op sommige locaties ook gewenst. De strategie is gericht op een organische ontwikkeling van de Viaanse Molen. Het gebied bestaat uit meerdere ontwikkeleilanden. Die veranderen, in verschillende fasen en via diverse initiatieven. Niet alle eigenaren hebben herontwikkelplannen; zij sluiten op termijn aan bij het nieuwe karakter van de Viaanse Molen als Zachte stad.

A.2Regionale beleidskaders Regio Alkmaar

Economische visie Regio Alkmaar 2026 (2016)

De economische visie voor de Regio Alkmaar richt zich op vier sporen die samen zorgen voor een toekomstbestendige economie:

  • Sturen op een rijk areaal aan toeristische, verblijfsrecreatieve en retail voorzieningen. We willend dat deze gevarieerd en gericht is op specifieke doelgroepen, zodat we het profiel krijgen van de vrijetijdsbestemming, waar de (terugkerende) bezoeker met naam en persoonlijke wensen bekend is bij de ondernemer.

  • Sturen op een duurzame en brede regionale economie met energie en agri-business als profiel, sectoren die ook van wezenlijk belang zijn voor het functioneren van metropoolregio’s maar daar per definitie geen voedingsbodem hebben.

  • Sturen op een evenwichtige demografische opbouw, waardoor bedrijven, organisaties en instellingen aan voldoende personeel kunnen komen, voorzieningen in de breedte op peil gehouden kunnen worden en er een basis blijft om welvaart en welzijn bereikbaar te maken voor alle inwoners, ongeacht hun beperking. Een goede evenwichtige opbouw is voor de middellange termijn essentieel. De regie daarop zal, in kleine stapjes, in de huidige en komende jaren vorm moeten krijgen.

  • Sturen op samenwerking tussen industriële bedrijven, zorg, onderwijs en gemeenten, zodat het economisch en sociaal domein als vanzelfsprekend met elkaar zijn verbonden en de ‘schotten’ tussen regelgeving en budgetten zijn weggenomen. Onderwijs dat invulling geeft aan de economie van morgen ondersteunt dit spoor. Hierdoor worden voor iedereen mogelijkheden en kansen op de arbeidsmarkt gecreëerd. En met onderwijs van nu dat invulling geeft aan de economie van morgen.

Deze vier sporen vormen samen de kern van de visie. Ze vragen om samenwerking tussen sectoren en overheden om economische én sociale doelen te bereiken.

Strategie werklocaties Regio Alkmaar (2022)

De Strategie werklocaties Regio Alkmaar is opgesteld in 2022. De behoefteraming werklocaties Noord-Holland Noord (zie hoofdstuk 3) vormde hiervoor een belangrijke basis. Bedrijventerreinen staan voor meerdere opgaven. Naast ruimte voor nieuwe ontwikkelingen spelen ook thema’s als vergroening, waterberging en energietransitie een grote rol. Transformatie is daarbij een belangrijk thema. De druk op beschikbare kavels is groot.

Daarom kiest de regio voor adaptief programmeren. Hiertoe zijn regionaal afspraken gemaakt. Die afspraken moeten bijdragen aan een economisch vitale regio Alkmaar met de juiste hoeveelheid en kwaliteit bedrijventerreinen.

Deze leidende principes gaan over de volgende thema’s:

  • evenwichtige verhouding vraag en aanbod

  • vervangingsvraag vanuit transformatie

  • additionele vraag (vanuit de MRA en elders)

  • kwaliteit bestaande voorraad bedrijventerreinen

  • bereikbaarheid

  • buitenlandse werknemers

  • energietransitie en duurzaamheid

  • circulaire economie

  • accommoderen van vraag

  • kantoren

  • monitoring en bovenregionale afstemming NHN

Deze principes zijn vastgelegd het Convenant werklocaties Regio Alkmaar (2022).

Inventarisatie uitbreidingslocaties bedrijventerreinen regio Alkmaar

In 2024 bracht regio Alkmaar de uitbreidingsmogelijkheden voor bedrijventerreinen in kaart11. Tien kansrijke locaties zijn geselecteerd en beoordeeld op zeventien aspecten, zoals bereikbaarheid en ruimtelijke inpassing. Sommige locaties liggen in het ‘Beschermd Landschap’. Dat maakt eventuele ontwikkeling extra uitdagend. De analyse laat zien dat ruimtelijke ontwikkeling in de regio steeds complexer wordt. De druk op de schaarse ruimte neemt toe, net als de behoefte aan groen, waterberging en energieopwekking. Ook verkeersdruk en netwerkknelpunten vormen belemmeringen. De inventarisatie maakt het spanningsveld zichtbaar tussen economische groei en ruimtelijke kwaliteit. De regio heeft weinig uitbreidingsopties. Dat vraagt om slimme, creatieve keuzes die ruimte bieden aan bedrijven én de leefomgeving beschermen.

Detailhandelsvisie Regio Alkmaar 2025

Regio Alkmaar heeft in 2017 een detailhandelsvisie tot en met 2025 opgesteld. Doel is een sterke winkelstructuur en het voorkomen van leegstand. De regio heeft hierover duidelijke afspraken gemaakt:

  • Nieuwe detailhandelsontwikkelingen groter dan 1.500 m² bvo worden regionaal afgestemd. Kleinere plannen blijven een verantwoordelijkheid van de gemeente, zolang ze passen binnen de detailhandelsvisie.

  • Vanwege het regionale overschot aan winkelmeters en de bestaande leegstand, wordt terughoudend omgegaan met het uitbreiden van het winkelareaal.

  • Nieuwe ontwikkelingen moeten de bestaande winkelstructuur versterken. Recreatieve gebieden moeten een identiteit ontwikkelen die past bij de doelgroep, functiemenging stimuleren en compacter worden gemaakt. Boodschappengebieden moeten een uitstekend dagelijks aanbod creëren, diversiteit aan supermarkten stimuleren en eveneens compacter worden gemaakt. Doelgerichte winkelgebieden moeten waar mogelijk meters saneren en leisure-activiteiten toevoegen. Gemeenten streven naar een geleidelijke afname van het aantal solitaire winkelmeters ten bate van de winkelgebieden binnen de structuur.

  • Nieuwe ontwikkelingen buiten de structuur krijgen een negatief advies, tenzij het gaat om basisvoorzieningen in kleine kernen of detailhandel als ondergeschikte nevenactiviteit.

  • In doelgerichte winkelgebieden blijven de bestaande branchebeperkingen van kracht. Hier worden geen verruimingen toegestaan.

  • Pick up points voor online bestellingen worden een vast onderdeel van toekomstbestendige winkelgebieden.

  • Gemeenten volgen jaarlijks de veranderingen in winkelvestigingen via Locatus en rapporteren hierover.

Visie Toerisme en Recreatie Regio Alkmaar 2025

De visie op toerisme en recreatie in Regio Alkmaar 2025–2035 zet in op duurzame groei die bijdraagt aan brede welvaart. Voor Alkmaar en de regio betekent dit dat toerisme niet alleen economische waarde moet opleveren, maar ook moet bijdragen aan de leefbaarheid en het behoud van natuur- en cultuurhistorische kwaliteiten. De nadruk ligt op kwaliteit in plaats van kwantiteit.

De opgaven in de regio Alkmaar bestaan uit het regionale recreatieaanbod beter benutten en verduurzamen, het verbeteren van de bekendheid van de parels in Regio Alkmaar, het waarborgen van de balans tussen leefbaarheid en economische groei en het verlichten van de druk op natuurgebieden. De ambities en opgaven monden uit in twee concrete doelstellingen: seizoenspreiding en ruimtelijke spreiding. Om de doelstellingen te behalen, zijn er vier pijlers geïdentificeerd die de basis vormen voor het nog op te stellen uitvoeringsprogramma. Deze strategische pijlers zijn:

  • 1

    verbeteren van het aanbod

  • 2

    verbinden van plekken en routes

  • 3

    vertellen van het verhaal van de regio

  • 4

    verenigen van de samenwerking met partners

Alkmaar speelt hierin een sleutelrol als stedelijke trekker en toegangspoort tot de regio. De stad kan toerisme verbinden met andere opgaven, zoals woningbouw, mobiliteit en duurzaamheid. Zo draagt toerisme niet alleen bij aan economische groei, maar ook aan een aantrekkelijke en leefbare stad.

A.3Regionale beleidskaders - Noord-Holland Noord

Ontwikkelperspectief Noord-Holland Noord

In februari 2024 heeft de provincie Noord-Holland het eerste concept Ruimtelijk Voorstel vrijgegeven voor consultatie. Dit voorstel benoemt de belangrijkste ruimtelijke vraagstukken en keuzes die gemaakt moeten worden. De provincie ziet het Ruimtelijk Voorstel als startpunt voor gesprekken met gemeenten en andere regionale partners. Voor het zuidelijke deel van de provincie is het verstedelijkingsconcept MRA, opgesteld door Rijk en regio, belangrijke input geweest. Voor het noordelijke deel ontbreekt nog een integrale, bovenregionale toekomstvisie. Bestuurlijk is de intentie uitgesproken om samen met de 17 gemeenten in Noord-Holland Noord, de provincie, het hoogheemraadschap en het Rijk een ontwikkelperspectief voor Noord-Holland Noord op te stellen. Hierin worden keuzes gemaakt over oplossingsrichtingen, maatregelen en afspraken over de ruimtelijke ontwikkeling van het gebied. Dat gaat ook om afspraken over investeringen: aan het Ontwikkelperspectief NHN zal een Regionale Investeringsagenda worden verbonden.

Het proces om tot een ontwikkelperspectief en bijbehorende investeringsagenda te komen, loopt naar verwachting van september 2024 tot en met december 2026. Keuzes die in dit proces worden gemaakt, kunnen aanleiding zijn om de omgevingsvisie op provinciaal en/of gemeentelijk niveau aan te passen. Onderwerpen die in het ontwikkelperspectief aan de orde komen, zijn onder andere: zoetwaterbeschikbaarheid, economische ontwikkeling en landgebruik, de transitie van de landbouw, netcongestie en energieopwekking, gezonde leefomgeving, woningbouwopgave, bereikbaarheid, klimaat- en toekomstbestendig bouwen, omgevingskwaliteit en recreatie.

Economische Agenda Noord-Holland Noord 2024-2040

Afgelopen jaar is de Economische Agenda Noord-Holland Noord 2024- 2040 opgesteld. Hierin staan drie economische hoofdambities centraal:

  • Agri & Food – innovatief cluster van groot belang voor duurzame voedselvoorziening dat samenkomt in Greenport NHN

  • Water – beeldbepalende rol van het water in zowel sterk ontwikkelde en innovatieve maritieme sector als ook in het waterbeheer met de Port of Den Helder als centrum

  • Energie – broedplaats voor innovaties in hernieuwbare energie met een regionale voortrekkersrol in de nieuwe waterstofeconomie. Specifiek is het Energy Innovation Park (op Boekelermeer in Alkmaar) de locatie voor duurzame gas gerelateerde innovaties. Het ook op Boekelermeer gevestigde InVesta is het expertisecentrum voor groene moleculen en op het terrein is een waterstofhub gerealiseerd.

Vervolgens wordt in de Economische Agenda ingezoomd op (regionale) structuurversterkende maatregelen. De regio streeft er naar om aan te sluiten bij de nationale Actieagenda mkb-dienstverlening, om vanuit netwerksamenwerking het hele mkb te versterken. Elf relevante factoren zijn geïdentificeerd die van belang zijn voor alle economische sectoren in de regio (dus niet alleen voor Agri & Food, Water en Energie). Deze elf factoren zijn: (1) ontwikkeling onderwijs en werkpotentieel, (2) beschikbaarheid van energie, verduurzaming & besparing, (3) digitalisering en nieuwe technologieën, (4) grondstoffen hergebruiken en zorgen dat ze afbreekbaar zijn, (5) ruimte voor bedrijvigheid (zowel kwalitatief als kwantitatief), (6) toegang tot financiering, (7) optimale bereikbaarheid, (8) omgevingskwaliteit, (9) beschikbaarheid van woonruimte, (10) beschikbaarheid van assets zoals zoet water, stikstofruimte etc. en (11) samenwerken binnen en buiten Noord-Holland Noord.

Mobiliteitsopgaven Noord-Holland Noord

De regio Noord-Holland Noord staat voor mobiliteitsuitdagingen en -kansen. De regio groeit snel door de forse woningbouwopgave en kent een bloeiende en groeiende economie met het Maritiem Cluster (Defensie), de Greenport en de groei van bedrijventerreinen. Om deze groei leefbaar en bereikbaar te houden, is een integrale mobiliteits-aanpak nodig. Zonder ingrijpen worden de ambities op het gebied van leefbaarheid, gezondheid en veiligheid in 2040 niet gehaald. Alternatieven voor autoverkeer zoals fiets, OV en spoor zijn cruciaal om files, luchtvervuiling en sociale uitsluiting tegen te gaan.

In deze mobiliteitsaanpak staat brede welvaart centraal. Brede welvaart voor Noord-Holland Noord betekent om vanuit mobiliteit in te zetten op:

  • Economische vitaliteit – het versterken en bereikbaar houden van de economische kerngebieden in een regio

  • Sociale inclusiviteit – ervoor zorgen dat werk en voorzieningen in met name de landelijke gebieden voor iedereen bereikbaar zijn

  • Gezondheid – inzetten op de kwaliteit van leven, waaronder ook verkeersveiligheid, meer bewegen en betere luchtkwaliteit

  • Kwaliteit leefomgeving – een aantrekkelijke openbare ruimte met meer ruimte voor ontmoeten en groen

  • Duurzaamheid – een emissievrije manier van reizen en duurzaam gebruik van materialen

A.4Provinciale beleidskaders – Noord-Holland

Omgevingsvisie Noord-Holland 2050

De provincie Noord-Holland streeft in haar omgevingsvisie naar een evenwichtige balans tussen economische groei en leefbaarheid. Dit houdt in dat de basiskwaliteit van de leefomgeving wordt gewaarborgd en dat economische ontwikkeling altijd in samenhang met dit uitgangspunt wordt bekeken. De visie bevat randvoorwaarden voor het omgaan met klimaatverandering. De provincie ontwikkelt zoveel mogelijk natuurinclusief en behoudt karakteristieke landschappen, clustert ruimtelijke economische ontwikkelingen rond infrastructuur en houdt rekening met de ondergrond.

De visie beschrijft vijf bewegingen met ontwikkelprincipes voor de leefomgeving:

  • Dynamisch schiereiland: het benutten van de unieke ligging van Noord- Holland te midden van water is leidend.

  • Metropool in ontwikkeling: de Metropoolregio Amsterdam functioneert steeds meer als één stad.

  • Sterke kernen, sterke regio’s: ontwikkeling van centrumgemeenten die de

  • regio vitaal houden.

  • Nieuwe energie: benut de economische kansen van de energietransitie.

  • Natuurlijke en vitale landelijke omgeving: ontwikkeling van natuurwaarden en een economisch duurzame agrarische sector.

Uitvoeringsagenda duurzame en circulaire economie 2025-2028

In de periode 2025–2028 zet de provincie Noord-Holland in op vier speerpunten om de overgang naar een duurzame en circulaire economie te versnellen.

  • Duurzame en circulaire ondernemingen

    De provincie stimuleert circulaire bedrijfsvoering, samenwerking binnen ketens en verduurzaming van de industrie. Hierbij gaat bijzondere aandacht uit naar het midden- en kleinbedrijf (mkb), dat vaak beperkte middelen heeft om deze stap te zetten. Ondersteunende initiatieven zoals ketenaanjagers en circulaire ambassadeurs helpen bedrijven bij deze transitie.

  • Ruimtelijke ontwikkeling voor economische groei

    Vanwege de beperkte beschikbaarheid van fysieke ruimte en milieugebruiksruimte, is gerichte ruimtelijke planning essentieel. Noord- Holland werkt aan een toekomstvisie voor de economie en ontwikkelt daarbij een ruimtelijke strategie gericht op de circulaire economie. Ook worden bedrijventerreinen en zeehavens verduurzaamd.

  • Stimulering van innovatie en internationale samenwerking

    De provincie investeert in een krachtig innovatieklimaat, met extra aandacht voor innovatieve mkb-bedrijven. Programma’s zoals GO!-NH en PIM worden doorontwikkeld. Ook wordt internationale samenwerking bevorderd om duurzame economische groei te versterken.

  • Arbeidsmarkt en onderwijs op elkaar afstemmen

    Noord-Holland zet zich in voor een betere verbinding tussen onderwijs en de arbeidsmarkt, met een focus op technische en technologische beroepen. Door middel van campussen en het Manifest Werken en Ontwikkelen wordt gewerkt aan duurzame inzetbaarheid en het opleiden van vakmensen voor de circulaire economie.

Bijlage B – Economische foto - verdieping

Dit hoofdstuk biedt extra inzichten in de Alkmaarse economie. Deze inzichten volgen op de uiteenzetting van het belang van de Alkmaarse economie in hoofdstuk twee.

B.1Verdieping woon-woonwerkbalans

Twee perspectieven op de woon-werkbalans

Bij het analyseren van de woon-werkbalans onderscheiden we twee invalshoeken die elk een ander aspect van stedelijke dynamiek belichten:

  • 1

    Woon-werkbalans op basis van werkzame beroepsbevolking versus banen

    Dit is de benadering, zoals toegelicht in paragraaf 2.1. De ratio geeft aan hoeveel banen er in de gemeente zijn ten opzichte van het aantal werkenden (werkzame beroepsbevolking). Een waarde van 1 betekent dat er in theorie voor iedere werkende inwoner een baan beschikbaar is in de eigen gemeente. Een disbalans – bijvoorbeeld veel meer werkenden dan banen – leidt tot extra pendel, druk op infrastructuur en een verlies aan lokale binding. Voor Alkmaar is deze balans de afgelopen tien jaar licht verslechterd: van 1,04 in 2014 naar 0,99 in 2024. Met de verwachte bevolkingsgroei tot 2040 ontstaat een forse opgave om deze balans te herstellen.

  • 2

    Woon-werkbalans op basis van woningen versus banen

    Een tweede benadering kijkt naar de verhouding tussen het aantal woningen en het aantal banen. Deze indicator zegt minder over pendelstromen, maar geeft inzicht in de functionele mix van een stad: hoeveel ruimte is er voor economische functies ten opzichte van wonen? Een evenwichtige verhouding draagt bij aan een levendige stad met voorzieningen, werkgelegenheid en een aantrekkelijk vestigingsklimaat. Een sterke scheefgroei – bijvoorbeeld veel woningen en weinig banen – kan leiden tot een ‘slaapstadeffect’, terwijl terwijl een overschot aan banen zonder voldoende woningen juist druk zet op bereikbaarheid en leefkwaliteit.

Relatie tussen beide perspectieven

Beide indicatoren vullen elkaar aan. De eerste is cruciaal voor het binden van lokaal talent en het beperken van pendel. De tweede helpt bij het sturen op een robuuste stedelijke structuur waarin wonen, werken en voorzieningen in balans zijn. Voor Alkmaar, dat tot 2040 circa 15.000 woningen toevoegt, is het belangrijk om beide balansen te monitoren. Alleen zo voorkomen we dat de stad eenzijdig groeit en blijft Alkmaar een centrumgemeente met een sterke economische basis.

Alkmaar in vergelijking met andere gemeenten

We maken een vergelijking tussen de gemeente Alkmaar en soortgelijke gemeenten. We gebruiken hiervoor de indelingen van het CBS: sterk stedelijke gemeenten met 100.000 tot 300.000 inwoners12. Alkmaar scoort onder het gemiddelde op beide typen woon-werkbalans. Zo heeft Alkmaar een verhouding banen/werkzame beroepsbevolking van 0,99, terwijl deze gemiddeld 1,08 is. Ook bij de verhouding banen/woningen (1,14) blijft Alkmaar achter bij het gemiddelde (1,31). Dit bevestigt dat Alkmaar relatief veel woningen heeft ten opzichte van banen, wat de noodzaak onderstreept om extra werkgelegenheid te creëren om de stedelijke balans te behouden.

Tabel B1: Typen woon-werkbalans in vergelijkbare gemeenten

Gemeente

Woon-werkbalans – banen en werkzame beroepsbevolking

Gemeente

Woon-werkbalans – banen en woningen

Zwolle

1,46

Zwolle

1,81

's-Hertogenbosch

1,29

's-Hertogenbosch

1,54

Arnhem

1,27

Arnhem

1,48

Venlo

1,22

Apeldoorn

1,45

Leeuwarden

1,21

Amersfoort

1,40

Apeldoorn

1,19

Venlo

1,38

Breda

1,11

Nijmegen

1,35

Enschede

1,10

Breda

1,34

Nijmegen

1,10

Leeuwarden

1,29

Amersfoort

1,06

Enschede

1,24

Deventer

1,02

Deventer

1,24

Alkmaar

0,99

Ede

1,24

Dordrecht

0,98

Alkmaar

1,14

Ede

0,95

Almere

1,12

Zaanstad

0,84

Dordrecht

1,12

Almere

0,81

Zaanstad

1,03

Alphen a/d Rijn

0,79

Alphen a/d Rijn

1,01

Gemiddeld

1,08

Gemiddeld

1,31

Bron: CBS, LISA en ABF (2024, peiljaar 2023), bewerking Stec Groep (2025).

B.2Economische structuur Alkmaar

Sterke sectoren en specialisaties

De werkgelegenheidsontwikkeling per sector is afgezet tegen de specialisatiegraad in de regio. De specialisatiegraad maakt inzichtelijk in welke mate een bepaalde sector over- of ondervertegenwoordigd is ten opzichte van de regio. Figuur B1 laat zien hoe de economie van Alkmaar is opgebouwd. De sectoren overheid, zorg en onderwijs en dienstverlening en ICT zijn het grootst in aantal banen. Beide sectoren groeiden de afgelopen tien jaar licht en hebben een bovengemiddeld aandeel in de regio (specialisatiegraad boven de 100%). Ook logistiek en groothandel is sterker vertegenwoordigd dan gemiddeld in de regio. Opvallend is de sector afval, energie en water. Hoewel deze sector relatief klein is, scoort hij zeer hoog op specialisatiegraad. Dat komt onder andere door de aanwezigheid van GP Groot (recycling), HVC (afvalverwerking en energiecentrale) en TAQA (energieproductie) op bedrijventerrein Boekelermeer.

Figuur B1: Economische structuur gemeente Alkmaar

afbeelding binnen de regeling

Bron: LISA (2014-2023), bewerking Stec Groep (2025).

Landbouwsector in de gemeente Alkmaar

In 2024 is ongeveer 1% van het totaal aantal banen in de gemeente Alkmaar in de landbouwsector. De meeste landbouwbedrijven liggen in het ‘Beschermd Landschap’. Dit gebied heeft een beschermings-regime om waardevolle landschappen in de provincie te behouden. Die bescherming draagt bij aan het behoud van unieke kernwaarden, maar kan ook invloed hebben gehad op de ontwikkeling van de landbouwsector in Alkmaar. Voor werklocaties is de werkgelegenheid een belangrijke economische maatstaf. De economische waarde van landbouw ligt ook op zaken als voedselzekerheid, natuurbeheer, werkgelegenheid bij toelevering en verwerking.

B.3Werkgelegenheid naar type werklocaties

Ruim 60% van de banen op formele werklocaties

Zoals toegelicht in paragraaf 2.3 onderscheiden we vier typen werklocaties: bedrijventerrein, kantoorlocatie, gemengde werklocatie en winkelgebied. In totaal is zo’n 60% van de werkgelegenheid gevestigd op een van deze formele werklocaties.

Op de bedrijventerreinen werken bijna 16.000 mensen, ruim een kwart van het totaal. In winkelgebieden is bijna 20% van de werkgelegenheid te vinden, waarvan meer dan de helft in het centrum. Hier gaat het om banen in onder meer retail, horeca en dienstverlening. Grote werkgevers in dit gebied zijn de gemeente Alkmaar, Politie Alkmaar, Zaffier en UWV, vooral rond het Mallegatsplein. Kantoorlocaties huisvesten zo’n 13% van de banen, gemengde werklocaties ongeveer 3%. Dat betekent ook dat 40% van de werkgelegenheid buiten deze formele locaties valt. De grootste werkgever daar is het Noordwest Ziekenhuisgroep met ruim 3.500 banen. Andere grote spelers zijn Zorgcirkel Westerhout (circa 650 banen), NIKO (circa 390 banen) en AZ (circa 310 banen). Daarnaast zijn er veel middelgrote en kleine bedrijven buiten de formele locaties actief, waaronder zelfstandigen die vanuit huis werken.

Tabel B2: Werkgelegenheid naar type werklocatie in 2024

Type werklocatie

Banen

Aandeel van totaal

Bedrijventerrein

15.800

26%

Kantorenlocatie

8.100

13%

Gemengde werklocatie

2.100

3%

Winkelgebied

11.600

19%

Buiten werklocaties

23.700

39%

Totaal

61.400

100%

Bron: LISA (2024), bewerking Stec Groep (2025).

Informele en gemengde gebieden steeds belangrijker in toekomstige economie Alkmaar

Ruim 60% van de banen in Alkmaar is gevestigd op formele werklocaties. Toch groeit het belang van locaties buiten deze gebieden. De komende jaren neemt het aandeel banen in informele en gemengde gebieden verder toe.

Vier trends verklaren deze ontwikkeling:

  • Transformatie van bedrijventerreinen

    Bedrijventerreinen langs het Alkmaars Kanaal veranderen in gemengde woon-werkgebieden. Dat levert een toekomstbestendige stad op met veel woonruimte, maar vraagt ook om slimme keuzes voor economische ruimte.

  • Groei van zelfstandigen

    Steeds meer mensen werken als zelfstandige. Zij registreren hun werkplek vaak aan huis, maar werken ook op andere locaties. De groei vlakt recent iets af, mede door strengere controles op schijnzelfstandigheid door de Belastingdienst.

  • Technologische ontwikkelingen

    Robotisering, automatisering en kunstmatige intelligentie zorgen niet voor minder werk, maar wel voor verschuivingen tussen sectoren.

  • Mengbare bedrijfsactiviteiten

    Productieprocessen worden schoner en stiller. Daardoor mengen bedrijven makkelijker met woonfuncties. Veel bedrijven zoeken bovendien een aantrekkelijke werkplek dicht bij de stad, personeel en klanten. Dat speelt vooral bij dienstverlenende bedrijven.

Grote mengpotentie bedrijvigheid langs het Alkmaars Kanaal

In 2022 onderzochten we de mengbaarheid van bedrijven aan het Alkmaars Kanaal. We brachten in kaart hoeveel van het huidige ruimtegebruik gecombineerd kan worden met wonen, en onder welke voorwaarden dat mogelijk is. Uit het onderzoek blijkt dat de mengpotentie groot is. Veel bedrijven kunnen in theorie blijven als er woningen bijkomen. Toch is het bestaande vastgoed vaak niet geschikt om direct te mengen met wonen.

Transformatie is nodig. Na transformatie kan vergelijkbare bedrijvigheid terugkeren, mits er passende bedrijfsruimte beschikbaar komt. De betaalbaarheid van die ruimte is daarbij cruciaal, afhankelijk van de doelgroep. Hoe groot de vervangingsvraag precies is, weten we nog niet. Dat hangt af van de definitieve uitwerking van ontwikkelkaders en van de mate waarin bedrijven kunnen blijven, landen of terugkeren in de transformatiegebieden langs het kanaal.

Bijlage C - Ondernemers- enquête

In dit hoofdstuk geven we inzicht in de resultaten van de ondernemersenquête. Deze online enquête is in juni en juli 2025 verspreid onder ondernemers in Alkmaar. Hierin is gevraagd naar de verwachte ontwikkelrichting van hun bedrijf. Ook is geïnventariseerd wat ondernemers belangrijk vinden in het Actieprogramma Economie.

C.1Kenmerken respondenten

Bijna 45% respondenten op bedrijventerreinen in Alkmaar gevestigd

In totaal hebben ruim 230 ondernemers in de gemeente Alkmaar de enquête ingevuld. Bijna 45% van hen is gevestigd op een bedrijventerrein binnen de gemeente. Ongeveer een kwart van de respondenten heeft een locatie in de binnenstad. Daarnaast is zo’n 10% actief in een wijkwinkelcentrum.

Onderstaande tabel laat de vestigingslocatie van de respondenten van de ondernemersenquête zien.

Tabel C.1: Vestigingslocatie respondenten

Vestigingslocatie

Aandeel respondenten

Bedrijventerrein

44%

Binnenstad Alkmaar

25%

Wijkwinkelcentrum

10%

In of aan huis

9%

Kantorenlocatie

7%

Buitengebied

5%

Overig

2%

Totaal

100%

Bron: Ondernemersenquête Alkmaar (peildatum juni/juli 2025), bewerking Stec Groep (2025).

Zo’n 30% van de respondenten actief in detailhandelssector

Ongeveer 30% van de respondenten is actief in de detailhandel. Daarnaast werkt 20% in de zakelijke dienstverlening. Nog eens 19% bevindt zich in de horeca, leisure of andere consumentgerichte diensten. Ongeveer een kwart van de ondernemers is actief in sectoren die vooral op bedrijventerreinen zijn gevestigd, zoals industrie, bouw, logistiek en groothandel. Onderstaand figuur laat de sector verdeling van de respondenten van de ondernemersenquête in meer detail zien.

Figuur C.1: Sectorverdeling respondenten

afbeelding binnen de regeling

Bron: Ondernemersenquête Alkmaar (peildatum juni/juli 2025), bewerking Stec Groep (2025).

C.2Verwachte ontwikkelrichting

Groei in personeel en bedrijfsruimte vaak genoemde ontwikkelrichting

In de ondernemersenquête is respondenten gevraagd naar de verwachte ontwikkelrichting van hun bedrijf. Respondenten konden meerdere antwoorden selecteren. Vaak genoemde ontwikkelrichtingen zijn: groei in personeel, geen grote veranderingen en groei in bedrijfsruimte. Zie ook onderstaand figuur.

Figuur C.2: Hoe verwacht u dat uw onderneming zich zal ontwikkelen?

afbeelding binnen de regeling

Bron: Ondernemersenquête Alkmaar (peildatum juni/juli 2025), bewerking Stec Groep (2025).

Ruim de helft van de respondenten verwacht knelpunten of heeft andere locatie nodig

Na de vraag over de verwachte ontwikkelrichting is de ondernemers gevraagd of deze toekomstplannen op de huidige locatie gerealiseerd kunnen worden. Zo’n 36% van de respondenten heeft aangegeven dat dit zonder problemen kan. Ongeveer 32% geeft aan dat dit kan, maar dat er knelpunten zijn. Bijna een kwart geeft aan dat de toekomstplannen niet gerealiseerd kunnen worden op de huidige locatie. Zie ook onderstaand figuur.

Figuur C.3: Kunt u deze toekomstplannen op uw huidige locatie realiseren?

afbeelding binnen de regeling

Bron: Ondernemersenquête Alkmaar (peildatum juni/juli 2025), bewerking Stec Groep (2025).

Ruimtelijke, infrastructurele en beleidsmatige knelpunten remmen toekomstplannen van Alkmaarse bedrijven

Ondernemers die op de voorgaande vraag aan hebben gegeven dat toekomstplannen op de huidige locatie gerealiseerd kunnen worden, maar dat er knelpunten zijn is vervolgens gevraagd wat deze knelpunten inhouden. Onderstaande tabel geeft een overzicht van de knelpunten naar locatie.

Tabel C.2: Wat zijn knelpunten op uw huidige locatie?

Type locatie

Knelpunten

Bedrijventerreinen

(34 reacties)

  • Energie & netcongestie - Tekort aan elektriciteit, vertraging in aansluiting, congestie op het netwerk, zorgen over toekomstige energiebehoefte

  • Bereikbaarheid & mobiliteit - Slechte ontsluiting tijdens spits, beperkte ov-verbindingen, verkeersdrukte op de ring, knelpunten bij kruisingen

  • Ruimtegebrek - Beperkte uitbreidingsmogelijkheden, tekort aan bedrijfs- en opslagruimte, strikte m²-grenzen

  • Parkeren - Onvoldoende parkeergelegenheid voor personeel en bezoekers

  • Gemeentelijke samenwerking - Trage besluitvorming, erfpachtconstructies, gebrek aan terugkoppeling bij herontwikkelingsplannen

  • Veiligheid & openbare ruimte - Meeuwenoverlast, slecht onderhoud, wateroverlast, onvoldoende cameratoezicht

  • Woningtekort voor personeel - Moeilijkheden bij het aantrekken van personeel door gebrek aan woonruimte

  • Verhuurproblematiek - Hoge huren, leegstand door belastingvoordelen voor verhuurders

Binnenstad

(9 reacties)

  • Bereikbaarheid - Moeilijke bevoorrading, beperkte toegang voor klanten, parkeerproblemen

  • Leegstand & aantrekkingskracht - Verminderde traffic, afwezigheid van grote ketens, verpaupering van winkelstraten

  • Vastgoedkwaliteit - Verouderde panden, hoge kosten voor verduurzaming

  • Visie & beleid - Onzekerheid over toekomstvisie van de gemeente, gebrek aan commerciële strategie

Wijkwinkelcentra

(6 reacties)

  • Parkeren - Tekort aan parkeerplaatsen, zorgen over behoud van blauwe zones

  • Huurprijzen - Te hoge huur voor kleine ruimtes met laag rendement

  • Leegstand - Verminderde aantrekkelijkheid van het wijkcentrum

  • Fatbikes & fietsen - Overlast of onduidelijkheid over regulering

Kantorenlocatie

(3 reacties)

  • Ruimte - Behoefte aan extra ruimte en werkplekken bij groei

  • Energie - Zorgen over energievoorziening

  • Vastgoed - Veroudering en noodzaak tot onderhoud van panden

Buitengebied

(3 reacties)

  • Bestemmingsplan - Beperkende regels voor uitbreiding, hoop op versoepeling via nieuwe omgevingswet

  • Natura2000 & NNN - Beperkingen door ligging in beschermde natuurgebieden

  • Herindeling - Onduidelijkheid over toekomstige inrichting van het gebied

Bron: Ondernemersenquête Alkmaar (peildatum juni/juli 2025), bewerking Stec Groep (2025).

Ondernemers in Alkmaar ervaren op alle typen vestigingslocaties structurele knelpunten die hun toekomstplannen belemmeren. De aard verschilt per plek, maar er zijn duidelijke gemene delers:

  • Energie: netcongestie, beperkte aansluitcapaciteit en onzekerheid over beschikbaarheid remmen groei en verduurzaming.

  • Bereikbaarheid: slechte ontsluiting, beperkte ov-verbindingen, krappe parkeerruimte en lastige bevoorrading vormen een breed knelpunt.

  • Ruimtegebrek: uitbreiden is vaak onmogelijk door fysieke grenzen of planregels, vooral op bedrijventerreinen, in de binnenstad en het buitengebied.

  • Gemeentelijke samenwerking en beleid: ondernemers ervaren trage besluitvorming, onduidelijke procedures en weinig terugkoppeling bij herontwikkeling en vergunningen.

  • Leegstand en aantrekkelijkheid winkelgebieden: leegstand, verouderde panden en dalende bezoekersaantallen zorgen voor zorgen over de aantrekkelijkheid.

  • Financiële druk: hoge huren en erfpachtconstructies beperken de investeringsruimte, vooral in de binnenstad en wijkcentra.

Kortom: de knelpunten vragen om een integrale aanpak op energie, bereikbaarheid, ruimte en gemeentelijke dienstverlening. Zonder actie stagneert de economische ontwikkeling van Alkmaar.

Bij beperkte mogelijkheden op huidige locatie is verhuizing binnen Alkmaar of regio meest realistisch

Ondernemers die hun toekomstplannen niet op de huidige locatie kunnen realiseren, hebben verschillende opties overwogen. De meeste respondenten zien een verhuizing binnen de gemeente Alkmaar of de regio als de meest realistische oplossing. Daarnaast noemt ongeveer een derde van hen uitbreiding op de huidige locatie als mogelijkheid, bijvoorbeeld door aankoop of huur van een aangrenzend bedrijfspand. Deze keuzes geven inzicht in hoe ondernemers hun groei willen vormgeven wanneer de huidige locatie geen ruimte meer biedt.

Figuur C.4: Opties voor de toekomst – uitbreiden op huidige locatie of verhuizen?

afbeelding binnen de regeling

Bron: Ondernemersenquête Alkmaar (peildatum juni/juli 2025), bewerking Stec Groep (2025).

C.3Ontwikkelingen Alkmaars Kanaal

Randvoorwaarden voor vestiging in Alkmaars Kanaal

Uit de enquête blijkt dat ondernemers duidelijke randvoorwaarden zien voor vestiging in een van de deelgebieden van het Alkmaars Kanaal.

  • Goede bereikbaarheid is cruciaal. Ondernemers noemen openbaar vervoer, auto, fiets en voldoende parkeergelegenheid voor klanten en leveranciers.

  • Daarnaast hechten ondernemers waarde aan een geschikt pand, qua grootte en indeling, dat aansluit bij hun bedrijfsvoering. Ook de zichtbaarheid van de locatie speelt een rol, bijvoorbeeld vanaf drukke straten of centrale plekken. Voorzieningen zoals horeca, winkels en supermarkten maken de locatie aantrekkelijker

  • Een prettige en veilige leef- en werkomgeving, bij voorkeur duurzaam en energiezuinig, wordt eveneens gewaardeerd. Sommige ondernemers kijken bovendien naar de toekomstige ontwikkelingsmogelijkheden van het gebied, zoals woningbouw en kantoorruimte, die kunnen zorgen voor een groeiende klantenbasis.

  • Tot slot wordt ook ondersteuning vanuit de gemeente genoemd als een factor die de vestiging aantrekkelijker maakt, bijvoorbeeld via marketing, evenementen of subsidies.

Ondernemers verwachten impact van transformatie

Ruim 40% van de ondernemers in transformatiegebieden verwacht enige tot aanzienlijke invloed op de toekomst van hun bedrijf op deze locatie als gevolg van de transformatie. Deze ondernemers zijn vooral gevestigd op Oudorp en Overdie en actief in de sectoren industrie en bouw, handel en reparatie. Een kwart weet nog niet wat de gevolgen zullen zijn. Ongeveer een derde ziet geen impact en zet de bedrijfsactiviteiten ongewijzigd voort. Deze laatste groep is vooral actief op Overstad en Viaanse Molen. Ze werken in de sectoren zakelijke dienstverlening en ICT en consumentendiensten (detailhandel en horeca, leisure en overige diensten.

Figuur C.5: Invloed transformatie Alkmaars Kanaal op toekomst bedrijf en huidige locatie

afbeelding binnen de regeling

Bron: Ondernemersenquête Alkmaar (peildatum juni/juli 2025), bewerking Stec Groep (2025).

C.4Toekomst van de Alkmaarse economie

Innovatie & technologie, maakindustrie en ambacht en detailhandel vaakst genoemd als te versterken sectoren

Veel ondernemers zien kansen voor de toekomst van de Alkmaarse economie. Zij noemen vooral de sectoren innovatie en technologie, maakindustrie, ambacht en detailhandel als versterkingspunten. Deze sectoren worden het vaakst genoemd als kansrijk voor verdere ontwikkeling. De onderstaande figuur laat zien hoe vaak deze sectoren zijn genoemd door de respondenten.

Figuur C.6: Welke sectoren moeten volgens u versterkt worden?

afbeelding binnen de regeling

Bron: Ondernemersenquête Alkmaar (peildatum juni/juli 2025), bewerking Stec Groep (2025).

De gemeente moet meer fysieke ruimte creëren voor economie volgens helft respondenten

Ruim de helft van de respondenten vindt dat de gemeente Alkmaar meer fysieke ruimte moet vrijmaken voor economische activiteiten. Bijna 20% is het daar niet mee eens. Ongeveer 30% weet het niet of heeft geen mening.

Zie de figuur hieronder voor de verdeling van de antwoorden.

Figuur C.7: Moet de gemeente Alkmaar meer fysieke ruimte creëren voor economie?

afbeelding binnen de regeling

Bron: Ondernemersenquête Alkmaar (peildatum juni/juli 2025), bewerking Stec Groep (2025).

Fysieke ruimte cruciaal voor ondernemers.

Vervolgens is de respondenten gevraagd naar het belang van het creëren van fysieke ruimte voor economie. Bijna 60% van de ondernemers in Alkmaar vindt het belangrijk dat er fysieke ruimte komt voor economische activiteiten. Voor bijna 40% is dit zelfs extreem belangrijk. Zie de figuur hieronder voor de volledige verdeling.

Figuur C.8: Hoe belangrijk is het creëren van meer fysieke ruimte voor economie in uw ogen voor ondernemers in Alkmaar?

afbeelding binnen de regeling

Bron: Ondernemersenquête Alkmaar (peildatum juni/juli 2025), bewerking Stec Groep (2025).

Waarin onderscheidt de Alkmaarse economie zich?

Daarna is de respondenten gevraagd waarin zij vinden dat de Alkmaarse economie zich onderscheidt. Onderstaande tabel geeft een overzicht van de open antwoorden op deze vraag.

Tabel C.3: Waarin onderscheidt de Alkmaarse economie zich?

Thema

Toelichting

Ligging en regionale functie

Verschillende antwoorden benadrukken de strategische ligging van Alkmaar aan de rand van de Randstad en haar rol als centrumgemeente voor Noord-Holland Noord

Ondernemersklimaat en mentaliteit

Veel respondenten noemen het sterke mkb, familiebedrijven, lokale verbondenheid, no-nonsense mentaliteit en onderlinge samenwerking als onderscheidende kenmerken.

Sectoren

Alkmaar wordt genoemd als sterk in zorg, techniek, bouw, energie, detailhandel, ICT en maakindustrie. Ook het Energy Innovation Park en recyclingbedrijven worden genoemd.

Toerisme en cultuur

De historische binnenstad, kaasmarkt, evenementen en musea worden vaak genoemd als economische dragers. Toerisme wordt gezien als een groeikans, mits goed gespreid over het jaar.

Bereikbaarheid en infrastructuur

Respondenten noemen de centrale ligging, prima ov-verbindingen en de noodzaak van betere ontsluiting van bedrijventerreinen zoals Boekelermeer.

Duurzaamheid en innovatie

Alkmaar wordt geprezen om haar voortrekkersrol in de energietransitie, circulaire economie en duurzame stedelijke ontwikkeling.

Samenwerking en gemeente

Er is waardering voor het ondernemersfonds en samenwerking tussen ondernemers, maar ook kritiek op trage besluitvorming en gebrek aan daadkracht vanuit de gemeente.

Authentiek karakter en beleving

De stad wordt gewaardeerd om haar authentieke karakter, sfeervolle binnenstad, lokale winkeliers, AZ als publiekstrekker en culturele identiteit.

Bron: Ondernemersenquête Alkmaar (peildatum juni/juli 2025), bewerking Stec Groep (2025).

Alkmaar: veelzijdige economie met lokale wortels en groeipotentie

De Alkmaarse economie onderscheidt zich door een combinatie van strategische ligging, een sterk mkb-klimaat, en een diversiteit aan sectoren. Ondernemers waarderen vooral de centrale positie in Noord-Holland Noord en de nabijheid van de Randstad. Die ligging maakt Alkmaar aantrekkelijk als vestigingsplaats. De stad kent een robuuste structuur van familiebedrijven, zelfstandigen en lokale ondernemers, die zorgen voor een hechte gemeenschap en een veerkrachtige economie.

Ook de historische binnenstad, culturele evenementen en toeristische trekpleisters – zoals de iconische kaasmarkt – versterken het profiel van Alkmaar. Duurzaamheid en innovatie komen vaak terug, met initiatieven als het Energy Innovation Park en een actieve rol in de energietransitie.

Ondernemers zien ook verbeterpunten. Ze noemen trage besluitvorming, leegstand in het centrum en beperkte ontwikkelruimte. Toch overheerst het beeld van een stad met veel potentie, waar samenwerking, ondernemerschap en regionale verbondenheid de basis vormen voor verdere economische groei.

Welke keuzes of richtingen ziet u graag terug in het Actieprogramma Economie?

Tot slot is ondernemers gevraagd welke keuzes of richtingen ze graag terugzien in het Actieprogramma Economie. Ondernemers in Alkmaar spreken een duidelijke behoefte uit aan een economisch beleid dat praktisch, toekomstgericht en inclusief is. De meest genoemde thema’s zijn:

  • Bereikbaarheid en infrastructuur - De bereikbaarheid van zowel de binnenstad als bedrijventerreinen wordt als cruciaal gezien. Ondernemers vragen om betere ov-verbindingen, parkeergelegenheid en ontsluiting van economische zones zoals de Boekelermeer.

  • Duurzaamheid en circulaire economie - Er is brede steun voor vergroening, hergebruik van grondstoffen en energie-innovatie. Ondernemers zien hierin kansen voor economische groei én maatschappelijke impact.

  • Samenwerking en gemeentelijke ondersteuning - Respondenten pleiten voor een proactieve en toegankelijke houding van de gemeente, met minder bureaucratie en meer ruimte voor initiatief en maatwerk.

  • Onderwijs en arbeidsmarkt - De aansluiting tussen onderwijs en bedrijfsleven moet beter. Ondernemers willen investeren in talentontwikkeling, stages en huisvesting voor studenten om jong talent aan de regio te binden.

  • Binnenstad en toerisme - Leegstand, winkelaanbod en beleving in de binnenstad vragen om gerichte actie. Toerisme wordt gezien als een groeimotor, mits goed gespreid en verbonden met cultuur en lokale identiteit.

  • Ruimte voor ondernemers - Er is behoefte aan betaalbare bedrijfsruimtes, broedplaatsen en flexibele werkplekken, vooral voor het mkb en startende ondernemers. Ook wordt gepleit voor behoud van ruimte voor bedrijven met hogere milieucategorieën.

  • Innovatie en digitalisering - Ondernemers willen ondersteuning bij digitale transformatie en kennisdeling, bijvoorbeeld via innovatiehubs en slimme infrastructuur.

De rode draad is dat ondernemers vragen om een integraal en daadkrachtig economisch beleid dat ruimte biedt voor groei, samenwerking en vernieuwing. Alkmaar heeft volgens hen alle ingrediënten in huis om zich te ontwikkelen tot een aantrekkelijke, duurzame en ondernemende stad – mits de randvoorwaarden op orde zijn.

C.5Vragenlijst

Onderstaande vragenlijst is gebruikt voor de online ondernemersenquête.

1.Bedrijfslocatie

1.1 Waar is uw bedrijf momenteel gevestigd?

  • Op een bedrijventerrein

  • Op een kantorenlocatie (bijvoorbeeld Bergermeerpolder/Olympiapark, Boekelermeer Robijnstraat, Viaanse Molen kantorenzone, etc.)

  • In de binnenstad van Alkmaar

  • In een wijkwinkelcentrum (bijvoorbeeld De Mare, De Hoef, Geert Groteplein, Oudorperplein, etc.)

  • In/aan huis

  • In het buitengebied

  • Anders, namelijk: _______

1.2 Wat zijn de vier cijfers van de postcode van uw bedrijfslocatie?

  • Antwoord:__ __ __ __

2.Verdieping bedrijfslocatie

2.1 Op welk bedrijventerrein bent u gevestigd?

  • Boekelermeer

  • Beverkoog

  • Overdie

  • Oudorp

  • Overstad

  • Viaanse Molen

  • Neerlandia (Stompetoren)

  • De Volger (De Rijp)

  • Anders, namelijk: _______

2.2 Op welke kantorenlocatie bent u gevestigd?

  • Stationsgebied

  • Bergermeerpolder / Olympiapark

  • Boekelermeer Robijnstraat

  • Hoornse Vaart (rondom station Alkmaar Noord)

  • Viaanse Molen kantorenzone

  • Anders, namelijk: ________

2.3 In welk (wijk)winkelcentrum bent u gevestigd?

  • Overstad

  • De Mare

  • De Hoef

  • Centrum Oudorp

  • Oudorperplein

  • Geert Groteplein

  • Willem de Zwijger

  • Wendelaarstraat

  • Vondelgalerij

  • Muiderwaard

  • Daalmeer (Johanna Naberstraat)

  • Centrum De Rijp

  • Anders, namelijk: ______

3.Bedrijfsprofiel

3.1 Wat is/zijn de belangrijkste activiteit(en) van uw bedrijf? (kies het best passende antwoord)

  • Industrie en productie

  • Bouwnijverheid

  • Handel, reparatie en/of onderhoud

  • Groothandel

  • Logistiek en transport (vervoer en opslag)

  • Detailhandel

  • Horeca, leisure en overige consumentendiensten

  • Zakelijke dienstverlening

  • ICT

  • Overheid

  • Zorg

  • Onderwijs

  • Anders, namelijk: ________

3.2 Hoeveel medewerkers heeft uw bedrijf inclusief uzelf? (tel alle parttime en fulltime medewerkers bij elkaar op)

  • Aantal personen: _________

3.3 Wat voor type vastgoed hebt u nu in gebruik? (kies het best passende antwoord – bij meerdere, kies de grootste/belangrijkste)

  • Bedrijfshal met kantoorruimte

  • Bedrijfshal zonder kantoorruimte

  • Bedrijfsverzamelgebouw

  • Kantoorgebouw (enige gebruiker)

  • Kantoorgebouw (meerdere gebruikers)

  • Showroom

  • Winkelruimte

  • In/aan huis

  • Anders, namelijk: ________

3.4 Bent u de eigenaar van uw bedrijfslocatie?

  • Ja, ons/onze pand(en) is/zijn in eigen bezit

  • Nee, wij huren

  • Deels in eigen bezit, deels gehuurd

  • Anders, namelijk: ________

3.5 Wat is (ongeveer) de omvang van uw huidige bedrijfspand? (indien meerdere panden in de gemeente: totale pandoppervlakte)

  • __ __ __ __ m²

4.Toekomst van uw onderneming

4.1 Hoe verwacht u dat uw onderneming zich zal ontwikkelen richting 2040? (meerdere antwoorden mogelijk)

  • Groei in personeel

  • Groei in bedrijfsruimte

  • Krimp in personeel

  • Krimp in bedrijfsruimte

  • Verplaatsing naar een andere locatie

  • Overdracht of stoppen

  • Geen grote veranderingen

  • Anders, namelijk: _________

4.2 Kunt u deze toekomstplannen op uw huidige locatie realiseren?

  • Ja, zonder problemen

  • Ja, maar er zijn knelpunten

  • Nee, ik heb extra ruimte of een andere locatie nodig

  • Weet ik niet

  • Anders, namelijk: ________

4.3 Wat zijn knelpunten op uw huidige locatie?

  • Toelichting: __________________________

4.4 Welke opties passen bij uw toekomstplannen?

Optie

Realistisch

Neutraal

Uitgesloten

Uitbreiden op huidige locatie door intensivering/optimalisering ruimtegebruik

Uitbreiding op huidige locatie door aankoop/huur aangrenzende bedrijfslocatie

Uitbreiding met extra vestiging in bestaand pand/bedrijfsverzamelgebouw

Verhuizing naar een andere locatie in de gemeente Alkmaar

Verhuizing naar een andere locatie in de regio Alkmaar (buiten gemeente Alkmaar, maar in Dijk en Waard of één van de BUCH-gemeenten)

Verhuizing naar een andere locatie in Noord-Holland (buiten regio Alkmaar)

Verhuizing naar een andere locatie buiten Noord-Holland

4.5 Welke locatie heeft uw voorkeur en is deze locatie beschikbaar?

  • Voorkeurslocatie: ____________________________________

  • Beschikbaar: Ja / Nee / Onbekend

5.Alkmaars Kanaal

Het Alkmaars Kanaal is een grootschalig stedelijk transformatieproject in Alkmaar met zes deelgebieden: Viaanse Molen, RWZI, Stationsgebied, Overstad, Oudorp en Overdie.

5.1 Wat zijn voor u randvoorwaarden om u te vestigen in een van de deelgebieden in het Alkmaars Kanaal?

  • Toelichting: ________________________________________

5.2 In hoeverre heeft het transformatieproject Alkmaars Kanaal invloed op de toekomst van uw bedrijf op uw huidige locatie?

  • Geen invloed – wij blijven hier ook in de toekomst gevestigd en zetten onze activiteiten ongewijzigd voort

  • Enige invloed – wij blijven voorlopig, maar zijn voorzichtig met investeringen en volgen de ontwikkelingen

  • Aanzienlijke invloed – we overwegen (op termijn) te verhuizen of onze activiteiten aan te passen

  • Grote invloed – we verwachten of zijn van plan om te moeten verhuizen of onze bedrijfsvoering stop te zetten

  • Onzeker – het is nog niet duidelijk wat de gevolgen zijn voor ons bedrijf

  • Anders, namelijk: __________

5.3 Kunt u uw antwoord toelichten?

  • Toelichting: ______________________________________

6.Toekomst Alkmaarse economie

6.1 Welke economische sectoren moeten volgens u worden versterkt in de gemeente Alkmaar? (meerdere antwoorden mogelijk)

  • Maakindustrie en ambacht

  • Detailhandel

  • Zakelijke dienstverlening

  • Innovatie & technologie

  • Bouw en installatiesector

  • Horeca en recreatie

  • Landbouw en voedsel

  • Zorg en welzijn

  • Cultuur en creatieve sector

  • Anders, namelijk: __________

6.2 Bent u van mening dat de gemeente Alkmaar meer fysieke ruimte voor economie moet creëren?

  • Ja

  • Nee

  • Weet niet / geen mening

6.3 Hoe belangrijk is het creëren van meer fysieke ruimte voor economie in uw ogen voor ondernemers in Alkmaar?

  • Extreem belangrijk

  • Belangrijk

  • Neutraal

  • Niet belangrijk

  • In het geheel niet relevant

  • Weet niet / geen mening

6.4 Stelling: Ik vind ruimte voor economie zo'n belangrijk knelpunt voor de ontwikkeling van de Alkmaarse economie dat ik vind dat …

  • De gemeente actie moet ondernemen

  • Ondernemend Alkmaar organiseert dat ondernemers een petitie indienen bij de gemeente

  • Anders, namelijk: __________

6.5 Waarin vindt u dat de Alkmaarse economie zich onderscheidt?

  • Antwoord: ___________________________________________________

6.6 Welke keuzes of richtingen ziet u graag terug in het Actieprogramma Economie?

  • Antwoord: ___________________________________________________

7.Tot slot

7.1 Heeft u nog overige opmerkingen of zaken die u mee wilt geven met betrekking tot uw huidige bedrijfslocatie of de omgeving?

  • Antwoord: ___________________________________________________

7.2 Hebt u nog een algemene opmerking of toevoeging in het kader van het nieuwe Actieprogramma Economie?

  • Antwoord: ___________________________________________________

Bijlage D – Lichte bedrijfsfuncties

In dit hoofdstuk zoomen we in op de lichte bedrijfsfuncties op de werklocaties in Alkmaar. In het onderzoek ‘Ruimte voor bedrijvigheid in Alkmaar’ (Stec Groep, 2025) is een eerste inzicht gegeven in de potentie voor het economisch optimaler benutten van de terreinen. In dit hoofdstuk gaan we hier verder op in.

D.1Profielen van lichte bedrijfsfuncties

Lichte bedrijvigheid verplaatsen biedt kansen voor Alkmaar

We zien kansen voor het verplaatsen van lichte bedrijfsfuncties van bedrijventerreinen naar centrumlocaties of gemengde woon-werkgebieden. Dat levert ruimte op voor functies die écht op bedrijventerreinen gevestigd moeten zijn. Daarnaast verhoogt het de levendigheid en dynamiek in de centra en gemengde woon-werkgebieden en voorkomt het leegstand. We onderscheiden vijf typen bedrijven die hiervoor in aanmerking komen:

  • Consumentgerichte dienstverleners

    Denk aan een kapper, schoonheidssalon of fotostudio. Deze bedrijven hebben een publieksfunctie en passen goed in centrummilieus.

  • Ambachtelijke bedrijfsruimten

    Denk aan een meubelmaker, reparatieshop of kunstenaarsatelier. Ze produceren kleinschalig, werken creatief en hebben vaak een showroom of verkoopruimte ondergeschikt aan hun hoofdactiviteit. Veel ambachtslieden zijn zelfstandig en werken alleen of met weinig werknemers.

  • Maatschappelijke voorzieningen

    Denk aan zorg, onderwijs, cultuur en welzijn. Deze functies zijn meestal niet commercieel en hebben vaak een praktijkruimte.

  • Kleinschalige kantoren & co-working

    Denk aan bedrijven in ICT, marketing of consultancy. Ze werken vaak in verzamelgebouwen en zoeken flexibele werkplekken met goede voorzieningen. Co-workinglocaties bieden ruimte voor ontmoeting en samenwerking, vooral voor zzp’ers. De locatie is open toegankelijk en vaak is er daghoreca aanwezig.

  • Kleinschalige detailhandel

    Denk aan een koffie- of theewinkel of drogist. Deze winkels passen qua omvang en aanbod goed in het centrum, maar zitten nu soms nog op bedrijventerreinen. Grootschalige perifere detailhandel past niet in een centrum en hoort niet bij deze categorie.

Onderstaand figuur geeft een impressie van de verschillende bedrijfstypen.

En om wat voor type bedrijven gaat het juist niet?

Bedrijventerreinen zijn bedoeld voor regulier midden- en kleinbedrijf, logistiek en bedrijven met veel milieuruimte. Denk aan groothandel, bouwnijverheid en industrie. Deze bedrijven hebben vaak grote opslagruimtes nodig en zorgen voor veel (vracht)verkeer. Ook veroorzaken ze regelmatig geluid of uitstoot. Daarom passen ze niet goed in centrumlocaties of gemengde gebieden. Daarnaast vind je op bedrijventerreinen ook horeca. Die is bedoeld als voorziening voor werknemers en draagt bij aan een prettig werkklimaat. Horeca valt buiten de selectie van bedrijven die potentieel verplaatst kunnen worden.

Praktijkvoorbeeld: ‘World of Cooking’ in Hoorn

In 2023 opende World of Cooking een keukenstudio in het hart van Hoorn. Bezoekers beleven hier meer dan alleen een showroom: ze zien, proberen en ervaren keukens voordat ze een keuze maken. Het bedrijf vestigde zich in een leegstaand pand in een winkelstraat. De opslagruimte bleef op het bedrijventerrein. Dankzij de zichtbare locatie in het centrum trekt de winkel publiek aan dat tijdens een dagje uit op zoek is naar een nieuwe keuken. 

D.2Bedrijven met verplaatsingspotentie

Bedrijven met verplaatsingspotentie op te behouden bedrijventerreinen

Deze analyse zoomt in op bedrijven die gevestigd zijn op terreinen die ook in de toekomst bedrijventerrein blijven13. Juist hier ligt potentie om de bestaande ruimte beter te benutten. Door bedrijven te verplaatsen die beter passen in een centrummilieu of gemengd woon-werkgebied, ontstaat ruimte voor functies die écht thuishoren op bedrijventerreinen.

We hebben bedrijven geselecteerd die kansrijk zijn voor verplaatsing. De selectie is gebaseerd op de criteria uit paragraaf D.4. De scan laat buiten beschouwing of ondernemers daadwerkelijk willen verhuizen. Dat hangt af van uiteenlopende overwegingen per bedrijf. Vooral de financiële haalbaarheid speelt een grote rol: huurprijzen in centrumgebieden liggen vaak hoger dan op bedrijventerreinen. Daarnaast brengt een verhuizing aanzienlijke kosten met zich mee. Deze analyse geeft dus geen inzicht in de financiële haalbaarheid. De uitkomsten geven een eerste beeld van welke bedrijven mogelijk passen in de binnenstad of in nieuwe gemengde gebieden, zoals het Alkmaars Kanaal.

Ruim 320 bedrijven met verplaatspotentie op te behouden bedrijventerrein

Op de te behouden bedrijventerreinen zitten circa 320 bedrijven met samen ruim 960 banen die potentie hebben om te verplaatsen. Deze bedrijven passen mogelijk beter in de binnenstad, een van de andere (buurt/wijk)centra of in de toekomstige gemengde woon-werkgebieden in het Alkmaars Kanaal. De tabel hieronder laat zien hoe deze potentie is verdeeld over typen lichte bedrijfsfuncties. Daarbij valt het volgende op:

  • Kleinschalige kantoren en co-working vormen de grootste groep: bijna 70% van de banen (660) bij ruim 200 bedrijven. Denk aan reclamebureaus, adviesbureaus en boekhoudkantoren.

  • Consumentgerichte dienstverleners volgen met zo’n 110 banen (11%) bij ongeveer 50 bedrijven. Voorbeelden zijn communicatie- en grafisch ontwerp, fotografie, schoonheidssalon en fitnesscentra.

  • Maatschappelijke voorzieningen zijn goed voor circa 90 banen (9%) bij zo’n 30 vestigingen. Denk aan kinderopvang, fysiotherapie en maatschappelijk werk.

  • Ambachtelijke bedrijfsruimten tellen 60 banen (6%) bij zo’n 20 bedrijven. Voorbeelden zijn een meubelmaker, reparatieshop, atelier, taartenmaker en bierbrouwerij.

  • Kleinschalige detailhandel omvat ongeveer 40 banen (4%) bij 15 bedrijven. Denk aan keuken- en meubelwinkels en een brillenzaak.

Tabel D1: Verplaatsingspotentie op te behouden bedrijventerreinen

Type

Bedrijven

Banen

Consumentgerichte dienstverleners

50

110

Ambachtelijke bedrijfsruimten

20

60

Maatschappelijke voorzieningen

30

90

Kleinschalige kantoren & co-working

205

660

Kleinschalige detailhandel

15

40

Totaal

320

960

Bron: LISA (2024), bewerking Stec Groep (2025).

D.3Huisvestingswensen en -eisen per doelgroep

In deze paragraaf beschrijven we de kwalitatieve huisvestigingswensen en - eisen van de verschillende doelgroepen. We geven inzicht in bereikbaarheid, locatiekenmerken en huurprijsniveaus. Het gebruik van diverse vormen van bedrijfs- of kantoorruimte door doelgroepen is in de praktijk diffuus en laat zich niet altijd strak afbakenen.

Consumentgerichte dienstverleners

Kenmerk

Omschrijving

Locatie

afbeelding binnen de regeling

  • Openbare, publiekstoegankelijke functie

  • Goed bereikbaar te voet en met de fiets; deels ook met de auto

  • Kansrijk in clusters met andere voorzieningen, zoals horeca of detailhandel

Pand

afbeelding binnen de regeling

  • Flexibele indeling met mogelijkheid tot inrichting specifieke ruimtes als behandelkamer, wachtruimte of studio

  • Omvang tussen 50 en 300 m² bvo

  • Huurprijs tussen € 100 en € 175 per m² per jaar

Marktgebied -en dynamiek

afbeelding binnen de regeling

  • Dienstverleners vestigen zich graag dicht bij hun klanten, vaak op wijk- of buurtniveau

  • Groeiende aandacht voor uitstraling en persoonlijke verzorging zorgt voor sterke groei kapperszaken, schoonheidssalons en nagelstudio’s

  • Afname baliefuncties (bij o.a. banken, postkantoor en reisbureaus) door technologische innovatie en digitalisering

Voorkeurslocatie

afbeelding binnen de regeling

  • Gemengde gebieden in en rond de binnenstad

  • Transformatiegebieden zoals het Alkmaars Kanaal

  • Aanloopstraten met veel passanten

  • Wijk- en buurtcentra, dicht bij inwoners

  • Zichtbare locaties met een uitnodigende uitstraling

Ambachtelijke bedrijfsruimten

Kenmerk

Omschrijving

Locatieafbeelding binnen de regeling

  • Goede bereikbaarheid, bij voorkeur aan de rand van het centrum of in gemengde gebieden met stedelijke dynamiek

  • Mogelijkheid tot laden en lossen

  • Ligging aan doorgaande wegen (radialen) is een pré

  • Voorkeur voor clusters op plekken met eigen identiteit

Pand

afbeelding binnen de regeling

  • Werkplaats met daglicht en ruimte voor magazijn

  • Eigen entree en gedeelde voorzieningen zoals opslag, machines of kantine

  • Presentatieruimte voor klanten: showroom of atelier

  • Kleinschalige panden van circa 100 tot 500 m² bvo

  • Vrije hoogte van 3,5 tot 5 meter en goede geluidsisolatie

  • Huurprijs tussen € 85 en € 125 per m² per jaar.

Marktgebied -en dynamiek

afbeelding binnen de regeling

  • Gericht op bovenlokale of subregionale markt

  • Sterke lokale binding, vaak door herkomst van werknemers

  • Vraag zit vooral in bestaande voorraad, maar ook in nieuwbouw

  • Flexibiliteit en betaalbaarheid zijn cruciaal

  • Groeiende dynamiek door transitie naar circulaire economie

Voorkeurslocatie

afbeelding binnen de regeling

  • Gemengde gebieden in en rond de binnenstad

  • Transformatiegebieden zoals het Alkmaars Kanaal

  • Aanloopstraten bij combinatie van verkoop en atelier

  • Creatieve broedplaatsen in of nabij het centrum

  • Stadsranden met industriële uitstraling en goede bereikbaarheid

Maatschappelijke voorzieningen

Kenmerk

Omschrijving

Locatie

afbeelding binnen de regeling

  • Goede bereikbaarheid voor verschillende doelgroepen: te voet, met de fiets, auto en openbaar vervoer

  • Voldoende parkeergelegenheid, belangrijk voor mensen die slecht ter been zijn

Pandafbeelding binnen de regeling

  • Representatief gebouw met een verzorgde uitstraling en rolstoeltoegankelijke entree

  • Praktische indeling met ruimte voor praktijkkamers en wachtruimtes

  • Geclusterde zorgconcepten of bedrijfsverzamelgebouwen zijn kansrijk: efficiënt voor aanbieders en prettig voor bezoekers

  • Omvang varieert, afhankelijk van functie en doelgroep

  • Huurprijsindicatie: € 95 tot € 140 per m² per jaar

Marktgebied -en dynamiek

afbeelding binnen de regeling

  • De vraag naar maatschappelijke voorzieningen groeit, vooral in de zorg

  • Nabijheid is cruciaal: hoe dichter bij de voorziening, hoe hoger het gebruik

  • In stedelijke gebieden ontstaat ruimte in transformatiegebieden, waar maatschappelijke functies kunnen concurreren met wonen

  • Gemengde woon-werkgebieden bieden kansen voor clustering en synergie met andere functies

Voorkeurslocatie

afbeelding binnen de regeling

  • Aan de randen van binnensteden en centrumgebieden met goede bereikbaarheid

  • Wijk- en buurtcentra in woonwijken

  • Transformatiegebieden zoals het Alkmaars Kanaal

Kleinschalige kantoren en co-working

Kenmerk

Omschrijving

Locatie

afbeelding binnen de regeling

  • Goede bereikbaarheid met openbaar vervoer, fiets en te voet

  • Levendige omgeving met voorzieningen zoals horeca, winkels en sportfaciliteiten op loopafstand

  • Kansrijk in transformatiegebieden met een stedelijke uitstraling.

Pand

afbeelding binnen de regeling

  • Vrij indeelbare ruimte; hoogte is minder relevant

  • Behoefte aan gezamenlijke faciliteiten zoals receptie, vergaderruimtes en reproruimte

  • Representatief gebouw met aansprekende entree

  • Goede voorzieningen en ICT-infrastructuur (glasvezel, wifi)

  • Kleinschalige units van circa 50 tot 300 m² bvo

  • Huurprijsindicatie: € 90 tot € 175 per m² per jaar

Marktgebied -en dynamiek

afbeelding binnen de regeling

  • Gericht op bovenlokale en subregionale markt

  • Ontmoetingsfunctie wordt steeds belangrijker door individualisering en thuiswerken

  • Groei van flexwerk- en co-workingconcepten, vaak gecombineerd met horeca zoals koffiebar of lunchroom

  • Transformatiegebieden bieden ruimte voor nieuwe werkconcepten in combinatie met wonen en ontmoeten

Voorkeurslocatie

afbeelding binnen de regeling

  • Gemengde gebieden in en rondom de binnenstad

  • Transformatiegebieden zoals het Alkmaars Kanaal

  • Verdiepingen in bestaande gebouwen

  • Creatieve hubs met inspirerende sfeer

Kleinschalige detailhandel

Kenmerk

Omschrijving

Locatie

afbeelding binnen de regeling

  • Zichtbare ligging op drukbezochte plekken met veel passanten

  • Bevoorrading mogelijk, minimaal één keer per week

  • Kansrijk in transformatiegebieden met een levendige plint en gemengde functies

Pand

afbeelding binnen de regeling

  • Aantrekkelijke en transparante etalage voor productpresentatie

  • Moderne of verzorgde uitstraling met daglicht

  • Kleinschalige units van circa 100 tot 750 m² bvo

  • Huurprijsindicatie: € 100 tot € 200 per m² per jaar

Marktgebied -en dynamiek

afbeelding binnen de regeling

  • Dagelijkse detailhandel heeft een klein verzorgingsgebied; speciaalzaken trekken klanten van verder weg

  • Veel dynamiek door veranderende consumententrends, zoals blurring en city-concepten

  • Levendigheid en functiemix zijn cruciaal voor succes

  • Transformatiegebieden bieden ruimte voor nieuwe winkelconcepten in combinatie met horeca en dienstverlening

Voorkeurslocatie

afbeelding binnen de regeling

  • Kernwinkelgebieden en aanloopstraten in centrumgebieden

  • Wijk- en buurtcentra in transformatiegebieden zoals het Alkmaars Kanaal

  • Zichtbare locaties met aansluiting op andere winkels en voorzieningen

  • Levendige gebieden met een stedelijke uitstraling

D.4Methodiek lichte bedrijfsfuncties

Methodiek potentie verplaatsing bedrijven

Niet elk bedrijf voelt zich thuis in een centrummilieu. Om te bepalen welke bedrijven wél goed passen, gebruiken we in deze analyse vier selectiecriteria: mengbaarheid, voorkeur voor het vestigingsmilieu, uitstraling en omvang.

  • 1

    Mengbaarheid: hoe goed mengt een bedrijf met de omgeving?

    We kijken eerst of een bedrijf goed samengaat met winkels, horeca, dienstverleners en woningen. Daarbij gebruiken we de functiemengingsindex (FMI): een instrument van het Planbureau voor de Leefomgeving. De FMI laat zien in hoeverre een bedrijf past in een gemengde stedelijke omgeving.

  • 2

    Voorkeursvestigingsmilieu: waar komt een bedrijf het best tot zijn recht? Sommige bedrijven hebben baat bij een bedrijventerrein, bijvoorbeeld vanwege hun productieproces of milieubelasting. Andere bedrijven floreren juist in de binnenstad, dichtbij hun klanten. We koppelen de SBI- code aan de FMI-score om te bepalen welk vestigingsmilieu het beste past.

  • 3

    Uitstraling en beleving: draagt het bedrijf bij aan het centrumgevoel? Een centrum vraagt om bedrijven die iets toevoegen aan de sfeer en levendigheid. Denk aan publieksgerichte functies of kantoren die zorgen voor reuring. We beoordelen dit op basis van SBI-codes en onze eigen expertise.

  • 4

    Omvang: hoeveel ruimte vraagt het bedrijf?

    Grote bedrijven passen vaak niet in het centrum vanwege ruimtegebrek. Daarom hanteren we een grens:

    • Maximaal twintig werknemers voor kantoren, detailhandel, maatschappelijke voorzieningen en consumentgerichte diensten.

    • Maximaal tien werknemers voor ambachtelijke bedrijven.

  • Deze grenzen zijn gebaseerd op het gemiddelde ruimtegebruik per werknemer.

Functiemengingsindex (FMI): hoe goed zijn bedrijven te mengen?

Het Planbureau voor Leefomgeving heeft voor alle bedrijven in Nederland bepaald hoe vaak bedrijven in gemengd gebied gevestigd zijn. Iedere bedrijfstak én grootteklasse (aantal werknemers) heeft een FMI-score. De FMI is een instrument dat scoort hoe goed bedrijvigheid te combineren is met wonen en andere functies. Het instrument is afkomstig uit het

onderzoek ‘Menging van wonen en werken’ (PBL, 2009). De FMI index loopt van 0 tot 100, waarbij 0 staat voor een monofunctioneel woongebied en 100 voor een monofunctioneel werkgebied. Logischerwijs staat een score van 50 voor een gebied waar wonen en werken 50/50 gemengd zijn. Het PBL berekende op deze manier voor heel Nederland de mengbaarheid in gridcellen van 100 bij 100 meter (één hectare). De FMI per gebied wordt berekend door het aantal banen in het gebied te delen door het aantal banen plus het aantal woningen in het gebied keer honderd14. Werken wordt dus gevat in het aantal banen terwijl wonen wordt gevat in het aantal woningen.

Vraag naar potentiële voorkeursvestigingsmilieus

Aan de hand van de FMI bepalen we per bedrijf naar welk type vestigingsmilieu de potentiële voorkeur van een bedrijf uitgaat. De FMI drukt uit hoeveel banen in een bepaalde bedrijfstak in een gemengd milieu gevestigd zijn. We doen de aanname dat alle bedrijven in die bedrijfstak in een vergelijkbare omgeving gevestigd zouden kunnen zijn. De uitkomsten weerspiegelen niet de daadwerkelijke verhuisbereidheid of locatievoorkeur van een individueel bedrijf. We onderscheiden verschillende potentiële voorkeursvestigingsmilieus:

Monofunctionele locaties:

  • Bedrijventerreinen (panden met een functioneel uiterlijk, relatief ruim opgezet, milieuhinder)

  • Kantoorlandschap (middelgrote tot grote kantoren, relatief ruim opgezet en buiten of aan rand van stedelijk gebied)

Verschillende gemengde woon-werkmilieus:

  • Ambachtelijk woonwerkterrein (vooral kleinschalige bedrijfsruimte in gemengd stedelijk gebied)

  • Creatief woonwerkterrein (vooral kleinschalige kantoorruime in gemengd stedelijk gebied)

  • Gemengd centrum woon-werkmilieu (zowel kleinschalige bedrijfsruimte als kleinschalige kantoorruimte gemengd met wonen en voorzieningen in een centrumgebied)

We onderscheiden de gemengde milieus op basis van de overheersende functie, ofwel of ze vooral bedrijfsruimtes of kantoorruimtes bevatten. Ook onderscheiden we op basis van de algemene omvang van het vastgoed in het gebied (kleinschalig of grootschalig) en de mate van stedelijkheid.

Bijlage E – Toelichting proces

In dit hoofdstuk geven we een korte toelichting op het doorlopen proces om te komen tot het Actieprogramma Economie. In nauwe samenwerking met collega's van de verschillende vakafdelingen en GGO is dit rapport tot stand gekomen.

Proces met verschillende stakeholders

Het Actieprogramma Economie is in de periode maart tot en met september 2025 opgesteld in nauwe samenwerking met ondernemers, regiogemeenten en andere betrokkenen. De gemeente Alkmaar heeft bewust gekozen voor een interactief proces, waarbij op meerdere momenten input is opgehaald en afgestemd.

  • In mei 2025 zijn drie ondernemerssessies georganiseerd, gericht op bedrijventerreinen, kantoren en detailhandel. Tijdens deze sessies zijn knelpunten, kansen en wensen besproken, en is input opgehaald voor de inhoudelijke koers van het programma.

  • Eind mei vond een ambtelijke en bestuurlijke afstemming plaats met de Regio Alkmaar. Hier is gesproken over de regionale ruimtebehoefte, gezamenlijke lobby richting provincie en Rijk, en de noodzaak tot afstemming van economische beleidslijnen.

  • In juni en juli is een brede ondernemersenquête uitgezet onder bedrijven in Alkmaar. Ruim 230 ondernemers hebben hieraan deelgenomen. De resultaten zijn verwerkt in de analyse en hebben richting gegeven aan de vier hoofdlijnen van het actieprogramma. De enquête heeft waardevolle inzichten opgeleverd over ruimtebehoefte, bereikbaarheid, toekomstplannen en sectorale kansen.

  • Begin juli en begin september is het conceptactieprogramma besproken in het Bestuurlijk Strategisch Overleg, met vertegenwoordigers van ondernemersverenigingen en de verantwoordelijke wethouder. Op basis van deze gesprekken zijn accenten aangescherpt en is het programma verder verfijnd.

Het proces kenmerkt zich door een combinatie van inhoudelijke verdieping, bestuurlijke afstemming en brede participatie. De input van ondernemers en regiopartners vormde een stevige basis voor het uiteindelijke actieprogramma.


Noot
1

Voor duiding van de pendelstromen naar onder andere opleidingsniveau maken we gebruik van CBS Microdata. De percentage die worden genoemd over de opleidingsniveaus zijn exclusief het aandeel van de werkenden waarvan het opleidingsniveau onbekend is.

Noot
2

Momenteel wordteen nieuwe regionale behoefteraming opgesteld.

Noot
3

Uitgaande van het hoge scenario, zoals ook regionaal afgesproken in het Convenant Werklocaties regio Alkmaar.

Noot
4

Marktverkenning kantoorruimte StationsgebiedAlkmaar–Sweco (december 2023).

Noot
5

Advies gewenste dagelijkse winkelstructuur Stedelijk gebied Alkmaar – DTNP (april 2022).

Noot
6

Momenteel wordt de nieuwe behoefteraming Bedrijventerreinen Noord-Holland Noord opgesteld.

Noot
7

Het mengpaneel is een instrument waarmee we in gemengde gebieden hogere geluidnormen kunnen toestaan dan in woonwijken, zolang dit zorgvuldig onderbouwd en gecompenseerd wordt binnen de totale kwaliteit van de leefomgeving.

Noot
8

Verkenning Universitair Onderwijs Alkmaar – Birch Consultants (2025).

Noot
9

Marktverkenning kantoorruimte Stationsgebied Alkmaar – Sweco (2023).

Noot
10

Detailhandelsstructuur binnenstad Alkmaar – DTNP (2020).

Noot
11

Inventarisatie uitbreidingslocaties bedrijventerreinen regio Alkmaar – Sweco (2024).

Noot
12

De gemeente Haarlemmermeer (die ook in deze categorie valt) laten we, gezien de atypische economische positie buiten beschouwing.

Noot
13

Bestaande uit de bedrijventerreinen: Beverkoog, Boekelermeer, Neerlandia, De Volger en het te behouden gedeelte van de terreinen Overdie en Viaanse Molen.

Noot
14

Aantal banen / (aantal banen + aantal woningen) x 100