Beeldkwaliteitsplan Oostrand NZS gemeente Dijk en Waard

Geldend van 11-02-2026 t/m heden

Intitulé

Beeldkwaliteitsplan Oostrand NZS gemeente Dijk en Waard

Zaaknummer: 00001190414

Raadsvergadering: 27 januari 2026

De raad van de gemeente Dijk en Waard;

Gelet op de artikelen 4:81, eerste lid, 4:83 en 1:3, vierde lid, van de Algemene wet bestuursrecht en artikel 4.19 van de Omgevingswet.

Besluit:

  • 1.

    Het Beeldkwaliteitsplan Oostrand NZS gemeente Dijk en Waard, zoals opgenomen in bijlage 1, vast te stellen als beleidsregel zoals bedoeld in artikel 4.19 van de Omgevingswet.

  • 2.

    Deze beleidsregel, met de titel Beeldkwaliteitsplan Oostrand NZS gemeente Dijk en Waard, in werking te laten treden op de dag na de datum van bekendmaking in het Gemeenteblad.

INLEIDING

Het gebied De Oostrand NZS wordt de komende jaren ontwikkeld tot een aantrekkelijk en divers woongebied met 637 woningen en verschillende voorzieningen, bestaand en nieuw. Een wijk met een duidelijk Langedijker DNA waarin het oorspronkelijke landschappelijke patroon en de lintstructuren de basis vormen voor een hedendaagse wijk met een relatief hoge dichtheid.

De Oostrand NZS heeft een stoer-dorpse uitstraling, geïnspireerd op de wijde omgeving, maar met een eigen vertaling en een sterk eigentijds karakter. Dit komt tot uiting in zowel de woningdichtheid, de volumes als in de architectuur.

Dit beeldkwaliteitsplan is een verdere uitwerking van het eerder vastgestelde stedenbouwkundig masterplan voor de Oostrand NZS. Het document geeft sturing aan de ontwikkelingen en is het toetsingskader voor de nadere uitwerking van de bouwvelden (stedenbouw), voor de bouwplannen binnen bouwvelden (architectuur) en voor de inrichting van het openbare gebied. Vanuit een samenhangende kwaliteit voor het plangebied zijn in het BKP prestatiedoelen en spelregels opgenomen. Deze zijn op verschillende niveaus uitgewerkt. Hiermee wordt gestuurd op de beoogde sfeer, het gewenste architectuurbeeldbeeld, de expressie, het materiaal- en kleurgebruik en de relatie met de openbare ruimte.

Prestatiedoelen formuleren de doelstelling van het BKP en de bedoeling achter de regels. Indien een architect een zeer goed idee heeft voor alternatieven die de prestatie op een net iets andere wijze realiseren, kan dit ter goedkeuring aan supervisie of CRK worden voorgelegd. Dit geldt met name voor alternatieven die extra inzetten op duurzaamheid, circulariteit en/of biodiversiteit.

We maken een nieuw lint als belangrijke structuurdrager voor de Oostrand NZS. Het lint, landschap, water en groen zijn belangrijke kenmerken van de identiteit van het gebied.

De belangrijkste thema’s voor dit BKP zijn:

  • Stoer Dorpse wijk

  • Stoer Dorps Doesenpad

  • Spraakmakende blikvangers

  • Tuindustriële monolieten

RUIMTELIJKE KWALITEIT

Dit document beschrijft de beeldkwaliteitseisen van plan Oostrand NZS. In de Nota Ruimtelijke Kwaliteit Dijk en Waard zijn zes aspecten beschreven waaraan de Commissie Ruimtelijke Kwaliteit (CRK) plannen toetst. In dit Beeldkwaliteitsplan (BKP) zijn deze zes aspecten verder uitgewerkt en locatiespecifiek gemaakt.

1.Relatie tussen vorm, gebruik en constructie

Van een bouwwerk dat voldoet aan redelijke eisen van welstand mag worden verwacht dat de verschijningsvorm een relatie heeft met het gebruik ervan en de wijze waarop het gemaakt is, terwijl de vormgeving daarnaast ook zijn eigen samenhang en logica heeft.

2.Relatie tussen bouwwerk en omgeving

Van een bouwwerk dat voldoet aan redelijke eisen van welstand mag worden verwacht dat het een positieve bijdrage levert aan de kwaliteit van de openbare (stedelijke of landschappelijke) ruimte. Daarbij worden hogere eisen gesteld naarmate de openbare betekenis van het bouwwerk of van de omgeving groter is.

3.Betekenissen van vormen in sociaal-culturele context

Van een bouwwerk dat voldoet aan redelijke eisen van welstand mag worden verwacht dat verwijzingen en associaties zorgvuldig worden gebruikt en uitgewerkt, zodat er concepten en vormen ontstaan die bruikbaar zijn in de bestaande maatschappelijke realiteit.

4.Evenwicht tussen helderheid en complexiteit

Van een bouwwerk dat voldoet aan redelijke eisen van welstand mag worden verwacht dat er structuur is aangebracht in het beeld, zonder dat de aantrekkingskracht door simpelheid verloren gaat.

5.Schaal en maatverhoudingen

Van een bouwwerk dat voldoet aan redelijke eisen van welstand mag worden verwacht dat het een samenhangend stelsel van maatverhoudingen heeft dat beheerst wordt toegepast in ruimtes, volumes en vlakverdelingen.

6.Materiaal, textuur, kleur en licht

Van een bouwwerk dat voldoet aan redelijke eisen van welstand mag worden verwacht dat materiaal, textuur, kleur en licht het karakter van het bouwwerk zelf ondersteunen en de ruimtelijke samenhang met de omgeving of de te verwachten ontwikkeling daarvan duidelijk maken.

Afwijken van het BKP is mogelijk als er tenminste sprake is van gelijkwaardigheid of als er extra plankwaliteit wordt toegevoegd. Dit ter beoordeling door de Commissie Ruimtelijke Kwaliteit.

PROCES

De gefaseerde ontwikkeling van de Oostrand NZS wordt in een aantal stappen voorbereid en gerealiseerd.

Het stedenbouwkundig masterplan Oostrand NZS, d.d. 11 september 2025, dat door de gemeenteraad is vastgesteld op 13 november 2025 vraagt per bouwveld een definitieve stedenbouwkundige uitwerking.

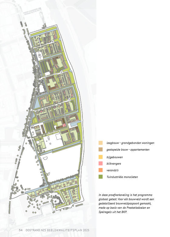
Bouwveldpaspoort

Om de flexibiliteit in het ontwikkelproces te waarborgen is gekozen om per bouwveld een bouwveldpaspoort op te stellen op basis van de Prestatiedoelen en de Spelregels.

De Prestatiedoelen en de Spelregels uit het BKP zijn het uitgangspunt voor zo’n tussenproduct: een bouwveldpaspoort.

Deze uitwerking wordt eerst door een kwaliteitsteam (Q-team) beoordeeld om vervolgens formeel door de CRK te worden getoetst.

De stedenbouwkundige uitwerking per bouwveld wordt daarna door het college van B&W vastgesteld.

Hierna wordt de volgende fase, de architectonische uitwerking, opgepakt. Deze bouwplannen worden vervolgens regulier getoetst door de Commissie Ruimtelijke Kwaliteit (CRK).

De organisatie van het Q-team is in handen van de gemeentelijke projectleider en samengesteld uit:

  • -

    een lid van de Commissie Ruimtelijke Kwaliteit;

  • -

    de gemeentelijke stedenbouwkundige;

  • -

    een derde kwaliteitsadviseur nog nader te bepalen.

Architectenkeuze

De ontwerpopgave voor de Oostrand NZS is complex en vraagt om creativiteit en sterke ontwerpkwaliteiten.

De ontwerpopgave. Oostrand NZS is complex, omdat de bouwvelden alzijdig aansluiten op een andere karakteristiek (Doesenpad, ecologische rand, entreegebied, singel, etc).

Elk bouwveld heeft veel variatie in nok- en goothoogte, dakvorm, veranda’s, met of zonder blikvangers, monoliet, verspringing rooilijn, etc. Toch vormt elk bouwveld op zich weer een samenhangend geheel en is er samenhang tussen de bouwvelden.

De combinatie van hoge ambities, een relatief grote dichtheid en een aanzienlijk aandeel gestapelde woningbouw maakt een hoge architectonische kwaliteit onmisbaar.

Daarom is het kiezen van een architect die goed aansluit bij de aard van de opgave cruciaal om de ambitie waar te maken en de onderlinge samenhang te versterken. Dit is een belangrijke voorwaarde voor het realiseren van een succesvolle stoer dorpse wijk.

LANGEDIJKSE IDENTITEIT

afbeelding binnen de regeling

Diversiteit, kappen, hoofdvormen en Tuindustriële monolieten

De Oostrand NZS wordt een eigentijdse wijk met een eigen karakter dat verwijst naar elementen die kenmerkend zijn voor de Langedijkse identiteit. Het is geen historiserende planontwikkeling, eerder een ontwikkeling waarin een aantal specifieke historische kenmerken als inspiratie worden ingezet om de hedendaagse opgave vorm te geven. Dit is zowel zichtbaar in de stedenbouwkundige en de landschappelijke structuur als de architectuur.

Voor de architectuur gaat het om:

A: Diversiteit

Lijnvormige bebouwde structuren met een grote diversiteit als gevolg van een pandsgewijze ontwikkeling.

B: Kappenlandschap

Een zee van wisselende kapvormen, veelal haaks op de hoofdroutes, met lage verspringende goothoogtes en rooilijnen.

C: Eenduidige heldere hoofdvormen

Eenvoudige en duidelijke bouwvolumes, die herkenbaar, kloek, stoer en strak zijn.

D: ‘Tuindustriële’ monolieten

Fabrieken, veilingen, schuren; schaalsprongen in én achter het lint in een dorpse setting.

afbeelding binnen de regeling

KENMERKEN

afbeelding binnen de regeling

De uitzondering, de ontmoeting en het groen

Kenmerkend voor het informele karakter van een lintdorp is dat de uitzondering de regel bevestigt. Soms is er een uitschieter, een blikvanger, een vreemde en toch vertrouwde vorm. Ineens is er een onverwachte schaalsprong, het mag af en toe best een beetje ‘schuren’. Incidenteel maakt zacht warm metselwerk plaats voor een kool- groene tint bijvoorbeeld.

Belangrijk voor het sociale karakter van het dorpse is dat er óók in de architectuur nadrukkelijk ontworpen wordt voor ontmoeting. In de overgangszone tussen privé en openbaar wordt hier rekening mee gehouden. De begane grond is het gezicht van de woonomgeving en heet de bewoner en bezoeker welkom.

Het maximaliseren van groen in de leefomgeving van mens én dier is niet meer weg te denken in nieuwe ontwikkelingen.

Van de openbare ruimte tot op de gevel en dak wordt ruimte gemaakt voor natuurinclusiviteit en vergroening, en dus verkoeling, schaduw en biodiversiteit.

afbeelding binnen de regeling

afbeelding binnen de regeling

EIGENTIJDS & AFGESTEMD

afbeelding binnen de regeling

In de Oostrand NZS hebben de gebouwen een informeel karakter. Dit komt door de ruimtelijke opzet maar ook door de uitstraling van de woningen zelf. Geen bewuste symmetrische opbouw van de gevels maar juist eenvoudig en functioneel.

Het Stoer Dorpse karakter zit nadrukkelijk niet in het terugvallen op eerdere bouwstijlen, maar juist in een modern eigentijds ontwerp met het Langedijkse lintdorp en het tuindersverleden als inspiratie. Daarom is het belangrijk dat de uitstraling altijd eigentijds is en niet historiserend.

afbeelding binnen de regeling

afbeelding binnen de regeling

LANDSCHAP & INRICHTING

afbeelding binnen de regeling

De beeldkwaliteit van de inrichting van de openbare ruimte wordt hier toegelicht en nader uitgewerkt in het voorlopig ontwerp inrichtingsplan. Dan is het inrichtingsplan leidend.

De Oostrand NZS heeft een gelaagde opbouw gebaseerd op het oorspronkelijke verkavelingspatroon. De landschapstypen vormen de bepalende onderlegger, met een duidelijke hiërarchische opbouw (zichtbaar in de schema reeks). Het plan richt zich met de representatieve zijdes op de buitenrand. Het Doesenpad is de rode draad die de verschillende buurten verbindt. Dan volgt de laag van oostwestdoorzichten. Dan volgen de lagen van oost-west-doorzichten, ontmoetingsplekken en als laatste de laag met gemeenschappelijke binnentuinen.

Groenstructuur en identiteit buitenruimtes

Zoveel mogelijk wordt in de buitenruimte groen gerealiseerd volgens het principe: groen, tenzij. Het groene raamwerk bestaat uit een aantal dragers; De ecologische oostelijke rand langs de Oosterdijksloot, de groene rand langs de Oostelijke Randweg, het Doesenpad, de woonpaden en de gemeenschappelijke tuinen. De gemeenschappelijke tuinen zijn collectieve ontmoetingsruimtes in de gesloten bouwblokken. Kleine privé-tuinen kunnen aan de collectieve tuin grenzen. De compacte parkeeroplossingen zorgen ervoor dat er meer ruimte beschikbaar is in de Oostrand NZS voor een groene inrichting.

Landschapstypen

De groene inrichting is gebaseerd op vier verschillende landschapstypes: water, oevers, grassen/kruiden, bos/park. Deze landschapstypen bedienen verschillende doelsoorten zoals genoemd in het stedenbouwkundig Masterplan.

De ecologische rand aan de oostzijde van het plangebied is heel gevarieerd en gekenmerkt door natte natuur.

Bos/park wisselt af met grotere gras/ kruidenvelden. Dit wordt gecombineerd met rietoevers en groene oevers. Riet komt ook voor rond het Rieteiland en de vijver. Dit bepaalt de identiteit van beide gebieden en verzacht de oevers. Bloemrijke grassen en kruiden komen ook voor langs de oevers, langs het Doesenpad en langs de ecologische randen.

De bestaande bomen worden zo veel mogelijk behouden en ingepast. Inrichtingselementen, inritten, afvalcontainers, parkeerplaatsen en dergelijke worden zo gepositioneerd dat de groeiruimte voor bomen wordt geoptimaliseerd.

afbeelding binnen de regeling

afbeelding binnen de regeling

Klimaatadaptief watersysteem

Het robuuste groene raamwerk zorgt voor een klimaatadaptieve omgeving met minder verharding en meer verkoeling in

de buitenruimte. Langs het Doesenpad en de entrees wordt water gebufferd in wadi’s, waarna het vertraagd afgevoerd wordt.

  • Voor de buffering en vertraagde afvoer van het regenwater wordt de volgende volgorde gehanteerd: benutten en besparen, vasthouden en infiltreren, bergen en afvoeren.

  • Voor de Oostrand NZS is een watersysteem ontworpen waar de gebouwen en buitenruimte onderdeel van zijn. Natuurlijke oplossingen worden verkozen boven technische oplossingen.

  • Groen wordt waar mogelijk lager aangelegd dan verharding, zodat het water kan afstromen richting het groen.

  • Voor de irrigatie van (gebouwgebonden) groen heeft het hergebruik van regenwater de voorkeur boven het gebruik van leidingwater.

  • Er wordt zoveel mogelijk afgewaterd en direct geïnfiltreerd in de groene ruimte, wadi’s en bermen. Indien dit niet mogelijk is vanwege bestratingsvlakken, dan wordt er gewerkt met kolken. In de wadi’s en bermen zijn infiltratievoorzieningen minimaal zichtbaar. Uitstroomopeningen lopen mee in de helling van het talud. Wadi’s zijn zoveel mogelijk onderling verbonden.

afbeelding binnen de regeling

Biodiversiteit en ecologie

Het robuuste groene raamwerk biedt ruimte voor biodiversiteit en natuurinclusiviteit.

Met een groene inrichting wordt ecologische meerwaarde gecreëerd. De bebouwing en openbare ruimte wordt ontworpen met oog op biodiversiteit en het creëren van biotopen. De natuurinclusieve maatregelen in de bebouwing worden afgestemd op de inrichting van de buitenruimte.

  • Zorg voor een gezond bodemleven en voldoende ondergrondse wortelruimte.

  • Kies voor waardbeplanting voor insecten. Toepassen van inheems materiaal en context specifieke zaadmengsels, rekening houdend met klimaatverandering.

  • Extensief beheer van de ecologische rand en de westelijke groene rand en delen van het Doesenpad.

  • Met een extensief beheer worden voedselbronnen en schuilplekken gecreëerd. Laat dood plantmateriaal (deels) liggen ten behoeve van insecten en schuilmogelijkheden voor fauna.

  • Versterk waar mogelijk de lokale natuurwaarden en zorg voor de verbinding en versterking van bestaande biotopen.

afbeelding binnen de regeling

Lange lijnen

afbeelding binnen de regeling

Aan alle lange lijnen zijn voorkanten gesitueerd. Met uitzondering van de noordelijke singel.

Dat betekent dat de lange lijnen een openbaar karakter hebben. Met uitzondering van de entrees, zijn de meeste lange lijnen autovrij. Dit is een grote kwaliteit die consequent doorgevoerd is in het plan.

Doesenpad

Het Doesenpad is de dragende structuur van de wijk en geïnspireerd op de Dorpsstraat, maar heeft met haar groene structuur een eigen karakter, onderscheidend van de Dorpsstraat. Door het slingerende karakter wordt het perspectief dichtgezet en ontstaan korte zichtlijnen en een grote mate van intimiteit. Het Doesenpad is een route waar wandel- en fietspad soms samenkomen, dan weer meanderend uiteengaan. Het Doesenpad wordt naar het zuiden toe verlengd naar de Langebalkweg, via Potjesdam en Swaluwbos.

De continuïteit wordt gewaarborgd door de verharding van het fietspad, uitgevoerd in gebakken klinkers. De wandelstrook wordt ook uitgevoerd in gebakken klinkers en in een afwijkend verband gestraat.

De bomenrijen aan weerszijden begeleiden het pad net als de rij lichtmasten.

Het totale profiel van gevel tot gevel verbreedt en versmalt, zodat er soms buurtplantsoenen ontstaan met speelplekken.

afbeelding binnen de regeling

afbeelding binnen de regeling

Ontmoetingsplekken

afbeelding binnen de regeling

Veel groen zorgt voor een gezonde leefomgeving met volop ruimte om te bewegen en te ontspannen. De opzet van de wijk nodigt uit tot wandelen, fietsen, sporten en spelen. Buiten bewegen geeft ontspanning en stimuleert sociale contacten en ontmoetingen. Verspreid door het plan liggen verschillende plekken om samen te komen. De openbare ruimte wordt bovendien beweegvriendelijk ingericht.

Het haventje

In het haventje is er een hoogteverschil op te lossen van circa 65 centimeter. Dit kan ingezet worden als zitrand. Het haventje wordt omzoomd door een harde kaderand, die aan de oostzijde overgaat in het zachte talud van de ecologische rand. Langs de kade wordt een verlaagd pad aangelegd, zodat contact met het water mogelijk is en je gemakkelijker in de boot kunt stappen.

De vijver

De wandelroute rondom de vijver is deels vormgegeven door vlonderpaden, waardoor het een spannende route wordt. De sfeer van de buitenruimte wordt bepaald door de grote bestaande bomen en rietoevers.

Hondenlosloopgebied

Langs een deel van de vijver is een honden losloop gebied aanwezig. En ook aan de noordzijde van het plangebied loopt een pad over het peilscheidingsdijkje parallel aan de Wuijver.

afbeelding binnen de regeling

afbeelding binnen de regeling

afbeelding binnen de regeling

Speelplekken

Er zijn verschillende type speelplekken. De sfeer van de plek past bij de landschappelijke context.

  • De speelvoorzieningen zijn zorgvuldig afgestemd op de omgeving en bestaan uit speelaanleidingen en speelobjecten uitgevoerd in natuurlijke materialen. Felgekleurde, schreeuwerige plastic speelobjecten zijn niet toegestaan.

  • Het inrichten van multifunctionele ruimtes om te bewegen heeft de voorkeur boven plekken die gericht zijn op een enkelvoudig gebruik.

  • Speelplekken langs het Doesenpad worden omsloten door een haag of zitrand om ze een intiem karakter te geven. Speelelementen hebben een natuurlijke uitstraling.

In het bos komt een natuurspeelplek waar hutten gebouwd kunnen worden met minimale middelen. Oudere kinderen worden uitgedaagd om op een avontuurlijke manier te bewegen.

In de woonpaden zijn de spelaanleidingen subtiel.

Langs de westrand is ruimte voor een trapveldje in de rietbuurt. Dit is een informeel vrij te gebruiken ruimte omzoomd door een natuurlijke rand en twee doeltjes.

Aan de ecologische rand zijn stapstenen om de paden te verbinden over de plas- drasgebieden aan de uiteinden van elke entree. De stapstenen vormen een spelaanleiding.

Langs de vijver liggen vlonderpaden met zitgelegenheden. Een daarvan wordt uitgevoerd als jongeren ontmoetingsplek.

afbeelding binnen de regeling

Overgangen

afbeelding binnen de regeling

De overgangen openbaar-privé bestaan afwisselend uit Delftse stoepen en voortuinen, net als aan de Dorpsstraat, waardoor veel variatie ontstaat. Erfafscheidingen worden integraal mee ontworpen met de buitenruimte en de bebouwing, ook aan de achterzijde en in de mandelige binnenterreinen. Voor de hoeken/zijtuinen zijn oplossingen benoemd in het Prestatiedoel ‘aaneenrijgen’. De kaart hiernaast geldt met name voor de voorkanten, achterkanten en groene zij-erfgrenzen van vrijstaande woningen.

  • Erfafscheidingen worden altijd mee ontworpen. Ze zijn óf onderdeel van het ontwerp van het gebouw óf zijn onderdeel van het ontwerp van de buitenruimte. Erfafscheidingen binnen een gebied worden nooit individueel vormgegeven, maar altijd in samenhang vormgegeven.

  • In de binnentuinen van de gesloten bouwblokken worden de erfafscheidingen gevormd door overwegend mee-ontworpen groen.

  • Erfafscheidingen aan het gebouw zijn onderdeel van de architectuur en vormen daarmee een samenhangend geheel qua materialisatie.

  • Bij het ontwerp van de erfafscheiding tussen de privé tuin en de binnentuin moet veel aandacht zijn voor de kwetsbaarheid van de overgang en de privacy van de bewoners.

  • Daar waar voortuinen aanwezig zijn worden deze afgeschermd met een gemengde haag. De haag wordt opgebouwd uit verschillende inheemse soorten zoals wilg, liguster en beukhaag.

  • Deze haag wordt 3 jaar door een hovenier onderhouden, zodat die tot volle wasdom kan komen. Daarna wordt het onderhoud overgedragen aan de bewoners.

  • De waterwoningen aan de noordzijde van het plan liggen met hun woning en terras aan het water.

  • De woningen in de parkbuurt aan de zuidzijde zijn specifieke waterwoningen zonder tuin aan het water.

  • De overige woningen met tuinen aan het water hebben een oeverlijn waarvan maximaal 40% van de achtertuin terras is en 60% groen. Op de laatste 3 meter van de achtertuin mag geen berging worden gebouwd. Oevers hebben een talud van minimaal 1:3 of flauwer.

  • Erfafscheidingen van verenigingen bestaan uit groen eventueel in combinatie met een kwalitatief hekwerk.

Zie ook Prestatiedoel Overgangen

afbeelding binnen de regeling

Binnenhoven

afbeelding binnen de regeling

Er zijn twee soorten binnenhoven: de gemeenschappelijke tuinen en de parkeerhoven.

Gemeenschappelijke tuinen

Bij de gemeenschappelijke tuinen hebben de woningen of BG-appartementen een kleine tuin/terras van maximaal 5 meter diep. Daarna vormt een lage erfafscheiding of geen erfafscheiding de overgang naar de gemeenschappelijke tuin. De erfafscheidingen tussen de woningen wordt meeontworpen: dit is onderdeel van de opgave. Zo is er veel contact met de tuin en wordt dit een plek voor ontmoeting. Het ensemble van haag en berging is zorgvuldig ontworpen. De tuinen worden groen, klimaat-adaptief ingericht en bieden ruimte voor ontmoeten en spelen.

Parkeerhoven

De woningen die grenzen aan de parkeerhoven hebben een diepere tuin. De tuin wordt begrensd door een mee- ontworpen berging en een pergolabalk tussen de bergingen. Alle bergingen hebben een groen dak. De parkeerhoven worden groen en klimaat-adaptief ingericht. Bestrating bestaat voor een groot deel uit water-passerende bestrating.

Fietsparkeren

Fietsparkeren wordt inpandig opgelost en is onderdeel van het gebouw voor appartementengebouwen. Voor grondgebonden woningen die grenzen aan een gemeenschappelijke tuin kunnen gemeenschappelijke fietsschuren worden ontworpen. Deze worden zo geplaatst dat het geen afbreuk doet aan de ruimtelijkheid van de gemeenschappelijke tuin, maar ze doen mee in het ontwerp van de hoeken zoals omschreven in het prestatiedoel ‘aaneenrijgen’.

afbeelding binnen de regeling

afbeelding binnen de regeling

Doesenpad

De overgangen openbaar privé bestaan afwisselend uit Delftse stoepen en voortuinen, waardoor veel variatie ontstaat.

De Potjesdam is een bijzonder stuk van de continue fietsverbinding. Deze valt samen met de entree. Hier rijden wel auto’s. Daarom wordt die in de volgende paragraaf beschreven.

De bestrating bestaat uit gebakken klinkers. Het verschil tussen het voetgangersgedeelte en het fietspad wordt zichtbaar door het legverband, een band of een nuancering in de materiaalkleur. Uitgangspunt is het creëren van een leesbare en veilige openbare ruimte.

De verharding heeft een rustige uitstraling met subtiele nuances in kleur en textuur.

Entrees

De oostwest lopende entrees van het gebied zijn doodlopende straten waar de auto te gast is. Bomen begeleiden de entrees. De entrees zijn licht geknikt en doven uit in de ecologische rand.

De profielen van de entrees worden gemaakt in gebakken klinkers met aan de randen grasbetonklinkers. Zo hebben ze een groene, smalle uitstraling, maar bestaat toch voldoende ruimte om elkaar te passeren.

Singels

De singels vormen de rechte doorzichten van oost naar west. Een zijde van de singel heeft een flauwe oever, zodat er ruimte is voor ecologische kwaliteit; een gradiënt tussen nat en droog.

Langs de singel liggen autovrije postbodepaden, waar de woningen op georiënteerd zijn.

Woonpaden

Op drie plekken lopen autovrije woonpaden in de noord-zuidrichting met aan weerszijden woningen. Deze paden kennen een grote intimiteit en hier omheen zullen gemeenschapjes ontstaan van buren die elkaar kennen en kinderen die er spelen.

afbeelding binnen de regeling

Objecten

afbeelding binnen de regeling

In het plan zijn verschillende objecten te vinden, van straatmeubilair, lichtmasten, trafohuisjes tot bruggen. De objecten vormen een zogenoemde ‘familie’, die in een terughoudende kleur bij elkaar aansluiten.

Bruggen

Noord- en Zuid-Scharwoude waren gelegen in het duizend-eilandenrijk. Dorpsstraat en wooneilanden waren verbonden met kippenbruggen, die allemaal van elkaar in uiterlijk verschilden.

  • Vanuit ecologisch oogpunt is het belangrijk dat groen talud onder de brug doorloopt om de routes van dieren niet te onderbreken.

  • Bij (vaar)duikers loopt het groen door langs de verharding langs het wegdek.

  • Herkenbare familie van spijlenbruggen, open patroon van spijlen, onregelmatig gepositioneerd.

  • Bruggen zijn slank vormgegeven. Daar waar mogelijk loopt verharding/kleur aansluitend wegdek door over de brug.

  • Bruggen hebben voldoende doorvaarthoogte.

  • Het brugdek is slank vormgegeven.

De familie van bruggen wordt in een later stadium verder uitgewerkt.

afbeelding binnen de regeling

afbeelding binnen de regeling

afbeelding binnen de regeling

Nutsvoorzieningen

De trafohuisjes worden zoveel mogelijk inpandig opgenomen in een gebouw. Anders wordt er een plek gezocht aan de rand, binnen een woonveld.

  • Als het trafohuisje in de openbare ruimte staat wordt het trafohuisje gemetseld of aan het zicht onttrokken door opgaand groen. Zie prestatiedoel ‘natuur- netbewust bouwen’.

  • Kasten worden ingepast tegen de gevel, om verrommeling en vervuiling van de openbare ruimte te voorkomen. Indien dit niet toegestaan is door de leveranciers worden deze altijd zo veel mogelijk uit het zicht geplaatst.

  • Kleur van de elektriciteitskasten/ straatkasten wordt afgestemd op de context.

  • De positie van de elektriciteits-en straatkasten wordt afgestemd op het gevelontwerp en de inrichting van de openbare ruimte.

Verlichting

De lichtmasten ondersteunen de lange lijnen in het plan. Dit is langs het Doesenpad en de entrees. Op de overige plekken komt bij voorkeur verlichting aan de gevel. Aan de ecologische zone komt een type verlichting dat het minst verstorend is voor de aanwezig fauna.

Overig meubilair

De materialisatie van de verharding en het meubilair draagt bij aan de uitstraling van de openbare ruimte.

  • Paaltjes, trafo’s, kastjes en andere obstakels in de openbare ruimte voorkomen.

  • Het meubilair en de straatverlichting is passend en samenhangend voor de Oostrand NZS.

  • Banken, prullenbakken, boomroosters en fietsnietjes zijn een familie binnen de beeldkwaliteit van de Oostrand NZS.

  • Kleurgebruik van meubilair is op elkaar afgestemd en terughoudend.

  • De inrichting van de openbare ruimte voelt als vanzelfsprekend waardoor bewegwijzering en bebording tot een minimum beperkt kan worden.

  • Straatnaamborden zijn onderdeel van de kwaliteit van het de Oostrand NZS. Waar mogelijk worden deze bevestigd aan de gevel.

afbeelding binnen de regeling

afbeelding binnen de regeling

BEELDREGIE IN HOOFDSTRUCTUUR

afbeelding binnen de regeling

afbeelding binnen de regeling

HET DOESENPAD

afbeelding binnen de regeling

Als drager van de wijk

In de lokaal gewortelde traditie van Langedijk zijn de belangrijkste verbindende structuren lineair. Langs de lange linten speelt en speelde het economische en sociale leven zich in hoofdzaak af.

Van oudsher is sprake van eenheid in verscheidenheid langs deze linten. Deze kwaliteit ontstond als vanzelf dankzij de fijnmazige structuur en de kleine, vaak individuele korrel van de gebouwen. Dit werd versterkt door de combinatie van het beperkte aantal beschikbare bouwmaterialen, kleuren en constructietechnieken. Daar was toen geen Beeldkwaliteitsplan en geen CRK voor nodig. Samenhang creëren was geen doel, het ontstond op organische wijze, net zoals de variatie binnen het geheel. In een dorps milieu is het bijvoorbeeld heel gewoon als de kleine woning van de loonwerker naast de fabriek van de zuurkoolboer staat.

afbeelding binnen de regeling

afbeelding binnen de regeling

afbeelding binnen de regeling

Vroeger stonden de grote volumes achter de dorpse korrel van het lint.

Het Doesenpad als nieuw lint laat deze twee schalen juist samenkomen en staat daarmee schaalsprongen toe die een hedendaagse interpretatie geven aan het lint.

Kaprichting & vormen staan overwegend haaks op hoofdroutes, langskappen zijn beperkt, kapvormen zijn wisselend en gemengd doch eenvoudig. Dwarskappen, mansarde kappen en loodsvormen voeren de boventoon.

Hoofdvolumes zijn strak, helder en eenduidig, zonder fratsen. Veranda’s en pergola’s, inclusief de bestrating of vlonders, horen hierbij.

Metselwerk in warme genuanceerde rood- bruin-geel tinten wordt vooral langs het Doesenpad verrijkt met rijk metselwerk.

Kleinschalige variatie in hedendaagse verhoudingen voert de boventoon.

Rooilijnen en goothoogtes verspringen.

Overgangen zijn ontworpen voor ontmoeting.

Overstekken zijn strak, hedendaags en minimaal.

Hemelwaterafvoeren zijn netjes weggewerkt of zorgvuldig meeontworpen en kwalitatief uitgevoerd, bijvoorbeeld in zink.

Oostrand NZS wil geen afgezwakte kopieën van de prachtige historische linten realiseren, maar deze gedachte op een eigentijdse manier vertalen naar lange, verbindende lijnen.

De huidige bouwprojecten zijn vaak veel groter dan één individueel gebouw. Daardoor is kleinschalige variatie tussen woningen niet vanzelfsprekend, en ook de samenhang tussen grotere bouwprojecten onderling ontbreekt vaak.

Wie in deze tijd een buurt wil creëren met dorpse kwaliteiten, moet dus sturen en duidelijke spelregels hanteren.

afbeelding binnen de regeling

Het Doesenpad onderscheidt zich van de andere lijnen in Oostrand NZS door een grotere variatie, versterkt door de continuïteit van beeldbepalende veranda’s en pergola’s.

Dit ‘lint’ is geen smalle, verharde route voor auto’s, maar een royale groene ader voor voetgangers en fietsers. Buiten spelen en zitten voor je huis is hier nóg belangrijker dan vroeger. Ook de bebouwing heeft een andere schaal, passend bij het bredere profiel en de huidige programma’s. Net als in de historische voorbeelden richten de nokken van de gebouwen zich zoveel mogelijk op dit groene lint.

BASISPALET

afbeelding binnen de regeling

In de Oostrand NZS is het kleurenpalet gedempt rood-bruin-geel. Ton-sur-ton en terughoudendheid voeren de boventoon.

Met één genuanceerde steen en een paar voegkleuren is een tastbaar verschil al aanwezig. Rijke metselwerkdetails brengen variatie in structuur en schaduwwerking.

Afstemming van het kleurenpalet tussen de naburige bouwvelden wordt aangemoedigd.

Daken zijn zwart met mee-ontworpen PV- panelen of passend oranje-rood-bruin. De uitvoering of panvorm is afwisselend.

Afwijkende kleurdetails en in het oog springende contrasten zijn onwenselijk.

De uitzondering hierop is waar verbijzonderingen aangewezen zijn in de vorm van blikvangers, tuindustriële monolieten en het havenfront.

Een bijzonder voorbehoud wordt gemaakt voor circulaire en biobased materiaaltoepassingen, voor over deze niet passend verkrijgbaar zijn in het basiskleurenpalet. Dit ter beoordeling door de CRK.

afbeelding binnen de regeling

afbeelding binnen de regeling

BEELDREGIE OP LOCATIE

afbeelding binnen de regeling

Blikvangers, Tuindustriële monolieten en Potjesdam Haven

afbeelding binnen de regeling

Blikvangers

afbeelding binnen de regeling

Ieder stedelijk of dorps gebied heeft baat bij blikvangers: oriëntatiepunten die hiërarchie en richting geven aan routes en verblijfsplekken. In het verleden waren dat veelal gebouwen met een bijzondere functie zoals kerken of bedrijfsgebouwen. Ook bijzondere woningen waren blikvangers.

In veel nieuwe uitbreidingen heeft het overgrote deel van de bebouwing een woonfunctie, zo ook in de Oostrand NZS.

Een aantal locaties zijn aangewezen waar de woonfunctie op een bijzondere manier wordt vormgegeven of gematerialiseerd.

Er zijn blikvangers in Oostrand NZS van verschillende orde en schaal. De meest opvallende (B1) kan een woongebouw zijn dat in een ander materiaal, kleurschakering en in een meer bijzondere vorm is ontworpen. De meest subtiele (B2) kan een woonhuis zijn met een bijzondere entreepartij, gevelindeling of materiaal. B1 wijkt af op 2 punten, B2 wijkt af in vorm of materiaal.

Uit de rijke historie van Langedijk en omgeving is veel inspiratie te vinden om dit op een eigentijdse wijze vorm te geven.

afbeelding binnen de regeling

afbeelding binnen de regeling

Tuindustriële monolieten

afbeelding binnen de regeling

Dit zijn de stoerste bouwwerken in het gebied. Robuuste details, afwijkende materialen en eenvoudige vormentaal voeren de boventoon van deze identiteits-dragers. Soms zijn het kloeke massa’s, soms zijn het repeterende vormen. De kenmerken zijn houtstructuren, stevige vormen en subtiel afwijkende kleuren. Ze worden verder toegelicht in de hoofdstukken Prestatiedoelen en Spelregels.

afbeelding binnen de regeling

afbeelding binnen de regeling

Potjesdam Haven

afbeelding binnen de regeling

Aan de haven is een mix van schalen te vinden. Individuele huizen zijn geparceleerd, dubbele woningen maken een grotere korrel. Iedere individuele woning heeft zijn eigen uitstraling, terwijl de grotere panden juist een meer pakhuisachtige uitstraling vragen. Op de kop van de haven aan het Doesenpad is een hoogte accent, een oriëntatiepunt in de wijk. De haven onderscheidt zich van de Broekerhaven met een veel stedelijker karakter. Het havenoppervlak is kleiner en de bebouwing vormt een stedelijke wand.

Het kleurenpalet is iets bonter dan in de rest van de wijk, doch binnen een terughoudende en overwegend samenhangende compositie.

In het havengebied wordt extra aandacht besteed aan stoere schaalsprongen, aan extra verdiepingshoogte op de begane grond en aan de manier waarop de woningen en buitenruimtes aansluiten op deze hoogwaardige openbare ruimte.

afbeelding binnen de regeling

afbeelding binnen de regeling

Parkzone zuid

afbeelding binnen de regeling

In het zuiden van Oostrand NZS ligt de Parkbuurt verscholen in het groen.

Deze buurt van vrijstaande en/of twee- onder-één kap woningen ontleent zijn identiteit aan woningen die een sterke relatie met het water hebben.

De woningen vormen op informele wijze een samenhangende buurt, een buurtschap aan het water. Vormen en materialen kunnen afwijken, maar ze zijn duidelijk familie van elkaar.

Zichtbaar wordt een harmonieuze mix van (donker) bruin metselwerk, hout (structuren) en natureltinten.

Omdat de entree tot de buurt en de woningen zelf verscholen liggen, ligt in de Parkzone de nadruk op een open en welkome benadering van de architectuur. Elke woning heeft ten minste één grote gevelopening op de eerste verdieping.

Veranda’s en aanlegsteigers zijn zorgvuldig en passend mee-ontworpen en dragen hiermee bij aan een informele doch samenhangende buurt aan het water.

Als de woningen dieper op de kavel staan is de voortuin een belangrijke ruimte. Met mee-ontworpen hagen van 1,20 meter hoog en een boom in de voortuin wordt hier een mooi en lommerrijk straatbeeld gerealiseerd.

Vooral de westelijk gelegen woningen, die zichtbaar zijn vanuit de vijverzone, hebben de sterkste relatie met het water. Dit zijn waterwoningen zonder tuin.

afbeelding binnen de regeling

PRESTATIEDOELEN & SPELREGELS

afbeelding binnen de regeling

Dit deel van het BKP begint met de beschrijving van de prestatiedoelen. Daarna worden de spelregels beschreven. Dit zijn de middelen om de beoogde prestatiedoelen te bereiken.

Om niet uit te sluiten dat met een goed alternatief ontwerpvoorstel op een betere wijze het beoogde prestatiedoel behaald kan worden, beschouwen we de spelregels als niet hermetisch. De prestatiedoelen zijn in die zin het belangrijkst, deze zijn het fundament onder de spelregels.

Als voorgesteld wordt om op een bepaald aspect af te wijken van een spelregel kan dat alleen met een kwalitatief goed alternatief en in goed overleg met de Commissie Ruimtelijke Kwaliteit.

PRESTATIEDOELEN

afbeelding binnen de regeling

We bouwen geen huizen, we bouwen een buurt, een Langedijkse Oostrand NZS.

Dat doen we door te letten op ruimtelijke kwaliteiten in het hele plan. Deze kwaliteiten worden voor de gehele Oostrand NZS als Prestatiedoelen gesteld.

  • 1.

    Aaneenrijgen

  • 2.

    De hoek om

  • 3.

    De kap

  • 4.

    De schijnkap

  • 5.

    Schaal

  • 6.

    Blikvangers

  • 7.

    Tuindustriële monolieten

  • 8.

    Tuindustriële monolieten T1 buurtparkeerhubs

  • 9.

    De begane grond

  • 10.

    Overgangen

  • 11.

    De plint

  • 12.

    Buitenruimtes & galerijen

  • 13.

    Gemeenschappelijke meerwaarde

  • 14.

    Net - en natuurbewust bouwen

  • 15.

    Binnenhoven

  • 16.

    Materiaal, kleur en details

Alle plannen worden getoetst aan het kwalitatief behalen van deze Prestatiedoelen.

Prestatiedoelen formuleren de bedoeling achter de regels. Indien een architect een zeer goed idee heeft voor alternatieven die de prestatie op een net iets andere wijze realiseert, kan dit ter goedkeuring aan supervisie of CRK worden voorgelegd. Dit geldt met name voor alternatieven die extra inzetten op duurzaamheid, circulariteit en/ of biodiversiteit.

Prestatiedoel 1 Aaneenrijgen

afbeelding binnen de regeling

In de Oostrand NZS zijn de gebouwen aaneengeregen.

Elk bouwveld is rondom gekoppeld door middel van poorten, gemetselde muren, hekwerken, bijgebouwen, doorgetrokken plinten, hagen, pergola’s en veranda’s.

Aan de ecologische rand is een fysieke aaneenrijging nodig om een geluidsluw binnenhof te creëren.

Aan de noord- en zuidranden van de bouwkavels is dit ook nodig voor de geluidsluwe kwaliteit en intimiteit van de collectieve binnenhoven.

Tevens zorgt het aaneenrijgen van de randen voor een kwalitatieve overgang van de openbare ruimte en wordt het zicht op parkeerterreinen afgeschermd.

Deze randen zijn zorgvuldig vormgegeven als verlengstukken van de gevel en hoofdbebouwing.

afbeelding binnen de regeling

afbeelding binnen de regeling

afbeelding binnen de regeling

afbeelding binnen de regeling

afbeelding binnen de regeling

afbeelding binnen de regeling

Prestatiedoel 2 De hoek om

afbeelding binnen de regeling

In de Oostrand NZS zijn geen kopgevels of zijgevels te vinden, ook dit zijn voorgevels. Ze zijn als voorgevels behandeld, gematerialiseerd en vormgegeven. Daarmee dragen ze bij aan de alzijdigheid en brengen ze levendigheid op elke straathoek en ogen op de straat.

Op openbare hoeken is het van belang dat het bouwvolume twee gevels heeft met voldoende gevelopeningen en architectonische kwaliteit. Een hoekwoning reageert en profiteert wat betreft gebruiksmogelijkheden van zijn bijzondere positie in het blok.

Met voordeuren, hoekramen, gevelopeningen, erkers, bijgebouwen, pergola’s en veranda’s worden de hoeken geactiveerd.

Zo zijn er op de hoeken waar de bebouwing terugligt ook géén voor- en zijtuinen, maar hoektuinen die alzijdig als voortuin behandeld worden.

Appartementsgebouwen zijn per definitie alzijdig en kennen eveneens géén zij- of kopgevels, maar alleen voorgevels aan de openbare ruimte.

afbeelding binnen de regeling

afbeelding binnen de regeling

afbeelding binnen de regeling

Prestatiedoel 3 De kap

afbeelding binnen de regeling

Bij dorpen horen kappen. Ook in de Oostrand NZS vormt het diverse kappenlandschap een compositie. Het is één van de belangrijkste identiteitsdragers van het gebied.

Door te variëren met kaphellingen, goothoogtes, nokhoogtes en kapvormen is de sfeer informeel. Ook in de Oostrand geldt dat enige variatie in kapvorm bijdraagt aan de dorpse sfeer.

Dwarskappen, mansardekappen en licht hellende loodskappen voeren de boventoon in samenhangende composities.

De verhoudingen tussen kappen en platte daken zijn per woonmilieu anders. Langs het Doesenpad is een hoger percentage kappen dan aan de ecologische rand bijvoorbeeld.

Veel herhaling, lange langskappen of aan- eengesloten types komt niet vaak voor langs het Doesenpad. De basiskarakteristieken van de lintdorpse uitstraling is hier van belang voor de beeldkwaliteit.

De kaprichting staat langs het Doesenpad overwegend haaks op de noord-zuid routes met plaatselijk een langskap. Aan de oost- west verbindingen is dit andersom.

afbeelding binnen de regeling

afbeelding binnen de regeling

afbeelding binnen de regeling

Daar waar langskappen vaker voorkomen wordt in de dorpse sfeer gezocht naar slimme manieren om de lange lijnen te onderbreken en tóch nokken haaks op de gevel te krijgen. Dit kan bijvoorbeeld met topgevels of onderbrekingen met verspringende dwarsnok of dubbelkappers.

Nokken horen bij het dorpse beeld. Steile kappen met platte afdekkingen zijn onwenselijk.

Eventuele dakkapellen (opties) dienen zorgvuldig mee ontworpen en gematerialiseerd te worden binnen dit prestatiedoel.

Bijzondere aandacht gaat naar de zorgvuldige inpassing van PV-panelen en ‘pijperij’ op het dak.

afbeelding binnen de regeling

afbeelding binnen de regeling

afbeelding binnen de regeling

De grotere volumes in de Oostrand NZS hebben een helder hoofdvolume en kap- vormen die stoer en kloek zijn. Het komt niet voor dat kappen complex en verbrokkeld zijn.

De uitzonderingen hierop zijn de Tuindustriële monolieten die bijvoorbeeld een sheddak of sculpturale kap hebben.

De kappen dienen als installatiekap of bieden ruimte voor hogere woningen. Lange langskappen komen slechts zeer incidenteel voor.

De buurtparkeerhubs in het bijzonder hebben een kapfront dat zichtbaar is vanuit de openbare ruimte en vanuit de naastgelegen appartementengebouwen. Deze vorm kan opengewerkt zijn en biedt kansen voor PV-panelen, verlichting en (gevel)groen. Lift- en trappenhuizen hebben een eigen kapvorm als zij buiten dit hoofdvolume staan.

afbeelding binnen de regeling

afbeelding binnen de regeling

afbeelding binnen de regeling

afbeelding binnen de regeling

afbeelding binnen de regeling

afbeelding binnen de regeling

afbeelding binnen de regeling

afbeelding binnen de regeling

Prestatiedoel 4 De schijnkap

afbeelding binnen de regeling

afbeelding binnen de regeling

Prestatiedoel 5 Schaal

afbeelding binnen de regeling

Schaalsprongen langs en achter het Lange- dijkse lint horen tot de identiteit van het gebied. In de Oostrand NZS krijgt dit een eigen vertaling.

Het mág ‘‘schuren’’ in de Oostrand NZS. Dat betekent dat de grote en de kleine schaal incidenteel naast elkaar mogen staan, mits dit gedaan wordt met gevoel voor compositie, verhoudingen en passende volumes.

Aaneengesloten wanden zijn onderbroken en verkleind. Lange wanden worden verdeeld in kleinere korrels die iets hoger zijn dan dat ze breed zijn.

Tuindustriële monolieten behouden de grote schaal. Het is dan belangrijk dat de naastgelegen bebouwing hierop inspeelt in de compositie en op gepaste afstand.

afbeelding binnen de regeling

afbeelding binnen de regeling

Prestatiedoel 6 Blikvangers

afbeelding binnen de regeling

Binnen elk bouwveld en eilandbuurt staan op verschillende schaalniveaus blikvangers in 2 vormen. Vooral langs het Doesenpad zorgen deze blikvangers voor verrassende variatie.

B1

2 per eiland buurt

Op belangrijke hoeken en knikpunten staan architectonische blikvangers die afwijken in vorm, kleur en/of materiaal . Ze wijken af op minimaal 2 van de 3 punten. Hiermee vormen ze een bijzonder accent en oriëntatiepunt in de wijk.

B2

2 per bouwveld

In zichtassen staan subtiele blikvangers die, in samenhang met de overige architectuur, subtiel afwijken in vorm óf materiaal, maar binnen het basispalet aan kleur blijven.

Hiermee tekenen ze zich af en zorgen ze voor een speelse variatie zonder te detoneren.

Zie ook toelichting en voorbeelden op pagina 45

afbeelding binnen de regeling

afbeelding binnen de regeling

Prestatiedoel 7 Tuindustriële monolieten

afbeelding binnen de regeling

De Tuindustriële monolieten zijn belangrijke identiteitsdragers van de Oostrand NZS. Ze zijn stoer en kloek van vorm. Ze hebben het industriële karakter uit het tuindersverleden met een hout(achtige) afwerking.

Het kan hout zijn, maar ook felsbanen of kwalitatieve strookbekleding kunnen op verrassende wijze een houtachtige impressie geven. Afwijkingen zijn mogelijk voor kwalitatieve circulaire en biobased gevelmaterialen.

De monolieten hebben een sheddak, herhalende vorm of sculpturale kap. De Tuindustriële monolieten zijn vrijstaand of ‘‘losgeknipt’’ van de belendende bebouwing.

De buurtparkeerhubs zijn belangrijke tuindustriële monolieten en worden als apart prestatiedoel (8) omschreven.

afbeelding binnen de regeling

afbeelding binnen de regeling

afbeelding binnen de regeling

Prestatiedoel 8 T1 Buurtparkeerhubs

afbeelding binnen de regeling

De buurtparkeerhubs in het bijzonder zijn grote collectieve voorzieningen die erg beeldbepalend zijn in de wijk.

Buurtparkeerhubs zijn nadrukkelijk onderdeel van de wijk en geen dissonant. Vanuit de openbare ruimte en omringende bebouwing worden de parkeerplaatsen aan het zicht onttrokken.

Het hoofdvolume is gedeeltelijk opengewerkt en biedt kansen voor PV-panelen en (gevel)groen. Lift- en trappenhuizen hebben een eigen kapvorm óf zijn opgenomen in de hoofdvolumes. De grote volumes zijn onderverdeeld in kleinere eenheden met de nokken en inritten op de hoofdroute gericht.

De buurtparkeerhubs zijn overwegend met hout bekleed. Er wordt met licht en (semi) transparantie gewerkt in het kader van sociale veiligheid en uitstraling.

Groene gevels, met groen in de volle grond, zijn eveneens nadrukkelijk onderdeel van de ontwerpopgave voor de buurtparkeerhubs.

afbeelding binnen de regeling

afbeelding binnen de regeling

afbeelding binnen de regeling

Sociale veiligheid is naast een goede beeldkwaliteit een topprioriteit van de parkeerhubs. Zowel overdag als in de avond moet iedereen zich er veilig voelen. Een goed verlichtingsplan is daarom van groot belang. De verlichting moet niet alleen functioneel zijn, maar ook sfeervol. Het is belangrijk dat de ruimtelijke kwaliteit van de buitenzijde ook door de kleur van het licht ook in de avond en nacht aangenaam blijft.

Verlichting, techniek, wegbewijzering en overige grafische uitingen zijn nadrukkelijk onderdeel van de ontwerpopgave voor de buurtparkeerhubs.

Het integreren van kunst wordt aangemoedigd als aanvullende kwaliteit.

afbeelding binnen de regeling

afbeelding binnen de regeling

afbeelding binnen de regeling

afbeelding binnen de regeling

Prestatiedoel 9 De begane grond

afbeelding binnen de regeling

De begane grond is het gezicht van de woning op ooghoogte en heet de bewoner en bezoeker welkom. Het is de belangrijkste verdieping die communiceert en aansluiting maakt met de openbare ruimte. Het is bij uitstek de eerste plek voor ontmoeting.

Entrees zijn herkenbaar en vriendelijk op ingetogen wijze. Actieve plintfuncties, zoals eetkeukens, woonkamers of werkruimtes zijn in deze plint te vinden. Aan de openbare ruimte komen dode en blinde gevels niet voor.

Gevelopeningen zijn genereus en zorgen voor goed zicht van binnenuit op de openbare ruimte. Vooral langs het Doesenpad en de ecologische zone is veel ruimte gemaakt voor laagdrempelige ontmoeting.

Articulatie van de begane grond is subtiel, maar duidelijk. Diepe neggen bij de voordeur, mee-ontworpen luifels, bankjes, plantenvakken en terugspringende rooilijnen dragen bij aan de levendigheid van de begane grond. Erkers komen incidenteel voor.

Er is zorgvuldig aandacht besteed aan hedendaagse huisnummers, voordeur- verlichting en belborden die passen bij de architectuur en de wijk.

afbeelding binnen de regeling

afbeelding binnen de regeling

afbeelding binnen de regeling

afbeelding binnen de regeling

Prestatiedoel 10 Overgangen

afbeelding binnen de regeling

De overgang van privé naar openbaar is misschien wel de belangrijkste ontwerp- opgave voor duurzaam goede stedenbouw. Hier worden de voorwaarden geschapen voor een juiste balans tussen privacy garanderen en ontmoeting stimuleren.

In de gehele Oostrand NZS is bij de bouwvelden met meer dan tien woningen per bouwveld minimaal rekening gehouden met een Delftse stoepzone. De Delftse stoep is qua materialisatie goed afgestemd op de openbare ruimte en duidelijk herkenbaar. Ze biedt ruimte voor zitgelegenheid, geveltuintjes en gevelgroen, waarbij het groen in volle grond is aangelegd.

Langs het Doesenpad en de groene woonpaden zijn veranda’s en pergola’s te vinden. De oost- en westgevels aan het Doesenpad hebben een iets andere uitwerking (zie spelregels).

Voortuinen zijn ingekaderd door lage hagen, groenperken, gemetselde muurtjes of incidenteel passend vormgegeven hekjes.

Zitranden zijn opgenomen in de architectuur of tuinmuren.

afbeelding binnen de regeling

afbeelding binnen de regeling

afbeelding binnen de regeling

afbeelding binnen de regeling

afbeelding binnen de regeling

afbeelding binnen de regeling

afbeelding binnen de regeling

afbeelding binnen de regeling

afbeelding binnen de regeling

afbeelding binnen de regeling

Prestatiedoel 11 De plint

afbeelding binnen de regeling

De plint van de gestapelde bouwwerken is kwalitatief hoogwaardig gematerialiseerd, overzichtelijk ingericht en logisch ingedeeld. Dit draagt bij aan de sfeer en oriëntatie in de wijk en zorgt dat bewoners zich veilig voelen. De plint is levendig en uitnodigend. Lange gesloten geveldelen en dode hoeken zijn niet aanwezig.

De hoofdentrees zijn strategisch gepositioneerd aan de openbare ruimte; ze zijn duidelijk en herkenbaar vormgegeven en zijn kwalitatief hoogwaardig gematerialiseerd. De hoofdentrees zijn open, uitnodigend, licht en aantrekkelijk, soms extra hoog en soms extra breed, altijd met allure. Ruimte voor ontmoeting, aandacht voor een prettige, duurzame verlichting en sociale veiligheid zijn nadrukkelijk onderdeel van de ontwerpopgave. Ook het belborden- tableau en huisnummers horen hierbij.

Poorten en toegangen tot de collectieve binnenhoven zijn zorgvuldig mee-ontworpen met de architectuur.

Gemeenschappelijke fietsbergingen zijn goed zichtbaar en bereikbaar vanuit de openbare ruimte en zijn vriendelijk ingericht. Ze zijn rechtstreeks vanuit de hoofdentree bereikbaar of dichtbij gesitueerd zodat fietsgebruik maximaal gestimuleerd wordt. Dit maakt de route naar de fiets of scootmobiel kort, overzichtelijk en sociaal veilig. De entrees zijn nadrukkelijk mee-ontworpen met de architectuur en de fietsbergingen kunnen aan de gevel zichtbaar zijn, bijvoorbeeld achter Braziliaans metselwerk wanden of zorgvuldig vormgegeven open puien, zonder dat ze storend zijn in het straatbeeld.

In de plint is veel aandacht voor goede overgangen tussen privé, collectief en openbaar. Met name langs het Doesenpad zijn juist óók bij de gestapelde bouwvolumes voordeuren aanwezig in de plint. De overgangen (ook te zien in Prestatiedoel Overgangen) zijn ontworpen voor ontmoeting met aandacht voor privacy. Dit kan in de vorm van veranda’s, pergola’s, kleine hoogteverschillen en voortuinen.

Aan de oost-west verbindingen langs de singels zijn dit Delftse stoepen en langs de ontsluitingswegen zijn dit groene (tuin)zones met lage groene afscheidingen.

Op belangrijke locaties, zoals aan het haventje, is de verdiepingshoogte van de plint extra hoog zodat er nu of later andere functies mogelijk zijn. Ook collectieve ruimte(s) in de plint zal bijdragen aan een levendige actieve plint, evenals actieve functies zoals pakketdiensten, een buurthuis of een kinderdagverblijf.

Net als bij de parkeerhubs is zachte verlichting sterk sfeerverhogend bij de avondbeleving van de plinten.

Prestatiedoel 12 Buitenruimtes & galerijen

afbeelding binnen de regeling

Buitenzijn is goed voor de mens, zowel fysiek als sociaal. Daarom vragen we veel aandacht om de woningen een goede buitenplek te bieden. Naast een eventuele eigen achtertuin is de buitenruimte aan de voorzijde van de woning een belangrijk sociaal verlengstuk van de woonruimte.

Buitenzitten, aan de meer openbare zijde van je huis, stimuleert ontmoeting en sociale cohesie. De buitenruimtes voor laagbouw zijn omschreven in het Prestatiedoel Overgangen.

In de grotere gebouwen zijn de buitenruimtes aan de openbare ruimte opgenomen in de hoofdvorm. Dat kan op meerdere manieren. Van belang is dat het hoofdvolume helder blijft.

Uitzonderingen hierop kunnen voorgesteld worden aan CRK of supervisie als er extra aandacht is voor netbewust bouwen biobased materialen, en/of circulaire materialen.

Galerijen die zichtbaar zijn vanaf de openbare ruimte en collectieve ruimtes zijn uitermate zorgvuldig vormgegeven, inclusief zachte verlichting en noodtrappen, en zijn integraal onderdeel van de architectuur. Het zijn belangrijke ontmoetingsplekken.

afbeelding binnen de regeling

afbeelding binnen de regeling

afbeelding binnen de regeling

afbeelding binnen de regeling

afbeelding binnen de regeling

afbeelding binnen de regeling

afbeelding binnen de regeling

afbeelding binnen de regeling

Prestatiedoel 13 Gemeenschappelijke meerwaarde

afbeelding binnen de regeling

Bij appartementengebouwen delen bewoners onderdelen van een gebouw. Vaak is het alleen de ontsluiting, maar soms gemeenschappelijk groen of een collectieve ruimte. Ontmoeting en sociale cohesie is een hoog gewaardeerd goed in de Oostrand NZS.

Het is zaak om die collectieve kwaliteit tot een herkenbare meerwaarde in het ontwerp te realiseren. De relatie tussen de woning (of woongebouw) en de gemeenschappelijke (buiten)ruimtes, voorzieningen en potentie voor de gemeenschap, is een essentieel onderdeel van de ontwerpopgave.

Gevels aan binnenhoven voelen ook als informele voorgevels. Groene schermen of plantenvakken tussen de woningen bieden privacy. De erfafscheiding zorgt zorgvuldig mee-ontworpen.

afbeelding binnen de regeling

afbeelding binnen de regeling

Prestatiedoel 14 Net- en natuurbewust bouwen

afbeelding binnen de regeling

Al bij het ontwerp van een gebouw kan door passieve maatregelen en slim gebruik van natuurwetten zowel oververhitting als de energievraag worden beperkt. Het integreren van voorzieningen voor vergroening in het ontwerp draagt hier eveneens positief aan bij.

Bij toepassing van technische oplossingen zoals zonwering, zonnepanelen, gevelroosters en leidingen, zijn deze onderdeel van de ontwerpopgave.

Woningen en gebouwen in de Oostrand NZS worden ontwikkeld met aandacht voor een netbewuste en natuurbewuste bouwwijze.

afbeelding binnen de regeling

afbeelding binnen de regeling

afbeelding binnen de regeling

  • open gevels op het zuiden waar mogelijk, minder grote gevelopeningen op het noorden

  • schaduw, met name op zuid- en westgevels, door middel van overstekken, bebouwde zonwering, en overige schaduwrijke maatregelen zoals (begroeide) pergola’s

  • nestkasten en PV-panelen integreren in de architectuur

  • groene daken voor de waterbuffering, verkoeling en biodiversiteit

  • trafo huisjes zoveel mogelijk inpandig en anders in de stijl en het materiaal van de aangrenzende cq omringende architectuur

afbeelding binnen de regeling

afbeelding binnen de regeling

Prestatiedoel 15 Binnenhoven

afbeelding binnen de regeling

Gemeenschappelijke binnenhoven met verblijfskwaliteit hebben een belangrijke meerwaarde voor community-vorming. Het is dan ook aan deze zijde van belang dat goede overgangen tussen privé en collectief gerealiseerd worden, zéker als er ook sprake is van parkeren in het binnenhof. Ook in de binnenhoven wordt natuurinclusief en klimaatadaptief ontworpen.

  • de overgangen tussen openbaar, collectief en privé zijn integraal onderdeel van de ontwerpopgave

  • bergingen groene daken

  • kliko-opslag uit het zicht

  • installaties uit het zicht of mee- ontwerpen in de stijl van het hoofdgebouw

afbeelding binnen de regeling

afbeelding binnen de regeling

Prestatiedoel 16 Materiaal, kleur en detail

afbeelding binnen de regeling

Materiaal en kleur zijn belangrijke ingrediënten om een wijk te maken waar eenheid in verscheidenheid is. Keramische en biobased materialen in warme tinten zijn de basis, maar ook felsbanen of leisteen zijn mogelijk omdat deze van oudsher mooi combineren met metselwerk en hout.

Voor de gehele Oostrand NZS wordt gewerkt met gedempte warme tinten uit een basispalet van warm rood-bruin-geel. Het toegepaste basismateriaal is overwegend genuanceerd baksteen. De verschillen zijn vooral door subtiele ingrepen zoals voegkleur, steenmix en rijk metselwerk te realiseren. Langs het Doesenpad is minimaal 15% van de woninggevel van rijk metselwerk.

De buurtparkeerhubs zijn van hout en de overige tuindustriële monolieten zijn van houtachtige structuren.

Een bijzonder voorbehoud wordt gemaakt voor circulaire en biobased materiaaltoepassingen, voor zover deze niet passend verkrijgbaar zijn in het basiskleurenpalet. Dit ter beoordeling door de CRK.

afbeelding binnen de regeling

afbeelding binnen de regeling

afbeelding binnen de regeling

Rijk en gearticuleerd metselwerk als:

  • speelse vlakverdeling

  • terughoudende versiering

  • drager voor klimgroen

  • doortekening in grote vlakken

  • kleurnuance door schaduw

afbeelding binnen de regeling

afbeelding binnen de regeling

afbeelding binnen de regeling

afbeelding binnen de regeling

afbeelding binnen de regeling

  • verholen goten met als doel heldere hoofdvormen

  • PV zorgvuldig meeontwerpen

  • strakke dakranden + overstekken

  • HWA’s grenzend aan en zichtbaar vanuit de openbare ruimte zijn zorgvuldig mee- ontworpen, bijvoorbeeld ingemetseld

  • illustraties geven voorbeelden van zorgvuldig ontworpen combinaties van gevelmateriaal en zorgvuldig afgestemde details tussen de verschillende onderdelen

afbeelding binnen de regeling

afbeelding binnen de regeling

SPELREGELS

Deze Spelregels zijn bedoeld als aanvulling op de Prestatiedoelen en als hulpmiddel en advies aan plannenmakers om tot een harmonieus en passend beeld te komen.

Vooruitlopend op het omgevingsplan zijn in dit BKP normen opgenomen die pas later in dat omgevingsplan een juridische status krijgen.

De Algemene Spelregels gelden voor de gehele Oostrand NZS. Afwijkingen en/of aanvullingen hierop zijn hierna per zone apart behandeld.

Algemeen

  • heldere hoofdvormen die zich hoofdzakelijk richten op de lange noord-zuidlijnen

  • bouwvelden zijn rondom levendig en aaneengeregen met minimaal twee voordeuren per zijde

  • verspringende rooilijnen en goothoogtes

  • hellingshoek kap min. 20° en max. 65°

  • galerijen aan de openbare ruimte zijn integraal onderdeel van het hoofdvolume

  • galerijen die zichtbaar zijn vanuit de openbare ruimte of collectieve ruimtes zijn van hoogwaardige kwaliteit

  • buitenruimtes zijn zorgvuldig vormgegeven

  • erfafscheidingen en overgangen grenzend aan de openbare ruimte of collectieve ruimte zijn zorgvuldig mee-ontworpen met de bebouwing

  • (tuin)muren en poorten zijn in stijl en materiaal van het hoofdgebouw

  • installaties uit het zicht: roosters, PV-panelen en ‘pijperijen’ op het dak worden zorgvuldig mee- ontworpen, bij mansardekap op het flauwe deel

  • zachte lichtuitstraling naar de omgeving toe

  • hemelwaterafvoeren aan de openbare ruimte zijn uit het zicht of ingemetseld en in metaal of kleur van de gevel

  • rondom elk bouwveld ruimte voor een Delftse stoep van minimaal 80cm diep m.u.v. veranda’s en voor- en hoektuinen

  • hekwerken, hagen, tuinmuren aan voortuinen en hoektuinen zijn maximaal 1m hoog

  • pergola’s en veranda’s zijn minimaal 40% van de totale gevelhoogte muv zone A: Het Doesenpad

  • parkeren op eigen terrein is naast of achter de woning, niet tussen de weg en de woning

afbeelding binnen de regeling

Mansarde kappen:

  • in afwijking van de maximale hellingshoek mag het steile deel van een mansarde kap max. 80° zijn, waarbij de goten, knikpunten én nok op een halve cirkellijn vallen.

  • de kap eindigt óp de bouwmuur

Bijgebouwen en aanbouwen:

  • aanbouwen en bijgebouwen, inclusief garages en bergingen, aan de openbare ruimte zijn in de stijl en materiaal van het hoofdgebouw

  • bijgebouwen op prominente zichtbare locaties krijgen een dakvorm passend bij het hoofdgebouw

  • goothoogte maximaal 3m

  • nokhoogte maximaal 5m

  • hellingshoek conform hoofdvolume

  • uitzondering op hellinghoek en/ of nokhoogte van bijgebouwen/ aanbouwen/garages: bijzonder vormgegeven samengestelde volume voor te leggen aan CRK

NB: positie rooilijnen vast te leggen in Bouwveldpaspoort

  • A.

    Het Doesenpad

  • B.

    Ecologische rand Oost

  • C.

    Gemengd Oostrand NZS

  • C+.

    Woonpaden

  • D.

    Haven*

  • E.

    Buurtparkeerhubs

  • F.

    Parkzone

*D heeft overlap met A en B.

Spelregels voor D gelden voor de waterfront bebouwing

afbeelding binnen de regeling

Spelregels A Het Doesenpad

Algemeen:

  • kaprichting overwegend haaks op het Doesenpad

  • ≤ 3x herhaalde vormen/types naast elkaar (of ≤18m1)

  • langs gehele Doesenpad heeft elke gevel minimaal 15% verbijzondering (rijk metselwerk) t.o.v. standaard gevelmetselwerk

Langs Het Doesenpad per bouwveld:

  • mix van min. 3 kaptypes inclusief mansarde type

  • ≥ 80% kappen waarvan ≤20% langskap

  • ≤ 20% plat dak

  • mix van min. 3 hellingshoeken

Nokhoogte wisselend:

  • min 3 nokhoogtes per bouwveld

  • verschil nokhoogtes min. 80cm

  • laagbouw max 11m (2 + kap)

  • gestapelde bouw max 18m (4 + kap)

  • ≤ 60% max

Goothoogte wisselend (3 tot 6m):

  • ≤ 50% 6m goothoogte

  • max. 18m1 aansluitend goothoogte

  • ≥ 1m verschil

Plat dak:

  • laagbouw max. 10m (3 bouwlagen)

  • gestapelde bouw max. 15m (4 bouwlagen)

  • uitzonderingen hoogteaccent bij haven (spelregels D)

Rooilijn:

  • max. 18m1 aansluitend zelfde rooilijn

  • minimaal 3 sprongen in rooilijn van min. 30cm

afbeelding binnen de regeling

afbeelding binnen de regeling

Spelregels B Ecologische rand Oost

Algemeen:

  • mix van min. 2 kaptypes per bouwveld

  • max. 4 herhaalde vormen/types naast elkaar, tenzij sprake is van ‘’Tuindustriële’’ vormen (bijv sheddaken, schuurvormen) of Passief maatregelen ensemble (toets CRK)

  • ≤ 4 types herhaald (of ≤24m1)

  • ≤ 60% plat per bouwveld

  • ≥ 40% kap per bouwveld

  • ≤ 20% langskap per bouwveld

nokhoogte:

  • min. 2 hoogtes per bouwveld

  • verschil min. 50cm

  • laagbouw max 11m (2 + kap)

  • gestapelde bouw max 18m (4 + kap)

goothoogte:

  • wisselend (3 tot 6m)

  • ≤ 50% 6m goothoogte per bouwveld

  • max. 24m1 aansluitend zelfde

  • goothoogte

plat dak:

  • laagbouw max. 10m (3 bouwlagen)

  • gestapelde bouw max. 17m (5 bouwlagen)

  • uitzonderingen hoogteaccent

  • (6 bouwlagen) ntb in kavelpaspoort

  • NB: bij sheddaken kan er een uitzondering worden gemaakt voor 3 bouwlagen + shedkap

Zie ook algemene spelregels.

NB: met langskap wordt bedoeld; doorlopende langskap zonder topgevels.

NB: randvoorwaarden erfgrens aan het water noordzijde vast te leggen in bouwveldpaspoort.

afbeelding binnen de regeling

Spelregels C Gemengd Oostrand NZS

Algemeen:

  • overgangen volgens Inrichtingsplan (zie ook p24)

  • type overgang gekoppeld aan type woning

  • ≤ 6 woningtypes herhaald (of ≤34m1)

  • ≤ 40% plat dak

  • ≤ 40% langskap per bouwveld

  • ≥ 50% bebouwd aan noord en zuidzijde d.m.v. hoekgevels/rijtjes/bijgebouw aanbouw/(tuin)muren zie Prestatiedoel Aaneenrijgen

nokhoogte:

  • wisselend min. 3 hoogtes per bouwveld

  • verschil min. 50cm

  • laagbouw max 11m (2 + kap)

  • gestapelde bouw max 18m (4 + kap)

goothoogte:

  • wisselend (3 tot 6m)

  • ≤ 50% 6m goothoogte per bouwveld

  • max. 24m1 aansluitend zelfde

  • goothoogte

plat dak:

  • max. 10m (3 bouwlagen)

Zie ook algemene spelregels.

NB: met langskap wordt bedoeld; doorlopende langskap zonder topgevels.

NB: randvoorwaarden erfgrens aan het water noordzijde vast te leggen in bouwveldpaspoort.

afbeelding binnen de regeling

Spelregels C+ Woonpaden

Afwijkingen op C:

  • aan groene wandelpaden wisselende overgangstypes (voortuin/veranda/)

  • van min. 1.5m diep

  • max. 24m1 herhalende type

Zie ook algemene spelregels.

Spelregels D Haven

Aanvullend op en/of in afwijking van overige spelregels A en B.

  • nokken haaks op waterfront

  • bijzondere aandacht voor de plinten van de havenwoningen en hogere bruto verdiepingshoogtes

  • de begane grond aan het waterfront heeft een verdiepingshoogte van min. 50cm hoger dan standaard (≥ 3,5m)

  • max. 12m1 hiervan heeft achtereenvolgend dezelfde verdiepingshoogte op de begane grond

  • ≤ 40% plat dak

  • 1.

    oostgevel aan havenfront west

    • hoogteaccent zuidoosthoek 4 lagen + kap

    • footprint hoogteaccent max. 20x20m

  • 2.

    zuidgevel aan havenfront noord

    • ≤ 2 herhalende types aaneen

    • blikvanger oosthoek 3 + kap

    • nokhoogte max. 13m

    • goothoogte max. 9m

    • plat dak max. 11m hoog

    • panden aan de haven zijn 5 tot 6m breed of als dubbelpand 10-12m breed

  • 3.

    noordgevel aan havenfront zuid

    • ≤ 2 herhalende types aaneen

    • max 1x 3 herhalende types

    • hoekaccent oost 3 + kap

    • nokhoogte max. 13m

    • goothoogte max. 9m

    • platdak max. 11m hoog

NB: positie rooilijnen vast te leggen in Bouwveldpaspoort.

Zie ook algemene spelregels.

afbeelding binnen de regeling

Spelregels E Buurtparkeerhubs

  • max. 15m bouwhoogte {incl. kapvorm}

  • nokken haaks op hoofdroutes

  • gevelparcellering max. 16m1 breed

  • houten bekleding

  • ≥ 30% groene gevels (groen in volle grond)

  • parkeerdek niet zichtbaar vanuit de omringende bebouwing

NB: positie rooilijnen vast te leggen in Bouwveldpaspoort.

Zie ook algemene spelregels.

Spelregels F Parkzone

  • wisselende goothoogtes 3m tot 6m

  • max. 50% goothoogte 6m

  • min. 2 goothoogtes per bouwveld

  • nok maximaal 12m (2 + kap)

  • ≤ 25% plat per bouwveld

  • aanbouw, bijgebouwen, bergingen en garages zijn in stijl van hoofdvolume

  • elke woning heeft minimaal 1 grote gevelopening op de eerste verdieping gericht op de straat of op het water

  • F1: max. 40% erfgrens aan het water is terras, min. 60% is tuin (groen)

  • F2: waterwoningen zonder tuin aan het water

NB: positie rooilijnen en randvoorwaarden erfgrenzen aan het water vast te leggen in bouwveldpaspoort.

afbeelding binnen de regeling

Ondertekening

Vastgesteld in de openbare vergadering van 27 januari 2026.

De griffier,

M. (Menno) Horjus

De voorzitter,

M.F. (Maarten) Poorter