Permanente link
Naar de actuele versie van de regeling
http://lokaleregelgeving.overheid.nl/CVDR755587
Naar de door u bekeken versie
http://lokaleregelgeving.overheid.nl/CVDR755587/1
Grondprijsbrief 2026
Geldend van 01-01-2026 t/m heden
Intitulé
Grondprijsbrief 2026Inleiding
In de raadsvergadering van 28 juni 2021 heeft de raad van de gemeente Noordenveld de Kadernota Grondprijzen 2022-2025 vastgesteld. In deze Kadernota is het beleidskader rondom de totstandkoming van grondprijzen opgenomen. De voorliggende grondprijsbrief is gebaseerd op de kadernota. Hierin worden zowel uitgangspunten voor het bepalen van grondprijzen en eventuele (grond)prijzen zelf opgenomen die voor dat jaar gelden. Deze prijzen en berekeningsmethodieken ervan komen voort uit marktontwikkelingen en het beleid in de kadernota. Het gaat om de volgende type grondprijzen:
• Sociale woningbouw (huur/koop, grondgebonden/gestapeld)
• Vrije sector woningbouw
• Bedrijfskavels
• Kantoren
• Snippergroen
• Nutsvoorzieningen
De verkoop van gronden in de overige categorieën (o.a. recreatie, winkels, horeca, grootschalige detailhandelsvestigingen, huisartsen, fysiotherapeuten, commerciële zorgeenheden, etc.) geldt dat dit te weinig voorkomt om een grondprijs voor vast te stellen. De grondprijzen worden in deze situaties bepaald door een onafhankelijke deskundige in te schakelen.
Voor de grondprijzenbrief wordt geen extern advies ingewonnen over de ontwikkeling van de woningmarkt en prijzen. Bij het vaststellen van kavelprijzen bij nieuwe woningbouwprojecten worden grondprijzen voor die projecten individueel opnieuw vastgesteld. Hiermee spelen we beter in op de markt, individuele kenmerken van de locatie en kunnen we actuele grondprijzen vragen. Als we deze prijzen nu vastleggen voor alle projecten lopen we minimaal een half jaar tot maximaal anderhalf jaar achter in marktontwikkeling. Bij het vaststellen van definitieve verkoopprijzen van individuele projecten wordt wel gebruik gemaakt van extern advies. Daarnaast hanteren we een vanaf-prijs voor individuele kavels in de vrije sector. Deze zal net als nieuwe projecten altijd geactualiseerd worden naar marktwaarde wanneer individuele verkoop zich voortdoet.
Actueel
- •
De krapte op de woning op de woningmarkt duurt voort. Er zijn landelijk 13% meer woningen verkocht afgelopen kwartaal dan vorig jaar, maar dat zijn voor Noordenveld vertekenende cijfers. De stijging is namelijk volledig toe te rekenen aan de verkoop van voormalige huurwoningen door particuliere beleggers, vaak appartementen. Noordenveld lijkt hier weinig van te hebben, mede zichtbaar doordat het aanbod afgelopen anderhalf jaar amper steeg afwijkend van de landelijke trend.
- •
Landelijk zijn de vooruitzichten op de grondprijzen voor nieuwbouw nog steeds erg gunstig. De verwachte ontwikkeling in verkoopprijzen van nieuwbouwwoningen voor 2025 ligt tussen de 6% en 8%. In combinatie met een verwachte stijging in kosten tussen de 3% en 5% betekent dit een landelijk verwachte stijging van de grondprijzen van rond de 10% over 2025. Lokaal in Noordenveld dient die boodschap getemperd te worden. Ondanks dat de prijzen voor bestaande bouw met 12,5% harder stegen dan landelijk laten de nieuwbouwprojecten in Noordenveld een iets minder positief beeld zien. De nieuwbouwhuizen staan relatief lang te koop t.o.v. bestaande bouw. Hierdoor stijgen de prijzen voor nieuwbouw niet zo hard als voor bestaande bouw.
- •
Voor 2026 zullen de bouwkosten stijgen vooral door oplopende lonen. Een stijging van 4% valt lager uit dan eerder verwacht, maar blijft hoger dan de inflatie. Ook blijven de bouwkosten stijgen door toenemende kwaliteits- en duurzaamheidseisen. Deze stijging is iets minder sterk dan bij de loonkosten. Hierdoor wordt een totale kostenstijging verwacht van rond de 3%.
- •
De verwachte verkoopprijzen voor nieuwbouwwoningen blijven stijgen tussen de 4% en 6%. Hierdoor is een grondprijsontwikkeling van rond de 7% reëel, omdat een stijging in de verkoopprijs een groter impact heeft dan de stijging in bouwkosten. Er bestaat een zogenaamd hefboomeffect. Het gaat hier wederom om landelijke cijfers. Voor Noordenveld kunnen we de effecten beter inschatten als de gestart wordt met de bouw van de Boterlinie en Thedemaborg. Start bouw heeft vaak een positief effect op de verkoop en dat kan een goed beeld geven van de toekomst.
- •
In de eerste helft van 2025 zijn 14% minder nieuwbouwvergunningen uitgegeven in Nederland. De druk blijft dus ook in de toekomst doordat de gewenste 100.000 woningen per jaar de komende jaren nog niet gehaald zal worden afgaande op de benodigde vergunningen.
- •
Voor nieuwe projecten met kavels voor o.a. vrije sector woningbouw, projectbouw of particulier opdrachtgeverschap, wordt per project, op basis van de residuele methode , de grondprijs opnieuw bepaald. Dit leidt bij elk project tot een lijst met kavelprijzen die apart wordt vastgesteld.
Voorwaarden
- •
Alle in deze oplegnotitie genoemde prijzen kennen prijspeil 01-1-2026 en zijn exclusief BTW en kosten koper, tenzij anders vermeld.
- •
Genoemde (grond)prijzen zijn aangegeven in “vanaf” prijzen. Uitzondering hierop vormen de uitgifteprijzen voor sociale woningbouw, snippergroen en nutsvoorzieningen.
- •
Deze Grondprijsbrief 2026 treedt in werking per 01-01-2026.
Grondprijzen woningbouw
De grondprijzen worden met inachtneming van de kadernota grondprijzen 2022-2025 als volgt vastgesteld. Voor zover bedragen genoemd worden betreft het hier “vanaf”-prijzen:
- 1.
Sociale woningbouw
|
Sociale huur-woning |
factor |
Grondprijs/ woning |
Toelichting type |
Max. kavel grootte |
Meerprijs per m² |
|
Grondgebonden |
100% |
€ 20.600 |
180m2 |
€ 105,00 |
|
|
Gestapeld |
85% |
€ 17.510 |
zonder gebouwd parkeren |
||
|
Gestapeld |
60% |
€ 12.360 |
met gebouwd parkeren |
Tabel 1: grondprijzen sociale woningbouw
2.Vrije sector woningbouw – Projectbouw
De gemeente hanteert marktconforme prijzen voor vrije sector-woningbouw. Voor projectgebonden bouw komen grondprijzen op basis van een residuele berekening tot stand. Hierbij wordt mogelijk gebruik gemaakt van de comparatieve methode en extern advies om te bepalen of de gehanteerde prijs inderdaad marktconform zijn.
3.Vrije sector woningbouw – Particulier opdrachtgeverschap
De gemeente hanteert marktconforme prijzen voor vrije sector-woningbouw. Op het moment van schrijven heeft de gemeente geen projecten in ontwikkeling waarbij de verkoop is gestart. Wel worden naar verwachting volgend jaar individuele kavels in de verkoop gebracht. Voor deze kavels zullen de kavelprijzen pas bepaald worden als de kavels in de verkoop worden genomen. Ook hierbij zal gebruik gemaakt worden van extern advies en de comparatieve methode om tot marktconforme prijzen te komen.
4.Prijzen particulier opdrachtgeverschap
Voor 2026 is de volgende minimale prijzen voor vrije sectorkavels – particulier opdrachtgeverschap van toepassing:
|
Vanaf €261,- per m² excl. BTW |
Er is in navolging op vorig jaar vastgehouden aan een vanaf-prijs. Om te kunnen blijven meebewegen met de toekomstige economische ontwikkelingen is het belangrijk de prijzen te kunnen actualiseren. De genoemde prijs wordt momenteel gezien als de onderkant van de markt en is ook onderhevig aan de staffeling van kavelprijzen bij kavels boven de 500 m² oppervlak (zie 5. Staffeling kavelprijzen). De stijging van de m² prijs ten opzichte van vorig jaar wordt volledig verklaart door deze staffeling. De woningmarkt blijft stijgende en de gehanteerde prijzen om tot een residuele waarde te komen zijn slechts een momentopname. Daarom benadrukken we hierbij nogmaals de stelregel dat de gemeente Noordenveld marktconforme prijzen hanteert, welke per project afzonderlijk worden bepaald. Het college van B&W is bevoegd om de grondprijzen vast te stellen, mits passend in het door de gemeenteraad vastgesteld kader. Bij substantieel negatieve gevolgen voor de (vast te stellen) grondexploitatie worden de grondprijzen opnieuw ter vaststelling aangeboden aan de gemeenteraad, al dan niet in combinatie met een (geactualiseerde) grondexploitatie. Bij positieve gevolgen voor de grondexploitatie, worden deze achteraf, bij actualisatie van de grondexploitatie bij de jaarrekening, verantwoord. Dit is in lijn met de vastgestelde nota Grondbeleid 2025.
5.Staffeling kavelprijzen particuliere kavels
Voor kavels met een groot oppervlak (vanaf 500 m²) wordt gewaardeerd met behulp van een staffeling. De reden hiervoor is dat bij grote kavels de bebouwingsmogelijkheden niet evenredig toenemen naarmate de kavel groter wordt. Dit vertaalt zich in de marktwaarde van de kavel, want de gemiddelde prijs per vierkante meter daalt. Er vindt daarom ook een verlaging van de prijs per vierkante meter plaats voor vierkante meter boven de 500 m² en 1.000m².
De staffeling die voor de grondprijsbepaling wordt gehanteerd is als volgt:
|
Basisprijs in € / m² |
Kavelprijs per m² |
Kavelprijs per m² |
|
Kavel ≤ 500m² |
500m² > m² < 1000 m² In % van de Basisprijs |
≥ 1000 m² In % van de basisprijs |
|
100 % |
50 % |
25 % |
Tabel 2: staffeling grondprijzen particuliere kavels
6.Vrij op naam prijs (V.O.N.)
Om transparanter richting de inwoners te kunnen aangeven met welke koopsom men nu rekening moet houden bij de koop van de kavel en om onduidelijkheden rondom kosten koper opslagen te voorkomen, werkt de gemeente met een V.O.N. prijs voor de woningbouwkavels. Deze V.O.N. prijs is een prijs inclusief BTW. Deze informatie wordt opgenomen op de gemeentelijke website en in de verkoopbrochures van de verschillende plannen.
Grondprijzen niet-woningbouw
1.Genormeerde grondprijs bedrijfskavels
De gemeenten in de Regio Groningen- Assen hebben afgesproken om de grondprijzen voor (boven)regionale bedrijventerreinen op een uniforme wijze te berekenen. En wel door middel van een residuele berekening. Daarbij is tevens afgesproken om hier voor lokale bedrijventerreinen zoveel mogelijk bij aan te sluiten. Deze berekening heeft geleidt tot een te hanteren m²-prijs die nog steeds passend is in de markt. De grondprijzen betreffen functies voor gemengd bedrijf. Als er andere functies op een bedrijventerrein worden gerealiseerd, gelden mogelijk andere tarieven.
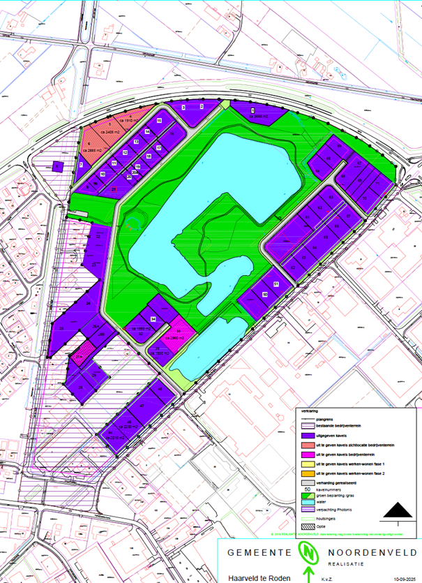
Bedrijventerrein Haarveld
Het nieuwe bestemmingsplan van Haarveld is vastgesteld en in werking. Dit zorgt ervoor dat er op sommige kavels de mogelijkheid is om een bedrijfswoning te bouwen.
Op grond van de hiervoor genoemde methodiek zijn voor Haarveld de volgende grondprijzen vastgesteld:
Tabel 3: grondprijzen Haarveld
|
Functie |
Binnenterrein |
Zichtlocatie |
Opslag voor woning |
Opslag voor woning |
|
Prijs/ m² (ex BTW) |
Prijs/ m² (ex BTW) |
per woning (niet inpandig)* |
per woning (inpandig) |
|
|
werken/wonen (wonen is ondergeschikt) |
€ 75,00 |
n.v.t. |
€ 32.000,00 |
€ 25.000,00 |
|
Bedrijven |
€ 75,00 |
€ 90,00 |
n.v.t. |
n.v.t. |
* Hierbij wordt uitgegaan van een oppervlakte ten behoeve van de bedrijfswoningfunctie van ca. 300 m².
Alle kavels zijn op dit moment in optie. Aanpassing van de grondprijzen zou daarmee buiten de gemaakte afspraken gaan.
Bedrijventerrein Westeres Roden
Op de Westeres is de grondprijs enkele jaren geleden residueel bepaald. Hierbij spelen, naast de aard van de bedrijfsactiviteit, ook de ligging van de kavel en de parkeereisen een rol. De gemeente Noordenveld streeft ernaar minimaal marktconforme prijzen te hanteren en beschouwt daarbij de prijzen op het bedrijventerrein Haarveld als ondergrens. In de grondexploitatie wordt daarom uitgegaan van een minimale prijs van € 75,- per m² (binnenterrein) en een maximale prijs van € 90,- per m² (zichtlocatie), exclusief BTW.
Grondprijs nieuw te ontwikkelen bedrijventerreinen
De bedrijventerreinenvisie 2040 is recent vastgesteld. Volgens deze visie is het noodzakelijk om tot het jaar 2040 circa 6 hectare additionele grond beschikbaar te stellen om aan de groeiende vraag van bedrijven te kunnen voldoen. Deze behoefte kan worden opgevangen door middel van inbreiding op de bestaande terreinen. Om een actief grondbeleid te kunnen voeren, zullen gronden moeten worden aangekocht en vervolgens tegen minimaal aankoopprijs en onkostenvergoeding worden doorverkocht. De vastgestelde prijs ligt in lijn met de marktconforme tarieven die gehanteerd worden door aangrenzende gemeenten.
2. Inritten t.b.v. ontsluiting bedrijfskavels
Op bedrijventerreinen komt het voor dat er inritten moeten worden aangelegd ten behoeve van kavels die niet direct aan de openbare weg liggen. Deze inritten hebben de bestemming ‘bedrijfsdoeleinden’, maar er kan niet op worden gebouwd vanwege de inrichting als inrit. Voor deze specifieke gevallen wordt een grondprijs van € 25,- per m² (excl. BTW) gehanteerd.
3. Snippergroen
- •
De verkoopprijs van snippergroen bedraagt € 40,- per m² k.k. (kosten koper).
- •
Als er snippergroen wordt aangekocht waarop conform het huidige bestemmingsplan uitbreiding van het hoofdgebouw mogelijk is (meestal de woning), dan wordt de grondprijs voor vrije sector woningbouw in deze grondprijsbrief gehanteerd.
- •
Als de mogelijke aankoop afhangt van de wijziging van de bestemmingsplan waardoor uitbreiding van het hoofdgebouw eveneens mogelijk wordt, dan geldt eveneens de grondprijs voor vrije sector woningbouw in deze grondprijsbrief.
- •
De huurprijs van snippergroen (bij percelen groter dan 50 m²) geldt € 2,50 per m² per jaar.
- •
Bij de huur van snippergroen voor percelen kleiner dan 50 m² wordt er een bruikleenovereenkomst afgesloten, hiervoor wordt eenmalig administratieve kosten in rekening gebracht van € 75,-.
4. Nutsvoorzieningen
Voor nutsvoorzieningen geldt een prijs van € 130,- per m² en zal jaarlijks geïndexeerd worden op basis van de consumentenprijsindex (CPI). Omdat bij de verkoop van grond ten behoeve van transformatorhuisjes meestal sprake is van verkoop van een klein perceel hanteert de gemeente Noordenveld een minimumprijs per transactie van € 1.100,- ex BTW ter dekking van de vaste kosten.
5. Hardheidsclausule
Art 4:84 van de Algemene wet bestuursrecht is van toepassing.
Bijlage 1: Tarievenkaart Haarveld
Ondertekening
Roden, september 2025
Ziet u een fout in deze regeling?
Bent u van mening dat de inhoud niet juist is? Neem dan contact op met de organisatie die de regelgeving heeft gepubliceerd. Deze organisatie is namelijk zelf verantwoordelijk voor de inhoud van de regelgeving. De naam van de organisatie ziet u bovenaan de regelgeving. De contactgegevens van de organisatie kunt u hier opzoeken: organisaties.overheid.nl.
Werkt de website of een link niet goed? Stuur dan een e-mail naar regelgeving@overheid.nl