Permanente link
Naar de actuele versie van de regeling
https://lokaleregelgeving.overheid.nl/CVDR755532
Naar de door u bekeken versie
https://lokaleregelgeving.overheid.nl/CVDR755532/1
Geldend van 14-10-2025 t/m heden
1 Inleiding
Het gebied Rijnhuizen ondergaat een grote transitie, waarbij de focus verlegd wordt van een kantoorgebied naar een woon-werkgebied met circa 2.500 woningen. Rijnhuizen noord (Regelingsgebied Programma Rijnhuizen Noord) is onderdeel van deze opgave en zal de voormalige functie (hockeyvelden) verruilen voor wonen en een maatschappelijk cluster. Het parkeerterrein Newtonbaan is onderdeel van het plangebied. Hier zal een herinrichting plaatsvinden met behoud van het aantal parkeerplaatsen.
De gemeente heeft haar visie voor de transitie vastgesteld in de Gebiedsvisie Mooi Rijnhuizen. In tegenstelling tot de afgelopen ontwikkelingen in Rijnhuizen waarbij de gemeente geen eigenaar is van de percelen, is plangebied Rijnhuizen noord wel gemeente-eigendom.
De ruimtelijke ambities uit de Gebiedsvisie (2014, herijking 2019 en 2024), het beleidskader
(2019), de gebiedsvisiekaart (2023) en de landschapsvisie park Rijnhuizen (2021) zijn
vertaald in het gebiedsgericht omgevingsprogramma dat voor u ligt. Het stedenbouwkundig
plan is tot stand gekomen samen met betrokkenen uit de buurt. Zowel buurtbewoners,
het schoolbestuur en verenigingen uit de wijk leverden tijdens verschillende informatieavonden
hun input.
Met dit document kan gestart worden met de ontwikkeling van Rijnhuizen noord en kan
een aanbesteding uitgezet worden.
Rijnhuizen noord wordt in fases ontwikkeld. Eerst zal het maatschappelijk cluster worden gerealiseerd, daarna volgen de woningen, als laatst volgt het parkeerterrein. Voor zowel het maatschappelijk cluster, de woningen en de openbare ruimte worden tenders uitgevraagd. Er geldt voor het maatschappelijk cluster en de woningen dat er zoveel als mogelijk netbewust gebouwd moet worden.

2 Inventarisatie

Historie
Het plangebied ligt tussen het Merwedekanaal en fort Jutphaas. Het Merwedekanaal (eerder:
Vaartsche Rijn) werd sinds het afdammen van de Kromme Rijn in 1122 gebruikt om goederen
te vervoeren van Utrecht naar de Lek. Ter hoogte met de kruising van ontginningslint
de Nedereindse weg ontstond het dorp Jutphaas. In de 14e eeuw werd aan de Vaartse
Rijn Kasteel Rijnhuizen gebouwd.
In 1971 werd de gemeente Jutphaas gefuseerd met de gemeente Vreeswijk tot de gemeente Nieuwegein. In de jaren erna werd Nieuwegein een groeikern, waardoor het landelijke gebied rond Jutphaas werd bebouwd. Veel van de langgerekte kavels zijn daarom verdwenen. De weides in het plangebied werden in de jaren ’70 omgevormd tot sportvelden. Op de plek van deze hockeyvelden is door de gemeente besloten woningen te bouwen en een maatschappelijk cluster te huisvesten.

Langs de Nedereindseweg lagen meerdere buitenplaatsen en kastelen, waarvan het grootse deel verdwenen is. Kasteel Rijnhuizen is hiervan één van de overgebleven groene parels die bijdraagt aan de kwaliteit van het gebied. De kwaliteit van dit kasteel en de volwassen bomen dragen bij aan het gekozen thema van de buurt; nieuwe buitenplaatsen Rijnhuizen.


Grenzend aan militair erfgoed
In 1820 werd fort Jutphaas gebouwd en daarmee werd Jutphaas onderdeel van de Nieuwe
Hollandse Waterlinie. De Nedereindseweg werd de middenas met twee watergangen aan
weerszijden. Via een sluisje in de innundatiedijk kon de polder onder water gezet
worden. De innundatiedijk is, net als de polder, verdwenen. De sluis is behouden (zonder
schotbalken).

Onderstaande kaart laat de verschillende onderdelen zien van de historische gelaagdheid van het gebied. Zoals te zien op de foto’s hiernaast hebben onderdelen van het gebied vele gedaantes gehad. Het plangebied is lange tijd een open weidelandschap geweest met een enkele poldermolen (verdwenen). Na de komst van de Vaartse Rijn groeide voormalig dorp Jutphaas. Dit markeerde de doorsnijding van de Nedereindseweg. Het plangebied en omgeving werd uiteindelijk “opgeslokt” door Nieuwegein en allerlei nieuwe ontwikkelingen. Hierbij zijn onderdelen als de inundatiedijk, boomgaard en sloot langs Rond het fort uiteindelijk verdwenen.



Geomorfologie en bodem
Zoals te zien op de hoogtekaart ligt de locatie in een laaggelegen gebied. In dit
gebied hebben verschillende rivieren zoals de Hollandse IJssel, Lek en Kromme Rijn
ervoor gezorgd dat er sedimenten afgezet werden. Zo zijn de oeverwallen naast de rivieren
van nature de hoogste plekken en liggen de lagere plekken (komgronden), waar de zwaardere
kleisedimenten werden afgezet, verder van de rivier af.
Door menselijk ingrijpen in de vorm van dijken, (snel-)wegen en ophogingen voor stedelijk gebied werden meer hoogteverschillen aangebracht. Gebieden werden ontwaterd en ontgonnen met een kenmerkende langgerekte verkaveling vanaf de lintwegen.



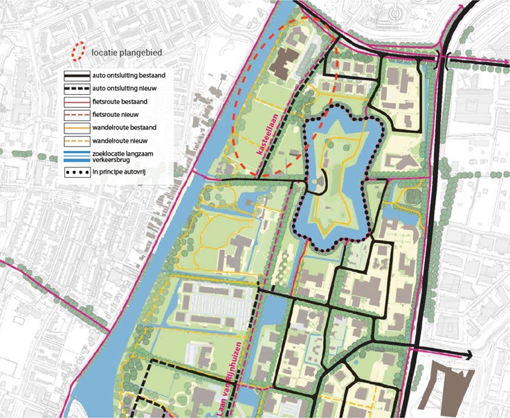
Verkeerstructuur omgeving
In de gebiedsvisie ‘Mooi Rijnhuizen’ is de toegangsweg voor de auto aangeduid als
de “Kasteellaan”, omdat deze uitkomt bij kasteel Rijnhuizen.
Het parkeerterrein aan de Newtonbaan wordt heringericht, oa om de Kasteellaan goed in te passen. Uitgangspunt hierbij is dat het aantal parkeerplaatsen van 232 gehandhaaft blijft. Tevens moet expeditie (laden en lossen) voor de locatie mogelijk blijven in de zuidwest hoek van het parkeerterrein.
Langs het Merwedekanaal loopt in de huidige situatie een gemengd voet-fietspad. In de nieuwe situatie moet een heringericht wandelpad komen, waarbij fietsen, in tegenstelling tot de huidige situatie, niet is toegestaan.

Conclusies inventarisatie
In verschillend beleidsstukken zijn keuzes vastgelegd voor de grotere ruimtelijk structuren
van het plangebied. Verschillende thema’s, zoals cultuurhistorie, ecologie/groen en
verkeer komen samen in het relatief compact plangebied waardoor het maken van keuzes
belangrijk is. Het terugbrengen van cultuurhistorische lagen, zoals de voormalige
inundatiedijk of polderpatronen, gaan bijvoorbeeld ten koste van huidige waardevolle
beplantingstructuren. Deze ‘nieuwste cultuurlaag’ is het behouden waard.
Na de inventarisatie van het plangebied en gesprekken met de gemeente, met omwonenden en ouders van kinderen van het maatschappelijk cluster zijn er nog meer kansen en keuzes te identificeren. Deze zijn samen met de inventarisatie in de onderstaande conclusiekaart vertaald.

3 Ruimtelijke uitgangspunten
1: zonering parallel aan kanaal erfgoed
Parallel aan het kanaal zijn verschillende functionele zones te onderscheiden, elk
met een eigen kwaliteit. Het Merwedekanaal (oorspronkelijk Vaartsche rijn) is een
historisch element en beeldbepalend voor de wijk Jutphaas. Direct naast het kanaal
wordt een openbaar oeverpark aangelegd met daarin een doorgaande wandelroute voor
de gehele wijk Rijnhuizen. Een voorzieningenstrook met wonen, onderwijs en kantoren
ligt tussen het oeverpark en een nieuwe ontsluitingsweg; de Kasteellaan. Deze weg
ligt los in een landschap dat gevormd wordt door de structuur van het reeds bestaande
park en fort Jutphaas. De Kasteellaan is in het zuiden uitgelijnd op Kasteel Rijnhuizen
voor een interessante zichtlijn. Om de waardevolle bestaande bomen te kunnen behouden
en om de laan geen ruimtelijke barrière te laten zijn tussen oost en west is ervoor
gekozen om de weg niet als formele rechte laan aan te leggen maar in te passen in
het landschap. Hiermee is de weg meer gestoeld op de huidige land en parkachtige eigenschappen
dan de voormalige polderstructuren met lange -rechte- lijnen en sloten.


2: dwarsverbindingen
Haaks op de parallel gelegen zones (kanaal, oeverpark, functies, park en Kasteellaan)
zijn dwarsverbindingen gelegd om een fysieke en visuele relatie tussen het fort, de
laan en het kanaal te leggen. De parallele structuur wordt op deze manier opengebroken
waardoor een afwisseling ontstaat van groene ruimtes tussen bouwvelden. In het verlengde
van de bouwvelden wordt aan de zijde van de Kasteellaan het parkeren opgenomen. Hierdoor
zijn de groene tussenruimtes autovrij en lopen ze ongestoord door van het fort tot
het kanaal. Verschillende paden zorgen voor toegankelijkheid en een fijnmazig netwerk.
Vanaf de weg Rond het Fort is een zichtlijn op de Nicolaaskerk behouden.


3: ruimtes maken tussen velden
De bouwvelden liggen los in het landschap. Om van de ruimtes tussen de bouwvelden
meer omsloten plekken te maken worden de rooilijnen van de bouwvelden geknikt. Deze
geknikte vormen zorgen voor ruimtelijke dynamiek in de dwarsverbinding en voor meer
omsloten plekken voor de aanwonenden. De voorzijde van de bebouwing bevindt zich naar
deze omsloten plekken waarbij een sterke relatie tussen het wonen/maatschappelijk
cluster en de groene ruimtes een belangrijk uitgangspunt is.


4: één groen tapijt
Er ligt een doorgaand groen ‘tapijt’ tussen het fort en het Merwedekanaal met één
landschappelijke sfeer. De bouwblokken staan als ‘gasten’ in dit park. Bestaande waardevolle
bomen worden ingepast in het plan. Dit is goed mogelijk omdat bestaande bomen rondom
de bouwvelden (voormalige hockeyvelden) gesitueerd zijn. De variatie in maat en gebruik
bepaalt de variatie in inrichting van de plek en het groen. Tussen de woningen wordt
het vooral een verblijfsgebied waarbij er een sterke relatie met de woningen en het
gebruik door bewoners wordt gelegd. Het oeverpark aan het Merwedekanaal is onderdeel
van de wijk Rijnhuizen als geheel. Meer hierover op pagina 50. En de parkzone richting
het fort krijgt een meer natuurlijk karakter.


5: bouwblokken als ‘contra-mal’
De bebouwing met bijhorende kavels staan als ‘gasten’ op het groene tapijt. De bouwblokken
vormen daarmee de contra-mal van het landschap. De overgang tussen de bebouwing en
het groene tapijt is een essentiële ontwerpopgave, aan alle zijden van de bouwvelden.
De bebouwing reageert op de directe omgeving: er komen gebouwaccenten naar het kanaal,
bijzondere koppen naar de Kasteellaan en een sterke relatie tussen de woningen en
het verblijfsgebied. Hiermee wordt een fantastische woon- en leerkwaliteit behaald
in het gehele gebied, die recht doet aan de al zeer groene omgeving en het openbare
karakter. Extra zorg voor het ontwerp van erfafscheidingen is hierbij essentieel.

4 Uitwerking plan

Stedenbouwkundig plan en schetsontwerp openbare ruimte
In Rijnhuizen noord komen 50 nieuwe woningen en een maatschappelijk cluster in een
landschappelijke setting met een autoluw karakter. De locatie wordt met de bestaande
omgeving verbonden door bestaande groenstructuren te behouden en wandelpaden aan te
leggen. De ruimtelijke uitgangspunten uit het vorig hoofdstuk zijn uitgewerkt tot
een stedenbouwkundig plan
Het plangebied bestaat uit een doorlopend groen tapijt, waarop de verschillende (woon)velden zijn geplaatst. Er worden geen traditionele voortuinen uitgegeven zodat de woonbebouwing direct in het doorlopende groene landschap staat. Door de oriëntatie en het knikken van de bouwblokken ont
De koppen van de bouwblokken krijgen enerzijds een gezicht aan de Kasteellaan en anderzijds een markant accent naar het oeverpark. En door de privétuinen naar binnen te richten ontstaan er alzijdige bouwblokken. Deze alzijdig is mede belangrijk om ‘anonieme plekken’ te voorkomen en de sociale veiligheid te bevorderen.
Het bouwblok met het maatschappelijke cluster voegt zicht in ditzelfde concept en gaat een verbinding aan met het doorlopende landschap rondom het gebouw. Ook het maatschappelijke cluster krijgt een gezicht naar zowel het oeverpark als de Kasteellaan.
Met vloeiend paden, die afgestemd zijn op de natuurlijke en landschappelijke inrichting, ontstaat er één parksfeer in de hele buurt. Deze paden verbinden de buurt met de omgeving waardoor het mogelijk is vanuit de buurt een rondje langs het kanaal en het fort te lopen.

Rijwoningen aan de groene ruimtes
De kwaliteit van het wonen aan de groene ruimte wordt mede bepaald door een gebouwde
overgang tussen de (privé) woning en het openbaar gebied. Deze zone biedt een verblijfsgebied
waar bewoners kunnen zitten, zicht kunnen houden op de spelende kinderen in het binnengebied
en waar buurtbewoners elkaar treffen. Het wordt een buitenruimte zoals een veranda,
als onderdeel van de woning.
In het openbaar gebied wordt een strook van minimaal 1 meter ingeplant met heesters en vaste planten die het doorgaande pad scheidt van de woning. Per twee woningen loopt er één smal toegangspad richting de voordeuren.
De besloten ruimte tussen de woningen vormt een openbaar groen gebied met heuvels en wadi’s waar water vanaf de daken kan infiltreren. In deze openbare ruimtes kunnen bewoners verblijven, omwonenden samenkomen kinderen spelen in een natuurlijke omgeving. De ruimte zal door de inrichting semiopenbaar aanvoelen voor bezoekers. Voor eventuele
nood- en hulpdiensten is het nodig om minimaal één pad te verbreden tot 3,5 meter. Door deze uit te voeren in grasbeton kan het groene beeld behouden blijven. Onder de grasbeton is ruimte voor kabels en leidingen. Het pad is niet bedoeld voor verhuisverkeer of het afleveren van boodschappen. Hierdoor blijft de groene doorlopende ruimte autovrij.



Hoekwoningen aan het oeverpark
De hoekwoningen aan het oeverpark zijn, naast een oriëntatie op de groene ruimtes,
ook gericht op het oeverpark en het kanaal. Deze woningen krijgen hier een mooi uitzicht
en dragen bij aan de sociale controle in het park. De zijgevel naar het kanaal wordt
daarom ontworpen als een tweede voorgevel met de entree, grote raampartijen en bij
voorkeur een terras/ balkon. Door middel van secundaire paden naast het doorgaande
hoofdpad van het oeverpark is de voordeur bereikbaar. Door heestergroepen en heuvels
wordt de overgang tussen het oeverpark en de woningen vormgegeven. In het beeldkwaliteitplan
worden aanvullende randvoorwaarden gesteld aan de woningen aan het oeverpark.



Kasteellaan: slingerend door het landschap
De Kasteellaan wordt zorgvuldig opgenomen in en daarmee onderdeel van het landschap.
Hierdoor ontstaat een parkachtige en informele uitstraling. Het wegprofiel staat gemengd
verkeer toe en door de lichte bochten in de weg zal de snelheid gematigd worden. Langs
de Kasteellaan staan boomgroepen van verschillende soorten en plantafstanden. Elk
parkeerhofje aan de Kasteellaan, zowel bij de wonin als het maatschappelijk cluster,
wordt omzoomd door heesters en bomen en uitgevoerd in een open verharding zodat regenwater
kan infiltreren.
Onderstaande doorsnede geeft het smalste profiel weer tussen de woningen en de tennisvereniging. In het profiel is te zien dat er rond de tennisvereniging een geluidsscherm van circa 4 meter hoog komt. Dit scherm wordt begroeid met klimplanten. Langs het scherm ligt een groenstrook van minimaal 4 meter breed voor heesters en bomen.



Verkeerstructuur
De verkeersopzet is gebaseerd op voorrang voor langzaam verkeer. Autoverkeer komt
het gebied binnen via de Structuurbaan aan de noordzijde. Om sluipverkeer naar de
omgeving te voorkomen is de Kasteellaan doodlopend voor regulier autoverkeer. Het
parkeerterrein bij het maatschappelijk cluster is zo ontworpen dat er een rondje kan
worden gemaakt. Samen met een fijnmazig wandelnetwerk zorgt dit voor een autoluwe
buurt. Er wordt gefietst op de rijbaan en fietsers kunnen ook doorfietsen naar Rond
het Fort. De fietsverbinding tussen de Kasteellaan en Rond het Fort mag ook gebruikt
worden voor bestemmingsverkeer van enkele woningen. Kinderen (en ouders) worden gestimuleerd
zoveel mogelijk op de fiets naar school te komen en niet met de auto te worden gebracht.
In eerste instantie wordt de parkeerplaats voor het maatschappelijk cluster aangelegd
in een minimale variant met circa 35 plaatsen, waarbij de bomen zo worden aangeplant
dat uitbreiding tot 70 plekken mogelijk is. Fietsers worden zoveel mogelijk via de
zuidelijke route (Rond het Fort) naar het maatschappelijk cluster geleid.


Parkeren
De parkeerplaatsen ten behoeve van de woningen zijn op de kop van de woonblokken gesitueerd
direct bereikbaar vanaf Kasteellaan. Hierdoor lopen de groene ruimtes van het kanaal
naar het fort maximaal door. Parkeren voor het maatschappelijk cluster vindt plaats
op een groen ingericht parkeerterrein aan het einde van de Kasteellaan. De parkeerhoven
worden omzoomd met groen en uitgevoerd in open verharding wat bijdraagt aan de infiltratie
van regenwater en verkoeling op warme zomerdagen. In de parkeertelling is rekening
gehouden met dubbelgebruik (zie het overzicht op de volgende pagina). Zo zijn o.a.
de parkeerplaatsen bij het maatschappelijk cluster in de avond te gebruiken door bezoekers
van de sportvereniging.


Herinrichting parkeerplein Newtonbaan
De parkeerplaats Newtonbaan blijft op dezelfde locatie als in de huidige situatie,
maar de inrichting zal veranderen. Uitgangspunt voor het ontwerp is behoud van het
aantal parkeervakken (232 vakken), geen parkeervakken direct aan de Kasteellaan en
zo veel mogelijk beplanting tussen de parkeerrijen met de kans om hier regenwater
tijdelijk vast te houden. Bestaande gezonde bomen worden ingepast in het ontwerp en
waar mogelijk kunnen enkele bomen verplaatst n toegevoegd worden.

Herinrichting Rond het Fort
In de inventarisatie is benoemd dat verschillende cultuurhistorische elementen niet
meer zichtbaar zijn. Door een nieuwe inrichting van Rond het Fort kan dit deels terugkomen,
door middel van aanduidingen in het wegprofiel of andere verwijzende elementen in
het landschap. De sloot langs de ontginningsas (nu Rond het Fort) kan deels worden
teruggebracht aan de noordzijde. Door de bestaande volwassen beplanting kan het water
echter niet in z’n geheel worden teruggebracht. Het bestaande slootje nabij de brugwachterswoning
kan worden afgerond met een gemetseld brughoofd. De nieuwe situatieschets is slechts
ter indicatie. Voor nu is een pad van klinkers met randen van halfverharding voorgesteld,
met genoeg onderscheid tussen verkeerstromen. Met oog op het monumentale is het nu
symmetrisch opgezet.




Parkeerbalans


Water
Water van de daken van de nieuw te bouwen woningen en het maatschappelijk cluster
moet lokaal kunnen infiltreren. Door dit water af te voeren naar wadi’s in de groene
binnengebieden is het water zichtbaar en beleefbaar. Met waterkettingen, regentonnen
en oppervlakkige waterafvoer wordt deze beleving nog meer verbeterd. Door minimale
verhar toe te passen en de benodigde verharding waterdoorlatend te maken wordt het
plan klimaatrobuust.
Waterberging moet voldoen aan de prestatie-eisen uit het kwaliteitskader. De wadi’s voorzien in ruimte voor deze waterberging. Mocht dat naar aanleiding van de watertoets niet voldoende blijken, dan kunnen andere oplossing gezocht worden. Door het parkeerplein Newtonbaan te herzien en uit te voeren in waterdoorlatende verharding kan er flink ontsteend worden. Platte daken worden dubbel ingezet voor het plaatsen van zonnepanelen en groendaken om water op te vangen.

Oeverpark langs het Merwedekanaal
Vanuit de gemeente Nieuwegein zijn er verschillende initiatieven om het Merwedekanaal
te gebruiken en te verbeteren. Zo is de planning om de Utrechtsestraatweg om te vormen
tot fietsstraat en voor heel Rijnhuizen een oeverpark te realiseren aan de oostzijde
van het Merwedekanaal. Het Merwedekanaal is één van de oudste lijnen van de gemeente
Nieuwegein en is goed om te vormen tot een recreatieve ruggengraat. Door het kanaal
in te richten voor langzaam verkeer kan het een verbindend element vormen van grote
kwaliteit. Zo is het straks gemakkelijk om met de fiets even koffie te drinken in
centrum Utrecht of te wielrennen langs de Lek.
Naast een route kan de oostzijde een oeverpark worden. Een plek voor de wijk Rijnhuizen met ruimte om te verpozen in het groen aan het water. Bij deze plekken kunnen mensen dichterbij het water komen. Dit zijn koele plekken in de zomer en door treden aan te brengen kunnen de plekken ook gebruikt worden door eenden en amfibieën om in en uit het water te komen. Door in het plangebied te woningbouw een gezicht aan het kanaal te geven ontstaat er een betekenisvol park met ogen op het groen.


Beplanting
Kansen
Rondom de sportvelden staan momenteel al veel volgroeide bomen. Deze geven de buurt
karakter, schaduw en vormen een thuis voor veel dieren. Het plan gaat uit van het
behoudt van alle waardevolle bomen. Dit zorgt er o.a. voor dat de Kasteellaan een
bocht maakt en een meer landschappelijke inrichting heeft. Verder worden de bomen
langs het oeverpark behouden en waar nodig de ondergroei verwijdert om doorzichten
naar de buurt te maken.
Op de parkeerplaats Newtonbaan staan enkele bomen. Het inrichtingsplan houdt hier zoveel mogelijk rekening mee of zorgt door verplaatsing voor een inpassing.
Voor nieuwe beplanting wordt het kern-mantel-zoom principe hersteld. In de bestaande situatie is er weinig overgang tussen de volgroeide bomen en de kortge sportvelden. Het kern-mantel-zoom principe gaat uit van volgroeide bomen met onderbeplanting in de kern, heesters, struiken en onderbegroeiing in de mantel tot een kruidachtige laag en bloemrijk gras in de zoom. Door deze gradiënt aan te brengen in de beplanting kan het meeste habitat gecreërd worden voor verschillende dieren. Hierdoor krijgt de plek een vergrootte rijkdom aan flora en fauna.


Potentieel natuurlijke vegetatie
Voor de geschikte soorten beplanting wordt naar de potentieel natuurlijke vegetatie
(PNV) gekeken. Dit zijn planten die van nature op de plek zouden groeien als de bodem
zou worden afgegraven tot voorbij de verrijkte toplaag.
Vanuit de bodemkaarten is een kalkloze poldervaaggrond vast te stellen met een grondwaterstand van VI, wat betekent dat het water op een diepte tussen de 40 en 120cm zit. Met deze omstandigheden bevindt de locatie zich op de overgang van een vochtig elzen-essenbos naar een essen-Iepenbos.


Beplantingsindicatie
De beplanting in de verschillende gradiënten vormt samen een groen doorlopend tapijt.
Door gradiënten in hoogte toe te passen komen er op de lagere nattere delen andere
soorten tot wasdom dan op de hogere en drogere delen. Het aanplanten van nieuwe bomen
en heesters zorgt voor een verankering van de buurt en voldoende schaduw in hete zomers.
Heestergroepen zorgen voor een afwisseling tussen open en gesloten, waardoor een parkachtig beeld ontstaat. Daarnaast zorgen klimplanten tegen gevels en pergola’s ervoor dat de woningen gekoeld worden in de zomer en er extra voedsel- en schuilplekken zijn voor vogels en insecten. Groene erfafscheidingen in de vorm van hagen zorgen ervoor dat privétuinen afgeschermd worden en niet afbreuk doen aan het groene uiterlijk van de buurt. Kort gazon wordt zoveel mogelijk voorkomen en het bloemrijk gras wordt maximaal 2 keer per jaar gemaaid.
Het schoolplein wordt zo natuurlijk mogelijk ingericht met een minimale verharding zodat kinderen hier veilig kunnen spelen en leren over de natuur.


Natuurinclusief
Onze gasten
We zien mens en dier als onderdeel van hetzelfde systeem. De omgeving herbergt een
rijke verscheidenheid aan fauna. Op basis van waarnemingen en eerder ecologisch onderzoek
wordt bepaald wat onze gasten (doelsoorten) zijn. Een goed ingerichte habitat voor
deze doelsoorten zorgt ervoor dat ook andere diersoorten profiteren van de omgeving.
Belangrijke doelsoorten zijn onder andere de staartmees, ijsvogel, grote bonte specht, gierzwaluw en grote barmsijs bij de vogels. Bijen, hommels en vlinders spelen een essentiële rol bij de insecten, terwijl vleermuizen als de laatvlieger, rosse vleermuis en gewone dwergvleermuis doelsoorten zijn bij de vleermuizen. Op de grond zijn de mol, egel en het konijn te vinden, en bij de amfibieën en reptielen wordt rekening gehouden met de bruine kikker en gewone pad.
Naast de buitenruimte krijgen deze dieren ook een plek in, op en aan de gebouwen, zodat natuur en architectuur elkaar versterken. Bovenstaande gasten krijgen, naast de buitenruimte, ook een plekje in, op en aan de gebouwen.
Natuurinclusief ontwikkelen is dat je bij het ontwerp, de aanleg en het beheer van de bebouwde en onbebouwde ruimte aandacht hebt voor het creëren van gunstige voorwaarden voor flora en fauna. Er is derhalve niet alleen naar de bebouwing gekeken, maar ook naar de (privé)buitenruimtes en de overgangen daarvan naar het landschap, de gezamenlijke tuin en de straat. Het ontwerp brengt gezondheid voor mens en dier de buurt in.
De focus ligt op dracht- en waardplanten. Een drachtplant levert via nectar en pollen voedsel aan insecten, voornamelijk aan vlinders en bijen. Waardplanten bieden voedsel en nestgelegenheid aan insecten en rupsen. De flora is goed voor de fauna en trekt deze aan. Dankzij de aanwezigheid van stuifmeel en insecten, hebben ook vogels en vleermuizen hier wat te zoeken. Deze bieden we extra mogelijkheden door in, op en aan gebouwen en de buitenruimte woon,-broed -en verblijfsplekken te creëren. Flora en fauna zijn zo complementair aan elkaar.


Maatregelen natuurinclusief
Door de buitenruimte zo groen mogelijk in te richten ontstaat er naast leefruimte
voor mensen ook habitat voor dieren. Door alle lagen van de beplanting te gebruiken
en klimplanten aan gebouwen ontstaan er verschillende micromilieus en micro reliëf
die gebruikt kunnen worden door verschillende diersoorten.
Inheemse bomen, heesters en bloemrijk grasland bieden de vijf V’s (voortplanting, veiligheid, voedsel, verbinding en variatie). Verder kunnen trappetjes naar het kanaal een uitkomst bieden aan watervogels en amfibieën die niet op de harde kade kunnen komen. Groene platte daken bieden nectar voor insecten.



Spelen en sport
In de buurt wordt een actief leven en gezondheid aangemoedigd, door speel- en sportvoorzieningen
aan te bieden in de buitenruimte. Door speelaanleidingen aan te bieden in de vorm
van natuurlijk spelen met stapstenen in een wadi, klimbomen en balansbalken krijgt
het groen in de binnen gebieden extra betekenis. Daarnaast kan het natuurlijk spelen
vertaald worden in een schoolplein door te letten op de inrichting en de groene kwaliteit
van het schoolplein. Voor de speelplek voor de allerkleinsten is het belangrijk dat
er genoeg zitgelegenheid is voor de ouders, er voldoende schaduw is en dat de kinderen
zich motorisch kunnen ontwikkelen.
Speelplekken met zand en water stimuleren creatieve processen bij kinderen. Verder kan de scheepvaart (van de Vaartse Rijn) een inspiratiebron zijn voor de thematische laag van de speelobjecten. Bij de keuze van een speelobject moet rekening gehouden worden dat de objecten zo inclusief mogelijk zijn, zodat ze ook toegankelijk en interactief zijn voor kinderen met een beperking. Speelobjecten worden uitgevoerd in natuurlijke materialen in het object zelf en de ondergrond.

Speelplek 0-6
Voor de sport- en speelplek worden de volgende hier naast afgebeelde objecten voorgesteld.
De locatie is gelegen dichtbij het schoolplein langs de doorgaande route richting
het fort en goed zichtbaar vanuit de wijk. Door heesters worden bepaalde elementen
afgeschermd zodat er wat te ontdekken valt. Op de speeltafel kunnen kinderen en ouders
leren over de geschiedenis van de plek. Het speelobject de Havenwinkel is een goede
toevoeging omdat het object past bij de natuurlijke inrichting, waar kinderen kunnen
spelen met zand en water in de schaduw van de bomen. Rondom staan verschillende banken
voor ouders die toezicht willen houden. Door de ondergrond in zand uit te voeren blijft
het natuurlijke gevoel van de wijk behouden. Onder de sportelementen zorgt een kurkvloer
ervoor dat het geheel netjes passend opgelost is. Door de speel en sport elementen
te clusteren stimuleren we ontmoeting tussen bewoners van de wijk, scholieren van
het ROC en wandelaars in de omgeving.
Voor de aanleg is het niet nodig om bomen met een matige conditie te verwijderen.


Gebruik openbare ruimte door omliggende functies
De omliggende functies op de planlocatie kunnen ook bij het plan betrokken worden.
Zo zijn er door het naastgelegen ROC veel jongeren op de planlocatie. Sporten is voor
veel jongeren een bezigheid om samen te komen en te ontspannen. Het aanbieden van
sportmogelijkheden in de buitenruimte haalt de studenten naar buiten en brengt ze
in contact met de buurt. Daarnaast is er ook de tennisvereniging. Door bij de entree
een warming-up/cooling down parcours aan te bieden kunnen de buurt en de sportvereniging
beter integreren. Hierbij kan uiteraard ook het toekomstig maatschappelijk cluster
worden betrokken.


Schoolplein
Voor de nieuw te bouwen school is sport ook een belangrijk deel van de educatie. Dit
kan vorm krijgen door een gymzaal, buiteneducatie en buitensport te faciliteren.

Inrichting openbare ruimte - meubilair
Het meubilair sluit zoveel mogelijk aan bij de visie op het park Rijnhuizen. Het uitgangspunt
hierbij is om natuurlijke en robuuste elementen te maken die vrij in het landschap
liggen.
Voor de verlichting van het park wordt gekeken naar dimbare en vleermuisvriendelijke verlichting. De vlonder in het oeverpark wijkt hierbij af van de standaardelementen van de gemeente. Daarom is hiervoor en voor de overige elementen in het oeverpark afstemming met de gemeente nodig. Afstem over de kleur van metalen elementen zoals de prullenbakken, fietsnietjes en armaturen is gewenst

Afval-, nood- & hulpdiensten
Nood en hulpdiensten dienen zich tot 40 meter van de ingang van de woning op te kunnen
stellen. Hierdoor is het nodig om per bouwblok minstens één van de voetpaden te verbreden
tot 3,5 meter met grasbeton. Bevoorrading van het ROC kan over de nieuw in te richten
parkeerplaats met behoud van de huidige bevoorradingslocatie.
Afval wordt hier volgens gemeentelijk beleid ingezameld met minicontainers. Deze kunnen op de dag van leging opgesteld worden op de parkeerplaats. De afvaldienst mag doorrijden tot over Rond het fort. De regulering hiervan moet verder afgestemd worden met de afvaldienst en de gemeente Nieuwegein.


Concept fasering

Bijlage I Overzicht Informatieobjecten
- Regelingsgebied Programma Rijnhuizen Noord
-
/join/id/regdata/gm0356/2026/59406cfd87404465b0aa718d395fbd31/nld@2026‑01‑15;09200945
Ziet u een fout in deze regeling?
Bent u van mening dat de inhoud niet juist is? Neem dan contact op met de organisatie die de regelgeving heeft gepubliceerd. Deze organisatie is namelijk zelf verantwoordelijk voor de inhoud van de regelgeving. De naam van de organisatie ziet u bovenaan de regelgeving. De contactgegevens van de organisatie kunt u hier opzoeken: organisaties.overheid.nl.
Werkt de website of een link niet goed? Stuur dan een e-mail naar regelgeving@overheid.nl