Ruimtelijk Kwaliteitskader Weert

Geldend van 30-12-2025 t/m heden

Intitulé

Ruimtelijk Kwaliteitskader Weert

De raad van de gemeente Weert,

gezien het voorstel van burgemeester en wethouders van 19 augustus 2025.

besluit:

Het Ruimtelijk Kwaliteitskader Weert vast te stellen.

Behoud en versterken van de ruimtelijke eigenheid

Voorwoord

Weert profileert zich als ‘stad in het groen’; een compacte stad met een menselijke maat, met veel bedrijvigheid, voorzieningen en een natuurrijk buitengebied. Tegelijkertijd is Weert volop in beweging en zijn er veel verschillende opgaven. Een groeiende woningbehoefte, de energietransitie, klimaatverandering, ruimte voor werken, gezondheid, mobiliteit, transitie van het landelijk gebied en biodiversiteit. Om deze (ruimtelijke) opgaven aan te pakken is regie en sturing van de gemeente vereist. Daarom pakt de gemeente Weert door in de Omgevingsvisie Weert, door te benoemen wat we willen bereiken, en heeft die opgaven concreet gemaakt in de Ruimtelijke Ontwikkelstrategie. Maar om de eigenheid van Weert in die ontwikkeldrang niet te verliezen nemen we ook onze verantwoordelijkheid door regie te nemen op de ruimtelijke kwaliteit: Behoud en versterken van de ruimtelijke eigenheid, juist ook door ontwikkelingen. Dit document is een leidraad voor ruimtelijke ontwikkelingen. We maken verwachtingen aan de voorkant helder, door de ruimtelijke kwaliteitseisen te beschrijven. Zo hopen we procedures transparanter en gemakkelijker te maken en dragen we bij aan de versnelling van de woningbouw.

Thomas van Gemert

Wethouder Ruimtelijke Ordening en Volkshuisvesting

1. Introductie

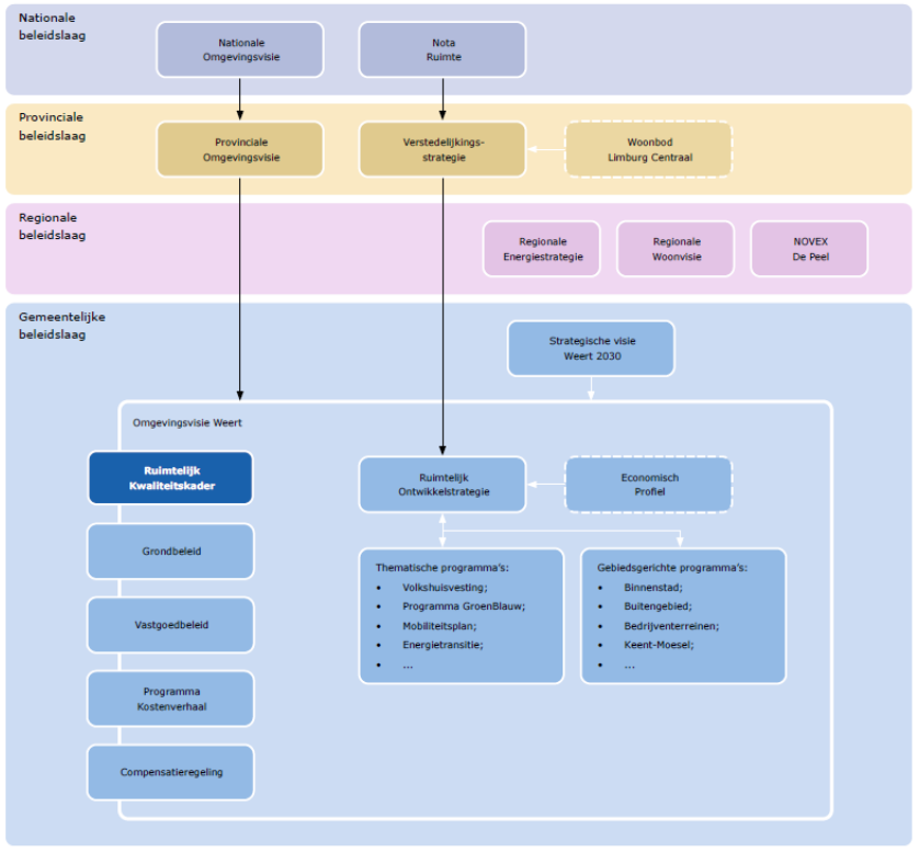
1.1 Positie Ruimtelijk Kwaliteitskader

Op maandag 17 juni 2024 heeft de gemeenteraad van Weert de Omgevingsvisie Weert vastgesteld. De Omgevingsvisie geeft richting aan de ruimtelijke uitdagingen waar Weert voor staat.

Eén van de belangrijkste en grootste opgaven van Weert is dat we gaan groeien. Dit doen we op basis van ‘Beheerste groei vanuit eigenheid’. Net als in de rest van Nederland is ook de ruimte in Weert beperkt en zullen er keuzes gemaakt moeten worden. Als regisseur van de inrichting van de stad, de dorpskernen en het buitengebied nemen wij onze rol serieus. We hebben de regie over een aantal grote opgaven. Daarom zijn in de Omgevingsvisie een drietal ruimtelijke principes opgenomen:

  • 1.

    Afwentelen wordt voorkomen;

  • 2.

    Meervoudig ruimtegebruik;

  • 3.

    De identiteit van een gebied staat centraal.

Deze drie ruimtelijke principes zijn sturend bij het ontwerpen en beoordelen van ruimtelijke plannen, maar moeten nog worden geplaatst in de Weerter context. Daarmee kunnen we dan doelgericht uitvoering geven aan de uitgesproken ambitie ‘Beheerste groei vanuit eigenheid’.

Het Ruimtelijk Kwaliteitskader vervangt de bestaande losse ruimtelijke kwaliteitsdocumenten voor de stedelijke omgeving en het buitengebied. Door deze samen in één beleidsdocument te integreren kunnen verbanden worden gelegd en is gebiedsgericht maatwerk mogelijk.

afbeelding binnen de regeling

Figuur 1 - Beleidsmatige positionering van het Ruimtelijk Kwaliteitskader

1.2 Stappenplan en leeswijzer

Het Ruimtelijk Kwaliteitskader is een informerend, verbeeldend, sturend en richtinggevend instrument voor zowel initiatiefnemers, adviseurs als de gemeente zelf. Het instrument heeft als doel ontwikkelingen te sturen binnen de kaders van de eigenheid van Weert. Het Ruimtelijk Kwaliteitskader dient daarnaast ook als toetsingsinstrument voor de Collegeadviescommissie Ruimtelijke Kwaliteit.

De locatie en/of plangebied van een ontwikkeling vormt de basis voor de zoektocht naar de ruimtelijke (beleids)kaders voor ruimtelijke kwaliteit van de bestaande omgeving. Het proces begint dan ook met het definiëren van de locatie en het afbakenen van het plangebied. Aan de hand van een viertal stappen kan vervolgens inzicht worden gekregen in de geldende ruimtelijke (beleids)kaders voor een initiatief en locatie alvorens het iniatief wordt uitgewerkt tot planvoorstel in stap 5. De vijf stappen zijn als volgt:

Stap 1. Verkrijg inzicht in de algemene gemeentedekkende kwaliteitsregels

De gemeente Weert is in de basis welstandsvrij. Wel zijn er een aantal gebieden en objecten waarvoor er wel een welstandstoets geldt. Deze gebieden en objecten kennen twee soorten kwaliteitsregimes: ‘soepel’ en ‘bijzonder’. Hoofdstuk 2 van het Ruimtelijk Kwaliteitskader kan worden gebruikt om inzicht te krijgen in hoeverre een initiatief welstandsvrij of niet welstandsvrij is en welke algemene gemeentedekkende kwaliteitsregels er gelden voor de verschillende kwaliteitsregimes.

Stap 2. Onderzoek naar aanwezige gebiedstypologieën

Figuur 4 toont de kaart met de voorkomende gebiedstypologieën in de gemeente Weert. Elke gebiedstypologie kent zijn eigen kenmerken, kwaliteiten, structuurdragers en Weerter Waarden. Samen vormen deze de ruimtelijke kaders voor de aanwezige en/of gewenste ruimtelijke kwaliteit van een typologie. De tweede stap geeft inzicht in deze kaders en de bijbehorende ontwikkelprincipes om te komen tot een bij de gebiedstypologie passende ruimtelijke ontwikkeling. Elk initiatief is gelegen in één of meerdere gebiedstypologieën. Hoofdstuk 3 van het Ruimtelijk Kwaliteitskader kan worden gebruikt voor het onderzoek naar de aanwezige gebiedstypologie(ën). Onderzoek hierbij ook de aaneengelegen gebiedstypologieën. Onderzoek daarnaast of er sprake is van een ‘verkleuring’ van het gebied, bijvoorbeeld van ‘veld’ naar ‘bebouwd gebied’. Is er sprake van een verkleuring, dan gelden nog altijd de ontwikkelprincipes van de huidige gebiedstypologie.

Stap 3. Onderzoek naar het betreffende deelgebied

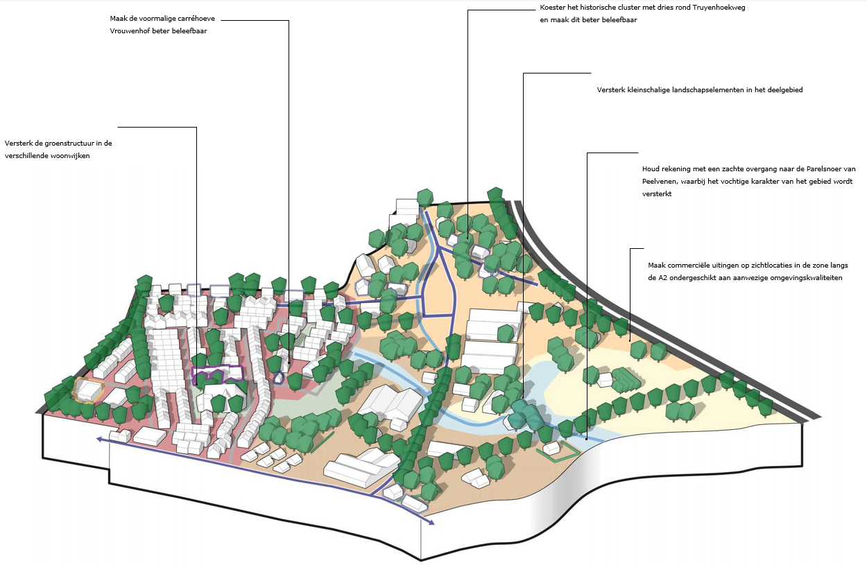
Figuur 17 toont de kaart met de twintig ruimtelijke deelgebieden in de gemeente Weert. De locatie bevindt zich altijd binnen één van de twintig verschillende deelgebieden. Deze deelgebieden herbergen specifieke kenmerken, hoofdopgaven, kwaliteiten en structuurdragers waar de ontwikkeling rekening mee dient te houden. De derde stap geeft inzicht in deze kaders en de bijbehorende ontwikkelprincipes om te komen tot een bij het deelgebied passende ruimtelijke ontwikkeling. Hoofdstuk 4 van het Ruimtelijk Kwaliteitskader kan worden gebruikt voor het onderzoek naar het betreffende deelgebied. Onderzoek hierbij ook de aaneengelegen deelgebieden.

Stap 4. Onderzoek naar het aanvullende beoordelingskader

Naast ruimtelijke kenmerken zijn er ook bestaande beleidskaders die van invloed kunnen zijn op de ontwikkeling. Van kaders ten aanzien van cultuurhistorie, archeologie, natuur en landschap tot mogelijkheden voor hoogbouw. Figuur 78 toont een overzicht van het geldende beoordelingskader. Deze kaders gelden als extra aanvullende richtlijnen of mogelijkheden die van invloed kunnen zijn. Hoofdstuk 5 van het Ruimtelijk Kwaliteitskader kan worden gebruikt voor het onderzoek naar het aanvullende beoordelingskader.

Stap 5. Uitwerking tot planvoorstel

Op basis van de kaders kan het initiatief worden uitgewerkt tot een planvoorstel. De mate van beoordeling en toetsing is afhankelijk van de gemeentelijke richtlijnen. Hoofdstuk 2.2 geeft inzicht in deze richtlijnen.

1.3 Aanvullend beoordelingskader

Naast het Ruimtelijk Kwaliteitskader is het mogelijk dat gebiedsgericht of sectoraal gezien aanvullende kwaliteitsregels wenselijk zijn. Dit kan bijvoorbeeld doordat een beeldkwaliteitsplan wordt vastgesteld om specifieke architectuur, landschap of stedenbouwkundige regels in een gebiedsontwikkeling te verankeren. Maar ook kunnen sectorale regels zoals een reclameregeling of terassenregeling van toepassing worden verklaard.

De op dit moment in werking zijnde beeldkwaliteitsplannen en beleidsregels gericht op de ruimtelijke kwaliteit blijven actueel en worden derhalve opgenomen als bijlage bij onderhavig Ruimtelijk Kwaliteitskader:

  • Beeldkwaliteitsplan Vrouwenhof;

  • Beeldkwaliteitsplan Nollewiel;

  • Beeldkwaliteitsplan Schuigelegenheden, Omheiningen en Paardenbakken;

  • Beeldkwaliteitsplan herontwikkeling MOB-complex;

  • Beeldkwaliteitsplan Buurtschap Lewieze;

  • Beeldkwaliteitsplan Laarveld fase 1 en 2;

  • Beeldkwaliteitsplan Laarveld fase 3;

  • Beeldkwaliteitsplan Laarveld fase 4;

  • Beeldkwaliteitsplan Tromplaan;

  • Beeldkwaliteitsplan Bocholterweg 136;

  • Beeldkwaliteitsplan Open Park Weert;

  • Reclamebeleid.

Nieuwe beleidsstukken worden na vaststelling door het bevoegd orgaan toegevoegd (of vervangen) als bijlage aan onderhavig document.

2. Algemene gemeentedekkende kwaliteitsregels

2.1 Ruimtelijke kwaliteit

Omgevingskwaliteit

In een gemeente met grote ambities, maar waar tegelijkertijd druk op de ruimte is en waar diverse ruimtelijke opgaven moeten landen, is het van belang dat er bij elke project- en gebiedsontwikkeling binnen de gemeente aandacht is voor het behouden en versterken van ruimtelijke kwaliteit en de beheerste groei vanuit eigenheid. Daarbij is de vraag waar de balans ligt tussen inspelen op maatschappelijke dynamiek en noodzakelijke beperkingen om ruimtelijke kwaliteit te borgen. De term omgevingskwaliteit kan worden gebruikt om de zoektocht naar deze balans te sturen én houvast te bieden bij ruimtelijke ontwikkelingen.

Ofschoon er geen algemene definitie van omgevingskwaliteit bestaat, is de meest gangbare benadering dat omgevingskwaliteit refereert aan het geheel aan kwaliteiten die de waarde van de fysieke leefomgeving bepalen (zoals ook gehanteerd in de Nationale Omgevingsvisie en de Omgevingswet).

Omgevingskwaliteit is per definitie integraal en duidt op het belang van verschillende aspecten als cultureel erfgoed, architectonische kwaliteit van bouwwerken, stedenbouwkundige kwaliteit en kwaliteit van natuur en landschap (zie definitie Federatie Ruimtelijke Kwaliteit). Daarbij kan het zowel gaan om intrinsieke waarden die de maatschappij toekent aan plekken of gebieden, als de menselijke beleving van de fysieke leefomgeving.

Vertalen we dit naar Weert, dan behelst omgevingskwaliteit het brede palet aan plekken en gebieden – zowel stedelijk als landschappelijk - met eigenheid, identiteit en waarden.

Vanuit het uitgangspunt van omgevingskwaliteit dienen al deze verschillende plekken en gebieden doelmatig ingericht te zijn, zodat verschillende functies elkaar versterken (gebruikswaarde), waar het prettig verblijven is (belevingswaarde) en duurzaam en robuust ingericht zijn (toekomstwaarde).

Omgevingskwaliteit binnen het Ruimtelijk Kwaliteitskader gaat in essentie over de logica van een plek; een plek moet functioneel en beleefbaar zijn voor de lange termijn. Anders gezegd, omgevingskwaliteit gaat over (het streven naar) het goede voor een plek en haar gebruikers. In de eigenheid van de plek schuilen zaken als identiteit, kwaliteit en schoonheid. Bij dit alles komt de inspiratie uit de lokale context. Omgevingskwaliteit geeft immers een contextuele waardering. Met andere woorden: er zijn waarden die staan voor de eigenheid van Weert, maar tegelijkertijd moet er ook ruimte zijn voor verandering waarbij het toevoegen van waarde onderdeel is van de Weerter cultuur.

Waardering van 10 thema’s

In de aanloop naar de besluitvorming voor Omgevingsvisie is een omgevingseffectrapport (OER) opgesteld. Het doel van de OER is het omgevingsbelang mee te wegen bij de besluitvorming rondom de Omgevingsvisie. Het OER doet dit door de effecten op de omgeving te beschrijven van de ambities, opgaven en ontwikkelingen in de Omgevingsvisie en zo aandachtspunten mee te geven voor de te maken afwegingen en keuzes. Daarbij is enerzijds gekeken naar de huidige staat van de fysieke leefomgeving in Weert (de Foto van de Leefomgeving) en anderzijds naar hoe de doelstellingen impact (kunnen) hebben op de leefomgeving en hoe ze elkaar (kunnen) beïnvloeden. In deze OER zijn de doelstellingen van de Omgevingsvisie beoordeeld op de (potentiële) effecten op de verschillende thema’s van de (fysieke) leefomgeving, zoals ruimtelijke kwaliteit, wonen en gezondheidsbevordering.

Tien thema’s van de OER beoordeling hebben gedurende het onderzoek en de analyse van de deelgebieden constant centraal gestaan (Figuur 2). Deze thema’s en de beoordeling van de omgevingsvisie tonen de brede ambities van Weert. Deze ambitie is vertaald naar een diagram dat toont hoe de huidige kwaliteit zich daarmee verhoudt.

Ondanks de uiteenlopendheid van de thema’s zijn deze veelal indirect verbonden aan de ruimtelijke kwaliteit van onze leefomgeving. Denk bijvoorbeeld aan de relatie tussen gezondheidsbevordering en de aanwezigheid van (groene) structuren of energie en de aanwezigheid van de benodigde elektriciteitsinfrastructuur.

Ruimtelijke kwaliteit

Eén van de tien thema’s betreft de ruimtelijke kwaliteit. Ruimtelijke kwaliteit gaat, evenals omgevingskwaliteit, over de balans tussen functionaliteit, esthetiek en duurzaamheid in de inrichting van onze leefomgeving, maar kent een sterkere fysieke component. In het kader van dit Ruimtelijk Kwaliteitskader is de component ruimtelijke kwaliteit onderverdeeld in de volgende vijf onderdelen:

  • cultuurhistorie en erfgoed;

  • stedenbouwkundige kwaliteit;

  • architectonische kwaliteit;

  • landschappelijk waarden en kwaliteit;

  • archeologische waarden.

Hoewel de ruimtelijke kwaliteit in de huidige situatie als positief wordt beoordeeld (Figuur 2), worden enkele andere thema’s dit niet. Ook deze thema’s kennen echter elk een relatie met het thema ruimtelijke kwaliteit en het verbeteren van de waardering van deze thema’s zal daarmee ook effect hebben op de ruimtelijke kwaliteit.

In hoofdstuk 3 vormen deze vijf onderdelen de basis voor de ontwikkelprincipes per deelgebied.

afbeelding binnen de regeling

Figuur 2 - Waardering van het huidige kwaliteitsniveau van 10 verschillende OER thema’s in vergelijking met de gemeentebrede ambitie van de gemeente Weert, uitgelicht het thema ‘ruimtelijke kwaliteit’

noot: de waardering betreft een visuele vertaling van de ‘samenvatting kwaliteitsniveau in huidige situatie’ uit de OER

2.2 Algemene kwaliteitsprincipes

De gemeente Weert is in de basis welstandsvrij. Wel zijn er een aantal gebieden en objecten waarvoor er een welstandstoets geldt. Deze gebieden en objecten kennen twee soorten kwaliteitsregimes: ‘soepel’ en ‘bijzonder’. Figuur 3 toont de schematische weergave van het welstandsbeleid van de gemeente Weert. Het Ruimtelijk Kwaliteitskader kan bij ontwikkelingen als leidraad worden beschouwd om projecten te ontwikkelen in lijn met de eigenheid van Weert.

De gemeenteraad heeft tijdens haar vergadering op 16 november 2022 de ‘Verordening op de gemeentelijke adviescommissie Ruimtelijke Kwaliteit gemeente Weert 2022’ vastgesteld. Daarin heeft ze de Collegeadviescommissie Ruimtelijke Kwaliteit aangesteld, die toeziet op behoud en verbetering van een goede omgevingskwaliteit van Weert. Daarbij gaat het om het belang van aspecten als cultureel erfgoed, architectonische kwaliteit van bouwwerken, stedenbouwkundige kwaliteit en kwaliteit van natuur en landschap en van monumenten en beschermde stads- en dorpsgezichten.

Tijdens de vergadering van 21 november 2023 zijn de leden voor deze commissie vastgesteld.

afbeelding binnen de regeling

Figuur 3 - Schematische weergave van het welstandsbeleid

Kwaliteitsniveaus

Voor de verschillende objecten en gebieden gelden verschillende kwaliteitsregimes. De volgende kwaliteitsniveaus zijn in Weert van toepassing.

1.Soepel

Toepasbaar bij ambtelijke beoordelingen en excessen. Daarnaast is een vrijwillige kwaliteitstoets bij de CRK mogelijk.

Bij toepassing van de criteria die bij dit niveau horen (criteria 1 t/m 8) blijft de basiskwaliteit van het betreffende gebied behouden. Dit betekent voor nieuwe bouwactiviteiten, wijzigingen en toevoegingen, dat deze niet storend mogen zijn voor de omgeving.

2.Bijzonder (monumenten, stads- en dorpsgezichten)

Toepasbaar bij CRK verplichte adviseringen.

Bij toepassing van de criteria die bij dit niveau horen (criteria 1 t/m 13), worden de speciale kwaliteiten van het betreffende object of gebied behouden en/of verbeterd.

Dat betekent voor nieuwe bouwactiviteiten, wijzigingen en toevoegingen dat deze een bijdrage of meerwaarde leveren aan het totaal. Het zijn de objecten en gebieden die van cruciale betekenis zijn voor het totaalbeeld van de gemeente vanwege de hoge cultuurhistorische waarde. Let wel: het streven is niet gericht op het nabouwen maar op het respecteren van de historische context.

Nadere toelichting kwaliteitsniveaus

Bij iedere beoordeling worden twee invalshoeken beschouwd: het gebouw in zijn omgeving (of de verwachte ontwikkeling daarvan) en het gebouw op zichzelf. Bij de omgeving betreft het de plaats van het bouwwerk in de context, waarbij het gaat om een evenwichtige situering naar vorm, grootte en massa ten opzichte van de omliggende gebouwen en ten opzichte van het openbaar gebied.

Bij toetsing van het bouwwerk op zichzelf, gaat het om de verschijningsvorm van dat afzonderlijke bouwwerk. Hier gaat het om de esthetische kwaliteiten en de herkenbaarheid van het bouwwerk en in het bijzonder om juiste verhoudingen en correct materiaal- en kleurgebruik.

Soepel

Op welstandsniveau Soepel wordt getoetst of een bouwwerk niet storend is op zichzelf en in relatie tot zijn omgeving. Hieronder vallen de volgende criteria:

  • 1.

    Het gebruik maakt van de karakteristieken van het perceel;

  • 2.

    Er ongeacht de stijl of de aan het ontwerp ten grondslag liggende architectuuropvatting sprake is van een naar typologie in zijn omgeving niet storend bouwwerk;

  • 3.

    Er ongeacht de stijl of de aan het ontwerp ten grondslag liggende architectuuropvatting sprake is van een naar vorm en schaal in zijn omgeving niet storend bouwwerk;

  • 4.

    Er ongeacht de bouwstijl of aan het ontwerp ten grondslag liggende architectuuropvatting sprake is van een naar zijn verschijningsvorm consistent ontwerp;

  • 5.

    De verschijningsvorm een heldere relatie vertoont met de functie;

  • 6.

    De structuur van de plattegronden consequent in de massa- opbouw tot uiting komt;

  • 7.

    Er sprake is van een evenwichtige opzet in maatverhoudingen van bouwvolumes, vlakverdelingen en gevelelementen;

  • 8.

    Kleur- en materiaalgebruik in overeenstemming zijn met het karakter van het ontwerp en niet storend in de omgeving.

Toetsing Bijzonder

Op welstandsniveau Bijzonder wordt getoetst of een bouwwerk zowel op zichzelf als in relatie tot zijn omgeving een meerwaarde is. Een bouwwerk is dan niet strijdig met “redelijke eisen van welstand” wanneer bovendien:

  • 9.

    Er ongeacht de stijl of de aan het ontwerp ten grondslag liggende architectuuropvatting sprake is van een bouwwerk dat in typologie bijdraagt aan de kwaliteit van zijn omgeving;

  • 10.

    Er ongeacht de stijl of de aan het ontwerp ten grondslag liggende architectuuropvatting sprake is van een bouwwerk dat in vorm en schaal bijdraagt aan de kwaliteit van zijn omgeving;

  • 11.

    Kleur en materiaalgebruik in overeenstemming zijn met het karakter van het ontwerp en bijdragen aan de kwaliteit van de omgeving;

  • 12.

    Het de stedenbouwkundige structuur herkenbaar maakt en de kwaliteit van de stedenbouwkundige ruimte versterkt;

  • 13.

    Bij wijzigingen (bv. reclames), verbouwingen en restauraties de authenticiteit van het bouwwerk en de samenhang in het gevelbeeld worden gehandhaafd, hersteld of versterkt.

Excessenregeling

De regel dat bouwwerken ‘niet in ernstige mate in strijd mogen zijn met redelijke eisen van welstand’ geldt ook voor vergunningvrije bouwwerken en in welstandsvrije gebieden.

Dus niet alleen voor alle bestaande bouwwerken waarvoor voor het bouwen een omgevingsvergunning is verleend. Het gaat in gevallen van een exces om ernstige ontsiering van een bouwwerk of een gedeelte daarvan in relatie tot de omgeving.

Het zal duidelijk zijn dat in een gebied waarvoor een hoog welstandsniveau is vastgesteld, er eerder sprake kan zijn van een exces dan in een gebied met een lager niveau.

De gemeente hanteert het criterium dat er sprake moet zijn van een buitensporigheid in het uiterlijk die ook voor niet-deskundigen evident is en die afbreuk doet aan de ruimtelijke kwaliteit van een gebied.

Van ernstige ontsiering kan sprake zijn indien:

  • Een bouwwerk zich voor zijn omgeving visueel of fysiek afsluit;

  • Een bouwwerk geheel of gedeeltelijk in vervallen toestand verkeert (afgebrand, ingestort e.d.);

  • Bij een bouwwerk het onderhoud aan de gevel en de gevelelementen in relatie tot dat in de omgeving, duidelijk zichtbaar wordt verwaarloosd;

  • Door toepassing van sterk met de omgeving contrasterende kleuren en/of versieringen van de gevel, waaronder reclame, waardoor de samenhang in het straatbeeld wordt verstoord;

  • Bij aanpassing van een bouwwerk, met name bij cultuurhistorisch waardevolle panden, architectonische bijzonderheden worden vernietigd dan wel ontkend;

  • De detaillering van de gevels in ernstige mate wordt verstoord door bijvoorbeeld installaties;

  • Door toepassing van armoedig materiaalgebruik, zoals rietmatten, oude deuren, golfplaten, kunststof schroten, zeildoek, een groot contrast is ontstaan met de kwalitatief betere materialen van de aangrenzende bouwwerken;

  • Op een bouwwerk op de vanaf het openbaar toegankelijk gebied zichtbare gevel graffiti is aangebracht of deze op een ander wijze is beklad.

Beeldkwaliteitsplan

Het beeldkwaliteitsplan heeft tot doel een kader te bieden waarbinnen de gewenste stedenbouwkundige landschappelijke en architectonische uitwerking en planbeoordeling kan plaatsvinden.

Het gaat hier met name om de beoogde ruimtelijke kwaliteit van de bebouwing en de inrichting van de openbare ruimte.

Het beeldkwaliteitsplan geeft richtlijnen om de ruimtelijke en esthetische kwaliteit te bevorderen. Hierbij gaat het om richtlijnen ten aanzien van stedenbouw, landschap, architectuur en de inrichting van het openbaar gebied.

Bij grotere, planmatige ontwikkelingen is het gewenst om een beeldkwaliteitsplan op te stellen. Dit beeldkwaliteitsplan kan ervoor zorgen dat in het plangebied een bepaalde sfeer, kwaliteit of uitstraling wordt gerealiseerd.

Onze visie is om wel de bepaalde sfeer of uitstraling te garanderen via een beeldkwaliteitsplan, maar niet om onnodige discussie, inzet of vertraging te veroorzaken ten aanzien van kleine bouwinitiatieven die zeer beperkte invloed hebben op de omgeving. Daarom streven we als gemeente naar robuuste beeldkwaliteitsplannen die sturend zijn op hoofdlijnen.

3. Gebiedstypologieën

Ruimtelijke eigenheid

Het bebouwd gebied en het buitengebied van de gemeente Weert bestaat uit een rijk palet aan gebiedstypologieën (Figuur 4 en Figuur 5). Elke gebiedstypologie kent zijn eigen kenmerken, kwaliteiten, structuurdragers en Weerter Waarden. Hoewel deze in de oorsprong een sterke relatie kennen met de ondergrond, denk aan de bodemsoorten en grondwaterstanden, is deze relatie in de laatste decennia sterk vertroebeld. Dit proces heeft ook zijn weerslag gehad op de ruimtelijke eigenheid van de gebieden, zo is de oorspronkelijke kleinschaligheid van het kampenlandschap in het buitengebied nog nauwelijks te herkennen en hebben de waardevolle cultuurhistorische structuren in het stedelijk gebied aan kwaliteit en herkenbaarheid ingeboet.

In de laatste jaren is er weer hard ingezet op het versterken van de ruimtelijke kwaliteit en de lees- en herkenbaarheid van de wisselwerking tussen onder- en bovengrond. Deze ingezette lijn wordt met het Ruimtelijk Kwaliteitskader doorgezet en door middel van ontwerpprincipes wordt er aan deze ontwikkeling handen en voeten gegeven. Beheerste groei vanuit eigenheid betekent in de gemeente Weert dan ook het behouden, herstellen en het versterken van de (aanwezige) ruimtelijke eigenheid.

Door het rijke palet aan gebiedstypologieën beperkt de ruimtelijke eenheid zich niet alleen tot de gebiedstypologie zelf, maar betreft het veelal ook de wisselwerking tussen de gebiedstypologieën.

Denk bijvoorbeeld aan de kernranden, waar stad en land elkaar ontmoeten, of de ruimtelijke schaalsprongen tussen het oude cultuurland en de jonge heideontginningen in het buitengebied. Ook deze wisselwerking is bepalend voor de ruimtelijke eigenheid van Weert.

Gebiedstypologieën

Een gebiedstypologie kan worden omschreven als een typologische ruimtelijke eenheid met eigen (ruimtelijke) kenmerken, kwaliteiten, structuurdragers en Weerter Waarden. Deze termen kunnen als volgt omschreven worden:

Kenmerken

De kenmerken bestaan uit de aanwezige (ruimtelijke) karakteristieken. Met andere woorden, de kenmerken beschrijven wat er aanwezig is in de fysieke ruimte. Dit zijn bijvoorbeeld wegenpatronen, bebouwingstypologieën en groenstructuren.

Kwaliteiten

Kwaliteiten beschrijven de beleving en waardering van de aanwezige ruimtelijke karakteristieken. Zo waarderen we bijvoorbeeld de aanwezigheid van cultuurhistorische elementen of draagt de aanwezigheid van laanstructuren in de heideontginningen bij aan de beleving van het landschapstype.

Structuurdragers

De structuurdragers zijn de onmisbare dragende elementen voor de (ruimtelijke) leesbaarheid. Veelal bestaan de structuurdragers van een gebied uit doorgaande structuren, waarlangs bewogen kan worden. Denk bijvoorbeeld aan de beeklopen in de beekdalen of de hoofdwegen in het bebouwd gebied.

Weerter Waarden

De Weerter Waarden staan voor de eigenheid van Weert. Dit zijn de waarden die Weert ook echt Weert maken. Denk bijvoorbeeld aan de kerktoren van de Sint Martinuskerk die fungeert als landmark voor de gehele omgeving of de wisselwerking tussen natte en droge gebieden in het buitengebied.

Ontwikkelprincipes

Elke gebiedstypologie kent zijn eigen ontwikkelprincipes die bijdragen aan het behouden, herstellen en versterken van de ruimtelijke eigenheid van de typologie. De ontwikkelprincipes zijn ingedeeld op basis van de vijf onderdelen van het thema ruimtelijke kwaliteit; cultuurhistorie en erfgoed, stedenbouwkundige kwaliteit, architectonische kwaliteit, landschappelijk waarden en kwaliteit en de archeologische waarden.

De ontwikkelprincipes geven richting aan de kaders voor het initiatief en helpen bij het uitwerken van een initiatief tot een planvoorstel. Zo geven de ontwikkelprincipes bijvoorbeeld richtlijnen over de gewenste architectonische kwaliteit van een nieuw bedrijfspand of over de positionering van een woning in het buitengebied.

Voor elke gebiedstypologie duidt een geabstraheerde ‘tegel’ het ruimtelijke karakter en de ruimtelijke principes. Enkele belangrijke ontwikkelprincipes voor de herkenbaarheid van van de gebiedstypologie zijn hier nogmaals benoemd.

Hoewel de gebiedstypologieën ten behoeve van dit Ruimtelijk Kwaliteitskader begrensd zijn, moeten deze grenzen niet als ‘absoluut’ worden gezien. Dat wil zeggen, een gebiedstypologie kent altijd een relatie met een aangrenzende gebiedstypologie, zo zijn de velden bijvoorbeeld onlosmakelijk verbonden met de kampen en kent het bebouwde gebied een sterke samenhang met de directe omgeving.

afbeelding binnen de regeling

Figuur 4 - De structuurkaart toont de verschillende gebiedstypologieën

gebiedstypologieën in het bebouwd gebied

afbeelding binnen de regeling

gebiedstypologieën in het buitengebied

afbeelding binnen de regeling

Figuur 5 - Geabstraheerde tegels van de verschillende gebiedstypologieën

3.1 Stedelijk gebied

afbeelding binnen de regeling

Beschrijving

De typologie van het stedelijk gebied wordt gevormd door de woonwijken van de stad Weert. De typologie bestaat veelal uit naoorlogse woonwijken met duidelijke planmatige opzet, waarbij elke wijk zijn eigen identiteit en ontmoetingsplekken kent. Deze ontmoetingsplekken zijn er in verschillende vormen, van buurthuis tot een plein of park en van een basisschool tot een winkel. Toch wordt in het stedelijk gebied met name gewoond, waar werken en winkelen juist plaatsvindt in de nabijgelegen binnenstad en bedrijventerreinen.

Het stedelijk gebied wordt verder vaak gekenmerkt door de lommerrijke opzet met robuuste groenstructuren, denk bijvoorbeeld aan de bomenlanen langs de Limburglaan of Sint Jozefslaan, die fungeren als belangrijke structuurdragers van het gebied. Ook herkennen we nog altijd de karakteristieke lintbebouwing langs de historische wegen, tegenwoordig vaak fungerend als belangrijke ontsluitingsroutes van de woonwijken.

Aan de randen het stedelijk gebied, op de overgang naar het buitengebied, vinden we de kernranden. Ook de kernranden kennen elk hun eigen identiteit, afhankelijk van het aanwezige stedenbouwkundig patroon, aanwezige functies en landschapstypen.

Voorbeeldgebieden:

  • Keent-Moesel;

  • Boshoven;

  • Leuken.

Kenmerken

Aanwezige (ruimtelijke) karakteristieken

  • Historische uitvalswegen met cultuurhistorische elementen;

  • Veelal naoorlogse woonwijken met duidelijke planmatige opzet;

  • Aanwezigheid van ontmoetingsplekken en maatschappelijke voorzieningen;

  • Breed straatprofiel met gecultiveerde groenstructuren.

Kwaliteiten

Beleving en waardering van de ruimtelijke karakteristieken

  • Waardevolle en beeldbepalende cultuurhistorische elementen;

  • Goede bereikbaarheid;

  • Lommerrijke opzet met robuuste groenstructuren;

  • Aanwezigheid van ruimte voor ontmoeting;

  • Een toegankelijke kanaalzone.

Structuurdragers

Onmisbare dragende elementen voor de (ruimtelijke) leesbaarheid

  • Historische wegen (met lintbebouwing);

  • Laanstructuren;

  • Grote openbare groenstructuren;

  • Wijkcentra met clustering van voorzieningen;

  • Grote infrastructurele structuren.

Weerter Waarden

Waarden die staan voor de eigenheid van Weert

  • Waardevolle cultuurhistorische structuren van bebouwing, lanen en groenstructuren die het bebouwd programma in balans houden;

  • Vitale en levendige wijken met in iedere wijk een ontmoetingsplek in de vorm van een wijkaccommodatie, school, park of plein.

afbeelding binnen de regeling

Ontwikkelprincipes

Cultuurhistorie en erfgoed

  • Cultuurhistorische kwaliteiten (historische patronen, erfgoed, etc.) zijn gewaarborgd en beleefbaar;

  • Cultuurhistorisch erfgoed wordt als identiteitsdrager ingezet bij gebiedsontwikkeling;

  • In historische waardevolle en beschermde zonering blijft de stedenbouwkundige structuur herkenbaar en wordt de kwaliteit van de stedenbouwkundige ruimte en de omgeving versterkt;

  • Bij historische waardevolle bouwwerken en binnen beschermde zoneringen blijft de authenticiteit van het bouwwerk en de samenhang in het gevelbeeld bij wijzigingen (verbouw, reclame, restauratie) gehandhaafd, hersteld of versterkt.

Architectonische kwaliteit

  • Volg de kaders gesteld in de Ruimtelijke Ontwikkelingsstrategie voor meerlaagse bebouwing op specifieke plekken in het stedelijk weefsel;

  • Ongeacht de stijl of de aan het ontwerp ten grondslag liggende architectuuropvatting is er sprake van een bouwwerk dat in typologie, vorm en schaal bijdraagt aan de kwaliteit van zijn omgeving;

  • Kleur en materiaalgebruik zijn in overeenstemming met het karakter van het ontwerp en dragen bij aan de kwaliteit van de omgeving;

  • Het bouwwerk draagt bij aan het herkenbaar maken van de stedenbouwkundige structuur en versterkt de kwaliteit van de stedenbouwkundige ruimte;

  • Commerciële uitingen zijn ondergeschikt aan aanwezige omgevingskwaliteiten;

  • Technische installaties zijn opgenomen in de architectuur.

Stedenbouwkundige kwaliteit

  • De stedenbouwkundige en architectonische kwaliteit en principes van de wijk zijn leidend in typologie, schaal en verschijningsvorm;

  • Bij een gebiedsontwikkeling worden de beschreven kaders op basis van een gebiedsvisie aangevuld met specifieke kaders en een beeldkwaliteitsplan;

  • Zet in op het gebruik van de daken voor (semi-)privaat groen, wateropvang en/of energieproductie, het onontgonnen dakenlandschap wordt hierdoor een nieuwe laag in het stedelijk weefsel;

  • Waarborg ruimte voor ontmoeting en activiteit;

  • Versterk de beweegvriendelijke leefomgeving met goede verbindingen naar het buitengebied of aangrenzende groenvoorzieningen;

  • Collectieve energiesystemen van de toekomst kunnen onderdeel zijn van de openbare ruimte, mits zij zich verhouden tot hun directe omgeving.

Archeologische waarden

  • Maak, waar mogelijk en relevant, archeologische vondsten zichtbaar in de openbare ruimte;

  • Behoud archeologische vondsten en structuren zoveel mogelijk in situ;

  • Zet archeologisch erfgoed in als identiteitsdrager bij gebiedsontwikkelingen.

Landschappelijke waarden en kwaliteit

  • Cultuurhistorische en kwalitatieve groenstructuren zijn gewaarborgd en beleefbaar;

  • Werk de maatregelen vanuit het Programma GroenBlauw uit op structuur-, wijk- en buurtniveau;

  • Behoud zoveel als mogelijk de open groene ruimtes en streef naar meervoudig ruimtegebruik;

  • Zet in op het ontstenen en vergroenen en het bergen van water in de openbare ruimte;

  • Verbeter de stadsrand en directe leefomgeving van de stad middels transformatie en herinrichting en zet hierbij in op de versterking van de aanwezige landschappelijke kwaliteiten;

  • Versterk de ecologische waarden en voorkom ecologische vallen en verstorende voorzieningen.

afbeelding binnen de regeling

Figuur 6 - Ontwikkelprincipes in het stedelijk gebied

3.2 Hoogstedelijk gebied

afbeelding binnen de regeling

Beschrijving

De typologie van het hoogstedelijk gebied vinden we op dit moment in de historische binnenstad en de spoorzone. In het hoogstedelijk gebied vinden we een concentratie van commerciële, maatschappelijke en culturele functies, een hogere diversiteit van bebouwingsvormen en een variatie in ontmoetingsplekken. De historische binnenstad kent daarnaast een hoge concentratie van cultuurhistorische waarden in de vorm van historische wegenpatronen, rijksmonumentale panden en een gemeentelijk beschermd stadsgezicht. Vanaf de jaren ‘70 en ‘80 heeft ook hoogbouw zijn intrede gedaan in het gebied, waardoor het karakter van het centrum twee verschillende maat en schaal verhoudingen herbergt.

Hoewel de spoorzone op dit moment vooral nog bestaat uit enkele groenstructuren, sportvelden en aan het spoor gerelateerde functies, zal het gebied zich in de toekomst omvormen tot een een multifunctioneel gebied voor wonen, werken, bedenken en maken. Het wordt daarmee een gebied voor inwoners en ondernemers, bezoekers en medewerkers. Ook de ‘oostelijke stadsentree’ zal in de toekomst worden getransformeerd naar hoogstedelijk gebied.

Het hoogstedelijk gebied kenmerkt zich ook door de goede bereikbaarheid met allerlei vormen van vervoer. Hoewel de auto in de huidige situatie nog een grote rol kent, zal hij, gedreven door de goede bereikbaarheid, in de komende jaren een stapje opzij doen ten behoeve van het verbeteren van de bereikbaarheid voor voetganger, fietser en OV.

Voorbeeldgebieden:

  • Weert-Centrum;

  • Spoorzone.

Kenmerken

Aanwezige (ruimtelijke) karakteristieken

  • (Cultuur)historische bebouwing en wegenpatronen;

  • Mix van functies;

  • Gecultiveerde groenstructuren en openbaar groen;

  • Ligt vaak hoger dan omliggend gebied.

Kwaliteiten

Beleving en waardering van de ruimtelijke karakteristieken

  • Binnenstad laat zich kenmerken als ‘kleinschalig, gemoedelijk, historisch en intiem’;

  • Hoge archeologische en cultuurhistorische waarde;

  • Aanwezigheid van maatschappelijke en commerciële voorzieningen;

  • Hergebruik en transformatie van industrieel erfgoed.

Structuurdragers

Onmisbare dragende elementen voor de (ruimtelijke) leesbaarheid

  • Historische wegen en singels;

  • Doorgaande groene structuren en grote gebieden openbaar groen;

  • Voetgangersgebied;

  • De Zuid-Willemsvaart;

  • Spoorweg.

Weerter Waarden

Waarden die staan voor de eigenheid van Weert

  • De kerktoren functioneert als landmark voor de gehele omgeving;

  • Afwisseling tussen kleinschalig en historisch centrum rondom de markt aangevuld met een schil met grootschalige korrelgrootte (schaal en patroon van de bebouwing).

afbeelding binnen de regeling

Ontwikkelprincipes

Cultuurhistorie en erfgoed

  • Cultuurhistorische kwaliteiten (historische patronen, erfgoed, etc.) zijn gewaarborgd en beleefbaar;

  • Cultuurhistorisch erfgoed wordt als identiteitsdrager ingezet bij gebiedsontwikkeling;

  • In historische waardevolle en beschermde zonering blijft de stedenbouwkundige structuur herkenbaar en wordt de kwaliteit van de stedenbouwkundige ruimte en de omgeving versterkt;

  • Bij historische waardevolle bouwwerken en binnen beschermde zoneringen blijft de authenticiteit van het bouwwerk en de samenhang in het gevelbeeld bij wijzigingen (verbouw, reclame, restauratie) gehandhaafd, hersteld of versterkt.

Architectonische kwaliteit

  • Volg de kaders gesteld in de Ruimtelijke Ontwikkelingsstrategie voor meerlaagse bebouwing op specifieke plekken in het stedelijk weefsel;

  • Ongeacht de stijl of de aan het ontwerp ten grondslag liggende architectuuropvatting is er sprake van een bouwwerk dat in typologie, vorm en schaal bijdraagt aan de kwaliteit van zijn omgeving;

  • Kleur en materiaalgebruik zijn in overeenstemming met het karakter van het ontwerp en dragen bij aan de kwaliteit van de omgeving;

  • Het bouwwerk draagt bij aan het herkenbaar maken van de stedenbouwkundige structuur en versterkt de kwaliteit van de stedenbouwkundige ruimte;

  • Commerciële uitingen zijn ondergeschikt aan aanwezige omgevingskwaliteiten;

  • Technische installaties zijn opgenomen in de architectuur.

Stedenbouwkundige kwaliteit

  • De stedenbouwkundige en architectonische kwaliteit en principes van de wijk zijn leidend in typologie, schaal en verschijningsvorm;

  • Bij een gebiedsontwikkeling worden de beschreven kaders op basis van een gebiedsvisie aangevuld met specifieke kaders en een beeldkwaliteitsplan;

  • Zet in op het gebruik van de daken voor (semi-)privaat groen, wateropvang en/of energieproductie, het onontgonnen dakenlandschap wordt hierdoor een nieuwe laag in het stedelijk weefsel;

  • Waarborg ruimte voor ontmoeting en activiteit;

  • Collectieve energiesystemen van de toekomst kunnen onderdeel zijn van de openbare ruimte, mits zij zich verhouden tot hun directe omgeving;

  • Het karakter van pleintjes en steegjes vormt de basis voor binnenstedelijke ontwikkeling;

  • Zoek bij hoogbouw naar oplossingen voor parkeren buiten het (publieke) zicht.

Archeologische waarden

  • Maak, waar mogelijk en relevant, archeologische vondsten zichtbaar in de openbare ruimte;

  • Behoud archeologische vondsten en structuren zoveel mogelijk in situ;

  • Behoud historische kelders en ondergrondse structuren (waterlopen, putten, etc.) zoveel mogelijk in situ;

  • Zet archeologisch erfgoed in als identiteitsdrager bij gebiedsontwikkelingen.

Landschappelijke waarden en kwaliteit

  • Cultuurhistorische en kwalitatieve groenstructuren zijn gewaarborgd en beleefbaar;

  • Werk de maatregelen vanuit het Programma GroenBlauw uit op structuur-, wijk- en buurtniveau;

  • Zet in op het ontstenen en vergroenen en het bergen van water in de openbare ruimte;

  • Versterk de ecologische waarden en voorkom ecologische vallen en verstorende voorzieningen.

afbeelding binnen de regeling

Figuur 7 - Ontwikkelprincipes in het hoogstedelijk gebied

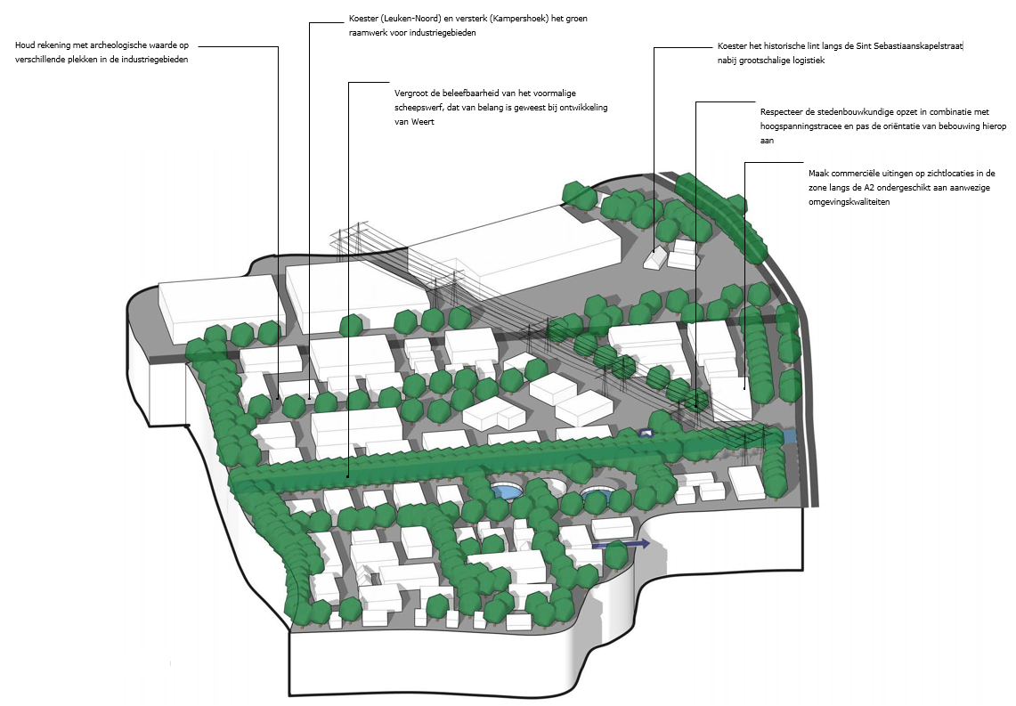
3.3 Bedrijventerrein

afbeelding binnen de regeling

Beschrijving

De gemeente beschikt over een divers palet aan bedrijventerreinen waarvan het merendeel gelegen is in en rondom de stad Weert.

De bedrijven op de bedrijventerreinen zijn goed voor 45% van de totale werkgelegenheid in de gemeente, hiermee is het economisch belang van de gebieden behoorlijk. Dit betekent eveneens dat een groot deel van de in Weert werkzame inwoners dagelijks naar een bedrijventerrein reist en hiermee de (lokale) bereikbaarheid van groot belang is voor het functioneren van de gebieden.

Hoewel de bedrijventerreinen onderling verschillen, kenmerken de bedrijventerreinen van Weert zich door hun ligging veelal aan de buitenrand van de stad en hun positionering langs grote uitvalswegen, de Zuid-Willemsvaart of het spoor. De aanwezige typologie is variërend, van lokale MKB’ers tot grootschalige distributiecentra, en van kantoorpanden tot zware industrie.

Door de toenemende vraag naar ruimte voor bedrijvigheid zal ook het aanbod aan werklocaties de komende jaren toenemen in de gemeente. Daarnaast zullen ook de huidige bedrijventerreinen een kwaliteitsslag moeten maken op het gebied van toekomstbestendigheid, energietransitie, klimaatadaptatie en ruimtelijke kwaliteit.

Voorbeeldgebieden:

  • De Kempen;

  • Kampershoek 1.0 en 2.0;

  • Kanaalzone I, II en III.

Kenmerken

Aanwezige (ruimtelijke) karakteristieken

  • Versteende gebieden (weiniggroen);

  • Aanwezigheid retail;

  • Ingericht voor de auto;

  • Aangrenzend aan uitvalswegen;

  • Ingezet op zichtbaarheid bedrijven (zichtlocaties).

Structuurdragers

Onmisbare dragende elementen voor de (ruimtelijke) leesbaarheid

  • Grote wegen (A2, Roermondseweg, Ringbaan);

  • Industrieel erfgoed;

  • De Zuid-Willemsvaart.

Kwaliteiten

Beleving en waardering van de ruimtelijke karakteristieken

  • Werkgelegenheid (in nabijheid van woonwijken);

  • Commerciële voorzieningen;

  • Goede bereikbaarheid;

  • Kleinere korrelgrootte t.o.v. grote industriegebieden;

  • Aanwezigheid en transformatie van industrieel erfgoed.

Weerter Waarden

Waarden die staan voor de eigenheid van Weert

  • Verbindingen met en tussen structuurdragers zoals de Zuid- Willemsvaart en de daarmee samenhangende robuuste groenstructuren.

afbeelding binnen de regeling

Ontwikkelprincipes

Cultuurhistorie en erfgoed

  • Cultuurhistorische kwaliteiten (historische patronen, erfgoed, etc.) zijn gewaarborgd en beleefbaar;

  • Cultuurhistorisch erfgoed wordt als identiteitsdrager ingezet bij gebiedsontwikkeling;

  • In historische waardevolle en beschermde zonering blijft de stedenbouwkundige structuur herkenbaar en wordt de kwaliteit van de stedenbouwkundige ruimte en de omgeving versterkt;

  • Bij historische waardevolle bouwwerken en binnen beschermde zoneringen blijft de authenticiteit van het bouwwerk en de samenhang in het gevelbeeld bij wijzigingen (verbouw, reclame, restauratie) gehandhaafd, hersteld of versterkt.

Architectonische kwaliteit

  • Ongeacht de stijl of de aan het ontwerp ten grondslag liggende architectuuropvatting is er sprake van een bouwwerk dat in typologie, vorm en schaal bijdraagt aan de kwaliteit van zijn omgeving;

  • Kleur en materiaalgebruik zijn in overeenstemming met het karakter van het ontwerp en dragen bij aan de kwaliteit van de omgeving;

  • Het bouwwerk draagt bij aan het herkenbaar maken van de stedenbouwkundige structuur en versterkt de kwaliteit van de stedenbouwkundige ruimte;

  • Commerciële uitingen zijn ondergeschikt aan aanwezige omgevingskwaliteiten;

  • Technische installaties zijn opgenomen in de architectuur.

Stedenbouwkundige kwaliteit

  • De stedenbouwkundige en architectonische kwaliteit en principes van het bedrijventerrein zijn leidend in typologie, schaal en verschijningsvorm;

  • Bij een gebiedsontwikkeling worden de beschreven kaders op basis van een gebiedsvisie aangevuld met specifieke kaders en een beeldkwaliteitsplan;

  • Zet in op het gebruik van de daken voor groen, wateropvang en/of energieproductie, het onontgonnen dakenlandschap wordt hierdoor een nieuwe laag in het stedelijk weefsel;

  • Versterk de beweegvriendelijke leefomgeving met goede verbindingen naar het buitengebied of aangrenzende groenvoorzieningen.

Archeologische waarden

  • Maak, waar mogelijk en relevant, archeologische vondsten zichtbaar in de openbare ruimte;

  • Behoud archeologische vondsten en structuren zoveel mogelijk in situ;

  • Zet archeologisch erfgoed in als identiteitsdrager bij gebiedsontwikkelingen.

Landschappelijke waarden en kwaliteit

  • Cultuurhistorische en kwalitatieve groenstructuren zijn gewaarborgd en beleefbaar;

  • De landschappelijke structuren en morfologie vormen de basis bij ontwikkelplannen;

  • Werk de maatregelen vanuit het Programma GroenBlauw uit op structuur-, wijk- en buurtniveau;

  • Zorg voor een goede en robuuste landschappelijke inpassing;

  • Zet in op het ontstenen en vergroenen en het bergen van water in de onbebouwde ruimte;

  • Hemelwater wordt collectief en grootschalig in openbaar gebied opgevangen en groene ontspanningszones zijn hieraan gekoppeld;

  • Verbeter de stadsrand en directe leefomgeving van de stad middels transformatie en herinrichting en zet hierbij in op de versterking van de aanwezige landschappelijke kwaliteiten;

  • Versterk de ecologische waarden en voorkom ecologische vallen en verstorende voorzieningen.

afbeelding binnen de regeling

Figuur 8 - Ontwikkelprincipes op het bedrijventerrein

3.4 Dorpen

afbeelding binnen de regeling

Beschrijving

Verspreid over het buitengebied liggen een vijftal dorpskernen;

Altweerterheide, Laar, Stramproy, Swartbroek en Tungelroy. Ieder dorp heeft een eigen identiteit, zowel in ruimtelijk als in sociaal opzicht. Dat maakt de woon- en leefgemeenschappen veerkrachtig. De ruimtelijke kwaliteit in de dorpen leunt sterk op de nog aanwezige cultuurhistorische structuren en de kwaliteit van het omliggende landschap.

Buiten enkele locaties, met name in Stramproy, bestaat het woningaanbod voornamelijk uit laagbouw. Elke kern heeft zijn eigen maatschappelijke voorzieningen en de kern van Stramproy kent daarnaast enkele (lokale) commerciële voorzieningen.

Hoewel de ruimtelijke opgaven in de dorpskernen minder groot zijn dan in het stedelijk gebied, liggen er ook hier enkele opgaven wat betreft het uitbreiden van het kwantitatieve en kwalitatieve woningaanbod (voor eigen behoefte), het versterken van de recreatieve ontsluitingen en het behouden van de lokale voorzieningen. Een deel van de opgaven voor het versterken van de lokale leefomgeving liggen in de kernrandzones, die de overgang van dorpskern naar het buitengebied vormen.

Voorbeeldgebieden:

  • Altweerterheide;

  • Laar;

  • Stramproy;

  • Swartbroek;

  • Tungelroy.

Kenmerken

Aanwezige (ruimtelijke) karakteristieken

  • Laagbouw en weinig variatie in woningaanbod;

  • Gecultiveerde groenstructuren;

  • Cultuurhistorische structuren;

  • Woonwijken zijn naoorlogs en gepland;

  • Eigen maatschappelijke voorzieningen.

Structuurdragers

Onmisbare dragende elementen voor de (ruimtelijke) leesbaarheid

  • Bomenlanen;

  • Cultuurhistorische gebouwen, elementen en structuren.

Kwaliteiten

Beleving en waardering van de ruimtelijke karakteristieken

  • Sterke eigen identiteit, zowel ruimtelijk als sociaal;

  • Sterke saamhorigheid;

  • Voorzieningen in de nabijheid;

  • Buitengebied en natuur op korte afstand.

Weerter Waarden

Waarden die staan voor de eigenheid van Weert

  • Ieder dorp heeft zijn eigen identiteit;

  • Leesbaarheid en verbondenheid tussen de ruimtelijke kwaliteit, de cultuurhistorische waarden en het omliggende landschap.

afbeelding binnen de regeling

Ontwikkelprincipes

Cultuurhistorie en erfgoed

  • Cultuurhistorische kwaliteiten (historische patronen, erfgoed, etc.) zijn gewaarborgd en beleefbaar;

  • Cultuurhistorisch erfgoed wordt als identiteitsdrager ingezet bij gebiedsontwikkeling;

  • In historische waardevolle en beschermde zonering blijft de stedenbouwkundige structuur herkenbaar en wordt de kwaliteit van de stedenbouwkundige ruimte en de omgeving versterkt;

  • Bij historische waardevolle bouwwerken en binnen beschermde zoneringen blijft de authenticiteit van het bouwwerk en de samenhang in het gevelbeeld bij wijzigingen (verbouw, reclame, restauratie) gehandhaafd, hersteld of versterkt.

Landschappelijke waarden en kwaliteit

  • Cultuurhistorische en kwalitatieve groenstructuren zijn gewaarborgd en beleefbaar;

  • Werk de maatregelen vanuit het Programma GroenBlauw uit op structuur-, wijk- en buurtniveau;

  • Zet in op het ontstenen en vergroenen en het bergen van water in de openbare ruimte;

  • Verbeter de kernrand en directe leefomgeving van de kern middels transformatie en herinrichting en zet hierbij in op de versterking van de aanwezige landschappelijke kwaliteiten;

  • Versterk de (recreatieve) verbindingen tussen het dorp en het buitengebied/natuurgebieden en zorg voor een veilige en aantrekkelijke inrichting;

  • Versterk de ecologische waarden en voorkom ecologische vallen en verstorende voorzieningen.

Stedenbouwkundige kwaliteit

  • De stedenbouwkundige en architectonische kwaliteit en principes van het dorp en de desbetreffende wijk zijn leidend in typologie, schaal en verschijningsvorm;

  • Bij een gebiedsontwikkeling worden de beschreven kaders op basis van een gebiedsvisie aangevuld met specifieke kaders en een beeldkwaliteitsplan;

  • Zet in op het gebruik van de daken voor wateropvang en/of energieproductie, het onontgonnen dakenlandschap wordt hierdoor een nieuwe laag in het stedelijk weefsel;

  • Waarborg ruimte voor ontmoeting en activiteit;

  • Zet bij uitbreidingen in op het behoud en de versterking van de bestaande sfeer en karakter van het dorp en speel hierbij in op behoeften voor de toekomst;

  • Versterk de beweegvriendelijke leefomgeving met goede verbindingen naar het buitengebied of aangrenzende groenvoorzieningen;

  • Collectieve energiesystemen van de toekomst kunnen onderdeel zijn van de openbare ruimte, mits zij zich verhouden tot hun directe omgeving.

Archeologische waarden

  • Maak, waar mogelijk en relevant, archeologische vondsten zichtbaar in de openbare ruimte;

  • Behoud archeologische vondsten en structuren zoveel mogelijk in situ;

  • Zet archeologisch erfgoed in als identiteitsdrager bij gebiedsontwikkelingen.

Architectonische kwaliteit

  • Ongeacht de stijl of de aan het ontwerp ten grondslag liggende architectuuropvatting is er sprake van een bouwwerk dat in typologie, vorm en schaal bijdraagt aan de kwaliteit van zijn omgeving;

  • Kleur en materiaalgebruik zijn in overeenstemming met het karakter van het ontwerp en dragen bij aan de kwaliteit van de omgeving;

  • Het bouwwerk draagt bij aan het herkenbaar maken van de stedenbouwkundige structuur en versterkt de kwaliteit van de stedenbouwkundige ruimte;

  • Commerciële uitingen zijn ondergeschikt aan aanwezige omgevingskwaliteiten;

  • Technische installaties zijn opgenomen in de architectuur.

afbeelding binnen de regeling

Figuur 9 - Ontwikkelprincipes in de dorpen

3.5 Velden

afbeelding binnen de regeling

Beschrijving

De velden, ook wel kransakkers of bolle akkers genoemd, behoren tot de oudste bouwlanden van de gemeente en zijn daardoor van groot cultuurhistorisch belang. Ze zijn gelegen op de hogere zandgronden, zoals het Eiland van Weert, en kenmerken zich door hun bolle ligging en het sterke contrast tussen het open veld en de gesloten rand, die vaak bestaat uit bomenrijen langs de aangrenzende wegen. In het open veld komen, met uitzondering van een solitaire boom nabij een kruising van struinpaden, geen andere landschapselementen voor.

Rondom het veld is op sommige plaatsen de karakteristieke (lint-) bebouwing te vinden, zowel aan de binnen- als de buitenzijde van het veld. Vaak is het kavel van historische bebouwing omkaderd door opgaand groen, wat bijdraagt aan het gesloten karakter van de rand.

Voor de ruimtelijke herkenbaarheid van het veld is het van essentieel belang om het contrast tussen de karakteristieke open bolle akker en de gesloten rand van dit cultuurhistorisch waardevolle landschapstype zoveel mogelijk te behouden, te versterken en te herstellen. Naast de openheid is ook de krans van bebouwing en de leesbaarheid van de historische linten rondom het veld belangrijk voor het behoud van het karakter van het gebied.

Voorbeeldgebieden:

  • Dijkerakker;

  • Laarakker.

Kenmerken

Aanwezige (ruimtelijke) karakteristieken

  • Bolle ligging van de bouwlanden;

  • Hoger gelegen t.o.v. omliggend gebied;

  • Dikke humeuze bovenlaag op zandgrond;

  • Historische occupatiepatronen aanwezig in de vorm van linten;

  • (Laan)beplanting langs wegen.

Structuurdragers

Onmisbare dragende elementen voor de (ruimtelijke) leesbaarheid

  • Laanbeplanting langs de wegen;

  • Historische wegen (met lintbebouwing).

Kwaliteiten

Beleving en waardering van de ruimtelijke karakteristieken

  • Contrastrijk door het open middengebied en verdichte rand;

  • Cultuurhistorisch zeer waardevol;

  • Kleinschalige en karakteristieke wegen;

  • Aantrekkelijk recreatief uitloopgebied;

  • Hoge archeologische waarde.

Weerter Waarden

Waarden die staan voor de eigenheid van Weert

  • Wisselwerking tussen en leesbaarheid van de cultuurhistorische waarden, openheid, molenbiotoop, beplantingstype en bebouwingstype.

afbeelding binnen de regeling

Ontwikkelprincipes

Cultuurhistorie en erfgoed

  • Cultuurhistorische kwaliteiten (historische patronen, erfgoed, etc.) zijn gewaarborgd en beleefbaar;

  • Cultuurhistorisch erfgoed wordt als identiteitsdrager ingezet bij gebiedsontwikkeling;

  • In historische waardevolle en beschermde zonering blijft de stedenbouwkundige structuur herkenbaar en wordt de kwaliteit van de stedenbouwkundige ruimte en de omgeving versterkt;

  • Bij historische waardevolle bouwwerken en binnen beschermde zoneringen blijft de authenticiteit van het bouwwerk en de samenhang in het gevelbeeld bij wijzigingen (verbouw, reclame, restauratie) gehandhaafd, hersteld of versterkt.

Architectonische kwaliteit

  • Ongeacht de stijl of de aan het ontwerp ten grondslag liggende architectuuropvatting is er sprake van een bouwwerk dat in typologie, vorm en schaal bijdraagt aan de kwaliteit van zijn omgeving;

  • Kleur en materiaalgebruik zijn in overeenstemming met het karakter van het ontwerp en dragen bij aan de kwaliteit van de omgeving;

  • Het bouwwerk draagt bij aan het herkenbaar maken van de stedenbouwkundige structuur en versterkt de kwaliteit van de stedenbouwkundige ruimte;

  • Commerciële uitingen zijn ondergeschikt aan aanwezige omgevingskwaliteiten;

  • Technische installaties zijn opgenomen in de architectuur.

Stedenbouwkundige kwaliteit

  • De stedenbouwkundige en architectonische kwaliteit en principes van het landschapstype zijn leidend in typologie, schaal en verschijningsvorm;

  • Waarborg de karakteristieken van het perceel;

  • Bij een gebiedsontwikkeling worden de beschreven kaders op basis van een gebiedsvisie aangevuld met specifieke kaders en een beeldkwaliteitsplan;

  • Zorg bij toevoeging van bebouwing voor een compacte clustering, waarbij de hiërarchie van de oorspronkelijke bebouwing gerespecteerd wordt door deze bijvoorbeeld op de voorgrond te houden t.o.v. de toevoeging;

  • Ontwikkel nieuwe bebouwing passend bij de maat en schaal van de bestaande bebouwing;

  • Houd met de ontwikkeling afstand tot aanwezige huisweides, moestuinen of andere kleinschalige agrarische functies.

Archeologische waarden

  • Maak, waar mogelijk en relevant, archeologische vondsten zichtbaar in het landschap;

  • Behoud archeologische vondsten en structuren zoveel mogelijk in situ;

  • Zet archeologisch erfgoed in als identiteitsdrager bij gebiedsontwikkelingen.

Landschappelijke waarden en kwaliteit

  • Versterk het contrast tussen de (semi-)gesloten rand en het open veld;

  • Cultuurhistorische en kwalitatieve groenstructuren zijn gewaarborgd en beleefbaar;

  • De bestaande bolling van de bolle akkers blijft behouden en wordt niet afgedekt en/of vergraven;

  • Behoud zichten naar het open middengebied en respecteer zichtlijnen naar oriëntatiepunten (kerktorens, molens, beeldbepalende solitaire bomen, etc.);

  • Behoud de samenhang met de andere open ruimtes van de velden;

  • Houd de bolle akkers vrij van bebouwing;

  • Waarborg de openheid van de velden door het stimuleren van grondgebonden teelten, passend bij de kenmerken van het landschapstype (graan, bonen, etc.);

  • Zet in op de aanplant van erfbeplanting rondom bestaande woningen passend bij de karakteristiek van de velden.

afbeelding binnen de regeling

Figuur 10 - Ontwikkelprincipes in de velden

3.6 Kampen

afbeelding binnen de regeling

Beschrijving

Aangrenzend aan de velden bevinden zich de kampen, die net als de velden deel uitmaken van het oude cultuurland en daarmee van grote cultuurhistorische waarde zijn. De kampen liggen op de overgang van de hoogste en droogste delen van de zandgronden naar de jonge heideontginningen en beekdalen. Van oudsher zijn de kampen gekenmerkt door hun kleinschaligheid en afwisselende landgebruik. Zo vinden we er oude graslanden, akkers, vochtigere hooilanden op de lagere delen van de kampen en houtwallen en hagen om het vee te scheiden en zandverstuivingen vanuit de voormalige ‘woeste gronden’ (tegenwoordig grotendeels ontgonnen) tegen te gaan.

Hoewel de kampen zich van oudsher dus kenmerken door hun kleinschaligheid en afwisselende landgebruik, zijn veel van deze kenmerken gedurende de laatste decennia verdwenen als gevolg van de schaalvergroting van de landbouw. Wel vinden we in de kampen nog steeds een licht glooiend reliëf en het kenmerkende kronkelige wegenpatroon met op enkele plekken een soort ‘driestructuur’, vergelijkbaar met een dries*, waar drie wegen zich kruisen rondom een driehoekig perceel in het midden.

Voor de ruimtelijke herkenbaarheid van de kampen is het van essentieel belang de kleinschaligheid en het afwisselende landgebruik zoveel mogelijk te behouden, te versterken en te herstellen. Ook zou er ingezet moeten worden op het versterken van de natuurwaarden in relatie tot de verschillende aanwezige gradiënten.

Voorbeeldgebieden:

  • Omgeving Sint Sebastiaanskapel;

  • Omgeving Op ’t Torentje.

*Het betreft hier geen ‘brink’, die meer kenmerkend is voor andere delen van Nederland

Kenmerken

Aanwezige (ruimtelijke) karakteristieken

  • Vlak tot licht glooiend reliëf;

  • Dikke humeuze bovenlaag op zandgrond;

  • Kronkelend wegenpatroon met op enkele plekken een ‘driestructuur’;

  • Historische occupatiepatronen aanwezig in de vorm van linten;

  • Aanwezigheid van kleinschalige landschapselementen.

Structuurdragers

Onmisbare dragende elementen voor de (ruimtelijke) leesbaarheid

  • Kleinschalige landschapselementen;

  • Historische kronkelige wegen (met lintbebouwing);

  • Waterlopen (ontwateringssloten).

Kwaliteiten

Beleving en waardering van de ruimtelijke karakteristieken

  • Contrastrijk en attractief landschap door afwisseling van gebruik en landschapselementen;

  • Cultuurhistorisch zeer waardevol;

  • Aantrekkelijk recreatief uitloopgebied;

  • Hoge archeologische waarde.

Weerter Waarden

Waarden die staan voor de eigenheid van Weert

  • Wisselwerking tussen kleinschalige invulling van het landschap en de aanwezige bebouwing.

afbeelding binnen de regeling

Ontwikkelprincipes

Cultuurhistorie en erfgoed

  • Cultuurhistorische kwaliteiten (historische patronen, kerkepaden, brandkuilen, erfgoed, etc.) zijn gewaarborgd en beleefbaar;

  • Cultuurhistorisch erfgoed wordt als identiteitsdrager ingezet bij gebiedsontwikkeling;

  • In historische waardevolle en beschermde zonering blijft de stedenbouwkundige structuur herkenbaar en wordt de kwaliteit van de stedenbouwkundige ruimte en de omgeving versterkt;

  • Bij historische waardevolle bouwwerken en binnen beschermde zoneringen blijft de authenticiteit van het bouwwerk en de samenhang in het gevelbeeld bij wijzigingen (verbouw, reclame, restauratie) gehandhaafd, hersteld of versterkt;

  • Stimuleer de aanleg en versterking van het recreatief langzaamverkeernetwerk en behoud en herstel oude werk- en kerkenpaden als onderdeel van het recreatief netwerk.

Architectonische kwaliteit

  • Ongeacht de stijl of de aan het ontwerp ten grondslag liggende architectuuropvatting is er sprake van een bouwwerk dat in typologie, vorm en schaal bijdraagt aan de kwaliteit van zijn omgeving;

  • Kleur en materiaalgebruik zijn in overeenstemming met het karakter van het ontwerp en dragen bij aan de kwaliteit van de omgeving;

  • Het bouwwerk draagt bij aan het herkenbaar maken van de stedenbouwkundige structuur en versterkt de kwaliteit van de stedenbouwkundige ruimte;

  • Commerciële uitingen zijn ondergeschikt aan aanwezige omgevingskwaliteiten;

  • Technische installaties zijn opgenomen in de architectuur.

Stedenbouwkundige kwaliteit

  • De stedenbouwkundige en architectonische kwaliteit en principes van het landschapstype zijn leidend in typologie, schaal en verschijningsvorm;

  • Ontwikkel nieuwe bebouwing zoveel als mogelijk op de hogere gebiedsdelen

  • Vermijd grootschalige bedrijvigheid in de kleinschalige landschapsstructuur van de kampen.

  • Waarborg de karakteristieken van het perceel;

  • Bij een gebiedsontwikkeling worden de beschreven kaders op basis van een gebiedsvisie aangevuld met specifieke kaders en een beeldkwaliteitsplan;

  • Zorg bij toevoeging van bebouwing voor een compacte clustering, waarbij de hiërarchie van de oorspronkelijke bebouwing gerespecteerd wordt door deze bijvoorbeeld op de voorgrond te houden t.o.v. de toevoeging;

  • Ontwikkel nieuwe bebouwing passend bij de maat en schaal van de bestaande bebouwing;

  • Houd met de ontwikkeling afstand tot aanwezige huisweides, moestuinen of andere kleinschalige agrarische functies;

  • Maak gebruik van de groene kaders van de kampen voor het positioneren van nieuwe ruimtelijke ontwikkelingen, zoals kleinschalige energieopwekking, en versterk met de ontwikkeling het bestaande raamwerk.

Archeologische waarden

  • Maak, waar mogelijk en relevant, archeologische vondsten zichtbaar in het landschap;

  • Behoud archeologische vondsten en structuren zoveel mogelijk in situ;

  • Zet archeologisch erfgoed in als identiteitsdrager bij gebiedsontwikkelingen.

Landschappelijke waarden en kwaliteit

  • Versterk het schaalverschil met de velden door het stimuleren van kleinschaligheid door de aanplant van landschapselementen om hiermee de kenmerkende gelaagdheid van de kampen te behouden of te herstellen;

  • Cultuurhistorische en kwalitatieve groenstructuren zijn gewaarborgd en beleefbaar;

  • Behoud het bestaande licht glooiende reliëf van de kampen en dek of vergraaf het reliëf niet;

  • Behoud doorkijkjes vanaf de openbare wegen tussen de beplanting en bebouwing op de open kamp;

  • Markeer markante plekken, zoals splitsingen van wegen, met de aanplant van een solitair of boomgroepen;

  • Zet in op de aanplant van erfbeplanting rondom bestaande woningen passend bij de karakteristiek van de kampen;

  • Stimuleer een divers en gevarieerd agrarisch gebruik van de kampen, bij voorkeur grondgebonden teelten in de vorm van akkerbouw of tuinbouw en behoud de oude graslanden als grazige vlaktes voor extensief gebruik;

  • Gebruik de lagergelegen gebiedsdelen voor een natuurlijke vorm van infiltratie.

afbeelding binnen de regeling

Figuur 11 - Ontwikkelprincipes in de kampen

3.7 Droge heideontginning

afbeelding binnen de regeling

Beschrijving

De droge heideontginning vinden we op de hogere en drogere delen van de voormalige ‘woeste gronden’, dat wat ooit deel uitmaakte van het uitgestrekte heidegebied rondom het Eiland van Weert. Door de natuurlijke omstandigheden, de geringe behoefte aan landbouwgrond en het ontbreken van geschikte landbouwtechnieken, begon de ontginning van deze gronden pas aan het begin van de 20e eeuw. Deze vond veelal plaats op rationele wijze, met rechte wegen en sloten, kleinschalige hoekige percelen en een groen raamwerk van bomenrijen en andere lineaire landschapselementen.

Tijdens de naoorlogse ruilverkavelingen werd een groot deel van dit karakteristieke halfopen landschap vervangen door een efficiëntere, grootschaligere inrichting. Dit ging gepaard met de aanleg van grotere kavels en een nieuw, eveneens grootschaliger groen raamwerk. Ook nam de bebouwing toe: zo groeide het gehucht Altweerterheide in deze periode uit tot een volwaardige kern.

Hoewel het huidige agrarische gebruik grotendeels aansluit bij de ruimtelijke kenmerken van de droge heideontginning, kan de herkenbaarheid – en daarmee het onderscheid met de meer open natte heideontginningen – worden versterkt. Dit kan onder meer door herstel van het oorspronkelijke groene raamwerk en het stimuleren van een gevarieerder, minder monotoon landgebruik. Dergelijke maatregelen dragen bovendien bij aan het vergroten van de natuurwaarden in het gebied.

Voorbeeldgebieden:

  • Omgeving Schoordijk;

  • Omgeving Spikke.

Kenmerken

Aanwezige (ruimtelijke) karakteristieken

  • Vlak met soms lichte glooiingen;

  • Kunstmatige lage grondwaterstanden en diepe sloten;

  • Rationele, regelmatige blokverkaveling;

  • Verspreide, vrijstaande bebouwing;

  • Laanbeplanting en bomenrijen langs rechte wegen.

Structuurdragers

Onmisbare dragende elementen voor de (ruimtelijke) leesbaarheid

  • Bomenlanen langs rechte wegen;

  • Kunstmatige ontwateringssloten.

Kwaliteiten

Beleving en waardering van de ruimtelijke karakteristieken

  • Openheid;

  • Grootschalig landschap zorgt voor contrast met het oude cultuurland;

  • Productief agrarisch land.

Weerter Waarden

Waarden die staan voor de eigenheid van Weert

  • Wisselwerking tussen aangrenzende randen, openheid en de aanwezigheid van richting en as van ontginningsassen.

afbeelding binnen de regeling

Ontwikkelprincipes

Cultuurhistorie en erfgoed

  • Cultuurhistorische kwaliteiten (historische patronen, erfgoed, etc.) zijn gewaarborgd en beleefbaar;

  • Cultuurhistorisch erfgoed wordt als identiteitsdrager ingezet bij gebiedsontwikkeling;

  • In historische waardevolle en beschermde zonering blijft de stedenbouwkundige structuur herkenbaar en wordt de kwaliteit van de stedenbouwkundige ruimte en de omgeving versterkt;

  • Bij historische waardevolle bouwwerken en binnen beschermde zoneringen blijft de authenticiteit van het bouwwerk en de samenhang in het gevelbeeld bij wijzigingen (verbouw, reclame, restauratie) gehandhaafd, hersteld of versterkt.

Architectonische kwaliteit

  • Ongeacht de stijl of de aan het ontwerp ten grondslag liggende architectuuropvatting is er sprake van een bouwwerk dat in typologie, vorm en schaal bijdraagt aan de kwaliteit van zijn omgeving;

  • Kleur en materiaalgebruik zijn in overeenstemming met het karakter van het ontwerp en dragen bij aan de kwaliteit van de omgeving;

  • Het bouwwerk draagt bij aan het herkenbaar maken van de stedenbouwkundige structuur en versterkt de kwaliteit van de stedenbouwkundige ruimte;

  • Bouw bij ontwikkeling niet historiserend en voorzie de bebouwing van een stevige en strakke erfbeplanting;

  • Commerciële uitingen zijn ondergeschikt aan aanwezige omgevingskwaliteiten;

  • Technische installaties zijn opgenomen in de architectuur.

Stedenbouwkundige kwaliteit

  • De stedenbouwkundige en architectonische kwaliteit en principes van het landschapstype zijn leidend in typologie, schaal en verschijningsvorm;

  • Waarborg de karakteristieken van het perceel;

  • Bij een gebiedsontwikkeling worden de beschreven kaders op basis van een gebiedsvisie aangevuld met specifieke kaders en een beeldkwaliteitsplan;

  • Zoek bij ontwikkeling van bebouwing naar mogelijkheden binnen de linten, waarbij vanaf de openbare weg tussen de gebouwen door het zicht op de achterliggende landbouwgronden mogelijk moet blijven;

  • Ontwikkel nieuwe bebouwing passend bij de maat en schaal van de bestaande bebouwing;

  • Houd met de ontwikkeling afstand tot de lanen langs de rationele wegen om gaten in het raamwerk te voorkomen;

  • Ontwikkel grote, aan landbouw gerelateerde, huiskavels;

  • Maak gebruik van de groene kaders van de droge heideontginning voor het positioneren van nieuwe ruimtelijke ontwikkelingen, zoals grootschalige energieopwekking, en versterk met de ontwikkeling het bestaande raamwerk.

Archeologische waarden

  • Maak, waar mogelijk en relevant, archeologische vondsten zichtbaar in het landschap;

  • Behoud archeologische vondsten en structuren zoveel mogelijk in situ;

  • Zet archeologisch erfgoed in als identiteitsdrager bij gebiedsontwikkelingen.

Landschappelijke waarden en kwaliteit

  • Versterk het schaalverschil met het oude cultuurland en de beekdalen door het behoud van de openheid van de droge heideontginning;

  • Behoud het rationele karakter van de droge heideontginning en voorkom de aanplant van organische vormen;

  • Cultuurhistorische en kwalitatieve groenstructuren zijn gewaarborgd en beleefbaar;

  • Versterk het landschappelijk raamwerk van lineaire structuren (singels, lanen, etc.) langs wegen en kavelgrenzen;

  • Behoud de karakteristieke openheid van de droge heideontginning;

  • Zet in op de aanplant van erfbeplanting rondom bestaande woningen of agrarische gebouwen en zorg hiermee voor een landschappelijke, robuuste inpassing;

  • Stimuleer een minder monotoon landgebruik door binnen het raster van de lineaire landschapselementen verschillende vormen van agrarische mogelijk te maken;

  • Gebruik de lagergelegen gebiedsdelen voor een natuurlijke vorm van infiltratie.

afbeelding binnen de regeling

Figuur 12 - Ontwikkelprincipes in de droge heideontginning

3.8 Natte heideontginning

afbeelding binnen de regeling

Beschrijving

Evenals de droge heideontginning, maakte de natte heideontginning voor een lange tijd deel uit van het uitgestrekte heidegebied rondom het Eiland van Weert. De natte heideontginning is lagergegelegen dan de droge heideontginning en grenst daardoor vaak aan één van de vele beekdalen die de gemeente rijk is. De typische natte heideontginning is grootschaliger en planmatiger van opzet, rijk aan waterlopen en door zijn mate van openheid vergelijkbaar met de nabijgelegen veenontginningen.

De naoorlogse ruilverkaveling heeft ook in de natte heideontginning zijn weerslag gehad. Percelen werden verder vergroot en efficiënter ingericht, terwijl het verdwijnen van bomenrijen het landschap nog meer open maakte. In tegenstelling tot de droge heideontginning bleef de uitbreiding van bebouwing hier echter beperkt; het aantal nieuwe boerderijen en woningen nam relatief weinig toe.

Door de combinatie van sloten, rechte wegen, grootschalige graslanden, bomenrijen en het ontbreken van bebouwing, kent het gebied een zekere ruimtelijke schoonheid. Toch kunnen de ruimtelijke leesbaarheid en natuurwaarden van het landschap versterkt worden door het herstel of ‘afronden’ van de kenmerkende lineaire landschapselementen, het natuurlijker inrichten van de kunstmatige ontwateringssloten en het vergroten van het waterbergend vermogen van het gebied.

Voorbeeldgebieden:

  • Omgeving Roermondseweg;

  • Op den Dijk;

  • Omgeving Vrakker.

Kenmerken

Aanwezige (ruimtelijke) karakteristieken

  • Vlak met soms lichte glooiingen;

  • Kunstmatige lage grondwaterstanden en diepe sloten;

  • Rationele, regelmatige blokverkaveling;

  • Verspreide, vrijstaande bebouwing;

  • Laanbeplanting en bomenrijen langs rechte wegen.

Structuurdragers

Onmisbare dragende elementen voor de (ruimtelijke) leesbaarheid

  • Bomenlanen langs rechte wegen;

  • Kunstmatige ontwateringssloten.

Kwaliteiten

Beleving en waardering van de ruimtelijke karakteristieken

  • Openheid;

  • Nog grootschaliger dan de droge heideontginning;

  • Productief agrarisch land;

  • Waardevol weidevogelgebied.

Weerter Waarden

Waarden die staan voor de eigenheid van Weert

  • Wisselwerking tussen de drogere (hogere) en nattere (lagere) delen, zichtbaar in type beplanting en landgebruik.

afbeelding binnen de regeling

Ontwikkelprincipes

Cultuurhistorie en erfgoed

  • Cultuurhistorische kwaliteiten (historische patronen, erfgoed, etc.) zijn gewaarborgd en beleefbaar;

  • Cultuurhistorisch erfgoed wordt als identiteitsdrager ingezet bij gebiedsontwikkeling;

  • In historische waardevolle en beschermde zonering blijft de stedenbouwkundige structuur herkenbaar en wordt de kwaliteit van de stedenbouwkundige ruimte en de omgeving versterkt;

  • Bij historische waardevolle bouwwerken en binnen beschermde zoneringen blijft de authenticiteit van het bouwwerk en de samenhang in het gevelbeeld bij wijzigingen (verbouw, reclame, restauratie) gehandhaafd, hersteld of versterkt.

Architectonische kwaliteit

  • Ongeacht de stijl of de aan het ontwerp ten grondslag liggende architectuuropvatting is er sprake van een bouwwerk dat in typologie, vorm en schaal bijdraagt aan de kwaliteit van zijn omgeving;

  • Kleur en materiaalgebruik zijn in overeenstemming met het karakter van het ontwerp en dragen bij aan de kwaliteit van de omgeving;

  • Het bouwwerk draagt bij aan het herkenbaar maken van de stedenbouwkundige structuur en versterkt de kwaliteit van de stedenbouwkundige ruimte;

  • Bouw bij ontwikkeling niet historiserend en voorzie de bebouwing van een stevige en strakke erfbeplanting;

  • Commerciële uitingen zijn ondergeschikt aan aanwezige omgevingskwaliteiten;

  • Technische installaties zijn opgenomen in de architectuur.

Stedenbouwkundige kwaliteit

  • De stedenbouwkundige en architectonische kwaliteit en principes van het landschapstype zijn leidend in typologie, schaal en verschijningsvorm;

  • Waarborg de karakteristieken van het perceel;

  • Bij een gebiedsontwikkeling worden de beschreven kaders op basis van een gebiedsvisie aangevuld met specifieke kaders en een beeldkwaliteitsplan;

  • Zoek bij ontwikkeling van bebouwing naar mogelijkheden binnen de linten, waarbij vanaf de openbare weg tussen de gebouwen door het zicht op de achterliggende landbouwgronden mogelijk moet blijven;

  • Ontwikkel nieuwe bebouwing passend bij de maat en schaal van de bestaande bebouwing;

  • Houd met de ontwikkeling afstand tot de lanen langs de rationele wegen om gaten in het raamwerk te voorkomen;

  • Ontwikkel grote, aan landbouw gerelateerde, huiskavels;

  • Maak gebruik van de groene kaders van de natte heideontginning voor het positioneren van nieuwe ruimtelijke ontwikkelingen, zoals grootschalige energieopwekking, en versterk met de ontwikkeling het bestaande raamwerk.

Archeologische waarden

  • Maak, waar mogelijk en relevant, archeologische vondsten zichtbaar in het landschap;

  • Behoud archeologische vondsten en structuren zoveel mogelijk in situ;

  • Zet archeologisch erfgoed in als identiteitsdrager bij gebiedsontwikkelingen.

Landschappelijke waarden en kwaliteit

  • Versterk het schaalverschil met het oude cultuurland en de beekdalen door het behoud van de openheid van de natte heideontginning;

  • Behoud het rationele karakter van de natte heideontginning en voorkom de aanplant van organische vormen;

  • Cultuurhistorische en kwalitatieve groenstructuren zijn gewaarborgd en beleefbaar;

  • Versterk het landschappelijk raamwerk van lineaire structuren (singels, lanen, etc.) langs wegen en kavelgrenzen;

  • Behoud de karakteristieke openheid van de natte heideontginning en de kenmerkende grootschalige weiden als grote, aaneengesloten open weidevogelgebieden;

  • Zet in op de aanplant van erfbeplanting rondom bestaande woningen of agrarische gebouwen, maar voorkom de aanplant van schaamgroen om onaantrekkelijke bebouwing uit het zicht te onttrekken;

  • Stimuleer een minder monotoon landgebruik door binnen het raster van de lineaire landschapselementen verschillende vormen van agrarische mogelijk te maken;

  • Zet in op vernatting van de natte heideontginning, met name rondom de ontwateringssloten, en richt deze zones natuurlijk in.

afbeelding binnen de regeling

Figuur 13 - Ontwikkelprincipes in de natte heideontginning

3.9 Beekdal

afbeelding binnen de regeling

Beschrijving

De beekdalen vinden we op verschillende plekken in de gemeente. De beekdalen zijn door hun doorgaande natte structuur belangrijke structuurdragers van het landschap. Dit geldt niet alleen voor de ruimtelijke samenhang en leesbaarheid van het gebied, maar ook voor hun functie als ecologische verbindingszones en recreatieve structuren.

Er kan onderscheid worden gemaakt tussen twee typen waterlopen: de natuurlijke beekloop en de kunstmatige ontwateringsstructuur, die is aangelegd voor de afwatering van een gebied ten behoeve van agrarisch gebruik. Natuurlijke beeklopen zijn vaak te herkennen aan hun meanderende verloop, terwijl ontwateringsstructuren een meer functioneel en rechtlijnig karakter hebben. Dit onderscheid is doorgaans ook terug te zien in de naamgeving: natuurlijke beeklopen eindigen vaak op ‘-beek’, terwijl ontwateringsstructuren vaker eindigen op ‘-peel’ of ‘-lossing’.

De beekdalen – met name de hoger gelegen gronden binnen de natuurlijke beekdalen – kennen een rijke bewoningsgeschiedenis en zijn daardoor cultuurhistorisch en archeologisch van grote waarde. Zo vinden we er bijvoorbeeld resten van oude Romeinse bruggen en historische hoeves. Ook zijn de beekdalen, met name de verschillende moerassen en moerasbossen, van grote ecologische waarde.

Hoewel de beekdalen dus van grote waarde zijn, spelen er ook diverse ruimtelijke en ecologische opgaven. Er zijn uitdagingen op het gebied van het tegengaan van verdroging, het vasthouden en vertraagd afvoeren van water, het zichtbaar maken van cultuurhistorisch erfgoed en het stimuleren van toekomstbestendig agrarisch gebruik. Voor de ruimtelijke leesbaarheid van het beekdal is het bovendien essentieel om te werken aan het behoud, de versterking en het herstel van landschappelijke kenmerken die passen bij één van de drie typen beekdalen: het kamertjesdal, het bosdal of het open daltype.

Voorbeeldgebieden:

  • Leukerbeek;

  • Tungelroyse Beek.

afbeelding binnen de regeling

Kenmerken

Aanwezige (ruimtelijke) karakteristieken

  • Relatief hoge grondwaterstanden;

  • Onregelmatige verkaveling, vaak haaks op de beekloop;

  • Voornamelijk in gebruik als weide of hooiland;

  • De natuurlijke beken kennen een meanderend karakter;

  • De ontwateringsstructuren kennen een cultuurlijk karakter.

Structuurdragers

Onmisbare dragende elementen voor de (ruimtelijke) leesbaarheid

  • (Natuurlijke) beekloop (met beekbegeleidende vegetatie);

  • Wegenstructuur parallel aan de beekloop.

Kwaliteiten

Beleving en waardering van de ruimtelijke karakteristieken

  • Hoge natuurwaarde;

  • Veelal vrij van bebouwing;

  • Archeologisch en cultuurhistorisch zeer waardevol gebied;

  • Recreatief uitloopgebied.

Weerter Waarden

Waarden die staan voor de eigenheid van Weert

  • Wisselwerking tussen natuurwaarde, archeologische rijkdom en recreatieve routestructuren;

  • Afwisseling tussen natuurlijke beeklopen, afwateringsstructuren en doorstroommoerassen.

Ontwikkelprincipes

Cultuurhistorie en erfgoed

  • Cultuurhistorische kwaliteiten (historische patronen, erfgoed, etc.) zijn gewaarborgd en beleefbaar;

  • Cultuurhistorisch erfgoed wordt als identiteitsdrager ingezet bij gebiedsontwikkeling;

  • In historische waardevolle en beschermde zonering blijft de stedenbouwkundige structuur herkenbaar en wordt de kwaliteit van de stedenbouwkundige ruimte en de omgeving versterkt;

  • Bij historische waardevolle bouwwerken en binnen beschermde zoneringen blijft de authenticiteit van het bouwwerk en de samenhang in het gevelbeeld bij wijzigingen (verbouw, reclame, restauratie) gehandhaafd, hersteld of versterkt.

Architectonische kwaliteit

  • Ongeacht de stijl of de aan het ontwerp ten grondslag liggende architectuuropvatting is er sprake van een bouwwerk dat in typologie, vorm en schaal bijdraagt aan de kwaliteit van zijn omgeving;

  • Kleur en materiaalgebruik zijn in overeenstemming met het karakter van het ontwerp en dragen bij aan de kwaliteit van de omgeving;

  • Het bouwwerk draagt bij aan het herkenbaar maken van de stedenbouwkundige structuur en versterkt de kwaliteit van de stedenbouwkundige ruimte;

  • Commerciële uitingen zijn ondergeschikt aan aanwezige omgevingskwaliteiten;

  • Technische installaties zijn opgenomen in de architectuur.

Stedenbouwkundige kwaliteit

  • De stedenbouwkundige en architectonische kwaliteit en principes van het landschapstype zijn leidend in typologie, schaal en verschijningsvorm;

  • Waarborg de karakteristieken van het perceel;

  • Bij een gebiedsontwikkeling worden de beschreven kaders op basis van een gebiedsvisie aangevuld met specifieke kaders en een beeldkwaliteitsplan;

  • Zorg bij toevoeging van bebouwing voor een compacte clustering, waarbij de hiërarchie van de oorspronkelijke bebouwing gerespecteerd wordt door deze bijvoorbeeld op de voorgrond te houden t.o.v. de toevoeging;

  • Ontwikkel nieuwe bebouwing passend bij de maat en schaal van de bestaande bebouwing;

  • Verwijder, waar mogelijk, bebouwing die het functioneren van het beekdal verstoort.

Archeologische waarden

  • Maak, waar mogelijk en relevant, archeologische vondsten zoals de Romeinse brug zichtbaar in het landschap;

  • Behoud archeologische vondsten en structuren zoveel mogelijk in situ;

  • Zet archeologisch erfgoed in als identiteitsdrager bij gebiedsontwikkelingen.

Landschappelijke waarden en kwaliteit

  • Richt het beekdal in als herkenbare structuur (kamertjes-, bos- of open daltype) en realiseer natuurlijke overgangen tussen de verschillende habitats;

  • Cultuurhistorische en kwalitatieve groenstructuren zijn gewaarborgd en beleefbaar;

  • Wees bewust van de waarde van het beekdal als structuurdrager van het landschap en geef de continuïteit van de beekdalstructuur voorrang bij het kruisen van andere structuurdragers;

  • Stimuleer en bied ruimte aan extensief agrarisch gebruik in en aangrenzend aan het beekdal als onderdeel van de agrarische transitie;

  • Stimuleer de aanleg van landschapselementen (hagen, houtwallen, singels, knotbomenrijen, broek- en moerasbossen) passend bij het karakter van het beekdal;

  • Draag bij aan het vertraagd afvoeren van water door het hermeanderen van een natuurlijke beekloop of door het nemen van andere maatregelen zoals het plaatsen van stuwtjes in kunstmatige afwateringsstructuren;

  • Versterk de ecologische waarde van de kunstmatige afwateringsstructuur door bijvoorbeeld het talud te verflauwen, maar behoud hierbij het functionele karakter.

afbeelding binnen de regeling

Figuur 14 - Ontwikkelprincipes in het beekdal

3.10 Bos- en mozaïeklandschap

afbeelding binnen de regeling

Beschrijving

Het bos- en mozaïeklandschap in de gemeente Weert bestaat hoofdzakelijk uit twee typen bos: de droge bossen op voormalige heidevelden en stuifzanden, en de vochtige broekbossen in venige en moerassige gebieden. Deze bossen bevinden zich op locaties waar agrarisch landgebruik vanwege natuurlijke omstandigheden nauwelijks mogelijk was, waardoor bosaanplant vaak de enige rendabele optie vormde.

De droge bossen zijn aan het begin van de 20e eeuw aangeplant, voornamelijk voor de mijnbouw of ter voorkoming van verstuiving van de schrale zandgronden. De overblijfselen van deze productiebossen – veelal gesloten naaldbossen met grove den, berk en zomereik – hebben slechts een beperkte ecologische waarde. Tussen deze bossen bevinden zich nog actieve stuifduinen, enkele grafheuvels en zogenoemde ‘boskamers’, waar verspreide bebouwing vaak samengaat met kleinschalig agrarisch gebruik.

Ook ligt hier het grootste urnenveld van Noordwest-Europa. Door hun gevoeligheid voor droogte staan de droge bossen onder toenemende druk als gevolg van klimaatverandering. Het omvormen van monotone naaldbossen naar gemengde, gelaagde en ecologisch waardevolle loofbossen behoort dan ook tot de belangrijkste opgaven voor deze gebieden.

Het grootste deel van de vochtige bossen heeft eveneens een oorsprong als productiebos. Er komen onder andere populierenbossen met een monotoon karakter voor, evenals hakhoutbossen waar het traditionele bosbeheer is stilgevallen of sterk is geëxtensiveerd. Veel van deze bossen zijn van oorsprong ondoordringbaar en drassig, met een grote structuurvariatie waar opgaande bosdelen worden afgewisseld met open plekken en struweel. Dankzij de combinatie van hoge waterstanden en soortenrijkdom hebben de vochtige bossen een grotere ecologische waarde dan de droge bossen. Toch staan ook de vochtige bossen onder druk, zowel door klimaatverandering als door menselijk ingrijpen. Het tegengaan van verdroging is essentieel en vraagt om maatregelen zoals het verwijderen van ontwateringssloten en het vergroten van de waterbergingscapaciteit. Daarnaast is het behouden, versterken en herstellen van de aanwezige gradiënt, van droog naar nat, essentieel voor de ruimtelijke leesbaarheid.

Voorbeeldgebieden:

  • Weerter- en Budelerbergen (droog);

  • Wijffelterbroek (vochtig).

afbeelding binnen de regeling

Kenmerken

Aanwezige (ruimtelijke) karakteristieken

  • Zeer droog of zeer nat met grote verschillen in gradiënt;

  • Van oudsher meest lastige gebieden om te ontginnen;

  • Overblijfselen van productie- en hakhoutbossen;

  • Bospaden aawezig, veelal orthogonaal en rationeel;

  • Incidentele losse bebouwing aanwezig in boskamers.

Structuurdragers

Onmisbare dragende elementen voor de (ruimtelijke) leesbaarheid

  • Aaneenschakeling van bosstructuren.

Kwaliteiten

Beleving en waardering van de ruimtelijke karakteristieken

  • Visueel zeer aantrekkelijk door sterke contrasten tussen open en besloten gebieden, met name in de landschapskamers;

  • Hoge natuurwaarden, met name het vochtige bos;

  • Hoge recreatieve waarden;

  • Cultuurhistorisch en archeologisch zeer waardevol.

Weerter Waarden

Waarden die staan voor de eigenheid van Weert

  • Wisselwerking tussen natuur, cultuur en recreatieve waarden van de groene mantel en het bos- en mozaïeklandschap rondom het Eiland van Weert;

  • De wisselwerking tussen bebouwing en open ruimtes in de landschapskamers.

Ontwikkelprincipes

Cultuurhistorie en erfgoed

  • Cultuurhistorische kwaliteiten (historische patronen, erfgoed, etc.) zijn gewaarborgd en beleefbaar;

  • Cultuurhistorisch erfgoed wordt als identiteitsdrager ingezet bij gebiedsontwikkeling;

  • In historische waardevolle en beschermde zonering blijft de stedenbouwkundige structuur herkenbaar en wordt de kwaliteit van de stedenbouwkundige ruimte en de omgeving versterkt;

  • Bij historische waardevolle bouwwerken en binnen beschermde zoneringen blijft de authenticiteit van het bouwwerk en de samenhang in het gevelbeeld bij wijzigingen (verbouw, reclame, restauratie) gehandhaafd, hersteld of versterkt.

Architectonische kwaliteit

  • Ongeacht de stijl of de aan het ontwerp ten grondslag liggende architectuuropvatting is er sprake van een bouwwerk dat in typologie, vorm en schaal bijdraagt aan de kwaliteit van zijn omgeving;

  • Kleur en materiaalgebruik zijn in overeenstemming met het karakter van het ontwerp en dragen bij aan de kwaliteit van de omgeving;

  • Het bouwwerk draagt bij aan het herkenbaar maken van de stedenbouwkundige structuur en versterkt de kwaliteit van de stedenbouwkundige ruimte;

  • Commerciële uitingen zijn ondergeschikt aan aanwezige omgevingskwaliteiten;

  • Technische installaties zijn opgenomen in de architectuur.

Stedenbouwkundige kwaliteit

  • De stedenbouwkundige en architectonische kwaliteit en principes van het landschapstype zijn leidend in typologie, schaal en verschijningsvorm;

  • Waarborg de karakteristieken van het perceel;

  • Bij een gebiedsontwikkeling worden de beschreven kaders op basis van een gebiedsvisie aangevuld met specifieke kaders en een beeldkwaliteitsplan;

  • Beperk nieuwe bebouwing, maar zorg bij ontwikkeling voor toevoeging van bebouwing voor een compacte clustering, waarbij de hiërarchie van de oorspronkelijke bebouwing gerespecteerd wordt door deze bijvoorbeeld op de voorgrond te houden t.o.v. de toevoeging;

  • Ontwikkel nieuwe bebouwing passend bij de maat en schaal van de bestaande bebouwing;

  • Maak gebruik van de kamerstructuur van het droge bos- en mozaïeklandschap voor het positioneren van nieuwe ruimtelijke ontwikkelingen, zoals kleinschalige energieopwekking, en versterk met de ontwikkeling het bestaande raamwerk.

  • Houd met de ontwikkeling afstand tot aanwezige huisweides, moestuinen of andere kleinschalige agrarische functies.

Archeologische waarden

  • Maak, waar mogelijk en relevant, archeologische vondsten zichtbaar in het landschap;

  • Behoud archeologische vondsten en structuren zoveel mogelijk in situ;

  • Zet archeologisch erfgoed in als identiteitsdrager bij gebiedsontwikkelingen.

Landschappelijke waarden en kwaliteit

  • Behoud het onderscheid tussen het droge en vochtige bos- en mozaïeklandschap en herstel en versterk de gradiënten van nat naar droog en van open naar gesloten;

  • Behoud het contrast tussen de open ruimtes en de besloten bossen en voorkom de aanplant van open ruimtes met hoge gewassen;

  • Waarborg de openheid van de open ruimtes door het stimuleren van kruidenrijk grasland, passend bij de kenmerken van het landschapstype;

  • Herstel en versterk de schakering van moerassen, vennen en open water met aan de randen een mozaïek van kleinschalige open ruimtes;

  • Zet in op het stimuleren van erfbeplanting rond de spaarzaam aanwezige bebouwing;

  • Verhoog de bergingscapaciteit van het vochtig bos- en mozaïeklandschap en stimuleer het vertraagd afvoeren van water;

  • Heb extra aandacht voor de wisselwerking tussen bebouwing en open ruimtes in de boskamers.

afbeelding binnen de regeling

Figuur 15 - Ontwikkelprincipes in het bos- en mozaïeklandschap

4. Deelgebieden

Deelgebieden

Hoewel de ontwikkelprincipes uit hoofdstuk 3 al sturing geven aan ontwikkeling vanuit ruimtelijke eigenheid op het niveau van de gebiedstypologieën, kan er verdere sturing worden gegeven aan een ontwikkeling aan de hand van deelgebieden.

Zo doen bovenliggende documenten, zoals de Omgevingsvisie en Ruimtelijke Ontwikkelstrategie, al uitspraken over de hoofdrichting bij de ontwikkeling van een gebied, namelijk koesteren, inbreiden, transformeren of uitbreiden.

Vanuit de hoofdrichting, gebiedstypologieën, historische ontwikkeling, karakterisering, ruimtelijk voorkomen en programmatisch functioneren, is de gemeente in te delen in twintig verschillende deelgebieden (Figuur 17). Deze deelgebieden hebben betrekking op een bebouwd gebied, op een natuurlijk of agrarisch buitengebied of op een combinatie van de twee. Zo komen er in vrijwel elk deelgebied ook meerdere gebiedstypologieën voor en is de wisselwerking tussen de verschillende gebiedstypologieën in elk deelgebied dus van groot belang in de ruimtelijke eigenheid.

Voor elk deelgebied zijn de verschillende kenmerken, hoofdopgaven, kwaliteiten en structuurdragers geduidt. De terminologie van de kenmerken, kwaliteiten en structuurdragers volgt de lijn van het vorige hoofdstuk. De vierde term kan als volgt omschreven worden:

Hoofdopgave

De hoofdopgaven van een deelgebied geven duiding aan de bovenliggende programmatische verandering of aan de opgave die benodigd is voor het behoud, herstel of versterking van de ruimtelijke eigenheid.

Waardering

De tien thema’s van de OER beoordeling hebben gedurende het onderzoek en de analyse van de deelgebieden constant centraal gestaan. Deze thema’s en de beoordeling van de omgevingsvisie tonen de brede ambities van de gemeente Weert en is tot stand gekomen in samenwerking met verschillende stakeholders.

Het verschil tussen de waardering van de huidige situatie en de ambitie van de gemeente bepaald ook mede de ontwikkelrichting van het gebied en de hoofdopgaven. Daar waar een deelgebied laag scoort op alle thema’s, zal de ontwikkelrichting eerder transformeren dan koesteren zijn en zullen de hoofdopgaven dit verschil ook duiden. Voor een deelgebied dat over het algemeen juist goed scoort, zal het omgekeerde juist het geval zijn.

De waardering van de huidige situatie is voor elk deelgebied terug te vinden bij de beschrijving van het deelgebied. Bij de thema’s waar een waardering ontbreekt, is het thema op het deelgebied niet van toepassing.

afbeelding binnen de regeling

Figuur 16 - Voorbeeld van de waardering van het deelgebied

Ontwikkelprincipes

Evenals de gebiedstypologieën kennen ook alle deelgebieden ontwikkelprincipes. Deze ontwikkelprincipes komen voort uit de specifieke kenmerken, hoofdopgaven, kwaliteiten, structuurdragers en de waardering van het deelgebied. Denk bijvoorbeeld aan het koesteren van de historische linten langs bepaalde wegen of versterken van de natuurwaarden in een bepaald natuurgebied.

De ontwikkelprincipes voor de deelgebieden zijn daarmee specifieker van aard en zijn van toepassing naast de reeds beschreven ontwikkelprincipes van de gebiedstypologieën. De ontwikkelprincipes dragen daarmee bij aan het behoud, herstel of de versterking van de ruimtelijke eigenheid van het deelgebied.

Voor elke gebiedstypologie duidt een geabstraheerde ‘tegel’ het ruimtelijke karakter en de ruimtelijke principes van een deelgebied. In deze tegel zijn ook de ontwikkelprincipes voor het deelgebied benoemd. In de kaarten en tegels zijn bijzondere structuurdragers, programma en cultuurhistorische waarden gehighlight met specifieke kleuren:

afbeelding binnen de regeling

Hoewel de deelgebieden ten behoeve van dit Ruimtelijk Kwaliteitskader begrensd zijn, moeten deze grenzen niet als ‘absoluut’ worden gezien. Dat wil zeggen, indien een straat de grens vormt tussen twee deelgebieden, dient ook het deelgebied aan de overzijde van de straat meegenomen te worden in de beschouwing van de context.

afbeelding binnen de regeling

Figuur 17 - Overzicht van de deelgebieden

4.1 Biest-Groenewoud

afbeelding binnen de regeling

Beschrijving

Biest-Groenewoud is een voormalig weidegebied met het historische lint van de Biest met monumentale bebouwing, waar later naoorlogse uitbreidingswijken kwamen met een groot aanbod aan educatie- en zorgvoorzieningen.

Kenmerken van het deelgebied

  • In het gebied zijn prominente laanstructuren gekoppeld aan bestaande infrastructuur (wegen en kanaal). De stedelijke groenstructuren zijn opgebouwd met monotone beplanting;

  • Cultuurhistorische structuren rondom de Roermondseweg en de Biest, zoals het Klooster, Doolhof en de historische Dries aan de Doolhofweg, zijn zichtbaar en zijn gecombineerd met erfgoed zoals het klooster, en de daartussen aangelegde typische naoorlogse wijken;

  • De woningvoorraad heeft goede doorstroom en betaalbaarheid, maar een lage diversiteit aan typologieën;

  • De wijk is voorzien van robuuste ontsluitingswegen met ruimte voor diverse verkeersstromen;

  • De aanwezigheid van bedrijven, onderwijs en zorg (o.a. ziekenhuis) zorgt voor werkgelegenheid.

Hoofdopgaven voor het deelgebied

  • Koesteren en diverser maken van de naoorlogse robuuste groenstructuren in de wijken;

  • Creëren van een diverser woonmilieu door inbreiding met nieuwe, diverse typologieën, waaronder een hoogstedelijk woonmilieu in de Oostelijke Stadsentree;

  • Verbeteren van de woonkwaliteit van de wijk met aandacht voor verduurzaming, gezondheid, routes voor langzaam verkeer, saamhorigheid en cultuurhistorie.

afbeelding binnen de regeling

Figuur 18 - Luchtfoto van het deelgebied

Kwaliteiten en structuurdragers

Kwaliteiten van het deelgebied

  • Ruime voorzieningen met o.a. zorg, sport en onderwijs;

  • Een rijke cultuurhistorie, met name rond het oude lint van de Biest (o.a. het Minderbroedersklooster);

  • Een schoolvoorbeeld van een wederopbouwwijk met robuuste groenstructuren;

  • De betaalbaarheid van een groot deel van de hier aanwezige woningen.

Belangrijke structuurdragers

  • De Biest en Roermondseweg, linten met historisch karakter;

  • De Ringbaan-Oost, hoofdontsluiting van het deelgebied;

  • De kanaalzone, een verbindende structuur waar groenblauw, transport, bewegen en ontmoeten centraal staan.

afbeelding binnen de regeling

Figuur 19 - Structuurkaart en structuurdragers van het deelgebied

afbeelding binnen de regeling

Figuur 20 - Ontwikkelprincipes voor het deelgebied

4.2 Boshoven-Laar

afbeelding binnen de regeling

Beschrijving

Het deelgebied bevindt zich langs de noordelijke rand van het Eiland van Weert, waardoor het lange tijd een mix kende van oude cultuurlanden en historische linten, met enkele nog steeds aanwezige fraaie velden en kampen. Voor de toekomstige ontwikkeling van de stad is dit gebied aangewezen als plaats voor stadsuitbreiding waarmee een vermenging van de waarden met het stedelijk karakter in dit gebied denkbaar is.

Kenmerken van het deelgebied

  • Het gebied kent rijke cultuurhistorie en diverse kleinschalige structuren, maar ook grootschaligheid in de vorm van zowel agrarische bedrijven als recentere uitbreidingen;

  • Het gebied kent een overgang van droge naar natte ondergrond (zuid-noord), terwijl aan de noordkant juist de grootste agrarische bedrijven (zullen) liggen;

  • Door de geplande en reeds gerealiseerde uitbreidingen liggen er significante vraagstukken op het gebied van energie en mobiliteit;

  • De tot nu toe gerealiseerde uitbreidingen kennen veel gelijksoortigheid, er is een lage diversiteit in de woonmilieus.

Hoofdopgaven voor het deelgebied

  • Koesteren van de ruimtelijke kwaliteit in het gebied, met name vanuit cultuurhistorie, historische structuren worden leidend gemaakt bij nieuwe ontwikkelingen;

  • Uitbreiden van het stedelijke gebied van Weert met diverse woonmilieus, voorzieningen, een robuust groenblauw raamwerk en goede verbindingen naar omliggende gebieden, zoals de Weerter- en Budelerbergen.

afbeelding binnen de regeling

Figuur 21 - Luchtfoto van het deelgebied

Kwaliteiten en structuurdragers

Kwaliteiten van het deelgebied

  • Grote cultuurhistorische waarde, die identiteit en structuur kan geven aan nieuwe ontwikkelingen in de gemeente;

  • De aantrekkelijke ligging bij de A2 en de Ringbaan;

  • De overgang tussen ‘droog’ en stedelijk naar ‘nat’ en landelijk.

Belangrijke structuurdragers

  • Diverse linten (o.a. Vrakkerstraat en Laarderweg) en waterlopen die als radialen vanaf Weert lopen;

  • Ontsluitingswegen zoals de A2, Ringbaan en Eindhovenseweg.

afbeelding binnen de regeling

Figuur 22 - Structuurkaart en structuurdragers van het deelgebied

afbeelding binnen de regeling

Figuur 23 - Ontwikkelprincipes voor het deelgebied

4.3 De Kempen en Kanaalzone

afbeelding binnen de regeling

Beschrijving

Dit deelgebied bevat een concentratie van langs de Zuid-Willemsvaart gegroeide bedrijventerrein, inclusief zware industrie. Het gebied is grotendeels omsloten door hoog gewaardeerde natuur- en recreatiegebieden, maar kent zelf een zeer functioneel karakter met een ruimte die niet ingericht is op verblijf of aantrekkelijkheid. Het gebied bestaat uit De Kempen, Kanaalzone II en Kanaalzone III.

Kenmerken van het deelgebied

  • De bedrijventerreinen kennen een hoge energievraag, terwijl er ook kansen liggen voor de opwek van duurzame energie;

  • In tegenstelling tot de omgeving is de open ruimte hier zeer versteend, wat leidt tot een hoge hittestress en problemen met de waterhuishouding;

  • De ontsluiting van het gebied gebeurt met name via de Ringbaan-West (noordoostelijke punt).

Hoofdopgaven voor het deelgebied

  • Koesteren en toekomstbestendig maken van de industriefunctie;

  • Verbeteren van de inrichting van het gebied (o.a. aansluiting op natuur, tegengaan van wateroverlast en hittestress, verbeteringen op het gebied van geluid en licht);

  • Verbeteren van de ontsluiting van het gebied.

afbeelding binnen de regeling

Figuur 24 - Luchtfoto van het deelgebied

Kwaliteiten en structuurdragers

Kwaliteiten van het deelgebied

  • De economische waarde van de aanwezige bedrijven, met zowel lichte als zwaardere industrie;

  • De omgeving van het deelgebied, die kansen geeft tot het realiseren van een aantrekkelijke werkomgeving.

Belangrijke structuurdragers

  • De Zuid-Willemsvaart, de historische uitvalsroute waarlangs de bedrijventerreinen zich hebben ontwikkeld (hierlangs liggen ook de Suffolk- en Kempenweg, een belangrijke verkeersader in het gebied);

  • De Ringbaan, die voor de belangrijkste ontsluiting van het gebied voor vracht- en autoverkeer zorgt;

  • De spoorlijn Weert-Antwerpen, die het gebied aan de noordkant afschermt.

afbeelding binnen de regeling

Figuur 25 - Structuurkaart en structuurdragers van het deelgebied

afbeelding binnen de regeling

Figuur 26 - Ontwikkelprincipes voor het deelgebied

4.4 Dijkerakker

afbeelding binnen de regeling

Beschrijving

Dit deelgebied kent veel oud cultuurland waar de ruilverkaveling en schaalsprong van de 20ste eeuw relatief weinig effect hebben gehad. Het gebied ‘omarmt’ de stad Weert en Ringbaan aan de zuid(-oost)zijde en is daarmee belangrijk voor de beleving van het landschap in de gemeente. Het gebied kent een programma van landbouw gecombineerd met wonen.

Kenmerken van het deelgebied

  • Het deelgebied herbergt veel kleinschaligheid en goed herkenbare historische structuren, met linten en velden;

  • Het veld Dijkerakker met de kenmerkende bolle akker gelegen in het midden van het deelgebied;

  • Met de Sint Annamolen en Hof van Keent kent het gebied voorzieningen die een sociale functie hebben en de leefbaarheid van het gebied versterken;

  • Het gebied ligt aan de uitvalswegen vanaf de Ringbaan naar o.a. Stramproy en Altweerterheide.

Hoofdopgaven voor het deelgebied

  • Koesteren en versterken van cultuurhistorische kwaliteiten, in het bijzonder bij nieuwe ontwikkelingen, bijvoorbeeld door goede inpassing in het landschap.

afbeelding binnen de regeling

Figuur 27 - Luchtfoto van het deelgebied

Kwaliteiten en structuurdragers

Kwaliteiten van het deelgebied

  • Landschaps- en gebouwtypologieën met cultuurhistorische waarde, goed beleefbaar door het gehele deelgebied;

  • Groen karakter en goede klimaatbestendigheid door het kleinschalige landschap.

Belangrijke structuurdragers

  • De Maaseikerweg en Bocholterweg zijn historische uitvalswegen die nu dienen als ontsluiting richting Altweerterheide, Tungelroy en Stramproy;

  • De Ringbaan-Zuid, die het gebied ontsluit en de zichtbaarheid ervan vergroot.

afbeelding binnen de regeling

Figuur 28 - Structuurkaart en structuurdragers van het deelgebied

afbeelding binnen de regeling

Figuur 29 - Ontwikkelprincipes voor het deelgebied

4.5 Dijkerpeel en Omgeving

afbeelding binnen de regeling

Beschrijving

Dit deelgebied bestond een lange tijd uit pelen en vennen in de woeste omgeving aan de rand van het Eiland van Weert. Al voor de oorlog werd het gebied in rap tempo ontgonnen. De kunstmatige Meilossing en Dijkerpeel zorgden, samen met de Tungelroyse Beek, voor de afwatering van het gebied. Door de ruilverkaveling zet de schaalvergroting na de oorlog door en groeit gehucht Altweerterheide uit tot een kern met kenmerkende naoorlogse wijken en rationele structuren. Door de relatief late ontginning van het gebied kent Altweerterheide weinig cultuurhistorisch erfgoed. Tegenwoordig kent het gebied nog altijd een agrarische functie met enkele grote veehouderijen en is de oudste ontginning van het deelgebied, de Kruispeel, omgevormd tot waardevol natuurgebied.

Kenmerken van het gebied

  • Het deelgebied is relatief vlak en bestaat vrijwel geheel uit jonge heideontginningen;

  • De kenmerkende openheid, rationele kavelstructuren en bomenlanen van de jonge heideontginning karakteriseren een groot deel van het gebied;

  • Het gebied is grotendeels in gebruik als agrarische grond en is hiermee één van de grootste aaneengesloten agrarische gebieden van de gemeente.

Hoofdopgaven voor het deelgebied

  • Koesteren van de agrarische functie in het gebied;

  • Toekomstbestendig maken van het agrarische programma door het in balans te brengen met de aanwezige water- en natuurwaardes en het verminderen van luchtvervuiling rondom Altweerterheide.

afbeelding binnen de regeling

Figuur 30 - Luchtfoto van het deelgebied

Kwaliteiten en structuurdragers

Kwaliteiten van het deelgebied

  • Door de openheid en het landgebruik vormt het gebied een waardevol weidevogelgebied;

  • De doorkruising van de openheid door enkele (groen)structuren haaks op de waterlopen draagt bij aan de belevingswaarde van het gebied;

  • Het beekdal van de Meilossing en Dijkerpeel, maar bovenal de Tungelroyse Beek, kent bijzondere archeologische waarden;

  • De Kruispeel is een bijzonder waardevol natuurgebied;

  • De economische en agrarische waarde van het deelgebied is groot.

Belangrijke structuurdragers

  • De Maaseikerweg en Bocholterweg, de twee belangrijkste zuidelijke ontsluitingsroutes vanuit de stad Weert, vanwaar de opeenvolging van verschillende landschapstypen beleefd kan worden;

  • De verschillende beken en lossingen, die het het deelgebied opdelen in verschillende zones van heideontginningen.

afbeelding binnen de regeling

Figuur 31 - Structuurkaart en structuurdragers van het deelgebied

afbeelding binnen de regeling

Figuur 32 - Ontwikkelprincipes voor het deelgebied

4.6 IJzeren Man en Omgeving

afbeelding binnen de regeling

Beschrijving

IJzeren Man en Omgeving vormen een belangrijk recreatief uitloopgebied voor de gemeente Weert, en de stad Weert in het bijzonder. Het gebied bevat hoge aantrekkingskracht, onder andere door kleinschaligheid, natuurwaarde en (met name recreatieve) voorzieningen waaronder het zwembad en Natuur- en Milieucentrum.

Kenmerken van het deelgebied

  • Het gebied herbergt een variatie aan landschapstypen met afwisseling tussen meer open en gesloten gedeeltes;

  • Tussen de in het gebied aanwezige velden en akkers liggen relatief veel kleinschalige landschapselementen, zoals bosschages en houtwallen, en enkele landschapskamers;

  • De IJzeren Man kent - ook economisch gezien - een sterk recreatief profiel.

Hoofdopgaven voor het deelgebied

  • Koesteren van aanwezige natuur- en cultuurhistorische waarde in het gebied;

  • Koesteren van functie als groen uitloopgebied en recreatieve hotspot voor de stad met een goede multimodale bereikbaarheid.

afbeelding binnen de regeling

Figuur 33 - Luchtfoto van het deelgebied

Kwaliteiten en structuurdragers

Kwaliteiten van het deelgebied

  • De functie als ‘groen uithangbord’ voor de inwoners van de stad: dit is het natuurlijke gebied met intensieve recreatie en kent daardoor ook significante economische waarde;

  • De variëteit aan open en gesloten landschappen met landschapselementen, bossen en enkele landschapskamers, die zorgt voor een hoge belevingswaarde van het gebied.

Belangrijke structuurdragers

  • De Weertbeek, restant van de Weerterbeek, die aanvankelijk over 12km werd gegraven om de versterkte hoeve Aldenborgh te voorzien van een omgrachting en later de stadsgracht van water te voorzien;

  • Natuurgebieden De IJzeren Man & Altweerterheide, ‘radialen uit de stad’ die een duidelijke hoofdrichting in het gebied geven (met de Weertbeek en de Zuid-Willemsvaart).

afbeelding binnen de regeling

Figuur 34 - Structuurkaart en structuurdragers van het deelgebied

afbeelding binnen de regeling

Figuur 35 - Ontwikkelprincipes voor het deelgebied

4.7 Kampershoek en Leuken-Noord

afbeelding binnen de regeling

Beschrijving

Het oorsponkelijke landschap van het Eiland van Weert is in dit deelgebied bijna geheel vervangen door industrie- en bedrijventerreinen, aangetrokken door de naastgelegen A2.

Binnen het deelgebied is wel variatie herkenbaar in o.a. het soort bedrijvigheid en ruimtelijke kwaliteit.

Kenmerken van het deelgebied

  • Het gedeelte ten zuiden van de Zuid-Willemsvaart kent een kleinere schaal en enkele robuuste groenstructuren, terwijl het gedeelte ten noorden van de Ringbaan-Noord juist een zeer grote schaal kent zonder groenstructuren;

  • De bedrijventerreinen kennen een hoge energievraag, terwijl er ook kansen liggen voor de opwek van duurzame energie;

  • Bereikbaarheid: de nabijheid van de bedrijventerreinen tot de A2 en het logistieke cluster dat daar een gevolg van is.

Hoofdopgaven voor het deelgebied

  • Koesteren van de functie als bedrijventerrein, met aandacht voor ruimtelijke weerslag van de bijbehorende energieopgave;

  • Koesteren (Leuken-Noord) en versterken (Kampershoek) van de groenstructuren in het gebied;

  • Verbeteren van ruimtelijke kwaliteit, met o.a. aandacht voor de beleving van de monumenten uit de Peel-Raamstelling.

afbeelding binnen de regeling

Figuur 36 - Luchtfoto van het deelgebied

Kwaliteiten en structuurdragers

Kwaliteiten van het deelgebied

  • De goede ontsluiting van het gebied via de A2 en Ringbaan;

  • Het robuuste groenblauwe raamwerk in (delen van) het deelgebied, die de hittestress relatief laag maken.

Belangrijke structuurdragers

  • De Zuid-Willemsvaart, een doorlopende groenblauwe structuur die lucht geeft aan de ruimtes van de bedrijventerreinen;

  • De A2, waar de huidige invulling van het gebied aan te danken is en die de oostgrens van de gemeente vormt;

  • De Ringbaan-Noord, waarlangs het grootschalige logistieke cluster is gevormd, en Ringbaan-Oost aan de westzijde;

  • De groenstructuren die met name in Leuken-Noord het bedrijventerrein in ‘pockets’ opdelen.

afbeelding binnen de regeling

Figuur 37 - Structuurkaart en structuurdragers van het deelgebied

afbeelding binnen de regeling

Figuur 38 - Ontwikkelprincipes voor het deelgebied

4.8 Leuken

afbeelding binnen de regeling

Beschrijving

Dit deelgebied beslaat de wijk Leuken, die voornamelijk bestaat uit naoorlogse uitbreidingen, en een goed bereikbare overgangszone naar agrarisch buitengebied, met daarin meerdere grote intensieve veehouderijen. Als onderdeel van het Eiland van Weert bevat het deelgebied tevens oude cultuurlanden en een rijke cultuurhistorie.

Kenmerken van het deelgebied

  • De wijk bevat beperkte groenstructuren en het buitengebied beperkte natuurwaarde, al is dit wel een overgangsgebied naar de naastgelegen Parelsnoer van Peelvenen;

  • Door de nabije industrie, intensieve veeteelt in het gebied en de verschillende grote ontsluitingswegen, kent het deelgebied relatief veel geur- en geluidsoverlast.

Hoofdopgaven voor het deelgebied

  • Versterken van groenstructuren in de wijk, ook met het oog op klimaatadaptatie;

  • Koesteren van cultuurhistorische waarde en versterking van de beleving hiervan.

afbeelding binnen de regeling

Figuur 39 - Luchtfoto van het deelgebied

Kwaliteiten en structuurdragers

Kwaliteiten van het deelgebied

  • Een goede woningmix en voorzieningenaanbod;

  • De goede bereikbaarheid voor met name autoverkeer.

Belangrijke structuurdragers

  • De Ringbaan als hoofdonstluiting van de wijk en Trumpertweg als centrale structuur in het buitengebied;

  • De (kleine) Leukerbeek die door een steeds natter gebied richting de Parelsnoer van Peelvenen stroomt;

  • De A2 die het gebied aan noordoostzijde begrenst.

afbeelding binnen de regeling

Figuur 40 - Structuurkaart en structuurdragers van het deelgebied

afbeelding binnen de regeling

Figuur 41 - Ontwikkelprincipes voor het deelgebied

4.9 Op Den Dijk

afbeelding binnen de regeling

Beschrijving

Het deelgebied Op Den Dijk bevat heideontginningen en een nat kwelgebied die de overgang vormen tussen de uitbreidingen in Boshoven-Laar en de natuurgebieden aan de westzijde. Het gebied kent aan de westzijde kwel en was lang onderdeel van de woeste gronden rondom Weert. Tegenwoordig dient het voornamelijk als landbouwgebied. Voor de toekomstige ontwikkeling van de stad is een deel van dit gebied aangewezen als plaats voor stadsuitbreiding waarmee een vermenging van de waarden met het stedelijk karakter in dit gebied denkbaar is.

Kenmerken van het deelgebied

  • De maat en schaal van de heideontginningen is in grote delen van het gebied duidelijk zichtbaar, met ook de bomenrijen als kenmerkende elementen van het landschap;

  • Het gebied wordt in zjin geheel doorsneden door de spoorlijn Weert-Eindhoven, die een barrière vormt tussen de stad in het oosten en de natuurgebieden in het westen.

Hoofdopgaven voor het deelgebied

  • Aansluiten van het toekomstige programma en de bijbehorende inrichting op het veelal vochtige karakter van het gebied, er zijn diverse partijen die een ruimteclaim op het deelgebied willen leggen;

  • Verbinding behouden en versterken tussen Boshoven-Laar en de natuur verder naar het westen, met aandacht voor het spoor dat het deelgebied in tweeën snijdt.

afbeelding binnen de regeling

Figuur 42 - Luchtfoto van het deelgebied

Kwaliteiten en structuurdragers

Kwaliteiten van het deelgebied

  • Typisch landschap van de jonge heideontginningen met grote schaal en rationele patronen;

  • Natuurwaarden aan de rand van de Weerter- en Budelerbergen en aan de noordzijde van het gebied.

Belangrijke structuurdragers

  • De spoorlijn Weert-Eindhoven, die het gebied in twee delen snijdt;

  • De spoorlijn IJzeren Rijn;

  • De A2 en Eindhovenseweg;

  • De Geuzendijk, een verbinding tussen Weert-Noord, de natuurgebieden en Budel in het westen.

afbeelding binnen de regeling

Figuur 43 - Structuurkaart en structuurdragers van het deelgebied

afbeelding binnen de regeling

Figuur 44 - Ontwikkelprincipes voor het deelgebied

4.10 Roermondseweg

afbeelding binnen de regeling

Beschrijving

Het deelgebied Roermondseweg is op dit moment grotendeels in gebruik als agrarisch gebied met op enkele plekken bedrijvigheid en plaats voor energieopwekking. Er is een onderscheid te maken in het gedeelte ten noorden van het spoor, dat een drogere jonge heideontginning betreft, en het gebied ten zuid(-oost)en van het spoor, dat een vochtiger karakter kent en gedeeltelijk aansluit bij het kleinschalige landschap rondom Swartbroek. Voor de toekomstige ontwikkeling is een deel van dit gebied aangewezen als plaats voor uitbreiding van bedrijvigheid en opwek van energie.

Kenmerken van het deelgebied:

  • Het deelgebied wordt gedefinieerd en doorsneden door meerdere majeure verkeersstructuren;

  • Het landschap in het gebied is met name aan de noordzijde van het spoor rationeel en kent op veel plekken een open karakter.

Hoofdopgaven voor het deelgebied:

  • Behouden en versterken van ruimtelijke waarden in het gebied bij transformatie tot energie- en werklandschap zoals vastgesteld in het ontwikkelkader;

  • Vinden van balans tussen toekomstig programma en water en bodem;

  • Vinden van balans tussen condities voor het energielandschap enerzijds en natuurwaarden, agrarisch gebruik en milieuoverlast anderzijds.

afbeelding binnen de regeling

Figuur 45 - Luchtfoto van het deelgebied

Kwaliteiten en structuurdragers

Kwaliteiten van het deelgebied

  • De goede bereikbaarheid van het deelgebied;

  • Een rationeel maar ouder patroon in het landschap met ortagonale lijnen in het noorden van het gebied en het aanwezige bosmozaïek dat zich aan de westzijde ook ten zuiden van het spoor bevindt;

  • De potentie van het gebied als energie- en economiehub voor de gemeente Weert.

Belangrijke structuurdragers

  • De Roermondseweg, de oostelijke entree van de stad, waarbij groen karakter, beleefbaarheid van de economische functie en beleefbaarheid van diverse doorkruiste landschapstypen belangrijke uitgangspunten vormen;

  • Het spoor deelt het deelgebied in tweeën en vormt ook een belangrijke entree tot de stad;

  • De A2, die het deelgebied verder ontsluit en definieert.

afbeelding binnen de regeling

Figuur 46 - Structuurkaart en structuurdragers van het deelgebied

afbeelding binnen de regeling

Figuur 47 - Ontwikkelprincipes voor het deelgebied

4.11 Rond de Kazerne

afbeelding binnen de regeling

Beschrijving

Het gebied Rond de Kazerne kenmerkt zich door een combinatie van woonprogramma en (zeer) ruim groen. In het gebied is cultuurhistorische waarde van verschillende tijdslagen aanwezig, terwijl ook hier - rond de kazerne - een nieuwe woonomgeving in de stad Weert wordt onwikkeld.

Kenmerken van het deelgebied

  • Door de robuuste en soms dichte groenstructuren lijken de woonwijken in het gebied soms meer op een bosmozaïek dan op stedelijk gebied;

  • Het deelgebied kent een divers cultuurhistorisch aanbod met onder andere kapellen, boerderij de Helmonder, historische wegen en rijk (post-)modern erfgoed (o.a. op complex de Lichtenberg en architectuur en stedenbouw door de wijk heen);

  • Het openbaar vervoer in Rond de Kazerne is een aandachtspunt, terwijl de Ringbaan voor auto’s nabij is;

  • Waar de voorziene woningen in het nieuwe Horne Kwartier een hoge diversiteit kennen, is het woonmilieu in de rest van het deelgebied vrij eenzijdig.

Hoofdopgaven voor het deelgebied

  • Koesteren van het zeer groene karakter in woongebied, dat deels ook wordt gecreëerd door groen op private grond;

  • Versterken van de verbinding tussen De IJzeren Man (zuidwesten), Rond de Kazerne en de centrumstedelijke gebieden.

afbeelding binnen de regeling

Figuur 48 - Luchtfoto van het deelgebied

Kwaliteiten en structuurdragers

Kwaliteiten van het deelgebied

  • Een zeer hoogwaardig woonmilieu in een rijke groene omgeving en met hoge cultuurhistorische waarde;

  • De ruimtelijke continuïteit tussen de woonwijk en De IJzeren Man.

Belangrijke structuurdragers

  • De Diesterbaan en Altweerterkapelstraat zijn (grotendeels) historische routes waaraan de ontsluiting binnen de wijk nog steeds opgehangen is;

  • De Ringbaan ontsluit het gebied via het noordoosten.

afbeelding binnen de regeling

Figuur 49 - Structuurkaart en structuurdragers van het deelgebied

afbeelding binnen de regeling

Figuur 50 - Ontwikkelprincipes voor het deelgebied

4.12 Spoorzone

afbeelding binnen de regeling

Beschrijving

Hoewel het spoor al bijna 150 jaar in Weert aanwezig is, ontwikkelde het gebied eromheen zich pas na de oorlog in rap tempo tot een gebied met een divers programma, met onder andere een bedrijventerrein, woonwijken en sportparken.

Een typisch voorbeeld van een naoorlogse arbeiderswijk in dit deelgebied is Fatima, waar veel arbeiders van bedrijven in de spoorzone woonzaam waren. Ook in de toekomst zal de spoorzone zich in rap ontwikkelen, nu tot een hoogstedelijk woonmilieu waar wederom gewoond en gewerkt wordt.

Kenmerken van het deelgebied

  • Er is een grote variatie in programma en ruimtelijk karakter, er wordt in de spoorzone gewoond, gewerkt en gerecreëerd;

  • Ondanks de grote ruimtelijke variatie, is het woningaanbod eenzijdig en bestaat het vooral uit laagbouw, met enkele plekken met hoogbouw in het gebied (langs de Zuid-Willemsvaart, in de nabijheid van het station);

  • De spoorzone kent door de aanwezigheid van een intercitystation een goede bereikbaarheid met het OV;

  • De spoorzone is gelegen in de nabijheid van de binnenstad, hierdoor zijn (stedelijke) voorzieningen te vinden op loop- en fietsafstand.

Hoofdopgaven voor het deelgebied

  • Ontwikkelen van een hoogstedelijk woonmilieu en economische activiteit van hoge kwaliteit en diversiteit langs de spoordijk met onder andere de Oostelijke Stadsentree, waarbij ook de bereikbaarheid voor auto- en fietsverkeer aandachtspunt is;

  • Versterken van de oost-west verbinding langs het spoor als als groene en recreatieve structuur;

  • Koesteren van het aanwezige cultuurhistorische erfgoed;

  • Toekomstigbestendig maken van het industrieel erfgoed.

afbeelding binnen de regeling

Figuur 51 - Luchtfoto van het deelgebied

Kwaliteiten en structuurdragers

Kwaliteiten van het deelgebied

  • De grote variatie in functies (wonen, werken en recreëren) en ruimtelijke sferen (bv. kanaalzone, Fatima, stationsomgeving, etc.);

  • De goede bereikbaarheid met OV;

  • De aanwezigheid van wijkvoorzieningen en de nabijheid van stedelijke voorzieningen in het centrum en Groenewoud;

  • De aanwezigheid van industrieel en cultureel erfgoed biedt kansen voor het ontwikkelen van een aantrekkelijke leef- en werkomgeving.

Belangrijke structuurdragers

  • De spoorweg, waarlangs bewogen kan worden en enkele groenstructuren gelegen zijn, maar die ook een barrièrewerking heeft;

  • De Zuid-Willemsvaart, waarlangs gerecreëerd kan worden;

  • De Stationsstraat en Maaseikerweg, de historische wegen die de verbinding vormen tussen het centrum noordelijk van het spoor en de wijken zuidelijk van het spoor;

  • De Ringbaan-West en -Noord, die het gebied een bovenlokale ontsluiting geven.

afbeelding binnen de regeling

Figuur 52 - Structuurkaart en structuurdragers van het deelgebied

afbeelding binnen de regeling

Figuur 53 - Ontwikkelprincipes voor het deelgebied

4.13 Stramproy en Tungelroy

afbeelding binnen de regeling

Beschrijving

De kernen Stramproy en Tungelroy zijn gelegen op de hogere dekzandruggen in het zuiden van de gemeente en zijn gescheiden door het beekdal van de Tungelroyse Beek. Waar Stramproy zich in de naoorlogse periode ontwikkelde tot kern met voorzieningen, beperkte de ontwikkeling van Tungelroy zich tot de jaren ‘70 tot het historische lint. Tegenwoordig kennen beide kernen een een sterke saamhorigheid, een goede bereikbaarheid en een gezonde leefomgeving. Het gebied rondom beide kernen kent grotendeels een agrarische functie en er zijn enkele natuurgebieden zoals het Areven.

Kenmerken van het deelgebied

  • De twee kernen zijn gelegen op de hogere dekzandrug en omringd met agrarische grond, met een variatie aan landschapstypen rondom beide kernen;

  • De Tungelroyse Beek scheidt de twee kernen en vormt een structuurdrager in het gebied;

  • In Stramproy vinden we enkele commerciële voorzieningen in het centrum;

  • In en rondom de kernen zijn er een groot aantal cultuurhistorische elementen te vinden die getuigen van vroegere ambachtelijke en agrarische activiteiten.

Hoofdopgaven voor het deelgebied

  • Koesteren en versterken van de belevingswaarde van de grote aanwezige cultuurhistorische waarde in het gebied;

  • Koesteren van de vitaliteit en leefbaarheid van beide dorpen;

  • Uitbreiden van het woningaanbod in Stramproy.

afbeelding binnen de regeling

Figuur 54 - Luchtfoto van het deelgebied

Kwaliteiten en structuurdragers

Kwaliteiten van het deelgebied

  • De rijke historie van het gebied met veel relicten verspreid door het deelgebied heeft waardevolle sporen achtergelaten in het gebied (bijvoorbeeld de oude Romeinse brug);

  • De saamhorigheid en goede leefbaarheid in beide kernen;

  • De bereikbaarheid van het buitengebied vanuit de twee kernen, en van de dorpen als geheel.

Belangrijke structuurdragers

  • De Tungelroyse Beek met beekdal, deze deelt het deelgebied op een natuurlijke manier op;

  • De Maaseikerweg, een historische route die nu de hoofdontsluiting van het gebied vormt.

afbeelding binnen de regeling

Figuur 55 - Structuurkaart en structuurdragers van het deelgebied

afbeelding binnen de regeling

Figuur 56 - Ontwikkelprincipes voor het deelgebied

4.14 Swartbroek en de Pelen

afbeelding binnen de regeling

Beschrijving

Dit deelgebied kan worden gekarakteriseerd als ‘de gemeente Weert in het klein’ - de kern ligt op een hoger en droger ‘eiland’ met agrarische functies op de oude cultuurlanden en is omringd door natte natuurgebieden. Door deze verscheidenheid aan gradiënten, is het buitengebied van Swartbroek gevarieerd en afwisselend. Voor een lange tijd bestond Swartbroek uit niet meer dan een samenkomst van enkele wegen en bebouwingslinten.

Hoewel deze structuur nog altijd te herkennen is, de historische wegen zijn bijvoorbeeld nog altijd de doorgaande structuren, is hij door de uitbreidingen in de jaren ‘70 en ‘90 wel minder leesbaar geworden. Door de ligging in de nabijheid van Weert zijn de (stedelijke) voorzieningen te vinden op korte afstand van het dorp. In het dorp zelf staat de leefbaarheid echter onder druk, onder andere door het verdwijnen van voorzieningen.

Kenmerken van het deelgebied

  • Swartbroek ligt op de hogere dekzandrug en is omringd door agrarische gronden, natte natuurgebieden en beeklopen;

  • De wegen in het gebied zijn kronkelig en, op de Ittervoorterweg en Roermondseweg na, kleinschalig;

  • De historische gebouwen zijn veelal gelegen aan de twee historische wegen. Ook liggen in de omgeving van Swartbroek liggen twee voormalige schansen, die gebruikt werden om het dorp te verdedigen tegen plunderingen.

Hoofdopgaven voor het deelgebied

  • Koesteren en versterken van de vitaliteit en leefbaarheid;

  • Koesteren van de aanwezige natuurwaarde met speciale aandacht voor droogtegevoeligheid;

  • Koesteren van ruimtelijke kwaliteit en de wisselwerking tussen ondergrond, natuur, dooradering en gebruik van het gebied.

afbeelding binnen de regeling

Figuur 57 - Luchtfoto van het deelgebied

Kwaliteiten en structuurdragers

Kwaliteiten van het deelgebied

  • Het buitengebied kent een grote diversiteit aan landschapstypen en is aantrekkelijk en afwisselend;

  • Nog altijd is de logica van het grondgebruik, met op hogere delen bewoning en landbouw en in de lagere delen natuur, aanwezig en leesbaar;

  • De Parelsnoer van Peelvenen en de andere aanwezige natuurgebieden kennen een grote natuurlijke waarde;

  • Door het herstel van de meanderende beekloop van de Tungelroyse Beek worden natuur- en belevingswaarden versterkt.

Belangrijke structuurdragers

  • De Leukerbeek en Tungelroyse Beek, twee herkenbare structuurdragers in de lagere delen van het gebied

  • De Parelsnoer van Peelvenen, die een vrijwel aaneengesloten vochtig bos- en mozaïeklandschap vormt;

  • De Ittervoorterweg en Roermondseweg, twee historische routes functioneren nu als hoofdontsluiting van het gebied.

afbeelding binnen de regeling

Figuur 58 - Structuurkaart en structuurdragers van het deelgebied

afbeelding binnen de regeling

Figuur 59 - Ontwikkelprincipes voor het deelgebied

4.15 Weert-Centrum

afbeelding binnen de regeling

Beschrijving

Vanuit dit deelgebied is de stad Weert gegroeid en zijn het ‘eiland’ en later de woeste gronden daaromheen getransformeerd tot de gemeente die we nu kennen. In het deelgebied zijn verschillende tijdslagen met waardes en uitdagingen te vinden. Het centrum vormt tegenwoordig het hart én uithangsbord van de stad met grote cultuurhistorische en economische betekenis.

Kenmerken van het deelgebied

  • Het gebied is over het algemeen zeer versteend, wat leidt tot hittestress, beperkte infiltratie van regenwater en een overwegend versteende uitstraling;

  • Het centrum kent een sterk contrast tussen het historische patroon en de stedenbouwkundige kwaliteit van enkele herstructureringen van de latere 20ste eeuw: van een kleinschalig stratenpatroon met markten, radialen en monumentale bebouwing, tot een grote schaal die na de oorlog met name aan de noord- en westzijde is toegevoegd;

  • De Singel definiëert en ontsluit het centrum en benadert andere belangrijke structuren zoals het kanaal en het spoor;

  • Autoverkeer is ruim gefaciliteerd in het centrum, met de singel als verkeersader en een ‘krans’ van grotere parkeerplaatsen aan de rand van het centrum.

Hoofdopgaven voor het deelgebied

  • Transformeren van het centrum naar een gebied met hogere ruimtelijke kwaliteit, groener karakter en meer ruimte voor voetgangers- en fietsverkeer;

  • Vinden van balans tussen ‘rust’ en ‘reuring’;

  • Aanpakken van de (ruimtelijke gevolgen van) leegstand.

afbeelding binnen de regeling

Figuur 60 - Luchtfoto van het deelgebied

Kwaliteiten en structuurdragers

Kwaliteiten van het deelgebied

  • Een rijke cultuurhistorie met onder andere de Middeleeuwse stadsopbouw, kasteel Nijenborgh en de Singel rondom;

  • De contrasterende schalen en korrel met onder andere de grote ontwikkelingen uit de jaren ‘70;

  • Een rijk aanbod aan voorzieningen (winkels, horeca, zorg, kantoren, onderwijs);

  • Een goede bereikbaarheid;

  • ‘Groene parels’ als het Stadspark en de begraafplaats.

Belangrijke structuurdragers

  • De Singel, die wordt omgevormd tot een samenhangende (én gevarieerde) groenblauwe ring om het centrum, waar meer ruimte is voor langzaam verkeer en ontmoeting;

  • De kanaalzone en bassin, een verbindende structuur waar groenblauw, transport, bewegen en ontmoeten centraal staan.

afbeelding binnen de regeling

Figuur 61 - Structuurkaart en structuurdragers van het deelgebied

afbeelding binnen de regeling

Figuur 62 - Ontwikkelprincipes voor het deelgebied

4.16 Weert-Noord

afbeelding binnen de regeling

Beschrijving

Tussen de Zuid-Willemsvaart en de Ringbaan ingeklemd liggen een aantal jonge woonwijken, veelal met (zeer) hoge ruimtelijke kwaliteit door de groene opzet, en een uitstekende bereikbaarheid. Het gebied kent door zijn locatie nabij het centrum ook een rijke geschiedenis, waarvan enkele relicten nog steeds te zien zijn.

Kenmerken van het deelgebied

  • Door het gebied heen ligt veel cultuurhistorische waarde, waaronder molens, oude lintstructuren (o.a. Oude Laarderweg) en relicten uit de Tweede Wereldoorlog;

  • Tussen de verschillende woonbuurten in het gebied is een zeer robuust groenblauw raamwerk gerealiseerd, dat zorgt voor een ontspannen karakter van de woonwijken;

  • Het gebied kent veel voorzieningen, waaronder ruimte voor sport, commercie en onderwijs, met daarnaast ook een bedrijventerrein, Centrum-Noord, dat sterk verschilt met de rest van het gebied.

Hoofdopgaven voor het deelgebied

  • Koesteren en versterken van de hoge ruimtelijke kwaliteit in de verschillende woonbuurten in het gebied en langs de Zuid-Willemsvaart;

  • Verbeteren van de ruimtelijke kwaliteit op bedrijventerrein Centrum-Noord.

afbeelding binnen de regeling

Figuur 63 - Luchtfoto van het deelgebied

Kwaliteiten en structuurdragers

Kwaliteiten van het deelgebied

  • De bereikbaarheid van het gebied, dat zowel langs ontsluitingswegen als vlakbij het stadscentrum ligt, en daarnaast zelf nog ruime voorzieningen kent;

  • Het groenblauwe karakter van grote delen van het deelgebied, o.a. door de groenstructuren rond de Zuid-Willemsvaart en tussen de woonbuurten.

Belangrijke structuurdragers

  • De kanaalzone, een verbindende structuur waar groenblauw, transport, bewegen en ontmoeten centraal staan;

  • De Ringbaan, die het gebied ontsluit langs de noordzijde;

  • De Eindhovenseweg, die de link tussen het centrum en de Ringbaan vormt;

  • Diverse groenblauwe structuren die het gebied opdelen in kleinschalige woonbuurtjes.

afbeelding binnen de regeling

Figuur 64 - Structuurkaart en structuurdragers van het deelgebied

afbeelding binnen de regeling

Figuur 65 - Ontwikkelprincipes voor het deelgebied

4.17 Weert-Zuid

afbeelding binnen de regeling

Beschrijving

Keent, Moesel en Graswinkel zijn uitbreidingswijken die in fases na de oorlog zijn aangelegd in een gebied dat lang - door de barrièrewerking van het spoor - een landelijk karakter had gekend met enkele historische linten richting het buitengebied verderop.

Kenmerken van het deelgebied

  • De wijken van het gebied, dat bijna uitsluitend een woonfunctie kent, zijn veelal ruim en groen opgezet, waarbij Keent en Moesel een typisch naoorlogse opzet hebben en Graswinkel is aangelegd volgens principes van kleinschaligheid en menselijke maat uit de jaren ‘70 en ‘80;

  • Hoewel er een variëteit aan voorzieningen is, scoort het westelijke deel van het deelgebied slecht op de leefbaarheidsscore, en in winkelcentrum De Dries is er sprake van leegstand;

  • Verspreid door het gebied liggen enkele cultuurhistorische structuren, die niet altijd even goed herkenbaar zijn (zoals de Moeselschansweg).

Hoofdopgaven voor het deelgebied

  • Toevoegen van woonprogramma door inbreiding met aandacht voor diverse woonmilieus, ruimte voor ontmoeting en het versterken van het groenblauwe raamwerk;

  • Behouden en diverser maken van de robuuste groenstructuren die door de wijken lopen;

  • Opwaarderen en beter beleefbaar maken van cultuurhistorische elementen en structuren.

afbeelding binnen de regeling

Figuur 66 - Luchtfoto van het deelgebied

Kwaliteiten en structuurdragers

Kwaliteiten van het deelgebied

  • De ruime opzet van typisch naoorlogse uitbreidingswijken met robuuste groenstructuren;

  • Een divers woning- en voorzieningenaanbod op verschillende plekken in het gebied.

Belangrijke structuurdragers

  • De Ringbaan omklemt het deelgebied en vormt een duidelijke grens richting het buitengebied en Rond de Kazerne;

  • De Kerkstraat, vlak daarnaast gelegen Sint Jozeflaan en Maaseikerweg doorsnijden het gebied van noord naar zuid en kennen een belangrijke verkeers- en economische functie;

  • Diverse robuuste groenstructuren die het gebied opdelen in kleinere buurtjes.

afbeelding binnen de regeling

Figuur 67 - Structuurkaart en structuurdragers van het deelgebied

afbeelding binnen de regeling

Figuur 68 - Ontwikkelprincipes voor het deelgebied

4.18 Weerter Boulevard

afbeelding binnen de regeling

Beschrijving

Het deelgebied Weerter Boulevard beslaat een smalle strook tussen het spoor en de Roermondseweg. Het deelgebied is vanaf de jaren ‘90 ingevuld als terrein voor bedrijven en grootschalige retail, waarbij vroegere cultuurhistorische structuren grotendeels verloren zijn gegaan. Als onderdeel van de oostelijke stadsentree voor zowel weg als spoor, heeft dit gebied een belangrijke rol in de uitstraling en economie van de stad.

Kenmerken van het deelgebied

  • Het deelgebied is goed bereikbaar voor autoverkeer, en het werk- en retailcentrum van Weert;

  • Het deelgebied loopt als strook van stedelijk gebied door oude cultuurlanden richting de Parelsnoer van Peelvenen met hoge vochtigheid en natuurwaarde, en ligt dus binnen afwisselende landschappen;

  • Het gebied kent een rommelige uitstraling naar de stad toe door onder andere dominante achterkanten van bedrijven richting Roermondseweg en spoor.

Hoofdopgaven voor het deelgebied

  • Renoveren van bestaand bedrijventerrein en uitbreiden, waarbij een aantrekkelijke stadsentree wordt gerealiseerd en meer eenheid in het deelgebied ontstaat;

  • Verbeteren van de kwaliteit van de openbare ruimte, waarbij meer ruimte wordt gecreëerd voor diverse functies en verkeersstromen (bezoekers, werknemers, sluipverkeer, laden/lossen etc.);

  • Transformeren en vergroenen van de Moesdijk en het onderzoeken van een andere organisatie van het gebied;

  • Behouden van de herkenbaarheid van de cultuurgronden aan de oostzijde van het gebied en de overgang naar de Parelsnoer van Peelvenen daarachter.

afbeelding binnen de regeling

Figuur 69 - Luchtfoto van het deelgebied

Kwaliteiten en structuurdragers

Kwaliteiten van het deelgebied

  • De bereikbaarheid van het gebied voor autoverkeer;

  • De nabijheid van het buitengebied, onder andere de Parelsnoer van Peelvenen richting Swartbroek en het cultuurhistorische landschap rond de Koekoeksweg;

  • De concentratie van grootschalige retail, die binnen de gemeente Weert alleen hier de ruimte krijgt en de mogelijkheid tot slim en dubbel ruimtegebruik geeft. Zo kan ruimte gewonnen worden in een dichte omgeving.

Belangrijke structuurdragers

  • De Roermondseweg, onderdeel van de oostelijke entree van de stad, waarbij een groen karakter, beleving van de economische functie en van diverse doorkruiste landschapstypen belangrijke uitgangspunten vormen;

  • Het spoor, de zuidgrens van het deelgebied, vormt een barrière naar het cultuurlandschap van Dijkerakker;

  • De Moesdijk, de centrale as waarlangs het gebied is georganiseerd, wat betekent dat veel van de panden met hun ‘rug’ naar de Roermondseweg en het spoor toestaan.

afbeelding binnen de regeling

Figuur 70 - Structuurkaart en structuurdragers van het deelgebied

afbeelding binnen de regeling

Figuur 71 - Ontwikkelprincipes voor het deelgebied

4.19 Weerter- en Budelerbergen en Laurabossen

afbeelding binnen de regeling

Beschrijving

Dit deelgebied bestaat grotendeels uit natuurgebieden, veelal met status als Natura 2000 gebied of NatuurNetwerk Nederland. Ook kent het gebied sinds 2024 als onderdeel van Kempen~Broek de status van UNESCO Mens en Biosfeergebied. Door de vele gradiënten, van hoog naar laag en van nat naar droog, zijn er vele verschillende natuurtypen te vinden het gebied zoals droge heide, stuifzandgebieden en broekbossen. Hoewel het gebied dus grotendeels bestaat uit natuurgebieden, komt er binnen de contouren van het deelgebied ook agrarisch, woon- en militair gebruik voor. Daarnaast vinden op de Boshoverheide het grootste urnenveld van Noordwest-Europa, daterend uit de late bronstijd- ijzertijd. Het gebied vormt een belangrijk uitloopgebied voor inwoners van de gemeente.

Kenmerken van het deelgebied

  • Het gebied bestaat door de aanwezige gradiënten uit een divers palet aan natuurgebieden;

  • Hoewel het gebied relatief weinig infrastructuur kent, doorkruisen enkele belangrijke infrastructurele werken het gebied, zoals de A2, spoorweg en de Zuid-Willemsvaart.

Hoofdopgaven voor het deelgebied

  • Koesteren van de aanwezige natuurwaarde, waarbij droogtestress en brandveiligheid in het bijzonder aandachtspunten zijn;

  • Het doorbreken van barrières, met name de Zuid-Willemsvaart, voor zowel recreatief verkeer als fauna;

  • Koesteren van de cultuurhistorische en archeologische waarde, zoals het urnenveld;

  • Het combineren van (gematigd) recreatief gebruik met ander programma, zoals het gebruik door defensie.

afbeelding binnen de regeling

Figuur 72 - Luchtfoto van het deelgebied

Kwaliteiten en structuurdragers

Kwaliteiten van het deelgebied

  • Door de afwisseling tussen open en besloten, de aanwezige gradiënten, natuurwaarde en recreatieve routestructuren vormt het gebied een attractief uitloopgebied;

  • Doordat de natuurgebieden groot en aaneengesloten zijn, vormt het gebied een belangrijke natuurcorridor en strekt deze zich uit van Noord-Brabant tot diep in België.

Belangrijke structuurdragers

  • De aaneengesloten bosgebieden, zoals de Laurabossen, Weerter- en Budelerbergen en de bossen van de Boshoverheide;

  • De infrastructurele werken, zoals de A2, de spoorweg en de Zuid-Willemsvaart.

afbeelding binnen de regeling

Figuur 73 - Structuurkaart en structuurdragers van het deelgebied

afbeelding binnen de regeling

Figuur 74 - Ontwikkelprincipes voor het deelgebied

4.20 Wijffelter Broek en Omgeving

afbeelding binnen de regeling

Beschrijving

Het deelgebied Wijffelterbroek en Omgeving maakte lang deel uit van de woestenij aan de rand van het Eiland van Weert. Nadat in de vooroorlogse periode grote delen van de droge heide werden ontgonnen en aangeplant met productiebos, ontstond hier het kenmerkende bos- en mozaïeklandschap. In de naoorlogse periode werd ook de Wijffelterbroek zelf ontgonnen, waarbij afwateringssloten en de kunstmatige waterloop ‘de Raam’ zorgden voor de waterafvoer richting de Tungelroyse Beek. Tegenwoordig heeft het gebied aanzienlijke natuurwaarden, met droge bossen op hogere gronden en vochtige loofbossen en moerassen in lager gelegen delen, en vormt het een waardevol uitloopgebied voor de inwoners van het nabijgelegen Stramproy.

Kenmerken van het deelgebied

  • Het deelgebied is grotendeels lager gelegen dan de rest van de omgeving; hierdoor is het gebied nat, rijk aan kwel en bestaat het grotendeels uit natte bossen en gras- en hooilanden;

  • Verharde infrastructuur is in het gebied, op bijvoorbeeld de Bocholterweg na, vrijwel afwezig en bestaat vooral uit onverharde (struin)paden.

Hoofdopgaven voor het deelgebied

  • Koesteren van de aanwezige natuurwaarden, met aandacht voor de hoge droogtestress in het gebied;

  • Koesteren van aanwezige cultuurhistorische waarden met onder andere verschillende landschapskamers;

  • Het versterken van het functioneren van het gebied als ‘klimaatbuffer’.

afbeelding binnen de regeling

Figuur 75 - Luchtfoto van het deelgebied

Kwaliteiten en structuurdragers

Kwaliteiten van het deelgebied

  • De aanwezigheid van een grensoverschrijdende rijkdom aan natuurlijke waarden, met een gradiënt van nat naar droog;

  • Sterke contrasten tussen de besloten bosgebieden, open beekdalen en heideontginningen;

  • Het gebied is een waardevol, extensief recreatief uitloopgebied voor de aangrenzende kernen.

Belangrijke structuurdragers

  • De ketting van natuurgebieden, bestaande uit de Kettingdijk, Stramprooierheide en Areven, met aan de noordkant hiervan het beekdal van de Raam/Tungelroyse Beek;

  • De Bocholterweg, die de belangrijkste verbindingsweg vormt tussen Altweerterheide en België.

afbeelding binnen de regeling

Figuur 76 - Structuurkaart en structuurdragers van het deelgebied

afbeelding binnen de regeling

Figuur 77 - Ontwikkelprincipes voor het deelgebied

5. Beoordelingskader

Aanvullend beoordelingskader

Naast ruimtelijke kenmerken zijn er ook bestaande beleidskaders die van invloed kunnen zijn op de ontwikkeling. Van kaders ten aanzien van cultuurhistorie, archeologie, natuur en landschap tot mogelijkheden voor hoogbouw. Figuur 78 toont een overzicht van het geldende beoordelingskader indien sprake is van een vergunningplichtige aanvraag. In basis is dit onder te verdelen in beoordelingen door de CRK en ambtelijke beoordelingen:

  • 1.

    Verplichte welstandstoets bij CRK bij ontwikkelingen in relatie tot de aanduiding:

    • Rijksmonumenten;

    • Rijksmonumentcontouren;

    • Gemeentelijke monumenten;

    • Beschermde stads- en dorpsgezichten.

  • 2.

    Verplichte ambtelijke beoordelingen:

    • Hoogbouw in de Ruimtelijke Ontwikkelstrategie;

    • Oude stads- of dorpskern (Renes);

    • Molenbiotoop;

    • Landschapskamer;

    • Natuur en landschap;

    • Archeologie.

  • 3.

    Daarbij adviseren naast de verplichte ambtelijke beoordeling op een vrijwillige advisering bij de CRK bij ontwikkelingen in relatie tot de aanduiding:

    • Hoogbouw in de Ruimtelijke Ontwikkelstrategie, specifiek zijnde:

      • Categorie M;

      • Categorie L;

    • Oude stads- of dorpskern (Renes);

    • Natuur en landschap.

afbeelding binnen de regeling

Figuur 78 - Beoordelingskader

Ondertekening

Aldus vastgesteld in de openbare vergadering van 24 september 2025.

De griffier,

mr. M.H.R.M. Wolfs-Corten

De voorzitter,

mr. R.J.H. Vlecken