Regeling vervallen per 02-01-2026

Aanwijzingsbesluit vuurwerkvrije zones jaarwisseling 2025-2026 Breda

Geldend van 20-12-2025 t/m 01-01-2026

Intitulé

Aanwijzingsbesluit vuurwerkvrije zones jaarwisseling 2025-2026 Breda

Aanwijzingsbesluit vuurwerkvrije zones jaarwisseling 2025-2026 Breda

Het college van burgemeester en wethouders van de gemeente Breda,

Gelet op artikel 2.77 van de APV Breda 2018,

Overwegende dat:

  • het volgens het Vuurwerkbesluit verboden is vuurwerk, anders dan bedrijfsmatig, tot ontbranding te brengen op een ander tijdstip dan tussen 31 december 18.00 uur en 1 januari 02.00 uur van het daaropvolgende jaar. Dit niet geldt ten aanzien van fop- en schertsvuurwerk;

  • het op grond van artikel 2:77 lid 1 van de Algemene plaatselijke verordening Breda (APV) verboden is consumentenvuurwerk te bezigen op een door het college in het belang van voorkoming van gevaar, schade of overlast aangewezen plaats;

  • het ter voorkoming van overlast, schade of gevaar wenselijk is vuurwerkvrije zones aan te wijzen;

  • het ter bescherming van het dierenwelzijn nodig is het afsteken van vuurwerk niet toe te staan in de directe omgeving van kinderboerderijen/ dierenweides, zijnde de kinderboerderijen De Sik, ’t Waaijke, Parkhoeve, Wolfslaar, De Zandberg, De Bunderij in Bavel, Park Over-bos in Prinsenbeek, Dierenopvangcentrum Breda, Dierenhotel Liesbosch.

  • het ter bescherming van kwetsbare mensen wenselijk is het afsteken van vuurwerk niet toe te staan in en rondom wooncentra voor ouderen en zieken, zijnde woonvoorziening Beemdhuis, woonzorgcentrum Vuchterhage, woonzorgcentrum De Hillen, woonzorgcentrum Brabantpark en het Amphia ziekenhuis Molengracht.

  • het ter bescherming van historisch erfgoed en gelet op risico’s verbonden aan een horecaconcentratie gebied wenselijk is het afsteken van vuurwerk niet toe te staan in de binnenstad, zijnde het gebied binnen de cirkel Haven, Nieuweweg, Karnemelkstraat, Houtmarkt, Oude Vest, Vlaszak, John F. Kennedylaan, Kapucijnenhof/ Catharinastraat, Kasteelplein, Cingelstraat, Kraanstraat, Vismarkt. Tevens wordt ter bescherming van historisch erfgoed de omgeving rond de korenmolen De Hoop in Bavel aangewezen;

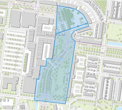
  • het vanuit het oogpunt van openbare orde en veiligheid wenselijk is het afsteken van vuurwerk niet toe te staan op het Groenedijkplein, een deel van de Doornboslaan inclusief de aangrenzende groenzones voor wat betreft het deel tussen de rotondes met het Groenedijkplein en de Molstraat, de omgeving van BS het Noorderlicht aan de Cornelis Florisstraat inclusief de aangrenzende parkeerzones, het Nelson Mandelaplein, het Mgr. Nolensplein, winkelcentrum Heksenwiel en het Stationsplein (noord en zuidzijde).

  • inwoners van Breda actief gelegenheid (via PlanBreda) is gegeven een zienswijze te geven op het ontwerpbesluit gedurende een periode van augustus tot medio oktober.

  • over voorgaande met de locaties zelf en andere betrokken partijen overleg is geweest.

BESLUIT:

  • 1. De navolgende locaties (inclusief de directe omgeving) en gebieden als aangegeven op de bij dit besluit behorende kaarten aan te wijzen als plaatsen waar het tussen 31 december 18.00 uur en 01 januari 02.00 uur verboden is categorie F21 consumentenvuurwerk af te steken:

    • Kinderboerderij/ dierenverblijf De Sik (Haagse Beemden)

    • Kinderboerderij ’t Waaijke (Ulvenhout)

    • Kinderboerderij Wolfslaar (Overakker)

    • Kinderboerderij Parkhoeve (Hoge Vucht)

    • Kinderboerderij De Zandberg (Zandberg)

    • De Bunderij (Bavel)

    • Park Over-bos (Prinsenbeek)

    • Dierenopvangcentrum Breda (Krogten)

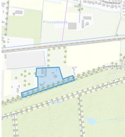
    • Dierenhotel Liesbosch (Prinsenbeek)

    • Woonvoorziening Het Beemdhuis (Haagse Beemden)

    • Woonzorgcentrum Brabantpark (Brabantpark)

    • Woonzorgcentrum Vuchterhage (Hoge Vucht)

    • Woonzorgcentrum De Hillen (Haagse Beemden)

    • Amphia Ziekenhuis Molengracht (Sportpark)

    • Molen De Hoop Bavel (Bavel)

    • City gebied: zijnde het gebied binnen de cirkel Haven, Nieuweweg, Karnemelkstraat, Houtmarkt, Oude Vest, Vlaszak, deel John F. Kennedylaan, Kapucijnenhof/ Catharinastraat, Kasteelplein, Cingelstraat, Kraanstraat, Vismarkt (City)

    • Groenedijkplein, Doornboslaan inclusief de aangrenzende groenzones voor wat betreft het deel tussen de rotondes/ kruising met het Groenedijkplein en de Molstraat (Hoge Vucht)

    • Omgeving BS Het Noorderlicht inclusief de aangrenzende parkeerzones (Geeren Noord)

    • Stationsplein Breda (Station)

    • Nelson Mandelaplein (Tuinzigt)

    • Winkelcentrum Heksenwiel (Haagse Beemden)

    • Mgr. Nolensplein (Heuvel)

  • 2. Dit besluit treedt in werking op de dag na bekendmaking en vervalt op 01 januari 2026, 02.01 uur.

  • 3. Dit besluit kan worden aangehaald als “Aanwijzingsbesluit vuurwerkvrije zones jaarwisseling 2025-2026 Breda”.

Ondertekening

Aldus vastgesteld op 2 december 2025,

Het college van burgemeester en wethouders

, burgemeester,

, gemeentesecretaris.

Vuurwerkvrije zones in kaart

(https://data.breda.nl/datasets/Breda::vuurwerkvrije-zones/explore)2

KWETSBARE DIEREN:

Kinderboerderij De Sik (Kesteren)

afbeelding binnen de regeling

Kinderboerderij De Wolfslaar (Breda Zuid)

afbeelding binnen de regeling

Kinderboerderij 't Waaijke (Ulvenhout)

afbeelding binnen de regeling

Kinderboerderij Parkhoeve (Breda Noord)

afbeelding binnen de regeling

Dierenweide Bunderij (Bavel)

afbeelding binnen de regeling

Kinderboerderij Zandberg

afbeelding binnen de regeling

Dierenweide park Over-bos (Prinsenbeek)

afbeelding binnen de regeling

Dierenhotel Liesbosch

afbeelding binnen de regeling

Dierenopvang Breda (Breda Noord)

afbeelding binnen de regeling

KWETSBARE PERSONEN:

Woonvoorziening Het Beemdhuis (Kesteren)

afbeelding binnen de regeling

Amphia Ziekenhuis Molengracht

afbeelding binnen de regeling

Woonzorgcentrum Brabantpark (Brabantpark)

afbeelding binnen de regeling

Woonzorgcentrum De Hillen (Haagse Beemden)

afbeelding binnen de regeling

Woonzorgcentrum Vuchterhage (Hoge Vucht)

afbeelding binnen de regeling

ERFGOED:

Molen De Hoop (Bavel)

afbeelding binnen de regeling

City gebied/ gebied binnen de oude stadsmuren van voor 15303

afbeelding binnen de regeling

OPENBARE ORDE EN VEILIGHEID:

Groenedijkplein en grasveld deel Doornboslaan (Geeren-Noord/Zuid)

afbeelding binnen de regeling

Noorderlichtplein en aangrenzende parkeerzones (Geeren-Noord)

afbeelding binnen de regeling

NS Station/ Stationsplein noord en zuid

afbeelding binnen de regeling

Nelson Mandelaplein

afbeelding binnen de regeling

Winkelcentrum Heksenwiel

afbeelding binnen de regeling

Mgr. Nolensplein

afbeelding binnen de regeling


Noot
1

Regels vuurwerk | Vuurwerk | Rijksoverheid.nl

Noot
2

De zones rond de locaties gericht op het beperken van geluidsschade/overlast en brandrisico lopen tot de eerstvolgende erfgrens, gevel of tot en met een duidelijke markering (stoep/ pad) op ruime afstand van het object. Bij de aangewezen gebieden t.b.v. beperking van overlast en oov risico’s is het gebied i.s.m. politie en handhaving bepaald.

Noot
3

Gebied City/ binnenstad: Haven, Nieuweweg, Karnemelkstraat, Houtmarkt, Oude Vest, Vlaszak, deel John F. Kennedylaan, Kapucijnenhof/ Catharinastraat, Kasteelplein, Singelstraat, Kraanstraat, Vismarkt.