Beleidsregel Reclame en uitstallingen Deventer 2025

Geldend van 11-12-2025 t/m heden

Intitulé

Beleidsregel Reclame en uitstallingen Deventer 2025

De raad van de gemeente Deventer;

Gelezen het voorstel van het college van burgemeester en wethouders van 13 oktober 2025, nummer 2025-766.

Gelet op het bepaalde in:

de artikelen 4:81, eerste lid, 4:83 en 1:3, vierde lid, van de Algemene wet bestuursrecht en artikel 4.19 van de Omgevingswet;

Overwegende dat:

  • -

    Bovengenoemde bepalingen de raad de bevoegdheid geven om een besluit te nemen om beleidsregels vast te stellen die uitleg geven over hoe het uiterlijk van bouwwerken en de toepassing daarvan;

  • -

    Het nodig is om hiervoor een beleidsregel met betrekking tot reclame en uitstallingen vast te stellen;

  • -

    De huidige beleidsregel geactualiseerd dient te worden.

Besluit:

Artikel 1 Besluit vaststelling

  • 1. De beleidsregel ‘Reclame en uitstallingen Deventer 2025’ vast te stellen

Artikel 2 Intrekking, Overgangsrecht en Inwerkingtreding

  • 1. Het huidige reclame- en uitstallingenbeleid ‘inspraaknota reclame- en uitstallingennota 2016’ wordt ingetrokken.

  • 2. De beleidsregel ‘Reclame en uitstallingen Deventer 2025’ treedt in werking op de dag na bekendmaking.

  • 3. Ontvankelijke aanvragen om omgevingsvergunning, die zijn ingediend vóór inwerkingtreding van dit beleid zoals bedoeld in lid 2 en waarop ten tijde daarvan nog niet is beslist, worden beoordeeld op basis van het beleid zoals bedoeld in lid 1.

Artikel 3 Citeertitel

  • 1. Deze beleidsregel wordt aangehaald als: beleidsregel ‘Reclame en uitstallingen Deventer 2025’.

1. Inleiding

1.1 Aanleiding

Reclame maakt onderdeel uit van het welstandsbeleid, want reclame kan het beeld van de openbare ruimte sterk beïnvloeden.

Deze reclamenota bevat het beleid en de regels voor handelsreclame die zichtbaar is vanaf het openbaar toegankelijk gebied. Deze wordt geplaatst door ondernemers en andere organisaties op hun privéterrein. Ook is er een hoofdstuk gewijd aan handelsreclame en koopwaaruitstallingen geplaatst door ondernemers in het openbaar gebied grenzend aan het privéterrein van de vestiging.

Ook het beleid ten aanzien van handelsreclame in openbaar gebied zoals tv-schermen, reclame in de A1-zone, alsmede bestaande lichtreclame op bestaande gecontracteerde plekken (billboards, abri’s, lichtmasten e.d.), zonder directe relatie met de in de omgeving aanwezige activiteiten komen in deze reclamenota aan de orde.

De basis voor dit beleid is in 2016 gelegd en is in 2025 geactualiseerd naar aanleiding van een raadsmotie ‘Vormgeving nieuw reclame- en uitstallingenbeleid’ (27 maart 2024). In deze motie heeft de gemeenteraad het college opgedragen het reclamebeleid te herijken en stringenter beleid toe passen op reclame-uitingen, bijvoorbeeld op het vlak van lichtgebruik, verkeersveiligheid, omvang en/of negatieve maatschappelijke impact.

Ook is het beleid voor reclamemasten uit het beleid verwijderd. Hiermee wordt ook vanuit de publiekrechtelijke rol van de gemeente invulling gegeven aan de raadsmotie ‘Reclamemasten langs A1’ (22 maart 2023). Hierin heeft de gemeenteraad het college verzocht geen nieuwe overeenkomsten met eventuele initiatiefnemers met betrekking tot reclamemasten te sluiten. Dit verzoek vraagt vanuit de publiekrechtelijke rol van de overheid ook om vertaling in het geldende (publiekrechtelijke) beleid. In dit beleid is ook overgangsrecht geformuleerd voor de lopende ontvankelijke aanvragen, waaronder de lopende aanvraag voor de reclamemasten.

Het voorliggende beleid is naar aanleiding van bovenstaande geactualiseerd.

1.2 Relatie met andere wet- en regelgeving

Hieronder worden de voor reclame relevante beleidsterreinen genoemd.

Welstandsnota

De reclamenota is aanvullend op de welstandsnota en vervangt hoofdstuk 5. Reclamebeleid. Alle andere hoofdstukken en onderdelen uit de welstandsnota zijn ook voor reclame-uitingen van kracht.

Omgevingsplan

Het omgevingsplan regelt onder meer de functie en het ruimtebeslag van bouwwerken. Een bouwplan moet altijd voldoen aan het omgevingsplan. Bouwmogelijkheden die het omgevingsplan geeft, kunnen niet door welstandscriteria worden tenietgedaan.

Beeldkwaliteitsplan Deventer Binnenstad

Het Beeldkwaliteitsplan Deventer Binnenstad heeft tot doel het historische karakter en de leefbaarheid van de Deventer binnenstad te behouden en te versterken. Bij reclameaanvragen wordt dit beeldkwaliteitsplan als toetsingskader gebruikt. Wat betreft het onderdeel reclame, vervangen de geactualiseerde reclameregels in deze nota bij eventuele strijdigheid de reclameregels in het Beeldkwaliteitsplan Deventer Binnenstad.

Monumentenbeleid

De gemeente kent meer dan 1.000 rijks- en gemeentelijke monumenten en een achttal beschermde stads en dorpsgezichten, waar de binnenstad van Deventer het grootste van is. Reclame aan monumenten wordt ambtelijk beoordeeld, tenzij monumentale waarden in het geding zijn.

Algemene Plaatselijke Verordening

In de Algemeen plaatselijke verordening Deventer (APV) zijn gemeentelijke regels vastgelegd over onder andere de openbare orde en veiligheid. Artikel 4.6 heeft betrekking op handelsreclame die vanaf een voor het publiek toegankelijke plaats zichtbaar is. Het aanbrengen ervan zonder vergunning is kort gezegd verboden.

Er is een lijst opgenomen van reclame-uitingen waarvoor geen omgevingsvergunning voor reclame vereist is. Dit zijn vooral tijdelijk reclame-uitingen, bouw- en makelaarsborden, en ideële en niet-commerciële reclame.

Zodra er echter sprake is van een bouwactiviteit, en dat is voor veel reclame zo, dan moet er een omgevingsvergunning op grond van de Omgevingswet worden aangevraagd.

In het Omgevingsplan zijn regels opgenomen over uitstallingen en losse reclameobjecten in de openbare ruimte. Uitstallingen worden, omdat ze niet vergunningplichtig zijn, niet getoetst aan het welstandsbeleid. Voor de kwaliteit van het straatbeeld en ook voor de winkelier is vaak het geheel aan uitingen van reclame en uitstallingen belangrijk. Om die reden, namelijk dat ze de sfeer meebepalen en voor de ondernemers een manier zijn om zich te presenteren, komen de uitstallingen in deze nota aan de orde. In deze nota geven wij in hoofdstuk 9 ter illustratie met beelden aan welke mogelijkheden en regels er zijn voor uitstallingen.

1.3 Hoe wordt er getoetst?

Wanneer is een vergunning nodig?

Zodra er sprake is van een bouwactiviteit, bouwen of een bouwwerk dan is een omgevingsvergunning vereist. Een uitzondering hierop zijn de vergunningsvrije bouwwerken, maar voor reclame-uitingen is er geen uitzondering gemaakt.

Volgens de Omgevingswet is de definitie van een bouwwerk:

Constructie van enige omvang van hout, steen, metaal of ander materiaal, die op de plaats van bestemming hetzij direct of indirect met de grond verbonden is, hetzij direct of indirect steun vindt in of op de grond, bedoeld om ter plaatse te functioneren, met inbegrip van de daarvan deel uitmakende bouwwerkgebonden installaties anders dan een schip dat wordt gebruikt voor verblijf van personen en dat is bestemd en wordt gebruikt voor de vaart.

Omdat veel reclame is bevestigd met een constructie aan het gebouw of de grond, is een omgevingsvergunning nodig.

Maar als bijvoorbeeld bij vervanging van een reclame de bestaande constructie niet verandert en de nieuwe reclame past binnen de regels van deze reclamenota dan is een vergunning niet meer nodig.

Omdat een losse uitstalling in de openbare ruimte geen bouwwerk is, is geen vergunning nodig.

Wanneer is een welstandstoets nodig?

Elke reclameaanvraag wordt door welstand getoetst. Dit gebeurt ambtelijk (door de gemeentelijke coördinator welstand), tenzij de ambtenaar van mening is dat monumentale waarden worden geschaad of er een andere bijzondere reden is. In dat geval wordt de Planadviesraad Ruimtelijke Kwaliteit om advies gevraagd.

Gewoon en bijzonder

Gewoon

Een gewone reclame-uiting past binnen de vastgestelde reclameregels. Deze regels zijn objectief, meetbaar en eenduidig en dus goed toetsbaar. Zo kan een ondernemer eenvoudig zelf een passend reclameplan maken. De gemeentelijke coördinator welstand verricht de toets. De vergunning kan dan snel verleend worden.

De regels voor een gewone, standaard reclame worden in deze notitie met illustraties toegelicht.

Bijzonder of maatwerk

Een reclame-uiting die niet past binnen de vooraf vastgestelde regels is in principe niet toegestaan. Er kunnen echter bijzondere situaties spelen die maatwerk vragen. Dit kan bijvoorbeeld het geval zijn als een pand ongeschikt is voor een gewone reclame-uiting of omdat de ondernemer iets bijzonders wil. De ondernemer en de gemeente gaan dan in overleg voor een maatwerkoplossing. Om vooraf enige duidelijkheid te kunnen geven, worden enkele kaders voor een maatwerkoplossing aangegeven. De gemeentelijke coördinator welstand beoordeelt of de bijzondere reclame past binnen de beschreven bandbreedte. Eventueel wordt de aanvraag ter advisering voorgelegd aan de Planadviesraad Ruimtelijke Kwaliteit.

De regels

In deze reclamenota komen de volgende typen reclameregels voor:

Algemene reclameregels - hoofdstuk 2

Er gelden algemene regels waar alle reclame aan moet voldoen.

Gebieds- en objectenregels - hoofdstukken 3 tot en met 8

Voor gebieden in de gemeente die een grote overeenkomst in gebruik of ruimtelijke samenhang vertonen, zoals een bedrijventerrein of de binnenstad, gelden dezelfde reclameregels.

De volgende gebiedsindeling wordt voor reclame-uitingen gehanteerd:

  • De binnenstad (hoofdstuk 3).

  • Buiten de binnenstad, exclusief de bedrijventerreinen, de Boreel en woonbestemmingen / woongebieden (hoofdstuk 4).

  • De bedrijventerreinen (hoofdstuk 5).

  • De Boreel (hoofdstuk 6).

De reclamekaart met de gebiedsindeling is opgenomen in dit beleid en te vinden op de website van de gemeente. Voor naamborden (hoofdstuk 7) met een bescheiden oppervlakte (tot 0,5 m2) zijn de regels van toepassing zoals deze in de APV zijn opgenomen.

Reclame en licht - hoofdstuk 8

Veel reclame-uitingen worden ’s avonds verlicht, etalages stralen licht uit en we hebben beeldschermreclames. In dit hoofdstuk worden de beleidsintenties hiervoor uiteengezet en de toepassingsregels behandeld.

Uitstallingen - hoofdstuk 9

In dit hoofdstuk staan de regels voor uitstallingen in de openbare ruimte. Deze uitstallingsregels gelden in een beperkt aantal gebieden die in het omgevingsplan zijn aangewezen. De uitstallingen worden niet vooraf getoetst; ze zijn vergunningsvrij. Wel wordt gecontroleerd of aan de regels wordt voldaan. Indien nodig wordt er handhavend opgetreden.

Excessen

Als er achteraf in bestaande situaties wordt ingegrepen omdat een reclame in ernstige mate strijdig is met redelijke eisen van welstand, dan kan gebruikgemaakt worden van de bestaande excessenregeling uit de welstandsnota Deventer.

2. Algemene reclameregels

2.1 Algemene reclameregels

Voor alle reclame-uitingen gelden de volgende algemene regels:

  • 1.

    reclame wordt beoordeeld aan redelijke eisen van welstand aan de hand van de regels uit de welstandsnota;

  • 2.

    reclame mag de verkeersveiligheid niet in gevaar brengen;

  • 3.

    reclame mag de constructieve veiligheid of de brandveiligheid niet in gevaar brengen;

  • 4.

    reclame heeft een relatie met de bestemming van de onroerende zaak of met het gedeelte daarvan waarop de reclame is of wordt aangebracht of met het feitelijke gebruik dat van de onroerende zaak of het gedeelte wordt gemaakt, tenzij het handelsreclame van tijdelijke aard betreft of indien het om een door het college aangewezen onroerende zaak gaat (zie hiervoor ook de APV);

  • 5.

    reclame is niet in strijd met de openbare orde of de goede zeden;

  • 6.

    reclame is een ondergeschikt element aan of bij het gebouw;

  • 7.

    reclame past qua plaatsing, vorm en grootte, kleur- en materiaalgebruik; en detaillering bij de architectuur en omvang van het hoofdgebouw;

  • 8.

    geen bewegende lichtreclame, knipperende lichtreclame of reclame met mechanisch bewegende delen, behoudens onder voorwaarden bij tv-schermen (aan / op de gevel) en de bestaande gecontracteerde plekken in de openbare ruimte en de aangewezen gebieden zoals beschreven in hoofdstuk 8.

  • 9.

    geen spandoeken (dit zijn losse, met enkele touwen bevestigde doeken);

  • 10.

    reclame verkeert in tenminste een redelijke staat van onderhoud;

  • 11.

    reclame vormt geen aantasting van cultuurhistorische waarden.

2.2 Tijdelijke en niet-commerciële reclames

Er zijn verschillende soorten tijdelijke reclames en niet-commerciële reclames waarvoor geen vergunning vereist is. Dit is vastgelegd in de APV (artikel 4.6.), maar voor het overzicht worden ze hier samengevat. De regels in de APV zijn maatgevend.

Makelaarsborden

Borden voor de verkoop of verhuur van onroerend goed.

  • -

    ze zijn onverlicht;

  • -

    ze hangen op, aan of bij het pand waarop het betrekking heeft;

  • -

    ze hangen niet langer dan nodig is voor de verkoop;

  • -

    voor niet- bedrijfspanden: ze zijn gezamenlijk niet groter dan 0,5 m2 en niet langer dan 1,0 m;

  • -

    voor bedrijfspanden: ze zijn gezamenlijk niet groter dan 3,0 m2.

Bouwborden

Borden waarop wordt vermeld wat er wordt gebouwd en wie dat doet.

  • -

    ze zijn op of direct grenzend aan het bouwterrein geplaatst;

  • -

    ze zijn uitsluitend aanwezig gedurende de bouwperiode;

  • -

    ze staan niet op openbare grond, tenzij het werkzaamheden op openbare grond betreft;

  • -

    ze zijn niet bevestigd aan brugleuningen of keerhekken;

Tijdelijke aankondigingen en aanprijzingen

Het gaat hier om reclame-uitingen die betrekking hebben op een evenement, festiviteit, actie of activiteit voor een breed publiek. Er gelden de volgende regels:

  • -

    de reclame is niet langer dan 6 weken aanwezig;

  • -

    de reclame heeft geen betrekking op een commercieel merk of product of een commerciële actie;

  • -

    de reclame mag op borden, vlaggen of spandoeken worden afgebeeld (dit is de enige situatie in Deventer waar spandoeken zijn toegestaan);

  • -

    de reclame is niet gericht op bedrijven;

  • -

    de reclame bevindt zich niet op gronden langs de A1 en is vanaf daar ook niet zichtbaar;

  • -

    het evenement heeft een tijdelijk karakter;

  • -

    het evenement is voor een breed publiek toegankelijk;

  • -

    het evenement heeft een sociaal-cultureel karakter ofwel een maatschappelijk belang;

  • -

    het evenement heeft een passief-recreatief karakter;

Tijdelijke reclames voor seizoensgebonden producten

Het gaat hier om opschriften, aankondigingen, aanprijzingen en afbeeldingen die betrekking hebben op de verkoop van seizoensgebonden producten. De regels zijn:

  • -

    de reclame is niet langer dan 6 weken aanwezig;

  • -

    de reclame is aangebracht op borden;

  • -

    de reclame is niet aangebracht op spandoeken, vlaggen of spanframes;

  • -

    de reclame bevindt zich in het buitengebied;

  • -

    de reclame bevindt zich in de nabijheid van het verkooppunt (bewegwijzeringsfunctie);

  • -

    de reclame bevindt zich niet op openbaar gebied.

2.3 Uitzonderingen op de algemene reclameregels

Het kan voorkomen dat een reclameaanvraag niet voldoet aan de algemene reclameregels. Dit kan zijn, omdat er zich een bijzondere situatie voordoet. Ook kan er sprake zijn van een bijzondere aanvraag, omdat een ondernemer iets specifieks wenst. Als uit toetsing blijkt dat de aanvraag een positieve bijdrage levert aan de ruimtelijke kwaliteit van de gemeente, dan kan er van de algemene regels worden afgeweken. Deze toets vindt in eerste instantie ambtelijk plaats, hierover is uiteraard een dialoog mogelijk tussen de initiatiefnemer en de ambtelijke toetser.

Bij twijfel wordt de aanvraag voorgelegd aan de Planadviesraad Ruimtelijke Kwaliteit. De gebieds- en algemene welstandscriteria uit de welstandsnota Deventer zijn in die situaties ook het toetsingskader.

3. Reclame Binnenstad

3.1 Inleiding

Het hoofduitgangspunt voor reclame in de binnenstad is dat reclame moet bijdragen aan de sfeer en de ruimtelijke kwaliteit van de historische binnenstad. De reclame moet chique en ingetogen zijn en de ondernemer voldoende mogelijkheden bieden zich te presenteren.

In dit reclamebeleid worden concrete en eenduidige regels voorgesteld voor een gewone, standaard reclame. Ook wordt er ruimte geboden voor maatwerkoplossingen die goed passen bij een gewenst sfeerbeeld of na te streven ruimtelijke kwaliteit.

Gewone reclamevormen

Er wordt een overzicht gegeven van de reclamevormen waarvoor standaardregels zijn opgesteld. De vorm of het type worden geïllustreerd.

Het stapelen van de reclamevormen

De navolgende reclamevormen kunnen – binnen de voorwaarden die aan de maximale aantallen voor een reclamevorm gesteld worden – met elkaar gecombineerd worden (of anders gezegd gestapeld worden).

  • a)

    Vaste reclame; reclame aan de gevel

    Tot een gevelbreedte van 7,5 strekkende meter is één van de drie getoonde reclamevormen aan de gevel (zie paragraaf 3.2) toegestaan. Bij een gevel tussen 7,5 en 15 meter is een tweede reclame toegestaan. Zo verder voor elke 7,5 meter komt er een bij.

  • b)

    Voor een hoekpand worden de voorgevel en de bewinkelde zijgevel opgeteld als strekkende meter gevel. Bijvoorbeeld: aan de voorgevel van 7 m breed kan één van de getoonde reclame vormen geplaatst worden en aan de bewinkelde zijgevel van 5 m breed kan ook één van de getoonde reclamevormen geplaatst worden.

  • c)

    Vaste reclame; reclame op de ruit.

  • d)

    Losse reclame; dagelijks te verwijderen reclame aan de gevel.

Als een reclamevorm niet in het overzicht staat, dan zijn er geen standaardregels voor opgesteld. Die bepaalde reclamevorm is in de binnenstad ongewenst. Wil een ondernemer toch een afwijkende reclame plaatsen, dan is overleg met de gemeentelijk coördinator welstand mogelijk. Deze beoordeelt of de afwijkende reclamevorm past binnen de algemene en bijzondere reclameregels van deze nota.

Verlichte reclames of lichtgevende reclameobjecten moeten zich houden aan de lichtregels zoals die in hoofdstuk 8 zijn opgenomen.

In de binnenstad zijn geen traditionele lichtbakken toegestaan: witte ondergrond met daarop tekst, logo of afbeelding. Wel zijn van binnenuit verlichte reclames toegestaan, waarbij de ondergrond donker is.

Beeldschermenreclame in de openbare ruimte zijn in de binnenstad toegestaan als vervanging van lichtreclame in abri’s en billboards, mits passend in de bestaande frames of oppervlaktes. Tijdelijke en bijzondere reclame kan in bijzondere gevallen en bij uitzondering. De Planadviesraad beoordeelt.

In de binnenstad zijn geen reclames toegestaan in de vorm van spanframes, banieren en vlaggen aan gevels, beachflags, losse borden op de grond (ook niet in de uitstallingenzone), bewegende of draaiende objecten etc.

Bijzondere reclame

Een reclame-uiting die niet past binnen deze standaardregels is bijzonder. Dit kan zijn omdat een pand ongeschikt is voor een gewone reclame-uiting, maar ook omdat de ondernemer het bijzondere karakter van zijn pand of straat wil benadrukken. De ondernemer(s) en de gemeente kunnen in overleg een maatwerkoplossing zoeken. Om vooraf enige duidelijkheid te geven, worden de kaders voor een maatwerkoplossing zo helder mogelijk beschreven. De gemeentelijk coördinator welstand beoordeelt de maatwerkoplossing. Bij twijfel wordt de aanvraag voorgelegd aan de Planadviesraad Ruimtelijke Kwaliteit.

3.2 Overzicht reclames binnenstad

3.2.1 Reclamebord aan de gevel: Bord

Reclame is afgestemd op de detaillering, maat, materialisatie en kleurstelling van de pui en het pand

afbeelding binnen de regeling

Aantal

Maximaal één per 7,5 m gevel.

Plaatsing

Onder de onderdorpels van de ramen op de eerste verdieping.

Breedte

Maximaal 2,0 m.

Hoogte

Maximaal 0,40 m.

Verlichting

Aangelicht of verlicht, zie hoofdstuk 8.

Vergunning

Ja.

3.2.2 Open letters of doosletters aan de gevel

Reclame is afgestemd op de detaillering, maat, materialisatie en kleurstelling van de pui en het Pand.

afbeelding binnen de regeling

afbeelding binnen de regeling

Aantal

Maximaal één per 7,5 m gevel.

Plaatsing

Onder de onderdorpels van de ramen op de eerste verdieping.

Breedte

Maximaal 2,0 m.

Hoogte

Maximaal 0,40 m.

Verlichting

Aangelicht of verlicht, zie hoofdstuk 8.

Vergunning

Ja.

3.2.3 Uithangbord haaks op de gevel

Reclame is afgestemd op de detaillering, maat, materialisatie en kleurstelling van de pui en het Pand.

afbeelding binnen de regeling

afbeelding binnen de regeling

Aantal

Maximaal één per 7,5 m gevel.

Plaatsing

Minimaal 2,2 m boven de stoep.

Onder de onderdorpels van de ramen op de eerste verdieping.

Oppervlakte

Maximaal 0,5 m2.

Breedte

Maximaal 0,75 m.

Verlichting

Aangelicht of verlicht, zie hoofdstuk 8.

Vergunning

Ja.

3.2.3 Reclame op de ruit

Reclame is afgestemd op de detaillering, maat, materialisatie en kleurstelling van de pui en het pand

afbeelding binnen de regeling

Aantal

Maximaal één per ruit. Per sticker één reclame-uiting.

Plaatsing

Op of achter de ruit.

Oppervlakte

Maximaal 25% van het ruitoppervlak.

Vergunning

Nee.

Een dichtgeplakte ruit zonder reclame, huisstijl-uiting of logo is vergunningvrij.

3.2.4 Losse reclameborden op de gevel

afbeelding binnen de regeling

Aantal

Naar keuze.

Plaatsing

Gedurende openingstijden van de winkel aan de eigen gevel.

Oppervlakte

Maximaal 0,8 m2 per stuk.

Totale oppervlakte maximaal

2,0 m2, dit is samen met de borden

uit § 9.2.2 en § 9.2.3.

Diepte

Maximaal 0,3 m uit de gevel.

Hoogte

Tot maximaal 3,5 boven de stoep

Vergunning

Nee.

3.3 Reclames binnenstad bijzonder

Reclame die niet past binnen de regels zoals hiervoor beschreven, is bijzonder. Er zijn geen objectieve eenduidige criteria voor een toetsing voor bijzondere reclame op te stellen. Hieronder worden aan de hand van de mogelijkheden die zich kunnen voordoen de globale criteria beschreven waar een bijzondere reclame aan getoetst kan worden. Een belangrijk criterium is de bijdrage en verhoging van de reclame aan de sfeer in een straat of op een plein. De toetsing van de bijzondere reclame aan redelijke eisen van welstand gebeurt in eerste instantie ambtelijk. Bij twijfel wordt de aanvraag voorgelegd aan de Planadviesraad Ruimtelijke Kwaliteit. De welstandsnota en het Beeldkwaliteitsplan Deventer Binnenstad zijn in die situaties ook het toetsingskader.

Reclame aan de gevel

Plaatsing

afbeelding binnen de regeling

Als de bedrijvigheid zich (ook) op de verdieping bevindt (bijvoorbeeld een hotel of warenhuis) dan kan - mits passend in de gevelopbouw - een plaatsing van de reclame- uiting op een hogere verdieping mogelijk zijn.

Ambachtelijk uithangbord

afbeelding binnen de regeling

Er is een voorkeur voor het gebruik van ambachtelijke uithangborden.

De maatvoering van nieuwe borden aan de bestaande ambachtelijke uithangijzers zijn afgestemd op de bestaande maatvoering en op die voor ‘gewone’ uithangborden.

Nieuwe figuratieve ontwerpen kunnen een afwijkende maat hebben en zullen beoordeeld worden op basis van het Beeldkwaliteitplan Binnenstad Deventer.

Tweede reclame-uiting

afbeelding binnen de regeling

De regel is dat bij panden die smaller zijn dan 7,5 m zijn één reclame-uiting aan de gevel is toegestaan.

Indien er bijzondere omstandigheden zijn, kan een tweede reclame-uiting overwogen worden. Belangrijke aspecten hierbij zijn de bijdrage van de reclame aan de sfeer in een straat of plein, de afstemming op de vormgeving van het pand en de afstemming met de eerste reclamevorm (geen twee uithangborden).

Muurschilderingen

afbeelding binnen de regeling

Naast restauratie van oude reclame-muurschilderingen kunnen in samenspraak met de gemeente nieuwe reclame- muurschilderingen worden aangebracht.

Belangrijke punten hierbij zijn de situering van de gevel, de ondergrond (bij voorkeur stucwerk) en een ingetogen kleurgebruik.

Reclame op de ruit

afbeelding binnen de regeling

Er kan om aantoonbare (bedrijfs-)technische redenen of wegens leegstand een grotere oppervlakte dan 25% van de ruit worden dichtgeplakt. In dat geval is er wel een vergunning nodig. Een transparante folie heeft in dat geval de voorkeur.

Het dichtplakken van ruiten zonder een reclame-uiting, huisstijlkleur of logo is vergunningsvrij en ook regelvrij.

4. Reclame buiten de binnenstad

4.1 Inleiding

Het gebied ‘Buiten de binnenstad’ omvat het grondgebied van de gehele gemeente Deventer, behalve de binnenstad, De Boreel en de bedrijventerreinen.

Voor de panden en percelen met een woonbestemming zijn geen aparte regels opgesteld. Hier is reclame niet toegestaan. Voor wonen met bedrijf of beroep aan huis geven de regels uit de Algemene plaatselijke verordening Deventer (APV) de mogelijkheid voor een vergunningsvrij naambord. In hoofdstuk 8 is dit naambord geïllustreerd.

In de regels voor de gebieden buiten de binnenstad wordt op onderdelen, bijvoorbeeld voor verlichting, een onderscheid gemaakt tussen reclame binnen en reclame buiten de bebouwde kom.

Het uitgangspunt voor de reclame buiten de binnenstad is dat er een goede balans is tussen de ruimtelijke kwaliteit van de openbare ruimte en het buitengebied enerzijds en de belangen van de ondernemers anderzijds.

De reclame-uitingen moeten er verzorgd uitzien en de ondernemer voldoende mogelijkheden bieden zich te presenteren.

Gewone reclamevormen

Er wordt een overzicht gegeven van de reclamevormen waarvoor standaardregels zijn opgesteld. De vorm of het type worden geïllustreerd.

Het stapelen van de reclamevormen

De navolgende reclamevormen kunnen – binnen de voorwaarden die aan de maximale aantallen voor een reclamevorm gesteld worden – met elkaar gecombineerd worden (of anders gezegd gestapeld worden).

  • a)

    Vaste reclame: reclame aan de gevel en vrijstaande reclame op eigen terrein.

    Binnen de bebouwde kom zijn tot 10 strekkende meter gevel drie reclame-uitingen toegestaan. Op een bredere gevel is per 10 strekkende meter één extra reclame-uiting mogelijk. Bijvoorbeeld voor een 15 m brede gevel kunnen 4 reclame-uitingen geplaatst worden. Voor een hoekpand worden de voorgevel èn de bewinkelde zijgevel samen gerekend als strekkende meter gevel. Bij bijvoorbeeld een voorgevel van 7 m breed en een bewinkelde zijgevel van 5 m breed (samen 12 m gevel) is één extra reclame-uiting mogelijk.

    Buiten de bebouwde kom zijn per vestiging drie reclame-uitingen toegestaan. Combinatie naar keuze uit de getoonde reclamevormen in paragraaf 4.2, bijvoorbeeld één uithangbord, één vrijstaand bord en één vlag.

    Buiten de bebouwde kom blijft in alle omstandigheden het maximum aantal van drie reclame-uitingen per vestiging gelden.

  • b)

    Vaste reclame: reclame op de ruit

  • c)

    Losse reclame: reclame aan de gevel

  • d)

    Losse reclame: een vrijstaand reclamebord

Als een reclamevorm niet in het overzicht staat, dan zijn er geen standaardregels voor opgesteld. Die bepaalde reclamevorm is dan ongewenst. Maar het kan ook dat het een nieuwe vorm betreft of dat het een afwijkende variant op een reclamevorm of uitstallingstype in het overzicht is. Wil een ondernemer toch een afwijkende reclame plaatsen, dan is overleg met de gemeentelijk coördinator welstand mogelijk. Deze beoordeelt of de afwijkende reclamevorm past binnen de algemene en bijzondere reclameregels van deze nota.

De gebieds- en algemene welstandscriteria uit de welstandsnota Deventer zijn in deze situaties ook het toetsingskader.

Verlichte reclames of lichtgevende reclameobjecten moeten zich houden aan de lichtregels zoals die in hoofdstuk 8 zijn opgenomen.

Verlichte of aangelichte reclame is buiten de bebouwde kom niet toegestaan.

Beeldschermen zijn toegestaan als vervanging van lichtreclame in abri’s en billboards, mits passend in de bestaande frames. Tijdelijke en bijzondere reclame kan in bijzondere gevallen en bij uitzondering. De Planadviesraad beoordeelt.

Regels buiten de binnenstad

In de volgende paragraaf worden per reclamevorm aan de hand van een tekening of foto de standaardregels die betrekking hebben op de aantallen, plaatsing, afmetingen en de verlichting toegelicht. Ook wordt aangegeven of een vergunning noodzakelijk is.

Voor de vaste reclame aan de gevel en de vaste vrijstaande reclame op het eigen terrein is een klein onderscheid aangebracht tussen de bebouwde kom en daarbuiten. Buiten de bebouwde kom is het maximale aantal van drie reclame-uitingen gerelateerd aan de vestiging of het gebouw, binnen de bebouwde kom is het gerelateerd aan de gevellengtes. Dit is omdat er binnen de bebouwde kom vaak sprake is van aaneengesloten bebouwing of een lintbebouwing met bedrijvigheid en buiten de bebouwde kom meestal een solitaire bedrijfsvestiging in vrijstaande bebouwing op enige afstand van de openbare weg.

Bijzondere reclame

Een reclame-uiting die niet past binnen de standaardregels is bijzonder. Dit kan zijn omdat een pand of de situering ongeschikt is voor een gewone reclame-uiting of omdat bijvoorbeeld de winkeliers in een winkelcentrum iets bijzonders willen. De ondernemer(s) en de gemeente kunnen in overleg een maatwerkoplossing zoeken. Om vooraf enige duidelijkheid te kunnen geven worden de kaders voor een maatwerkoplossing zo helder mogelijk beschreven. De gemeentelijk coördinator welstand beoordeelt de maatwerkoplossing. Bij twijfel wordt de aanvraag voorgelegd aan de Planadviesraad Ruimtelijke Kwaliteit. De gebieds- en algemene welstandscriteria uit de welstandsnota Deventer zijn in deze situaties ook het toetsingskader.

4.2 Overzicht reclames buiten de binnenstad

4.2.1 Reclamebord of losse letters aan de gevel

afbeelding binnen de regeling

afbeelding binnen de regeling

Aantal

Binnen de bebouwde kom

Maximaal drie reclame-uitingen bij 10 m gevel.

Buiten de bebouwde kom

Maximaal drie reclame-uitingen per vestiging op maximaal twee gevels.

Plaatsing

Onder de onderdorpels van de Ramen op de eerste verdieping of onder de goot.

Oppervlak

Maximaal 2,0 m2.

Verlichting

Binnen de bebouwde kom

Kan aangelicht of verlicht, zie hoofdstuk 8.

Buiten de bebouwde kom

Geen verlichting.

Vergunning

Ja.

4.2.2 Uithangbord haaks op de gevel

afbeelding binnen de regeling

Aantal

Binnen de bebouwde kom

Maximaal drie reclame-uitingen bij 10 m gevel.

Buiten de bebouwde kom

Maximaal drie reclame-uitingen per vestiging op maximaal twee gevels.

Plaatsing

Minimaal 2,2 m boven de stoep.

Onder de onderdorpels van de ramen op de eerste verdieping of onder de goot.

Oppervlakte

Maximaal 0,7 m2.

Verlichting

Binnen de bebouwde ko m

Kan aangelicht of verlicht, zie hoofdstuk 8.

Buiten de bebouwde kom

Geen verlichting.

Vergunning

Ja.

4.2.3 Banier haaks op de gevel

afbeelding binnen de regeling

afbeelding binnen de regeling

Aantal

Binnen de bebouwde kom

Maximaal drie reclame-uitingen bij 10 m gevel.

Buiten de bebouwde kom

Maximaal drie reclame-uitingen per vestiging op maximaal twee gevels.

Plaatsing

Minimaal 2,2 m boven de stoep.

Onder de onderdorpels van de ramen op de eerste verdieping of onder de goot.

Breedte

Maximaal 0,6 m.

Verlichting

Binnen de bebouwde kom

Kan aangelicht of verlicht, zie hoofdstuk 8.

Buiten de bebouwde kom

Geen verlichting.

Vergunning

Ja.

4.2.4 Spanframe op de gevel

afbeelding binnen de regeling

Aantal

Binnen de bebouwde kom

Maximaal drie reclame-uitingen bij 10 m gevel.

Buiten de bebouwde kom

Maximaal drie reclame-uitingen per vestiging op maximaal twee gevels.

Plaatsing

Onder de lijn van de bovendorpels van de winkelramen of pui op de begane grond.

Oppervlakte

Maximaal 2,0 m2.

Verlichting

Binnen de bebouwde kom

Kan aangelicht, zie hoofdstuk 8.

Buiten de bebouwde kom

Geen aanlichting.

Vergunning

Ja.

4.2.5 Vlag aan de gevel

afbeelding binnen de regeling

afbeelding binnen de regeling

Aantal

Binnen de bebouwde kom

Maximaal drie reclame-uitingen bij 10 m gevel.

Buiten de bebouwde kom

Maximaal drie reclame-uitingen per vestiging op maximaal twee gevels.

Plaatsing

Minimaal 2,2 m boven de stoep

Vlaghouder 1,0 m onder de onderdorpels van de ramen op de eerste verdieping.

Breedte

Maximaal 1,0 m uit de gevel.

Verlichting

Binnen de bebouwde kom

Kan aangelicht, zie hoofdstuk 8.

Buiten de bebouwde kom

Geen aanlichting.

Vergunning

nee, mits buiten openingstijden verwijderd.

4.2.6 Vrijstaande zuil op eigen terrein

afbeelding binnen de regeling

Aantal

Binnen de bebouwde kom

Maximaal drie reclame-uitingen bij 10 m gevel.

Buiten de bebouwde kom

Maximaal drie reclame-uitingen per vestiging.

Plaatsing

Op eigen terrein.

Hoogte

Maximaal 3,0 m.

Oppervlakte

Maximaal 2,0 m2.

Verlichting

Binnen de bebouwde kom

Kan aangelicht, zie hoofdstuk 8.

Buiten de bebouwde kom

Geen aanlichting.

Vergunning

Ja.

4.2.7 Vrijstaand vast bord of spanframe op eigen terrein

afbeelding binnen de regeling

Aantal

Binnen de bebouwde kom

Maximaal drie reclame-uitingen bij 10 m gevel.

Buiten de bebouwde kom

Maximaal drie reclame-uitingen per vestiging.

Plaatsing

Op eigen terrein.

Oppervlakte

Maximaal 2,0 m2.

Verlichting

Binnen de bebouwde kom

Kan aangelicht, zie hoofdstuk 8.

Buiten de bebouwde kom

Geen aanlichting.

Vergunning

Ja.

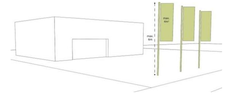
4.2.8 Vlag of banier op eigen terrein

afbeelding binnen de regeling

Aantal

Binnen de bebouwde kom

Maximaal drie reclame-uitingen bij 10 m gevel.

Buiten de bebouwde kom

Maximaal drie reclame-uitingen per vestiging.

Plaatsing

Op eigen terrein.

Hoogte

Mast maximaal 6,0 m.

Oppervlakte

Maximaal 4,0 m2.

Vergunning

Ja.

4.2.9 Reclame op de ruit

afbeelding binnen de regeling

Aantal

Maximaal één per ruit. Per sticker één reclame-uiting.

Plaatsing

Op of achter de ruit.

Oppervlakte

Maximaal 25% van het ruitoppervlak.

Vergunning

Nee

Een dichtgeplakte ruit zonder reclame, huisstijluiting of logo is vergunningvrij.

4.2.10 Los reclamebord op de stoep

afbeelding binnen de regeling

afbeelding binnen de regeling

Aantal

Eén bord per 10 strekkende meter gevel. Twee borden als de gevel breder is.

Plaatsing

Tijdens openingstijden van de winkel voor de gevel. In het aangewezen deel van Boxbergerweg en Rielerweg in de 0,60 m uitstallingenzone.

Hoogte

Maximaal 1,2 m.

Breedte

Maximaal 0,6 m.

Vergunning

Nee.

4.2.11 Los reclamebord aan de gevel

afbeelding binnen de regeling

Aantal

Naar keuze.

Plaatsing

Tijdens openingstijden van de winkel.

Oppervlakte

Maximaal 0,8 m2, alle gevelborden gezamenlijk.

Diepte

Maximaal 0,3 m uit de gevel.

Hoogte

Onder de ramen van de eerste verdieping of dakgoot.

Vergunning

Nee.

4.3 Reclames buiten de binnenstad bijzonder

Reclame die niet past binnen de regels zoals hiervoor beschreven, is bijzonder.

Er zijn geen objectieve eenduidige criteria voor een toetsing voor bijzondere reclame op te stellen. Hieronder worden aan de hand van de mogelijkheden die zich kunnen voordoen de globale criteria beschreven waar een bijzondere reclame aan getoetst kan worden. Een belangrijk criterium is de bijdrage en verhoging van de reclame aan de sfeer in een straat of op een plein. De toetsing van de bijzondere reclame aan redelijke eisen van welstand gebeurt in eerste instantie ambtelijk. Bij twijfel wordt de aanvraag voorgelegd aan de Planadviesraad Ruimtelijke Kwaliteit. De welstandsnota is in die situaties ook het toetsingskader.

Vrijstaande borden niet op eigen terrein

  • Het kan zo zijn dat een publieksfunctie, zoals een restaurant, is gevestigd aan een niet doorgaande weg. In dat geval kan plaatsing van een verwijzend naambord op een ander pand of onbebouwd perceel overwogen worden. De reclame-uiting is vergunningplichtig, waarbij het bepalen van het aantal borden en de afmetingen in overleg met de gemeente gebeurt. Eventueel wordt het plan voorgelegd aan de Planadviesraad.

Sport- en recreatieterreinen

  • Voor de reclame op of aan gebouwen op de sport- en recreatieterreinen gelden ook de reclameregels ‘buiten de binnenstad’. Dit betekent dat deze reclame een relatie moet hebben met de bestemming. Het is dus niet toegestaan om op of aan gebouwen reclame-uitingen van derden aan te brengen.

    Reclame van derden is alleen toegestaan rondom de sportvelden als de reclame op het sportveld is gericht. Als deze reclame-uitingen niet hoger zijn dan 1,0 m zijn ze vergunningsvrij.

    Alle andere reclame-uitingen zijn vergunningplichtig. Bij reclame-uitingen hoger dan 1,0 m wordt de situering (zicht vanaf de openbare weg en uitzicht omwonenden) ambtelijk getoetst. Eventueel wordt het plan voorgelegd aan de Planadviesraad.

Reclame op de ruit

  • Er kan om aantoonbare (bedrijfs-)technische redenen of wegens leegstand een grotere oppervlakte dan 25% van de ruit worden dichtgeplakt. In dat geval is er wel een vergunning nodig. Een transparante folie heeft in dat geval de voorkeur.

    Het dichtplakken van ruiten zonder een reclame-uiting, huisstijlkleur of logo is vergunningsvrij en ook regelvrij.

5. Reclame op bedrijventerreinen

5.1 Inleiding

Voor de bedrijventerreinen worden langs de hoofdwegen en de A1 strengere eisen gesteld aan de reclames aan de gevel dan elders. Over deze wegen komen veel mensen langs en kent de ruimtelijke omgevingskwaliteit ook een sterk algemeen belang.

Uithangborden en banieren

Uithangborden aan de gevel komen door de vaak ruime afstand tot de weg nauwelijks voor op het bedrijventerrein. Voor de borden of banieren die haaks op de gevel zijn geplaatst, zijn daarom geen aparte regels opgenomen.

Reclame op beeldschermen (op gevel bedrijfspand)

Een beeldscherm is toegestaan aan de gevel op de bedrijventerreinen, mits het reclame van het eigen bedrijf betreft en mits het past binnen het maximaal toegestane aantal en oppervlakte. Er gelden specifieke voorwaarden voor beeldschermen ten aanzien van lichtsterkte en de afbeeldingen. Zie hiervoor hoofdstuk 8.

Gewone reclamevormen

Er wordt een overzicht gegeven van de reclamevormen waarvoor standaardregels zijn opgesteld. De vorm of het type worden geïllustreerd.

Het stapelen van de reclamevormen

De navolgende reclamevormen kunnen – binnen de voorwaarden die aan de maximale aantallen voor een reclamevorm gesteld worden – met elkaar gecombineerd worden (of anders gezegd gestapeld worden).

  • a)

    reclame op het dak;

  • b)

    reclame aan de gevel, dit kan ook reclame op beeldschermen zijn.

  • c)

    Er kunnen maximaal drie gevelreclame-uitingen per pand gekozen worden uit de 6 getoonde reclamevormen in paragraaf 5.2;

  • d)

    reclame op de ruit;

  • e)

    vrijstaande vaste reclame op eigen terrein,

    Er kunnen maximaal twee vrijstaande reclamevormen gekozen worden per pand uit de getoonde vrijstaande reclamevormen in paragraaf 5.2.

5.2 Overzicht reclames bedrijventerreinen

5.2.1 Open letters op het dak

afbeelding binnen de regeling

Plaatsing

Op de dakrand.

Hoogte

Langs de A1 maximaal 2,0 m.

Langs alle overige wegen maximaal 1,0 m.

Breedte

Maximaal 50% van gevelbreedte.

Verlichting

Gericht naar bebouwing of A1

Kan aangelicht of verlicht, zie hoofdstuk 8.

Gericht naar buitengebied

Geen verlichting.

Vergunning

Ja

Opmerking

Gesloten borden of lichtbakken zijn niet toegestaan op het dak.

5.2.2 Reclame aan de gevel

afbeelding binnen de regeling

Type

Bord, open letters, uithangbord, spanframe, vlag of banier.

Aantal

Maximaal drie per pand.

Plaatsing

Aan de gevel, onder de dakrand.

Oppervlak

Langs de hoofdwegen en A1

Maximaal 20% van het geveloppervlak.

Langs de overige wegen

50% van het geveloppervlak.

Verlichting

Gericht naar bebouwing of A1

Kan aangelicht of verlicht, zie hoofdstuk 8.

Gericht naar buitengebied

Geen verlichting.

Vergunning

Ja

5.2.3 Reclame op de ruit

afbeelding binnen de regeling

Aantal

Maximaal één per ruit. Per sticker één reclame-uiting.

Plaatsing

Op of achter de ruit.

Oppervlakte

Maximaal 25% van het ruitoppervlak.

Vergunning

Nee.

Een dichtgeplakte ruit zonder reclame, huisstijluiting of logo is vergunningvrij.

5.2.4 Vrijstaande zuil, bord of spanframe op eigen terrein

afbeelding binnen de regeling

Aantal

Maximaal twee vrijstaande reclames per kavel.

Bij kavelbreedte langs openbaar gebied boven de 50 m: per 25 m een bord extra.

Plaatsing

Op eigen terrein.

Hoogte

Maximaal 3,5 m.

Oppervlakte

Maximaal 6,0 m2.

Verlichting

Gericht naar bebouwing of A1

Kan aangelicht of verlicht, zie hoofdstuk 8.

Gericht naar buitengebied

Geen verlichting en geen beeldschermen.

Vergunning

Ja.

5.2.5 Vlag of banier op eigen terrein

afbeelding binnen de regeling

Aantal

Maximaal drie vlaggen- of baniermasten.

Bij kavelbreedte langs openbaar gebied meer dan 50 m: per 25 m een bord extra.

Plaatsing

Op eigen terrein.

Hoogte

Mast maximaal 6,0 m.

Oppervlakte

Maximaal 4,0 m2.

Verlichting

Gericht naar bebouwing of A1

Kan aangelicht of verlicht, zie hoofdstuk 8.

Gericht naar buitengebied

Geen verlichting.

Vergunning

Ja.

5.2.6 Beeldscherm

afbeelding binnen de regeling

Aantal

Maximaal een per pand.

Plaatsing

Uitsluitend op de gevel.

Niet op gevels gericht naar woon- of buitengebied.

Oppervlakte

Maximaal 2,5 m2.

Beeld

Geen animaties of films.

Niet knipperen.Beeldwissel niet sneller dan eens per 6 seconden.

Lichtsterkte

Niet hinderlijk voor verkeer of omwonenden.

Volgens richtlijnen NSVVReal time afhankelijk van omgevingslicht (lichtsensor).

Zie ook hoofdstuk 8.

Vergunning

Ja.

5.3 Reclames bedrijventerreinen bijzonder

Reclame die niet past binnen de regels zoals hiervoor beschreven, is bijzonder.

Er zijn geen objectieve eenduidige criteria voor een toetsing voor bijzondere reclame op te stellen. Hieronder worden aan de hand van de mogelijkheden die zich kunnen voordoen de globale criteria beschreven waar een bijzondere reclame aan getoetst kan worden. Een belangrijk criterium is de bijdrage en verhoging van de reclame aan de sfeer in een straat of op een plein. De toetsing van de bijzondere reclame aan redelijke eisen van welstand gebeurt in eerste instantie ambtelijk. Bij twijfel wordt de aanvraag voorgelegd aan de Planadviesraad Ruimtelijke Kwaliteit. De welstandsnota is in die situaties ook het toetsingskader.

Reclame aan de gevel

  • Voor gebouwen waarin meerdere bedrijven zijn ondergebracht of voor gebouwen met een grote omvang of anderszins kan de regel dat er maximaal drie reclame-uitingen aan de gevel per pand toegestaan zijn, te beperkt zijn.

    In dat geval kan in overleg met de gemeente een samenhangend reclame-ontwerp gemaakt worden dat op het gebouw is afgestemd. Eventueel wordt het plan voorgelegd aan de Planadviesraad.

Reclame op de ruit

  • Er kan om aantoonbare (bedrijfs-)technische redenen of wegens leegstand een grotere oppervlakte dan 25% van de ruit worden dichtgeplakt. In dat geval is er wel een vergunning nodig. Een transparante folie heeft in dat geval de voorkeur.

    Het dichtplakken van ruiten zonder een reclame-uiting, huisstijlkleur of logo is vergunningsvrij en ook regelvrij.

6. Reclame De Boreel

6.1 Inleiding

Voor reclame-uitingen binnen het plangebied De Boreel is bij de bouw een specifiek reclameplan opgesteld. Om deze reden wordt een afzonderlijk hoofdstuk aan De Boreel gewijd.

Een sleutelbegrip voor de uitwerking van het reclameplan was destijds integraliteit, waarbij reclame en architectuur in elkaars verlengde moeten liggen om te voorkomen dat er een andere sfeer ontstaat dan door de architectuur wordt opgeroepen. Er is gestreefd naar een eenduidige uitwerking waarin de individuele ondernemer zijn herkenbaarheid niet verliest, maar toch een onderdeel blijft van een totaalconcept. De uitstraling van de reclame-uitingen is daarbij afgestemd op de bijzondere ligging van De Boreel en de economische verbinding aan de binnenstad.

In het reclameplan voor De Boreel is de term ‘thematische beelden’ geïntroduceerd. Thematische beelden zijn geen directe handelsreclame, maar brengen met een verbeelding op een bord een gewenste sfeer tot uitdrukking.

6.2 Overzicht reclame De Boreel

Reclame aan de Gevel

Noordelijke bebouwing

Algemeen

  • Aan de gevels van het winkelcentrum De Boreel is alleen individuele gevelreclame toegestaan aan de zijde van de Houtmarkt en het Boreelplein;

  • Aan de Handelskade is ruimte gereserveerd op de eerste verdieping om thematische beelden (geen logo’s of namen) te plaatsen, tot een maximum van 50% van de gevelbreedte;

  • Aan de Verzetslaan is alleen individuele reclame toegestaan in het rechterdeel, op de begane grond. Het overige gedeelte is gereserveerd voor de thematische beelden;

  • Aan het Boreelplein is ter plaatse van het rechter stijgpunt naar de eerste verdieping op begane grondniveau voorzien in de mogelijkheid om, in combinatie met de op de eerste verdieping aangegeven vlakken, een thematisch beeld aan te brengen;

  • Aan de Mr. H. F. de Boerlaan mag aan het uitkragende gedeelte, ter plaatse van het rechthoekige gedeelte, één vlakke reclame-uiting (onverlicht) met een maximum van 10% van de geveloppervlakte worden aangebracht, in een donkere kleurstelling;

  • Aan de Mr. H. F. de Boerlaan mogen thematische beelden worden aangebracht met een breedte tot 10% van de gevelbreedte;

Aantal

  • Per winkel is maximaal één reclame-uiting per 7,5 m gevel toegestaan (exclusief vergunningvrije reclame-uitingen op de ruiten);

Plaatsing

  • Individuele gevelreclame dient in de 1,7 m hoge zones te worden aangebracht, zowel op begane grond als eerste verdieping, waarbij op de verdieping geen haakse gevelreclame is toegestaan;

  • Metalen/aluminium banieren mogen eveneens in deze zone geplaatst worden, waarbij wordt opgemerkt dat ter plaatse van de over twee bouwlagen doorgaande puien onder het door de woningen gevormde overstek geen banieren worden aangebracht;

Maatvoering

  • Banieren steken maximaal 0,75 m uit (inclusief bevestiging);

  • Stickers met naam of logo tot een maximum van 10% van de gehele raamoppervlakte (met uitzondering van thematische beelden).

Oostelijke bebouwing

Algemeen

  • Individuele gevelreclame aan het Boreelplein is alleen toegestaan op de eigen gevel pui direct grenzend aan het openbaar gebied;

  • Aan de winkelstraat van het Boreelplein is op de tweede verdieping geen gevelreclame toegestaan;

  • Aan de gevel Kazernestraat is alleen reclame op de eerste verdieping toegestaan;

  • Thematische beelden zijn toegestaan op de daarvoor aangewezen plaatsen met een breedte van 10% van de geveloppervlakte;

  • Op de gevel aan de grachtzijde zijn op de eerste verdieping thematische beelden toegestaan.

Plaatsing

  • Het is niet toegestaan om reclame-uitingen op de betonranden aan te brengen;

  • Het stucwerk op de tweede verdieping mag niet van gevelreclame worden voorzien;

Maatvoering

  • Banieren steken maximaal 0,75 m uit (inclusief bevestiging);

  • Stickers met naam of logo tot een maximum van 10% van het gehele raamoppervlak (met uitzondering van thematische beelden).

Vrijstaande reclame

Algemeen

  • Is niet toegestaan.

afbeelding binnen de regeling

afbeelding binnen de regeling

7. Naambordreclame

afbeelding binnen de regeling

Foto n.t.b.

Doel

Beroep, naam, dienst of bedrijf in het pand.

Plaatsing

Overal bij woonbestemmingen op eigen terrein.

Aantal

Maximaal twee per kavel waarvan één op de gevel, één op de kavel.

Oppervlak

Gezamenlijk maximaal 0,5 m2.

Afmetingen

Lengte of breedte is maximaal 1 m.

Verlichting

Geen verlichting.

Vergunning

Nee.

8. Reclame en licht

8.1 Lichtreclame

Zodra het donker wordt, verandert het karakter van de omgeving. Overdag is er winkelend publiek of zijn er mensen onderweg naar hun werk of school. ‘s Avonds wordt het bijna overal stiller en in de binnenstad is er uitgaanspubliek.

Sferen

De avond- en nachtsfeer in de openbare ruimte wordt voor een deel bepaald door de straatverlichting, de aanlichting van gebouwen, de etalageverlichting en de reclameverlichting. Etalage- en reclameverlichting dient naast de aandacht die het vraagt voor een onderneming, product of dienst ook bij te dragen aan de sfeer van de omgeving. In bijvoorbeeld het uitgaansgebied in de binnenstad is sfeervolle verlichting gewenst die gezelligheid en warmte uitstraalt. Voor bijvoorbeeld de winkelstrip in Schalkaar is vooral de sfeer van openbaarheid, functionaliteit en veiligheid belangrijk.

Het licht van etalages en reclames dient een subtiele verlichting te zijn, zodat sprake is van een chique en ingetogen reclame.

Het verlichtingsniveau

Voor de binnenstad zijn in het aanlichtingsbeleid gebieden met een hoog, midden en laag aanlichtingsniveau aangegeven (zie navolgende tekening). De monumentale, grote gebouwen worden met een hoog aanlichtingsniveau de stralende middelpunten in de omgeving. Incidenteel kunnen bijzondere panden op een zorgvuldig ontworpen manier worden aangelicht.

Buiten de bebouwde kom, langs het IJsselfront en in het Bergkwartier is duisternis een kwaliteit. Lichtgevende reclame is hier niet toegestaan. Op zijn hoogst worden de etalages en reclames hier zwak aangelicht.

In alle andere gebieden kan de etalage- en reclameverlichting een redelijk niveau hebben. In de winkel- en uitgaansgebieden is dit één van de middelen die ingezet kunnen worden voor een sfeervolle en gezellige uitstraling. Het verlichtingsniveau van etalages en reclames kan hiertoe op sommige tijdstippen hoger zijn.

Aangezien bij woonbestemmingen geen reclame is toegestaan is reclameverlichting hier niet aan de orde.

afbeelding binnen de regeling

Beeldschermreclames op het bedrijventerrein vragen extra aandacht. Zij geven niet alleen veel licht, maar vertonen ook wisselende beelden, wat nog meer de aandacht trekt. In paragraaf 8.2 wordt hier verder op ingegaan.

Bij de beoordeling van een reclameaanvraag wordt de verlichtingssituatie beschouwd. Om lichthinder te voorkomen wordt de meest recente versie van de “Richtlijn Lichthinder van de Nederlandse Stichting voor Verlichtingskunde (NSVV)” gehanteerd. In deze richtlijn staan grenswaarden aangegeven voor verlichtingssterkte op omliggende gevels en lichtsterkte vanaf de armaturen, afgestemd op verschillende omgevingszones (natuurgebied, landelijk gebied, stedelijk gebied en stadscentrum/industriegebied). Ook zijn er verschillende normen opgenomen voor dag-, avond- en nachtperiode. De gemeente kan in voorkomende gevallen een lichthinderonderzoek verlangen van de aanvrager, waarin eventuele maatregelen onderzocht worden om lichthinder te beperken en te onderbouwen dat aan de grenswaarden voldaan kan worden. Dit geldt ook in het geval er sprake is van een constatering van overtreding, bijvoorbeeld naar aanleiding van een verzoek om handhaving.

Aangelichte reclame

afbeelding binnen de regeling

Aangelichte reclame kan met uitzondering van gebieden buiten de bebouwde kom en bij woonbestemmingen overal worden toegepast. Voor vestigingen buiten de bebouwde kom kan in overleg en met een laag verlichtingsniveau de naamsreclame gedurende openingstijden aangelicht worden. Het bevestigen van verlichtingselementen aan monumentale panden en in een beschermd stads- of dorpsgezicht is vergunningplichtig.

Verlichte reclame

Algemeen

Verlichte reclame kan met uitzondering van het Bergkwartier, het IJsselfront, gebieden buiten de bebouwde kom en bij woonbestemmingen overal worden toegepast.

  • De verlichte reclame dient te passen in en bij te dragen aan de sfeer van de omgeving.

  • Het verlichtingsniveau sluit aan bij het type gebied waar de reclame geplaatst wordt.

  • Er is sprake van een subtiele uitlichting.

  • De lichtreclame is een goed geïntegreerd onderdeel van de architectuur van de gevel.

Verlichtingstype

afbeelding binnen de regeling

  • Verlichting in open, losse (doos)letters.

  • Verlichting waar met uitsparingen alleen de letters of het logo uitgelicht wordt in de lichtbak of het uithangbord.

Plaatsing lichtbak

  • Een lichtbak die is ingepast in de gevel of pui komt met de voorzijde niet voorbij de voorkant van het kozijn.

  • Een lichtbak boven of naast een pui of opening komt met de voorzijde niet voorbij de negge van het metselwerk en/of steekt niet uit de muur.

Etalageverlichting

Algemeen

Etalageverlichting kan overal worden toegepast.

  • De verlichting dient te passen in en bij te dragen aan de sfeer van de omgeving.

  • Het verlichtingsniveau sluit aan bij het type gebied waarin de etalage zich bevindt.

  • Er is sprake van een subtiele uitlichting.

8.2 Beeldschermen

Beeldschermreclame is in de gemeente Deventer maar zeer beperkt toegestaan. Er zijn de volgende mogelijke situaties;

  • In abri’s, billboards of op specifieke locaties als vrijstaande reclamezuil.

  • Als handelsreclame op panden op de bedrijventerreinen.

Daarnaast biedt de APV onder voorwaarden mogelijkheden om in het interieur van gebouwen onder beeldschermreclame op de openbare ruimte en (winkelend) publiek te richten.

Abri’s billboards en vrijstaande reclamezuilen

Deze beeldschermen worden uitsluitend toegestaan via specifieke concessies die door de gemeente worden uitgegeven. In de bijbehorende procedures worden de randvoorwaarden meegegeven, ook ten aanzien van de lichtsterkte / luminantie. Hierbij worden de richtlijnen van de NSVV 2020 gehanteerd, voor de omgevingszone E3 (stedelijke omgeving). Ook wordt daarbij naar onderlinge afstanden gekeken tussen beeldschermen in de openbare ruimte. Als vertrekpunt geldt een minimale afstand van ten minste 50 meter.

Handelsreclame

Naast de al in hoofdstuk 5 opgenomen eisen ten aanzien van locatie en aantallen worden er eisen gesteld aan de te tonen beelden en aan de verlichtingssterkte.

  • -

    Beeldschermen zijn ten behoeve van handelsreclame uitsluitend toegestaan op de bedrijventerreinen;

  • -

    Aan de randen van de bedrijventerreinen zijn zij niet toegestaan op naar woongebieden, buitengebied en natuur gekeerde gevels;

  • -

    Zij zijn niet groter dan 2,5 m2;

  • -

    Zij mogen geen lichthinder voor verkeer en omwonenden veroorzaken;

  • -

    Beeldwisseling ten snelste eens per 6 seconden;

  • -

    Geen bewegend beeld of animaties, niet knipperen;

  • -

    In de nachtelijke uren is de maximaal toegestane oppervlakteluminantie conform de meest recente NSVV Richtlijn Lichthinder (nu is dat 2020). Zie de bijgevoegde tabel.

  • -

    De lichtintensiteit van het scherm dient realtime afhankelijk gemaakt te worden van het omgevingslicht. Het scherm dient daarom voorzien te zijn van een lichtsensor.

Luminantie gerelateerd aan beeldschermoppervlak

Uit Richtlijn Lichthinder van de NSVV 2020, Omgevingszone E3

Oppervlakte beeldscherm m2

Maximale luminantie cd/m2

< 0,4

750

0,4 – 2,0

500

2,0 – 2,5

300

De gemeente kan in voorkomende gevallen van de aanvrager een lichthinderonderzoek verlangen, waarin eventuele maatregelen onderzocht worden om lichthinder te beperken en te onderbouwen dat aan de grenswaarden voldaan kan worden. Dit geldt ook in het geval er sprake is van een constatering van overtreding, bijvoorbeeld naar aanleiding van een verzoek om handhaving.

afbeelding binnen de regeling

Afbeelding: kaart zones bedrijventerreinen en hoofdwegen

9. Uitstallingen

9.1 Inleiding

Onder uitstalling wordt in deze nota verstaan:

Alle losse voorwerpen, die op of boven de weg, al dan niet voor of aan een winkel-, horeca- of ander bedrijfspand, worden of zijn geplaatst ter versiering, ter verfraaiing of anderszins, en waarmee kennelijk beoogd wordt het commerciële belang van een bedrijf te dienen; onder uitstallingen vallen in ieder geval: verkoopartikelen, waren, plantenbakken, speeltoestellen, reclameborden, reclamevlaggen en andere losse reclamevoorwerpen. Onder uitstallingen worden niet begrepen: terrassen.

(definitie in het Omgevingsplan, vroeger CHW bestemmingsplan Deventer, stad en dorpen deel B)

Elke vorm van reclame, vastgezet of los geplaatst, wordt in eerdere hoofdstukken van deze nota behandeld. Deze zijn in principe vergunningplichtig.

Alle andere objecten zonder reclame worden in dit hoofdstuk behandeld. Zij zijn vergunningvrij.

In het Omgevingsplan zijn de algemene regels voor uitstallingen opgenomen.

Het uitstallingenbeleid geldt alleen voor het in het omgevingsplan aangewezen gebied (delen van de binnenstad, de Boxbergerweg en de Rielerweg). De regels zijn opgesteld in verband met veiligheidsoverwegingen (doorgang brandweer, ambulance), de mogelijke aantasting van het straatbeeld en het voorkomen van obstakels waardoor wandelend publiek wordt gehinderd.

Voor de overige delen van de gemeente gelden de algemene regels uit het omgevingsplan. Daar zijn uitstallingen niet toegestaan.

Voor uitstallingen is geen vergunning nodig. Wel wordt gecontroleerd of aan de algemene regels wordt voldaan en indien nodig wordt er handhavend opgetreden.

Het omgevingsplan is hiervoor het toetsingskader en niet de reclame- of welstandsnota.

Omdat uitstallingen de sfeer van de openbare ruimte medebepalen en voor de ondernemers een manier zijn om zich te presenteren, worden de mogelijkheden van de uitstallingen voor de aangewezen gebieden in de reclamenota geïllustreerd.

Ook wordt de mogelijkheid geboden de uitstalling uit te breiden met één uitklapbaar schoolkrijtbord als mededelingenbord èn een menustandaard.

Als een uitstallingstype niet in dit overzicht voor de aangewezen gebieden staat dan zijn er geen standaardregels voor opgesteld. Die uitstallingsvorm is dan in principe niet toegestaan bijvoorbeeld beach-vlaggen.

Maar het kan ook dat het een nieuw type of een afwijkende variant op een uitstallingstype uit het overzicht betreft. De ondernemer en de gemeente kunnen dan in overleg treden en bekijken of toestemming kan worden verleend.

9.2 Overzicht uitstallingen

9.2.1 Losse uitstallingen

afbeelding binnen de regeling

Wat

Losse voorwerpen zonder reclame-uiting, zoals koopwaar en plantenbakken.

Aantal

Naar keuze.

Plaatsing

Gedurende openingstijden, vóór de gevel van de vestiging en in de uitstallingenzone.

Breedte

Maximaal 60 cm uit de gevel.

Hoogte

Maximaal 2,0 m.

Vergunning

Nee.

9.2.2 Losse reclameborden op de gevel

afbeelding binnen de regeling

Aantal

Naar keuze.

Plaatsing

Gedurende openingstijden van de winkel aan de eigen gevel.

Oppervlakte

Maximaal 0,8 m2 per stuk.

Totale oppervlakte maximaal 2,0 m2, dit is samen met de borden uit § 3.2.5 en § 10.2.3.

Diepte

Maximaal 0,3 m uit de gevel.

Hoogte

Tot maximaal 3,5 boven de stoep.

Vergunning

Nee.

9.2.3 Losse menuborden

afbeelding binnen de regeling

Objecten

Uitsluitend borden met een menu of mededeling.

In de vorm van een uitklapbaar krijtbord of menustandaard.

Aantal

Maximaal één krijtbord en maximaal één menustandaard.

Plaatsing

Gedurende openingstijden van de winkel in de uitstallingenzone.

Oppervlakte

Totale oppervlakte maximaal 2,0 m2, dit is samen met de borden uit § 3.2.4 en § 10.2.2.

Afmetingen

Krijtbord

Maximaal 0,8 m2.

Menustandaard

Hoogte maximaal 1,20 m.

Kaart maximaal 0,3 m2.

Vergunning

Nee.

Ondertekening

Aldus vastgesteld in de openbare raadsvergadering van 26 november 2025,

De raad van de gemeente Deventer,

de griffier,

A. Kerver

de voorzitter,

R.C. König