Permanente link
Naar de actuele versie van de regeling
https://lokaleregelgeving.overheid.nl/CVDR746343
Naar de door u bekeken versie
https://lokaleregelgeving.overheid.nl/CVDR746343/1
Aanwijzingsbesluit betaald parkeren 2025
Geldend van 06-11-2025 t/m heden
Intitulé
Aanwijzingsbesluit betaald parkeren 2025Het college van burgemeester en wethouders van Doetinchem;
Gelet op
artikel 225 van de Gemeentewet,
artikel 2 van de Parkeerverordening 2024,
artikel 8 Verordening op de heffing en invordering van parkeerbelastingen 2024:
B e s l u i t:
- I
de plaatsen waar tegen betaling van parkeerbelastingen mag worden geparkeerd te bepalen op de, in de bij dit besluit gevoegde tabel A, opgenomen straten en pleinen;
- II
de plaatsen waar met een parkeervergunning mag worden geparkeerd te bepalen op de in de bij dit besluit gevoegde tabel B opgenomen straten en pleinen;
- III
de tijden waarop betaald moet worden voor parkeren, en ook de wijze waarop betaling van de parkeergelden plaats dient te vinden, te bepalen op de in de bij dit besluit gevoegde tabel C regels;
- IV
dat met vaststelling van dit besluit dit aanwijzingsbesluit het aanwijzingsbesluit uit 2024 wordt ingetrokken;
- V
dat dit besluit in werking treedt met ingang van de dag na die van de bekendmaking.
Ondertekening
Doetinchem, 23 september 2025
Burgemeester en wethouders van Doetinchem
Secretaris
Burgemeester
Bijlage A: Straten/pleinen met de parkeerplaatsen waar het betaald parkeren en mogelijkheid van het aanbrengen van een wielklem van toepassing is
|
|
Straat-/pleinnaam |
|
aantal parkeerplaatsen |
omschrijving van de ligging van de parkeerplaats(en) |
straatdeel |
|
autom. codes |
belparkeerzone |
|
|
|
|
|
|
van huisnr. |
tot/met huisnr. |
behorende bij straatnamen |
zonenummer
|
aantal automaten |
|
|
A |
Centrum |
|
|
|
|
|
|
|
|
|
|
Nieuwstad |
ca |
95 |
aan beide zijden |
13 |
59 |
320/321/322 |
26320/ 26321/ 26322 |
3 |
|
|
Prinsenhof |
ca |
16 |
vanaf IJsselkade |
|
|
301 |
26301 |
1 |
|
|
Kapoeniestraat (1) |
ca |
4 |
plaatsen met beperkte parkeerduur tegenover huisnummer |
45 |
|
303 |
26303 |
1 |
|
|
Kapoeniestraat / Grutpoort |
ca |
80 |
gehele parkeerterrein voor dagkaart / belanghebbenden parkeerplaatsen |
26305 |
||||
|
|
IJsselkade |
ca |
5 |
aan één zijde, tussen Hamburgerstraat en Gaswal |
|
|
300 |
26300 |
1 |
|
|
Burg van Nispenstraat |
ca |
4 |
aan één zijde, tussen Dr Huber Noodtstraat en inrit Catharinagarage |
1-01 |
1-03 |
310 |
26310 |
1 |
|
|
Nieuweweg |
ca |
25 |
ongeveer 1/3 van de parkeerplaats |
|
|
312 |
26312 |
1 |
|
|
Terborgseweg (1) |
ca |
16 |
tussen de Plantenstraat en Raadhuisstraat, aan 2 zijden van de weg |
|
|
327/337 |
26327/ 26337 |
2 |
|
|
Tjalmastraat/Raadhuisstraat (stadhuis) |
ca |
13 |
aan het einde van de Tjalmastraat grenzend aan de Raadhuisstraat |
|
|
331/332 |
26331/ 26332 |
2 |
|
|
Tjalmastraat |
ca |
307 |
aan weerszijden rondom het stadhuis |
|
|
329/330 |
26329/ 26330 |
2 |
|
|
Plantenstraat |
ca |
17 |
aan de overzijde van de huisnummers |
2 |
10 |
333 |
26333 |
1 |
|
|
|
|
|
|
|
|
|
|
|
|
B |
Ring 1 |
|
|
|
|
|
|
|
|
|
|
Tramstraat |
ca |
23 |
aan één zijde tegenover de nummers |
10/26 |
11/19 |
341 |
26341 |
1 |
|
|
Ingenieur Visstraat |
ca |
25 |
aan één zijde tussen Sebbeleestraat, Europaweg en Keppelseweg |
1 |
9 |
342 |
26342 |
1 |
|
|
Hofstraat |
ca |
10 |
aan één zijde tussen Burg van Nispenstraat en Nieuweweg |
12 |
18 |
311 |
26311 |
1 |
|
|
Dr Huber Noodtstraat (1) |
ca |
8 |
aan de Dr Huber Noodtstraat aan één zijde ter hoogte van |
43 |
53 |
317 |
26317 |
1 |
|
|
Dr Huber Noodtplaats |
ca |
52 |
gehele parkeerplaats tussen Raadhuisstraat/Plantsoenstraat/Dr Huber Noodtstraat (m.u.v. vergunninghoudersplaatsen) |
|
|
323/324 |
26323/ 26324 |
2 |
|
|
Raadhuisstraat |
ca |
32 |
gehele parkeerplaats, ter hoogte van |
27 |
71 |
325 |
26325 |
1 |
|
|
Varkensweide |
ca |
345 |
gehele parkeerplaats gelegen aan Varkensweide |
|
|
621/622 |
|
2 |
|
|
Veemarkt |
ca |
175 |
alle parkeerplaatsen tussen Dr Huber Noodtstraat en Houtkampstraat |
|
|
369/370 |
26369/ 26370 |
2 |
|
|
Dokter Bardetplaats |
ca |
160 |
gehele parkeerplaats tussen Rozengaardseweg en Dr Huber Noodtstraat |
|
|
356/ 357/ 358/ 359 |
26356/ 26357/ 26358/ 26359 |
4 |
|
|
Hovenierspad |
ca |
55 |
aan beide zijden, tussen Dr Hubernoodtstraat en Amphionstraat |
|
|
316 |
26316 |
1 |
|
|
Wei van ome Karel |
ca |
103 |
gehele parkeerplaats gelegen aan de Terborgseweg tussen |
25 |
25-a |
380 |
26380 |
1 |
|
|
Amphionstraat (2) |
ca |
16 |
gelegen achter de appartementen zijde Hovenierspad |
90 |
126 |
316 |
26316 |
|
|
|
|
|
|
|
|
|
|
|
|
|
C |
Ring 2 |
|
|
|
|
|
|
|
|
|
|
Dr Huber Noodtstraat (2) |
ca |
19 |
aan één zijde van de straat tussen Raadhuisstraat en in-/uitrit Dokter Bardetplaats |
69 |
101 |
360 |
26360 |
1 |
|
|
Glazenmakerswegje |
ca |
9 |
grenzend aan de Raadhuisstraat tegenover de huisnummers |
3 |
5 |
368 |
26368 |
1 |
|
|
Houtkampstraat |
ca |
7 |
aan één zijde van de straat |
52 |
62 |
367 |
26367 |
1 |
|
|
Terborgseweg (2) |
ca |
10 |
tussen Plantenstraat en Wei van ome Karel, aan de zijde van huisnummers |
21 |
25 |
326 |
26326 |
1 |
|
|
Terborgseweg (2) |
ca |
4 |
tussen Plantenstraat en Melkweg bij de huisnummers |
32 |
38 |
328 |
26328 |
1 |
|
|
Melkweg |
ca |
2 |
parkeerplaatsen tussen Stationsstraat en Terborgseweg |
|
|
|
|
|
|
|
Spinbaan |
ca |
13 |
aan één zijde ter hoogte van de huisnummers |
|
|
335/336 |
26335/ 26336 |
2 |
|
|
Bolder |
ca |
|
|
|
|
|
|
|
|
|
Handelskade (2) |
ca |
70 |
parkeerplaatsen bij woonwijk Iseldoks |
|
|
384/385 |
26384/ 26385 |
2 |
|
|
Iseldoks |
ca |
|
parkeerplaatsen tussen C. Missetstraat en de Oude Ijssel |
|
|
|
|
|
|
|
Meerpaal |
ca |
|
parkeerplaatsen tussen C. Missetstraat en de Oude Ijssel |
|
|
|
|
|
|
|
Dukdalf |
ca |
|
parkeerplaatsen tussen C. Missetstraat en de Oude Ijssel |
|
|
|
|
|
|
|
Het Eiland |
ca |
|
parkeerplaatsen tussen C. Missetstraat en de Oude Ijssel |
|
|
|
|
|
|
|
|
|
|
|
|
|
|
|
|
|
|
Straat-/pleinnaam |
|
aantal parkeerplaatsen |
omschrijving van de ligging van de parkeerplaats(en) |
straatdeel |
|
autom. codes |
belparkeerzone |
|
|
|
|
|
|
van huisnr. |
tot/met huisnr. |
behorende bij straatnamen |
|
aantal meters |
|
|
|
|
|
|
|
|
|
|
|
|
|
D |
Ring 3 |
|
|
|
|
|
|
|
|
|
|
Pompenhof |
ca |
29 |
Pompenhof inrit vanaf Nieuweweg |
3 |
5 |
350 |
26350 |
1 |
|
|
Nieuweweg (2) |
ca |
|
vanaf Pompenhof, beide zijden tussen Hovenstraatje en J F Kennedylaan |
1 |
65 |
350 |
26350 |
1 |
|
|
Paul Krugerlaan/Steinlaan |
ca |
7 |
aan één zijde van de Paul Krugerlaan nabij de huisnummers |
1 |
34 |
351 |
26351 |
1 |
|
|
Paul Krugerlaan/Steinlaan |
ca |
5 |
aan één zijde van de Steinlaan nabij de huisnummers |
7a |
11 |
351 |
26351 |
|
|
|
Steinlaan (Rozenhoek) |
ca |
5 |
te bereiken vanaf de Steinlaan, en gelegen schuin tegenover huisnummers |
01/1 |
01/11 |
352 |
26352 |
1 |
|
|
Steinlaan |
ca |
22 |
aan beide zijden tussen Paul Krugerlaan en Amphionstraat (incl parkeerplaatsen Croonemate) |
|
|
353 |
26353 |
1 |
|
|
Amphionstraat (parkeerkuil) / Croonemate |
ca |
133 |
ter hoogte van nummer 224 |
|
|
314 |
26314 |
1 |
|
|
Amphionstraat (1) |
ca |
16 |
tegenover de ingang van de Aldi/naast parkeerkuil |
|
|
315 |
26315 |
1 |
|
|
Amphionstraat (3) |
ca |
12 |
gelegen rondom de huisnummers |
1 |
5 |
354 |
26354 |
1 |
|
|
Burg Tenkinkstraat |
ca |
|
tussen Raadhuisstraat en Pasplein |
1 |
32 |
|
|
1 |
|
|
Brouwerskamp |
ca |
|
gebied bereikbaar vanaf het Pasplein/Passtraat en Holterweg |
|
|
365 |
26365 |
1 |
|
|
Passtraat |
ca |
|
tussen Pasplein en Holterweg |
|
|
|
|
1 |
|
|
Holterweg (tot aan J F Kennedylaan) |
ca |
|
tussen Passtraat en J F Kennedylaan |
32 |
129 |
|
|
|
|
|
Markthalstraat |
ca |
|
tussen Houtkampstraat en Holterweg |
|
|
|
|
|
|
|
Kalverstraat |
ca |
|
tussen Markthalstraat en Meestersstraat |
|
|
|
|
|
|
|
Meestersstraat |
ca |
|
gehele weg tussen Holterweg en J F Kennedylaan en parkeerplaatsen tussen huisnummers |
2 |
14 |
366 |
26366 |
|
|
|
Wilhelminastraat |
ca |
|
tussen Terborgseweg en Dr Huber Noodtstraat |
|
|
|
|
|
|
|
het Straatje |
ca |
|
tussen Wilhelminastraat en J F Kennedylaan |
|
|
|
|
|
|
|
Willem de Zwijgerstraat |
ca |
|
tussen Louise de Colignystraat en Holterweg |
|
|
|
|
|
|
|
Louise de Colignystraat |
ca |
6 |
aan één zijde ter hoogte van huisnummer |
1 |
11 |
371 |
26371 |
1 |
|
|
Pasplein |
ca |
22 |
allemaal op het plein |
|
|
334 |
26334 |
1 |
|
|
Prins Hendrikstraat |
ca |
|
beide zijden tussen Terborgseweg en Prins Bernhardstraat |
5 |
40 |
|
|
|
|
|
Prins Bernhardstraat |
ca |
14 |
aan één zijde tussen Pasplein en Wilhelminastraat bij huisnummers |
1 |
9 |
372 |
26372 |
1 |
|
|
Oranjehof |
ca |
|
vanaf de Holterweg |
|
|
|
|
|
|
|
Willemstraat |
ca |
|
tussen Julianaplein en Holterweg |
|
|
|
|
|
|
|
Julianaplein |
ca |
|
tussen Wilhelminastraat en J F Kennedylaan |
|
|
|
|
|
|
|
Emmastraat |
ca |
|
tussenTerborgseweg en Julianaplein |
|
|
|
|
|
|
|
Terborgseweg (3) |
ca |
11 |
aan de zijde van huisnummers |
46 |
78 |
377 |
26377 |
1 |
|
|
Terborgseweg (3) |
ca |
36 |
aan de zijde van huisnummers |
25a |
63 |
378/379 |
26378/ 26379 |
2 |
|
|
Wijnbergseweg |
ca |
30 |
aan één zijde tegenover huisnummers |
4 |
60 |
343/344 |
26343/ 26344 |
2 |
|
|
de Bottenmölle |
ca |
4 |
aan één zijde, tegenover huisnummers |
7 |
11 |
344 |
26344 |
|
|
|
|
|
|
|
|
|
|
|
|
|
E |
Overige |
|
|
|
|
|
|
|
|
|
|
Hamburgerbroeklaan |
ca |
|
tussen Ambachtstraat en C Missetstraat, inclusief parkeerplaats nabij spoorlijn |
|
|
|
|
|
|
|
Ambachtstraat |
ca |
|
tussen Terborgseweg en Industriestraat |
|
|
|
|
|
|
|
Stationsstraat |
ca |
gehele parkeerplaats gelegen aan Stationsstraat tegenover huisnummer |
50 |
|
|
|
|
|
|
|
|
|
|
|
|
|
|
|
|
|
|
|
|
|
|
|
|
|
|
|
|
|
Straat-/pleinnaam |
|
aantal parkeerplaatsen |
omschrijving van de ligging van de parkeerplaats(en) |
straatdeel |
|
autom. codes |
belparkeerzone |
|
|
|
|
|
|
van huisnr. |
tot/met huisnr. |
behorende bij straatnamen |
|
aantal meters |
|
|
|
|
|
|
|
|
|
|
|
|
|
|
|
|
|
|
|
|
|
|
|
|
F |
Parkeergarages |
|
|
|
|
|
|
|
|
|
|
parkeergarage Catharina |
ca |
189 |
ingang Burg van Nispenstraat |
|
|
|
|
3 |
|
|
|
|
|
De Catharinagarage ligt onder de Walstraat en Catharinastraat |
|
|
|
|
|
|
|
parkeergarage Amphion |
ca |
423 |
ingang Hofstraat |
|
|
|
|
2 |
|
|
|
|
|
De Amphiongarage ligt onder de Koperen Kees |
|
|
|
|
|
|
|
Totaal aantal betaald-parkerenplaatsen/automaten |
ca |
2684 |
|
|
|
|
|
|
Bijlage B: Plaatsen waar met een parkeervergunning mag worden geparkeerd 2025
Tabel B: Plaatsen waar met een parkeervergunning mag worden geparkeerd en waar een wielklem kan worden aangebracht
Een parkeervergunning wordt verleend voor het parkeren van een voertuig op de daartoe aangegeven vergunninghouderplaatsen of betaald-parkeren plaatsen en is uitsluitend geldig voor de op de vergunning of in de bijgeleverde voorschriften aangewezen lokatie(s) of gebied.
De parkeervergunning mag alleen worden gebruikt overeenkomstig de voorschriften.
Specifieke parkeervergunning
Uitsluitend te gebruiken door de eigenaar/houder en geldig voor één van onderstaande locaties
|
Lokatie |
Aantal plaatsen |
Omschrijving van de ligging van de plaatsen |
Straatdeel |
|
|
van huisnr. |
tot/met huisnr. |
|||
|
Nieuwstad |
5 |
aan de achterzijde van huisnrs. |
57 |
|
|
Prinsenhof |
10 |
tegenover de huisnrs. |
1 |
55 |
|
Gasthuisstraat |
6 |
bij de ingang van de huisnrs. |
108 |
134 |
|
Gasthuisstraat (binnenterrein) |
13 |
achter de huisnrs. |
60 |
106 |
|
Korte Kapoeniestraat |
12 |
tegenover de huisnrs. |
18 |
22 |
ParkeervergunningCentrum
Uitsluitend te gebruiken door eigenaar/houder en geldig voor:
|
Lokatie |
Aantal plaatsen |
Uitwijklocaties |
|
Hovenstraatje Dr. Huber Noodtplaats (gedeeltelijk) Kapoeniestraat /Grutpoort (dagkaart op belanghebbenden parkeerplaats geldig) |
43 35 80 |
Nieuweweg Hovenierspad Amphionkuil Wei van Ome Karel Veemarkt Tjalmastraat |
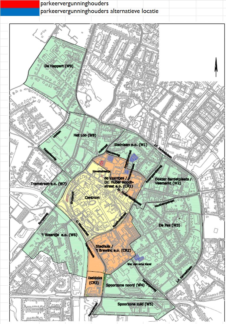
Parkeervergunning Centrum-rand
Uitsluitend te gebruiken door eigenaar/houder en geldig voor:
|
CR1 |
De Veentjes/Dr. Huber Noodtstraat/ |
parkeerplaatsen binnen aangewezen gebied* |
|
CR2 |
Gemeentehuis/Brewinc/ |
parkeerplaatsen binnen aangewezen gebied* |
|
CR3 |
Iseldoks |
parkeerplaatsen binnen aangewezen gebied* |
Deze vergunningen zijn ook geldig op de randlocaties (Wei van Ome Karel, Veemarkt en Parkeerkuil Amphionstraat
* zie bijgevoegde kaart
Parkeervergunning Wijken
Te gebruiken door de eigenaar/houder respectievelijk zijn/haar bezoek en geldig voor :
|
W1 |
Steinlaan e.o. |
parkeerplaatsen binnen aangewezen gebied* |
|
W2 |
Bardetplaats/Veemarkt e.o. |
parkeerplaatsen binnen aangewezen gebied* |
|
W3 |
De Pas |
parkeerplaatsen binnen aangewezen gebied* |
|
W4 |
Spoorzone noord |
parkeerplaatsen binnen aangewezen gebied* |
|
W5 |
Spoorzone zuid |
parkeerplaatsen binnen aangewezen gebied* |
|
W6 |
't Weerdje e.o. |
parkeerplaatsen binnen aangewezen gebied* |
|
W7 |
Tramstraat e.o. |
parkeerplaatsen binnen aangewezen gebied* |
|
W8 |
Lookwartier |
parkeerplaatsen binnen aangewezen gebied* |
|
W9 |
De Happert |
parkeerplaatsen binnen aangewezen gebied* |
* zie bijgevoegde kaart
Parkeervergunning Rand
Te gebruiken door de eigenaar/houder (voor bewoners respectievelijk zijn/haar bezoek) en geldig voor:
Parkeerplaats Wei van Ome Karel
Amphionstraat (parkeerkuil) / achterzijde Croonemate
Parkeerplaats Veemarkt
Parkeervergunning Varkensweide
Te gebruiken door de eigenaar/houder (voor bewoners respectievelijk zijn/haar bezoek) en geldig voor:
Behoort bij het collegebesluit van 15 juli 2025
Bijlage C: Tijdstip en wijze van betaald parkeren
Voor de gemeente Doetinchem geldt met betrekking tot het betaald parkeren het volgende.
Op de daartoe aangewezen plaatsen zijn de parkeertijden waarvoor betaling dient plaats te vinden:
- -
van 09.00 uur tot 21.00 uur op maandag tot en met zaterdag. (dit geldt ook voor feestdagen).
In afwijking hiervan gelden voor de Catharinagarage, de Amphiongarage en de aangewezen locaties van de belanghebbenden- / dagkaartparkeerplaatsen de volgende tijden:
- -
van 0.00 uur tot 24.00 uur van maandag tot en met zondag.
Op de daartoe aangewezen plaatsen kan betaling plaatsvinden door:
- 1.
het in werking stellen van de parkeerapparatuur door het inwerpen van munten van € 0,10, € 0,20, € 0,50, € 1,00 en/of € 2,00;
- 2.
het in werking stellen van de parkeerapparatuur door het invoeren van bankbiljetten van € 5,00 en/of € 10,00 voor de locaties met betaling achteraf (Catharinagarage, Amphiongarage en Varkensweide);
- 3.
het in werking stellen van de parkeerapparatuur door gebruik van een pinpas (bankpas of creditcard);
- 4.
contactloos betalen via de bekende middelen;
- 5.
het in werking stellen van de parkeerapparatuur door met een telefoon in te loggen bij één van de belproviders. (mobiel parkeren);
- 6.
de dagkaart voor belanghebbendenparkeerplaats kan uitsluitend online gekocht worden via parkeren.buha.nl.
Als bij het betaald parkeren gebruik wordt gemaakt van parkeerapparatuur die na inwerkingstelling een parkeerkaartje afgeeft, moet dit parkeerkaartje met de tijdsaanduiding aan de bovenzijde op een van buitenaf duidelijk leesbare plaats achter de voorruit van het motorvoertuig worden aangebracht. Dit geldt niet voor de Catharinagarage en de Amphiongarage en Varkensweide.
Ziet u een fout in deze regeling?
Bent u van mening dat de inhoud niet juist is? Neem dan contact op met de organisatie die de regelgeving heeft gepubliceerd. Deze organisatie is namelijk zelf verantwoordelijk voor de inhoud van de regelgeving. De naam van de organisatie ziet u bovenaan de regelgeving. De contactgegevens van de organisatie kunt u hier opzoeken: organisaties.overheid.nl.
Werkt de website of een link niet goed? Stuur dan een e-mail naar regelgeving@overheid.nl