Permanente link
Naar de actuele versie van de regeling
https://lokaleregelgeving.overheid.nl/CVDR744148
Naar de door u bekeken versie
https://lokaleregelgeving.overheid.nl/CVDR744148/1
WOONWAGEN- EN STANDPLAATSENBELEID
Geldend van 25-09-2023 t/m heden
Intitulé
WOONWAGEN- EN STANDPLAATSENBELEIDGemeente Montfoort
Afbeelding 1: woonwagenlocatie Mergen te Mill
Inhoudsopgave
2 Woonwagencultuur, definities en geschiedenis van de woonwagenwetgeving. 2
3 Visie op en uitgangspunten van het woonwagen- en standplaatsenbeleid. 5
4 De uitgangspunten van beleid nader uitgewerkt 7
4.1 Benodigd aantal standplaatsen en locaties. 7
4.2 Grondverkoop, huren en kopen. 8
4.3 Schoon, zonder gebreken, veilig, legaal en bereikbaar 10
5 Draagvlak via informatie, communicatie en participatie. 12
1 Inleiding
Nederland telt naar schatting 50.000 woonwagenbewoners, die bestaan uit Sinti en Roma (twee etnische groepen, die oorspronkelijk uit het buitenland komen) en nakomelingen van Nederlanders die ooit met een reizend beroep in hun onderhoud voorzagen (zoals scharenslijpers, venters, kermisexploitanten, circusartiesten en seizoenarbeiders). Deze laatste groep wordt daarom ook wel aangeduid als ‘reizigers’ en omvat het leeuwendeel van de woonwagenbewoners. Precieze aantallen zijn echter lastig te geven, omdat ook veel mensen die zich woonwagenbewoner voelen in de loop der jaren, al dan niet gedwongen, in een gewoon huis zijn gaan wonen. Nederland telt zo’n 1.150 woonwagencentra (met in totaal bijna 9.000 standplaatsen) in 342 gemeenten. Het tekort aan standplaatsen wordt geschat op circa drieduizend.
In 1999 is de Woonwagenwet ingetrokken en werd het woonwagenbeleid gedecentraliseerd. In de jaren die volgden, hanteerden veel gemeenten een afbouwbeleid ook wel ‘uitsterfbeleid’ genoemd: steeds minder standplaatsen voor woonwagens, bewoners moesten maar naar gewone woonhuizen verhuizen. Dit beleid was niet in overeenstemming met de rechten van de mens. Een aanpassing was noodzakelijk. In 2014 oordeelde het Europees Hof voor de Rechten van de Mens echter dat de eigen cultuur van woonwagenbewoners gerespecteerd moet worden en dat overheden verplicht zijn om die levensstijl te faciliteren. Eind 2014 uitte ook het Nederlandse College voor de Rechten van de Mens scherpe kritiek op het uitsterfbeleid. Het verklaarde zelfs dat gemeenten en woningcorporaties zich discriminerend gedragen jegens ‘een etnische groep die zich onderscheidt vanwege hun cultuur’[1]. Woonwagenbewoners klaagden bij de Nationale Ombudsman over het tekort aan standplaatsen, voor henzelf en hun kinderen. Die riep de overheid in 2017 in een kritisch rapport op de fundamentele rechten van woonwagenbewoners te respecteren.[2]
Al die kritiek leidde ertoe dat de minister van Binnenlandse Zaken en Koninkrijksrelaties (BZK) in 2018 een nieuw beleidskader voor gemeenten lanceerde over het waarborgen van de culturele identiteit van woonwagenbewoners, getiteld ‘Beleidskader gemeentelijk woonwagen en standplaatsenbeleid’[3]. Dit beleidskader gaf en geeft gemeenten handvatten om lokaal c.q. regionaal beleid te maken.
Als gemeente Montfoort geven we met dit nieuwe woonwagen- en standplaatsenbeleid ten eerste concrete invulling aan de zorgplicht voor de huisvesting van inwoners, waaronder woonwagenbewoners. Ten tweede geven we met dit beleid ruimte aan de woonwagencultuur en voorzien we in woonwagenstandplaatsen voor deze doelgroep.
In het vervolg van dit beleidsplan geven we ten eerste een korte beschrijving van de woonwagencultuur, geven we definities en schetsen we kort de geschiedenis van woonwagenwetgeving in Nederland (hoofdstuk 2). Vervolgens staan de visie op en uitgangspunten van ons woonwagen- en standplaatsenbeleid centraal (hoofdstuk 3). De praktische uitwerking van dit beleid staat daarna in hoofdstuk 4 centraal. We sluiten af met onze inzet op een gedragen visie en op goede communicatie & participatie.
2 Woonwagencultuur, definities en geschiedenis van de woonwagenwetgeving
Woonwagencultuur
De woonwagencultuur is immaterieel erfgoed dat nauw verbonden is met de culturele identiteit van groepen woonwagenbewoners in Nederland. Naar schatting maken 50.000 mensen deel uit van één van deze culturele groepen. Dit zijn zowel woonwagenbewoners die afstammen van Roma en Sinti, als afstammelingen van klassieke 'reizigers' zoals ‘kermisexploitanten’.
Woonwagenbewoners hebben een eigen manier van denken en eigen cultuur. De cultuur van de woonwagenbewoners is vanuit hun culturele voorgeschiedenis een cultuur van overleven. Vanwege het trekverbod (1968) reizen de woonwagenbewoners niet meer met hun woonwagens door het land. De wagens en caravans lijken tegenwoordig vaak op gewone huizen, maar zijn dat niet. Voor de woonwagenbewoners is het belangrijk dat hun wagen geen stenen rijtjeshuis is met fundering én dat de vloer boven het maaiveld ligt met een opstapje naar de voordeur.
In de laatste tien tot vijftien jaar is in meerdere uitspraken de bescherming van deze culturele woonwagenidentiteit herleid uit bepalingen in internationale verdragen, waar diverse rechten uit voortvloeien; o.a. eerbieding van privéleven, discriminatieverbod en huisvesting. Deze rechten gelden ook voor woonwagenbewoners en vanwege hun specifieke cultuur betekent dit iets voor hun manier van wonen en de inzet van gemeenten en woningcorporaties. Nederland ondertekende deze verdragen ook. Dit brengt voor Nederland de verplichting mee om voldoende standplaatsen te realiseren en om ervoor te zorgen dat de woonwagenbewoners kunnen leven volgens hun culturele identiteit die bestaat uit wonen in familieverband en wonen in een woonwagen.
Afbeelding 2: voorbeeld nieuwe locatie met vier huurstandplaatsen en huurwoonwagens
Definities
Voor een goede voorstelling van de belangrijkste begrippen in dit woonwagen- en standplaatsenbeleid, hebben we deze hieronder weergegeven.
Definitie woonwagenbewoners[4]:
Woonwagenbewoners die zich van generatie op generatie als zodanig manifesteren en die zich beschouwen als een bevolkingsgroep met een van andere bevolkingsgroepen te onderscheiden cultuur. De onderscheidende cultuur verwijst naar mensen die in een woonwagen wonen (specifieke woonwijze) en deel uitmaken van een familie die van generatie op generatie bij elkaar op een locatie en in een woonwagen woont of heeft gewoond (in familieverband samenwonen op een woonwagenlocatie).
Definitie woonwagenstandplaats[5]:
Een kavel die bestemd is voor het plaatsen van een woonwagen waarop voorzieningen aanwezig zijn die op het leidingnet van de openbare nutsbedrijven, van andere instellingen of van gemeenten kunnen worden aangesloten, zoals omschreven in artikel 1, laatste gedachtestreep, sub C van de Woningwet.
Definitie woonwagen[6]
Een voor bewoning bestemd zijnde gebouw dat is geplaatst op een standplaats en dat in zijn geheel of in delen kan worden verplaatst, zoals omschreven in artikel 1, laatste gedachtestreep, sub B van de Woningwet. Een stenen woonwagen, prefab woning, chalet of houtskeletbouwwoning wordt in dit beleid ook gezien als woonwagen[7].
Geschiedenis van de woonwagenwetgeving
Tot 1999 was in Nederland de Woonwagenwet van kracht; daarna werd deze wet ingetrokken en is het woonwagenbeleid geïntegreerd in het reguliere, gemeentelijke volkshuisvestigingsbeleid. De belangrijkste reden om deze wet in te trekken in 1999, was het normaliseren van de woonpositie van woonwagenbewoners. Door de intrekking:
* hadden woonwagenbewoners niet langer een uitzonderingspositie binnen de woningmarkt;
* vervielen bijzondere rechten van woonwagenbewoners, bijvoorbeeld het recht op een standplaats;
* kregen gemeenten de volledige vrijheid (zonder landelijke verplichtingen) over het beleid met betrekking tot woonwagenlocaties en standplaatsen;
* na intrekking van de Woonwagenwet werden standplaatsen, waar mogelijk, overgedragen van gemeenten naar woningcorporaties. Het verhuren van standplaatsen en/of woonwagens aan woonwagenbewoners die onder de sociale inkomensgroep vallen, is namelijk geen wettelijke taak van de gemeente maar van de corporaties;
* Bij wetgeving voor woonwagenbewoning – nu de Woonwagenwet er niet meer is – zal teruggevallen moeten worden op overige regels uit de Huisvestingswet 2014, de Woningwet en de Wet ruimtelijke ordening;
Na de intrekking gingen veel gemeenten c.q. corporaties over tot een afbouwbeleid, in de volksmond ook wel ‘uitsterfbeleid’ genoemd. Vrijkomende standplaatsen werden niet langer verhuurd, maar opgeheven, gesloopt of uit functie ontzet. Hoewel de gemeente Montfoort in deze periode weliswaar geen standplaatsen heeft opgeheven, zijn er ook geen extra standplaatsen gerealiseerd. Deze situatie had uiteindelijk hetzelfde effect als het ‘uitsterfbeleid’. Volwassen kinderen van woonwagenbewoners werden namelijk gedwongen om naar een reguliere woning te verhuizen door het tekort aan nieuwe standplaatsen.
In de jaren die volgden vroegen woonwagenbewoners in het gehele land bij diverse instanties aandacht voor de tekortkomingen in het woonwagenbeleid. Hun focus lag op het naleven van de mensenrechten. Gemeentelijk beleid bleek namelijk vaak niet in overeenstemming te zijn met het Europees Verdrag voor de Rechten van de Mens (EVRM) en de Algemene Wet Gelijke Behandeling (AWGB).
De Nationale Ombudsman bevestigde dat; hij stelde dat gemeenten tekortschoten in hun betrouwbaarheid ten aanzien van woonwagenbewoners. Ook vond hij dat gemeenten het recht van woonwagenbewoners om te leven volgens hun culturele identiteit onvoldoende erkenden en faciliteerden. De bevindingen van de ombudsman zijn neergelegd in het rapport ‘Woonwagenbewoner zoekt standplaats’ uit 2017[8].
Het rapport bleek de start van een ander beleidsperspectief. Het ministerie van Binnenlandse Zaken en Koninkrijksrelaties (BZK) stelde het al genoemde beleidskader ‘gemeentelijk woonwagen- en standplaatsenbeleid’ op (juli 2018). Dit gebeurde op basis van het advies van onder andere het College voor de Rechten van de Mens uit maart 2018.
Het nieuwe beleidskader BZK bevat landelijke uitgangspunten, is richtinggevend en niet bepalend. Het is geen wet en heeft (vooralsnog) ook geen juridische gevolgen bij het niet naleven ervan[9]. Opvolging is echter wenselijk en geeft handvatten voor nieuw gemeentelijk woonwagenbeleid dat:
- rekening houdt met de specifieke woonbehoeften van woonwagenbewoners;
- voorziet in voldoende en binnen een redelijke termijn aangelegde standplaatsen;
- aandacht heeft voor de cultuur van woonwagenbewoners;
- woonwagenbewoners beschermt tegen discriminatie;
- voldoende rechtszekerheid biedt voor de doelgroep;
- ruimte biedt om in familieverband samen te leven.
Het ministerie monitort sinds het uitbrengen van het beleidskader BZK de ontwikkeling van het aantal standplaatsen. Ook bracht de Vereniging van Nederlandse Gemeenten (VNG) in mei 2021 een speciale ‘Wegwijzer gemeentelijk woonwagen- en standplaatsenbeleid’ uit[10]. De Wegwijzer is een nadere invulling van het in 2018 door het ministerie van BZK uitgebrachte landelijk beleidskader.
3 Visie op en uitgangspunten van het woonwagen- en standplaatsenbeleid
Prettig wonen, werken en recreëren in een inclusieve samenleving
Als gemeente vinden wij het belangrijk dat inwoners prettig kunnen wonen, werken en recreëren is. In Nederland en ook in gemeente Montfoort streven wij ernaar een inclusieve samenleving te zijn; iedereen doet -binnen de eigen cultuur- mee in onze maatschappij én neemt zijn of haar verantwoordelijkheid als burger. Om hieraan bij te dragen en te realiseren werkt de gemeente nauw samen met interne- en externe belanghebbenden. We staan in verbinding met bewoners in alle wijken, waaronder ook woonwagenbewoners en omwonenden.
Door woonwagenbewoners goed te leren kennen en regelmatig contact met hen te onderhouden, krijgen we als gemeente meer inzicht in hun specifieke woonbehoefte. De kennis en ervaring van de woonwagencultuur die wij in dit bewustwordingsproces opdoen, zijn belangrijk en bepalend voor een juiste omslag in het beleid. Het uitgangspunt van beleid is dat voor woonwagenbewoners dezelfde rechten, maar ook dezelfde plichten gelden als voor iedere andere burger binnen de gemeente Montfoort. Zij biedt de ondersteuning die nodig is en die inwoners mogen verwachten van de gemeente.
Het woonwagen- en standplaatsenbeleid moet bijdragen aan de gemeentelijke visie zoals hierboven genoemd en wordt daarom onderdeel van ons reguliere huisvestingsbeleid dat staat verwoord in onze Woonvisie. Hierdoor ontstaan er duidelijke beleidsmatige- en juridische kaders voor het voeren van adequaat beleid, die helderheid en zekerheid geven aan woonwagenbewoners en hun toekomstmogelijkheden.
Verder is het Montfoortse woonwagen- en standplaatsenbeleid in overeenstemming met mensenrechtelijke uitgangspunten en blijft tenslotte de leidraad van het gemeentelijk beleid de erkenning en waardering voor de woonwagencultuur. De culturele identiteit van woonwagenbewoners kenmerkt zich hoofdzakelijk door twee elementen. Ten eerste wonen met mensen van gelijke cultuur/gelijkgestemden en waar mogelijk (op de schaal van de gemeente Montfoort) wonen in familieverband. Ten tweede wonen in een woonwagen.
Uitgangspunten van beleid
De belangrijkste uitgangspunten die horen bij deze visie zijn:
- 1.
We maken een duidelijk onderscheid tussen de rol van de gemeente en de rol van woningcorporaties. De gemeente maakt beleid en zorgt voor toegankelijkheid, handhaving en onderhoud van het openbaar gebied. Ook verkoopt ze grond voor de realisatie van standplaatsen aan de woningcorporatie voor verhuur ervan. Corporaties voorzien in de sociale huisvesting;
- 2.
Afbouw van standplaatsen is niet toegestaan (uitzonderlijke omstandigheden buiten beschouwing gelaten) zolang er behoefte is aan standplaatsen;
- 3.
In de toekomst vrijkomende standplaatsen wijzen we toe volgens de toewijzingsverordening[11] woonwagenstandplaatsen (zie bijlage 2). De gemeente beheert een wachtlijst van geïnteresseerde standplaatszoekenden en houdt de inschrijvingen bij. Conform landelijk beleid zorgt de gemeente ervoor dat een standplaatszoekende binnen een redelijke termijn kans maakt op het verkrijgen van een standplaats;
- 4.
De behoefte aan standplaatsen is in kaart gebracht en op basis daarvan zet de gemeente zich in om binnen de komende vijf jaar 4 huurstandplaatsen te realiseren boven op de capaciteit op de bestaande woonwagenlocatie (= 4 standplaatsen).
Waar
Reeds aanwezig
Nog te realiseren
Totaal
a.
Jacob Barneveldstraat
4
0
4
b.
De Bleek – fase I (2024)
0
4
4
4
4
8
- 5.
Zowel de mogelijke nieuwe als de bestaande woonwagenlocaties zijn schoon, heel en veilig;
- 6.
De (nieuwe) woonwagenlocaties voldoen aan de geldende wet- en regelgeving;
- 7.
De gemeente Montfoort en Cazas Wonen maken concrete afspraken over de realisatie van de beoogde huurstandplaatsen en leggen die afspraken vast in de prestatieafspraken;
- 8.
Er is een eenduidige toewijzingsverordening die de culturele identiteit van woonwagenbewoners zo veel als mogelijk waarborgt. Deze verordening treedt tegelijkertijd met dit beleid in werking (zie Bijlage 2: Toewijzingsverordening woonwagenstandplaatsen Montfoort). Vrijkomende standplaatsen wijzen we toe volgens deze toewijzingsverordening;
- 9.
Vanaf 2030 evalueren we dit beleid en stellen we dit eventueel bij en/of vullen dit aan. De wachtlijst vormt daarbij een instrument voor alsdan eventueel aan te passen of nieuw woonwagenbeleid.
In het volgende hoofdstuk lichten we een aantal van bovenstaande uitgangspunten nader toe.
Afbeelding 3: Jacob Barneveldstraat- oud en Jacob Barneveldstraat- nieuw
4 De uitgangspunten van beleid nader uitgewerkt
De volgende vier uitgangspunten werken we in deze paragraaf nader uit:
1. Standplaatsen en locaties;
2. Grondverkoop, huren en kopen;
3. Schoon, heel, veilig, legaal en bereikbaar;
4. Duurzaam/BENG.
4.1 Benodigd aantal standplaatsen en locaties
Landelijk zijn 1,2 standplaatsen per 1000 woningen het gemiddelde. Het uitgangspunt van het gemeentelijk beleid is dat dit gemiddelde ook beschikbaar moet zijn voor de doelgroep woonwagenbewoners in de gemeente Montfoort.[12] Met 4.180 woningen in Montfoort en 1.595 woningen in Linschoten (peildatum 01-01-2023) zijn er 5.775 woningen en vereist dit 7 standplaatsen[13]. In de gemeente zijn nu reeds 4 standplaatsen aanwezig en dit vereist nog 3 te realiseren standplaatsen volgens het landelijk gemiddelde.
Daarnaast heeft de gemeente recentelijk een inventarisatie gedaan naar geïnteresseerden in een woonwagenstandplaats om ons als gemeente zo een goed beeld te kunnen vormen van de omvang van de doelgroep en hun woonwensen. Op basis van een historische lijst van geïnteresseerden in een woonwagen in de gemeente Montfoort én een actualisering van die lijst in 2021, zijn personen op deze lijst actief benaderd voor deze inventarisatie. Zo ook via algemene publiekscommunicatie (Gemeentenieuws Montfoort). Deze inventarisatie vond plaats in de vorm van persoonlijke, fysieke gesprekken met mensen die nu in een woonwagen wonen, maar ook met mensen die vroeger in een woonwagen woonden en graag weer in een woonwagen willen wonen. De gesprekken waren met (voormalige) woonwagenbewoners uit Montfoort-Linschoten (niet uit andere gemeenten). Wanneer we de inventarisatie leggen naast de criteria die staan geformuleerd in de voorliggende toewijzingsverordening (zie bijlage 2), dan levert dat op dit moment het beeld op van 6-8 gegadigden voor een woonwagenstandplaats.
Het woonwagenbeleid moet verder aansluiten op het mensenrechtelijk kader. De doelgroep moet echter geen uitzonderingspositie krijgen ten opzichte van anderen. Als uit toekomstige inventarisaties naar de woonbehoefte blijkt dat er behoefte is aan meer standplaatsen, dan zal men net als anderen moeten wachten; er geldt een redelijke termijn[14]. Een standplaats is immers een schaars goed. De toewijzing van standplaatsen wordt beperkt tot een bepaalde groep standplaatszoekenden die onder meer moet voldoen aan het afstammingsbeginsel en die een binding heeft met de gemeente Montfoort.
Tegen bovenstaande achtergrond en het feit dat er sprake zal zijn van natuurlijk verloop, is de hierboven genoemde keuze gemaakt om op dit moment in te zetten op de toevoeging van vier huurstandplaatsen met huurwoonwagens die zullen worden opgenomen in uitbreidingslocatie De Bleek. Samen met de vier bestaande plaatsen genereert dit binnen afzienbare termijn het totaal van acht standplaatsen en woonwagens in de gemeente Montfoort.
4.2 Grondverkoop, huren en kopen
Grondverkoop
Als een locatie voor nieuwe woonwagenstandplaatsen bekend is, vindt verkoop van de gronden in principe plaats conform de meest actuele versie van de Nota Grondprijzen. De gemeente verkoopt de (bouwrijpe) grond aan een woningcorporatie. De corporatie kan de grond verhuren aan woonwagenbewoners (in principe met huurwoonwagen).
Verkoop van gronden door de gemeente aan een corporatie moet aan een aantal eisen voldoen:
- 1.
Voorafgaand aan de overdracht is de verkoop openbaar bekend gemaakt, zodat iedereen er kennis van kan nemen.
- 2.
De gemeente regelt het bestemmingsplan en verkoopt de bouwrijpe grond op basis van de getaxeerde waarde[15] en conform de meest actuele versie van de Nota Grondprijzen aan inrichting als standplaats is voor rekening van de nieuwe eigenaar.
- 3.
De corporatie kan een door de gemeente aangewezen kandidaat alleen afwijzen als deze kandidaat bij een corporatie een woning huurt, de vrijgekomen huurstandplaats wenst te huren maar geen positieve verhuurdersverklaring kan afgeven (maximaal 3 maanden oud).
Huren
Het verhuren van standplaatsen en/of woonwagens is geen wettelijke taak van de gemeente Montfoort. Een woningcorporatie zorgt voor het bouwen, verhuren en beheren van huurwoningen aan specifieke doelgroepen. Daar horen ook woonwagens bij, mits deze doelgroep behoren tot de huishoudens met een inkomen tot de huurtoeslaggrens.
Woonwagenlocatie, standplaatsen en woonwagens
Woonwagenlocatie
De beoogde nieuwe woonwagenlocatie dient te voldoen aan diverse wettelijke maar ook maatschappelijke eisen (en wensen). Vanuit de maatschappij is het wenselijk een woonwagenlocatie in of tegen een bewoonde omgeving ligt en daarmee een inclusieve karakter krijgt. Verder is het wenselijk dat de woonwagenlocatie en geen gesloten indeling krijgt. Een locatie aan een doorgaande weg in plaats van een doorlopend weg. Tegelijkertijd dient voorkomen te worden dat gebruik van gemeentegrond zo veel als mogelijk beperkt wordt, simpelweg door de grenzen van de standplaatsen duidelijk af te bakenen met schuttingen en/of groenstroken.
Afbeelding 4: schets mogelijke indeling woonwagenlocatie
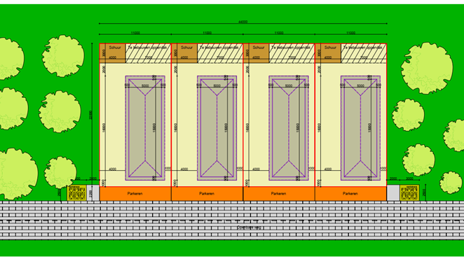
Standplaatsen
De individuele standplaatsen voldoen aan de huidige eisen en wensen. Zo is per standplaats ingetekend wat het bouwvlak is, binnen welke ‘lijnen’ de woonwagen geplaatst dient te worden, waar de berging komt en waar er ruimte is voor een eventuele overkapping, extra schuur of andere bouwsels. Op de resterende stroken mag nimmer gebouwd worden. Hiermee houd je de onderlinge afstand van 5 meter tussen de woonwagens ook in stand (eis uit bouwbesluit i.v.m. brandveiligheid).
Afbeelding 5: criteria standplaatsen
Woonwagens
De te plaatsen woonwagens dienen te voldoen aan het Bouwbesluit en aan gemeentelijke regelgeving (bestemmingsplan). De nieuwe woonwagens zijn 5 x 15 meter (exclusief overstek), met inpandig sanitair en hebben drie volwaardige slaapkamers. En omdat de nieuwe woonwagens gasloos dienen te zijn, worden de woonwagens ingericht met zonnepanelen, extra isolatie en een warmtepomp (Zogenaamde ‘BENG woonwagens’).
Afbeelding 6: voorbeeld woonwagen(-standplaats)
De oude VRO-woonwagens waren 3,5 x 13, 15 en soms zelfs 17 meter. De woonwagen van nu meet 5 x 15 meter.
De woonwagen is enkel laags.
Er is een geïsoleerde berging met meterkast, opstelplaats voor witgoed en sanitaire aansluitpunten: 3 x 4 m
Eigendomsconstructie
Binnen het nieuwe woonwagen- en standplaatsenbeleid is de volgende eigendomsconstructie mogelijk:
*Huur-huur Dit betreft een huurstandplaats met een huurwoonwagen, bestemd voor huishoudens die behoren tot de primaire doelgroep van een woningcorporatie. Met de woningcorporatie wordt afgesproken (en schriftelijk vastgelegd) dat huurstandplaatsen met huur-woonwagens in principe niet mogen worden verkocht.
4.3 Schoon, zonder gebreken, veilig, legaal en bereikbaar
Schoon, zonder gebreken en veilig
Vanwege de openbare ruimte, orde en veiligheid moeten bestaande en nieuwe woonwagenlocaties schoon, heel en veilig zijn. Net zoals dat voor andere woonwijken in de gemeente geldt. Dat betekent bijvoorbeeld:
* dat de gemeente het beheer en onderhoud van de openbare ruimte op en rond woonwagenlocaties uitvoert.
* dat achterstallig onderhoud op bestaande woonwagenlocaties in beeld is/wordt gebracht en wordt weggewerkt.
* dat er handhaving plaatsvindt op nieuwe- en bestaande woonwagenlocaties. De gemeente kan dan optreden tegen bestaande bouwwerken op woonwagenlocaties waarbij de omgevingsvergunning of het bestemmingsplan niet is nageleefd, met legalisering of verwijdering tot gevolg.
Daarnaast moeten woonwagenlocaties voldoen aan de geldende wet- en regelgeving, denk bijvoorbeeld aan brandveiligheid. Uitzonderingen met betrekking tot de eerdergenoemde woonwagencultuur en daarbij horende woonvormen daargelaten.
Legaal
Om een nieuwe woonwagenstandplaats (aanleg en inrichting) te realiseren, is een omgevingsvergunning nodig. Dit geldt ook voor de plaatsing van een woonwagen. Aanvragen en afgeven vindt plaats via de gemeente en dient te gebeuren voordat een woonwagen wordt geplaatst op de daarvoor bestemde woonwagenstandplaats. Ook andere bouwwerken op en rondom de standplaats moeten legaal zijn.
Bereikbaar
Woonwagenlocaties moeten voor iedereen bereikbaar zijn. Denk aan bewoners en bezoekers per auto, fiets of te voet. Maar ook vrachtverkeer (zoals vuilniswagens en verhuiswagens), leveranciers, postbezorgers en hulpdiensten dienen ter plaatse te kunnen komen. Daarom moeten de ontsluitingswegen geschikt zijn om het verkeer van en naar de woonwagenlocatie vlot en veilig af te wikkelen. Dat betekent bijvoorbeeld dat er bij voorkeur geen afgesloten hofjes met één in- en uitgang worden gerealiseerd, maar er altijd een openbare doorgangsweg aan het terrein ligt. Voor de veiligheid, maar ook omdat de woonwagenlocatie onderdeel is van een woonwijk. Ook zonder hofje blijft de culturele identiteit (het wonen in familieverband en het wonen in een woonwagen) behouden.
Uitgangspunt is daarom dat de wegen in de omgeving zijn ingericht (of kunnen worden aangepast) volgens de landelijke richtlijnen c.q. gemeentelijke richtlijnen op basis van CROW-normen, waarbij rekening wordt gehouden met de te verwachten verkeersdrukte. Hetzelfde geldt voor de parkeerruimte. Er moet voldoende parkeerruimte voor bewoners en bezoekers zijn op de (nieuwe) woonwagenlocatie(s). Hoeveel parkeervakken er nodig zijn, berekenen we aan de hand van de gemeentelijke Parkeernormennota.
4.4 Duurzaam/BENG
Voor alle nieuwbouw in Nederland geldt dat deze vanaf 1 juli 2018 in principe gasloos moet zijn (Wet VET). Daarnaast gelden er steeds strengere eisen voor ‘bijna energieneutrale gebouwen’ (BENG). Woonwagens en standplaatsen zijn daar niet van uitgesloten.
Afbeelding 7: voorbeeld nieuwe BENG woonwagen
5 Draagvlak via informatie, communicatie en participatie
Inzet op draagvlak bij iedereen
Woonwagenlocaties blijken uiterst gevoelige bestemmingen. Dit blijkt uit ervaringen binnen verschillende gemeenten in Nederland. Omwonenden willen een woonwagenlocatie vaak liever niet in hun ‘achtertuin’. Daarom is een zorgvuldige locatiekeuze van groot belang en willen we ongerustheid bij omwonenden verminderen of zelfs wegnemen door een combinatie van voorlichting en de belofte van regulier beheer en toezicht, net zoals in alle andere woonwijken in een gemeente.
We stellen daarom een communicatie- en participatieplan op als follow-up van deze visie omdat goede en tijdige communicatie en participatie richting omwonenden en andere belanghebbenden veel weerstand kan wegnemen. Want, alleen als de beeldvorming rondom het onderwerp en het draagvlak vanuit de omgeving op orde zijn, kan het realiseren van extra woonwagenstandplaatsen succesvol worden.
Praktisch is er ook al een en ander in gang gezet. Zo is er een coördinator woonwagenzaken aangesteld als contactpersoon namens de gemeente. De contactpersoon zal met de bewoners van de standplaatsen en standplaatsaanvragers individueel spreken en de woonwagen gerelateerde zaken aan hen toelichten: het nieuwe woonwagenbeleid, het doel van dit beleid en de bijkomende kansen en mogelijke consequenties. Afspraken en verwachtingen zijn daardoor over en weer duidelijk.
Tot slot
De gemeente wil haar beleid op orde hebben en voor iedere inwoner van Montfoort zoveel als mogelijk dezelfde regels hanteren om inwoners gelijk te behandelen. Het vaststellen van het woonwagen- en standplaatsenbeleid is zo’n onderwerp en voorliggend beleid is een eerste stap en vormt de basis voor de toekomst. De voortgang ervan wordt gemonitord en vanaf 2030 jaar wordt het beleid geëvalueerd en waar nodig vindt bijstelling ervan plaats.
[1] College voor de Rechten van de Mens, Oordeelnummer 2014-167.
[2] ‘Woonwagenbewoner zoekt standplaats’, Rapport 2017/060, Nationale Ombudsman.
[3] Beleidskader gemeentelijk woonwagen en standplaatsenbeleid, 2 juli 2018, Ministerie van Binnenlandse Zaken en Koninkrijksrelaties.
[4] Bron: College voor de Rechten van de Mens. Advies aan BZK d.d. 23-03-2018.
[5] Bron: de Woningwet.
[6] Idem.
[7] De meeste woonwagens hebben slechts een bouwlaag, waardoor meer ruimte nodig is voor dezelfde gebruiksruimte. Een woonwagen is uitgelegd over één verdieping; alles is gelijkvloers, dus de slaapkamers en badkamer bevinden zich ook op de begane grond. Tegenwoordig ziet men ook meer woonwagens met een kapverdieping verschijnen. In deze kap zitten bijvoorbeeld de kinderslaapkamers annex studeerkamers, waardoor zij hun huiswerk e.d. niet in de woonkamer hoeven te maken. Ook verschillen woonwagens bouwtechnisch van reguliere woningen. Woonwagens kunnen in zijn geheel of in delen worden verplaatst. Woonwagens zijn in de regel houtskeletbouw en daardoor brandgevoeliger dan woningen die uit steen en/of beton zijn opgetrokken.
[8] Zie voetnoot 2.
[9] In ieder geval niet in strikt formele zin. In de praktijk leidt niet nakoming ervan mogelijk wel tot gerechtelijke procedures tegen de gemeente waarbij een kansrijk beroep door belanghebbenden wordt gedaan wegens overtreding van het discriminatieverbod door niet nakoming van de verschillende beleidskaders.
[10] VNG, mei 2021.
[11] De toewijzingsverordening wordt tegelijk met het woonwagenbeleid vastgesteld. Het vaststellen van een toewijzingsverordening is een autonome bevoegdheid van de gemeenteraad.
[12] In 2018 heeft onderzoeksbureau Companen landelijk per gemeente onderzocht hoeveel standplaatsen er op 1000 woningen zijn. Companen gaat voor heel Nederland uit van 1,2 per 1000. Dit gemiddelde wordt veelal gehanteerd als norm voor het aantal benodigde woonwagens per gemeente.
[13] 1,2 x (5.775 : 1.000) = 6,93 => 7 standplaatsen totaal
[14] Wat er precies wordt bedoeld met een ‘redelijke termijn’ is nergens gedefinieerd. Landelijk is hier veel discussie over. Gemiddeld genomen wordt uitgegaan van zeven à acht jaar. In onze gemeente ligt de wachttijd rond de 8,5 jaar voor een sociale huurwoning.
[15] Grond voor woonwagenstandplaatsen heeft in de regel een waarde van 50-70% t.o.v. reguliere bouwgrond.
Ziet u een fout in deze regeling?
Bent u van mening dat de inhoud niet juist is? Neem dan contact op met de organisatie die de regelgeving heeft gepubliceerd. Deze organisatie is namelijk zelf verantwoordelijk voor de inhoud van de regelgeving. De naam van de organisatie ziet u bovenaan de regelgeving. De contactgegevens van de organisatie kunt u hier opzoeken: organisaties.overheid.nl.
Werkt de website of een link niet goed? Stuur dan een e-mail naar regelgeving@overheid.nl