Beeldkwaliteitsplan Het Tussenland – Parallelweg 2 IJsselmuiden

Geldend van 17-07-2023 t/m heden

Intitulé

Beeldkwaliteitsplan Het Tussenland – Parallelweg 2 IJsselmuiden

1/ INTRODUCTIE

1.1/ Aanleiding voor herontwikkeling locatie

Door de reconstructie van het kassencomplex aan de Parallelweg 2 te IJsselmuiden komt het terrein van de maatschap Otten vrij voor herontwikkeling. De bestaande kassen en bijbehorende voorzieningen worden geamoveerd. Daarnaast zal ook de bedrijfswoning worden herbouwd.

Door de reconstructie komt een terrein met een oppervlakte van ongeveer 1.4 ha. vrij voor ontwikkeling.

Het gebied waarin het kassencomplex is gelegen wordt in de nota 'de Gezichten van IJsselmuiden' een gebiedsvisie voor de dorpsrand IJsselmuiden - Koekoek omschreven als het 'Tussenland'. Het Tussenland vormt een overgang tussen de bebouwde kom van IJsselmuiden en het tuinbouwgebied van de Koekoekspolder en waarin de omgang met water, waterberging en bodemdaling een belangrijke opgave vormt voor een duurzame ontwikkeling van het gebied.

afbeelding binnen de regeling

luchtfoto 2010 van het 'Tussenland' rechtsonder (rood kader) ligt de te ontwikkelen locatie

2/ BEELDKWALITEIT

2.1/ Opzet beeldkwaliteitsplan

De aanleiding voor het opstellen van dit beeldkwaliteitsplan vloeit voort uit de herinrichting van Parallelweg 2 te IJsselmuiden. In onderhavige situatie betreft het een projectgericht beeldkwaliteitsplan. Een dergelijk plan wordt opgesteld om een visie en randvoorwaarden te beschrijven ten aanzien van de beeldkwaliteit voor de voorgenomen herinrichting.

De geschiedenis van het gebied, maar ook de uitgangspunten en randvoorwaarden voor het te vormen erf en de bebouwing worden beschreven. In volgende hoofdstukken worden alle aspecten van de locatie nader uiteen gezet.

afbeelding binnen de regeling

‘Vroeger was alles anders'

2.2/ Beeldkwaliteit

De waardering van beeldkwaliteit is een subjectieve handeling. Het is de opvatting van de waarnemende persoon, die het landschap of stedelijk gebied aanschouwt.

Een bewoner of bezoeker van een gebied zal een andere waardering en beschrijving geven van dat gebied. Toch is een gemeenschappelijke noemer toe te kennen en te benoemen, waaraan individuen een eigen waardering kunnen ontlenen.

Het woord beeldkwaliteit vormt in dit plan een combinatie van twee begrippen.

Het begrip 'beeld' laat zien hoe een landschap of bouwkundig gegeven eruit ziet en hoe dat in zijn omgeving past.

'Kwaliteit' is een begrip dat duidt op de waardering van de kenmerken of karakteristieken van het landschap, of het bouwkundige aspect.

In het landschap heeft het begrip beeldkwaliteit betrekking op ondermeer;

ontstaansgeschiedenis of occupatie

de landschappelijke en ruimtelijke kwaliteiten

de eenheid van landschappelijke en/of stedebouwkundige structuren

de herkenbaarheid van landschapselementen

ruimtelijke opbouw van een ervenensemble en de inrichting van het erf

de maat, materiaalgebruik, detaillering en kleur van bebouwing in het landschap, dorp of stad

de tijdgeest, maar ook de seizoenen, het ritme van dag en nacht, enz.

Voor het landschap zijn vier 'kernkwaliteiten' te onderscheiden;

natuurlijke kwaliteit

culturele kwaliteit

gebruikskwaliteit

belevingskwaliteit

(Nota Ruimte en Agenda Vitaal Platteland)

afbeelding binnen de regeling

In dit beeldkwaliteitsplan wordt aan de hand van een gebiedsanalyse en het plan-initiatief de herontwikkeling van de locatie beschreven. Aan de orde komen:

  • landschappelijke en ruimtelijke kwaliteiten

  • landschap en stedebouw

  • erf en landschap

  • typologie beplanting

  • recreatieve voorzieningen

2.3/ Doel en functionaliteit

Een beeldkwaliteitsplan is geen formeel juridisch verankerd document, noch wettelijk vastgelegd en beschreven paper, zoals een bestemmingsplan. Het maken van een bestemmingsplan is een gemeentelijke aangelegenheid. In dit ruimtelijke plan worden bouwkundige initiatieven en de bestemming van een bepaald terrein en de daarmee verband houdende voorschriften juridisch en planologisch in een document vastgelegd. In technische zin is een bestemmingsplan een nadere detaillering van een gemeentelijk structuurplanplan.

Een beeldkwaliteitsplan is wel een belangrijk bestuurlijk en ondersteunend document waarin specifiek een nieuw initiatief of een ontwikkeling kan worden onderzocht en beschreven. Hierbij gaat het in het landelijk gebied veelal om de samenhang tussen de rode, groene en blauwe elementen in het landschap, kort samengevat; bebouwing, (opgaande) beplantingen en water.

Zoeken naar een samenhangende kwaliteit van de te ontwikkelen locatie, waarin een gewogen pakket aan intenties, aanbevelingen en/of richtlijnen, door analyse en synthese van het landschap, leiden tot het veilig stellen, ruimte scheppend of versterking van de kwaliteit van het onderhavige gebied.

Het beeldkwaliteitsplan is een aanvullend beleidsinstrument waarin de randvoorwaarden voor de bebouwing en structuur van de omgeving worden vastgelegd en dat vervolgens na vaststelling kan worden opgenomen in de Welstandnota of als aanvulling daarop worden meegenomen.

afbeelding binnen de regeling

3/ LANDSCHAPPELIJKE EN RUIMTELIJKE KWALITEITEN

3.1/ Cultuurhistorie en occupatie plangebied

De locatie ligt in een oud cultuurlandschap dat in vroeger jaren bestond uit moeras- en broekbossen. In de middeleeuwen heeft een drooglegging en verdere ontginning plaatsgevonden door de aanleg van kleine kaden en het graven van een recht slotenpatroon. In het laagste deel is de Kamper Wetering gegraven.

De locatie is een overgangsgebied, dat ligt in een uiterste hoek van de Koekoekspolder en op de grens van het grote laagveengebied van de Polder Mastenbroek. Deze is overigens een van de oudste ontginningsgebieden van ons land, de polder is aan het eind van de 14e eeuw ontgonnen.

De Koekoekspolder is door zijn - vervening- en latere droogmakerij - geschiedenis feitelijk een polder in een polder. In de nota 'de Gezichten van IJsselmuiden' wordt uitvoerig op de historische ontwikkeling en betekenis van beide polders ingegaan.

De Koekoekspolder maakt weer deel uit van een groter poldergebied, namelijk dat van de Polder Mastenbroek. Het is door de natuurlijke ontwikkeling van het gebied en wijze van ontginning dat er in de loop van de eeuwen een gebied met unieke landschappelijke kwaliteiten is gevormd. Vanwege deze cultuurhistorische waarde is het landschap in 1999 opgenomen in de Nota Belverdere van de Rijksoverheid en vanaf 2005 maakt het gebied deel uit van het Nationaal Landschap IJsseldelta.

Lange tijd was de draagkracht van de landschappelijke ondergrond bepalend voor de ingebruikname van het gebied. Aanvankelijk werd bebouwing daarom op de hogere en van oudsher toegankelijke delen van de droge zandruggen gebouwd. De bebouwing van IJsselmuiden ontwikkelde zich langs deze structuurdragers. De lagere gelegen natte delen bleven daardoor als een open en vrijwel onbebouwd polderlandschap bestaan. Na bedijking van delen van het gebied werden ook de lagere delen langzaam voor agrarische bebouwing en bewoning in gebruik genomen. Zo ontstond een natuurlijke verbinding tussen de bebouwing van IJsselmuiden en het landelijke gebied.

In een natuurlijke volgorde werden eerst de zandruggen bebouwd, daarna bouwde men op en langs de dijken en nog later langs de aangelegde wegen. Zo is in de loop van vele decennia als een samenspel van natuurlijke elementen en menselijk handelen een kenmerkend netwerk van structuurlijnen en geometrisch patroon van watergangen en infrastructuur ontstaan. Dit systeem bleef tot ongeveer half vorige eeuw in stand.

Van belang voor de locatie is de ontwikkelingsgeschiedenis van de bebouwing die heeft plaatsgevonden rond de Koekoeksweg en de Parallelweg. Door ontsluiting van de drooggemalen en verkavelde Koekoekspolder werd het gebied voor landbouwkundig gebruik geschikt gemaakt. De Koekoeksweg is rond 1910 aangelegd, waarbij tegelijkertijd de eerste bouwpercelen voor bewoning in gebruik werden genomen. Het kassencomplex aan de Parallelweg 2 is in de periode 1920- 1930 ontstaan. Aanvankelijk lag het complex in een open landschap. Echter vanaf 1965, nadat de Koekoekspolder verder was ontwikkeld als glastuinbouwgebied, vonden achter de oude lintstructuren van IJsselmuiden grootschalige uitbreidingen van woonwijken en werklocaties plaats. De laag gelegen natte landbouwgronden werden door zandophogingen geschikt gemaakt voor woningbouw. Het kassencomplex ligt daardoor nu nabij de bebouwde kom.

Een aantal kaartfragmenten tonen de ontwikkelingen van het landschap in het gebied aan.

afbeelding binnen de regeling

zo zag het landschap er rond uit rond 1850

afbeelding binnen de regeling

rond 1900 is de menselijk inspanning nog goed afleesbaar in het landschap

afbeelding binnen de regeling

tot 1950 gaan de veranderingen in ‘t landschap nog vrij langzaam

afbeelding binnen de regeling

in 1995 is er wel heel veel veranderd in het landschap rondom IJsselmuiden

3.2/ Omgeving locatie

De omgeving van de locatie is in de periode 1850 - 1900 in cultuur gebracht. Kenmerkend voor dit deel van het polderlandschap zijn de smalle langgerekte percelen met sloten omzoomd. Nabij de locatie sluiten deze percelen aan op de haaks gelegen kavelstructuur van de Oosterlanden. Dit is een oud verveningsgebied en door inklink is het bodempeil in de loop van de jaren behoorlijk gedaald. De bebouwing in de omgeving stamt uit vorige eeuw en is relatief jong, de meeste bebouwing is zelfs na 1945 ontstaan. Daarbij ontbreekt een bijzondere of duidelijke herkenbare bouwstijl wat het gebied een rommelig aanzien geeft. Dit beeld wordt nog eens versterkt door de mengvorm van kleine- en grootschalige bouwvolumes en bouwhoogtes. Het is daardoor een typisch randstedelijke gebied dat mede wordt gekenmerkt door een grote verscheidenheid aan gebruiksvormen en bijbehorende functies en is overwegend agrarisch in gebruik. Naast wonen wordt er ook wordt gewerkt in een mix aan kleinschalige bedrijfjes, maar ook in kassen, op tuinderijen, akkerlandjes en weilandjes.

In de nota 'de Gezichten van IJsselmuiden' wordt het gebied waarin de locatie is gelegen omschreven als het 'Tussenland'. Een bijzonder kenmerk van de locatie en omgeving is dat van oudsher de bebouwing van het dorp, de linten en het landschap sterk met elkaar verweven zijn en door de situering van de verschillende erven, bedrijven en open ruimten als een losse structuur met veel doorzichten wordt ervaren. Kortom een landschap met een duidelijk gerelateerde gebruiksfunctie en eigen gezicht.

afbeelding binnen de regeling

luchtfoto van de bestaande situatie met het kassencomplex Parallelweg 2

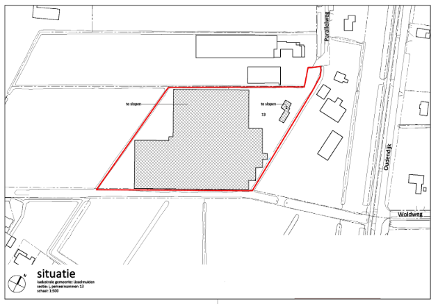
3.3/Bestaande locatie

De locatie van het te amoveren kassencomplex ligt aan de Parallelweg nr. 2 wordt ontsloten door de Koekoeksweg en Parallelweg-Oudendijk.

De locatie grenst aan drie zijden aan een min of meer halfopen weidegebied. Aan de zuidzijde sluit het gebied aan op de dorpsrand van IJsselmuiden. Noordelijk ligt het terrein van de heer Rienties en het kassencomplex van de te ontwikkelen locatie van Kalter. Deze sluit aan op het bebouwingslint van de Koekoeksweg. Opgaande beplanting treffen we hoofdzakelijk aan de randen van het gebied, op de woonerven, bij de bedrijven en langs het bebouwde lint. Aansluitende woongebied ligt min of meer verborgen in het groen.

Parallelweg 2 ligt op een hoogte van -1,3 m NAP op de coördinaten x: 193050 en y: 509477.

afbeelding binnen de regeling

hoogtekaart

3.4/ Herontwikkeling van de locatie

Het gebied dat voor herontwikkeling in aanmerking komt, heeft in totaal een oppervlakte van 1.38. 70 ha en een lengte- en breedtemaat van ongeveer 138.00 x 98.00 m1.

Ongeveer 2.000 m² blijft in eigendom en wordt bestemd als privé huiskavel.

Het terreingedeelte met een oppervlakte van 1.16. 70 ha blijft derhalve beschikbaar voor de ontwikkeling van de bouwlocatie en natuur.

afbeelding binnen de regeling

kadastrale situatie kassencomplex Parallelweg 2

afbeelding binnen de regeling

te (her)ontwikkelen locatie Parallelweg 2 IJsselmuiden

4/ LANDSCHAP- EN STEDEBOUW

4.1/ Uitgangspunten

De cluster stedenbouw van de gemeente Kampen, heeft in 2011 een notitie opgesteld waarin de bebouwingsvoorwaarden nader zijn beschreven voor de herontwikkeling van de locatie. Voor de uitgangspositie gelden bebouwingsvoorwaarden, zoals die zijn vervat in de Welstandnota Gemeente Kampen (april 2004) en in de nota 'de Gezichten van IJsselmuiden' een gebiedsvisie voor de dorpsrand IJsselmuiden - Koekoek van het bureau Van Paridon x de Groot landschapsarchitecten (2011).

In de Welstandsnota Gemeente Kampen (2004) worden de randvoorwaarden waaraan moet worden voldaan uitgebreid beschreven. In het onderdeel gebiedsbeschrijving wordt nader ingegaan op de karakteristieken van het gebied en vooral op een beschrijving van de bebouwing en verdere detaillering. De gebiedsbeschrijving is daarom opgebouwd van groot naar klein en daarbij opgedeeld in drie kopjes: structuur, bebouwing en detaillering. Onder structuur wordt de ontstaansgeschiedenis en de structuur van het gebied beschreven evenals de plaatsing van de bebouwing. Onder bebouwing worden specifieke aspecten van de bebouwing zelf beschreven zoals (architectonische) stijl, gevelopbouw, overheersende hoofd- en kapvorm.

Onder detaillering wordt ingezoomd op materiaal- en kleurgebruik en specifieke details aan gebouwen.

Welstandsnota deelgebied Polder De Koekoek.

De locatie maakt in de Welstandsnota Gemeente Kampen (2004) van de deel uit van een van de vijf deelgebieden van het buitengebied en is ingedeeld bij het Welstandsgebied van de polder De Koekoek.

Nieuwbouw zal daarom ondermeer moeten voldoen aan de gebiedsgebonden of streekgebonden criteria, die in de Welstandnota zijn beschreven. In de nota wordt een onderscheidt gemaakt tussen: Behouden, Respecteren en Vernieuwen.

Als aanvullende criteria worden verder genoemd: Versterken en Herstellen. Deze uitgangspunten zijn bepalend voor nieuwe bouwinitiatieven.

In de Welstandnota worden deze aspecten nader toegelicht. Vanwege het belang voor de locatie worden ze onderstaand integraal overgenomen:

1/ Behouden van de bebouwingskarakteristieken.

Met behouden wordt bedoeld dat bouwplannen dezelfde bebouwingskarakteristieken dienen te hebben als de bestaande gebouwen. Van de gebiedsbeschrijving afwijkende vormgeving voldoet dan dus niet aan redelijke eisen van welstand. Dat geldt voor nieuwbouw, maar ook voor uitbreidingen en verbouwingen aan bestaande gebouwen. Tenzij dit expliciet anders is geformuleerd.

2/ Respecteren van de bebouwingkarakteristieken.

Hiermee wordt bedoeld dat bouwplannen de gebiedskarakteristieken als uitgangspunt moeten hebben maar dat op onderdelen hier nieuwe vormen etc. aan toegevoegd kunnen worden. Anders gezegd een bouwplan mag op onderdelen afwijken maar niet conflicteren met de bestaande bebouwing. Ook dit geldt voor nieuwbouw, maar ook voor uitbreidingen en verbouwingen aan bestaande gebouwen. Tenzij dit expliciet anders is geformuleerd.

3/ Vernieuwen.

Hiermee wordt bedoeld dat van de gebiedskarakteristieken afwijkende bebouwing acceptabel is en soms zelfs wordt gestimuleerd. Het gaat dan alleen om nieuwbouw of complete vernieuwbouw en niet om uitbreidingen en gedeeltelijke verbouwingen.

Aanvullend worden volgende criteria vermeld:

4/ Versterken.

Hiermee wordt bedoeld dat een bouwplan zodanig ontworpen moet zijn dat het eventuele afwijkingen op onderdelen van de bestaande bebouwing teniet doet. Het totale plan moet na realisering van het bouwplan beter voldoen aan de gebiedskarakteristieken.

5/ Herstellen.

Hiermee wordt bedoeld dat oorspronkelijke karakteristieken weer teruggebracht moeten worden. Dit gaat niet alleen om verbouwingen en uitbreidingen aan bestaande gebouwen maar ook om nieuwbouw. Dit wordt vooral gebruikt in beschermde gezichten.

Voor dit beeldkwaliteitsplan is een opmerking uit het paragraaf welstandsbeleid van belang. Daarin wordt volgende vermeld:

Bij nieuwbouw van woningen is vernieuwende vormgeving mogelijk, maar deze moet wel kwaliteit hebben en goed gesitueerd worden. Bij verbouwingen en nieuwbouw dient de kwaliteit van het gebied, waar mogelijk, versterkt te worden.

Woonhuizen dienen met de voorgevel op de weg georiënteerd te worden. Binnen het erf is het hoofdgebouw beel d bepalend ten opzichte van de omringende bebouwing. Nieuwe bijgebouwen zijn met de nokrichting haaksop , dan wel parallel aan de weg gelegen.

Het is daarbij aan de (bouw)architect uiteindelijk de uitdaging om de juiste afwegingen te maken en met de gestelde criteria en randvoorwaarden op een inventieve wijze om te gaan om te komen tot een bouwconcept.

Ambities voor de projectlocatie zijn door Van Paridon x de Groot beschreven in de nota van 29 september 2010 'de Gezichten van IJsselmuiden'. De ambities in de gebiedsvisie zijn als volgt beschreven;

Streven tot het komen van een kwaliteit- en identiteitsimpuls voor het gebied. Het dient een ruimtelijke buffer te zijn tussen de bebouwde zandruggen van IJsselmuiden en de Koekoekspolder. Er moet meer buitenruimte/gebruiksruimte worden gemaakt in samenhang met de aangrenzende woongebieden van Groenendael en Losse Landen om er te fietsen, paardrijden, spelen enz. De Koekoeksweg kan ontwikkeld worden als een 'dorpse' weg door het landschap. Vertrekpunt bij de invulling van de planlocatie is het landelijke, ontspannen en losse karakter.

Het karakter van dit gebied kan omschreven worden als een landschappelijke, recreatieve zone gelegen tussen de bebouwde zandrug en het glastuinbouwgebied in de polder De Koekoek.

Als ontwikkelingsrichting moet men denken aan het versterken en ontwikkelen van de smalle kavelstructuur, begeleid door boomsingels. Verder het versterken van het nat/waterrijk veenkarakter. Daarnaast het versterken van fijnmazige wandel- fiets- en ruiterpaden in aansluiting op de woongebieden. Binnen deze structuur ruimte maken voor de ontwikkeling van royale, landelijke kavels in combinatie met weides en tuinen. Behoud van prettige, open, landelijke schaal .

4.2/ Ruimtelijk kader

Bij de planontwikkeling voor het perceel Parallelweg 2 wordt gestreefd naar een gebiedseigen karakter van de bouwlocatie. Daarbij was vanaf het begin duidelijk bepaald de ruimtelijke kwaliteit van het gebied te versterken. Naast een goed en prettig woonmilieu biedt de locatie daarom ook de ruimte voor recreatief medegebruik.

Door amoveren van het kassencomplex en transformatie van het vrijkomende bedrijfsperceel kan een gebied van om en de bijna 14.000 m² worden heringericht tot een prettig woon- en natuurgebied met drie erven in een natuurlijke setting in het landschap.

Uitgangspunt voor de herontwikkeling van de locatie vormt de landschappelijke ondergrond. Hierdoor wordt het plan verankerd binnen de landschapsstructuur van het typische laagveenlandschap van de Koekoekspolder met zijn strakke verkaveling en slotenpatroon. Het gewenste groene gebiedskarakter, zoals verwoordt in de nota 'de Gezichten van IJsselmuiden' wordt een beeldbepalende factor voor de locatie. Binnen dat 'groene kader' worden de clusters bebouwing van de woonerven gesitueerd. De woonerven worden omsloten door een stelsel kavelsloten die afgeleid zijn van de verkaveling van de polders. De open ruimten worden ingericht als natuurlijke weilandjes.

afbeelding binnen de regeling

landschaps- verkavelings schetsplan

4.3/ Stedebouw- en bouwkundige randvoorwaarden

Het versterken van de ruimtelijke kwaliteit en eigenheid van het landelijke karakter van het 'Tussenland' in samenhang met de dorpsrand van IJsselmuiden.

Het 'Tussenland' is een belangrijk dynamisch uitloopgebied van IJsselmuiden, waar allerlei ontwikkelingen plaatsvinden, zoals de aanleg van woongebieden, bedrijven, wegen, groen, waterberging en recreatief medegebruik. In de Structuurvisie Kampen 2030 is vastgelegd dat deze ontwikkelingen dienen aan te sluiten bij de karakteristieke eigenheid van de plek. Ontwikkelingen dienen daarnaast bij te dragen aan het behoud en versterking van de kernkwaliteiten van het Nationaal landschap IJsseldelta, waar de locatie deel vanuit maakt. Tenslotte dienen ook de gebiedskenmerken, zoals benoemd in de Omgevingsvisie Overijssel te worden behouden en waar mogelijk worden versterkt.

De randvoorwaarden.

Deze zijn door de afdeling Ontwerp en Inrichting van de cluster Natuur en Landschap opgesteld en zijn voor deze locatie richtinggevend;

1/ Typologie

de woningen worden ontwikkeld in de prijsklasse die de gemeente in zijn woningbouw-programma voorschrijft en toepast:

de woningen dienen te passen in de categorieën zoals onderstaand vermeld:

  • 1-

    goedkope eengezinswoningen

  • 2-

    middeldure eengezinswoning

  • 3-

    dure eengezinswoning

daarbij dient een verdeelsleutel in de verhouding van 40-40-30 % te worden aangehouden.

2/ Verkaveling

er wordt niet op terpen gebouwd; lichte verhogingen is mogelijk

normale drooglegging = 1.00 m + boven grondwater

weilanden en bij voorkeur ook de tuinen op bestaande maaiveldhoogte

karakteristieke kwaliteiten van de bodem behouden

de voorzijde van de woning richt zich op het erf en/of de oprit van de (ontsluitings)weg

de bouwvolumes liggen vrij binnen een erfstructuur en zijn bedoeld als hoofdgebouw, een twee-onder-een-kap woning, of een rijtjeswoning met ten hoogste vier wooneenheden

4.4/ Erven ensembles

Veranderingen behoren bij een cultuurlandschap, echter wordt tegenwoordig gelukkig meer aandacht besteed aan de inrichting van het erf. Zo wordt verrommeling van het landschap en verpaupering van de woonomgeving tegengegaan. Erven hebben een karakteristieke vorm, een samenspel van gebouwen, opgaand groen en kavelsloten, die een sterk streekgebonden karakter hebben. Erven, de oude boerenerven en boerderijtuinen zijn verre van statisch; ze veranderen samen met veranderingen in de landbouw, zoals schaalvergroting, intensivering, verstedelijking van het landschap en de opkomst van burgers in het buitengebied.

In het boekje 'Nederlandse Boerenerven' (uitgeverij Ahrend Amsterdam, 1943) beschrijft Jan Bijhouwer thematisch het ideale boerenerf. Volgens Bijhouwer was elk boerenerf een afspiegeling van de grondsoort, het agrarische bedrijfstype en de interne bedrijfsstructuur.

Een boerenerf is niet alleen een afspiegeling van het landschaps- of streekeigen karakter, een boerenerf vertelt ook zijn eigen verhaal; van 'voor en achter', 'sier en nut', wonen en werken', 'sober of sierlijk', 'rijk of arm', enz.

Boerenerven worden steeds meer burgererven, sommigen behouden daarbij het 'boerenerven' karakter, anderen worden getransformeerd tot stadse villatuinen.

Op deze locatie past het karakter van een sober erf, meer het archetype, minder het stadse type.

De erven voor de locatie kenmerken zich door een rechthoekige hoofdvorm. Het erf bestaat uit een compositie van bebouwing, groene elementen, kavelsloten en verharding. De verzameling van gebouwen is gegroepeerd rondom een gezamenlijk 'open' erf met doorzichten naar het landschap. Een houtsingel zorgt voor een duidelijke afbakening van het erf en sluit veelal aan op een kavelsloot.

Voor alle erven samen wordt vanaf de Parallelweg tussen huisnummer 2 en 4 een toegangsweg gerealiseerd, die alle erven ontsluit. De individuele erven van de woonclusters hebben één ontsluiting die enerzijds aansluit op de toegangsweg, anderzijds het erf ontsluit. Dit is de open ruimte waaraan de opstallen van gevarieerde grootte zijn gelegen. Tussen de erven liggen groene weiden.

Alle kavels zijn per auto bereikbaar en per woning wordt een voorziening voor twee parkeerplaatsen gerealiseerd.

4.5/ Omringende woonbebouwing

De karakteristiek van de omringende woonbebouwing heeft een aantal gemeenschappelijk kenmerken. Opvallend is dat de hoofdvorm van de gebouwen enkelvoudige volumes zijn. De bouwhoogte varieert van één, anderhalf en ook wel twee-laagse bouw. De woningen liggen op peilhoogte van de hoofdweg, terwijl de weilanden en soms ook de tuinen lager liggen. Het woonhuis neemt op het erf een belangrijke plaats in.

De woningen hebben vlakke gevels. De gevelindeling is symmetrisch in het muurvlak en ook in de zijgevel zijn er ramen. Verder hebben de woningen een schuin dak, rondom voorzien van een overstek. Aangebouwde bijgebouwen staan of tegen het hoofdvolume aan of zijn daarvan gescheiden door een tussenlid. Veel bijgebouwen zijn van een kap voorzien. Bijgebouwen staan ruim achter de voorgevelrooilijn van de woning. De gevels zijn van warmkleurige baksteen in enkele gevallen gecombineerd met houten betimmering. De daken zijn hoofdzakelijk rood/ oranje van kleur, hoewel blauw/antraciet kleur pannendaken ook voorkomen. De erven zijn voorzien van houtsingels (elzen) en worden ontsloten door middel van een ontsluitingsweg met een uitrit op de hoofdweg.

afbeelding binnen de regeling

landschaps-verkavelingsplan in de context van het 'Tussenland' in 'de Gezichten van IJsselmuiden'

4.6/ Bouwen op het erf

De bebouwing wordt direct aan het onbebouwde deel van het erf opgericht, wat kenmerkend is voor het karakter van een boerenerf.

De hoofdwoning is een boerderijachtig type woonhuis en is duidelijk herkenbaar als hoofdgebouw op het erf en dient een bijzonder aanzien te hebben. Het karakter van toevoegingen, zoals dakkapellen, een dakopbouw, de schoorsteen, enz. dient het belang van het hoofdgebouw te versterken en daardoor de functie van de woning in ruimtelijke zin stevig op de locatie te verankeren.

De overige bebouwing, bedoeld als bijgebouw zijn de woonschuur typen van het erf waar ook gewoond wordt en hebben een minder nadrukkelijke plaats in het ensemble, zijn sober van vorm, detaillering en uitstraling.

De overige aan het wonen gerelateerde functies, zoals garages, bergingen, schuurtjes, e.d. worden zoveel als mogelijk in de bouwmassa opgenomen. Door deze opzet ontstaan kloeke bouwvolumes, die bijdragen aan een grotere eenheid van het ervenensemble, versnippering van het erf en beperking van de ruimte door allerlei bijgebouwen wordt daardoor vermeden. Tevens worden de doorzichten op de omgeving daardoor beter gewaarborgd.

Voor wat betreft de bebouwingskenmerken van de 'woonschuren', deze dienen een eigentijds karakter en landelijke uitstraling te krijgen.

afbeelding binnen de regeling

4.7/ Typologie bebouwing

Het ontwerp moet gestuurd worden op maat, schaal, typologie, rooilijnen enz. Kortom op de korrel van het landschapstype.

Het plan dient met een landschappelijke beplanting te worden omzoomd en doorkruist met publieke routes. De verschillende groene open ruimtes moeten in het plan duidelijk herkenbaar zijn. De gegraven wetering aan de zuidrand van het plangebied herinnert aan de ontginningsperiode en heeft een cultuurhistorische waarde.

Op grond van bovenstaande uitgangspositie zijn stedenbouwkundige randvoorwaarden geformuleerd. Daarbij is voortgeborduurd op de kernkwaliteiten van het gebied.

Er worden twee bebouwingstypen onderscheiden op de verschillende erven. Een hoofdwoning en een woonschuur.

De hoofdwoning heeft een de functie van een hoofdgebouw en verwijst naar het hoofdgebouw op een traditioneel boeren erf. Het woonschuur verwijst naar de overige agrarische bouwwerken op een traditioneel erf. Door deze scheiding ontstaat een hiërarchie tussen de gebouwen die door het ontwerp en de materialisering duidelijk dient te worden.

afbeelding binnen de regeling

4.8/ Toetsingscriteria vormgeving bebouwing

Hoofdwoning

  • de hoofdbebouwing is een enkelvoudig, niet samengestelde volume waarbinnen zich één of meerdere wooneenheden kunnen bevinden.

  • dit type heeft een dominant bouwvolume

  • het ervenensemble heeft een sobere opzet dat zich uit in zowel de bebouwing als in de erfinrichting

  • de hoofdbebouwing heeft een meer formele uitstraling

  • de gevelindeling is eenvoudig, symmetrisch en met ondergeschikte gevelopeningen welke samen een compositie vormen en eenheid uitstralen

  • de nokrichting is in het verkavelingsplan bepaald

  • bouwhoogte: maximaal 1 laag met kap

  • de forse kap is een kenmerkend deel van het gebouw

  • lineair volume en kap

  • uitsneden uit het volume zijn zodanig dat het volume als geheel in tact blijft

afbeelding binnen de regeling

afbeelding binnen de regeling

Woonschuur

  • het is een enkelvoudig, niet samengestelde volume waarbinnen zich één of meerdere wooneenheden kunnen bevinden

  • dit type is sober van karakter, zowel de gevels als het dakvlak

  • geen overstekken, dakkapellen, dakopbouw en wolfseinden

  • de woningen hebben een eigentijdse uitstraling in een eenvoudig hoofdvolume

  • de goothoogte markeert één bouwlaag met kap

  • nokrichting is in het verkavelingsplan vastgelegd

  • uitsneden uit het volume zijn zodanig dat het volume als geheel in tact blijft

  • asymmetrische kapvorm is mogelijk (vorm kapschuur bijvoorbeeld)

Bijgebouwen

  • eventuele bijgebouwen zoals garages en bergingen worden in binnen het volume van de hoofdbebouwing geïntegreerd

  • losse bijgebouwen worden op de nieuwe erven niet toegepast

  • materiaalgebruik en kleurstelling sluiten aan op de hoofdbebouwing

afbeelding binnen de regeling

afbeelding binnen de regeling

4.9/ Materialisatie en kleurtoepassing bebouwing

De hoofd- en bijgebouwen op het erf vormen een eenheid in kleur en materiaal. Er zal een verschil bestaan in de materialisering van het boerderijtype en het schuurtype. Voor beide typen zal worden gewerkt met natuurlijke materialen in gedekte kleuren. Waarbij gedacht kan worden aan gebakken stenen voor de gevels en gebakken pannen voor de daken. Ook vergrijzend hout of hout geschilderd in een donkere kleur heeft de voorkeur.

afbeelding binnen de regeling

4.10/ Toetsingscriteria materialisatie bebouwing

Hoofdwoning

De hoofdwoning krijgt een afzonderlijke materialisering op het erf waarbij gedacht kan worden aan een warmer gevelbehandeling ten opzichte van de woonschuren. De hoofdwoning wordt uitgevoerd in gebakken steen in donkere aarde kleuren. Ook kan een gedeelte van de gevel worden uitgevoerd in vergrijzend hout. De gevelbehandeling dient eenduidig te zijn, waarbij combinaties van gevelbehandelingen worden vermeden. Voor de daken is een riten dakbedekking of een donkere dakbedekking gewenst, waarbij wordt uitgegaan van een bedekking in gebakken Matte (niet-glimmende) donkere Hollandse pan. De hoofdwoning kan, anders dan de woonschuren, een uitgesproken (rijkere) detaillering en materialisering krijgen.

afbeelding binnen de regeling

afbeelding binnen de regeling

Woonschuren

De woonschuren krijgen een donkere gevelbekleding in hout. Ook bij woonschuren dient de gevelbehandeling eenduidig te zijn waarbij combinaties van gevelbehandelingen worden vermeden. Het dak wordt uitgevoerd in een donkere dakbedekking, waarbij wordt uitgegaan van een bedekking in gebakken matte (niet-glimmende) donkere Hollandse pan. De woonschuren krijgt een sobere en ingetogen materialisering.

afbeelding binnen de regeling

4.11/ Het erf, de erfstructuur en erfinrichting

Het erf wordt in de agrarische wereld beschouwd als het onbebouwde gedeelte van een boerenbedrijf, dat functioneel is ingericht voor het alledaagse gebruik. Een erf is in de regel een verhard gebied met een stenig karakter.

De erven zijn in de loop der tijd ook aangepast. De kleinschalige erven bij keuterboerderijen hebben een andere maat dan het erf bij de grote industriële agrarische bedrijven. Toch hebben ze allen met elkaar een gemeenschappelijke noemer, ze zijn functioneel en sober ingericht en geschikt voor langdurig en intensief gebruik.

Voor de bouwlocatie wordt het erf bepaald door de situering van de bebouwing en is het erf een gemeenschappelijk gebied. Het is de ruimte vóór de bebouwing voor gezamenlijk gebruik en met een functioneel karakter. Het is als het ware de binnenplaats van het complex, de plek van samenkomst, waar de entrees naar de woningen zijn gesitueerd, de ontsluitingsweg en oprit op aansluiten en het verkeer wordt afgewikkeld.

De erfstructuur bepaalt de ordening van de bebouwing ('rood'), beplanting ('groen') en water ('blauw').

Het ordeningsprincipe van de bebouwing heeft niet alleen betrekking op de bebouwing onderling, maar ook ten opzichte van de weg (ontsluiting) en ten opzichte van het landschap.

De groene en blauwe ordening heeft hierbij betrekking op de wijze waarop de beplantingen (bomen, hoogstamvruchtbomen, houtsingels, hagen, grasvelden, enz) en water op het erf of de kavelsloten op de erfgrens zijn gesitueerd.

Oudere, kleinschalige erven zijn door hun fijnmazige structuur meer verweven met het landschap. Jonge en grote nieuwe erven liggen veel meer als 'eilanden' in het landschap. De schaal en maat van deze erven zijn meer bij deze tijd, echter in kleinschalige landschappen zijn de verhoudingen onderling soms zoek.

De groene structurele landschapselementen bepalen in deze situaties de mate van samenhang en dragen bij aan de verwevenheid met het landschap.

De erfinrichting heeft betrekking op de toepassing van materialen waarmee het erf wordt opgebouwd en ingericht; de groene inrichtingselementen, de erfverharding(en), de erfafscheiding( en) en de losse, veelal functionele elementen, zoals verlichting, een waterput, bankje voor het voorhuis, enz.

Kenmerkend voor de verharding op een erf is de mate van afwisseling in soorten materiaal en het verharde oppervlak. Een erf groeide met de ontwikkeling van het bedrijf mee, gebruikte men in het begin verhardingsmateriaal uit de directe omgeving, nu wordt materiaal voor erfverharding overal vandaan gehaald.

De meest aansprekende erven zijn nog altijd de erven die gekenmerkt worden door sober materiaalgebruik, ze hebben daardoor in de regel een rijke uitstraling en dat is nog steeds de beste oplossing.

afbeelding binnen de regeling

5/ ERF EN LANDSCHAP

5.1/ Landschappelijke beplanting

De groene structuurdragers van de bouwlocatie worden gevormd door landschappelijke beplantingen. Deze lijnvormige beplantingselementen zijn de groene bouwstenen van de locatie en vormen het landschappelijke kader waarbinnen de woonerven worden gesitueerd.

Door aanplant van houtsingels, met een overwegend tran sparant karakter, worden markante doorzichten naar het landschap behouden.

De beplanting heeft feitelijk meerdere functies, naast de vorming van een landschappelijke kader, bepaald de beplanting tegelijk de omvang van de kavels en erfgrenzen. Een bijkomend voordeel van de houtsingels is dat deze bijdraagt aan een aangenaam woon- en leefklimaat op de (woon)erven en in de tuinen. De beplanting zorgt niet alleen voor beschutting tegen wind en zon, ze zorgt ook voor de nodige privacy voor de bewoners. Daarnaast kan de houtsingel dienen als geriefhout of hakhout, maar ook als schuilplaats voor kleine dieren en een broed of foerageer functie hebben voor talrijke kleine vogeltjes.

Het assortiment van de houtsingels zal voornamelijk dienen te bestaat uit streekgebonden soorten.

De bermen van de toegangsweg naar de erven wordt beplant met een opgaande bomenrij. Ter versterking van het landelijke karakter worden knotbomen langs de wetering en kavelsloten aangeplant.

afbeelding binnen de regeling

5.2/ Toegangsweg en ontsluiting erf

De toegangsweg naar de wooncluster erven heeft een breedte van 3.20 m, aan beide zijden van het rijbaangedeelte wordt in de berm een rammelstrook aangelegd met een breedte van 40 cm. De totale berijdbare breedte komt daardoor op 4.00 m. Door de beperkte breedte van de weg wordt een lage verkeers snelheid afgedongen en wordt breed en zwaar vrachtverkeer geweerd. De toegangen naar de individuele erven dienen minimaal 4.50 m breedte worden.

De toegangsweg wordt een asfaltweg, de rammelstroken een beton-grassteen. Het asfalt wordt afgestrooid met een donkere grind- of splitlaag. Te denken valt aan fijn Maas/ Waal grind of split. Mede door deze opzet behoud het wegprofiel een informeel karakter.

De toegangsweg, ontsluiting en erf hebben een privaat karakter, ze worden in eigen beheer uitgevoerd en onderhouden.

afbeelding binnen de regeling

toegangsweg met bermbetonsteen

5.3/ Het erf

Het erf wordt omkaderd door houtsingels en kavelsloten, binnen dit kader wordt de bebouwing gesitueerd. De houtsingels wordt op de kavelscheiding aangeplant en maakt daardoor ook deel uit van het erf. Als hoofdhoutsoort wordt een enkele of dubbele bomenrij met elzen aangeplant en aangevuld met ( of in bescheiden mate) een onderbeplanting.

Gezien de structuur van de erven wordt aan de voorzijde van de woonschuren slechts in bescheiden mate ruimte vrij gehouden voor de aanleg van een voortuin. Tuinen liggen daarom aan de zijkant van het erf en/of woningen en aan de achterzijde. Hier is ruimte voor de aanleg van een moestuin, bloementuin, e.d.

Als verharding voor het erf wordt steenachtig materiaal toegepast, te denken valt aan een halfverharding voor het verkeersgebied en een halfgesloten bestrating langs de woningen en voor de paden. Ook de terrassen van de woningen kunnen worden gerealiseerd in een halfgesloten bestrating van onder meer straatbakstenen, en/of grijze betontegels of zelfs stelconplaten.

Parkeren vindt plaats binnen de woonclusters op eigen erf of in de garage/carport, of op het mandelige erf. Afsluiten van het erf of kavel door middel van een poort en/of metalen sierhekwerk zijn niet passend voor deze locatie.

afbeelding binnen de regeling

5.4/ Tuinen en erfafscheidingen

De (sier)tuinen zijn voornamelijk aan de zijkant of achterzijde van de woningen gesitueerd. De hoofdbebouwing op het erf heeft een grotere maat tuin en duidelijk een 'voortuin'.

Bij de woonschuren is een beperkte ruimte voor tuinaanleg aan het woonerf.

De voortuinen hebben in het algemeen een bescheiden karakter; gras, enkele perken, al dan niet omzoomd door Buxus en een enkele Taxus bepalen het karakter. De tuinen worden door een liguster- of meidoornhaag omzoomd. In een enkel geval is Buxus of Taxus toegestaan.

De perceelgrenzen van erfafscheiding worden eveneens voorzien van een groene en natuurlijke afscheiding. Deze kan bestaan uit een gemengde struikbeplanting, een haag of een groenscherm.

Een gevlochten scherm van wilgentenen is ook toe te passen, al dan niet voorzien van klimplanten. Voorkomen moet worden dat op de kavelgrenzen een 'gamma' aan onesthetische schuttingen wordt geplaatst. De bouw van muren zijn in principe ongewenst, afhankelijk van de plek kan dit bouwkundige element een architectonische toevoegen zijn. Mits goed ingepast is het gebruik van een metalen scherm van onder meer cortenstaal te overwegen.

afbeelding binnen de regeling

scherm van Cortenstaal

afbeelding binnen de regeling

wilgentenen scherm

afbeelding binnen de regeling

beukenhaag

5.5/ Kavelsloten en schouwpaden

Kavelsloten

De kavelsloten markeren de houtsingels en gelijkertijd de erven van de woonclusters. Naast het natuurlijke karakter van de sloten dienen zij ook voor opvang van hemelwater, dat afkomstig is van de daken en het maaiveld.

Hemelwater wordt daardoor op eigen erf opgevangen en zal het riool niet belasten. Ook de toegangsweg watert af via de berm op de naastgelegen kavelsloot.

Schouwpaden

Ten behoeve van het onderhoud van de kavelsloten en schouw van de sloten door het waterschap, worden onderhoudspaden aangelegd. Enkele schouwpaden dienen tegelijkertijd als wandelpad.

Tevens kunnen de paden ook gebruikt worden voor onderhoud van de houtsingels.

De schouwpad heeft een breedte van ongeveer 4.00 m.

afbeelding binnen de regeling

5.6/ Losse erf elementen

Kenmerkend voor de erfinrichting zijn niet alleen de beplantingen en verharding, ook losse elementen spelen een rol van betekenis, zoals verlichting, een vlaggenmast, (terrein)meubilair, pluimveehokjes, konijnenhok, vogelkooi(en), speelvoorzieningen, kweekkastje e.d.

Het zijn vaak de kleine toevoegingen die het buitenleven veraangenamen en dikwijls een educatieve rol spelen en/of een opvoedkundige betekenis hebben.

Hoe groot deze voorzieningen mogen worden is veelal niet relevant, dikwijls hebben ze een tijdelijk karakter en worden na een paar jaar weer opgeruimd. Een hokje van 75 x 1.25 cm voor het houden van een konijn kan voor een gezin met kinderen heel veel betekenen.

Het toelaten van dergelijke voorzieningen zijn daarom belangrijk op een erf. Met een omvang tussen de 2.50 en 5.00 m2 moeten deze bouwkundige voorzieningen vrij kunnen worden opgericht.

Verlichting

Verlichting langs de toegangsweg en op het erf is van belang uit oogpunt van veiligheid.

Boerenerven zijn in het buitengebied veelal spaarzaam verlicht. De landelijk gelegen wegen zijn meestal op de kruispunten voorzien van een enkele lantaarn.

De locatie ligt dichtbij de dorpsrand en zal meer verkeersbewegingen omvatten dan een afgelegen boerenerf. Van belang is de toegangsweg te verlichting overeenkomstig de gemeentelijke norm voor een dergelijke locatie. De erfstructuur zal spaarzaam worden aangelicht volgens de gemeentelijke norm. Een enkele lantaarnpaal of lamp aan de gevel voldoet.

Terreinmeubilair

Een bankje op het erf of andere zitgelegenheden, zoals een picknickset in de weitjes dienen in hout te worden uitgevoerd.

afbeelding binnen de regeling

afbeelding binnen de regeling

6/ TYPOLOGIE BEPLANTING

De streekeigen beplanting is uitvoerig beschreven in de folder 'Streekeigen huis en erf Polder Mastenbroek'. De locatie sluit goed aan op het karakter en de typologie van beplantingen, zoals die te vinden zijn in de Polder Mastenbroek. Het beschreven assortiment wordt daarom integraal in dit beeldkwaliteitsplan opgenomen.

Het assortiment beplanting is in het ontwerp onderverdeeld op grond van deze typologie. Daarbij is gekeken naar een beplanting die sterk verbonden is aan het karakter van de bodem. Daarom wordt de beplanting hoofdzakelijk opgebouwd uit: solitairen en laanbomen, knotbomen (wilg), elzensingel, hagen (beuk, meidoorn, veldesdoorn) en hoogstamvruchtbomen. In een vervolgfase, bij de uitwerking van het project, wordt het assortiment worden omgezet in een advies beplantingsplan, met bijbehorende plantlijst.

afbeelding binnen de regeling

Overzicht streekeigen assortiment

afbeelding binnen de regeling

afbeelding binnen de regeling

7/ RECREATIEVE VOORZIENINGEN

7.1/ Wandelpaden

In de planvorming zijn voor deze locatie enkele wandelpaden in het plan geïntegreerd. De routing maakt deel uit van een groter recreatief netwerk van wandelpaden in de dorpsrand van IJsselmuiden naar het buitengebied. De wandelpaden op de locatie vormen de 'schakels' in het netwerk en dragen bij aan de beleving van het landschap. Het zijn de achterpaden van het dorp waar je als bewoner of bezoeker rustig kunt wandelen. Ze dienen voor een klein ommetje of om een flinke wandeling te starten naar het (polder)landschap. In die zin zijn dergelijke paden van grote maatschappelijke betekenis.

Dergelijke paden zijn (vrijwel) geheel vrij van gemotoriseerd verkeer en hebben een rustig, met het landschap verweven karakter. Middels eenvoudige bruggetjes zijn doorsteken door het landelijke gebied over het slotenpatroon mogelijk.

afbeelding binnen de regeling

afbeelding binnen de regeling

7.2/ Natuurlijk bloemgrasland en bloemenweiden

Het weidelandschap rond de locatie versterkt de landelijke ligging en karakter van de erven. Binnen het project zijn een aantal natuurlijke weitjes in het plan ingepast. Het natuurlijke karakter van de weitjes draagt bij aan een kwalitatief hoogwaardig woonmilieu en woongenot.

De weitjes maken deel uit van het ervenensemble en zijn in principe voor gemeenschappelijk semi-agrarisch recreatief gebruik.

Naast de mogelijkheid de weitjes als dierenweide te gebruiken, echter zonder bebouwing, in de vorm van een stalletje, is er ook de ruimte voor nutstuin gebruik in de vorm van de aanleg van een moestuin of plukweide. Ook zijn de weitjes geschikt als speelveld of te gebruiken als picknickplaats op een mooie zomerse dag.

Het weitje langs de Wetering wordt beplant met knotbomen langs de oever.

afbeelding binnen de regeling

afbeelding binnen de regeling

afbeelding binnen de regeling

Ondertekening