Regeling vervallen per 30-10-2025

Handboek kabels en leidingen Maasgouw, ter uitwerking van de AVOI

Geldend van 15-07-2022 t/m 29-10-2025

Intitulé

Handboek kabels en leidingen Maasgouw, ter uitwerking van de AVOI

Het college van de gemeente Maasgouw;

gelezen het voorstel van 31 oktober 2017;

mede gelet op de artikelen 4:81, eerste lid, 4:83 en 1:3, vierde lid, van de Algemene wet bestuursrecht, en voorts gelet op de Telecommunicatiewet;

b e s l u i t vast te stellen de volgende beleidsregel:

Handboek kabels en leidingen Maasgouw, ter uitwerking van de AVOI, van de gemeente Maasgouw

1. INLEIDING

Binnen de gemeente Maasgouw verlenen burgemeester en wethouders instemming voor werkzaamheden in verband met de aanleg, instandhouding en opruiming van ondergrondse infrastructuren (kabels en/of leidingen), conform de vigerende Algemene verordening ondergrondse infrastructuur (AVOI). De mandatering van medewerkers van de gemeente voor de afhandeling van de instemmingsaanvragen en handhaving van het beleid is vastgelegd in de mandaatregeling van de gemeente.

Als beheerder van de openbare ruimte voert de gemeente de regie en coördinatie bij de aanleg van kabels en/of leidingen van netbeheerders. De coördinatie heeft als doel zorg te dragen voor de veiligheid, de beperking van overlast, het bevorderen van het voorkomen van schade en het borgen van de kwaliteit van de openbare ruimte. Voor een goede uitoefening van deze taken hebben burgemeester en wethouders nadere regels vastgelegd in dit Handboek kabels en leidingen Maasgouw (verder het Handboek). Het Handboek is vastgesteld door burgemeester en wethouders als nadere regel, ter uitwerking van de AVOI. Het Handboek is van toepassing voor alle werkzaamheden ten behoeve van de aanleg, instandhouding en opruiming van kabels en/of leidingen in de openbare ruimte van de gemeente Maasgouw. Over de regelgeving uit het Handboek is altijd nader overleg mogelijk met de gemeente Maasgouw om tot overeenstemming te komen inzake tijd, plaats en wijze van uitvoering van de werkzaamheden van een grondroerder, waarbij voor beide partijen de regels van redelijkheid en billijkheid gelden.

In dit Handboek zijn onder andere uniforme richtlijnen, voorwaarden en eisen gesteld ten aanzien van de voorbereiding en uitvoering van werkzaamheden.

Doel van het Handboek is:

  • -

    het borgen en bevorderen van de kwaliteit van de (ondergrondse) openbare ruimte;

  • -

    het bevorderen van een juiste ordening en een veilige ligging van kabels en/of leidingen;

  • -

    het beperken van overlast en het bevorderen van een veilige omgeving voor de burgers tijdens de werkzaamheden.

Het Handboek bestaat uit twee hoofdthema’s:

  • A.

    ALGEMENE EN PROCEDURELE INFORMATIE;

  • B.

    TECHNISCHE EISEN/VOORSCHRIFTEN met betrekking tot tracébepaling, ontwerp-, uitvoerings- en beheersvoorschriften;

Rangorde van wetten, verordeningen en het Handboek:

  • 1.

    wettelijke bepalingen, waaronder de Telecommunicatiewet (Tw), de Wet informatie-uitwisseling ondergrondse netten (WION) en de Wet bodembescherming (Wbb);

  • 2.

    lokale regelgeving van de gemeente Maasgouw, waaronder de Algemene plaatselijke verordening (APV) en de AVOI;

  • 3.

    het Handboek van de gemeente Maasgouw, met verwijzingen naar verdere relevante regelgeving en richtlijnen (zie artikel 2.3).

Parallel aan bovenstaande regelgeving gelden eventuele privaatrechtelijke overeenkomsten.

1.1. Spoedeisende werkzaamheden

Let op: Ook in geval van spoedeisende werkzaamheden of calamiteiten dienen alle aspecten uit dit Handboek zoveel als mogelijk in acht genomen en/of opgevolgd te worden.

Als dit vanwege het spoedeisende karakter van de werkzaamheden niet mogelijk is en/of de gebruikelijke voorafgaande kennisgeving van de werkzaamheden niet gedaan kan worden geldt:

  • -

    dat de grondroerder in ieder geval voor aanvang van de werkzaamheden de gemeente telefonisch op de hoogte dient te brengen. Dit is buiten kantooruren altijd mogelijk via de wachtdienst van de gemeente;

  • -

    dat als er voor spoedeisende werkzaamheden een wegafsluiting noodzakelijk is de grondroerder daarover zelf direct de hulpdiensten dient in te lichten;

  • -

    de nadere omschrijving conform artikel 4.2, derde lid.

DEEL A: ALGEMENE EN PROCEDURELE INFORMATIE

2. BEGRIPSBEPALINGEN, ROLVERDELING EN VERWIJZINGEN

De begripsbepalingen van de AVOI zijn van toepassing tenzij daarvan nadrukkelijk wordt afgeweken door het bepaalde in dit hoofdstuk. De definities uit de AVOI zijn hier ook vermeld ten behoeve van de leesbaarheid van het Handboek in de praktijk.

2.1. Begripsbepalingen

a.

aansluiting

het gedeelte van de kabel en/of leiding dat een netwerk verbindt met een fysiek punt waarop een klant de toegang tot een openbaar netwerk wordt geboden;

b.

belanghebbenden

de omwonenden en bedrijfsmatige gebruikers van alle percelen, grenzend aan het tracé van kabels en/of leidingen;

c.

bovengrondse voorzieningen

transformator-, schakel-, verdeel- en onderstations die onderdeel uitmaken van een netwerk, als bedoeld in onderdeel x. van dit artikel, die bovengronds worden geplaatst;

d.

boring (gestuurd)

het maken van een holle ruimte in de grond, met behulp van een sleufloze techniek, zonder daarbij de omringende grondslag te verwijderen. Meestal wordt in de ontstane holle ruimte een (flexibele) mantelbuis aangebracht waar de kabel of leiding doorheen wordt gevoerd;

 

e.

breekverbod

verbod voor het uitvoeren van werkzaamheden, zoals genoemd in onderdeel kk. van dit artikel;

f.

calamiteit

een incident waarbij de omgeving mogelijk grote gevolgen kan ondervinden, die niet zelfstandig kunnen worden afgewikkeld en waarbij gecoördineerde inzet van hulpverleningsorganisaties en diensten van verschillende disciplines is vereist om de gevolgen te beperken;

g.

combiwerk

het gecombineerd coördineren en uitvoeren van werkzaamheden, zoals genoemd in onderdeel kk. van dit artikel, van meerdere netbeheerders tegelijk op een graaflocatie waarbij alle kabels en/of leidingen gelijktijdig of direct na elkaar worden aangelegd;

h.

coördinator

de door de gemeente, zoals genoemd in onderdeel j. van dit artikel, aangewezen persoon die is belast met het coördineren van alle werkzaamheden, zoals genoemd in onderdeel kk. van dit artikel, namens de gemeente;

i.

distributie- en mutatiepunten

afsluitbare ondergrondse holle behuizing voor het onderbrengen van telecommunicatie-apparatuur (handholes), afsluiters, brandkranen, lassen enzovoort onder het maaiveld of met toegangsluik op maaiveldniveau;

j.

gemeente

burgemeester en wethouders van de gemeente Maasgouw;

k.

gesloten verharding

verhardingsconstructie bestaande uit een bitumen, cement of kunststof gebonden materiaal;

l.

graaflocatie

de locatie waar werkzaamheden, zoals genoemd in onderdeel kk. van dit artikel, worden verricht;

m.

groenvoorzieningen

het geheel van de aanplant (bomen, beplanting, bosplantsoen, bloemberm, gras en gazon) in een gebied;

n.

grondroerder

degene onder wiens verantwoordelijkheid de werkzaamheden, zoals genoemd in onderdeel kk. van dit artikel, feitelijk worden verricht;

o.

instemmingsbesluit

besluit van de gemeente, zoals genoemd in onderdeel j. van dit artikel, op een aanvraag tot instemming van voorgenomen werkzaamheden, zoals genoemd in onderdeel kk. van dit artikel;

p.

kabel- en leidingtracé

een strook grond waarin kabels en/of leidingen liggen of worden gelegd;

q.

kabels en/of leidingen

een of meer kabels en/of leidingen die onderdeel zijn van een openbaar (elektronisch communicatie)netwerk, daaronder mede begrepen de daarmee verbonden transformator-, schakel-, verdeel- en onderstations, distributie- en/of mutatiepunten, en tevens omvattende lege buizen, ondergrondse ondersteuningswerken en beschermingswerken, bestemd voor het transport van vaste, vloeibare of gasvormige stoffen, van energie of van informatie;

r.

Kadaster- sectie Klic

afdeling van het Kadaster die uitvoering geeft aan de Wet informatie-uitwisseling ondergrondse netten (WION) en ook zorgdraagt voor de uitwisseling van kabel- en/of leidinggegevens (Klic-meldingen);

s.

ligging

de werkelijke plaats van een kabel of leiding. Deze wordt aangegeven op een revisietekening;

t.

mantelbuis

beschermbuis (staal of kunststof) om een kabel en/of leiding;

u.

marktconforme kosten

kosten zoals deze onder normale omstandigheden in een markteconomie op de desbetreffende markt worden gemaakt;

v.

montagegat c.q. lasgat

een opbreking met beperkte afmeting, maximaal 2 m², die wordt gemaakt ten behoeve van de toegang tot een distributie- of mutatiepunt, plaatsen van afsluiters, het opgraven van een kabelrol ten behoeve van aansluitingen, voor het herstellen van kabel- c.q. leidingstoringen of voor inspectiedoeleinden;

w.

netbeheerder

degene die als natuurlijk persoon handelend in de uitoefening van een beroep of bedrijf dan wel als rechtspersoon acteert als beheerder van een al dan niet openbaar netwerk;

x.

netwerk

samenstel van kabels of leidingen;

y.

openbare ruimte

openbare gronden, als genoemd in artikel 1.1, onderdeel aa., van de Telecommunicatiewet;

z.

open verharding

verharding bestaande uit elementen, waaronder bijzondere (sier)bestrating, of andere ongebonden materialen al of niet op een puinfundering, waaraan geen bindmiddel is toegevoegd;

aa.

opslag

vrijgekomen sleufmaterialen die tijdelijk worden opgeslagen, meestal naast de sleuf;

bb.

opslagterrein

de tijdelijke stallingsplaats van haspels, vracht-, directie- of materiaalwagens, materialen enzovoort in de openbare ruimte;

cc.

persing

met behulp van een hydraulische vijzel een stalen mantelbuis door de grond drukken. Betreft een sleufloze techniek waarbij de omringende grondslag niet verwijderd wordt;

 

dd.

registratiesysteem

digitaal systeem dat de gemeente gebruikt om meldingen en instemmingen van werkzaamheden, zoals genoemd in onderdeel kk. van dit artikel, en alles wat daarmee samenhangt te verwerken;

2.2. Rolverdeling

In de praktijk kan een rolverdeling bestaan tussen de netbeheerder en de grondroerder. Soms worden die twee rollen door een en dezelfde partij vervuld.

De gemeente zal in het algemeen veel zaken rechtstreeks afhandelen met de grondroerder, maar de netbeheerder is ook zowel financieel, operationeel als juridisch altijd aansprakelijk en verantwoordelijk voor het (doen) opvolgen van de bepalingen in dit Handboek. Dit geldt met name als er gebruik wordt gemaakt van (een) grondroerder(s) die middels een machtiging werkzaamheden verricht(en) voor de netbeheerder.

De gemeente behoudt zich desondanks wel het recht voor om in dringende gevallen ook handhavingsmaatregelen rechtstreeks met de grondroerder af te handelen en de netbeheerder daarvan zo snel mogelijk in kennis te stellen.

2.3. Verwijzingen

In dit Handboek wordt op diverse onderdelen verwezen naar normen en richtlijnen die van toepassing zijn op de uit te voeren werkzaamheden. Hieronder volgt een beknopte omschrijving:

NEN (Nederlands Normalisatie instituut)

Het Nederlandse centrum van normalisatie helpt bedrijven en andere partijen om onderling heldere en toepasbare afspraken te maken. NEN draagt bij aan veiligheid, gezondheid, milieu en innovatie.

Bedrijfsleven en andere partijen maken in normcommissies zelf afspraken over producten en werkwijzen. NEN bemiddelt in het afwegen van de verschillende belangen en zorgt voor neutrale procesbegeleiding. NEN biedt direct toegang tot Europese (NEN-EN) en mondiale normalisatieplatforms.

De NPR (Nederlandse Praktijk Richtlijnen) geeft toelichting op en aanwijzingen voor het verantwoord gebruik van de NEN- (nationaal) en NEN-EN (Europees) normen.

CROW (oorspronkelijk: Centrum voor Regelgeving en Onderzoek in de Grond-, Water-

en Wegenbouw en de Verkeerstechniek)

CROW is het nationale kennisplatform voor infrastructuur, verkeer, vervoer en openbare ruimte. Deze stichting zonder winstoogmerk ontwikkelt, verspreidt en beheert praktisch toepasbare kennis voor beleidsvoorbereiding, planning, ontwerp, aanleg, beheer en onderhoud. Dat gebeurt in de vorm van handleidingen, richtlijnen en aanbevelingen en in samenwerking met alle belanghebbende partijen, waaronder Rijk, provincies, gemeenten, adviesbureaus, uitvoerende bouwbedrijven in de grond-, water- en wegenbouw, toeleveranciers en vervoerorganisaties.

RAW (Rationalisatie en Automatisering in de Grond-, Water- en Wegenbouw)

De RAW-systematiek, beheerd en onderhouden door CROW, is sinds jaar en dag de standaard voor bestekken in de grond-, water- en wegenbouw (GWW). Bij de meeste werken in de GWW wordt de systematiek gevolgd.

Alle relevante (technische) eisen uit de meest recente Standaard RAW bepalingen voor onder andere grondwerken, groenvoorzieningen, sleuf- en sleufloze technieken en leiding- en kabelwerk zijn leidend en bindend betreffende de uitvoeringsmethodiek.

VCA (Veiligheid, gezondheid en milieu Checklist Aannemers)

VCA is bedoeld om aannemers veiliger te laten werken en het aantal ongevallen te verminderen. VCA biedt een concrete en praktische invulling van wettelijke regelingen of vult deze aan. Elke VCA gecertificeerde aannemer voldoet aantoonbaar aan een aantal verplichtingen uit de Arbowet.

Norminstituut Bomen

Het Norminstituut Bomen heeft als doel de kwaliteitszorg rond bomen te verbeteren. Het instituut ontwikkelt en standaardiseert kwaliteitseisen, richtlijnen en normen voor werkzaamheden in, rond en met bomen. De bomenposter 'Werken rond bomen' toont de kwetsbare boomzone direct rond een boom en laat zien welke belangrijke randvoorwaarden er gelden binnen deze kwetsbare boomzone voor de uitvoering van werkzaamheden.

3. BEREIKBAARHEID, VERKEERSMAATREGELEN, OVERLASTBEPERKING

3.1. Bereikbaarheid aangrenzende gebouwen

  • 1.

    De werkzaamheden dienen qua tijd en uitvoeringswijze zodanig te worden gepland dat de bereikbaarheid van woningen, bedrijven, winkels en overige gebouwen (verder: objecten) voor (mindervalide) voetgangers, (brom)fietsers, gemotoriseerd (bestemmings)verkeer en hulp- en afvalophaaldiensten -in overleg met de betrokkenen- altijd zo veel mogelijk in stand gehouden wordt. Dit geldt ook in doodlopende straten of openbare woonerven.

    Verder geldt:

    • -

      een weg mag in principe maar aan een kant worden afgesloten;

    • -

      er moet altijd minimaal een rijstrook beschikbaar zijn;

    • -

      indien het onvermijdelijk is dat een straat toch volledig afgesloten moet worden dient dit op bus routes ten minste vier werkweken en op overige wegen ten minste twee werkweken voor aanvang van de werkzaamheden afgestemd te worden met de coördinator.

    • -

      Na goedkeuring van de coördinator zullen de hulpdiensten en de OV- en buurtbusdiensten op bus routes ten minste drie werkweken en op overige wegen ten minste twee werkweken voor aanvang van de werkzaamheden geïnformeerd worden door de gemeente over de wegafsluiting.

    • -

      De vooraankondigingsborden dienen een werkweek van tevoren aan beide zijden van de af te sluiten weg door de grondroerder geplaatst te worden;

    • -

      brandkranen, afsluiters van water, gas en dergelijke en bovengrondse voorzieningen van andere netbeheerders moeten altijd zichtbaar en toegankelijk blijven;

    • -

      de minimale doorrijbreedte voor hulpvoertuigen is 3,50 m en de minimale doorrijhoogte voor hulpvoertuigen is 4,50 m en dient altijd gewaarborgd te zijn;

    • -

      objecten moeten minimaal tot op 40,00 m benaderd kunnen worden.

  • 2.

    Ter plaatse van de toegang en (nood)uitgang naar objecten dient een goede toegankelijkheid geboden te worden voor voetgangers, inclusief (brom)fietsen die aan de hand meegevoerd worden en mindervalide voetgangers die vaak worden begeleid door hulpmiddelen zoals rollators, rolstoelen en scootmobiles. Hierbij is het toepassen van stevige en goed zichtbare loopplanken een minimale vereiste. De loopplanken dienen vlak en aansluitend aan elkaar geplaatst te worden.

  • 3.

    Indien een beperking van de bereikbaarheid onvermijdelijk is en tot gevolg heeft dat:

    • -

      de hulp- en afvalophaaldiensten objecten niet voldoende kunnen naderen;

    • -

      de bevoorrading van winkels en bedrijven anders dan normaal moet worden geregeld;

    • -

      met belanghebbenden geen overeenstemming kan worden bereikt over de beperking van de bereikbaarheid,

  • dient de grondroerder minimaal drie werkweken vooraf te overleggen met de toezichthouder zodat tijdig afspraken gemaakt kunnen worden om de juiste maatregelen te nemen.

3.2. Maatregelen in het belang van het verkeer

  • 1.

    Ten behoeve van de verkeersmaatregelen zijn de meest recente Standaard RAW bepalingen van toepassing en de daaraan verbonden CROW-uitgaven 96b (en/of 96a).

    De toegepaste materialen en de plaatsing dienen te voldoen aan de wettelijke voorschriften die onder andere vastgelegd zijn in:

    • -

      Het Reglement Verkeersregels en Verkeerstekens (RVV 1990);

    • -

      Het Besluit Administratieve Bepalingen inzake het Wegverkeer (BABW);

    • -

      De Uitvoeringvoorschriften BABW inzake verkeerstekens;

    • -

      De Algemene eisen voor verkeersborden (NEN 3381).

  • 2.

    Als de gemeente het noodzakelijk acht, bijvoorbeeld wanneer vanwege reguliere werkzaamheden een belangrijke verkeersweg moet worden afgesloten, kan de gemeente de grondroerder verplichten om de werkzaamheden zo veel mogelijk in de weekeinden, avonduren of ´s nachts uit te voeren. Indien een weg volledig afgesloten moet worden geldt het bepaalde in artikel 3.1, eerste lid.

  • 3.

    Tijdens de verkeersspits (7.30 uur tot 9.00 uur en 16.00 uur tot 18.00 uur) mogen geen reguliere werkzaamheden op of langs hoofdwegen of gebiedsontsluitingswegen (zie bijlage 10.4) plaatsvinden. Indien de grondroerder aantoonbaar zorgt voor een goede verkeersdoorstroming en verkeersafwikkeling kan met de toezichthouder anders worden overeengekomen.

  • 4.

    Ten behoeve van de bereikbaarheid voor gemotoriseerd (bestemmings-)verkeer kan toepassing van tijdelijke verkeersmaatregelen en/of aanbrengen van tijdelijke verkeersvoorzieningen (zoals rijplaten, tijdelijke waterkruisingen of doorsteken door groenstroken en dergelijke) noodzakelijk zijn. Bermen, gazons en boomspiegels dienen altijd beschermd te worden tegen spoorvorming.

  • 5.

    De vereiste verkeersmaatregelen - waaronder tijdelijke verkeersregelinstallaties (VRI) of de inzet van verkeersregelaars– ten behoeve van omleidingen of ten behoeve van werkzaamheden bij hoofdwegen, kruispunten, voet- en fietspaden, en dergelijke dient de grondroerder op verzoek van de coördinator vast te leggen in een gedetailleerd verkeers-, werk-, en tijdsplan en dit ter goedkeuring voor te leggen aan de gemeente. Dit dient ten minste vijf werkdagen voor aanvang van de werkzaamheden te gebeuren. Indien een straat volledig afgesloten moet worden geldt het bepaalde in artikel 3.1, eerste lid.

  • 6.

    De verkeersvoorzieningen mogen niet eerder dan 72 uur voor aanvang van de werkzaamheden, met de voor- of beeldzijde afgedraaid van het verkeer, worden aangebracht. De verkeersvoorzieningen mogen niet aan bijvoorbeeld lichtmasten worden bevestigd en mogen het zicht op de overige bebording en het zicht van eventuele camera’s niet ontnemen. De verkeersvoorzieningen dienen op de dag van en voor aanvang van de werkzaamheden met de voor- of beeldzijde naar het verkeer te worden geplaatst.

  • 7.

    Verkeersvoorzieningen die (tijdelijk) geen dienst (meer) doen dienen meteen verwijderd c.q. afgedraaid of afgedekt te worden tot het tijdstip dat deze weer nodig zijn.

  • 8.

    De (onder)aannemer die de verkeersvoorzieningen opzet en/of verwijdert dient in het bezit te zijn van een KOMO-procescertificaat op basis van de BRL-9101 conform het KIWA Reglement voor Procescertificatie.

  • 9.

    Indien tijdelijke verkeersvoorzieningen in een verharding aangebracht moeten worden, moet het te verwijderen verhardingsmateriaal worden afgevoerd en na verwijdering van de verkeersvoorziening weer aangebracht worden.

  • 10.

    De grondroerder zorgt voor een regelmatige en voldoende controle op de instandhouding van de verkeersvoorzieningen, ook buiten de normale werktijden en zorgt, indien van toepassing, voor een zo spoedig mogelijk herstel. Eventuele aanwijzingen van een toezichthouder met betrekking tot verkeersmaatregelen dienen meteen te worden opgevolgd.

  • 11.

    De gemeente kan vanwege verkeerstechnische redenen (en veiligheidsredenen, zie artikel 5.4, vierde lid) de grondroerder verplichten om buiten werktijden bouwhekken te plaatsen rondom ontgravingen.

  • 12.

    Plaatsing van onverlichte obstakels dient te voldoen aan CROW-publicatie 130, “richtlijn voor het markeren van onverlichte obstakels” (ISBN 90 6628 283 5).

3.3. Maatregelen ten behoeve van de overlastbeperking

  • 1.

    Behoudens het bepaalde in artikel 3.2, tweede lid, is het niet toegestaan om op zaterdagen, zondagen en nationale feest- en gedenkdagen of wanneer er een evenement plaatsvindt (zie ook artikel 4.3, breekverbod) geplande werkzaamheden uit te voeren in de openbare ruimte. De sleuf, inclusief verharding, moet volledig afgewerkt zijn en er mag geen puin en/of afval meer binnen de werkomgeving aanwezig zijn.

  • 2.

    Het is niet toegestaan om op werkdagen voor 07.00 uur en na 19.00 uur geplande werkzaamheden uit te voeren in de openbare ruimte.

  • 3.

    Op vrijdag of de dag voorafgaande aan een nationale feest- of gedenkdag of een vakantieperiode van de grondroerder moet de sleuf worden aangevuld en verdicht en de verharding moet weer worden aangebracht. Uiterlijk om 16.30 uur moeten alle werkzaamheden gereed zijn en de werkomgeving moet opgeruimd zijn.

  • 4.

    Het derde lid van dit artikel is overeenkomstig van toepassing op de dag voorafgaande aan alle namens de gemeente vergunde evenementen (kermis, (jaar)markt enzovoort, inclusief de opbouw- en afbreekperiode) op de evenementenlocatie en de directe omgeving daarvan en in winkelgebieden op de dag(en) waarop de koopavond(en) worden gehouden.

  • 5.

    Het eerste tot en met vierde lid van dit artikel gelden, tenzij met de coördinator en/of toezichthouder afwijkende afspraken worden gemaakt.

  • 6.

    De grondroerder dient alles te doen wat verwacht mag worden en wat redelijkerwijs mogelijk is om hinder als gevolg van bijvoorbeeld lawaai, stank, modder, en dergelijke veroorzaakt door voertuigen, machines, apparaten enzovoort tot een aanvaardbaar niveau te beperken. De grondroerder dient te voldoen aan alle wettelijke kaders en regelgeving op dat gebied. De Euronormen en milieuzones dienen gerespecteerd te worden. Tevens is in dat kader in verband met de verspreiding van fijn stof het droog slijpen van verhardingsmaterialen niet toegestaan.

  • 7.

    Indien de grondroerder (bij uitzondering) door de gemeente wordt toegestaan of verplicht om op zaterdagen, zondagen, nationale feestdagen of ’s avonds c.q. ‘s nachts te werken is de grondroerder verplicht alle nadere aanwijzingen van de gemeente op te volgen en zelf zorg te dragen voor eventuele benodigde aanvullende vergunningen of ontheffingen.

4. COMMUNICATIE, MELDINGEN EN BREEKVERBOD

4.1. Communicatie op de graaflocatie, (bouw)overleg

  • 1.

    Namens de grondroerder dient er altijd een contactpersoon op het werk aanwezig te zijn. De naam en het mobiele telefoonnummer van de contactpersoon moeten bij alle betrokken partijen bekend zijn. De contactpersoon moet controleren en verifiëren of de werkzaamheden worden uitgevoerd volgens de tracétekeningen en de gemaakte afspraken, alsmede dat de uitvoering conform het instemmingsbesluit verloopt.

  • 2.

    De grondroerder dient 24 uur per dag en zeven dagen per week bereikbaar te zijn en de contactpersonen van de grondroerder dienen direct informatie te geven en medewerking te verlenen indien de toezichthouder daarom vraagt.

  • 3.

    De grondroerder dient ervoor zorg te dragen dat de contactpersonen in de projectorganisatie de Nederlandse taal voldoende beheersen in woord en geschrift.

  • 4.

    De grondroerder dient bij alle voor de gemeente relevante bouwvergaderingen die worden gehouden de coördinator en/of toezichthouder uit te nodigen. Van deze vergaderingen dient de grondroerder notulen te maken en deze binnen tien werkdagen naar de deelnemers toe te sturen. Deze notulen zullen op de gebruikelijke wijze worden beoordeeld en vastgesteld door de vergadering.

  • 5.

    Bij (grootschalige) projecten die een bovengemiddelde impact hebben op de openbare ruimte en de veiligheid van de leefomgeving kan op initiatief van de gemeente op regelmatige tijden een voortgangsoverleg met alle betrokken partijen worden vereist. Van deze vergaderingen zal de gemeente notulen maken en deze binnen tien werkdagen naar de deelnemers toesturen. Deze notulen zullen op de gebruikelijke wijze worden beoordeeld en vastgesteld door de vergadering.

  • 6.

    Voorafgaand aan de werkzaamheden dient de grondroerder de belanghebbenden schriftelijk op de hoogte te stellen met een bewonersbrief. Deze brief dient minimaal drie werkdagen voor de start van de werkzaamheden bezorgd te zijn. De gemeente kan vragen om (een kopie van) deze bewonersbrief voorafgaand aan de bezorging aan haar te overhandigen ter toetsing.

    In de bewonersbrief wordt in ieder geval informatie gegeven over:

    • -

      de datum van aanvang van de werkzaamheden;

    • -

      de verwachte datum waarop de werkzaamheden gereed zijn;

    • -

      de bereikbaarheid van de woonomgeving;

    • -

      de plaats van de voorgenomen werkzaamheden (straatnamen);

    • -

      de contactpersoon van de grondroerder inclusief persoonlijke contactgegevens, mobiel telefoonnummer, telefoonnummer en e-mailadres.

  • 7.

    Vóór aanvang van spoedeisende werkzaamheden of werkzaamheden van niet ingrijpende aard dient de grondroerder alle belanghebbenden indien mogelijk schriftelijk, maar in ieder geval mondeling op de hoogte te stellen van de werkzaamheden.

4.2. Melding start en einde werk

  • 1.

    De daadwerkelijke start van de werkzaamheden dient uiterlijk drie werkdagen van tevoren bij de gemeente te worden gemeld middels de door de gemeente gehanteerde (digitale) formulieren of registratiesysteem met opgave van:

    • -

      de naam-, adres- en woonplaatsgegevens van de uitvoerende partij die belast is met de werkzaamheden;

    • -

      de naam, het telefoonnummer en het e-mailadres van een Nederlands sprekende contactpersoon van de uitvoerende partij;

    • -

      de startdatum en de verwachte datum waarop de werkzaamheden gereed zijn;

    • -

      het kenmerk van het instemmingsbesluit.

  • 2.

    Zodra de werkzaamheden zijn uitgevoerd dienen deze, na (gezamenlijke) oplevering, gereed gemeld te worden bij de gemeente middels de door de gemeente gehanteerde (digitale) formulieren of registratiesysteem. De gemeente beschouwd de werkzaamheden als gereed wanneer:

    • -

      het tracé op een correcte wijze is hersteld en in opgeruimde staat is achtergelaten;

    • -

      de (gegevens van de) straatwerkbonnen allemaal (digitaal) opgeleverd kunnen worden1;

    • -

      de klachten van belanghebbenden zijn opgelost;

    • -

      (klad)revisiegegevens via het Kadaster - sectie Klic beschikbaar zijn.

  • 3.

    In geval van spoedeisende werkzaamheden of calamiteiten mag het werk, als het niet anders kan, zonder de vereiste voorafgaande melding worden uitgevoerd. Wel dienen de activiteiten altijd telefonisch doorgegeven te worden aan de gemeente. Buiten kantooruren is dit mogelijk via de wachtdienst van de gemeente (zie artikel 1.1). Zodra de mogelijkheid zich voordoet, maar uiterlijk binnen een werkdag na aanvang van het werk, dienen de werkzaamheden via de reguliere weg bij de gemeente gemeld te worden middels de door de gemeente gehanteerde (digitale) formulieren of registratiesysteem.

4.3. Breekverbod

  • 1.

    Behoudens spoedeisende werkzaamheden is het tijdens een breekverbod tijdelijk niet toegestaan in de openbare ruimte werkzaamheden uit te voeren.

  • 2.

    De gemeente kan een breekverbod instellen bij weersomstandigheden waarbij de uitvoering van de werkzaamheden tot overlast of gevaar voor de bewoners en/of schade voor de gemeente kan leiden. Bijvoorbeeld bij vorst, maar ook bij wateroverlast, zware sneeuwval of ijzel (dit betreft geen limitatieve opsomming). Onder andere breuk van vastgevroren bestratingsmateriaal en/of niet goed kunnen verdichten van de ondergrond wordt voorkomen door het instellen van het breekverbod.

  • 3.

    Tijdens alle door de gemeente vergunde evenementen (kermis, (jaar)markt enzovoort, inclusief de opbouw- en afbreekperiode) is het breekverbod op de evenementenlocatie en de directe omgeving daarvan altijd van kracht. De grondroerder dient hiermee rekening te houden en dient daartoe tijdig de evenementenkalender op te vragen bij de gemeente. Na afloop van het evenement kan de grondroerder zijn werkzaamheden op de gebruikelijke wijze hervatten.

  • 4.

    De gemeente kan, in overleg met de grondroerder, een breekverbod instellen voor beperking van overlast voor bijvoorbeeld openbaar vervoer en/of winkeliers. Tenzij er door alle belanghebbenden in onderling overleg afspraken gemaakt worden voor een praktische en acceptabele oplossing.

  • 5.

    Behoudens het bepaalde in het derde lid van dit artikel geeft de gemeente in alle gevallen (op digitale wijze) aan wanneer het breekverbod van kracht is en de gemeente geeft minimaal een dag van te voren aan wanneer het breekverbod weer is opgeheven. De grondroerder dient zich aan het breekverbod te houden en de werkzaamheden mogen na beëindiging van het breekverbod pas weer worden hervat.

5. ZORGVULDIGHEID, SCHADE, VERZEKERINGEN EN VEILIGHEID

5.1. Zorgvuldigheid

  • 1.

    Ongeacht de instemmingverlening door de gemeente en/of goedkeuring door andere bevoegde instanties, is de netbeheerder tegenover de gemeente en/of derden verantwoordelijk voor een zorgvuldige uitvoering van de werkzaamheden. De grondroerder is tegenover de gemeente en/of derden aansprakelijk voor schade als gevolg van de uitvoering van het werk. Dit geldt ook voor werkzaamheden die op verzoek van of na aanwijzing van de gemeente uitgevoerd moeten worden. Bij gecombineerde kabel- en/of leidingaanleg draagt elk van de belanghebbende netbeheerders verantwoordelijkheid tegenover de gemeente. De coördinerende netbeheerder(s) is (zijn) daarvoor dan het aanspreekpunt voor de gemeente. De eventuele aansprakelijkheidsstelling voor schade vindt plaats conform het civiele aansprakelijkheidsrecht.

  • 2.

    De gemeente kan geen enkele aansprakelijkheid aanvaarden voor vorderingen van derden wegens schade, die het gevolg is van het uitvoeren van werkzaamheden van de grondroerder. De grondroerder vrijwaart de gemeente hiervoor.

  • 3.

    De netbeheerder zal, al dan niet na een aanwijzing, de gemeente tijdig op de hoogte stellen van eventuele werkzaamheden in verband met een project van de gemeente. De gemeente en de netbeheerder zullen afspraken maken over de planning van de bedoelde werkzaamheden. Ongeacht de voor de instemmings- en meldingsprocedure gehanteerde termijnen dient de netbeheerder de werkzaamheden binnen de afgesproken planning zodanig uit te voeren dat het project van de gemeente niet wordt vertraagd waardoor de gemeente mogelijk vertragingsschade kan oplopen.

5.2. Schade en kosten

5.2.1.Algemeen

  • 1.

    De grondroerder zal alle redelijkerwijs mogelijke maatregelen nemen om te voorkomen dat schade wordt toegebracht aan eigendommen van de gemeente of derden.

  • 2.

    Wordt desondanks schade aan eigendommen van de gemeente of derden (bijvoorbeeld: kabels en leidingen van andere netbeheerders, verkeersborden, eigendommen van particulieren, bodemverontreiniging tijdens het werk enzovoort) toegebracht dan dient de grondroerder dit zo spoedig mogelijk, in elk geval binnen 24 uur, schriftelijk door te geven aan de toezichthouder en/of aan betrokken derden.

  • 3.

    Schade die de gemeente als gevolg van kabel- en/of leidingwerkzaamheden lijdt of de kosten die de gemeente daarvoor moet maken, dienen door de netbeheerder hersteld c.q. vergoed te worden. Bij schade aan eigendommen van de gemeente beslist de gemeente of zij de schade laat herstellen op kosten van de netbeheerder, of dat de netbeheerder de schade voor eigen rekening zelf mag herstellen, of dat de netbeheerder de schade aan de gemeente dient te vergoeden.

5.2.2.Herstel van schade en vergoeding van kosten

  • 1.

    Het uitgangspunt is dat de situatie van de ondergrond, de verharding (inclusief bijzondere (sier)bestrating) en groenvoorzieningen teruggebracht dient te worden in de oude staat. De gemeente accepteert geen vermindering van kwaliteit.

  • 2.

    Indien vooraf tussen de gemeente en de netbeheerder de afspraak is gemaakt dat de gemeente zelf zorg draagt voor de herstelwerkzaamheden zal de gemeente de marktconforme kosten in rekening brengen bij de netbeheerder. In die gevallen geldt er voor de netbeheerder geen onderhoudstermijn. Dit geldt in ieder geval voor alle gebieden die zijn weergegeven in hoofdstuk 10, bijlage 10.3.

  • 3.

    De netbeheerder draagt kosten voor herstel en degeneratie- en beheerskosten. Voor de tarieven en onderhoudstermijn gelden separate afspraken.

  • 4.

    De gemeente zal bij in gebreke blijven van de grondroerder (als de voorgeschreven hersteltermijnen verstreken zijn en/of als herstel onvoldoende is) zelf noodzakelijke (herstel)werkzaamheden uit laten voeren door een door de gemeente geselecteerde aannemer. Dit zal dit tegen marktconforme tarieven geschieden. De gemeente zal de netbeheerder er vooraf (schriftelijk) van in kennis stellen dat zij het herstel zal laten verrichten.

  • 5.

    Alle (extra) kosten2 die door de grondroerder (of de gemeente) gemaakt moeten worden vanwege door de netbeheerder geïnitieerde werkzaamheden met betrekking tot kabels en/of leidingen en/of een gevolg zijn van de voorwaarden en eisen die zijn opgenomen in de AVOI, het instemmingsbesluit en dit Handboek komen in principe voor rekening van de grondroerder c.q. de netbeheerder. Over de eventuele verrekening van kosten zullen nadere afspraken worden gemaakt.

  • 6.

    Niet alle schades die de gemeente als gevolg van kabel- en/of leidingwerkzaamheden lijdt kunnen door de vastgestelde hersteltarieven worden gedekt. Dit is het geval bij:

    Schade bij groenwerkzaamheden:

    • -

      werkzaamheden waarbij de overlevingskans van de aanwezige beplanting gering is en deze dus moet worden vervangen;

    • -

      werkzaamheden waarbij dicht in de buurt van bomen moet worden gewerkt;

    • -

      achteruitgang van de (beeldbepalende) groenkwaliteit;

    • -

      aantasting van de (ecologische) kwaliteit van de groeiplaats.

  • In deze gevallen kunnen al vóór aanvraag van het instemmingsbesluit specifieke afspraken tussen de gemeente en de netbeheerder worden gemaakt. Afhankelijk van de omvang van het werk kan in de voorwaarden "het 1e jaar garantie op groen" en/of "inboet beplanting na het 1e groeiseizoen (week 13 tot en met 45)" tegen een marktconform tarief worden voorgeschreven. De gemaakte afspraken worden vastgelegd in het instemmingsbesluit.

    Als bomen worden beschadigd of zonder toestemming van de gemeente worden gerooid, kan de netbeheerder aansprakelijk worden gesteld voor de schade.

    De schade aan bomen wordt achteraf vastgesteld door de gemeente en berekend op basis van de Richtlijnen NVTB (Nederlandse vereniging van taxateurs van bomen).

    Schade die ontstaat buiten de werkomgeving:

    Van schade die ontstaat buiten de werkomgeving van de grondroerder is sprake als ten gevolge van werkzaamheden schade ontstaat aan materialen, lichtmasten, verkeersregelinstallaties (VRI’s), geparkeerde auto's, en dergelijke. Voor zover het gemeentelijke eigendommen betreft, kan de gemeente deze schade verhalen op de netbeheerder. Afhankelijk van de specifieke situatie kan het wenselijk zijn dat voorafgaand aan de werkzaamheden een gezamenlijke (toezichthouder en grondroerder) schouw van de werkomgeving plaatsvindt. De bevindingen dienen vastgelegd te worden.

    Verborgen gebreken:

    Verborgen gebreken zijn buitenproportionele oneffenheden van opgeleverd en goedgekeurd hersteld straatwerk. In dergelijke gevallen heeft de grondroerder een werkweek na eerste aanzegging van de gemeente de tijd om de verharding opnieuw te herstellen. Indien de grondroerder niet tijdig voor herstel zorgt zal de gemeente dit zelf (laten) doen.

    Als norm voor "buitenproportioneel" wordt een oneffenheid aangehouden van meer dan 0,03 m, die zich binnen een jaar na het eerste herstel voordoet (= CROW-norm voor "ernstige schade").

5.2.3.Onderhoud kabels en/of leidingen en bovengrondse voorzieningen

  • 1.

    Bovengrondse voorzieningen die eigendom zijn van netbeheerders en zich bevinden in de openbare ruimte dienen door de netbeheerder onderhouden te worden. Aanstootgevende graffiti, leuzen, posters en dergelijke die aangebracht zijn op voornoemde bovengrondse voorzieningen dienen in overleg met de gemeente in principe binnen 24 uur door of in opdracht van de netbeheerder te worden verwijderd.

  • 2.

    Verharding die is aangebracht ten behoeve van de bereikbaarheid van bovengrondse voorzieningen dient door de netbeheerder onderhouden te worden. Indien de verharding in de loop der tijd niet meer voldoet aan de bij aanleg gestelde eisen moet deze op eerste aanzegging van de gemeente worden hersteld.

  • 3.

    Markeringen die ten behoeve van de maatvoering van kabels en/of leidingen of ter aanduiding van kruisingen van watergangen (zinkers) worden aangebracht dienen op een deugdelijke wijze geplaatst en/of bevestigd te worden en altijd goed zichtbaar te zijn. Indien de markeringen in de loop der tijd niet meer voldoen aan de bij plaatsing gestelde eisen moeten deze op eerste aanzegging van de gemeente worden hersteld of op initiatief van de netbeheerder worden verwijderd.

  • 4.

    Gelet op de artikelen 6:174 en 6:175 van het Burgerlijk Wetboek, dient de netbeheerder ervoor te zorgen dat de in de openbare ruimte aanwezige kabels en/of leidingen die in zijn eigendom en/of beheer zijn te allen tijde in een goede staat verkeren.

5.3. Risicodekking en Verzekeringen

  • 1.

    De grondroerder dient, door bijvoorbeeld het afsluiten van een (Construction All Risk of CAR) verzekering, de onderstaande risico’s voldoende af te dekken:

    • -

      beschadiging, verlies of vernietiging van het werk, waaronder de voor het werk bestemde materialen;

    • -

      het risico van aansprakelijkheid voor schade aan goederen van derden, en de daaruit voortvloeiende gevolgschade, alsmede voor overlijden of lichamelijk letsel van personen, veroorzaakt door de uitvoering van het werk.

  • 2.

    De dekking (van de verzekering) loopt minstens vanaf de dag dat het werk start tot en met de dag van oplevering van de werkzaamheden.

  • 3.

    Onverminderd het bepaalde in het eerste en tweede lid van dit artikel moeten de grondroerder en haar (onder)aannemers en/of ZZP’ers zorgdragen voor de verzekeringen tegen schade als gevolg van Wettelijke Aansprakelijkheid die voortvloeit uit het gebruik van aannemersmateriaal bij de uitvoering van het werk.

  • 4.

    Rij- of voertuigen die worden ingezet ten behoeve van de werkzaamheden en waarvoor een verzekeringsplicht krachtens de Wet aansprakelijkheidsverzekering motorvoertuigen (WAM) geldt, dienen overeenkomstig de voorschriften van de WAM, alsmede tegen het werkrisico verzekerd te zijn.

5.4. Veiligheid en Calamiteiten

  • 1.

    Alle werkzaamheden moeten worden uitgevoerd met inachtneming van de geldende wet- en regelgeving ten aanzien van veiligheid en arbeidsomstandigheden (bijvoorbeeld bij extreem lage of hoge gevoelstemperaturen mogen werknemers niet doorwerken). De voorschriften die op dit gebied van kracht zijn (zie: www.arboportaal.nl) moeten op het werk beschikbaar zijn en de betrokken werknemers dienen volledig geïnstrueerd te worden. Ook dienen alle (onder)aannemers VCA gecertificeerd te zijn. De grondroerder is verantwoordelijk voor de naleving hiervan.

  • 2.

    Indien vereist conform de VCA en de Arbowet moet voor de aanvang van de werkzaamheden een Veiligheids-, Gezondheids- en Milieuplan (VG&M-plan) zijn opgesteld door de grondroerder. Wanneer er geen VG&M-plan wordt opgesteld door de grondroerder dient de grondroerder aan de gemeente voorafgaand aan de werkzaamheden onderbouwd aan te geven waarom er geen VG&M-plan wordt opgesteld. In het VG&M-plan moet, indien van toepassing, minimaal het volgende zijn opgenomen:

    • -

      de van kracht zijnde veiligheidsvoorschriften;

    • -

      milieuvoorschriften;

    • -

      de wijze waarop de instructie en voorlichting van het personeel worden geregeld;

    • -

      de wijze waarop het toezicht is geregeld;

    • -

      de wijze waarop verontreiniging van het milieu wordt voorkomen respectievelijk beheerst;

    • -

      een risico-inventarisatie en -evaluatie met betrekking tot de uit te voeren werkzaamheden;

    • -

      de locaties waar bodemverontreiniging aanwezig is en de wijze waarop gewerkt moet worden op die afzonderlijke locaties (zie ook artikel 5.4.1 en artikel 8.8);

    • -

      specifieke veiligheids- en voorzorgsmaatregelen bij werkzaamheden op of in de nabijheid van eigendommen en installaties van derden;

    • -

      de wijze waarop de afhandeling van calamiteiten en ongevallen wordt geregeld;

    • -

      contactpersonen van lokale hulpdiensten en storingsdiensten van netbeheerders.

  • 3.

    Het bij de uitvoering van de werkzaamheden betrokken personeel moet op de hoogte zijn van de inhoud van het VG&M-plan en moet dit naleven.

  • 4.

    De gemeente kan de grondroerder in het kader van de veiligheid (en vanwege verkeerstechnische redenen, zie artikel 3.2, elfde lid) verplichten om buiten werktijden bouwhekken te plaatsen rondom ontgravingen. Rondom het opslagterrein van de grondroerder is het plaatsen van bouwhekken altijd verplicht.

  • 5.

    De toezichthouder kan vanuit de publieke taakstelling van de gemeente controleren of het werk veilig wordt uitgevoerd. De toezichthouder is bevoegd om bij onveilige situaties correctieve maatregelen af te dwingen en/of de werkzaamheden stil te leggen. Dit geldt ook als er onveilige situaties aan een bestaand netwerk van een netbeheerder worden geconstateerd.

  • 6.

    Wanneer als gevolg van een storing in of toegebrachte schade aan een netwerk van een netbeheerder de (verkeers-)veiligheid en/of de volksgezondheid in gevaar komt is er sprake van een calamiteit.

  • 7.

    Calamiteiten dienen direct na signalering bij de coördinator en/of bij de toezichthouder te worden gemeld.

  • 8.

    Storingen of schades aan gas- en stroomvoorzieningen dient de grondroerder te melden bij het nationale nummer 0800-9009. Storingen of schades aan kabels en/of leidingen van overige disciplines dienen gemeld te worden bij de betreffende netbeheerders.

  • 9.

    Wanneer de calamiteit van dusdanige aard en/of omvang is dat er hulpdiensten moeten worden ingeschakeld dient de grondroerder dit direct te melden bij alarmnummer 112.

  • 10.

    Indien het noodzakelijk is dat, voor de (verkeers-)veiligheid en/of bescherming van de volksgezondheid, direct afzettingen worden geplaatst en/of (een deel van) de weg(-en) wordt afgesloten dan dient dit ook gemeld te worden bij alarmnummer 112 en bij de coördinator en/of bij de toezichthouder.

5.4.1.Bodemverontreiniging

  • 1.

    Voor werkzaamheden in of met verontreinigde grond is de Wet bodembescherming (Wbb) onverkort van toepassing. De door het CROW uitgebrachte richtlijnen “Werken in of met verontreinigde grond en verontreinigd (grond)water” (publicatie 132) en aanvullend daarop de richtlijn “Kabels en leidingen in verontreinigde bodem” (publicatie 307) gelden ook. De grondroerder dient altijd te werken volgens de meest recente versie van deze richtlijnen.

  • 2.

    De initiatiefnemer van een project dient vooraf te inventariseren (CROW publicatie 307) of er zich verdachte locaties binnen het werkgebied bevinden. Onder andere via de websites www.bodemloket.nl (initiatief van gemeenten, provincies en het Rijk) en www.rwsleefomgeving.nl (Rijkswaterstaat) is te achterhalen waar zich verontreinigde of verdachte locaties bevinden. Indien de grondroerder initiatiefnemer is kan hij voor de meest recente informatie en/of detailinformatie contact opnemen met de coördinator.

  • 3.

    Indien een grondroerder een kabel- c.q. leidingtracé wil aanleggen in een gebied waarvan vooraf is vastgesteld dat de bodem verontreinigd is ligt een eventuele saneringsplicht bij de grondroerder.

  • 4.

    Behalve het onderzoek als bedoeld in het tweede lid van dit artikel, zorgt de grondroerder er conform het bepaalde in artikel 5.4 voor dat de juiste noodzakelijke (beschermings-)maatregelen in acht worden genomen en legt daarvoor voorwaarden vast in een VG&M-plan.

  • 5.

    Indien de gemeente initiatiefnemer is zal zij die maatregelen nemen die noodzakelijk zijn vanwege wetgeving en eventueel aanvullende eisen die de gemeente zelf of het bevoegd gezag stelt in het kader van het betreffende project. De gemeente is niet gehouden te voldoen en geeft geen invulling aan kwaliteitseisen die netbeheerders zelf stellen ten aanzien van hun netstructuur in (voormalig) verontreinigde grond.

5.5. Peilen en hoofdafmetingen

  • 1.

    Indien van toepassing (op uitbreidingslocaties of bij reconstructies) beperkt het op de graaflocatie aangeven van peilen en hoofdafmetingen door de toezichthouder zich tot het eenmalig aangeven van hoofdmeetpunten en eventueel extra punten in bochten en dergelijke. De grondroerder kan daarna zelf door middel van eenvoudig meetwerk, zowel qua horizontale als verticale maatvoering, het tracé in detail uitzetten. De gemeente treedt slechts toetsend c.q. controlerend op. Het gewenste tijdstip van aanwijzing dient door de grondroerder ten minste een week van te voren aan de toezichthouder kenbaar gemaakt te worden.

  • 2.

    Bij de aanleg van kabels en/of leidingen in een nieuwbouwplan, waarbij (nog) geen woningen enzovoort aanwezig zijn om als vast punt voor maatvoering te dienen, zal de gemeente een aantal maten middels piketpaaltjes en/of krijtmarkeringen aangeven. Dit geldt alleen voor gronden die eigendom zijn van de gemeente. Bij werkzaamheden in particulier eigendom dient de grondroerder met betreffende grondeigenaar en/of projectontwikkelaar rechtstreeks afspraken te maken, de gemeente is hierin geen partij.

  • 3.

    Het in stand houden (borgen/verklikken) van de eenmalig door de toezichthouder aangegeven peilen en hoofdafmetingen valt onder de verantwoordelijkheid van de grondroerder.

5.6. Grondwaterstanden en bronbemaling

  • 1.

    Afwijkingen of veranderingen in de (door de gemeente) opgegeven grondwaterstanden geven de grondroerder geen recht op schadevergoeding of andere financiële tegemoetkomingen.

  • 2.

    Indien naar inzicht van de grondroerder bronbemaling noodzakelijk is om de werkzaamheden uit te kunnen voeren dient de grondroerder zelf te zorgen voor de noodzakelijke vergunning. Voor het onttrekken van grondwater en voor lozing op het oppervlaktewater is in veel gevallen een watervergunning van een Waterschap, Hoogheemraadschap of Polderdistrict nodig.

  • 3.

    Indien bronneringswater op het gemeentelijke rioolstelsel moet worden geloosd, dient de grondroerder voor aanvang van de werkzaamheden daarvoor schriftelijk toestemming te vragen bij de gemeente.

  • 4.

    Bij het verlagen van de grondwaterstand binnen de wortelzone van te handhaven bomen of beplanting, dienen in het groeiseizoen (week 13 t/m 45) eventueel beschermende maatregelen te worden genomen voor de beplanting. De grondroerder dient in overleg met de toezichthouder de beplanting water te geven. Hiervoor dient schoon water te worden gebruikt. Er mag geen bronneringswater of oppervlaktewater voor worden gebruikt.

6. HANDHAVING

  • 1.

    De in dit Handboek gestelde procedures, richtlijnen, voorwaarden, eisen en werkafspraken dienen altijd te worden opgevolgd. Handhaving geschiedt op grond van Hoofdstuk 4 van de AVOI.

  • 2.

    Mondelinge of schriftelijke (ook per e-mail) aanwijzingen en geboden die door de vertegenwoordigers van de gemeente met betrekking tot de inhoud van dit Handboek of de AVOI worden gegeven dienen onverwijld opgevolgd te worden.

  • 3.

    Indien de gemaakte afspraken worden genegeerd kan de gemeente de uitvoerende partij een (schriftelijke) waarschuwing geven. Zo nodig wordt het werk tijdelijk stilgelegd zonder dat aanspraak op schadevergoeding mogelijk is.

  • 4.

    Werkzaamheden die tijdelijk zijn stilgelegd mogen, op aanwijzing van de toezichthouder, pas weer worden hervat als de reden van stillegging is opgeheven.

  • 5.

    Indien blijkt dat werknemers van de grondroerder en/of haar (onder)aannemers zich niet houden aan de gemaakte afspraken of zij zich op de werkvloer onbehoorlijk en/of overlast gevend gedragen, dat er zich tijdens de uitvoering onregelmatigheden voordoen of dat de werkzaamheden niet naar behoren worden uitgevoerd, kan de gemeente handhavend optreden in het kader van openbare orde veiligheid of het voorkomen van overlast.

  • 6.

    De grondroerder houdt zelf toezicht op alle werkzaamheden van de (onder)aannemer(s) en voert de nodige controles en steekproeven uit.

  • 7.

    Namens de gemeente ziet de toezichthouder erop toe dat de voorschriften uit het instemmingsbesluit, de AVOI en het Handboek worden nageleefd.

    De toezichthouder controleert onder andere op:

    • -

      de aanwezigheid van een afschrift en/of een digitale versie van het instemmingsbesluit (inclusief de door de gemeente goedgekeurde tekeningen) c.q. de meldingsgegevens op het werk;

    • -

      de naleving van de instemmingvoorwaarden;

    • -

      de juiste ondergrondse ordening, waarvoor de geldige Klic gegevens inzichtelijk moeten zijn op het werk;

    • -

      of de werkzaamheden (met betrekking tot spoedeisend werk) zijn gemeld bij de gemeente;

    • -

      de naleving van een opgelegd breekverbod;

    • -

      het voldoende schouwen van het te volgen tracé;

    • -

      het nakomen van afspraken met belanghebbenden, hulpdiensten een dergelijke;

    • -

      de bereikbaarheid van de woon/werkomgeving;

    • -

      de kwaliteit van de verdichting van de sleuf;

    • -

      de kwaliteit van het herstel van de sleufbedekking;

    • -

      zorgvuldigheid bij werken nabij en de kwaliteit van het herstel van groenvoorzieningen;

    • -

      de veiligheidsmaatregelen;

    • -

      correcte wegafzetting.

DEEL B: (TECHNISCHE) EISEN / VOORSCHRIFTEN

7. RICHTLIJNEN TEN BEHOEVE VAN DE (TRACÉ)ENGINEERING EN ONDERGRONDSE ORDENING

7.1. Tracé-inspectie t.b.v. de aanleg van kabels en/of leidingen

  • 1.

    De grondroerder dient het beoogde tracé waarop de voorgenomen werkzaamheden uitgevoerd moeten gaan worden vooraf te inspecteren en dient te onderzoeken of de werkzaamheden (verkeers-)technisch uitvoerbaar zijn ten aanzien van de aanwezige wegen, waterlopen, voetpaden, kademuren, viaducten, tunnels, spoorwegen, (waterkerende) dijken, overige kabels en/of leidingen, bomen, wegmeubilair, taluds en gebouwen. De grondroerder dient bij de aanvraag van het instemmingsbesluit de gemeente ervan te overtuigen (bijvoorbeeld met een dwarsprofiel met daarin aangegeven de bestaande kabels en/of leidingen en het gewenste ruimtebeslag voor de aanleg van de nieuwe kabels en/of leidingen) dat er voldoende ruimte is voor de juiste ondergrondse ordening.

  • 2.

    De grondroerder dient in de engineeringsfase te inventariseren welke overige netbeheerders belangen hebben in het beoogde tracé en deze tijdig te informeren over de voorgenomen werkzaamheden en onderzoek te doen naar de aard en ligging van betreffende kabels en/of leidingen van de overige netbeheerders. Daartoe kan de grondroerder bijvoorbeeld een oriëntatieverzoek doen bij het Kadaster- sectie Klic en/of proefsleuven maken. De grondroerder geeft de overige netbeheerders de gelegenheid tot reactie waarbij de netbeheerders zelf kunnen toetsen of de voorgenomen werkzaamheden geen belemmering zijn voor een ongestoorde ligging van hun kabels en/of leidingen. Zo nodig kunnen zij in overleg treden met de grondroerder om nadere afspraken te maken.

  • 3.

    De grondroerder dient zelf te inventariseren of er, behalve het instemmingsbesluit, voor bepaalde uit te voeren activiteiten een omgevingsvergunning noodzakelijk is bijvoorbeeld voor het werkzaamheden in een gebied met landschappelijke of cultuurhistorische waarde (al dan niet met nadere voorschriften in het kader van de bescherming van monumentale of archeologische waarden), het kappen van bomen, het oprichten/plaatsen van bovengrondse voorzieningen, bouwketen of portakabins, materiaalcontainers, parkeren van voertuigen enzovoort. Ook dient de grondroerder alle voor het werk benodigde vergunningen, ontheffingen enzovoort die noodzakelijk zijn vanuit de Algemene plaatselijke verordening (APV) en/of de Wet algemene bepalingen omgevingsrecht (WABO) aan te vragen.

7.2. Ondergrondse ordening bij de aanleg van kabels en/of leidingen

Bij de tracékeuze en ondergrondse ordening van kabels en/of leidingen zijn de horizontale en de verticale ligging van belang.

Het doel van ondergrondse ordening is:

  • -

    een optimaal gebruik van de openbare ruimte;

  • -

    een ongestoorde exploitatie van kabels en/of leidingen;

  • -

    optimaliseren van de veiligheid.

7.2.1.Horizontale ligging

  • 1.

    Het kabel- en leidingtracé wordt in het algemeen en bij voorkeur in het trottoir gesitueerd. In het kabel- en leidingtracé staan bij voorkeur geen bomen of andere obstakels (zoals bijvoorbeeld trottoirkolken).

  • 2.

    In het overig deel van de openbare weg worden de riolering en de transportleidingen gesitueerd.

  • 3.

    De minimale afstand tussen de grens van het kabel- en leidingtracé en

    • -

      de perceelgrens (is tevens de grens van het kabel- en leidingtracé) is 0,00 m, de eerste discipline ligt op 0,30 m uit de perceelgrens;

    • -

      het rioleringsstelsel is indien mogelijk 1,00 m.

  • 4.

    Bij de plaatsbepaling van kabels en/of leidingen in de nabijheid van bomen wordt de afstand tussen het kabel- en leidingtracé en de stam van de boom bepaald door de leidraad minimale graafafstanden in de onderstaande tabel:

    Stamdiameter

    Minimale graafafstand (1)

    Minimale graafafstand aan trekzijde (2)

    0,20 m

    1,25 m

    2,00 m

    0,40 m

    1,50 m

    2,50 m

    0,60 m

    1,75 m

    3,00 m

    0,80 m

    2,25 m

    3,50 m

    1,00 m

    2,50 m

    4,00 m

    1,50 m

    3,50 m

    5,00 m

     

    (1) Normaal ontwikkelde boom

    (2) Scheefstaande of trekzijde belaste boom

  • 5.

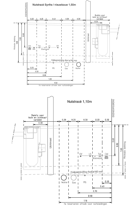
    Binnen het kabel- en leidingtracé worden de kabels en/of leidingen qua horizontale maatvoering volgens een vaste volgorde ten opzichte van elkaar ingedeeld. Daarbij wordt er rekening mee gehouden dat de afstand tussen leidingen en kabels ten minste 0,25 m bedraagt. De horizontale indeling is weergegeven in het standaarddwarsprofiel, zie Hoofdstuk 10, bijlage 10.1.

  • 6.

    In bermen langs wegen dient de afstand van ligging van de kabels en/of leidingen tot aan de verharding ten minste gelijk te zijn aan de diepteligging ervan, tenzij anders wordt overeengekomen met de toezichthouder.

  • 7.

    Het bovengenoemde basisprincipe moet zoveel mogelijk worden nagestreefd. In bijzondere gevallen kan de gemeente een andere indeling toestaan c.q. voorschrijven.

  • 8.

    Distributie- en/of mutatiepunten mogen niet aangebracht worden in rijbanen, parkeerplaatsen, uitwegen, op kruisingen, ter plaatse van de in- en uitritten van percelen, binnen een afstand van 3,00 m vanaf bomen en (tenzij het vanwege netwerk technische redenen niet anders kan) in kabel- en leidingtracés. De distributie- en/of mutatiepunten dienen bij voorkeur geplaatst te worden in voetpaden, bermen of groenvoorzieningen. In overleg met de toezichthouder kunnen andere afspraken worden gemaakt over deze voorschriften.

  • 9.

    De grondroerder dient vooraf aan de gemeente schriftelijk toestemming te vragen om (mede)gebruik te maken van voorzieningen die eigendom zijn van de gemeente. Bijvoorbeeld voor het gebruik van mantelbuizen, kabelgoten of holle ruimten die onder een weg of in een kunstwerk (bijvoorbeeld bruggen, tunnels, viaducten en dergelijke) van de gemeente aanwezig zijn.

7.2.2.Aanvullende eisen horizontale ligging

  • 1.

    Werkzaamheden aan of bij bomen of andere groenvoorzieningen dienen zoveel mogelijk vermeden te worden. Hiermee moet bij de engineering terdege rekening gehouden worden en waar mogelijk dienen bij voorkeur alternatieve routes gekozen te worden. Is het werken aan of bij bomen of andere groenvoorzieningen toch onvermijdelijk dan dient er eerst overleg met de coördinator gevoerd te worden

  • 2.

    Voorafgaand aan de engineering kan door de grondroerder bij de gemeente de digitale bomenkaart opgevraagd te worden. Indien zich in het tracé (monumentale) bomen bevinden dienen die (inclusief de kroonprojectie) op de instemmingstekening weergegeven te worden.

  • 3.

    Wegkruisingen die door middel van een persing (of gestuurde boring) worden gerealiseerd dienen op minimaal 3,00 m vanaf de stam van een boom gesitueerd te worden, tenzij anders wordt overeengekomen met de toezichthouder.

  • 4.

    Bij wegen met gescheiden rijbanen en/of fietspaden met tussenliggende groenstroken moet bij de realisatie van een wegkruising de mantelbuis (zo mogelijk) uit een lengte bestaan. De mantelbuis mag alleen worden aangebracht buiten de tangentpunten van de aansluitende bochten van wegen, niet in de kruisingsvlakken van wegen.

  • 5.

    Als het onvermijdelijk is dat er in de nabijheid van bomen en/of andere groenvoorzieningen moet worden gewerkt, moet de grondroerder er rekening mee houden dat er een aantal voorzorgsmaatregelen getroffen dient te worden (Hoofdstuk 9) die schade aan de betreffende boom, groenvoorziening en aan de te leggen kabel en/of leiding voorkomt. Indien de afstand tot de bomen minder is dan bepaald in artikel 7.2.1, vierde lid, dienen er in ieder geval beschermende maatregelen toegepast te worden of er moeten (gestuurde) boringen worden gemaakt.

7.2.3.Verticale ligging

  • 1.

    Binnen het kabel- en leidingtracé worden de kabels en/of leidingen ten opzichte van het maaiveld qua verticale maatvoering volgens een vaste volgorde ingedeeld. De verticale indeling is weergegeven in het standaarddwarsprofiel, zie Hoofdstuk 10, bijlage 10.1.

  • 2.

    Uitgangspunten bij verticale ligging:

    • -

      distributiekabels en/of -leidingen liggen ondieper dan transportleidingen;

    • -

      vrijverval -leidingen hebben voorrang boven drukleidingen;

    • -

      kabels en/of leidingen mogen niet binnen het ontgravingsprofiel van de riolering aangelegd worden. Het ontgravingsprofiel is bekend bij de rioolbeheerder van de gemeente;

    • -

      bij kruisingen van kabels en/of leidingen bedraagt de onderlinge tussenruimte (verticale afstand) tenminste 0,20 m;

    • -

      er moet een strook tussen 0,65 m -mv en 0,85 m -mv vrijgehouden worden in verband met kruisende vrijverval rioolaansluitingen.

  • 3.

    Het bovengenoemde basisprincipe moet zoveel mogelijk worden nagestreefd, mede in verband met kruisende rioolaansluitingen. In bijzondere gevallen kan de gemeente een andere verticale ligging toestaan c.q. voorschrijven.

7.2.4.Aanvullende eisen voor verticale ligging

  • 1.

    Bij boringen/persingen, in welke vorm ook, is de diepteligging afhankelijk van de situatie ter plaatse. De verticale afstand ten opzichte van de te kruisen kabels en/of leidingen bedraagt bij voorkeur ten minste 0,50 m, waarbij de te boren/persen leiding onder de bestaande leiding dient te worden gevoerd. Om knelpunten tijdens de uitvoering te voorkomen dient hiervoor vooraf onderzoek plaats te vinden.

  • 2.

    Bij het kruisen van watergangen die in eigendom en beheer zijn van de gemeente dient een minimale gronddekking van 1,00 m ten opzichte van de ontwerpdiepte van de vaste bodem van de watergang te worden aangehouden.

  • 3.

    Indien de aanwezige vaste bodem van de watergang lager ligt dan de ontwerpdiepte dient een gronddekking van 1,00 m ten opzichte van de aanwezige vaste bodem te worden aangehouden.

  • 4.

    Indien het onvermijdelijk is dat een kabel of leiding door een groenvoorziening (behoudens wegbermen) wordt gelegd of er onderdoor wordt geperst dient de gronddekking van die kabel of leiding (of mantelbuis) minimaal 1,00 m te bedragen.

  • 5.

    Kabels en/of leidingen mogen alleen onder een overbouwing (balkon enzovoort) van de openbare ruimte worden gesitueerd indien een goede bereikbaarheid van de kabels en/of leidingen blijvend gewaarborgd is. Bij calamiteiten is het noodzakelijk dat er snel gehandeld kan worden. Het verdient de voorkeur om als minimale verticale afstand tussen de onderzijde van de overbouwing en het ter plaatse vastgestelde uitgiftepeil minimaal 2,50 m te hanteren, zodat er altijd voldoende werkruimte is voor mechanisch- en ander materieel.

  • 6.

    Kabels en/of leidingen mogen alleen boven een onderbouwing (kelder, duiker, koppelbalken van funderingen enzovoort) van de openbare ruimte worden gesitueerd indien er voldoende gronddekking boven de kabels en/of leidingen en voldoende tussenruimte tussen de bovenkant van de onderbouwing en de kabels en/of leidingen blijvend gewaarborgd is. Het verdient de voorkeur om als minimale verticale afstand tussen de bovenzijde van de onderbouwing en het ter plaatse vastgestelde uitgiftepeil ten minste 2,00 m te hanteren.

7.3. Opruimen uit gebruik genomen kabels en/of leidingen

  • 1.

    De netbeheerder dient ervoor te zorgen dat zijn uit gebruik genomen kabels en/of leidingen zo snel en zo veel als mogelijk worden opgeruimd, tenzij het opruimen (gedeeltelijk) technisch wordt belemmerd en/of als er tussen de gemeente en de netbeheerder andere afspraken gemaakt worden, bijvoorbeeld over het moment waarop opgeruimd wordt en/of als er bomen nabij of op het tracé aanwezig zijn.

  • 2.

    Van uit gebruik genomen kabels en/of leidingen is sprake wanneer

    • a.

      deze gedurende een aaneengesloten periode van tien jaar geen deel uitmaken van een openbaar netwerk;

    • b.

      binnen periode van tien jaar, zoals bedoeld onder a. van dit lid, vastgesteld wordt dat de kabels en/of leidingen definitief geen deel meer uitmaken of zullen gaan maken van een openbaar netwerk. Dit kan het geval zijn bij bijvoorbeeld vervangingsprojecten.

  • 3.

    Uit gebruik genomen kabels en/of leidingen dienen in ieder geval opgeruimd te worden wanneer:

    • a.

      er door de gemeente geïnitieerde (reconstructie)werkzaamheden worden uitgevoerd;

    • b.

      er werkzaamheden aan kabels en/of leidingen van de netbeheerder zelf en/of van een andere netbeheerder worden uitgevoerd;

    • c.

      de gemeente dit verzoekt in het kader van ondergrondse ordening, milieuoverwegingen of anderszins.

  • 4.

    Tijdelijke kabels en/of leidingen (bijvoorbeeld bouwaansluitingen) dienen na afloop van de bouwactiviteiten verwijderd te worden. Indien na afloop van de bouwactiviteiten blijkt dat deze kabels en/of leidingen niet verwijderd zijn zal de gemeente deze, conform artikel 5.2.2, vierde lid, laten verwijderen.

8. VOORWAARDEN EN TECHNISCHE EISEN TEN AANZIEN VAN DE UITVOERING

8.1. Werkafspraken en voorwaarden met betrekking tot de uitvoering

  • 1.

    De grondroerder dient ervoor te zorgen dat een afschrift en/of een digitale versie van het instemmingsbesluit of het meldingsformulier inclusief de tekening(en), het Handboek, alsmede de afschriften van de toestemmingen van derden inclusief de voorwaarden en de gegevens van de Klic-melding op de graaflocatie aanwezig zijn; deze dienen desgevraagd aan de coördinator en/of toezichthouder getoond te worden.

  • 2.

    De grondroerder dient zich te houden aan de CROW-richtlijnen (onder andere) “Zorgvuldig graafproces”, “Combineren van onder- en bovengrondse infrastructuur met bomen” en “Kabels en leidingen rond wateren en waterkeringen” (respectievelijk de publicaties 250, 280 en 308), de meest recente Standaard RAW-bepalingen (voor grondwerken, groenvoorzieningen, sleuf- en sleufloze technieken en leiding- en kabelwerk) alsmede de AVOI-, Handboek- en WION-bepalingen, inclusief eventuele recente aanvullingen.

  • 3.

    Indien het voor aanvang bekend is dat er kabels en/of leidingen van meerdere netbeheerders in, in de directe nabijheid of aansluitend aan een te roeren tracé gelegd of opgeruimd moeten worden dienen deze werkzaamheden zoveel mogelijk gecombineerd, maar in ieder geval aansluitend aan elkaar in een werkgang, uitgevoerd te worden. De grondroerder(s) moet(en) dit als zodanig onderling of met de betreffende netbeheerder(s) en met de coördinator afstemmen (combiwerk).

  • 4.

    Verder kunnen ook projecten aan de orde zijn waarbij werkzaamheden van de gemeente en netbeheerder(s) binnen een gezamenlijk afgesproken tijdvak uitgevoerd moeten worden. Deze werkzaamheden komen tot stand vanuit proactieve regie en zijn voorafgaand aan de instemmingsaanvraag bekend.

  • 5.

    De locatie van het opslagterrein van de grondroerder dient in overleg met de gemeente bepaald te worden. De gemeente stelt de volgende voorwaarden aan inrichting en oplevering van het opslagterrein:

    • -

      een opslagterrein mag niet binnen de kroonprojectie van de te handhaven bomen liggen;

    • -

      ongestoorde ligging van aanwezige kabels en/of leidingen moet worden gewaarborgd;

    • -

      de grondroerder dient gedurende de werkzaamheden het laden en lossen en het opslaan van bouwmaterialen op het opslagterrein te laten plaatsvinden, niet daarbuiten;

    • -

      na afloop van de werkzaamheden dient het opslagterrein schoon en in oude staat opgeleverd te worden;

    • -

      de inrichting en oplevering van het opslagterrein wordt tussen de toezichthouder en de grondroerder afgestemd.

  • 6.

    Het is alleen toegestaan om Klic-gegevens in het veld aan te geven met wegenkrijt. Spuitbussen of andere methoden waarbij er verfresten achterblijven op de bestrating zijn niet toegestaan.

  • 7.

    Het risico voor het afvoeren en aanvoeren van bouwstoffen ligt altijd bij de grondroerder. De grondroerder dient daarbij aan alle eisen en (milieu-)voorschriften te voldoen.

  • 8.

    Behoudens bij spoedeisende werkzaamheden dient er voor werknemers een toiletvoorziening op of nabij de graaflocatie aanwezig te zijn. Indien een toiletcabine wordt ingezet dient deze vastgezet te worden tegen omwerpen.

  • 9.

    Tenzij met de toezichthouder anders is overeengekomen, mag er per dag geen grotere sleuflengte worden opengemaakt, dan op die dag weer volledig kan worden dichtgemaakt. Ook dienen alle montage- c.q. lasgaten dicht gemaakt te worden.

  • 10.

    De uitvoering van het herstel en onderhoud van de verharding en/of groenvoorziening wordt uitgevoerd conform de separate afspraken die tussen de gemeente en netbeheerders zijn gemaakt. Voor de gemeente Maasgouw geldt dat het herstel en het eerste jaar onderhoud van de elementenverharding en bermen wordt uitgevoerd door de grondroerder en het herstel en onderhoud van de groenvoorziening (exclusief bermen) wordt uitgevoerd door de gemeente.

  • 11.

    Indien binnen vijf jaar na groot onderhoud of herinrichting van de openbare ruimte een grondroerder werkzaamheden moet uitvoeren, dient voorafgaand aan de werkzaamheden met de coördinator overlegd te worden over de wijze waarop de grondroerder de kwaliteit van de huidige verharding wil bereiken en kan garanderen. Indien de huidige kwaliteit niet kan worden gegarandeerd kan de gemeente eisen dat de kabels en/of leidingen via een ander tracé worden gelegd of dat de verharding over een grotere of volle breedte opnieuw wordt gelegd.

  • 12.

    Bij reguliere werkzaamheden dient definitief herstel binnen vijf werkdagen gereed te zijn en bij werkzaamheden van niet ingrijpende aard of spoedeisende werkzaamheden binnen vierentwintig uur. Uitzonderingen hierop zijn artikel 3.3, derde en vierde lid, en de locaties waar gesloten verharding aanwezig is, daarvoor geldt artikel 8.3.

  • 13.

    De gemeente kan ervoor kiezen om de open verharding in (gedeelten van) de openbare ruimte in eigen beheer te (laten) herstellen. Afspraken hierover worden voor aanvang van het werk gemaakt.

    In deze gevallen zorgt de grondroerder ervoor dat de opgebroken verhardingsmaterialen onder handbereik langs het tracé worden opgetast. De grondroerder herstelt de sleuf, inclusief verdichting en brengt het zandbed voor de bestrating aan. Dit geldt in ieder geval voor alle gebieden die zijn weergegeven in hoofdstuk 10, bijlage 10.3.

  • 14.

    Tijdens het werk dienen alle (bestratings-)materialen (zo mogelijk) in de nabijheid van de sleuf opgetast te worden, in ieder geval binnen de wegafzetting maar niet tegen gevels, hekwerken of bomen. Zand, grond en eventueel funderingsmateriaal dient gescheiden te worden ontgraven, gescheiden te worden opgeslagen en gescheiden te worden teruggebracht in de sleuf.

  • 15.

    Als er direct naast de sleuf geen ruimte is dient de plaats van tijdelijke opslag van (bestratings-) materialen vooraf in overleg met de toezichthouder te worden bepaald. Na beëindiging van het werk (of op eerste aanzegging van de gemeente) dienen deze (bestratings-)materialen te worden verwijderd. Indien van toepassing dient de ondergrond te worden hersteld in de staat zoals vooraf aanwezig was.

  • 16.

    Alle (bestratings-)materialen dienen onbeschadigd herplaatst te worden. De grondroerder dient bij beschadiging zelf te zorgen voor herstel en/of vervangend (bestratings-)materiaal. Uitzondering hierop zijn situaties waarbij tijdens gezamenlijke vooropname van het tracé met de toezichthouder nadere afspraken zijn gemaakt over het leveren van (bestratings-)materiaal door de gemeente. Deze (bestratings-)materialen kunnen in overleg afgehaald worden op de gemeentewerf.

  • 17.

    Al het te gebruiken (bestratings-)materiaal dient van dezelfde soort en minimaal dezelfde kwaliteit te zijn als het aanwezige (bestratings-)materiaal en de door de gemeente gebruikelijk toe te passen (bestratings-)materialen.

  • 18.

    Rondom afsluiters, brandkranen, handholes en dergelijke, die vanaf maaiveldniveau toegankelijk zijn, dienen in (asfalt)verharding betonnen pastegels (zogenaamde straatkappen) aangebracht te worden.

  • 19.

    Nadat de werkzaamheden gereed zijn dient het tracé volledig hersteld te zijn en de werkomgeving dient opgeruimd achtergelaten te worden. Bermen en onverharde grond dienen vrij van stenen en dergelijke en indien van toepassing ingezaaid te zijn. Al het overtollige puin, grond, zand, beplantingsresten en/of afval van de werkzaamheden dient afgevoerd te worden naar een erkende, gecertificeerde verwerker. Er mag ook geen zand of vuil achterblijven in (mol)goten, lijnafwatering en straat- en trottoirkolken (indien nodig dient de grondroerder deze te reinigen). Eventueel gemaakte bronneringsgaten dienen weer opgevuld te worden. De werkomgeving moet worden opgeleverd in ten minste de oude staat. De grondroerder en toezichthouder leveren het tracé gezamenlijk op. Het opleverdocument wordt door beide partijen ondertekend.

  • 20.

    De bepalingen in artikel 7.2.1 tot en met 7.2.4 zijn ook van toepassing voor de uitvoering. Indien tijdens de uitvoering afgeweken wordt van het ingestemde tracé (in horizontale of verticale zin) dient dit altijd vooraf goedgekeurd te worden door de toezichthouder. De grondroerder stuurt daarna binnen vijf werkdagen een gewijzigde tracétekening met afwijkingsrapport naar de gemeente ten behoeve van het instemmingsdossier.

8.2. Opbreken en (indien van toepassing) herstellen open verharding

  • 1.

    Wegkruisingen in wegen met een open verharding met een (gebonden) puinfundering of met een waterdoorlatende verharding en -fundering opbouw dienen altijd gerealiseerd te worden door middel van een persing of (gestuurde) boring conform artikel 8.5, tenzij met de toezichthouder anders wordt overeengekomen.

  • 2.

    Wegkruisingen in wegen met een open verharding met een zandfundering mogen in open ontgraving (in 2 gedeelten) gerealiseerd worden. Ter plaatse van de wegkruising dient bij voorkeur een mantelbuis gelegd te worden waardoorheen de kabel en/of leiding moet worden gevoerd. De mantelbuis dient minimaal 0,50 m (bij kabels) of 1,00 m (bij leidingen) aan weerszijden van het te kruisen vlak door te lopen, tenzij met de toezichthouder anders wordt overeengekomen.

  • 3.

    Indien tijdens het opbreken van open verharding elementen breken of beschadigen dient de grondroerder deze zelf te vervangen door elementen van gelijke samenstelling en hoedanigheid. Indien voorradig kunnen deze eventueel worden geleverd door de gemeente. Indien tijdens een vooropname gezamenlijk (toezichthouder en grondroerder) geïnventariseerd is dat een verharding van een nog op te breken tracé een bovengemiddeld aantal (> 5%) gebroken of beschadigde elementen bevat kan het vervangende materiaal mogelijk door de gemeente beschikbaar worden gesteld. Hierover dienen afspraken gemaakt te worden met de toezichthouder.

  • 4.

    Lijnafwatering heeft vaak een fundering van (stamp)beton of gestabiliseerd zand, beiden mogen nooit worden verwijderd. De lijnafwatering inclusief funderingsconstructie moet intact blijven. Ook trottoirbanden die gefundeerd zijn mogen nooit verwijderd worden. Wanneer een lijnafwatering of een gefundeerde trottoirband gekruist moet worden dient over de toe te passen werkwijze overlegd te worden met de toezichthouder.

  • 5.

    Bij waterdoorlatende verhardingen dient de werkwijze met betrekking tot het opbreken en herstel en de eventueel toe te passen voegvulling altijd vooraf afgestemd te worden met de toezichthouder.

  • 6.

    Het opbreken en herstellen van bijzondere (sier)bestrating (onder andere natuursteen en gepolijste tegels) kan een specifieke werkwijze vereisen. Om ervoor te zorgen dat het zichtoppervlak van het bestratingsmateriaal niet beschadigd dient de grondroerder de nodige beschermende maatregelen te nemen waarbij aanwijzingen van de toezichthouder altijd opgevolgd dienen te worden.

  • 7.

    Bij herbestrating dienen de elementen onderling en ten opzichte van de ongeroerde elementen even hoog te zijn gestraat. Binnen het teruggebrachte straatwerk mogen geen oneffenheden voorkomen. Het straatwerk dient onder hetzelfde profiel en verband te worden gestraat als voor de werkzaamheden aanwezig was. Er mogen geen klinkers op z’n kant terug gestraat worden. Elementen kleiner dan een halve tegel of klinker mogen niet worden gebruikt.

  • 8.

    Uitgevoerd straatwerk dient schoongeveegd afgetrild te worden en moet daarna, meerdere keren en met tussenpozen van minimaal 24 uur, ingeveegd worden met schoon brekerzand (bij beton-klinkers), schoon straatzand (bij tegels) of schoon split (bij gebakken bestratingsmateriaal). Alle voegen in het straatwerk dienen in de eindsituatie voldoende met de ter plaatse toe te passen voegvulling te zijn gevuld. Een teveel aan voegruimte dient verdeeld te worden (schiften) over de sleufbreedte.

  • 9.

    De werkomgeving moet worden opgeleverd zoals omschreven in artikel 8.1, negentiende lid.

8.3. Opbreken en (indien van toepassing) herstellen gesloten verharding

  • 1.

    Wegkruisingen in wegen met een gesloten verharding dienen altijd gerealiseerd te worden door middel van een persing of (gestuurde) boring conform artikel 8.5. Als dit vanwege een technische reden niet mogelijk is, dan kan met de toezichthouder anders worden overeengekomen.

  • 2.

    Het is in beginsel verboden ontgravingen te verrichten in wegen met een gesloten verharding, behalve wanneer in deze wegen al kabels en/of leidingen aanwezig zijn die moeten worden gerepareerd of dat er aansluitingen op moeten worden gemaakt. In die gevallen wordt er gewerkt met voorafgaande (schriftelijke) toestemming van de gemeente.

  • 3.

    Voordat een asfaltconstructie mag worden verwijderd dienen de grenzen van het betreffende uit te breken gedeelte op steenmaat, met een minimale breedte en lengte van 0,50 m, tot de gewenste diepte te worden ingezaagd.

  • 4.

    Bij mechanisch te verrichten grondwerk dient de asfaltsleuf minimaal 0,50 m breder te zijn dan de bakbreedte van de graafmachine. Het ondergraven van de asfaltverharding is niet toegestaan.

  • 5.

    Vervolgens dient het asfalt (indien noodzakelijk) met behulp van een compressor te worden verwijderd.

    De vrijgekomen materialen moeten (voor zover dit mogelijk is) worden gescheiden naar:

    • 2.

      teerhoudend;

    • 3.

      niet teerhoudend.

  • Beide moeten worden afgevoerd conform de CROW-publicatie 210:

    'Richtlijn omgaan met vrijkomend asfalt'.

    Indien van toepassing dient de grondroerder zelf voor de benodigde afvalstroomnummers te zorgen. Een kopie van de acceptatie- of stortbonnen van een erkend en gecertificeerd verwerkingsbedrijf dient direct overhandigd te worden aan de coördinator of toezichthouder.

  • 6.

    Sleuven of montage- c.q. lasgaten in de asfaltverharding moeten nadat de kabels en/of leidingen zijn gelegd, over de volle breedte worden opgevuld en verdicht en de funderingsconstructie moet worden hersteld met menggranulaat 0/31,5 mm.

  • 7.

    De te herstellen asfaltsleuf of montage- c.q. lasgat moet tonrond dichtgestraat worden in een zandbed van tenminste 0,05 m brekerzand met betonstenen (BSS KF 80mm dik, zo mogelijk in de kleur van het aanwezige asfalt) in elleboogverband op een wijze die geen gevaar oplevert. De bovenzijde van de stenen dienen gelijk te liggen met het ingezaagde asfalt. De stenen dienen vlak ten opzichte van elkaar te worden gestraat. Indien er vooraf afspraken met de toezichthouder over zijn gemaakt kunnen de betonstenen mogelijk worden afgehaald op de gemeentewerf. Voor het onderhoud van de met klinkers herstelde sleuf geldt de afspraak zoals is vermeldt in artikel 5.2.2, derde lid.

  • 8.

    Indien het dichtstraten van een sleuf of montage- c.q. lasgat niet op deugdelijke wijze wordt uitgevoerd kan dat tot gevolg hebben dat de aansluitende verhardingen als gevolg van het gebruik door het verkeer verzakken en/of beschadigen. Binnen de afgesproken onderhoudstermijn die geldt voor straatwerk dient dergelijke schade door de grondroerder te worden hersteld.

  • 9.

    De werkomgeving moet worden opgeleverd zoals omschreven in artikel 8.1, negentiende lid.

  • 10.

    Het definitieve asfaltherstel laat de gemeente achteraf uitvoeren.

8.4. Opbreken en herstellen bermen en sleuven zonder bedekking

  • 1.

    Bij het werken in tracés met een sleufbedekking van gras dient, indien nodig, het aanwezige gewas voorafgaand aan de werkzaamheden door de grondroerder gemaaid te worden en het maaisel moet worden afgevoerd.

  • 2.

    Bij opname van een sleufbedekking van gras moeten ter breedte van de sleuf regelmatige zoden worden gestoken. De graszoden dienen “groen op groen” te worden opgetast.

  • 3.

    Indien afgesproken is dat de gemeente zelf zorg draagt voor het herstel van de sleufbedekking (artikel 5.2.2, tweede lid) dienen de vrijkomende zoden te worden afgevoerd door de grondroerder.

  • 4.

    Na aanvullen van de sleuf op de vereiste hoogte moeten de graszoden binnen 48 uur weer nauwkeurig worden teruggelegd, aangerold en met teelaarde gedresd. Ten slotte dienen de zoden met schoon water zolang als nodig is bewaterd te worden. De grondroerder dient tekortkomende zoden zelf aan te leveren.

  • 5.

    In bermen waar gras aanwezig is en waar het steken van regelmatige zoden niet mogelijk is dient de sleufbedekking (graspollen en dergelijke) te worden afgevoerd. Nadat de kabels en/of leidingen zijn gelegd en de sleuf tot op de juiste hoogte is aangevuld en verdicht dient het oppervlak van de berm, vrij van stenen en dergelijke, gefreesd en ingezaaid te worden met een door de gemeente goedgekeurd grasmengsel.

  • 6.

    Sleuven zonder bedekking dienen, nadat de kabels en/of leidingen zijn gelegd, tot op de juiste hoogte aangevuld, verdicht en met het oppervlak vrij van stenen en dergelijke vlak afgewerkt te worden.

  • 7.

    De werkomgeving moet worden opgeleverd zoals omschreven in artikel 8.1, negentiende lid.

8.5. Weg-, water- of boomkruising door sleufloze technieken of baggeren

  • 1.

    Indien bij een wegkruising de aanleg van kabels en/of leidingen door middel van een persing of (gestuurde) boring onder het wegdek wordt gerealiseerd, dient dit haaks op de wegas

  • minimaal 1,00 m uit de tangentpunten en zodanig uitgevoerd te worden zodat er geen verzakking of bolling in de verharding kan optreden. De persing of (gestuurde) boring dient bij voorkeur voorafgaand aan het graven van de sleuf voor het hoofdtracé gerealiseerd te worden. Het aanbrengen van een (stalen) mantelbuis is daarbij verplicht, tenzij met de toezichthouder anders wordt overeengekomen.

  • 2.

    Indien een persing of (gestuurde) boring mislukt mag de aangebrachte buis niet worden verwijderd. Er moet dan een nieuwe persing of (gestuurde) boring worden gemaakt en de niet gebruikte buis moet worden vol geschuimd. De kopeinden van de mantelbuis moeten afgedicht worden met kunststof deksels.

  • 3.

    De minimale verticale afstand tussen de bovenkant van de te persen buis of te realiseren (gestuurde) boring en de onderkant van de wegfundering dient minimaal 0,50 m te bedragen. Indien het technisch mogelijk is moet de mantelbuis een minimale dekking hebben van 0,75 m ten opzichte van de weghoogte.

  • 4.

    De minimale verticale afstand tussen de bovenkant van de te persen buis of te realiseren (gestuurde) boring en de onderkant van een te kruisen kabel en/of leiding dient bij voorkeur minimaal 0,50 m te bedragen. De te boren/persen buis dient onder de bestaande kabel en/of leiding doorgevoerd te worden.

  • 5.

    Bij een wegkruising dient de aangebrachte mantelbuis minimaal 0,50 m (bij kabels) of 1,00 m (bij leidingen) aan weerszijden van het te kruisen vlak door te lopen, tenzij met de toezichthouder anders wordt overeengekomen. De verharding mag nooit ondergraven worden (bijvoorbeeld voor het opzoeken van de buiseinden).

  • 6.

    Bij een kruising van een watergang die in eigendom en beheer is van de gemeente moet de aanleg van kabels en/of leidingen door middel van een (gestuurde) boring of door in baggeren onder de vaste bodem van de watergang worden gerealiseerd. Een minimale gronddekking van 1,00 m ten opzichte (van de ontwerpdiepte) van de vaste bodem van de watergang is daarbij vereist. (zie artikel 7.2.4, tweede en derde lid). De realisatie van de kruising van de watergang dient bij voorkeur voorafgaand aan het graven van de sleuf voor het hoofdtracé gerealiseerd te worden.

  • 7.

    Na realisatie van de kruising van de watergang moeten, indien van toepassing, de taluds en bodem weer in de oude staat teruggebracht worden. Op de oevers kan de ligging van de kruising van de watergang gemarkeerd worden. Indien de toezichthouder het noodzakelijk acht moet er op het in- en uittredepunt van een in gebaggerde kruising van een watergang een beschoeiing aangebracht worden.

  • 8.

    Indien de locatie van een persing of (gestuurde) boring binnen de kroonprojectie van de boom ligt dient de grondroerder de wijze van uitvoering af te stemmen met de toezichthouder.

  • 9.

    Indien een boomkruising middels een zogenaamde boomboring met een mantelbuis wordt uitgevoerd dient de mantelbuis in ieder geval onder de wortelzone van de boom door aangebracht te worden. Aan de uitvoeringseisen (onder andere verticale maatvoering) van de boring en de materiaalkeuze van de mantelbuis kunnen door de gemeente nadere eisen gesteld worden. De boring dient bij voorkeur voorafgaand aan het graven van de sleuf voor het hoofdtracé gerealiseerd te worden.

  • 10.

    De toe te passen methode van het realiseren van een weg- water- of boomkruising behoeft vooraf de goedkeuring van de gemeente. Het aanbrengen met behulp van waterdruk is nooit toegestaan. Ongestuurde raketboringen in de openbare ruimte zijn niet toegestaan (tenzij met de toezichthouder anders wordt overeengekomen) en bij het kruisen van een watergang kan toepassing van een (gestuurde) boring worden vereist, bijvoorbeeld om hinder voor het scheepvaartverkeer te voorkomen.

  • 11.

    Van een gerealiseerde persing of (gestuurde) boring die niet direct in gebruik genomen wordt dienen de kopeinden van de mantelbuis afgedicht te worden met kunststof deksels.

  • 12.

    Van een gerealiseerde persing of (gestuurde) boring die in gebruik genomen is dient de ruimte tussen de kabels en/of leidingen aan de kopeinden van de mantelbuis deugdelijk afgedicht te worden met daartoe bestemd middel (bijvoorbeeld Stopaq).

8.6. Graaf- en grondwerkzaamheden

  • 1.

    Te ontgraven grond, zand, half verharding (grind en dergelijke), teelaarde, funderingsmateriaal enzovoort moet gescheiden ontgraven, vervoerd en/of in depot gezet of aangevuld worden. Het opbreken van een waterdoorlatende verharding en -fundering opbouw of fundering die is opgebouwd uit IBC-bouwstoffen vereist vaak een speciale werkwijze die afgestemd moet worden met de toezichthouder. De aanwijzingen van de toezichthouder dienen altijd opgevolgd te worden.

  • 2.

    Bij het graven van sleuven moet het talud aangepast zijn aan de sleufdiepte, de eventuele bemaling en de grondsoort, zodat de sleufwanden niet kunnen instorten en/of uitzakken. Zo nodig moet de sleufwand met schotten worden gestut.

  • 3.

    Er mag geen zand of vuil achterblijven in (mol)goten, lijnafwatering en straat- en trottoirkolken. Daartoe moeten straat- en trottoirkolken en lijnafwatering gedurende de werkzaamheden tijdelijk worden afgedekt.

  • 4.

    Alle werkzaamheden dienen bij voorkeur in een droge sleuf plaats te vinden. Nadat de kabels en/of leidingen gelegd zijn moet de sleuf worden aangevuld en verdicht. Om de profielopbouw van de ondergrond zo optimaal mogelijk te herstellen moet het uitgegraven materiaal, vrij van stenen en dergelijke, over de volle breedte van de sleuf laagsgewijs en met zorg in de juiste volgorde terug in de sleuf worden gebracht. De dikten van grond-, fundering- en zandlaag en/of de laag teelaarde dienen gelijk te zijn aan de aanwezige laagdikten.

    Bermen en groenstroken dienen met voldoende overhoogte aangevuld te worden. Bevroren grond en/of zand, sneeuw, (groen)afval en puin mag niet worden verwerkt in de aanvulling. De grondroerder levert een tekort aan zand of grond of zorgt voor afvoer van zand of grond indien er materiaal overblijft.

  • 5.

    Indien er archeologische resten of sporen worden aangetroffen, dient de grondroerder direct contact op te nemen met de medewerker Monumenten van de gemeente.

  • 6.

    Daar waar open verharding aanwezig is dient het aanwezige zandbed direct onder de verharding, de straatlaag, hersteld te worden. Indien de aangetroffen dikte van de straatlaag kleiner is dan 0,05 m, zal de grondroerder het te kort komende brekerzand leveren en aanbrengen.

  • 7.

    Om de juiste verdichtingsgraad te verkrijgen dient de aanvulling te worden uitgevoerd in lagen van maximaal 0,25 m waarbij elke laag, bij voorkeur met een mechanisch verdichtingsapparaat, moet worden verdicht.

  • 8.

    De sondeerwaarde van de aanvullingen onder verhardingen en in wegbermen dient na verdichting minstens 90% te bedragen van de sondeerwaarde, zoals deze voorafgaand aan de werkzaamheden op - of op korte afstand naast - de sleuf wordt aangetroffen, de referentiewaarde.

  • 9.

    Onder verhardingen moet in het algemeen gestreefd worden naar een minimale sondeerwaarde van 4 MPa echter, de referentiewaarde is bepalend voor de (conform het zevende lid) te behalen sondeerwaarde in de sleuf.

  • 10.

    Aanvullingen in beplantingsvakken of onder gazon op een diepte van minder dan 0,80 m mag na verdichting een sondeerwaarde hebben van maximaal 1,5 MPa. De laag met teelaarde dient niet mechanisch te worden verdicht.

  • 11.

    De controle op het aanvullen en verdichten van de sleuven dient plaats te vinden door of namens de grondroerder. De grondroerder dient de referentiewaarden en de gemeten sondeerwaarden vast te leggen. De metingen dienen verricht te worden met een (hand)sondeerapparaat of met een nucleaire verdichtingsmeter (of eventueel door middel van de proctorproef). Indien de toezichthouder hierom vraagt dient de grondroerder de meetgegevens te overleggen. Op aanwijzing van de toezichthouder dient de grondroerder steekproeven uit te voeren. De toezichthouder kan ook zelf steekproeven uitvoeren.

  • 12.

    Indien de toezichthouder constateert dat de aanvulling c.q. verdichting niet aan de door de gemeente gestelde eisen voldoet, zal hij de grondroerder daarvan in kennis stellen. Daarna heeft de grondroerder de gelegenheid om dit binnen vijf werkdagen te herstellen.

  • 13.

    Indien de oorzaak van slechte verdichtingsresultaten is, dat de uitgekomen grond niet voor aanvulling/verdichting geschikt is dient deze afgevoerd te worden. De grondroerder dient dan nieuwe voor aanvulling benodigde grond en/of zand op het werk te leveren en opnieuw te verwerken. Daarna vindt wederom een controle door de toezichthouder plaats.

8.7. Kabel- en/of leidingwerkzaamheden

  • 1.

    De grondroerder dient zich te overtuigen van de plaats van alle reeds in het werk gelegen leidingen. Hiertoe dienen in het beoogde tracé (handmatig) proefsleuven gegraven te worden.

  • 2.

    De grondroerder dient ervoor te zorgen dat de gegevens van de gemaakte proefsleuven en de maatvoeringen van de daarin aangetroffen kabels en/of leidingen getoond kunnen worden aan de coördinator of toezichthouder indien daarom wordt verzocht. Indien afwijkingen van het vigerende standaarddwarsprofiel dan wel het door gemeente aangewezen standaard tracé worden geconstateerd zal de grondroerder in overleg met de coördinator of toezichthouder voor de te leggen kabel of leiding een nieuw tracé bepalen.

  • 3.

    Er mogen geen kabels en/of leidingen, distributie- en/of mutatiepunten of andere (bovengrondse) voorzieningen boven bestaande kabels en/of leidingen geplaatst worden waardoor deze niet meer bereikbaar zijn voor onderhoud, reparatie en dergelijke. Indien de toezichthouder constateert óf dat op een later moment blijkt dat dit toch het geval is dan dient de grondroerder die fout binnen vijf werkdagen te herstellen. Indien er geen andere oplossing mogelijk is kan bij uitzondering, in overleg met en met goedkeuring van de betreffende netbeheerder onder voorwaarden en/of door het nemen van (beschermende) maatregelen, eventueel een afwijkende ligging worden geaccepteerd.

  • 4.

    De netbeheerder dient ervoor te zorgen dat zijn uit gebruik genomen kabels en/of leidingen zoveel als mogelijk worden opgeruimd (zie ook artikel 7.3).

  • 5.

    Tijdelijk aan te brengen voorzieningen (zoals bijvoorbeeld damwanden, sleufbekisting enzovoort) ten behoeve van werkzaamheden in de openbare ruimte dienen de goedkeuring te hebben van de coördinator. Deze tijdelijke voorzieningen dienen na het voltooien van de werkzaamheden te worden verwijderd, tenzij in overleg met de coördinator anders wordt besloten.

  • 6.

    Bij de aanleg van kabels en/of leidingen en voorzieningen nabij bomen of andere groen-voorzieningen moeten de bepalingen uit Hoofdstuk 9 van dit Handboek strikt in acht worden genomen.

  • 7.

    Alle te leggen kabels en/of leidingen dienen duidelijk te zijn voorzien van een codering of label (of een bepaalde kleur te hebben) waaruit blijkt wat de functie of wie de eigenaar van deze kabel en/of leiding is.

  • 8.

    (Voorbereide) aansluitingen dienen zo veel mogelijk tegelijk met of voorafgaand aan de aanleg van het hoofdtracé aangelegd te worden en haaks op het distributienetwerk om geen extra beslag te leggen op de ondergrondse ruimte.

  • 9.

    Voorbereide aansluitingen, waarbij de voor de aansluiting bedoelde buis of kabel op de benodigde lengte in de openbare grond wordt opgeborgen (vooral bij CAI en FttX) moeten zo strak mogelijk worden opgerold, gebundeld en verticaal op de juiste diepte onder een beschermende voorziening evenwijdig aan en tegen de perceelgrens worden weggezet.

  • 10.

    De exacte locaties van distributie- en/of mutatiepunten en bovengrondse voorzieningen dienen in overleg met de toezichthouder bepaald te worden. Conform het bepaalde in het tweede en derde lid van dit artikel dient vooraf vastgesteld te worden of de gekozen locatie vrij is van overige kabels en/of leidingen. Indien de toezichthouder constateert óf dat op een later moment blijkt dat een distributie- of mutatiepunt of bovengrondse voorziening niet conform afspraak is geplaatst dient de grondroerder deze binnen vijf werkdagen te verplaatsen.

  • 11.

    Bovengrondse voorzieningen moeten in overleg met de gemeente zoveel mogelijk uit het zicht (liefst inpandig of indien mogelijk zelfs ondergronds) geplaatst worden of direct naast andere, reeds aanwezige, bovengrondse voorzieningen.

  • 12.

    Bij plaatsing van bovengrondse voorzieningen in een straatprofiel dienen deze zoveel mogelijk langs gevels en/of in lijn met het bestaande straatmeubilair geplaatst te worden.

  • 13.

    Bij plaatsing van bovengrondse voorzieningen van grotere afmeting in of nabij een groenvoorziening kan de gemeente nadere eisen stellen. Er kan bijvoorbeeld aanplant van extra groenvoorziening gewenst zijn om de bovengrondse voorziening zoveel als mogelijk aan het zicht te onttrekken. Deze extra voorwaarden worden door de gemeente zoveel mogelijk opgenomen in het instemmingsbesluit, echter de aanwijzingen van de coördinator of toezichthouder dienen eveneens altijd te worden opgevolgd.

  • 14.

    Bovengrondse voorzieningen moeten bij voorkeur voorzien worden van een anti graffiti voorziening (coating of strips).

  • 15.

    De in- en uitgaande kabels bij distributie- en/of mutatiepunten en bovengrondse voorzieningen dienen zodanig gelegd te worden dat verweving met kabels en/of leidingen van andere netbeheerders wordt voorkomen.

  • 16.

    Bij ondergrondse plaatsing dienen distributie- en/of mutatiepunten zodanig geplaatst te worden dat het deksel een minimale dekking heeft van 0,50 m onder het maaiveld.

  • 17.

    Het deksel van distributie- en/of mutatiepunten die op maaiveldniveau worden geplaatst dient minimaal te voldoen aan verkeersklasse D400(NEN-EN 124) en altijd gelijk te liggen met de aanwezige bestrating of (berm)verharding. Aanwezige elementenverharding rond het distributie- en/of mutatiepunt dient geknipt te worden in het bestaande verband. Indien een distributie- en/of mutatiepunt door verzakking op enig moment niet meer gelijk ligt met de bestrating of (berm)verharding, terwijl de bestrating of (berm)verharding wel op de juiste hoogte ligt, dient de netbeheerder dit op eerste aanzegging van de gemeente te herstellen.

  • 18.

    Nadat alle werkzaamheden gereed zijn dient de grondroerder de ligging gegevens van de kabels en/of leidingen, inclusief (voorbereide) aansluitingen, distributie- en/of mutatiepunten en bovengrondse voorzieningen (digitaal) in te meten en deze op een revisietekening digitaal beschikbaar te hebben voor raadpleging door derden (conform WION).

8.8. Werken in of met (voormalig) verontreinigde grond

  • 1.

    De grondroerder dient de werknemers volledig te instrueren over de in het VG&M-plan (zie ook artikel 5.4 en 5.4.1) voorgeschreven (beschermings-)maatregelen bij het werken in of nabij een verontreinigde grondlocatie. De grondroerder zal ervoor zorgen dat de voorgeschreven (beschermings-) maatregelen worden nageleefd.

  • 2.

    Indien er tijdens werkzaamheden het vermoeden bestaat dat mogelijk verontreinigde grond aanwezig is, moeten de werkzaamheden direct tot nader order worden gestaakt. Hiervan dient per omgaande melding gemaakt te worden bij de coördinator of toezichthouder van de gemeente.

  • 3.

    De grondroerder dient de vereiste (wettelijke) procedures voor ontgraven te volgen. Indien de ontgraven grond op de locatie hergebruikt mag worden dient dat te worden aangetoond. Indien de grond niet hergebruikt mag worden, dient deze naar een erkend en gecertificeerd verwerkings-bedrijf te worden gebracht. Een afschrift en/of een digitale versie van de correspondentie met betrokken instanties en/of de acceptatie- of stortbonnen van het verwerkingsbedrijf moet op het werk aanwezig zijn. Een kopie daarvan dient op verzoek overhandigd of getoond te worden aan de coördinator of toezichthouder.

  • 4.

    De grondroerder zorgt dat de vervangende grond schoon en voor verwerking geschikt is conform alle gestelde (wettelijke) eisen. Een afschrift en/of een digitale versie van de leveringsbon moet op het werk aanwezig zijn. Een kopie daarvan dient op verzoek overhandigd of getoond te worden aan de coördinator of toezichthouder.

9. WERKEN AAN OF NABIJ GROENVOORZIENINGEN

Het bepaalde in dit hoofdstuk geldt voor groenvoorzieningen, behoudens bermen.

Voor bermen geldt het bepaalde in artikel 8.4.

9.1. Groenvoorzieningen algemeen

  • 1.

    In relatie tot werkzaamheden ten behoeve van kabels en/of leidingen kan het noodzakelijk zijn dat er tevens (snoei)werkzaamheden aan groenvoorzieningen moeten worden uitgevoerd. Dit kan voorafgaand aan of tijdens de werkzaamheden van de grondroerder nodig zijn. De grondroerder dient dit minimaal een werkweek van tevoren af te stemmen met de coördinator.

  • 2.

    Als naar oordeel van de gemeente groenvoorzieningen te diep teruggesnoeid moeten worden, worden deze als verloren beschouwd en moet door de grondroerder worden afgevoerd.

  • 3.

    Groenvoorzieningen die ten behoeve van de werkzaamheden van de grondroerder moet worden gerooid, worden als verloren beschouwd en moet door de grondroerder worden afgevoerd.

  • 4.

    Verloren gegane groenvoorzieningen zullen door of in opdracht van de gemeente in een hiertoe gunstig jaargetijde door nieuw materiaal worden vervangen. Ook de overige (snoei)werkzaamheden aan groenvoorzieningen (inclusief het herstel van gazons) worden altijd door of in opdracht van de gemeente uitgevoerd.

  • 5.

    Het rooien van bomen door de grondroerder is in principe niet toegestaan. Indien het noodzakelijk is dat een boom wordt verwijderd dan mag dat uitdrukkelijk pas geschieden nadat daarvoor schriftelijk toestemming is verleend door de gemeente. In sommige gevallen dient hiervoor een omgevingsvergunning voor aangevraagd te worden.

9.2. Werken nabij bomen (tevens rooi en herplant)

  • 1.

    Bij het passeren van bomen moeten door de grondroerder voorzorgsmaatregelen worden getroffen die schade aan de betreffende boom voorkomt. De maatregelen en aanwijzingen zijn (onder andere) aangegeven op de Bomen poster (Hoofdstuk 10, bijlage 10.2) en de Bomenverordening Gemeente Maasgouw geldt. Wanneer er toch een boom wordt beschadigd dient dit direct gemeld te worden bij de toezichthouder.

  • 2.

    Indien de afstand van te leggen kabels en/of leidingen tot de bomen minder is dan bepaald in artikel 7.2.1, vierde lid, dienen er in ieder geval beschermende maatregelen toegepast te worden of er moeten (gestuurde) boringen worden gemaakt.

  • 3.

    In het wortelgestel van bomen mag slechts bij hoge uitzondering worden gegraven en in dat geval alleen handmatig, dit is echter alleen toegestaan met goedkeuring van de toezichthouder. Wortels dikker dan 0,05 m in diameter mogen nooit worden verwijderd of beschadigd. Wortels kleiner dan 0,05 m in diameter mogen verwijderd worden door middel van zagen zonder de wortels te breken of eraan te trekken. Ontgraven wortels dienen te worden beschermd tegen uitdrogen, vorst en andere beschadigingen.

  • 4.

    Als ten gevolge van de werkzaamheden een boom zoveel schade oploopt dat deze gerooid moet worden dient de grondroerder dit direct te melden bij de toezichthouder. Er dient dan (indien vereist) alsnog een omgevingsvergunning aangevraagd te worden. Het planten van nieuwe bomen wordt verzorgd door de gemeente.

  • 5.

    Indien de grondroerder toestemming krijgt van de gemeente om een boom te rooien dient de grondroerder tevens de stobben te verwijderen en af te voeren en het ontstane gat laagsgewijs met grond aan te vullen en te verdichten. Tenslotte dient er een laag teelaarde te worden aangebracht. De grond dient op een zodanige wijze te worden afgewerkt dat er na inklinking sprake is van een vlakke overgang naar de ongeroerde grond. Reservering voor inklinking mag max. 0,10 m bedragen. In overleg met de toezichthouder dient het eventuele inzaaien te geschieden conform artikel 8.4, vijfde lid.

10. BIJLAGEN

10.1. Standaarddwarsprofiel

afbeelding binnen de regeling

De afgebeelde horizontale en verticale liggingen (t.o.v. elkaar) worden zoveel mogelijk aangehouden, tenzij de beschikbare ruimte dit niet toelaat. In die gevallen wordt in overleg met de coördinator een andere oplossing gekozen.

De uitgangspunten en functionele eisen voor de ordening van ondergrondse netwerken die zijn opgenomen in de NEN 7171-1 Criteria en NPR 7171-2 Procesbeschrijving worden daarbij nagestreefd.

10.2. Boombescherming werken rond bomen

afbeelding binnen de regeling

10.3. Geografisch overzicht van gebieden waar herstelwerkzaamheden altijd worden verzorgt door de gemeente Maasgouw

afbeelding binnen de regeling

afbeelding binnen de regeling

afbeelding binnen de regeling

afbeelding binnen de regeling

10.4. Wegclassificatie gemeente Maasgouw

Inwerkingtreding en citeertitel

  • 1.

    Deze beleidsregel treed in werking op 31 oktober 2017.

  • 2.

    Deze beleidsregel wordt aangehaald als: Handboek kabels en leidingen Maasgouw van de gemeente Maasgouw

Ondertekening

Aldus vastgesteld door het college van de gemeente Maasgouw in de vergadering van 31 oktober 2017.


Noot
1

de lengte en breedte van de sleuf en/of montagegat(en), alsmede de aard (tegels, klinkers, berm, asfalt, half verharding of anders) van de sleufbedekking die ten behoeve van de werkzaamheden is opengebroken.

Noot
2

Onder andere kosten van : specifiek herstel van bijzondere (sier)bestrating; extra werkzaamheden ten behoeve van het herstel van straatwerk jonger dan vijf jaar; de uitvoering van het Bouwprocesbesluit Arbeidsomstandigheden; verwijderen van uit gebruik genomen kabels en/of leidingen op verzoek van de gemeente; verwijderen van aanstootgevende graffiti, posters enzovoort, van bovengrondse voorzieningen; het aanbrengen van anti graffitivoorzieningen op bovengrondse voorzieningen; extra aan te planten groen nabij bovengrondse voorzieningen ten behoeve van inpassing in de omgeving; noodzakelijke werkzaamheden aan groenvoorzieningen en bomen; afvoeren, vervangen en/of herplanten van groenvoorzieningen en bomen; het afvoeren, tijdelijke opslag en terugplaatsen van bouwstoffen; inboet en het leveren van extra bouwstoffen; afvoeren inclusief de stortingskosten van (vervuilde) grond, puin, vrijgekomen asfaltmaterialen; definitief herstel asfaltverhardingen; leveren, aanbrengen en opruimen van tijdelijke (verkeers-)voorzieningen en verkeersmaatregelen en bronbemaling; herstel van verborgen gebreken; het opnieuw aanbrengen c.q. aanwijzen van peilen en hoofdafmetingen; het nemen van maatregelen ten aanzien van de bereikbaarheid van andere kabels en/of leidingen of percelen; het tijdelijk verwijderen en terugplaatsen van bovengrondse obstakels (lichtmasten, verkeersborden); gevolgen voortvloeiend uit het breekverbod.