Permanente link
Naar de actuele versie van de regeling
https://lokaleregelgeving.overheid.nl/CVDR642475
Naar de door u bekeken versie
https://lokaleregelgeving.overheid.nl/CVDR642475/8
Nadere regels en beleidsregels fysieke leefomgeving Amersfoort
Geldend van 09-12-2025 t/m heden
Intitulé
Nadere regels en beleidsregels fysieke leefomgeving AmersfoortInhoudsopgave
Nadere regels en beleidsregels fysieke leefomgeving Amersfoort
Hoofdstuk I Algemene bepalingen
Hoofdstuk II Houtopstanden
Hoofdstuk III Standplaatsen
Hoofdstuk IV Markten
Hoofdstuk V Terrassennota
Hoofdstuk VI Kamerverhuur
Hoofdstuk VII GSM
Hoofdstuk VIII Digitale handelsreclame
Hoofdstuk IX Bodemenergiesystemen
Hoofdstuk X Slotbepalingen
Toelichting
ALGEMEEN
TOELICHTING PER HOOFDSTUK
Hoofdstuk 1 Algemene bepalingen
Hoofdstuk 2 Houtopstanden
Hoofdstuk 3 Standplaatsen
Hoofdstuk 4 Markten
Hoofdstuk 5 Terrassennota
Hoofdstuk 6 Kamerverhuur
Hoofdstuk 7 GSM
Hoofdstuk 8 Digitale handelsreclame
Hoofdstuk 9 Bodemenergiesystemen
Hoofdstuk 10 Slotbepalingen
BIJLAGEN
Bijlage 1: Overzicht van aangewezen standplaatsen
Bijlage 2: Brancheringslijst
Bijlage 3: Situatietekeningen van alle aangewezen standplaatsen per aangewezen locatie.
Bijlage 4: Overzichtstekening van alle aangewezen standplaatsen
Bijlage 5: Aangeduide wegen (standplaats en verkeersvrijheid of veiligheid)
Bijlage 6: Tekeningen van het marktterrein en standplaatsen
Bijlage 7: Kaart behorende bij Kamerverhuur
Bijlage 8: Digitale handelsreclame
Bijlage 9.1: Bodemenergieplan Gesloten systemen in De Laakse Tuinen, Velden 1F en Waterdorp (Vathorst Amersfoort), referentie 68104/HeM/20220516, 16 mei 2022
Bijlage 9.2: Bodemenergieplan Gesloten systemen in de Laak 3 (Vathorst Amersfoort) referentie 8313/HeM/20190529, 29 mei 2019
Bijlage 9.3: Bodemenergieplan De Hoef West in Amersfoort, referentie 71245/BR, 8 april 2022
Nadere regels en beleidsregels fysieke leefomgeving Amersfoort
Burgemeester en wethouders van gemeente Amersfoort;
gelezen het voorstel d.d. 16 juni 2020 met reg. nr. 1263313,
overwegende dat het gewenst is beleidsregels te stellen bij de Verordening fysieke leefomgeving Amersfoort;
gelet op artikel 1:3 lid 4 Algemene wet bestuursrecht, de artikelen 4:81 tot en met 4:84 Algemene wet bestuursrecht en de Verordening fysieke leefomgeving Amersfoort,
besluit vast te stellen:
Nadere regels en beleidsregels fysieke leefomgeving Amersfoort
HOOFDSTUK I ALGEMENE BEPALINGEN
Artikel 1.1 Begripsbepalingen
In deze nadere regels en beleidsregels wordt verstaan onder:
Algemeen
- -
Verordening: Verordening fysieke leefomgeving Amersfoort;
Standplaatsen
- -
aangewezen standplaats: standplaats die voorkomt in het standplaatsenplan als bedoeld in artikel 3.1;
- -
kandidaat vergunninghouder: degene wiens aanvraag om vergunning aan de vereisten voor toewijzing van een standplaats voldoet, en wiens aanvraag is afgewezen omdat de aangevraagde standplaats niet beschikbaar is.
Terrassen
- -
inrichting: een horecabedrijf, als bedoeld in artikel 2:27 lid 1 en 2 van de Apv;
- -
gevelterras: terras direct aan de gevel;
- -
terrasmeubilair: stoelen, banken, tafels, parasols, terrasschermen, andere objecten waaronder reclameborden, plantenbakken en alle overige objecten die op het terras geplaatst zijn ten dienste van het terras en/of het overige deel van de inrichting;
- -
terrasscherm: een schot dat gebruikt wordt voor de fysieke afbakening van het terras;
- -
binnenstad: gebied in het noorden en oosten begrensd door het Plantsoen Noord en de Flierbeeksingel, in het zuiden en westen door de Stadsring en het Smallepad;
- -
pleinen in de binnenstad: Hof, Lieve Vrouwekerkhof, Appelmarkt, Groenmarkt, Varkensmarkt;
- -
stadshart: gebied omvat de binnenstad, Eemplein/Eemhaven, Zonnehof, stationsgebied, Oliemolenkwartier en Wagenwerkplaats.
Kamerverhuur
- -
bestaand kamerverhuurpand: kamerverhuurpand dat 30 maart 2017 al dan niet vergund in gebruik was, hierbij inbegrepen panden die niet als zodanig in gebruik waren, maar waarvoor op het moment van de voorliggende aanvraag reeds een aanvraag voor kamergewijze verhuur in behandeling is;
- -
gebruiksoppervlakte wonen: bewoonbare oppervlakte achter de voordeur van het kamerverhuurpand, exclusief opslagruimten en dergelijke, op basis van de “Meetinstructie bepalen gebruiksoppervlakte woningen volgens NEN 2580”;
- -
kamerverhuurpand: gebouw of deel van een gebouw waarin onzelfstandige woonruimte wordt geboden aan meer dan één persoon, al dan niet naast een hoofdbewoner (eigenaar/huurder);
- -
onzelfstandige woonruimte: woonruimte waarbij voorzieningen zoals de toegang, de keuken en/of het toilet gedeeld worden met bewoners van andere kamers of woningen, met uitzondering van een kamer in een verzorgings- of verpleeghuis.
Plaatsen van GSM-installaties
- -
GSM: Global System for Mobile Communication;
- -
GSM-installatie: installatie die opgebouwd is uit zenders, ontvangers, apparatuurkasten, al dan niet geplaatst op een mast, welke onderdelen onverbrekelijk met elkaar zijn verbonden, een en ander bestemd voor mobiel telefoonverkeer;
- -
GSM-mast: constructie die uitsluitend of mede bedoeld is voor het bevestigen en dragen van GSM-apparatuur.
Digitale handelsreclame
- -
digitale handelsreclame: reclame die digitaal wordt vertoond of geprojecteerd op een digitaal scherm;
- -
Richtlijn Lichthinder: vigerende Richtlijn Lichthinder, zoals vastgesteld door de Commissie Lichthinder van de Nederlandse Stichting voor Verlichtingskunde (NSVV);
Bodemenergiesystemen
- -
Gesloten bodemenergiesysteem: installatie waarmee, zonder grondwater te onttrekken en na gebruik in de bodem terug te brengen, gebruik wordt gemaakt van de bodem voor de levering van warmte of koude ten behoeve van de verwarming of koeling van ruimten in bouwwerken, door middel van een gesloten circuit van leidingen, met inbegrip van een bijbehorende warmtepomp circulatiepomp en regeneratievoorziening, voor zover aanwezig.
- -
Open bodemenergiesysteem: installatie waarmee van de bodem gebruik wordt gemaakt voor de levering van warmte of koude ten behoeve van de verwarming of koeling van ruimten in bouwwerken, door grondwater te onttrekken en na gebruik in de bodem terug te brengen, met inbegrip van bijbehorende bronpompen en warmtewisselaar en, voor zover aanwezig, warmtepomp en regeneratievoorziening;
- -
Interferentiegebied: een of meerdere gebieden binnen de gemeente Amersfoort waarin ordening van bodemenergiesystemen wenselijk is met het oog op het voorkomen van negatieve onderlinge beïnvloeding van meerdere bodemenergiesystemen of anderszins ter bevordering van het doelmatig gebruik van bodemenergie
- -
De interferentiegebieden zijn aangewezen in de “Verordening fysieke leefomgeving Amersfoort”.
HOOFDSTUK II HOOFDSTUK II HOUTOPSTAND
Artikel 2.1 Noodkap houtopstand
[vervallen]
Artikel 2.2 Weigeringsgronden
[vervallen]
HOOFDSTUK III STANDPLAATSEN
Artikel 3.1 Standplaatsenplan
-
1. Burgemeester en wethouders stellen een standplaatsenplan op.
-
2. Het standplaatsenplan bevat een overzicht van plaatsen waarop geen van de weigeringsgronden zoals bedoeld in artikel 3.3 van toepassing zijn en die dus in beginsel in aanmerking komen voor het innemen van een standplaats;
-
3. Het standplaatsenplan bestaat uit:
- a.
een overzicht van aangewezen standplaatslocaties, waarbij het aantal per locatie geplande standplaatsen is aangegeven (bijlage 1);
- b.
een aanduiding van alle aangewezen standplaatsen per aangewezen locatie op situatietekeningen (bijlage 3.)
- c.
een aanduiding van alle aangewezen standplaatsen op een overzichtstekening (bijlage 4)
- a.
Artikel 3.2 Indieningsvereisten
-
1. Om in aanmerking te komen voor toewijzing van een standplaats is vereist dat de gegadigde een handelingsbekwaam natuurlijk persoon is die:
- a.
zich legitimeert door een geldig identiteitsbewijs zoals nader aangegeven in de Wet op de identificatieplicht;
- b.
voor zover het een vreemdeling betreft, een vreemdeling is volgens de vreemdelingenwet 2000 en door middel van een verblijfsdocument aan kan tonen, dat hij/zij de bevoegdheid heeft om in Nederland te mogen werken c.q. te ondernemen; en kan aantonen te hebben voldaan aan alle voorgeschreven publiekrechtelijke verplichtingen op het gebied van de bedrijfsuitoefening- en organisatie;
- c.
aantoont dat zijn verkoopinrichting voldoet aan de eisen, die daaraan bij of krachtens de Wet Milieubeheer worden gesteld; en,
- d.
aantoont dat zijn verkoopinrichting voldoet aan de eisen, die daaraan bij of krachtens de Omgevingswet en de daarop gebaseerde afdeling 6.2 en paragraaf 6.5.1 en artikel 6.4 Besluit bouwwerken leefomgeving en het Omgevingsplan Amersfoort worden gesteld.
- a.
Artikel 3.3 Toepassing weigeringsgronden
-
1. In het belang van de openbare orde en veiligheid kan een vergunning tot het innemen van een standplaats worden geweigerd, indien:
- a.
in de directe nabijheid een door de gemeente ingestelde markt wordt gehouden (tijdens marktdagen);
- b.
de honorering van de aanvraag resulteert in verkapte marktvorming doordat er vanuit meer dan drie verkoopwagens en/of kramen, die zich op minder dan 50 meter afstand van elkaar bevinden, gelijktijdig verkoop plaatsvindt;
- c.
het zicht op etalages en terrassen wordt belemmerd;
- d.
het uitzicht vanuit woningen en kantoren wordt belemmerd;
- e.
de toegang tot gebouwen wordt belemmerd;
- f.
de doorgang voor hulpdiensten als politie, brandweer, ambulance wordt belemmerd. De doorgang dient een breedte te hebben van ten minste 4,5 meter, een verharding over een breedte van ten minste 3,25 meter, die geschikt is voor motorvoertuigen met een massa van 14.600 kg en een vrije hoogte boven de kruin van de weg van ten minste 4,2 meter.
- g.
in geval van verkoop van “natte” visproducten de verkoop niet vanuit een dichte verkoopwagen of dichte verkoopinrichting geschiedt.
- a.
-
2. In het belang van het voorkomen of beperken van overlast kan een vergunning tot het innemen van een standplaats worden geweigerd, indien:
- a.
geur- of geluidshinder of enige andere vorm van overlast te verwachten is voor gebruikers of zakelijk gerechtigden van in de nabijheid van de standplaats gelegen onroerende zaken en deze hinder niet afdoende kan worden beperkt door het stellen van voorwaarden;
- b.
de rust in nabijgelegen woningen en kantoren e.d. wordt verstoord.
- a.
-
3. in het belang van het waarborgen van redelijke eisen van welstand, hetzij voor wat betreft de standplaats zelf, hetzij in verband met de omgeving kan een vergunning tot het innemen van een standplaats worden geweigerd, indien:
- a.
het aanzien van monumentale gebouwen of stedenbouwkundige ensembles wordt aangetast
- b.
het uitzicht op monumenten of kunstobjecten wordt aangetast;
- c.
de aangevraagde standplaats zich bevindt op bij de gemeente in beheer zijnde gazons of groenstroken;
- d.
het open karakter van pleinen wordt aangetast.
- a.
-
4. In het belang van de verkeersvrijheid of –veiligheid kan een vergunning tot het innemen van een standplaats worden geweigerd, indien:
- a.
de aangevraagde standplaats ligt langs één van de in bijlage 5 aangeduide wegen;
- b.
de aangevraagde standplaats het uitzicht belemmert op kruisingen, oversteekplaatsen of uitritten e.d.;
- c.
de aangevraagde standplaats is gelegen op een parkeerplaats waar parkeerbelasting wordt geheven;
- d.
de aangevraagde standplaats is gelegen op een locatie, welke is aangewezen ten behoeve van belanghebbenden parkeren;
- e.
de aangevraagde standplaats leidt tot een onaanvaardbare toename van de parkeerdruk;
- f.
in de directe omgeving van de aangevraagde standplaats onvoldoende parkeergelegenheid is voor klanten met gemotoriseerd vervoer;
- g.
de ter plaatse benodigde vrije doorgang voor het verkeer wordt belemmerd;
- h.
de standplaats anderszins verstorend of verwarrend werkt op de verkeerskundige inrichting ter plaatse of anderszins leidt tot onveilige verkeerssituaties of onveilig verkeersgedrag.
- a.
-
5. In het belang van het waarborgen van een redelijk verzorgingsniveau voor de consument kan een vergunning tot het innemen van een standplaats worden geweigerd, indien
- a.
in dan wel binnen een straal van 500 meter rondom een winkelcentrum dat minder dan vijf jaar geleden is geopend, een vergunning wordt gevraagd voor een branche die al in dat winkelcentrum is gevestigd;
- b.
binnen het verzorgingsgebied in een bepaalde branche nog slechts één winkel is gevestigd die door de concurrentie van een vergunninghouder ten onder dreigt te gaan.
- a.
Artikel 3.4 Dagen vergunning
-
1. Burgemeester en wethouders kunnen voor een locatie een vergunning verlenen aan meer dan één persoon op niet gelijk vallende dagen;
-
2. Per vergunninghouder zal voor maximaal twee, niet aaneengesloten dagen per week per standplaats vergunning worden verleend.
Artikel 3.5 Lijst van kandidaat vergunningshouders
-
1. Burgemeester en wethouders houden een lijst aan waarop zij inschrijven de namen, de geboortedatum van kandidaat vergunninghouders, alsmede de branche waarvoor de standplaatsvergunning is aangevraagd.
-
2. Bij de toewijzing gaan deze kandidaat vergunninghouders, in volgorde van de plaats op de ranglijst, vóór later ingeschreven kandidaat vergunninghouders, doch alleen voor de branche waarvoor zij staan ingeschreven.
-
3. Een aanvrager dient zich voor elke door hem gewenste (standplaats)locatie apart in te schrijven.
Artikel 3.6. Omschrijving van de standplaats in de vergunning
-
1. Een toegewezen standplaats wordt in de betreffende vergunning duidelijk omschreven, met vermelding van o.a. de maximumoppervlakte die met de standplaats mag worden ingenomen en van de categorie waren die op de standplaats mogen worden verkocht.
-
2. De standplaats moet worden ingenomen overeenkomstig de bij de vergunning behorende situatietekening.
Artikel 3.7 Voorwaarden gebruik standplaats
-
1. Een standplaats kan, mits de situatie ter plaatse dat toelaat, worden ingenomen met een verkoopwagen of kraam, waarvan de frontbreedte niet meer dan 8 meter en de diepte niet meer dan 2.50 meter mag zijn. Burgemeester en wethouders kunnen in bijzondere gevallen, afhankelijk van de locatie een afwijking van de maximale afmetingen toestaan.
-
2. De verkoopwagen, die valt onder het regime van de Wet milieubeheer behoort te voldoen aan de in en krachtens deze wet gestelde eisen.
-
3. Van de standplaatsvergunning mag gebruik gemaakt worden tijdens de openingstijden die zijn opgenomen in de Winkeltijdenwet, behoudens beperkingen die voortvloeien uit de in artikel 3.3 opgenomen criteria voor de toepassing van weigeringsgronden.
-
4. De vergunninghouder mag geen gebruik maken van luidsprekers, versterkers en andere middelen ter versterking van het geluid.
-
5. De vergunninghouder laat de standplaats en de directe omgeving na verwijdering van de verkoopwagen of kramen schoon achter.
Artikel 3.8 Seizoensgebonden standplaatsen
-
1. Burgemeester en wethouders verlenen een vergunning voor het innemen van een standplaats voor de verkoop van oliebollen voor de duur van maximaal drie maanden in de periode van 15 september tot 15 januari, voor kerstbomen van 1 december tot en met 24 december, voor nieuwe haring vanaf vlaggetjesdag tot 1 juli, voor ijs van 15 juni tot 15 september.
-
2. Artikel 3.4 is niet van toepassing op de in het vorige lid bedoelde standplaatsen.
Artikel 3.9 Persoonlijk innemen standplaats
-
1. Een standplaats moet door de vergunninghouder persoonlijk worden ingenomen; hij mag de standplaats niet aan een ander afstaan of in gebruik geven.
-
2. Op verzoek van burgemeester en wethouders of daartoe door burgemeester en wethouders aangewezen ambtenaren legitimeert de vergunninghouder zich door middel van een geldig identiteitsbewijs.
-
3. De vergunninghouder mag zich op de standplaats doen bijstaan.
-
4. Bij ziekte en vakantie van de vergunninghouder kan deze zich laten vervangen, na toestemming van de marktmeester.
-
5. De periode van vervanging wegens ziekte van de vergunninghouder bedraagt maximaal zes maanden, gerekend vanaf de eerste dag van afwezigheid.
-
6. De periode van vervanging wegens vakantie van de vergunninghouder bedraagt maximaal zes weken per kalenderjaar.
-
7. Wanneer een vergunninghouder zijn verkoopwagen aan een ander verkoopt, verhuurt of in gebruik geeft, verschaft dat de koper, huurder of gebruiker geen enkel recht op een vergunning voor een standplaats.
HOOFDSTUK IV MARKTEN
Artikel 4.1 Dag, tijd en plaats van de markt
-
1. De markt wordt, behoudens het bepaalde in het tweede en derde lid van dit artikel, gehouden op woensdag op het Kraailandhof in Hoogland, donderdag op de Beurs in Kattenbroek en vrijdag op de Hof en het Lieve Vrouwekerkhof van 8.00 uur tot 13.00 uur en op zaterdag op de Hof van 9.00 uur tot 17.00 uur. De Snuffelmarkt wordt, behoudens het bepaalde in het tweede en derde lid van dit artikel, gehouden op iedere eerste zaterdag van de maand met uitzondering van januari, en van april tot november tevens iedere derde zaterdag van de maand, van 8.30 uur tot 15.30 uur op het Eemplein. De Boerenmarkt wordt, behoudens het tweede en derde lid van dit artikel, gehouden op vrijdag van 11.00 uur tot 17.00 uur op het Eemplein. Deze locaties, alsmede de betreffende op- en afritten, toegangen, doorgangen en logistieke aan- en afrijroutes, worden als marktterrein beschouwd.
-
2. Op Nieuwjaarsdag, Hemelvaartsdag, Koningsdag, Eerste Kerstdag en Tweede Kerstdag is er geen markt.
-
3. Burgemeester en wethouders kunnen in geval van weersinvloeden, calamiteiten, dreiging van gevaar of andere bijzondere of dringende omstandigheden:
- a.
de markt afgelasten dan wel onmiddellijk beëindigen;
- b.
de vergunninghouder verplichten de nodige voorzorgsmaatregelen te treffen;
- c.
beslissen de markt anders op te stellen c.q. in te richten;
- a.
-
4. Burgemeester en wethouders kunnen, wanneer hiervoor naar haar oordeel een bijzondere aanleiding bestaat, voor een bepaalde gelegenheid:
- a.
een andere dan de door burgemeester en wethouders in het eerste lid aangewezen plaats voor de markt aanwijzen, met dien verstande dat de warenmarkten op De Hof maximaal op vier marktdagen, te weten twee vrijdagen en twee zaterdagen, de vrijdagen en zaterdagen aaneensluitend, kunnen worden verplaatst ten behoeve van grootschalige evenementen die van bijzondere culturele en promotionele betekenis zijn voor Amersfoort;
- b.
een wijziging brengen in de aanvangstijd en/of sluitingstijd van de markt.
- a.
-
5. In uitzonderlijke gevallen, waarbij sprake is van unieke omstandigheden of gebeurtenissen met een bovenmatig promotionele waarde, kunnen burgemeester en wethouders, naast het in het vierde lid onder a gestelde, besluiten de markt niet door te laten gaan dan wel op een andere locatie te doen laten plaatsvinden.
-
6. Burgemeester en wethouders gaan tot het nemen van een maatregel zoals bedoeld in het vierde en vijfde lid niet over dan nadat zij over het voornemen daartoe overleg heeft gepleegd met de vertegenwoordiger(s) van de marktkooplieden.
Artikel 4.2 Inrichting van de markt
-
1. Het aantal standplaatsen is per markt vastgesteld zoals aangegeven op de bij deze regels behorende tekeningen van het marktterrein, opgenomen in bijlage 6 en in deze link.
-
2. De opstelling en indeling van de markt, waaronder begrepen de seizoenplaatsen, plaatsen voor frituren, bakken en braden, plaatsen voor verkoopwagens en plaatsen voor standwerken is aangegeven op de bij deze regels behorende tekeningen van het marktterrein, opgenomen in bijlage 6 en in deze link.
-
3. De afmeting van de standplaats is bepaald op vier strekkende meter of een veelvoud daarvan.
-
4. Burgemeester en wethouders kunnen bij de toewijzing van de plaatsen afwijken van de standaardmaten.
Artikel 4.3 Branche-indeling
-
1. Voor het verkrijgen van een voor de consument zo aantrekkelijk mogelijke markt kunnen voor elk van de in de bijlage 2 (brancheringslijst), behorende bij deze regels, genoemde artikelen(groepen) niet meer standplaatsen worden toegewezen dan het aantal standplaatsen dat is aangegeven in desbetreffende bijlage. Op aanvraag kan maximaal 1 extra standplaats worden toegewezen met een branche welke nog niet in de brancheringslijst is opgenomen.
-
2. Op aanvraag kunnen ten hoogste twee bij-branches voor maximaal een kwart van de vergunde verkoopruimte in de vergunning worden toegekend, indien deze bij-branches:
- a.
de diversiteit van de markt bevorderen;
- b.
niet in strijd zijn met reeds vergunde branches;
- c.
niet reeds op de markt vertegenwoordigd zijn;
- d.
voldoende onderscheidend zijn van de hoofdbranche, en;
- e.
van ondergeschikte betekenis ten opzichte van de hoofdbranche zijn.
- a.
-
3. Meerdere hoofdbranches kunnen, al dan niet tijdelijk, worden toegewezen, mits niet reeds op de markt vertegenwoordigd dan wel voldoende onderscheidend, voor zover het de diversiteit en de belangen van de markt bevordert en naar oordeel van de marktmeester niet in strijd is met reeds vergunde branches.
Artikel 4.4 Inschrijving op de anciënniteitlijst
Vergunninghouders van vaste standplaatsen worden ingeschreven op een doorlopend genummerde lijst met vermelding van en in volgorde op de datum waarop aan hen voor het eerst een vaste standplaats is toegewezen. Bij deze inschrijving wordt tevens vermeld de soort artikelen die de vergunninghouder mag verhandelen of de branche waartoe hij behoort. Deze lijst wordt de anciënniteitlijst genoemd.
Artikel 4.5 Doorhalen van inschrijving op de anciënniteitlijst
De inschrijving op de anciënniteitlijst wordt doorgehaald indien de vergunning van een houder van een vaste standplaats wordt ingetrokken.
Artikel 4.6 Registratie in de gegadigdenadministratie
Gegevens van een aanvrager kunnen tegen betaling van administratiekosten (tarief 2020 € 10,00) in de gegadigdenadministratie worden geregistreerd indien geen vaste standplaats kan worden toegewezen en aanvrager schriftelijk heeft aangegeven dat hij toch in aanmerking wil komen voor een vaste standplaats en als gegadigde hiervoor wenst te worden aangemerkt. Burgemeester en wethouders bepalen, met inachtneming van het belang van de markt, of en hoe lang de gegevens van de gegadigde worden geadministreerd.
Artikel 4.7 Doorhalen van registratie in de gegadigdenadministratie
De registratie in de gegadigdenadministratie wordt doorgehaald:
- a.
wanneer een vaste standplaats wordt toegewezen en ingenomen;
- b.
op schriftelijk verzoek van gegadigde;
- c.
bij overlijden van gegadigde;
- d.
wanneer gegadigde een aangeboden vaste standplaats weigert dan wel gegadigde niet reageert op een uitnodiging om een vaste plaats in te nemen;
- e.
indien ter zake van de registratie onjuiste of onvolledige gegevens zijn verstrekt;
- f.
indien burgemeester en wethouders verdere registratie niet langer in het belang van de markt achten.
Artikel 4.8 Overschrijving vaste standplaatsvergunning
-
1. In geval van overlijden, het bereiken van de pensioengerechtigde leeftijd dan wel blijvende arbeidsongeschiktheid van de vergunninghouder kan de vergunning voor de vaste plaats worden overgeschreven op de echtgeno(o)t(e), de levenspartner van de vergunninghouder of een persoon met wie vergunninghouder duurzaam samenwoonde.
-
2. Indien de vaste standplaatsvergunning niet kan worden overgeschreven op grond van het eerste lid, kan met inachtneming van herziening van de branche(s) conform de op dat moment gewenste vernieuwde situatie, het recht op een vaste standplaats op de betreffende markt overgaan op een kind van vergunninghouder.
-
3. Een aanvraag tot overschrijving wordt ingediend binnen 12 weken na het overlijden, na het bereiken van de pensioengerechtigde leeftijd dan wel na de vaststelling van de blijvende arbeidsongeschiktheid van de vergunninghouder.
-
4. Het recht op een vaste standplaats op de betreffende markt kan, met inachtneming van eventuele herziening van de branche(s) conform de op dat moment gewenste vernieuwde situatie, overgaan op een mede-eigenaar of medewerker, indien deze in ieder geval drie jaren onafgebroken in deze relatie tot de vergunninghouder staat.
Artikel 4.9 Toewijzing standplaatsen
-
1. Een standplaats wordt toegewezen als vaste plaats, seizoenplaats, dagplaats of standwerkerplaats.
-
2. Een vrijgekomen vaste plaats wordt als dagplaats beschouwd en blijft als zodanig aangemerkt zolang zij niet als vaste plaats of seizoensplaats is toegewezen.
Artikel 4.10 Toewijzing van een vaste standplaats
-
1. Een opengevallen vaste standplaats op de markt kan opnieuw als vaste standplaats worden uitgegeven met inachtneming van de voor die markt en locatie geldende indelingen in afdelingen/branches.
-
2. Voor een opengevallen standplaats komen achtereenvolgens in aanmerking:
- a.
de vergunninghouder van een vaste standplaats die schriftelijk heeft aangegeven een andere vaste standplaats te willen nemen. De toewijzing geschiedt op volgorde van anciënniteit als vaste standplaatshouder en met inachtneming van de branche-indeling van de markt;
- b.
een gegadigde uit de gegadigdenadministratie indien zulks ter beoordeling van burgemeester en wethouders in het belang van de markt wenselijk wordt geacht. Bij gelijke geschiktheid onder meerdere gegadigden geschiedt toewijzing eerst na advies van tenminste twee leden van de markt- en ventcommissie, waarvan in ieder geval een vertegenwoordiger van de Centrale Vereniging voor de Ambulante Handel;
- c.
de vergunninghouder van een aangrenzende vaste standplaats, die schriftelijk heeft aangegeven een volgende aangrenzende plaats ter beschikking te willen krijgen. De toewijzing geschiedt op volgorde van anciënniteit als vaste standplaatshouder.
- a.
-
3. Indien een toewijzing wordt geweigerd vervalt iedere aanspraak op de standplaats alsmede op de anciënniteit welke bij de toewijzing van toepassing is.
-
4. De vaste standplaatshouder dient schriftelijk kenbaar te maken dat hij/zij in aanmerking wenst te komen voor een vrijgekomen plaats. Indien niemand, nadat de hiervoor bepaalde leden in acht zijn genomen, te kennen heeft gegeven in aanmerking te willen komen voor de vrijgekomen vaste plaats, zal de plaats via werving aan een gegadigde worden toegewezen.
Artikel 4.11 Toewijzing dagplaats
-
1. Aanvragers voor een dagplaats die geen vaste plaats op de markt hebben en die in aanmerking willen komen voor een vergunning voor een dagplaats dienen zich bij aanvang van de markt te hebben aangemeld bij de marktmeester.
-
2. Toewijzing van een dagplaats geschiedt door afgifte van een vergunning door burgemeester en wethouders dan wel op aanwijzing van de marktmeester op voorhand daarvan, op het moment dat de standplaats niet als vaste standplaats wordt ingenomen.
-
3. Aanvragers voor een dagplaats met een artikel of artikelsoort dat nog niet op de markt is vertegenwoordigd hebben voorrang op de aanvragers met artikelen of artikelsoorten die reeds op de markt vertegenwoordigd zijn.
-
4. Artikelen of artikelsoorten die reeds volledig op de markt vertegenwoordigd zijn kunnen ten hoogste met maximaal een standplaats ten behoeve van een aanvrager voor een dagplaats worden uitgebreid, voor zover de brancheringslijst ruimte biedt en de belangen niet worden gestoord. Indien het aantal aanvragers het aantal beschikbare dagplaatsen overtreft geschiedt toewijzing via loting door de marktmeester, met inachtneming van het bij vorige leden gestelde, welke loting plaats vindt eerst na aanvang van de markt bij aanwezigheid van alle aanvragers die zich tijdig hebben gemeld.
-
5. De marktmeester wijst de opengevallen plaatsen bij aanvang van de markt toe aan de aanvragers die zijn ingeloot.
Artikel 4.12 Toewijzing standwerkerplaats
-
1. Toewijzing van een standwerkerplaats van maximaal 6 m2 geschiedt door de marktmeester met inachtneming van het bepaalde in artikel 4.11, lid 1, 2, 4 en 5 van deze regels.
-
2. Indien de standwerker zich wil doen laten bijstaan, meldt hij dit vooraf aan de marktmeester, met opgave van de naam van betreffende persoon. Deze persoon mag niet deelnemen aan eventuele loting. Vooraf meldt aanvrager met welk artikel gestandwerkt wordt, met dien verstande dat slechts 1 artikelsoort is toegestaan. Prijzen aanduiden is niet toegestaan. Aanduidingsborden en meet- en weegwerktuigen zijn niet toegestaan.
-
3. Een standwerker met een artikel dat reeds op de markt vertegenwoordigd is en meer dan een kwart van een branche van een vaste standplaatshouder uitmaakt kan -voor dat artikel- geen toewijzing krijgen, tenzij de belangen niet worden gestoord.
-
4. De aanvraag van een standwerker met een artikel dat nog niet op de markt vertegenwoordigd is prevaleert boven een aanvraag van een standwerker met een artikel dat reeds op de markt vertegenwoordigd is.
-
5. Indien het aantal aanvragers het aantal beschikbare plaatsen overtreft geschiedt toewijzing via loting door de marktmeester. Loting en/of toewijzing vindt plaats eerst na aanvang van de markt.
Artikel 4.13 Eigen materiaal
-
1. Op verzoek kan in de vergunning van een vaste standplaatshouder toestemming worden verleend om met eigen materiaal zijn standplaats in te nemen voor zover het een verkoopwagen betreft. Parasols en partytenten als verkoopinrichting zijn niet toegestaan. De vergunninghouder is verplicht gebruik te maken van kramen van de betreffende exploitant, indien er geen sprake is van een verkoopwagen.
-
2. Het in het vorige lid vermelde verzoek omvat in ieder geval de volgende gegevens:
- a.
een opgave van lengte, hoogte en breedte van het eigen materiaal;
- b.
een gedetailleerde tekening van het eigen materiaal;
- c.
foto’s van het eigen materiaal;
- d.
indien het eigen materiaal is voorzien van installaties waarin gekookt, gebakken, gebraden en/of gefrituurd kan worden, dient een geldig inspectierapport van de brandweer te worden overgelegd.
- a.
-
3. Toestemming wordt in ieder geval geweigerd indien:
- a.
het eigen materiaal technisch niet inpasbaar is binnen de beschikbare ruimte op de markt zoals aangegeven op de in artikel 4.2 genoemde tekeningen;
- b.
het eigen materiaal niet voldoet aan de in artikel 4.14 genoemde eisen.
- a.
-
4. Ter bescherming van bederfelijke waar kan aan een standplaatshouder per marktdag toestemming worden verleend om telkens tijdelijk, hooguit voor de duur van betreffende weersinvloeden, eigen materiaal in de vorm van zon- of regenwerende middelen te gebruiken, mits van deugdelijk materiaal en een goed aanzien, zulks ter beoordeling van de marktmeester.
Artikel 4.14 Eisen eigen materiaal
Het eigen materiaal dient aan de volgende eisen te voldoen:
- a.
het eigen materiaal mag in opgestelde toestand niet dieper zijn dan de kramenrij (drie strekkende meter) en niet langer dan de logistiek mogelijk maakt;
- b.
uitklapbare toonbanken en/of vitrines mogen niet buiten de staanders van de kramenrij uitsteken;
- c.
aan de zijkanten van het eigen materiaal mogen geen zeilen, kleppen of andere zaken zijn aangebracht die de doorgang aan de verkoopzijde verhinderen of het zicht op de naastgelegen verkoopgelegenheid beperken;
- d.
het eigen materiaal dient een minimale (klep-)hoogte te hebben van 2.10 meter.
Artikel 4.15 Innemen standplaats
-
1. Een toegewezen standplaats wordt door de vergunninghouder, dan wel door diens plaatsvervanger ingenomen. Vergunninghouder mag zich doen laten bijstaan op de standplaats.
-
2. Indien vergunninghouder zich laat vervangen dient hiervoor schriftelijk toestemming aan burgemeester en wethouders te worden gevraagd, zulks onder vermelding van naam, geboortedatum en adresgegevens van de plaatsvervanger, waarna burgemeester en wethouders daarvoor ontheffing kunnen geven. De plaatsvervanger dient handelingsbekwaam te zijn, minimaal de leeftijd van 18 jaar te hebben bereikt en zich te kunnen legitimeren. De vergunninghouder blijft te allen tijde verantwoordelijk.
Artikel 4.16 Aantal keren innemen vaste standplaats
De vaste standplaats wordt telkens ingenomen, met inachtneming van het bij artikel 4.17 van deze regels bepaalde.
Artikel 4.17 Afwezigheid wegens ziekte, vakantie of bijzondere omstandigheden
-
1. De vergunninghouder van een vaste standplaats die wegens ziekte, vakantie of bijzondere omstandigheden verhinderd is zijn vaste standplaats in te nemen, deelt dit tevoren schriftelijk mee aan burgemeester en wethouders. Plotselinge verhindering wordt mondeling of telefonisch aan de marktmeester gemeld.
-
2. Gedurende het kalenderjaar kan ten behoeve van vakantie maximaal 6 marktdagen per markt toestemming worden gegeven door burgemeester en wethouders dan wel vrij worden genomen door vergunninghouder.
-
3. Na herhaaldelijke afwezigheid zonder dat daaromtrent is bericht en burgemeester en wethouders toestemming hebben gegeven, kunnen burgemeester en wethouders, in afwijking van het bij artikel 4.3 gestelde, een -extra- standplaats toewijzen aan een branchevervanger.
Artikel 4.18 Eisen en verboden t.a.v. het innemen van een standplaats en de aan- en afvoer van goederen
-
1. Het is verboden voor vergunninghouders op het marktterrein meer dan 3 uur voor aanvang en meer dan 1,5 uur na afloop van de markt met een voertuig, goederen of anderszins ruimte in te nemen of goederen aan of af te voeren.
-
2. De vergunninghouder is verplicht zijn vaste standplaats tot het sluitingstijdstip van de markt te blijven innemen.
-
3. Het is, behoudens voor standwerkers, verboden de standplaats in te nemen met parasol(s), (party)tent dan wel overige overkappingen anders dan marktkramen van de betreffende marktkramenexploitant.
-
4. Indien de vergunninghouder diens vaste standplaats niet uiterlijk bij aanvang van de markt heeft ingenomen, wordt desbetreffende standplaats voor die dag als dagplaats aangemerkt, tenzij de marktmeester de standplaats op tijdig verzoek van de vergunninghouder beschikbaar houdt.
-
5. Het is vergunninghouder verboden op het marktterrein op een andere dan voor de markt bestemde tijd goederen of waren te koop aan te bieden, te verkopen of af te leveren.
-
6. Het is vergunninghouder verboden op de standplaats andere goederen of in voorraad te hebben en/of uit te stallen dan waarvoor vergunning is verleend.
-
7. Het is vergunninghouder verboden meer ruimte in te nemen dan is toegewezen.
-
8. Het is vergunninghouder verboden de opstal voor en/of tijdens de markt af te breken of te verplaatsen.
-
9. Het is vergunninghouder verboden voor het tijdstip waarop de markt eindigt diens waren in te pakken en/of af te voeren.
-
10. Het is verboden te frituren in oliën en/of vetten anders dan in een goedgekeurde bakwagen. Voorts is het verboden te frituren buiten de daarvoor bestemde clusterplaatsen en binnen een straal van 5 meter tussen bakwagens en bouwwerken dan wel omliggende gebouwen met gevels voorzien van ramen.
-
11. Het is in geval van verkoop van “natte” visproducten verboden gebruik te maken van kramen of verkoopinrichtingen waarvan de bodem niet geheel gesloten is. Visverkoop dient uitsluitend te geschieden vanuit een dichte verkoopwagen.
-
12. Burgemeester en wethouders kunnen in bijzondere omstandigheden van het bij vorige leden gestelde ontheffing verlenen onder door hun te stellen voorwaarden.
Artikel 4.19 Obstakels en welstand
-
1. Het is voor een ieder verboden het marktterrein, de doorgangen en wandelgangen op en langs het marktterrein op enigerlei wijze te hinderen of te belemmeren. Het marktterrein, de op- en afritten, toegangen, doorgangen en logistieke aan- en afrijroutes dienen vrij te zijn van obstakels als opslag, terrasmeubilair, parasols, rijwielen en/of voertuigen dan wel anderszins.
-
2. De kramen, andere verkoopinrichtingen of materialen, alsmede boven-, zij- en achterzeilen mogen slechts na goedkeuring door de marktmeester gebruikt worden. Zijzeilen dienen doorzichtig te zijn. Alle zeilen dienen van deugdelijk materiaal te zijn, een net aanzicht te hebben en goed en veilig te worden aangebracht.
Artikel 4.20 Plaatsen opstallen/elektriciteitsexploitatie
-
1. Het is verboden:
- a.
op het marktterrein kramen en/of tafels te plaatsen of op te slaan of gebruik te maken van verkoopwagens;
- b.
voor elektriciteit ten behoeve van de standplaats gebruik te maken van een ander dan die voor het leveren daarvan is aangewezen dan wel om zelf hierin te voorzien.
- a.
-
2. Burgemeester en wethouders kunnen ontheffing verlenen van de in het eerste lid gestelde verboden, onder door hen te stellen voorwaarden.
Artikel 4.21 Promotie/gedrukte stukken/propaganda
-
1. Het is verboden op het marktterrein tijdens de duur van de markt muziek of geluid te maken dan wel met gedrukte of geschreven stukken of afbeeldingen te venten of deze te verspreiden.
-
2. Onder het voeren van propaganda wordt niet verstaan het door standplaatshouders aanprijzen van koopwaar op de markt en het voeren van promotionele activiteiten waarvoor vergunning is verkregen.
Artikel 4.22 Schoonhouden en opleveren standplaats
De vergunninghouder dient:
- a.
ervoor zorg te dragen dat diens standplaats telkens een goed verzorgd aanzien biedt;
- b.
voor, tijdens en na de markt zelf diens afval, (verpakkings-)materialen en dergelijke in te zamelen;
- c.
voordat het marktterrein wordt verlaten, diens standplaats en onmiddellijke omgeving daarvan schoon op te leveren en diens afval zelf af te voeren;
- d.
indien de ondergrond en omgeving van de standplaats vervuild kan raken, maatregelen te treffen ter voorkoming daarvan. Daar waar door de marktmeester als noodzakelijk wordt geacht dient de ondergrond te worden afgedekt, alvorens werkzaamheden daarboven te verrichten. De te treffen maatregelen dienen ter goedkeuring van de marktmeester en/of op aanwijzing van de marktmeester te geschieden;
- e.
wanneer vergunning is verleend om eet- en drinkwaren voor consumptie gereed te maken en te verkopen, aan de voorzijde van diens standplaats voldoende afvalbakken te plaatsen.
Artikel 4.23 Gebruik van elektrische- en/of geluidsapparatuur
Gebruikmaken van elektrische- en/of geluidsapparatuur is slechts toegestaan na verleende -schriftelijke- toestemming, onder bepaalde voorwaarden en op aanwijzing van de marktmeester. Zonder verkregen toestemming is het niet toegestaan apparaten te gebruiken via de elektrische faciliteiten. In geen geval mag gebruik worden gemaakt van apparatuur zoals elektrische kachels, waterkokers, tosti-apparaten, etc.. Ter bescherming van waren kan voor verwarmingsapparaten op gas, welke aan veiligheidseisen voldoen toestemming worden verleend, mits veilig opgesteld, zulks ter beoordeling aan de marktmeester of brandweer.
Artikel 4.24 Uitstallingen
-
1. Uitstallingen zijn alleen toegestaan na verleende toestemming daarvoor van de marktmeester.
-
2. Toestemming voor uitstallingen kan slechts worden verleend indien er sprake is en blijft van een vrije doorgang zonder obstakels van 3 meter breed en 2.10 meter hoog.
-
3. Op de aanrijroute van de hulpdiensten kan slechts toestemming worden verleend voor uitstallingen indien er sprake is van een vrije doorgang van 4,5 meter breed en 4,2 meter hoog.
-
4. Uitstallingen waarvoor geen toestemming is verleend, dienen onmiddellijk op eerste aanzegging van de marktmeester te worden verwijderd.
Artikel 4.25 Het stallen van rij- en voertuigen
-
1. Het is de vergunninghouder niet toegestaan op het marktterrein diens rij- en/of voertuig, niet zijnde een toegestane verkoopinrichting, te parkeren.
-
2. Burgemeester en wethouders kunnen, behoudens op de Hof en het Lieve Vrouwekerkhof, onder strikte voorwaarden ontheffing verlenen van het bij het eerste lid van dit artikel gestelde, waarbij in ieder geval aan de volgende voorwaarden dient te worden voldaan:
- a.
ontheffing kan slechts worden verleend indien het voertuig ingepast geplaatst kan worden op de standplaats van vergunninghouder, binnen diens vergunde locatie;
- b.
het voertuig dient achter de kraam te worden geplaatst, zodanig dat collega-kooplieden daarvan geen hinder ondervinden;
- c.
het geparkeerde voertuig wordt niet als extra ruimte voor uitstalling gebruikt;
- d.
het geparkeerde voertuig mag niet het zicht op naastgelegen standplaatsen belemmeren.
- a.
Artikel 4.26 Algemene veiligheidsnormen
-
1. Verpakkings- en overig materiaal wordt ordentelijk opgeslagen achter of onder de kraam of verkoopwagen en wordt tijdig afgevoerd.
-
2. Elektrische installaties, verlichtingstoestellen, verwarmingstoestellen en bak-, kook- en frituurinstallaties dienen te zijn uitgevoerd conform Europese veiligheidsregels en te zijn voorzien van het CE-keurmerk.
-
3. Gasgestookte toestellen en installaties dienen door de brandweer te zijn goedgekeurd.
-
4. Bij gebruik van gas als brandstof en een slang als verbinding wordt uitsluitend een slang gebruikt die voldoet aan de volgende kenmerken: een goedgekeurde GIVEG-slang, maximaal 10 meter lang en maximaal 2 jaar oud.
-
5. Bij gebruik van gas als brandstof dient de gasfles te zijn voorzien van een door de Dienst Stoomwezen erkend keurmerk en mag de gasfles ten hoogste 10 jaar oud zijn. Uitsluitend aardgas, propaangas, butaangas of gasolie mag worden gebruikt.
-
6. Afsluiters in vaste gasleidingen dienen goed bereikbaar te zijn en te zijn aangebracht aan het einde van elke aftakking van een vaste leiding naar een gebruikstoestel en in de leidingen op plaatsen waar de leiding geheel of gedeeltelijk kan worden gespoeld met een inert gas.
-
7. Elektriciteitskabels dienen zodanig te worden opgehangen dan wel onder matten te worden weggeborgen dat het publiek er niet mee in aanraking kan komen.
-
8. Gasgekookte verwarmingstoestellen met een open verbranding dienen zodanig te zijn afgesteld dat er een optimale verbranding plaatsvindt.
-
9. Bij gebruik van gas als brandstof is ten hoogste 115 liter waterinhoud gas bij de verkoopinrichting aanwezig.
-
10. Gasflessen dienen zodanig te zijn opgesteld dat het publiek er niet bij kan. Er dient sprake te zijn van goede ventilatie en zij dienen beschermd te zijn tegen omvallen (kantelen) en aanrijden.
-
11. Toestellen en installaties dienen schoon en vetvrij te worden gehouden.
-
12. Installaties voor koken, bakken, braden en frituren dienen tenminste jaarlijks aan onderhoud te worden onderworpen en dienen tweejaarlijks te worden gekeurd door een erkende installateur. Van deze keuring dient een rapport aanwezig te zijn binnen de verkoopinrichting.
-
13. Bij gebruik van een installatie voor koken, bakken, braden en frituren dient een blusapparaat aanwezig te zijn dat goedgekeurd is door een erkend keuringsbedrijf en voorzien is van een geldige keuringssticker.
-
14. Bij gebruik van een installatie voor koken, bakken, braden en frituren dient voor iedere pan of frituurbak een goed passend metalen deksel aanwezig te zijn.
-
15. In geval er sprake is van personeel dient dat personeel voldoende te zijn opgeleid om te kunnen werken met installaties voor koken, bakken, braden of frituren.
-
16. Aanwijzingen met betrekking tot opbouwen/afbouwen of verankeren dienen onverwijld te worden opgevolgd.
-
17. Voorkomen dient te worden dat er uitsteeksels zijn bij de verkoopinrichting waardoor het publiek letsel zou kunnen oplopen; luifels dienen bijvoorbeeld hoog genoeg te zijn.
-
18. Op dit reglement is tevens de handreiking “veiligheid op de markt” (tot stand gekomen i.s.m. CVAH, NVBR, NVgM, HBD en VNG), versie 19 april 2012 dan wel latere versies, van toepassing.
HOOFDSTUK V TERRASSEN
[vervallen]
HOOFDSTUK VI KAMERVERHUUR
Artikel 6.1
De aanvraag voor een afwijking van het bestemmingsplan voor onzelfstandige woonruimte gaat naast de voorgeschreven stukken op grond van de Regeling omgevingsrecht in ieder geval vergezeld van de volgende informatie en stukken:
- a.
volledige (persoons)gegevens van de eigenaar van het gebouw of deel van het gebouw waarop de aanvraag betrekking heeft;
- b.
bewijs van eigendom van het gebouw of deel van het gebouw en, voor zover van toepassing, bewijs dat de aanvrager gerechtigd is tot het doen van de aanvraag. Indien van toepassing, bewijs van toestemming van de Vereniging van Eigenaren;
- c.
adres en kadastrale gegevens van het gebouw of deel van het gebouw;
- d.
het aantal personen dat de onzelfstandige woonruimtes gaat bewonen;
- e.
een plattegrond van de bestaande situatie voorzien van de gebruiksoppervlakte wonen en bruto vloeroppervlakte;
- f.
een plattegrond van de gewijzigde situatie voorzien van de gebruiksoppervlakte wonen en bruto vloeroppervlakte, waarbij is aangegeven welke ruimten als onzelfstandige woonruimte zullen worden gebruikt;
- g.
situatietekening van het perceel met daarop aangegeven parkeerplaatsen, fietsparkeerplaatsen, afvalberging, buitenruimte en berging;
- h.
rapportage van een akoestisch onderzoek uitgevoerd door een erkend bureau volgens de NEN 5077 naar de lucht- geluidisolatie tussen het betreffende pand en naastgelegen aanpandige woning(-en).
Artikel 6.2
-
1. In bijlage 7 behorend bij dit artikel is een kaart met zonering opgenomen.
-
2. Burgemeester en wethouders weigeren de omgevingsvergunning, indien:
- a.
het aantal panden tussen de in de aanvraag betrokken woning en een reeds bestaand kamerverhuurpand minder dan 3 bedraagt, voor zover het een woning in zone 1 betreft;
- b.
het aantal panden tussen de in de aanvraag betrokken woning en een reeds bestaand kamerverhuurpand minder dan 5 bedraagt, voor zover het een woning in zone 2 (overig gebied) betreft;
- c.
niet wordt voldaan aan de Nota Parkeernormen gemeente Amersfoort.
- a.
-
3. Burgemeester en wethouders kunnen de omgevingsvergunning weigeren indien:
- a.
de aanvrager geen overeenkomst met de gemeente sluit ter afwenteling van eventuele tegemoetkoming van planschade op aanvrager als bedoeld in artikel 6.1 Wet ruimtelijke ordening, dan wel vergoeding van deze tegemoetkoming van planschade niet anderszins verzekerd is;
- b.
redelijkerwijs moet worden aangenomen dat verlening van de vergunning zou leiden tot een onaanvaardbare verstoring van een geordend woon- en leefmilieu in de omgeving van het gebouw waarop de aanvraag betrekking heeft; of
- c.
uit het akoestisch onderzoek (NEN 5077) blijkt dat het gebouw niet geschikt kan worden gemaakt om een horizontale en/of verticale geluidsisolatiewaarde van ten minste 52 dB tussen de kamerverhuurpand en de aangrenzende woningen te behalen.
- a.
Artikel 6.3
-
1. Als voorschrift in de omgevingsvergunning wordt in ieder geval opgenomen dat het gebruik van het pand ten behoeve van kamerverhuur niet mag leiden tot een onaanvaardbare verstoring van een verstoring van een geordend woon- en leefmilieu in de omgeving van het gebouw.
-
2. De vergunning kan worden ingetrokken indien wordt vastgesteld dat het gebruik van het pand ten behoeve van kamerverhuur leidt tot een onevenredige aantasting van de ordening van het woon- en leefmilieu in de omgeving van het gebouw.
HOOFDSTUK VII PLAATSEN GSM-INSTALLATIES
Artikel 7.1 GSM-installaties op woongebouwen binnen de bebouwde kom
Een omgevingsvergunning voor de plaatsing van een GSM-installatie op een woongebouw binnen de bebouwde kom wordt verleend, als aan alle navolgende voorwaarden wordt voldaan:
- a.
uit onderzoek van de GSM-aanbieder is gebleken dat het vanuit radiotechnisch en/of stedenbouwkundig oogpunt onmogelijk is om in de nabije omgeving een alternatief te vinden;
- b.
plaatsing van de GSM-installatie geschiedt op gebouwen van 15 meter of hoger;
- c.
hoogte van de GSM-installatie maximaal 6 meter bedraagt, gemeten vanaf de voet van de GSM-installatie;
- d.
de GSM-installatie centraal op het dak van het woongebouw wordt geplaatst, met inachtneming van de door burgemeester en wethouders vast te stellen welstandelijke richtlijnen;
- e.
de verticale afstand van het antennegedeelte tot een woongebouw ten minste 2.50 meter bedraagt, gemeten vanaf de voet van de GSM-installatie;
- f.
de horizontale afstand tot een woongebouw ten minste 5 meter bedraagt.
Artikel 7.2 GSM-installaties op niet-woongebouwen binnen de bebouwde kom
Een omgevingsvergunning voor de plaatsing van GSM-apparatuur op een niet-woongebouw wordt verleend, als aan alle navolgende voorwaarden wordt voldaan:
- a.
plaatsing van de GSM-installatie geschiedt op gebouwen van 15 meter of hoger;
- b.
hoogte van de GSM-installatie maximaal 6 meter bedraagt, gemeten vanaf de voet van de GSM-installatie;
- c.
GSM-apparatuur centraal op het dak van het gebouw wordt geplaatst, met inachtneming van de door burgemeester en wethouders vast te stellen welstandelijke richtlijnen,
- d.
de verticale afstand van het antennegedeelte tot een niet-woongebouw ten minste 2.50 meter bedraagt, gemeten vanaf de voet van de GSM-installatie,
Artikel 7.3 GSM-installaties op bouwwerken, geen gebouwen zijnde, binnen de bebouwde kom
Er wordt een omgevingsvergunning verleend voor de plaatsing van een GSM-installatie op lichtmasten, windmolens, reclamemasten en/of hoogspanningsmasten (bouwwerken, geen gebouwen zijnde).
Artikel 7.4 GSM-installaties in combinatie met masten binnen de bebouwde kom
Indien het plaatsen van een GSM-installatie op een bestaand (woon-)gebouw of een ander bouwwerk, zoals is genoemd onder artikel 7.2., aantoonbaar niet mogelijk is, kan in bijzondere situaties, met inachtneming van het bepaalde in de artikelen 7.6 en 7.7., medewerking worden verleend aan het plaatsen van een GSM-installatie in combinatie met een speciaal daarvoor op te richten mast.
Artikel 7.5 Buiten de bebouwde kom
Er wordt een omgevingsvergunning verleend voor de plaatsing van een GSM-installatie voor het gebied buiten de bebouwde kom, mits:
- a.
de GSM-installatie gecombineerd wordt met hoogspanningsmasten, windmolens, reclame- en lichtmasten en/of verkeersportalen;
- b.
de GSM-installatie solitair geplaatst wordt bij aanwezige structurele elementen, zoals viaducten , pompstations en agrarische bedrijfsbebouwing.
Artikel 7.6 GSM-installaties aan/op kerktorens en aan/op monumenten
Onverminderd het hiervoor onder artikel 7.2 en 7.3 bepaalde wordt eerst medewerking verleend aan de plaatsing van een GSM-installatie op/aan kerktorens en (andere) monumenten, indien voor deze plaatsing een monumentenvergunning is afgegeven.
Artikel 7.7 Aanvraagvereisten
Voor een aanvraag voor een omgevingsvergunning voor GSM-installaties geldt dat:
- a.
de GSM-aanbieder een schriftelijke verklaring moet overleggen waaruit blijkt dat de door de Gezondheidsraad gestelde blootstellingslimieten ter plaatse van de dichtstbijzijnde woning niet worden overschreden door de plaatsing of toevoeging van zijn GSM-installatie op de betreffende locatie;
- b.
de mogelijkheden van het medegebruik van masten van andere GSM-aanbieders (‘site-sharing’) moeten zijn uitgenut, danwel aantoonbaar technisch niet mogelijk zijn, voordat medewerking aan het realiseren van een GSM-installatie op een nieuwe locatie wordt overwogen;
- c.
de plaatsing van de GSM-installatie op de betreffende locatie welstandshalve en vanuit stedenbouwkundig oogpunt aanvaardbaar moet zijn, waarbij moet voldaan worden aan de bouwtechnische en constructieve eisen uit het Bouwbesluit;
- d.
indien de plaatsing van de GSM-installatie geschiedt op locaties gelegen in de door de gemeente of door het Rijk aangewezen beschermde stadsgezichten, deze plaatsing niet mag leiden tot een onevenredige afbreuk van de historisch gegroeide stedenbouwkundige structuur en de specifieke ruimtelijke kwaliteiten in dat gebied (zoals bijvoorbeeld gevelaanzichten);
- e.
een schriftelijke verklaring dient te worden overgelegd, waaruit de toestemming van de eigenaar blijkt.
HOOFDSTUK VIII DIGITALE HANDELSRECLAME
Artikel 8.1 Digitale handelsreclame
-
1. Gelet op de verkeersveiligheid, bedoeld in artikel 7.1, vierde lid, onder b en de beperking van overlast, bedoeld in artikel 7.1, vierde lid, onder c, van de Verordening, wordt een vergunning als bedoeld in artikel 7.1, eerste lid, van de Verordening, voor digitale handelsreclame geweigerd indien:
- a.
niet wordt voldaan aan de Richtlijn Lichthinder;
- b.
digitale reclame wordt geplaatst op een locatie in de openbare ruimte die niet is opgenomen op de kaart in Bijlage 8: Zonering digitale handelsreclame in de openbare ruimte;
- c.
niet voldaan wordt aan de voorwaarden die opgenomen zijn op de kaart in Bijlage 8: Zonering digitale handelsreclame in de openbare ruimte.
- a.
Hoofdstuk IX Bodemenergiesystemen
Artikel 9.1 De rechtsgronden
Deze beleidsregels zijn gebaseerd en een aanvulling op de regels in paragraaf 4.111 en de regels vanuit de bruidsschat in artikel 22.260 van het Invoeringsbesluit Omgevingswet tot het moment dat het geregeld wordt in het omgevingsplan.
Artikel 9.2 Aanleg gesloten bodemenergiesystemen binnen een interferentiegebied
Gelet op artikel 22.260 van het Invoeringsbesluit Omgevingswet tot het moment dat het geregeld wordt in het omgevingsplan en artikel 4.1139 Besluit activiteiten leefomgeving weigert het college van burgemeester en wethouders de omgevingsvergunning indien het bodemenergiesysteem zodanige interferentie kan veroorzaken met een ander bodemenergiesysteem, dat het doelmatig functioneren van een van de desbetreffende systemen kan worden geschaad dan wel anderszins sprake is van een ondoelmatig gebruik van bodemenergie. Daarvan is sprake indien niet wordt voldaan aan de regels uit het bodemenergieplan die verbonden zijn aan het desbetreffende interferentiegebied.
Aan de interferentiegebieden zijn de volgende bodemenergieplannen verbonden:
- 1.
Interferentiegebied De Laakse Tuinen, Velden 1F en Waterdorp:
Bodemenergieplan Gesloten systemen in De Laakse Tuinen, Velden 1F en Waterdorp (Vathorst Amersfoort), referentie 68104/HeM/20220516, 16 mei 2022 (Bijlage 9.1).
- 2.
Interferentiegebied Laak 3:
Bodemenergieplan Gesloten systemen in de Laak 3 (Vathorst Amersfoort) referentie 8313/HeM/20190529, 29 mei 2019 (Bijlage 9.2)
- 3.
Interferentiegebied De Hoef West:
Bodemenergieplan De Hoef West in Amersfoort, referentie 71245/BR, 8 april 2022 (Bijlage 9.3).
Artikel 9.3 De aanvrager van een vergunning
De genoemde vergunning in artikel 9.2 dient te worden aangevraagd door de eigenaar of erfpachter van de grond, waarop een of meerdere gebouwen of bouwwerken zijn of worden opgericht die worden aangesloten op het betreffende gesloten bodemenergiesysteem, danwel door degene die namens de eigenaar of erfpachter het betreffende gesloten bodemenergiesysteem gaat aanleggen en/of exploiteren, indien deze daartoe door de eigenaar of erfpachter is gemachtigd.
Artikel 9.4 De plaatsing van een gesloten bodemenergiesysteem
- a.
Een gesloten bodemenergiesysteem dient, zowel binnen als buiten een interferentiegebied, in beginsel te worden aangelegd op eigen dan wel in erfpacht verkregen grond.
- b.
Indien de aanleg mede plaatsvindt op grond van een derde, dient de schriftelijke toestemming van deze derde bij de vergunningaanvraag te worden overgelegd.
- c.
Uiterlijk 4 weken na plaatsing wordt de exacte positie van de bodemlus(sen) middels een revisietekening (zowel digitaal als op papier) bij de gemeente bekendgemaakt.
HOOFDSTUK X SLOTBEPALINGEN
Artikel 10.1 Citeertitel
Deze beleidsregels heten: Beleidsregels fysieke leefomgeving Amersfoort.
Artikel 10.2 Inwerkingtreding
Deze beleidsregels treden in werking op de dag na bekendmaking.
Artikel 10.3 Overgangsbepaling
-
1. Het legale gebruik van een woning voor kamerverhuur, dat bestond ten tijde van de inwerkingtreding van deze beleidsregel, mag worden voortgezet conform die vergunning;
-
2. Eigenaren van panden die niet legaal voor kamergewijze verhuur worden gebruikt, dienen een omgevingsvergunning zoals omschreven in artikel 2.1 lid 1 onder c jo. 2.12 lid 1 onder a van de Wabo aan te vragen. Die aanvragen worden getoetst aan deze beleidsregel, met dien verstande dat artikel 3 lid 1 a t/m b niet van toepassing zijn voor onzelfstandige woonruimten die aantoonbaar onafgebroken voor kamerverhuur gebruikt zijn en werden voor 1 januari 2012.
Artikel 10.4 Intrekking vorige versie
De volgende beleidsregels worden ingetrokken:
- a.
Beleidsregel bomen 2014;
- b.
Beleidsregels Standplaatsvergunningen Amersfoort 2013;
- c.
Marktreglement Amersfoort 2013;
- d.
Beleidsregels Terrassennota 2013
- e.
Beleidsregels voor kamerverhuur gemeente Amersfoort 2017;
- f.
Beleidsregels voor het plaatsen van GSM-installaties 2000;
- g.
Beleidsregels Oplaadinfrastructuur Elektrische Voertuigen 2016;
Ondertekening
Vastgesteld in de openbare vergadering van .
de griffier, de voorzitter,
BIJLAGE 1 Overzicht aangewezen standplaatsen
BIJLAGE 2 Brancheringslijst
|
|
BRANCHES |
Woensdag |
Donderdag |
Vrijdag |
Zaterdag |
|
|
|
||||
|
|
|
||||
|
|
TEXTIEL |
||||
|
1 |
Bovenkleding volwassenen heren |
1 |
3 |
3 |
3 |
|
2 |
Bovenkleding volwassenen dames |
1 |
3 |
3 |
3 |
|
3 |
Kleding heren/dames/kinderen grote maten |
1 |
1 |
1 |
1 |
|
4 |
Onder- en nachtkleding (volwassenen & kinderen) |
1 |
2 |
2 |
2 |
|
5 |
Lingerie |
1 |
1 |
1 |
1 |
|
6 |
Baby- en kleuterkleding (t/m maat 116) |
1 |
2 |
2 |
2 |
|
7 |
Kinderkleding (t/m maat 176) |
1 |
2 |
2 |
2 |
|
8 |
Stoffen t.b.v. vervaardigen van o.a. kleding, gordijnen |
1 |
3 |
9 |
3 |
|
9 |
Seniorenkleding |
1 |
1 |
2 |
2 |
|
10 |
Werkkleding |
1 |
1 |
1 |
1 |
|
11 |
Beenkleding |
1 |
1 |
2 |
2 |
|
12 |
Sport- vrijetijdskleding |
1 |
1 |
2 |
2 |
|
13 |
Spijkerkleding |
1 |
1 |
2 |
2 |
|
14 |
Sjaals en hoofddoeken |
1 |
1 |
2 |
1 |
|
|
|
||||
|
|
INTERIEURSBEKLEDING |
||||
|
15 |
Bedmode |
1 |
1 |
2 |
1 |
|
16 |
Schuimrubber/polyether |
1 |
1 |
1 |
1 |
|
17 |
Bekleding t.b.v. verschillende ruimten waaronder woonkamer |
1 |
1 |
2 |
2 |
|
18 |
Huishoudtextiel |
1 |
1 |
2 |
2 |
|
|
|
||||
|
|
OVERIGE TEXTIEL |
||||
|
19 |
Kleinvakartikelen |
1 |
1 |
1 |
1 |
|
20 |
Wol |
1 |
1 |
1 |
1 |
|
|
|
||||
|
|
VOEDINGSARTIKELEN |
||||
|
21 |
Aardappelen, groente en fruit |
2 |
2 |
3 |
3 |
|
22 |
Aardappelen |
1 |
1 |
1 |
1 |
|
23 |
Geringe eet- en drinkwaren, bestemd om ter plaatse te |
1 |
1 |
1 |
1 |
|
consumeren (patat frites en gefrituurde snacks) |
|||||
|
24 |
Geringe eet- en drinkwaren, bestemd om ter plaatse te |
1 |
1 |
1 |
2 |
|
|
consumeren (belegde broodjes) |
||||
|
25 |
Geringe eet- en drinkwaren, bestemd om ter plaatse te |
1 |
2 |
2 |
3 |
|
consumeren (meerdere aanbieders van duidelijk |
|||||
|
verschillende artikelen kunnen plaats innemen) |
|||||
|
26 |
Consumptie ijs |
1 |
1 |
1 |
1 |
|
27 |
Poelierswaren (halal) en eieren |
1 |
1 |
1 |
1 |
|
28 |
Vis |
2 |
2 |
5 |
4 |
|
29 |
Brood, koek en banket |
1 |
2 |
2 |
2 |
|
30 |
Chocolade, drop en suikerwerken |
1 |
1 |
1 |
1 |
|
31 |
Stroopwafels |
1 |
1 |
1 |
1 |
|
32 |
Zuivelproducten |
1 |
2 |
2 |
2 |
|
33 |
Traiteur |
1 |
1 |
1 |
1 |
|
34 |
Tapas/sushi |
1 |
1 |
1 |
1 |
|
35 |
Vlees en vleeswaren |
1 |
1 |
1 |
1 |
|
36 |
Islamitische slager(ij) |
1 |
1 |
1 |
1 |
|
37 |
Worstsoorten |
1 |
1 |
1 |
1 |
|
38 |
Noten en verduurzaamde zuidvruchten |
1 |
1 |
2 |
2 |
|
39 |
Reformartikelen |
1 |
1 |
1 |
1 |
|
40 |
Kruiden en specerijven, thee en koffie |
1 |
1 |
1 |
1 |
|
41 |
Rijstartikelen |
1 |
1 |
1 |
1 |
|
42 |
Diepvriesvoedingsartikelen |
1 |
1 |
1 |
1 |
|
|
|
||||
|
SCHOEISEL, LEDERWAREN EN REISARTIKELEN |
|||||
|
43 |
Schoeisel |
1 |
1 |
2 |
2 |
|
44 |
Tassen en koffers |
1 |
1 |
2 |
2 |
|
45 |
Portefeuilles, portemonnees en riemen |
1 |
1 |
1 |
1 |
|
46 |
Lederwaren |
1 |
1 |
1 |
1 |
|
|
|
||||
|
|
HORLOGES EN SIERADEN |
||||
|
47 |
Uurwerken |
1 |
1 |
1 |
2 |
|
48 |
Bijouterieën, sieraden en edelstenen |
1 |
1 |
2 |
2 |
|
49 |
Overige modeaccessoires |
1 |
1 |
1 |
1 |
|
|
|
||||
|
|
BEZIGHEIDSARTIKELEN |
||||
|
50 |
Speelgoed |
1 |
1 |
2 |
2 |
|
51 |
Lectuur en posters |
1 |
1 |
1 |
1 |
|
52 |
Wenskaarten |
1 |
1 |
1 |
1 |
|
53 |
Hobbyartikelen |
1 |
1 |
1 |
1 |
|
54 |
Verzamelobjecten |
1 |
1 |
2 |
2 |
|
55 |
Geluid- en beelddragers |
1 |
1 |
1 |
1 |
|
56 |
Kantoorartikelen |
1 |
1 |
1 |
1 |
|
57 |
Telefoon en telefoonaccessoires |
1 |
1 |
1 |
1 |
|
58 |
Computers en computeronderdelen |
1 |
1 |
2 |
2 |
|
|
|
||||
|
IJZERWAREN EN MOTORTECHNISCHE ARTIKELEN |
|||||
|
59 |
Gereedschappen en motortechnische onderdelen |
1 |
1 |
1 |
1 |
|
60 |
(Brom)fietsen en fietsenonderdelen |
1 |
1 |
1 |
1 |
|
|
|
||||
|
HUISHOUDELIJKE EN GESCHENKARTIKELEN |
|||||
|
61 |
Glas, porselein, aardewerk en keramiek |
1 |
1 |
2 |
2 |
|
62 |
Koperwerk, tin e.d. |
1 |
1 |
1 |
1 |
|
63 |
Borstelwerk |
1 |
1 |
1 |
1 |
|
|
|
||||
|
64 |
Reinigingsartikelen |
1 |
1 |
1 |
1 |
|
65 |
Meubelen en kleinmeubelen |
1 |
1 |
3 |
3 |
|
66 |
Pannen en keukengereedschap |
1 |
1 |
1 |
1 |
|
67 |
Inpak- en verpakkingsartikelen |
1 |
1 |
1 |
1 |
|
|
|
||||
|
|
TUIN EN PLANTARTIKELEN, BLOEMEN |
||||
|
68 |
Zaden en bloembollen |
1 |
1 |
2 |
1 |
|
69 |
Bomen en heesters |
1 |
1 |
2 |
1 |
|
70 |
Kamerplanten |
1 |
1 |
2 |
1 |
|
71 |
Tuinplanten |
1 |
1 |
4 |
1 |
|
72 |
Snijbloemen |
1 |
2 |
3 |
3 |
|
|
|
||||
|
|
OVERIGE ARTIKELEN |
||||
|
73 |
Verlichtingsartikelen |
1 |
1 |
1 |
1 |
|
74 |
Diervoer en benodigdheden |
1 |
1 |
1 |
1 |
|
75 |
Drogisterijartikelen |
1 |
1 |
1 |
1 |
|
76 |
Haarmode |
1 |
1 |
1 |
1 |
|
77 |
Parfumerie en cosmetica |
1 |
1 |
1 |
1 |
|
78 |
Rookartikelen |
1 |
1 |
1 |
1 |
|
79 |
Sportartikelen |
1 |
1 |
1 |
1 |
|
80 |
Kranten en tijdschriften |
1 |
1 |
1 |
1 |
|
81 |
Audio, telecom en electronica |
1 |
1 |
1 |
1 |
|
82 |
Kunstbloemen |
1 |
1 |
1 |
1 |
|
83 |
Gedroogde bloemen en planten |
1 |
1 |
1 |
1 |
|
84 |
Biologische zuivel |
1 |
1 |
1 |
1 |
|
85 |
Biologische aardappelen, groente en fruit |
1 |
1 |
1 |
1 |
|
86 |
Biologische vlees en vleeswaren |
1 |
1 |
1 |
1 |
|
87 |
Biologische brood, koek en banket |
1 |
1 |
1 |
1 |
|
88 |
Biologische poelier |
1 |
1 |
1 |
1 |
|
De punten 82 tot en met 86 uitsluitend indien dit aangetoond |
|||||
|
kan worden. Een keurmerk (EKO) is hiervoor vereist. |
|||||
|
89. |
Overige biologische producten/natuurvoeding |
1 |
1 |
1 |
1 |
|
90 |
(Rest) Partijgoederen |
1 |
1 |
3 |
3 |
|
|
Partijgoederen (restpartijen) welke zeer regelmatig (per |
||||
|
|
vooraf bepaald tijdvak) van assortiment moeten veranderen. |
||||
|
91 |
Gebruikte goederen (meubelen en witgoed/bruingoed) |
1 |
1 |
3 |
3 |
|
92 |
Overige 2e handsartikelen |
1 |
2 |
3 |
3 |
|
|
|
||||
|
|
SEIZOENGEBONDEN ARTIKELEN |
||||
|
93 |
Zonnebrillen , petten en momentartikelen |
1 |
1 |
1 |
1 |
|
94 |
Campingartikelen |
1 |
1 |
1 |
1 |
|
95 |
Tuinaccessoires en tuinmeubelen |
1 |
1 |
1 |
1 |
BIJLAGE 3: Situatietekeningen aangewezen standplaatsen
Standplaats Van Randwijcklaan
Afmeting: 8.00 x 3.00 meter
Standplaats Leusderweg
Afmeting: 8.00 x 3.00 meter
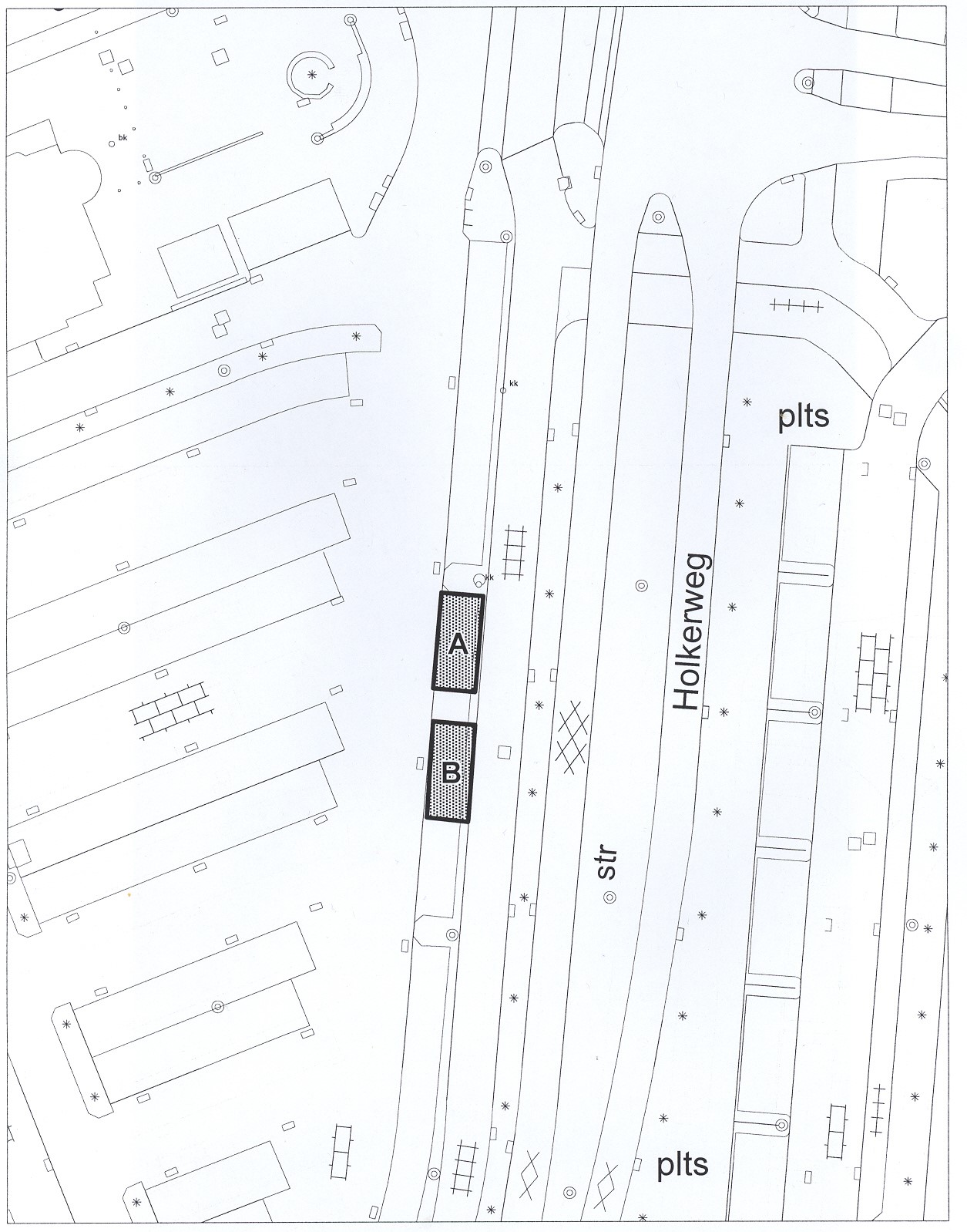
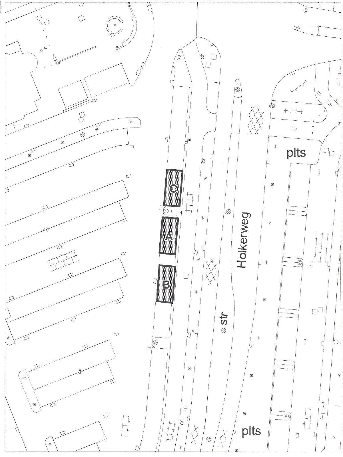
Standplaats Holkerweg
Afmeting: 8.00 x 3.00 meter
Standplaats Euterpeplein
Afmeting: 5.50 x 3.00 meter
Standplaats Neptunusplein
Afmeting: 8.00 x 3.00 meter
Standplaats Schuilenburgerplein
Afmeting: 8.00 x 3.00 meter
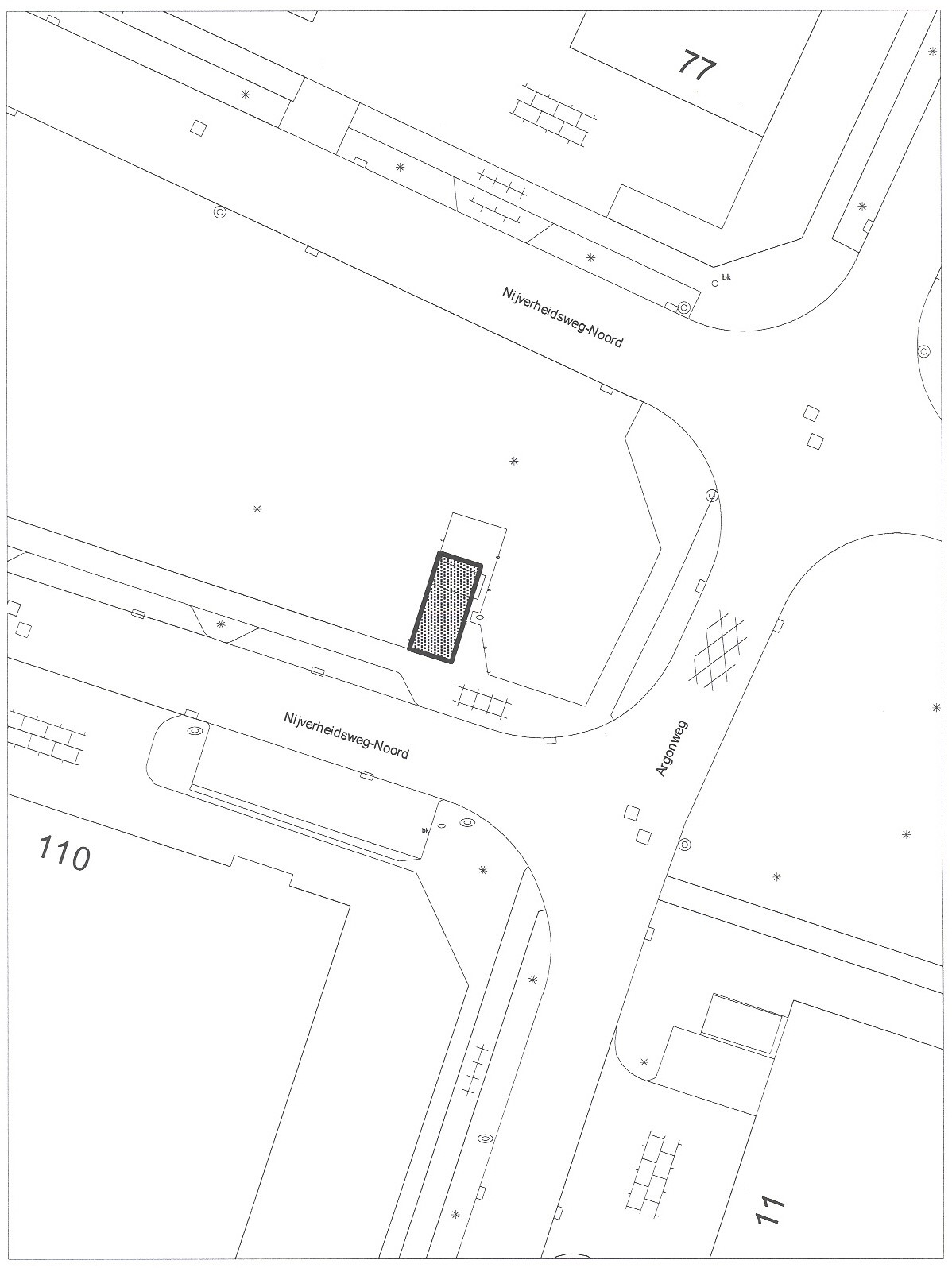
Standplaats Argonweg/Nijverheidsweg-Noord
Afmeting: 8.00 x 3.50 meter
Standplaats Operaplein
Afmeting: 8.00 x 3.00 meter
Standplaats Isseltseveld
Afmeting: 8.00 x 3.00 meter
Standplaats Kapelweg/Borneoplein
Afmeting: 8.00 x 3.00 meter
Standplaats Zeldertsedreef
Afmeting: 7.00 x 3.00 meter
Standplaats Kraailandhof
Afmeting: 8.00 x 3.00 meter
Standplaats Brink/Van Tuyllstraat
Afmeting: 5.50 x 5.00 meter
Standplaats De Beurs
Afmeting: 8.00 x 3.00 meter
Standplaats Inputplein
Afmeting: 6.00 x 2.50 meter
Standplaats Hellestraat
Afmeting: 3.00 x 2.50 meter
Standplaats Bombardonstraat
Afmeting: 8.00 x 3.00 meter
Standplaatsen Bergenboulevard
Afmeting: 8.00 x 3.00 meter
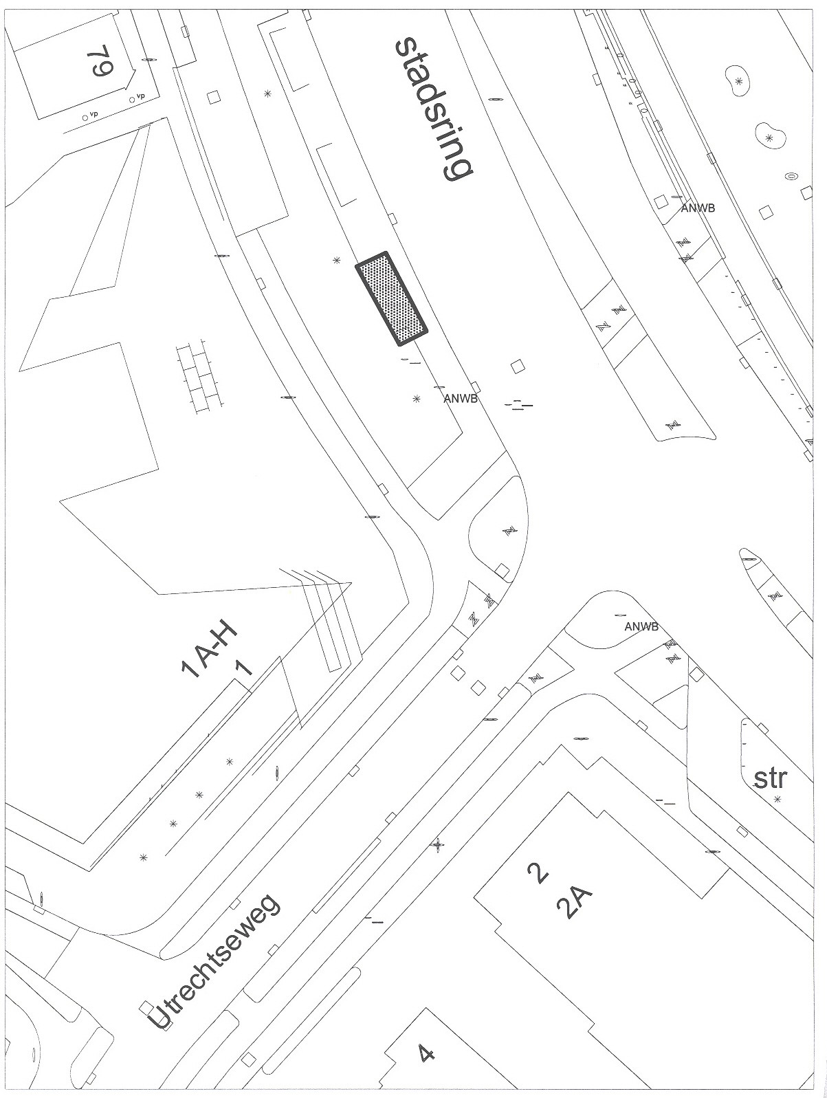
Seizoensgebonden standplaats Stadsring/Utrechtseweg
Afmeting: 8.00 x 3.00 meter
Seizoensgebonden standplaats Emiclaerhof
Afmeting: 8.00 x 3.00 meter
Seizoensgebonden standplaats Noordewierweg
Afmeting: 6.00 x 3.50 meter
Seizoensgebonden standplaats Holkerweg C
Afmeting: 8.00 x 3.00 meter
Seizoensgebonden standplaats Leusderweg A
Afmeting: 8.00 x 3.00 meter
Hoogte verkoopwagen max. 2.50 meter
BIJLAGE 4
BIJLAGE 5
Aangeduide wegen (standplaats en verkeersvrijheid of veiligheid)
BIJLAGE 6
Tekeningen van het marktterrein en standplaatsen
BIJLAGE 7
Kaart en zonering behorende bij Kamerverhuur
Op de kaart zijn gebieden zijn aangegeven waar kamerverhuur onder lichtere of zwaardere voorwaarden kan worden toegestaan. Hiermee wordt concentratie en spreiding van kamerverhuur bewerkstelligd.
- •
Zone Binnenstad: Hier is kamerverhuur op grond van het bestemmingsplan Binnenstad bij recht toegestaan. De binnenstad ligt aan de binnenzijde van de volgende straten: Stadsring, Flierbeeksingel, Scheltussingel, Schimmelpenninckkade en Smallepad.
- •
Zone 1: Hier kan kamerverhuur alleen met een omgevingsvergunning worden toegestaan, mits er zich minimaal 3 panden bevinden tussen de in de aanvraag betrokken woning en het dichtstbijzijnde bestaande kamerverhuurpand. Zone 1 bestaat uit verschillende buurten en straten:
- -
Schimmelpenninckbuurt: Bestaande uit de straten Schimmelpenninckkade, Schimmelpenninckstraat, Bloemendalse Buitenkade en Hooglandseweg-Zuid (westzijde);
- -
Bekenstein: Begrensd door de straten Willem van Mechelenstraat, Stadsring, Arnhemseweg, Prinses Julianaplein, Leusderweg, Kroontjesmolen en Bisschopsweg;
- -
Spoorbuurt: Begrensd door de straten Utrechtseweg, Snouckaertlaan, Stationsstraat en Kersenbaan;
- -
Hogeweg tussen Flierbeeksingel en Ringweg-Randenbroek/Kuiskamp (nr. 28 t/m 108 en nr. 45 t/m 111);
- -
Heiligenbergerweg tussen Stadsring en Blekerssingel (nr. 10 t/m 36 en nr. 7 t/m 41);
- -
Utrechtseweg tussen Kersenbaan en Prins Frederiklaan (nr. 37 t/m 125 en nr. 34 t/m 102);
- -
Soesterweg tussen Pieter Pijpersstraat en Primulastraat (nr. 25 t/m 335 en nr. 2 t/m 458);
- -
Pieter Pijpersstraat;
- -
Puntenburgerlaan tussen Brouwerstunnel en Groningerstraat/Noordewierweg (nr. 1 t/m 77 en nr. 2 t/m 92)
- -
Noordewierweg tussen Groningerstraat/Puntenburgerlaan en Isseltseveld (nr. 17 t/m 235 en nr. 2 t/m 178).
- -
- •
Zone 2: Hier kan kamerverhuur alleen met een omgevingsvergunning worden toegestaan, mits er zich minimaal 5 panden bevinden tussen de in de aanvraag betrokken woning en het dichtstbijzijnde bestaande kamerverhuurpand. Zone 2 bestaat uit de overige delen van het gemeentelijk grondgebied.
BIJLAGE 8: Zonering digitale handelsreclame in de openbare ruimte
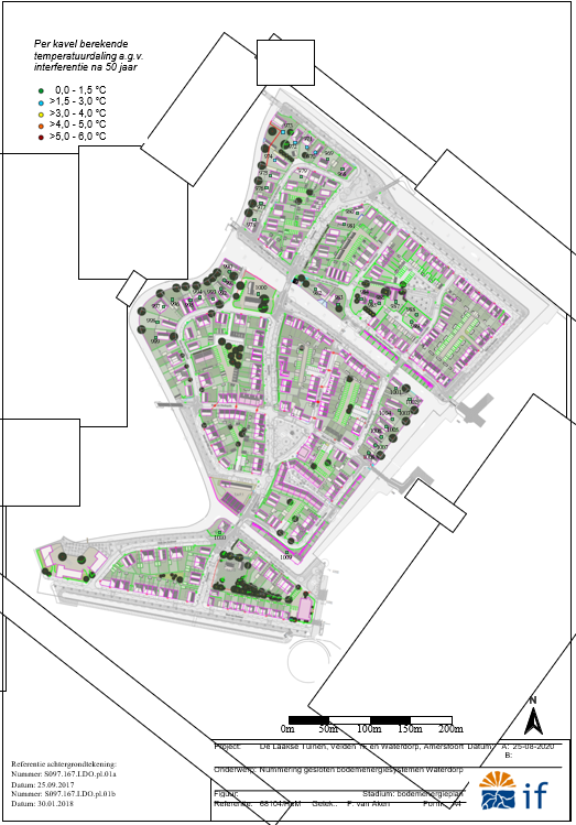
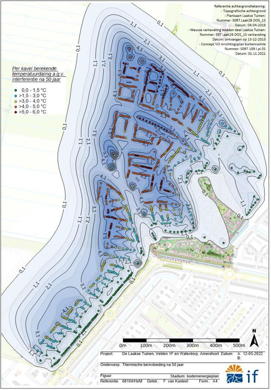
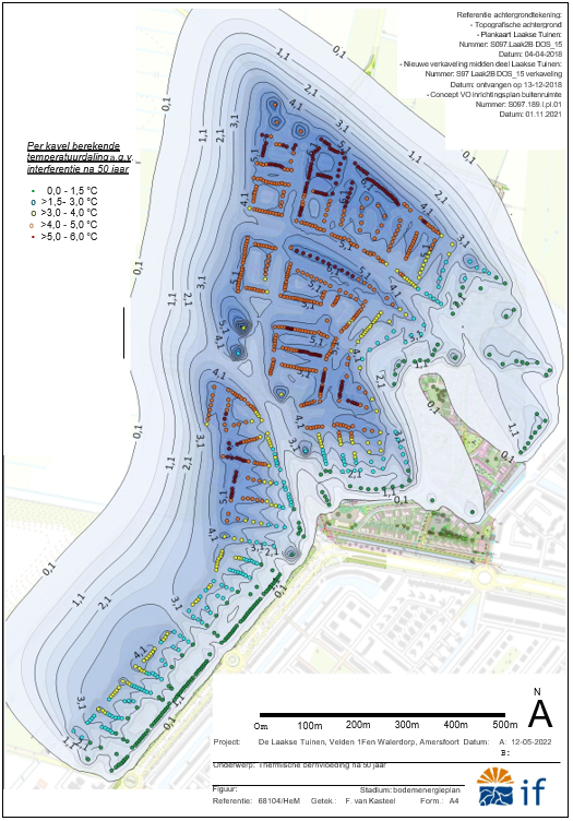
Bijlage 9.1: Bodemenergieplan Gesloten systemen in De Laakse Tuinen, Velden 1F en Waterdorp (Vathorst Amersfoort), referentie 68104/HeM/20220516, 16 mei 2022
1Inleiding
1.1REVISIE BODEMENERGIEPLAN
Dit "Bodemenergieplan gesloten systemen in De Laakse Tuinen, Velden 1F en Waterdorp (Vathorst Amersfoort)" met versienummer 4.0, d.d. 16 mei 2022 vervangt in zijn geheel het "Bodemenergieplan gesloten systemen in De Laakse Tuinen, Velden 1F en Waterdorp (Vathorst Amersfoort)" met versienummer 3.0, d.d. 25 augustus 2020.
De wijzigingen in dit bodemenergieplan ten opzichte van versie 3.0 zijn:
- •
Op basis van de meest actuele verkaveling (voorjaar 2022) zijn herberekeningen uitgevoerd en zijn de maximale jaarlijkse netto warmteonttrekking per meter bodemdiepte en de temperatuurcorrectie door interferentie opnieuw berekend, zie Bijlage 2. Ook de thermische contouren in Figuur 3.1 en in Bijlage 1 zijn op de meest actuele verkaveling gebaseerd.
- •
Tekstuele wijzigingen bij voorbeeldberekeningen in hoofdstuk 5 en toevoegen nieuwe rekensheet (versie: 16 mei 2022).
1.2DE LAAKSE TUINEN, VELDEN 1F EN WATERDORP
Verwarming van de nieuw te bouwen woningen in wijken De Laakse Tuinen en Velden 1F vindt gasloos plaats. Het moet nu en in de toekomst mogelijk zijn om alle woningen te verwarmen met behulp van individuele elektrisch aangedreven combiwarmtepompen in combinatie met gesloten bodemenergiesystemen. Daarnaast zijn ook een aantal kavels in Waterdorp onderdeel van dit bodemenergieplan. Ook deze woningen worden naar verwachting nu of in de toekomst voorzien van warmtepompen in combinatie met gesloten bodemenergiesystemen.
Figuur 1.1 | Woonwijken De Laakse Tuinen (Laak 2B), Velden 1F en Waterdorp in Amersfoort
1.3WERKINGSPRINCIPE
Met een elektrisch aangedreven combiwarmtepomp worden de ruimten van de woning en het tapwater verwarmd. De bronwarmte van de warmtepomp wordt onttrokken aan de bodem met behulp van een gesloten bodemenergiesysteem.
Een gesloten bodemenergiesysteem bestaat uit één of meerdere verticaal in de bodem aangebrachte kunststof slangen (bodemlussen) die middels een boring in de bodem tot grotere diepte worden aangebracht. In het gesloten bodemenergiesysteem stroomt een circulatievloeistof bestaande uit een mengsel van water met antivries of alleen water.
Door de warmteonttrekking daalt de temperatuur van de bodem rondom het gesloten bodemenergiesysteem. Hiervan kan in de zomer weer gebruik worden gemaakt om de woning van (beperkte) koeling te voorzien. De temperatuur van de bodem rondom het gesloten bodemenergiesysteem zal hierdoor weer toenemen. Omdat de jaarlijkse warmteonttrekking aan de bodem groter is dan de jaarlijkse warmtetoevoer in de zomer (koeling), daalt de temperatuur van de bodem.
Figuur 1.2 | Principeschema gesloten bodemenergiesysteem
1.4INTERFERENTIE
De woningen in De Laakse Tuinen, Velden 1F en Waterdorp onttrekken netto warmte aan de bodem. Deze grootschalige warmteonttrekking resulteert in een temperatuurdaling van de bodem. Dit houdt in dat voor een gesloten systeem op elke kavel rekening moet worden gehouden met de temperatuurdaling van de bodem ten gevolge van alle gesloten bodemenergiesystemen in de omgeving.
Om de temperatuurdaling van de bodem ten gevolge van grootschalige warmteonttrekking aan de bodem te beperken, is in dit bodemenergieplan per kavel een maximale jaarlijkse netto warmte- onttrekking per meter bodemdiepte vastgesteld. Bij het ontwerp van elk gesloten bodemenergie- systeem dient rekening te worden gehouden met deze maximale warmteonttrekking en met de lagere temperatuur van de bodem. Hiermee worden thermisch gezien robuuste systemen verkregen en wordt doelmatig gebruik gemaakt van de ondergrond.
Opgemerkt wordt dat in nieuw te realiseren woonwijken waar nog geen gesloten bodemenergiesystemen aanwezig zijn en waar in de toekomst op grote schaal gesloten bodemenergiesystemen in de bodem worden aangebracht, de temperatuursinvloed tussen de nieuw te realiseren systemen onderling vaak groter is dan 1,5°C. Deze temperatuursinvloed kan en mag groter zijn, als met het ontwerp van elk gesloten bodemenergiesysteem rekening wordt gehouden met deze lagere temperatuur van de bodem.
1.5VERORDENING GESLOTEN BODEMENERGIESYSTEMEN
De gemeente Amersfoort heeft de woonwijken De Laakse Tuinen, Velden 1F en Waterdorp bij ver- ordening (Verordening gesloten bodemenergiesystemen gemeente Amersfoort 2019) aangewezen als een interferentiegebied. Dit houdt in dat voor een gesloten bodemenergiesysteem de Omgevingsvergunning beperkte milieutoets (Obm) bij het bevoegd gezag moet worden aangevraagd.
1.6REGELS EN BODEMENERGIEPLAN
De regels voor het installeren en het in werking hebben van een gesloten bodemenergiesysteem zijn voor De Laakse Tuinen, Velden 1F en Waterdorp verwoord in dit bodemenergieplan.
De regels in dit bodemenergieplan zijn zo opgesteld dat nieuw te bouwen woningen in De Laakse Tuinen, Velden 1F en een aantal nieuw te bouwen woningen in Waterdorp doelmatig gebruik kunnen maken van de ondergrond voor bodemenergie. Daarnaast zorgen de regels ervoor dat interferentie tussen de gesloten systemen en daarmee nadelige invloed op het systeemrendement wordt voorkomen. Indien uit de vergunningaanvraag blijkt dat aan de regels wordt voldaan, kan door het bevoegd gezag de vergunning worden verleend.
2Geohydrologisch onderzoek
2.1BODEMOPBOUW
De bodemopbouw op en in de directe omgeving van De Laakse Tuinen, Velden 1F en Waterdorp is beschreven op basis van de volgende gegevens:
- -
Grondwaterkaart van Nederland;
- -
Regionaal Geohydrologisch Informatie Systeem (REGIS);
- -
Boorbeschrijvingen uit het archief van TNO Bouw en Ondergrond via DINOloket;
- -
Boorbeschrijvingen van omliggende bodemenergiesystemen.
De verwachte bodemopbouw en de thermische eigenschappen van de bodemlagen zijn weergegeven in Tabel 2.1. In Figuur 2.1 zijn gemeten temperaturen van de bodem binnen een straal van 10 km rondom Laakse Tuinen weergegeven.
Tabel 2.1 | Bodemopbouw
|
diepte |
lithologie |
geohydrologie |
tempe- ratuur |
warmtegeleidingscoëfficiënt |
warmtecapaciteit |
grondwaterstroming |
|
[m-mv]* |
|
|
[°C] |
[W/m².K] |
[MJ/m³.K] |
[m/jaar] |
|
0 - 11 |
fijn zand |
1e watervoerend pakket A |
ca. 10,5 |
2,4 |
2,5 |
ca. 5 m/jaar naar het NW |
|
11 - 21 |
klei en veen |
lokale scheidende laag |
ca. 10,5 |
1,7 |
2,5 |
|
|
21 - 39 |
matig grof zand |
1e watervoerend pakket B |
ca. 11 |
2,4 |
2,5 |
5 - 10 m/jaar naar het NW |
|
39 – 41 |
klei |
1e scheidende laag |
ca. 11 |
1,7 |
2,5 |
- |
|
41 - 175 |
matig grof totuiterst grof zand met grind en enkele kleilagen |
2e watervoerend pakket |
ca. 11 - 13 |
2,4 |
2,5 |
10 - 15 m/jaar naar het NW |
|
175 - 210 |
klei met inschakelingen van zandlagen |
2e scheidende laag |
ca. 13 - 13,5 |
1,9 |
2,5 |
- |
|
210 - ca. 280 |
afwisselend fijn zand en zandige klei, veel schelpenmateriaal |
3e watervoerend pakket |
ca. 13,5- 15 |
2,2 |
2,5 |
onbekend |
|
> ca. 280 |
klei |
hydrologische basis |
oplopend vanaf ca. 15 |
1,7 |
2,5 |
- |
* het maaiveld bevindt zich op circa 0,7 m+NAP
Op basis van de verkregen gegevens en de huidige (boor)technieken wordt geconcludeerd dat de bodemopbouw op de locatie tot een diepte van circa 280 m-mv geschikt is voor het toepassen van gesloten bodemenergiesystemen. Vanaf 280 m-mv begint de hydrologische basis, bestaande uit voornamelijk klei.
Figuur 2.1 | Temperatuurmetingen bodem binnen 10 km van Laakse Tuinen (bron: Database bodemtemperatuurprofielmetingen TNO en IF Technology)
2.2GEOHYDROLOGIE
In Tabel 2.2 zijn de relevante technische en juridische aspecten opgenomen die van invloed zijn op het installeren en het in werking hebben van een gesloten bodemenergiesysteem. In en onder de tabel zijn de aandachtspunten, risico’s of belemmeringen nader toegelicht.
Tabel 2.2 | Technische en juridische aspecten bodemenergiesysteem
1.Artesisch grondwater
Artesisch grondwater is water wat boven het maaiveld uitkomt. Op basis van de huidige maaiveld- hoogte komt de grondwaterstand mogelijk incidenteel boven het maaiveld uit. Ook komt de stijg- hoogte in het tweede en mogelijk in het derde watervoerend pakket boven maaiveld uit. De stijg- hoogte in het derde watervoerend pakket is echter bepaald aan de hand van een peilbuis op circa 4,5 km afstand. Het is onzeker of de stijghoogte ook op de projectlocatie in deze mate aanwezig is. Met het artesische grondwater moet rekening gehouden worden bij het boren door verhoogd op te stellen. Mogelijk wordt met de bouw van de wijk het maaiveld nog enigszins opgehoogd en blijkt deze maatregel niet meer of in mindere mate nodig te zijn.
2.Grondwatergebruikers
Open bodemenergiesystemen
Binnen een straal van 500 m vanaf de randen van het gebied is één open bodemenergiesysteem aanwezig (mei 2022). Dit open bodemenergiesysteem van Vathorst De Laak 1B ligt op circa 300 m afstand van de projectlocatie en bestaat uit een doublet met filters in het gecombineerde eerste en tweede watervoerende pakket (48 – 168 m-NAP). Het maximale debiet is 85 m³/uur met een jaarlijkse maximale grondwaterverplaatsing van 745.000 m³. Gezien de afstand van de bronnen tot de projectlocatie levert dit geen probleem op voor de toepassing van gesloten bodemenergiesystemen op de projectlocatie.
Het meest actuele overzicht van open bodemenergiesystemen op de locatie en in de omgeving is op te vragen bij RUD Utrecht en is tevens te vinden op www.wkotool.nl.
Gesloten bodemenergiesystemen
Het meest actuele overzicht van gesloten bodemenergiesystemen op de locatie en in de omgeving is op te vragen bij RUD Utrecht en is tevens te vinden op www.wkotool.nl.
Permanente grondwateronttrekkingen
Uit het overzicht van Waterschap Vallei en Veluwe (mei 2022) blijkt dat er binnen een straal van 500 m geen permanente grondwateronttrekkingen aanwezig zijn.
3.Archeologie
De archeologische beleidskaart van de gemeente Amersfoort geeft aan dat verschillende archeologische waarderingsklassen aanwezig zijn op de projectlocatie (zie Figuur 2.2). Bij een bepaalde grondverstoorde omvang moet archeologisch onderzoek uitgevoerd worden. Naar verwachting is het benodigde onderzoek al uitgevoerd voor de bouw van woningen. Indien de gesloten systemen individueel worden aangelegd wordt de onderzoeksgrens niet overschreden.
Figuur 2.2 | Archeologische verwachting op de projectlocatie (beleidskaart gemeente Amersfoort)
4.Waterkering
Op de projectlocatie De Laakse Tuinen en Waterdorp is een waterkering met bijbehorende beschermingszones gelegen (Figuur 2.3). Het westelijke gedeelte van de waterkering wordt deels verlegd met de aanbouw van de wijk De Laakse Tuinen. Dit gebied is nog in ontwikkeling.
Naar verwachting maken een aantal kavels deel uit van beschermingszone B. Uit de algemene regels van de Keur blijkt dat het realiseren van een gesloten bodemenergiesysteem binnen beschermingszone B valt onder een vrijstelling van de vergunningplicht. De aanwezigheid van de waterkering vormt dus geen belemmering voor het toepassen van gesloten systemen.
Figuur 2.3 | Waterkering met bijbehorende beschermingszones (legger Waterschap Vallei en Veluwe d.d. 16-5-2022)
2.3RISICOANALYSE
In Tabel 2.3 is de risicoanalyse met kansen, gevolgen en beheersmaatregelen van de van belang zijnde aspecten samengevat conform het SIKB protocol 11001, paragraaf 8.2.
Tabel 2.3 | Risicoanalyse
|
risico |
kans |
gevolg |
beheersmaatregel |
|
1 bodemopbouw en thermische parameters wijken af |
klein, voldoende betrouwbare informatie beschikbaar |
invloed op beschikbare te onttrekken hoeveel heid warmte |
accepteren |
|
2 het doorboren van mobiele verontreiniging, opboren van verontreinigde grond tijdens realisatie |
klein, o.b.v.beschikbare informatie is de ondergrond niet verontreinigd |
verwerken verontreinigde grond volgens BRL 2100, Mechanisch boren |
accepteren |
|
3 invloed op rendement/functioneren nabijgelegen openbodemenergiesystemen |
niet aanwezig, open bodemenergiesysteem op 300 m geenwordt niet beinvloed |
- |
- |
|
4 onderling negatieve interferentie tussen de geplande gesloten systemen |
aanwezig |
systemen goed dimensioneren, rekeninghoudend met systemen in omgeving |
berekeningen en regelsin dit bodemenergieplan volgen |
|
5 wateroverlast aan maaiveld door artesisch watertijdens realisatie |
aanwezig, o.b.v.huidige informatie komt het water tijdens realisatie boven maaiveld uit |
water komtboven maaiveld uit tijdens realisatie |
toepassen voorbuis en/of eventueel verhoogd opstellen |
3Bodemenergieplan
3.1DOELSTELLING
Het belangrijkste doel van het bodemenergieplan is om regels te hebben voor het installeren en het in werking hebben van gesloten bodemenergiesystemen, zodat voor alle woningen doelmatig gebruik wordt gemaakt van bodemenergie en dat nadelige beïnvloeding van het systeemrendement door interferentie zo veel mogelijk wordt voorkomen.
De regels zijn in dit bodemenergieplan zodanig omschreven dat het voor de particuliere kavelkoper(s), de ontwikkelaar(s), de aannemer(s), Ontwikkelingsbedrijf Vathorst, de gemeente Amersfoort en de Regionale Uitvoeringsdienst Utrecht duidelijk is waaraan gesloten bodemenergiesystemen bij nieuwbouwwoningen moeten voldoen, voor het verkrijgen van de Omgevingsvergunning beperkte milieutoets (Obm).
3.2INTERFERENTIE EN ONTWERP
Voor het installeren en het in werking hebben van gesloten bodemenergiesystemen, zijn twee aspecten van belang: interferentie en het ontwerp.
Interferentie door bodemenergiesystemen in omgeving
In bijlage 2 (Methode toetsen interferentie tussen kleine gesloten bodemenergiesystemen) behorend bij de BUM en de HUM BE, deel 2 wordt als uitgangspunt gehanteerd dat geen sprake is van interferentie als de totaal veroorzaakte temperatuurverlaging bij alle andere systemen in de omgeving kleiner is dan 1,5°C. Deze temperatuurdaling wordt ook gehanteerd als richtlijn in de melding Besluit lozen buiten inrichtingen.
In woonwijken waar op grote schaal gesloten bodemenergiesystemen worden toegepast, kan de temperatuurdaling door interferentie groter zijn dan 1,5°C als met elk individueel ontwerp van de gesloten bodemenergiesystemen hiermee rekening wordt gehouden. Het is dus van belang om vooraf, op basis van interferentieberekeningen, het temperatuureffect van grootschalige toepassing van gesloten bodemenergiesystemen te kwantificeren. Deze interferentieberekeningen zijn voor de woonwijken De Laakse Tuinen, Velden 1F en Waterdorp uitgevoerd. De resultaten zijn beschreven in paragraaf 3.4. De potentieberekeningen resulteren per kavel in twee grootheden waaraan het ontwerp van de gesloten bodemenergiesystemen voet voldoen. Deze grootheden zijn:
- •
De maximale jaarlijkse netto warmteonttrekking per meter bodemdiepte (in kWh/m).
- •
De temperatuurdaling ten gevolge van interferentie door nabij gelegen bodemenergiesystemen (in °C).
Ontwerp
De minimaal toe te passen bodemdiepte wordt bepaald door de maximale jaarlijkse netto warmteonttrekking per meter bodemdiepte. Bij het in werking hebben van een gesloten bodemenergiesysteem, dient echter te allen tijde aan de algemene regel te worden voldaan, waarbij de temperatuur van de circulatievloeistof in de retourbuis van het gesloten bodemenergiesysteem (temperatuur uit de verdamper van de warmtepomp naar de bodemlus) niet lager mag zijn dan -3°C.
De temperatuurdaling van de circulatievloeistof in het gesloten bodemenergiesysteem wordt enerzijds bepaald door de temperatuurdaling ten gevolge van beïnvloeding door gesloten bodemenergiesystemen in de omgeving (interferentie) en anderzijds door de warmteonttrekking van het desbetreffende bodemenergiesysteem op het kavel zelf. Bij het ontwerp van het gesloten bodemenergiesysteem dient rekening te worden gehouden met deze extra temperatuurdaling door interferentie van systemen in de omgeving. In de ontwerpberekening voor een individueel gesloten bodemenergiesysteem (bijvoorbeeld met EED) dient de temperatuurdaling door interferentie in mindering te worden gebracht op de gemiddelde (natuurlijke) temperatuur van de bodem over de ge- hele aan te boren bodemdiepte.
3.3UITGANGSPUNTEN INTERFERENTIEBEREKENING
De berekeningen ter bepaling van de maximale jaarlijkse netto warmteonttrekking aan de bodem, zijn uitgevoerd met het softwarepakket MLU (Multi Layer Unsteady state). Dit programma is gemaakt voor het modelleren van grondwaterstroming in watervoerende pakketten (zie voor meer informatie hierover www.microfem.com) en wordt ook gebruikt voor het berekenen van warmtetransport (door middel van geleiding) bij gesloten bodemenergiesystemen.
De uitgangspunten voor de berekeningen zijn als volgt:
- -
De meest recente verkaveling van De Laakse Tuinen, Velden 1F en Waterdorp (voorjaar 2022), zie Bijlage 1 en 3.
- -
De bodemopbouw en de grondwaterstroming zoals deze zijn omschreven in hoofdstuk 2.
- -
De maximale diepte van de gesloten bodemenergiesystemen ter bepaling van de maximale netto warmteonttrekking bedraagt 280 m-mv (top hydrologische basis).
- -
De periode waarvoor de thermische berekeningen zijn uitgevoerd, bedraagt 50 jaar.
Opgemerkt wordt dat de Regionale Uitvoeringsdienst Utrecht (RUD Utrecht) heeft aangegeven dat de berekeningen dienen te worden uitgevoerd voor een periode van 50 jaar. RUD Utrecht wil dit om op lange termijn thermisch goed werkende gesloten bodemenergiesystemen te verkrijgen en te behouden. Deze periode van 50 jaar geldt ook voor de ontwerpberekening die met Earth Energy Designer wordt uitgevoerd.
3.4RESULTATEN INTERFERENTIEBEREKENING
De resultaten van de berekeningen zijn weergegeven in Figuur 3.1 en in Bijlage 1. In dit figuur zijn de contouren van de berekende temperatuurdaling weergegeven na een periode van 50 jaar voor de situatie waarbij op alle kavels warmte aan de bodem wordt onttrokken.
In Bijlage 2 is per kavel opgegeven wat de maximale netto warmteonttrekking per meter bodem- diepte en de temperatuurdaling is. De nummering van elk gesloten bodemenergiesystemen per ka- vel is weergegeven in de figuren die in Bijlage 3 zijn opgenomen.
Figuur 3.1 | Thermische beïnvloeding tussen 0 en 280 m-mv na 50 jaar (zie ook Bijlage 1 voor groot formaat)
3.5MAXIMALE JAARLIJKSE NETTO WARMTEONTTREKKING
Per kavel is de maximale jaarlijkse netto warmteonttrekking tot een diepte van 280 m-mv en per meter aan te boren diepte berekend. De grootte van de maximale jaarlijkse netto warmteonttrekking is gerelateerd aan de grootte van het kaveloppervlak (in m²) en een maximaal aan te boren diepte van 280 m (tot aan de hydrologische basis). De maximale jaarlijkse netto warmteonttrekking per meter bodemdiepte is per kavel in de tabel in Bijlage 2 opgenomen.
3.6TEMPERATUURCORRECTIE
Indien de daling in temperatuur van het eigen gesloten bodemenergiesysteem op het kavel niet wordt meegenomen, is de resulterende temperatuurdaling op het kavel uitsluitend het gevolg van de thermische invloed van de gesloten systemen in de omgeving van het desbetreffende kavel. Per kavel is in Figuur 3.1 met een gekleurde stip de berekende temperatuurdaling ten gevolge van omliggende gesloten systemen weergegeven.
In Bijlage 2 is de tabel opgenomen waarin per kavel de temperatuurdaling door interferentie is gekwalificeerd. Deze temperatuurdaling dient als correctie van de bodemtemperatuur bij het ontwerp van het gesloten bodemenergiesysteem te worden meegenomen.
4Regels
4.1ALGEMENE REGELS
Voor het installeren en het in werking hebben van een gesloten bodemenergiesysteem binnen de grenzen van dit bodemenergieplan, gelden de volgende algemene regels:
- 1.
Voor het gesloten bodemenergiesysteem dient de melding: "Aanleg gesloten bodemenergiesys teem buiten inrichtingen" bij het bevoegd gezag te worden ingediend. Hierbij dient aan alle indieningvereisten te worden voldaan, zoals deze in het Besluit lozen buiten inrichtingen (Blbi) in artikel 1.10a voor gesloten systemen zijn opgenomen.
- 2.
Voor het gesloten bodemenergiesysteem dient de Omgevingsvergunning beperkte milieutoets (Obm) bij het bevoegd gezag te worden aangevraagd.
- 3.
Het gesloten bodemenergiesysteem dient te allen tijde te voldoen aan de “Algemene regels ten aanzien van bodemenergiesystemen”, zoals deze zijn omschreven in Hoofdstuk 3a van het Besluit lozen buiten inrichtingen.
- 4.
Indien aantoonbaar aan onderstaande regels 5 tot en met 12 wordt voldaan, is onderbouwing (waaruit blijkt dat het in werking hebben van het systeem niet leidt tot zodanige interferentie met een eerder geïnstalleerde bodemenergiesystemen dat het doelmatig functioneren van de desbetreffende systemen kan worden geschaad) niet nodig. Zie artikel 1.10a.h uit het Besluit lozen buiten inrichtingen.
4.2LOCATIE SPECIFIEKE REGELS
Voor het installeren en het in werking hebben van een gesloten bodemenergiesysteem binnen de grenzen van dit bodemenergieplan gelden de volgende locatie specifieke regels:
- 5.
Het gesloten bodemenergiesysteem dient te worden uitgevoerd als een verticaal bodemenergiesysteem, bestaande uit één of meerdere verticaal in de bodem aan te brengen boorgaten met bodemlus(sen).
- 6.
De maximale diepte van de boorgaten met bodemlus(sen) bedraagt 280 m-mv.
- 7.
De boorgaten met bodemlus(sen) dienen op eigen kavel in de bodem te worden aangebracht.
- 8.
De afstand tussen een boorgat en de kavelgrens direct grenzend aan een kavel van een naastgelegen woning met (een gerealiseerd of nog te realiseren) bodemenergiesysteem dient te allen tijde groter of gelijk te zijn aan 3,0 m.
Daar waar in verband met een (te) smalle kavelbreedte bovenstaande afstand niet mogelijk is, dient de afstand tussen twee boorgaten te allen tijde groter dan of gelijk dient te zijn aan 6,0 m.
- 9.
De jaarlijkse netto warmteonttrekking per meter bodemdiepte (kWh/m) dient te allen tijde kleiner of gelijk te zijn aan de voor het kavel toegewezen maximale jaarlijkse netto warmteonttrekking per meter bodemdiepte. Zie: "Maximale jaarlijkse netto warmtelevering per meter bodemdiepte" in Bijlage 2.
- 10.
Bij het ontwerp dient voor het bepalen van de minimaal benodigde diepte van de boorgaten en het aantal boorgaten rekening te worden gehouden met de temperatuurdaling die optreedt op het kavel ten gevolge van interferentie. Zie: “Temperatuurcorrectie door interferentie” in Bijlage 2.
- 11.
Ten behoeve van het ontwerp dient voor elk individueel gesloten bodemenergiesysteem een berekening voor een periode van minimaal 50 jaar te worden uitgevoerd. Bij deze berekening dient de temperatuurdaling door interferentie te worden meegenomen.
Voor de berekening wordt gebruik gemaakt van het programma Earth Energy Designer (EED) (of met een gelijkwaardig gevalideerd model zoals in BRL 11001 weergegeven programma's Glhepro, DST en SBM). De resultaten van de berekening dienen als bijlage bij de vergunningaanvraag te worden toegevoegd.
- 12.
Bij wijzigingen in aantal of grootte van één of meerdere kavels dienen de "Maximale jaarlijkse netto warmteonttrekking" en de “Temperatuurcorrectie door interferentie” opnieuw te worden bepaald. Dit vindt als volgt plaats:
- •
De "Maximale jaarlijkse netto warmteonttrekking" per meter bodemdiepte (in kWh/m) dient voor het gewijzigde kavel te worden berekend door het oppervlak van het kavel te vermenigvuldigen met 0,126 (kWh/m)/m².
- •
Voor de “Temperatuurcorrectie door interferentie” dient de waarde van het dichtstbijzijnde kavel in Bijlage 2 te worden aangehouden.
- •
Twee voorbeeldberekeningen zijn opgenomen in hoofdstuk 5 van dit Bodemenergieplan.
5Voorbeeldberekeningen
5.1INLEIDING
Om inzicht te geven hoe dit bodemenergieplan moet worden gelezen en hoe de regels moeten worden geïnterpreteerd, zijn in dit hoofdstuk drie voorbeeldberekeningen uitgewerkt.
In onderstaande tabel is de verklaring gebruikte symbolen in dit hoofdstuk opgenomen. De voor- beelden zijn deels uitgewerkt in rekensheets die als Bijlage 4 in dit document zijn opgenomen.
Tabel 5.1 | Verklaring van symbolen
|
symbool |
eenheid |
toelichting |
|
Qrv |
MWh |
De energiehoeveelheid voorruimteverwarming (bouwwerk) |
|
Qtv |
MWh |
De energiehoeveelheid voortapwaterverwarming (bouwwerk) |
|
Qk |
MWh |
De energiehoeveelheid voor koeling (bouwwerk) |
|
SPF |
- |
Seasonal Performance Factor |
|
T bodem natuurlijk |
°C |
De natuurlijke temperatuur van de bodem |
|
T correctie |
°C |
De correctie van de temperatuur die is opgenomen in dit bodemenergieplan |
|
T bodem met correctie = T input EED |
°C |
De temperatuur bodeminclusief correctie (is invoerwaarde EED) |
|
T gem,circulatievloeistof |
°C |
De gemiddelde temperatuur van de circulatievloeistof in de bodemlus |
|
T verdamper |
°C |
De temperatuur aande verdamperzijde van de warmtepomp |
5.2VOORBEELD 1 - GROTE WONING
Gegevens woning met warmtepomp en gesloten bodemenergiesysteem
Voor ruimte- en tapwaterverwarming en het koelen van een relatief grote woning met een kaveloppervlakte van circa 400 m² wordt een elektrische combiwarmtepomp met een gesloten bodemenergiesysteem toegepast. Uit de SPF-berekening van de installateur blijkt bijvoorbeeld: De warmtevraag van de woning (het bouwwerk) voor ruimte- en tapwaterverwarming bedraagt 14 respectievelijk 6 MWh per jaar. De gemiddelde SPF van de warmtepomp bedraagt 4,5 voor ruimteverwarming en 3,0 voor tapwaterverwarming. De koudevraag (van het bouwwerk) bedraagt 4 MWh per jaar met een SPF van 40 voor de circulatiepomp.
Voor het kavel geldt volgens Bijlage 2 in dit bodemenergieplan een maximale jaarlijkse netto warmteonttrekking per meter aangeboorde bodemdiepte van 50,3 kWh/m en een temperatuurcorrectie van 4,5°C.
Berekening jaarlijkse netto warmteonttrekking aan bodem
Met bovenstaande gegevens kan de hoeveelheid warmte worden berekend die met het gesloten bodemenergiesysteem aan de bodem wordt onttrokken en wordt toegevoerd. Het resultaat van de berekening is de jaarlijkse netto warmteonttrekking in MWh voor het gesloten bodemenergiesysteem, zie Tabel 5.2. Zie ook de rekensheet in Bijlage 4.
Tabel 5.2 | Berekening jaarlijkse netto warmteonttrekking aan bodem
|
Bouwwerk SPF Berekening Bodemzijdig |
||||
|
Ruimteverwarming |
14,0 MWh |
4,5 |
Q rv x ((SPF – 1)/ SPF)) 14,0 x ((4,5-1) / 4,5) |
10,9 MWh |
|
Tapwaterverwarming |
6,0 MWh |
3,0 |
Q tw x ((SPF – 1) / SPF)) 6,0 x ((3,0– 1) / 3,0) |
4,0 MWh |
|
Warmteonttrekking aan bodem |
14,9 MWh |
|||
|
|
|
|
|
|
|
Koeling |
4,0 MWh |
40 |
Qk + (Qk / SPF) 4,0 + (4,0 /40) |
4,1 MWh |
|
Warmtetoevoer aan bodem |
4,1 MWh |
|||
|
|
|
|
|
|
|
Jaarlijkse nettowarmteonttrekking = Warmteonttrekking aan bodem – Warmtetoevoer aan bodem |
10,8 MWh |
|||
Minimaal benodigde diepte van de boorgaten (regel 9)
Voor dit voorbeeld blijkt uit de in Bijlage 2 van dit bodemenergieplan dat voor het desbetreffende kavel een maximale jaarlijkse netto warmteonttrekking per meter aangeboorde bodemdiepte geldt van 50,3 kWh/m. Op basis van deze maximale netto warmteonttrekking per meter, bedraagt de minimaal aan te boren bodemdiepte ter voorkoming van te grote interferentie naar de omgeving: 215 m-mv (10.800 kWh / 50,3 kWh/m).
Ontwerp gesloten bodemenergiesysteem (regels 10 en 11)
De minimale diepte van de boorgaten is niet altijd gelijk aan de totaal benodigde boorgatlengte volgens regel 9. Het in werking hebben van het gesloten bodemenergiesysteem dient te allen tijde te voldoen aan de algemeen geldende regels, zoals deze zijn omschreven in het Besluit lozen buiten inrichtingen (zie regel 3 in paragraaf 4.1). Eén van deze algemene regels is dat de minimale temperatuur van de circulatievloeistof in de retourbuis van het gesloten bodemenergiesysteem (temperatuur uit de verdamper van de warmtepomp naar de bodemlus) niet lager mag zijn dan -3°C.
Om aan deze regel te voldoen dient per individueel gesloten bodemenergiesysteem een ontwerp voor 50 jaar 1 te worden vervaardigd. Voor de berekening wordt gebruik gemaakt van het programma Earth Energy Designer (EED) (of een gelijkwaardig gevalideerd model zoals in BRL 11001 weergegeven programma's Glhepro, DST en SBM). Bij deze berekening dient rekening te worden ge- houden met de “Temperatuurcorrectie door interferentie”, zoals deze voor het betreffende kavel is opgenomen in de tabel in Bijlage 2 in dit bodemenergieplan. Deze temperatuurdaling dient in mindering te worden gebracht op de natuurlijke gemiddelde bodemtemperatuur.
De natuurlijke gemiddelde temperatuur van de bodem is afhankelijk van de aan te boren diepte en wordt als volgt berekend:
T bodem natuurlijk = 0,0063 * bodemdiepte + 10,5°C
De gemiddelde temperatuur van de bodem over de diepte van het boorgat, waarbij rekening wordt gehouden met temperatuurinvloed van naastgelegen systemen, wordt als volgt berekend:
T bodem met correctie = T input EED = T bodem natuurlijk - T correctie
De voor dit voorbeeld uitgevoerde Earth Energy Designer berekening laat zien met een diepte van 215 m de temperatuur van de circulatievloeistof te ver daalt onder -3,0°C. De uiteindelijke EED berekening laat zien dat met een minimale aan te boren boorgatdiepte van 265 m dient te worden volstaan. De minimale gemiddelde temperatuur van de circulatievloeistof bij één boorgat tot 265 m na 50 jaar daalt tot -0,9°C. Met een temperatuurverschil over de verdamper van de warmtepomp van 4°C, resulteert dit in een minimale temperatuur van de circulatievloeistof van -2,9°C. Deze is als volgt berekend:
Tgem,circulatievloeistof – (∆Tverdamper / 2) = -0,9°C – (4,0 / 2) = -2,9°C
De minimale temperatuur van de circulatievloeistof is hoger dan -3°C, waardoor wordt voldaan aan de algemene regel van de minimale temperatuur van de circulatievloeistof van -3°C.
De in EED te hanteren bodemtemperatuur (Tbodem met correctie) bedraagt 7,7°C. Deze is als volgt berekend:
Tbodem natuurlijk = 0,0063 * 265 + 10,5°C = 12,2°C
De gemiddelde temperatuur van de bodem over de diepte van het boorgat, waarbij rekening wordt gehouden met temperatuurinvloed van naastgelegen systemen, wordt als volgt berekend:
Tbodem met correctie = T input EED = 12,2 - 4,5 = 7,7°C
Conclusie
Het uiteindelijke resultaat is dat voor dit kavel een gesloten bodemenergiesysteem moet worden toegepast dat bestaat uit één boorgat met een minimale bodemdiepte van 265 m. De regel met betrekking tot het ontwerp is in deze situatie leidend boven de regel met betrekking tot interferentie. Het gevolg is dat dit systeem een kleinere temperatuurdaling bij nabijgelegen systemen veroorzaakt. Dit is een positief effect en gunstig voor het rendement van het eigen systeem en nabij gelegen systemen.
Opgemerkt wordt nog dat het niet is toegestaan om in deze situatie twee boorgaten tot 133 m-mv toe te passen, zie kader hierna.
|
Indien uit de ontwerpberekening met EED blijkt dat bij toepassing van één boorgattot 280 m-mv de minimale temperatuur van de circulatievloeistof lager is dan -3°C, dan zijn per kavel meerdere boorgaten nodig. De einddiepte blijft ongewijzigd omdat deze per kavel wordt bepaald op basis van de maximale jaarlijkse netto warmteonttrekking. Er zijn in deze situatie dus meerdere boorgaten nodig met elk een diepte van 280 m-mv. Het is in deze si- tuatie ook mogelijk om het ontwerp van de woning aan te passen. Zie hiervoor paragraaf 5.4. Het is niet toegestaan bij toepassing van bijvoorbeeld twee boorgaten op het kavel om de netto warmteonttrekking per meter boorgat te verdubbelen. De netto warmteonttrekking geldt per kavel! |
5.3VOORBEELD 2 - KLEINE WONING
Gegevens woning met warmtepomp en gesloten bodemenergiesysteem
Voor ruimte- en tapwaterverwarming en het koelen van een woning wordt een elektrische combiwarmtepomp met een gesloten bodemenergiesysteem toegepast. Uit de SPF-berekening van de installateur blijkt bijvoorbeeld: De warmtevraag van de woning (het bouwwerk) voor ruimte- en tapwaterverwarming bedraagt 4,2 respectievelijk 3,5 MWh per jaar. De gemiddelde SPF van de warmtepomp bedraagt 4,5 voor ruimteverwarming en 3,0 voor tapwaterverwarming. De koudevraag (van het bouwwerk) bedraagt 1,0 MWh per jaar met een SPF van 40 voor de circulatiepomp.
Voor het kavel geldt volgens Bijlage 2 in dit bodemenergieplan een maximale jaarlijkse netto warmteonttrekking per meter aangeboorde bodemdiepte van 17,7 kWh/m en een temperatuurcorrectie van 5,6°C.
Berekening jaarlijkse netto warmteonttrekking aan bodem
Met bovenstaande gegevens kan de hoeveelheid warmte worden berekend die met het gesloten bodemenergiesysteem aan de bodem wordt onttrokken en wordt toegevoerd. Het resultaat van de berekening is de jaarlijkse netto warmteonttrekking in MWh voor het gesloten bodemenergiesysteem, Tabel 5.3. Zie ook de rekensheet in Bijlage 4.
Tabel 5.3 | Berekening jaarlijkse netto warmteonttrekking aan bodem
|
Bouwwerk SPF Berekening Bodemzijdig |
||||
|
Ruimteverwarming |
4,2 MWh |
4,5 |
Q rv x ((SPF – 1)/ SPF)) 4,2 x ((4,5-1) / 4,5) |
3,3 MWh |
|
Tapwaterverwarming |
3,5 MWh |
3,0 |
Q tw x ((SPF– 1) / SPF)) 3,5 x ((3,0– 1) / 3,0) |
2,3 MWh |
|
Warmteonttrekking aan bodem |
5,6 MWh |
|||
|
|
|
|
|
|
|
Koeling |
1,0 MWh |
40 |
Qk + (Qk / SPF) 1,0 + (1,0 /40) |
1,0 MWh |
|
Warmtetoevoer aan bodem |
1,0 MWh |
|||
|
|
|
|
|
|
|
Jaarlijkse nettowarmteonttrekking = Warmteonttrekking aan bodem – Warmtetoevoer aan bodem |
4,6 MWh |
|||
Minimaal benodigde diepte van de boorgaten (regel 9)
Voor dit voorbeeld blijkt uit de in Bijlage 2 van dit bodemenergieplan dat voor het desbetreffende kavel een maximale jaarlijkse netto warmteonttrekking per meter aangeboorde bodemdiepte geldt van 17,7 kWh/m. Op basis van de maximale netto warmteonttrekking per meter, bedraagt de mini- maal aan te boren bodemdiepte ter voorkoming van te grote interferentie naar de omgeving:
260 m-mv (4.600 kWh/17,7 kWh/m).
Ontwerp gesloten bodemenergiesysteem (regels 10 en 11)
Zoals eerder is opgemerkt, is de aangeboorde diepte niet altijd gelijk aan de totaal benodigde boorgatlengte. Het in werking hebben van het gesloten bodemenergiesysteem dient te allen tijde te voldoen aan de algemeen geldende regels, zoals deze zijn omschreven in het Besluit lozen buiten inrichtingen (zie regel 3 in paragraaf 4.1). Eén van deze algemene regels is dat de minimale temperatuur van de circulatievloeistof in de retourbuis van het gesloten bodemenergiesysteem (temperatuur uit de verdamper van de warmtepomp naar de bodemlus) niet lager mag zijn dan -3°C.
Om aan deze regel te voldoen dient per individueel gesloten bodemenergiesysteem een ontwerp voor 50 jaar te worden vervaardigd. Voor de berekening wordt gebruik gemaakt van het programma Earth Energy Designer (EED) (of een gelijkwaardig gevalideerd model zoals in BRL 11001 weergegeven programma's Glhepro, DST en SBM). Bij deze berekening dient rekening te worden gehouden met de “Temperatuurcorrectie door interferentie”, zoals deze voor het betreffende kavel is opgenomen in de tabel in Bijlage 2 in dit bodemenergieplan. Deze temperatuurdaling dient in mindering te worden gebracht op de natuurlijke gemiddelde bodemtemperatuur.
De resultaten van de berekeningen met EED laten zien dat met één boorgat tot ongeveer 160 m diepte kan worden volstaan. Echter de minimale aan te boren diepte op basis van interferentie bedraagt 260 m, waardoor deze boordiepte als ontwerpdiepte dient te worden aangehouden.
De voor dit voorbeeld uitgevoerde Earth Energy Designer berekening laat zien dat de minimale gemiddelde temperatuur van de circulatievloeistof bij één boorgat tot 260 m na 50 jaar daalt tot +2,1°C. Met een temperatuurverschil over de verdamper van de warmtepomp van 4°C, resulteert dit in een minimale temperatuur van de circulatievloeistof van +0,1°C. Deze is als volgt berekend:
Tgem,circulatievloeistof – (∆Tverdamper / 2) = +2,1°C – (4,0 / 2) = +0,1°C
De minimale temperatuur van de circulatievloeistof is hoger dan -3°C, waardoor wordt voldaan aan de algemene regel van de minimale temperatuur van de circulatievloeistof van -3°C.
De in EED te hanteren bodemtemperatuur (Tbodem met correctie) bedraagt 6,5°C. Deze is als volgt berekend:
Tbodem natuurlijk = 0,0063 * 260 + 10,5°C = 12,1°C
De gemiddelde temperatuur van de bodem over de diepte van het boorgat, waarbij rekening wordt gehouden met temperatuurinvloed van naastgelegen systemen, wordt als volgt berekend:
Tbodem met correctie = T input EED = 12,1 - 5,6 = 6,5°C
Conclusie
Het uiteindelijke resultaat is dat voor dit kavel een gesloten bodemenergiesysteem moet worden toegepast dat bestaat uit één boorgat met een bodemdiepte van 260 m. In deze situatie is de regel met betrekking van interferentie dus leidend ten opzichte van de ontwerp regel. Het gevolg is dat dit systeem een ongewijzigd thermisch effect heeft naar de systemen in de omgeving. De iets ho- gere temperatuur van circulatievloeistof in de winter heeft een positief effect op het rendement van het eigen systeem. Opgemerkt wordt nog dat het niet is toegestaan om in deze situatie twee boorgaten tot 130 m-mv toe te passen.
5.4WARMTEVRAAG WONING GROTER DAN MAXIMALE NETTO JAARLIJKSE WARMTELEVERING BODEM
Indien een relatief grote woning wordt gerealiseerd op een relatief klein kavel, is de kans aanwezig dat de benodigde jaarlijkse netto warmteonttrekking van de woning groter is dan de maximale jaarlijkse netto warmtelevering van de bodem. In deze situatie dient het ontwerp van het gesloten bodemenergiesysteem te worden aangepast. Het is niet toegestaan bij toepassing van twee boorga- ten op het kavel om de netto warmteonttrekking per meter boorgat per kavel te verdubbelen. De netto warmteonttrekking geldt per kavel.
De wijzigingen die hierbij kunnen worden doorgevoerd zijn bijvoorbeeld:
- •
Het verkleinen van de warmtevraag voor ruimte- en/of tapwaterverwarming door bijvoorbeeld het toepassen van betere isolatie en/of het toepassen van een zonneboiler.
- •
Het vergroten van de koudevraag of extra warmte in de bodem laden, door andere instellingen van de warmtepomp (al koelen bij lagere buitentemperaturen) en/of het toepassen van zonne- collectoren die in de zomer warmte van de zon in de bodem laden.
Het verkleinen van de warmtevraag en/of het vergroten van de koudevraag/regeneratie leiden tot een kleinere jaarlijkse netto warmteonttrekking aan de bodem. De jaarlijkse netto warmteonttrekking dient dusdanig te worden verlaagd, totdat deze gelijk is aan de maximale jaarlijkse netto warmtelevering van de bodem.
Bijlage 1 Figuur met thermische beïnvloeding
Bijlage 2 Warmteonttrekking en temperaturen
De Laakse Tuinen - Fase 1 12 mei 2022
|
Nummer |
Maximale jaarlijkse netto warmteonttrekking per meter bodemdiepte |
Temperatuurcorrectie door interferentie |
|
|
kWh/m |
°C |
|
1 |
74,7 |
3,3 |
|
2 |
56,4 |
3,1 |
|
3 |
60,2 |
2,8 |
|
4 |
67,0 |
2,7 |
|
5 |
76,0 |
2,6 |
|
6 |
90,8 |
2,2 |
|
7 |
37,7 |
1,7 |
|
8 |
34,4 |
2,0 |
|
9 |
32,9 |
2,3 |
|
10 |
31,3 |
2,5 |
|
11 |
31,7 |
2,7 |
|
12 |
50,3 |
4,5 |
|
13 |
51,0 |
4,7 |
|
14 |
51,0 |
4,9 |
|
15 |
63,8 |
5,0 |
|
16 |
51,0 |
5,1 |
|
17 |
51,0 |
5,1 |
|
18 |
63,8 |
5,1 |
|
19 |
63,8 |
5,1 |
|
20 |
51,0 |
5,2 |
|
21 |
51,0 |
5,2 |
|
22 |
63,8 |
5,1 |
|
23 |
63,8 |
5,1 |
|
24 |
63,8 |
5,1 |
|
25 |
51,0 |
5,1 |
|
26 |
60,7 |
4,9 |
|
27 |
23,0 |
4,6 |
|
28 |
15,5 |
4,7 |
|
29 |
16,0 |
4,7 |
|
30 |
16,5 |
4,7 |
|
31 |
27,6 |
4,6 |
|
32 |
26,9 |
4,5 |
|
33 |
16,5 |
4,6 |
|
34 |
16,5 |
4,6 |
|
35 |
31,0 |
4,3 |
|
36 |
31,0 |
4,3 |
|
37 |
16,2 |
4,4 |
|
38 |
16,4 |
4,4 |
|
39 |
27,9 |
4,3 |
|
40 |
23,9 |
4,2 |
|
41 |
15,5 |
4,2 |
|
42 |
16,2 |
4,2 |
|
43 |
29,8 |
3,9 |
|
44 |
43,7 |
4,5 |
|
45 |
38,2 |
4,7 |
|
46 |
35,8 |
4,8 |
|
47 |
33,1 |
4,9 |
|
48 |
31,4 |
5,1 |
|
49 |
30,5 |
5,2 |
|
50 |
30,6 |
5,3 |
|
51 |
31,6 |
5,4 |
|
52 |
33,5 |
5,4 |
|
53 |
43,5 |
5,3 |
|
54 |
31,2 |
5,2 |
|
55 |
21,0 |
5,4 |
|
56 |
21,1 |
5,4 |
|
57 |
21,1 |
5,5 |
|
58 |
21,2 |
5,5 |
|
59 |
26,3 |
5,6 |
|
60 |
22,9 |
5,7 |
|
61 |
21,9 |
5,7 |
|
62 |
21,2 |
5,7 |
|
63 |
20,9 |
5,6 |
|
64 |
19,6 |
5,6 |
|
65 |
19,4 |
5,6 |
|
66 |
19,4 |
5,6 |
|
67 |
20,4 |
5,6 |
|
68 |
20,6 |
5,6 |
|
69 |
17,6 |
5,6 |
|
70 |
17,9 |
5,5 |
|
71 |
18,4 |
5,5 |
|
72 |
19,2 |
5,4 |
|
73 |
24,2 |
5,3 |
|
74 |
26,6 |
5,1 |
|
75 |
18,7 |
5,0 |
|
76 |
18,7 |
4,9 |
|
77 |
32,7 |
4,7 |
|
78 |
47,4 |
4,9 |
|
79 |
30,6 |
4,9 |
|
80 |
29,5 |
4,9 |
|
81 |
29,9 |
4,8 |
|
82 |
30,1 |
4,6 |
|
83 |
29,9 |
4,5 |
|
84 |
29,3 |
4,3 |
|
85 |
33,0 |
4,1 |
|
86 |
57,0 |
4,3 |
|
87 |
54,0 |
4,6 |
|
88 |
51,3 |
4,8 |
|
89 |
59,4 |
4,9 |
|
90 |
89,2 |
5,0 |
|
91 |
63,0 |
5,0 |
|
92 |
73,5 |
4,9 |
|
93 |
49,3 |
4,8 |
|
94 |
55,8 |
4,5 |
|
95 |
57,3 |
4,2 |
|
96 |
32,8 |
4,9 |
|
97 |
18,3 |
5,1 |
|
98 |
18,3 |
5,1 |
|
99 |
18,3 |
5,0 |
|
100 |
18,3 |
5,0 |
|
101 |
17,4 |
4,9 |
|
102 |
19,0 |
4,8 |
|
103 |
18,1 |
4,6 |
|
104 |
17,1 |
4,5 |
|
105 |
36,6 |
3,9 |
|
106 |
33,6 |
4,2 |
|
107 |
33,6 |
4,1 |
|
108 |
33,6 |
4,1 |
|
109 |
33,6 |
4,0 |
|
110 |
33,6 |
3,9 |
|
111 |
33,6 |
3,9 |
|
112 |
33,6 |
3,8 |
|
113 |
33,6 |
3,7 |
|
114 |
33,6 |
3,6 |
|
115 |
37,9 |
3,3 |
|
116 |
29,9 |
2,9 |
|
117 |
17,0 |
3,3 |
|
118 |
17,0 |
3,5 |
|
119 |
17,0 |
3,6 |
|
120 |
17,0 |
3,7 |
|
121 |
17,0 |
3,8 |
|
122 |
17,0 |
3,9 |
|
123 |
18,3 |
4,1 |
|
124 |
17,3 |
4,1 |
|
125 |
34,5 |
3,9 |
|
126 |
21,6 |
4,8 |
|
127 |
15,6 |
4,9 |
|
128 |
15,6 |
4,9 |
|
129 |
15,6 |
4,8 |
|
130 |
15,6 |
4,8 |
|
131 |
15,6 |
4,7 |
|
132 |
15,6 |
4,7 |
|
133 |
15,6 |
4,6 |
|
134 |
15,6 |
4,5 |
|
135 |
15,6 |
4,3 |
|
136 |
23,2 |
4,1 |
|
137 |
19,1 |
4,5 |
|
138 |
17,5 |
4,9 |
|
139 |
16,1 |
4,9 |
|
140 |
19,4 |
5,0 |
|
141 |
31,5 |
4,8 |
|
142 |
24,0 |
5,6 |
|
143 |
18,8 |
5,6 |
|
144 |
18,1 |
5,1 |
|
145 |
20,1 |
5,1 |
|
146 |
15,3 |
5,0 |
|
147 |
15,3 |
5,3 |
|
148 |
15,1 |
5,1 |
|
149 |
15,0 |
5,2 |
|
150 |
14,8 |
5,3 |
|
151 |
14,7 |
5,3 |
|
152 |
17,1 |
4,9 |
|
153 |
17,0 |
5,0 |
|
154 |
18,1 |
5,0 |
|
155 |
18,7 |
5,0 |
|
156 |
18,8 |
5,0 |
|
157 |
19,4 |
4,9 |
|
158 |
46,0 |
4,7 |
|
159 |
17,7 |
5,1 |
|
160 |
17,8 |
5,2 |
|
161 |
18,2 |
5,1 |
|
162 |
18,2 |
5,0 |
|
163 |
22,8 |
4,9 |
|
164 |
17,1 |
5,0 |
|
165 |
16,8 |
5,2 |
|
166 |
16,9 |
5,2 |
|
167 |
25,7 |
5,1 |
|
168 |
28,0 |
4,6 |
|
169 |
28,3 |
4,6 |
|
170 |
29,9 |
4,7 |
|
171 |
42,9 |
5,1 |
|
172 |
30,2 |
5,0 |
|
173 |
15,3 |
5,6 |
|
174 |
15,1 |
5,7 |
|
175 |
15,0 |
5,7 |
|
176 |
14,8 |
5,6 |
|
177 |
14,7 |
5,6 |
|
178 |
15,2 |
5,4 |
|
179 |
26,2 |
5,3 |
|
180 |
17,6 |
5,5 |
|
181 |
17,7 |
5,6 |
|
182 |
17,9 |
5,7 |
|
183 |
17,3 |
5,7 |
|
184 |
22,4 |
5,5 |
|
185 |
19,8 |
5,5 |
|
186 |
24,1 |
5,6 |
|
187 |
19,7 |
5,5 |
|
188 |
41,7 |
5,6 |
|
189 |
20,1 |
5,9 |
|
190 |
20,1 |
5,9 |
|
191 |
19,0 |
5,8 |
|
192 |
28,1 |
5,8 |
|
193 |
24,5 |
5,9 |
|
194 |
22,6 |
5,8 |
|
195 |
19,4 |
5,7 |
|
196 |
34,8 |
5,3 |
|
197 |
34,3 |
5,3 |
|
198 |
44,8 |
5,4 |
|
199 |
37,7 |
5,4 |
|
200 |
33,0 |
5,4 |
|
201 |
46,1 |
5,2 |
|
202 |
18,2 |
4,4 |
|
203 |
19,0 |
4,3 |
|
204 |
41,9 |
3,9 |
|
205 |
18,1 |
4,1 |
|
206 |
16,3 |
4,3 |
|
207 |
16,4 |
4,3 |
|
208 |
16,6 |
4,3 |
|
209 |
16,8 |
4,4 |
|
210 |
16,1 |
4,4 |
|
211 |
17,2 |
4,4 |
|
212 |
17,5 |
4,5 |
|
213 |
29,2 |
4,3 |
|
214 |
19,9 |
4,6 |
|
215 |
18,2 |
4,4 |
|
216 |
18,2 |
4,4 |
|
217 |
15,0 |
4,9 |
|
218 |
19,1 |
4,9 |
|
219 |
20,3 |
4,9 |
|
220 |
30,4 |
4,7 |
|
221 |
17,1 |
4,8 |
|
222 |
17,1 |
4,8 |
|
223 |
17,1 |
4,7 |
|
224 |
17,1 |
4,7 |
|
225 |
17,1 |
4,6 |
|
226 |
14,9 |
4,6 |
|
227 |
19,1 |
4,7 |
|
228 |
20,2 |
4,6 |
|
229 |
31,2 |
4,4 |
|
230 |
20,8 |
4,6 |
|
231 |
32,5 |
4,7 |
|
232 |
21,0 |
5,0 |
|
233 |
19,9 |
4,9 |
|
234 |
15,7 |
5,0 |
|
235 |
17,5 |
5,1 |
|
236 |
18,3 |
5,1 |
|
237 |
18,3 |
5,2 |
|
238 |
18,3 |
5,2 |
|
239 |
18,3 |
5,1 |
|
240 |
16,1 |
5,1 |
|
241 |
18,5 |
5,0 |
|
242 |
19,4 |
5,0 |
|
243 |
32,1 |
4,8 |
|
244 |
18,7 |
5,0 |
|
245 |
18,1 |
5,0 |
|
246 |
20,6 |
5,1 |
|
247 |
27,7 |
5,1 |
|
248 |
22,6 |
5,3 |
|
249 |
22,6 |
5,2 |
|
250 |
22,6 |
5,2 |
|
251 |
23,4 |
5,1 |
|
252 |
26,0 |
5,1 |
|
253 |
22,8 |
5,0 |
|
254 |
18,2 |
4,4 |
|
255 |
17,1 |
5,2 |
|
256 |
16,9 |
5,1 |
|
257 |
17,8 |
4,5 |
|
258 |
25,1 |
4,5 |
|
259 |
24,8 |
4,6 |
|
260 |
29,4 |
5,1 |
|
261 |
20,4 |
5,2 |
|
262 |
25,4 |
5,0 |
|
263 |
17,4 |
4,8 |
|
264 |
25,5 |
4,9 |
|
265 |
19,0 |
4,3 |
|
266 |
210,0 |
4,7 |
|
267 |
210,0 |
4,6 |
|
268 |
178,5 |
4,8 |
De Laakse Tuinen (excl. fase 1) en Velden 1F 12 mei 2022
|
Nummer |
Maximale jaarlijkse netto warmteonttrekking per meter bodemdiepte |
Temperatuurcorrectie door interferentie |
|
|
kWh/m |
°C |
|
269 |
34,5 |
4,6 |
|
270 |
18,8 |
4,8 |
|
271 |
18,8 |
4,8 |
|
272 |
18,8 |
4,7 |
|
273 |
18,8 |
4,7 |
|
274 |
19,8 |
4,6 |
|
275 |
20,9 |
4,6 |
|
276 |
20,9 |
4,5 |
|
277 |
20,9 |
4,5 |
|
278 |
21,4 |
4,4 |
|
279 |
21,4 |
4,5 |
|
280 |
20,9 |
4,7 |
|
281 |
19,8 |
4,7 |
|
282 |
19,8 |
4,8 |
|
283 |
19,2 |
4,8 |
|
284 |
18,3 |
4,8 |
|
285 |
18,3 |
4,8 |
|
286 |
18,3 |
4,8 |
|
287 |
18,1 |
4,7 |
|
288 |
20,5 |
4,2 |
|
289 |
20,5 |
4,3 |
|
290 |
20,5 |
4,2 |
|
291 |
20,5 |
4,2 |
|
292 |
20,5 |
4,2 |
|
293 |
20,5 |
4,2 |
|
294 |
20,5 |
4,1 |
|
295 |
37,9 |
3,8 |
|
296 |
33,3 |
4,0 |
|
297 |
31,3 |
4,1 |
|
298 |
32,0 |
4,2 |
|
299 |
31,3 |
4,3 |
|
300 |
32,0 |
4,3 |
|
301 |
33,2 |
4,3 |
|
302 |
29,6 |
4,3 |
|
303 |
17,4 |
4,6 |
|
304 |
17,7 |
4,7 |
|
305 |
18,1 |
4,8 |
|
306 |
18,3 |
4,8 |
|
307 |
18,6 |
4,7 |
|
308 |
18,8 |
4,7 |
|
309 |
19,3 |
4,5 |
|
310 |
28,1 |
4,4 |
|
311 |
14,8 |
4,5 |
|
312 |
14,3 |
4,6 |
|
313 |
29,3 |
4,4 |
|
314 |
16,4 |
4,7 |
|
315 |
16,8 |
4,7 |
|
316 |
17,0 |
4,7 |
|
317 |
11,6 |
4,9 |
|
318 |
11,0 |
4,9 |
|
319 |
10,9 |
4,8 |
|
320 |
11,4 |
4,8 |
|
321 |
16,6 |
4,7 |
|
322 |
15,9 |
4,7 |
|
323 |
16,2 |
4,7 |
|
324 |
16,2 |
4,6 |
|
325 |
18,0 |
4,6 |
|
326 |
15,9 |
4,5 |
|
327 |
15,9 |
4,4 |
|
328 |
25,0 |
4,3 |
|
329 |
15,1 |
4,6 |
|
330 |
14,2 |
4,7 |
|
331 |
11,1 |
4,6 |
|
332 |
10,8 |
4,6 |
|
333 |
10,3 |
4,7 |
|
334 |
10,1 |
4,7 |
|
335 |
12,2 |
4,7 |
|
336 |
15,4 |
4,7 |
|
337 |
15,9 |
4,8 |
|
338 |
34,1 |
4,5 |
|
339 |
27,8 |
4,7 |
|
340 |
30,6 |
4,6 |
|
341 |
30,5 |
4,7 |
|
342 |
32,2 |
4,7 |
|
343 |
32,6 |
4,8 |
|
344 |
31,7 |
4,8 |
|
345 |
31,9 |
4,7 |
|
346 |
42,9 |
4,5 |
|
347 |
16,5 |
4,5 |
|
348 |
13,9 |
4,6 |
|
349 |
8,5 |
4,4 |
|
350 |
38,2 |
4,5 |
|
351 |
34,0 |
4,1 |
|
352 |
10,7 |
4,0 |
|
353 |
27,6 |
4,1 |
|
354 |
11,3 |
4,0 |
|
355 |
14,4 |
4,1 |
|
356 |
14,9 |
4,1 |
|
357 |
17,9 |
4,2 |
|
358 |
94,4 |
4,3 |
|
359 |
11,8 |
4,2 |
|
360 |
8,0 |
4,3 |
|
361 |
7,5 |
4,4 |
|
362 |
7,8 |
4,4 |
|
363 |
7,9 |
4,4 |
|
364 |
33,3 |
4,5 |
|
365 |
33,6 |
4,4 |
|
366 |
34,6 |
4,4 |
|
367 |
28,5 |
4,2 |
|
368 |
14,8 |
4,2 |
|
369 |
14,2 |
4,2 |
|
370 |
14,1 |
4,1 |
|
371 |
11,0 |
4,2 |
|
372 |
10,1 |
4,2 |
|
373 |
10,0 |
4,1 |
|
374 |
64,3 |
4,1 |
|
375 |
62,7 |
3,7 |
|
376 |
62,2 |
1,7 |
|
377 |
83,7 |
2,0 |
|
378 |
73,6 |
1,9 |
|
379 |
68,2 |
2,2 |
|
380 |
67,7 |
2,9 |
|
381 |
63,3 |
3,3 |
|
382 |
71,1 |
4,4 |
|
383 |
65,9 |
2,3 |
|
384 |
11,5 |
3,5 |
|
385 |
55,1 |
3,8 |
|
386 |
55,9 |
3,1 |
|
387 |
47,0 |
4,2 |
|
388 |
41,6 |
4,4 |
|
389 |
61,2 |
3,2 |
|
390 |
47,3 |
2,8 |
|
391 |
24,4 |
3,3 |
|
392 |
14,6 |
3,4 |
|
393 |
15,2 |
3,5 |
|
394 |
11,2 |
3,6 |
|
395 |
10,5 |
3,6 |
|
396 |
10,6 |
3,6 |
|
397 |
12,7 |
3,6 |
|
398 |
15,1 |
3,7 |
|
399 |
15,6 |
3,9 |
|
400 |
15,4 |
4,0 |
|
401 |
33,7 |
3,9 |
|
402 |
63,5 |
3,2 |
|
403 |
63,1 |
2,6 |
|
404 |
63,3 |
2,3 |
|
405 |
49,8 |
2,3 |
|
406 |
18,6 |
4,9 |
|
407 |
17,4 |
4,7 |
|
408 |
28,1 |
4,5 |
|
409 |
16,0 |
4,7 |
|
410 |
34,3 |
4,7 |
|
411 |
19,6 |
5,0 |
|
412 |
18,4 |
5,0 |
|
413 |
19,1 |
4,9 |
|
414 |
12,5 |
5,1 |
|
415 |
11,9 |
5,1 |
|
416 |
11,7 |
5,1 |
|
417 |
12,4 |
5,1 |
|
418 |
16,5 |
5,0 |
|
419 |
16,0 |
5,0 |
|
420 |
15,9 |
5,0 |
|
421 |
16,4 |
5,0 |
|
422 |
18,3 |
5,0 |
|
423 |
17,6 |
5,0 |
|
424 |
17,6 |
5,0 |
|
425 |
27,1 |
4,9 |
|
426 |
17,3 |
5,0 |
|
427 |
16,1 |
4,9 |
|
428 |
25,2 |
4,7 |
|
429 |
25,8 |
4,4 |
|
430 |
16,8 |
4,7 |
|
431 |
15,6 |
4,7 |
|
432 |
16,6 |
4,8 |
|
433 |
15,5 |
4,9 |
|
434 |
31,0 |
4,8 |
|
435 |
19,8 |
4,9 |
|
436 |
10,8 |
5,1 |
|
437 |
10,1 |
5,2 |
|
438 |
10,1 |
5,2 |
|
439 |
10,1 |
5,2 |
|
440 |
10,6 |
5,2 |
|
441 |
14,3 |
5,1 |
|
442 |
15,9 |
5,1 |
|
443 |
16,6 |
5,1 |
|
444 |
12,0 |
5,1 |
|
445 |
11,6 |
5,1 |
|
446 |
12,2 |
5,1 |
|
447 |
17,0 |
4,9 |
|
448 |
14,9 |
4,9 |
|
449 |
15,5 |
4,8 |
|
450 |
15,2 |
4,8 |
|
451 |
15,2 |
4,7 |
|
452 |
25,3 |
4,4 |
|
453 |
14,7 |
4,6 |
|
454 |
15,4 |
4,7 |
|
455 |
14,7 |
4,8 |
|
456 |
13,7 |
4,8 |
|
457 |
291,5 |
3,1 |
|
458 |
39,6 |
4,3 |
|
459 |
19,5 |
5,0 |
|
460 |
17,3 |
5,1 |
|
461 |
14,5 |
4,2 |
|
462 |
13,0 |
4,4 |
|
463 |
13,0 |
4,5 |
|
464 |
15,1 |
4,5 |
|
465 |
14,0 |
4,6 |
|
466 |
22,0 |
4,4 |
|
467 |
19,5 |
4,2 |
|
468 |
18,9 |
4,3 |
|
469 |
18,9 |
4,3 |
|
470 |
18,3 |
4,4 |
|
471 |
18,6 |
4,4 |
|
472 |
20,7 |
4,5 |
|
473 |
18,4 |
4,6 |
|
474 |
17,6 |
4,7 |
|
475 |
17,9 |
4,8 |
|
476 |
17,5 |
4,9 |
|
477 |
19,6 |
4,9 |
|
478 |
18,7 |
5,0 |
|
479 |
35,6 |
4,9 |
|
480 |
18,0 |
5,1 |
|
481 |
17,6 |
5,1 |
|
482 |
13,6 |
5,1 |
|
483 |
14,5 |
5,0 |
|
484 |
12,4 |
5,2 |
|
485 |
12,6 |
5,2 |
|
486 |
12,7 |
5,1 |
|
487 |
18,2 |
5,0 |
|
488 |
16,5 |
4,8 |
|
489 |
38,5 |
4,4 |
|
490 |
20,6 |
4,7 |
|
491 |
17,5 |
4,8 |
|
492 |
18,4 |
4,7 |
|
493 |
13,5 |
4,8 |
|
494 |
13,1 |
4,8 |
|
495 |
12,8 |
4,7 |
|
496 |
15,0 |
4,4 |
|
497 |
73,2 |
3,6 |
|
498 |
36,0 |
4,9 |
|
499 |
77,6 |
4,7 |
|
500 |
65,1 |
4,7 |
|
501 |
56,1 |
4,3 |
|
502 |
33,8 |
5,1 |
|
503 |
27,5 |
5,0 |
|
504 |
15,9 |
5,2 |
|
505 |
16,3 |
5,3 |
|
506 |
16,3 |
5,3 |
|
507 |
50,2 |
4,6 |
|
508 |
54,7 |
3,8 |
|
509 |
26,7 |
5,2 |
|
510 |
15,8 |
5,4 |
|
511 |
15,4 |
5,4 |
|
512 |
13,3 |
5,4 |
|
513 |
13,4 |
5,4 |
|
514 |
15,8 |
5,3 |
|
515 |
36,7 |
1,3 |
|
516 |
29,2 |
1,2 |
|
517 |
279,5 |
1,7 |
|
518 |
27,6 |
3,9 |
|
519 |
20,4 |
1,1 |
|
520 |
18,7 |
1,9 |
|
521 |
15,4 |
2,2 |
|
522 |
16,0 |
2,4 |
|
523 |
16,7 |
2,6 |
|
524 |
17,2 |
2,8 |
|
525 |
25,5 |
2,9 |
|
526 |
26,6 |
3,2 |
|
527 |
19,7 |
3,5 |
|
528 |
20,3 |
3,7 |
|
529 |
20,7 |
3,9 |
|
530 |
31,5 |
4,1 |
|
531 |
16,4 |
4,4 |
|
532 |
16,7 |
4,5 |
|
533 |
16,9 |
4,5 |
|
534 |
17,4 |
4,4 |
|
535 |
21,2 |
4,2 |
|
536 |
25,2 |
4,8 |
|
537 |
20,5 |
4,8 |
|
538 |
17,4 |
5,0 |
|
539 |
15,4 |
5,0 |
|
540 |
16,8 |
5,0 |
|
541 |
16,0 |
4,9 |
|
542 |
28,9 |
4,5 |
|
543 |
20,7 |
4,2 |
|
544 |
15,5 |
4,1 |
|
545 |
15,5 |
3,9 |
|
546 |
15,5 |
3,7 |
|
547 |
21,0 |
3,4 |
|
548 |
21,0 |
2,9 |
|
549 |
15,5 |
2,9 |
|
550 |
15,5 |
2,7 |
|
551 |
25,6 |
2,3 |
|
552 |
24,2 |
1,6 |
|
553 |
33,4 |
1,8 |
|
554 |
38,1 |
1,8 |
|
555 |
32,5 |
1,9 |
|
556 |
25,6 |
2,6 |
|
557 |
15,5 |
2,9 |
|
558 |
2,9 |
3,1 |
|
559 |
21,0 |
3,1 |
|
560 |
21,0 |
3,7 |
|
561 |
15,5 |
4,0 |
|
562 |
15,5 |
4,2 |
|
563 |
19,9 |
4,4 |
|
564 |
76,5 |
1,9 |
|
565 |
60,9 |
4,7 |
|
566 |
49,1 |
3,3 |
|
567 |
52,2 |
1,8 |
|
568 |
49,1 |
2,6 |
|
569 |
49,1 |
4,0 |
|
570 |
59,8 |
4,5 |
|
571 |
60,3 |
3,9 |
|
572 |
60,3 |
3,7 |
|
573 |
62,0 |
3,3 |
|
574 |
65,0 |
2,6 |
|
575 |
79,7 |
0,5 |
|
576 |
53,3 |
2,9 |
|
577 |
54,5 |
2,8 |
|
578 |
61,8 |
2,7 |
|
579 |
73,9 |
2,4 |
|
580 |
79,1 |
2,1 |
|
581 |
110,8 |
1,5 |
|
582 |
136,6 |
0,5 |
|
583 |
97,8 |
0,4 |
|
584 |
86,8 |
0,6 |
|
585 |
67,3 |
0,5 |
|
586 |
63,5 |
0,5 |
|
587 |
57,9 |
0,6 |
|
588 |
54,1 |
0,6 |
|
589 |
30,4 |
4,6 |
|
590 |
30,4 |
4,3 |
|
591 |
38,4 |
3,9 |
|
592 |
38,6 |
3,3 |
|
593 |
13,8 |
3,8 |
|
594 |
13,6 |
3,9 |
|
595 |
13,6 |
4,0 |
|
596 |
13,5 |
4,1 |
|
597 |
13,4 |
4,1 |
|
598 |
13,7 |
4,2 |
|
599 |
27,8 |
4,1 |
|
600 |
23,8 |
4,2 |
|
601 |
15,9 |
4,4 |
|
602 |
14,4 |
4,6 |
|
603 |
15,1 |
4,6 |
|
604 |
14,3 |
4,7 |
|
605 |
14,1 |
4,8 |
|
606 |
37,3 |
4,7 |
|
607 |
34,1 |
4,8 |
|
608 |
33,5 |
4,8 |
|
609 |
31,7 |
4,9 |
|
610 |
20,7 |
5,1 |
|
611 |
35,5 |
5,1 |
|
612 |
38,2 |
5,0 |
|
613 |
35,5 |
5,0 |
|
614 |
30,2 |
4,8 |
|
615 |
27,3 |
4,9 |
|
616 |
17,0 |
4,7 |
|
617 |
15,4 |
4,7 |
|
618 |
15,4 |
4,5 |
|
619 |
15,4 |
4,3 |
|
620 |
15,8 |
4,1 |
|
621 |
27,8 |
3,6 |
|
622 |
38,7 |
2,3 |
|
623 |
17,0 |
2,9 |
|
624 |
14,8 |
3,0 |
|
625 |
14,7 |
3,0 |
|
626 |
14,7 |
3,1 |
|
627 |
22,6 |
2,9 |
|
628 |
22,6 |
3,0 |
|
629 |
14,7 |
3,3 |
|
630 |
14,7 |
3,4 |
|
631 |
14,7 |
3,5 |
|
632 |
16,0 |
3,5 |
|
633 |
30,3 |
3,3 |
|
634 |
24,8 |
3,8 |
|
635 |
16,3 |
4,1 |
|
636 |
16,6 |
4,3 |
|
637 |
16,7 |
4,5 |
|
638 |
16,7 |
4,6 |
|
639 |
16,7 |
4,8 |
|
640 |
16,7 |
4,9 |
|
641 |
16,7 |
5,1 |
|
642 |
29,6 |
5,1 |
|
643 |
38,9 |
5,3 |
|
644 |
36,6 |
5,3 |
|
645 |
33,4 |
4,9 |
|
646 |
22,7 |
5,3 |
|
647 |
32,2 |
5,3 |
|
648 |
32,0 |
5,3 |
|
649 |
17,2 |
5,4 |
|
650 |
15,4 |
5,3 |
|
651 |
15,4 |
5,2 |
|
652 |
38,1 |
4,8 |
|
653 |
30,2 |
5,2 |
|
654 |
35,2 |
4,9 |
|
655 |
41,7 |
4,7 |
|
656 |
41,7 |
4,4 |
|
657 |
41,7 |
4,0 |
|
658 |
41,7 |
3,5 |
|
659 |
36,7 |
3,0 |
|
660 |
37,8 |
2,2 |
|
661 |
16,1 |
2,4 |
|
662 |
18,1 |
2,3 |
|
663 |
21,2 |
5,3 |
|
664 |
26,4 |
5,2 |
|
665 |
18,3 |
5,4 |
|
666 |
18,7 |
5,4 |
|
667 |
16,9 |
2,1 |
|
668 |
14,7 |
2,1 |
|
669 |
14,7 |
2,0 |
|
670 |
14,7 |
1,9 |
|
671 |
17,2 |
1,8 |
|
672 |
36,9 |
1,3 |
|
673 |
28,3 |
2,3 |
|
674 |
20,7 |
2,8 |
|
675 |
20,3 |
3,1 |
|
676 |
29,8 |
3,3 |
|
677 |
39,7 |
3,7 |
|
678 |
38,0 |
4,1 |
|
679 |
37,9 |
4,4 |
|
680 |
37,9 |
4,6 |
|
681 |
33,9 |
4,8 |
|
682 |
27,1 |
5,0 |
|
683 |
16,7 |
5,2 |
|
684 |
16,3 |
5,3 |
|
685 |
16,5 |
5,4 |
|
686 |
593,5 |
3,4 |
|
687 |
487,6 |
2,5 |
|
688 |
30,6 |
4,1 |
|
689 |
30,6 |
4,4 |
|
690 |
30,6 |
4,6 |
|
691 |
30,6 |
4,8 |
|
692 |
30,5 |
4,9 |
|
693 |
30,7 |
4,9 |
|
694 |
76,7 |
4,7 |
|
695 |
30,5 |
3,7 |
|
696 |
31,8 |
0,9 |
|
697 |
37,9 |
0,5 |
|
698 |
35,8 |
0,8 |
|
699 |
41,5 |
0,1 |
|
700 |
48,2 |
4,8 |
|
701 |
55,7 |
4,4 |
|
702 |
62,2 |
4,3 |
|
703 |
62,2 |
4,0 |
|
704 |
62,2 |
3,7 |
|
705 |
62,2 |
3,4 |
|
706 |
62,2 |
3,0 |
|
707 |
67,5 |
2,6 |
|
708 |
66,4 |
2,0 |
|
709 |
31,8 |
1,1 |
|
710 |
17,1 |
1,2 |
|
711 |
16,2 |
1,1 |
|
712 |
27,0 |
1,0 |
|
713 |
37,1 |
0,4 |
|
714 |
95,8 |
3,8 |
|
715 |
58,0 |
3,6 |
|
716 |
58,0 |
3,3 |
|
717 |
58,1 |
2,9 |
|
718 |
58,4 |
2,5 |
|
719 |
70,9 |
2,0 |
|
720 |
91,5 |
1,6 |
|
721 |
328,1 |
0,1 |
|
722 |
28,8 |
3,7 |
|
723 |
16,6 |
3,8 |
|
724 |
16,6 |
3,7 |
|
725 |
13,9 |
3,7 |
|
726 |
13,9 |
3,6 |
|
727 |
13,9 |
3,6 |
|
728 |
13,9 |
3,4 |
|
729 |
21,0 |
3,2 |
|
730 |
26,1 |
3,1 |
|
731 |
15,6 |
3,2 |
|
732 |
15,8 |
3,1 |
|
733 |
16,1 |
3,0 |
|
734 |
17,2 |
2,7 |
|
735 |
17,9 |
2,6 |
|
736 |
18,9 |
2,4 |
|
737 |
19,3 |
2,2 |
|
738 |
19,6 |
1,9 |
|
739 |
44,3 |
1,4 |
|
740 |
27,5 |
2,8 |
|
741 |
18,6 |
2,9 |
|
742 |
18,8 |
2,8 |
|
743 |
19,4 |
2,7 |
|
744 |
19,1 |
2,5 |
|
745 |
18,8 |
2,4 |
|
746 |
18,0 |
2,1 |
|
747 |
37,3 |
1,6 |
|
748 |
30,3 |
0,9 |
|
749 |
29,2 |
0,4 |
|
750 |
14,3 |
0,7 |
|
751 |
14,4 |
0,7 |
|
752 |
15,2 |
0,7 |
|
753 |
15,3 |
0,7 |
|
754 |
15,3 |
0,7 |
|
755 |
15,3 |
0,7 |
|
756 |
14,5 |
0,7 |
|
757 |
14,5 |
0,6 |
|
758 |
30,8 |
0,5 |
|
759 |
42,8 |
1,1 |
|
760 |
40,6 |
1,1 |
|
761 |
27,0 |
0,5 |
|
762 |
14,7 |
0,7 |
|
763 |
14,7 |
0,7 |
|
764 |
15,6 |
0,7 |
|
765 |
15,6 |
0,7 |
|
766 |
15,7 |
0,7 |
|
767 |
15,7 |
0,7 |
|
768 |
15,7 |
0,7 |
|
769 |
15,8 |
0,6 |
|
770 |
13,7 |
0,7 |
|
771 |
13,7 |
0,6 |
|
772 |
21,2 |
0,5 |
|
773 |
44,3 |
1,3 |
|
774 |
38,0 |
1,8 |
|
775 |
32,8 |
2,2 |
|
776 |
28,2 |
2,5 |
|
777 |
52,7 |
2,9 |
|
778 |
18,7 |
3,1 |
|
779 |
18,6 |
3,1 |
|
780 |
29,6 |
2,9 |
|
781 |
37,2 |
2,1 |
|
782 |
36,3 |
1,8 |
|
783 |
51,6 |
1,1 |
|
784 |
52,4 |
1,3 |
|
785 |
42,3 |
1,9 |
|
786 |
42,3 |
2,3 |
|
787 |
29,5 |
3,0 |
|
788 |
18,7 |
3,3 |
|
789 |
18,7 |
3,3 |
|
790 |
34,7 |
3,1 |
|
791 |
59,9 |
2,7 |
|
792 |
39,9 |
2,4 |
|
793 |
36,6 |
2,1 |
|
794 |
35,6 |
1,8 |
|
795 |
45,0 |
1,4 |
|
796 |
21,3 |
0,5 |
|
797 |
15,1 |
0,7 |
|
798 |
15,1 |
0,7 |
|
799 |
16,1 |
0,7 |
|
800 |
16,1 |
0,7 |
|
801 |
16,1 |
0,7 |
|
802 |
16,1 |
0,7 |
|
803 |
15,9 |
0,6 |
|
804 |
30,7 |
0,3 |
|
805 |
26,6 |
0,9 |
|
806 |
30,3 |
1,1 |
|
807 |
38,4 |
1,3 |
|
808 |
34,4 |
1,7 |
|
809 |
32,2 |
2,2 |
|
810 |
29,8 |
2,5 |
|
811 |
51,5 |
2,8 |
|
812 |
33,4 |
3,2 |
|
813 |
19,5 |
3,3 |
|
814 |
19,5 |
3,2 |
|
815 |
31,0 |
3,0 |
|
816 |
42,4 |
2,2 |
|
817 |
40,5 |
1,9 |
|
818 |
51,3 |
1,3 |
|
819 |
46,8 |
1,5 |
|
820 |
40,7 |
2,1 |
|
821 |
42,3 |
2,5 |
|
822 |
34,0 |
3,3 |
|
823 |
19,5 |
3,5 |
|
824 |
19,6 |
3,6 |
|
825 |
19,6 |
3,6 |
|
826 |
19,6 |
3,6 |
|
827 |
35,8 |
3,5 |
|
828 |
101,6 |
0,3 |
|
829 |
15,6 |
0,6 |
|
830 |
15,7 |
0,7 |
|
831 |
15,7 |
0,7 |
|
832 |
15,7 |
0,8 |
|
833 |
15,7 |
0,7 |
|
834 |
15,8 |
0,8 |
|
835 |
15,8 |
0,8 |
|
836 |
17,2 |
0,6 |
|
837 |
17,2 |
0,7 |
|
838 |
15,9 |
0,7 |
|
839 |
15,9 |
0,8 |
|
840 |
16,0 |
0,8 |
|
841 |
16,0 |
0,8 |
|
842 |
16,1 |
0,9 |
|
843 |
16,0 |
0,8 |
|
844 |
16,1 |
0,8 |
|
845 |
16,1 |
0,8 |
|
846 |
16,2 |
0,8 |
|
847 |
17,1 |
0,7 |
|
848 |
26,6 |
0,5 |
|
849 |
28,2 |
1,3 |
|
850 |
28,0 |
1,5 |
|
851 |
43,1 |
1,8 |
|
852 |
20,5 |
2,4 |
|
853 |
22,1 |
2,6 |
|
854 |
24,4 |
2,7 |
|
855 |
15,3 |
2,8 |
|
856 |
16,7 |
3,0 |
|
857 |
16,2 |
3,2 |
|
858 |
16,7 |
3,3 |
|
859 |
18,2 |
3,4 |
|
860 |
46,2 |
3,4 |
|
861 |
24,8 |
3,0 |
|
862 |
13,9 |
3,1 |
|
863 |
13,8 |
3,1 |
|
864 |
14,0 |
3,2 |
|
865 |
14,0 |
3,2 |
|
866 |
23,8 |
3,1 |
|
867 |
45,5 |
3,2 |
|
868 |
15,8 |
3,3 |
|
869 |
17,0 |
3,2 |
|
870 |
17,8 |
3,0 |
|
871 |
17,9 |
2,9 |
|
872 |
17,9 |
2,7 |
|
873 |
17,9 |
2,5 |
|
874 |
17,9 |
2,4 |
|
875 |
17,9 |
2,2 |
|
876 |
18,0 |
2,0 |
|
877 |
36,7 |
1,7 |
|
878 |
51,8 |
1,3 |
|
879 |
45,1 |
1,9 |
|
880 |
20,0 |
2,3 |
|
881 |
32,5 |
2,3 |
|
882 |
29,6 |
1,4 |
|
883 |
30,6 |
1,2 |
|
884 |
35,8 |
0,6 |
|
885 |
17,3 |
0,7 |
|
886 |
17,3 |
0,8 |
|
887 |
17,4 |
0,8 |
|
888 |
17,4 |
0,8 |
|
889 |
17,5 |
0,7 |
|
890 |
17,4 |
0,8 |
|
891 |
17,5 |
0,8 |
|
892 |
17,5 |
0,8 |
|
893 |
17,6 |
0,7 |
|
894 |
25,4 |
0,5 |
|
895 |
44,4 |
1,4 |
|
896 |
27,8 |
1,9 |
|
897 |
17,1 |
2,3 |
|
898 |
23,3 |
2,4 |
|
899 |
20,0 |
2,6 |
|
900 |
15,9 |
2,9 |
|
901 |
15,9 |
3,0 |
|
902 |
16,1 |
3,1 |
|
903 |
15,8 |
3,2 |
|
904 |
47,9 |
3,1 |
|
905 |
21,1 |
2,8 |
|
906 |
14,0 |
2,8 |
|
907 |
13,9 |
2,7 |
|
908 |
22,5 |
2,4 |
|
909 |
25,4 |
0,6 |
|
910 |
17,7 |
0,7 |
|
911 |
17,8 |
0,8 |
|
912 |
17,7 |
0,8 |
|
913 |
17,8 |
0,8 |
|
914 |
17,8 |
0,8 |
|
915 |
17,9 |
0,8 |
|
916 |
17,9 |
0,7 |
|
917 |
37,3 |
0,4 |
|
918 |
29,3 |
1,1 |
|
919 |
30,7 |
1,2 |
|
920 |
38,6 |
1,5 |
|
921 |
19,4 |
1,9 |
|
922 |
19,3 |
2,1 |
|
923 |
18,9 |
2,2 |
|
924 |
18,7 |
2,3 |
|
925 |
29,4 |
2,1 |
|
926 |
68,6 |
1,9 |
|
927 |
80,0 |
1,7 |
|
928 |
82,0 |
1,3 |
|
929 |
60,2 |
0,9 |
|
930 |
117,8 |
0,2 |
|
931 |
32,0 |
0,9 |
|
932 |
27,8 |
0,4 |
|
933 |
16,5 |
0,6 |
|
934 |
16,0 |
0,6 |
|
935 |
15,7 |
0,5 |
|
936 |
17,7 |
0,6 |
|
937 |
26,3 |
0,4 |
|
938 |
38,2 |
0,2 |
Waterdorp 12 mei 2022
|
Nummer |
Maximale jaarlijkse netto warmteonttrekking per meter bodemdiepte |
Temperatuurcorrectie door interferentie |
|
|
kWh/m |
°C |
|
968 |
60,9 |
0,9 |
|
969 |
67,5 |
1,4 |
|
970 |
50,9 |
1,8 |
|
971 |
49,4 |
2,1 |
|
972 |
86,1 |
2,1 |
|
973 |
165,3 |
2,6 |
|
974 |
89,3 |
1,7 |
|
975 |
67,7 |
1,5 |
|
976 |
56,6 |
1,4 |
|
977 |
46,1 |
1,3 |
|
978 |
55,8 |
1,1 |
|
979 |
47,8 |
1,2 |
|
980 |
55,8 |
1,0 |
|
981 |
63,1 |
1,3 |
|
982 |
87,2 |
1,4 |
|
983 |
88,2 |
1,2 |
|
984 |
69,3 |
1,4 |
|
985 |
26,8 |
1,5 |
|
986 |
41,5 |
1,2 |
|
987 |
72,7 |
0,9 |
|
988 |
59,6 |
0,4 |
|
989 |
42,7 |
0,4 |
|
990 |
58,5 |
1,5 |
|
991 |
39,7 |
1,3 |
|
992 |
49,4 |
0,8 |
|
993 |
62,5 |
0,3 |
|
994 |
52,4 |
0,6 |
|
995 |
46,6 |
0,6 |
|
996 |
75,7 |
1,1 |
|
997 |
108,4 |
1,2 |
|
998 |
100,0 |
1,1 |
|
999 |
94,0 |
0,8 |
|
1000 |
223,3 |
0,3 |
|
1001 |
43,8 |
1,3 |
|
1002 |
68,0 |
0,4 |
|
1003 |
83,8 |
0,6 |
|
1004 |
61,7 |
0,7 |
|
1005 |
55,1 |
0,6 |
|
1006 |
50,0 |
0,5 |
|
1007 |
46,4 |
0,4 |
|
1008 |
39,2 |
0,2 |
|
1009 |
72,1 |
0,0 |
|
1010 |
51,9 |
0,0 |
Bijlage 3 Nummering gesloten systemen
Bijlage 4 Voorbeeldberekeningen
Laakse Tuinen, Velden 1F en Waterdorp (Vathorst) Amersfoort
Rekensheet behorende bij bodemenergieplan
Voorbeeld 1
Laakse Tuinen, Velden 1F en Waterdorp (Vathorst) Amersfoort
Rekensheet behorende bij bodemenergieplan
Voorbeeld 2
Bijlage 9.2: Bodemenergieplan Laak 3
1Inleiding
1.1LAAK 3
Verwarming van de nieuw te bouwen woningen en bedrijfsgebouwen in Laak 3 vindt gasloos plaats. Het moet nu en in de toekomst mogelijk zijn om alle woningen en bedrijfsgebouwen te verwarmen met behulp van individuele elektrisch aangedreven combiwarmtepompen in combinatie met gesloten bodemenergiesystemen.
Figuur 1.1 | Locatie Laak 3 in Amersfoort
1.2PODIUM
Dit bodemenergieplan geldt voor de gesloten bodemenergiesystemen in Laak 3. Direct ten zuiden van Laak 3 ligt het plangebied Podium. Het bodemenergieplan van Laak 3 is zo opgesteld dat rekening wordt gehouden met eventuele toekomstige ontwikkelingen in Podium (gebaseerd op basis van schetsontwerpen) en de interferentie van de gesloten systemen in Podium op de systemen in Laak 3. Tevens zijn in Podium reeds twee open bodemenergiesystemen gerealiseerd.
1.3WERKINGSPRINCIPE
Met een elektrisch aangedreven combiwarmtepomp worden de ruimten en het tapwater verwarmd. De bronwarmte van de warmtepomp wordt onttrokken aan de bodem met behulp van een gesloten bodemenergiesysteem.
Een gesloten bodemenergiesysteem bestaat uit één of meerdere verticaal in de bodem aangebrachte kunststof slangen (bodemlussen) die middels een boring in de bodem tot grotere diepte worden aangebracht. In het gesloten bodemenergiesysteem stroomt een circulatievloeistof bestaande uit een mengsel van water met antivries of alleen water.
Door de warmteonttrekking daalt de temperatuur van de bodem rondom het gesloten bodemenergiesysteem. Hiervan kan in de zomer weer gebruik worden gemaakt om de woning/bedrijfsgebouw van (beperkte) koeling te voorzien. De temperatuur van de bodem rondom het gesloten bodemenergiesysteem zal hierdoor weer toenemen. Omdat de jaarlijkse warmteonttrekking aan de bodem naar verwachting groter is dan de jaarlijkse warmtetoevoer in de zomer (koeling), daalt de temperatuur van de bodem.
Figuur 1.2 | Principeschema gesloten bodemenergiesysteem
1.4INTERFERENTIE
De woningen en bedrijfsgebouwen in Laak 3 onttrekken netto warmte aan de bodem. Deze grootschalige warmteonttrekking resulteert in een temperatuurdaling van de bodem. Dit houdt in dat voor een gesloten systeem op elke kavel rekening moet worden gehouden met de temperatuurdaling van de bodem ten gevolge van alle gesloten bodemenergiesystemen in de omgeving.
Om de temperatuurdaling van de bodem ten gevolge van grootschalige warmteonttrekking aan de bodem te beperken, is in dit bodemenergieplan per kavel een maximale jaarlijkse netto warmteonttrekking per meter bodemdiepte vastgesteld. Bij het ontwerp van elk gesloten bodemenergiesysteem dient rekening te worden gehouden met deze maximale warmteonttrekking en met de lagere temperatuur van de bodem. Hiermee worden thermisch gezien robuuste systemen verkregen en wordt doelmatig gebruik gemaakt van de ondergrond.
Opgemerkt wordt dat in nieuw te realiseren woonwijken waar nog geen gesloten bodemenergiesystemen aanwezig zijn en waar in de toekomst op grote schaal gesloten bodemenergiesystemen in de bodem worden aangebracht, de temperatuursinvloed tussen de nieuw te realiseren systemen onderling vaak groter is dan 1,5°C. Deze temperatuursinvloed kan en mag groter zijn, als met het ontwerp van elk gesloten bodemenergiesysteem rekening wordt gehouden met deze lagere temperatuur van de bodem.
1.5VERORDENING INTERFERENTIEGEBIED
De gemeente Amersfoort heeft Laak 3 aangewezen als een interferentiegebied. Dit houdt in dat voor een gesloten bodemenergiesysteem de Omgevingsvergunning beperkte milieutoets (Obm) bij het bevoegd gezag moet worden aangevraagd.
1.6REGELS EN BODEMENERGIEPLAN
De regels voor waaraan de realisatie en het in werking hebben van gesloten bodemenergiesystemen in Laak 3 moeten voldoen zijn verwoord in dit bodemenergieplan. Deze regels zijn zo opgesteld dat nieuw te bouwen woningen/bedrijfsgebouwen doelmatig gebruik kunnen maken van de ondergrond voor bodemenergie. Daarnaast zorgen de regels ervoor dat interferentie tussen de gesloten systemen en daarmee nadelige invloed op het systeemrendement wordt voorkomen. Indien uit de vergunningaanvraag blijkt dat aan de regels wordt voldaan, kan door het bevoegd gezag de vergunning worden verleend.
2Geohydrologisch onderzoek
2.1BODEMOPBOUW
De bodemopbouw op de locatie van Laak 3 en in de directe omgeving van de locatie (waaronder Podium) is beschreven op basis van de volgende gegevens:
- •
Grondwaterkaart van Nederland;
- •
Regionaal Geohydrologisch Informatie Systeem (REGIS);
- •
Boorbeschrijvingen uit het archief van TNO Bouw en Ondergrond via DINOloket;
- •
Boorbeschrijvingen van omliggende bodemenergiesystemen.
De verwachte bodemopbouw op de locatie is weergegeven in Tabel 2.1. In Figuur 2.1 zijn gemeten temperaturen van de bodem binnen een straal van 10 km rondom Laak 3 weergegeven.
Tabel 2.1 | Bodemopbouw
* het maaiveld bevindt zich op circa 2,5 m+NAP
Op basis van de verkregen gegevens en de huidige (boor)technieken wordt geconcludeerd dat de bodemopbouw op de locatie tot een diepte van circa 280 m-mv geschikt is voor het toepassen van gesloten bodemenergiesystemen. Vanaf 280 m mv begint de hydrologische basis, bestaande uit voornamelijk klei.
Figuur 2.1 | Temperatuurmetingen bodem binnen 10 km van Laak 3 (bron: Database bodemtemperatuurprofielmetingen TNO en IF Technology)
2.2GEOHYDROLOGIE
In Tabel 2.2 zijn de relevante technische en juridische aspecten opgenomen die van invloed zijn op de werking van een gesloten bodemenergiesysteem. In en onder de tabel zijn de aandachtspunten / risico’s of belemmeringen nader toegelicht.
Tabel 2.2 | Technische en juridische aspecten bodemenergiesysteem
1.Artesisch grondwater
Artesisch grondwater is water wat boven maaiveld uitkomt. De stijghoogte in het derde watervoerend pakket is bepaald op basis van een peilbuis op circa 3 km afstand. Uit deze peilbuis blijkt dat het de stijghoogte in het derde watervoerend pakket boven maaiveld uit komt. Hier moet rekening mee worden gehouden bij het boren van de boorgaten (voorbuizen/verhoogd opstellen).
2.Grondwatergebruikers
Open bodemenergiesystemen
Bij RUD Utrecht is een overzicht opgevraagd van open bodemenergiesystemen in de omgeving van de projectlocatie. Uit het overzicht van (ontvangen op 14 augustus 2018) blijkt dat er binnen een straal van 500 m drie open bodemenergiesystemen aanwezig zijn. Deze systemen zijn in Tabel 2.3 en Figuur 2.2 weergegeven. De thermisch invloedsgebieden van de open systemen, zijn weergegeven in Figuur 3.1.
Tabel 2.3 | Open bodemenergiesystemen binnen een straal van 500 m van Laak 3
|
bedrijfsnaam |
afstand en richting t.o.v. project |
debiet [m³/uur] |
vergunde waterhoeveelheid [m³/jaar] |
watervoerend pakket |
|
CCNL (monobron) |
op locatie |
50 |
150.000 |
2 |
|
Het Podium (3 doubletten) |
op locatie |
325 |
1.485.000 |
2 |
|
ICO Vathorst / Lovink (doublet) |
125 m ten westen |
69 |
83.000 |
2 |
Figuur 2.2 | Omringende open bodemenergiesystemen en grondwateronttrekkingen
In Figuur 3.1 zijn de thermische invloedsgebieden weergegeven van de drie open bodemenergiesystemen in de omgeving en het thermisch invloedsgebied na 50 jaar van de gesloten bodemenergie- systemen.
Gezien de noordwestelijke grondwaterstroming worden het open bodemenergiesysteem van CCNL en de gerealiseerde bronnen van het open bodemenergiesysteem van Het Podium niet beïnvloedt door de beoogde gesloten bodemenergiesystemen. De nog niet gerealiseerde warme bronnen van het open bodemenergiesysteem van Het Podium worden naar verwachting niet tot zeer beperkt thermisch beïnvloed door de gesloten bodemenergiesystemen. Eventuele thermische interferentie van de gesloten bodemenergiesystemen op de nog niet gerealiseerde bronnen van het open bodemenergiesysteem van Het Podium zal niet leiden tot ontoelaatbaar rendementsverlies.
Het open bodemenergiesysteem van ICO Vathorst ligt stroomafwaarts van de beoogde gesloten bodemenergiesystemen. Zowel de warme als de koude bron van dit systeem komen te liggen in een omgeving die circa 0,5°C lager is dan zonder de gesloten bodemenergiesystemen. Een lagere temperatuur van het grondwater in de omgeving van de koude bron heeft een positief effect. Als wordt aangenomen dat door een lagere warme (en koude) brontemperatuur ook de verdampertemperatuur van de warmtepompinstallatie bij ICO Vathorst circa 0,5°C lager is, zal het rendement van de warmtepompinstallatie afnemen met ten hoogste 2%. Dit is gebaseerd op het toelaatbaar temperatuureffect bij gesloten bodemenergiesystemen (5% bij temperatuurdaling van 1,5°C, zie paragraaf 1.3 in bijlage 2 behorende bij BUM/HUM BE deel 2). De thermische interferentie van de gesloten bodemenergiesystemen op het open bodemenergiesysteem van ICO Vathorst zal dus niet leiden tot ontoelaatbaar rendementsverlies.
Gesloten bodemenergiesystemen
Uit het overzicht van RUD Utrecht (ontvangen op 13 augustus 2018) blijkt dat er binnen een straal van 500 m geen gesloten bodemenergiesystemen aanwezig zijn.
Permanente grondwateronttrekkingen
Uit het overzicht van Waterschap Vallei en Veluwe (ontvangen op 13 augustus 2018) blijkt dat er rondom de projectlocatie enkele grondwateronttrekkingen aanwezig zijn (zie Figuur 2.2). Het is van deze systemen niet bekend waarvoor water onttrokken wordt, op welke diepte en met welk debiet.
3.Archeologie
Uit de archeologische beleidskaart van de gemeente Amersfoort blijkt dat er verschillende archeologische waarderingsklassen aanwezig zijn op de locatie van Laak 3 (zie Figuur 2.3). Bij een bepaalde grondverstoorde omvang moet archeologisch onderzoek uitgevoerd worden. Naar verwachting is het benodigde onderzoek al uitgevoerd voor de bouw van de woningen. Indien de gesloten bodemenergiesystemen individueel worden aangelegd, wordt de onderzoekgrens niet overschreden.
Figuur 2.3 | Archeologische verwachting op de projectlocatie (beleidskaart gemeente Amersfoort)
4.Verontreinigingen
Uit de beschikbare gegevens op bodemloket komt niet naar voren of de ondergrond verontreinigd is. De locatie is niet aangemerkt als verdachte locatie. Op basis van historisch activiteit (landbouw) worden niet direct verontreinigingen verwacht. Voor Laak 3 zijn in 2015 door Ontwikkelingsbedrijf Vathorst bodemonderzoeken uitgevoerd.
2.3RISICOANALYSE
In Tabel 2.4 is de risicoanalyse met kansen, gevolgen en beheersmaatregelen van de van belang zijnde aspecten samengevat conform het SIKB protocol 11001, paragraaf 8.2.
Tabel 2.4 | Risicoanalyse
|
risico |
kans |
gevolg |
beheersmaatregel |
|
1 bodemopbouw en thermische parameters wijken af |
klein, voldoende betrouwbare informatie beschikbaar |
invloed op beschikbare te onttrekken energiehoeveelheid |
accepteren |
|
2 hetdoorboren van mobiele verontreiniging, opborenvan verontreinigde grondtijdens realisatie |
klein, informatie overmogelijke verontreinigingen is onbekend |
verwerken verontreinigde grond volgens BRL2100, Mechanisch boren |
accepteren |
|
3 invloed op rendement/functioneren nabijgelegen open bodemenergiesystemen |
aanwezig |
rendementsverlies open bodemenergiesystemen <0,5°C (geen ontoelaatbaar rendementsverlies) |
gesloten systemen dimensioneren met in achtneming regels uit dit bodemenergieplan |
|
4 negatieve interferentie tussen individuele gesloten systemen onderling |
aanwezig |
systemen goed dimensioneren, rekening houdend met systemen in omgeving |
gesloten systemen dimensioneren met in achtneming regels uit dit bodemenergieplan |
|
5 wateroverlast aan maaiveld door artesisch watertijdens realisatie |
aanwezig, stijghoogte in het derde watervoerend pakket komt boven maaiveld uit |
water komt bovenmaaiveld uit tijdens realisatie |
toepassen voorbuis en/of eventueel verhoogd opstellen |
3Bodemenergieplan
3.1DOELSTELLING
Het belangrijkste doel van dit bodemenergieplan is om regels te hebben voor het installeren en het in werking hebben van gesloten bodemenergiesystemen, zodat voor alle woningen en bedrijfsgebouwen in Laak 3 doelmatig gebruik wordt gemaakt van bodemenergie en dat nadelige beïnvloeding van het systeemrendement door interferentie zo veel mogelijk wordt voorkomen.
De regels zijn in dit bodemenergieplan zodanig omschreven dat het voor de particuliere kavelkoper(s), de ontwikkelaar(s), de aannemer(s), Ontwikkelingsbedrijf Vathorst, de gemeente Amersfoort en de Regionale Uitvoeringsdienst Utrecht duidelijk is waaraan gesloten bodemenergiesystemen moeten voldoen, voor het verkrijgen van de Omgevingsvergunning beperkte milieutoets (Obm).
3.2INTERFERENTIE EN ONTWERP
Voor het installeren en het in werking hebben van gesloten bodemenergiesystemen, zijn twee aspecten van belang: interferentie en het ontwerp.
Interferentie door bodemenergiesystemen in omgeving
In bijlage 2 (Methode toetsen interferentie tussen kleine gesloten bodemenergiesystemen) behorend bij de BUM en de HUM BE, deel 2 wordt als uitgangspunt gehanteerd dat geen sprake is van interferentie als de totaal veroorzaakte temperatuurverlaging bij alle andere systemen in de omgeving kleiner is dan 1,5°C. Deze temperatuurdaling wordt ook gehanteerd als richtlijn in de melding Besluit lozen buiten inrichtingen.
In woonwijken waar op grote schaal gesloten bodemenergiesystemen worden toegepast, kan de temperatuurdaling door interferentie groter zijn dan 1,5°C als met elk individueel ontwerp van de gesloten bodemenergiesystemen hiermee rekening wordt gehouden. Het is dus van belang om vooraf, op basis van interferentieberekeningen, het temperatuureffect van grootschalige toepassing van gesloten bodemenergiesystemen te kwantificeren. Deze interferentieberekeningen zijn voor Laak 3 uitgevoerd. Omdat ook de mogelijke gesloten bodemenergiesystemen van Podium invloed hebben op de systemen in Laak 3, zijn deze meegenomen in de berekeningen.
De potentieberekeningen resulteren per kavel in twee grootheden waaraan het ontwerp van de gesloten bodemenergiesystemen moet voldoen. Deze grootheden zijn:
- •
De maximale jaarlijkse netto warmteonttrekking per meter bodemdiepte (in kWh/m).
- •
De temperatuurdaling ten gevolge van interferentie door nabij gelegen bodemenergiesystemen (in °C).
Ontwerp
De minimaal toe te passen bodemdiepte wordt bepaald door de maximale jaarlijkse netto warmteonttrekking per meter bodemdiepte. Bij het in werking hebben van een gesloten bodemenergiesysteem, dient echter te allen tijde aan de algemene regel te worden voldaan, waarbij de tempera- tuur van de circulatievloeistof in de retourbuis van het gesloten bodemenergiesysteem (temperatuur uit de verdamper van de warmtepomp naar de bodemlus) niet lager mag zijn dan -3°C.
De temperatuurdaling van de circulatievloeistof in het gesloten bodemenergiesysteem wordt enerzijds bepaald door de temperatuurdaling ten gevolge van beïnvloeding door gesloten bodemenergiesystemen in de omgeving (interferentie) en anderzijds door de warmteonttrekking van het desbetreffende bodemenergiesysteem op het kavel zelf. Bij het ontwerp van het gesloten bodemenergiesysteem dient rekening te worden gehouden met deze extra temperatuurdaling door interferentie van systemen in de omgeving. In de ontwerpberekening voor een individueel gesloten bodemenergiesysteem dient de temperatuurdaling door interferentie in mindering te worden gebracht op de gemiddelde (natuurlijke) temperatuur van de bodem over de gehele aan te boren bodemdiepte.
3.3UITGANGSPUNTEN INTERFERENTIEBEREKENING
De berekeningen ter bepaling van de maximale jaarlijkse netto warmteonttrekking aan de bodem, zijn uitgevoerd met het softwarepakket MLU (Multi Layer Unsteady state). Dit programma is gemaakt voor het modelleren van grondwaterstroming in watervoerende pakketten (zie voor meer informatie hierover www.microfem.com) en wordt ook gebruikt voor het berekenen van warmte- transport (door middel van geleiding) bij gesloten bodemenergiesystemen.
De uitgangspunten voor de berekeningen zijn als volgt:
- -
De verkaveling van Laak 3.
- -
Mogelijke planontwikkeling Podium, op basis van schetsontwerpen.
- -
De bodemopbouw en de grondwaterstroming zoals deze zijn omschreven in hoofdstuk 2.
- -
De maximale diepte van de gesloten bodemenergiesystemen ter bepaling van de maximale netto warmteonttrekking bedraagt 280 m-mv (top hydrologische basis).
- -
De periode waarvoor de thermische berekeningen zijn uitgevoerd, bedraagt 50 jaar.
Opgemerkt wordt dat de Regionale Uitvoeringsdienst Utrecht (RUD Utrecht) heeft aangegeven dat de berekeningen dienen te worden uitgevoerd voor een periode van 50 jaar. RUD Utrecht wil dit om op lange termijn thermisch goed werkende gesloten bodemenergiesystemen te verkrijgen en te behouden. Deze periode van 50 jaar geldt ook voor de ontwerpberekening die met Earth Energy Designer (EED) wordt uitgevoerd.
3.4RESULTATEN INTERFERENTIEBEREKENING
De resultaten van de berekeningen zijn weergegeven in Figuur 3.1 en in Bijlage 1. In dit figuur zijn de contouren van de berekende temperatuurdaling weergegeven na een periode van 50 jaar voor de situatie waarbij op alle kavels warmte aan de bodem wordt onttrokken.
In Bijlage 2 is per kavel opgegeven wat de maximale netto warmteonttrekking per meter bodemdiepte en de temperatuurdaling is. De nummering van elk gesloten bodemenergiesystemen per ka- vel is weergegeven in de figuren die in Bijlage 3 zijn opgenomen.
Figuur 3.1 | Thermische beïnvloeding tussen 0 en 280 m-mv na 50 jaar (zie ook Bijlage 1 voor groot formaat)
3.5MAXIMALE JAARLIJKSE NETTO WARMTEONTTREKKING
Per kavel is de maximale jaarlijkse netto warmteonttrekking tot een diepte van 280 m-mv en per meter aan te boren diepte berekend. De grootte van de maximale jaarlijkse netto warmteonttrekking is gerelateerd aan de grootte van het kaveloppervlak (in m²) en een maximaal aan te boren diepte van 280 m (tot aan de hydrologische basis). De maximale jaarlijkse netto warmteonttrekking per meter bodemdiepte is per kavel in de tabel in Bijlage 2 opgenomen.
3.6TEMPERATUURCORRECTIE
Indien de daling in temperatuur van het eigen gesloten bodemenergiesysteem op het kavel niet wordt meegenomen, is de resulterende temperatuurdaling op het kavel uitsluitend het gevolg van de thermische invloed van de gesloten systemen in de omgeving van het desbetreffende kavel. Per kavel is in Figuur 3.1 met een gekleurde stip de berekende temperatuurdaling ten gevolge van om- liggende gesloten systemen weergegeven.
In Bijlage 2 is de tabel opgenomen waarin per kavel de temperatuurdaling door interferentie is gekwalificeerd. Deze temperatuurdaling dient als correctie van de bodemtemperatuur bij het ont- werp van het gesloten bodemenergiesysteem te worden meegenomen.
4Regels
4.1ALGEMENE REGELS
Voor het installeren en het in werking hebben van een gesloten bodemenergiesysteem binnen de grenzen van dit bodemenergieplan, gelden de volgende algemene regels:
- 1.
Voor het gesloten bodemenergiesysteem dient de melding: "Aanleg gesloten bodemenergiesysteem buiten inrichtingen" bij het bevoegd gezag te worden ingediend. Hierbij dient aan alle indieningvereisten te worden voldaan, zoals deze zijn opgenomen in artikel 1.13.3 in het Best- luit lozen buiten inrichtingen (Blbi).
- 2.
Voor het gesloten bodemenergiesysteem dient de Omgevingsvergunning beperkte milieutoets (Obm) bij het bevoegd gezag te worden aangevraagd.
- 3.
Het gesloten bodemenergiesysteem dient te allen tijde te voldoen aan de “Algemene regels ten aanzien van bodemenergiesystemen”, zoals deze zijn omschreven in Hoofdstuk 3a van het Besluit lozen buiten inrichtingen.
- 4.
Indien aantoonbaar aan onderstaande regels 5 tot en met 12 wordt voldaan, is onderbouwing (waaruit blijkt dat het in werking hebben van het systeem niet leidt tot zodanige interferentie met een eerder geïnstalleerde bodemenergiesystemen dat het doelmatig functioneren van de desbetreffende systemen kan worden geschaad) niet nodig. Zie artikel 1.10a.h uit het Besluit lozen buiten inrichtingen.
4.2LOCATIE SPECIFIEKE REGELS
Voor het installeren en het in werking hebben van een gesloten bodemenergiesysteem binnen de grenzen van dit bodemenergieplan gelden de volgende locatie specifieke regels:
- 5.
Het gesloten bodemenergiesysteem dient te worden uitgevoerd als een verticaal bodemenergiesysteem, bestaande uit één of meerdere verticaal in de bodem aan te brengen boorgaten met bodemlus(sen).
- 6.
De maximale diepte van de boorgaten met bodemlus(sen) bedraagt 280 m-mv.
- 7.
De boorgaten met bodemlus(sen) dienen op eigen kavel in de bodem te worden aangebracht.
- 8.
De afstand tussen een boorgat en de kavelgrens direct grenzend aan een kavel van een naastgelegen woning met (een gerealiseerd of nog te realiseren) bodemenergiesysteem dient te allen tijde groter of gelijk te zijn aan 3,0 m.
Daar waar in verband met een (te) smalle kavelbreedte bovenstaande afstand niet mogelijk is, dient de afstand tussen twee boorgaten te allen tijde groter dan of gelijk dient te zijn aan 6,0 m.
- 9.
De jaarlijkse netto warmteonttrekking per meter bodemdiepte (kWh/m) dient te allen tijde kleiner of gelijk te zijn aan de voor het kavel toegewezen maximale jaarlijkse netto warmteonttrekking per meter bodemdiepte. Zie: "Maximale jaarlijkse netto warmtelevering per meter bodemdiepte" in Bijlage 2.
- 10.
Bij het ontwerp dient voor het bepalen van de minimaal benodigde diepte van de boorgaten en het aantal boorgaten rekening te worden gehouden met de temperatuurdaling die optreedt op het kavel ten gevolge van interferentie. Zie: “Temperatuurcorrectie door interferentie” in Bijlage 2.
- 11.
Ten behoeve van het ontwerp dient voor elk individueel gesloten bodemenergiesysteem een berekening voor een periode van minimaal 50 jaar te worden uitgevoerd. Bij deze berekening dient de temperatuurdaling door interferentie te worden meegenomen.
Voor de berekening wordt gebruik gemaakt van het programma Earth Energy Designer (EED) (of met een gelijkwaardig gevalideerd model zoals in BRL 11001 weergegeven programma's Glhepro, DST en SBM). De resultaten van de berekening dienen als bijlage bij de vergunningaanvraag te worden toegevoegd.
- 12.
Bij wijzigingen in aantal of grootte van één of meerdere kavels dienen de "Maximale jaarlijkse netto warmteonttrekking" en de “Temperatuurcorrectie door interferentie” opnieuw te worden bepaald. Dit vindt als volgt plaats:
- •
De "Maximale jaarlijkse netto warmteonttrekking" per meter bodemdiepte (in kWh/m) dient voor het gewijzigde kavel te worden berekend door het oppervlak van het kavel te vermenigvuldigen met 0,15 (kWh/m)/m².
- •
Voor de “Temperatuurcorrectie door interferentie” dient de waarde van het dichtstbijzijnde kavel in Bijlage 2 te worden aangehouden.
- •
5Voorbeeldberekening
5.1INLEIDING
Om inzicht te geven hoe dit bodemenergieplan moet worden gelezen en hoe de regels moeten worden geïnterpreteerd, is in dit hoofdstuk een voorbeeldberekening uitgewerkt.
In onderstaande tabel is de verklaring van de gebruikte symbolen in dit hoofdstuk opgenomen. De rekensheets en Earth Energy Designer (EED) berekeningen zijn in Bijlage 4 opgenomen.
Tabel 5.1 | Verklaring van symbolen
|
symbool |
eenheid |
toelichting |
|
Qrv |
MWh |
De energiehoeveelheid voorruimteverwarming (bouwwerk) |
|
Qtv |
MWh |
De energiehoeveelheid voortapwaterverwarming (bouwwerk) |
|
Qk |
MWh |
De energiehoeveelheid voor koeling (bouwwerk) |
|
SPF |
- |
Seasonal Performance Factor |
|
T bodem natuurlijk |
°C |
De natuurlijke temperatuur van de bodem |
|
T correctie |
°C |
De correctie vande temperatuur dieis opgenomen in dit bodemenergieplan |
|
T bodem met correctie = T input EED |
°C |
De temperatuur bodeminclusief correctie (is invoerwaarde EED) |
|
T gem,circulatievloeistof |
°C |
De gemiddelde temperatuur van de circulatievloeistof in de bodemlus |
|
T verdamper |
°C |
De temperatuur aan de verdamperzijde van de warmtepomp |
5.2WONING
Gegevens woning met warmtepomp en gesloten bodemenergiesysteem
Voor ruimte- en tapwaterverwarming en het koelen van een woning op een kavel met een kaveloppervlak van circa 140 m² (bijvoorbeeld nummer 49) wordt een elektrische combiwarmtepomp met een gesloten bodemenergiesysteem toegepast.
Uit de SPF-berekening van de installateur blijkt dat de warmtevraag van de woning (het bouwwerk) voor ruimte- en tapwaterverwarming 4,2 respectievelijk 3,5 MWh per jaar bedraagt. De gemiddelde SPF van de warmtepomp bedraagt 4,5 voor ruimteverwarming en 3,0 voor tapwaterverwarming. De koudevraag (van het bouwwerk) bedraagt 1,0 MWh per jaar met een SPF van 40 voor de circulatie- pomp.
Voor het kavel geldt volgens Bijlage 2 in dit bodemenergieplan een maximale jaarlijkse netto warmteonttrekking per meter aangeboorde bodemdiepte van 21,2 kWh/m en een temperatuurcorrectie van 0,7°C.
Berekening jaarlijkse netto warmteonttrekking aan bodem
Met bovenstaande gegevens kan de hoeveelheid warmte worden berekend die met het gesloten bodemenergiesysteem aan de bodem wordt onttrokken en wordt toegevoerd. Het resultaat van de berekening is de jaarlijkse netto warmteonttrekking in MWh voor het gesloten bodemenergiesysteem, zie Tabel 5.2 en de rekensheet in Bijlage 4.
Tabel 5.2 | Berekening jaarlijkse netto warmteonttrekking aan bodem
|
Bouwwerk SPF Berekening Bodemzijdig |
||||
|
Ruimteverwarming |
4,2 MWh |
4,5 |
Q rv x ((SPF – 1) / SPF)) 4,2 x ((4,5-1) / 4,5) |
3,3 MWh |
|
Tapwaterverwarming |
3,5 MWh |
3,0 |
Q tw x ((SPF – 1) / SPF)) 3,5 x ((3,0 – 1) / 3,0) |
2,3 MWh |
|
Warmteonttrekkingaan bodem |
5,6 MWh |
|||
|
|
|
|
|
|
|
Koeling |
1,0 MWh |
40 |
Qk + (Qk / SPF) 1,0 + (1,0 / 40) |
1,0 MWh |
|
Warmtetoevoer aan bodem |
1,0 MWh |
|||
|
|
|
|
|
|
|
Jaarlijkse netto warmteonttrekking = Warmteonttrekking aan bodem – Warmtetoevoer aan bodem |
4,6 MWh |
|||
Minimaal benodigde diepte van de boorgaten ten aanzien van interferentie (regel 9)
Voor dit voorbeeld blijkt (uit Bijlage 2 van dit bodemenergieplan) dat voor het desbetreffende ka- vel een maximale jaarlijkse netto warmteonttrekking per meter aangeboorde bodemdiepte geldt van 21,2 kWh/m. Bij de maximale boordiepte van 280 m houdt dit in dat de maximale jaarlijkse netto warmteonttrekking op het desbetreffende kavel 5,9 MWh bedraagt. Deze hoeveelheid is groter dan benodigd. Op basis van de maximale netto warmteonttrekking per meter, bedraagt de minimaal aan te boren bodemdiepte ter voorkoming van te grote interferentie naar de omgeving:
216 m-mv (4.600 kWh/21,2 kWh/m).
Ontwerp gesloten bodemenergiesysteem (regels 10 en 11)
Zoals eerder is opgemerkt, is de aangeboorde diepte niet altijd gelijk aan de totaal benodigde boorgatlengte. Het in werking hebben van het gesloten bodemenergiesysteem dient te allen tijde te voldoen aan de algemeen geldende regels, zoals deze zijn omschreven in het Besluit lozen buiten inrichtingen (zie regel 3 in paragraaf 4.1). Eén van deze algemene regels is dat de minimale temperatuur van de circulatievloeistof in de retourbuis van het gesloten bodemenergiesysteem (temperatuur uit de verdamper van de warmtepomp naar de bodemlus) niet lager mag zijn dan -3°C.
Om aan deze regel te voldoen dient per individueel gesloten bodemenergiesysteem een ontwerp voor 50 jaar te worden vervaardigd. Voor de berekening wordt gebruik gemaakt van het programma Earth Energy Designer (EED) (of met een gelijkwaardig gevalideerd model zoals in BRL 11001 weergegeven programma's Glhepro, DST en SBM). Bij deze berekening dient rekening te worden gehouden met de “Temperatuurcorrectie door interferentie”, zoals deze voor het betreffende kavel is opgenomen in de tabel in Bijlage 2 in dit bodemenergieplan. Deze temperatuurdaling dient in mindering te worden gebracht op de natuurlijke gemiddelde bodemtemperatuur.
De resultaten van de berekeningen met Earth Energy Designer (EED) laten zien dat met één boorgat tot ongeveer 100 m diepte kan worden volstaan. Echter de minimale aan te boren diepte op basis van interferentie bedraagt 216 m, waardoor deze boordiepte als ontwerpdiepte dient te worden aangehouden.
De voor dit voorbeeld uitgevoerde Earth Energy Designer (EED) berekening laat zien dat de mini- male gemiddelde temperatuur van de circulatievloeistof bij één boorgat tot 216 m na 50 jaar daalt tot +6,4°C. Met een temperatuurverschil over de verdamper van de warmtepomp van 4°C, resulteert dit in een minimale temperatuur van de circulatievloeistof van +4,4°C. Deze is als volgt berekend:
Tgem,circulatievloeistof – (∆Tverdamper / 2) = +6,4°C – (4,0 / 2) = +4,4°C
De minimale temperatuur van de circulatievloeistof is hoger dan -3°C, waardoor wordt voldaan aan de algemene regel van de minimale temperatuur van de circulatievloeistof van -3°C.
De in Earth Energy Designer (EED) te hanteren bodemtemperatuur (Tbodem met correctie) bedraagt 11,2°C. Deze is als volgt berekend:
Tbodem natuurlijk = 0,0063 * 216 + 10,5°C = 11,9°C
De gemiddelde temperatuur van de bodem over de diepte van het boorgat, waarbij rekening wordt gehouden met temperatuurinvloed van naastgelegen systemen, wordt als volgt berekend:
Tbodem met correctie = T input EED = 11,9 - 0,7 = 11,2°C
Conclusie
Het uiteindelijke resultaat is dat voor dit kavel een gesloten bodemenergiesysteem moet worden toegepast dat bestaat uit één boorgat met een aan te boren bodemdiepte van 216 m. In deze situatie is de regel met betrekking van interferentie dus leidend ten opzichte van de ontwerp regel. Het gevolg is dat dit systeem een ongewijzigd thermisch effect heeft naar de systemen in de omgeving. De hogere temperatuur van circulatievloeistof in de winter heeft een positief effect op het rende- ment van het eigen systeem.
5.3WARMTEVRAAG GROTER DAN MAXIMALE NETTO JAARLIJKSE WARMTELEVERING BODEM
Indien een relatief grote woning of bedrijfsgebouw wordt gerealiseerd op een klein kavel, is de kans aanwezig dat de benodigde jaarlijkse netto warmteonttrekking groter is dan de maximale jaarlijkse netto warmtelevering van de bodem. In deze situatie dient het ontwerp van het gesloten bodemenergiesysteem te worden aangepast.
De wijzigingen die hierbij kunnen worden doorgevoerd zijn bijvoorbeeld:
- •
Het verkleinen van de warmtevraag voor ruimte- en/of tapwaterverwarming door bijvoorbeeld het toepassen van betere isolatie en/of het toepassen van een zonneboiler.
- •
Het vergroten van de koudevraag of extra warmte in de bodem laden, door andere instellingen van de warmtepomp (al koelen bij lagere buitentemperaturen) en/of het toepassen van zonnecollectoren die in de zomer warmte van de zon in de bodem laden.
Het verkleinen van de warmtevraag en/of het vergroten van de koudevraag/regeneratie leiden tot een kleinere jaarlijkse netto warmteonttrekking aan de bodem. De jaarlijkse netto warmteonttrekking dient dusdanig te worden verlaagd, totdat deze kleiner is of gelijk aan de maximale jaarlijkse netto warmtelevering van de bodem is, zoals deze in de tabel in bijlage 2 is omschreven.
Bijlage 1 Figuur met thermische beïnvloeding
Bijlage 2 Warmteonttrekking en temperaturen
Laak 3 29 mei 2019
|
Nummer |
Maximale jaarlijkse netto warmteonttrekking permeter bodemdiepte |
Temperatuurcorrectie door interferentie |
|
|
kWh/m |
°C |
|
1 |
209,6 |
0,2 |
|
2 |
116,6 |
1,3 |
|
3 |
68,9 |
0,6 |
|
4 |
51,6 |
0,7 |
|
5 |
42,3 |
0,7 |
|
6 |
42,3 |
0,7 |
|
7 |
42,2 |
0,6 |
|
8 |
117,2 |
0,4 |
|
9 |
42,2 |
0,6 |
|
10 |
42,2 |
0,6 |
|
11 |
101,4 |
0,2 |
|
12 |
108,0 |
0,1 |
|
13 |
89,6 |
0,0 |
|
14 |
18,9 |
1,1 |
|
15 |
26,9 |
1,2 |
|
16 |
20,0 |
1,4 |
|
17 |
16,7 |
1,6 |
|
18 |
16,7 |
1,7 |
|
19 |
17,1 |
1,7 |
|
20 |
16,1 |
1,8 |
|
21 |
16,7 |
1,8 |
|
22 |
17,4 |
1,7 |
|
23 |
13,2 |
1,6 |
|
24 |
14,3 |
1,8 |
|
25 |
14,3 |
1,9 |
|
26 |
14,3 |
2,0 |
|
27 |
15,3 |
2,0 |
|
28 |
34,5 |
2,1 |
|
29 |
24,3 |
2,4 |
|
30 |
19,7 |
2,6 |
|
31 |
15,6 |
2,7 |
|
32 |
15,6 |
2,7 |
|
33 |
17,7 |
2,7 |
|
34 |
17,7 |
2,6 |
|
35 |
17,7 |
2,6 |
|
36 |
17,7 |
2,6 |
|
37 |
17,7 |
2,6 |
|
38 |
19,7 |
2,6 |
|
39 |
17,7 |
2,7 |
|
40 |
19,7 |
2,7 |
|
41 |
18,5 |
2,6 |
|
42 |
109,7 |
1,8 |
|
43 |
15,2 |
1,8 |
|
44 |
16,1 |
2,0 |
|
45 |
16,8 |
2,0 |
|
46 |
16,8 |
1,9 |
|
47 |
16,8 |
1,9 |
|
48 |
17,6 |
1,7 |
|
49 |
21,2 |
0,7 |
|
50 |
12,8 |
1,0 |
|
51 |
13,2 |
1,1 |
|
52 |
14,3 |
1,3 |
|
53 |
14,7 |
1,4 |
|
54 |
15,8 |
1,5 |
|
55 |
16,2 |
1,5 |
|
56 |
18,6 |
0,4 |
|
57 |
11,9 |
0,7 |
|
58 |
12,9 |
0,8 |
|
59 |
13,4 |
0,9 |
|
60 |
14,4 |
1,0 |
|
61 |
15,0 |
1,0 |
|
62 |
15,8 |
0,9 |
|
63 |
21,5 |
0,9 |
|
64 |
20,4 |
1,2 |
|
65 |
20,6 |
1,4 |
|
66 |
19,4 |
1,6 |
|
67 |
19,7 |
1,6 |
|
68 |
110,1 |
1,6 |
|
69 |
24,0 |
0,8 |
|
70 |
23,1 |
1,0 |
|
71 |
23,4 |
0,9 |
|
72 |
23,7 |
1,0 |
|
73 |
24,2 |
1,1 |
|
74 |
24,5 |
1,0 |
|
75 |
25,8 |
1,0 |
|
76 |
26,3 |
1,0 |
|
77 |
26,6 |
1,0 |
|
78 |
26,9 |
1,0 |
|
79 |
27,5 |
1,0 |
|
80 |
25,7 |
0,9 |
|
81 |
29,4 |
0,9 |
|
82 |
28,5 |
1,0 |
|
83 |
26,4 |
1,0 |
|
84 |
25,7 |
1,0 |
|
85 |
25,1 |
1,0 |
|
86 |
23,4 |
1,0 |
|
87 |
23,0 |
1,0 |
|
88 |
27,8 |
0,8 |
|
89 |
38,3 |
0,7 |
|
90 |
28,2 |
0,7 |
|
91 |
25,2 |
0,9 |
|
92 |
22,8 |
0,9 |
|
93 |
23,6 |
0,9 |
|
94 |
22,5 |
1,0 |
|
95 |
22,2 |
1,1 |
|
96 |
22,5 |
1,1 |
|
97 |
22,2 |
1,1 |
|
98 |
23,7 |
1,0 |
|
99 |
23,6 |
1,0 |
|
100 |
22,4 |
1,0 |
|
101 |
26,1 |
0,9 |
|
102 |
47,6 |
1,8 |
|
103 |
24,4 |
2,1 |
|
104 |
19,5 |
2,2 |
|
105 |
28,4 |
2,3 |
|
106 |
27,5 |
2,3 |
|
107 |
26,7 |
2,2 |
|
108 |
26,8 |
2,0 |
Bijlage 3 Nummering gesloten systemen
Bijlage 4 Documenten voorbeeldberekening
Laak 3 - Vathorst Amersfoort
Berekeningsheet Bodemenergieplan
Voorbeeldberekening 1
Bijlage 9.3: Bodemenergieplan De Hoef
1Inleiding
1.1KADER
De Hoef West is nu een bedrijventerrein in Amersfoort en gaat de komende jaren transformeren naar een gemengde stadsbuurt met ruimte voor wonen, werken en voorzieningen. In verband met de duurzame ontwerpopgaves voor de ontwikkelaars in De Hoef West waar bodemenergie een belangrijke rol zal spelen is ordening van de ondergrond middels een bodemenergieplan nodig. In Figuur 1.1 is de ligging van het projectgebied weergegeven.
Figuur 1.1 | Projectgebied De Hoef West in Amersfoort
1.2PROBLEEMSTELLING
Bij grootschalige toepassing van bodemenergie neemt de drukte in de ondergrond sterk toe. Voorkomen moet worden dat bij een toename van het aantal bodemenergiesystemen negatieve interferentie tussen bodemenergiesystemen onderling of nadelige beïnvloeding van andere ondergrondse functies optreedt (Figuur 1.2).
Regie is gewenst om een optimaal en duurzaam gebruik van de ondergrond te borgen, zodat zoveel mogelijk partijen die zich vestigen in De Hoef West gebruik kunnen maken van duurzame bodem- energie. Regie zorgt ervoor dat ongewenste interferentie (negatieve interactie) tussen bodemenergiesystemen onderling of met andere ondergrondse functies wordt voorkomen. Zonder regie is het
waarschijnlijk dat toekomstige partijen die zich gaan vestigen in De Hoef West op een gegeven mo- ment geen gebruik meer kunnen maken van bodemenergie.
Figuur 1.2 | Overzicht ondergrondse functies
1.3DOEL VAN EEN BODEMENERGIEPLAN
Een bodemenergieplan geeft de gemeente de mogelijkheid om de ondergrondse inrichting van De Hoef West met betrekking tot bodemenergiesystemen te regisseren met als doel optimaal gebruik te maken van de ondergrond voor bodemenergie.
Uitwerking van het bodemenergieplan vindt plaats door inventarisatie van de voornaamste (in- richtingbepalende) randvoorwaarden:
- -
bovengrondse inrichting projectgebied (beschikbare ruimte voor bronpositionering);
- -
energievraag bouwontwikkelingen;
- -
bestaande en toekomstige overige ondergrondse functies/belangen;
- -
bodemopbouw en capaciteit.
Afweging van deze randvoorwaarden leidt tot een bodemenergieplan waarbij kansen voor combinatie van functies worden benut en negatieve interactie tussen verschillende gebruikers wordt geminimaliseerd.
2Gebruiksregels
Onderstaande gebruiksregels stellen de voorwaarden voor toepassing van de verschillende vormen van bodemenergie binnen De Hoef West in Amersfoort. De gebruiksregels gelden binnen het gebied zoals weergegeven op de plankaart (zie bijlage 1). De gebruiksregels zijn aanvullend op de wettelijke regels die worden gesteld aan bodemenergie.
Ontwikkelende partijen die in het gebied een bodemenergiesysteem willen realiseren, dienen zich te allen tijde te houden aan de wettelijke kaders voor bodemenergie. In paragraaf 3.4 is een samenvatting van de algemene wettelijke kaders voor bodemenergie opgenomen. Daarnaast dienen bodemenergiesystemen binnen de hieronder beschreven gebruiksregels te worden ontworpen, gerealiseerd en geëxploiteerd. Bij de gebruiksregels wordt onderscheid gemaakt tussen open en gesloten bodemenergiesystemen. Nadere toelichting op de onderstaande gebruikersregels staat beschreven in hoofdstuk 5.
2.1GEBRUIKSREGELS OPEN BODEMENERGIESYSTEMEN
Voor het realiseren en het in werking hebben van een open bodemenergiesysteem binnen de grenzen van het plangebied gelden de volgende locatie specifieke regels:
- 1.
Het open bodemenergiesysteem moet worden uitgevoerd als een doublet- of monobronsysteem.
- 2.
Open bodemenergiesystemen uitgevoerd als recirculatiesystemen zijn niet toegestaan.
- 3.
De bronfilters van een open bodemenergiesysteem moeten geplaatst worden in het gecombineerde tweede en derde watervoerende pakket.
- 4.
De warme en koude bron(nen) van een open bodemenergiesysteem moeten respectievelijk binnen de aangegeven warme (rode) en koude (blauwe) zones worden gepositioneerd.
- 5.
De bronfilters van doubletsystemen moeten gerealiseerd worden tot een diepte van maxi- maal 100 m-mv.
- 6.
Een monobron moet op één van de volgende manieren gepositioneerd worden:
- a.
tussen een warme en koude strook, waarbij de monobron geen aantoonbaar negatief effect heeft op aanwezige en mogelijke toekomstige doubletten binnen de stroken.
- b.
in een warme of koude strook, waarbij het bovenste filter van hetzelfde type (warm of koud) moet zijn als de strook waarbinnen de monobron ligt. Het onderste bronfilter moet onderin het gecombineerde tweede en derde watervoerende pakket geplaatst worden op een diepte van minimaal 120 m-mv.
- a.
- 7.
Indien het redelijkerwijs niet mogelijk is om aan alle gebruiksregels te voldoen, kan afgeweken worden van de gebruiksregels. Een onderbouwing van de afwijking moet, samen met een schriftelijke goedkeuring van de gemeente, bij de vergunningaanvraag Waterwet gevoegd worden en ter goedkeuring aan de provincie worden voorgelegd.
Voor het realiseren en het in werking hebben van een open bodemenergiesysteem binnen de grenzen van het projectgebied gelden de volgende locatie specifieke regels:
- 8.
Het bodemenergiesysteem bereikt uiterlijk vijf jaar na de datum van ingebruikname een moment waarop de hoeveelheid koude die door het systeem aan de bodem is toegevoegd ten minste 100% en ten hoogte 115% bedraagt ten opzichte van de hoeveelheid warmte, die vanaf die datum door het systeem aan de bodem is toegevoegd. Het systeem herhaalt dit telkens uiterlijk vijf jaar na het laatste moment waarop die situatie werd bereikt.
- 9.
De bronnen en het leidingwerk moeten gerealiseerd worden op eigen terrein, gedeeld terrein of, indien niet anders mogelijk, terrein van derden mits de betreffende grondeigenaren hiervoor schriftelijk toestemming hebben gegeven.
2.2GEBRUIKSREGELS GESLOTEN BODEMENERGIESYSTEMEN
Voor het realiseren en het in werking hebben van een gesloten bodemenergiesysteem binnen de grenzen van het plangebied gelden de volgende locatie specifieke regels:
- 1.
Gesloten bodemenergiesystemen mogen tot een diepte van maximaal 20 m-mv gerealiseerd worden.
- 2.
Indien het redelijkerwijs niet mogelijk is om aan de gebruiksregel te voldoen, kan afgeweken worden van de gebruiksregel. Een onderbouwing van de afwijking moet ter goedkeuring aan de gemeente worden voorgelegd.
3Algemene toelichting
3.1PRINCIPE BODEMENERGIE
Bodemenergiesystemen maken gebruik van de bodem om warmte en/of koude op te slaan in het aanwezig grondwater. Deze warmte en/of koude wordt gebruikt voor de klimatisering van gebouwen of processen. Hiermee worden aanzienlijke energiebesparingen ten opzichte van conventionele verwarmings en koelinstallaties gerealiseerd. Onderstaand figuur presenteert de verschillende typen bodemenergiesystemen.
Figuur 3.1 | Overzicht bodemenergiesystemen
Hieronder worden de verschillende typen bodemenergiesystemen nader toegelicht.
3.1.1Open en gesloten systemen
Open systemen, ook wel warmte-/koudeopslag (WKO) genoemd, bestaan uit bronnen die grondwater onttrekken en infiltreren. Energie in de vorm van warmte en koude wordt opgeslagen in een ondergrondse watervoerende laag. Deze energie wordt vervolgens onttrokken om te verwarmen (in combinatie met warmtepompen) of te koelen. In de zomer wordt gekoeld met winterkoude en in de winter wordt verwarmd met zomerwarmte. Open systemen worden meestal toegepast op dieptes tussen de 20 tot 250 meter beneden maaiveld. Een open systeem is met name rendabel bij de grotere ontwikkelingen vanaf circa 50 woningen, kantoren en andere utiliteitgebouwen.
Gesloten systemen, ook wel bodemwarmtewisselaars genoemd, bestaan uit flexibele kunststof lussen in de bodem waarmee warmte en koude aan de bodem wordt onttrokken door middel van geleiding. Er wordt geen grondwater onttrokken. Gesloten systemen worden over het algemeen gerealiseerd tot een diepte van circa 200 meter beneden maaiveld. Een systeem kan al interessant zijn voor één woning. Daarnaast worden gesloten systemen ook toegepast bij kleine utiliteitsbouw (scholen, kleine kantoren), maar in toenemende mate ook bij grotere ontwikkelingen, zoals kantoorgebouwen en appartementen complexen.
3.1.2Indeling open systemen
De categorie van open systemen kan nader onderscheiden worden naar concepten met één of meer bronnen en met wél of géén opslag van de warmte of koude.
Doublet en monobron
Open systemen zijn onderverdeeld in doubletten en monobronnen. Bij een doubletsysteem worden twee bronnen horizontaal ten opzichte van elkaar geplaatst, zodat de warme en koude bellen zich naast elkaar vormen. Een monobron bestaat uit slechts één bron, waarbij twee filters op ongelijke diepte in de bodem gepositioneerd worden. Hierbij vormen de warme en koude bel zich onder el- kaar.
Opslagsystemen en recirculatiesystemen
Bij een opslagsysteem wordt de warmte en koude opgeslagen bij de bronnen. Eén bron is de zogenoemde warme bron, de andere bron de koude bron. Deze bronnen onttrekken en infiltreren afwisselend, afhankelijk van het seizoen. Een recirculatiesysteem is een alternatief systeem dat bestaat uit een onttrekkings- en een infiltratiebron. Er is geen sprake van opslag. Er wordt namelijk continu grondwater onttrokken uit de ene bron en geïnfiltreerd in de andere bron. Met het onttrokken grondwater, met een temperatuur gelijk aan de natuurlijke grondwatertemperatuur, wordt in de zomer gekoeld en in de winter verwarmd.
In Figuur 3.2 zijn de hierboven beschreven concepten schematisch weergegeven.
Figuur 3.2 | Schematische weergave verschillende varianten van bodemenergie
3.2BODEMEIGENSCHAPPEN
Het technisch functioneren van een bodemenergiesysteem is afhankelijk van een aantal bodemeigenschappen. De belangrijkste voorwaarde voor open bodemenergiesystemen is dat in de bodem een geschikte watervoerende zandlaag aanwezig is die voldoende capaciteit biedt voor de opslag van koude en warmte.
Een ander aspect dat een rol speelt is grondwaterstroming. Voor open bodemenergiesystemen zijn de snelheid en de richting van de grondwaterstroming van belang bij het positioneren van de bronnen. Bij een hoge grondwaterstroming kan thermische interactie tussen de warme en koude bellen
optreden, of kan de opgeslagen energie sneller afstromen. Dit dient in verband met rendementsverlies te worden voorkomen.
Tenslotte is voor open bodemenergiesystemen de grondwaterkwaliteit van belang. De chemische samenstelling en de temperatuur van het grondwater zijn van belang voor het goed functioneren van een open systeem. Daarnaast mag een open systeem geen verzilting veroorzaken, dus moet ook gekeken worden naar de invloed op het zoet-/brak-/zoutgrensvlak.
Bovengenoemde aspecten worden verder in dit hoofdstuk behandeld. Daarbij wordt aangegeven in hoeverre ze de haalbaarheid van open bodemenergiesystemen in het projectgebied beïnvloeden. Dit geeft een globaal beeld van de haalbaarheid, gebaseerd op een geohydrologisch vooronderzoek. Elke initiatiefnemer van bodemenergie binnen het projectgebied dient zelf de benodigde onder- zoeken uit te voeren om de haalbaarheid van het beoogde bodemenergiesysteem te toetsen. Onderstaande informatie is daarom ter indicatie weergegeven. Hieraan kunnen geen rechten worden ontleend.
3.2.1Bodemopbouw
De bodemopbouw in de directe omgeving van De Hoef West is beschreven op basis van de volgende gegevens:
- -
Grondwaterkaart van Nederland
- -
Regionaal Geohydrologisch Informatie Systeem (REGIS)
- -
Boorbeschrijvingen uit het archief van TNO Bouw en Ondergrond via DINOLoket
- -
Boorbeschrijvingen van omliggende bodemenergiesystemen
Op basis van deze gegevens is de bodemopbouw geschematiseerd in een aantal watervoerende pak- ketten en scheidende lagen. Tabel 3.1 geeft de globale bodemopbouw in het plangebied weer. Lo- kaal kan de bodemopbouw variëren. De lokale bodemopbouw dient bij de vergunningaanvraag voor elk individueel systeem nader te worden beschouwd.
Tabel 3.1 | Schematisatie van de bodem
|
diepte [m-mv]* |
lithologie |
geohydrologische benaming |
|
0 – 10 |
matig fijn tot matig grof zand en veen |
freatisch watervoerend pakket |
|
10 – 20 |
klei, fijn zand en veen |
1e scheidende laag |
|
20 - 140 |
matig grof tot uiterst grof zand met enkele kleilenzen |
gecombineerd 2e/3e watervoerende pakket |
|
140 - 155 |
klei en fijn zand |
lokale scheidende laag |
|
155 - 170 |
matig fijn tot zeer grof zand |
gecombineerd 2e/3e watervoerendepakket |
|
> 170 |
klei en fijn zand |
hydrologischebasis |
* m-mv = meter minus maaiveld; het maaiveld bevindt zich op circa 3 m NAP
3.2.2 Bodemgeschiktheid open bodemenergiesystemen
Freatisch watervoerend pakket
Het freatisch watervoerend pakket is vanwege de ondiepe ligging en beperkte dikte niet geschikt voor het toepassen van een open bodemenergiesysteem.
Gecombineerde tweede en derde watervoerende pakket
Het gecombineerde tweede en derde watervoerende pakket bestaat uit grof zand en is daarmee goed geschikt voor het toepassen van een open bodemenergiesysteem. De maximale broncapaciteit die kan worden onttrokken en geïnfiltreerd bedraagt circa 250 m³/uur.
3.2.3Bodemgeschiktheid gesloten bodemenergiesystemen
Om onderlinge thermische interferentie tussen open en gesloten bodemenergiesystemen te voorkomen moet er een verticale scheiding aangehouden worden tussen de open en gesloten bodemenergiesystemen. Vanwege de relatief ondiepe ligging van het gecombineerde tweede en derde watervoerende pakket is het met de technieken van nu moeilijk om op een financieel haalbare manier een gesloten bodemenergiesysteem met verticale bodemwarmtewisselaars tot aan het tweede en derde watervoerende pakket te realiseren. Toch worden deze systemen binnen De Hoef West toe- gestaan tot 20 m–mv.
3.2.4Overige geohydrologische eigenschappen
De overige geohydrologische eigenschappen die belangrijk zijn voor de toepassing van een open bodemenergiesysteem zijn weergegeven in Tabel 3.2.
Tabel 3.2 | Geohydrologische eigenschappen voor een open bodemenergiesysteem in het tweede watervoerende pakket
1. Zoet-/brak-/zout-overgangen
Verzilting van zoet grondwater door een open bodemenergiesysteem is niet toegestaan. Daarom is het belangrijk dat er voldoende afstand en/of weerstandsbiedende lagen aanwezig zijn tussen het bronfilter en het zoet-/brakgrensvlak. Het zoutgehalte van het grondwater wordt uitgedrukt met de chlorideconcentratie. Voor het bepalen van de diepte van de grensvlakken is gebruik gemaakt van de Grondwaterkaart van Nederland en TNO-data (beschikbaar via DINOloket).
Uit de Grondwaterkaart volgt dat de zoet-/brakovergang zich tussen 100 en 120 m-mv bevindt. Uit de beschikbare TNO-data volgt dat het grondwater op 175 m-mv nog zoet is (chloride gehalte < 150 mg/l). Uit waterkwaliteitsgegevens van bestaande bodemenergiesystemen blijkt ook dat het grondwater in Amersfoort op circa 150 m-mv nog erg zoet is. Geconcludeerd wordt dat het zoet-/brak grensvlak dieper dan 150 m-mv ligt en zich dus in of onder de lokale scheidende laag bevindt. Gezien de dikte en de te verwachten verticale weerstand van de scheidende laag op circa 140 – 155
m-mv, zal een open bodemenergiesysteem geen negatieve invloed hebben op de aanwezige zoetwatervoorraad op en rond de locatie. Aandachtspunt hierbij vormen monobronnen, wanneer de bronfilters dieper dan 155 m-mv gerealiseerd worden. In dat geval moet aangetoond worden dat ook het diepere grondwater zoet is en er geen sprake zal zijn van verzilting van zoet grondwater.
3.3BODEMBELANGEN
In Tabel 3.3 zijn de relevante belangen opgenomen die van invloed kunnen zijn op de werking van een open bodemenergiesysteem in het projectgebied De Hoef West. Het gaat om zowel technische als juridische aspecten.
Tabel 3.3 | Technische en juridische aspecten bodemenergiesysteem
1.Archeologie
Binnen het plangebied zijn gebieden met middelhoge en hoge archeologische verwachting aanwezig. Binnen de gebieden met middelhoge verwachting geldt dat bij plangebieden groter dan 500 m² waarbinnen bodemingrepen plaatsvinden dieper dan 30 cm-mv, voorafgaand archeologisch onder- zoek noodzakelijk is. Voor gebieden met een hoge verwachting geldt dit voor plangebieden groter dan 100 m². De ligging van de gebieden is weergegeven op de Archeologische beleidskaart gemeente Amersfoort (https://www.amersfoort.nl/bouwen-en-verbouwen/to/archeologischonderzoek-bij-bouwwerkzaamheden.htm).
Ten behoeve van de realisatie van de bronnen en het leidingwerk zijn bodemingrepen nodig. Voor een individueel open bodemenergiesysteem zal dit niet groter dan 500 m² zijn, maar mogelijk wel groter dan 100 m². In dat geval is binnen een gebied met hoge verwachting archeologisch onder- zoek nodig. Doel van het onderzoek is om aanwezige archeologische waarden te beschermen. Even- tuele archeologische waarden vormen een aandachtspunt, maar geen belemmering voor het toe- passen van open bodemenergiesystemen.
2.Spoor
Ten westen en ten zuiden zijn treinsporen aanwezig. Rond de sporen zijn beschermingsgebieden aangewezen door Prorail. Voor werkzaamheden nabij het spoor en binnen en nabij deze beschermingsgebieden, gelden de regels van ProRail. Binnen de beschermingszone is een spoorwegvergunning vereist. Ten behoeve van deze vergunning moet aangetoond worden dat de werkzaamheden geen negatieve invloed hebben op het spoor. Ook wanneer de bronnen buiten de beschermingszone
zijn beoogd, moet bij de vergunningaanvraag Waterwet aangetoond worden dat het beoogde open bodemenergiesysteem geen onacceptabele zetting ter hoogte van het spoor veroorzaakt.
Op basis van ervaringen bij andere projecten is de verwachting dat de aanwezigheid van de sporen geen belemmering vormt voor de vergunningaanvraag en de exploitatie van een open bodemenergiesysteem.
3.4WETTELIJKE KADERS
De aanleg en bedrijfsvoering van bodemenergiesystemen raakt aan diverse belangen, zoals milieu, drinkwater, bodemkwaliteit, etc. Voor de aanleg ervan is daarom meestal een vergunning vereist. Ook gelden specifieke procedures. Hieronder volgt een beknopte beschrijving van de te volgen procedures en vergunningsplichten bij de aanleg van open en gesloten systemen. Daarna volgt ook een kort overzicht van de regels die gelden voor lozingsactiviteiten. Steeds is hierbij ook aangegeven welk orgaan het bevoegd gezag is.
3.4.1Open systemen
Het onttrekken en infiltreren van grondwater bij een open bodemenergiesysteem is vergunningplicht in het kader van de Waterwet. Als bijlage bij de vergunningaanvraag dienen de effecten van het systeem in een effectenstudie te worden gekwantificeerd. De belangrijkste aspecten bij een vergunningaanvraag in het kader van de Waterwet zijn samengevat in Tabel 3.4 en daaronder nader toegelicht.
Tabel 3.4 | Belangrijkste aspecten vergunning open systemen
|
aspect |
toelichting |
|
bevoegd gezag |
provincie Utrecht |
|
vergunningplicht |
alle open systemen |
|
doorlooptijd |
reguliere procedure: 8 weken tot publicatie definitieve beschikking uniforme openbare voorbereidingsprocedure: 6 maanden tot publicatie definitieve be- schikking |
|
leges/publicatiekosten |
De provincie rekent geen leges voor open bodemenergiesystemen |
|
juridische voorwaarden |
|
Een deel van deze (en andere) voorwaarden gesteld aan het installeren en het in werking hebben van een open systeem staan in meer detail in de artikelen 6.11a tot en met 6.11i van het Waterbesluit. Het provinciaal beleid voor bodemenergie is opgenomen in het Bodem en waterprogramma provincie Utrecht 2022-2027.
Procedure
Voor een vergunningaanvraag Waterwet geldt de reguliere procedure van de Algemene wet bestuursrecht. Deze procedure duurt circa 8 weken. De provincie heeft de mogelijkheid om op de aanvraag te beslissen met toepassing van de uniforme openbare voorbereidingsprocedure (Afd. 3.4 van de Algemene wet bestuursrecht). Deze procedure duurt circa 6 maanden. Binnen deze procedure wordt, afwijkend van de reguliere procedure, eerst een ontwerpbesluit ter inzage gelegd, voordat het definitieve besluit uitkomt.
Voor elke vergunningaanvraag voor een bodemenergiesysteem in het kader van de Waterwet dient een formele m.e.r.-beoordeling uitgevoerd te worden. Voor systemen met een waterverplaatsing van minder dan 1.500.000 m³/jaar geldt een vormvrije m.e.r.-beoordeling en hoeft bij het indienen van de vergunningaanvraag Waterwet geen m.e.r.-beoordelingsbesluit toegevoegd te worden. De m.e.r.-beoordeling kan plaatsvinden parallel aan de procedure van de vergunningaanvraag Waterwet. Middels een korte notitie wordt het initiatief aangemeld voor de m.e.r.-beoordeling.
Nadat het bodemenergieplan door de provincie is verankerd in een provinciale beleidsregel, zal de provincie nieuwe vergunningaanvragen Waterwet voor open bodemenergiesystemen toetsen aan de gebruikersregels uit het bodemenergieplan.
3.4.2Gesloten systemen
Gesloten systemen zijn meldings- en soms vergunningplicht Alle gesloten systemen moeten ten- minste gemeld worden (conform het Besluit lozen buiten inrichting of Activiteitenbesluit milieubeheer). Voor gesloten systemen met een bodemzijdig vermogen groter dan of gelijk aan 70 kW, alsmede alle systemen die in een interferentiegebied worden gerealiseerd, moet ook een Omgevings- vergunning Beperkte Milieutoets (OBM) worden aangevraagd bij het bevoegd gezag (gemeente Amersfoort). De belangrijkste aspecten voor de melding en vergunningverlening voor gesloten systemen zijn samengevat in Tabel 3.5 en daaronder nader toegelicht.
Tabel 3.5 | Belangrijkste aspecten melding en vergunning gesloten systemen
|
aspect |
toelichting |
|
bevoegd gezag |
Gemeente Amersfoort |
|
melding |
alle systemen |
|
vergunningplicht |
≥ 70 kW of ligging in interferentiegebied |
|
doorlooptijd |
melding: 4 weken voor start werkzaamheden vergunning: 8 weken tot publicatie definitieve beschikking (OBM) |
|
belangrijkste algemene regels |
|
Deze (en andere) voorschriften gesteld aan het installeren en het in werking hebben van gesloten bodemenergiesystemen zijn opgenomen in hoofdstuk 3a van het Besluit lozen buiten inrichting en paragraaf 3.2.8 uit het Activiteitenbesluit milieubeheer.
Het plangebied van De Hoef West ligt binnen een interferentiegebied, waardoor voor alle gesloten bodemenergiesystemen een vergunningsplicht geldt. Door het vaststellen en verankeren van een gemeentelijke beleidsregel kan de gemeente voor De Hoef West vastleggen op basis van welke regel(s) een vergunningaanvraag voor een gesloten bodemenergiesysteem wordt getoetst. Deze regel(s) zijn gebaseerd op het voorkomen van interferentie tussen systemen en het bevorderen van doelmatig gebruik van de ondergrond.
3.4.3Lozingen
Er zijn verschillende momenten waarop lozingen, en daarmee de wettelijke kaders voor lozingsactiviteiten, aan de orde zijn.
Boren van de bronnen/lussen (boorspoelwater)
Voor de aanleg van de bronnen van open systemen en de lussen van gesloten systemen moet worden geboord. Tijdens het boren komt spoelwater vrij (boorspoelwater). De hoeveelheid water die hierbij vrijkomt is beperkt, maar bevat vaak boorspoeling (bentoniet en polymeren) en vrijgekomen grond (zand, klei).
Ontwikkelen van open bronnen (ontwikkelwater)
Direct na het boren worden de bronnen van een open systeem eenmalig schoon gepompt (ontwikkelen). Het doel hiervan is om resten van het geboorde materiaal uit de bronnen te verwijderen (zand en slibdeeltjes), zodat deze niet voor verstoppingen kunnen zorgen. Tijdens het ontwikkelen komt grondwater vrij met een debiet tot maximaal 130% van het ontwerpdebiet. Dit grondwater moet geloosd worden. Om de lozingshoeveelheid en het lozingsdebiet te verlagen kan gebruik worden gemaakt van filtertechnieken om vaste bestanddelen te verwijderen, waarbij het water grotendeels weer geïnfiltreerd wordt in de bodem. Het blijft echter noodzakelijk dat een gedeelte van het vrijkomende grondwater geloosd kan worden, om onder andere de filterunits terug te spoelen. Door deze manier van ontwikkelen kan het lozingsdebiet beperkt worden.
Onderhoud van open bronnen (spuiwater)
In verband met preventief onderhoud van de bronnen worden deze een aantal keer per jaar gespoeld. Bij deze actie wordt uit de bronnen enige tijd grondwater onttrokken met het maximale debiet. Dit grondwater moet geloosd worden. Middels een onderhoudsfilter in de technische ruimte kan ervoor gezorgd worden dat er geen grondwater geloosd hoeft te worden. Bij een onderhoudsfilter wordt het vuil afgevangen met een zogenaamd kaarsenfilter met zeer kleine poriën. Het grond- water wordt uit de bronfilters opgepompt en wordt via het onderhoudsfilter in de bypass van het leidingcircuit in een andere bron geïnjecteerd.
Regulering van lozingen en voorkeursroutes
Met de inwerkingtreding van de AMvB Bodemenergie zijn voorkeursvolgordes voor lozingen gedefinieerd. Hierbij worden twee type lozingen onderscheiden:
- -
lozen van boorspoelwater (open en gesloten systemen);
- -
lozen van ontwikkel- en beheerwater (alleen open systemen).
Door de specifieke kenmerken van deze stromen geldt er een voorkeursvolgorde voor de lozings- route. Lokale omstandigheden kunnen aanleiding zijn om af te wijken van deze volgorde. Onder- staande tabel geeft de voorkeursvolgorde weer.
Tabel 3.6 | Voorkeursvolgorde lozen vanuit AMvB Bodemenergie
|
type afvalwater |
voorkeursvolgorde lozing (bevoegdgezag) |
|
Boorspoelwater (open en geslotensystemen) |
In de bodem en op het schoonwaterriool is niet toegestaan |
|
Ontwikkel- en beheerwater (open systemen) |
|
Het Besluit lozen buiten inrichtingen bevat regels voor een groot aantal categorieën van lozingen die het gevolg zijn van activiteiten die plaatsvinden buiten inrichtingen in de zin van de Wet milieubeheer. Lozingen vanuit inrichtingen vallen onder het Activiteitenbesluit. Het besluit geldt voor alle lozingsroutes: zowel lozingen op oppervlaktewater, de bodem als de riolering.
De lozingen van het water voor het ontwikkelen van open bronnen geeft de grootste lozingsvolumes. Conform de voorkeursvolgorde voor lozingen heeft het terugbrengen van het grondwater de voorkeur. Dit is echter een kostbare methode en door het beperken van het ontwikkeldebiet kunnen de bronnen niet optimaal ontwikkeld worden. Daarnaast is het nog steeds nodig om een kleine waterhoeveelheid te lozen. Het lozen van het ontwikkelwater op het oppervlaktewater is daarom vaak een beter haalbare methode. Mocht dit niet mogelijk zijn, moet het grondwater geloosd worden op een vuilwaterriool of gemengd rioolstelsel. Aanbevolen wordt om in een vroeg stadium in overleg te treden met het bevoegd gezag om de mogelijkheden voor lozen te bespreken.
Het beleid ten aanzien van het lozen op oppervlaktewater is beschreven in het Besluit lozen buiten inrichtingen. Dit beleid wordt in het geval van Amersfoort gehanteerd en uitgevoerd door Water- schap Vallei en Veluwe. Het beleid en het indienen van een vergunning of doen van een melding staat beschreven op de website van het waterschap.
4Inventarisatie vraag en aanbod
4.1ONTWIKKELINGEN
De gemeente Amersfoort heeft informatie over de geplande ontwikkelingen aangeleverd. In Figuur 4.1 zijn de ontwikkelvelden ingetekend.
Figuur 4.1 | Ontwikkelvelden De Hoef West Amersfoort
4.2WARMTE- EN KOUDEVRAAG
Op basis van de ontwikkelvelden zijn de gebouwzijdige energievraag en benodigde vermogens per blok bepaald. Op basis van deze energievraag en vermogens is met behulp van kentallen, energetische uitganspunten en de jaarlijkse verdeling van vermogens de bodemzijdige vraag bepaald. In Figuur 4.2 is de verwachte bodemzijdige warmtevraag weergegeven per ontwikkelveld. In Tabel 4.1 zijn beknopt de resultaten van de voorgaande berekeningen weergeven. De gebruikte kentallen, energetische uitganspunten en jaarlijkse verdeling van de vermogens zijn ter informatie opgenomen in bijlage 2.
Figuur 4.2 | Bodemzijdige warmtevraag per ontwikkelveld
Tabel 4.1 | Gebouw- en bodemzijdige energievraag en vermogens in De Hoef West
|
|
eenheid |
gebouwzijdig |
bodemzijdig |
|
warmtevraagruimteverwarming en tapwater |
MWh |
22.540 |
17.000 |
|
koudevraagruimtekoeling |
MWh |
10.090 |
10.090 |
|
verwarmingsvermogen |
kW |
15.660 |
12.520 |
|
koelvermogen |
kW |
13.910 |
13.910 |
De bepaalde bodemzijdige warmte- en koudevraag zijn vervolgens vertaald naar de jaarlijkse grondwaterverplaatsing en benodigde grondwaterdebieten, die weergegeven zijn in Tabel 4.2.
Tabel 4.2 | Benodigde waterverplaatsing en debiet in De Hoef West
|
|
waterverplaatsing warmtelevering [m³/jaar] |
waterverplaatsing koeling [m³/jaar] |
debiet warmtelevering [m³/h] |
debiet koeling [m³/h] |
|
De Hoef West |
3.063.000 |
3.063.000 |
1.850 |
1.910 |
4.3MATCH VRAAG/AANBOD
Uit de inventarisatie (paragraaf 4.2) volgt voor De Hoef West een totale bodemzijdige warmte en koudevraag van respectievelijk 17.000 MWh en 10.090 MWh. Een indicatie van het bodemzijdige aanbod kan berekend worden op basis van de verwachte filterlengte en het oppervlakte van het projectgebied De Hoef West. Er kan circa 30.000 MWh aan warmte en koude geleverd worden. Hier- mee overstijgt het aanbod vanuit de bodem de vraag.
Opgemerkt wordt dat het werkelijke potentieel in de praktijk lager kan uitvallen vanwege fysieke obstakels ten aanzien van de inpassing van bronnen (zoals wegen, parkeerkelders, groen en dergelijke). Aangezien het bodemzijdige aanbod de vraag overstijgt wordt verwacht dat ook bij een iets lager potentieel nog steeds de vraag gedekt kan worden. Het is echter wel van belang om met de beschikbare gebieden voor de inpassing van bronnen het aanwezige potentieel optimaal te benut- ten.
5Toelichting gebruiksregels
In hoofdstuk 2 zijn de gebruiksregels voor open en gesloten bodemenergiesystemen opgenomen. In dit hoofdstuk wordt per gebruiksregel een onderbouwing gegeven waarom een bepaalde gebruiksregel is opgenomen.
5.1GEBRUIKSREGELS VOOR OPEN BODEMENERGIESYSTEMEN BINNEN HET PLANGEBIED
- 1.
Regel: Het open bodemenergiesysteem moet worden uitgevoerd als een doublet- of mo- nobronsysteem.
Onderbouwing: Gezien de beoogde omvang van de ontwikkelingen is de verwachting dat de toepassing van (collectieve) open bodemenergiesystemen veelal het beste aansluit bij de intensiteit van de warmte/koudevraag. Qua omvang sluiten doubletten bij de meeste ontwikkelingen het beste aan, maar voor enkele ontwikkelingen is de energievraag dermate laag en de beschikbare ruimte voor het plaatsen van een doublet bronnen beperkt dat het toepassen van een monobron voor de hand ligt.
2. Regel: Open bodemenergiesystemen uitgevoerd als recirculatiesystemen zijn niet toegestaan.
Onderbouwing: Het gebruik van recirculatiesystemen is niet toegestaan, omdat het rendement van deze systemen lager is dan bij een opslagsysteem en daarmee het beschikbare bodempotentieel niet optimaal benut wordt.
- 3.
Regel: De bronfilters van een open bodemenergiesysteem moeten geplaatst worden in het gecombineerde tweede en derde watervoerende pakket.
Onderbouwing: Voor het grootschalig toepassen van open bodemenergiesystemen wordt gekozen voor het gecombineerde tweede en derde watervoerende pakket. Dit vanwege de bodem- technische geschiktheid.
- 4.
Regel: De warme en koude bron(nen) van een open bodemenergiesysteem moeten respectievelijk binnen de aangegeven warme (rode) en koude (blauwe) zones worden gepositioneerd.
Onderbouwing: De ruimtelijke ordening van open systemen in het tweede en derde watervoerende pakket vindt plaats op basis van een oriëntatie-patroon in zones. Deze zones zijn uitgewerkt in een kaart die is opgenomen in bijlage 1. Zonering van de bronnen biedt zowel sturing alsmede een stuk flexibiliteit wat betreft inpassing. Het is sturend in de ruimtelijke ondergrondse ordening door het regisseren van het specifiek opslaan van warmte of koude in een bepaalde zone. Dit zodat de opslag van warmte en koude niet gaat interfereren en daarmee het behalen van het totale potentieel niet verhinderd wordt. Het biedt vrijheid in de praktische ruimtelijke inpassing in het terrein. Door het definiëren van een zone en geen vaste bronposities, blijft het mogelijk de ruimtelijke inpassing af te wegen met andere ordeningsbehoeftes voor gebouwen, inrichting openbare ruimte en aanwezige en toekomstige infrastructuur.
Er is gekozen voor een zonering, omdat hiermee het ondergrondse potentieel optimaler wordt benut dan bij alternatieve ordeningsmethodes zoals bijvoorbeeld het kruislings plaatsen van bronnen. Vanwege de relatief diepe ligging van de open bodemenergiesystemen, vormen de hydrologische effecten geen directe belemmering. De oriëntatie van de zones is gebaseerd op de ligging van de ontwikkelvelden, zodat binnen de meeste ontwikkelvelden zowel een koude als een warme zone is opgenomen. De afstanden tussen de stroken zijn bepaald op basis van de te verwachten waterverplaatsing per ontwikkelveld.
- 5.
Regel: De bronfilters van doubletsystemen moeten gerealiseerd worden tot een diepte van maximaal 100 m-mv.
Onderbouwing: Binnen het projectgebied bevinden zich ontwikkelvelden met een relatief lage energievraag, waarvoor mogelijk een monobronsysteem toegepast zou kunnen worden. Binnen het bodemenergieplan wordt daarom ook ruimte geboden om een monobronsysteem toe te passen. Vanwege de relatieve grote dikte van het opslagpakket is ervoor gekozen om een verticale scheiding tussen monobron en doubletsystemen aan te houden. Hierdoor moeten de bronfilters van de doubletsystemen gerealiseerd worden tot een maximale diepte van 100 m-mv.
Dit is voldoende om een bron met een maximale capaciteit van 250 m³/uur te kunnen realiseren.
- 6.
Regel: Een monobron moet op één van de volgende manieren gepositioneerd worden:
- a.
tussen een warme en koude strook, waarbij de monobron geen aantoonbaar negatief effect heeft op aanwezige en mogelijke toekomstige doubletten binnen de stroken.
- b.
in een warme of koude strook, waarbij het bovenste filter van hetzelfde type (warm of koud) moet zijn als de strook waarbinnen hij ligt. Het onderste bronfilter moet onderin het gecombineerde tweede en derde watervoerende pakket geplaatst worden op een diepte van minimaal 120 m-mv.
- a.
Onderbouwing: Het toepassen van monobronnen is mogelijk, indien aangetoond kan worden dat de monobron geen negatieve invloed heeft op bestaande en mogelijk toekomstige doubletsystemen. Hiervoor kan de monobron tussen de warme en koude strook geplaatst worden of kan de monobron in een strook geplaatst worden. Wanneer de monobron tussen de warme en koude strook wordt geplaatst, geldt er geen directe beperking ten aanzien van de diepte van de bronfilters. Wel moet aangetoond worden dat de gewenste situatie geen invloed heeft op aanwezige en toekomstige doubletten. Wanneer de monobron in het zoekgebied wordt ge- plaatst, geldt wel een beperking ten aanzien van de diepte van bronfilters, waarmee gezorgd wordt voor een verticale scheiding tussen andersoortige bronfilters. Hierdoor is van een negatief effect geen sprake. Het bovenste bronfilter van een monobron moet van hetzelfde type zijn als de strook waarbinnen hij ligt. Het onderste bronfilters moet op voldoende afstand van de bronfilters van bestaande en eventueel toekomstige bodemenergiesystemen geplaatst worden. Hiervoor moet het onderste bronfilter vanaf minimaal 120 m-mv geplaatst worden. In onderstaande figuren is dit schematisch weergegeven.
Figuur 5.1 | Schematisatie diepte bronfilters bij een monobron tussen zoekgebieden (links) en een monobron binnen een zoekgebied (rechts)
Onder de toekomstige systemen worden de systemen bedoeld welke redelijkerwijs door de initiatiefnemers voorzien kunnen worden. De initiatiefnemer heeft de inventarisatieplicht om hiervoor in overleg te treden met de gemeente en de meest actuele versie van het bouwprogramma te achterhalen.
- 7.
Regel: Indien het redelijkerwijs niet mogelijk is om aan alle gebruiksregels te voldoen, kan afgeweken worden van de gebruiksregels. Een onderbouwing van de afwijking moet, samen met een schriftelijke goedkeuring van de gemeente, bij de vergunningaanvraag Waterwet gevoegd worden en ter goedkeuring aan de provincie worden voorgelegd.
Onderbouwing: Om ruimte te bieden voor uitzonderlijke situaties, kan afgeweken worden van de gestelde regels. Dit kan echter alleen indien het redelijkerwijs niet mogelijk is om aan alle gebruiksregels te voldoen. In dat geval moet in eerste instantie in overleg met de gemeente Amersfoort bepaald worden of de afwijking is toegestaan. Pas nadat de gemeente een schriftelijke toestemming heeft gegeven kan de initiatiefnemer deze toestemming met een onderbouwing van de afwijking bij de vergunningaanvraag Waterwet toevoegen. Daarmee wordt de afwijking ter goedkeuring aan de RUD Utrecht, gemandateerd door de provincie Utrecht voor het verlenen van een vergunning Waterwet, voorgelegd.
5.2GEBRUIKSREGELS VOOR OPEN BODEMENERGIESYSTEMEN BINNEN HET PROJECTGEBIED
- 8.
Regel: Het bodemenergiesysteem bereikt uiterlijk vijf jaar na de datum van ingebruikname een moment waarop de hoeveelheid koude die door het systeem aan de bodem is toegevoegd ten minste 100% en ten hoogte 115% bedraagt ten opzichte van de hoeveelheid warmte, die vanaf die datum door het systeem aan de bodem is toegevoegd. Het systeem herhaalt dit telkens uiterlijk vijf jaar na het laatste moment waarop die situatie werd bereikt.
Onderbouwing: Het vraagprofiel van de meeste gebouwen binnen De Hoef West tonen een grotere warmte- dan koudebehoefte. Dit impliceert dat voor de meerderheid van de systemen, vanuit het behalen van financieel voordeel, een koudeoverschot wenselijk is. Een accumulatie van systemen met een koudeoverschot staat het optimaal gebruik van de onder- grond in de weg. Om toch een financieel voordeel te behalen zonder het in de weg staan van het optimaal gebruik van de ondergrond, is opgenomen dat systemen ten minste 100% en ten hoogste 115% koude mogen toevoegen in de bodem ten opzichte van de ingebrachte warmte. Op basis van ervaring bij soortgelijke locaties blijkt dat de invloed van een beperkt koude- overschot (115%) slechts een kleine invloed heeft op de omvang van de thermische effecten. Daarom is in de gebruiksregels opgenomen dat een beperkt koudeoverschot tot maximaal 115% is toegestaan. Om het koudeoverschot te beperken moet mogelijk met aanvullende voorzieningen in de zomer extra warmte ingevangen worden.
- 9.
Regel: De bronnen en het leidingwerk moeten gerealiseerd worden op eigen terrein, gedeeld terrein of, indien niet anders mogelijk, terrein van derden mits de betreffende grondeigenaren hiervoor schriftelijk toestemming hebben gegeven.
Onderbouwing: De openbare ruimte in De Hoef West zit vol met kabels en leidingen. Het is daarom niet wenselijk om de openbare ruimte meer te belasten met bronnen en leidingwerk. Daarom moeten de bronnen en het leidingwerk in basis op eigen terrein, gedeeld terrein of terrein van derden niet zijnde de gemeente geplaatst worden. Wanneer er redelijkerwijs geen mogelijkheden zijn voor plaatsing op deze terreinen, kan in samenspraak met de gemeente (afdeling Leefomgeving) gezocht worden naar geschikte bronposities in de openbare ruimte. Deze openbare ruimte kan gezien worden als terrein van derden (zijnde de gemeente). Dit kan alleen als er voldoende openbare ruimte beschikbaar is, dit de aanleg en uitbreiding van andere kabels en leidingen en het onderhoud van bestaande voorzieningen niet belemmerd.
Voor de aanleg van de kabels en leidingen ten behoeve van een bodemenergiesysteem in gemeentelijke gronden is een vergunning aanleg ondergrondse infrastructuur (kabels en leidingen) nodig. Deze moet aangevraagd worden bij de afdeling Leefomgeving. Daarnaast gelden onder andere de volgende regels:
- •
De openbare gronden waarin de bodemenergie-voorziening wordt aangelegd, blijven eigen- dom van de gemeente.
- •
Voor de aankleding en inpassing van de bronnen/putten in de openbare ruimte moet worden overlegd met de afdeling Ruimtelijke ordening.
- •
Op de uitvoering van de werkzaamheden zijn de beleidsregels kabels en leidingen van toe- passing.
- •
Met proefsleuven moet onderzocht worden of er daadwerkelijk ruimte is.
5.3GEBRUIKSREGELS GESLOTEN BODEMENERGIESYSTEMEN
- 1.
Regel: Gesloten bodemenergiesystemen mogen tot een diepte van maximaal 20 m-mv ge- realiseerd worden.
Onderbouwing: De energievraag van de gebouwen sluit het beste aan op de toepassing van open bodemenergiesystemen. Daarom wordt in het bodemenergieplan ruimte geboden voor het toepassen van open bodemenergiesystemen boven de toepassing van gesloten bodemenergie- systemen. Om thermische interferentie tussen open en gesloten bodemenergiesystemen te voorkomen is een verticale scheiding tussen deze systemen aangehouden en worden de geslo- ten bodemenergiesystemen toegestaan tot een diepte van maximaal 20 m-mv.
- 2.
Regel: Indien het redelijkerwijs niet mogelijk is om aan de gebruiksregel te voldoen, kan afgeweken worden van de gebruiksregel. Een onderbouwing van de afwijking moet ter goedkeuring aan de gemeente worden voorgelegd.
Onderbouwing: In een uitzonderlijke situatie kan het mogelijk zijn om af te wijken van de gestelde gebruiksregel. Dit kan echter alleen indien het redelijkerwijs niet mogelijk is om aan de gebruiksregel te voldoen en de beoogde invulling van het plangebied met open bodemenergiesystemen voor de toekomstige ontwikkelingen niet in het geding is. In dat geval moet in overleg met de gemeente Amersfoort bepaald worden of de afwijking is toegestaan. Pas nadat de gemeente een schriftelijke toestemming heeft gegeven kan de initiatiefnemer deze toe- stemming met een onderbouwing van de afwijking bij de vergunningaanvraag toevoegen.
Bijlage 1 – Plankaart
Bijlage 2 - Kentallen en uit- gangspunten
TOELICHTING
ALGEMEEN
Voor een algemene toelichting op de reden van de bundeling van voorliggende beleidsregels wordt verwezen naar de Algemene toelichting opgenomen paragraaf 1.1 van de Toelichting van de verordening fysieke leefomgeving Amersfoort.
De aanpak van de inventarisatie van de verordeningen en beleidsregels staat voorts in paragraaf 1.2 van de Toelichting van de verordening fysieke leefomgeving Amersfoort beschreven
Genoemde inventarisatie heeft tot de volgende bundeling geleid:
Opnemen in de beleidsregels fysieke leefomgeving Amersfoort:
- 1.
Beleidsregel Bomen 2014
- 2.
Beleid voor het afwijken van het bestemmingsplan 2010*
- 3.
Beleidsregels voor het plaatsen van GSM-installaties 2000
- 4.
Beleidsregels kamerverhuur gemeente Amersfoort 2017
- 5.
Beleidsregels Standplaatsvergunningen Amersfoort 2013
- 6.
Beleidsregels Oplaadinfrastructuur Elektrische Voertuigen 2016
- 7.
Beleidsregels kabels en leidingen Amersfoort 2009*
- 8.
De terrassennota Amersfoort 2013
- 9.
Marktreglement Amersfoort 2013
* Alsnog niet opnemen in de nadere regels en beleidsregels fysieke leefomgeving Amersfoort
- •
Het afwijkingenbeleid voor het bestemmingsplan is verouderd (vastgesteld op 30 december 2010). Er is een nieuwe versie van de beleidsregels welke in de praktijk sinds 2017 al wordt toegepast middels afzonderlijke omgevingsvergunningen. We kunnen het gewijzigde afwijkingenbeleid nu niet beleidsneutraal in voorliggende verordening meenemen. Het is efficiënter en praktischer om deze regels direct mee te nemen in het Omgevingsplan voor het hele grondgebied en ook in de pilots omgevingsplan voor het Hoogland en De Hoef-west.
- •
De beleidsregels kabels en leidingen zijn niet opgenomen omdat het grotendeels gaat om uitwerking van de Telecomwet, procedureregels, voorschriften en instructies voor netwerkbeheerders.
TOELICHTING PER HOOFDSTUK
Hoofdstuk 1 Algemene bepalingen
Begripsbepalingen behorende bij hoofdstuk 6 Kamerverhuur
bestaand kamerverhuurpand: Bij een aanvraag voor kamergewijze verhuur worden alle bestaande kamerverhuurpanden in de beoordeling meegenomen, ongeacht of deze vergund zijn of niet. Als toetsmoment geldt hier de inwerkingtreding van de vorige beleidsregel, namelijk 30 maart 2017. Daarnaast worden alle nog niet voor kamergewijze verhuur in gebruik zijnde panden waarvoor een aanvraag is gedaan voor kamergewijze verhuur ook in de beoordeling meegenomen. Hier geldt als toetsmoment de indiening van de aanvraag voor omgevingsvergunning. De aanvraag die het eerst is ingediend, is leidend. Door alle bestaande kamerverhuurpanden in de beoordeling mee te nemen en hier ook de aangevraagde kamerverhuurpanden bij te betrekken, ontstaat een compleet beeld van de situatie in de directe omgeving van het beoogde kamerverhuurpand.
Onzelfstandige woonruimte: bijvoorbeeld studentenkamers en hospitakamers.
Elektrischevoertuigen: het gaat hierbij om alle voertuigen die op de openbare weg mogen rijden, geheel of gedeeltelijk op elektriciteit kunnen rijden en voorzien zijn van een stekker om op te laden. Veelal zal het gaan om volledig elektrische auto’s of plug-in hybride elektrische auto’s, maar het kan bijvoorbeeld ook gaan om andere voertuigen, zoals gehandicaptenvoertuigen, motoren, trikes en quads die de parkeerplaatsen voor auto’s gebruiken.
Hoofdstuk 4 Markten
Artikel 4.1 Dag, tijd en plaats van de markt
- 1.
Burgemeester en wethouders stellen de markt in en geven aan waar en wanneer de markt wordt gehouden.
- 3-6.
In geval van bijzondere of dringende omstandigheden kunnen burgemeester en wethouders de markt verplaatsen, af gelasten dan wel anders inrichten. Dit kan het geval zijn als bijvoorbeeld het weer van dusdanige aard is dat de veiligheid in het geding is. Bij dringende redenen dient gedacht te worden aan bijvoorbeeld herstel- of onderhoudswerkzaamheden, herinrichting of aan een bijzondere en incidentele gebeurtenis dan wel grootschalig evenement met een bovenregionale uitstraling en een aanzienlijke promotionele waarde voor Amersfoort, dat niet zonder meer binnen afzienbare tijd op de zelfde plaats wordt herhaald.
Artikel 4.2 Inrichting van de markt
De inrichting van de markt is vastgelegd in het standplaatsenplan. Rekening dient te worden gehouden met logistieke- en calamiteitenroutes, verdeling van branches en locaties voor bakwagens.
Artikel 4.3 Branche-indeling
Branchering is bedoeld om de markt attractiever te houden en aan een evenwichtig aanbod te komen. De branches zijn daartoe gemaximaliseerd. Op aanvraag kan maximaal 1 extra standplaats worden toegewezen met een branche welke nog niet in de brancheringlijst is opgenomen.
Artikel 4.4 Inschrijving op de anciënniteitlijst
Vrijwel alle marktkooplieden koesteren anciënniteit vanwege de uitoefening van “rechten”. In de praktijk beperkt de toepassing zich alleen tot een eerste keuze bij een plaatsverandering, een herindeling of marktverplaatsingen. Over het algemeen leidt het ertoe dat degene met de hoogste anciënniteit de beste plek op de markt heeft.
Artikel 4.6 Registratie in de gegadigdenadministratie
Gegevens van een marktkoopman kunnen worden in de gegadigdenadministratie worden geregistreerd tegen betaling van € 10,00. Als een plek/branche vrij komt beschikken burgemeester en wethouders over gegadigden voor inname van die opengevallen standplaats. Men kan dan direct in de gelegenheid worden gesteld op de markt te komen, hetgeen leegstand voorkomt.
Artikel 4.7 Doorhalen van registratie in de gegadigdenadministratie
Gewenst is om de registratie regelmatig op te schonen en slechts gegadigden achter de hand te hebben die ook daadwerkelijk willen en kunnen starten wanneer de ruimte daarvoor op de markt vrij is gekomen.
Artikel 4.8 Overschrijving vaste standplaatsvergunning
In dit artikel wordt de overschrijving van de vergunning geregeld. Overgaan van de vergunning voor dé betreffende plek kan op een (levens)partner met wie vergunninghouder duurzaam samenwoonde, met behoud van de plaats van anciënniteit. Overgaan van het recht op een plek op de markt kan op een kind van vergunninghouder dan wel een mede-eigenaar of medewerker die drie jaren onafgebroken in deze relatie staat, waarbij de plaats van anciënniteit komt te vervallen. Het gaat hier niet om dé plek maar het recht op een plek op de markt. De achterliggende gedachte is dat slechts een levenspartner direct in de inkomensvoorziening geschaad is wanneer vergunninghouder komt te overlijden of stopt met werken dan wel niet meer kan werken. Voor wat betreft overgaan op mede-eigenaar of medewerker wordt hiermee voorkomen dat er handel in standplaatsen ontstaat. Vergunninghouders met een hogere anciënniteit die hebben aangegeven betreffende standplaats te willen innemen gaan dan voor.
Artikelen 4.9 - 4.12
In deze artikelen wordt de -volgorde van- toewijzing van standplaatsen op de markt geregeld.
Artikelen 4.13 - 4.14 (Eisen) eigen materiaal
Steeds vaker is sprake van verkoopwagens. Soms zijn verkoopwagens ook vereist en nodig vanwege de gestelde eisen met betrekking tot koeling of verhitting van producten. In dat geval kan toestemming worden gegeven voor een verkoopwagen. De dringende voorkeur van Burgemeester en wethouders in Amersfoort gaat echter, gelet op het historische karakter van de stad, uit naar “ouderwetse” kramen. Daarom dient terughoudend om te worden gegaan met toestemming voor verkoopinrichtingen, anders dan kramen. Met name in de binnenstad van Amersfoort, nu veel verkoopwagens op de markt trekjes krijgen van een parkeerterrein, hetgeen op de pleinen ongewenst is. Bovendien hebben de verkoopwagens verschillende afmetingen en worden ze steeds groter en langer, waardoor ze diens standplaatsen niet altijd gemakkelijk kunnen bereiken en de op- en afbouw en logistiek belemmerd worden. In de praktijk blijkt dat het marktterrein daarmede ook later pas weer opgeleverd kan worden ten behoeve van overige functies van de pleinen. Bijkomend aandachtspunt is dat geen kramenexploitant meer te vinden is wanneer het aantal kramen verder afneemt. Gevolg daarvan is dat de markt over zal gaan in zeer kleine vorm met slechts verkoopwagens. De kramen zijn overigens van veilige materialen en kunnen goed worden geankerd en worden door een bedrijf veilig opgesteld. Dit in tegenstelling tot bijvoorbeeld parasols of partytenten, welke van allerhande materialen zijn en veel wind vangen. Bovendien hebben parasols en partytenten een negatieve uitstraling. Samengevat dient de vergunninghouder in beginsel in het kader van veiligheid en het aanzien van de markt gebruik te maken van een of meer kramen, die moeten worden gehuurd bij de door burgemeester en wethouders aangewezen kramenexploitant.
Artikelen 4.15 - 4.17 Inname standplaats
Deze artikelen regelen de aan- en afwezigheid. Vanwege continuïteit van de markt en ter voorkoming van leegstand is er een aanwezigheidsverplichting. Vervanging is mogelijk gemaakt zodat de vergunninghouder zich bezig kan houden met inkoop, administratie etc., terwijl de standplaats op de markt ingenomen is door diens plaatsvervanger.
Artikelen 4.18 – 4.20
Deze bepalingen hebben te maken met een ordelijk en veilig verloop alsmede de continuïteit van de markt.
Artikel 4.21 Promotie/gedrukte stukken/propaganda
De markt is bedoeld voor ambulante handel. Met dit artikel wordt voorkomen dat overlast ontstaat door overige bezigheden.
Artikel 4.22 Schoonhouden en opleveren standplaats
Dit artikel regelt het aanzien en opleveren van de standplaats.
Artikel 4.23 Gebruik van elektrische- en/of geluidsapparatuur
Vanwege veiligheid, duurzaamheid en capaciteit is het gewenst zo min mogelijk gebruik te laten maken van elektriciteit. Bijvoorbeeld elektrische kachels, tostiapparaten en koffieapparaten geven ook nog problemen vanwege de piekspanning die gevraagd wordt en waardoor her en der de elektriciteit kan uitvallen. Ter voorkoming van onnodige herrie wordt uitgegaan van een verbod op het gebruik van geluidsapparatuur.
Artikel 4.24 Uitstallingen
Toestemming is nodig om te voorkomen dat iedereen van alles op het marktterrein plaatst. Ter promotie kan toestemming worden gegeven bijvoorbeeld een bord of uitstalling te plaatsend, daar waar het niet in de weg staat.
Artikel 4.25 Het stallen van rij- en voertuigen
De historische (binnen)stad leent zich qua aanzien en ruimte niet voor plaatsing van voertuigen op het marktterrein. Op de pleinen is het dan ook niet toegestaan een voertuig op de standplaats te parkeren. Parkeren op het marktterrein is ongewenst en de binnenstad is autoluw. Slechts op
De Beurs in Kattenbroek, daar waar de markt in een lintvorm op een parkeerterrein wordt gehouden, kan toestemming worden gegeven om de auto achter de verkoopinrichting te plaatsen. Daar staan de voertuigen niet in de weg en er vanaf de achterzijde is geen zicht op de markt.
Artikel 4.26 Algemene veiligheidsnormen
In verband met de (brand)veiligheid op de markten zijn er een aantal expliciete veiligheidsnormen opgenomen. Verwezen kan worden naar de handreiking Veiligheid op de Markt, tot stand gekomen in samenwerking tussen CVAH, VNG, BOAH, Brandweer en BMC. Voldaan dient te worden aan de NEN 1010 norm. Deze norm bevat de minimumveiligheidseisen waaraan laagspanningsinstallaties moeten voldoen. De kook-, bak- en braadinstallaties en verwarmingsapparatuur moet voldoen aan de norm NEN NPR 2577. Verder dienen op grond van de NEN 2559 blusmiddelen jaarlijks te worden gecontroleerd door een deskundig persoon.
Hoofdstuk 6 Kamerverhuur
Aanleiding
Kamerverhuur (verhuur van onzelfstandige woonruimten) is een gewilde woonvorm en vervult een belangrijke maatschappelijke functie. Kamerverhuur kan in sommige gevallen echter ook leiden tot aantasting van de woonkwaliteit van de omgeving door bijvoorbeeld verrommeling of geluidsoverlast. Door regulering van kamerverhuurpanden kan deze overlast voor een deel worden voorkomen. Met de invoering van de nieuwe Huisvestingswet is de omzettings- en splitsingsvergunning uit de Huisvestingsverordening vervallen. Daarmee is een deel van de regulering van kamerverhuur verdwenen. Het enige reguleringsmiddel is de omgevingsvergunning om af te wijken van het bestemmingsplan. Voor de beoordeling van aanvragen voor een dergelijke vergunning bestaat echter nog geen beleid, anders dan de toetsing aan de Nota parkeernormen. Er is behoefte aan regulering van kamerverhuur door overmatige concentraties van kamerverhuurpanden te voorkomen. Hiervoor is het nodig dat niet alleen het pand zelf, maar ook de situatie in de straat en wijk beoordeeld wordt. Daarnaast is uit recente uitspraken van de rechtbank gebleken dat onze beperkte toetsing aan de Nota Parkeernormen onvoldoende is om een verleende vergunning om af te wijken van het bestemmingsplan te motiveren.
Beleidsregels
In de gemeente Amersfoort is kamerverhuur binnen de meeste bestemmingsplannen niet bij recht mogelijk, maar het uitgangspunt is om kamerverhuur mogelijk te maken als dat past binnen de omgeving. Wanneer sprake is van strijd met het bestemmingsplan, kan een initiatiefnemer bij de gemeente een aanvraag doen voor een omgevingsvergunning voor planologisch strijdig gebruik. Deze beleidsregels geven een toetsingskader om die aanvragen te beoordelen. Het beleid moet evenwicht bieden aan meerdere belangen; het belang van goede en voldoende huisvesting en het belang van het beschermen van het woon- en leefklimaat in de stad.
Uitgangspunten beleid
Kamerverhuur mogelijk maken
Amersfoort is een levendige stad met een variëteit aan inwoners en woonwensen. Door het aanbod van hoger onderwijs in Amersfoort is er vraag naar studentenhuisvesting. Ouderen blijven langer thuis wonen. En ook voor statushouders en cliënten uit zorginstellingen bestaat er behoefte aan woningen die door meerdere mensen gedeeld kunnen worden. Amersfoort wil aan deze behoeften kunnen voldoen.
Beter sturen op leefbaarheid
Kamerverhuur brengt levendigheid, maar kan ook leiden tot leefbaarheidsproblemen. Denk aan geluidsoverlast, parkeerdruk en frictie door verschillende leefstijlen in een straat of buurt. Door vooraf goede afwegingen te maken kan dit beter worden beheerst. In het stadshart en de wijken daaromheen past het woonkarakter en de dynamiek die kamerverhuur met zich meebrengt vaak goed. In andere woonwijken is kamerverhuur ook mogelijk, maar is er meer spreiding gewenst.
Eenduidig en transparant
In deze beleidsregel is onder meer opgenomen waaraan een aanvraag voor een omgevingsvergunning moet voldoen en welke afwegingen door de gemeente worden gemaakt, alvorens een besluit te nemen op de aanvraag. Door dit toetsingskader is voor aanvragers en omwonenden duidelijk waaraan een aanvraag wordt getoetst, waarmee de rechtszekerheid beter wordt geborgd.
Handhaving
Handhaving op illegale kamerverhuur vindt plaats conform het Handhavings Uitvoerings Programma van de gemeente Amersfoort. Daarnaast wordt bij verzoeken om handhaving tegen illegale kamerverhuur of aanhoudende klachten over overlastgevende kamerverhuurpanden in specifieke gevallen opgetreden als een overtreding wordt geconstateerd. Dit kan door een last onder dwangsom op te leggen, maar ook door een reeds verleende vergunning in te trekken.
Artikel 6.1
De plattegronden en tekeningen zoals aangegeven onder f, g en h van dit artikel zijn nodig voor het bepalen van de parkeernorm voor zowel auto’s als fietsen en het voorkomen van verrommeling van het straatbeeld door duidelijkheid over de locatie van afvalcontainers en buitenopslag.
Artikel 6.2
Dit artikel geeft aan onder welke omstandigheden van het bestemmingsplan kan worden afgeweken en wanneer niet. De in dit artikel genoemde leden sluiten elkaar niet uit.
Het eerste lid verwijst naar de bijlage waarop op de kaart de verschillende zones zijn aangegeven die van belang zijn voor de beoordeling van de aanvraag. Deze kaart geeft aan binnen welke gebieden afwijken van het bestemmingsplan mogelijk is. Per zone zijn hieraan verschillende voorwaarden gekoppeld. De kaart is daarbij leidend, dat wil zeggen dat er in principe geen ruimte is om op basis van deze beleidsregel van de zonering af te wijken. Wel kan de kaart periodiek naar aanleiding van voortschrijdend inzicht worden aangepast.
Het tweede lid geeft aan in welke gevallen de aanvraag moet worden geweigerd door het bevoegd gezag.
In de binnenstad is kamerverhuur in het bestemmingsplan bij recht toegestaan. Nabij het centrum, in zone 1, is concentratie van kamerverhuur al aanwezig en vaak goed mogelijk. Hier dienen 3 panden tussen 2 kamerverhuurpanden aanwezig te zijn. Zone 2 kent meer een karakter van eengezinswoningen en daar wordt ingezet op spreiding. Hier moeten minimaal 5 panden tussen kamerverhuurpanden aanwezig zijn.
Het derde lid geeft aan in welke gevallen de aanvraag kan worden geweigerd door het bevoegd gezag. In die gevallen gaat het om afwentelen van eventuele kosten van planschade. De vergunning kan worden geweigerd indien redelijkerwijs moet worden aangenomen dat vergunningverlening zou kunnen leiden tot verstoring van een geordend woon- en leefmilieu in de omgeving van het gebouw waarop de aanvraag betrekking heeft. Hiervan kan bijvoorbeeld sprake zijn indien er naast de aangevraagde kamerverhuur panden met een overlastgevend karakter aanwezig zijn of er andere ruimtelijke argumenten zijn om geen medewerking te verlenen. Met deze algemene regel kan per geval maatwerk worden geleverd.
Het vierde lid regelt het de geluidsisolatienorm tussen twee woningen. Burenlawaai kan als zeer hinderlijk worden ervaren. Zeker bij kamerverhuur is het vanuit een oogpunt van goede ruimtelijke ordening daarom van belang geluidshinder naar de buren te beperken. Uit een rapportage van een erkend bureau dient te worden aangetoond of het pand voldoet aan de norm van tenminste 52 dB luchtgeluidsisolatie naar de naastgelegen woningen, dan wel op welke wijze dit gerealiseerd gaat worden.
Overigens zijn alle in het Bouwbesluit genoemde voorschriften rechtstreeks werkend. Bij in gebruikname van het kamerverhuurpand moet aan alle regels zoals bijvoorbeeld brandveiligheid en ventilatie worden voldaan. De gemeente kan hierop inspecties uitvoeren en indien nodig handhavend optreden.
Toelichting:
Artikel 6.3
Naast de algemene intrekkingsgronden uit artikel 2.33 van de Wabo, kan de omgevingsvergunning op grond van artikel 5.19 lid 1 onder c van de Wabo ook worden ingetrokken indien niet is of wordt voldaan aan de voorschriften van de omgevingsvergunning.
Met lid 2 kan een vergunning worden ingetrokken als met het gebruik van het bouwwerk het woon- en leefmilieu in de directe omgeving onder druk komt te staan door aanhoudende meldingen en klachten van omwonenden door bijvoorbeeld voortdurend geluidsoverlast.
Hoofdstuk 7 GSM-installaties
Algemeen
Bij de toepassing van planologische vrijstellingsprocedures aangaande de plaatsing van installaties ten behoeve van de mobiele telefonie vindt de beoordeling van de aanvraag om bouwvergunning plaats aan de hand van deze beleidsregels.
Hoofdstuk 8 digitale handelsreclame
Digitale reclame is reclame die digitaal wordt vertoond of geprojecteerd op een digitaal scherm, zoals een televisiescherm, digitaal reclamebord, digitale lichtbak aan een lichtmast en projector.
Zowel het licht dat het digitale scherm uitstraalt als de verspringende of bewegende beelden kunnen overlast veroorzaken voor de omgeving. Dit kan zijn lichthinder, bijvoorbeeld wanneer een digitaal scherm wordt geplaatst in een woonwijk, of afleiding door de verspringende of bewegende beelden wat de verkeersveiligheid mogelijk kan beïnvloeden.
In ‘Bijlage 8: Zonering digitale buitenreclame’ is aangegeven waar in de openbare ruimte digitale reclame kan worden toegepast en of bewegende beelden zijn toegestaan.
Digitale reclame is in de openbare ruimte toegestaan in de volgende zones:
-
Zone 1: Doorgaande wegen (zie kaart bijlage 8; blauwe zones)
-
Zone 2: Specifieke locaties (zie kaart bijlage 8; blauwe stippen)
-
Zone 3: Verblijfsgebieden (zie kaart bijlage 8; licht blauw gemarkeerd)
Digitale reclame is niet toegestaan in de binnenstad vanwege het beschermd stadgezicht. Ook in het buitengebied is digitale reclame niet toegestaan.
Digitale reclame in de zones 1 en 2 zijn toegestaan onder de volgende voorwaarden:
- •
Alleen stilstaand beeld is toegestaan (elke vorm van animatie is niet toegestaan).
- •
De minimale duur van een reclame-uiting bedraagt 6 seconden.
- •
Ten aanzien van lichthinder dient categorie E3 (‘Stedelijk gebied’) van de NSVV gehanteerd te worden.
Digitale reclame in zone 3 (verblijfsgebieden) is toegestaan onder de volgende voorwaarden:
- •
Bewegend beeld is toegestaan, mits deze niet te zien is vanaf de doorgaande weg.
- •
Ten aanzien van lichthinder dient categorie E4 (‘Stadscentrum/ Industriegebied’) van de NSVV gehanteerd te worden.
Hoofdstuk 9 Bodemenergiesystemen
Artikel 9.1
Geen toelichting.
Artikel 9.2 Aanleg gesloten bodemenergiesystemen binnen een interferentiegebied
In aanvulling op de algemene weigeringsgronden die in het Besluit omgevingsrecht zijn opgenomen, zijn in deze beleidsregels specifieke weigeringsgronden opgenomen om te komen tot een juiste ordening van bodemenergiesystemen in de ondergrond en een goede uitvoering van het besluit.
De gemeente beoogt daarmee te bewerkstelligen dat binnen het interferentiegebied “Vathorst De Laak 2B, de Velden 1F en Waterdorp”, “Laak 3”, “De Hoef West” en omgeving een scheiding plaatsvindt in de aanleg van gesloten en open bodemenergiesystemen, zodanig dat de bodemlaag die het meest geschikt is voor de aanleg van open systemen daarvoor zoveel mogelijk beschikbaar wordt gesteld (zie toelichting diepte aanleg gesloten bodemenergiesystemen). In het interferentiegebied Vathorst De Laak 2B , de Velden 1F wordt geen gasaansluiting gefaciliteerd. Om alle partijen, variërend van projectontwikkelaars tot particulieren, te kunnen voorzien van warmte en koude is het gebied geordend in zoekgebieden. Deze zijn specifiek voor de grotere open systemen en kleinere gesloten systemen, zodat de systemen elkaar zo min mogelijk negatief beïnvloeden.
Diepte aanleg gesloten bodemenergiesystemen Amersfoort
De bodemopbouw van Amersfoort bestaat uit een aantal watervoerende pakketten met daartussen waterremmende lagen. De ondergrond kent 3 verschillende landschapstypen. Voor de geomorfologie wordt de bodemopbouw in 2 delen verdeeld:
Amersfoort Noord
Aan de noordzijde van Amersfoort zijn drie watervoerende pakketten aanwezig. Het eerste watervoerende pakket bestaat overwegend uit fijn tot matig grof zand. Qua bodemstructuur en doorlaatvermogen is dit pakket dan wel geschikt voor de toepassing van open systemen, maar vanwege de ondiepe ligging en de geringe dikte (maximaal 10 m) niet.
Het tweede watervoerende pakket bestaat uit matig grof tot zeer grof zand dat deels grindhoudend is. Het pakket heeft een hoog doorlaatvermogen. In het pakket komen enkele lokale kleilagen voor. In het zuidwestelijk deel van het gebied bevinden zich mogelijk enkele gestuwde afzettingen. De bodemstructuur en dikte van het tweede watervoerende pakket (circa 130 m) bieden goede mogelijkheden voor de toepassing van open en gesloten systemen.
Het derde watervoerende pakket bestaat uit afwisselend fijn zand en zandige klei met veel schelpmateriaal. Het doorlaatvermogen van dit pakket is minder goed dan het tweede watervoerende pakket. Vanwege de grote dikte (circa 100 meter) biedt dit pakket echter wel
mogelijkheden voor de toepassing van open systemen. Maar door de grote diepte van dit pakket is de toepassing van bodemenergiesystemen in dit pakket financieel mogelijk minder interessant.
Figuur 1. geohydrologische doorsnede Amersfoort Noord
Amersfoort Zuid
De bodemopbouw in het zuiden komt grotendeels overeen met de bodemopbouw in het noorden van Amersfoort. Een verschil is dat in het zuiden de eerste scheidende laag (Eemklei) ontbreekt. Hierdoor vormen het eerste en tweede watervoerende pakket een gecombineerd pakket. De bodemstructuur en dikte van dit gecombineerde pakket bieden goede mogelijkheden voor de toepassing van open en gesloten systemen.
Figuur 2: geohydrologische doorsnede zuid
Daar waar de eerste scheidende laag aan de zuidzijde wel aanwezig is, is hetzelfde van toepassing als in het noorden. Het eerste watervoerende pakket is vanwege de geringe dikte en ondiepe ligging niet geschikt en het tweede watervoerende pakket is wel geschikt voor de toepassing van open systemen. En groot verschil met regio noord is dat de tweede scheidende laag en het derde watervoerende pakket dunner zijn dan aan de noordzijde van de gemeente. Het derde watervoerende pakket kan aan de zuidzijde slechts beperkt capaciteit leveren voor de toepassing van open systemen in tegenstelling tot regio noord.
Toetsing interferentie
Bij het verlenen van een vergunning voor de aanleg van een gesloten bodemenergiesysteem (OBM), toetst de gemeente of sprake is van overlap (interferentie) van het thermische invloedsgebied van het nieuwe systeem met bestaande bodemenergiesysteem. Door interferentie vermindert het energierendement van de betrokken systemen, zowel bestaand als nieuw, wat een reden kan zijn om de vergunning voor het nieuwe systeem te weigeren. Om te bepalen of tussen systemen sprake is van negatieve interferentie wordt getoetst op de beleidsregels en onderliggende gebruiksregels uit de bodemenergieplannen. Ook wordt indien nodig gebruik gemaakt van de methodiek die is opgenomen in Bijlage 2 van de Handhavingsuitvoeringsmethode Bodemenergiesystemen voor gemeentelijke taken (*HUM BE deel 2), vastgesteld door het Centraal College van Deskundigen Bodembeheer op 26 maart 2020, Versie 2.4 of een opvolger hiervan. De HUM is te verkrijgen via www.sikb.nl.
Artikel 9.3: De aanvrager van een vergunning
Om te voorkomen dat een vergunning als concessie met commerciële waarde wordt gebruikt, wordt alleen aan direct belanghebbenden toegestaan een vergunning voor een gesloten WKO-systeem aan te vragen. Onder belanghebbenden wordt verstaan:
- •
de eigenaar of erfpachter van een grondgebied,
- •
degene die namens een eigenaar of erfpachter een gebouw in beheer en/of exploitatie heeft, of
- •
degene die het gesloten bodemenergiesysteem gaat aanleggen, mits hierover aantoonbaar overeenstemming is bereikt met de eigenaar of erfpachter van het grondgebied.
Indien de vergunning niet door 1 van de bovenstaande belanghebbenden wordt aangevraagd, zal de vergunning worden geweigerd.
Artikel 9.4: De plaatsing van een gesloten bodemenergiesysteem
Voor de aanleg van een gesloten bodemenergiesysteem worden leidingen en lussen in de bodem aangebracht. Een kwestie die daarbij nadrukkelijk een rol speelt, maar die niet in het Besluit bodemenergiesystemen wordt geregeld, is het eigendom van de energiesystemen. Daarom wordt teruggevallen op het reguliere goederenrecht (artikel 5:20 leden 1 en 2 van het Burgerlijk Wetboek). Daarnaast is het zo, dat de aanleg van een gesloten bodemenergiesysteem buiten de eigendomsgrenzen van de initiatiefnemer, gevolgen kan hebben voor plaatsing van bodemenergiesystemen op aangrenzende terreinen. Verder dient rekening gehouden te worden met aanwezige boven- en ondergrondse infrastructuur en kabels en leidingen. Daarom is in deze beleidsregel bepaald, dat plaatsing van een gesloten bodemenergiesysteem in beginsel alleen is toegestaan op het eigen terrein. Indien dat niet mogelijk is en voorzieningen moeten worden aangebracht op terreinen van derden, is schriftelijke toestemming van die betrokken derde vereist. Daarmee wordt beoogd dat beperkingen voor het bestaande en/of het toekomstige gebruik van de bodem van de nabijgelegen grondgebieden voor de aanleg van bodemenergiesystemen zoveel mogelijk worden beperkt.
Voor zover het gesloten bodemenergiesysteem wordt aangebracht in of mede in gemeentegrond, wordt met schriftelijke toestemming bedoeld: de vergunning met betrekking tot het leggen van kabels en leidingen in het kader van de ondergrondse nutsvoorzieningen, die voor de plaatsing van een gesloten bodemenergiesysteem dient te worden aangevraagd (zie ook de Regeling Inrichting Openbare Ruimte). De vergunning wordt mede gezien als schriftelijke toestemming van de gemeente, indien het gesloten bodemenergiesysteem mede op of in gemeentegrond wordt aangelegd. De aangelegde kabels en leidingen in gemeentegrond dienen overeenkomstig de Wet Informatie-uitwisseling Ondergrondse Netten (WION) te worden aangemeld bij het kadaster.
Voor aanleg mede op of in terreinen van derden, niet zijnde de gemeente, is schriftelijke toestemming van die betrokken derde noodzakelijk. Uitgangspunt daarbij is dat, indien een gesloten bodemenergiesysteem niet uitsluitend op het eigen terrein kan worden aangelegd, het ruimtebeslag op het terrein van derden zo wordt gekozen, dat dit geen of een minimaal effect heeft op de mogelijkheden om op het aangrenzende terrein ook een bodemenergiesysteem te plaatsen.
Indien een bodemenergiesysteem niet (uitsluitend) op eigen terrein wordt geplaatst, en de in dit artikel vereiste toestemming van de betrokken eigenaar of erfpachter, op wiens terrein een (deel van het) systeem wordt aangelegd, ontbreekt, wordt de vergunning geweigerd.
Ziet u een fout in deze regeling?
Bent u van mening dat de inhoud niet juist is? Neem dan contact op met de organisatie die de regelgeving heeft gepubliceerd. Deze organisatie is namelijk zelf verantwoordelijk voor de inhoud van de regelgeving. De naam van de organisatie ziet u bovenaan de regelgeving. De contactgegevens van de organisatie kunt u hier opzoeken: organisaties.overheid.nl.
Werkt de website of een link niet goed? Stuur dan een e-mail naar regelgeving@overheid.nl