Besluit van de gemeenteraad van de gemeente Duiven houdende regels omtrent welstand

Geldend van 25-02-2026 t/m heden

Intitulé

Besluit van de gemeenteraad van de gemeente Duiven houdende regels omtrent welstand

VOORWOORD

 

Ik ben verheugd u de geheel nieuwe welstandsnota van Gemeente Duiven te presenteren. Een nota die compact, concreet en duidelijk is. Dat is mogelijk omdat wij het vertrouwen hebben dat de inwoners van Duiven, Groessen en Loo met zorg met hun omgeving om gaan.

Ruimtelijke kwaliteit is het belang van ons allen. De gemeente neemt haar verantwoordelijkheid voor de ruimtelijke kwaliteit waar dat nodig is, en geeft haar burgers en ondernemers vrijheid waar dat kan. Samen met ons bouwen zij aan een mooi Duiven. Wij zijn er van overtuigd dat onze burgers deze medeverantwoordelijkheid op een goede manier vervullen.

In de bijna 200 jaar dat gemeente Duiven bestaat, zijn de drie kernen, ons buitengebied en de bedrijventerreinen uitgegroeid tot een prettige omgeving om in te wonen en te werken. De wijken en kernen hebben een eigen gezicht waarin de tijdsgeest herkenbaar is.

Ik vind dat een prachtig gegeven. Onderscheid mag er zijn.

De huidige ruimtelijke kwaliteit is een goede basis om op te bouwen. Bouwwerken en reclame zijn daarom aan minder regels gebonden dan voorheen, maar kunnen worden afgestemd op de omgeving. Niet toetsen en verplichten staan centraal, maar voorlichten, stimuleren en begeleiden.

Duiven is mooi, dat willen we behouden en op een aantal plekken versterken. Dat willen we samen met u doen.

Dhr. H.J. Zomerdijk, burgemeester gemeente Duiven

afbeelding binnen de regeling

INLEIDING EN VERANTWOORDING

Doel: ‘Mooi Duiven met minder regels’

In deze welstandsnota is het kader voor de ruimtelijke kwaliteit van bouwwerken in de gemeente Duiven neergelegd. Doel van de nota is het waarborgen van deze ruimtelijke kwaliteit als publiek belang. Daarbij is een afweging gemaakt in hoeverre burgers vrijheid krijgen om te bouwen en in hoeverre de gemeente zelf regie neemt door het stellen van regels voor ruimtelijke kwaliteit. De nota geeft:

  • -

    een duidelijke verantwoordelijkheid aan de burgers;

  • -

    transparante en voor iedereen begrijpbare criteria;

  • -

    rechtszekerheid voor burgers.

 

Waarom een toets voor de ruimtelijke kwaliteit van bouwwerken?

Een aantrekkelijke, goed verzorgde omgeving verhoogt de kwaliteit van de dagelijkse leefomgeving en de waarde van het onroerend goed. Ook wordt het vestigingsklimaat voor bedrijven positief beïnvloed. Deze nota is opgesteld vanuit de overtuiging dat zowel de gemeente als ondernemers en inwoners het belang van een aantrekkelijke gebouwde omgeving kunnen en dienen te behartigen. De verschijningsvorm van een bouwwerk en hoe dat is ingepast in de omgeving is geen zaak van de eigenaar van het bouwwerk alleen; elke voorbijganger wordt ermee geconfronteerd, of hij nu wil of niet. Het welstandsbeleid – vastgelegd in deze nota - is bedoeld om in alle openheid een bijdrage te leveren aan de kwaliteit en aantrekkelijkheid van Duiven.

 

Aanleiding voor een nieuwe nota

Afgelopen jaar heeft in de gemeente een discussie plaatsgevonden over nut en noodzaak van het welstandstoezicht. Het welstandsbeleid sloot niet aan op de wens van gemeente en burgers om met minder en duidelijkere regels de ruimtelijke kwaliteit te waarborgen. Bovendien zou ruimtelijke kwaliteit het resultaat moeten zijn van een gedeelde verantwoordelijkheid van gemeente en burgers. Dit maakt ruimte voor een meer gevarieerde welstandstoetsing, die niet overal even strikt hoeft te zijn. Waar de kwaliteit van de openbare ruimte niet in het geding is, is ook welstandsvrij bouwen mogelijk. Alle reden dus voor een geheel vernieuwde welstandsnota.

Er ligt nu een voor alle partijen transparante en gebruiksvriendelijke nota die helder is over wat wel of niet is toegestaan, met efficiënte en duidelijke criteria die recht doen aan de actuele ruimtelijke ambities van de gemeente. Bovendien maakt dit welstandsbeleid een snel en efficiënt beoordelingsproces mogelijk.

 

Meer vrijheid voor de burger

Met deze nota hebben burgers voortaan een nadrukkelijke rol bij de vormgeving van hun eigen bebouwde omgeving. In een aantal gebieden is welstandsvrij bouwen mogelijk, onder andere op veel achtererven in woonwijken. Daarnaast geven bewoners zelf invulling aan ruimtelijke kwaliteit door in gebieden met welstandsniveau ‘soepel’ de detaillering, kleur en materialen zelf in te vullen.

 

Rechtszekerheid voor de burger

Vrijheid voor de ene burger kan tegelijkertijd een belemmering voor de andere burger betekenen. Ook bestaat het risico dat bestaande ruimtelijke kwaliteiten worden aangetast wanneer niet preventief op welstand wordt getoetst. De gemeente wil dit risico beperken door welstandsvrij bouwen alleen in het laagste welstandsniveau mogelijk te maken. Bovendien zijn geen excessen toegestaan.

Op de kaarten is te zien welke gebieden binnen het soepele of reguliere regime vallen.

 

Relatie met andere beleidsterreinen

Voor een effectief kwaliteitsbeleid is het zaak zorg te dragen voor een goede aansluiting tussen de verschillende wettelijke instrumenten. In het kader van deze welstandsnota is vooral de relatie tussen bestemmingsplan en de welstandscriteria van belang. Het bestemmingsplan regelt onder meer de functie en het ruimtebeslag van bouwwerken voor zover dat nodig is voor een goede ruimtelijke ordening. Wat het bestemmingsplan mogelijk maakt, kan op grond van de Woningwet niet door welstandscriteria worden tegengehouden. De vormgeving van bouwwerken valt buiten de reikwijdte van het bestemmingsplan en behoort tot het domein van welstand. Welstandscriteria kunnen waar nodig de ruimte die het bestemmingsplan biedt, invullen ten behoeve van de ruimtelijke kwaliteit. Het welstandsadvies richt zich dan op de gekozen invulling binnen het bestemmingsplan. In een situatie waarin een bouwplan in overeenstemming is met het bestemmingsplan, maar dit eveneens ruimte biedt voor alternatieven, kan een negatief welstandsadvies worden gegeven als de gekozen oplossing afbreuk doet aan de ruimtelijke beleving. Uiteraard moet in zo'n geval de welstandsnota daartoe de argumentatie leveren.

In de welstandsnota kan worden verwezen naar welstandscriteria die zijn opgenomen in andere beleidsdocumenten, zoals beeldkwaliteitplannen. Deze worden daardoor geacht deel uit te maken van de welstandsnota. Uiteraard gelden dan dezelfde wettelijke eisen als voor de welstandsnota. Bij beeldkwaliteitplannen voor grote nieuwbouwprojecten neemt na voltooiing van het bouwproject de welstandsnota de rol van beheersinstrument voor de bebouwde omgeving over van het beeldkwaliteitplan.

GEBRUIK VAN DE NOTA

Deze nota bevat de aspecten en de criteria (‘regels’) waar aanvragen om omgevingsvergunning voor het onderdeel bouwen aan worden getoetst. Door de nota compact en concreet op te zetten is gestreefd naar een gebruiksvriendelijke nota.

Regels

De kern van deze nota bestaat uit regels voor de meest voorkomende bouwactiviteiten. De regels zijn gebaseerd op het bestaande bebouwingsbeeld (karakteristieken en kwaliteiten), waarvoor per te onderscheiden gebied beschrijvingen zijn opgesteld. De beschrijvingen zijn ongewijzigd ten opzichte van de vorige welstandsnota en kunnen worden gebruikt als naslagwerk. De regels zijn opgesteld voor 7 afzonderlijke deelgebieden en reclameobjecten. Voor nieuwe ontwikkelingen wordt een beeldkwaliteitplan opgesteld.

3 Welstandsniveaus

In de nota wordt gewerkt met 3 toetsingsniveaus: welstandsvrij, soepel en regulier.

Welstandsvrij: Dit zijn gebieden of bouwwerken waar niet vooraf (preventief) op welstand wordt getoetst. Burgers en ondernemers zijn hier vrij in hun invulling van de uiterlijke vormgeving van een bouwwerk. De enige voorwaarde is dat een welstandsvrij bouwwerk geen exces vormt, dat wil zeggen niet extreem in strijd is met redelijke eisen van welstand (zie excessencriteria paragraaf 07.08).

Soepel: Dit houdt in dat bij de welstandsbeoordeling primair getoetst wordt op aspecten van situering, vorm en massa en gevelindeling. De burger is zelf verantwoordelijk voor de invulling van materialen, kleuren en de detaillering. Grote delen van de gebieden ‘02 Woonwijken’, ‘03 Bedrijventerreinen’ en ‘04 Landelijk gebied’ vallen hieronder.

Regulier: Dit niveau is gericht op het handhaven, herstellen en versterken van de aanwezige kwaliteiten. De toetsing omvat beoordeling op alle aspecten: situering, massa en vorm, gevels, detaillering, materialen en kleur. De gebieden 01 Centrumgebieden, kernen, lintbebouwing en 05 Monumenten en cultuurhistorie vallen hieronder. *Voor monumenten geldt altijd een regulier welstandsniveau.

Afwijken van de nota

In het geval dat de regels (welstandscriteria) ontoereikend zijn of wanneer een bouwplan afwijkt van de welstandscriteria, maar door een bijzondere schoonheid een gewenste toevoeging aan de omgeving vormt, kan worden teruggevallen op algemeen geldende kwaliteitsprincipes. De welstandscommissie kan B&W in zo’n geval gemotiveerd en schriftelijk adviseren om af te wijken en hiertoe gebruik te maken van algemene geldende kwaliteitsprincipes. Het niveau van ‘redelijke eisen van welstand’ ligt hierbij uiteraard hoger.

Het betreft de volgende kwaliteitsprincipes:

  • -

    relatie tussen vorm, gebruik en constructie;

  • -

    relatie tussen bouwwerk en omgeving;

  • -

    betekenissen van vormen in sociaal-culturele context;

  • -

    evenwicht tussen helderheid en complexiteit;

  • -

    schaal en maatverhoudingen;

  • -

    materiaal, textuur, kleur en licht.

01 REGELS Centrumgebieden, kernen, lintbebouwing

Hier geldt een regulier welstandsniveau (zie kaart).

Vergunningvrij?

Voor een groot aantal ingrepen aan uw woning hoeft u geen omgevingsvergunning aan te vragen. U kunt dit nagaan op www.omgevingsloket.nl. Wel is de excessenregeling van toepassing.

Ambitie van de gemeente

Elk pand dient zijn eigen gezicht te behouden (of te krijgen) waarbij sprake is van architectonische kwaliteit. Architectonische kwaliteit betekent hier: zorgvuldig ontworpen in de context, evenwichtig van opbouw en geleding en met een uitgekiende detaillering en materialisatie. Binnen dit kader is zowel een eigentijdse als een meer traditionele architectuur denkbaar. Bijzondere aandacht is nodig voor gebouwen op hoeklocaties en op markante plekken. Voor het centrumgebied van Duiven is een specifiek beeldkwaliteitplan opgesteld in overleg met de burgers. Dit plan blijft van kracht. Bij ontwikkelingen wordt aan het beeldkwaliteitplan getoetst.

Eigentijdse linten

De A12, (toekomstige A15) en de spoorlijn (NS en Betuwelijn) worden gezien als eigentijdse linten. Bijzondere aandacht is nodig voor gebouwen (en reclame) langs deze hoofdroutes. Hiervoor geldt een regulier welstandsniveau.

01.01. Situering (bij nieuwbouw)

  • -

    het ruimtelijk karakter is gebaseerd op gegroeide kleinschaligheid, openheid en diversiteit;

  • -

    nieuwbouw sluit aan bij de ritmiek van de bestaande bebouwing in de omgeving;

  • -

    parcellering, positie, oriëntatie van de oorspronkelijke bebouwing zijn richtinggevend;

  • -

    inpassing van massa en vorm tussen de bestaande bebouwing is zorgvuldig;

  • -

    de bestaande samenhang en afwisseling in de vormgeving en kappen zijn richtinggevend;

01.02. Bebouwingsbeeld

  • -

    voor het winkelgebied Duiven - zie het Beeldkwaliteitplan;

  • -

    individuele panden (parcellering) handhaven/ versterken;

  • -

    wandvorming handhaven/ versterken

  • -

    toepassen van een kap heeft de voorkeur (inspelen op het historische bekappingsbeeld)

  • -

    opbouw massa en gevelindeling in harmonie met het straatbeeld;

  • -

    hoogte afstemmen op silhouet van de straatwand;

  • -

    de gevel vormt één samenhangend architectonisch geheel;

  • -

    ambachtelijke detaillering welkom (luiken, puien, daklijsten, metselwerk, ornamenten).

 

01.03. Gevels

  • -

    bij nieuwbouw aansluiten op de bestaande bebouwingskarakteristieken van de omgeving;

  • -

    bij verbouw zoveel mogelijk afstemmen op de bestaande gevelopeningen;

  

01.04 Puien

De pui is het onderste deel van de straatgevel, deze valt het meest in het zicht en is het sterkst aan verandering onderhevig. Veranderingen bieden de kans om het beeld te verbeteren.

  • -

    respecteer en herstel de oorspronkelijke (of de verdwenen) puien;

    afstemming in het straatbeeld;

  • -

    samenhang tussen begane grondlaag en de bovenverdiepingen handhaven/versterken;

  • -

    hoogwaardige materialisatie, detaillering welkom.

 

01.05. Luifels

  • -

    Luifels zijn lichte en elegante constructies (als verfraaiing van het pand);

  • -

    luifels op integrale wijze afstemmen op de architectuur van de gevel;

  • -

    luifels zijn ondergeschikt en/of ontworpen in samenhang met de gevel;

  • -

    alle luifels, die het straat- en gevelbeeld verstoren, moeten op termijn verdwijnen.

 

01.06. Rolluiken

Buiten de openingstijden van de winkels dient een desolate sfeer en een gevoel van onveiligheid te worden voorkomen.

  • -

    vormgeving van de rolluiken afstemmen op het totale gevelbeeld;

  • -

    bij nieuwe puien, eventuele rolluiken geïntegreerd in het ontwerp;

  • -

    toepassing van een geheel gesloten rolluik niet toegestaan (minimaal 25% open beeld).

 

01.07. Reclames

Reclame-uitingen kunnen de visuele aantrekkingskracht van de omgeving positief, maar ook negatief beïnvloeden. Een reclame is altijd geslaagd wanneer deze volledig is geïntegreerd in het totale architectonische concept. Blijft de zorg voor een goede inpassing van een reclame in zijn omgeving achterwege, dan wordt deze ervaren als een verstoring van de visuele kwaliteit. Reclame mag alleen worden gemaakt ten behoeve van het bedrijf dat op het betreffende perceel is gevestigd.

  • -

    reclames mogen het straatbeeld en pand niet overheersen / passend bij gevel;

  • -

    niet boven de scheiding begane grond en 1e verdieping;

  • -

    afstemmen op de entree op begane grond (commerciële bouwlaag);

  • -

    bijzondere vormgeving van reclame welkom (i.p.v. gestandaardiseerde ‘huisstijlreclames’);

  • -

    naamsaanduiding bij voorkeur in de vorm van losse letters afgestemd op het entreegebied;

  • -

    max. 1 uithangbord (max. 0,5 m2) onder de raamdorpel op verdiepingsniveau;

  • -

    per 6 meter gevelbreedte aan de straatzijde is 1 vlaggenhouder ten behoeve van reclame toegestaan, met een maximum van 3 per winkel;

  • -

    de houder dient te worden aangebracht op de gevel op begane grond niveau in ieder geval onder de verdiepingsramen;

  • -

    reclames aan de binnenzijde van etalages bescheiden en ondergeschikt;

  • -

    bescheiden spandoeken mogelijk mits afgestemd op de architectuur van het pand;

  • -

    bescheiden aanlichten van reclame-uitingen is mogelijk (lichtbakken, knipperende, bewegende, reflecterende en neonreclames zijn niet toegestaan).

 

01.08. Aan -en bijgebouwen (bijbehorende bouwwerken)

  • -

    ondergeschikt en samenhangend met het hoofdgebouw;

  • -

    gevelindeling eenvoudig, passend bij de (ondergeschikte) functie;

  • -

    plat dak of een kap afstemmen op het hoofdgebouw.

 

01.09. Erkers

  • -

    erkers ontwerpen als accessoire, verfraaiing van het hoofdvolume;

  • -

    ondergeschikt in het gevelbeeld;

  • -

    afstemmen op het architectuurbeeld, bestaand raamkozijn en gevelindeling;

  • -

    toevoeging met transparante delen.

 

01.10. Dakkapellen (voor-, zij- en achtergevel)

Dakkapellen zijn ondergeschikte toevoegingen (als verfraaiing op het hoofdvolume)

  • -

    dakkapel ontwerpen als accessoire, verfraaiing van het hoofdvolume;

  • -

    ondergeschikt in het dakvlak (pannen rondom dakkapel);

  • -

    indeling kozijnen uitlijnen /afstemmen bestaande gevelkozijnen;

  • -

    gelijkvormig aan evt. dakkapel in zelfde dakvlak;

  • -

    gelijkvormig aan bestaande dakkapellen (mits trendsetters) in straat;

  • -

    breedte afstemmen op bestaande gevelopeningen;

  • -

    bij daken over meerdere verdiepingen alleen een dakkapel op de 1e laag;

  • -

    materiaal, details en kleurstelling afstemmen;

  • -

    afmetingen ondergeschikt (max. 2/3 van de breedte bestaande dakvlak).

     

01.11 Erfafscheidingen (grenzend aan de openbare ruimte)

  • -

    voorkeur voor haagplanten: liguster, buxus of haagbeuken;

  • -

    volledig te begroeien gazen hekwerken is een goed alternatief;

  • -

    bij dichte delen, geen lange en gesloten uitstraling;

  • -

    bij dichte delen max. 2/3 dichte delen afgewisseld met groen.

 

01.12. Dakopbouwen

Een dakopbouw is een verhoging van de nok waarmee het hoofdvolume wordt gewijzigd. Voorafgaande aan deze nota waren dakopbouwen niet toegestaan. Met de verruiming van de bebouwingsmogelijkheden is het mogelijk om de nok te verhogen, indien de nieuwe nokhoogte past binnen het bestemmingsplan.

  • -

    dakopbouw ontwerpen als accessoire, verfraaiing van het hoofdvolume;

  • -

    eenzijdig naar achteren gericht en over volle breedte van de woning (met uitzonderingen op hoekwoningen, kopgevel handhaven door min. 0,5 m afstand te houden);

  • -

    gelijkvormig aan bestaande dakopbouwen (trendsetters);

  • -

    eenduidige noklijn (verschillende verspringingen niet gewenst);

  • -

    dakhelling gelijk met bestaande dakhelling;

  • -

    indeling kozijnen uitlijnen / afstemmen op bestaande gevelkozijnen;

  • -

    materiaal, kleur en detaillering samenhangend (als bestaand).

 

01.13. Installaties

Later aangebrachte technische installaties zoals airco-units, schotelantennes en afvoerpijpen, zonnepanelen etc. zijn toegevoegde elementen aan een gebouw en eigenlijk niet als architectonisch onderdeel te beschouwen.

  • -

    bij voorkeur integreren van installaties in gebouw (onzichtbaar aanbrengen);

  • -

    plaatsing installaties zo veel mogelijk uit het zicht, bij voorkeur aan de achterkanten;

  • -

    kleurstelling afstemmen op bestaande beeldwaarde (zo onopvallend mogelijk);

  • -

    draaiende en reflecterende delen zijn storend en niet toegestaan.

02 REGELS Woonwijken

Aan de randen en hoofdroutes van de woonwijken geldt een regulier welstandsniveau. Voor de binnengebieden geldt een soepel welstandsniveau (zie kaart). Wel is de excessenregeling van toepassing.

Vergunningvrij?

Voor een groot aantal ingrepen aan uw woning hoeft u geen vergunning aan te vragen. U kunt dit nagaan op www.omgevingsloket.nl. Wel is de excessenregeling van toepassing.

Ambitie van de gemeente

Voor kleine ingrepen waarvoor u wel een vergunning nodig heeft, heeft de gemeente een aantal regels opgesteld om zowel het straatbeeld fraai te houden, alsook de mogelijkheid te bieden om uw woonhuis naar uw eigen wensen uit te breiden. Voor de woonwijk ‘De Ploen’ is een specifiek beeldkwaliteitplan opgesteld. Bij ontwikkelingen wordt aan het beeldkwaliteitplan getoetst.

02.01. Situering (bij nieuwbouw)

  • -

    nieuwbouw sluit aan bij de ritmiek van de bestaande bebouwing in de omgeving;

  • -

    parcellering, positie, oriëntatie van de oorspronkelijke bebouwing zijn richtinggevend;

  • -

    inpassing van massa en vorm tussen de bestaande bebouwing is zorgvuldig;

  • -

    bestaande samenhang en afwisseling in de vormgeving en kappen zijn richtinggevend.

 

02.02. Gevels

  • -

    passend in de gevelstructuur;

  • -

    geen verstoring voor de samenhang en ritmiek van de straatwand;

  • -

    zoveel mogelijk afstemmen op de bestaande gevelopeningen.

 

02.03. Erkers

  • -

    erkers ontwerpen als accessoire, verfraaiing van het hoofdvolume;

  • -

    ondergeschikt in het gevelbeeld;

  • -

    afstemmen op het architectuurbeeld, bestaand raamkozijn en gevelindeling;

  • -

    toevoeging met transparante delen.

 

02.04. Aan -en bijgebouwen (bijbehorende bouwwerken)

  • -

    ondergeschikt aan en samenhangend met het hoofdgebouw;

  • -

    gevelindeling eenvoudig, passend bij de (ondergeschikte) functie;

  • -

    plat dak of een kap afstemmen op het hoofdgebouw;

  • -

    eenlaagse uitbreidingen op het achtererfgebied (carport, bijkeuken etc.) tot 3 m hoogte en 1 m achter de voorgevel zijn welstandsvrij;

  • -

    uitbreidingen tegen de achtergevel met een maximale hoogte van 3 m zijn welstandsvrij.

 

02.05. Erfafscheidingen (grenzend aan de openbare ruimte)

  • -

    volledig te begroeien gazen hekwerken max. 2 m hoog op het zijperceel zijn welstandsvrij;

  • -

    bij dichte delen, geen lange en gesloten uitstraling;

  • -

    bij dichte delen max. 2/3 dichte delen afgewisseld met groen.

 

02.06. Dakkapellen (voor- en zijgevel naar openbaar toegankelijk gebied)

Dakkapellen zijn ondergeschikte toevoegingen (als verfraaiing van het hoofdvolume).

  • -

    dakkapel ontwerpen als accessoire, verfraaiing van het hoofdvolume;

  • -

    ondergeschikt in het dakvlak (pannen rondom dakkapel);

  • -

    gelijkvormig aan bestaande dakkapellen (trendsetters)

  • -

    afmetingen ondergeschikt (2/3 van de breedte bestaande dakvlak is uitgangspunt);

  • -

    breedte afstemmen op bestaande gevelopeningen;

  • -

    bij daken over meerdere verdiepingen alleen een dakkapel op de 1e laag.

 

02.07. Dakkapellen (overig)

  • -

    dakkapellen zijn welstandsvrij;

  • -

    Tip: maak de dakkapel gelijkvormig aan bestaande dakkapellen (trendsetters).

 

02.08. Dakopbouwen

Een dakopbouw is een verhoging van de nok waarmee het hoofdvolume wordt gewijzigd. Voorafgaande aan deze nota waren dakopbouwen niet toegestaan. Met de verruiming van de bebouwingsmogelijkheden is het mogelijk om de nok te verhogen, indien de nieuwe nokhoogte past binnen het bestemmingsplan.

  • -

    dakopbouw ontwerpen als accessoire, verfraaiing van het hoofdvolume;

  • -

    gelijkvormig aan bestaande dakopbouwen (trendsetters);

  • -

    eenduidige noklijn (verschillende verspringingen niet gewenst);

  • -

    dakhelling gelijk met bestaande dakhelling;

  • -

    indeling kozijnen uitlijnen /afstemmen bestaande gevelkozijnen;

  • -

    eenzijdig naar achteren en over volle breedte van woning (met uitzonderingen op

  • -

    Hoekwoningen, kopgevel handhaven door min. 0,5 m. afstand te houden).

 

02.09. Materiaal, kleur, en detaillering

Binnen een regulier welstandsniveau worden de materialen, kleur en detaillering getoetst. Samenhang geldt hier als uitgangspunt.

Binnen een soepel niveau is de aanvrager verantwoordelijk voor de invulling van materiaal, kleur en detaillering.

 

02.10. Reclame

  • -

    reclame mag alleen worden gemaakt ten behoeve van het bedrijf dat op het betreffende perceel is gevestigd.

  • -

    zeer ondergeschikt in het straatbeeld (mag het woonkarakter niet overheersen);

  • -

    niet boven de scheiding begane grond en 1e verdieping;

  • -

    geen lichtbakken;

  • -

    max. één naambordje, afmetingen max. 0,5 m2;

  • -

    tijdelijke makelaarsborden kunnen vergunningvrij worden geplaatst;

  • -

    voor bedrijfspanden passend in het bestemmingsplan gelden ruimere richtlijnen dan voor woningen, mits afgestemd op de gevel en ondergeschikt in het straatbeeld.

 

02.11. Installaties

Later aangebrachte technische installaties zoals airco-units, schotelantennes en afvoerpijpen, zijn toegevoegde elementen aan een gebouw en daardoor niet als architectonisch onderdeel te beschouwen.

  • -

    bij voorkeur integreren van installaties in gebouw (onzichtbaar aanbrengen);

  • -

    plaatsing installaties zo veel mogelijk uit het zicht, bij voorkeur aan de achterkanten;

  • -

    kleurstelling afstemmen op bestaande beeldwaarde (zo onopvallend mogelijk);

  • -

    draaiende en reflecterende delen zijn storend en niet toegestaan.

03 Regels Bedrijventerreinen

Voor de randen en de hoofdroutes (A12) geldt een regulier welstandsniveau. Voor de binnengebieden (niet zichtbaar vanaf de hoofdroutes) geldt een soepel welstandsniveau (zie kaart). Voor LED reclame (waaronder LED billboards) geldt altijd een regulier niveau.

LED reclame:

Licht en led-reclame dienen bovendien te voldoen aan de diverse richtlijnen:

Voor Rijkswegen (A12) – zie Rijkswaterstaat.

Voor provinciale wegen: zie richtlijnen rond lichthinder (provinciale richtlijnen)

Gemeente: Licht- en led-reclame worden getoetst door de gemeente aan verkeerskundige aspecten in relatie tot situering van de betreffende reclame.

Overige: Op licht- en led-reclame zijn bovendien de Richtlijnen Lichthinder van de Nederlandse Stichting voor Verlichtingkunde van toepassing;

Vergunningvrij?

Voor een groot aantal ingrepen aan uw woning hoeft u geen vergunning aan te vragen. U kunt dit nagaan op www.omgevingsloket.nl. Wel is de excessenregeling van toepassing.

Welstandsvrij?

Het nieuw te ontwikkelen gebied (bedrijventerrein de Nieuweling ‘wonen–werken’) wordt ‘welstandsluw’. Dit betekent dat er een beeldkwaliteitsplan op hoofdlijnen zal worden vastgesteld en dat er veel ruimte ontstaat om de bebouwing naar eigen inzicht te ontwerpen.

Ambitie van de gemeente

De bedrijventerreinen van Duiven liggen prominent ten opzichte van het landelijk gebied en het lint A12. Aan bebouwing en terreinen die wel in het zicht liggen van hoofdroutes worden hogere kwaliteitseisen gesteld dan aan de binnengebieden. De gebouwen zijn met de representatieve zijde gekeerd naar de A12 en anders naar de belangrijkste ontsluitingsweg. Ook de terreininrichting draagt bij aan het ruimtelijke beeld. De randen en de hoofdwegen hebben een hogere ruimtelijke ambitie qua samenhang. Voor de gebieden InnoFase, Seingraaf en de Corridor zijn specifieke beeldkwaliteitplannen opgesteld. Bij ontwikkelingen wordt aan het beeldkwaliteitplan getoetst.

03.01. Bebouwing

  • -

    representatieve uitstraling naar entreezijde en openbaar gebied;

  • -

    evenwichtige opzet in maatverhoudingen, van buitenruimten, bouwvolumes en vlakverdelingen; het bouwwerk past in stedenbouwkundige opzet en is naar vorm, schaal en stijl afgestemd

  • -

    op omgeving en op de omliggende gebouwen;

  • -

    laden en lossen ondergeschikt in het beeld;

  • -

    kenmerkende en beeldbepalende onderdelen (kleurtoepassing, dakranden, kozijnprofileringen, raamindelingen en glassoorten) ondersteunen het ontwerp.

 

03.02. Erfafscheidingen (zichtbaar vanaf de openbare ruimte)

  • -

    hekwerken en poorten ondergeschikt;

  • -

    kleurstelling neutraal (bij voorkeur antraciet);

  • -

    bij voorkeur hoge hekwerken laten begroeien (met een landschappelijke kwaliteit);

  • -

    geen gesloten uitstraling.

   

03.03. Reclame

  • -

    reclame mag alleen worden gemaakt ten behoeve van het bedrijf dat op het betreffende perceel is gevestigd;

  • -

    binnen het niveau soepel zijn reclame-uitingen welstandsvrij (zie kaart);

  • -

    totaal aan reclame dient ondergeschikt te zijn aan het gebouw en straatbeeld en wordt geïntegreerd wordt in het architectuurbeeld;

  • -

    naamsaanduiding in de vorm van losse letters tegen de gevel;

  • -

    geen reclame-uiting boven de dakrand;

  • -

    reclame relateren aan het entreegebied;

  • -

    maximaal één reclamezuil per bedrijfspand of bedrijfsverzamelgebouw;

  • -

    bij meerdere bedrijven in één pand, afstemming in samenhang;

  • -

    reclame-uitingen die verblindend zijn, knipperen en/of bewegen zijn niet toegestaan;

  • -

    merkreclames zijn denkbaar, maar wildgroei aan tekens dient te worden voorkomen;

  • -

    lichtbakken zijn toegestaan, het is raadzaam een donker fond te kiezen met heldere letters, ook in verband met verkeersveiligheid (verblinding);

  • -

    verwijsbordjes (bijvoorbeeld voor leveranciers) zijn ondergeschikt (max 1 m2);

  • -

    borden en spandoeken zijn ondergeschikt aan het totaalbeeld.

 

03.04. Grootschalige reclame (gericht naar A12)

  • -

    reclame mag alleen worden gemaakt ten behoeve van het bedrijf dat op het betreffende perceel is gevestigd;

  • -

    bedoeld voor grote detailhandelsbedrijven (bijvoorbeeld IKEA/Mc Donald's)

  • -

    reclame-uitingen veroorzaken geen (fysieke of visuele) overlast of hinder voor derden en respecteren de veiligheid;

  • -

    bij voorkeur reclame uitingen integraal meenemen met het architectuurbeeld (mag tot 100% op een blinde gevelvlak)

  • -

    losse reclame-uiting (kaders) op de gevel beperken tot max 30 % van de geveloppervlakte;

  • -

    losse reclame-uitingen (kaders) afstemmen op de gevelindeling

  • -

    de reclame-uiting is bevestigd aan de gevel of staat op eigen terrein.

  • -

    licht- en led-reclame mogen geen aanstootgevende boodschappen uitstralen, noch aanstootgevende verbeeldingen uitstralen;

  • -

    licht- en led-reclame mogen qua vormgeving en/of kleur geen gelijkenis vertonen met verkeersrelevante informatiedragers, zoals verkeerborden, -signaleringen enz.;

  • -

    licht- en led-reclame worden bij situering langs wegen met hun beeldschermzijde haaks op de rijrichting van de weg geprojecteerd;

  • -

    voor licht- en led-reclame geldt een lichtstilte tussen 22.00 en 07.00 uur (licht- en led-schermen zijn dan uitgeschakeld

  • -

    licht- en led-reclame genereren een lichtuittreding die niet significant groter mag zijn dan bij schermen en reclame in de directe omgeving;

 

03.05. Installaties

Later aangebrachte technische installaties zoals airco-units, schotelantennes en afvoerpijpen, zijn toegevoegde elementen aan een gebouw en eigenlijk niet als architectonisch onderdeel te beschouwen.

  • -

    bij voorkeur integreren van installaties in gebouw (onzichtbaar aanbrengen);

  • -

    plaatsing installaties zo veel mogelijk uit het zicht, bij voorkeur aan de achterkanten;

  • -

    kleurstelling afstemmen op bestaande beeldwaarde (zo onopvallend mogelijk).

  • -

    draaiende en reflecterende delen zijn storend en niet toegestaan.

04 REGELS Landelijk gebied

Langs de hoofdroutes geldt een regulier welstandsniveau. Voor het overige een soepel niveau (zie kaart).

Vergunningvrij?

Voor een groot aantal ingrepen aan uw woning hoeft u geen vergunning aan te vragen. U kunt dit nagaan op www.omgevingsloket.nl. Wel is de excessenregeling van toepassing.

Ambitie van de gemeente

Het behoud van de karakteristiek van het agrarisch gebied en agrarische bebouwing is van belang voor de identiteit van het landelijk gebied. Oude boerenerven vormen een unieke kwaliteit. Belangrijk is dat met respect voor de karakteristiek van een boerenerf wordt omgegaan en dat wordt aangetoond dat een plan bijdraagt aan de ruimtelijke kwaliteit en de vitaliteit van het landelijk gebied.

04.01. Woonbebouwing (bij nieuwbouw en aanbouw)

  • -

    nieuwbouw sluit aan bij de ritmiek van de bestaande bebouwing in de omgeving;

  • -

    bij (vervangende nieuwbouw) c.q. nieuwe woningen / erven dient er sprake te zijn van een ensemblewerking van de bebouwing rondom een compact verharding (erf);

  • -

    toepassing kap is uitgangspunt, afgestemd op het (oorspronkelijke) hoofdgebouw;

  • -

    de bestaande samenhang en afwisseling in de vormgeving en kappen zijn richtinggevend;

  • -

    gevels passend in de gevelstructuur;

  • -

    gevels zoveel mogelijk afstemmen op de bestaande gevelopeningen;

  • -

    aanbouwen ondergeschikt en samenhangend met het hoofdgebouw;

  • -

    materiaal en detaillering in samenhang.

 

04.02. Sportcomplexen

  • -

    de bebouwing is mede georiënteerd op de openbare ruimte;

  • -

    de bebouwing is vrij gelegen in het groen of vrij gelegen op het terrein;

  • -

    bijgebouwen zijn ondergeschikt en maken deel uit van de totale compositie;

  • -

    beeldverstorend terreingebruik (zoals opslag) zoveel mogelijk aan het oog onttrokken;

  • -

    de hoofdvorm is helder en eenvoudig en blijft ook na aanpassingen duidelijk herkenbaar;

  • -

    grote gevelvlakken worden doorbroken door middel van geleding van de wand;

  • -

    materiaal en detaillering in samenhang.

 

04.03. Vrijkomende agrarische bebouwing

Voor nieuwbouw van bouwwerken worden ‘kavelpaspoorten’ opgesteld. De uitganspunten zijn:

  • -

    erfopzet heeft een duidelijke hiërarchie;

  • -

    de oorspronkelijke boerderij of woning manifesteert zich als het belangrijkste gebouw;

  • -

    hergebruik van waardevolle gebouwen (karakteristieke schuren) staat voorop;

  • -

    op één erf is er sprake van ensemble bebouwing (rondom een centraal erf);

  • -

    één aansluiting op doorgaande weg (één toegang naar een compact cluster);

  • -

    overige gebouwen op het erf hebben een uitstraling van een ‘bijgebouw’ (schuur);

  • -

    passende erfinrichting/erfbeplanting;

  • -

    bij (vervangende nieuwbouw) c.q. nieuwe erven dient er sprake te zijn van een ensemblewerking van de bebouwing rondom een compact verharding (erf);

  • -

    materiaal en detaillering in samenhang.

 

04.04. Inritten en verharding

  • -

    erfprincipe: zo min mogelijk verharding (met zo veel mogelijk ‘groen’).

 

04.05. Agrarische bebouwing

  • -

    aandacht voor de bijzondere positie van de oorspronkelijke boerderij of woning;

  • -

    bijgebouwen staan ondergeschikt achter het hoofdvolume (in een kenmerkende erfopzet);

  • -

    een zadeldak met lage goten en steile kappen is het uitgangspunt;

  • -

    gebouwen hebben een enkelvoudige rechthoekige grondvorm;

  • -

    bij grootschalige stallen / hallen bouwmassa’s geleden;

  • -

    toepassing van damwand bij voorkeur in een gedekte kleurstelling;

  • -

    bij nieuwe ontwikkelingen is aandacht geschonken aan de inrichting van het landschap;

  • -

    installaties zijn ondergeschikt of hebben een passende vormgeving (afgestemd op de kapvormen);

  • -

    materiaal (baksteen, pannen en riet) in samenhang met de bestaande bebouwing.

 

04.06. Havezaten (en nieuwbouw ‘landgoederen’)

De vier havezaten zijn allemaal rijksmonumenten.

(zie - 05 REGELS Monumenten en Cultuurhistorie)

  • -

    handhaving en waar mogelijk herstel van de oorspronkelijke karakteristiek;

  • -

    voor de nieuwbouw onder het ‘landgoederen’ beleid wordt gevraagd om een specifiek beeldkwaliteitplan.

 

04.07. Reclame

  • -

    reclame mag alleen worden gemaakt ten behoeve van het bedrijf dat op het betreffende perceel is gevestigd.

  • -

    max 1 reclame-uiting toegestaan (bijv. kleine bordjes ‘eieren te koop’);

  • -

    vormgeving, kleurstelling en plaatsing van reclame in harmonie met de omgeving;

  • -

    een ondergeschikte naamsaanduiding op stal of bedrijfsgebouw is goed mogelijk;

  • -

    geen lichtreclames, felle kleurwisselingen en schreeuwende kleurcombinaties;

  • -

    niet perceelsgebonden reclameborden zijn niet toegestaan;

  • -

    tijdelijke makelaarsborden kunnen welstandsvrij worden geplaatst.

04.08. Duurzaamheid / installaties

Draaiende objecten in verband met windenergie (binnen het bestemmingsplan en >300m afstand tot de meest nabij gelegen woning) zijn welstandsvrij.

05 REGELS Monumenten en Cultuurhistorie

Hier geldt altijd een regulier welstandsniveau, ongeacht het gebied.

Vergunningvrij?

Ook voor monumenten, zijn er (ondergeschikte) bouwactiviteiten waarvoor u geen vergunning hoeft aan te vragen. U kunt dit nagaan op www.omgevingsloket.nl. Wel is de excessenregeling van toepassing.

Ambitie van de gemeente

Onderstaande 11 uitgangspunten gelden als algemeen kader bij de beoordeling van restauraties en wijzigingen aan monumenten. Voor eigenaren en gebruikers, die initiatieven ontwikkelen voor hun monumenten, dienen de uitgangspunten als richtlijn, ontwerpkader en inspiratiebron.

05.01. Monumenten zijn van maatschappelijk belang

Iedere burger heeft wel een bepaalde binding met zijn leefomgeving. In de beleving en waardering van onze leefomgeving spelen monumenten vaak een grote rol. De manier waarop we kijken naar onze monumenten is echter voor iedereen verschillend. Historici zien in het gebouwde erfgoed tastbare sporen van de wijze waarop onze voorouders het dagelijks leven vorm gaven. Architecten bewonderen bouwwerken om het interessante en inspirerende ontwerp. Voor veel mensen zijn ze simpelweg vertrouwde ijkpunten in hun bestaan. Het is dan ook in het belang van ons allemaal dat deze ijkpunten worden gerespecteerd. Daarom kan het Rijk of de gemeente Duiven besluiten om een gebouw of gebied een beschermde status toe te kennen. We spreken dan over een rijksmonument of een gemeentelijk monument. De diversiteit binnen deze categorieën is groot. Het monumentenbestand loopt uiteen van kerken en kloosters tot woonhuizen, bedrijfsgebouwen en vestingwerken. De monumenten geven zo een beeld van het leven in vroeger tijd.

05.02. Herbestemming

Het voortbestaan van beschermde monumenten is het beste gewaarborgd door regelmatig onderhoud en gebruik. Om dat te stimuleren worden eigenaren van beschermde rijksmonumenten en gemeentelijke monumenten tegemoet gekomen met aantrekkelijke financieringen en eventueel belastingaftrekmogelijkheden of subsidiebijdragen. Het komt voor dat een monument niet meer gebruikt kan worden voor zijn oorspronkelijke functie. Om het van een vitale toekomst te verzekeren, is het vinden van een passende herbestemming dan een oplossing. Meestal is het op zo’n moment nodig om het monument enigszins aan te passen of te verbouwen. Bij deze veranderingen zal steeds gezocht moeten worden naar een goede balans tussen de mogelijkheden van het monument en de wensen voor eigentijds gebruik. Het behoud van het bijzondere karakter van het beschermde monument en de waardevolle elementen die het bevat vormen hierbij het uitgangspunt.

05.03. Bewaar en versterk de relatie tussen het monument en zijn omgeving

Waar is het monument gelegen? De situering van een monument, de grondsoort van de ondergrond, de opbouw van het landschap of het stratenpatroon eromheen: het zijn allemaal factoren die het monument inbedden in zijn specifieke context en van invloed zijn geweest op de (bouw)geschiedenis van het monument. De geografische en maatschappelijke context zegt vaak iets over de functie, het type en de uitstraling van het monument. Het is van belang dat bij wijzigingen aan een monument wordt aangesloten bij de specifieke karakteristieken van de omgeving.

05.04. Monumentale waarden als onderlegger

Historische bouwwerken vertellen hun eigen verhaal, hebben hun eigen bouw- en gebruiksgeschiedenis en bijzondere kenmerken. Voordat een bouwplan voor wijzigingen aan een monument wordt gemaakt, is het belangrijk dat er een goed beeld bestaat van de aspecten die juist dat monument waardevol maken. Alleen op basis hiervan kan bij plannen het benodigde maatwerk worden geleverd. Een eerste bron voor het achterhalen van de waarde is de zogenaamde redengevende beschrijving, die van ieder beschermd monument is gemaakt. Deze beschrijving is vooral juridisch bedoeld en geeft vaak niet voldoende informatie over de specifieke waarden om een verantwoord plan te kunnen maken. Nader onderzoek naar de bouwkundige, bouwhistorische, kunst- en architectuurhistorische, cultuurhistorische of technische aspecten van het monument is in veel gevallen nodig. De gegevens uit de redengevende beschrijving en het aanvullende onderzoek dat eventueel wordt uitgevoerd, vormen een belangrijke onderlegger bij het opstellen van plannen. Bij de beoordeling van de plannen zal worden getoetst of de monumentale aspecten van het monument voldoende worden gerespecteerd.

05.05. Behoud gaat voor vernieuwen

Een algemeen uitgangspunt bij het omgaan met een monument is: behoud gaat voor vernieuwen. Bijvoorbeeld bij het uitvoeren van onderhoud is dit uitgangspunt van groot belang. Het behoud van het monument, en van alle bijbehorende onderdelen van dat monument, heeft altijd de voorkeur boven vernieuwing, al is herstel of vervanging van onderdelen van tijd tot tijd noodzakelijk. Bij vernieuwing gaat er onherroepelijk historisch materiaal verloren. Het is een beslissing die maar één maal genomen kan worden. Moet er toch iets worden gewijzigd of vernieuwd, dan is het huidige beschermde monument - de optelsom van ontwerp, hoofdvorm, materiaal, uitvoering en details - het uitgangspunt. Dat is immers het geheel dat om weloverwogen redenen op de monumentenlijst is geplaatst en/of in het bestemmingsplan is opgenomen. Bij wijzigingen draait het telkens om het vinden van een goede balans tussen de wensen van de gebruiker en de mogelijkheden die het monument biedt.

05.06. Behoud constructies, materialen, kleuren en details

Het bijzondere van monumenten wordt in hoge mate bepaald door de zichtbare ouderdom en de daadwerkelijke beleving van die ouderdom. Deze komen niet alleen tot uitdrukking in de bouwstijl, maar ook in de manier waarop materialen zijn verwerkt en de wijze waarop ze verouderen. Behoud van historisch bouwmateriaal is daarom een belangrijk punt. Een ander essentieel aspect is de wijze waarop onze monumenten zijn gebouwd: hoe de constructie in elkaar steekt en hoe details en afwerking zijn uitgevoerd. Deze aspecten vertellen namelijk over de tijd waarin het monument gebouwd is, de plek waar het staat, de functie die het had. Constructie, materiaal, afwerking en detail bepalen de fysieke ouderdom van het monument en zijn essentieel voor de monumentale waarde.

05.07. Het lezen van de historische ‘lagen’

Slechts weinig monumenten zijn sinds de bouw of aanleg geheel onveranderd gebleven. De aanpassingen die in de loop van de tijd zijn gedaan, horen bij de geschiedenis van het monument. Hoewel sommige wijzigingen wellicht onlogisch lijken, of misschien zelfs detoneren ten opzichte van het oorspronkelijke ontwerp van het monument, zeggen zij altijd iets over maatschappelijke en functionele ontwikkelingen. De wijzigingen kunnen dan ook waardevol zijn vanuit architectonisch, landschappelijk of bouw- en cultuurhistorisch oogpunt. Bij nieuwe toevoegingen wordt vaak geadviseerd deze op een eigentijdse manier vorm te geven. Zo blijft de bouwgeschiedenis voor volgende generaties duidelijk. Een rijke bouw- en gebruiksgeschiedenis maken monumenten interessant.

05.08. Respecteer de stijl en structuur van het monument

De toegepaste bouwstijl vormt een belangrijk onderdeel van het karakter en de uitstraling van het monument. En daarmee van de waarde van het monument. Een bouwstijl is herkenbaar in het ontwerp van de hoofdvorm, de plattegrond, de indeling van de gevels, de gebruikte materialen, de toegepaste afwerking en de vormgeving van details en decoraties.

05.09. Reclame

Om de harmonie met deze waarden te bereiken, dienen reclame-uitingen zorgvuldig te worden afgestemd op de specifieke architectuur van het pand. Reclame-uitingen dienen gekenmerkt te worden door een gebruik van traditionele middelen, materialen, vormen en kleuren. Voorbeelden van traditionele middelen zijn het uithangbord en het beletteren van kroonlijsten of luifels boven entree of etalage partijen. Uiteraard is het van groot belang dat de reclameaanduiding op harmonieuze manier opgenomen wordt in de architectuur van het pand of zelfs daartoe bijdraagt. Felle kleuren, grote ongelede vlakken met reclameboodschappen evenals lichtbakken zijn ongewenst doordat zij onvoldoende passen in de traditionele karakteristiek. Het aanlichten van losse letters op gevel of luifel is daarom gewenst.

  • -

    gebruik van traditionele middelen, materialen, vormen en kleuren.

  • -

    bescheiden uithangbord boven entree of etalage partijen.

  • -

    naamsaanduiding in de vorm van losse letters, afgestemd op de gevel

  • -

    harmonische afstemming op de specifieke architectuur van het pand

  • -

    geen lichtbakken (eventueel beperkt aanlichten van de reclame)

05.10. Installaties

Later aangebrachte technische installaties zoals airco-units, schotelantennes en afvoerpijpen, zijn toegevoegde elementen aan een gebouw en eigenlijk niet als architectonisch onderdeel te beschouwen.

  • -

    bij voorkeur integreren van installaties in gebouw (onzichtbaar aanbrengen)

  • -

    plaatsing installaties zo veel mogelijk uit het zicht, bij voorkeur aan de achterkanten

  • -

    kleurstelling afstemmen op bestaande beeldwaarde (zo onopvallend mogelijk)

  • -

    draaiende en reflecterende delen zijn storend en niet toegestaan.

05.11. Duurzaamheid

Een monument is van nature een duurzaam gebouw. Het bouwwerk staat er al jaren of zelfs eeuwen en heeft daarom wat betreft materialen en bruikbaarheid inmiddels zijn duurzaamheid bewezen. Op het gebied van energiezuinigheid, isolatie en comfort valt er soms echter het nodige te verbeteren. Omdat we ook in een monument op een verantwoorde en comfortabele wijze moeten kunnen wonen en werken, is de gemeente Duiven bereid om mee te denken over oplossingen op dit gebied. Een monument is echter anders dan een nieuwbouwwoning en vraagt om een specifieke behandeling. Het gebouw heeft tijdenlang een eigen vocht- en temperatuurhuishouding gehad. Wanneer we opeens deze bouwfysische gesteldheid wijzigen, kan dit nare gevolgen, zoals vochtproblemen, schimmelvorming en houtrot hebben. Ook moet rekening worden gehouden met de monumentale waarden van het pand. Zo is bijvoorbeeld het aanbrengen van HR++-glas in veel gevallen niet mogelijk. Een goede oplossing kan soms worden gevonden in het plaatsen van isolerende voorzetramen aan de binnenzijde. Als dit ook niet mogelijk of wenselijk is, zijn er tegenwoordig ook soorten isolerende beglazing in de handel die veel dunner zijn en in sommige gevallen wél in historische ramen kunnen worden geplaatst. Of het mogelijk is om zonnecollectoren te plaatsen zal per geval moeten worden bekeken. Uitgangspunt is in ieder geval dat de zonnecollectoren niet zichtbaar zijn.

06 REGELS Reclameobjecten in openbaar gebied

06.01. Tijdelijke reclames

De gemeente Duiven wil verenigingen en stichtingen de mogelijkheid bieden om Duivense evenementen onder de aandacht te brengen door middel van het plaatsen van tijdelijke aankondigingsborden. De plaatsing van deze reclames is welstandsvrij op vastgestelde plaatsen.

Locaties:

  • Hoek Oostsingel/Vergertlaan aan de noord-oostkant in Duiven

  • Hoek Rijksweg/Westsingel aan de zuid-westkant in Duiven

  • Hoek Dorpsstraat/Heiliglandsestrsaat, oostkant in Groessen

  • Hoek Loostraat/Husselarijstraat, zuid-westkant in Loo

 

06.02. Sandwichpanelen

Voor wisselende reclames om lantaarnpalen is in de gemeente één uniform systeem beschikbaar. Op verschillende locaties in de gemeente zijn sandwichpanelen geplaatst. De reclame in de panelen is welstandsvrij.

 

Locaties:

  • 10 aan de Nieuwgraaf in Duiven

  • 2 aan de Kastanjelaan in Duiven

  • 2 aan de Thuvinestraat in Duiven

  • 6 aan de Rijksweg in Duiven

  • 4 aan de Westsingel in Duiven

  • 6 aan de Visserlaan in Duiven

  • 6 aan de Vergertlaan in Duiven

  • 4 aan de Burg. van Dorth tot Medlerstraat en Eltensestraat in Duiven

  • 4 aan de route Dorpstraat/Heiliglandsestraat in Groessen

  • 2 aan de route Husselarijstraat/Loostraat in Loo

 

06.03. Abri’s

Abri’s zijn bushaltehokjes ten behoeve van het openbaar vervoer.

De invulling van reclames is welstandsvrij.

 

06.04. Plakplaatsen

De APV verbiedt om op de openbare weg aanplakbiljetten aan te brengen. Dat mag alleen op plaatsen waar dat is toegestaan door burgemeester en wethouders. De plakplaatsen zijn welstandsvrij.

 

Locaties:

  • Eilandplein te Duiven

  • Weth Thijssenplein te Duiven

  • Parkeerplaats nabij Rijksweg 51

  • Schuttersplein in Groessen

  • Kruispunt Loostraat/Hoflaan te Loo

 

06.05. Reclame op Rotondes

Eind 2007 heeft de gemeente Duiven een richtlijn vastgesteld ten aanzien van reclameborden op rotondes (maximaal 2). Dit in het kader van de adoptie van inrichting en onderhoud van openbaar groen op rotondes. Op de betreffende rotondes mogen de “adoptienemers” hun bedrijf promoten door het inpassen van een reclamebord in het ontwerp. De adoptienemer is verantwoordelijk voor de uitstraling. Reclames met een ondergeschikte afmeting (max.0.5m hoog, max.1m breed) op rotondes zijn welstandsvrij.

 

06.06. Spandoeken

Op een viertal locaties binnen de gemeente Duiven zijn voorzieningen aangebracht waar spandoeken in opgehangen kunnen worden. Gezien het tijdelijk karakter van deze spandoeken worden geen welstandscriteria gesteld.

 

Locaties:

  • Noordzijde van de rotonde Graafsingel/Westsingel in Duiven

  • Hoek Vergertlaan en Oostsingel, zuid-westzijde in Duiven

  • Achtergaardsestraat in Groessen

  • Splitsing Loostraat/Husselarijstraat in Loo

 

06.07. Verwijsborden naar bedrijven

Ten aanzien van verwijsborden naar bedrijven en instellingen dient er een uniform systeem te worden gebruikt, dat nader wordt bepaald door de gemeente. De gemeente stelt verder eisen voor situering en aantallen. Deze criteria maken geen onderdeel uit van deze welstandscriteria.

 

06.08. Led Billboards etc.

Begrippen:

Led-reclame: een lichtgevende reclameboodschap in de vorm van reclame-uiting op een led-scherm anders dan reclame die wordt aangelicht door een externe lichtbron.

Led-scherm: een scherm dat langs elektronische weg door middel van led-componenten een beeld genereert.

Led billboard: een digitaal scherm ten behoeve van het leveren van informatie, doen van aankondigingen en maken van reclame veelal op afstand aangestuurd met relevante visuele content.

Lichtreclame: een lichtgevende reclameboodschap in de vorm van een reclame-uiting op een lichtbak of aangestraald door licht, dat door een externe lichtbron wordt aangelicht.

Welstandsgebied 03 Bedrijventerreinen: De gebieden, als zodanig benoemd op de Welstandsgebiedenkaart van Duiven, d.d. 3 november 2012.

A12 zone , het gebied zoals in rood (en cijfer 01) op de Welstandsgebiedenkaart van Duiven, d.d. 3 november 2012 is weergegeven, omvattende het A12-lint, binnen het totale grondgebied van de gemeente Duiven.

Led Billboards zijn buitenreclameborden met een formaat van maximaal (hxb) ± 2 x 1,5 m (centrum 1,2 x 0,8 m). Zij worden geplaatst als vrijstaande reclame langs de openbare weg in de bebouwde kom.

De toepassing van reclame op deze objecten is welstandsvrij.

Locaties:

Bedrijventerrein Nieuwgraaf (afmeting: + 2 x 1,5 m)

  • Rivierweg

  • Hoek Dijkgraaf/Nieuwgraaf

  • Bij rotonde Graafsingel/Ratio

  • Rotonde Westsingel (ter hoogte Impuls)

Centrum (afmeting Ao posterformaat : + 1,2 x 0,8 m).

  • 5.

    Koning Willem Alexanderplein

  • 6.

    Elshofpassage

Dorp (afmeting Ao posterformaat : + 1,2 x 0,8 m)

  • 7.

    Westsingel

  • 8.

    Oostsingel

 

06.09. Grote reclamemasten

Langs de A12 zijn twee grootschalige reclamemasten mogelijk.

 

Locaties

  • naast Geograaf 7

  • nabij Impact 87

07 REGELS Welstandsvrije gebieden en excessen

Voor een groot aantal ingrepen (dakkapellen, aanbouwen, bijgebouwen etc.) aan uw woning hoeft u geen omgevingsvergunning aan te vragen. U kunt dit nagaan op www.omgevingsloket.nl. Indien uw bouwplan niet omgevingsvergunningvrij is, moet u een aanvraag indienen.

Ambitie: meer ruimte voor de burger

De gemeente wil de verantwoordelijkheid voor de ruimtelijke kwaliteit van bouwwerken meer bij de burgers leggen. Dat komt onder andere tot uiting door meer ruimte te geven om welstandsvrij te bouwen. Er wordt dan niet meer preventief op welstand getoetst, wat overigens ook geldt voor omgevingsvergunningvrije bouwwerken. Wel is een excessenregeling van toepassing. De gemeente kan daarmee achteraf (indien noodzakelijk) ingrijpen.

Welstandsvrij

Welstandsvrij bouwen geldt voornamelijk in woonwijken en op achtererven (niet zichtbaar vanaf de openbare weg). Zie hiervoor ook de toetsingsmatrix in Bijlage B. Altijd wordt bekeken of geen sprake is van een exces, zodat u niet achteraf voor verrassingen komt te staan. Valt uw bouwplan binnen een gebied met welstandsniveau ‘soepel’, dan wordt wel preventief getoetst, maar zijn de welstandseisen versoepeld ten opzichte van de reguliere toetsing. De aanvrager is dan zelf voor de meeste aspecten verantwoordelijk (zie de matrix in Bijlage D). Ook hier toetst de gemeente of geen sprake is van een exces.

In de toekomst te ontwikkelen gebieden kunnen door de gemeente welstandsvrij worden verklaard. Ook dan geldt alleen de excessenregeling.

07.01. Excessenregeling

In de volgende gevallen kan sprake zijn van een exces:

  • -

    het visueel of fysiek afsluiten van een bouwwerk voor zijn omgeving;

  • -

    het ontkennen of vernietigen van architectonische bijzonderheden bij aanpassingen;

  • -

    armoedig materiaalgebruik bij erfafscheidingen, bijgebouwen en overkappingen die zichtbaar zijn vanuit de openbare ruimte (toepassing van beddenspiralen, oude deuren, golfplaten of zeildoek etc.);

  • -

    armoedig materiaalgebruik bij gevelbetimmeringen die zichtbaar zijn vanuit de openbare ruimte (bijvoorbeeld kunststof schroten en industriële beplating);

  • -

    verloedering door achterstallig onderhoud;

  • -

    verstoring van ritme in gevelwand door gedeeltelijke afbraak, instorting, verwaarlozing;

  • -

    toepassen van felle of contrasterende kleuren mits daarvoor geen redelijke aanleiding is.

  • -

    een grove inbreuk op wat in de omgeving gebruikelijk is;

  • -

    het plaatsen van bouwketen en/ of zeecontainers anders dan functioneel voor bouw-, onderhouds-, of sloopactiviteit.

Kaarten

afbeelding binnen de regeling

afbeelding binnen de regeling

Bijlage A proces en werkwijze

Gemeentearchitect en burgerlid (‘kleine’ commissie)

De gemeentearchitect (van Gelders Genootschap) wordt door de raad benoemd. Daarnaast is eventueel een burgerlid met stemrecht benoemd vanuit de raad. Samen vormen zij de zogenaamde ‘kleine’ commissie. Bij de gemeentelijke zittingen wordt naar schatting 90% van de plannen afgerond.

Integrale monumentenadvisering (‘kleine’ commissie voor monumenten)

Bij wijzigingen en restauraties van beschermde monumenten moet een omgevingsvergunning voor (de activiteit) wijzigen monument worden aangevraagd. Een dergelijke aanvraag wordt voorgelegd aan zowel de gemeentearchitect als de monumentendeskundige. Deze ‘kleine’ commissie voor monumenten beoordeelt of de voorgestelde wijzigingen voldoende rekening houden met de monumentale waarden van het gebouw of object.

‘Grote’ Commissie’

Bij grote (stedenbouwkundige) ontwikkelingen kan een plan worden voorgelegd aan de zogenaamde grote commissie. Naast de gemeentearchitect en burgerlid, wordt kennis vanuit architectuur en stedenbouw ingebracht door twee extra leden die vanuit hun vakgebied adviseren. Advisering op stedenbouwkundig vlak vindt altijd plaats in overleg met de gemeentelijke stedenbouwkundige.

Adviezen door de grote commissie worden gebundeld door de gemeentearchitect en teruggekoppeld naar B&W.

Kwaliteitsteam

Bij nieuwbouwontwikkelingen kan een kwaliteitsteam worden gevormd dat verantwoordelijk is voor de beeldkwaliteit. Het toetsingskader wordt hierbij gevormd door een beeldkwaliteitplan. De gemeentearchitect maakt deel uit van het kwaliteitsteam. De gemeente bekijkt per geval / ontwikkeling of de instelling van een kwaliteitsteam noodzakelijk is.

Ambtelijke toets

Een ambtenaar beoordeelt in beginsel of een plan geen exces is. Als dat het geval is, wordt vervolgens de ‘kleine commissie’ om advies gevraagd.

In de gemeentelijke bouwverordening is opgenomen welke niet welstandsvrije plannen in principe ambtelijk kunnen worden getoetst aan redelijke eisen van welstand.

Adviezen

Het advies van de gemeentearchitect (namens de commissie) is volgens de Woningwet gericht op het uiterlijk én op de plaatsing van het bouwwerk. In de eerste plaats wordt gekeken naar de invloed van het bouwwerk op de beeldkwaliteit van de omgeving, rekening houdend met verwachte ontwikkelingen. Deze adviezen worden geschreven op basis van deze nota en gericht aan B&W van Duiven.

Geplande zittingen zijn openbaar

Elke twee weken bezoekt de gemeentearchitect en burgerlid de gemeente voor een openbare zitting. Tijdens de zitting worden de meeste bouwplannen afgehandeld en vindt overleg plaats met planindieners, beleidsambtenaren en het gemeentebestuur. Het vooroverleg met planindieners leidt in veel gevallen tot een goed resultaat, zowel voor het ingediende plan als voor de openbare ruimte. Alleen de meer complexe plannen – rootschalige ontwikkelingen en stedenbouwkundige plannen - gaan mee naar de ‘grote’ commissie.

Burgers zijn van harte welkom aan te schuiven bij de geplande zittingen in het gemeentehuis. Het welstandstoezicht vindt plaats in het openbaar. Dit past bij een samenleving die vraagt om zoveel mogelijk rechtszekerheid en openheid rondom het welstandstoezicht. Wanneer men in een vroeg stadium bekend is met de eisen die gesteld worden aan een bouwplan, is men veelal bereid hiermee rekening te houden. Veel onduidelijkheden over de wijze van toetsen worden weggenomen als vooraf helder wordt gemaakt welke kaders bij het welstandsoordeel een rol spelen. Vooroverleg met de gemeentearchitect of de commissie is daarom essentieel. De kaders voor toetsing zijn door het gemeentebestuur in deze welstandsnota vastgelegd.

Wettelijke basis

De wettelijke basis voor de uitvoering van welstandstoezicht ligt in de Wabo (art. 2.10), de Woningwet (art. 12) en het Bor (art. 6.2). Artikel 12a, lid 1 van de Woningwet stelt dat de gemeenteraad een welstandsnota vaststelt, inhoudende beleidsregels waarin in ieder geval de criteria zijn opgenomen die het bevoegd gezag toepast bij de beoordeling of het uiterlijk en de plaatsing van een bouwwerk waarop de aanvraag om een omgevingsvergunning betrekking heeft, zowel op zichzelf beschouwd, als in verband met de omgeving of de te verwachten ontwikkeling daarvan, in strijd is met redelijke eisen van welstand. De invulling van het begrip ‘redelijk’ is afhankelijk van de ambitie van de gemeente en de ruimtelijke kenmerken van gebieden en objecten.

Bijlage B verantwoordelijkheden

 

Verantwoordelijkheid

Gemeente (Welstandstoezicht)

Verantwoordelijkheid burgers

(Welstandsvrij)

Welstandsniveau ‘Soepel’

02 Woonwijken

03 Bedrijventerreinen

04 Landelijk gebied

- situering

- bouwmassa en vorm

- gevels

- informele toets op excessen (ambt.)

Altijd:

- materialen

- kleuren

- detaillering

En:

02 Woonwijken: dakkapellen achterzijde

03 Bedrijventerreinen:

reclame

Welstandsniveau ‘Regulier’

01 Centrumgebieden, kernen,

lintbebouwing

02 Woonwijken

03 Bedrijventerreinen

04 Landelijk gebied

05 Monumenten en cultuur-

Historie

06 Reclameobjecten in openbaar gebied

- situering

- bouwmassa en vorm

- gevels

- materialen

- kleuren

- detaillering

 

Beeldkwaliteitplannen

 

 

X

 

Welstandsvrij

- informele toets op excessen (ambt.)

- situering

- bouwmassa en vorm

- gevels

- materialen

- kleuren

- detaillering

Excessen

(gemeente en burgers samen verantwoordelijk)

 

X

   

Toelichting

‘Welstandsniveau Soepel’ betekent dat bij de welstandsbeoordeling vooral getoetst wordt op aspecten van situering, vorm en massa en gevelindeling. De burger is zelf verantwoordelijk voor de invulling qua materialen, kleuren en detailleringen.

   

‘Welstandsniveau Regulier’ is gericht op het handhaven, herstellen en versterken van de aanwezige kwaliteiten. De toetsing omvat beoordeling op alle aspecten: situering, massa en vorm, gevels, detaillering, materialen en kleur.

Voor sommige gebieden wordt het beoordelingsproces begeleid door de gemeente met een zogenaamd kwaliteitsteam. De gemeentearchitect is hierbij aanwezig en verantwoordelijke voor de ‘welstandstoets’.

De burger kan zelf nagaan of een bouwactiviteit vergunningsvrij is. Voor een groot aantal ingrepen aan uw woning hoeft u geen vergunning aan te vragen. U kunt dit nagaan op www.omgevingsloket.nl

Wel is de excessenregeling van toepassing.

De gemeente houdt toezicht op de gebouwde omgeving en beoordeelt of excessen zijn ontstaan door vergunningvrij of welstandsvrij bouwen. Om excessen te voorkomen kunnen mensen met bouwplannen vooraf advies vragen aan de welstandscommissie of informeel het plan voorleggen aan een ambtenaar.

Bijlage C Veelgestelde vragen

Kijkt u ook op www.duiven.nl. Daar vindt u altijd de meest recente versie van de veelgestelde vragen.

Mijn plan voldoet niet aan de regels. Wat nu?

Als uw plan niet binnen de regels past, en het lukt u niet om uw plan zo aan te passen dat het alsnog voldoet, dan kan het toch goed zijn om een afspraak te maken met de welstandscommissie. Zij ontwerpen geen nieuwe plan voor u, maar kunnen u wel wijzen op andere oplossingsrichtingen waardoor er mogelijk een mooi nieuw ander plan ontstaat. Als u een tijdelijk bouwwerk wilt bouwen of tijdelijke reclame wilt plaatsen, heeft u overigens niet te maken met welstandseisen.

Hoe kan ik een afspraak maken met de welstandscommissie?

Op verzoek kunnen initiatiefnemers een plan voorleggen aan de gemeentearchitect tijdens een afspraak op gemeentehuis. Hiervoor kunt u contact opnemen met de gemeente. Tijdens een gesprek worden dan de verschillende mogelijkheden verkend om voor een bouwwerk een acceptabel kwaliteitsniveau te realiseren. Dit uiteraard met inachtneming van de vrijheid die de burger daarbij heeft. Er kunnen bijvoorbeeld tips worden gegeven voor de toepassing van materialen of de keuze tussen verschillende kleuren.

Wat is een welstandsnota?

Om te mogen toetsen aan redelijke eisen van welstand moet een gemeente (sinds 1 juli 2004) het welstandsbeleid hebben vastgelegd in een welstandsnota. De welstandsnota is gebaseerd op artikel 12a van

de Woningwet. In deze nota zijn de beleidsregels vastgelegd met daarin de welstandscriteria en welstandskaders die worden toegepast bij de welstandsbeoordeling van de bouwplannen. Het is mogelijk dat een gemeente welstandsvrije gebieden aanwijst waarin geen welstandsbeleid wordt gevoerd.

Heb ik een omgevingsvergunning nodig?

Voor een groot aantal bouwactiviteiten hoeft u geen omgevingsvergunning aan te vragen. U kunt dit nagaan op www.omgevingsloket.nl

Ik heb een omgevingsvergunning nodig. Wat moet ik indienen?

In de Ministeriële regeling omgevingsrecht (Mor) staat welke gegevens men bij een aanvraag van een omgevingsvergunning voor het bouwen bij het college van burgemeester en wethouders moet indienen. Voor de welstandstoets zijn tekeningen van een duidelijke maatvoering en schaalaanduiding. Om een goed beeld te vormen is het minimaal nodig:

  • -

    kleurenfoto’s van de bestaande situatie, straatbeeld, c.q. omgeving

  • -

    situatietekening bestaande een nieuwe situatie

  • -

    geveltekeningen bestaande en nieuwe situatie (straatbeeld)

  • -

    toe te passen materiaal en de kleur van de gevels, dak, kozijnen, deuren etc.

  • -

    principedetails (bij gezichtsbepalende delen)

 

Wat is een bestemmingsplan?

Een bestemmingsplan bestaat uit een toelichting, regels en een kaart. Het is een juridisch bindend plan. U kunt er dus niet zomaar van afwijken. Hetzelfde geldt voor uw buren, maar ook voor de gemeente. De gemeente is verplicht een bestemmingsplan voor het gebied binnen haar gemeentegrenzen op te stellen. Dit kunnen overigens meerdere plannen zijn voor zowel de bebouwde gebieden als het buitengebied. U kunt de meeste bestemmingsplannen vinden op www.ruimtelijkeplannen.nl

 

Wat zijn welstandsniveaus?

Aan de welstandsgebieden zijn toetsingsniveaus gekoppeld, variërend van welstandsvrij, soepel tot regulier. Afhankelijk van het toetsingsniveau gelden meer of minder beoordelingsaspecten (gevel, bouwmassa / ligging, materialen, kleuren en detaillering). Hoe lager het niveau, hoe minder beoordelingsaspecten met daarbij behorende criteria. Zo geldt voor het laagste niveau (soepel) dat burgers zelf verantwoordelijk zijn voor onder andere de invulling van materiaalgebruik, kleurstelling en detaillering. Waar de burger geheel welstandsvrij mag bouwen, gelden alleen nog excessencriteria (repressief toezicht). De toetsingsniveaus zijn uitgewerkt in een matrix, die in de Bijlage is te vinden.

 

Wat is een beeldkwaliteitplan?

Een beeldkwaliteitplan is een specifiek kader toegevoegd aan de welstandsnota. Beeldkwaliteitplannen vormen voor (nieuw)bouwplannen het kader voor ruimtelijke kwaliteitseisen. Wanneer een aanvraag om omgevingsvergunning voor bouwen wordt ingediend, moet voor het onderdeel “welstand” worden getoetst aan de regels in het beeldkwaliteitplan.

 

Welke bouwwerken zijn welstandsvrij in de woonwijken?

  • -

    éénlaagse uitbreidingen op het achtererfgebied tot 3 meter hoogte en 1 m achter de voorgevel;

  • -

    Dakkapellen aan de achterkant van een woning binnen ‘Woonwijken’ (zie kaart)

  • -

    erfafscheidingen met een maximale hoogte van 1 m vóór de voorgevel zijn zowel vergunningsvrij als welstandsvrij.

  • -

    het plaatsen van makelaarsborden.

COLOFON

Dit is een uitgave van de gemeente Duiven tot stand gekomen

i.s.m. Gelders Genootschap.

versie november 2012

Bijlage D Beeldkwaliteitplan Plakse Weide - Duiven

Plakse Weide - Duiven

Inleiding

Voor u ligt het beeldkwaliteitsplan voor de ontwikkeling van Plakse Weide. Het beeldkwaliteitsplan is het instrumentarium voor de beoordeling van toekomstige aanvragen van omgevingsvergunningen door de CRK. Ook vormt dit beeldkwaliteitsplan de kaders voor het nog uit te werken inrichtingsplan openbare ruimte van Plakse Weide.

Dit beeldkwaliteitsplan wordt aangeboden aan de gemeenteraad ter besluitvorming als aanvulling op de gemeentelijke welstandsnota.

Identiteit

Fruit vormt voor de planvorming van Plakse Weide de rode draad. Vanuit historisch perspectief kent de regio - de Liemers - een uitgebreide geschiedenis met gemengde fruitteelt. Fruit is daarom gebruikt als een centraal thema voor Plakse Weide waar omheen een collectieve en herkenbare identiteit is ontwikkeld.

Fruit heeft gediend als inspiratie voor het stedenbouwkundig plan, in de eerste ideeën voor de inrichting van de buitenruimte en ook voor de beeldkwaliteit vormt fruit - zowel direct als indirect - een belangrijke inspiratie.

Het doel van het plan voor Plakse Weide is het toevoegen van een nieuw woonmilieu aan Duiven met een sterke eigen identiteit, die door verschillende schalen heen zichtbaar is.

Voor het gehele plan geldt dat een stevige groenstructuur de basis vormt. De woningen zijn onderdeel van woonclusters die als eilanden in het groen liggen. De ruime groene basis verbindt deze woonclusters tot één samenhangende wijk.

Binnen Plakse Weide wordt op buurtniveau en op wijkniveau gestreefd naar een sociaal duurzame wijk. De groenstructuur is daarin een belangrijk middel. Door middel van groene scheggen ontstaan woonbuurten die samen aan dezelfde scheg wonen.

In het midden van Plakse Weide ligt het groene hart, dit biedt buurtoverstijgend de mogelijkheid om medebewoners te ontmoeten en samen activiteiten te ondernemen.

Plakse Weide kent een grote diversiteit aan woningtypologieën. De architectuur is eigentijds. Om eenheid in diversiteit te bewaren wordt gestreefd naar een herkenbare samenhangende beeldkwaliteit door middel van kleurstelling, materialisering en detaillering.

Afwijken van de beeldkwaliteit - zoals voorgeschreven in dit document - is altijd mogelijk. Het is daarbij aan de CRK om te beoordelen of de ontwerpen passen binnen Plakse Weide op basis van de algehele samenhang en de benoemde belangrijke thema’s voor Plakse Weide.

In het algemeen wordt van specials of afwijkende woningen verwacht dat deze bijdragen aan de kwaliteit en identiteit van de wijk zoals beschreven.

Leeswijzer

In hoofdstuk 1 wordt ingegaan op de context van Plakse Weide en het stedenbouwkundig plan met de belangrijkste stedenbouwkundige verkavelingsprincipes.

Hoofdstuk 2 behandeld de gewenste beeldkwaliteit voor Plakse Weide. Er wordt ingegaan op de beeldkwaliteit van de grondgebonden woningen, de beeldkwaliteit voor meergezinswoningen en algemene beeldkwaliteitseisen.

Bijvoorbeeld; materialisering en de toepassing van fruit in het woningontwerp.

Uiteindelijk wordt in hoofdstuk 3 ingegaan op de gewenste beeldkwaliteit voor de openbare ruimte.

afbeelding binnen de regeling

1. DSO

Context

Nieuwbouwlocatie Plakse Weide ligt in het noordwesten van Duiven, ingeklemd tussen de N810, de Vergertlaan en de Rijksweg.

Plakse Weide zal in de toekomst ontsloten worden via de Rijksweg, de oude hoofdweg van Arnhem naar Zevenaar, ten zuiden van het gebied. Dit historische relict is nog op een aantal manieren te herkennen; de Rijksweg ligt significant hoger dan de omgeving en op verschillende plaatsen – ook langs Plakse Weide – zijn nog historische bomenlanen aanwezig.

Ten noorden ligt de N810, de vervanging van de Rijksweg en de nieuwe provinciale weg vanaf de A12 richting Zevenaar. In de toekomst zal de N810 ook aangesloten worden op de verlenging van de A15 die ten oosten van Duiven zal komen te lopen.

Ten oosten van Plakse Weide zijn de restanten van het buurtschap De Plak aanwezig aan de Plaksestraat. Ook dit relict – deels nu hernoemd naar Laarstraat - is nog herkenbaar door de relatie met de richting van de agrarische ontginning en de aanwezige historische bomenlanen. De Plaksestraat en de Laarstraat worden in de toekomst één van de aansluitingen op de regionale snelfietsroute richting Arnhem. De snelfietsroute is momenteel geprojecteerd ter hoogte van de Roodwilligenstraat.

Ten westen ligt nieuwbouwwijk Lommerweide uit de jaren ’90 van de vorige eeuw. De wijk is gescheiden van Plakse Weide door een groene singelstructuur met verspreid staande bomen en de Vergertlaan. De Vergertlaan is tevens één van de hoofdentrees van Duiven met een aansluiting op de N810.

Plakse Weide is momenteel nog in agrarisch gebruik. Het gebied ligt lager dan de omgeving en heeft te maken met uitdagingen rondom geluid- en geuroverlast. Door de oostzijde van het gebied loopt een regionale gastransportleiding van de Gasunie.

afbeelding binnen de regeling

Situatie van Plakse Weide, tekening is bedoeld als een schematische weergave van de nieuwbouwlocatie en omgeving en zal niet exact met de werkelijkheid overeenkomen

De omgeving van Plakse Weide

De Plak

afbeelding binnen de regeling

De Vergert

afbeelding binnen de regeling

Lommerweide

afbeelding binnen de regeling

Duiven is in 1981 aangewezen als groeikern. Deze aanwijziging heeft geleid tot een sterke groei van Duiven. Tussen 1987 en 1994 zijn 4.200 woningen gebouwd in Duiven-West, -Zuid en in Lommerweide.

De Plak

Het buurtschap De Plak aan de oostzijde van Plakse Weide is een overblijfsel van het oorspronkelijke buurtschap dat zich bevond op de kruising tussen de Rijksweg en de Plaksestraat. In de jaren ’60 of ’70 van de vorige eeuw is het buurtschap deels uitgebreid met de Plaksestraat.

De Vergert

De Vergert ten zuiden van Plakse Weide is gebouwd aan het begin van de jaren ’80. De wijk is een typisch voorbeeld van de bloemkoolwijken die in die periode in heel Nederland gebouwd zijn. De ontsluiting van de wijk loopt via een combinatie van woonerven, pleintjes en erftoegangswegen.

De bebouwing in De Vergert bestaat voornamelijk uit verspringende rijwoningen en incidenteel twee-onder-één-kap woningen.

Ook voor de Vergert geldt dat dit een wijk is met een informeel groen woonmilieu. Maar, ook De Vergert mist een duidelijke onderscheidende identiteit.

Lommerweide

Lommerweide ten westen van Plakse Weide is gebouwd aan het begin van de jaren ’90. De wijk kenmerkt zich door een primaire wegenstructuur met een brede opzet. Vanuit die primaire structuur worden de woonbuurten via lussen ontsloten door een secundaire wegontsluiting.

De bebouwing bestaat uit een mix van vrijstaande, twee-onder-één-kap en rijwoningen. De vrijstaande woningen en twee-onder-één-kap woningen zijn met name aan de randen van de wijk gesitueerd.

De wijk heeft een groen uiterlijk, maar een duidelijke onderscheidende identiteit ontbreekt.

Eigen identiteit

Het ontbreken van een duidelijke onderscheidende identiteit in De Vergert en Lommerweide heeft geleid tot de keuze om Plakse Weide verder uit te werken met een eigen identiteit. Daarnaast heeft Plakse Weide ook fysiek geen relatie met de omliggende wijken door de aanwezigheid van de Rijksweg en de Vergertlaan die -in combinatie met de verkeersdruk - elke verbinding onlogisch maken.

Stedenbouwkundig plan

Op basis van alle uitgangspunten en input zoals behandeld in de voorgaande hoofdstukken is het stedenbouwkundig plan uitgewerkt. In dit hoofdstuk wordt verder ingegaan op het stedenbouwkundig plan en alle gerelateerde onderwerpen.

Planopbouw

De hoofdstructuur van Plakse Weide is opgebouwd uit vier belangrijke lagen; groenstructuur, infrastructuur, waterstructuur en de bouwvelden. Deze vier lagen samen vormen het stedenbouwkundig plan voor Plakse Weide.

De groenstructuur is het dragende en belangrijkste element binnen de ontwikkeling van Plakse Weide. De bouwvelden zijn als eilanden gesitueerd in de groene ruimte. De groene ruimte bestaat uit de ecologische groene buitenrand langs de Rijksweg en de Vergertlaan, de scheggen tussen de verschillende bouwvelden en het groene middengebied. Alle groene ruimten zijn onderling verbonden en vormen een netwerk van verschillende sferen die reageren op het woonmilieu en de omgeving.

De infrastructuur bestaat uit een auto ontsluiting en een langzaam verkeernetwerk. Het langzaam verkeernetwerk verbindt Plakse Weide met een aantal belangrijke routes richting Arnhem, het centrum en het station. Daarbij is er een fijnmazig netwerk in het plangebied aanwezig voor een snelle verbinding naar de aansluitingen buiten het plangebied.

De waterstructuur bestaat uit wadi’s ten behoeve van het plaatselijk opvangen en infiltreren van hemelwater. De inrichting past zich aan op de omgeving waarin de waterstructuur zich bevindt.

De bouwvelden liggen – zoals benoemd – als eilanden in de groene ruimte. Elk bouwveld heeft een divers en gemengd woningbouwprogramma. Het parkeren wordt per bouwveld in het bouwveld zelf opgelost.

afbeelding binnen de regeling

afbeelding binnen de regeling

Hiërarchie binnen Plakse Weide

In de verkaveling wordt een informele groene woonsfeer nagestreefd. Om deze woonsfeer ook vast te leggen voor de verdere uitwerking van het stedenbouwkundig plan, zijn voor een aantal onderwerpen kaders vastgelegd in dit DSO.

Op de volgende pagina’s wordt dieper ingegaan op de onderwerpen:

  • Stedenbouwkundige korrel – grote van bouwvolumes

  • Rooilijn – onderlinge rooilijn tussen bouwvolumes

  • Volume onderbreking – hoe groot mag een bouwvolume zijn voor dit opgeknipt moet worden in kleinere elementen?

  • Overgangen privé-openbaar – hoe worden de overgangen tussen privé terrein en openbaar gebied vormgegeven?

  • Goot- en nokverspringingen – in hoeverre zijn goot- en nokverspringingen in het straatbeeld gewenst?

Sommige onderwerpen zijn gericht op geheel Plakse Weide, andere onderwerpen zijn gesplitst over verschillende deelgebieden binnen Plakse Weide. Per onderwerp wordt aangegeven voor welk gebied welke regels gelden.

Mix van typologieën

In het algemeen gesproken is voor een informele woonsfeer een mix van typologieën gewenst. Door de ruime diversiteit van woningen – voortkomend uit de wens om een divers en betaalbaar programma te realiseren in Plakse Weide – is het ook goed mogelijk om die mix toe te passen.

Binnen Plakse Weide moeten verschillende typologieën door elkaar worden toegepast.

Oriëntatie

De woningen in Plakse Weide hebben een oriëntatie gebaseerd op de hiërarchie van het stedenbouwkundig plan. Het plan bestaat uit een 4-tal stedenbouwkundige eenheden; 1. De singelrand langs de Vergertlaan, 2. de overige randen langs de Rijksweg en N810, 3. De binnenrand langs het groene middengebied en 4, de groene scheggen tussen de bouwvelden in.

De woningen oriënteren zich ook volgens deze volgorde. Een woning op een hoek tussen een groene scheg en de singelrand

afbeelding binnen de regeling

De hiërarchie binnen Plakse Weide

afbeelding binnen de regeling

Stedenbouwkundige korrel

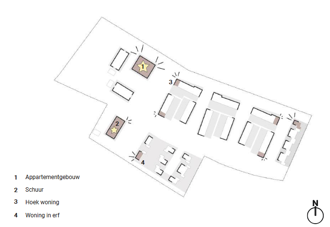
De stedenbouwkundige korrel van Plakse Weide is opgebouwd uit verschillende bouwvolumes. Een bouwvolume is één geheel in massa. In dit principe wordt ingegaan op de grondgebonden woningen. De appartementen worden apart behandelt.

De singelrand

  • Een bouwvolume is opgebouwd uit 1 tot maximaal 5 woningen, die samen één geheel vormen in massa

  • In de singelrand zijn maximaal 3 bouwvolumes opgebouwd uit meer dan 2 woningen

afbeelding binnen de regeling

De overige randen, het middengebied en de scheggen

  • Een bouwvolume is opgebouwd uit 1 tot maximaal 7 woningen, die samen één geheel vormen in massa

afbeelding binnen de regeling

Rooilijn en voortuin

De groene scheggen

Voor de groene scheggen is een informeel groen woonmilieu het streefbeeld. Het realiseren van een rafelrand in de begrenzing van de scheggen draagt bij aan dit streefbeeld. De rafelrand wordt gemaakt door een combinatie van verspringingen in de rooilijn en erfgrens en de vormgeving van de overgang tussen openbaar en privé terrein.

In de scheggen wordt gestreefd naar een substantiële onderlinge verspringing van de voorgevelrooilijn tussen bouwvolumes. Ook wordt in de groene scheggen gestreefd naar een substantiële verspringing in de erfgrenzen aan de voorzijde van het kavel.

Daarom gelden de volgende uitgangspunten voor de groene scheggen:

  • De rooilijn tussen hoofdvolumes verspringt substantieel

  • Rijwoningen hebben een veranda met voldoende bruikbare diepte

  • Alle overige woningen hebben een voortuin met een diepte van ten minste 2 meter

afbeelding binnen de regeling

De randen en het middengebied

Ook in de randen en het middengebied is het belangrijk dat de woningen niet in dezelfde lijn staan zodat een informele ordening ontstaat.

Daarom gelden voor de randen en het middengebied de volgende uitgangspunten:

  • Een verspringing in de voorgevelrooilijn tussen hoofdvolumes is aanwezig

  • Vrijstaande en twee-onder-één-kap woningen hebben een voortuin met een diepte van ten minste 3 meter

  • Rijwoningen en de rug-aan-rug woningen hebben een voortuin met een diepte van ten minste 2 meter

afbeelding binnen de regeling

Opdelen van bouwvolumes

Bouwvolumes met een lengte groter dan 5 woningen worden gefragmenteerd in eenheden van 4 of minder woningen.

Het fragmenteren van bouwvolumes wordt gerealiseerd door het toepassen van één of een combinatie van de volgende ingrepen:

  • een verspringing van minimaal 0.50 meter in de gevel

  • een verspringing in de goot

  • een verspringing in de nok

  • het toepassen van dwars- en langskappen

Rijwoningen in de groene scheggen worden niet gefragmenteerd, omdat de woningen verbonden worden door een veranda.

afbeelding binnen de regeling

Gevarieerd straatbeeld

Een dorps straatbeeld is gebaat bij variatie. Variatie kan gevonden worden in typologieën, gevelcompositie, kaprichtingen, bouwhoogte, goothoogte en materiaalgebruik.

afbeelding binnen de regeling

De rand

  • De bouwvolumes van de appartementen hebben onderling een hoek groter dan 90°

  • De massa van de bouwvolumes wijkt - ten opzichte van elkaar - af in hoogte. De bouwvolumes aan de rand zijn maximaal 4 bouwlagen hoog.

afbeelding binnen de regeling

Het middengebied

  • De bouwvolumes van de appartementen hebben onderling een hoek groter dan 90°

  • De massa van de bouwvolumes wijkt - ten opzichte van elkaar - af in hoogte. De bouwvolumes in het middengebied zijn maximaal 5 bouwlagen hoog.

afbeelding binnen de regeling

2. Beeldkwaliteit

Inleiding op de beeldkwaliteit

Plakse Weide is een nieuwe wijk in Duiven. In de omgeving is geen kenmerkende beeldbepalende architectuurstijl aanwezig die aanleiding geeft voor aansluiting. Daarom kan in Plakse Weide worden ingezet op het ontwikkelen van een voor Duiven nieuwe, onderscheidende eigentijdse beeldkwaliteit.

De bebouwing vormt in beeldkwaliteit een familie. Binnen een herkenbare samenhangende beeldkwaliteit is ruimte voor individuele verschillen. De architectuur is eigentijds, strak, gaat uit van krachtige consistente gevelcomposities en straalt eenvoud en kwaliteit uit in een zorgvuldige, enigszins minimalistische detaillering. Er is eenheid in kleur, materialisering en een collectief thema.

Identiteit

In de omgeving komt van oudsher veel gemengde fruitteelt voor. In Plakse Weide wordt dit gegeven gebruikt voor het ontwikkelen van een collectieve en herkenbare identiteit. De architectuur is wat abstracter dan gebruikelijk is in Duiven maar niet afstandelijk of kil. Dit wordt bereikt door het toepassen van levendige materialen en kleurnuance, subtiele verbijzonderingen, plastiek en zachte overgangen tussen binnen en buiten, bijvoorbeeld met veranda’s.

Voorkom hinderlijke repetitie. Plakse Weide heeft een dorpse uitstraling. Daar past geen monotone repetitie bij. Daarom wordt toegewerkt naar een mix van typologieën. Zorg bovendien voor variatie per typologie.

Specials

In de wijk is ook ruimte voor specials. Een special is een woning die in uitwerking afwijkt van de beeldkwaliteit. Binnen Plakse Weide kunnen enkele bouwvolumes in beeldkwaliteit afwijken. De specials liggen verspreid in de wijk. Van specials wordt verwacht dat ze bijdragen aan de kwaliteit van de wijk als geheel. Het is aan de architect om de CRK hier in te overtuigen.

Dit beeldkwaliteitplan zet de koers uit wat betreft de gewenste beeldkwaliteit, maar is niet in beton gegoten. Het kan zijn dat tijdens de ontwikkeling van de ontwerpen voortschrijdend inzicht ontstaat die aanleiding geeft om op onderdelen af te wijken. Het is aan de architect om afwijkingen te motiveren en aan welstand om te beoordelen of de voorgestelde afwijkingen bijdragen aan de kwaliteit van de wijk.

Fruit

Vanuit historisch perspectief gezien werd in de regio rond Duiven veel aan fruitteelt gedaan als onderdeel van het gemengd boerenbedrijf. De fruitteelt werd gezien als bijverdienste en niet als hoofdonderdeel van het boerenbedrijf. Het fruit moest daarom in niet te grote hoeveelheden tegelijk uit de boomgaarden komen. Deze regio karakteriseert zich dan ook door de grote diversiteit aan fruitbomen die – nog steeds – aangetroffen wordt in de regio.

afbeelding binnen de regeling

Lijst van in de Liemers aangetroffen fruitbomen

Bron: Driepas - Historische Kring Duiven, Groessen,Loo

afbeelding binnen de regeling

Beeldkwaliteit Grondgebonden woningen

Zoals benoemd is er behoefte aan een toegankelijk, warm, eigentijds en niet historiserend architectuurbeeld. Bij dit architectuurbeeld passen heldere eenvoud in compositie, aandacht voor licht en schaduw, overgangen tussen binnen en buiten en een zorgvuldige consistente detaillering.

Optionele uitbreidingsmogelijkheden, zoals erkers, dakkappellen en uitbouwen, mee ontwerpen en bespreken in de CRK.

Architectuurstijl: Eigentijds, strak, heldere samenhangende composities en eenvoud

Massa: Maximaal twee bouwlagen met een kap. Plastiek draagt bij aan de levendigheid van het volume.

Maximaal 1 dakkapel per woning Dakkapellen niet breder dan 3.20 meter

Gevelopeningen: Strakke en consistente ordening, heldere keuzes wat betreft plastiek(schaduwwerking), minimalistische detaillering

Veranda’s: In de groene scheggen veranda’s alleen aan rijwoningen. Verder kunnen veranda’s gebruikt worden voor specials of hoekaccenten. Veranda’s worden strak vormgegeven

Dak: Zadeldak, overwegend geen overstekken. Een overstek ter plaatse van een terugliggend geveldeel is altijd mogelijk

afbeelding binnen de regeling

Een voorbeeld van veranda woningen, omlijsting van de veranda komt terug als kader van de raampartijen in de plint. Het voorbeeld kan als rijwoning of als rug-aan-rug woning worden toegepast.

afbeelding binnen de regeling

Strakke compositie van gevelopeningen en plastiek. Door de terugliggende gevel ontstaat een overkapte buitenruimte als overgang tussen binnen en buiten. Zonder dakoverstek is compacter en sluit meer aan bij het gewenste beeld.

afbeelding binnen de regeling

Plastiek in combinatie met materialisering. De houten voering in het terugliggende volume benadrukt ‘een buiten en een binnen’. Voorbeeld van een dakkapel in een andere materialisering dan de gevel. De dakkapel staat niet op de gevel maar integreert in de gevel.

afbeelding binnen de regeling afbeelding binnen de regeling

De plastiek en terugliggende geveldelen verzachten de strakke vormgeving.

afbeelding binnen de regeling afbeelding binnen de regeling

Strakke vormgeving, minimalistische detaillering, fraaie kleurstelling en materialisering in baksteen met hout detaillering. De plastiek maakt het volume toegankelijk en levendig door de schaduwwerking en verbindt binnen met buiten.

afbeelding binnen de regeling

Een compact volume, strakke consistente detaillering.

afbeelding binnen de regeling afbeelding binnen de regeling afbeelding binnen de regeling

Een mogelijke incidentele verbijzondering, voorkom repetitie.

Overgang openbaar-privé

De ruimten voor de woningen maken deel uit van de ontwerpopgave. Binnen Plakse Weide wordt nagestreefd dat voorruimten zo worden ontworpen dat bewoners deze ruimten ook daadwerkelijk als verblijfsruimte gaan benutten. Op deze manier wordt de voorruimte onderdeel van de woning en ontstaat er een verbinding met - en levendigheid in de buitenruimte.

Het is belangrijk dat in het woningontwerp nagedacht wordt over de vormgeving van de overgangen tussen binnen en buiten.

Bijvoorbeeld in de vorm van veranda’s, overdekte buitenruimten als onderdeel van de massa, gebouwde terrassen en mee-ontworpen bankjes of zitjes.

Het is belangrijk dat de vormgeving van de overgang tussen openbare en privéruimte past bij de locatie binnen Plakse Weide. Binnen een groene scheg past een veranda met een direct aansluiting op de groene buitenruimte goed. Aan de rand sluit een mee-ontworpen zitbank in combinatie met een groene haag juist beter aan bij de situatie.

Voor alle situaties geldt, dat de overgangen tussen de openbare en privéruimte in samenhang met de architectuur en eventuele erfafscheidingen worden vormgegeven.

afbeelding binnen de regeling

afbeelding binnen de regeling

Voorbeeld van vormgeving van de overgang tussen binnen en buiten door middel van een veranda. Hei en Jij, Kerkebosch, Zeist

Beeldkwaliteit Appartementen

De appartementengebouwen hebben verwantschap met elkaar en met de grondgebonden woningen. Deze verwantschap is zichtbaar in materiaalgebruik, kleur en architectuurstijl.

De appartementengebouwen zijn niet bedoeld als verticale, stedelijke objecten. Het streven is de gebouwen zoveel mogelijk contact te laten maken met de omgeving. Hierbij past een open - zo mogelijk horizontale - structuur. Voorkom het beeld van dozen met aangehangen onderdelen. Verbind buitenruimten tot volumes als onderdeel van het hoofdvolume en/of maak gelaagde volumes.

Ontwikkel voor de appartementen in de rand een structuur die zich zowel leent voor een meer gesloten gevel aan de wegzijde als een meer open gevel aan de naar de wijk gekeerde gevel.

Appartementengebouwen zijn alzijdig representatief.

Architectuurstijl: Heldere, eigentijdse strakke, krachtige gebouwstructuur, levendige gevelcomposities die rijk zijn aan plastiek en interessante verbijzonderingen in materialisering

Massa: Drie tot en met vijf bouwlagen

Gevelopeningen: Strakke compositie van gevelopeningen, mogelijke verspringingen in geveldelen en buitenruimten zodat een levendige gevel ontstaat zonder de eenvoud van het geheel te verliezen

Galerij/balkons: Galerijen en balkons zijn onderdeel van het hoofdvolume, werken mee in de gevelcompositie en vormen een overgang

Dak: Plat

afbeelding binnen de regeling

Voorbeeld van een horizontale gevelcompositie met loggia’s. Een horizontale compositie oogt minder stedelijk dan een verticale compositie. De structuur leent zich voor een meer gesloten gevel in de buitenrand en een meer open gevel aan de naar de wijk toegekeerde gevel.

afbeelding binnen de regeling

Voorbeeld van een raster met inpandige balkons en metselwerk puivullingen. De structuur leent zich goed voor de meer gesloten zijde in de buitenschil maar minder voor de naar de wijk toegekeerde zijde.

afbeelding binnen de regeling

Voorbeeld appartementen sociaal programma. Door de balkons te clusteren met lamellen, vormen de balkons volumes als onderdeel van het hoofdvolume. In de beleving opent het gebouw zich naar zijn omgeving.

afbeelding binnen de regeling

Voorbeeld van verfijning in de gevelcompositie. Met horizontale en verticale belijning en gemetselde terugliggende puivlakken. De structuur leent zich zowel voor de meer gesloten gevel in de buitenrand als de meer open gevel aan de zijde van de wijk.

afbeelding binnen de regeling

Voorbeeld koopappartementen. Door de combinatie van volledig uitkragende vloeren en het toepassen van lamellen en scheidendingswanden toont het gebouw zich als volume met een terugliggende gevel.

afbeelding binnen de regeling afbeelding binnen de regeling

Voorbeeld van een met begroeiing gefragmenteerde galerij of doorgaande balkon strook. Het gebouw opent zich naar zijn omgeving en voegt kwaliteit toe aan de openbare ruimte.

Galerij/Balkon

Maak balkons en galerijen onderdeel van het hoofdvolume zodat gelaagdheid ontstaat, bijvoorbeeld door het toepassen van lamellen.

afbeelding binnen de regeling

Algemene beeldkwaliteit

Materialisering/Kleur

Strakke architectuur wordt gecombineerd met een warme blonde genuanceerde kleur en een levendige materialisering.

Levendigheid ontstaat door subtiele verbijzonderingen in de gevelvlakken en - met name - door reliëf. Bijvoorbeeld door toepassing van een steen met enig reliëf, verdiepte voegen en/ of uitstekende strekken. Vooral de schaduwwerking wekt met een wisselende zonnestand de gevel tot leven.

De kleur van kozijnen, puien, deuren, hekwerken en lamellen wordt afgestemd op de gevel zodat een zachte combinatie ontstaat. Het is daarbij belangrijk dat kozijnen rank worden uitgevoerd.

Materialisering is middels natuurlijke materialen. Innovaties en duurzame materialen worden toegejuicht.

Bergingen zijn antraciet van kleur.

afbeelding binnen de regeling

Vlakke dakpan

afbeelding binnen de regeling

Gevel

afbeelding binnen de regeling

Kozijnen, puien, deuren, hekwerken en lamellen

Gevelbeplanting

afbeelding binnen de regeling

Leifruit

afbeelding binnen de regeling

Gevelbeplanting in het patroon van trellies

afbeelding binnen de regeling

Inspiratie voor gevelpatronen gebaseerd op het patroon van trellies

Fruit

Vanuit historisch perspectief gezien werd in de regio rond Duiven veel aan fruitteelt gedaan als onderdeel van het gemengd boerenbedrijf. De fruitteelt werd gezien als bijverdienste en niet als hoofdonderdeel van het boerenbedrijf. Het fruit moest daarom in niet te grote hoeveelheden tegelijk uit de boomgaarden komen. Deze regio karakteriseert zich dan ook door de grote diversiteit aan fruitbomen die – nog steeds – aangetroffen wordt in de regio.

In Plakse Weide is fruitteelt tot centraal thema in de openbare ruimte gekozen. Fruit kan behalve in boomgaarden ook langs muren geteeld worden. Dit wordt leifruit genoemd. Er zijn allerlei verschillende vormen, patronen waarin fruit of gevelbegroeiing geleid kan worden.

Het streven is om het fruitthema ook terug te laten komen in de architectuur. Dit kan door gevelbegroeiing mee te ontwerpen, bijvoorbeeld in voorzieningen aan de gevel zoals het aanbrengen van trellies, spandraden en bevestigingspunten waarlangs de begroeiing zich kan ontwikkelen. Het kan ook door juist de patronen van leifruit als inspiratie te gebruiken in gevelcomposities of bijvoorbeeld in metselwerkpatronen. Betrek het thema leifruit/groen waar mogelijk in het ontwerp.

afbeelding binnen de regeling

Voorbeelden leipatronen

Verbijzonderingen

Aandacht voor detail is essentieel bij het beoogde kwaliteitsniveau. Besteed aandacht aan entrees. Het is de plek waar iedereen binnenkomt. De verharding ten behoeve van de overgang naar de buitenruimte is daarin een belangrijk onderdeel. Maar, neem bijvoorbeeld ook buitenlampen, huisnummering etc. mee in het ontwerp.

afbeelding binnen de regeling

Installaties

Neem installaties mee in de ontwerpcompositie en laat uitbreidingsmogelijkheden zien. Zorg dat eventuele energie-en koelingsinstallaties op platte daken vanaf maaiveld uit het zicht zijn opgelost.

afbeelding binnen de regeling

PV-panelen worden mee-ontworpen in de ontwerpcompositie of op platte daken achter een dakopstand uit het zicht opgelost

afbeelding binnen de regeling

Parkeren

Achterterreinen met parkeren worden groen en klimaatbestendig ingericht. Parkeervakken worden groen ingepakt door middel van hagen en heesterbeplanting met een maximale hoogte van 1.20 meter.

Op het achterterrein van de woningen wordt de haag op de erfgrens geplant. Het is niet toegestaan om schuttingen buiten de haag te plaatsen.

Bergingen worden achter de haag geplaatst, uit het zicht vanaf het parkeerterrein. De haag loopt dus door voor de berging langs. Betrek bergingen en carports in het ontwerpvoorstel.

afbeelding binnen de regeling

afbeelding binnen de regeling

Groene erfafscheidingen

afbeelding binnen de regeling

Carpinus betulus - haagbeuk

afbeelding binnen de regeling

Ligustrum ovalifolium - haagliguster

afbeelding binnen de regeling

Cornus mas - gele kornoelje

afbeelding binnen de regeling

Hedera helix - klimop

Als een groene erfafscheiding wordt toegepast als afscheiding tussen openbaar en privé terrein, dan wordt de afscheiding op de erfgrens gesitueerd om te voorkomen dat aan de buitenkant schuttingen worden geplaatst.

Afwisseling in hagen is gewenst vanuit het oogpunt van biodiversiteit en robuustheid van het groen. Maar, het algeheel beeld moet overzichtelijk en eenduidig blijven. Te veel afwisseling van soorten is daarom ongewenst.

Een haag wordt aangeplant in een dubbele rij in verschoven verband met paal en draad tegen doorlopen.

Een haag is maximaal 1.00 meter hoog aan de voorzijde van de woning. Na de achtergevel is de haag maximaal 2.00 meter hoog.

Om richting te geven aan de erfafscheidingen, is op deze pagina een suggestie gedaan van een aantal mogelijkheden.

3. Beeldkwaliteit Openbare Ruimte

Verharding

Binnen het plan voor Plakse Weide is onderscheidt aanwezig tussen voetpaden en trottoir, maar ook tussen rijbanen in parkeerkoffers of de rijbanen voor de erftoegangswegen.

Er is onderscheidt tussen formele structuren (bijvoorbeeld trottoirs langs de erftoegangswegen) en informele structuren (bijvoorbeeld de voetpaden in de groene scheggen of het midden gebied. Per locatie is op basis van gebruik en status (formeel of informeel) een verhardingstype voorgeschreven. De uitwerking van het type verharding - bijvoorbeeld de klinkersortering - wordt in het inrichtingsplan bepaald.

Rijbaan erftoegangsweg:

  • Klinkers

  • kleur: roodbruin genuanceerd

Trottoir langserftoegangswegen:

  • Klinkers

  • kleur: roodbruin genuanceerd

Fietspad:

  • rode betontegels, rood asfalt of klinkers (roodbruin)

Voetpaden in de groene scheggen of het groene middengebied:

  • gebonden halfverharding (bijvoorbeeld padvast, graustabiel, stabilizer of gravilyn)

Parkeren inclusief de rijbanen:

  • groene open verharding eventueel gecombineerd met betonstraatstenen (bijvoorbeeld TTE infiltratieroosters, klosterman GreenSTON, hydro lineo, etc.)

afbeelding binnen de regeling

Rijbaan/trottoir - klinker - roodbruin genuanceerd

afbeelding binnen de regeling

Fietspad - rood asfalt, klinker - roodbruin gemeleerd of rode betontegel

afbeelding binnen de regeling

Voetpad - gebonden halfverharding

afbeelding binnen de regeling

Parkeren - groene open verharding of betonstraatsteen

Openbare verlichting

afbeelding binnen de regeling

Lichtmasten hebben een modern en minimalistisch uiterlijk, passend bij de architectuur van appartementen en grondgebonden woningen. Lichtmast en armatuur hebben een tijdloos ontwerp. De armaturen worden uitgevoerd als paaltop op een conische mast in een donkere coating.

De lichtmasten worden opgesteld in een enkelzijdige opstelling

Meubilair

Het straatmeubilair heeft een modern en minimalistisch uiterlijk, passend bij de architectuur van appartementen en grondgebonden woningen. De stalen elementen van het straatmeubilair wordt uitgevoerd in een een donkere coating. Houtelementen in onbehandeld hardhout.

afbeelding binnen de regeling

Speel- en sportvoorzieningen

Speel- en sportvoorzieningen voegen zich naar het landschap.

Informele speelplekken maaken gebruik van op die locatie aanwezige maaiveldkenmerken - denk bijvoorbeeld aan hoogteverschillen. Verder wordt gebruik gemaakt van informele spelaanleidingen zoals houten paaltjes, klimbomen of zwerfkeien.

In formele speelplekken worden ingericht met houten speeltoestellen die avontuurlijk spelen bevorderen.

Sportfaciliteiten zijn aanwezig voor alle leeftijden. Als fitnesstoestellen worden toegepast, dan worden deze ook uitgevoerd in hout.

In het hele plan wordt gewerkt met natuurlijke valondergronden als speelzand, speelgrind, gras of houtsnippers.

afbeelding binnen de regeling

Informele speelplekken benutten de vormgeving van het landschap (wadi, hoogteverschil etc.) en voegen informele natuurlijke speelaanleidingen toe (boomstam, klimrots etc.)

afbeelding binnen de regeling

Formele speeltoestellen worden uitgevoerd in hout en bieden de ruimte voor avontuurlijk spelen

afbeelding binnen de regeling

Ruimte voor sporten voor zowel jong als oud. Fitnesstoestellen worden uitgevoerd in een natuurlijke, robuuste en informele afwerking

Groenstructuur

Boomstructuur

Gezien de historie van Duiven en omgeving met een grote diversiteit aan fruit is gezocht naar een concept dat naar die historische verbinding terugverwijst.

De scheggen worden gethematiseerd ingericht. Daarbij kan gedacht worden aan een fruitsoort (peren, appels, kersen etc.) per scheg en diversiteit in de variëteiten van diezelfde soort in de scheg. Naast een fleurig beeld in het voorjaar bieden de fruitbomen ook het fruit dat door bewoners en omwonenden geplukt en gebruikt kan worden. Het is hierbij belangrijk dat een goede mix gevonden wordt van vruchtdragende bomen waar mogelijk en gewenst en soorten sierfruit op locaties waar dit niet gewenst of mogelijk is.

De structuur strekt zich dan verder uit richting de recreatieve zone waar deze overgaat in een mix van fruitbomen en klimaatbomen. Onder klimaatbomen worden bomen verstaand die beter bestand zijn tegen grote wisselingen in klimaat (droogte naar nat, kou naar warmte) en die een bijdrage leveren aan biodiversiteit, natuurinclusiviteit en leefklimaat.

Voorbeelden van klimaatbomen zijn: Meidoorn, Els, Berk, Eik, Haagbeuk en Beuk.

De beplanting weergegeven op deze pagina’s is een suggestie en nog geen definitieve keuze. De definitieve keuze wordt gemaakt wanneer het inrichtingsplan wordt opgesteld. Daarbij is het belangrijk dat de juiste boom bij de juiste plaats gekozen wordt en dat ook aandacht wordt besteed aan de benodigde ondergrondse groeiruimte.

afbeelding binnen de regeling

Mogelijkheden appelsoorten (sier- en fruitdragend)

afbeelding binnen de regeling

Mogelijkheden pruimensoorten (sier- en fruitdragend)

afbeelding binnen de regeling

Mogelijkheden perensoorten (sier- en fruitdragend)

afbeelding binnen de regeling

Mogelijkheden kersensoorten (sier- en fruitdragend)

afbeelding binnen de regeling

Mogelijkheden klimaatbomen

Groenstructuur

Wadi

De wadi’s in Plakse Weide zijn niet alleen in gebruik voor het vasthouden en vertraagd infiltreren van water. De wadi’s vervullen ook een functie als speelelement (wanneer droogstaand) en kunnen ook een bijdrage leveren aan de biodiversiteit binnen Plakse Weide.

In de basis zal de inrichting van de openbare ruimte van Plakse Weide bestaan uit een bloemrijk grasmengsel. Op plekken waar hier aanleiding voor is, wordt dit uitgebreid met inrichting met vaste planten of natuurlijke kruiden- en grassen.

De beplanting weergegeven op deze pagina is een suggestie en nog geen definitieve keuze. De definitieve keuze wordt gemaakt wanneer het inrichtingsplan wordt opgesteld.

afbeelding binnen de regeling

Streefbeeld voor de wadi’s in Plakse Weide met bloemrijk grasmengsel en mogelijke verbijzondering in de vorm van vaste planten

afbeelding binnen de regeling

Mogelijkheden kruiden en grassen in de wadi’s in Plakse Weide

Bijlage E Beeldkwaliteitplan De Ploen-Noord, Duiven

afbeelding binnen de regeling

Inleiding

Voorliggend beeldkwaliteitplan Ploen Noord hoort bij het stedenbouwkundig plan Ploen Noord dat in oktober 2023 bestuurlijk is vastgesteld. Zowel het stedenbouwkundig plan als beeldkwaliteitplan zijn in opdracht van Van Wanrooij opgesteld door SVP in samenwerking met Adviesbureau Haver Droeze. De gemeente Duiven is gedurende dit proces intensief betrokken geweest.

In dit beeldkwaliteitplan is de identiteit van de buurt verder uitgewerkt en in woord en beeld toegelicht. Vervolgens is per deelgebied de beoogde beeldkwaliteit voor de woningen beschreven en vertaald in specifieke toetsingscriteria. Dit beeldkwaliteitplan dient enerzijds als inspiratie voor de architecten die de woningen gaan ontwerpen. En vormt anderzijds het toetsingskader voor de Commissie Ruimtelijke Kwaliteit (CRK) bij de beoordeling van de bouwplannen voor de aanvraag omgevingsvergunning in het kader van de Omgevingswet.

Leeswijzer

In dit beeldkwaliteitplan wordt eerst een korte samenvatting gegeven van het stedenbouwkundig plan (nb voor een meer uitgebreide toelichting is het document Stedenbouwkundig plan Ploen Noord opgesteld). Hierna wordt de inspiratie voor de beeldkwaliteit vanuit de gehouden enquete onder omwonenden én de historische, ruimtelijke context van de locatie beschreven. Vervolgens is de beeldkwaliteit vanuit deze inspiratie voor de woningbouw binnen de drie verschillende deelgebieden beschreven. En deze beeldkwaliteit is tot slot vertaald naar toetsingscriteria voor verschillende schaalniveaus van het bouwplan. In het beeldkwaliteitplan zijn verschillende referentiebeelden opgenomen ter inspiratie bij verschillende thema’s. Bij deze beelden is altijd aangegeven voor welk onderwerp of thema het beeld is bedoeld.

Afwijkingsbevoegdheid

In dit beeldkwaliteitplan zijn richtlijnen voor de beeldkwaliteit van de bebouwing en inrichting van de openbare ruimte gegeven. Het kan voorkomen dat er een ontwerp voor de bebouwing wordt ingediend dat niet aan de in dit beeldkwaliteitplan genoemde criteria voldoet maar wel van een positief advies kan worden voorzien. In dat geval bestaat de mogelijkheid gemotiveerd van de richtlijnen uit dit beeldkwaliteitplan af te wijken. Reden kan zijn dat een ontwerp anders is maar toch passend binnen de beoogde beeldtaal. Verder zijn de in dit beeldkwaliteitplan aangegeven referentiebeelden bedoeld om de ambitie weer te geven en dienen ze als inspiratie voor de architecten die de bebouwing gaan ontwerpen.

Stedenbouwkundig plan

Ligging locatie

De locatie Ploen Noord ligt binnen de Westsingel aan de noordzijde van Duiven. De locatie sluit aan op De Ploen, een recent ontwikkelde woonwijk gekenmerkt door compacte woonterpen in een groen landschap.

Langs de zuidrand grenst de locatie aan de Hogeweg en aan een perceel dat is gesitueerd aan de Hogeweg. De Hogeweg kenmerkt zich door een landelijk, groen karakter met grotere kavels met grenzend aan de locatie een stevige houtwal en een sloot.

Aan de zuidwestzijde is een woonwagenkamp met vier wagens gesitueerd en een weitje waar paarden op staan.

Aan de noord en oostzijde grenst de locatie aan het open agrarisch gebied van de rivierkomvlakte. Met in de bocht van de Westsingel een bosperceel.

afbeelding binnen de regeling

ligging locatie Ploen Noord tussen Westsingel, wijk De Ploen, perceel Hogeweg en agrarisch buitengebied

Ruimtelijke en historische context

Omgeving locatie

De locatie voor Ploen Noord ligt deels op het rivierduin en deels in de overgangszone naar de polder. Duiven is ontstaan op dit hoger gelegen rivierduin, ook wel donk genoemd, ter plaatse van de huidige Hogeweg en de Ploenstraat.

De Hogeweg vormde over de uitloper van deze donk, een verbinding met de meer westelijk gelegen Eng, momenteel gesitueerd ten westen van de Westsingel.

Nabij de Ploenstraat liggen nog de restanten van de Havezate/ voormalig kasteel Huis Magerhorst en het versterkte huis De Ploen. De Hogeweg is nog steeds een smal landelijk pad waar verschillende (agrarische) erven aan zijn gesitueerd. De erven kenmerken zich door een combinatie van gebouwen zoals boerderij/ woonhuis, schuren en stallen. Ten oosten van de locatie is de Hogeweg momenteel niet openbaar toegankelijk,

In de overgangszone tussen rivierduin en rivierkomvlakte is het patroon van percelen anders en kleinschaliger dan in de rivierkomvlakte zelf. Ook vormt het in hoogte de overgang van hoog naar laag.

Deze historische en landschappelijke kenmerken zijn in het stedenbouwkundig plan ingezet om verschillende deelgebieden te definiëren en de nieuwe wijk te laten aansluiten bij de historische context.

afbeelding binnen de regeling

landschappelijke zonering locatie Ploen Noord en omgeving

Stedenbouwkundig plan

Op basis van de analyse van de plek, de historie, de landschappelijke context, het programma en de gemeentelijke uitgansgpunten is een stedenbouwkundig plan opgesteld. De verschillen in landschappelijke identiteit (rivierduin, overgangszone en het bosperceel langs de Westsingel) vormen de basis voor de hoofdopzet van het plan. Een opzet met een drietal deelgebieden; Het Bos, Het Erf en Het Veld. De drie deelgebieden zijn als heldere bebouwingsclusters op een groen tapijt gesitueerd dat een sterke verbinding legt met het groen rond de terpen van De Ploen. Ook in Ploen Noord vormt het wonen aan het groen een belangrijke woonkwaliteit.

De wijk wordt voor de auto aangesloten op de Westsingel. Binnen de wijk ligt een lusvormige structuur rond Het Veld waar vandaan alle deelgebieden bereikbaar zijn. Het parkeren van de auto vindt deels langs de straat maar met name op gebundelde parkeerterreinen plaats. Voor langzaam verkeer komt er een directe verbinding met De Ploen en vervolgens naar de Rijksweg en verder. Bij de aansluiting op de West-singel komt een mogelijkheid de weg lopend en fietsend over te steken.

afbeelding binnen de regeling

drie deelgebieden gebaseerd op landschappelijke zonering Ploen Noord

afbeelding binnen de regeling

autostructuur

afbeelding binnen de regeling

langzaam verkeerstructuur

afbeelding binnen de regeling

groen- en waterstructuur

afbeelding binnen de regeling

afbeelding binnen de regeling

Beeldkwaliteitplan

BeeldkwaliteitplanPloen Noord

Samen wonen op de Donk zoals het begin van Duiven in de middeleeuwen is ontstaan, vormt de inspiratie voor Ploen Noord. De oorspronkelijke bebouwing bestond onder andere uit Havezaten, woonsteden en hoven die als sterk herkenbare clusters in het landschap lagen. De relatie met landschap, natuur en groen was sterk. Enerzijds als iets waartegen je je moest beschermen en anderzijds als iets waar je profijt van had in de vorm van voedsel en bescherming.

Inspiratie Magerhorst

In Ploen Noord liggen de drie deelgebieden, elk met een sterke eigen identiteit, in het groene landschap. Het groen biedt de bewoners een prettige omgeving waarin wordt gespeeld en bewogen en waarin ontmoeting plaats vindt. Daarnaast biedt het groen bescherming door de schaduw van bomen en voldoende ruimte om water te bergen wanneer er veel regen valt.

Voor de woningen is een stoer maar ook vriendelijk landelijk karakter, zoals bij Havezate Magerhorst herkenbaar is, het uitgangspunt. Lichte baksteen in aardse tinten als basis, gecombineerd met donkere (houten) vlakken in de gevel en op het dak. Per deelgebied zorgt een eigen kleurenpalet voor een duidelijke samenhang. Bijzondere toevoegingen zoals een gedraaide nok, dakopbouw, erker of luifel zorgen binnen elk deelgebied voor een vriendelijk gevarieerd beeld.

De relatie met het landschap en het groen komt ook tot uitdrukking in de overgang van de woning naar het openbaar gebied. Dit kan een groene overgang zijn in de vorm van een haag maar op sommige plekken is dit een pergola of veranda waardoor deze zone ook een gebruiksfunctie krijgt.

Participatie omwonenden

Op 26 oktober 2023 is een inloopavond geweest in het kader van het bestemmingsplan voor Ploen Noord. Tijdens deze avond en de weken erna konden omwonenden en geïnteresseerden middels een enquete aangeven welke beelden hen per deelgebied het meest aanspraken. Deze beelden zijn hiernaast weergegeven. Voor de verschillende deelgebieden zijn deze beelden, samen met de elementen vanuit havezate Magerhorst, meegenomen als inspiratie.

afbeelding binnen de regeling

beelden Havezate Magerhorst en huidige boerderij De Ploen in Duiven

afbeelding binnen de regeling

beeld appartementen deelgebied Het Bos

afbeelding binnen de regeling

beeld woningen deelgebied Het Veld

afbeelding binnen de regeling

beeld openbare ruimte Ploen Noord

afbeelding binnen de regeling

beeld woningen deelgebied Het Erf

afbeelding binnen de regeling

beeld woningen deelgebied Het Bos

afbeelding binnen de regeling

beeld openbare ruimte Ploen Noord

afbeelding binnen de regeling

beeld openbare ruimte Ploen Noord

afbeelding binnen de regeling

beeld woningen deelgebied Het Erf

meest gekozen beelden per deelgebied in enquete uitgezet in het najaar van 2023 onder omwonenden en geïnteresseerden

Deelgebieden Ploen Noord

Binnen Ploen Noord onderscheiden we een drietal deelgebieden met elk een eigen sfeer en identiteit. De deelgebieden liggen in een groen lanschap. We onderscheiden Het Bos bij de auto entree vanaf de Westsingel, Het Veld in de overgangszone tussen rivierduin en rivierkomvlakte en Het Erf als onderdeel van de landelijke Hogewegzone op de rivierdonk. Hiernaast wordt de identiteit van de drie deelgebieden kort toegelicht. In de volgende paragraven wordt per deelgebied de beoogde beeldkwaliteit beschreven.

afbeelding binnen de regeling

Het Bos

In het bos woon je ‘buiten’ en staan de openbare ruimte en de bebouwing in contact met de natuur. De bebouwing staat rond een open plek en tussen de bomen. De kleuren zijn licht en de materialen van de bebouwing dragen bij aan een luchtig beeld.

afbeelding binnen de regeling

Het Veld

In het veld woon je samen en staan de woningen én de bewoners met hun voeten in het gras. De kleuren zijn aards en de relatie van de woning met het openbaar gebied is belangrijk.

afbeelding binnen de regeling

Het Erf

In het erf is het landelijk wonen in de cultuurhistorische Hogewegzone met een moderne luxe. Een losse setting van verschillende bouwvolumes past binnen deze sfeer.

afbeelding binnen de regeling

Ruimtelijke eenheden – bouwkorrels

Binnen de drie deelgebieden hebben de woningen en de bouwvolumes waarin ze zijn opgenomen een verschillende mate van samenhang. We noemen dit ruimtelijke eenheden en spreken daarbij ook wel van een grote of kleine korrel binnen het plan. We maken binnen Ploen Noord onderscheid in drie verschillende korrels;

  • S (individuele woning)

  • M (bouwvolume)

  • L (bouwblok).

In Het Bos hebben de korrels de maat van het bouwvolume. Elk van de drie bouwvolumes wordt als één-heid ontworpen waarbij de individuele woning niet specifiek afleesbaar is binnen dit bouwvolume.

In Het Veld vormen juist de bouwblokken de korrel waarbij de drie blokken met rijwoningen een sterke relatie aangaan in het ruimtelijk beeld. Het bouwblok en de individuele woningen zijn ondergeschikt binnen dit bouwblok.

Op Het Erf komen twee verschillende maten korrels voor. Voor de special De Schuur geldt, net als in Het Bos, dat het bouwvolume de korrel is. En op Het Erf wordt de korrel bepaald door de individuele woning. Elke woning heeft een individuele uitstraling maar samen vormen ze wel een samenhangend beeld binnen Het Erf.

afbeelding binnen de regeling

Erfscheidingen

In het plan speelt de relatie tussen de woning en de openbare groene ruimte een belangrijke rol. Voor het wonen aan het groen is de ruimte tussen de gevel en het openbaar gebied de plek waar de verbinding plaatsvindt. Voor een deel van de woningen wordt deze ruimte ingevuld met een veranda en/ of pergola zodat het een verlenging is van het wonen, een beschutte plek waar je buiten kunt zitten en er contact is met de buren en voorbijgangers.

Voor de woningen waar de directe relatie tussen wonen en groen minder sterk is, wordt een groene erf-scheiding geplaatst die de grens van de tuin definieert. In Het Erf wordt op de plek waar de zij- of achtertuin grenst aan het openbaar gebied een hoge haag (circa 1,8 meter hoog) geplaatst. Ter plaatse van de plan-grens wordt dit gecombineerd met een hoog hekwerk. En bij de woningen in Het Veld vormt een gemetselde, hoge muur in dezelfde steen als de woning, gecombineerd met groen, de erfgrens op de plek waar de zij- of achtertuin grenst aan het openbaar gebied.

Op de plek waar Het Erf grenst aan het particulier perceel aan de Hogeweg wordt een hoge haag gecombineert met een hoog hekwerk. Aan de achterzijde van de levensloopbestendige woningen van Het Veld wordt een hoog hekwerk met hedera geplaats op de overgang naar het buitengebied.

afbeelding binnen de regeling

Bouwhoogtes

Binnen Ploen Noord worden verschillende bouwvolumes toegepast. Bij de entree van de wijk staat een appartementengebouw dat met een bouwhoogte van vijf bouwlagen een accent vormt bij de auto toegang. Naast dit accent en in de groenzone naar De Ploen staat een aantal bouwvolumes met rug aan rugwoningen die uit één bouwlaag met een hoge kap bestaan. Ditzelfde geldt voor de levensloopbestendige woningen aan de rand van Het Veld. Het Veld bestaat verder grotendeels uit rijwoningen met een bouwhoogte van twee bouwlagen met een kap. En tot slot geldt dit ook voor de woningen in Het Erf waarbij de kap- en/ of vorm op de derde bouwlaag varieert voor een meer divers beeld.

afbeelding binnen de regeling

Kaprichtingen

afbeelding binnen de regeling

Ruimtelijke accenten

Appartementengebouw bij entree wijk

Bij de entree van de wijk is het appartementengebouw een herkenbaar element. Het gebouw heeft een open en vriendelijke uitstraling en heet de bewoners en bezoekers welkom. Het gebouw is hoger dan de omringende bebouwing.

Schuur in het groen

De schuur staat als alzijdig gebouw in de groene Hogewegzone. En is daarbij een duidelijk herkenningspunt in de verbinding tussen De Ploen en Ploen Noord. Het gebouw heeft binnen de wijk een eigen identiteit door een specifiek matariaal- en kleurgebruik.

Hoekwoning als accent

Op verschillende hoeken van deelgebied Het Veld krijgen de woningen een verbijzondering. Deze duidt het belang van zowel de voor- als de zijgevel van de woning. Dit kan door een overhoeks raam, het toepassen van een ander gevelmateriaal of een verbijzondering in het metselwerk worden uitgevoerd.

Woning aan fietsroute vanuit De Ploen

De woning op de hoek van Het Erf vormt aan de fietsroute een subtiele verbijzondering. Het kan daarbij gezien worden als het hoofdhuis van Het Erf. Wat tot uiting kan komen door de bouwhoogte, een bijzonder volume of het toepassen van een afwijkend materiaal.

afbeelding binnen de regeling

afbeelding binnen de regeling

1. appartementgebouw als accent

afbeelding binnen de regeling

2. schuur als bijzonder gebouw in het groen

afbeelding binnen de regeling

3. hoekwoning, accent in materiaal

afbeelding binnen de regeling

4. woning in erf accentueerd door vorm en kleur

Materialisatie, textuur en kleur

Aardse, overwegend lichte tinten baksteen vormen de basis voor de bebouwing in Ploen Noord. Gecombineerd met een zwart dak van donkere, vlakke, keramische (of kwalitatief vergelijkbare betonnen) pannen, aansluitend op De Ploen en zodat zonnepanelen op een eenvoudige manier kunnen worden opgenomen in de architectuur.

In de gevels ontstaat een spel van verschillende texturen metselwerk gecombineerd met een aanvullend materiaal met houtlook. De kozijnen, ramen en deuren worden uitgevoerd in een donkere tint, passend bij de overige materialen.

afbeelding binnen de regeling

Samenhang binnen de verschillende deelgebieden maar ook binnen Ploen Noord is het uitgangspunt. Het is daarom belangrijk een samenhangend palet van materialen en kleuren te kiezen die in verschillende samenstellingen in de hele wijk worden toegepast.

afbeelding binnen de regeling

afbeelding binnen de regeling

Materialisatie en sfeer openbare ruimte

De inrichting van de openbare ruimte sluit aan bij het groene karakter van de buurt. De hoeveelheid verharding wordt geminimaliseerd ten gunste van groen en de verharding die wordt aangelegd bestaat zoveel mogelijk uit waterdoorlatende bestrating. Een deel van de waterberging zal in het openbaar groen plaatsvinden om piekbuien op te vangen. Hiertoe worden op verschillende plekken laagtes in het maaiveld aangebracht die gecombineerd kunnen worden met spelaanleidingen en een variatie aan beplanting.

Ook in de openbare ruimte zal in elke deelgebied een gebiedseigen sfeer worden gemaakt. Dit kan in de vorm van bestrating/ materialisatie, door keuzes in beplanting en bomen en/ of door elementen in het openbaar gebied. In het inrichtingsplan wordt dit in samenhang met het stedenbouwkundig plan en het bouwplanontwerp verder uitgewerkt.

afbeelding binnen de regeling

straatstenen en grasparkeren

afbeelding binnen de regeling

bestrating stoepen

afbeelding binnen de regeling

materialisatie wandelpaden door groen

afbeelding binnen de regeling

parkeerplaatsen in een waterpasserende steen

afbeelding binnen de regeling

bestrating rijbanen

afbeelding binnen de regeling

spelen’ in de buurt

afbeelding binnen de regeling

waterberging com bineren met spelaanleidingen

afbeelding binnen de regeling

spelen voor de deur

afbeelding binnen de regeling

bomen langs de straat

afbeelding binnen de regeling

natuurlijk spelen met water

afbeelding binnen de regeling

natuurlijk spelen in het bos

afbeelding binnen de regeling

natuurlijk spelen met water

Beeldkwaliteit Het Bos

Sfeer en identiteit Het Bos

In Het Bos woon je met de natuur en samen met je buren aan een gemeenschappelijke groene plek. Hier hebben de gebouwen een sterke relatie met het omliggende groen in de vorm van bosaanplant in de vorm van verschillende boomsoorten en heestergroepen. Naast bomen en beplanting bieden ook de gebouwen met begroeide gevels, nestkasten en verblijfplekken ruimte voor flora en fauna. Ze zijn natuurinclusief.

De gevels waar klimplanten tegenaan groeien, de grote balkons met ruimte voor groen aan de gevels en de ruime veranda’s en pergola’s bieden ruimte waar mensen tijd buiten kunnen doorbrengen. Het collectieve hof zorgt voor ruimte voor ontmoeting en een gemeenschapsgevoel.

De gebouwen vormen een ensemble in Het Bos waarbij ze met behoud van samenhang verschillen in uitwerking en kleur. De gebouwen zijn alzijdig en bieden ruimte voor natuur. De architectuur is modern met een strakke, verfijnde detaillering. Hierbij gaan de gebouwen een relatie met de bomen, het bos en het groene hof aan.

afbeelding binnen de regeling

afbeelding binnen de regeling

afbeelding binnen de regeling

Toetsingscriteria Het Bos

Bouwvolume

  • Heldere alzijdige bouwvolumes waarbij de gevels bijdragen aan een zachte overgang tussen wonen en natuur. (1)

  • Volumes laagbouw: één bouwlaag met een kap en refereren aan schuurachtige volumes. Hierbij zijn de buitenruimten geïntegreerd onderdeel van het hoofdvolume. (3)

  • Eventuele eenduidige dakkapellen worden als losse elementen toegevoegd aan het hoofdvolume, zonder het schuurkarakter aan te tasten.

  • Bij de laagbouw worden de bergingen geclusterd in een los bouwvolume dat in beeld aansluit bij de woningbouw. Bij de appartementen worden de bergingen inpandig ingepast.

  • Het appartementengebouw vormt een accent bij de entree en uitgang van de wijk, zowel in hoogte als uitstraling. Het gebouw heeft een eigen identiteit maar maakt deel uit van het ensemble in het bos.

  • Het appartementengebouw bestaat uit vier bouwlagen met een verbijzonderde vijfde laag. (2) Deze verbijzondering draagt bij aan meer lucht, bijvoorbeeld door terugliggende gevel(delen), een kap, buitenruimten die binnen het gevelvlak liggen of het toepassen van een afwijkend materiaal.

Gevelindeling

  • Losse en speelse gevelindeling passend bij de natuurlijke omgeving.

  • De drie volumes zijn alzijdig ontworpen met voldoende gevelopeningen in alle gevels.

  • De koppen van de laagbouw krijgen een open uitstraling waarbij de schaal past bij het kleinschalige karakter.

  • De plaatsing van balkons aan het appartementengebouw draagt bij aan het losse, speelse beeld en volgt geen vast ritme. (2)

  • Variatie in type gevelopeningen en een slimme positionering draagt bij de appartementen bij aan het losse, speelse gevelbeeld.

  • Klimplanten in de volle grond die via staaldraden langs de gevel groeien dragen bij aan de zachte overgang tussen wonen en natuur.

  • Nestkasten en andere natuurinclusieve maatregelen worden in het gevelontwerp meegenomen.

afbeelding binnen de regeling

losse, speelse gevelindeling appartementen

afbeelding binnen de regeling

wonen aan een gemeenschappelijk groen hof

afbeelding binnen de regeling

(1) gevel draagt met beplanting, pergola en uitvoering en positionering balkons bij aan zachte overgang tussen wonen en natuur

afbeelding binnen de regeling

(2) verbijzondering vijfde bouwlaag en losse, speelse gevelindeling

afbeelding binnen de regeling

(3) veranda of pergola is mee ontworpen met het hoofdvolume en vormt de overgang privé – openbaar

afbeelding binnen de regeling

bouwvolume rug aan rug woningen met losse dakkapellen

Kleur en materialisatie

  • Aardse tinten baksteen als basismateriaal waarbij er kleurverschillen tussen de drie gebouwen mo-en zijn.

  • Met een andere kleur baksteen of materiaal wordt de samenhang tussen de drie gebouwen gelegd.

  • De kozijnen, ramen en deuren worden uitgevoerd in een donkere tint.

  • De kappen bij de laagbouw worden uitgevoerd in een donkere, vlakke, keramische pan of een kwalitatief gelijkwaaardige betonnen dakpan.

  • De eventuele vijfde laag van het appartementengebouw draagt door een afwijkende kleur- en of materiaalkeus bij aan een beeld met meer lucht.

  • De bergingen van de laagbouw worden uitgevoerd in een bij de woningen passend materiaal.

  • Veranda’s/ pergola’s worden in hout, staal of een ander bij het ontwerp passend materiaal uitgevoerd.

  • Eventuele onderdelen voor technische installaties worden uit het zicht en in een kleur passend bij het ontwerp uitgevoerd.

  • De plaatsing van zonnepanelen is onderdeel van het ontwerp waarbij een rechthoekig vlak uitgangspunt is.

Overgang met openbare ruimte

  • De overgang van de woning naar de omgeving heeft een groen en natuurlijk karakter.

  • Bij de laagbouw is een veranda of pergola onderdeel van het hoofdvolume. Deze elementen worden tevens ingezet voor de overgang van privé naar openbaar. Beplanting in de volle grond wordt meegenomen voor een groene overgang.

  • Het appartementengebouw ligt met de begane grond circa 50 cm boven het omliggend maaiveld om de privacy van de woningen te vergroten.

  • De terrassen van de begane grond appartementen liggen in de gemeenschappelijke, groen ingerichte tuin rond het gebouw en worden passend bij het gebouw uitgevoerd.

  • Rond de gemeenschappelijke tuin bij de appartementen komt een groene lage haag op de overgang tussen privé en openbaar gebied.

  • De balkons van de appartementen dragen bij aan een zachte overgang tussen wonen en natuur. (4).

afbeelding binnen de regeling

suggestie voor kleurenpalet en materialen

afbeelding binnen de regeling

pergola en/ of veranda onderdeel van hoofdvolume

afbeelding binnen de regeling

dakkapel als losse elementen toegevoegd

afbeelding binnen de regeling

(5) beplanting op de gevel

afbeelding binnen de regeling

(5) beplanting op overgang tussen buitenruimte en pad

afbeelding binnen de regeling

(6) suggestie voor kleurgebruik drie bouwvolumes

afbeelding binnen de regeling

(7) kleurgebruik laagbouw

afbeelding binnen de regeling

(7) kleur- en materiaalgebruik laagbouw

Beeldkwaliteit Het Veld

Sfeer en identiteit Het Veld

In Het Veld woon je aan het groen. Het versterken van de directe relatie tussen het wonen en het groen is een belangrijk uitgangspunt. De veranda’s en pergola’s op de overgang van de woning naar het groen spelen hierbij een belangrijke rol in. Ze zijn onderdeel van de architectuur en samen met de andere erfscheidingen geven ze dit deelgebied een sterke identiteit als samenhangend cluster in het groen.

De bebouwing is stoer en rustig met elegante en moderne details. De woningen zijn eigentijds en met eenvoudige horizontale lijnen vormgegeven. Samenhang in beeld draagt bij aan zowel de rust als de identiteit van het wonen in Het Veld.

In het groen voor de deur wordt veilig gespeeld want het is er autovrij. Bewoners zitten op de veranda, zien elkaar, kletsen, lezen en genieten. In de natuurlijk ingerichte zones worden lagere plekken gemaakt waar water kan worden geborgen bij hevige regenval.

afbeelding binnen de regeling

afbeelding binnen de regeling

Het regenwater van de woning wordt hier op een zichtbare manier naartoe geleid. Bomen zorgen voor schaduw maar zijn ook fijne plekken voor vogels en insecten. Een heerlijke woonplek met de natuur voor de deur. De blokken in het veld hebben een duidelijke samenhang in architectuur.

afbeelding binnen de regeling

Toetsingscriteria Het Veld

Bouwvolume

  • De bouwvolumes in Het Veld worden in samenhang ontworpen en stralen een sterke identiteit en een rustig beeld uit. (1)

  • De drie bouwblokken met rijwoningen vormen samen een sterk ensemble waaraan de rooilijn, de volumes, kaprichting en erfscheidingen bijdragen. (2)

  • De tweekappers krijgen een eigen uitwerking maar zijn in architectuur duidelijk onderdeel van het deelgebied.

  • Elke bouwblok is ontworpen als een eenheid (1)

  • De bebouwing is één of twee lagen met een langskap evenwijdig aan de aangrenzende openbare ruimte.

  • Aan de noordzijde zorgen subtiele sprongen in de rooilijn, goothoogte of daklijn voor een speels beeld.

Gevelindeling

  • Horizontaliteit vormt de basis voor het gevelontwerp.

  • De veranda’s/ pergola’s dragen bij aan de horizontaliteit.

  • In het gevelbeeld is de individuele woning ondergeschikt aan het totale bouwvolume.

  • De accentwoningen op de hoeken vormen in bouwhoogte, gevelontwerp, positie van de entree of een toevoeging in de vorm van een dakopbouw een bijzondere beëindiging van de rij.

  • Bij alle hoekwoningen is het overhoeks ontwerpen van de gevels het uitgangspunt. Dit kan bijvoorbeeld door een overhoeks raam of een vlak met bijzonder metselwerk of een ander materiaal de hoek om te zetten. (3)

  • Alle zijgevels van de woningen worden mee ontworpen en hebben een open en bij de woning passende uitstraling.

  • Nestkasten en andere natuurinclusieve maatregelen worden in het gevelontwerp meegenomen.

Kleur en materialisatie

  • Baksteen is het basismateriaal.

  • Aardse tinten van licht tot donkerbruin.

  • Andere materialen of vlakken met bijzonder metselwerk dragen bij aan de samenhang en de horizontaliteit in het ontwerp.

  • Veranda’s/ pergola’s worden in hout, staal of een ander bij het ontwerp passend materiaal uitgevoerd.

  • Zwarte, vlakke, keramische (of kwalitatief vergleijkbare betonnen) pannen voor het dakvlak.

  • Tuinmuren worden uitgevoerd in dezelfde baksteen als de bijhorende woning.

  • Eventuele onderdelen voor technische installaties worden uit het zicht en in een kleur passend bij het ontwerp uitgevoerd.

  • De plaatsing van zonnepanelen is onderdeel van het ontwerp waarbij een rechthoekig vlak uitgangspunt is.

afbeelding binnen de regeling

sterke relatie tussen wonen en openbaar gebied door veranda’s/ pergola’s

afbeelding binnen de regeling

(1) eenheid

afbeelding binnen de regeling

(3) voorbeeld accent hoekwoning, de hoek om ontwerpen

afbeelding binnen de regeling

sterke relatie tussen wonen en openbaar gebied door veranda’s/ pergola’s

afbeelding binnen de regeling

suggestie voor kleurenpalet en materialen

Overgang met openbare ruimte

  • De woningen aan de twee centrale groene zones worden uitgevoerd met een veranda/ pergola aan de voorzijde. (3)

  • De overige woningen krijgen een lage groene haag als erfscheiding aan de voorzijde en een deel van de zijtuin.

  • Daar waar de achtertuin grenst aan het openbaar gebied en aan de parkeerkoffers wordt een gemetselde muur, in dezelfde steen als de woningen, gecombineerd met groen.

  • Aan de achterzijde van de levensloopbestendige woningen, op de grens van het plangebied, wordt een met groen begroeid hoog hekwerk geplaatst waarbij het hekwerk voor de eventuele bergingen langs gaat.

  • De hoge erfscheidingen aan de zijkant van de rijwoningen staan niet voorbij de voorgevellijn van de achterliggende rijwoningen.

afbeelding binnen de regeling

combinaties van metselwerk met vlakken bijzonder metselwerk en ander materiaal

afbeelding binnen de regeling

(4) suggesties voor hoekaccenten

afbeelding binnen de regeling

samenhang in beeld door eenduidige architectuur, materiaalgebruik en inzetten van verbijzonderingen

Beeldkwaliteit Het Erf

Sfeer en identiteit Het Erf

Op Het Erf woon je samen rond een collectieve ruimte met de luxe van een ruime eigen tuin. Het is een bijzonder buurtje waar de woningen verschillend zijn maar er toch samenhang is in de totale uitstraling. Ook de positionering, de verschillende kaprichtingen en de materialisatie draagt hieraan bij. Een landelijke uitstraling met moderne luxe.

De gebouwen vormen een ensemble waarbij ze met behoud van samenhang verschillen in uitwerking en kleur. De gebouwen zijn alzijdig en bieden ruimte voor natuur. De architectuur is modern met een strakke, verfijnde detaillering. Hierbij gaan de gebouwen een relatie met het groen en de centrale erfruimte aan.

afbeelding binnen de regeling

afbeelding binnen de regeling

Op de hoek van de centrale groene zone naar De Ploen staat een woning die als bijzonder volume een accent functie heeft. Dit kan bijvoorbeeld in kapvorm, oriëntatie of kleurgebruik.

afbeelding binnen de regeling

Toetsingscriteria Het Erf

Bouwvolume

  • De bebouwing is maximaal 2 bouwlagen + kap.

  • De volumes zijn helder en de nokrichting varieert. (1)

  • Aan alle zijden van de volumes wordt een overstek toegepast.

  • De accentwoning mag in bouwvolume afwijken.

  • De garages en andere aangebouwde delen worden mee ontworpen met de woning.

Gevelindeling

  • Variatie in de gevelindeling door toepassen verschillende kozijnmaten

  • Verbijzonderingen als erker, frans balkon, dakkapel, luifel toepassen (2)

  • Accenten aanbrengen in de gevel door vlakken met verschillende metselverband of ander materiaal.

  • Bij alle hoekwoningen is het overhoeks ontwerpen van de gevels het uitgangspunt. Dit kan bijvoorbeeld door een overhoeks raam of een vlak met bijzonder metselwerk of een ander materiaal de hoek om te zetten.

  • Alle zijgevels van de woningen worden mee ontworpen en hebben een open en bij de woning passende uitstraling.

  • De accentwoning wijkt in gevelindeling af.

Kleur en materialisatie

  • Baksteen is het basismateriaal.

  • Aardse tinten van licht tot donkerbruin met de mogelijkheid voor één hele lichte en één hele donkere woning bij voorkeur voor de accentwoning.

  • Andere materialen of vlakken met bijzonder metselwerk dragen bij aan de samenhang in het ontwerp.

  • De combinaties van materialen en kleuren is per woning anders maar wel binnen een vast palet van kleuren en materialen. Hierdoor is er verschil maar ook samenhang.

  • Een bouwvolume mag niet dezelfde kleur hebben als het bouwvolume ernaast (3)

  • De garages worden in hetzelfde materiaal uitgevoerd als het hoofdvolume.

  • De accentwoning mag in kleur en materiaal afwijken.

  • Eventuele onderdelen voor technische installaties worden uit het zicht en in een kleur passend bij het ontwerp uitgevoerd.

  • De plaatsing van zonnepanelen is onderdeel van het ontwerp waarbij een rechthoekig vlak uitgangspunt is.

afbeelding binnen de regeling

(1) variatie in kaprichtingen

afbeelding binnen de regeling

(2) accentwoning op hoek groenzone vanuit De Ploen

afbeelding binnen de regeling

gedraaide nok

afbeelding binnen de regeling

dakkapel

afbeelding binnen de regeling

overgang de hoek om – dakopbouw

afbeelding binnen de regeling

overgang openbaar – privé

afbeelding binnen de regeling

spelen met verschillende materiaal vlakken

afbeelding binnen de regeling

schoorsteen als accent

afbeelding binnen de regeling

overgang de hoek om - raam en vlak materiaal

afbeelding binnen de regeling

overgang openbaar - privé

Overgang met openbare ruimte

  • Groene overgang tussen voortuin een gemeenschappelijk erf.

  • Daar waar de zij- of achtertuin grenst aan het openbaar gebied een hoge groene erfscheiding toepassen.

afbeelding binnen de regeling

(1) kleur gebruik gevarieerd

afbeelding binnen de regeling

suggestie voor kleurenpalet en materialen

afbeelding binnen de regeling

suggesties voor combinaties van kleuren en materialen

afbeelding binnen de regeling

afbeelding binnen de regeling

suggesties voor combinaties van kleuren en materialen

Beeldkwaliteit De Schuur (special Het Erf)

De schuur

‘De schuur’ staat als bijzonder en uniek volume in de Hogewegzone. Het is een echte eyecatcher. Een solitair gebouw met schuurwoningen aan de groene verbinding met De Ploen. Met een landelijk sfeer die past bij de positie tussen de historische boerenerven en agrarische veldjes.

De schuurwoningen stralen landelijkheid uit. Dit komt enerzijds tot uitdrukking in een bouwvolume met een lage goot en een prominente kap. En anderzijds in de materialisatie die refereert aan de schuur met houten geveldelen, grote openingen, staldeuren, etc. Dit kan hout/ houtlook zijn in een donkere kleur of vergrijsd. Gecombineerd met een zelfde tint kozijnen, deuren en ramen of juist een sterk contrasterende kleur.

afbeelding binnen de regeling

afbeelding binnen de regeling

afbeelding binnen de regeling

Toetsingscriteria De Schuur (special Het Erf)

Bouwvolume

  • Een schuurvolume van één bouwlaag met een zadeldak vergelijkbaar met volumes Het Bos.

  • Helder, eenvoudig vormgegeven volume.

  • Eventuele eenduidige dakkapellen worden als losse elementen toegevoegd aan het hoofdvolume, zonder het schuurkarakter aan te tasten.

  • Dakoverstek mogelijk.

  • De bergingen zijn opgenomen in een apart volume met dezelfde uitstraling als het hoofdvolume.

Gevelindeling

  • Sterke ritmiek herkenbaar in het gevelontwerp.

  • Verticaliteit in de langsgevels toepassen.

  • Alle kopgevels worden mee ontworpen en hebben een bij een schuur passende uitstraling.

Kleur en materialisatie

  • De schuur is uitgevoerd in donker of vergrijsd hout met een donker vlak dak.

  • De kozijnen, ramen en deuren worden uitgevoerd in een donkere tint.

  • De bergingen van de laagbouw worden uitgevoerd in zwart of vergrijsd hout.

  • Eventuele onderdelen voor technische installaties worden uit het zicht en in een kleur passend bij het ontwerp uitgevoerd.

  • De plaatsing van zonnepanelen is onderdeel van het ontwerp waarbij een rechthoekig vlak uitgangspunt is.

Overgang met openbare ruimte

  • Veranda/ pergola als buitenruimte meegenomen in het hoofdvolume.

afbeelding binnen de regeling

afbeelding binnen de regeling

schuurvolume

afbeelding binnen de regeling

buitenruimte als onderdeel van bouwvolume

afbeelding binnen de regeling

(1) eenvoudig schuurvolume

afbeelding binnen de regeling

(2) verschill tussen langs- en kopgevels

afbeelding binnen de regeling

(3) veranda

afbeelding binnen de regeling

(4) materiaal en verticaliteit in gevelontwerp